Электроснабжение цементно-шиферного завода

  • Вид работы:
    Дипломная (ВКР)
  • Предмет:
    Физика
  • Язык:
    Русский
    ,
    Формат файла:
    MS Word
    2,9 Мб
  • Опубликовано:
    2013-06-15
Вы можете узнать стоимость помощи в написании студенческой работы.
Помощь в написании работы, которую точно примут!

Электроснабжение цементно-шиферного завода













Тема: «Электроснабжение цементно-шиферного завода»

Исходные данные на проектирование

. Схема генерального плана завода.

. Сведения об электрических нагрузках по ценам завода.

. Питание завода может быть осуществлено от ТЭЦ соседнего завода. На ТЭЦ установлены четыре турбогенератора по 25 МВт, напряжением 10,5 кВ. Генераторы работают параллельно. На ТЭЦ имеется повышающая подстанция с двумя трансформаторами мощностью по 25 МВ А, напряжением 11/38,5/115 кВ.

. Расстояние от ТЭЦ до завода 9,6 км.

. Завод работает в две смены.

РЕФЕРАТ

В дипломном проекте были проработаны следующие разделы: расчет электрических нагрузок по заводу в целом и по механическому цеху; выбор схемы высшего электроснабжения; выбор числа и мощности трансформаторных подстанций; выбор и расчет схемы внутреннего электроснабжения; расчет токов КЗ; выбор аппаратов защиты и кабелей; расчет релейной защиты и автоматики; расчет внутрицеховой электрической сети; безопасность и экологичность; экономика.

В ходе выполнения дипломного проекта были проведены расчеты реактивной мощности подлежащее компенсации, был проведен выбор выключателей, разъединителей, трансформаторов тока, трансформаторов собственных нужд подстанции, ОПН, средств релейной защиты.

Введение


В данном дипломном проекте рассмотрим электроснабжение цементно-шиферного завода, расположенного в девяти километрах от источника электроэнергии.

На территории завода имеется девятнадцать цехов, несущие определенные силовые и осветительные нагрузки.

Особенностью данного дипломного проекта является наличие синхронных двигателей (дымососов), записывающихся непосредственно от главной понизительной (распределительной) подстанции завода, напряжением 10 кВ. остальные электроприемники завода имеют номинальное напряжение 380/220 В. На территории завода нет особо - опасных - взрыво, пожароопасных или химических производств, следовательно, при проектировке можно выбирать трансформаторы с масляным охлаждением, осуществлять прокладку кабелей в алюминиевой оболочке.

Внешнее электроснабжения завода можно осуществить тремя способами:

напряжение 110 кВ - воздушной линией на железобетонных опорах;

напряжением 35 кВ - воздушной линией на железобетонных опорах;

напряжением 10 кВ - кабельной линией, проложенной в земле.

Из трех вариантов выбирается наиболее экономичный, и устанавливается ГПП (ГРП) с учетом розы ветров - для уменьшения загрязнения подстанции.

В проекте необходимо обеспечить высокую надежность электроснабжения потребителя, надлежащее качество напряжения и наименьшее потери электроэнергии при капитальных минимальных затратах. Для этого потребители I категории напитываются отдельными линиями, а на шинах ГПП (ГРП) и отдельных цеховых ТП устанавливаются компрессирующие устройства.

Необходимо рассчитать релейную защиту оборудования, защиту низковольтной сети, выполнить условия безопасности и экологичность, а также обеспечить обслуживание энергохозяйства завода квалифицированным персоналом.

1. Краткая характеристика потребителей электроэнергии. Роза ветров


Таблица 1 - Краткая характеристика потребителей

Цех №

Наименование цехов

Категория

Производственная среда

1

Печной цех. Холодный конец печей

I

жаркая

2

Печной цех. Горячий конец печей

I

жаркая

3

Горизонтальный шламбассейн

II

нормальная

4

Склад сырья

II

нормальная

5

Отделение сырьевых мельниц

II

пыльная

6

Склад клинкера

II

нормальная

7

Отделение цементных мельниц

II

пыльная

8

Сушильное отделение

II

нормальная

9

Вертикальный шламбассейн

II

нормальная

10

Материальный склад

III

нормальная

11

Механический цех

II

нормальная

12

Электроремонтный цех

II

нормальная

13

Дымососы: синхронные двигатели 10 кВ

I

нормальная

14

Склад огнеупоров

II

нормальная

15

Компрессорная

I

нормальная

16

Насосная

I

нормальная

17

Автогараж

III

нормальная

18

Административное здание

III

нормальная

19

Шиферный завод

I

нормальная


Электрические нагрузки завода:

Наименование цехов

Кол-во эл. приемников

Установленная мощность, кВт




Одного эл. приемника, Рном.

Суммарная ΣРном.

1

Печной цех. Холодный конец печей

28

2,8…50,0

550

2

Печной цех. Горячий конец печей

32

2,8…50,0

640

3

Горизонтальный шламбассейн

18

2,8…50,0

280

4

Склад сырья

6

4,5…40,0

100

5

Отделение сырьевых мельниц

25

4,5…100,0

1200

6

Склад клинкера

12

4,5…30,0

180

7

Отделение цементных мельниц

21

10,0…100,0

750

8

Сушильное отделение

19

10,0…75,0

800

9

Вертикальный шламбассейн

18

2,8…40,0

250

10

Материальный склад

12

4,5…20,0

140

11

Механический цех

См. приложение 1

12

Электроремонтный цех

43

1,0…40,0

740

13

Дымососы: синх. Дв. 10 кВ

2

1000

2000

14

Склад огнеупоров

8

4,5…10,0

45,0

15

Компрессорная

14

1,0…40,0

350

16

Насосная

20

20,0…50,0

750

17

Автогараж

15

1,0…20,0

90

18

Административное здание

45

1,0…40,0

450

18

Шиферный завод

85

1,0…20,0

1200



Электроприёмники механического цеха:

№ приёмника на плане

Наименование приёмника

Установленная мощность, кВт, по вариантам



1

2

3

4

5

6

7

8

9

10

1

Круглошлифовальный станок

11,6

11,1

14,2

9,3

11,4

12,5

11

11,8

12,8

5,3

2,8,9

Плоскошлифовальный станок

7,1

8,3

6,8

5,2

JA

6,5

6,5

8

4,7

5,8

3,4,5

Токарный станок

3,6

4,7

5

4,1

4,7

4,5

5

4,2

4,8

3,6

6,7

Универсальный фрезерный станок

3

2,6

3,6

3,2

3,8

3

3,2

3,2

5

2,6

10, 19,20,26

Точильный станок

2,2

1,5

1,8

2,2

2,8

2,2

1,5

1,8

2,2

2,2

11...13,24,25

Сверлильный станок

2,6

2,4

3,6

2,8

2,2

2,6

2,4

2,8

2,4

2,2

14...16, 36...38

Токарно-винторезный станок

11,7

8,7

15

11,7

8,7

12,7

9,7

13

11,2

9,1

17

Пресс гидравлический

10

7,5

10

5,5

7,5

10

7,5

10

5,5

7,5

18,21

Кран мостовой, ПВ=25%

19,9

20,7

18,8

16,8

18,2

14,4

20,7

18,7

18,8

18,8

22,23

Пресс холодного выдавливания

40

55

40

55

40

55

40

55

40

55

27,31

Вентилятор калорифера

4,5

5,5

7,5

5,5

4,5

7,5

5,5

4,5

4,5

5,5

28,34

Пресс кривошипный

30

40

25

30

25

30

40

25

30

29,30,32,33

Долбёжный станок

4

5,5

4

5,5

4

5,5

4

5,5

4

5,5

35

Резьбонарезной станок

30

25

35

40

35

40

35

30

25

35

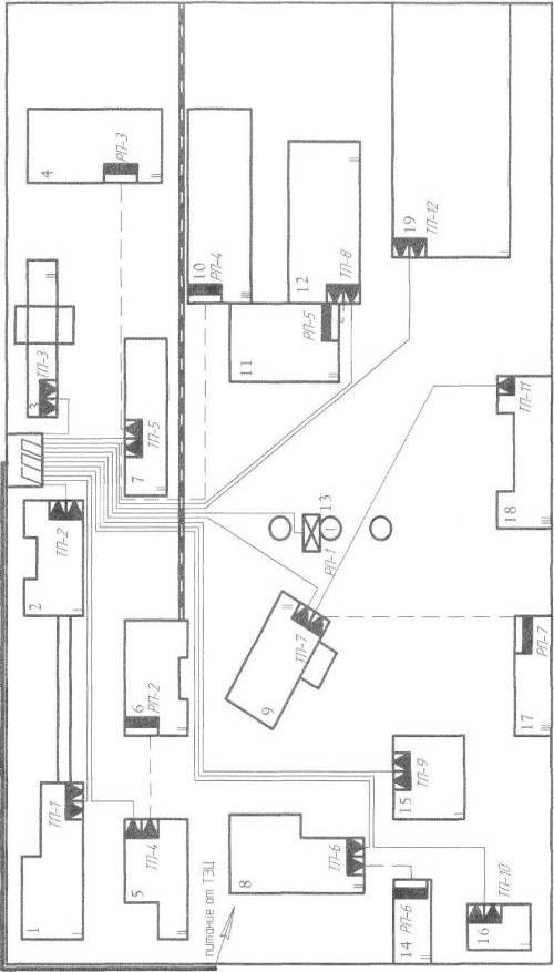
Генеральный план цементно-шиферного завода

Рисунок 1 - Роза ветров

2. Расчет электрических нагрузок

 

.1 Расчет электрической нагрузки механического цеха


Определение расчетных нагрузок производим методом порядочных диаграмм, то есть с мощью коэффициентов использования Ки и расчетной мощности Кр. Для этого, используя генплан цеха, производим предварительное распределение всех электроприемников по питанию от распределительных пунктов (силовых шкафов). Так как в цехе 45 приемников, то устанавливаются 4РП, питание к которым подводится по двум магистралям от двух секций шин (т.к II категория).

Покажем определение расчетной мощности на примере РП-1.

Соотношения между номинальными, средними и расчетными мощностями следующие:

Рс = Ки * Рном, кВт;                                                                     (1)

Qc = Pc*tg φ, квар;                                                                        (2)

кВа.                                                                         (3)

где Ки - коэффициент использования, о.е,φ - тангенс угла φ, соответствующий cos φ

Pc = 0,13*11,4 = 1,428 кВа;с = 1,482*2,29 = 3,39 квар;

кВа.

Групповой коэффициент использования определяем по формуле:

                                                                             (4)

Групповой коэффициент мощности определим:

                                                                              (5)

                                                                                (6)

Рр = Рс * Кр, кВт,                                                                         (7)

где Кр - коэффициент расчетной нагрузки.

= l,lQc, если n0≤10,                                                                        (8)= Qc, если nэ > 10,                                                                            (9)

Для РП-1 определим:

Для каждого распределительного пункта определяем эффективное число приемников:

                                                                                   (10)

Зная nэ и Ки, гр, определяем Кр.

Для РП-1:

Кр = 1,96;

Рр = 23,447* 1,96=45,96 кВт.

Для других электроприемников результаты расчетов сводим в таблицу 2. После вычисления расчетных нагрузок сравниваем нагрузки по магистралям. Разница не должна превышать 30%.

Таблица 2 - Определение расчетных нагрузок по цеху

Наименование

n, шт

Рном, кВт

ΣРн, кВт

Ки

cosφ

Рс, кВт

Qc, квар

Sc, кВa

кр

кВт

Qр, квар

Sp, кВа







tgφ









1

2

3

4

5

6

7

8

9

10

11

12

13

14

15


РП-1














1

Круглошл. ст.

1

11,4

11,4

0,13

0,4 2,29

1,482

3,39

3,7






8,9

Плоскошл. ст.

2

7,5

15

0,13

0,4 2,29

1,95

4,466

4,872






10,19,20

Точильный станок


2,8

8,4

0,1

0,7 1,02

0,84

0,858

1,2






17

Пресс гидравл.

1

7,5

7,5

0,17

0,65 1,169

1,275

1,49

3,847






27

Вентил. калор.

1

4,5

4,5

0,7

0,8 0,75

3,15

2,363

3,938






28,34

Пресс кривош.

2

30

60

0,17

0,65 1.169

10,2

11,92

15,69






35

Резьбонар. ст.

1

35

35

0,13

0,5 1,73

4,55

7,87

9,09







Итого

11

2,8-30

141,8

0,165

0,59 1,38

23,45

32,36

40

6

1,96

45,9

35,6

58


РП-2














2

Плоскошл. ст.

1

7,5

7,5

0,13

0,4 2,29

0,975

2,233

2,436






3,4,5

Токарный ст.

3

4,7

14,1

0,13

0,4 2,29

1,833

4,2

4,581






6,7

Унив. фрез. ст.

2

3,8

7,6

0,13

0,4 2,29

0,988

2,26

2,468






11-13

Сверл.станок


2,2

6,6

0,13

0,5 1,73

0,858

1,485

1,713






18

Кран мостовой

1

18,2

18,2

0,2

0,5 1,73

3,64

6,297

7,27






22,23

Пресс хол. выд.

2

40

80

0,17

0,65 1,169

13,6

15,9

20,92







Итого

12

2,2-40

134

0,16

0,56 1,48

21,89

32,38

39

4

2,35

51,5

35,6

62,5'


РП-3














21

Кран мостовой

1

18,2

18,2

0,2

0,5 1,73

3,64

6,297

7,27






29,30. 32,33

Долбежный станок

4

4

16

0,13

0,5 1,73

2,08

3,6

4,156






36-38

Ток.-винт. ст.


8,7

26,1

0,13

0,5 1,73

3,393

5,87

6,78






39

Ножницы диск.

1

5,5

5,5

од

0,7 1,02

0,55

0,561

0,78






40

Свароч. преоб.

1

28

28

0,4

0,5 1,73

11,2

19,38

22,38






41

Вентил. вытяж.

1

10

10

0,7

0,8 0,75

7

5,25

7,425







Итого

11

4-28

103,8

0,27

0,56 1,48

27,86

40,95

49,5

7

1,23

34,3

45,1

56,6


РП-4














14-16

Ток.-винт. ст.


8,7

26,1

0,13

0,5 1.73

3,393

5,87

6,78






24,25

Сверл, станок

2

2 2

4,4

0,13

0,5 1,73

0,572

0,99

1,142






26

Точил.станок

2,8

2,8

0,1

0,7 1,02

0,28

0,286

0,4






31

Вентил. калор.

1

4,5

4,5

0,7

0,8 0,75

3,15

2,363

3,938






44,45

Гильотин, нож.

2

13

26

0,1

0,7 1,02

2,6

2,652

3,714






43

Свароч. преоб.

1

28

28

0,4

0,5 1,73

11,2

19,38

22,38






42

Вентил. вытяж.

1

10

10

0,7

0,8 0,75

7

5,25

7,425







Итого

11

2,2-28

101,8

0,28

0,6 1,3

28,19

36,79

46,35

7

1,23

34,7

40,5

53,3


1 магистраль (РП-1 +РП-2)











97,4

71,2

120


2 магистраль (РП-3 + РП-4)











68,9

85,5

110


Итого по цеху






101,4

142,5

174,9



166

157

230



Сравнение нагрузок по магистралям:

,                                                                     (11)

 <30%.

Рисунок 2 - Электрические нагрузки механического цеха

2.2 Расчет электрической нагрузки завода


Расчет электрической нагрузки завода аналогичен расчету электрической нагрузки цеха.

Расчет nэ:

если n ≥ 4 и отношение                                         (12)

то nэ = n

если m >3 и Ки > 0,2, то                                        (13)

Результаты расчетов сведены в таблицу 3.

Таблица 3 - Расчетная нагрузка завода

Наименование цехов

Цех,№

n, шт.

Рном, кВт

ЕРн, кВт

m

Ки

coscp

Рс, кВт

Qc, квар

Sc, кВа

кр

Рр, кВт

Qp, квар

Sp, кВа








tgφ









Печ. цех. Хол конец печей

1

28

2,8..50

550

18

0,7

0,7 1,02

385

392,7

550

22

1

385

392,7

550

Печ. цех. Гор конец печей

2

32

2,8..50

640

18

0,7

0,7 1,02

448

457

640

26

1

448

457

640

Гориз. шламб


18

2,8..50

280

18

0,7

0,7 1,02

196

200

280

11

1

196

200

280

Склад сырья

4

6

4,5..40

100

9

0,2

0,7 1,02

20

20,4

28,6

5

1,72

34,4

22,4

41

Отд-е сырьев. мельниц

5

25

4,5.. ..100

1200

22

0,6

0,75 1,88

720

633,6

960

24

1

720

633,6

959

Склад клинк.

6

12

4,5..30

180

7

0,2

0,7 1,02

36

36,7

51,4

12

1,32

47,5

36,7

60

Отделение цем. мельниц

7

21

10.. ..100

750

10

0,6

0,75 1,88

450

396

600

15

1

450

396

599

Суш. отдел-е

8

19

10..75

800

7,5

0,4

0,8 0,75

320

240

400

19

1

320

240

400

Верт. шламб.

9

18

2,8..40

250

14

0,7

0,7 1,02

175

178,5

250

13

1

175

178,5

250

Матер, склад

10

12

4,5..20

140

4

0,2

0,7 1,02

28

28,56

40

12

1,32

36,9

28,6

46,7

Механ. цех

11

45

2,2..40





101,4

142,5

175



166,4

156,7

230

Электроремонтный цех

12

43

1..40

740

40

0,3

0,7 1,02

222

226,4

317

37

1

222

226,4

317

Склад огнеуп.

14

8

4,5..10

45

2

0,2

0,7 1,02

9

9,18

12,9

8

1,48

13,32

10,1

16,7

Компресс-я

15

14

1..40

350

40

0,7

0,8 0,75

245

183,8

306

14

1

245

183,8

306

Насосная

16

20

20..50

750


0,7

0,8 0,75

525

393,8

656

20

1

525

393,8

656

Автогараж

17

15

1..20

90

20

0,2

0,8 0,75

18

13,5

22,5

9

1,43

14,85

30

Адм. здание

18

45

1..40

450

40

0,5

0,7 1.02

225

229,5

321

23

1

225

229,5

321

Шиферный завод

19

85

1..20

1200

20

0,8

0,8 075

960

720

1200

85

1

960

720

1200

Дымососы: СД 10 кВ

13

2

1000

2000

-

0,7

08 0,75

1400

-

1750

2

2

2800

-

2800

ИТОГО










8561





9933



Далее определим осветительную нагрузку завода Ро по удельной мощности на единицу площади ρо, площади цехов F (м2) и коэффициенту спроса освещения Ксо:

=ρо*Kco*F*l0-3.                                                                 (14)

Принимаем Ксо=0,8, люминесцентные лампы, коэффициент мощности которых:

cosφ = 0,8, tgφ = 0,75.

Находим реактивную мощность люминесцентных ламп:

= Po * tgφ.                                                                             (15)

Для первого цеха:

Ро = 2812,5* 15*0,8* 10-3 = 33,75 кВт;= 33,75*0,75 = 25,31 квар;

кВа.

Полученную осветительную нагрузку складываем со средней и расчетной нагрузками:

                                                         (16)

                                                          (17)

кВа

кВа

Данные для других цехов занесем в таблицу 4.

Таблица 4 - Нагрузка завода с освещением

Цех, №

F, м2

ро, Вт/м2

Ро, кВт

Qo, квар

So, кВа

Рс, кВт

Qc, квар

Рс', кВт

Qс’, квар

Sc’ кВа

Рр, кВт

Qp, квар

Qp’ квар

Рр’ кВт

S'p, кВа

1

2

3

4

5

6

7

8

9

10

11

12

13

14

15

16

1

2813

15

33,8

25,31

42,2

385

392,7

418,8

418

591,7

385

392,7

418

418,8

591,7

2

2331

15

27,9

20,98

35

448

457

475,9

478

574,6

448

457

478

476

674,6

3

2188

10

17,5

13,13

21,9

196

200

213,5

213

301,7

196

200

213

213,5

301,7

4

3750

12

36

27

45

20

20,4

56

47

73,4

34,4

22,4

49

70,4

86

5

2038

16

26,1

19,56

32,6

720

633,6

746

653

992

720

633,6

653

746

991,6

6

2488

12

23,9

18

29,9

36

36,7

59,9

55

81

47,5

36,7

55

71,4

90

7

2188

16

26

19,5

32,5

450

396

476

115,5

632

450

396

415

476

632

8

2719

12

26,1

19,6

32,6

320

240

346

260

432,6

320

240

260

346

432,6

9

2369

10

19

14,2

23,7

175

178,5

194

193

273,4

175

178,5

192,7

194

273,4

10

3938

10

31,5

23,6

39,4

28

28,56

59,5

52

79

36,9

28,6

52

68,5

86

11

864

14

9,68

7,26

12,1

101,4

142,5

111

150

186,5

166

156,7

164

176

240,6

12

3281

14

36,8

27,6

45,9

222

226,4

258,7

254

362,6

222

226,4

254

259

362,6

13

368

12

3,53

2,65

4,4

1400

-

1404

-

1404

2800

_

-

2804

2804

14

956

10

7,65

5,74

9,56

9

9,18

16,65

14,9

22,4

3 32

10,1

15,8

21

26,3

15

1806

12

17,3

13

21,7

245

183,8

262,3

96,8

328

245

183,8

197

262

328

16

938

12

5

3,75

6,25

525

393,8

530

562,5

525

393,7

398

530

662,5

17

1563

15

16,3

12,2

20,3

18

13,5

34,3

26

42,8

25,74

14,9

27

42

50

18

2338

20

37,4

28

46,8

225

229,5

262,4

258

367,6

225

230

258

262

367,6

19

9619

18

138,5

103,8

173

960

720

1099

824

1373

960

720

824

1099

1373

Территория

122 074

0,17

16,6

12,5






20,8





20,8

Итого










9252





10624

Для представления о значениях нагрузок по цехам и их структуре (силовой и осветительной) построим картограмму нагрузок.

Картограмма нагрузок строится на основе выражений:

                                                                                   (18)

где Ri - радиус круга для i-ro цеха, см;'pi -расчетная мощность i-ro цеха, включая освещение, кВа;- масштаб изображения,

                                                                                 (19)

где а - угол для сектора, площадь которого пропорциональна осветительной нагрузке,- полная мощность осветительной нагрузки, кВа. Данные для цехов приведены в таблице 5.

Вычислим нахождение центра электрических нагрузок, используя формулы:


где Xi, Yi - координаты соответствующих центров цеховых нагрузок, см.

см

Аналогично получаем Уо = 6,14 см.

Таблица 5 - Построение картограммы нагрузок

№ цеха

Sp’ кВa

So, кВa

m, кВa/см2

R, см

а,о

1

591,7

42,19

135

1,18

26

2

674,6

35

135

1,26

19

3

301,7

21,88

135

0,84

26

4

86

45

135

0,45

188

5

991,6

32,6

135

1,5

12

6

90

29,85

135

0,46

119

7

632

32,5

135

1,22

19

8

432,6

32,6

135

1

27

9

273,4

23,68

135

0,8

31

10

86

39,38

135

0,45

165

11

240,6

12,1

135

0,75

18

12

362,6

45,9

135

0,9

46

13

3033

4,4

240

2

1

14

26,3

9,56

16

0,7

131

15

328

21,67

135

0,8

24

16

662,5

6,25

135

1,25

3

17

50

20,3

16

1

146

18

367,6

138

135

0,9

138

19

1373

173

135

1,8

45



Рисунок 3 - Картограмма нагрузок

3. Выбор количества и мощности цеховых трансформаторов. Компенсация реактивной мощности


Для питания внутризаводской сети выбираем напряжение 10 кВ, так как имеются электроприемники (синхронные двигатели) данного напряжения.

Согласно ПУЭ для электроснабжения цехов I и II категорий принимаем двухтрансформаторные подстанции (двухсекционные распредпункты), а для цехов III категории - однотрансформаторные (односекционные).

Если нагрузка цеха превышает 250 кВа, то будем выбирать трансформаторы, иначе - распределительные пункты.

Условия выбора трансформаторов:

1)                                                                           (20)

где Sc - среднесменная нагрузка цеха;

βн - номинальный коэффициент нагрузки трансформаторов, принимаемый:

для I категории βн = 0,55 - 0,7;

для II категории βн = 0,7 - 0,8;

для III категории βн = 0,9 - 0,95.

)                                                                                  (21)

условие надежной работы в послеаварийном режиме.

Далее проверяется загрузка трансформатора

трансформатор электрический мощность цех

                                                                                (22)

Для I категории должно выполняться условие β ≥ 0,5, а для II категории β ≥ 0,55.

Затем проверяем необходимость установки компенсирующих устройств на стороне 0,4 кВ. для этого определяем величину наибольшей реактивной мощности, которая может быть передана со стороны 10 кВ без увеличения числа и мощности применяемых трансформаторов по формуле:

                                                                    (23)

где β - коэффициент загрузки, принимаемый равным 0,7 для потребителей I категории, 0,8 - для II категории, 0,93 - III категории.

Тогда количество реактивной мощности, которое нужно скомпенсировать:

0,4 = Q’р-Q1                                                                                  (24)

Для первого цеха:

 кВа

Выбираем 2 * ТМ - 630/10

 кВа

.

Так как трансформаторы оказываются недогруженными, то выберем трансформаторы

ТМ-400/10 и произведем компенсацию реактивной мощности.

квар;

Q0,4 = 418 - 371,8 = 46,2 квар.

Выбираем 2БК*25 квар : ККT(H)-0,38-Q УЗ;БК = 2*25 = 50 квар;

"р = Qр' - QБК = 418-50 = 368 квар;                                            (25)

                                                                               (26)

 кВа.

Вновь проверим условие:

кВа;                                                          (27)

Расчеты для других цехов сведем в таблицу 6. Для других цехов устройства компенсации не устанавливаются (Q0,4< 0).

Таблица 6 -         Выбор трансформаторов

№ ТП

Категория

Зонаохвата

РаспТП

Sc, кВа

Sp, кВа

Sном.т, кВа

βm

βов

QНБК0,4 квар

Sp’, кВa

β’m

β‘ав

Примечание

1

I

1

1

591,7

591,7

400

0,74

1,48

50

557

0,7

1,4


2

I

2

2

674,6

674,6

630

0,55

1,1


674,6

0,55



II

3

3

301,7

301,7

250

0,6

1,2


301,7

0,6

1,2


4

II

5,6

5

1073

1073

1000

0,54

1,08

-

1073

0,54

1,08


5

II

4,7,10

7

784,4

804

630

0,64

1,28

-

804

0,64

1,28


6

II

8,14

8

455

458,9

400

0,57

1,14


458,9

0,57

1,14


7

11,111

9,17

9

316,2

323,4

250

0,65

1,3


323,4

0,65

1,3


8

II

11,12

12

549,1

603,2

400

0,75


603,2

0,75

В послеаварийном реж. Допускается откл-е эл. прием-ков. III категор.

9

I

15

15

328

328

250

0,66

1,32

-

328

0,66

1,32


10

I

16

16

662,5

662,5

630

0,53

1,06


662,5

0,53

1,06


11

III

18

18

367,6

367,6

400

0,92

-


367,6

0,92

-


12

I

19

19

1373

1373

1000

0,69

1,38

-

1373

0,69

1,38




Вычислим реактивную мощность, которую необходимо скомпенсировать на стороне 10 кВ, установив батареи конденсаторов на ГПП. Их мощность для одной секции шин определяется:

                                                (28)

где С-количество секций шин;

 - реактивная мощность, определяемая по формуле

                                                               (29)

- потери реактивной мощности в силовых трансформаторах, квар:

                                            (30)

 - реактивная мощность приемников, подключенных к сети 6-10 кВ в (для данного дипломного проекта QB = 0);сист - реактивная мощность, получаемая из энергосистемы;

                                                                               (31)

сист = 0,33 * 8535,13 = 2816,59 квар.

ΔQ’Т - потери реактивной мощности в трансформаторах ГПП:

ΔQ’Т = 0,l *SнтГПП.                                                                     (32)

ТП-1: квар.

Qв-н = 418 - 50 + 23,1 = 391,1 квар;

ТП-2: ΔQТ = 34,728 квар;

Qв-н = 512,7 квар;

ТП-3: ΔQТ = 14,875 квар;

Qв-н = 228 квар;

ТП-4: ΔQТ =45,55 квар;

Qв-н = 753,32 квар;

ТП-5: ΔQТ = 36,288 квар;

Qв-н = 553,378 квар;

ТП-6: ΔQТ = 21,93 квар;

Qв-н = 297,37 квар;

ТП-7: ΔQТ =15,156 квар;

Qв-н = 234,896 квар;

ТП-8: ΔQТ =23,55 квар;

Qв-н = 441,51 квар;

ТП-9: ΔQТ =15,213 квар;

Qв-н = 212,013 квар;

ТП-10: ΔQТ =34,382 квар;

Qв-н = 431,882 квар;

ТП-11: ΔQТ = 24,96 квар;

Qв-н = 282,46 квар;

ТП-12: ΔQТ = 50,425 квар;

Qв-н = 874,425 квар;

ΣQв-н = 5213,063 квар;

                                                                     (33)

 квар.

Предварительно выберем трансформаторы на ГПП:

                                                                        (34)

кВа

* ТДН-10000

Принимаем ΔQТ =2*0,1*10000=2000 квар;

квар.

Выбираем 2 комплектные КУ: У - 10 - 1125УЗ (1125 квар);ку = 2250 квар.

Получим суммарную нагрузку по заводу:

;                                                       (35)

кВа.

4. Сравнение вариантов и выбор схемы внутризаводской сети


По эксплуатационным и техническим соображениям все цехи, кроме 18, запитываются однозначно по радиальной схеме. Так, к примеру, цехи № 1, 2, 15, 16, 19 имеют I категорию, а следовательно запитываются непосредственно от ГПП (ГРП); дымососы (№13) являются единственными электроприемниками на 10 кВ; цехи № 3, 7 находятся в непосредственной близости от ГПП (ГРП) и целесообразней запитывать их отдельно. Сравнение вариантов производим по данным цен учебного пособия [5] и справочника [6] .

) Радиальная схема

ГПП (ГРП) - административное здание 18

По условиям допустимого нагрева и экономической плотности тока производим выбор кабельной линии:

,                                                                                   (36)

где n-количество кабелей (для I, II категорий n = 2, для III категории n = 1).

A

Экономическое сечение:

                                                                                            (37)

где j - экономическая плотность тока (для КЛ );

мм2

Выбираем Fcт = 16мм2, Iдоп = 15А

Потери электроэнергии в линии:

ΔА = 3 * I2р * R * τм * 10-3,τ = 5000 ч.                                       (38)

Сопротивление линии:= 1995 * 0,325 = 0,634Oм;

Х = 0,11 * 0,325 = 0,036 Ом;

Стоимость кабельной линии:

К = 1,76 * 0,325 = 0,572 тыс.руб.

Вычислим потери напряжения в линии:

                                                                               (39)

                                                                             (40)

В

ΔU% = 0,18%.

ГПП (ГРП) - 9 цех

A

мм2

Выбираем Fст = 16мм2, Iдоп = 75А.

Проверяем по нагреву:

ав ≤ I’доп                                                                                       (41)

Iав = 2 * Ip = 2 * 9,34 = 18,68А;                                                   (42)

I’доп = Кп * Кaв * Iдоп,                                                                (43)

где Кп - коэффициент снижения нагрузки, учитывающий дополнительный нагрев кабеля при совместной прокладке;

Кав - коэффициент допустимой аварийной перегрузки кабеля;

I’доп = 0,9 * 1,25 * 75 = 84,375А.

Условие Iав≤ I’доп выполняется.= 1,95 * 0,225 = 0,439Oм;

Х = 0,11 * 0,225 = 0,025 Ом.

К = 2 * 1,76 * 0,225 = 0,792 тыс.руб.;

В

ΔU% = 0,045%.

Издержки на возмещение потерь для радиальной схемы:

Ином = С*Δ4Σ,                                                                              (44)

где С - стоимость 1 кВт*ч (данное в задании);

Издержки на амортизацию кабельной линии:

,                                                                               (45)

Издержки на амортизацию выключателей:

                                                                               (46)

КВΣ = n * Кя,                                                                                 (47)

где KBΣ - стоимость выключателей,количество выключателей,

Кя - стоимость одной ячейки КРУ с выключателем.

Кя =2,65 тыс.руб.

КВΣ = 3 * 2,65=7,95 тыс.руб.


И = Иа,л + Иа,в + Ином;                                                               (48)


К = КΣ + КBΣ;                                                                               (49)

К = 0,572 + 0,792 + 7,95 = 9,314 тыс.руб.

Тогда приведенные затраты для данного варианта:

З = Еn * К + И,                                                                              (50)

где Еn - нормативный коэффициент эффективности;


Рисунок 4 - Радиальная схема внутреннего электроснабжения завода

2) Смешанная схема

Цех №9 - административное здание 18

Ip =21,2A; Fст = 16мм2; Fэ = 5,14мм2; = 1,95 * 0,163 = 0,318Oм;

Х = 0,11 * 0,163 = 0,018Ом;

К = 1,76 * 0,163 = 0,287 тыс.руб.;

В

ΔU% = 0,09%.

ГПП (ГРП) - цех №9

A

мм2

Выбираем Fст = 16мм2, Iдоп = 75А.

Проверяем по нагреву:

Iав = 2 * 19,95 =39,9А;

I’доп = 0,9 * 1,25 * 75 = 84,375А;

,9 < 84,375А

R = 1,95 * 0,225 = 0,439Ом,

Х = 0,11 * 0,225 = 0,25Ом,

; К = 0,792 тыс.руб.;

ΔU = 11В; ΔU% = 0,11%.

Σ = 2 * 2,65 = 5,3 тыс.руб.;

И = 0,032 + 0,334 + 0,17 = 0,536

К = 0,287 + 0,792 + 5,3 = 6,379 тыс.руб.;

З = 0,12 * 6,379 + 0,536 = 1,3

Сравним варианты:

                                                                    (51)

Выбираем смешанную схему, как экономически выгодную.

Вычислим потери напряжения на других участках внутризаводской сети.

ГПП (ГРП) - 1 цех

A

мм2; Fст = 16мм2; Iдоп = 75А.

R = 0,39Ом; Х = 0,22Ом,

ΔU = 9В; ΔU% = 0,09%.

ГПП (ГРП) - 2 цех

A

мм2; Fст = 16мм2; Iдоп = 75А.

R = 0,49Ом; Х = 0,0028Ом,

ΔU = 1В; ΔU% = 0,01%.

ГПП (ГРП) - 3 цех

A

мм2; Fст = 16мм2; Iдоп = 75А.

R = 0,39Ом; Х = 0,0022Ом,

ΔU = 0,4В; ΔU% = 0,004%.

ГПП (ГРП) - 5 цех

A

мм2; Fст = 25мм2; Iдоп = 90А.

R = 0,329Ом; Х = 0,026Ом,

ΔU = 14В; ΔU% = 0,14%.

ГПП (ГРП) - 7 цех

A

мм2; Fст = 16мм2; Iдоп = 75А.

R = 0,117Ом; Х = 0,0066Ом,

ΔU = 4В; ΔU% = 0,04%.

ГПП (ГРП) - 8 цех

A

мм2; Fст = 16мм2; Iдоп = 75А.

R = 0,878Ом; Х = 0,05Ом,

ΔU = 17В; ΔU% = 0,17%.

ГПП(ГРП)-12цех

A

мм2; Fст = 16мм2; Iдоп = 75А.

R = 0,659Ом; Х = 0,037Ом,

ΔU = 15В; ΔU% = 0,15%.

ГПП (ГРП)-15 цех

A

мм2; Fст = 16мм2; Iдоп = 75А.

R = 0,858Ом; Х = 0,048Ом,

ΔU = 12В; ΔU% = 0,12%.

ГПП (ГРП)-16 цех

A

мм2; Fст = 16мм2; Iдоп = 75А.

R = 0,99Ом; Х = 0,056Ом,

ΔU = 27В; ΔU% = 0,27%.

ГПП (ГРП)-19 цех

A

мм2; Fст = 25мм2; Iдоп = 90А.

R = 0,475Ом; Х = 0,038Ом,

ΔU = 28В; ΔU% = 0,28%.

ГПП (ГРП) - РП 10 кВ (13 цех)

A

мм2; Fст = 95мм2; Iдоп = 205А.

R = 0,066Ом; Х = 0,016Ом,

ΔU = 8В; ΔU% = 0,08%.

Рисунок 5 - Смешанная схема внутреннего электроснабжения завода

 

5. Выбор внешнего напряжения и расчет питающих линий


Сравнение вариантов производим по данным цен учебного пособия [5] и справочника [6] .

вариант- 110 кВ

Стоимость РУ Ко=120 тыс. руб.

Питание осуществляется по одной двухцепной воздушной линии со сталеалюминиевыми проводами и железобетонными опорами.

Jэ = 1,1 А/мм2.

Расчетный ток одной цепи:

                                                                                (52)

A

мм2

ав = 2 * Ip                                                                                      (53)

ав = 2 * 23,526 = 47А.

По условию возможного коронирования принимаем минимально допустимое сечение:

АС-70/11, Iдоп = 265А, Kуд = 13,5

Rо = 0,428; Х = 0,444,

А > 265А; ΔU = 0,19%.

Стоимость линии:

Кл = Куд * l,                                                                                 (54)

Кл = 13,5 * 9,6 = 129,6 тыс. руб.

Стоимость трансформаторов ТДН-10000/110:

Кт = 2 * 36,5 = 73 тыс. руб.

Суммарные капитальные затраты:

КΣ = Кo + Кл + Кт;                                                                        (55)

 Σ = 120 + 129,6 + 73 = 322,6 тыс. руб.

Издержки на амортизацию ВЛ:

Издержки на амортизацию трансформаторов:

Издержки на амортизацию ОРУ:

Потери электроэнергии в линии:

ΔАл = n * ΔРном * К23 * l*τ                                                                  (56)

где n-количество линий,

ΔРном - удельные потери в одной цепи;

К3 -коэффициент загрузки линии,

l - длина линии;

                                                                                         (57)

Потери электроэнергии в трансформаторах:

                                                       (58)

ТДН-10000/110:

ΔРх = 8кВт, ΔРк = 68 кВт;

Издержки на возмещение потерь:

Ином = С * ΔАΣ                                                                                     (59)

Суммарные издержки:

И = 3,629 + 4,599 + 7,56 + 2,718 = 18,5

З = 0,12 * 322,6 + 18,5 = 57,212

вариант - 35 кВ

Стоимость РУ Ко=13 тыс. руб.;

А

мм2

Iав = 2 * 73,94 = 147,88А

Принимаем воздушную линию с проводами

АС-70/11, Iдоп = 265А, Kуд = 10,7

Хо = 0,423; Rо = 0,428,

Потери напряжения в линии ΔU =1,9%;

Iав < Iдоп

Стоимость двухцепной линии:

Кл = 10,7 * 9,6 = 102,72 тыс. руб.

Стоимость трансформаторов:

Кт = 2 * 28,3 = 56,6 тыс. руб.

КΣ = 13 + 102,72 + 56,6 = 172,32 тыс. руб.

Издержки:

ТДН-10000/35:

ΔРх = 14,5 кВт, ΔРк = 65 кВт;

И = 2,876 + 3,566 + 0,819 + 28,08 = 35,341

З = 0,12 * 172,32+ 35,341 = 56,019

вариант - 10 кВ

Стоимость РУ Ко=6,3 тыс. руб.

А

Iав = 2 * 258,788 = 517,576А

Принимаем кабельную линию с медными жилами:

мм2

Выбираем Fст = 240 мм2, Iном = 570А, Куд = 10,86

Rо = 0,077; Хо = 0,075;

ΔU =4,12%;

517,576 < 570 A;

Kл =10,86 * 2 * 9,6 = 208,512 тыс.руб.;

KΣ = Kо + Kл,                                                                               (60)

Σ = 208,512 + 6,3 = 214,812 тыс. руб.

Издержки:

И = 5,838 + 0,397 + 42,78 = 49,015

З = 0,12 * 214,812+ 49,015 = 74,79

Зз >З1 > З2

                                                                                    (61)

Так как варианты 35 и 110 кВ оказываются равноэкономичными (ΔЗ<5%), то по условию дальнейшего расширения производства выбираем номинальное напряжение внешней сети 110 кВ (ГПП-110/10 кВ).

 

6. Проект ГПП

 

.1 Расчет токов КЗ


Расчет токов короткого замыкания необходим для выбора силовых выключателей, разъединителей, а также для проверки кабелей на термическую стойкость.

Для расчета токов КЗ построим схему замещения эл. сети и приведем параметры элементов схемы к базисной ступени напряжения Uб = 11кВ.

Сопротивление системы:

Ом,                      (62)

ЭДС системы Ес = 11кВ.

Сопротивление двухцепной линии АС-70/11:= 4,1Ом; Х = 4,26Ом;

Ом,                                       (63)

Ом,                                        (64)

Сопротивление трансформаторов системы:

Ом                                            (65)

Сопротивление трансформаторов ГПП

Ом                                            (66)

Сопротивления линий:

ГП - ТП1

Хкл = Хо * l (67); Rкл = rо * l (68)

Rкл = 0,39Ом; Хкл = 0,022Ом.

Сопротивление нагрузки:

,                                                                              (69)

Ом.

Так как , то ,                                                                 (70)

Ом

ЭДС нагрузки:

Ен = 0,85* Uн = 0,85 * 11 = 9,35 кВ

Данные других линий занесем в таблицу 7.

Таблица 7 -         Сопротивления линий

№ТП

Rкл, Ом

Хкл, Ом

Хн, Ом

Rн, Ом

Ен, кВ

Хтп, Ом

1

0,39

0,022

71,66

28,66

9,35

0,0171

2

0,049

0,0028

62,74

25

9,35

0,0136

3

0,039

0,0022

140,23

56

9,35

0,027

4

0,329

0,026

39,47

15,79

9,35

0,0086

5

0,117

0,0066

52,67

21,07

9,35

0,0136

6

0,878

0,05

92,27

36,9

9,35

0,017

7

0,439

0,025

131

52,45

9,35

0,027

8

0,659

0,037

70,23

28,1

9,35

0,017

9

0,858

0,048

129,1

51,65

9,35

0,027

10

0,99

0,056

63,88

25,55

9,35

0,0136

11

0,318

0,018

115

46

9,35

0,017

12

0,475

0,038

30,84

12,34

9,35

0,0086

13(РП-10кВ)

0,09

0,018

13,96

5,59

9,35

-


Сворачиваем схему замещения

Х* = Хс + Хтс + Хвл + ХГПП = 0,00088 + 0,315 + 0,019 + 1,27 = 1,605 (72)

R* = Rвл = 0,0188Ом                                                                    (73)

Расчет тока КЗ в точке К1

'l = X1 + Xтп + Xкл1 = 71,66 + 0,017 + 0,022 = 71,7 Ом            (74)’1 = R1 + Rкл1 = 0,39 + 28,66 = 29,05 Ом                                    (75)

'2 = 62,756 Ом;'2 = 25,049 Ом;

X’3= 140,26 Ом;'2 = 56,04 Ом;’3 = 39,5 Ом;'4 = 16,12 Ом;

X'5 = 52,69 Ом;

R'5 = 21,187 Ом;

X’6 = 92,337 Ом;

R'6 = 37,778 Ом;

Х'7=ХТП7 + Х7 = 0,027 + 131 = 131,027 Ом;                             (76)’7 = R7 = 52,45 Ом;

’11 = X11 + Xтп11 + Xкл11 = 115,035                                        (77)

 Ом                                                             (78)

Х”Σ = Х’Σ + Хкл7 =61,281 Ом                                                     (79)

Ом                                                              (80)”7 = R’Σ + Rкл7 = 25,036 Ом                                                 (81)

'8 = 70,284 Ом;

R'8 = 28,76 Ом;

X'9 = 129,175 Ом;

R'9 = 52,508 Ом;

X'10 = 63,95 Ом;

R'10 = 25,54 Ом;

X'12 = 30,887 Ом;

R'12 = 12,815 Ом;

X'13 = 13,978Ом;

R'13 = 5,68Ом;

Суммарные по заводу:

ХΣ = 4 Ом;

RΣ = 1,626 Ом;

ХΣ = 9,35 Ом;

 Ом                                            (82)

Ом                             (83)

кВ             (84)

Действующее значение периодической составляющей тока КЗ за первый период:

кА.                                       (85)

Ударный коэффициент

                                                                                    (86)

где Та - электромагнитная постоянная времени затухания апериодической составляющей тока КЗ

                                                        (87)


                                                                          (88)

Ударный ток КЗ:

кА                                        (89)

Действующее значение полного тока КЗ за первый период

кА                  (90)

Расчет тока КЗ в точке К2

Расчет тока КЗ для точки К2 ведем без учета тока подпитки от нагрузки.

Сопротивление системы:

 Ом                                             (91)

Ес = 115кВ.

Сопротивление ВЛ:

Ом                                                               (92)

Ом                                                                 (93)

Сопротивление трансформаторов системы:

Ом                                        (94)

Сворачиваем схему:

= Хс + Хтс + Хвл = 10,58+34,385+2,13=47,095 Ом                   (95)

R1 = Rвл = 2,05 Ом                                                                       (96)

Действующее значение периодической составляющей тока КЗ:

кА                                                                          (97)

кА                                                                    (98)

Ку = 1,87

Ударный ток КЗ:

iу = 3,129кA.

Действующее значение полного тока:

Iу = 2,22кА.

Расчет тока КЗ в точке К3

                                                        (99)

Х’полн = 1,166 Ом

                                                        (100)

’полн = 0,0186Ом

Х*10 = Х’полн + Хкл10 = 1,166 + 0,056 = 1,222 Ом                           (101)

R*10 = R’полн + Rкл10 = 0,0186 + 0,99 = 1,0086 Ом                          (102)

Х”10 = Х’10 + Хкл10 = 63,894 Ом                                                        (103)

R”10 = R’10 + Rкл10 = 24,55 Ом                                                 (104)

Ом                                                                 (105)

 Ом                                                          (106)

кВ

кА                                                                        (107)

Та = 0,0039

                                                                         (108)

Ударный ток КЗ:

iу = 3,028кA

Iу = 3,955кА

Данные других точек КЗ занесем в таблицу 8.

Таблица 8 - Расчет токов КЗ

Точка КЗ

Sp, кВА

Ipmax. А

I(3)к max' кА

I(2)к min' кА

1

2

3

4

5

Шины РУ-10(К1)

8964,675

517,56

5,3

4,99

Шины РУ-10(К2)

8964,675

47,052

1,4

1,212

ТП1

557

32,197

3,13

2,71

ТП2

674,6

38,99

3,57

3,12

ТПЗ

301,7

17,439

2,26

1,957

ТП4

1072,6

62

3,27

3,01

ТП5

804

46,474

3,11

2,89

ТП6

458,9

26,526

3,03

2,624

ТП7

691

39,942

3,24

2,91

ТП8

603,2

34,867

3,45

2,988

ТП9

328

18,96

2,4

2,078

Окончание таблицы 8

1

2

3

4

5

ТП10(КЗ)

662,5

38,295

3,93

3,63

ТП11

367,6

21,249

2,95

2,555

ТП12

1373

79,364

3,74

3,35

РП1

3033

175,318

4,2

3,9

РП2

90

130

2,63

2,278

РПЗ

86

124,277

2,65

2,295

РП4

86

124,277

2,5

2,165

РП5

230,5

333,09

3,3

3,118

РП6

26,3

38

1,87

1,619

РП7

50

72,254

2,02

1,749


Примечание: при расчете токов КЗ в местах с номинальным напряжением 0,4 кВ(КЗ в конце проводов идущих к РП) не учитывалось индуктивное сопротивление, так как оно было более чем в три раза меньше активного. Переходное сопротивление в местах присоединения низковольтных проводов учитывалось добавкой активного сопротивления равной 30 мОм. Активное сопротивление трансформаторов системы очень мало из-за их большой мощности, поэтому оно не учитывается. Расчет тока трехфазного КЗ ведется по максимальному режиму, при включенном секционном выключателе и вышедшей из строя второй питающей лини от подстанции системы. При расчете двухфазного тока КЗ принимается, что вторая линия остается в работе, а секционный выключатель выключен.

Рисунок 6 - схема замещения эл.сети завода для расчета КЗ

Проверка кабелей на термическую стойкость

Проверяем кабели внутризаводской сети по току КЗ в точке К1

Iкз = 5300А

                                                                               (109)

где С- температурный коэффициент (для алюминия С=95, для меди С=165), tпp - время приведения (время процесса КЗ); tпp = 0,1с;

Выбираем кабели для питания цехов минимальным сечением 25 мм2.

Таблица 9 -         Окончательный выбор кабелей внутризаводской сети

Участок

Sp, кВа

Iр,А

Iдоп, А

Fcm, мм2

R, Ом

х, Ом

Число кабелей

Uнom, кВ

ГПП-ТП1

591,7

17

90

25

0,25

0,02

2

10

ГПП-ТП2

674,6

19,5

90

25

0,03

0,0025

2

10

гпп-тпз

301,7

8,7

90

25

0,025

0,002

2

10

ГПП-ТП4

1072,6

31

90

25

0,329

0,026

2

10

ГПП-ТП5

804

23,2

90

25

0,075

0,006

2

10

ГПП-ТП6

459

13,2

90

25

0,563

0,045

2

10

ГПП-ТП7

691

20

90

25

0,281

0,023

2

10

ГПП-ТП8

603,2

17,4

90

25

0,423

0,034

2

10

ГПП-ТП9

328

9,5

90

25

0,55

0,044

2

10

ГПП-ТП10

662,5

19

90

25

0,638

0,051

2

10

ТП7-ТП11

367,6

21,2

90

25

0,4

0,016

1

10

ГПП-ТП12

1373

39,6

90

25

0,475

0,038

2

10

ГПП-РП1

3033

88

205

95

0,066

0,016

2

10

ТП4-РП2

90

65

75

25

0,094

0,007

2

0,38

ТП5-РПЗ

86

62

75

25

0,186

0,014

2

0,38

ТП8-РП5

230,5

166

200

120

0,313

0,023

2

0,38

ТП6-РП6

26,3

19

75

25

0,004

0,0012

2

0,38

ТП5-РП4

86

62

75

25

0,063

0,005

2

0,38

ТП7-РП7

50

72,3

75

25

0,188

0,014

1

0,38


6.2 Выбор аппаратуры Выбор выключателей и разъединителей


Выбор выключателей производим по условиям:

ном ≥ Uуст                                                                                    (110)

Iном ≥ Iрmax                                                                                 (111)

IОТКном ≥ I”                                                                                 (112)

iдин ≥ iуд                                                                                       (113)

Выбираем разъединители аналогично (кроме условия IОТКном≥ I”).

Таблица 10 - Выбор выключателей и разъединителей для РУ-10кВ

Расчетные данные

Каталожные данные


ВВТЭ-10-20/1000У2

РВ-10/400 УЗ

Uycт= 10 кВ

Uном = 10кB

Uном = 10кB

Ipmax = 311,55 А

Iном = 1000А

Iном = 400А

I" = 5,3кА

Iотк.ном = 12,5 кА

-

iу = 6,3 кА

iдин = 32кА

iдин = 52кА


Таблица 11 - Выбор выключателей и разъединителей для РУ-110кВ

Расчетные данные

Каталожные данные


HGF 1012

РНДЗ-110/630

Uycт = 110кВ

Uном = 110кB

Uном = 110кB

Ipmax = 320,2 А

Iном = 3150А

Iном = 630А

I” =1,4кА

Iотк.ном = 50 кА

-

iу= 3,129 кА

iдин = 150 кА

iдин = 100кА


Выбор разрядников

Для защиты трансформаторов на ГПП на стороне 110 кВ устанавливаются ограничители перенапряжений ОПН-110 У1, а на стороне 10 кВ - ограничители перенапряжений ОПН-10 У1, которые устанавливаются в ячейках КРУ.

Выбор шин ГПП

В РУ 35 кВ и выше применяются гибкие шины, выполненные проводами АС. Сечения гибких шин выбираются по условиям:

,                                                                                        (114)

Ipmax ≤ Iдоп,                                                                                 (115)

 = 320,2А

мм2

Принимаем для гибких шин

Fст = 240мм2, Iдоп = 610А

,2 < 610А.

Согласно ПУЭ при I(3)к < 20 кА гибкие шины не проверяются на электродинамическую стойкость к токам КЗ, а также шины, выполненные голыми проводами на открытом воздухе, на термическое действие не проверяются.

Для РУ 10кВ с Ipmax = 311,55А выбираю однополюсные алюминиевые шины прямоугольного сечения размером 40*5, Iдоп = 540А;

,5 < 540А.

Проводим проверку на термическую стойкость:

                                                                                  (116)

где С = 95.

 мм2

Так как 17,6 < 200 мм2, то шина проходит по условию термической стойкости.

Проверка на электродинамическую стойкость:

                                                                    (117)

где (118) - момент сопротивления шины относительно оси, перпендикулярной действию усилия.

МПа

δдоп = 82,3 МПа

< 82,3 - шина проходит по условию механической прочности.

Частота собственных колебаний:

                                                                               (119)

где  (120) - момент инерции поперечного сечения шины, см4.

см4

Гц

Так как fo > 200 Гц, то механический резонанс исключен.

Выбор изоляторов

Выбор осуществляется по допускаемой нагрузке:

Fдоп = 0,6 * Fразр                                                                        (121)ч < Fдоп                                                                                (122)

                                                              (123)

где                                                                                   (124)

                                                                               (125)

Выбираем изолятор ИО-10-3,75 УЗ:

Квз = 120 мм, Fразр = 3,75кН, Uном = 10кВ,

мм

доп = 0,6 * 3,75 = 2,25кН;

;

,0319 < 2,25 кН.

Условие механической прочности выполняется.

Выбор трансформаторов собственных нужд

На ГПП устанавливаются два трансформатора собственных нужд. Их мощность определяется из условий нагрузки:

охлаждение силовых трансформаторов                   3,5 кВт

подогрев шкафов КРУ                                               1кВт

устройство РПН                                                3,3кВт

наружное освещение ОРУ                                          3кВт

аппаратура связи и телемеханики                             8,7кВт

маслохозяйство                                                          75кВт

Итого                                                                           94,5кВт

кВ*А                                                       (126)

кВ*А                                                                     (127)

Принимаем трансформаторы ТМ-100/10.

Выбор трансформаторов тока

Определим вторичную нагрузку трансформаторов тока. Результаты определения вторичной нагрузки представим в таблице 12.

Таблица 12 - Определение вторичных нагрузок трансформаторов тока

Место установки

Приборы

Нагрузки по фазам



А

В

С

Отходящие линии

Амперметр Э351

0,02

-

0,02


Трехфазный универ. счетчик ЦЭ6812

0,008

-

0,008

ИТОГО


0,028

-

0,028

Секционный выключатель

Амперметр Э351

0,02

-

0,02

ВН трансформаторов ГПП

Амперметр Э351

0,02

-

0,02


Трехфазный универ. счетчик ЦЭ6812

0,008

-

0,008

ИТОГО


0,028

-

0,028


Трансформаторы тока на отходящие линии

Для установки в КРУ предварительно принимаем трансформаторы тока ТПЛК-10 УЗ. Допустимая нагрузка при необходимом классе точности 0,5 Zдоп =1,2 Ом.

Определяем возможность работы трансформатора в выбранном классе точности по условию

прибор + rпров + rк ≤ Zдоп                                                                   (128)

где rк - сопротивление контактов (0,05 Ом).

Сопротивление провода:

rпроб = Zдоп - rприб - rк                                                              (129)

проб = 1,2 - 0,028 - 0,05 = 1,122 Ом.

Сечение провода определяем по формуле:

                                                                                          (130)

мм2

Принимаем контрольный кабель АКВРГ сечением 4 мм2.

Проверка на электродинамическую стойкость осуществляется по условию

                                                                           (131)

где Кэд - кратность электродинамической стойкости по каталогу,ном - номинальный первичный ток трансформатора тока.

Проверка ТПЛК-10 УЗ по данному условию не производится.

Проверка на термическую стойкость производится по условию

ВКрас ≤ (Кт * I1ном)2*tт,                                                             (132)

где Кт - кратность термической стойкости по каталогу,т - время термической стойкости по каталогу.

Вк = (70*2000)2 - 1 = 19600кА2*С;

ВКрасч = 5,32 * 1 = 28кА2*С;

кА2 * С < 19600 кА2 *С - условие выполняется.

Выбор трансформаторов тока для ВН ГПП

Принимаем ТПОЛ-110, Iном = 600А, Iном2 = 5А, класс точности 0,5, Zдоп = 0,8 Ом, iдин = 100 кА, Кт = 40, tт =4 с.

Принимаем контрольный кабель АКВРГ сечением:

rпров = 0,8 - 0,028 - 0,05 = 0,722 Ом;

мм2ст = 4 мм2;

Вк = (40 * 600)2 * 4 = 2304 кА2 *С.

кА2 * С < 2304 кА2 * С - условие выполняется.

Выбор трансформаторов тока на секционный выключатель

Принимаем ТПЛК-10 УЗ, Iном1 = 4000 А, Iном2 = 5А, класс точности 0,5, Zдоп = 1,2 Ом, Кт = 70, tт = 1с.

мм2

Принимаем контрольный кабель АКВРГ сечением 4мм2.

Проверка по условию:

кА2 * С < 19600 кА2 *С выполняется.

Таким образом, принимаем:

на отходящие линии                       ТПЛК-10 УЗ;

на ВН ГПП                                     ТПОЛ-110-600/5 У1;

на секционный выключатель         ТПЛК-10 У3.

Выбор трансформаторов напряжения

Выбор трансформаторов напряжения осуществляем по напряжению установки, по классу точности и вторичной нагрузке

Σ ≤ Sном                                                                                         (133)

Выбор трансформатора напряжения на 110 кВ

К трансформатору напряжения будет подключен трехфазный универсальный счетчик ЦЭ 6812, потребляемая мощность параллельной обмотки которого S = 6В*А.

Принимаем НАМИ-110 УХЛ1, Uном = 110 кВ, класс точности 0,5, Sном = 360 В*А

В*А < 360 В*А -условие выполняется.

Выбор трансформатора напряжения на 10 кВ.

Определяем вторичную нагрузку трансформатора.

Таблица 13         - Вторичная нагрузка трансформатора

Прибор

Число обмоток

Число приборов

Soбм, ВА

cos φ

Р, Вт

Q, ВАр

S, ВА

Вольтметр Э335

1


2

1,0

6

0

6

Счетчик ЦЭ6812

1

8

6




48

ИТОГО







54


Принимаем НАМИ-10-95 УХЛ2, класс точности 0,5, Sном = 95 В*А.

В*А < 95 В*А - условие выполняется.

6.3 Компоновка ГПП


Питание завода осуществляется по двухцепной воздушной линии 110 кВ, выполненной проводами АС-70/11. ОРУ-110 кВ ГПП выполняется по схеме мостика с разъединителями РНДЗ-110/630 и выключателями HGF 1012, которая обеспечивает требуемую надежность. На ГПП установлены 2 трансформатора ТДН-10000/110. ЗРУ-10 кВ ГПП выполняется на основе ячеек K-XXVI,B которых устанавливаются вакуумные выключатели ВВТЭ-10-20/1000, ВВТЭ-10-20/630, трансформаторы напряжения. На вводах и отходящих линиях устанавливаются трансформаторы тока для питания измерительных цепей и целей релейной защиты.

Цеховые трансформаторные подстанции выбираем марки КТП с номинальной мощностью 250-1000 кВА.

7. Релейная защита

 

.1 Защита кабельных линий напряжением 10 кВ


Распределительные сети промышленных предприятий на номинальное напряжение 6-35 кВ имеют одностороннее питание и выполняются с изолированной нейтралью. Наиболее распространенным видом защиты таких сетей является максимальная токовая защита (МТЗ). От межфазных замыканий такую защиту рекомендуется выполнять в двухфазном исполнении и включать ее в одни и те же фазы по всей сети данного напряжения.

Замыкание на землю одной фазы в сетях с изолированной нейтралью не является КЗ. Поэтому защиту выполняют действующей на сигнал и, только когда это необходимо по требованиям безопасности, действующей на отключение.

Обычно токовую защиту от замыкания на землю выполняют с включением на фильтр токов нулевой последовательности. Она приходит в действие в результате прохождения по поврежденному участку токов нулевой последовательности, обусловленных емкостью всей электрически связанной сети без учета емкости поврежденной линии.

Индивидуальную защиту кабелей напряжением 10 кВ применим только для линий ГПП - ТП7 - ТП11 и ГПП - РП1. Для других линий, имеющих глухое соединение с цеховыми трансформаторными подстанциями, применим защиту «Блок трансформатор - магистраль» (БТМ).

Защита от многофазных КЗ

На одиночных линиях с односторонним питанием для защиты от многофазных коротких замыканий устанавливают двухступенчатую токовую защиту:

-я ступень - токовая отсечка мгновенного действия;

-я ступень - максимальная токовая защита (МТЗ).

Токовая отсечка выполняется на реле РТ-80. Ток срабатывания токовой отсечки выбирается исходя из двух условий:

) Iсз ≥ kотс * IΣтр                                                                          (134)

где kотс = 5 - коэффициент отстройки,Σтp - суммарный номинальный ток трансформаторов, питающихся от защищаемой линии.

) Iсз ≥ Кп * I(3)k2max                                                                   (135)

где kн = 1,2 - коэффициент надежности.

Коэффициент чувствительности находим по выражению

                                                                                        (136)

где I(2)k - ток двухфазного КЗ в точке К;

kч должен быть не меньше 1,2.

Расчеты приведены в таблице 14.

Таблица 14 - Расчет тока срабатывания и коэффициента чувствительности ТО

Участок

Ipmax, А

I(3)k1max кА

I(3)k2max кА

I(2)k1max кА

Iс.з., кА

Кч

ГПП-ТПП

39,942

5,3

2,95

4,99

3,54

1,4

ГПП-РП1

175,318

5,3

4,2

4,99

4,5

1,2


МТЗ выполняется на реле РТ-80. Ток срабатывания МТЗ выбирается исходя из условий отстройки от максимального рабочего тока линии и обеспечения возврата пускового органа защиты в начальное положение после его срабатывания.

,                                                                      (137)

где kн = 1,2 - коэффициент надежности;

kв = 0,85 - коэффициент возврата реле;

ксзп - коэффициент самозапуска нагрузки после отключения внешнего КЗ;

Iраб макс - максимальный рабочий ток линии.

Расчетный ток срабатывания реле определяется по выражению:

,                                                                                  (138)

где kcx = 1 - коэффициент схемы;

nт - коэффициент трансформации трансформаторов тока.

Коэффициент чувствительности находим по выражению:

                                                                                       (139)

Он должен быть не меньше 1,5.

Результаты расчетов приведены в таблице 15.

Таблица 15 - Расчет тока срабатывания и коэффициента чувствительности

Участок

Ipmax, А

I(3)k2max кА

I(2)k1max кА

Iс.з., кА

Кч

tсз

ГПП-ТПИ

39,942

2,95

2,55

84,58

30,1

0,5

ГПП-РШ

175,318

4,2

3,63

371,26

9,8

0,5

Защита от замыканий на землю

Защита выполняется с помощью одного токового реле РТЗ-51, которое подключается к трансформатору тока нулевой последовательности.

Ток срабатывания защиты определяется из условия ее надежной отстройки от броска собственного емкостного тока, проходящего в месте установки защиты при внешнем замыкании на землю.

сз ≥ Iсз.расч = kотс * kБ * Iс                                                                  (140)

где kотс = 1,2 - коэффициент отстройки;

kБ = 2,5 - коэффициент, учитывающий бросок собственного емкостного тока;

Iс - собственный емкостный ток присоединения;

с = Iсд + Iсл                                                                                   (141)

При номинальной мощности двигателя, не превышающей 2,5-3 МВт, значением Iсд можно пренебречь. Тогда:

с = Iсл = Iсо * L * m                                                                      (142)

где Ico - значение собственного емкостного тока на 1 км кабеля, А/км;- длина линии, км;

Коэффициент чувствительности находим по выражению:

                                                                                    (143)

где kч - наименьшее реальное значение емкостного тока сети I'с = 5А

kч должен быть не меньше 1,25.

Результаты расчетов приведены в таблице 16 для всех участков.

Таблица 16 - Расчет защиты от замыканий на землю

Участок

Ipmax, А

Ico А/км

Iс, А

Iс.з., А

Кч

ГПП-ТП1

32,197

0,65

0,33

0,99

4,7

ГПП-ТП2

38,99

0,65

0,033

0,099

50,2

ГПП-ТПЗ

17,439

0,65

0,033

0,099

50,2

ГПП-ТП4

62

0,65

0,35

1,05

4,43

ГПП-ТП5

46,474

0,65

0.1

0,3

16,3

ГПП-ТП6

26,526

0,65

0,5

1,5

3

ГПП-ТПП

39,942

0,65

0,25

0,75

6,3

ГПП-ТП8

34,867

0,65

0,4

1,2

3,8

ГПП-ТП9

18,96

0,65

0,53

1,59

2,8

ГПП-ТП10

38,295

0,65

0,6

1,8

2,4

ГПП-ТП12

79,364

0,65

0,45

1,35

3,4

ГПП-РШ

175,318

1,04

0,5

1,5

3


7.2 Защита блоков «Трансформатор - магистраль»


Согласно ПУЭ должны быть установлены следующие виды защит:

) защита от многофазных КЗ;

) защита от сверхтоков перегрузки (устанавливается для трансформаторов мощностью 400 кВА и более, действующая на сигнал, если на подстанции есть дежурный персонал , или на автоматическую разгрузку или выключение, если персонала нет);

) защита от замыканий на землю;

) температурная сигнализация;

) газовая защита.

Защита от многофазных КЗ

Защита от многофазных КЗ выполняется двухступенчатой:

) токовая отсечка мгновенного действия;

) МТЗ.

1) Iсз ≥ Кн * I(3)k2max,                                                                          (144)

где Кн = 1,2,

IК2(1) - ток трехфазного КЗ на стороне НН трансформатора.

,                                                                                 (145)

где Iк1(2) - ток двухфазного КЗ на стороне ВН.

Данные занесем в таблицу 17.

)                                                                     (146)

где kн =1,2- коэффициент надежности;в = 0,85 - коэффициент возврата реле;

kсзп - коэффициент самозапуска нагрузки после отключения внешнего КЗ;

Iраб.max - максимальный рабочий ток.

                                                                               (147)

где Iк2(1) - ток однофазного КЗ на стороне НН трансформатора.

Данные занесем в таблицу 17.

Таблица 17 - Расчет защиты от многофазных КЗ

Участок

Ipmax, А

I(3)k2max кА

I(2)k1max кА

I(1)k2max кА

Iс.з.то, кА

Кч.то

Iс.з.мтз, А

Кч мтз.

ГПП-ТП1

32,197

1,02

2,7

0,88

1,22

2,2

90,9

9,68

ГПП-ТП2

38,99

1,23

3,09

1,07

1,47

2,1

110,09

9,7

ГПП-ТПЗ

17,439

0,8

1,95

0,69

0,975

2

49,24

14

ГПП-ТП4

62

1,12

2,83

0,97

1,347

2,1

175,06

5,54

ГПП-ТП5

46,474

0,97

2,69

0,84

1,17

2,3

131,22

6,4

ГПП-ТП6

26,526

0,97

2,62

0,84

1,16

2,25

74,9

11,2

ГПП-ТП8

34,867

1,15

3,45

0,99

1,38

2,5

98,45

10

ГПП-ТП9

18,96

0,95

2,4

0,82

1,14

2,1

53,53

15,3

ГПП-ТП10

38,295

1,42

3,93

1,23

1,7

2,3

108,13

11,4

ГПП-ТП12

79,364

1,25

3,74

1,08

1,5

2,5

224,09

4,8


Защита от сверхтоков перегрузки

Защита устанавливается для трансформаторов > 400 кВА и выполняется в виде МТЗ с действием на сигнал.

,                                                                              (148)

где kн = 1,2 - коэффициент надежности;в = 0,85 - коэффициент возврата реле.

Данные занесем в таблицу 18.

Таблица 18 - Расчет защиты от перегрузки

№ТП

Spном, кВА

Ipmax, А

Iс.з., А

tcз., с

1

32,197

45,45

0,1

2

630

38,99

55

0,1

4

1000

62

87,53

0,1

5

630

46,474

65,61

0,1

6

400

26,526

37,45

0,1

8

400

34,867

49,22

0,1

10

630

38,295

54,06

0,1

12

1000

79,364

112,04

0,1

Защита от многофазных КЗ и перегрузки трансформаторов, запитанных по магистральной схеме (ТП7, ТП11) выполняется предохранителями типа ПК1-10-20/16-20УЗ.

вс.ном > Кз * Ipmax,                                                                     (149)

где Кз = 1,1 - 1,25

Таблица 19 - Выбор предохранителей

№ТП

Ipmax, А

Iвс.ном, А

7

39,942

50

11

21,249

25


Защита от замыканий на землю

Результаты расчетов сведены в таблицу 16.

Температурная сигнализация

Температурная сигнализация срабатывает при повышении температуры в баке трансформатора, что происходит в результате его перегрузки. Устанавливается на трансформаторах, к которым есть свободный доступ обслуживающего персонала. Или выполняется в качестве тепловых реле, которые отключают трансформатор при превышении его максимально допустимой температуры.

Газовая защита

Применение газовой защиты является обязательным на трансформаторах мощностью 6300 кВ*А и более, а также на трансформаторах мощностью 1000-4000 кВ*А, не имеющих дифференциальной защиты или отсечки и если максимальная токовая защита имеет выдержку времени 1с и более.

Действие защиты основано на том, что всякие, даже незначительные, повреждения, а также повышенные нагревы внутри бака трансформатора вызывают разложение масла и органической изоляции, что сопровождается выделением газа.

Интенсивность газообразования и химический состав газа зависят от характера и размеров повреждения. Поэтому защита выполняется так, чтобы при медленном газообразовании подавался предупредительный сигнал, о бурном газообразовании, что имеет место при К.З., происходило отключение поврежденного трансформатора. Кроме того, газовая защита действует на сигнал при опасном понижении уровня масла в баке трансформатора.

7.3 Защита кабельных линий напряжением 0,38 кВ


Низковольтные кабели, прокладываемые в земле от цеховых трансформаторных подстанций до распределительных пунктов, защищаем предохранителями.

Таблица 20 - Расчет защиты низковольтных кабелей

Участок

Ipmax, А

1пл. вставки, А

Марка пред-ля

ТП4-РП2

130

150

ПН2-250

ТП5-РПЗ

124,277

150

ПН2-250

ТП5-РП4

124,277

150

ПН2-250

ТП8-РП5

333,09

350

ПН2-400

ТП6-РП6

38

40

ПН2-100

ТП7-РП7

72,254

80

ПН2-100


7.4 Защита трансформаторов ГПП


Дифференциальная защита трансформаторов

Дифференциальная защита применяется в качестве основной быстродействующей защиты трансформаторов. Ввиду ее сравнительной сложности дифференциальная защита устанавливается в следующих случаях:

на одиночно работающих трансформаторах мощностью 6300 кВ*А и выше,

на параллельно работающих трансформаторах мощностью 4000 кВ*А и выше,

на трансформаторах мощностью 1000 кВ*А и выше, если токовая отсечка не обеспечивает необходимой чувствительности при КЗ на выводах низшего напряжения.

При параллельной работе трансформаторов дифференциальная защита обеспечивает не только быстрое, но и селективное отключение поврежденного трансформатора.

. Определим ток срабатывания защиты на реле РНТ-565 отстройкой от броска тока намагничивания:

сз ≥ Кн * Iном.т                                                                              (150)

Кн -коэффициент отстройки защиты от броска тока намагничивания предварительно для защиты РНТ равен 1,3.ном.т - номинальный ток трансформатора с высокой стороны.

,                                                                             (151)

А

А

Iсз ≥ 1,3 * 50,204 = 65,265А.

. Определим ток срабатывания защиты отстройкой от тока небаланса:

сз ≥ kн * IНБ                                                                                  (152)

Кн = 1,3

Ток небаланса

IНБ = I´НБ + I"НБ + I"'НБ,                                                            (153)

’НБ - ток учитывающий погрешности трансформаторов тока.

’НБ = Ка * Кодн * ε * IВНк.max?                                                          (154)

Ка - коэффициент, учитывающий апериодическую составляющую, принимает значение 1.

Кодн - коэффициент однотипности ТТ (0,5 или 1).

Со стороны питания установлены ТТ с Iном.1 = 100А (Iном.т = 50,204 А ВН), а со стороны 10 кВ выбираю ТТ с Iном.1 =1000А (Iном.т = 549,857 А НН).

Вторичный ток в плечах дифференциальной защиты при номинальной нагрузке силового трансформатора:

,                                                                             (155)

А.

                                                                                    (156)

А.

Из за небольшого отличия токов протекающим по ТТ принимаем Кодн = 0,5.

ε - полная погрешность ТТ(0,1).

Iвнк.max = I3к.max * Кт,                                                               (157)

А

I'НБ = 1*0,5*0,1*483,9=24,196А

I"НБ -учитывает наличие у силового трансформатора устройства РПН.

"НБ = ΔN*IВНК.max,                                                                    (158)

ΔN - половина регулировочного диапазона РПН, ΔН = 0,06;

I"НБ = 0,06 * 483,9 = 29,034А.

I"'НБ - учитывает дискретность шкалы уставок.

IНБ = 24,196 + 29,034 = 53,23А.

Iсз > 1,3 * 53,23 = 69,199А.

Выбираю наибольший ток срабатывания защиты равный Iсз = 69,2А.

.Чувствительность защиты.

                                                                                               (159)внк.min = I2к.min * Кт,                                                                (160)

А

. Определение вторичного тока срабатывания защиты с наибольшим вторичным током.

Наибольший вторичный ток наблюдается на ТТ со стороны питания, т.к ТТ соединены в треугольник.

,                                                                                  (161)

А

. Определим расчетное количество витков для основной стороны

,                                                                                       (162)

где ωср - магнитодвижущая сила срабатывания реле РНТ-565, Fcp=100;

ωосн - суммарное число витков рабочей и первой уравнительной обмоток с основной стороны.

ωосн = ωраб + ωур1                                                                     (163)

На основной обмотке имеются отпайки для регулирования числа витков, принимаем ближайшее меньшее целое значение к ωосн, которое можно установить на рабочей и первой уравнительной обмотках. Принимаем ωосн =16 виткам.

. Определяем количество витков с неосновной стороны

,                                                             (165)

, I2 - вторичный ток в плечах защиты при номинальной мощности трансформатора.

I1 =4,348A, I2 = 2,749А.

Принимаем ωнеосн = 25.

. Уточнение тока небаланса.

                                (166)

А

А

Полный ток небаланса

Iнк = 24,196 + 29,034 +15,175 = 68,405А.

. Уточнение первичного тока срабатывания защиты

сз ≥ kн * IНБ                                                                                  (170)

сз = 1,3 * 68,405 = 88,927А.

. Определение чувствительности защиты

,                                                                                      (171)

Коэффициент чувствительности превышает 1,5. Следовательно защита на реле РНТ-565 является пригодной.

Максимальная токовая защита от внешних многофазных КЗ

Защита устанавливается со стороны источника питания непосредственно у выключателя, при этом в зону действия защиты входят трансформатор и его присоединения с выключателями. Срабатывая, защита действует на отключение выключателей.

. Ток срабатывания защиты отстраивается от максимального рабочего тока:

                                                                     (172)

где Кн - коэффициент надежности, принимаемый равным 1,2;в - коэффициент возврата, принимаем 0,85;

Ксз - коэффициент самозапуска нагрузки после отключения внешнего КЗ, определяемый для обобщенной нагрузки по кривым [1];

Iраб.max - максимальный рабочий ток.

Iраб.max = 517.56A.

Определение коэффициента самозапуска:

                                                                                   (173)

По кривой зависимости находим Кcз = 2,25 [1];

Расчетный ток срабатывания реле

                                                                                 (174)

где Ксх - коэффициент схемы, равный 1.

Чувствительность защиты:

,                                                                                      (175)

Кч > 1,5.

Токовая защита от перегрузок

Защита от перегрузок устанавливается на трансформаторах 400 кВА и более с действием на сигнал (на автоматическую разгрузку) или отключение (на подстанциях без дежурного персонала). Защита выполнена с помощью МТЗ, установленной со стороны питания.

Ток срабатывания защиты:

                                                                                (176)

где Кн = 1,05, Кв = 0,85;

Газовая защита

Применение газовой защиты является обязательным на трансформаторах мощностью 6300 кВА и более, а также на трансформаторах мощностью 1000-4000 кВ-А, не имеющих дифференциальной защиты или отсечки и если максимальная токовая защита имеет выдержку времени 1с и более.

Действие защиты основано на том, что всякие, даже незначительные, повреждения, а также повышенные нагревы внутри бака трансформатора вызывают разложение масла и органической изоляции, что сопровождается выделением газа.

Интенсивность газообразования и химический состав газа зависят от характера и размеров повреждения. Поэтому защита выполняется так, чтобы при медленном газообразовании подавался предупредительный сигнал, а при бурном газообразовании, что имеет место при К.З., происходило отключение поврежденного трансформатора. Кроме того, газовая защита действует на сигнал при опасном понижении уровня масла в баке трансформатора.

7.5 Защита конденсаторных установок


Для конденсаторных установок, предусматривается защита от следующих видов повреждений и ненормальных режимов:

) многофазных К.3.;

) сверхтоков перегрузки;

) повышение напряжения в установке;

) однофазных замыканий на землю.

Защита конденсаторных установок от многофазных КЗ

Для защиты конденсаторных установок напряжением выше 1000 В от многофазных К.З. предусматривается токовая отсечка. Ток срабатывания токовой отсечки определяется в соответствии со следующей формулой:

сз = kотс * Iк.у.ном,                                                                       (177)

где kотс = 2,5 - коэффициент отстройки от бросков емкостного тока при ее включении или перенапряжениях в сети;

Iк.у.ном - номинальный ток конденсаторной установки.

                                         (178)

Iсз = kотс * Iк.у.ном= 2,5*61,859=154,647А                               (179)

Чувствительность отсечки проверяется по номинальному току двухфазного К.З. на выводах конденсаторной установки:

,                                                     (180)

В сетях напряжением до 1 кВ защита выполняется плавкими предохранителями или автоматическими выключателями.

Находим ток КЗ:

ТП1: Sн = 400кВА, соединение обмоток Δ - Y0-11;т = 5,6 мОм; Хт =17,1мОм;

XΣ = Xт =17,1 мОм;                                                                      (181)

RΣ =Rт + Rпер.1 + Rпер.2 = 5,6 + 15 + 20 = 40,6 мОм,              (182)

мОм,                                 (183)

                                                        (184)

                                                   (185)

                                        (186)

Iсз = kотс * Iк.у.ном= 2,5*75,967=189,9А                                             (187)

Выбираем автоматический выключатель ВА52-31 : Iном.вык = 100А.

Защита конденсаторных установок от сверхтоков перегрузки

Защита конденсаторных установок от сверхтоков перегрузки предусматривается в тех случаях, когда возможна перегрузка конденсаторов токами высших гармоник. Защита имеет выдержку времени (порядка 9 с.) и отключает конденсаторную установку при действующем значении тока, превышающем 1,31к.у.ном.

Для конденсаторных установок 10 кВ:

з1 = 1,3 * Iк.у.ном = 1,3 * 61,859 = 80,417А.                              (188)

Для конденсаторных установок 0,4 кВ:

сз1 = 1,3 * Iк.у.ном = 1,3 * 75,967 = 98,757А.                             (189)

Защита конденсаторных установок от повышения напряжения

Для защиты конденсаторной установки от повышения напряжения в тех случаях, когда уровень напряжения в сети в месте присоединения конденсаторной установки может превышать 1,1* Uк.у.ном (при включенных конденсаторах), предусматривается защита от максимального напряжения, действующая на отключение с выдержкой времени 3-5 мин. При этом применяется специальная автоматика, осуществляющая включение конденсаторной установки после восстановления нормального (номинального) уровня напряжения, но не ранее, чем через 5 минут после отключения.

Для конденсаторных установок 10кВ:

сз = 1,1 * Uк.у.ном. = 1,1 * 10 = 11кВ.                                         (190)

Для конденсаторных установок 0,4кВ:

сз = 1,1 * Uк.у.ном = 1,1 * 0,38 = 0,418кВ.                                  (191)

Защита конденсаторных установок от замыканий на землю

Для защиты конденсаторной установки напряжением выше 1000 В от однофазных замыканий на землю (при токах замыкания на землю 20 А и выше) предусматривается максимальная токовая защита с действием на отключение без выдержки времени.

Токовое реле защиты включается на трансформатор тока нулевой последовательности. Защита от замыканий на землю может не устанавливаться на конденсаторной установке, соединяемой со сборными шинами без кабельной вставки. В этом случае для защиты от замыканий на землю используется устройство контроля изоляции на шинах подстанции.

7.6 Защита синхронных двигателей 10 кВ


Согласно ПУЭ защита высоковольтных синхронных двигателей включает в себя:

) токовую отсечку;

) токовую защиту от перегрузок;

) защиту от потери питания и понижения напряжения;

) защиту от асинхронного хода.

Токовая отсечка

. Отстройка от пускового тока

сз = КнIпуск;                                                                                  (192)

пуск - пусковой ток СД.

пуск = Кп * Iном                                                                           (193)

пуск = 7 * 87,6 = 613,2А.

Кн = 1,8 для реле РТ-40.

Iсз =1,8* 613,2 = 1103,76А.

. Ток срабатывания реле

                                                                                   (194)

Кcx = при однорелейном исполнении.

Коэффициент трансформации ТТ принимаю nт=800/5.

                                                             (195)

Чувствительность токовой отсечки

,                                                                                 (196)

Токовая защита от перегрузок

Ток срабатывания реле

                                                                          (197)

где Кн =1,3, Kв = 0,8, Кcx = (однорелейная схема ), nт=800/5.

Защита от потери питания и понижения напряжения

Защита электродвигателей от понижения напряжения выполняется двухступенчатой.

Параметры срабатывания первой ступени:

 ≤ 0,7 * Uном;                                                                      (198)

Время срабатывания первой ступени защиты выполняется 0,5.... 1,5 с.

Параметры срабатывания второй ступени:

 ≤ 0,5 * Uном;                                                                      (199)

 ≤ 0,5 * 10 = 5кВ.

Время срабатывания второй ступени защиты выполняется 5....10 с.

Защита от асинхронного хода

Устанавливается на всех СД и действует на схему, предусматривающую ресинхронизацию или его отключение. Ресинхронизация состоит в том, что с электродвигателя снимается возбуждение, через некоторое время включается возбуждение, и двигатель вновь втягивается в синхронизм.

Ток срабатывания защиты

сз = 1,4Iном                                                                                   (200)

сз =1,4 * 87,6 = 122,64А

8. Внутрицеховое электроснабжение

 

.1 Расчет силовой сети цеха


Для определения расчетного тока используем формулу:

                                                                      (201)

Для питания силовых пунктов выбираем кабель марки АПВБ и прокладываем непосредственно на поверхности стен и закрепляем при помощи скоб.

Распределительную сеть выполняем проводом марки АПВ и предусматриваем их скрытую прокладку в каналах в полу.

Таблица 21 - Предварительный выбор кабеля силовой сети цеха

Участок

Sp, кВА

Ip, А

Iдоп, А

Марка кабеля

Ro, Ом/км

Хо, Ом/км

L, м

R, Ом

X, Ом

ΔU, %

РП1-РП2

62,6

94

95

АПВБ-3*35+1*16

0,894

0,088

38

0,034

0,0033

1,3

ВРУ-РП1

120,6

183

200

АПВБ-3*120+1*70

0,261

0,08

6

0,0016

0,0005

0,13

РПЗ-РП4

53,3

81

95

АПВБ-3*35+1*16

0,894

0,088

12

0,0107

0,0011

0,3

ВРУ-РПЗ

109,9

167

200

АПВБ-3*120+1*70

0,261

0,08

28

0,0073

0,0022

0,5


8.2 Расчет токов КЗ в цехе


Рисунок 7 - Схема замещения силовой сети цеха

Приведем все сопротивления к стороне 0,4 кВ по формуле

Х = Х’ * К2т                                                                                  (202)

Ес = 0,4 кВ.

По данным из расчета КЗ на стороне 10 кВ:

Ом

Ом

Ом

Ом

Ом

Хкл2 = 0,0012Ом;

Rкл2 = 0,004Ом;

Хпер.конт = 0,03 Ом;

Rп.к. = 0,03 Ом;

Rкл3 = 0,0016 Ом;

Хкл4 = 0,0022 Ом;

Rкл4 = 0,0073 Ом;

Хкл5 = 0,0033 Ом;

Rкл5 = 0,034 Ом;

Хкл6 = 0,011 Ом;

Rкл6 = 0,0107Ом.

Рассчитаем периодическую составляющую тока КЗ:

                                                                                    (203)

Точка К1 : RΣ = 0,0667 Ом, XΣ = 0,0644 Ом;

кА

К2 : RΣ = 0,0724 Ом, XΣ = 0,0661 Ом;

I” = 2,36кА;

К3 : RΣ = 0,1307 Ом, XΣ = 0,0977Ом;

I” = 1,4кА;

К4 : RΣ =0,1131 Ом, XΣ = 0,0672 Ом;

I” = 1,76кА.

Проверка на термическую стойкость кабелей внутрицеховой сети по току К1: Iкз = 2490 А.

мм2,                                          (204)

По данным токов короткого замыкания выбираем автоматические выключатели Iном.откл. = 4,5 кА.

Данные занесем в таблицу 22

Таблица 22 - Выбор кабелей и автоматических выключателей силовой сети механического цеха

№ РП

№ э/п

Рном,кВт

Cosφ

Iр, А

Iдоп,А

Марка кабеля

Ro, Ом/м

Хо, Ом/м

Iном авт. выкл

Марка выкл.

1

2

3

4

5

6

7

8

9

10

11

РП1

1

11,4

0,4

43,3

55

АПВ-4*16

1,95

0,095

50

ВА52-31


8,9

7,5

0,4

28,5

42

4(ПВ-3)-1*10

3,12

0,099

32

ВА52-31


10,19,20

2,8

0,7

6

42

4(ПВ-3)-1*10

3,12

0,099

16

ВА52-31


17

7,5

0,65

17,5

42

4(ПВ-3)-1*10

3,12

0,099

25

ВА52-31


27

4,5

0,8

8,5

42

4(ПВ-3)-1*10

3,12

0,099

16

ВА52-31


28,34

30

0,65

70

75

АПВ-4*25

1,25

0,092

100

ВА52-31


35

35

0,5

106,4

110

АПВ-3*50+1*25

0,625

0,085

160

ВА52-33


Ввод



280

290

АПВБ-3*185+1*95

0,169

0,078

400

ВА52-37

РП2

2

7,5

0,4

28,5

42

4(ПВ-3)-1*10

3,12

0,099

32

ВА52-31


3,4,5

4,7

0,4

18

42

4(ПВ-3)-1*10

3,12

0,099

25

ВА52-31


6,7

3,8

0,4

14,4

42

4(ПВ-3)-1*10

3,12

0,099

16

ВА52-31


11,12,13

2,2

0,5

6,7

42

4(ПВ-3)-1*10

3,12

0,099

16

ВА52-31


18

18,2

0,5

55,3

75

КГ-4*25

1,25

0,092

63

ВА52-31


22,23

40

0,65

93,5

95

АПВ-3*35+1*16

0,894

0,088

100

ВА52-31


Ввод



216

250

АПВБ-3*150+1*95

0,208

0,079

250

ВА52-35


21

18,2

0,5

55,3

75

КГ-4*25

1,25

0,092

63

ВА52-31

РПЗ

29,30,32,33

4

0,5

12

42

4(ПВ-3)-1*10

3,12

0,099

16

ВА52-31


36-38

8,7

0,5

26,4

42

4(ПВ-3)-1*10

3,12

0,099

32

ВА52-31


39

5,5

0,7

12

42

4(ПВ-3)--1*10

3,12

0,099

16

ВА52-31


40

28

0,5

85

95

АПВ-3*35+1*16

0,894

0,088

100

ВА52-31


41

10

0,8

19

42

4(ПВ-3)-1*10

3,12

0,099

25

ВА52-31


Ввод



210

250

АПВ-3*150+1*95

0,208

0,079

250

ВА52-35

РП4

14-16

8,7

0,5

26,4

42

4(ПВ-3)-1*10

3,12

0,099

32

ВА52-31


24,25

2,2

0,5

6,7

42

4(ПВ-3)-1*10

3,12

0,099

16

ВА52-31


26

2,8

0,7

6

42

4(ПВ-3)-1*10

3,12

0,099

16

ВА52-31


31

4,5

0,8

8,5

42

4(ПВ-3)-1*10

3,12

0,099

16

ВА52-31


44,45

13

0,7

28

42

4(ПВ-3)-1*10

3,12

0,099

32

ВА52-31


43

28

0,5

85

95

АПВ-3*35+1*16

0,894

0,088

100

ВА52-31


42

10

0,8

19

42

4(ПВ-3)-1*10

3,12

0,099

25

ВА52-31


Ввод



169

170

АПВ-3*95+1*50

0,329

0,081

250

ВА52-35


8.3 Расчет освещения в цехе


Расчет освещения в цехе будем производить методом коэффициента использования:

                                                                          (205)

где Ен - норма освещенности, Лк;

К3 -коэффициент запаса, К3 -1,5;- площадь помещения;- коэффициент минимальной освещенности, Z = 1,1;

n - число светильников;

Ки -коэффициент использования.

Коэффициент использования определяется через индекс помещения:

                                                                                (206)

Рисунок 8 - осветительная сеть цеха

Освещение в цехе выполнено на основе газоразрядных ламп со светильниками РСП.

Цех подразделяем на участки, имеющие определенную освещенность в зависимости от рода работы:

) основной участок, на котором располагаются станки и оборудование с нормой освещения Ен = 100 Лк;

) комната мастеров с освещенностью Ен =300 Лк, так как там будет производится работа с документами;

) прочие комнаты с освещенностью Ен =50 Лк.

Расчет основного участка

площадка (3 участка:1..13 э/п, 14..26 э/п, 34..39 э/п)1 = 30 * 6 = 180м2

Индекс помещения

Kи = 0,06.

Выбираем лампы ДРЛ мощностью Р = 700 Вт, Фл = 35000 Лм.

Тогда                                                                (207)

Применяем 7 светильников по 2 лампы в каждом

Σр = 14 * 700 = 9800Вт.

площадка (27..33, 44, 45)

S1 = 36*6=216 м2

Ки = 0,06;

Применяем 9 светильников по 2 лампы

Ер = 18 * 700 = 12600Вт.

Освещение комнаты мастеров

S1 = 6 * 6 = 36 м2;

Ки = 0,18.

Лампы Р = 700 Вт, Фл = 35000 Лм;

Применяем 2 светильника= 6 * 3 = 18м2;

Ки = 0,67;

Применяем 1 светильник

ΣРком.мас = 6 * 700 = 4200 Вт.

Гардероб= 6 * 3 = 18м2

i = 0,67

Ки = 0,08.

Выбираем лампы ДРЛ Р = 250 Вт, Фл = 11000 Лм;

n = 2;

светильник РСП

Р = 2 * 250 = 500 Вт.

Комната с электроприемниками 40-41= 5 * 3 = 15м2

Ки = 0,05.

Лампы ДРЛ Р = 250 Вт, Фл = 1 1000 Лм;

n = 2.

светильник РСП

Р = 2 * 250 = 500Вт.

Комната с электроприемниками 42-43= 5 * 5 = 25м2

Ки = 0,05.

Лампы Р=250 Вт, Фл = 11000 Лм;

n = 4.

светильника РСП

Р = 4 * 250 = 1000Вт.

8.4 Расчет осветительной сети


Для осветительной сети устанавливаем щит освещения ЩО и щит аварийного освещения ЩАО, запитанные непосредственно от вводного распредустройства ВРУ.

Выбор сечения кабеля для осветительной сети будем производить по допустимой потере напряжения

                                                                        (208)

где y = 50 * 106 удельная проводимость меди,н - номинальное напряжение, В,- сечение проводника, мм2,

ΔU = 2,5%,

М - произведение мощности на длину, кВА*м.

Тогда сечение кабеля

                                                                        (209)

Щит освещения (ЩО)

Группа 1

мм2

Выбираем кабель ВВГ-3*6

Группа 2   S2 = 4,2 мм2;

ВВГ-3*6

Группа 3   S3 =4,8 мм2;

ВВГ-3*6

Группа 4   S4 =3,8 мм2;

ВВГ-3*4

Группа 5   S5 =3,2 мм2;

ВВГ-3*4

Группа 6   S6 = 1,56 мм2;

ВВГ-3*2,5.

Щит аварийного освещения (ЩАО)

мм2

Принимаем кабель ВВГ-3* 1,5 мм2.

Аналогично для групп 8 и 9: ВВГ-3* 1,5.

Выбор автоматических выключателей производим по току нагрузки:

                                                                              (210)

ЩО: Гр.1 -     Iном.авт. = 25А;

Гр.2 - Ip = 24А;                    Iном.авт. = 25А;

Гр.3 - Ip = 17А;                    Iном.авт. = 25А;

Гр.4 - Ip = 20А;                    Iном.авт. = 25А;

Гр.5 - Ip = 20А;                    Iном.авт. =25А;

Гр.6 - Ip = 20А;                    Iном.авт. =25А;

IΣ = 125А.

Вводной - трехфазный автоматический выключатель:

Iном.авт. = 50А.

ЩАО: .

Ставим 3 однофазных автоматических выключателей Iном = 16 А, на вводе - один трехфазный Iном.авт. = 25А.

9. Экономика

 

.1 Определение сметной стоимости схемы электроснабжения


Наименование, количество и стоимость основного оборудования схемы электроснабжения представлены в таблице 23.

Таблица 23 - Сметная стоимость оборудования

Наименование оборудования

Ед. изм.

Кол.

Цена ед., тыс. руб.

Общая стоимость, тыс. руб.

1

ТДН-10000/110

шт

2

1500

3000

2

HGF 1012

шт

2

4500

9000

3

КРУ K-XXVI ВВТЭ -10-20/1000

шт

3

379

1137

4

КРУ K-XXVI ВВТЭ -10-20/630

шт

31

365

11315

5

РНДЗ-110/630

шт

2

9,5

19

6

РВ-10/400

шт

24

4,3

103,2

7

РВР-Ш-10/2000

шт

2

6,1

12,2

8

ТМ-100/10

шт

2

55

110

9

НАМИ-110УХЛ1

шт

2

34,1

68,2

10

НАМИ-10-95 УХЛ2

шт

2

21,3

42,6

11

ТПОЛ-110-600/5 У1

шт

2

18,5

37

12

ТПЛК-10УЗ

шт

29

7,2

208,8

13

ОПН-110У1

шт

2

10,32

20,64

14

ОПН-66У1

шт

2

8,6

17,2

15

ОПН-10У1

шт

2

2,53

5,06

16

ПК1-10-20/16-20УЗ

шт

15

1,14

17,1

17

У-10-1125УЗ

шт

2

295

590

18

KKT(H)-0,38-Qy3

шт

2

39,71

79,42


ЦТП 10/0,4





19

КТП-2*250

шт

3

540,7

1622,1

20

КТП-2*400

шт

3

606,6

1819,8

21

КТП-1*400

шт

1

405,62

405,62

22

КТП-2*630

шт


831,07

2493,21

23

КТП-2*1000

шт

2

972,54

1945,08

24

ВЛ 110кВ(2*АС-70/11)

км

9,6

552,07

5299,87


КЛ 10кВ





25

ААБл-3*25

км

0,163

96,18

15,677

26

2*ААБл-3*25

км

2,911

149,1

434,03

27

2*ААБл-3*95

км

0,2

330,7

66,14

28

СД 10кВ (1000 кВт)

шт

2

506,2

1012,4

29

Сборные шины

м

60

0,9

54

Стоимость оборудования

40950,347

Стоимость монтажных работ (20% от стоим, оборудования)

8190,069

Расходы на транспортировку и хранение(2% от стоим, обор.)

819,007

Плановые накопления (8% от стоим, монтажных работ)

655,206

Накладные расходы (87% от стоим, монтажных работ)

6939,860

Техническое присоединение 9000руб/кВт

71962

Итого стоимость оборудования

123231,835


9.2 Расчет суммы амортизационных отчислений


Все имеющиеся электрическое оборудование разделяем на группы в зависимости от нормы амортизации и для каждой группы находим сумму амортизационных отчислений. Расчеты представлены в виде таблицы 24.

Таблица 24 - Расчет амортизационных отчислений

Элементы схемы электроснабжения

Стоимость группы осн. фондов, тыс. р.

Норма амортизационных отчислений, %

Амортизационные отчисления, тыс. р.

ВЛ 11ОкВ

15281,91

2,8

427,893

КЛ 10 кВ

1487,11

6,3

93,68

Силовое эл.-тех. оборудование

98389,74

9,4

9248,635

Электродвигатели 10 кВ

2919,2

8,1

236,455

Итого

123231,835


10006,663


9.3 Планирование использования рабочего времени


Таблица 25 - Баланс рабочего времени

Показатели

Дни

Часы

1. Календарный фонд времени

365

8760

2. Нерабочие дни:

118

944

- праздничные

9

72

- выходные

109

872

3. Номинальный фонд рабочего времени

247

1976

1

2

3

4. Неиспользованное время:



а) основные и дополнительные отпуска

31

248

б) отпуска учащихся (0,5% Фном) но

1,2

9,6

в) невыходы по болезни (3% Фном)

7,4

59,2

г) невыходы в связи с выполнением общественных и государственных обязанностей (0,5% Фном)

1,2

9,6

40,8

326,4

5. Явочное время одного рабочего

206,2

1649,6

6. Внутрисменные потери (1,5% Фном)

3,7

29,6

7. Полезный фонд рабочего времени

202,5

1620

8. Средняя продолжительность рабочего дня


7,9

9. Коэффициент использования рабочего времени года

0,82



Коэффициент использования рабочего времени:

о.е.                                                                                (211)

где Фпол - полезный фонд рабочего времени;

Фном - номинальный фонд рабочего времени.

 

9.4 Планирование численности персонала


Численность персонала включает рабочих, занятых ремонтом и обслуживанием электротехнического оборудования, высоковольтной линии электропередачи от подстанции энергосистемы до ГГШ предприятия и внутризаводских электрических сетей.

Численность монтеров и мастеров по ремонту и эксплуатации электрических сетей рассчитывается по формуле:

, чел.                                                                       (212)

где rвл1 = 3,3 - норматив численности персонала по обслуживанию ВЛ110.

i = 9,6 км - протяженность ВЛ110;

Rвл = (3,3 * 9,6/100) = 0,317;

Принимаем Rвл = 1 чел.

Численность оперативного персонала ГПП:

гпп = Σrгпп * n, чел,                                                                      (213)

где Σrгпп = 2,6 - норматив численности оперативного персонала для подстанций с U = 110 кВ;

n = 1 - число подстанций.гпп = 2,6 * 1 = 2,6 ≈ 3 чел.

Полная численность эксплуатационного персонала высоковольтной сети равна сумме численности рабочих, занятых ремонтно-эксплуатационным и оперативным обслуживанием линии и подстанции с учетом поправочных коэффициентов:

К1 = 1,25; К2 = 1,1; К3 = 1,1.э = (1+3) * l,25 * 1,1 * 1,1 = 6,05 ≈ 7 чел.

Явочный состав эксплуатационных рабочих:

, чел.                                                                          (214)

где n = 2 - количество смен;

ΣР = 981,34у.е. (из таблицы 27) - сумма единиц ремонтосложности электрооборудования;

Рэ - количество единиц ремонтосложности, приходящего на одного рабочего;

Рэ = 900 у.е./чел - для электрооборудования, работающего в помещениях с нормальной средой.

Rяэ = 2 * 981,34/900 = 2,18 ≈ 3 чел.

Структура ремонтного цикла

Количество плановых ремонтов в течение одного ремонтного цикла:

; Рк = 1                                                                         (215)

где nк и nт - продолжительность периода в месяцах между текущими и капитальными ремонтами.

Результаты вычислений сводим в таблицу 26.

Таблица 26 - Структура ремонтного цикла

Наименование электрооборудования

Продолжительность ремонтного цикла, год

Продолжительность периода между капитальными ремонтами, мес.

Продолжительность периода между текущими ремонтами, мес.

Структура ремонтного цикла

1. Трансформаторы

12

144

24

5т - 1к

2. Выключатели

8

96

12

7т - 1к

3. Разъединители

3

36

6

5т - 1к

4. Трансформаторы тока и напряжения

12

144

12

11т - 1к

5. Кабельные линии

6

72

3

23т - 1к

6.0ПН

6

72

12

5т -1 к


На основании количества электрооборудования и количества ремонтов рассчитаем годовой объем ремонтосложности оборудования и трудоемкости проведения ремонтов. Расчеты заносим в таблицу 27.

Таблица 27 - Годовой объем ремонтосложности оборудования и трудоемкости ремонтов

Наименование оборудования

Кол-во (длина)

Ед. изм.

Объем облуживания, у.е.

Трудоемкость текущего ремонта

Трудоемкость капитального ремонта

Общая трудоемкость




На 1 шт.

Всего

На 1 шт. (км)

Всего

На 1 шт. (км)

Всего

Всего

Разъединители 110 кВ

2

шт.

1

2

5,07

10,14

16,9

33,8

31,5

Разъединители

5

шт.

1

5

1

5

3

15

15

10 кВ










ОПН-110У1

2

шт.

1

2

1,44

2,9

9

18

5,88

ОПН-66У1

2

шт.

1

2

1,2

2,4

6

12

4,4

ОПН-10У1

2

шт.

1

2

1

2

4

8

3,3

ТМ-100/10

2

шт.

12

24

34

68

170

340

62,3

Выкл. 110кВ

2

шт.

22

44

20

40

70

140

57,5

Ячейки КРУ серии K-XXVI

34

шт.

11

374

7

238

25

850

344,3

ТПОЛ-110-600/5 У1

4

шт.

1

4

6

24

20

80

30,7

ТПЛК-10УЗ

29

шт.

1

29

1

29

5

145

41,1

НАМИ-110 УХЛ1

2

шт.

1,5

3

9

18

32

64

23,3

НАМИ-10-95 УЗ

2

шт.

1,5

3

7

14

25

50

18,2

Силовой трансформатор ТДН-10000/110

2

шт.

42

84

212,5

425

1062,5

2125

389,6

Кабельные линии 10 кВ сечением:










25мм

5,985

км

4

23,94

15

89,78

50

299,3

409

95мм

0,2

км

8

1,6

27

5,4

90

18

24,6

Трансформатор КТП, кВА










250

6

шт.

13

78

40

240

190

1140

215

400

7

шт.

13

91

44

308

220

1540

282,3

630

6

шт.

19

114

50

300

250

1500

275

1000

4

шт.

22

88

60

240

300

1200

220

СД 10 кВ

2

шт.

3,4

6,8

4

8

15

30

9

ИТОГО




981,34





2461,98


Численность рабочего персонала планируется на базе трудоемкости ремонтных работ.

Численность явочного состава ремонтного персонала:

 чел.                                                                                    (216)

где ΣЕ - трудоемкость текущих и капитальных ремонтов;

Фэфф - полезный фонд рабочего времени.

чел.

Численность списочного состава ремонтных рабочих:

чел.                                                          (217)

Численность списочного состава эксплуатационных рабочих:

чел.                                                                  (218)

Общая численность рабочих обслуживающих энергохозяйство завода:

общ = Rгпп + Rвл + Rэс + Rрс, чел.,                                           (219)

общ = 7 + 4 + 3 = 14 чел.

9.5 Планирование заработной платы обслуживающего персонала


Тарифный фонд заработной платы эксплуатационного персонала:

Зэт = (Rгпп + Rвл + Rэс) * Тэст * Фном * Ки, тыс.руб.,             (220)

где Тэст = 32,87 руб./час - тарифная ставка эксплуатационных рабочих;

Фном - номинальный фонд рабочего времени.

Зэт = (3+1+4) * 32,87 * 1976 * 0,82 = 585,859 тыс. р.

Тарифный фонд заработной платы ремонтного персонала:

Зэт = ΣЕ * Трст, тыс.руб.,                                                             (221)

где Трст = 41,08 руб./час - тарифная ставка ремонтных рабочих.

Зрт = 2461,98 * 41,08 = 101138 тыс. р.

Часовой фонд заработной платы эксплуатационных и ремонтных рабочих:

Зэчас = Зэт + Дпр + Дночн, тыс.руб.,                                          (222)

Зрчас = Зрт + Дпр + Дпраздн, тыс.руб.,                                               (223)

где Дпр - премия, 75% Зт;

Дночн - доплата за работу в ночное время, 40% Зэт;

Дпразд - доплата за работу в праздничные дни, 4,5% Зрт.

Премия эксплуатационных рабочих:

Дпр = 0,753Зэт = 0,75 * 585,859 = 439,394 тыс.р.                      (224)

Доплата за работу в ночное время:

Дночн = 0,43Зэт = 0,4 * 585,859 = 234,343 тыс.руб.                            (225)

Часовой фонд заработной платы эксплуатационных рабочих:

Зэчас = Зэт + Дпр + Дночн = 426,079 +439,394+234,343=1099,82т. (226)

Премия ремонтных рабочих:

Дпр = 0,75Зрт = 0,75 * 101,138 = 75,854 тыс. р.                                  (227)

Доплата за работу в праздничные дни:

Дпразд = 0,045Зрт = 0,045 * 101,138 =4,55 тыс. руб.                         (228)

Часовой фонд заработной платы ремонтных рабочих:

Зрчас = Зрт +Дпр+Дпразд = 101,138+75,854+4,55=181,543              (229)

Дневной фонд заработной платы:

Зэн = Зэчас тыс.руб.                                                                      (230)

Зрдн = Зрчас + Дпразд, тыс.руб.                                                (231)

Зэдн = Зэчac = 1099,82 тыс.руб.                                                  (232)

Зрдн = Зрчас + Дпразд = 181,543 + 4,55 = 186,093 тыс. руб.             (233)

Годовой фонд заработной платы:

Згод = Здн + Дотп + Дгос.об. тыс.руб.                                        (234)

где Дотп - доплата отпускных;


 тыс.руб.                                                   (235)

где Фотп - фонд времени отпуска.

тыс. руб.                                                 (236)

Фгос.об - фонд времени выполнения государственных обязанностей.

Итак:

доплата отпускных рабочим:

                                (237)

оплата дней выполнения государственных обязанностей:

                             (238)

доплата отпускных эксплуатационным рабочим:

Дэотп = ДотпЗдн = 0,159 * 1099,82 = 174,871 тыс. руб.,           (239)

оплата дней выполнения государственных обязанностей отпускных эксплуатационным рабочим:

Дэгос.об = Дгос.обЗдн = 0,0059 * 1099,82 = 6,4 тыс. руб.                  (240)

Годовой фонд заработной платы эксплуатационных рабочих:

Згод = Здн + Дэопт + Дэгос.об. = 1099,82+174,871+6,4=1281,09 (241)

- доплата отпускных ремонтным рабочим:

Зрдоп = ДотпЗдн = 0,159 * 186,093 = 29,589 тыс. руб.,             (242)

оплата дней выполнения государственных обязанностей отпускных ремонтным рабочим:

Дргос.об = Дгос.обЗдн = 0,0059 * 186,093 = 1,098тыс.руб.                (243)

Годовой фонд заработной платы ремонтных рабочих:

Зргод = Здн + Дропт + Дргос.об. = 186,0,93+29,589+1,098=216,78 тыс.руб. (244)

Все вычисления заносим в таблицу 28.

Таблица 28 - Расчет годового фонда заработной платы персонала

Элементы фонда заработной платы

Заработная плата, тыс. руб.


Эксплуатационных рабочих

Ремонтных рабочих

1. Фонд оплаты по тарифу за год

585,859

101,138

Доплаты до часового фонда заработной платы:



а) премия

439,394

75,854

б) оплата праздничных дней

-

4,55

в) оплата за работу в ночное время

234,343

-

Итого часовой фонд заработной платы

1099,82

181,543

2. Доплата до дневного фонда заработной платы:



а) оплата праздничных дней

-

4,55

Итого дневной фонд заработной платы

1099,82

186,093

3. Доплаты до готового фонда заработной платы:



а) оплата отпусков

174,871

29,589

б) оплата государственных обязанностей

5,4

1,098

Всего годовой фонд заработной платы

1067,13

216,78

4. Средняя годовая заработная плата

133,391

72,26

9.6 Планирование сметы годовых эксплуатационных расходов по обслуживанию энергохозяйства завода


При расчете начислений на заработную плату планируется отчисления на социальное страхование с основной и дополнительной заработной платы в размере 26,2%. Стоимость эксплуатационных материалов принимается 15% от заработной платы эксплуатационного персонала. Затраты на текущий ремонт включают в себя:

а) основную и дополнительную заработную плату ремонтного состава персонала;

б) начисления на заработную плату по социальному страхованию в размере 26,2%;

в) стоимость материалов, полуфабрикатов, покупных комплектующих изделий.

Прочие затраты составляют 30% от заработной платы эксплуатационных и ремонтных рабочих. При планировании амортизационных отчислений исходят из данных о наличии основных фондов и годовых норм амортизации.

Таблица 29 - Смета годовых эксплуатационных расходов

Наименование статей затрат

Затраты, тыс. руб.

% к итогу

1. Основная и дополнительная заработная плата эксплуатационных рабочих

1067,13

16,2

2. ЕСН на з/пл. эксплуатационных рабочих, 26,2%

279,588

4,2

3. Эксплуатационные материалы, 15% от з/пл экс.

160,069

2,4

4. Основная и дополнительная заработная плата ремонтных рабочих

216,78

3,3

5. ЕСН на з/пл. ремонтных рабочих, 26,2%

56,796

0,9

6. Расходные материалы, 35% от з/пл рем.

75,873

1,2

7. Амортизационные отчисления

10006,663

66

8. Прочие затраты, 30 % от з/пл эксп. и рем.

385,173

5,8

Итого затраты, И

12248,072

100


9.7 Определение внутризаводской себестоимости 1 кВт/ч потребляемой электроэнергии


Годовое потребление электроэнергии заводом (без учета потерь в цеховых ТП):

Эгод = Р'м * Тм;                                                                            (245)

Эгод = 8535,13 * 4500 = 38408,085тыс.кВт*ч/год.

Полезная передаваемая энергия на производственные нужды и освещения.

Эпол = Рм * Тм тыс.кВт-ч/год,                                                     (246)

где Рм = 7995,28 кВт - расчетная активная мощность.

Тmax = 4500 ч/год - время использования максимальной нагрузки.

Эпол = 7995,28*4500 = 35978,76 тыс. кВтч/год

Потери электроэнергии:

Эпот = Эгод - Эпол = 38408,085-35978976-2429,325 тыс. кВт-ч/г     (247)

Плата за электроэнергию:

П = Тэ/э * Эгод * НДС,                                                                          (248)

где Тэ/э = 1,51 руб./кВт*час - тариф за энергию для Uн=110 кВ.

НДС = 18% - налог на добавленную стоимость.

П = 1,51*38408,085*1,18=68435,525 тыс. руб.

Себестоимость 1 кВт-ч электроэнергии

 руб./кВт*ч,                            (249)

где И = 12248,072 тыс. руб./год - годовые эксплуатационные расходы на обслуживание энергохозяйства завода.

Расчеты по определению себестоимости электроэнергии сведем в таблицу 30.

Таблица 30 - Калькуляция себестоимости 1 кВт-ч потребляемой электроэнергии

Показатели и статьи расходов

Ед.изм.

Величина

1. Количество электроэнергии, получаемой из энергосистемы

тыс. кВт-ч/год

38408,085

2. Годовой максимум нагрузки

кВт

7995,28

3. Коэффициент мощности

о.е.

0,95

4. Тариф за энергию

руб./кВт-ч

1,51

5. Плата за энергию

тыс. руб.

68435,333

6. Годовые эксплуатационные расходы на обслуживание энергохозяйства завода

тыс. руб.

10006,663

7. Всего годовых затрат

тыс. руб.

58706,106

8. Потери электроэнергии

тыс. кВт-ч/год

2429,325

9. Количество электроэнергии полезно передаваемое на производственные нужды и освещение

тыс. кВт-ч/год

35978,76

10. Цеховая себестоимость 1 кВт-ч полезно потребленной электроэнергии

руб./кВтч

2,24


9.8. Итоговые технико-экономические показатели электроснабжения и электрохозяйства завода


Таблица 31 - Итоговые технико-экономические показатели

Показатели

Ед.изм.

Величина

1. Присоединенная мощность трансформаторов 10кВ, обеспечивающих электроснабжение

кВА

10624

2. Максимум нагрузки

кВт

7995,28

3. Годовое потребление электроэнергии

тыс. кВт-ч

38408,085

4. Потери электроэнергии

тыс. кВт-ч

2429,325

5. КПД сети

%

93,7

6. Коэффициент мощности

о.е.

0,95

7. Капитальные вложения в схему электроснабжения завода

тыс. руб.

123231,335

8. Численность рабочих, обеспечивающих энергохозяйство завода

чел.

11

9. Себестоимость 1 кВт-ч, потребленной э/э , в том числе:

руб/кВтч

2,24

а) плата за 1 кВт-ч

руб/кВтч

1,51

б) себестоимость распределения

руб/кВтч

0,73

10. Удельные капиталовложения на 1 кВА присоединенной мощности

тыс. руб/кВА

4,83

11. Удельная численность рабочих, обеспечивающих схему

чел./тыс.кВА

1,04

12. Фондовооруженность

тыс. руб./чел

4660,894


10. Безопасность и экологичность

 

.1 Защита от воздействия вредных веществ, содержащихся в воздухе


Вентиляция представляет собой организованный и регулируемый воздухообмен, обеспечивающий удаление из помещения воздух, загрязненного вредными парами, газами, пылью, а также улучшающий метеорологические условия в цехах. По способу подачи в помещение свежего воздуха и удаления загрязненного системы вентиляции делят на естественную, искусственную и смешанную. По назначению вентиляция может быть общеобменной и местной.

Одним из видов естественного воздухообмена является аэрация, которая представляет собой естественную организованную управляемую вентиляцию. Физической основой такой вентиляции является тепловое, а также ветровое давление. Аэрацию, как правило, применяют в цехах со значительными тепловыделениями, если концентрация пыли и вредных газов в приточном воздухе не превышает 30% предельно допустимой в рабочей зоне. При аэрации воздухообмен регулируется с помощью фрамуг, расположенных в нижней части здания, через которые поступает снаружи обычно более холодный воздух, а теплый загрязненный воздух выходит через вытяжной фонарь на крыше здания.

Механическая (искусственная) вентиляция обеспечивает поддержание постоянного воздухообмена независимо от внешних метеорологических условий. Воздух, поступающий в помещение, при необходимости подогревается или охлаждается, увлажняется, осушается или очищается от пыли. Обеспечивается также очистка воздуха, выбрасываемого наружу. Механическая вентиляция может быть приточной, вытяжной, а также приточно-вытяжной.

Приточная общеобменная система вентиляции производит забор воздуха извне вентилятором, подает воздух в калорифер, где воздух нагревается и увлажняется, а затем поступает в помещение. Количество подаваемого воздуха регулируется клапанами и заслонками, установленными в ответвлениях. Загрязненный воздух вытесняется свежим через двери, окна, фонари и щели строительных конструкций.

Вытяжная общеобменная система вентиляции удаляет перегретый и загрязненный воздух через сеть воздуховодов при помощи вентилятора. Чистый воздух подсасывается через окна, двери, неплотности конструкций. Загрязненный воздух перед выбросом наружу очищается.

Приточно-вытяжная общеобменная система вентиляции состоит из двух отдельных систем - приточной и вытяжной, которые одновременно подают в помещение чистый воздух и удаляют из него загрязненный. Приточные системы вентиляции, кроме того, возмещают воздух, удаляемый местными отсосами и расходуемый на технологические нужды.

Локальная вентиляция обеспечивает вентиляцию непосредственно у рабочего места, а не в объеме всего цеха. Она может быть приточной и вытяжной.

Защита человека от вредных газов, паро- и пылевыделений предусматривает устройство местной вытяжной вентиляции для отсоса ядовитых веществ непосредственно от мест их образования Местные отсосы устраивают конструктивно встроенными и сблокированными с оборудованием так, что агрегат нельзя пустить в ход при выключенном отсосе.

Кондиционирование - это создание и поддержание в рабочей зоне производственных помещений постоянных или изменяющихся по заданной программе параметров воздушной среды, осуществляемое автоматически.

Кондиционеры бывают полного и неполного кондиционирования воздуха. Установки полного кондиционирования воздуха обеспечивают постоянство температуры, относительной влажности, подвижности и чистоты воздуха. Кроме того могут осуществляться ионизация, озонирование, дезодорация и пр. Установки неполного кондиционирования поддерживают только часть приведенных параметров.

Эффективность вентиляционной установки определятся техническими испытаниями перед пуском установки, а также периодически по графику проверяются качество монтажа, производительность, температура и влажность приточного воздуха. При санитарно-гигиенических испытаниях проверяются чистота воздуха и метеорологический режим в помещении.

Индивидуальные средства защиты. При работе с ядовитыми и загрязняющими веществами пользуются спецодеждой - комбинезонами, халатами, фартуками и пр., для защиты от щелочей и кислот - резиновыми обувью и перчатками. Для защиты кожи рук, лица, шеи, применяют защитные пасты: антитоксичные, маслостойкие, водостойкие. Глаза от возможных ожогов и раздражения защищают очками с герметичной оправой, масками, шлемами.

Органы дыхания защищают фильтрующими и изолирующими приборами. Фильтрующие приборы - это промышленные противогазы и респираторы.

10.2 Очистка выбросов в атмосферу


Предотвратить загрязнение воздушного бассейна ядами и пылью, удаляемыми из производственных помещений, можно пропуская загрязненный воздух через специальные очистные фильтрующие и обезвреживающие устройства; дымы после очистки рассеиваются в атмосфере.

Достаточная высота дымовых труб обеспечивает рассеяние выбросов на больших площадях, благодаря чему концентрации вредностей в атмосфере становятся незначительными.

Очистка воздуха, удаляемого из помещений от пыли может быть тонкой, средней и грубой. Иногда находит применение двухступенчатая очистка вытяжного и особенно рециркуляционного воздуха от пыли: на первой ступени улавливается крупная пыль, на второй - мелкая.

Выбор того или иного пылеочистительного устройства определяется дисперсностью и физико-химическими характеристиками пыли. Существенными являются соображения о возможности утилизации задерживаемой пыли.

Для тонкой очистки находят применение масляные и бумажные фильтры, собираемые в установи из отдельных ячеек.

Грубую и среднюю, а в некоторых случаях и тонкую очистку воздуха от пыли, применяемую в установках вытяжной вентиляции, производят в пылеотделителях разнообразной конструкции. В пылеосадочных камерах принцип осаждения пыли основан на резком снижении скорости движения загрязненного воздуха в камере, где пылинки, теряя скорость, под действием силы тяжести, оседают на дно. В инерционных пылеотделителях резко меняется направление движения запыленного воздуха, вследствие чего пылинки, ударяясь о стенки теряют скорость и опускаются в сборник пыли.

В центробежных пылеотделителях (циклонах) загрязненный воздух, подаваемый в кольцевое пространство между цилиндрами, получает вращательное движение. Пылинки центробежной силой отжимаются к стенкам наружного цилиндра, теряют скорость и соскальзывают по конической части вниз - в бункер.

Более тонкая очистка воздуха происходит в фильтрах - масляных, ультразвуковых, электрических. В электрических фильтрах по оси металлического заземленного цилиндра установлен коронирующии электрод, к которому подведено напряжение 50-100 КВ. Пылинки попадая в сильное электрическое поле внутри цилиндра, получают отрицательный электрический заряд от коронирующего электрода и направляются к положительному осадительному электроду, которым является цилиндр. На внутренней стенке цилиндра, пылинки, отдав свой заряд, удерживаются силами сцепления. Осевшая пыль стряхивается с осадителя при помощи специального механизма без прекращения подачи напряжения и воздуха и удаляется через бункер.

Более крупные пылинки задерживаются легче, поэтом} для них используют более простые и дешевые пылеуловители. Целесообразно перед подачей загрязненного воздуха в очистительные сооружения пылинки укрупнять. Увеличивать размеры пылинок можно с помощью ультразвука.

Очистку воздуха от газообразных примесей осуществляют путем абсорбции (поглощения примесей твердыми веществами) или перевода газообразных примесей в жидкое или твердое состояние с последующим их выводом.

10.3 Защита от шума и вибрации


Одним из основных методов уменьшения шума на производственных объектах является снижение шума в самих его источниках - в электрических машинах, станках, механизмах, компрессорах, вентиляторов и др. Согласно ГОСТ 12.2.003-74 конструкция производственного оборудования должна обеспечивать исключение или снижение до регламентируемого уровня шума, ультразвука, вибраций.

В механических устройствах часто причинами недопустимого шума являются износ подшипников, неточная сборка деталей при ремонтах и т. п. Поэтому в процессе эксплуатации всех видов машин и механического оборудования следует точно выполнять все требования Правил технической эксплуатации.

Строительные нормы и правила СНиП II-12-77 предусматривают защиту от шума строительно-акустическими методами, при этом для снижения уровня шума предусматриваются следующие меры:

а) звукоизоляция ограждающих конструкций; уплотнение по периметру притворов окон, ворот, дверей; звукоизоляция мест пересечения ограждающих конструкций инженерными коммуникациями; устройство звукоизолированных кабин наблюдения и дистанционного управления технологическим оборудованием; укрытия и кожухи источников шума;

б) установка в помещениях звукопоглощающих конструкций и экранов;

в) применение глушителей аэродинамического шума, звукопоглощающей облицовки в газовоздушных трактах вентиляционных систем с механическим побуждением и систем кондиционирования воздуха;

В качестве индивидуальных средств защиты от шума используют специальные наушники, вкладыши в ушную раковину, противошумные каски.

Защита людей от вибраций на рабочих местах, а также оборудования и строительных конструкций осуществляется методом виброизоляции, путем устройства упругих элементов, размещаемых между вибрирующей машиной и основанием, на котором она установлена. В качестве амортизаторов вибраций используют стальные пружины или резиновые прокладки.

Для ослабления вибраций кожухов, ограждений и других деталей, выполненных из стальных листов, применяют вибропоглощение путем нанесения на вибрирующую поверхность слоя резины, мастик, пластиков, которые рассеивают энергию вибрации, при это также снижают уровень производственного шума.

В качестве индивидуальной защиты от вибраций, передаваемых человеку через ноги, рекомендуется носить обувь на войлочной или толстой из микропористой резины подошве. Для защиты от вибрации рук рекомендуются виброгасящие перчатки.

10.4 Защита от электромагнитных излучений


Организационные меры защиты. К работе на установках ВЧ и СВЧ не допускаются лица моложе 18 лет, а также со следующими заболеваниями: все болезни крови, органические заболевания нервной системы прогрессирующего характера, хронические заболевания глаз, туберкулез в активной форме, выраженные эндокринные заболевания, функциональные расстройства нервной системы. Ежегодно проводится медицинский осмотр. Если возникает необходимость работы в условиях облучения, превышающего 10 мкВт/см2, то рабочим предоставляется дополнительный отпуск и сокращается рабочий день.

Помещения, где работают высокочастотные установки, оборудуют общеобменной вентиляцией. Вентиляционные устройства во избежание нагрева выполняются из неметалла.

В технических средствах защиты от электромагнитных излучений используют явления отражения и поглощения энергии излучателя, применяя различные виды экранов и поглотителей мощности. Благодаря высоким коэффициентам поглощения и почти полному отсутствию волнового сопротивления металлы обладают высокой поглощательной и отражательной способностью и поэтому широко применяются для экранирования.

Глубина проникновения электромагнитной энергии высоких и сверхвысоких частот очень мала, например, для меди она оставляет десятые и сотые доли миллиметра, поэтому толщину экрана выбирают по конструктивным соображениям.

В ряде случаев для экранирования излучения применяют металлические сетки, через которые можно наблюдать установки или осуществлять вентиляцию.

Экраны источников высокочастотных излучений должны удовлетворять двум условиям - обеспечивать необходимую эффективность экранирования и не снижать поле внутри катушки больше допустимых пределов.

Экраны изготавливаются из листового металла; швы, соединяющие отдельные листы экрана между собой, должны обеспечивать надежный электрический контакт между соединяемыми элементами. Каждый экран заземляется.

Защита от сверхвысоких излучений кроме экранирования самих источников может быть обеспечена поглощающими нагрузками, экранированием рабочих мест и применением и индивидуальных защитных средств. Экраны могут быть также снабжены поглощающим или интерференционным покрытием, которое обеспечивает наилучшие условия, так как в поглощающих покрытиях электромагнитная энергия рассеивается в виде тепловых потерь.

При выполнении ряда работ по настройке и отработке аппаратуры оператору неизбежно приходится находиться в зоне электромагнитных излучений иногда большей плотности потока мощности. В этих случаях следует пользоваться средствами индивидуальной защиты, которые в принципе представляют собой экраны, изготовленные из металлизированных материалов.

Для защиты глаз используются специальные радиозащитные очки ОРЗ-5 из стекла, отражающего электромагнитные излучения. Они плотно прилегают к коже лица.

Для защиты всего тела применяются капюшоны, халаты, комбинезоны, выполненные из металлизированной хлопчатобумажной ткани.

10.5 Защита от теплового излучения


Меры защиты от теплового излучения, имеющие особое значение в горячих цехах промышленных предприятий, могу быть разделены на следующие группы:

) устраняющие источник тепловыделений;

) защищающие от тепловых излучений;

) облегчающие теплоотдачу тела человека;

) средства индивидуальной защиты.

Устранение источников тепловыделений возможно при изменении технологии (например, замена плазменных печей электрическими), при автоматизации и механизации ручного труда, сокращении длины линии паропроводов и газоходов и т.п.

Защита от прямого действия тепловых излучений осуществляется в основном путем экранирования - установки термического сопротивления на пути теплового потока. Экраны очень разнообразны, но по принципу действия они делятся на поглощающие и отражающие тепловое излучение и могут стационарными и передвижными. Экраны не только защищают от тепловых излучений, но и предохраняют от воздействия искр, выплесков расплавленного металла, окалины, шлака.

Отражающие экраны выполняют из кирпича, алюминия, жести, асбеста, алюминиевой фольги на асбесте (альфоль) или металлической сетке и других материалов. Экраны могут быть одно- или многослойными, причем воздушная прослойка увеличивает эффективность экранирования.

Поглощающие экраны представляют собой завесы, а также щиты и экраны из малотеплопроводных материалов. Завесы устанавливают против излучающих проемов и выполняют из мелких металлических цепей, снижающих лучистый поток на 60-70%, или из водяной пленки, поглощающей до 90% тепловых излучений и пропускающей видимые лучи.

Часто нет необходимости создавать определенные метеорологические условия во всем объеме горячего цеха; оптимальные условия обеспечиваются на отдельных рабочих местах. Это осуществляется путем создания оазисов и душей. Воздушный оазис - огороженный с боков щитами и открытый сверху объем в цехе, куда подается охлажденный воздух. Воздушный душ осуществляет подачу охлажденного воздуха на рабочее место через воздухораспределитель.

Индивидуальная защита в горячих цехах - это спецодежда, выполненная из стойкого против воздействия теплового излучения, прочного, мягкого и воздухопроницаемого материала. В зависимости от требований защиты костюм выполняется из сукна, брезента, синтетического волокна, химически обработанных, с металлическим покрытием тканей.

Голову от перегревов и ожогов защищают шляпой из войлока, фетра или грубошерстного сукна. Костюм дополняют специальная, стойкая к повышенной температуре и облучению обувь и рукавицы.

Глаза от воздействия лучистого тепла защищают очками со светофильтрам, спектральное поглощение которых соответствует спектру лучистого потока.

10.6 Расчет заземляющих устройств ГПП


Согласно ПУЭ, нейтрали установок и все металлические нетоковедущие части электрооборудования, которые могут оказаться под напряжением вследствие нарушения изоляции, должны быть заземлены.

) По генплану намечаю расположение вертикальных электродов по контуру на длине 170 метров. Тип заземлителя - вертикальный электрод в земле из угловой стали, соединенный с другими горизонтальной полосой. Горизонтальные заземлители, связывающие между собой вертикальные электроды, выполняются из стальных полос толщиной не менее 4мм. Верхний конец вертикального заземлителя заглубляется на 0,7м, длина вертикального электрода - 3м.

) Сопротивление заземления выбирается по наименьшему допустимому сопротивлению заземляющих устройств.

На стороне115 кВ трансформатор имеет глухозаземленную нейтраль, а на 10 кВ - изолированную. Планируем совмещенное заземляющее устройство для высшего и низшего напряжений.

R110з = 0,5 Ом, R10з = 10 Ом.

Выбираем сопротивление ЗУ, равное 0,5 Ом

). Корректируем расчетное удельное сопротивление грунта для вертикальных и горизонтальных электродов, умножая на коэффициент сезонности.

ρРв = ρ * Ксв;                                                                                (250)

ρРг = ρ * Ксг                                                                                  (251)

где ρ -удельное сопротивление грунта,

Ксвг -коэффициент сезонности для вертикальных и горизонтальных заземлителей.

Выбираю удельное сопротивление грунта для суглинка 100 Ом*м. Коэффициент сезонности выбираю по I климатической зоне

Ксв = 1,7, Ксг = 4,5;

ρрв = 100 * 1,7 = 170 Ом*м;

ρрг = 100 * 4,5 = 450 Ом*м.

) Определим сопротивление растекания тока в грунт через одиночный заземлитель

                            (252)

где d = 0,95 * b

b - толщина полки,

d = 0,95 * 4 = 3,8 мм

l = 3м, t > 0,5м, t = 2м

Ом,   (253)

) Ориентировочное число вертикальных электродов

,                                                                                 (254)

где Кuв - коэффициент, учитывающий увеличение сопротивления заземлителя вследствие явления экранирования соседних электродов;

) Определяем расчетное сопротивление растеканию тока в грунт через горизонтальные электроды

,                                                               (255)

где b =4 м;

d = 0,5 * b = 0,5 * 4 = 2мм

t = 0,7

Ом                                   (256)

Ом,                                                        (257)

где Киrэ - коэффициент использования для горизонтальных электродов;

Киrэ = 0,15.

) Определение необходимого сопротивления вертикальных электродов

Ом,                                           (258)

) Окончательное число вертикальных электродов

,                                                                               (259)

,                                                                                 (260)

где Р - периметр контура.

По этому значению определим уточненный коэффициент использования вертикальных электродов

Кивэ = 0,5

Окончательно принимаем число вертикальных электродов 265.

10.7 Расчет заземляющих устройств механического цеха


) Намечаем расположение электродов в ряд по длине 100м. Вертикальный заземлитель принимаем из угловой стали длиной 3м и толщиной стенок 6мм.

) Определяем допустимое сопротивление заземляющих устройств.

Так как R310 = 10 Ом, а R30,4 = 4 Ом, то принимаем R = 4 Ом.

) Корректируем расчетное удельное сопротивление грунта для вертикальных и горизонтальных электродов. В качестве грунта принимаем суглинок, ρ = 100 Ом*м.

Ксв = 1,5, Ксг = 3;

ρвр = 100 * 1,5 = 150 Ом*м;

ρрг = 100 * 3 = 300Oм*м.

) Определяем сопротивление растеканию в грунт через одиночный заземлитель:

Ом,

) Ориентировочное число вертикальных электродов

) Определяем сопротивление растеканию тока горизонтальных электродов

Ом

 где Кигэ = 0,42

Ом

) Уточняем необходимое сопротивление вертикальных электродов

Ом,

) Определяем окончательное число электродов (вертикальных)

К = 1, Кивэ = 0,5

Окончательно принимаем число электродов - 23.

10.8 Молниезащита ГПП


Рассчитаем защитную зону двойного стержневого молниеотвода высотой h = 30м при расстоянии между молниеотводами а = 40м защищаемое сооружение имеет высоту hx = 10м с габаритами 30*45м.

Расчет защищаемой зоны

,                                                                             (261)

где ha -активная высота молниеотвода, м,

Кр -коэффициент, учитывающий разные высоты молниеотвода,- высота точки на границе защищаемой зоны;

а = h -hx,                                                                                        (262)

a = 30 - 10 = 20 Ом;

,                                                                           (263)

Определяем ширину защищаемой зоны

,                                                                                      (264)

,                                                                                   (265)

,                                                                                 (266)

,                                                                                      (267)

bx = 1,1 * 2 * ha,                                                                            (268)

х = 1,1*2*20=66 м - защищаемый объект находится внутри защищаемой зоны.

Заключение


В результате выполнения данного дипломного проекта было спроектировано электроснабжение цементно-шиферного завода.

Питание к заводу было подведено от ближайшей электростанции двухцепной воздушной линией со сталеалюминиевыми проводами АС-70/11 и железобетонными опорами напряжением ПО кВ. На ГПП установлены 2 трансформатора ТДН-10000/110, защищенные элегазовыми выключателями марки HGF 1012. К цеховым подстанциям питание подводится кабелями марки ААБл по разветвленной схеме, защита цеховых подстанций осуществляется с помощью предохранителей и автоматических выключателей, установленных в КРУ K-XXVI. Для питания цехов используются комплектные трансформаторные подстанции разной мощности. Для компенсации реактивной мощности используются конденсаторные батареи, устанавливаемые на шинах ГПП и на выводах низкого напряжения цеховой подстанции ТП1. Была произведена релейная защита кабельных линий, цеховых трансформаторов, трансформаторов ГПП, конденсаторных установок и высоковольтных синхронных двигателей. Защита низковольтной сети выполнена с помощью автоматических выключателей и предохранителей. Выполнены условия безопасности и экологичности. Создана молниезащита ГПП, а также заземление ГПП и цехов. Вычислены затраты на производство и обслуживание энергохозяйства завода. Спланирована численность эксплуатационного и ремонтного персонала в составе 11 человек. Конечным итогом обучения и выполнения данного дипломного проекта является приобретение знаний, умение пользоваться теоретическими и справочными материалами, на основании которых возможно принятие обоснованного технико-экономического решения, что подразумевает обеспечение высокой надежности электроснабжения потребителя, надлежащее качество напряжения и наименьшие потери электроэнергии при минимальных капитальных затратах.

Список литературы


1. Андреев В.А. Релейная защита и автоматика систем электроснабжения: Учеб. для вузов по спец. «Электроснабжение». -3-е изд., перераб. и доп. - М.: Высш. Шк., 1991. - 496 с.:ил.

2.      Методика испытания сопротивления заземляющего устройства / Разраб. И.Ф.Суворов. - Чита: ЧитГУ, 2007.

.        Неклепаев Б.Н., Крючков И.П. Электрическая часть станций и подстанций. Справочные материалы для курсового и дипломного проектирования. - М.: Энергоатомиздат ,1978. - 456с.

.        Пособие по курсовому и дипломному проектированию для электроэнергетических специальностей вузов / Под редакцией Блок В.М. - М.: Высшая школа ,1990 - 383с.

.        Правила устройства электроустановок. Седьмое издание. - М.: ЗАО «Энергосервис», 2006. - 681 с.

.        Федоров А.А., Сербиновский Г.В. Справочник по энергоснабжению промышленных предприятий. Промышленные электрические сети. Второе издание, переработанное и дополненное - М.: Энергия, 1980. - 576 с: ил.

.        Федоров А.А., Старкова Л.Е. Учебное пособие для курсового и дипломного проектирования по электроснабжению промышленных предприятий: Учеб. Пособие для ВУЗов. - М.: Энергоатомиздат, 1987.- 368 с.;ил.

.        Электроснабжение промышленных предприятий. - Методические указания по курсовому и дипломному проектированию для студентов всех видов обучения специальности 10.04.00 - «Электроснабжение (по отраслям)». - Чита: ЧитГУ, 2003. - 55с.

Похожие работы на - Электроснабжение цементно-шиферного завода

 

Не нашли материал для своей работы?
Поможем написать уникальную работу
Без плагиата!
Без нейросетей!