Создание 'гибких' моделей и ассоциативных чертежей в системе КОМПАС-3D
Министерство
образования Российской Федерации
Донской
государственный технический университет
Кафедра
"Робототехника и мехатроника"
Методические
указания к выполнению лабораторной работы N2
по дисциплине
“Информационные технологии”
"Создание
"гибких" моделей и ассоциативных чертежей в системе КОМПАС - 3D"
г.
Ростов-на-Дону 2007 г.
Содержание
1. Цель
работы
.
Теоретическая часть
.1 Средства
обеспечения гибкости моделей
.2 Анализ и
планирование детали
.3 Настройка
глобальных привязок
.4
Параметризация в эскизах
.5
Проецирование объектов
.6
Использование переменных и выражений
.7 Создание
ассоциативного чертежа
.7 Создание
трех стандартных видов
.8 Понятие
вида чертежа
.9 Управление
видами
.10
Управление состоянием видов
.
Практическая часть
.1 Задание на
выполнение лабораторной работы
.2 Содержание
отчета
. Контрольные
вопросы
Список
использованных источников
1. Цель работы
Ознакомиться с основными средствами обеспечения гибкости моделей в
системе КОМПАС-3D; изучить метод создания ассоциативных чертежей по
твердотельным параметрическим моделям; получить практические навыки создания
“гибких” 3D-моделей и их рабочих чертежей.
2. Теоретическая часть
2.1 Средства обеспечения гибкости моделей
"Гибкой" моделью называется модель, изменять которую можно,
сведя количество дополнительных операций редактирования к минимуму, что
уменьшает время создания модификаций этой детали.
К основным средствам КОМПАС - 3D V6, обеспечивающим построение легко
перестраиваемых моделей, можно отнести следующие:
− анализ и планирование деталей и сборок;
− использование параметризации;
− использование переменных и выражений;
− использование опций в командах создания объемных элементов;
− использование в эскизах средств проецирования объектов;
− использование вспомогательных объектов в эскизах;
− использование компоновочных эскизов;
− создание новых деталей в контексте сборок.
2.2 Анализ и планирование детали
Перед началом работы проведите анализ детали, принимая во внимание
следующие этапы:
. Определите основные элементы, составляющие деталь.
. Решите, какой элемент лучше принять за основание детали.
. Определите, каким образом в будущем может потребоваться изменять
деталь.
. Выясните, какие связи необходимы между элементами для реализации
возможных изменений моделей.
. Определите в модели симметричные элементы и используйте симметрию там,
где это возможно.
. Определите, какие элементы детали можно реализовать в виде массивов, и
используйте массивы.
. Определите порядок, в котором нужно создавать элементы, а также примите
во внимание технологию изготовления детали.
. Примите решение, какие элементы детали следует реализовать как
операции, а какие − в эскизах.
2.3 Настройка глобальных привязок
Важную роль при создании моделей играет правильное использование привязок.
Включение и выключение глобальных привязок осуществляется с помощью кнопки Установка
глобальных привязок
на панели Текущее состояние. В этом случае
установленный набор привязок будет сохранятся только в течении текущего сеанса
работы КОМПАС - 3D V6.
Для постоянной настройки привязок выполните команду Cервис |
Параметры. В диалоговом окне Параметры откройте вкладку Система,
раскройте содержимое раздела Графический редактор и укажите команду Привязки.
Включите привязки Ближайшая точка, Середина и Пересечение.
Эти привязки рекомендуется применять постоянно.
2.4 Параметризация в эскизах
гибкость
деталь чертеж параметризация
Одним из важных инструментов КОМПАС - 3D V6 для создания
"гибких" моделей является параметрический эскиз операции.
Параметрический эскиз, кроме данных об объектах, содержит информацию о связях
между объектами и о наложенных ограничениях.
Под связями между объектами понимается зависимость между параметрами этих
объектов. Например, одной из наиболее распространенных видов связи является
Совпадение точек. Если два отрезка имеют такую связь, то система автоматически
поддерживает непрерывное равенство координат этой точки для обоих отрезков.
Можно перемещать любой из отрезков, но не удастся разорвать их в точке связи.
Под ограничениями понимается зависимость между параметрами отдельного
объекта или равенство параметра константе. Например, если на отрезок наложено
ограничение Вертикаль, то система автоматически обеспечит равенство
координат по оси Х его конечных точек. Такой отрезок можно перемещать, удлинять
или укорачивать, но его нельзя наклонить.
Накладывая на объекты связи и ограничения, пользователь постепенно
формирует параметрическую модель − устойчивый комплекс объектов,
элементы которого непрерывно находятся в параметрической зависимости. Такая
модель может динамично менять свою форму без нарушения связей между элементами.
По умолчанию, при создании эскизов КОМПАС - 3D V6 работает в
параметрическом режиме. Чтобы изменить настройки параметрического режима
выполните команду Cервис | Параметры. В диалоговом окне Параметры
укажите раздел Параметризация. В правой части окна отображаются
различные настройки параметрического режима КОМПАС - 3D V6 (рисунок 1).
Опции группы Ассоциировать при вводе определяют объекты как
ассоциативные (связанные с другими объектами) при их построении. Опция Размеры
позволяет создавать ассоциативные размеры, т.е. управлять размерами и
положением геометрических объектов в эскизах. Режимы ассоциаций обозначений
шероховатостей и баз, эквидистант, штриховок, обозначение центра используется,
в основном, при оформлении чертежей.
Рисунок 1
Опции расположенные в группе Параметризировать, позволяют
выполнять автоматическую параметризацию привязок, построение вертикальных и
горизонтальных отрезков, параллельных, перпендикулярных, касательных и
симметричных объектов.
В КОМПАС - 3D V6 есть средства, которые позволяют просматривать
наложенные на объекты связи и ограничения, то есть "заглянуть" внутрь
параметрической модели. Для этого щелчком мыши выделите нужный элемент, затем
на выделенный элемент укажите правой кнопкой мыши и выполните из контекстного
меню команду Показать/Удалить ограничения. На панели свойств в виде
списка будут представлены все связи и ограничения, наложенные на объект. Кроме
просмотра связей и ограничений, панель свойств в данном режиме обладает еще
одной важной функцией. С помощью кнопки Удалить пользователь может снять
с объекта лишние связи и ограничения.
При построение параметрических эскизов не всегда удается сразу задать все
связи и ограничения. Дополнительные параметрические зависимости можно назначить
в ручном режиме. Для этого предназначены команды на инструментальной панели Параметризация.
Особенность режима заключается в его наглядности. В автоматическом режиме
формирование параметрических связей скрыто от пользователя. В ручном режиме
пользователь сам выбирает параметрическую команду и указывает объекты, между
которыми необходимо сформировать связь. С другой стороны, ручной режим более
трудоемкий.
2.5 Проецирование объектов
При создании моделей часто требуется изобразить контур, представляющий
собой проекцию уже существующего в модели ребра, грани или вершины на плоскость
текущего эскиза. Такое построение трудно, а иногда и невозможно выполнить
стандартными средствами графического редактора. В таких случаях нужно
воспользоваться командой Спроецировать объект из меню Операции
или нажать кнопку Спроецировать объект на панели Геометрия. Далее
следует указать объект, проекцию которого нужно получить − ребро грань
вершину или ось. Система создаст в эскизе его проекцию и будет ожидать указания
следующего объекта для построения проекций. Проекция ребер и граней создаются в
виде графических объектов со стилем линии Основная. Проекция осей
создаются в виде вспомогательных прямых, а проекции вершин − в виде
вспомогательных точек. Если прямолинейное ребро или ось, выбранное для
построение проекции, перпендикулярны плоскости эскиза, то создание проекции
невозможно, т.к. она вырождается в точку.
В проекцию грани включены все ограничивающие ее ребра. Если проекции
каких-либо ребер совпадают, то в эскиз проецируется только одно из них. В этом
случае система выдает сообщение "Проекции некоторых элементов не
добавлены".
2.6 Использование переменных и выражений
Как вы уже знаете, параметрическими эскизами КОМПАС - 3D V6 можно
управлять с помощью ассоциативных размеров. Например, по замыслу конструктора,
диаметр отверстия в цилиндрической бобышке должен быть в два раза меньше ее
внешнего диаметра, или на оборот, толщена стенки должна быть постоянной. В
общем случае, значение этих размеров устанавливают вручную. Можно добиться
автоматического согласования изменения размеров путем использования переменных
и выражений.
Параметрическому размеру в КОМПАС - 3D V6 может быть сопоставлена
переменная. В дальнейшем, переменные могут быть связанны выражениями. В
результате вычисления выражения, могут изменяться значения переменных, что
приведет к изменению геометрии.
Например:
· Создайте новую деталь и сохраните ее в папке Мои модели.
· В дереве построения укажите элемент Плоскость XY и создайте
новый эскиз.
· Проставьте горизонтальный линейный размер, определяющий
ширину прямоугольника. Для этого укажите базовые точки 1 и 2.
· В диалоговом окне Установить значение размера оставьте
без изменений значение размера в миллиметрах. В текстовом поле Переменная
введите имя переменной в виде заглавной латинской буквы W и закройте окно
щелчком на кнопке ОК (Рисунок 2).
Рисунок 2
· Проставьте вертикальный линейный размер, определяющий высоту
прямоугольника. Для этого укажите его базовые точки 1 и 3. Назовите размер
именем переменной в виде латинской буквы H.
· Постройте горизонтальный линейный размер, определяющий
положение правого вертикального отрезка прямоугольника относительно начала
координат эскиза. Для этого укажите его базовые точки 0 и 2, назовите его w.
· Постройте вертикальный линейный размер, определяющий
положение нижнего горизонтального отрезка прямоугольника относительно начала
координат эскиза. Для этого укажите его базовые точки 0 и 3, и дайте размеру
имя h (рисунок 3).
· Нажмите кнопку Переменные
на инструментальной панели Стандартная.
На экране появится окно для работы с переменными и уравнениями.
· На вкладке Переменные откройте уровень Эскиз:1.
В окне отображается таблица переменных, задействованных в текущем эскизе.
Рисунок 3
· Для ввода в эскиз выражений, связывающих переменные, откройте
вкладку Уравнения. В поле первой строки таблицы уравнений введите выражение:
h=H/2; в поле второй строки введите выражение: W=w*2 (рисунок 4).
·

Рисунок 4
Выполнив вычисления, система переместит центр прямоугольника в точку
начала координат эскиза.
Введенная в эскиз система уравнений будет обеспечивать следующие условие:
расстояние от сторон прямоугольника до его центра в точке 0 начала координат
всегда будет равно половине ширины и высоты.
2.7 Создание ассоциативного чертежа
Многие трехмерные модели создаются с целью получения конструкторской или
технической документации, рабочих чертежей деталей и сборочных единиц,
каталогов деталей или запасных частей, инструкций по техническому обслуживанию
и т.д. После построения трехмерной модели можно получить ее чертеж, избежав
рутинного создания видов средствами плоского черчения.
Ассоциативный вид − это вид чертежа, ассоциативно связанный с
определенной 3D−моделью. При изменении формы или размеров модели
автоматически изменяется изображение на всех связанных с ней ассоциативных
видах.
2.7 Создание трех стандартных видов
Лист чертежа является одним из основных типов документов в системе КОМПАС
- 3D V6 и полностью соответствует листу чертежа на кульмане. Если чертеж детали
состоит из нескольких листов, они создаются отдельно и хранятся в разных
файлах. Каждый чертеж детали имеет параметры стиля основной надписи, формата и
ориентации. Для создания трех стандартных видов на панели переключения нажмите
кнопку Ассоциативные виды − справа откроется одноименная
инструментальная панель. Команды представленные на ней, позволяют создавать различные
ассоциативные виды. Нажмите кнопку Стандартные виды − на экране появится
диалог выбора модели (рисунок 5).
Рисунок 5
После того, как модель выбрана, в окне чертежа появится фантом
изображения в виде габаритных прямоугольников. С помощью команд на панели
свойств можно управлять процессом создания видов: назначить масштабный
коэффициент или подобрать автоматически; назначить цвет активных видов;
включить или выключить отображение невидимых линий и линий переходов
поверхностей; определить ориентацию модели (рисунок 6).
Рисунок 6
В поле ориентация модели дана ориентация главного вида чертежа. По
умолчанию, для главного вида выбрана ориентация Спереди. При этом
положение и содержание остальных видов автоматически рассчитывается системой
согласно правилам оформления чертежей. Нажмите кнопку Схема. В этом диалоге
можно установить набор стандартных видов, построение которых необходимо для
создания чертежа выбранной модели. Для включения вида достаточно указать его на
схеме расположения видов. Аналогично можно отменить построение вида. Отменить
построение главного вида невозможно. После набора нужных стандартных видов и
настройки их параметров укажите в поле чертежа положение в точке привязки
изображения − точки начала координат главного вида. Текущий чертеж будут
вставлены выбранные виды, а в основную надпись чертежа передадутся сведения:
обозначение, наименование и материал. Кроме того, система автоматически рассчитает массу детали и проставит масштаб.
2.8 Понятие вида чертежа
Понятие вида в чертежах КОМПАС - 3D V6 отличается от принятого в обычном
черчении и трактуется несколько шире. В машиностроительном черчении под видом
понимается прямоугольная проекция обращенная к наблюдателю поверхности предмета
на плоскость проекции, то в КОМПАС - 3D V6 видом может быть любое изображение
на ч6ертеже, логически объединенное в одно целое.
Вида в КОМПАС - 3D V6 − это удобное средство структурирования
чертежа. Управление ими (создание, удаление, перемещение, изменение параметров)
всегда находится под контролем конструктора. В чертеже, созданной системой по
трехмерной модели, конструктор может создавать любое количество дополнительных
видов. Каждый созданный в чертеже вид характеризуется определенным набором
параметров приведенной в таблице :
Таблица 1
|
Параметр вида
|
Значение по умолчанию
|
|
Номер
|
1 и далее по порядку
|
|
Масштаб
|
1:1
|
|
Угол поворота в градусах
|
0
|
|
Имя
|
Необязательный параметр
|
|
Точка привязки
|
Определяется системой или
задается пользователем
|
2.9 Управление видами
Средства управления видами расположены на панели текущего состояния и
включает в себя кнопку Состояние видов, поле Текущий вид и кнопку
Список видов. Для получения информации о видах текущего документа
щелкните на кнопке Состояние видов в строке текущего состояния. На
экране появится диалоговое окно Состояние видов (рисунок 7).
Рисунок 7
В этом окне сообщается, из каких видов состоит текущий документ, их
порядковые номера, имена и состояния.
При создании нового чертежа система автоматически формирует специальный Системный
вид с нулевым номером. Этот вид содержит основную надпись чертежа (штамп).
Любой из параметров стандартного вида может быть изменен. В этом смысле
системный вид с номером 0 является исключением. Его параметры жестко
зафиксированы. Параметры системного вида приведены в таблице 2.
Таблица 2
|
Параметр системного вида 0
|
Жестко фиксированные
значения
|
|
Номер
|
0
|
|
Масштаб
|
1:1
|
|
Угол поворота в градусах
|
0
|
|
Имя
|
Системный вид
|
|
Точка привязки
|
Совпадает с началом
координат листа (левый нижний угол документа)
|
2.10 Управление состоянием видов
Каждый вид на чертеже может находиться в одном из четырех состояний:
текущий, фоновый, погашенный и активный.
Текущий вид всегда единственный. В этом виде можно выполнять любые операции
ввода, редактирования и удаления объектов. Все вновь создаваемые объекты
сохраняются именно в текущем виде. Линии текущего вида всегда отображаются
реальным цветом и стилем.
Фоновые виды доступны только для выполнения операции привязки к точкам или
объектам. Эти виды нельзя перемещать, а их содержимое недоступно для
редактирования. Элементы фоновых видов изображаются на экране пунктирными
линиями. Погашенные виды отображаются на чертеже только их габаритными
рамками, содержимое при этом не показывается. Такие виды недоступны для
выполнения любых операций.
Активными могут быть сразу несколько видов. Если вид не является фоновым или
погашенным, то он считается активным. Текущий вид также является активным.
Элементы активных видов доступны для выполнения операций редактирования и
удаления. Все объекты, содержащиеся в активном виде, изображаются на экране
одним цветом (по умолчанию черным).
В разные моменты работы над чертежом вид может находиться в различных
состояниях. Для изменения состояния вида нужно выделить его в списке видов и
включить нужный флажок в верхней части окна (рисунок 8).
Рисунок 8
3. Практическая часть
3.1 Задание на выполнение лабораторной работы
Построить в системе КОМПАС - 3D V6 рабочий чертеж детали согласно своему
варианту, с обозначением размеров. Для этого необходимо:
) В системе КОМПАС - 3D V6 постройте по размерам "гибкую"
модель одной из деталей (по вариантам), рабочие чертежи которых изображены на
рисунках 9 - 14 и сохраните ее в папке Мои документы под именем,
указанным на чертеже.
3.2 Содержание отчета
) Название и цель лабораторной работы.
) Основные средства обеспечения “гибкости” моделей в системе КОМПАС-3D.
) Виды параметризации в КОМПАС-3D.
) Определение ассоциативного вида в КОМПАС-3D.
) Задание на выполнение лабораторной работы (эскиз создаваемой модели,
материал).
) Выводы о проделанной работе.
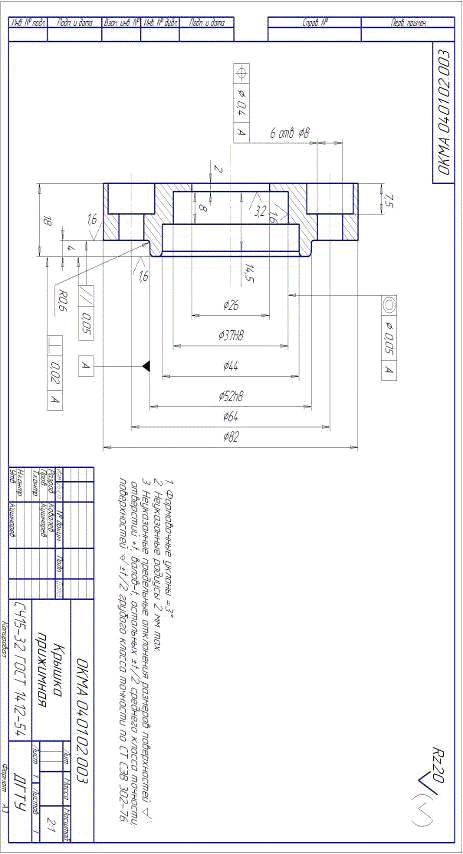
Рисунок 9 - Вариант 1
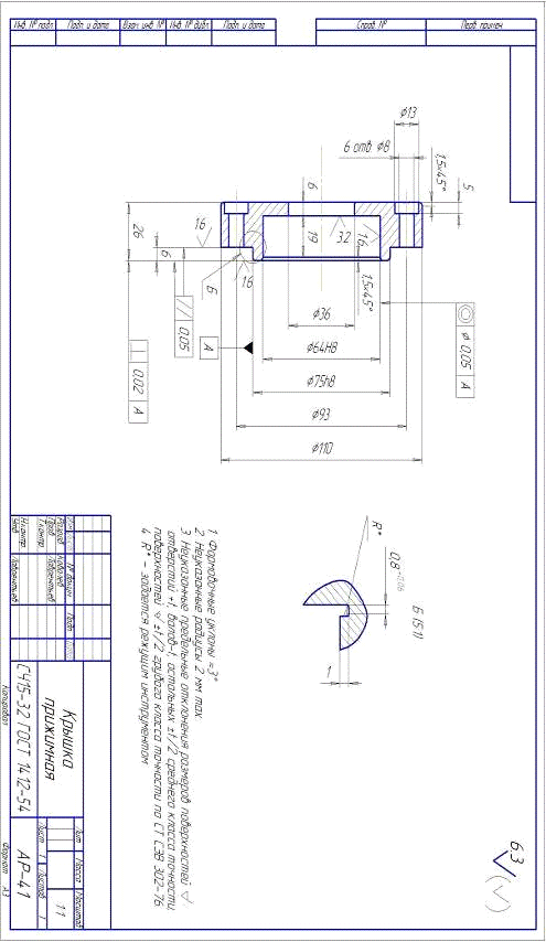
Рисунок 10 - Вариант 2
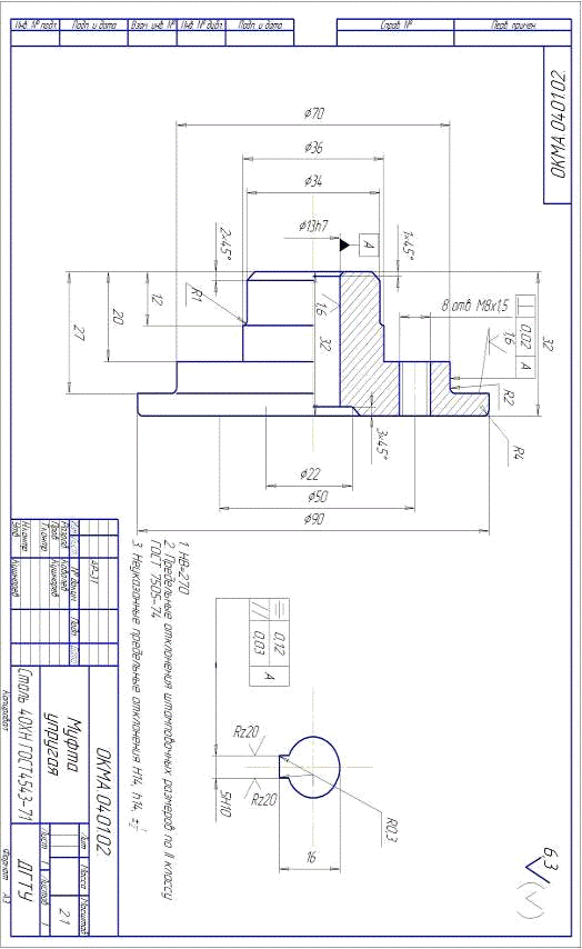
Рисунок 11 - Вариант 3
Рисунок 12 - Вариант 4
Рисунок 13 - Вариант 5
Рисунок 14 - Вариант 6
4. Контрольные вопросы
1) Что
такое “гибкая” модель, и какими основными средствами обеспечивается “гибкость”
моделей в системе КОМПАС-3D?
) В
чем заключается анализ и планирование детали?
) Что
такое параметрический эскиз, чем он отличается от непараметрического? Какие
виды параметризации возможны в эскизах системы КОМПАС-3D?
) Что
такое ассоциативный вид? Дайте понятие вида в чертежах КОМПАС - 3D.
) В
каких состояниях могут находиться виды в системе КОМПАС-3D?
Список использованных источников
1. Потемкин
А.Е. Твердотельное моделирование в системе КОМПАС-3D. - СПб.: БХВ-Петербург,
2004.
. Потемкин
А.Е. Инженерная графика. Просто и доступно. - М.: ЛОРИ, 2000.
. Федоренко
В.А., Шошин А.И. Под ред. Поповой Г.Н. Справочник по машиностроительному
черчению. 14-е изд., перераб. и доп. - Л.: Машиностроение, 1981.