Обоснование рационального выбора материала для изготовления пластиковых креплений для соединения корпуса со столбиком ограждения

  • Вид работы:
    Курсовая работа (т)
  • Предмет:
    Другое
  • Язык:
    Русский
    ,
    Формат файла:
    MS Word
    401,74 Кб
  • Опубликовано:
    2013-05-17
Вы можете узнать стоимость помощи в написании студенческой работы.
Помощь в написании работы, которую точно примут!

Обоснование рационального выбора материала для изготовления пластиковых креплений для соединения корпуса со столбиком ограждения

ФЕДЕРАЛЬНОЕ АГЕНТСТВО ПО ОБРАЗОВАНИЮ

ГОСУДАРСТВЕННОЕ ОБРАЗОВАТЕЛЬНОЕ УЧРЕЖДЕНИЕ ВЫСШЕГО ПРОФЕССИОНАЛЬНОГО ОБРАЗОВАНИЯ

«МАТИ» - РОССИЙСКИЙ ГОСУДАРСТВЕННЫЙ ТЕХНОЛОГИЧЕСКИЙ УНИВЕРСИТЕТ им. К.Э.ЦИОЛКОВСКОГО

Кафедра "Технология переработки неметаллических материалов"

 

 

 

 

 

 

 

КУРСОВАЯ РАБОТА

по дисциплине "Основы рационального выбора материалов"

на тему:

«Обоснование рационального выбора материала для изготовления пластиковых креплений для соединения корпуса со столбиком ограждения»








МОСКВА-2012

ЗАДАНИЕ

на курсовую работу по дисциплине

"Основы рационального выбора материалов"

Тема «Обоснование рационального выбора материала для изготовления пластиковых креплений для соединения корпуса со столбиком ограждения»

Перечень вопросов, подлежащих разработке в курсовой работе

1.   Описание и характеристики изделия.

2.      Характеристика выбранного типа полимерного материала.

.        Выбор полимерного материала для изготовления изделия.

.        Оценка рациональности проведенного выбора.

Рекомендуемая литература

Энциклопедия полимеров. Т. 1,2,3 - М.: Советская энциклопедия, 1974-1977.

Мийченко И.П. Методические указания по выполнению курсовой работы по дисциплине «Основы рационального выбора материалов» - М.: МАТИ, 2006. - 32с.

Содержание

Введение

. Исходные данные

.1   Характеристика изготавливаемого изделия

1.2    Технические требования

.3      Условия эксплуатации

2.   Анализ исходных данных

. Разработка алгоритма поиска и поискового образа запроса на материал

.1   Разработка алгоритма поиска

3.2    Составление поискового образа запроса на материал

4. Выбор полимерного материала для изготовления изделия

.1   Выбор типа (класса) полимерного материала по эксплуатационным свойствам

4.2    Выбор марки полимерного материала по технологическим свойствам

5.   Характеристика выбранного полимерного  материала и конкретной его марки

.1   Характеристика полиамида, как полимерного материала

5.2    Характеристика марки полиамида - 6 НС

Заключение

Список использованных источников

Введение

Выбор полимерного материала является самым важным этапом проектирования полимерных изделий, в том числе и изделий из пластмасс. Нет плохих полимерных материалов, а есть материалы, не соответствующие конкретному применению. Поэтому для конструктора чрезвычайно важно досконально знать свойства конкурирующих материалов и тщательно проверить, как эти свойства влияют на технологию изготовления изделий из этих материалов. Множество примеров успешного применения полимерных материалов в различных отраслях промышленности подтверждает, что будущее принадлежит им. При разумном использовании свойств полимеров можно проектировать многофункциональные изделия, которые технически и экономически превосходят предшествующие конструкции.[1,5,6]

Промышленностью выпускается огромное количество всевозможных марок ПМ, используемых для изготовления изделий различного назначения. Их количество растет с каждым годом. Все более доступными становятся материалы, производимые за рубежом. В то же время число выпускаемых промышленностью базовых полимеров, являющихся основой для изготовления основной массы (более 95%) пластмасс и полимерных композитов, увеличивается значительно медленнее и не превышает нескольких десятков. Это позволяет на основании анализа свойств базовых полимеров и основных способов их модифицирования сделать правильный выбор ПМ с учетом конструкции изделия, условий эксплуатации, технологических возможностей и экономической эффективности применения.[1,2]

Первоначальной задачей на этом пути является выбор базового полимера, который основан на изучении исходных данных по комплексу наиболее значимых для конкретного вида изделий эксплуатационных (механических, электрических, химических и др.) характеристик различных полимеров. В большинстве справочников по пластмассам обобщенные сведения об этих характеристиках размещаются в разделах, посвященных конкретному ПМ. Эти разделы, в свою очередь, располагаются друг за другом в соответствии с классификацией полимеров по химической структуре: карбоцепные термопластичные (полимеры этилена и его производных), гетероцепные термопластичные (полиэфиры, полиамиды и т. д.), реактопластичные полимерные материалы. Даже специалисту иногда трудно ориентироваться в составленной таким образом базе данных.[3]

Целью данной работы является систематизация, расширение и закрепление знаний по проблеме рационального выбора полимерного материала для изготовления детали, работающей в определенных условиях эксплуатации.

Задачей работы является проведение анализа конструкции детали, технических требований к ней и условий её эксплуатации с целью формулирования требований к свойствам полимерного материала, проведение обоснованного выбора полимерного материала.

1. Исходные данные

Рассмотрим исходные данные к изготавливаемой детали: конструкцию, конфигурацию, назначение, область применения, технические требования и условия эксплуатации.

1.1    Характеристика детали

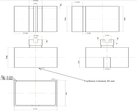
Рассматриваемое изделие которое имеет форму стакана, со стороны дна имеется крепежный паз, данная деталь используется для соединения корпуса изделия со стойкой ограждения (рисунки 1.1 и 1.2).
















Рисунок 1.1 - Чертеж изделия.








Рисунок 1.2 - Объемный (3D) вид изделия.

Данная деталь является неотъемлемой частью всего изделия, и несет на себе основную функцию соединения, крепежа. Деталь постоянно держит на себе вес корпуса 4 кг и периодически нагрузка увеличивается на 10-20 кг под действием внешних сил (например - облокачивается на корпус человек). Внешний корпус изготовлен из нержавеющей стали, выполнить «стакан крепления» из стали не возможно из-за конструкционных особенностях. Поэтому деталь изготовлена из пластика, путем литья в вакууме в силиконовые формы. Для того чтобы подобрать материал для изготовления «стакана крепления» необходимо выявить технические требования к нему и соответственно к готовой детали.

1.2 Технические требования

К изделию предъявляются следующие технические требования:

Ударопрочность

Прочность на изгиб

Не токсично, без запаха

Химическистойкость

Не электро- и теплопроводность

Водопоглощение минимальное

1.3 Условия эксплуатации

При эксплуатации в изделии постепенно накапливаются повреждения, при превышении критического уровня которых происходит разрушение, поэтому важно знать влияние различных факторов на накопление повреждений и прогнозировать продолжительность нормальной При эксплуатации полимерное изделие не должно достигать предельного состояния. Предельное состояние по нагрузкам означает неспособность пластмассового изделия выдерживать приложенную нагрузку. При расчете такого состояния следует учитывать:

) Прочность пластмассового изделия изменяется при длительном статическом нагружении. Поэтому необходимо определять предел длительной прочности, учитывая температурные изменения и влияние среды. При этом надежность изделия определяется по заданной длительности эксплуатационного периода.

) В пластмассовом изделии под нагрузкой возникают значительные необратимые деформации, связанные с ползучестью. В связи с этим за допускаемое напряжение принимают такое напряжение, при котором при заданном сроке эксплуатации конечная деформация (удлинение) не будет превышать требуемую.

) Под действием остаточных напряжений в процессе релаксации может происходить хрупкое разрушение пластмассового изделия.

Изделие применяется при следующих условиях эксплуатации:

Окружающая среда - воздух.

Температурный интервал работоспособности изделия от -10° С до + 40° С.

Воздействие химических моющих веществ, воды

Нагрузка - до 10 кг

Срок эксплуатации не ограничен (не менее 25 лет).

2. Анализ исходных данных

Проанализировав исходные данные к изделию, делаем следующие заключения.

Конструкция имеет универсальные съемные сменные крепления, которые позволяют применять ее совместно с разными стационарными и мобильными предметами осуществляющие функцию ограждения или разграничения пространства.

Данное крепление в нормальных условиях должно обеспечивать жесткое сцепление конструкции на которую не постоянно воздействует сила давления до 10 кг.

При подборе материала для изготовления данной детали необходимо учитывать множество факторов внешнего воздействия. Большую часть времени эксплуатации конструкция находится в покое, с постоянным давление на крепеж 3.5 кг.

3. Разработка алгоритма поиска и поискового образца запроса на материал

На основе проведенного анализа разрабатывается алгоритм поиска полимерного материала для изготовления данного изделия и составляется поисковый образ запроса на полимерный материал.

.1 Разработка алгоритма поиска

На основе проведенного анализа разрабатывается алгоритм поиска полимерного материала для изготовления данного изделия. Исходя из анализа исходных данных составляется поисковый образ запроса (ПОЗ) на полимерный материал для изготовления данного изделия: проводится отбор наиболее значимых параметров эксплуатационных и технологических свойств, минимизируется их количество, распределяются показатели по степени значимости методом расстановки приоритета.

Таблица 1.1 - Сравнительная таблица свойств.

Хi

Свойства

Экспертные оценки

Х1

Ударо-прочность

Х2 < Х1

Х2 < Х3

Х2 > Х4

Х2 > Х6

Х2

Электроизоляционность

Х3 < Х1

Х3 > Х4

Х3 > Х5

Х3 > Х6

Х3

Прочность на изгиб

Х4 < Х1

Х4 > Х5

Х4 > Х6


Х4

Водостойкость

Х5 < Х1

Х5 > Х6

Х5 < Х2

 

Х5

Теплостойкость

Х6 < Х1



 

Х6

Метод переработки




 


Таблица 1.2 - Матрица экспертных оценок.

Хi

Свойства

Хj

S аj

Вес

 

 

Х1

Х2

Х3

Х4

Х5

Х6

 

свойства

Х1

1,0

1,5

1,5

1,5

1,5

1,5

8,5

0,236

Х2

Электроизоляционность

0,5

1,0

0,5

1,5

1,5

1,5

6,5

0,181

Х3

Химическая стойкость

0,5

1,5

1,0

1,5

1,5

1,5

7,5

0,208

Х4

Водостойкость

0,5

0,5

0,5

1,0

1,5

1,5

5,5

0,153

Х5

Теплостойкость

0,5

0,5

0,5

0,5

1,0

1,5

4,5

0,125

Х6

Метод переработки

0,5

0,5

0,5

0,5

0,5

1,0

3,5

0,097

 








аij=36

1,000





















Схема 1.1 - Алгоритм поиска

.2 Составление поискового образа запроса на материал

Необходимые показатели и их числовые значения, которые являются критериями отбора, записываются в таблицу 1.3.

Таблица 1.3 - Поисковый образ запроса на материал для изготовления пластикового короба для настенного монтажа.

Свойство

Параметр

Значение

Эксплуатационные:

Предел прочности при сжатии, кг/см2 Предел прочности при изгибе, кг/см2 Удельная ударная вязкость, кгс/см2

³ 1300 ³ 1450 ³ 120

Диэлектрические свойства

Диэлектрическая проницаемость (при 106 Гц) Электрическая прочность, кв/мм

0.03-0.05 26-32

Химическая стойкость

Стойкость в органических кислотах Время воздействия

весьма стоек на весь срок службы

Влагостойкость

Влагополгощение, %

до 1.2

Теплостойкость

Минимальная рабочая температура, Траб, 0С Максимальная рабочая температура, Траб, 0С Время воздействия

³ -20 £ 40 на весь срок службы

Срок эксплуатации

Срок службы, лет

25

Технологические:



Метод переработки

Литье под давлением (ЛПД); Заливка (З); Прессование (П) Показатель текучести расплава (ПТР), г/10 мин Время термостабильности (tтс), мин Интервал переработки, 0С

экструзия



 3-7 ³ 0 209-220




Стоимость

Цена за 1 кг

£ 150 руб.


4. Выбор полимерного материала для изготовления изделия

В данном разделе проводят выбор полимерного материала, его марки. Путем сопоставления заданных параметров свойств с параметрами различных материалов, отбираем те материалы, параметры свойств которых наиболее точно соответствуют заданным.

4.1 Выбор типа (класса) полимерного материала по эксплуатационным свойствам

Путем сопоставления заданных параметров свойств с параметрами различных материалов, отбираем те материалы, параметры свойств которых наиболее точно соответствуют заданным, необходимо провести выбор полимерного материала, его марки.

Выбираем группу материалов по каждому из свойств, в соответствии с приоритетом свойств в таблице 1.2. Результаты выбора заносим в таблицу 1.4.

Таблица 1.4. Экспертная оценка выбора материала.

Показатель

 

Экспертная оценка

 

Полиамид

ПП

ПС

Предел прочности при сжатии, кг/см2

+

+

+

Предел прочности при изгибе, кг/см2

±

+

+

Удельная ударная вязкость, кгс/см2

+

+

-

Диэлектрическая проницаемость

+

-

+

Электрическая прочность

+

±

-

Химическая стойкость

+

+

+

Влагопоглощение

+

-

-

Минимальная рабочая температура, Траб, 0С

+

+

+

+

+

±

Метод переработки

+

+

+

Стоимость

+

-

-

X положительных совпадений из 12 возможных

9

7

6

Выбор по максимуму совпадений:

Полиамид


В качестве материала для изготовления стакана-крепления для соединения внешнего корпуса конструкции со столбиком ограждения обеспечивающий заданный уровень требований.

Полиамид - новый класс термостойких полимеров, ароматическая природа молекул которых определяет их высокую прочность вплоть до температуры разложения, химическую стойкость, тугоплавкость. Не растворяется в воде, устойчив в маслах, бензине, разбавленных и концентрированных растворах щелочей, разбавленных кислотах. При повышенных температурах полиамиды деструктируются кислотами, щелочами, аминами. Полиамиды характеризуются высокой износостойкостью, низким коэффициентом трения, хорошим электроизоляционными и прочностными свойствами. Водород амидной группы способен замещаться на алкильные и другие радикалы, N-замещенные полиамиды обладают низкой степенью кристалличности и относительно невысокими температурами плавления.[1,4,6]

4.2   Выбор марки полимерного материала по технологическим свойствам

Из марочного ассортимента полиамида для изготовления стакана-крепления с соединением внешнего корпуса конструкции со столбиком ограждения рекомендуется использовать следующие марки.

Таблица 1.5. Результаты выбора полимерного материала


По технологическим свойствам

Марка материала Полиамида

ПТР, г/10 мин.

tтс, мин при Т0С

Интервал переработки, 0С

ПА 12

3-7

> 20

212-220

ПА 6НС

6-15

≥10

207-211

ПА 6

12-16

> 12

178-180

Итог выбора:

Материал - Полиамид; марка - ПА 6НС.

5. Характеристика выбранного полимерного материала и конкретной его марки

Полиамид - структура и технические характеристики полиамидов, механические и физические свойства полиамида, торговые марки и зарубежные аналоги отечественных марок полиамидов.

5.1 Характеристика полиамида, как полимерного материала

Полиамид - новый класс термостойких полимеров, ароматическая природа молекул которых определяет их высокую прочность вплоть до температуры разложения, химическую стойкость, тугоплавкость. К полиамидам относится как синтетические, так и природные полимеры, содержащие амидную группу

CONH2 или -CO-NH-.Из синтетических полиамидов практическое значение имеют алифатические и ароматические полиамиды. Алифатические полиамиды являются гибкоцепными кристаллизующимися (Скр=40-70%) термопластами, Молекулярная масса= 8-40 тысяч, Плотность 1010-1140кг/м3, Температура плавления (кристаллизации)-210-260С, расплав обладает низкой вязкостью в узком температурном интервале. Полиамиды - гидрофильные полимеры, их водопоглощение достигает нескольких процентов (иногда до 8) и существенно влияет на прочность и ударную вязкость. Наибольшее значение имеют полиамиды общих формул [-HNRNHOCR'CO-]n и [-HNR"CO-]n, где R,R'=Alk, Ar, R"=Alk. Термопласты. Макромолекулы связаны между собой водородными связями, что обусловливает относительно высокие температуры плавления полиамида. [5,6]

Растворяется в сильнополярных растворителях (концентриров. H2SO4, HCOOH, крезолах), диметилацетамиде. Большинство ароматических полиамидов растворяется в ограниченном числерастворителей, что заметно сужает области их применения и усложняет технологию переработки. Введение в полиамидную цепь сульфогрупп сказывается на растворимости полимеров. При определенном содержании сульфогрупп ароматические полиамиды приобретают способность растворяться в воде. Для рассматриваемых нами полиамидов этот переход соответствует диапазону обменной емкости 2,6-3,2 г-экв/г. В амидных растворителях при значениях обменной емкости 2,6 г-экв/г и ниже они образуют стабильные растворы с концентрацией 5-15% масс. Следует отметить, что все представленные полиамиды вне зависимости от строения и количества сульфогрупп растворимы в 96%-ной серной кислоте. [6,5,3]

Не растворяется в воде, устойчив в маслах, бензине, разбавленных и концентрированных растворах щелочей, разбавленных кислотах. При повышенных температурах полиамиды деструктируются кислотами, щелочами, аминами. Полиамиды характеризуются высокой износостойкостью, низким коэффициентом трения, хорошим электроизоляционными и прочностными свойствами. Водород амидной группы способен замещаться на алкильные и другие радикалы, N-замещенные полиамиды обладают низкой степенью кристалличности и относительно невысокими температурами плавления.

Получение полиамидов: Поликонденсация дискарбоновых кислот (или их эфиров, дихлорангидридов) с диаминами, полимеризация лактамов. Схема получения полиамидных волокон и нитей строится на базе синтеза капролактама из бензола, его полимеризации в полиамид и дальнейшей переработке в волокна и нити. Технологический процесс получения полиамидных волокон включает в себя три основных этапа: синтез полимера, формование и его текстильную обработку. Перерабатывают полиамид литьем под давлением, экструзией, прессованием, полимеризацией в форме (капролон), пневмо- и вакуум-формованием. [6]

Полиимид, в отличие от фторопласта, легко подвергается травлению в концентрированных щелочах, что позволяет готовить сквозные отверстия в пленке. Таким методом получают электрические переходы при формировании многослойных коммутационных плат на полиимидной пленке. Чтобы использовать ее как подложку для вакуумного напыления тонкопленочных проводниковых слоев (обычно Cr-Си), необходима предварительная обработка - активация поверхности с целью преодоления ее адгезионной инертности. Активация представляет, по существу, частичную деструкцию или модификацию внешних слоев с образованием ненасыщенных адсорбционно-способных связей. Достигается это в результате воздействия концентрированного (около 250 г/л) раствора NaOH с добавкой жидкого стекла при 353 К (80 °С). Возможна и активация поверхности полиимида в плазме тлеющего разряда в атмосфере кислорода, однако такой обработки недостаточно для надежной металлизации, особенно если платы в процессе дальнейшей обработки и эксплуатации подвергаются изгибам. Полиимид вполне стабилен при нагреве в вакууме, поэтому его используют как подложки гибких тонкопленочных коммутационных плат (резистивные элементы на таких подложках не изготавливают). В отличие его tg[pic]=0,003. Полиимид обладает повышенным влагопоглощением, и, вероятно, поэтому диэлектрические потери уменьшаются с повышением температуры: так, при 493К его tg[pic]=0,0006. Недостаток полиамида-повышенное влагопоглощение (1 ... 3% за 30 сут.), поэтому он нуждается в технологической сушке (особенно при изготовлении изделий из пресс-порошков) и защите.[2,4,6]

5.2 Характеристика марки полиамида - 6 НС

Таблица 1.6 - Технические характеристики полиамида - 6 НС

Наименование показателя

Ед. изм

Значение показателя



низковязкий

высоковязкий (пищевой)

Внешний вид и цвет

 

гранулы натурального цвета

гранулы натурального цвета

Размер гранул - диаметр - длина

мм

 2,0 ÷ 4,0 1,5 ÷ 4,0

 2,0 ÷ 4,0 1,5 ÷ 4,0

Относительная вязкость, в пределах (серная кислота, 96 ± 0,15 %, 25 ± 0,1 °С)

 

2,70±0,06

3,33±0,02

 Массовая доля влаги, не более (лампа ИКЗ-220-500, 20 мин)

0,2

0,1

0,2

0,1

 Массовая доля экстрагируемых веществ, не более (5 г, 8 ч, аппарат Сокслета) (ГОСТ 17824)

%

 0,49* 1,17*

 0,49* не определяется

Массовая доля непрорубленных гранул длиной до 20 мм, не более

%

0,5

0,5

Масса упаковочного места

кг

30±1% (a)

30±1% (b)

30±1% (a)

30±1% (b) или 0,3



900-1100 (c)



 


Заключение

Термин «полимерные материалы» является обобщающим. Он объединяет три обширных группы синтетических пластиков, а именно: полимеры; пластмассы и их морфологическую разновидность - полимерные композиционные материалы (ПКМ) или, как их еще называют, армированные пластики.

Общее для перечисленных групп то, что их обязательной частью является полимерная составляющая, которая и определяет основные термодеформационные и технологические свойства материала. Полимерная составляющая представляет собой органическое высокомолекулярное соединение, полученное в результате химической реакции между молекулами исходных низкомолекулярных веществ - мономеров. Выбор пластмассы для изготовления конкретного изделия определяется его эксплуатационными условиями. Критерии выбора разнообразны и зависят от назначения изделия. [6]

Основными критериальными характеристиками полимерных материалов являются механические (прочность, жесткость, твердость), температурные (изменения механических и деформационных характеристик при нагревании или охлаждении) и электрические. Последние отражают широкое применение пластмасс в радиоэлектронной и электротехнической отраслях. Кроме того, существенное значение приобрели триботехнические характеристики и ряд специальных свойств (огнестойкость, звукопоглощение, оптические особенности, химическая стойкость). Немаловажны также экономические условия (стоимость полимерного материала, тираж изделия, условия производства).

В процессе написания реферата мы ознакомились с:

особенностями проектирования изделий из пластмасс;

выбором полимерного материала;

общими принципами расчета и проектирования изделий из пластмасс.

На основе изученного материала мы ознакомились с:

выбором полимерного материала;

термопластичными полимерными материалами;

наполнителями и армирующими материалами;

влиянием влаги;

другими критериями выбора материалов;

выбором допускаемых напряжений;

дифференциальным методом определения запаса прочности.

По итогам анализа, дана характеристика выбранной марки полимерного материала для изготовления стакана-крепления с соединением внешнего корпуса конструкции со столбиком ограждения монтажа - полиамид 6НС, удовлетворяющий заданным требованиям.

полимерный материал пластмасса деталь

Список литературы

1. Альшиц И.Я. и др. Проектирование изделий их пластмасс. - М.: Машиностроение, 1979. - 248с.

. Основы технологии переработки пластмасс. Под редакцией В. Н. Кулезнева, В. К. Гусева, Москва 2004, - 596с.

. Лепетов В.А., Юрцев Л.И. Расчет и конструирование резиновых изделий. М.: Химия, 1987. - 408 с.

4. Литье пластмасс под давлением. Оссвальд Т., Турнг Л. - Ш., Грэманн П. Дж., под ред. под ред. Э.Л. Калинчева. - 750 стр., Издательство: Профессия. - 2005.

. Производство изделий из полимерных материалов. Крыжановский В.К., Кербер М. Л. Издательство: Профессия. - 2006, 464с.

. Энциклопедия полимеров. Т. 1 - М.: Советская энциклопедия, 1974-1977.

. Мийченко И.П. Методические указания по выполнению курсовой работы по дисциплине «Основы рационального выбора материалов» - М.: МАТИ, 2006. - 32с.

Похожие работы на - Обоснование рационального выбора материала для изготовления пластиковых креплений для соединения корпуса со столбиком ограждения

 

Не нашли материал для своей работы?
Поможем написать уникальную работу
Без плагиата!
Без нейросетей!