Сборка и сварка конструкции корпуса ацетиленового баллона

  • Вид работы:
    Контрольная работа
  • Предмет:
    Другое
  • Язык:
    Русский
    ,
    Формат файла:
    MS Word
    388,87 Кб
  • Опубликовано:
    2013-06-19
Вы можете узнать стоимость помощи в написании студенческой работы.
Помощь в написании работы, которую точно примут!

Сборка и сварка конструкции корпуса ацетиленового баллона

Министерство образования и науки Российской Федерации

Федеральное государственное бюджетное образовательное

Учреждение высшего профессионального образования

"Комсомольский-на-Амуре государственный

технический университет"

Институт КПМТО

Кафедра "Технология сварочного поизводства"




Контрольная работа

по дисциплине "Основы конструирования приспособлений "


Студент группы 0 ОСб3ка К.С. Миронов

Преподаватель В.Н. Комельков

Содержание

 

Введение

Задание

1. Анализ материала

2. Определение типа производства

3. Выбор способа сборки и сварки

3.1 Выбор рода тока

4. Выбор разделки кромок и назначение размеров сварного соединения

5. Выбор сборочных и сварочных приспособлений

6. Технология сборки и сварки

Список используемой литературы

Введение

В настоящее время сварочное производство стало одной из ведущих областей техники. Во всех отраслях машиностроения широко применяют высокопроизводительные и экологически эффективные технологические процессы сварки, наплавки, пайки, термической резки и металлизации, позволяющие усиленно обрабатывать все конструкционные материалы от десятков микрометров до нескольких метров. Достигнутый высокий уровень развития сварочной техники служит прочной базой для значительного дальнейшего увеличения производительности труда, экономии материалов и энергии, а также повышения качества и снижения себестоимости сварной продукции.

сборка сварка конструкция корпус

Задание


В данной контрольной работе необходимо разработать принципиальную схему закрепления деталей при сборке и сварки конструкции корпуса ацетиленового баллона.

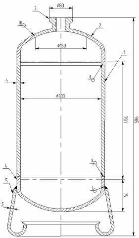
Рис.1 Корпус ацетиленового баллона: 1-Обечайка, 2 - Верхняя крышка, 3 - Штуцер, 4 - Нижняя крышка, 5 - Опора.

Исходные данные

H

S

Тип свар. соед

Материал

Годовой выпуск, шт



I

II

III




985

4

T1

С4

C5


15ХСНД

10000


1. Анализ материала


Данная конструкция изготавливается из стали 15ХСНД. Сваривается без ограничений. Способы сварки: РД, РАД, АФ, МП, ЭШ и КТ. Химический состав 15ХСНД приведены в таблице 2.

Таблица 1. Химический состав в %.

С

Si

Mn

Ni

S

P

Cr

N

Cu

As

0.12 - 0.18

0.4 - 0.7

0.4 - 0.7

0.3 - 0.6

до 0.04

до 0.035

0.6 - 0.9

до 0.008

0.2 - 0.4

до 0.08


Сталь 15ХСНД применяется: Сварные конструкции, детали ферм, другие детали с повышенными требованиями к прочности и коррозионной стойкости с ограничением массы, работающие при темп. от - 70 до +450 град.

Mеханические свойства стали 15ХСНД приведены в таблице 2.

Таблица 2. Mеханические свойства.

Предел текучести условный, МПа:

Относительное сужение, %:

Относительное удлинение после разрыва, %:

Твердость по Бринеллю:

620

370

н/д

20

н/д

В зависимости от типа конструкций и её назначения к сварным соединениям из данной стали предъявляются требования необходимой достаточной прочности в условиях эксплуатации, плотности. В связи с особыми физико-химическими свойствами выполнения этих требований является достаточно сложной задачей. Восприимчивость, а также высокий уровень механических свойств обуславливают ряд специфических трудностей, возникающих при сварке.

2. Определение типа производства


Тип сварочного производства определим в зависимости от габаритов, массы, сложности конструкции, годовой программы выпуска.

Массу изделия определяем по формуле (1.1)

 (1.1)

где,  - масса исходного материала;

 - объем исходного материала, мм3;

 - удельная плотность материала, г/см3.

Конструкция является среднегабаритной, годовой выпуск 10000 шт.

Тип производства массовый, характеризуемый широкой номенклатурой изготовляемых изделий и большим объемом выпуска изделий

Характеристика типа производства указана в таблице 1.

Таблица 1. Характеристика типа производства.

Тип производства.

Годовая программа деталей одного типоразмера.

Крупные до 15000 кг

Средние до 2000 кг

Малые до 100 кг

Индивидуальное.

До 5

До 10

До 100

Серийное.

5 - 1 000

10 - 5 000

100 - 50 000

Массовое.

Более 1 000

Более 5 000

Более 50 000



3. Выбор способа сборки и сварки


Рассмотрим способы сварки, рекомендуемые для сварки стали 15ХСНД, к ним относятся: ручная дуговая сварка, электрошлаковая сварка, сварка в СО2, сварка порошковой проволокой в СО2, дуговая сварка под флюсом, аргонно-дуговая сварка, плазменная сварка.

Из представленных видов, сварка под флюсом является ведущим технологическим процессом в производстве.

Сварка под флюсом сталей чрезвычайно эффективна. Замена ручной сварки этих сталей сваркой под флюсом дает возможность:

упростить и удешевить подготовку кромок под сварку (аустенитные стали дороги и труднообрабатываемы);

сократить расход дорогостоящей проволоки

Сварка под флюсом обеспечивает хорошее формирование сварных швов с гладкой мелкочешуйчатой поверхностью и плавным переходом к основному металлу, отсутствие брызг на поверхности стали. Это очень важно, так как углубления между чешуйками, подрезы и места приваривания брызг часто являются очагами коррозии.

Легирование шва при сварке коррозионностойких аустенитных сталей может осуществляться через проволоку или флюс. С точки зрения повышения качества и коррозионной стойкости швов предпочтителен первый способ. Для сварки под флюсом, а также и при других видах сварки коррозионностойких сталей применяется ряд сварочных проволок, состав которых предусмотрен ГОСТом 2246-60 и ведомственными техническими условиями.

Все флюсы для сварки коррозионностойких сталей подлежат обязательному контролю на углерод содержание его во флюсе не должно превышать 0,04%.

Во избежание образования пор в швах флюсы необходимо прокаливать в интервале температур 500-900ОС в течении 1 - 2 часов.

3.1 Выбор рода тока


Сварку выполняют на постоянном токе обратной полярности, что обеспечивает лучшие условия термоэлектронной эмиссии.

Анод расположен на электроде, что существенно улучшает качество производимых работ.

 

. Выбор разделки кромок и назначение размеров сварного соединения


Внешний вид сварочных соединений до и после сварки, конструктивные элементы и размеры приведены в таблицах 5, 6 и 7.

Таблица 5. Сварка под флюсом по ГОСТу 8713-79. мм.

Условное обозначение сварного соединения

Конструктивные элементы

Способ сварки

s=s1

b

е, не более

g1


подготовленных кромок свариваемых деталей

сварного шва


 

Номин.

Пред. откл.


Номин.

Пред. откл.

C4

АФм

Св.4 до 5

1,5

16

1,5

+1,0 1,5


Таблица 6. Сварка под флюсом по ГОСТу 8713-79. мм.

Условное обозначение сварного соединения

Конструктивные элементы

Способ сварки

s=s1

b

m, не менее

е, не более

g


подготовленных кромок свариваемых деталей

сварного шва


 

Номин.

Пред. откл.



Номин.

Пред. откл.

С5

АФо; МФо

Св.4 до 5

2,0

±1,5

20

17

2,0

+1,0 1,5



Таблица 7. Сварка под флюсом по ГОСТу 11533-75

Условное обозначение сварного соединения

Конструктивные элементы

Обозначение способа сварки

s

е, не более

a1, град

b

g, не менее





b, град


Номинал

Пред. отклонение.

 b, град





136-175




175-136

135-91

 Т1

Подготавливаемых кромок свариваемых соединений

Шва сварного соединения

 А; П

 Св.4 до 6

 1,1s+7

 b-90

 0

 +1,0

 1,5±1,0

 3



5. Выбор сборочных и сварочных приспособлений


Сборку конструкции осуществляем вручную с помощью специальных приспособлений. Сварку конструкции осуществляем автоматическую. Для подготовки деталей под сварку, выдержки размеров, зазоров и смещения кромок, перпендикулярности, правки после прихватки, зачистки мест прихватки используем инструмент: набор щупов, угольник, шаблон сварщика, струбцины, кувалда, шлифмашинка угловая, щетка металлическая, монтажка.

Для сварки используем роликоопоры серии 3-500 TNA, которые могут быть быстро отрегулированы при помощи винтовых механизмов.

Эти роликоопоры идеальны для изделий малых диаметров. Благодаря двум приводным роликам моторной секции изделия вращаются на них плавко и точно. Роликоопоры серии TN занимают мало места по высоте и по площади, что делает их незаменимыми в случае ограниченных площадей цеха.


При сварке кольцевых швов крышки конструкции используем манипулятор (позиционеров), применяемых для автоматизированной сварки. Эти манипуляторы позволяют установить свариваемое изделие в положение, обеспечивающее удобную и качественную сварку. Манипуляторы работают совместно с автоматизированным сварочным оборудованием А2.

Манипуляторы ЭСАБ 35000 FA серии являются двухосевыми манипуляторами: скорость вращения и угол подъема регулируются. Они применяются при сварке малогобаритных и тяжелых изделий.

Манипуляторы 500-35000 АНМА незаменимы для подъема, вращения и наклона свариваемого изделия. Скорости перемещения по осям плавно регулируются. Вертикальное перемещение осуществляется гидроцилиндром. Манипулятор комплектуется дистанционным пультом управления всех движений.


6. Технология сборки и сварки


1.      Прохождение инструктажа по ТБ и ПТЭ.

2.      Подготовка рабочего места.

.        Маркирование - нанести информацию на бирку: номер чертежа, количество штук в партии, дату и цех изготовитель.

4.1    Зачистить зону сварного шва корпуса с двух сторон шириной 10¸15 мм.

4.2    С помощью струбцин собрать корпус под прихватку и сварку согласно ТУ, выдерживая размеры в зазорах с помощью набора щупов, выдерживая овальность.

.3      Выполнить прихватки размерами длиной 30мм, через 250-300мм на всем протяжении сварочного шва.

.4      Зачистить прихватки шлифмашинкой и металлической щеткой.

.5      Установить медную, охлаждаемую убирающуюся подкладку.

.6      Произвести сварку автоматом ESAB A2 Multitrac with A2, длина шва 750мм.

.7      Убрать подкладку, произвести визуальный осмотр, поставить клеймо межоперационных работ.

5.      Сборка и сварка крышки.

.1      Зачистить зону сварного шва крышки с двух сторон шириной 10¸15 мм.

5.2    С помощью струбцин собрать крышку под прихватку и сварку согласно ТУ, выдерживая размеры в зазорах с помощью набора щупов, выдерживая овальность.

.3      Выполнить три прихватки длиной 30мм.

.4      Зачистить прихватки шлифмашинкой и металлической щеткой.

.5      Установить подкладное кольцо.

.6      Произвести сварку автоматом A2 Multitrac with A2, длина шва 955мм.

.7      Произвести визуальный осмотр, поставить клеймо межоперационных работ.

6.      Выполнить сборку и сварку штуцера.

.1      Зачистить зону сварного шва с двух сторон шириной 10¸15 мм.

6.2    Собрать узел, выдерживая перпендикулярность при помощи угольника, зафиксировать прихватками длиной 30мм через 250-300мм.

.3      Произвести сварку автоматом A2 Multitrac with A2, длина шва 477мм.

.4      Произвести визуальный осмотр, проверить геометрию шва с помощью шаблона сварщика, поставить клеймо межоперационных работ.

7.      Выполнить сборку и сварку обечайки и крышки. Сборка и сварка выполняется в поворотном устройстве велосипедного типа.

.1      Зачистить зону сварного шва с двух сторон шириной 10¸15 мм.

7.2    Собрать узел, выдерживая перпендикулярность, зафиксировать прихватками длиной 30мм через 250-300мм.

.3      Произвести сварку двумя автоматами A2 Multitrac with A2 одновременно, каждая крышка сваривается одним автоматом в нижнем положении. Длина каждого шва 970мм.

.4      Произвести визуальный осмотр, проверить геометрию шва с помощью шаблона сварщика, поставить клеймо межоперационных работ.

8.      Выполнить сборку и сварку опоры с корпусом.

.1      Зачистить зону сварного шва с двух сторон шириной 10¸15 мм.

8.2    Собрать узел, выдерживая перпендикулярность при помощи угольника и выдерживая размер 975мм при помощи рулетки зафиксировать прихватками длиной 30мм через 250-300мм.

.3      Произвести сварку автоматом A2 Multitrac with A2.

.4      Произвести визуальный осмотр, проверить геометрию шва с помощью шаблона сварщика, поставить клеймо межоперационных работ.

9.      Произвести термообработку корпуса вертикального аппарата согласно ТУ.

10.    Произвести радиометрический контроль сварочных стыков.

.        Заполнить паспорт на изделие.

.        Изготовить деревянную тару с габаритами соответствующими габаритам корпуса, упаковать корпус в тару, приложить паспорт и закрыть тару.

Список используемой литературы


1.      Винокуров В.А. Справочник по сварке том 3, В.А. Винокуров, Машиностроение, М. 1970

2.      Головин С.Я. Справочная книжка сварщика, С.Я. Головин, Государственная научно-техническое издательство машиностроительной литературы, М. 1961

3.      Малышев Б.Д. Сварка и резка в промышленном строительстве, Б.Д. Малышев справочник монтажника, стройиздат, М. 1980

4.      Смирнов В.В. Оборудование для дуговой сварки, В.В. Смирнов, справочное пособие, ЭНЕРГОАТОМИЗДАТ, Ленинград 1986

Похожие работы на - Сборка и сварка конструкции корпуса ацетиленового баллона

 

Не нашли материал для своей работы?
Поможем написать уникальную работу
Без плагиата!
Без нейросетей!