Деятельность отдела информационных технологий ТОО 'Ali-Abdi'
Содержание
Введение
1. Характеристика места прохождения практики - организации ТОО
"Ali-Abdi"
1.1 Структура организации, основное назначение отделов
1.2 Описание деятельности отдела информационных технологий
1.3 Аппаратные компоненты обеспечения подсистем организации
1.4 Состав и структура программного обеспечения
1.4.1 Общее программное обеспечение
1.4.2 Типовое программное обеспечение
1.4.3 Специальное программное обеспечение
2. Файловые системы
2.1 Понятие файловой системы
2.2 Задачи файловой системы
2.3 Классификация файловых систем
2.4 Система организации информации в файловой системе
2.5 История развития файловых систем
2.6 NTFS - дни сегодняшний и завтрашний
2.7 WinFS - будущее файловых систем?
2.8 Список файловых систем
2.8.1 Дисковые файловые системы
2.8.2 Распределённые файловые системы
2.8.3 Файловые системы специального назначения
3. Работа в программе Autocad
3.1 Структура программы AutoCAD
3.2 Этапы разработки трехмерной модели в программе AutoCAD
3.3 Формирование конструкторской документации на основе трехмерной
модели
Заключение
Список литературы
Введение
Прохождение производственной практики проводилось в
организации ТОО "ALI-ABDI"
Целью моей производственной практики являлось изучение
реального предприятия и условий работы на нем, получение прикладных навыков в
разработке и сопровождении программ, изучении информационных потоков и
документооборота, способов хранения и обработки информации, сбор материалов для
отчета. Кроме того, во время прохождения практики я принимал активное участие в
общественной жизни предприятия.
Существует много видов информационных систем: системы
обработки данных, информационные системы управления, маркетинговые системы,
системы бухгалтерского учета и другие, используемые в различных организациях.
Немаловажные функции среди них выполняют информационные
системы управления.
Информационные системы управления (ИСУ) - это любые системы,
которые обеспечивают людей данными или информацией об операциях, выполняемых в
организации. ИСУ используются в деятельности работников, собственников,
клиентов и других ключевых лиц в организационной среде. Поддержка этих лиц
осуществляется либо путем эффективной обработки данных для оказания помощи в
выполнении работ, связанных с транзакциями (транзакция - регистрируемая
операция бизнеса), либо эффективным обеспечением информацией должностных лиц.
Применение вычислительных машин значительно повышает
оперативность управления, но при этом предполагается активное участие человека
в процессе управления. Именно он принимает окончательное решение на основе
оценки различных расчетных вариантов, учитывая имеющиеся в его распоряжение
дополнительные данные.
1. Характеристика места прохождения практики -
организации ТОО "Ali-Abdi"
Общая характеристика предприятия
Организация "ТОО ALI-ABDI" была открыта в
2011 году. Это проектная организация, состоящая из сотрудников:
Ø Директор
Ø Расчетный бухгалтер
Ø Главный инженер проекта
Ø Инженер-проектировщик
Ø Проектировщик-генпланист
Ø Сметчик
Ø Проектировщик по
освещению
Ø Инженер-техник
Ø Системный администратор
Директор - А.А. Баекеева - предприниматель имеет высшее
образование, технолог.
Расчетный бухгалтер - А.А. Баекеева - распоряжается всей
документацией по бухгалтерии. Находит заказчиков.
Главный инженер проекта контролирует полностью весь проект и
сдает в Госэкспертизу.
Инженер-проектировщик занимается проектированием
строительного объекта
Проектировщик-генпланист составляет генплан объекта
Проектировщик-сметчик определяет стоимость
строительно-монтажных работ
Проектировщик инженер-электрик проектирует проект с полным
подведением электричества по точкам.
Инженер-техник заниемаеться оформлением и распечаткой
проектной документации.
Системный администратор производит установку программного и
аппаратного обеспечения; осуществляет мониторинг и оптимизацию работы
операционных систем вычислительной техники; определяет проблемы в программном
обеспечении; анализирует требования пользователя, оценивает дополнительные
возможности по улучшению работы программного обеспечения.
Деятельность проектной организации основывается на выполнении
заказов на проектирование зданий и сооружений гражданских и промышленных
объектов.
Заказы выполняются с помощью программ AutoCAD, CorelDraw, Photoshop, ABC (Автоматическое
вычисление смет) придерживаясь всех правил ГОСТов и СНиПов.
При получении заказа на проектирование крупного объекта, на
месте застройки объекта проводятся обследование объекта.
Поступают заказы на проектирование из других городов и
поселков.
Главный инженер проекта совместно с директором обеспечивает
заказами на проектирование зданий и сооружений гражданских и промышленных
объектов. Все работы проектировщиков проверяет главный инженер-проекта. По
окончании, готовый проект распечатывается в виде альбомов. Затем проект с
расчетами сдается на Госэкспертизу главному архитектору города.
1.1 Структура
организации, основное назначение отделов
Структура в широком смысле слова, есть совокупность
составляющих систему элементов и устойчивых связей между ними. Альтернативные
варианты формирования организационной структуры предприятия должна базироваться
на стратегических планах, поскольку именно стратегия определяет структуру, а не
наоборот. В этой связи под организационной структурой предприятия понимается
весь пакет взаимных договоренностей о разделении задач и полномочий внутри
предприятия.
Функции главного бухгалтера и его должностная
инструкция
Главный бухгалтер, непосредственно подчиняется директору.
Главный бухгалтер должен знать:
· Законодательные акты, регламентирующие
предпринимательскую и коммерческую деятельность
· Формы и методы бухгалтерского учета на
предприятии
· План счетов
· Организацию документооборота по участкам
бухгалтерского учета
· Порядок документального оформления и
отражения на счетах бухгалтерского учета операций, связанных с движением
основных средств, товарно-материальных ценностей и денежных средств
· Методы экономического анализа
хозяйственно-финансовой деятельности предприятия
· Правила и нормы охраны труда
· Законодательными и нормативными актами,
касающимися выполняемой работы
· Правилами внутреннего трудового распорядка
· Приказами и распоряжениями
непосредственного руководителя
· Должностной инструкцией
Цели главного бухгалтера состоят в:
· Ведение всей бухгалтерской отчетности
предприятия
· Оптимизация налогообложения деятельности
предприятия.
Функции должности:
· Ведет бухгалтерский учёт
· Своевременно подготавливает платежные
поручения.
· Оптимизирует налоги
· Контролирует и несёт ответственность за
наличие всех налоговых документов
· Контролирует наличие всех приходных
накладных на весь товар.
· Работает с проверками различных
государственных контролирующих организаций
· Работает по смене формы собственности,
перерегистрации и т.д.
Функции инженеров-проектировщиков:
· Разбираться в конструкциях зданий и
сооружений, правильно
задать размеры фундамента, глубину заложения, армирование
столбчатых фундаментов, колонн, ригелей.
· Проектировать, согласно СНиПам и ГОСТам
строительства.
· Сделать расчеты фундаментов, колонн и
ригелей здания.
· Подготовить проект к прохождению
Госэкспертизы.
Функции инженера-техника:
· В обязанности инженера-техника входит
распечатка чертежей готовых проектов.
· Оформление титульного листа.
· Оформление пояснительной записки.
· Создание архива готовых проектов
Функции сметчика:
· Расчет сметной стоимости строительства
согласно разработанным чертежам Рабочего проекта.
· Расчет сметной стоимости земляных работ по
устройству котлованов
· Расчет сметной стоимости по устройству
фундаментов согласно разработанным чертежам Рабочего проекта.
· Расчет сметной стоимости кладке стен
согласно разработанным чертежам Рабочего проекта.
· Расчет сметной стоимости перекрытия
согласно разработанным чертежам Рабочего проекта.
· Расчет сметной стоимости по устройству
крыши здания строительства согласно разработанным чертежам Рабочего проекта.
Функции главного инженера проекта
· Главный инженер проекта осуществляет
проверку чертежей Рабочего проекта, согласно СНИПам, ГОСТам РК.
· Главный инженер проекта разрабатывает
пояснительную записку Рабочего проекта, акт обследования участка строительства.
1.2 Описание
деятельности отдела информационных технологий
В нынешнее время все компании - от малого до крупного размера
нуждаются в информационных технологиях для того, чтобы выдерживать конкуренцию
в условиях повсеместного использования высокотехнологичных решений. Однако
специфика средств IT и методов их внедрения, эксплуатации и сопровождения в
зависимости от масштаба предприятия может существенно отличаться. Если
необходимый набор средств IT в случае с фирмой с численностью штата до 50
человек может исчерпываться только одной автоматизированной системой учета и
одним системным администратором средней квалификации, то крупной организации
необходим комплексный подход к созданию IT инфраструктуры, который включает в
себя создание IT отдела. Итак, для чего же нужен IT отдел? Начиная отвечать на
данный вопрос, стоит перечислить некоторые нюансы работы с информационными
потоками на предприятии и рассмотреть их:
Одного человека (а в некоторых случаях - и десятерых) не
хватит для обеспечения необходимого объема работ того или иного профиля,
связанных с IT;
информационная технология трехмерная модель
Ни один человек не может быть высококвалифицированным
специалистом сразу во всех областях IT. Следовательно, в штате ИТ сотрудников
компании должны состоять специалисты разного профиля;
Каждый специалист занят выполнением только своей задачи,
выполнение которой нужно постольку, поскольку это необходимо для выполнения
задач, поставленных перед ИТ инфраструктурой предприятия в целом;
Как следует из вышеизложенного, работа нескольких человек,
выполняющих разную работу должна быть скоординирована. Что предполагает
привлечение к работе управляющего по ИТ - ИТ директора, способного понимать как
деятельность каждого из специалистов, так и цели и задачи IT инфраструктуры в
рамках деятельности предприятия.
Отдел информационных технологий - состоит из главного
администратора, системного администратора.
1.3
Аппаратные компоненты обеспечения подсистем организации
В большинстве отделов установлены следующие аппаратные
компоненты:
Настольный компьютер - стационарный персональный компьютер,
предназначенный в первую очередь для работы в офисе или в домашних условиях.
Модем (акроним, составленный из слов модулятор и демодулятор)
- устройство, применяющееся в системах связи для физического сопряжения
информационного сигнала со средой его распространения, где он не может
существовать без адаптации, и выполняющее функцию модуляции при передаче
сигнала и демодуляции при приёме сигнала из канала связи. Графопостроитель,
плоттер - устройство для автоматического вычерчивания с большой точностью
рисунков, схем, сложных чертежей, карт и другой графической информации на
бумаге размером до A0 или кальке.
Принтер - периферийное устройство компьютера, предназначенное
для перевода текста или графики на физический носитель из электронного вида.
Сканер - устройство, выполняющее преобразование изображений в цифровой формат -
цифровую копию изображения объекта. Сервер - аппаратное обеспечение, выделенное
и/или специализированное для выполнения на нём сервисного программного
обеспечения.
Источник бесперебойного питания, (ИБП) (англ. Uninterruptible Power Supply, UPS) - источник
вторичного электропитания, автоматическое устройство, назначение которого -
обеспечить подключенное к нему электрооборудование бесперебойным снабжением
электрической энергией в пределах нормы. Маршрутизатор или роутер -
специализированный сетевой компьютер, имеющий минимум два сетевых интерфейса и
пересылающий пакеты данных между различными сегментами сети, принимающий
решения о пересылке на основании информации о топологии сети и определённых
правил, заданных администратором. Факс, Факсимильная связь -
телекоммуникационная технология передачи изображений электрическими сигналами.
1.4 Состав и
структура программного обеспечения
1.4.1 Общее
программное обеспечение
На всех компьютерах данного предприятия установлена
операционная система Windows XP - операционная система семейства Windows NT.
Файловый менеджер Total Commander обеспечивают более
удобную и наглядную работу с файлами и папками.
Веб-обозреватель, браузер (от англ. Web browser), устаревшее - программное обеспечение
для просмотра веб-сайтов, то есть для запроса веб-страниц (преимущественно из
Сети), их обработки, вывода и перехода от одной страницы к другой. Microsoft
Office - Офисный пакет приложений, созданных корпорацией Microsoft для
операционных систем Microsoft Windows и Apple Mac OS X. В состав этого пакета
входит программное обеспечение для работы с различными типами документов:
текстами, электронными таблицами, базами данных и др.
1.4.2 Типовое
программное обеспечение
На всех компьютерах предприятия установлена антивирусная
программа ESET NOD32 Antivirus.- векторный графический редактор отличаются способом
представления данных изображения. Объектом является не точка, а линия. Каждая
линия рассматривается, как математическая кривая ІІІ порядка и представлена
формулой. Такое представление компактнее, чем растровое, данные занимают меньше
места, но построение объекта сопровождается пересчетом параметров кривой в
координаты экранного изображения, и соответственно, требует более мощных
вычислительных систем.
1.4.3
Специальное программное обеспечение
На всех компьютерах данного предприятия установлена программа
AutoCAD - двух и трехмерная
система автоматизированного проектирования (CAD-система) предназначена
для автоматизации проектно-конструкторских работ и черчения. Lira - применяется для
расчетов строительных конструкций. ABC - применяется для расчетов сметной
документации и строительных рабочих проектов. Revit для расчета армирования
строительных конструкций. 3DMAX трехмерный редактор графики применяется для
создания объемных композиций. Имеет две особенности: разрешает руководить
свойствами поверхности в зависимости от свойств освещения, а также разрешает
создавать объемную анимацию. Для работы с бухгалтерией 1С: Предприятие - это
(одновременно) и технологическая платформа, и пользовательский режим работы.
Технологическая платформа предоставляет объекты (данных и метаданных) и механизмы
управления объектами. Объекты (данные и метаданные) описываются в виде
конфигураций. При автоматизации какой-либо деятельности составляется своя
конфигурация объектов, которая и представляет собой законченное прикладное
решение. Конфигурация создаётся в специальном режиме работы программного
продукта под названием "Конфигуратор", затем запускается режим работы
под названием "1С: Предприятие", в котором пользователь получает
доступ к основным функциям, реализованным в данном прикладном решении. А также
дополнения к программе AutoCAD Architecture - версия, ориентированная на
архитекторов и содержащая специальные дополнительные инструменты для
архитектурного проектирования и черчения, а также средства выпуска строительной
документации.Electrical разработан для проектировщиков электрических систем
управления и отличается высоким уровнем автоматизации стандартных задач и
наличием обширных библиотек условных обозначений.Civil 3D - решение для
проектирования объектов инфраструктуры, предназначенное для землеустроителей,
проектировщиков генплана и проектировщиков линейных сооружений. Помимо основных
возможностей AutoCAD Civil 3D может выполнять такие виды работ, как
геопространственный анализ для выбора подходящей стройплощадки, анализ ливневых
стоков для обеспечения соблюдения экологических норм, составление сметы и
динамический расчет объемов земляных работ.MEP ориентирован на проектирование
инженерных систем объектов гражданского строительства: систем сантехники и
канализации, отопления и вентиляции, электрики и пожарной безопасности.
Реализовано построение трехмерной параметрической модели, получение чертежей и
спецификаций на ее основе.Map 3D создан для специалистов, выполняющих проекты в
сфере транспортного строительства, энергоснабжения, земле - и водопользования и
позволяет создавать, обрабатывать и анализировать проектную и
ГИС-информацию.Structural Detailing - средство для проектирования и расчёта
стальных и железобетонных конструкций, поддерживающее технологию
информационного моделирования зданий. Базовыми объектами являются балки,
колонны, пластины и арматурные стержни и др.Ecscad позволяет
инженерам-электрикам создавать схемы электро-технического оборудования с
помощью сценариев и библиотек условных обозначений.
2. Файловые системы
2.1 Понятие
файловой системы
Файловая система - порядок, определяющий способ организации,
хранения и именования данных на носителях информации ИТ-оборудования
(использующего для многократной записи и хранения информации портативные
флеш-карты памяти в портативных электронных устройствах: цифровых
фотоаппаратах, мобильных телефонах и т. д) и компьютерной техники. Она
определяет формат содержимого и физического хранения информации, которую
принято группировать в виде файлов. Конкретная файловая система определяет
размер имени файла (папки), максимальный возможный размер файла и раздела,
набор атрибутов файла. Некоторые файловые системы предоставляют сервисные
возможности, например, разграничение доступа или шифрование файлов.
Файловая система связывает носитель информации с одной
стороны и API для доступа к файлам - с другой. Когда прикладная программа
обращается к файлу, она не имеет никакого представления о том, каким образом
расположена информация в конкретном файле, так же, как и на каком физическом
типе носителя (CD, жёстком диске, магнитной ленте, блоке флэш-памяти или
другом) он записан. Всё, что знает программа - это имя файла, его размер и
атрибуты. Эти данные она получает от драйвера файловой системы. Именно файловая
система устанавливает, где и как будет записан файл на физическом носителе
(например, жёстком диске).
С точки зрения операционной системы (ОС), весь диск
представляет собой набор кластеров (как правило, размером 512 байт и больше).
Драйверы файловой системы организуют кластеры в файлы и каталоги (реально
являющиеся файлами, содержащими список файлов в этом каталоге). Эти же драйверы
отслеживают, какие из кластеров в настоящее время используются, какие свободны,
какие помечены как неисправные.
Однако файловая система не обязательно напрямую связана с
физическим носителем информации. Существуют виртуальные файловые системы, а
также сетевые файловые системы, которые являются лишь способом доступа к
файлам, находящимся на удалённом компьютере.
Файловая система - это то, на чем держится далеко
неидеальный, но маломальский порядок на наших жестких дисках. Носители
информации способны лишь хранить, записывать или считывать биты данных из
определенных секторов, а за доступ к информации отвечает именно файловая
система. Этому термину можно дать несколько определений, каждое из которых
верно. Файловая система - это система организации и хранения информации на
жестком диске или других носителях, программные алгоритмы операционной системы
для управления данной системой организации информации, и, наконец, на бытовом уровне
это совокупность всех файлов и папок на диске.
2.2 Задачи
файловой системы
Основные функции любой файловой системы нацелены на решение
следующих задач:
- именование файлов;
- программный интерфейс
работы с файлами для приложений;
- отображения логической
модели файловой системы на физическую организацию хранилища данных;
- организация устойчивости
файловой системы к сбоям питания, ошибкам аппаратных и программных средств;
- содержание параметров
файла, необходимых для правильного его взаимодействия с другими объектами
системы (ядро, приложения и пр.).
В многопользовательских системах появляется ещё одна задача:
защита файлов одного пользователя от несанкционированного доступа другого
пользователя, а также обеспечение совместной работы с файлами, к примеру, при
открытии файла одним из пользователей, для других этот же файл временно будет
доступен в режиме "только чтение".
ФС позволяет оперировать не нулями и единицами, а более
удобными и понятными объектами - файлами. Ради удобства пользователей
(программе удобнее работать с числовыми индексами, но программы, как известно,
пишутся людьми) в работе с файлами используются их символьные идентификаторы - имена.
Содержимое же файлов (0 и 1) записано в кластеры - мельчайшие единицы
данных, которыми оперирует файловая система, размер их кратен 512 байтам. Для
организации информации кроме имени файла используются также каталоги,
как некая абстракция, позволяющая группировать файлы по определенному критерию.
По сути, каталог - это файл, содержащий информацию о "вложенных" в
него каталогах и файлах.
2.3
Классификация файловых систем
По предназначению файловые системы можно классифицировать на
нижеследующие категории.
- Для носителей с
произвольным доступом (например, жёсткий диск): FAT32, HPFS, ext2 и др.
Поскольку доступ к дискам в разы медленнее, чем доступ к оперативной памяти,
для прироста производительности во многих файловых системах применяется
асинхронная запись изменений на диск. Для этого применяется либо
журналирование, например в ext3, ReiserFS, JFS, NTFS, XFS, либо механизм soft
updates и др. Журналирование широко распространено в Linux, применяется в NTFS.
Soft updates - в BSD системах.
- Для носителей с
последовательным доступом (например, магнитные ленты): QIC и др.
- Виртуальные файловые
системы: AEFS и др.
- Сетевые файловые системы:
NFS, CIFS, SSHFS, GmailFS и др.
- Для флэш-памяти: YAFFS,
ExtremeFFS.
- Немного выпадают из общей
классификации специализированные файловые системы: ZFS (собственно файловой
системой является только часть ZFS), VMFS (т. н. кластерная файловая система,
которая предназначена для хранения других файловых систем) и др.
2.4 Система
организации информации в файловой системе
Вся информация о файлах хранится в особой области раздела - таблице
файлов. Таблица файлов позволяет ассоциировать числовые идентификаторы
файлов и дополнительную информацию о них (дата изменения, права доступа, имя и
т.д.) с непосредственным содержимым файла, хранящимся в другой области раздела.
Раздел - это определенная область диска, созданная во
время операции разметки диска. Каждый раздел содержит один (редко - несколько)
отформатированный том. Том - область раздела со своей файловой системой,
своей таблицей файлов и областью данных. Один или несколько разделов составляют
диск.
Рис. 1. Система организации информации
В начале диска (см. рис.1) находится особая область - MBR
(Master Boot Record), содержащая программную логику, необходимую BIOS для
загрузки системы с жесткого диска. Таблица разделов (partition table)
также расположена в начале диска, ее задача - хранить информацию о разделах:
начало раздела, его длина, какой раздел является загрузочным. На загрузочном
разделе расположен загрузочный сектор (boot sector), хранящий программу
загрузки операционной системыТакова в общих чертах система организации
информации от кластеров и до разделов диска. Современные файловые системы,
кроме непосредственно хранения и изменения файлов, следят за сохранностью структуры
данных и корректностью файловых операций, позволяют шифровать и сжимать
информацию, оптимизируют поиск и сортировку файлов, а также предлагают
множество других сервисных функций.
2.5 История
развития файловых систем
Файловые системы прошли очень долгий по компьютерным меркам
путь, усложняясь параллельно с развитием операционных систем и аппаратного
обеспечения компьютеров. Так, используемая в MS DOS 1.0 (1981 г.) FAT (или
FAT12) изначально предназначалась для работы с гибкими дисками. Свое название
она получила от наименования таблицы размещения файлов - File Allocation Table.
Благодаря 12-битной адресации и кластеру в 4 Кбайта она, однако, поддерживала
разделы до 16 Мбайт. В целом же это была простая файловая система,
обеспечивавшая основные функции - имя файла в формате 8.3, каталоги, атрибут
файла, время создания (изменения).
Чуть позже с добавлением 16-битной адресации и максимального
размера кластера в 32 Кбайта появилась FAT16, поддерживавшая разделы до 2
Гбайт. В первой версии Windows 95 была реализована поддержка длинных имен
файлов (до 255 символов) и сохранение регистра символов в названии. Эта
модификация получила название VFAT.
В Windows 95 OSR2 появилась файловая система, которую и
сейчас можно встретить на многих домашних компьютерах (в офисах все-таки больше
думают о сохранности данных) - FAT32. В целях обратной совместимости в FAT32
были введены незначительные изменения по сравнению с VFAT.32-битная адресация
теоретически позволяла работать с разделами до 2 терабайт. Корневой каталог (напомним,
что каталог - это по сути своей файл с идентификаторами вложенных файлов и
каталогов) теперь не располагался в определенном месте, а представлял собой
обычную цепочку кластеров, таким образом, было снято старое ограничение на
количество элементов в корне. Загрузочный сектор раздела дублировался для
отказоустойчивости. В FAT32 были внесены еще некоторые "заплатки",
кое-как подтянувшие характеристики файловой системы до нужд своего времени. Но
по сути своей это была все та же FAT для MS DOS 1.0.
Файловая система NTFS (New Technology File System) была
разработана еще для Windows NT 3.1, однако долго находилась в тени мейнстрима
того времени - FAT, которому Microsoft в каждой новой версии "подкрашивала
фасад" для соответствия запросам времени. Основным недостатком NTFS была
большая требовательность к системным ресурсам, компьютеры просто не могли
извлечь преимуществ из NTFS, зато замедление работы было очень заметно.
Проблема недостатка вычислительной мощности процессора и
объема оперативной памяти решалась "сам собой", и c Windows NT 4.0
начался поход NTFS на пользовательские компьютеры. Windows 2000 принес NTFS3 в
качестве основной и рекомендуемой файловой системы как на рабочие, так и на
домашние системы. На данный момент NTFS3.1 (не путайте версию файловой системы
с версией ОС, далее просто NTFS) является самой распространенной файловой
системой, и популярность ее нельзя "оправдать" лишь маркетингом
Microsoft, NTFS на самом деле одна из самых функциональных и технологичных
файловых систем на рынке.
2.6 NTFS -
дни сегодняшний и завтрашний
поддерживает длинные имена (255 символов, регистр в названии
сохраняется, но не различается), теоретически размер файла ограничен 16
экзабайтами, на практике самая современная ОС Windows 2003 ограничивает размер
файла 16 терабайтами, а размер раздела - 256. Размер кластера варьируется от
512 байт и до 64 Кбайт, позволяя пользователю самостоятельно выбирать между
экономией места на диске и скоростью работы, стандартным значением является 4
Кбайта.
Том NTFS состоит из MFT (Master File Table - главная таблица
файлов), содержащей каталог файлов, и пространства для хранения файлов. Сама
MFT тоже является файлом, и в первой записи описывает именно файл MFT, всего же
в таблице файлов NTFS первые 16 записей являются служебными, а с семнадцатой
записи и далее идет описание прочих файлов тома. Для большей отказоустойчивости
спецификацией предусмотрены копии MFT и сектора начальной загрузки.
Таким образом, в NTFS, как и в любой другой файловой системе,
MFT хранит каталог файлов (идентификатор, занимаемые кластеры), содержимое же
файлов записано в кластеры диска. Одна из интересных особенностей - хранение
содержимого маленьких файлов (несколько сотен байт) прямо в MFT - позволяет
значительно оптимизировать работу с мелкими файлами и не сказывается на
размерах самой таблицы, так как данные пишутся лишь в том случае, если в записи
MFT для них есть необходимое пространство (1 запись MFT занимает 1 Кбайт).
"Нормальные" же файлы расположены в кластерах области данных тома
NTFS.
При этом каждый файл состоит из потоков, где первый поток -
содержимое файла, а в остальных может содержаться дополнительная информация.
Рис. 2. Видимость в NTFS
Каталоги теперь хранят список вложенных элементов в виде
бинарного дерева, что значительно ускоряет поиск файлов.
Некоторые нововведения NTFS направлены на увеличение
совместимости со стандартом POSIX (на нем основаны файловые системы Unix):
атрибуты времени последнего доступа и изменения файла, жесткие ссылки (фактически,
два имени одного файла), символические ссылки (настоящее имя остается
неизменным, а символическая ссылка позволяет давать "псевдонимы").
Нельзя обойти вниманием и самые известные нововведения NTFS -
сжатие и шифрование. Обе функции полностью прозрачны для пользователей,
необходимо лишь установить соответствующие атрибуты в свойствах файлов и папок,
все остальные операции Windows будет выполнять по мере необходимости,
пользователь же не заметит никакой разницы.обеспечивает мощную и сложную
систему распределения прав доступа к файлам и папкам. Конечно, эти параметры
контролируются лишь операционной системой, то есть их можно обойти, получив
доступ к файлам из другой ОС (например, Linux с возможностью чтения томов
NTFS). Впрочем, от этого обезопасит NTFS-шифрование. Еще одна функция -
дисковые квоты - позволяет устанавливать объем доступного пользователям
свободного места на диске.
Одно из важнейших преимуществ NTFS - журналируемость. NTFS,
как журналируемая файловая система, обладает высокой отказоустойчивостью и
способна самостоятельно исправлять большинство возникающих ошибок. Защита
основана на принципе транзакций - любая операция, изменяющая данные на диске,
рассматривается как транзакция, то есть такая последовательность действий,
которая может или пройти успешно, или не пройти вообще. Данные о предстоящих
действиях заносятся в журнал транзакций, и в случае ошибок система отменяет все
изменения. Поэтому любые промежуточные результаты, чреватые нарушением файловой
системы, невозможны. Журналируемость, к сожалению, не защитит от
некачественного "железа" и не убережет пользовательские данные в
экстренных ситуациях (впрочем, такой цели и не ставится), но без проблем
справится с повседневными ошибками и сохранит целостность файловой системы.
2.7 WinFS -
будущее файловых систем?
Концепция транзакций, используемая в NTFS для защиты
целостности файловой системы, заимствована из систем управления базами данных
(СУБД). И, судя по всему, это лишь "первая ласточка" сращивания
файловых систем и СУБД в единое целое.
Рост объема цифровой информации рано или поздно вынудит
перейти от папок и файлов к более гибкой и совершенной схеме организации. Уже
сейчас в корпоративном секторе эту роль исполняют базы данных, на
пользовательских компьютерах заметно распространение систем локального поиска
(Google Desktop Search, Copernic DS…) по файлам, электронной почте
пользователя, посещенным веб-страницам.
Решить задачу более гибкой организации информации взялась и
Microsoft в своей новой файловой системе (если вообще в данном случае уместен
этот термин) WinFS. Перед WinFS ставятся три основные задачи:
. Поиск информации с учетом ее типа. Текст,
мультимедиа - особенности всех типов информации должны быть известны WinFS, и
учитываться ею.
2. Построение связей (отношений, relations) между
отдельными "порциями" информации (файлами). То есть для каждого
текущего файла система будет подбирать связанные с ним файлы, документы,
электронные письма и т.д.
. Обработка доступной информации - WinFS позволит
фильтровать, разбивать по категориям, ранжировать (определять важность
информации в контексте текущей задачи пользователя) файлы, чтобы отсечь лишнее.
Предоставляя лишь необходимые данные, Microsoft надеется снизить
"информационное переутомление" пользователей.
На лицо интересный сплав технологий файловых систем, систем
управления реляционными базами данных и поисковых технологий. Остается ждать
практической реализации.
2.8 Список
файловых систем
Это список файловых систем (ФС) и сетевых протоколов,
эмулирующих работу файловой системы, с небольшим описанием.
Некоторые старые системы поддерживали только одну файловую
систему, которая была включена в состав операционной системы и не имела
какого-то определённого названия. Такие файловые системы могут отсутствовать в
данном списке.
2.8.1 Дисковые
файловые системы
Дисковые файловые системы обычно являются
поток-ориентированными. Файлы в поток-ориентированных файловых системах
представляются последовательностью битов, часто предоставляющие такие функции,
как чтение, запись, изменение данных и произвольный
доступ.
Файловые
системы для флеш-дисков / твердотельных носителей
Твердотельные носители, такие, как флеш-диски, своим
интерфейсом данных похожи на обычные жёсткие диски, но имеют свои проблемы и
недостатки. Когда проходит время поиска они нуждаются в особой обработке такими
алгоритмами как, Wear leveling и Error detection and correction.
§ FAT - исходно дисковая файловая система - теперь
часто используется на флеш-дисках. Имеет ограничение на размер файла в 4
гигабайта.
§ exFAT - Расширенная версия FAT, используемая для
флеш-дисков. Запатентована Microsoft, часто называется как FAT64 - ограничение
264 байт (16 эксабайт).
§ TFAT (англ.) - Транзакционная версия FAT файловой
системы.
§ FFS2 - Продолжение файловой системы FFS1, Одна из
ранних файловых систем для флеш-карт. Разработана и запатентована Microsoft в
начале 1990х годов. U. S. Patent 5392427 (англ.)
§ JFFS - Оригинальная лог-структурированная Linux
файловая система для NOR-флеш-носителей.
§ JFFS2 - Продолжение JFFS для NAND - и
NOR-флеш-носителей.
§ LogFS - Предназначена для замены JFFS2, лучшая
расширяемость. Находится на ранней стадии разработки.
§ Non-Volatile File System - файловая система для
флеш-дисков, разработанная Palm, Inc.
§ YAFFS - Лог структурированная файловая система,
предназначенная для NAND-флеш, но может использоваться в NOR-флеш-дисках.
Запись-ориентированные
файловые системы
В запись-ориентированных файловых системах файлы хранятся как
коллекция записей. Такие файловые системы ассоциируются, прежде всего, со
старыми мейнфреймами и операционными системами для миникомпьютеров. Программы
считывают и записывают целыми записями, вместо байт, записанных, в определенном
порядке.
§ Files-11 - Ранняя версия была
запись-ориентированной; поддержка потоков была добавлена позднее.
§ Virtual storage access
method (VSAM) - Использоваласьв System/370 и MVS
§ Structured File Server (SFS) -
Запись-ориентированная файловая система от IBM, оригинальная часть системы
Encina, теперь интегрирована в CICS.
§ RSD (record sequential delimited) - (разделенная
последовательность записей) - Запись ориентированная файловая система от IBM.
Файловые
системы для сетевых хранилищ
Файловые системы для общих дисков (также известные как
Файловые системы для сетевых (общих) хранилищ (файловая система SAN) или кластерные
файловые системы) в основном используются в сетевых хранилищах, где все узлы
сети имеют прямой доступ к блоковому устройству хранения, где расположена эта
файловая система. Такие файловые системы функционируют, даже при поломке одного
из узлов. Данные файловые системы, обычно, используются в кластерах высокой
доступности вместе с аппаратным RAID. Файловые системы для сетевых хранилищ,
обычно не расширяются больше 64 или 128 узлов.
Могут быть симметричными, когда метаданные распределены между
узлами, или асимметричными - с централизованными хранилищами метаданных.
§ CXFS (XFS для кластера) - Файловая система
расширяющая XFS для использования в сети имеющей SGI-сервера. Сфера применения
типична для решений Silicon Graphics - видеомонтаж, обработка массивов
видеоматериалов.
§ EMC Celerra HighRoad от компании EMC. Доступна
для ОС AIX, HP-UX, IRIX, Solaris и Windows. Асимметрична.
§ IBM SAN File System (англ.) - распределённая
файловая система, разработанная IBM
§ Files-11 - Файловая система для кластеров VMS,
выпущена DEC в 1983, ныне компания HP. Симметрична.
§ Global File System (GFS)
- Компания Red Hat. Выпущена в Linux под
лицензией GNU GPL. Симметрична (GDLM) и асимметрична (GULM).
§ HP Cluster File System
(CFS) (TruCluster) - компания HP. Доступна для Tru64 UNIX.
§ Melio FS - Компания Sanbolic. Доступна для
Windows. Симметрична.
§ Nasan - Файловая система от компании DataPlow.
Доступна в Linux и Solaris. Асимметрична.
§ OCFS - Oracle Cluster File System, Кластерная
файловая система от Oracle. Лицензия GNU GPL. Симметрична
§ PolyServe file system (PSFS) - Компания PolyServe
- используется в их PolyServe Matrix Server, который фокусируется на
экспортировании клиентам через CIFS или NFS, pтакже как и Microsoft SQL Server
и Oracle 9i RAC и 10g. Доступна в Linux и Windows. Симметрична.
§ StorNext (англ.) от Quantum. Асимметрична.
Доступна в AIX, HP-UX, IRIX, Linux, Mac OS, Solaris и Windows. Совместима с
Xsan.
§ QFS, Создана компанией Sun Microsystems. Доступна
в Linux (только клиентская часть) и Solaris (полностью). Асимметрична.
§ Veritas Storage
Foundation Cluster File System (CFS) - Разработанакомпанией Symantec. Доступнав AIX, HP-UX,
Linux и Solaris. Асимметрична.
§ Xsan - Кластерная файловая
система созданная компанией AppleComputer, Inc. Асимметрична, доступна в Mac OS. Совместима с
StorNext File System.
§ VMFS - Разработана VMware/EMC
Corporation. Доступнав VMware ESX
Server. Симметрична.
2.8.2
Распределённые файловые системы
Распределённые файловые системы известны и как сетевые
файловые системы.
§ Amazon S3
§ Andrew file system (AFS) - масштабируемая и
независимая от расположения ФС, имеет сильный кэш-клиент и использует Kerberos
для авторизации. Различные внедрения используют оригинальные части от IBM
(ранее Transarc), Arla и OpenAFS.
§ Arla - Свободно распространяемые сервер и клиент
с поддержкой AFS
§ CIFS - Распределённая ФС, основанная на SMB с
поддержкой UNIX-прав и блокировок, при этом использующая DNS имена машин, а не
NetBIOS, в отличие от SMB.
§ DCE Distributed File System (DCE/DFS) - ФС от IBM
(ранее Transarc) похожа на AFS и полностью соответствует стандарту POSIX и
стандартам систем высокой доступности. Доступна для ОС AIX и Solaris под
запатентованной лицензией.
§ NetWare Core Protocol
(NCP) - ФСот Novell. Используется в сетях,
основанных на NetWare.
§ Network File System (NFS) изначально от Sun
Microsystems, теперь является стандартом в UNIX-подобных сетях. NFS может
использовать протокол Kerberos для авторизации и кэш клиента.
§ RFS (Remote File Sharing - совместное
использование удаленных файлов) - сетевая файловая система только для UNIX
System V, начиная с Release 3. Использует протокол интерфейса транспортного
уровня TLI.
§ OneFS (англ.) - One File System, полностью
журналируемая, распределённая ФС, разработанная Isilon Systems. Позволяет
хранить более 150 Тбайт данных.
§ OpenAFS - Открытая реализация распределенной
файловой системы AFS.
§ Self-certifying File System (SFS), Глобальная
сетевая файловая система, разработанная для безопасного доступа к файлам через
различные административные домены.
§ Server Message Block (SMB) - Изначально
разработана IBM (большинство общих версий серьезно модифицировано Microsoft) -
является стандартом в Windows-ориентированных сетях. SMB также известна как
Common Internet File System (CIFS) - Общая Файловая система в Интернет. SMB
может использовать протокол Kerberos для авторизации.
§ v9fs - Распределённая файловая система для ОС
Plan 9 и Inferno.
Распределенные
параллельные файловые системы с защитой от сбоев
Распределенные файловые систем, являющиеся параллельными и с
защитой от сбоев, разделяют и реплицируют данные на многие сервера для высокой
производительности и обеспечения целостности данных. Даже когда сервер дает
сбой, данные не теряются. Данные файловые системы используются в
высокоскоростных вычислениях и кластерах высокой доступности.
Все здесь перечисленные файловые системы фокусируются на
высокой доступности, масштабируемости и высокой производительности, если не
указано иначе.
§ Coda - ФС, созданная в Carnegie Mellon University
и нацеленная на операции, адаптируемые к пропускной способности канала (включая
операции в режиме off-line). Использует кэш на стороне клиента для мобильных
компьютеров. Данная ФС является потомком AFS-2 и доступна для Linux под
лицензией GNU GPL.
§ dCache - ФС от компаний Fermilab и DESY. Является
бесплатным ПО (однако не относится к свободному программному обеспечению из-за
лицензионных ограничений).
§ ExaFS - Распределенная ФС от Exanet. Идет как
часть ExaStore, основанном на Linux NAS решении запущенном на оборудовании
Intel, обслуживает NFS v2/v3, SMB/CIFS и AFP для Microsoft Windows, Mac Os,
Linux и других UNIX клиентов. Доступна под патентованной лицензией.
§ Gfarm - ФС, использующая OpenLDAP или PostgreSQL
для метаданных и FUSE или LUFS для монтирования. Доступна в Linux, FreeBSD,
NetBSD и Solaris под лицензией X11.
§ GlusterFS - Настраиваемая, высоко
производительная кластерная ФС, распространяемая как часть GNU Clustering
Platform. Доступна для любой POSIX совместимой операционной системы, под
лицензией GNU GPL.
§ GPFS - General Parallel File System, виртуальная
файловая система для параллельной обработки данных разработанная IBM.
Поддерживает репликацию между подсоединенными блочными устройствами хранения.
Доступна в AIX, Linux и Windows. Синхронная или асинхронная репликация
(настраиваемо).
§ Google File System - Кластерная ФС,
оптимизированная для работы с большими блоками данных по 64 Мб, а также
обладающая повышенной защитой от сбоев. Вся информация копируется и хранится в
трех местах одновременно, при этом система способна очень быстро находить
реплицированные копии, если какая-то машина вышла из строя. Задачи
автоматического восстановления после сбоя решаются с помощью программ,
созданных по модели MapReduce. Является коммерческой тайной компании Google.
Доступна только через Google App Engine.
§ IBRIX Fusion - Программный пакет Fusion Software
Suite, реализующий кластерную файловую систему Segmented File System. Создана
компанией IBRIX. Доступна в Linux под патентованной лицензией.
§ Lustre - Предназначена для использования в
больших Linux-кластерах (от 1000 машин) Используется на многих самых
производительных кластерах в мире. Лицензия GNU GPL.
§ MogileFS - Распределенная ФС, созданная в рамках
проекта LiveJournal и реализованная на уровне многоплатформенного приложения на
Perl. Не совместима со стандартом POSIX, использует плоское пространство имен,
уровень приложений, MySQL для метаданных и протокол HTTP для транспорта.
Разработана компанией Danga Interactive. Доступна в Linux под лицензией GPL.
§ OneFS distributed file
system - Компания Isilon. Основанная на ОС BSD на
выделенном Intel оборудовании, обслуживает NFS v3 и SMV/CIFS для Windows, Mac
OS, Linux и других UNIX клиентов, доступна под патентованной лицензией.
§ Panasas ActiveScale File System (PanFS) -
Компания Panasas - использует объектные устройства хранения. Доступна в Linux
под патентованной лицензией.
§ PeerFS - Radiant Data Corporation - Фокусируется
на высокой доступности и высокой производительности, использует репликацию типа
точка-точка с множественными источниками и целями. Доступна в Linux под
патентованной лицензией.
§ POHMELFS (Parallel Optimized Host Message Exchange
Layered File System) - кэш-согласованная распределенная файловая система, может
рассматриваться как более быстрая и изящная замена широко распространенного
протокола сетевого доступа к файловым системам Network File System (NFS).9 июня
2009 года поддержка POHMELFS была включена в версию ядра Linux 2.6.30.
§ Tahoe - данные дублируются, шифруются,
поддерживается контроль доступа, написана на Python под GPLv2
§ TerraGrid Cluster File System - Terrascale
Technologies Inc - Реализует связанность кэша под запросу и использует стандарт
iSCSI и модифицированную версию файловой системы XFS. Доступна в Linux под
патентованной лицензией.
В разработке:
§ zFS, от компании IBM (не путать с ZFS от Sun
Microsystems) фокусируется на кооперативном КЭШе и распределенных транзакциях,
использует объектные устройства хранения. Находится в разработке и на данный
момент недоступна.
§ Hadoop Distributed File
System - Бесплатныйклон GoogleFS
§ Kosmos Distributed File System - ФС,
разработанная Kosmix, теперь является свободным ПО.
§ HAMMER/ANVIL от Matt Dillon
§ OASIS от ETRI. Весьма схожа с Lustre
или Panasas. Доступна в Linux через специальную программу переноса программ,
предоставленную ETRI.
§ Parallax
§ XtreemFS - Бесплатная открытая параллельная,
объектно-ориентированная файловая система. Разработана как часть XtreemOS [15],
полностью интегрирована с управлением Virtual organization (VO).
Файловые
системы точка-точка
§ CFS - Файловая система только для чтения,
основанная на распределенной таблице хэшей Chord DHT.
§ Cleversafe Используется Cauchy Reed-Solomon
Information Dispersal Algorithms - Дисперсионные информационные алгоритмы -
(IDAs) для разделения данных в неопределимых срезах и распространения их через
безопасные соединения через Internet на множественные места хранения.
§ Infinit - Это широко масштабируемая файловая
система точка-точка, разработанная в C++, дает пользователям надежное и
безопасное хранение их файлов пространственно-независимым и реплицируемым
путем. Позволяет делиться файлами с контролируемым набором пользователей,
друзей и т.д.
§ Ivy - Файловая система чтения/записи основанная
на логах, отсюда невозможность масштабирования с большим количеством
пользователей.
§ Pastis - французская файловая система
точка-точка, разработанная на Java.
2.8.3 Файловые
системы специального назначения
§ AppleShare - Сетевая файловая система в ранних
версиях Mac OS
§ archfs - Архивирующая файловая система
§ cdfs - Система поддержки чтения и записи CD
§ cfs - Кэширующая файловая система
§ Coda - Файловая система с поддержкой автономной
работы, происходит из OpenAFS.
§ compFUSEd (оверлей прозрачного сжатия -
чтение/запись, основан на FUSE)
§ Cramfs - Compressed ROM file system, свободная
сжатая файловая система для GNU/Linux для встраиваемых систем основанных на
ПЗУ.
§ Cromfs - Работающая в пользовательском
пространстве (FUSE) файловая система только для чтения использующая
эффективность LZMA алгоритма сжатия.
§ Datalight Reliance - Транзакционная файловая
система для 32 битных встроенных систем от Datalight.
§ Davfs2 - Расширение файловой системы WebDAV
§ DFS - Распределённая (сетевая) файловая система
для ОС семейства Microsoft Windows
§ FDI - Файловая система разработанная Intel для
Flash носителей. Используется, в частности, в сотовых телефонах марки Motorola.
§ ftpfs - Файловая система, используемая при
доступе по протоколу ftp
§ fuse - Файловая система пользователя, аналогична
lufs но имеет лучшую архитектуру.
§ FuseCompress - Основана на FUSE, предоставляет
прозрачное сжатие данных.
§ GmailFS - (Google Mail File System) - Файловая
система Google для своей почтовой системы GMail.
§ HDFS - Распределенная файловая система,
являющаяся частью проекта Apache Hadoop.
§ InterMezzo - Является преемником Coda,
поддерживает синхронизацию с сервером и кэширование файлов.
§ Kimberlite - Система позволяющая подключить две
машины под ОС GNU/Linux к одному SCSI-накопителю.
§ lnfs - Система поддержки длинных имён
§ LUFS - Система для доступа по протоколам ftpfs,
ftp ssh
§ MapFS - Распределённая файловая система компании
Levanta. Позволяет монтировать группе машин удаленную файловую систему
доступную в режиме только для чтения, но дающую возможность модификации файлов,
при этом изменения произведенные на каждой машине сохраняются локально.
Лицензия GNU GPL.
§ MelioFS - Распределённая файловая система
компании Sanbolic. Позволяет множеству машин одновременно работать на чтение и
на запись не только с одним томом, а даже с одним файлом. Поддерживается
множество родных возможностей по работе с файловыми системами MS Windows.
§ mini fo (The mini fanout overlay file system) -
Перенаправляет модифицированные операции в записываемое пространство названное
директориях хранения, оставляет оригинальные данные в основной директории
незатронутыми. При считывании, файловая система смешивает модифицированные
данными и оригинальные, так чтобы только наиболее новая версия была показана.
§ MVFS - MultiVersion File System -
Мультиверсионная файловая система, пропиеритарная, используется Rational
ClearCase.
§ NCUFS - The NetWare UNIX Client File System (NUCFS),
сетевая файловая система от SCO, используется для подключения UNIX-клиентов к
файловым ресурсам серверов Novell NetWare.
§ nntpfs - Система поддерживающая протокол netnews
§ NOOFS - Сетевая файловая система, использующая в
качестве хранилища данных SQL-базу, в частности PostgreSQL.
§ ParFiSys - Экспериментальная файловая система для
параллельной обработки данных
§ PVFS - Распределенная файловая система,
заменяющая NFS для кластера. Состоит из централизованного сервера метаданных и
множества демонов ввода/вывода, непосредственно занимающихся отдачей и
сохранением информации. Данные хранятся на специально отведенных нодах кластера,
возможности резервирования пока отсутствуют.
§ ramfs - Система используемая для создания
RAM-диска в процессе загрузки ОС семейства BSD и на ядре Linux
§ romfs - (ROM filesystem) - Чрезвычайно простая
файловая система, без многих функций, предназначена для записи важных файлов в
EEPROM. Доступна в Linux, и возможно в других UNIX-похожих системах.
§ Squashfs - Система компрессирующая данные с
атрибутом "только для чтения"
§ tmpfs - Файловая система поддерживающая работу с
виртуальной памятью.
§ UMSDOS - Файловая система подобная FAT, но
расширенная для хранения прав доступа и метаданных, используется в ОС на ядре
Linux.
§ UnionFS - Каскадно-объединенная файловая система,
которая может смешивать содержимое различных директорий (ветви), оставляя
содержимое физически разделенным.
§ WDK. VFS - SiteAdmin CMS - Виртуальная файловая
система, представлена Evgenios Skitsanos.
§ wikifs - Файловая система, используемая
Википедией
§ Barracuda WebDAV plugin - безопасный сетевой
файловый сервер для встроенных устройств.
§ SODA: a Lease-based
Consistent Distributed File System - ранние 1990-егоды.
§ SysmanFS (Основана на FUSE), виртуальная файловая
система для управления кластерами.
§ pramfs - Защищенная и постоянная файловая система
для RAM-устройств.
§ ERTFS ProPlus64 - идёт с интегрированной
операцией защиты от сбоев, по умолчанию работает в журналируемом режиме.
§ Callback File System - виртуальная файловая
система для Windows.
§ Owner-Free Filesystem - распределённая файловая
система, в которой никакой файл не хранится целиком на единственном компьютере.
Псевдо
- и виртуальные файловые системы
§ devfs - Устаревшая система файловых устройств в
ОС семейств BSD, GNU/Linux.
§ procfs - Система для обслуживания процессов,
устаревший механизм ОС семейств BSD, GNU/Linux.
§ specfs - Специальная файловая система для
файловых устройств.
§ sysfs - Получение информации о системных
устройствах и драйверах в GNU/Linux.
§ CrossDOS - Промежуточная файловая система для
переноса данных между другими файловыми системами в AmigaOS.
Шифрованные
файловые системы
§ eCryptfs - Криптографическая файловая система в
ядре Linux начиная с версии 2.6.19
§ EncFS, GPL Encrypted filesystem (Шифрованная
файловая система) - в пользовательском пространстве.
§ EFS (Encrypted file system, Шифрованная файловая
система) - для Microsoft Windows систем. Является расширением файловой системы
NTFS, использует сертификаты шифрования.
§ FSFS - Fast Secure File System - Быстрая
Безопасная Файловая Система
§ PhoneBookFS
§ Rubberhose filesystem
§ Solid File System (SolFS) - кроссплатформенная
однофайловая виртуальная файловая система с шифрованием и сжатием.
§ Secure Shell File System (SSHFS) - позволяет
локально монтировать директорию с удаленного сервера, используя только учетные
данные secure shell.
§ ZFS - Поддержка шифрования в файловой системе
ZFS.
Файловые
системы с защитой от сбоев
Файловые системы с встроенной избыточностью. Обычные файловые
системы для встроенных систем использующие транзакции или журналы не должны
попасть в этот список.
§ RAIF Redundant Array of Independent Filesystems -
Избыточный Массив Независимых Файловых систем - файловая система похожая на
структуру RAID.Содержит свою реализацию RAID-5 и RAID-6 - RAID-Z и RAID-Z2
соответственно.
3. Работа в программе Autocad
3.1 Структура
программы AutoCAD
- двух и трёхмерная система автоматизированного
проектирования и черчения, разработанная корпорацией Autodesk. Первая версия
системы была выпущена в 1982 году система и получила необычайно широкое
распространение. AutoCAD представляет собой систему, позволяющую автоматизировать
чертежно-графические работы. AutoCAD и специализированные приложения на его
основе нашли широкое применение в машиностроении, строительстве, архитектуре и
других отраслях промышленности. Несмотря на большое количество команд, AutoCAD обладает удобным для
пользователя интерфейсом и эффективной системой ведения диалога с
пользователем.

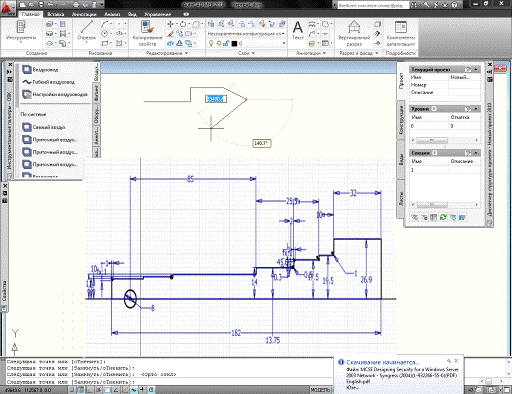
Рисунок
1 - интерфейс программы AutoCAD.
Функциональные возможности.
Ранние версии AutoCAD оперировали небольшим числом
элементарных объектов, такими как круги, линии дуги и текст, из которых
составлялись более сложные. Однако, на современном этапе возможности AutoCAD
весьма широки. В области двумерного проектирования AutoCAD по-прежнему
позволяет использовать элементарные графические примитивы для получения более
сложных объектов. Кроме того, программа предоставляет весьма обширные
возможности работы со слоями и аннотативными объектами (размерами, текстом,
обозначениями). Использование механизма внешних ссылок (XRef) позволяет
разбивать чертеж на составные файлы, за которые ответственны различные
разработчики, а динамические блоки расширяют возможности автоматизации
2D-проектирования обычным пользователем без использования программирования.
Начиная с версии 2010 в AutoCAD реализована поддержка двумерного
параметрического черчения.
3.2 Этапы
разработки трехмерной модели в программе AutoCAD
Создаем первый эскиз рисунок 1 и вращаем его вокруг нижней
грани рисунок 5.
Рисунок 1. Первый эскиз.
Рисунок 2. Деталь полученная вращением.
Затем, используя первый эскиз, делаем отверстие и накладываем
на него и на часть цилиндрической поверхности условную резьбу. Рисунок 3.
Рисунок 3. Элементы с резьбой.
С помощью дополнительной плоскости, касательной к
цилиндрическому элементу строим эскиз для выдавливания паза, а затем выполняем
операцию зеркального отражения, для создания аналогичного паза с другой стороны
рисунок 4.
Рисунок 4. Шпоночный паз.
С помощью мастера проектирования цилиндрической передачи
создаем зубья на цилиндрической поверхности вала рисунок 5-6.
Рисунок 5. Мастер проектирования.
Рисунок 6. Зубчатый венец.
3.3
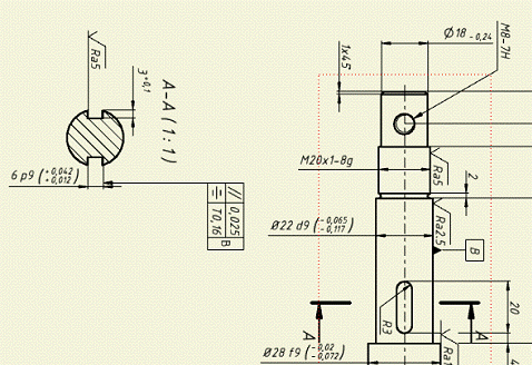
Формирование конструкторской документации на основе трехмерной модели
В ходе прохождения производственной практики передо мной стояли
следующие задачи;
Проектирование 3D модели детали "Корпус
редуктора". По данной модели был создан набор конструкторской документации
в виде чертежей. На чертежах проставлены все необходимые размеры и сделаны
необходимые выноски.
Создадим чертежи детали по ее трехмерной модели. Шаг 1.
создаем главный вид - рисунок 7.
Рисунок 7. Главный вид.
Из главного вида создаем вид с помощью операции "вид
сечением" рисунок 8.
Рисунок 8. Вид, полученный сечением.
Создаем выносной элемент, на главном виде рисунок 9.
Рисунок 9. Выносной элемент.
Заключение
Во время прохождения производственной практики в TOO "ALI-ABDI" я приобрел навыки
черчения проектов в системе автоматизированного проектирования AutoCAD, сбора и обработки
информации, использования средств информационных технологий. А так же применил
навыки в обслуживании ПК и локальной сети организации. Изучил локальные и
распределенные сети, сетевых операционных систем, и стандартных, типовых и
специальных программных средств. Изучил структуру организации, основных
назначений отделов и подсистем, ознакомился с аппаратными компонентами и со
структурой специального программного обеспечения данной организации.
В качестве программиста я выполнял следующую работу: обслуживание
компьютеров организации устранение неполадок в работе программного обеспечения,
проверка всех персональных компьютеров на наличие вирусных угроз, переустановка
операционной системы, а также составление отчетов в программе MS Word и
отправка готовых отчет по электронной почте.
Мною были закреплены и применены полученные в ходе обучения
теоретические знания, приобретенные умения и навыки в выбранной сфере
профессиональной деятельности.
Отчет об итогах составлялся на основе накопленного материала
в течение прохождения практики.
Список
литературы
1.
Курсовое проектирование деталей машин: Учеб. пособие для учащихся машиностроит.
спец. вузов. / Чернавский С.А., Ицкович Г. М и др. - 3-е изд., перераб. и доп.
- М.: Машиностроение, 1989.416 с.: ил.
.
Анурьев В.И. Справочник конструктора-машиностроителя в 3-х т, т.2: изд.8-е
перераб. и доп. Под ред. И.Н. Жестковой. - М.: Машиностроение, 2001. - 912с.:
ил.
.100%
Самоучитель. AutoCAD 2009: О.В. Баранин, С.А. Сорокин, В.С. Пташинский -
Санкт-Петербург, Технолоджи-3000, Триумф, 2009 г. - 272 с.
.
AutoCAD 2005 и AutoCAD LT 2005. Библия пользователя (+ CD-ROM): Эллен
Финкельштейн - Санкт-Петербург, Вильямс, 2005 г. - 1232 с.
.
AutoCAD 2007 и AutoCAD LT 2007: Дэвид Фрей - Санкт-Петербург, НТ Пресс, 2008 г.
- 688 с.
.
AutoCAD 2009. Практическое руководство: В.С. Пташинский - Москва, Триумф, 2009
г. - 192 с.