Эргономическая оценка организации рабочего места пользователя персональной ЭВМ методом соматографии

  • Вид работы:
    Контрольная работа
  • Предмет:
    Безопасность жизнедеятельности
  • Язык:
    Русский
    ,
    Формат файла:
    MS Word
    99,44 Кб
  • Опубликовано:
    2013-12-07
Вы можете узнать стоимость помощи в написании студенческой работы.
Помощь в написании работы, которую точно примут!

Эргономическая оценка организации рабочего места пользователя персональной ЭВМ методом соматографии

Министерство образования Российской Федерации

ФГБОУ ВПО Тульский государственный университет

Кафедра Аэрологии, охраны труда и окружающей среды







Контрольно-курсовая работа по дисциплине

«Безопасность жизнедеятельности»

по теме

«Эргономическая оценка организации рабочего места пользователя персональной ЭВМ методом соматографии»

Вариант № 16


Выполнила:  студентка группы 120891 Овсянникова А.А.

Проверила: к. т. н., доц. каф. АОТ и ОСКотлеревская Л. В.






Тула 2012

Оглавление

эргономическая рабочее место соматография

1. Цель и задача работы

2. Постановка задачи и исходные данные

3. Исходные данные

4. Разработка соматограммы рабочего места пользователя ПЭВМ и проработка вариантов его модернизации

5. Анализ совмещённой соматограммы

6.Заключение

Список литературы

1.Цель и задача работы

Целью работы является выполнение эргономической оценки организации рабочего места оператора системы СЧМ с точки зрения ее соответствия антропометрическим характеристикам человека методом соматограмм.

Задача работы состоит в построении соматограммы рабочего места на примере рабочего места пользователя персональной ЭВМ, оценке соответствия организации рабочего места требованиям эргономики, а также в разработке рекомендации по улучшению эргономических показателей рабочего места.

. Постановка задачи и исходные данные

В данной контрольно-курсовой работе необходимо разработать соматограммы специализированного типового рабочего места пользователя ПЭВМ, а также сделать выводы о соответствии его организации нормативным требованиям. В случае выявленного несоответствия - сформулировать рекомендации по изменению соответствующих элементов рабочего места.

При анализе рабочего места воспользуемся схематизацией с помощью палочковых муляжей в масштабе 1:10.

Согласно варианту задания, рабочее место должно разрабатываться по антропометрическим характеристикам лица женского пола среднего роста (168 см). Размеры элементов палочковых схем такого человека представлены в таблице 1. На рисунках 1а-в изображены палочковые схемы проекций тела человека на ортогональные плоскости (виды спереди, сбоку и сверху соответственно, размеры указаны в мм).

Рабочее место пользователя ПЭВМ представляет собой совокупность следующих элементов: стол с выдвижным расположением клавиатуры, стул, системный блок, монитор, клавиатура, подставка для ног. Размеры палочковых схем вышеописанных компонентов представлены в таблице 2.

.Исходные данные

Вариант

Оператор

Размеры стола, мм

Сиденье

Расположение клавиатуры


пол

рост

выс

дл

шир

тип

высота, мм


16

ж

в

730

1000

500

кресло

450

На столе


Таблица 1. Размеры элементов палочковых схем тела человека.

Номер

Название элемента

Размеры, мм

1

Высота ступни

71

2

Длина голени

374

3

Длина бедра

472

4

Длина выпрямленного корпуса

464

5

Расстояние от плечевой точки до уровня глаз

183

6

113

7

Длина пальцев рук

99

8

Длина ладони

95

9

Длина предплечья

250

10

Длина плеча

315

11

Расстояние между плечевыми точками

380

12

Расстояние между тазобедренными точками

185

13

Расстояние между глазами

71

14

Расстояние от оси тела до глаз

84

15

Расстояние от оси ноги до внутренней стороны ступни

38

16

Расстояние от оси ноги до внешней стороны ступни

63

17

Расстояние от проекции лодыжки до носка

170

18

Расстояние от проекции лодыжки до пятки

50

19

Расстояние от тазобедренной точки до сиденья

146


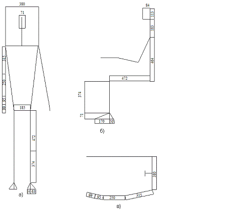
Построим соматограмму человека (см. рис. 1).

Рис. 1 - Соматограмма человека: а) в полный рост; б) сидя, вид сбоку; в) вид сверху.

Таблица 2. Размеры элементов палочковых схем рабочего места пользователя ПЭВМ.

Номер

Название элемента

Размер, мм

1

Высота стола

730

2

Длина столешницы

1000

3

Ширина столешницы

500

4

Глубина свободного пространства для ног

650

5

Высота свободного пространства для ног

600

6

Ширина системного блока

360

7

Высота системного блока

165

8

длина системного блока

9

Высота монитора

360

10

Высота экрана монитора

220

11

Длина монитора

380

12

Ширина монитора

360

13

Высота поверхности сидения стула

450

14

Высота спинки стула

400

15

Ширина спинки стула

380

16

Расстояние от сидения стула до подлокотника

210

17

Длина подлокотника

230

18

Глубина поверхности сидения стула

380

19

Ширина поверхности сидения стула

400

20

Угол наклона спинки стула, град

10

21

Длина подставки для ног

300

22

Высота подставки для ног

50

23

Угол наклона подставки для ног, град.

10

24

Расстояние от экрана монитора до глаз человека

700

25

Расстояние от края стола до клавиатуры

150

26

Ширина клавиатуры

160

27

Угол наклона клавиатуры, град.

10

28

Длина клавиатуры

460

29

Высота выдвижной панели клавиатуры

100

Рис. 5 Размеры элементов палочковых схем рабочего места.

Размеры элементов палочковых схем человека для женщин высокого роста можно найти в таблице на рисунке 6:

.Разработка соматограммы рабочего места пользователя ПЭВМ и проработка вариантов его модернизации

По заданным размерам построим соматограмму рабочего места человека (см. рис.2 ).

 

.а) соматограмма рабочего места пользователя ПЭВМ, вид сверху.

.б) соматограмма рабочего места пользователя ПЭВМ, вид сбоку


Для наглядности наложим соматограмму человека на соматограмму рабочего места. На рис. 3 соматограмма человека выделена синим цветом.

а) вид сверху

б) вид сбоку

Рис. 3 Совмещённая соматограмма человека и рабочего места.

. Анализ совмещённой соматограммы

Из рисунка 3.б видно что в данном случае необходимо увеличить высоту кресла с 360 мм до 425 мм и следовательно увеличить высоту подставки для ног с 50 до 137 мм. При данных изменениях рабочее место будет соответствовать нормативному документу СанПиН 2.2.2/2.4.1340-03.

Все рекомендуемые изменения отражены на совмещённой самотограмме на рисунке 4.

Рис. 4 - Совмещённая соматограмма с рекомендуемыми изменениями.

Заключение

В данной курсовой работе мы выполнили эргономичеcкую оценку организации рабочего места оператора системы СЧМ с точки зрения её соответствия антропометрическим характеристикам человека методом соматограмм. Мы научились строить соматограммы рабочего места и разрабатывать рекомендации по улучшению эргономических показателей рабочего места.

Список литературы

Венда В.Ф., Нафтульев А.И., Рубахин В.Ф. «Организация труда операторов». М., 1978.

Говоров В.С. «Отображение машинных решений на экране ЭЛТ». М., 1975.

«Лабораторный практикум по основам инженерной психологии» под ред. Б.А. Душкова. М., Высшая школа, 1983.

Размещено на Allbest.ru

Похожие работы на - Эргономическая оценка организации рабочего места пользователя персональной ЭВМ методом соматографии

 

Не нашли материал для своей работы?
Поможем написать уникальную работу
Без плагиата!
Без нейросетей!