Проблема реструктуризации программно-аппаратной части локальной вычислительной сети подразделения организации

  • Вид работы:
    Дипломная (ВКР)
  • Предмет:
    Информационное обеспечение, программирование
  • Язык:
    Русский
    ,
    Формат файла:
    MS Word
    473,82 Кб
  • Опубликовано:
    2013-03-10
Вы можете узнать стоимость помощи в написании студенческой работы.
Помощь в написании работы, которую точно примут!

Проблема реструктуризации программно-аппаратной части локальной вычислительной сети подразделения организации

Содержание

 

Введение

1. Описание объекта

2. Обоснование принятого решения

2.1 Локальная сеть Ethernet

2.2 Сетевые устройства и средства коммуникаций

2.2.1 Витая пара

2.2.2 Коаксиальный кабель

2.2.3 Оптоволоконные линии

2.3 Сетевые операционные системы для локальных сетей

2.3.1 Novell NetWare 3. XX

2.3.2 Novell NetWare 4. XX

2.3.3 Windows NT Server 4.0

2.3.4 FreeBSD 4.5-RELISE

2.4 Сравнение операционных систем

2.5 Описание ПО Samba

2.5.1 Конфигурирование Samba

2.5.2 Описание возможностей

2.5.3 Права доступа к файлам

2.5.4 Сервис Netbios

2.5.5 Система аутентификации

2.5.6 Типы доступа

2.5.7 Samba как главный контроллер домена

2.5.8 Безопасность

2.5.9 Сервис файлов

2.5.10. Сервис печати

2.6 Активное сетевое оборудование

3. Организация информационной системы

3.1 Подготовка и установка ОС FreeBSD

3.1.1 Аппаратное обеспечение

3.1.2 Подготовка к инсталляции

3.1.3 Установка FreeBSD

3.2 Настройка ПО Samba

3.3 Установка DHCP-сервера

3.4      Настройка клиентов

4. Настройка маршрутизатора и коммутаторов

5. Безопасность жизнедеятельности и гражданская оборона

5.1 Охрана труда. Обоснование и расчет электрического освещения производственных помещений

5.1.1 Расчет электрического искусственного освещения

5.2 Гражданская оборона. Действия по сигналам оповещения гражданской обороны

5.2.1 Основной способ оповещения населения. Содержание речевой информации

5.2.2 Действия населения в зоне радиоактивного заражения (загрязнения)

5.2.3 Типовые режимы радиационной защиты

5.2.4 Действие населения в зоне химического заражения

6. Экономическая часть. расчет сметной стоимости на модернизироание информационной системы

Заключение

Список использованных источников

Введение

Всемирная тенденция к объединению компьютеров в сети обусловлена рядом важных причин, таких как ускорение передачи информационных сообщений, возможность быстрого обмена информацией между пользователями, получение и передача сообщений (факсов, E-Mail писем, электронных конференций и т.д.) не отходя от рабочего места, возможность мгновенного получения любой информации из любой точки земного шара, а так же обмен информацией между компьютерами разных фирм производителей, работающих под разным программным обеспечением.

В виду бурного темпа развития информационных технологий возникает необходимость в разработке принципиального решения вопроса по организации ИВС (информационно-вычислительной сети) на базе уже существующего компьютерного парка и программного комплекса. ИВС должна отвечать современным научно-техническим требованиям, а так же учитывать возрастающие потребности и возможность дальнейшего постепенного развития сети в связи с появлением новых технических и программных решений. На сегодняшний день это одна из самых актуальных проблем в компьютерном мире, поскольку предприятия пытаются найти кратчайшие пути решения проблемы, которые в сложившейся ситуации не являются наилучшим, при этом понести минимальные финансовые и временные затраты. В последствии, очень часто эта экономия не оправдывает себя, а скорее обрекает на еще большие затраты для исправления неполадок в информационной системе.

В данном дипломном проекте рассматривается проблема реструктуризации программно-аппаратной части локальной вычислительной сети подразделения организации.

Реализация предложенного проекта позволит оптимизировать работу в сети путем объединения четырех разнородных одноранговых подсетей (с максимальной скоростью передачи данных 10 МВ/с, различными протоколами передачи данных и операционными системами) в однородную единую информационную среду, и, как следствие, возможность вести объединенную (централизованную) базу данных вместо нескольких, что упрощает процедуру ввода информации и обращении к ней, а так же позволяет сократить бумажный документооборот внутри подразделения, повысить производительность труда, сократить время на обработку информации.

Объединение компьютеров в локальную вычислительную сеть привносит новые трудности. Так как подразделение ведет работу с закрытой информацией, доступ к которой посторонним лицам строго запрещен, то возникает проблема защиты информации в ЛВС.

Локальная вычислительная сеть должна быть спроектирована таким образом, чтобы обеспечить надлежащую степень защищенности данных. От этого не должно страдать удобство пользователей и администраторов сети.

ЛВС подразделения будет управляться операционной системой FreeBSD, которую предпочтительнее устанавливать на сервере из технических соображений, совместно с ПО Samba. ПО Samba является эмулятором работы ОС Windows. Это необходимо для того, чтобы на рабочих станциях стояла привычная пользователям ОС Windows, в качестве рабочей станции она предпочтительнее всем остальным, что обусловлено особенностями построения ядра ОС Windows.

Предполагается провести исследование встроенных возможностей этих ОС, а так же сравнительную характеристику с Widows NT 4.0 и Novell Netware 4.11. На основе проведенного анализа сделать выводы.

Результатом работы является ИВС, состоящая из четырех подсетей, в каждой из которых содержится сервер и рабочие станции. Терминалы каждой подсети подключены к коммутаторам, которые, в свою очередь, объединены посредством маршрутизатора. Основная масса соединений между коммутаторами и рабочими станциями настроена на работу со скоростью 100 МВ/с в режиме полного дуплекса. Топология сети представлена на втором демонстрационном плакате. Транспортный протокол обмена данными - TCP/IР - единый для всех подсетей. В качестве серверов используются неспециализированные компьютеры марки Intel, работающие под управлением ОС FreeBSD.

В качестве маршрутизатора используется специально выделенный компьютер, под управлением ОС FreeBSD. Маршрутизация осуществляется по статической таблице маршрутизации. Статическая маршрутизация является функцией IP и требует, чтобы таблицы маршрутизации создавались вручную, что и будет описано в дипломном проекте.

1. Описание объекта


Существующая ИВС представляет собой четыре разрозненных подсети, в каждой из которых содержится сервер и порядка 6 - 8 рабочих станций. Все сервера имеют разное программное обеспечение и разные протоколы обмена данными.

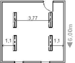
Структура информационно-вычислительной сети представлена на первом демонстрационном и табл. 1.1.

Таблица 1.1

Структура ИВС

№ сети

Число серверов

Число Комп.

Версия ПО сервера

Протокол Обмена данными

Топология подсети

Вид кабеля

1

-

6

-

IP

Одноранговая

Utp

2

1

7

Novell NetWare 4.11

IPX/IP

С выделенным файл-сервером

Utp

3

1

8

Novell NetWare 3.12

IPX

С выделенным файл-сервером

Bnc

4

1

6

Windows NT 4.0

IPX/NetBEUI

С выделенным файл-сервером

Utp


Подробнее о каждой:

.        одноранговая сеть без выделенного сервера, построена на базе концентратора Hub 8. Кабельная система построена на базе UTP (витой пары), основная масса соединений между концентратором и рабочими станциями настроена на работу со скоростью 10 МВ/с. Транспортный протокол - TCP/IP. В качестве рабочих станций используются компьютеры марки Intel, работающие под управлением ОС Windows 95. Их конфигурация: Intel - 486SX/ 33MHz, RAM - 8MB, HDD - 340 MB, NIC - Compex RL2089A, D-Link 520;

2.      сеть с выделенным сервером, построена на базе концентратора Hub 8. Кабельная система построена и настроена аналогично. В качестве сервера используется не специализированный компьютер под управлением Novell Net Ware 4.11. Его конфигурация: Celeron - 433MHz, RAM - 128 MB, HDD - 10 GB, NIC - Compex RL20789A. Транспортняый протокол - IPX/SPX и TCP/IP. В качестве рабочих станций используются компьютеры: Intel - 486SX/ 33MHz, RAM - 8MB, HDD - 340 MB, NIC - Compex RL2089A, D-Link 520;

.        сеть с выделенным сервером построена на основе шинной топологии посредством коаксиального кабеля. Максимальная скорость передачи данными составляет 10 МВ/с. В качестве сервера используется не специализированный компьютер под управлением Novell Net Ware 3.12. Его конфигурация: Pentium - 233MHz, RAM - 64 MB, HDD - 5 GB, NIC - Compex RL2089A. Транспортный протокол - IPX/SPX. В качестве рабочих станций используются компьютеры марки Intel: Intel - 486SX/ 33MHz, RAM - 8MB, HDD - 340 MB, NIC - Compex RL2089A, D-Link 520;

.        сеть с выделенным сервером, построена на базе концентратора Hub 8. Кабельная система построена на базе UTP (витой пары), основная масса соединений между концентратором и рабочими станциями настроена на работу со скоростью 10 МВ/с. Транспортный протокол - TCP/IP и NetBeui. В качестве сервера используется не специализированный компьютер марки Intel под управлением ОС Windows NT 4.0. Его конфигурация: Celeron - 433MHz, RAM - 128 MB, HDD - 10 GB, NIC - Compex RL20789A. В качестве рабочих станций используются компьютеры марки Intel, работающие под управлением ОС Windows 98. Их конфигурация: Intel - 486SX/ 33MHz, RAM - 8MB, HDD - 340 MB, NIC - Compex RL2089A, D-Link 520;

Каждая подсеть в отдельности работает удовлетворительно, что вполне устраивало работников предприятия до некоторого времени. Но в связи с появлением новых задач и проектов потребовалось создание базы данных, доступ к которой должен быть у каждой подсети. В данной ситуации простейшим решением (далеко не лучшим) было решение вести несколько баз данных параллельно.

Немаловажным фактором является человеческий фактор, который заключается в неудобстве пополнения этих баз данных, так как вероятность ошибки оператора увеличивается, соответственно, в несколько раз, возможно и несвоевременное пополнение базы данных, что может существенно сказаться на работе всего предприятия.

Нельзя забывать и о скорости работы ИВС. Так, например, в третьей подсети, где количество рабочих станций максимально по сравнению с остальными подсетями, компьютеры соединены посредством коаксиального кабеля, который обеспечивает передачу данных со скоростью (максимум) 10 Мбит/с.

Таким образом, на текущем этапе развития объединения компьютеров сложилась следующая ситуация:

.        в определенном замкнутом пространстве имеется большое количество компьютеров, работающих отдельно от других групп компьютеров и не имеющих возможность гибко обмениваться друг с другом информацией;

2.      невозможно создание общедоступной базы данных, накопление информации при существующих объемах и различных методах обработки и хранения информации;

.        существующие ЛВС объединяют в себе небольшое количество компьютеров и работают только над конкретными и узкими задачами;

.        накопленное программное и информационное обеспечение не используется в полном объеме и не имеет общего стандарта хранения данных;

Все вышесказанное и привело руководство предприятия к решению о реструктуризации программно-аппаратной части информационно-вычислительной сети, которое и будет представлено в данном дипломном проекте.

маршрутизатор вычислительная сеть компьютер

2. Обоснование принятого решения


Для решения данной проблемы предложено создать единую информационную сеть (ЕИС) предприятия. ЕИС предприятия должна выполнять следующие функции:

.        создание единого информационного пространства, способного охватить всех пользователей и предоставить им информацию созданную в разное время и в разном программном обеспечении для ее обработки, а также осуществлять распараллеливание и жесткий контроль данного процесса;

2.      повышение достоверности информации и надежности ее хранения путем создания устойчивой к сбоям и потери информации вычислительной системы;

.        обеспечивать прозрачный доступ к информации авторизованному пользователю в соответствии с его правами и привилегиями;

Для начала необходимо определится с некоторыми терминами: локальная вычислительная сеть - под ЛВС понимают совместное подключение нескольких отдельных компьютерных рабочих мест (рабочих станций) к единому каналу передачи данных. Самая простая сеть (англ.network) состоит как минимум из двух компьютеров, соединенных друг с другом кабелем. Это позволяет им использовать данные совместно. Все сети (независимо от сложности) основываются именно на этом простом принципе. Рождение компьютерных сетей было вызвано практической потребностью - иметь возможность для совместного использования данных. ЛВС относится к географически ограниченным (территориально или производственно) аппаратно-программным реализациям, в которых несколько компьютерных систем связанны друг с другом с помощью соответствующих средств коммуникаций. Благодаря такому соединению пользователь может взаимодействовать с другими рабочими станциями, подключенными к этой ЛВС.

Существует два основных типа сетей: одноранговые и сети на основе сервера. В одноранговой сети все компьютеры равноправны: нет иерархии среди компьютеров и нет выделенного сервера. Как правило, каждый компьютер функционирует и как клиент, и как сервер; иначе говоря, нет отдельного компьютера, ответственного за администрирование всей сети. Все пользователи самостоятельно решают, какие данные на своем компьютере сделать общедоступным по сети. На сегодняшний день одноранговые сети бесперспективны. Если к сети подключено более 10 пользователей, то одноранговая сеть, где компьютеры выступают в роли и клиентов, и серверов, может оказаться недостаточно производительной. Поэтому большинство сетей использует выделенные серверы. Выделенным называется такой сервер, который функционирует только как сервер (исключая функции клиента или рабочей станции). Они специально оптимизированы для быстрой обработки запросов от сетевых клиентов и для управления защитой файлов и каталогов. Сети на основе сервера стали промышленным стандартом, и именно с их помощью будет решена поставленная задача. Существуют и комбинированные типы сетей, совмещающие лучшие качества одноранговых сетей и сетей на основе сервера.

В производственной практики ЛВС играют очень большую роль. Посредством ЛВС в систему объединяются персональные компьютеры, расположенные на многих удаленных рабочих местах, которые используют совместно оборудование, программные средства и информацию. Рабочие места сотрудников перестают быть изолированными и объединяются в единую систему.

Рассмотрим преимущества, получаемые при сетевом объединении персональных компьютеров в виде внутрипроизводственной вычислительной сети в соответствии с /1/:

-       разделение ресурсов: разделение ресурсов позволяет экономно использовать ресурсы, например, управлять периферийными устройствами, такими как печатающие устройства, внешние устройства хранения информации, модемы и т.д. со всех подключенных рабочих станций;

-       разделение данных. Разделение данных предоставляет возможность доступа и управления базами данных с периферийных рабочих мест, нуждающихся в информации;

-       разделение программных средств. Разделение программных средств предоставляет возможность одновременного использования централизованных, ранее установленных программных средств;

-       разделение ресурсов процессора. При разделении ресурсов процессора возможно использование вычислительных мощностей для обработки данных другими системами, входящими в сеть. Предоставляемая возможность заключается в том, что на имеющиеся ресурсы не "набрасываются" моментально, а только лишь через специальный процессор, доступный каждой рабочей станции;

-       многопользовательский режим. Многопользовательские свойства системы содействуют одновременному использованию централизованных прикладных программных средств, обычно заранее установленных на сервере приложения.

 

2.1 Локальная сеть Ethernet


Наиболее часто для построения сети в пределах одного здания используют технологию Ethernet с методом доступа CSMA/CD (метод множественного доступа с контролем несущей и обнаружением конфликтов).

Спецификацию Ethernet в конце семидесятых годов предложила компания Xerox Corporation. Позднее к этому проекту присоединились компании Digital Equipment Corporation (DEC) и Intel Corporation. Этот стандарт получил дальнейшее развитие и в 1985 г. вышел новый - Ethernet2. IEEE 802.3 был одобрен в 1985 году для стандартизации комитетом по LAN IEEE. Ethernet и IEEE802.3 описывают схожие технологии. Различие между Ethenet и IEEE 802.3 незначительное: IEEE 802.3 определяет несколько различных физических уровней, в то время как Ethernet - один.

Стандарт сети типа Ethernet, как и IEEE 802.3 определяет сеть с конкуренцией, в которой несколько рабочих станций должны конкурировать друг с другом за право доступа к сети. Здесь используется метод CSMA/CD, который устанавливает следующий порядок: если рабочей станции требуется передать данные, она сначала должна проверить состояние канала; начинать передачу станция может только в том случае, если канал свободен. Если возникает конфликт вследствие того, что два узла одновременно пытаются занять канал, то обнаружившая конфликт интерфейсная плата выдает в сеть специальный сигнал, и обе станции временно прекращают передачу. Через некоторый интервал времени, случайно выбранный каждой станцией, запрос на передачу повторяется.

На физическом уровне в Ethernet применяется топология "звезда", если используется UTP и "шина", если используется коаксиальный кабель:

-       все устройства, подключенные к сети, равноправны, т.е. любая станция может начать передачу в любой момент времени (если передающая среда свободна);

-       данные, передаваемые одной станцией, доступны всем станциям сети.

IEEE разработал несколько стандартов построения ЛВС на базе коаксиального кабеля, витой пары и оптоволокна:

BaseT - неэкранированная витая пара, максимальная скорость передачи данных 10 мегабит в секунду, максимальная длина сегмента (то есть расстояние между компьютерами) 100 метров.

BaseTX - неэкранированная витая пара, максимальная скорость передачи данных 100 МВ/с категории 5, максимальная длина сегмента 100 метров.

Base-2 - "тонкий" коаксиальный кабель с сопротивлением 50 Ом, максимальная длина сегмента 185 м, минимальное расстояние между точками подключения 0,5 м, максимальное количество точек подключения 30, максимальное количество сегментов в сети 5.

base-5 - коаксиальный кабель толстый (так называемый "желтый") с волновым сопротивлением 50 Ом, максимальная длина сегмента 500 м, минимальное расстояние между точками подключения 2,5 м, максимальное количество точек подключения к сегменту 100, максимальное количество сегментов сети 5. Устройства подключаются к сети посредством устанавливаемого на кабель трансивера (transceiver). Максимальная длина трансиверного кабеля (длина кабеля между трансивером и устройством) 25 метров.

BaseF - оптоволокно, максимальная скорость передачи данных 10Мв/с, максимальная длина сегмента составляет 2 км.

Поскольку существующая сеть по методу доступа к сети использует Ethernet, то при модернизации системы решено не переходить на другие технологии и выбрать базовой сеть Ethernet. Как уже было сказано, Ethernet может быть реализован на разных типах кабеля, поэтому следует рассмотреть возможные варианты.

 

2.2 Сетевые устройства и средства коммуникаций


В качестве средств коммуникации наиболее часто используются витая пара, коаксиальный кабель и оптоволоконные линии. При выборе типа кабеля учитывают следующие показатели:

-       скорость передачи информации;

-       ограничения на величину расстояния передачи информации (без дополнительных усилителей-повторителей (репитеров));

-       безопасность передачи данных;

-       стоимость монтажа и обслуживания.

Главная проблема заключается в одновременном обеспечении этих показателей, например, наивысшая скорость передачи данных ограничена максимально возможным расстоянием передачи данных, при котором еще обеспечивается требуемый уровень защиты данных. Легкая наращиваемость и простота расширения кабельной системы влияют на ее стоимость и безопасность передачи данных.

 

2.2.1 Витая пара

Наиболее распространенным кабельным соединением является витое двухжильное проводное соединение часто называемое "витой парой" - Unshielded twisted-pairwaire (UTP) - неэкранированная витая пара. Она позволяет передавать информацию со скоростью до 10 и выше Мбит/с, легко наращивается, однако является помехонезащищенной.- подразделяется на уровни, в зависимости от возможности передавать данные (например категории 3, 4, 5 и 5е). Сеть с методом доступа Ethernet требует наличия кабеля, как минимум категории 3. Категория 5е способна передавать данные со скоростью 100 Мбит/с.

Преимуществами являются низкая цена, беспроблемная установка и гибкость кабеля, которая позволяет при необходимости легко перемещать компьютеры не отключая. Для повышения помехозащищенности информации часто используют экранированную витую пару (STP - Shielded twisted-pairwaire), т.е. витую пару, помещенную в экранирующую оболочку, подобно экрану коаксиального кабеля. Это увеличивает стоимость витой пары и приближает ее цену к цене коаксиального кабеля.

 

2.2.2 Коаксиальный кабель

Коаксиальный кабель имеет среднюю цену, хорошо помехозащищен и применяется для связи на большие расстояния (несколько километров). Скорость передачи информации от 1 до 10 Мбит/с, а в некоторых случаях может достигать 50 Мбит/с.

В современном мире стараются не использовать коаксиальный кабель, так как его недостатками являются: ограниченная скорость передачи данных, неудобство соединений при использовании тройниковых соединителей (T-connectors) и возможность сбоя системы при изгибе кабеля. Однако, кое где коаксиальный кабель еще используется для основной и широкополосной передачи информации.

 

2.2.3 Оптоволоконные линии

Наиболее дорогими являются оптопроводники, называемые также стекловолоконным кабелем. Скорость распространения информации по ним достигает порядка 1012 бит/с или Терабит/с. Говоря другими словами, по одному волокну можно передать одновременно 10 миллионов телефонных разговоров и миллион видеосигналов. Скорость передачи данных может быть увеличена за счет передачи информации сразу в двух направлениях, так как световые волны могут распространяться в одном волокне независимо друг от друга. Внешнее воздействие помех практически отсутствует. На данный момент это наиболее дорогостоящее соединение для ЛВС. Применяются там, где возникают электромагнитные поля помех или требуется передача информации на очень большие расстояния без использования повторителей. Они обладают противоподслушивающими свойствами, так как техника ответвлений в оптоволоконных кабелях очень сложна.

Оптопроводники объединяются в JIBC с помощью звездообразного соединения. Максимальная длина сегмента зависит от типа оптоволокна. Например, для стандарта, установленного IEEE, 10BaseF - максимальная длина сегмента составляет 2 км, а на практике для магистральных линий используют оптоволокно с регенерационными участками через 100 км и скоростью передачи 1 Гбит/с.

В нашем случае необходимо учитывать как материальные, так и временные затраты на построение сети. На основании рассмотренных вариантов можно сделать вывод о том, что оптоволокно прокладывать нецелесообразно: дорого и между сегментами сети расстояние небольшое. А в сравнении с коаксиальным кабелем у витой пары на лицо явные преимущества. В существующем варианте сети основная масса физических соединений выполнена на витой паре по технологии Ethernet. Поэтому целесообразно строить ЕИС по технологии Ethernet на основе UTP стандарта 100BaseTХ (здесь осуществляется переход системы на Fast Ethernet), который позволяет передавать данные со скоростью 10-100 Мбит/с, даже до 1 Гбит/с, что вполне удовлетворяет современным требованиям.

 

2.3 Сетевые операционные системы для локальных сетей


Архитектуру сетевой ОС можно классифицировать в соответствии с логическим или физическим компонентом, вокруг которого группируются сетевые ресурсы. Это может быть сервер сети (NetWare 3. x, UNIX), домен (Windows NT, UNIX при использовании NIS), вся сеть как совокупность взаимосвязанных компонентов (службы каталогов NDS и Active Directory).

Для управления сетями на уровне рабочих групп используют службы доменов. К сожалению, для построения сетей корпоративного уровня они недостаточно масштабируемы. Поэтому лучшим вариантом является использование службы каталогов.

Служба каталогов Active Directory (AD) появилась в операционной системе Windows 2000. Ради сохранения совместимости с доменами NT компания Microsoft была вынуждена в качестве основной функциональной единицы службы каталогов оставить домен, привязав его к доменной службе Internet (DNS). Иными словами, каждый домен Active Directory является теперь доменом DNS. Внутри домена AD поддерживается иерархическое пространство имен, где контейнерами выступают объекты типа "подразделение". Домены образуют еще одну иерархическую структуру, называемую деревом. Между доменами установлены доверительные отношения, которые в отличие от Windows NT 4.0 являются транзитивными.

Хотя AD имеют иерархическую структуру внутри домена, все имена домена должны быть уникальными.

Тиражирование баз данных AD осуществляется в пределах отдельного домена. Каждый контроллер домена работает в режиме чтения и записи, таким образом ограничение старых доменов NT снимается. Вместе с тем, как и ранее, сервер Windows 2000 может выступать в качестве контроллера лишь для одного домена, причем он должен входить в состав этого домена. Количество контроллеров не ограничено.

Основой службы каталогов Novell является дерево NDS, построенное по иерархическому принципу. В качестве контейнеров могут использоваться следующие объекты: страна (Country, C), местонахождение (Location, L), организация (Organization, O), подразделение (Organizational Unit, OU), лицензированный продукт (Licensed Product, LP). В пределах одного контейнера все имена должны быть уникальными.

Дерево NDS разбивается на один или несколько разделов (partition). Их назначение состоит в делении общей базы NDS на части в целях упрощения тиражирования. Таким образом, сервер NDS хранит лишь часть общей базы NDS (в пределах раздела). Раздел может представлять собой один или несколько связанных между собой контейнеров. Сервер NDS может выступать в качестве хранилища основной реплики (основной копии) раздела, реплики для чтения и записи, реплики только для чтения и реплики подчиненной ссылки. Особенностью реплик NDS является то, что сервер может одновременно служить для хранения реплик разных разделов NDS. При этом сервер NDS может хранить реплики любых разделов независимо от того, в каком контейнере NDS расположен сам сервер. Тиражирование разделов NDS основано на использовании временных меток, т.е. каждому событию присваивается отметка о времени. Это позволяет разрешать конфликты при обработке запросов к базе данных NDS.

Объектами безопасности NDS являются "пользователь", "группа пользователей", "компьютер", "подразделение" и некоторые другие.

Несмотря на наличие принципиальной возможности создания в сети нескольких деревьев NDS, компания Novell настоятельно рекомендует не делать этого, поскольку тем самым функциональные возможности службы каталогов снижаются. Для объединения нескольких деревьев NDS в одно Novell предоставляет специальную утилиту.

Сетевая информационная служба NIS (Network Information Service) компании Sun является по сути службой доменов, напоминающей LAN Manager. NIS поддерживается практически всеми производителями UNIX, поэтому она весьма популярна в сетях UNIX. В соответствии с NIS компьютеры объединяются в домены, причем в пределах одного домена системные файлы /etc/passwd, /etc/group, /etc/hosts, /etc/networks, /etc/services, /etc/protocols, /etc/aliases и ряд других становятся общими. В домене определены глобальные пользователи, группы пользователей, хосты, сетевые службы и т.д. Кроме того, на компьютерах поддерживаются локальные пользователи, группы и сетевые службы. Как и в других системах, домены NIS не имеют никакого отношения к доменам DNS.

Домен имеет только один главный (master) сервер NIS. Сервер работает в режиме чтения и записи и содержит базу данных домена. Для повышения отказоустойчивости NIS и снижения нагрузки на главный сервер домен может содержать подчиненные (slave) серверы NIS, причем они работают только в режиме чтения информации. Количество подчиненных серверов NIS в домене не ограничено. База данных домена NIS тиражируется на подчиненные серверы с помощью специальных демонов.

На главном сервере NIS дополнительно может быть создан файл /etc/netgroup, задающий сетевые группы. Сетевая группа представляет собой список хостов, пользователей и групп пользователей и имеет уникальное имя. Служба NIS позволяет назначать права доступа не только пользователям и группам пользователей, но и сетевым группам.

На серверах в трех подсетях установлены операционные системы NetWare 3.12, 4.11 (Novell Inc.), Windows NТ Server 4.0 (Microsoft Corp.)

Для последующего сравнения операционных систем рассмотрим более подробно возможности этих и некоторых других сетевых ОС и требования, которые они предъявляют к программному и аппаратному обеспечению устройств сети.

 

2.3.1 Novell NetWare 3. XX

Отличительные черты:

-       широкий выбор аппаратного обеспечения;

-       эффективная низкоуровневая архитектура.

Основные характеристики и требования к аппаратному обеспечению:

-       центральный процессор: 386 и выше;

-       минимальный объем жесткого диска: 9 Мбайт;

-       объем ОП (Оперативной Памяти) на сервере: 4 Мбайт - 4 Гбайт;

-       минимальный объем ОП РС (Рабочей Станции) клиента: 640 Кбайт;

-       протоколы: IPX/SРХ;

-       мультипроцессорность: не поддерживается;

-       количество пользователей: 250;

-       максимальный размер файла: 4 Гбайт;

-       шифрование данных: не поддерживается;

-       управление распределенными ресурсами сети: таблицы bindery на сервере;

-       система отказоустойчивости: дублирование дисков, зеркальное отражение дисков, SFT II,SFT III, поддержка накопителя на магнитной ленте, резервное копирование таблиц bindery и данных;

-       компрессирование данных: не поддерживается;

-       фрагментация блоков (Block suballocations): не поддерживается;

-       файловая система клиентов: DOS, Windows 3. XX, ОS/2, UNIX, Windows NT, Windows 95.

2.3.2 Novell NetWare 4. XX

Отличительная черта:

-       применение специализированной системы управления ресурсами сети (англ.netWare Directory Services - NDS) позволяет строить эффективные информационные системы с количеством пользователей до 1000. В NDS определены все ресурсы, услуги и пользователи сети. Эта информация распределена по всем серверам сети;

-       очень эффективная низкоуровневая архитектура;

-       поддержка аппаратных средств сервера - использование преимуществ процессора Pentium, мультипроцессорной архитектуры, шины PCI, поддержка адаптеров с интерфейсом PC Card.

Для управления памятью используется только одна область (pool), поэтому оперативная память, освободившаяся после выполнения каких-либо процессов, становится сразу доступной операционной системе (в отличие от NetWare 3. XX), сокращены безвозвратные выделения памяти. Защита памяти сервера - возможность запуска сомнительных модулей в специальной области памяти предотвращает повреждение ими содержимого памяти, принадлежащие другим модулям.

Система управления хранением данных (англ. Data Storage Management) состоит из трех компонент пиведенных в /2/, позволяющих повысить эффективность файловой системы:

.        фрагментация блоков или разбиение блоков данных на Подблоки (англ. Block Suballocation). Если размер блока данных на томе 64 Кбайта, а требуется записать файл размером 65 Кбайт, то ранее потребовалось бы выделить 2 блока по 64 Кбайта. При этом 6З Кбайта во втором блоке не могут использоваться для хранения других данных. В NetWare 4. XX система выделит в такой ситуации один блок размером 64 КБайта и два блока по 512 Байт. Каждый частично используемый блок делится на подблоки по 512 Байт, свободные подблоки доступны системе при записи других файлов;

2.      упаковка файлов (англ. File Compression). Долго не используемые данные система автоматически компрессирует, упаковывает, экономя таким образом место на жестких дисках. При обращении к этим данным автоматически выполняется декомпрессия данных;

.        перемещение данных (англ. Data Migration). Долго не используемые данные система автоматически копирует на магнитную ленту либо другие носители, экономя таким образом место на жестких дисках;

.        встроенная поддержка протокола передачи серии пакетов (англ. Packet-Burst Migration). Этот протокол позволяет передавать несколько пакетов без ожидания подтверждения о получении каждого пакета. Подтверждение передается после получения последнего пакета из серии.

При передаче через шлюзы и маршрутизаторы обычно выполняется разбиение передаваемых данных на сегменты по 512 Байт что уменьшает скорость передачи данных примерно на 20%. Применение в NetWare 4. XX протокола LIP (англ. Large Internet Packet) позволяет повысить эффективность обмена данными между сетями, так как в этом случае разбиение на сегменты по 512 Байт не требуется.

Все системные сообщения и интерфейс используют специальный модуль. Для перехода к другому языку достаточно поменять этот модуль или добавить новый. Возможно одновременное использование нескольких языков: один пользователь при работе с утилитами использует английский язык, а другой в это же время немецкий.

Основные характеристики и требования к аппаратному обеспечению:

-       центральный процессор: 386 и выше;

-       минимальный объем жесткого диска: от 12 Мбайт до 60 Мбайт;

-       объем ОП на сервере: 8 Мбайт - 4Гбайт;

-       минимальный объем ОП РС клиента: 640 Кбайт;

-       протоколы: IPX/SPX;

-       мультипроцессорность: поддерживается;

-       количество пользователей: 1000;

-       максимальный размер файла: 4 Гбайт;

-       шифрование данных: уровень С-2;

-       управление распределенными ресурсами сети: NDS;

-       система отказоустойчивости: дублирование дисков, зеркальное отражение дисков, SFT II, SFT III, поддержка накопителя на магнитной ленте, резервное копирование таблиц NDS;

-       компрессирование данных: поддерживается;

-       фрагментация блоков (англ. Block Suballocation): поддерживается;

-       файловая система клиентов: DOS, Windows, Мас v5. XX, ОS/2, UNIX, Windows NT, Windows 95.

 

2.3.3 Windows NT Server 4.0

Отличительные черты:

-       простота интерфейса пользователя;

-       доступность средств разработки прикладных программ и поддержка прогрессивных объектно-ориентированных технологий;

-       поддержка RISC-процессоров.

Интерфейс Windows NT 4.0 аналогичен оконному интерфейсу Windows 95, инсталляция может занимать от 1 до 2 часов. Модульное построение системы упрощает внесение изменений и перенос на другие платформы, Windows NT разрабатывалась с учетом возможности поддержки таких высокопроизводительных RISC-процессоров, как PowerPC, DEC Alpha AXP и MIPS, еще одна возможность которая повышает ее переносимость, - возможность поддержки инсталлируемых файловых систем. В настоящее время поддерживаются FAT (англ. File Allocation Table - таблица размещения файлов, используется в DOS-системах), NTFS (англ. NT File System - файловая система NT, разработана специально для Windows NT), CDFS (файловая система CD-ROM) /4/. Обеспечивается защищенность подсистем от несанкционированного доступа и благодаря многозадачности с вытеснением от их взаимного влияния (если зависает один процесс, это не влияет на работу остальных). Есть поддержка удаленного доступа к сети (например, через модем или нуль модемный кабель) - Remote Access Service (англ. RAS), поддерживается удаленная обработка заданий.NT предъявляет более высокие требования к производительности компьютера по сравнению с NetWare.

Основные характеристики и требования к аппаратному обеспечению:

-       центральный процессор: 386 и выше, MIPS, R4000, DEC Alpha АХР;

-       минимальный объем жесткого диска: 90 Мбайт;

-       минимальный объем ОП на сервере: 16 Мбайт;

-       минимальный объем ОП РС клиента: 12 Мбайт для Windows NT Workstation 4.00, 512 Кбайт для DOS;

-       протоколы: NetBEUI, ТСР/IР, IРХ/SРХ через Microsoft NWLink, АррlеТаlk, АsyncBEUI;

-       мультипроцессорность: поддерживается;

-       количество пользователей: неограниченно;

-       максимальный размер файла: неограничен;

-       шифрование данных: уровень С-2;

-       управление распределенными ресурсами сети: домены;

-       система отказоустойчивости: дублирование дисков, зеркальное отражение дисков, RAID 5, поддержка накопителя на магнитной ленте, резервное копирование таблиц домена и данных, внутренняя модель системы клиент/сервер, 32-битовая линейная модель памяти, транзакционная файловая система (NTFS);

-       компрессирование данных: только для NTFS;

-       фрагментация блоков (англ. Block suballocation): только для NTFS;

-       файловая система клиентов: DOS, Windows 3. XX, Мас, ОS/2, UNIX, Windows NT, Windows 95.

 

2.3.4 FreeBSD 4.5-RELISE

FreeBSD - это мощная операционная система семейства BSD UNIX для компьютеров архитектур, совместимых с Intel, включающей в себя 386-е, 486-е и Pentium-процессоры, а так же процессоры Alpha. Корни ее идут из BSD UNIX, версии UNIX разработанной в Университете Калифорнии, Беркли.

Исключительный набор сетевых возможностей, высокая производительность, средства обеспечения безопасности и совместимости с другими ОС - эти и другие современные возможности FreeBSD зачастую всё ещё отсутствуют в некоторых, иногда лучших, коммерческих операционных системах. Подробное описание приведено в /5/.

Отличительные черты:

-       вытесняющая многозадачность с динамическим изменением приоритетов обеспечивает надежное и быстрое разделение ресурсов компьютера между работающими приложениями и пользователями.

-       многопользовательский доступ дает возможность одновременно использовать машину для различных целей. Системная периферия, подобно принтерам или ленточным накопителям, автоматически разделяется между пользователями.

-       поддержка TCP/IP-сетей включает в себя SLIP, PPP, NFS и NIS. Это означает, что машина может с легкостью взаимодействовать с другими системами, например, выступать в роли сервера предприятия, обеспечивающего такие жизненно важные функции, как NFS, e-mail, WWW и FTP-сервер, управление маршрутизацией с использованием встроенных брандмауэров.

-       защита памяти обеспечивает безопасность выполнения программ. Ни одна программа или пользователь не могут воздействовать на выполнение других программ, если у них нет на это прав.

-       реализация промышленного стандарта X Window System (X11R6) обеспечивает графический интерфейс пользователя; поддерживается большинство видеокарт и мониторов.

-       двоичная совместимость со многими программами, построенными под SCO, BSD/OS, Net/Free/OpenBSD, 386BSD и Linux.

-       система виртуальной памяти и виртуальных машин позволяет работать приложениям, требующим больших объемов памяти; при этом они не создают трудностей и задержек во взаимодействии с пользователем.

-       разделяемые библиотеки (эквивалент DLL, заимствованных MS Windows из Unix) позволяют эффективно использовать дисковое пространство и оперативную память.

-       наличие полного исходного кода операционной системы означает, что пользователь обладает максимальным уровнем контроля над средой.

-       поддержка осуществляется разработчиками с помощью конференций Usenet и списков рассылки, где можно задать любой вопрос.

Поскольку исходный код систем полностью доступен, система может быть настроена и/или адаптирована для решения конкретных проблем, что обеспечивает гибкость, отсутствующую у многих коммерческих закрытых систем.

Криптографическое программное обеспечение, оболочки, обеспечивающие секретность, система Kerberos, шифрование передаваемых данных также доступны.

Для защиты паролей FreeBSD предлагает надежную криптографическую защиту, основанную на MD5. Данная модель обеспечивает защиту на уровне DES, а то и превосходит его, поэтому она устраивает большинство пользователей системы. ОС FreeBSD двигается к реализации дополнительных схем шифрования, между которыми можно будет переключаться.

Согласно /5/ FreeBSD может быть установлена с различных носителей, включая CD-ROM, дискеты, магнитную ленту, раздел MS-DOS, или если есть подключение к сети, то можно установить её непосредственно через FTP или NFS.

Как и большинство систем UNIX, операционная система FreeBSD позволит выполнять следующие операции:

-       организовать совместное использование файлов с помощью NFS;

-       осуществлять дистанционный вход в систему;

-       осуществлять дистанционное управление и конфигурирование по SNMP;

-       передавать файлы по протоколу FTP;

-       организовать службу имен Internet с помощью DNS/BIND;

-       маршрутизировать пакеты между многими интерфейсами, включая каналы PPP и SLIP.

С помощью программного обеспечения SAMBA можно использовать файловые системы или принтеры совместно с машинами Windows'95/98/2000 и NT. Разработчики FreeBSD заботятся о безопасности не в меньшей мере, чем о производительности. В ядро FreeBSD наряду с возможностью организации брандмауэра, включена, например, служба организации шлюзов IP.

Разработчики FreeBSD преодолели некоторые гораздо большие трудности при разработке операционной системы, чтобы дать пользователям следующие возможности:

-       объединённый кэш виртуальной памяти и буферов файловых систем оптимизирует распределение памяти и дискового кэша, используемого программами. В результате программы получают прекрасный менеджер памяти и высокопроизводительный доступ к дискам, а системный администратор избавляется от необходимости настройки размеров кэша;

-       очереди ядра позволяют программам более эффективно реагировать на различные асинхронные события, включая файловый и сетевой ввод/вывод, повышая производительность работы системы и приложений;

-       входящие фильтры позволяют приложениям, интенсивно работающим с соединениями, например, веб-серверам, полностью передать часть своей работы ядру операционной системы, повышая тем самым производительность;

-       мягкие обновления позволяют увеличить производительность файловой системы, не жертвуя надёжностью и стабильностью, посредством анализа, кэширования и переписывая или изменения очерёдности операций с дисковыми метаданными;

-       поддержка IPsec и IPv6 позволяет усилить безопасность при работе в сети и обеспечить поддержку Интернет-протокола следующего поколения, IPv6;

В проекте FreeBSD участвует группа программистов и писателей, которые исправляют ошибки, добавляют новые возможности и документируют систему. Поддержка новых устройств или специальных возможностей является постоянным процессом разработки, и команда разработчиков обращает особое внимание на проблемы, которые касаются стабильности системы.

Основные характеристики и требования к аппаратному обеспечению:

-       центральный процессор: 386 и выше;

-       минимальный объем жесткого диска: 300 Кбайт;

-       минимальный объем ОП на сервере: 4 Мбайт - 8 Мбайт;

-       минимальный объем ОП РС клиента: 4 Мбайт;

-       протоколы: ТСР/IР;

-       мультипроцессорность: поддерживается;

-       количество пользователей: неограниченно;

-       максимальный размер файла: 2 Гбайт;

-       шифрование данных: MD5;

-       управление распределенными ресурсами сети: домены;

-       система отказоустойчивости: дублирование дисков, зеркальное отражение дисков, поддержка накопителя на магнитной ленте, резервное копирование таблиц домена;

-       компрессирование данных: поддерживается;

-       фрагментация блоков (Block suballocation): не поддерживается;

-       файловая система клиентов: DOS; Windows 9x, 2000, NT (при наличии ПО Samba); UNIX;

Качество FreeBSD вкупе с современным дешёвым и производительным аппаратным обеспечением ПК делают эту систему очень экономичной альтернативой коммерческим операционным системам UNIX, и тем более Windows. Она прекрасно подходит для большого количества приложений в качестве мощного быстродействующего сервера. А в качестве рабочих станций лучше использовать Windows. Это обусловлено различиями в построении ядра операционных систем. В ОС Windows в ядро встроена графическая оболочка, что сказывается на быстродействии работы системы при работе с графическими окнами, к тому же в Windows удобнее реализован пользовательский интерфейс. В то время как в ОС FreeBSD работа осуществляется посредством командной строки. Конечно, существуют графические интерфейсы и для этой ОС, но для непрофессионального пользователя они неприемлемы. ОС FreeBSD позволяет устанавливать и удалять программные модули не перегружая систему, то есть "на ходу". Таким образом, если требуется поработать в каком-либо программном модуле 2 дня, то нужно просто загрузить требуемый модуль, а по окончании работы - просто выгрузить. Это большой плюс, поскольку Windows требует перезагрузки после изменения любой настройки, что неприемлемо для сервера.

2.4 Сравнение операционных систем


Чтобы оценить производительность различных операционных систем и сетевых приложений авторами /8/ Джерри Ротманом и Джоном Бакманом были разработаны два различных теста: тест на реальной задаче, тест чтения и записи на диск. Сравнение производилось для следующих операционных систем: Linux (Red Hat 7.0, kernel 2.2.16-22), Solaris 2.8 для Intel, FreeBSD 4.5 и Windows NT 4.0 и Novell NrtWare 6. Для испытаний применяли один и тот же компьютер (системная плата ASUS TUSL2-C (i815 EP B0), процессор CELERON на 1200 MГц, оперативная память SDRAM на 256 Мбайт, Ethernet-карта Intel EtherExpress Pro 10/100).

В тесте на реальной задаче измерялась скорость отправления большого количества почтовых сообщений с помощью программы Mail-Engine. Почтовый сервер работает во всех тестируемых операционных средах (а также на Solaris для SPARC) и построен на асинхронной архитектуре (с неблокирующими вызовами TCP/IP с использованием системного вызова poll ()). При запуске Mail-Engine в тестовом режиме программа выполняла все шаги по отправке почты, но в последний момент посылала команду RSET вместо команды DATA, чтобы 200 тыс. абонентов не получили тестовых писем. Затем соединение SMTP разрывалось, и реально письма клиентам не доставлялись. Тестовая нагрузка состояла из одного сообщения, которое нужно было отправить по 200 000 различным почтовым адресам, разбросанным по 9113 доменам. Так как одно и то же сообщение ставилось в очередь для каждого получателя, скорость чтения и записи на диск не была решающим фактором. Поэтому постепенно увеличивали число одновременных соединений, чтобы наблюдать, как возрастающая нагрузка влияет на производительность.

В UNIX-подобных операционных системах желательно использовать "мягкие обновления" /9/, которые повышают производительность системы в несколько раз. В ОС Linux поддержка мягких обновлений включена по умолчанию, в ОС Solaris они не поддерживаются так же как в ОС Windows и Novell NelWare, поэтому включение мягких обновлений происходит лишь в ОС FreeBSD.

Непротиворечивость файловой системы в случае возникновения системной ошибки традиционно поддерживается за счет использования синхронных операций записи, выполняемых в порядке, зависящем от обновлений метаданных, или за счет использования записей с упреждением с обязательной регистрацией, необходимой для их автоматической группировки. Мягкие обновления как альтернатива этим подходам представляют собой реализацию механизма, который контролирует и обеспечивает выполнение зависимостей обновления с тем, чтобы гарантировать постоянную непротиворечивость образа диска. Использование мягких обновлений позволяет обойтись без специальной регистрации или большинства синхронных операций записи. Способность мягких обновлений объединять многие операции, прежде выполнявшиеся отдельно и синхронно, сокращает число операций записи на диск на 40 - 70% для среды, где происходит интенсивная работа с файлами (то есть при разработке программ, работе почтовых серверов и так далее). Кроме того, помимо увеличения производительности, мягкие обновления могут поддерживать непротиворечивость образа диска на более высоком уровне. Гарантируя, что все некорректности сводятся лишь к невостребованным блокам и индексным дескрипторам файлов, мягкие обновления позволяют обойтись без необходимости запускать программу проверки файловой системы после каждого сбоя системы, то есть система сразу готова к работе. Операция проверки выполняется в активной файловой системе для восстановления всех потерянных блоков и индексных дескрипторов файлов, когда это удобно и, возможно, в виде фоновой задачи. Подробнее технология мягких обновлений описана в /9/.

Рис.1

На рис.1 представлена скорость доставки почты в тестовом режиме MailEngine при разном количестве одновременных соединений для каждой операционной системы. FreeBSD, Linux и Novell NetWare являются бесспорными лидерами по скорости, примерно на 35% опережая идущий вслед за ними Solaris. При добавлении новых соединений общая производительность системы увеличивалась, правда, ее рост практически прекращался, когда число соединений превышало 1500.

Тест файловой системы. Многие сетевые приложения сохраняют информацию в очереди на диске для ее последующей обработки (например, очередь почтовых сообщений в sendmail) или во избежание переполнения. Имитируем типичные ситуации в проведенных тестах. Написанная с этой целью авторами /8/ программа на C++ создает, записывает и читает записанный текст в 10 тыс. файлах в одном каталоге (один файл в один момент времени). Для измерения эффективности файловой системы размер файла был увеличен с 4 до 128 Кбайт.

На рис.2 представлены результаты тестов файловой системы. Скорости Linux и Windows, FreeBSD и Novell Net Ware были почти одинаковыми и значительно выше, чем у Solaris.

Рис.2

Таким образом, при частом обращении приложения к диску следует использовать Linux, FreeBSD, Novell NetWare или Windows. В данном проекте выбираем FreeBSD, так как эта ОС не уступает по производительности вышеупомянутым сетевым операционным системам, а некоторых случаях даже превосходит. Явным преимуществом ОС FreeBSD является ее бесплатно распространяемые релизы, причем они непрерывно усовершенствуются (и также распространяются бесплатно), в отличие от коммерческих проектов, где нужно тратить большие суммы за приобретение более свежей версии. ОС FreeBSD имеет множество достоинств, которые описаны выше.

 

2.5 Описание ПО Samba


При использовании ОС FreeBSD в качестве ОС для сервера возникает проблема интеграции в сети, где доминируют клиентские системы Windows. Прежде всего это относится к серверу файлов и печати. Эту проблему можно решить путем установки сервиса SMB. Реализовать такой сервис позволит ПО Samba, которое является эмулятором работы ОС Windows. Фактически, Samba на платформе FreeBSD позволяет заменить файловые серверы Windows NT, обеспечивая при этом высокую надежность при минимальных затратах на ПО /6/.

Для того чтобы лучше понять, что собой представляет ПО Samba нужно упомянуть о принципах работы протокола SMB, а так же об устройстве и составе сетей Windows.

Различия между системной архитектурой UNIX и Windows - главная проблема, с которой сталкиваются разработчики ПО Samba. Это непосредственно касается принципов аутентификации и хранения учетных записей, прав доступа к файлам и каталогам, схемы именования файлов и прочее. Отличия настолько серьезны, что на первый взгляд кажется, что примирить UNIX и Windows невозможно. Однако с помощью разного рода ухищрений разработчикам удалось преодолеть большую часть этих ограничений.является сервисом SMB, работающим в различных ОС, в том числе UNIX, и по своим возможностям она сравнима с Windows NT Server. С помощью протокола SMB компьютеры в сетях Windows получают доступ к таким сетевым ресурсам, как файловые системы, принтеры, именованные каналы, последовательные и параллельные порты.

В отличие от NFS сервис SMB отслеживает состояние канала связи, поскольку он использует концепцию виртуального канала. С одной стороны, это упрощает сервис, но с другой - служба NFS гораздо более терпима к отказам серверов.

Взаимодействие "клиент-сервер" в SMB построено по принципу "запрос-ответ", при этом клиент инициирует запрос, а сервер возвращает клиенту результат операции, иногда сервер может инициализировать запросы.

Прежде чем установить соединение SMB, компьютеры сначала открывают друг с другом сеанс NetBIOS - это и есть виртуальный канал связи. Порядок установления соединения SMB следующий:

.        клиент передает на сервер список диалектов протокола SMB, которые он поддерживает. В ответ на это сервер сообщает, на каком диалекте он предпочитает общаться;

2.      далее стороны согласуют параметры соединения и сервер аутентифицирует пользователя. Если контроль доступа производится на уровне пользователя, то после аутентификации клиенту сообщается идентификатор пользователя (User Identifier, UID). Этот идентификатор клиент должен в дальнейшем передавать в каждом запросе к серверу. Если же контроль доступа происходит на уровне ресурса, то в каждом запросе клиент должен помещать пароль ресурс;

.        после положительной аутентификации клиентский процесс подключается к ресурсам сервера. Каждому сетевому ресурсу сервер назначает идентификатор дерева (Tree Identifier, TID), который клиент должен сообщать во всех запросах к этому ресурсу.

Наконец, клиенты могут обращаться к компонентам данного ресурса, например к файлам или каталогам, причем каждый такой компонент в пределах ресурса имеет уникальный идентификатор файла (File Identifier, FID).

В соответствии с /10/ сервер Samba предоставляет следующие основные услуги:

-       сервис файлов и печати;

-       аутентификацию и авторизацию;

-       функции сервера имен NetBIOS;

-       средства просмотра (browsing) NetBIOS;

-       средства приема и посылки сообщений WinPopup.

Кроме того, сервер Samba может выполнять функции главного контроллера домена NT, члена домена NT или участника рабочей группы Windows, сервера имен NBNS, браузеров LMB и DMB, поддерживает шифрование трафика с помощью SSL и многое другое.

Работа серверной части Samba опирается на двух демонов:- обеспечивает сетевой сервис файлов и печати, а также аутентификацию и авторизацию пользователей;- отвечает за службу имен NetBIOS, кроме того, nmbd предоставляет средства просмотра NetBIOS.

Кроме этих демонов в состав дистрибутива Samba входит несколько системных утилит, клиентских программ и средств диагностики.

 

2.5.1 Конфигурирование Samba

Конфигурирование Samba, подробно описанное в /7/, на самом деле заключается в конфигурировании файла smb. conf, который и определяет настройки демонов smbd и nmbd. Каждую минуту демоны проверяют smb. conf, поэтому если администратор изменил настройки, то нет необходимости перезапускать демоны (однако изменения не будут распространяться на уже подключенных к серверу клиентов). Поскольку Samba работает на множестве программно-аппаратных платформ, то расположение smb. conf и других файлов Samba меняется от одной системы к другой.

Файл /etc/smb. conf состоит из разделов (секций) по типу того, как это организовано в файлах Windows WIN. INI и SYSTEM. INI:

[global]

[homes]

[printers]

[data]

Каждый раздел определяет сетевой ресурс, выделяемый сервером. Исключение составляет раздел [global], где задаются общие для всех остальных секций опции. Раздел содержит список опций следующего формата:

опция = значение

Например, опция:= yes

означает, что в сетевой ресурс может производиться запись. "Значение" в зависимости от опции может быть логической величиной (yes/no, true/false, 1/0), числом, строкой символов, списком значений. Часть опций - так называемые глобальные опции - может располагаться только в разделе [global]; они определяют параметры работы всего сервиса Samba. Но большинство опций можно располагать в любом разделе, в том числе и в [global]. Если не глобальная опция задана в секции [global], то ее значение можно переопределить в любой другой секции, но переопределенное значение будет действовать только в пределах этой секции. В дальнейшем если тип опции не упоминается, то предполагается, что она не глобальная.

Для Samba определены около 200 опций, но большинство из них не нужно настраивать, поскольку они имеют значение по умолчанию, подходящие для большинства случаев. К тому же значительная часть опций представляют собой псевдонимы других опций.

Регистр символов не имеет значения, за исключением случаев, когда опции указывают расположение файлов. В конфигурационном файле могут использоваться переменные, значение которых подставляется на этапе обращения к ресурсам. Некоторые из них перечислены в таблице (здесь регистр также имеет значение). Пример использования переменной:program = /usr/bin/passwd %u

Таблица 2.1

Наиболее часто используемые переменные файла smb. conf.

Переменная

Определение

1

2

%a

Архитектура клиента (Samba, WfWg, WinNT, Win95, UNKNOWN).



%m

Имя клиента в сети NetBIOS.

%u

Имя (login) пользователя в UNIX.

%H

Домашний каталог пользователя в UNIX.

%S

Текущее имя сетевого ресурса.

%L

Имя сервера Samba в сети NetBIOS.

%T

Текущее время и дата на сервере.


Кроме того, ряд переменных используется исключительно в разделах, где описываются сетевые принтеры.

Комментарии должны начинаться с символов # или;.

Для повышения гибкости конфигурирования в файле smb. conf предусмотрены три директивы, введение которых позволяет изменить порядок просмотра настроек демонами Samba:file - загружает заданный конфигурационный файл вместо текущего smb. conf;- загружает опции из заданного файла, а затем продолжается просмотр текущего конфигурационного файла;- копируются настройки из ранее определенного раздела.

Следует иметь в виду, что если в директивах определены несуществующие файлы, то такие директивы игнорируются.

В составе дистрибутива Samba имеется программа диагностики testparm, для контроля за корректностью настройки smb. conf. Кроме того, в комплекте поставки есть удобное средство администрирования SWAT, благодаря которому Samba можно удаленно администрировать с любого браузера Web. Диалоговое окно средства администрирования SWAT представлено на рис.3.

Средство администрирования SWAT

Рис.3

[global]name = ASERVER= MYGROUP

[data]= Data Disk= /export/samba/data= yes= UNIX Disk

Если Samba запустить с такими опциями, то на машинах Windows можно обнаружить в сети рабочую группу MYGROUP (если ее еще не было) и компьютер ASERVER, с сетевым диском data.

Следует иметь в виду, что, если не принять специальных мер, клиенты Windows 98, Windows 95 OSR2 и Windows NT 4.0 с SP3 не смогут получить доступ к такому ресурсу из-за использования шифрования в процессе аутентификации.

Глобальная опция netbios name задает имя сервера в NetBIOS, а глобальная опция workgroup определяет рабочую группу. Опция workgroup применяется и для задания домена NT.

Опция comment предназначена для ввода комментариев, видимых на клиенте, а volume задает имя тома для программ DOS. Опция path указывает выделяемый под сетевой диск data каталог в FreeBSD, writable=yes означает, что пользователи могут читать и записывать информацию на сетевой диск. При этом параметр path должен указывать на тот каталог, где пользователи имеют права на запись в соответствии со своими полномочиями во FreeBSD.

На эту особенность следует обратить особое внимание: какие бы права доступа к ресурсам ни выставлялись в Samba, пользователь не получит их, если это не разрешено правами доступа FreeBSD. Т.е. права доступа Samba определяют своего рода маску для доступа к ресурсам FreeBSD.

В smb. conf могут быть включены два специальных раздела: [homes] и [printers]. Раздел [homes] предназначен для отображения домашних каталогов пользователей FreeBSD на соответствующие сетевые диски. Преобразование [homes] в соответствующий сетевой ресурс производится на лету, после аутентификации и при обращении пользователя к нему. При этом диску присваивается имя пользователя. Пользователь, допустим, имеющий имя oleg на сервере koka, может обратиться к своему домашнему каталогу, указав UNC \\koka\oleg либо \\oleg\homes.

Раздел [printers] предназначен для предоставления доступа к принтерам, перечисленным в системном файле принтеров FreeBSD (это /etc/printcap). Опять же, если пользователь обращается, скажем, к принтеру к lj, а секции [lj] в файле smb. conf нет, но в файле /etc/printcap есть определение принтера lj, то Samba динамически создает секцию [lj] с параметрами, взятыми из [printers].

Порядок доступа к ресурсам следующий:

.        если имя затребованного пользователем ресурса совпадает с наименованием раздела smb. conf, то пользователь получает доступ к ресурсу с этим именем;

2.      в противном случае если имя затребованного ресурса совпадает с именем пользователя во FreeBSD (login name), то Samba на лету формирует домашний каталог пользователя с параметрами, взятыми из раздела [homes];

.        в противном случае, если имя затребованного ресурса совпадает с именем принтера из системного файла принтеров /etc/printcap, то Samba на лету формирует ресурс принтера с параметрами, взятыми из раздела [printers];

.        в противном случае если задана глобальная опция default service, то пользователь получает доступ к ресурсу, указанному в этой опции;

.        в противном случае клиенту посылается отказ (отсутствие ресурса на сервере).

Исходя из этого алгоритма очевидно, что имена принтеров не должны совпадать с именами пользователей.

 

2.5.3 Права доступа к файлам

Во FreeBSD каждому файлу и каталогу назначаются права доступа "чтение, запись, выполнение" для трех категорий: владельца, группы и всех остальных. Права доступа можно увидеть с помощью команды ls - l

В DOS и Windows файлы имеют набор из четырех атрибутов: только для чтения, архивный, системный и скрытый (hidden). Тип файла, в частности исполняемый файл, в DOS/Windows определяется по его расширению. Кроме того, с точки зрения доступа к файлам в DOS/Windows 9x нет понятия пользователя и группы.

При использовании Samba возникает проблема отображения атрибутов DOS на права доступа UNIX. Разработчики Samba поступили достаточно оригинально. Для задания атрибута "архивный" они используют бит "право на выполнение владельцем", для атрибута "системный" - бит "право на выполнение группой", и для атрибута "скрытый" - бит "право на выполнение всеми остальными" (Рис.4). С атрибутом "только для чтения" все проще, так как его можно реализовать средствами UNIX напрямую, установив право пользователя на чтение, но не на запись (маска 0400 - r--------). Определенные во FreeBSD права доступа для группы и всех остальных также важны для Samba, поскольку каждый пользователь после аутентификации соотносится с некоторой группой FreeBSD. То есть если на сервере пользователи pasha и oleg входят в одну группу staff, то для того, чтобы они могли считывать и записывать информацию в общие файлы, у файлов для группы staff должны быть права rw-.

Отображение атрибутов DOS на права доступа Unix

Рис.4

Для отображения атрибутов DOS используются несколько опций Samba.mask вводит маску для вновь создаваемых файлов (по умолчанию 0744, т.е. атрибут "архивный" выставлен - rwxr--r--). Для вновь создаваемых каталогов используется опция directory mask (по умолчанию 0755 - rwxr-xr-x).

Кроме того, специальные маски force create mode (по умолчанию 000) и force directory mode (по умолчанию 000), которые принудительно выставляют права доступа для файлов при любых манипуляциях с ними. Например, установка force create mode = 100 приведет к тому, что файлы на диске всегда будут иметь атрибут "архивный" (--x------).

Права доступа Windows NT реализуются за счет отображения учетных записей пользователей и групп NT в учетные записи пользователей и групп FreeBSD. Samba поддерживает, хотя и с ограничениями, списки контроля доступа (ACL) Windows NT. За этот сервис отвечает опция nt acl support (она активизирована по умолчанию).

 

2.5.4 Сервис Netbios

Как уже было сказано, имена сервера и рабочей группы/домена задаются в опциях netbios name и workgroup соответственно.

В Samba можно регламентировать, какие сетевые ресурсы сервера будут видны клиентам, т.е. доступны через функцию просмотра (browsing). Для этого используется опция browsable. По умолчанию она активизирована (значение yes), и таким образом все ресурсы видны клиентам. Однако нередко требуется, чтобы некоторые ресурсы не были видны. Например, нет смысла делать видимыми ресурсы [homes] и [printers] (чтобы они появились в сети именно под такими именами) до их преобразования в имена реальных ресурсов. Поэтому для них обычно задают browsable = no.

Важно помнить, что, даже если ресурсы не видны через программы просмотра, они тем не менее доступны, если к ним обращаться напрямую. В частности, введя путь \\Oleg\homes, пользователь получит доступ к домашнему каталогу.

Сервер Samba может выступать в качестве браузера сети и участвовать в выборах LMB (Local Master Browser). Используемая для этого глобальная опция local master активизирована по умолчанию (значение yes). Кроме того, глобальная опция os level позволяет задать приоритет сервера Samba в процессе выборов LMB. Бит Preferred Master Browser выставляется глобальной опцией preferred master. По умолчанию os level = 0 и peferred master = no, поэтому сервер Samba не может выиграть выборы. Чтобы сервер наверняка получил полномочия LMB, необходимо задать:

[global]level = 34master = yesmaster = yes

Сервер Samba может выполнять функции DMB (основной браузер домена (Domain Master Browser)) с помощью опции domain master = yes (по умолчанию она не активизирована), но для этого необходимо, чтобы сервер одновременно был и LBM. И еще одно требование: только главный контроллер домена NT может быть DMB. В противном случае в сети будут наблюдаться непонятные сбои.

В отличие от Windows, находящиеся в различных подсетях LMB на базе Samba могут общаться между собой, т.е. синхронизировать свои списки просмотра, не прибегая к помощи DMB. Это достигается с помощью глобальной опции remote browse sync, где перечисляются IP-адреса LMB других подсетей. Синхронизация списков просмотра происходит между LMB напрямую. При такой схеме в качестве LMB могут выступать только серверы Samba.

Что касается службы имен NetBIOS, то сервер Samba может использовать файлы lmhosts, hosts (и службы DNS в целом), широковещательную рассылку (bcast) и серверы имен WINS. Порядок разрешения имен задается глобальной опцией name resolve order, по умолчанию она имеет вид:

[global]resolve order = lmhosts host wins bcast

Если предполагается использовать серверы имен, то значение wins необходимо переместить ближе к началу.адреса внешних серверов WINS задаются глобальной опцией wins server.

Сервер Samba можно назначить основным сервером WINS (NBNS) с помощью глобальной опции:

[global]support = yes

 

2.5.5 Система аутентификации

Чтобы пользователь мог получить доступ к сервису Samba, на сервере FreeBSD должна иметься учетная запись пользователя. Это справедливо для любого режима контроля доступа к сетевым ресурсам (на уровне пользователя или на уровне ресурса).

Исключение составляет случай гостевого входа, задаваемый опцией guest ok = yes. В данном варианте если во FreeBSD нет учетной записи пользователя или он ввел неверный пароль, то его регистрируют в системе с гостевыми полномочиями. С помощью опции guest account устанавливается имя пользователя FreeBSD, которому соответствуют полномочия гостя. По умолчанию это nobody - пользователь с минимальными правами в UNIX.поддерживает как передачу пароля в незашифрованном виде (plain text), так и с использованием средств шифрования LAN Manager и NT. Режим передачи пароля регламентируется глобальной опцией encrypt passwords. По умолчанию пароль передается в открытом виде (encrypt passwords = no). При аутентификации с передачей пароля в открытом виде пользователь сообщает свое имя (login) и пароль на сервер, а FreeBSD (а не Samba) берет на себя все действия по аутентификации. Однако передача незашифрованного пароля по сети представляет угрозу для безопасности и к тому же требует редактирования реестра на клиентах Windows 95 OSR2, Windows 98 и Windows NT 4.0 SP3.

Использование шифрования при аутентификации порождает свои проблемы. Рассмотрим случай, когда аутентификация производится на самом сервере. Поскольку схемы аутентификации NT и UNIX не совместимы, а пароли в них обрабатываются по совершенно разным алгоритмам с использованием необратимых функций кэширования, то единственный приемлемый подход состоит в поддержании двух независимых баз учетных записей: для FreeBSD и для Samba. Соответственно, учетную запись для каждого нового пользователя необходимо регистрировать в обеих базах, что несколько затрудняет администрирование.

При использовании шифрования Samba хранит учетные записи в файле smbpasswd. Следует отметить, что при передаче пароля в открытом виде или если аутентификация производится не на локальном сервере Samba, задействовать /etc/smbpasswd нет необходимости. /etc/smbpasswd является аналогом /etc/passwd, но хранит данные в другом формате. Для управления базой Samba имеется специальная утилита smbpasswd (она расположена в /usr/bin). Например, учетную запись пользователя oleg в Samba (но только после создания учетной записи в UNIX) можно создать с помощью команды:

/usr/bin/smbpasswd - a oleg

Вторая проблема администрирования двух баз данных - синхронизация паролей при изменении одного из них. Если пользователь работает в среде UNIX, то здесь трудностей не возникает, поскольку для этого можно написать простую программу на shell, состоящую из двух строк. Если пользователь меняет пароль с клиентского места Windows через сервис SMB, то синхронизацию паролей обеспечивает глобальная опция unix password sync, но по умолчанию она отключена. Кроме того, надо задать программу, ответственную за изменение пароля во FreeBSD, а также строку переговоров (chat) между Samba и программой изменения паролей FreeBSD. Эти параметры задаются в глобальных опциях passwd program и passwd chat соответственно.

[global]passwords = yespassword sync = yesprogram = /usr/bin/passwd %uchat = *password* %n\n

*password* %n\n *success*

2.5.6 Типы доступа

В Samba реализованы четыре типа доступа к ресурсам: на уровне отдельного ресурса, на уровне пользователя, на уровне сервера и на уровне домена. Тип доступа определяется опцией security, которая может принимать значения share (ресурс), user, server, domain. По умолчанию в Samba 2. x реализован доступ на уровне пользователя.

При доступе на уровне ресурса, аутентификация производится на основе имени и пароля пользователя (за исключением случая гостевого входа, см. выше). То есть, не применяя специальных мер (за счет директив config file и include), разным ресурсам невозможно назначить различные пароли.

Тип доступа на уровне пользователя применяется как в случае, когда сервер Samba является независимым, так и в случае, когда сервер является главным контроллером домена NT, поскольку именно на нем хранится база учетных записей.

Доступ на уровне сервера вводится, когда сервер Samba доверяет аутентификацию пользователя другому серверу (серверу паролей), а он в свою очередь может быть сервером Samba, или NT, или даже PDC. В этом случае необходимо задать глобальную опцию password server, где должны быть перечислены имена NetBIOS серверов паролей.

Доступ на уровне домена подразумевает, что сервер Samba является членом (но не контроллером) домена. При этом в опции password server должны быть указаны контроллеры домена.

При доступе на уровне сервера и на уровне домена нет нужды создавать и вести базу пользователей в /etc/smbpasswd, так как аутентификация фактически происходит не на сервере Samba. Тем не менее все пользователи должны быть зарегистрированы в базе FreeBSD /etc/passwd.

Ниже рассматриваются действия, которые администратор должен выполнить для включения сервера Samba в состав домена NT.

2.5.7 Samba как главный контроллер домена

Сервер Samba может выполнять роль PDC только в случае, определения доступа на уровне пользователя security = user. Кроме того, регистрация (netlogon) пользователей в домене должна быть разрешена с помощью глобальной опции domain logons = yes. Далее, сервер должен взять на себя функции основного браузера домена DMB. Наконец, администратор должен создать сетевой диск с именем netlogon для подключения пользователей к сети. Этот диск лучше назначить с опциями, перечисленными ниже. Таким образом, необходимо, как минимум, внести строки:

[global]= DOMname = KOKAlogons = yes= userpasswords = yes

# Browsinglevel = 34master = yesmaster = yesmaster = yes

[netlogon]= /export/samba/logonok = no= no

Так как в домен будут входить машины Windows NT, то их необходимо зарегистрировать в составе домена, поскольку не только пользователи и группы пользователей, но и компьютеры-члены домена должны иметь учетные записи в базе PDC (то есть, они также проходят аутентификацию). Причем при аутентификации имя машины образуется путем прибавления к имени компьютера знака $. Например, при аутентификации рабочей станции LENA будет использоваться имя LENA$.

Чтобы зарегистрировать клиента LENA в базе Samba, для него необходимо сначала создать фиктивную учетную запись в файле /etc/passwd (величины UID и GID всякий раз должны быть уникальными):$: *: 10000: 10000:: /dev/null: /bin/false

Затем нужно создать учетную запись в базе Samba:

/usr/bin/smbpasswd - a - m lena

Сервер Samba как PDC может предоставлять услуги по выполнению сценариев входа в сеть (Logon Script) и по размещению на сервере профилей пользователей.

 

2.5.8 Безопасность

Помимо средств аутентификации и разделения прав доступа к сетевым ресурсам в Samba имеются дополнительные возможности по ограничению доступа. Опция hosts allow позволяет перечислить IP-адреса (или имена DNS) отдельных клиентов или целых сетей, откуда разрешен доступ к ресурсу. Опция hosts deny, наоборот, запрещает доступ определенным клиентам и сетям. По умолчанию и та и другая опции не инициализированы, что дает право доступа с любого клиента. Следует отметить, что при применении опции hosts allow в списке обязательно должен присутствовать сам сервер (localhost).

Опции valid users и invalid users позволяют назначать или запрещать пользователям права доступа к ресурсу явным образом. Опция admin users перечисляет пользователей с правами root на данный ресурс.

Если к ресурсу установлен доступ "только для чтения" (writeable = no), то с помощью опции write list можно задать список пользователей с правом записи в данном ресурсе, и наоборот, при выставленной опции writeable = yes опция read list позволяет перечислить пользователей с правом только на чтение информации.

В Samba реализована мощная система протоколирования событий, при необходимости позволяющая отслеживать буквально любые действия пользователей.

 

2.5.9 Сервис файлов

Имена файлов и каталогов трактуются в UNIX и DOS/Windows по-разному. DOS и Windows for Workgroups используют формат 8.3, причем имена переводятся в верхний регистр. Windows 9x и Windows NT допускают имена длиной до 127 символов, а при отображении может использоваться как верхний, так и нижний регистр. Однако при обработке система не чувствительна к регистру (имена Hello. bat и HELLO. BAT ссылаются на один и тот же файл). В свою очередь ОС UNIX чувствительна к регистру не только при отображении, но и при обработке файлов, а длина файла не должна превышать 255 символов.

Чтобы обеспечить совместимость отображения имен файлов между DOS/Windows и UNIX, в Samba используются глобальные опции case sensitive, short preserve case и не глобальные опции default case, preserve case, mangle case, mangled names mangling char, mangled map, значения по умолчанию выставлены так, что обычно проблем не возникает.

С помощью опций hide file и hide dot file можно определить, какие файлы будут скрытыми для клиентов Windows (т.е. будут иметь атрибут "скрытый"), а, используя опцию veto file, можно составить список вообще недоступных клиентам файлов (допускается применение метасимволов).

Ряд опций позволяют управлять поведением системы UNIX при обработке временем создания/модификации файлов и таким образом полностью эмулировать работу файловой системы Windows. К сожалению, эти опции по умолчанию выставлены не совсем верно, поэтому их рекомендуется переопределить следующим образом (опции - не глобальные):filetimes = yesdirectory create times = yesfiletime resolution = yes

Интересной особенностью Samba является поддержка национальных языков при обработке имен файлов. Если на сервере UNIX используется кодировка KOI8-R, то рекомендуется установить

[global]code page = 866set = KOI8-R

В этом случае русские имена файлов будут выглядеть одинаково, что на сервере UNIX, что на клиентах Windows.

 

2.5.10. Сервис печати

Чтобы ПО Samba могло отличать сетевой диск от сетевого принтера в разделе, где описывается ресурс печати, должна быть указана опция printable = yes. Кроме того, он должен содержать опцию printing, с описанием типа системы печати, применяемой на сервере UNIX. Кроме того, с помощью опции path необходимо задать каталог, где будет производиться промежуточная буферизация (спулинг) файлов. Если ресурс печати описывается не в разделе [printers], то имя принтера следует задать посредством опции printer. Это имя должно соответствовать реальному имени принтера из файла /etc/printcap. Опции для управления работой очередью принтера обычно задавать не требуется.

Таким образом, Samba является прямым конкурентом Windows NT/2000 с точки зрения сервиса файлов и печати. Бесплатность и высокая производительность программы в сочетании с надежной и недорогой UNIX-подобной системой FreeBSD делают тандем FreeBSD/Samba очень удобным и недорогим файл-сервером.

 


2.6 Активное сетевое оборудование


Чтобы соединить локальные сети между собой потребуется активное сетевое оборудование, такое как коммутаторы, маршрутизаторы или мосты.

Мосты и маршрутизаторы являются устройствами, позволяющими соединять локальные сети между собой и с WAN-сетями. Такое соединение дает пользователям возможность разделения данных и ресурсов в локальных и распределенных сетях. Функции мостов и маршрутизаторов похожи, однако работают эти устройства по-разному.

Мосты передают данные из одной сети в другую, не меняя содержимого исходных кадров ЛВС. Мосты обеспечивают сегментацию сети, позволяющую решить проблему насыщения полосы. Однако мосты неприемлемы для крупных сетей, поскольку они пропускают широковещательный трафик и все пакеты с неизвестными адресами. Проблему широковещательного трафика решают с помощью маршрутизаторов или коммутаторов 3 уровня.

В отличие от мостов маршрутизаторы вносят изменения в принятые кадры ЛВС и передают их после обработки в сеть, где расположен адресат. Маршрутизаторы имеют преимущества перед мостами с точки зрения обработки широковещательного трафика, позволяя изолировать его внутри одной ЛВС. Маршрутизаторы также могут быть эффективнее мостов в части использования WAN-каналов. Однако маршрутизаторы зачастую не могут обеспечить потребностей современных приложений с точки зрения обеспечения пропускной способности и качества обслуживания.

Одним из решений проблемы нехватки полосы является деление сетей на сегменты и кольца с помощью мультисегментных концентраторов и повышение производительности маршрутизаторов. Однако такое решение будет достаточно дорогим и сложным в управлении.

Более эффективным решением является использование коммутаторов, обеспечивающих выделенные соединения "точка-точка" между любыми парами сетевых устройств и многократно увеличивающих интегральную пропускную способность сети. Управление коммутаторами значительно проще по сравнению с маршрутизаторами.

Для достижения оптимальных результатов коммутаторы можно использовать в сети вместе с маршрутизаторами, применяя коммутацию и маршрутизацию там, где необходимо.

Коммутаторы обеспечивают существенное повышение производительности при незначительной стоимости. За счет этого технологии коммутации повсеместно используются вместо традиционных решений на базе концентраторов и мостов, а в некоторых случаях и маршрутизаторов, особенно при организации новых сетей и расширении существующих.

Коммутаторы второго уровня во много раз повышают производительность сетей за счет обеспечения выделенных, высокоскоростных соединений, а также существенно повышают уровень обеспечения безопасности. Приложения, которым требуется высокая пропускная способность, больше не будут замедляться из-за нехватки полосы концентраторов и значительных задержек в сети. Коммутаторы существенно снижают задержки и повышают агрегатную производительность сети. Локализация широковещательного трафика и прямые соединения точка-точка обеспечивают высокий уровень безопасности в сети.

Лучше вместе: коммутация внутри виртуальных сетей и маршрутизация между ними.

Коммутация является оптимальным решением, обеспечивающим высокую пропускную способность и малые задержки, тогда как маршрутизация позволяет проектировать сети с брандмауэрами и избавляет от необходимости передачи широковещательного трафика через низкоскоростные WAN-каналы.

Использование коммутации внутри виртуальных ЛВС обеспечивает высокоскоростную связь между станциями и серверами.

Таким образом, используя рекомендации изложенные в /1/ и основываясь на вышесказанном, делаем вывод: для ЛВС удобнее всего использовать коммутаторы внутри сегментов сети и маршрутизацию между ними, что и будет реализовано в данном проекте.

 


3. Организация информационной системы


Для обновления и расширения компьютерного парка предприятия были закуплены следующие компьютеры:

.        CELERON 1200 FCPGA2 (256 CPU cache) / ASUS TUSL2-C (i815EP BO) / 256 MB SDRAM/ HDD 40Gb UDMA Fujitsu, в количестве 20 штук;

2.      CELERON 733 FCPGA (128 CPU cache) / ASUS TUSL2-C (i815EP BO) / 128 MB SDRAM/ HDD 40Gb UDMA Seagate, в количестве 15 штук;

.        CELERON 800 FCPGA (128 CPU cache) / ASUS TUSL2-C (i815EP BO) / 128 MB SDRAM/ HDD 10Gb U-DMA Seagate, в количестве 10 штук.

Всего было закуплено 45 компьютеров. Еще два компьютера Celeron - 433MHz, RAM - 128 MB, HDD - 10 GB, NIC - Compex RL20789A из существующего компьютерного парка будут использоваться в качестве рабочих станций.

Для объединения компьютеров в подсети были приобретены коммутаторы Compex SRX 2216 Dual Speed Swich 16-port 10/100 MB/c (16 UTP) в количестве 4 штук.

Так же было произведено обновление сетевых плат. Это необходимый шаг, так как прежние сетевые платы работали со скоростью 10 Мбит/с. В связи с переводом сети на Fast Ethernet были закуплены сетевые платы Compex ReadLink RE 100TX Карта Fast Ethernet PCI 100MB/c в количестве 47 штук. Еще четыре Ethernet-карты Intel EtherExpress Pro 10/100 были закуплены для компьютера, который будет выступать в роли маршрутизатора.

В любой информационной сети должны быть предусмотрены сбои системы в связи с аварийным отключением электричества и соответствующее оборудование, которое позволит некоторое время поддерживать систему в рабочем состоянии. Для этого был приобретен источник бесперебойного питания APC Smart-UPS 1000 RM 2U+ Network Bundle. Построение информационной сети осуществлялось согласно топологии "звезда". После проведения монтажных работ по проводке кабеля категории 5е и расстановки компьютеров следует настроить компьютеры, выступающие в роли серверов. Для этого нужно произвести операции, описанные ниже.

 

3.1 Подготовка и установка ОС FreeBSD


Bсе основные готовые версии FreeBSD доступны с ftp: // ftp. FreeBSD.org/pub/FreeBSD в России - ftp.ru.

На сайте www.freebsd.org находится список серверов, с которых можно скачать свежую версию FreeBSD. Можно приобрести компакт-диск с ОС FreeBSD, для этого нужно обратиться на www.freebsd.org.ru.

 

3.1.1 Аппаратное обеспечение

В настоящий момент FreeBSD работает на персональных компьютерах от 386sx до Pentium II (386sx не рекомендуется), поддерживаются разнообразные шины: ISA, VLB, EISA и PCI. Предоставляется поддержка для основных конфигураций устройств IDE и ESDI, различных SCSI контроллеров, сетевых карт и карт последовательного доступа. Для запуска FreeBSD требуется как минимум 4 Мб RAM. Если версия системы 2.2.8 и выше, потребуется не менее 5 Мб RAM. Мы планируем использовать последний релиз 4.5, следовательно потребуется не менее 8 Мб RAM. В качестве серверов будут использоваться компьютеры с конфигурацией: Celeron 1200 MHz, RAM - 256 MB, HDD - 40 GB. Как видно, аппаратная часть во много раз превышает минимальные требования к установке ОС FreeBSD, что позволяет установить дополнительные модули (ПО Samba) и будет возможность в дальнейшем расширить систему.

 


3.1.2 Подготовка к инсталляции

Инсталлировать FreeBSD можно с различных носителей (раздела DOS, CD-ROM, через FTP и NFS). В данном проекте будет описана процедура инсталляции ОС FreeBSD 4.5-RELEASE с существующего раздела DOS.

Для начала на существующем разделе DOS необходимо создать каталоги: \BIN и положить туда все файлы из директории bin дистрибутива ОС FreeBSD C: \SRC и положить туда все файлы из директории src C: \FLOPPIES и положить туда все файлы из директории floppies C: \TOOLS и положить туда все файлы из директории tools дистрибутива FreeBSD.

Если нет дефицита места на диске C:, то можно просто скопировать все каталоги с дистрибутива ОС FreeBSD в корневой каталог C: \.

С помощью утилиты fdimage из каталога tools создаем загрузочный диск (предварительно вставив чистую отформатированную дискету в дисковод a:) из образа диска в директории C: \FLOPPIES: \TOOLS\fdimage c: \FLOPPIES\kern. flp a:

Аналогично сделаем дискету с mfsroot. flp:: \TOOLS\fdimage c: \FLOPPIES\mfsroot. flp a:

Инсталляционные дискеты подготовлены и можно приступать к установке самой операционной системы.

 

3.1.3 Установка FreeBSD

Нужно вставить дискету с kern. flp в дисковод а: и перезапустить компьютер.

После того, как система считает информацию с дискеты, она попросит вставить вторую дискету: mfsroot. flp.

Вставляем дискету и нажимаем клавишу <Enter>.

Здесь выбрав пункт меню Keymap, устанавливаем раскладку клавиатуры в Russia KOI8-R.

Выбираем в меню Custom подменю Options.

Следующим шагом нужно выбрать редактор /usr/bin/ее (можно выбрать другой редактор, например vi).

Выбераем Media, как "Инсталляция с существующей DOS-partition".

Для возврата в главное меню нужно нажать <Q>.

Теперь нужно указать программе установки область диска для инсталляции.

Выбираем пункт Partition. Программа сообщит, какие есть на диске разделы и их тип. С помощью команды <С> создаем раздел (в системе FreeBSD он именуется - "слайс"). На запрос о количестве секторов, выделяемых под раздел, можно нажать <ОК>, если под ОС FreeBSD планируется использовать все оставшееся место, либо указать их количество. Размер можно указать в мегабайтах, поставив букву <М>. На запрос о типе файловой системе набираем 165 и нажимаем <ОК>. Для возврата в главное меню нужно нажать <Q>.

Далее нужно на созданном слайсе определить файловые системы. Для этого выбираем в меню пункт Label. Нажав <А> программа автоматически все сделает сама.

Для возврата в главное меню нужно нажать <Q>.

Следует указать, что программа установки FreeBSD должна установить BootManager. Это нужно сделать для выбора операционной системы при загрузке компьютера.

Следующий пункт - выбор инсталлируемого пакета. Рекомендуется устанавливать каталог /src с дистрибутива FreeBSD, который содержит исходные коды ядра, они понадобятся при его переконфигурации. Можно этого не делать, а указать Distribution >> Custom >> bin, т.е. установить только исполняемые файлы.

Выбераем Commit.

Программа установки спрашивает, вернуться, чтобы сделать изменения или нет.

С уверенностью, что все сделали правильно - нажимаем <ОК>.

Теперь следует разрешить мягкие обновления. Для этого необходимо загрузиться в однопользовательском режиме. Чтобы выйти из многопользовательского режима необходимо набрать в командной строке

# shutdown now

# return

# exit

Нам этого не потребуется, так как инсталляция происходит в однопользовательском режиме.SOFTUPDATES # Разрешить мягкие обновления для файловых систем- n enable /- n enable /usr- n enable /var- n enable /tmp

Затем следует перегрузиться:

На этом установка ОС FreeBSD закончена.

 

3.2 Настройка ПО Samba


Для настройки нужно скопировать с ftp-сервера или с сайта www.samba.org бинарные файлы или исходные тексты.

Конфигурирование и сборка ПО Samba при использовании исходных текстов с поддержкой syslog осуществляется следующим образом:: /usr/src# tar - xvzf samba-2.2 tar. gz: /usr/src# cd samba-2.2 tar/source: /usr/src/samba-2.2 tar/source#. /configure - -prefix=/usr/local/samba - -with-syslog: /usr/src/samba-2.2 tar/source# make: /usr/src/samba-2.2 tar/source# make install

Здесь опция "--prefix=/usr/local/samba" задаёт путь установки. Для получения полного списка опций нужно набрать:: /usr/src/samba-2.2 tar/source#. /configure - -help | more

После этого копируется файл smb. conf c установками по умолчанию:: /usr/src/samba-2.2 tar/source#cp. /examples/smb. conf. default /usr/local/samba/lib/smb. conf

Далее конфигурируется SWAT (Samba Web-based Administrative Tool):

в файл /etc/inetd. conf добавляеться строка:

#stream tcp nowait.400 root /usr/local/samba/bin/swat swat

#

в файл /etc/services добавляеться строка:

#901/tcp # Samba web-based administrative tool

#

Затем перезапускаетя daemon inetd. При обращении к #"607726.files/image005.gif">

Рис.5

Для получения динамических настроек в окне конфигурации TCP/IP нужно поставить галочку в соответствующем окне, как показано на рис.5.

4. Настройка маршрутизатора и коммутаторов


Подключение коммутаторов осуществляется путем соединения сетевых плат компьютеров с портами коммутатора. Для построения сети были выбраны коммутаторы Compex SRX 2216 Dual Speed Swich 16-port 10/100 Mbit/c (16 UTP). Характеристики коммутаторов приведены в табл.4.1

Таблица 4.1

Характеристики коммутатора Compex SRX 2216 Dual Speed Swich

Серия

ReadySwitch

Описание

Неуправляемый автономный коммутатор 2 уровня

Uplink

1 порт переключается в режим uplink (служит для соединения hub с помощью патч-корда)

Скорость

Все порты - 10/100 Мбит/сек

MAC Address Table

Поддерживает 2K MAC адресов

Буфер

4 мегабайта

Блок питания

Внутренний

Потребление энергии

25 Ватт

Размеры

43.2 x 20.2 x 4.4 см, возможна установка в стойку 19"

Прочее

Свободный слот для модуля 100FX (оптоволокно) или AUI


В качестве сетевых плат будут использоваться Compex ReadLink RE 100TX Карта Fast Ethernet PCI 100 Mbit/c. Характеристика выбранной сетевой платы приведена в табл.4.2

Таблица 4.2

Характеристика сетевого интерфейса Compex ReadLink RE 100TX

Скорость

10/100 Мбит/сек

Boot ROM

Панель для установки микросхемы

Разъемы

UTP

Интерфейс

PCI

Поддержка ОС

Windows 3.11, 95/98, 2000, NT 3.51/4.0; Novell NetWare; OS/2 Warp; UNIX; Linux Red Hat

Прочее

Поддержка Wake-on-LAN


В качестве маршрутизатора будет использоваться специально выделенный компьютер (ранее используемый как рабочая станция) марки Intel - 486SX/ 33MHz, RAM - 8MB, HDD - 340 MB. Компьютер, работающий под управлением ОС FreeBSD, может в полном объеме выполнять функции маршрутизатора. Для этого требуется оснастить компьютер четырьмя интерфейсами, то есть четырьмя сетевыми платами фирмы Intel EtherExpress Pro 10/100.

Характеристика сетевой платы Intel EtherExpress Pro 10/100 приведена в табл.4.3

Таблица 4.3

Характеристика сетевого интерфейса Intel EtherExpress Pro 10/100

Скорость

10/100 Мбит/сек

Boot ROM

Панель для установки микросхемы

Разъемы

UTP

Интерфейс

PCI

Поддержка ОС

Windows 95/98, 2000, NT 3.51/4.0; Novell NetWare; UNIX; Linux Red Hat


Таким образом, стоимость маршрутизатора для предприятия будет равна стоимости 4 сетевых плат (что в десять раз дешевле), поскольку затрат на приобретение нового маршрутизатора не будет, а программное обеспечение распространяется бесплатно.

В данном проекте маршрутизация осуществляется согласно статической таблице, так как приходится маршрутизировать всего 4 потока данных и динамическая маршрутизация не понадобится.

Для работы маршрутизатора следует провести следующие настройки:

В файле etc/rc. conf_rl0="inet 192.168.1.1 netmask 255.255.255.224 10BaseT/UTP <full-duplex>_rl1="inet 192.168.2.1 netmask 255.255.255.224 10BaseT/UTP <full-duplex>_rl2="inet 192.168.3.1 netmask 255.255.255.224 10BaseT/UTP <full-duplex>_rl3="inet 192.168.4.1 netmask 255.255.255.224 10BaseT/UTP <full-duplex>

Таким образом, сетевым адаптерам присваиваются IP-адреса. Следующим шагом в файле user/local/etc/rcd следует добавить маршруты:add - net 192.168.1.0/24 192.168.1.1add - net 192.168.2.0/24 192.168.2.1add - net 192.168.3.0/24 192.168.3.1add - net 192.168.4.0/24 192.168.4.1

В результате, после запуска системы таблица маршрутизации можно посмотреть. Для этого в командной строке следует набрать команду- r

Вид таблицы маршрутизации представлен в табл.4.4

Таблица 4.4

Таблица статической маршрутизации.

Distination

Gateway

Flags

Use

Netif

Expire

192.168.1.0

192.168.1.1

S

52

fxp0


192.168.2.0

192.168.2.1

S

0

Fxp1


192.168.3.0

192.168.3.1

S

10

Fxp2


192.168.4.0

192.168.4.1

S

3

Fxp3



Маршрут задается парой адресов: "адресом назначения" (destination) и "сетевым шлюзом" (gateway). Таким образом, если сообщение передается из подсети 192.168.1.0, то оно попадает на шлюз по умолчанию 192.168.1.1 и аналогично для остальных сетей: если сообщение передается из подсети 192.168.3.0, то оно попадает на шлюз по умолчанию 192.168.3.1.

В табл.4.5 приведены краткие описания значений некоторых флагов.

Таблица 4.5

Описание значений флагов.

U

 Up: Маршрут актуален.

H

 Host: Адресом назначения является отдельный хост.

G

 Gateway: Посылать все для этого адреса назначения на указанную удаленную систему, которая будет сама определять дальнейший путь прохождения информации.

S

 Static: Маршрут был настроен вручную, а не автоматически сгенерирован системой.

C

 Clone: Новый маршрут сгенерирован на основе указанного для машин, к которым мы подключены. Такой тип маршрута обычно используется для локальных сетей.

W

 WasCloned: Указывает на то, что маршрут был автоматически сконфигурирован на основе маршрута в локальной сети (Clone).

L

 Link: Маршрут включает ссылку на аппаратный адрес ethernet.


Колонка "Use" указывает, сколько пакетов прошло через шлюз. А колонка "Netif " указывает интерфейс по которому передается трафик. "Expire" содержит значение - параметр таймаута, используемый в случае неудачной попытки услышать соответствующий хост в течении некоторого периода времени. В таком случае маршрут будет автоматически удален. Такие хосты поддерживаются при помощи механизма, известного как RIP (Routing Information Protocol), который вычисляет маршруты к хостам локальной сети при помощи определения кратчайшего расстояния. Это относится к динамической маршрутизации, поэтому в нашем случае колонка "Expire" пуста.

Статическая маршрутизация является функцией IP и требует, чтобы таблицы маршрутизации создавались и изменялись вручную. При изменении маршрута статические маршрутизаторы не обмениваются информацией о таком изменении между собой. В нашем случае изменение таблицы маршрутизации возможно в будущем, при подключении к глобальной сети Internet. Тогда появляется возможность установить Farewall на компьютере под управлением FreeBSD, что и представляет собой настроенный маршрутизатор.

5. Безопасность жизнедеятельности и гражданская оборона


5.1 Охрана труда. Обоснование и расчет электрического освещения производственных помещений


Нормальные условия работы в производственных помещениях могут быть обеспечены лишь при достаточной освещенности рабочих мест, проходов и проездов в любое время суток.

Недостаточное или неправильное освещение вызывает переутомление зрения, снижение работоспособности и может стать причиной несчастного случая.

Нормальное освещение повышает производительность труда, качество продукции и снижает появление профессиональных заболеваний.

Недостаток естественного света восполняется искусственным освещением.

Основные гигиенические требования к искусственному освещению производственных помещений сводятся к тому, чтобы:

.        света было достаточно (он не должен слепить и оказывать иного неблагоприятного влияния на человека и на среду);

2.      осветительные приборы были бы легко управляемыми и безопасными, а их расположение способствовало функциональному зонированию помещений;

.        выбор источников света производился с учетом восприятия цветового решения интерьера, спектрального состава света и благоприятного биологического воздействия светового потока.

В производственных помещениях предусматривается устройство естественного, искусственного и совмещенного освещений. Наименьшая допустимая освещенность в производственных помещениях и на рабочих местах не должна быть меньше предусмотренной санитарными нормами.

Для того чтобы дать оценку имеющейся освещенности в производственном помещении, необходимо произвести соответствующие замеры и полученные результаты сопоставить с нормами.

Правильное искусственное освещение не может быть выполнено произвольной установкой источников света. Для этого необходимо произвести надлежащие расчеты.

Помещения с постоянным пребыванием людей должны иметь, как правило, естественное освещение. Естественное освещение подразделяется на боковое, верхнее и верхне-боковое (комбинированное). Установленные расчетом размеры световых проемов допускается изменять на +5, - 10%.

Неравномерность естественного освещения помещений производственных и общественных зданий с верхним или верхним и естественным боковым освещением и основных помещений для детей и подростков при боковом освещении не должна превышать 3: 1.

Освещенность, создаваемая естественным светом, постоянно меняется в зависимости от времени дня, сезона и атмосферных условий (ясно, облачно и т.д.). Поэтому оценку естественного освещения производят не по абсолютной величине создаваемой освещенности (в люксах - лк), а по относительной, показывающей во сколько раз освещенность внутри здания меньше освещенности снаружи. Эта относительная величина e, выраженная в процентах, называется коэффициентом естественной освещенности (КЕО) и определяется по формуле:

Е= Eв / Eн *100%, (5.1)

где Ев - горизонтальная освещенность в какой-либо точке внутри помещения, освещаемой светом видимого через проем участка небосвода, лк;

Ен - одновременная освещенность наружной горизонтальной плоскости, освещаемой равномерно рассеянным светом всего небосвода, лк.

Значения коэффициентов естественной освещенности в помещениях производственных зданий должны приниматься не менее величин, представленных в таблице нормированных значений КЕО при естественном и совмещенном освещении и освещенности на рабочих поверхностях при искусственном освещении для производственных помещениях /15/.

Нормированное значение КЕО устанавливается с учетом характеристики зрительной работы, зависящей от размера объекта различения и вида естественного освещения (боковое, верхнее или верхнее и боковое).

При одностороннем боковом естественном освещении нормируются минимальное значение КЕО в точке, расположенной на расстоянии 1 м от стены, наиболее удаленной от световых проемов, на пересечении вертикальной плоскости характерного разреза помещения и условной рабочей поверхности (или пола). При двустороннем боковом освещении нормируется минимальное значение КЕО в точке посередине помещения.

При верхнем или верхнем и боковом естественном освещении нормируется среднее значение КЕО в точках, расположенных на пересечении вертикальной плоскости характерного разреза помещения и условной рабочей поверхности (или пола).

Совмещенное освещение - освещение, при котором недостаточное по нормам естественное освещение дополняется искусственным. Совмещенное освещение помещений, жилых, общественных и вспомогательных зданий допускается предусматривать в случаях, когда это требуется по условиям выбора рациональных объемно-планировочных решений, за исключением жилых комнат и кухонь жилых домов, помещений для пребывания детей, учебных и учебно-производственных помещений, кабинетов врачей и палат лечебно-профилактических учреждений, спальных помещений санаториев и домов отдыха.

Применение ламп накаливания допускается в отдельных случаях, когда по условиям технологии, среды и требований оформления интерьера использование газоразрядных источников света невозможно или нецелесообразно.

Нормированные значения КЕО, %, при совмещенном освещении должны приниматься в соответствии с /15/.

Искусственное освещение в помещениях эксплуатации мониторов и ПЭВМ должно осуществляться системой общего равномерного освещения, предназначенного для освещения зоны расположения документов.

Освещенность на поверхности рабочего стола в зоне размещения рабочего документа должно быть 300-500 лк. Допускается установка светильников местного освещения для подсветки документов. Местное освещение не должно создавать бликов на поверхности экрана и увеличивать освещенность экрана на 300 лк.

Следует ограничить прямую блесткость от источников освещения, при этом яркость светящихся поверхностей (окна, светильники и т.д.), находящихся в поле зрения не должна быть более 200 кд/кв. м.

Следует ограничить неравномерность распределения яркости в поле зрения монитором и ПЭВМ, при этом отношение яркости между рабочими поверхностями не должно превышать 3: 1 - 5: 1, а между рабочими поверхностями и поверхностями стен и оборудования 10: 1.

Яркость светильников общего освещения в зоне углов излучения от 50º до 90º с вертикалью в продольной и поперечной плоскостях должна составлять не больше 200 кд/кв. м, защитный угол светильников должен быть не менее 40º.

Светильники местного освещения должны иметь не просвечивающий отражатель с защитным углом не менее 40º.

Коэффициент пульсации не должен превышать 5%, что должно обеспечиваться применением газоразрядных ламп в светильниках общего и местного освещения с высокочастотными пускорегулирующими аппаратами (ВЧ ПРА) для любых типов светильников. При отсутствии светильников ВЧ ПРА лампы многоламповых светильников или рядом расположенные светильники общего освещения включать на разные фазы трехфазной сети.

Искусственное освещение подразделяется на рабочее, аварийное, эвакуационное (аварийное освещение для эвакуации), охранное. При необходимости часть светильников того или иного вида освещения может использоваться для дежурного освещения.

Искусственное освещение следует предусматривать для всех помещений, зданий, а также участков открытых пространств, предназначенных для работы, прохода людей и движения транспорта.

Для освещения помещений, как правило, следует предусматривать газоразрядные лампы низкого и высокого давления (люминесцентных, ДРЛ, металлогалогенных, натриевые, ксеноновые). В случае невозможности и технико-экономической нецелесообразности применения газоразрядных источников света допускается использование ламп накаливания.

Искусственное освещение может применяться двух систем:

.        общее (равномерное или локализованное);

2.      комбинированное (к общему освещению добавляется местное).

Применение одного местного освещения не допускается.

Рабочее освещение должно создавать достаточную освещенность на рабочих местах.

В нормах приведена наименьшая освещенность в люксах на рабочих поверхностях и производственных помещениях для газоразрядных ламп с учетом применяемой системы освещения (общая, комбинированная) и зрительных условий работы (наименьшего размера объекта различения, степени светлоты фона, контраста объекта различения с фоном).

Измерение освещенности проводится как при общей, так и при комбинированной системах освещения, осуществляемых лампами накаливания и люминесцентными. Так как на состояние освещенности влияют высота подвески светильников над рабочей поверхностью и постоянство напряжения в сети, производится наблюдение за изменением освещенности в зависимости от этих факторов.

Всем газоразрядным источникам света присущ так называемый стробоскопический эффект, вызывающий искажение восприятия движущихся предметов. Например, если смотреть на вращающийся в пульсирующем световом потоке диск (колесо), то, как правило, кажется, что он остановился или вращается в обратную сторону. Такое явление чрезвычайно опасно, так как человек не может визуально контролировать скорость и направление движения вращающихся деталей.

Стробоскопический эффект при освещении газоразрядными источниками света объясняется тем, что при включении лампы в сеть переменного тока стандартной частоты 50 Гц имеются моменты, когда в лампе нет тока и световой поток ее значительно снижается. Это явление может быть практически полностью устранено применением двух - или трехламповых схем включения, а также питанием токами повышенных частот, например 400 Гц. При работе ламп накаливания стробоскопический эффект не наблюдается благодаря тепловой инерции нити накала.

 

5.1.1 Расчет электрического искусственного освещения

Расчет электрического искусственного освещения сводится к определению мощности ламп, потребной для создания необходимой наименьшей освещенности рабочей поверхности.

Наиболее распространенным в проектной практике является расчет освещения по методу коэффициента использования светового потока. Этот метод дает возможность подсчитать световой поток источников света, необходимый для создания нормированной освещенности горизонтальной поверхности при общем равномерном ее освещении.

В первую очередь требуется изучить исходные данные для расчета:

-       размеры производственного помещения. По исходным данным дипломного проекта ИВС расположена в пределах одного здания, а конкретнее - в пределах порядка 12 комнат. Таким образом, расчет произведем для кабинета со средними размерами: шириной - 6 м, длиной - 6 м и высотой - 3,5 м;

-       характеристика помещения. Так как по характеру проводимой работы отдел предприятия является вычислительным центром, то оно относится в разряд производственного помещения с особым режимом по чистоте воздуха;

-       характер работы. Работа на компьютере предполагает различение минимального объекта размером 0,3-0,5 мм, таким образом, согласно /15/ характер зрительной работы соответствует третьему разряду, то есть работа высокой точности. Освещенность при искусственном освещении должна составлять Етабл=300 лк (люкс). КЕО при естественном освещении должен составлять ен=1,6%;

-       система освещения - комбинированная;

-       напряжение осветительной сети U=220 В;

-       тип применяемого светильника - ПВЛМ;

-       наличие рабочих мест у стен - имеются;

-       высота рабочей поверхности - 0,75 м, свес светильника - 0,1 м.

Следующим шагом нужно определить расчетную высоту подвеса светильника, исходя из заданных:

р = H - hс - hр. п., (5.2)

где, Н - высота помещения, м;с - свес светильника, м;р. п. - высота рабочей поверхности, м.

р = 3,5 - 0,1 - 0,75 = 2,65 (м)

По выбранному типу светильника определяется рекомендуемое значение λ - отношения расстояния между светильниками Lсв к расчетной высоте их подвеса над рабочей поверхностью hр согласно /15/, затем из этого отношения определяется

св = λ* hр (5.3)

Для светильника типа ПВЛМ λ=1,4, таким образом

св = 1,4*2,65=3,71 (м).

Так как имеются рабочие места у стены, то расстояние L1 до первого ряда светильников вычисляется:

1=0.3*Lсв, (5.4), таким образом L1= 0.3*3.71=1.11 (м).

Расстояние между крайними рядами светильников по ширине и длине помещения определяются по формулам:

ш= b - 2*L1; (5.5)д=a - 2*L1; (5.6)д =Lш= 6 - 2*1,11 = 3,77;

Теперь требуется определить число светильников, которое будет установлено в заданном помещении. Сначала определим общее количество рядов по ширине и длине:

ш = Lш / Lсв + 1; (5.7)д=Lд/Lсв + 1; (5.8)

а затем общее количество светильников:общ= nш* nд (5.9)ш= nд= 3,77/3,71 + 1=2,01, примем nш= nд= 2 и nобщ= 2*2 = 4.

Таким образом, план размещения светильников можно представить как показано на рис.6.

Расположение светильников.

Рис.6

Рассчитаем световой поток одной лампы:

Фл = Емин*S*к*Z / nобщ*η, (5.10)

где Емин - минимальная нормируемая освещенность на рабочих поверхностях, лк (определяется /15/) и в данном случае равна 300 лк;- освещаемая площадь помещения 36 м2;

к - коэффициент запаса, учитывающий загрязнение ламп и светильников в зависимости от характеристики работ (принимается согласно /15/) в данном случае равен 1,3;- отношение средней освещенности к минимальной, при освещении газоразрядными лампами Z=1,1;

η - коэффициент использования светового потока (в долях единицы), то есть отношение светового потока, падающего на расчетную поверхность, к суммарному потоку всех ламп.

Коэффициент использования зависит от характеристики светильника, размеров помещения, окраски стен и потолка. Поэтому для его определения необходимо знать коэффициенты отражения потолка ρп, стен ρст, рабочей поверхности ρрп и индекс помещения і. Из /15/ ρп=70%, ρст=50%, ρрп=30%.

Индекс помещения подсчитывается по фомуле:

і= a*b / hр* (a+b), (5.11)

где a - длина помещения, м;- ширина помещения, м;р - расчетная высота подвеса светильника над рабочей поверхностью, м.

і= 6*6/2,65* (6+6) =1,13

По рассчитанному коэффициенту і=1,13, а так же табличным значениям ρп=70%, ρст=50%, ρрп=30% согласно /15/ определили η = 54%. Так как эта величина измеряется в доля единицы, то в формулу расчета светового потока подставляем 0,54:

Фл расч= 300*36*1,3*1,1/4*0,54 = 7150 (лк)

По напряжению на лампе Uл и световому потоку одной лампы Фл нужно выбрать стандартную лампу необходимой мощности из /15/. Выбираю лампу типа ЛДЦ 80, так как она не искажает световой поток и удовлетворяет всем параметрам. Ее характеристики: напряжение Uл= 102 В, ток I=0,87 А, мощность P=80 Вт, световой поток Фл табл=3740 Лм (Лм = лк*м2).

По требованиям /15/ разность между Фл табл и Фл расч допускается в пределах от - 10% до +20%. Таким образом, в один светильник необходимо поставить 2 лампы ЛДЦ 80, тогда световой поток будет равен Фл= 3740*2 = 7480, что превышает Фл расч на 4,5%, а значит находится в допустимых пределах.

Теперь определим действительную освещенность и сравним с табличным значением:

Едейств= Фл табл*nобщ*η / S*k*Z (5.12)

С увеличением количества ламп в светильнике, увеличивается и общее количество ламп. Внесем соответствующие изменения и подставим значения:

Едейств= 3740*4*2*0,54/36*1,3*1,1 = 313,8 (лк)

Едейств>Емин, значит принятого числа светильников достаточно для обеспечения нормального освещения.

 

5.2 Гражданская оборона. Действия по сигналам оповещения гражданской обороны


Среди защитных мероприятий гражданской обороны, осуществляемых заблаговременно, особо важное место занимает организация оповещения органов гражданской обороны, формирований и населения об угрозе нападения противника и о применении им ядерного, химического, бактериологического (биологического) оружия и других современных средств нападения. Особое значение оповещение приобретает в случае внезапного нападения противника, когда реальное время для предупреждения населения будет крайне ограниченным и исчисляться минутами.

По данным зарубежной печати, считается, что своевременное оповещение населения дает возможность укрытия его за 10-15 мин после оповещения; позволит снизить потери людей при внезапном применении противником оружия массового поражения с 85 % до 4-7%. Поэтому защита населения от оружия массового поражения даже при наличии достаточного количества убежищ и укрытий будет зависеть от хорошо организованной системы оповещения, организация которой возлагается на штабы гражданской обороны.

Современные системы дальнего обнаружения позволяют быстро определить не только место и направление движения носителя, но и время его подлета. Это обеспечивает передачу сигнала по системе оповещения до штабов гражданской обороны и объектов.

Оповещение организуется для своевременного доведения до органов гражданской обороны, формирований и населения сигналов, распоряжений и информации гражданской обороны об эвакуации, воздушном нападении противника, радиационной опасности, химическом и бактериологическом (биологическом) заражении, угрозе затопления, начале рассредоточения и др.

Эти сигналы и распоряжения доводятся до штабов гражданской обороны объектов централизованно. Сроки доведения их имеют первостепенное значение. Сокращение сроков оповещения достигается внеочередным использованием всех видов связи, телевидения и радиовещания, применением специальной аппаратуры и средств для подачи звуковых и световых сигналов.

Все сигналы передаются по каналам связи и радиотрансляционным сетям, а также через местные радиовещательные станции. Одновременно передаются указания о порядке действий населения и формирований, указываются ориентировочное время начала выпадения радиоактивных осадков, время подхода зараженного воздуха и время подхода зараженного воздуха и вид отравляющих веществ.

Сигналы, поданные вышестоящим штабом, дублируются всеми подчиненными штабами.

С целью своевременного предупреждения населения городов и сельских населенных пунктов о возникновении непосредственной опасности применения противником ядерного, химического, бактериологического (биологического) или другого оружия и необходимости применения мер защиты установлены следующие сигналы оповещения гражданской обороны: "Воздушная тревога", "Отбой воздушной тревоги"; "Радиационная опасность"; "Химическая тревога".

В штабах гражданской обороны городов могут устанавливаться разнообразная сигнальная аппаратура и средства связи, которые позволяют с помощью пульта включать громкоговорящую связь и квартирную радиотрансляционную сеть, осуществлять одновременный вызов руководящего состава города и объектов народного хозяйства по циркулярной телефонной сети, принимать, распоряжения вышестоящих штабов и передавать свои распоряжения и сигналы оповещения штабам гражданской обороны объектов и населению.

По этому сигналу объекты прекращают работу, транспорт останавливается и все население укрывается в защитных сооружениях. Рабочие и служащие прекращают работу в соответствии с установленной инструкцией и указаниями администрации, исключающими возникновение аварий. Там, где по технологическому процессу или требованиям безопасности нельзя остановить производство, остаются дежурные, для которых строятся индивидуальные убежища.

Сигнал "Воздушная тревога" может застать людей в любом месте и в самое неожиданное время. Во всех случаях следует действовать быстро, но спокойно, уверенно и без паники. Строгое соблюдение правил поведения по этому сигналу значительно сокращают потери людей.

Сигнал "Отбой воздушной тревоги" передается органами гражданской обороны. По радиотрансляционной сети передается текст: "Внимание! Внимание, граждане! Отбой воздушной тревоги! Отбой воздушной тревоги!". По этому сигналу население с разрешения комендантов (старших) убежищ и укрытий покидает их. Рабочие и служащие возвращаются на свои рабочие места и приступают к работе.

В городах (районах, по которым противник нанес удары оружием массового поражения) для укрываемых передается информация об обстановке, сложившейся вне укрытий, о принимаемых мерах по ликвидации последствий нападения, режимах поведения населения и другая необходимая информация для последующих действий укрываемых.

Сигнал "Радиационная опасность" подается в населенных пунктах и районах, по направлению к которым движется радиоактивное облако, образовавшееся при взрыве ядерного боеприпаса.

По сигналу "Радиационная опасность" необходимо надеть респиратор, противопылевую тканевую маску или ватно-марлевую повязку, а при их отсутствии - противогаз, взять подготовленный запас продуктов, индивидуальные средства медицинской защиты, предметы первой необходимости и уйти в убежище, противорадиационное или простейшее укрытие.

Сигнал "Химическая тревога" подается при угрозе или непосредственном обнаружении химического или бактериологического нападения (заражения). По этому сигналу необходимо быстро надеть противогаз, а в случае необходимости - и средства защиты кожи и при первой же возможности укрыться в защитном сооружении.

Если защитного сооружения поблизости не окажется, то от поражения аэрозолями отравляющих веществ и бактериальных средств можно укрыться в жилых, производственных или подсобных помещениях.

Если будет установлено, что противник применил бактериологическое (биологическое) оружие, то по системам оповещения население получит рекомендации о последующих действиях. Необходимо быть предельно внимательными и строго выполнять распоряжения органов гражданской обороны. О том, что опасность нападения противника миновала, и о порядке дальнейших действий распоряжение поступит по тем же каналам связи, что и сигнал оповещения.

 

5.2.1 Основной способ оповещения населения. Содержание речевой информации

Основным способом оповещения населения о возникновении опасности и порядке действий является передача сообщения средствами радио и телевидения.

При аварии на химическом объекте содержание информации может быть следующим: "Внимание! Говорит штаб гражданской обороны города. Граждане! Произошла авария на комбинате с выбросом сильнодействующего ядовитого вещества - аммиака. Облако зараженного воздуха распространяется в направлении поселка Заречный. Населению улиц Новая, Зеленая, Садовая находиться в зданиях. Провести герметизацию своих жилищ.

Населению улиц Заводская, Кузнечная немедленно покинуть жилые дома, учреждения, учебные заведения и выйти в район озера Ближнее. В дальнейшем действовать в соответствии с нашими указаниями".

При аварии на АЭС: "Внимание! Говорит штаб гражданской обороны района. Граждане! Произошла авария на атомной электростанции. В районе поселка Новоспасский ожидается выпадению радиоактивных веществ. Населению поселка находиться в жилых домах. Провести герметизацию помещений и подготовиться к эвакуации. В дальнейшем действовать в соответствии с указаниями штаба ГО".

При наводнении: "Внимание! Говорит штаб гражданской обороны района. Граждане! В связи с внезапным повышением уровня воды в реке Серебрянка ожидается подтопление домов в районе улиц Некрасова, Речная, Железнодорожная и поселка Северный. Населению этих улиц и поселка собрать необходимые вещи, продукты питания на 3 дня, воду, отключить газ и электроэнергию и выйти в район школы № 7 для регистрации на сборном эвакопункте и отправки в безопасные районы".

Примерно такие же сообщения будут переданы в случае угрозы других аварий, катастроф и стихийных бедствий.

При возникновении угрозы нападения противника местными

органами власти и штабами ГО с помощью средств массовой информации передаются населению постановления или распоряжения о порядке действий. С этого времени радиоточки, телевизоры должны быть постоянно включены для приема новых сообщений. В кратчайшие сроки население должно принять необходимые меры защиты и включиться в выполнение мероприятий, проводимых ГО.

Очень важно сразу уточнить место ближайшего убежища (укрытий) и пути подхода к нему. Если поблизости нет защитных сооружений, нужно немедленно приступить к строительству простейшего укрытия либо приспособлению заглубленных помещений (даже 1-го этажа каменного здания) под ЯРУ. В этой работе активное участие должны также принять учащиеся старшеклассники.

Необходимо привести в готовность средства индивидуальной защиты, приспособить подручные средства, достать домашнюю аптечку.

В жилых помещениях следует провести герметизацию окон, дверей, противопожарные мероприятия; принять меры к предохранению продуктов питания, воды от возможного заражения (загрязнения). Необходимо подготовить все самое необходимое на случай эвакуации.

В последующем при непосредственной опасности ударов противника с воздуха подается сигнал "Воздушная тревога!" - Ему предшествует сигнал "Внимание всем!", а затем средствами радио и телевидения будет передано: "Внимание! Внимание! Говорит 101 штаб гражданской обороны. Граждане! Воздушная тревога! Воздушная тревога! Отключите свет, газ, воду, погасите огонь в печах. Возьмите средства индивидуальной зашиты, документы, запас продуктов и воды. Предупредите соседей и, при необходимости, помогите больным и престарелым выйти на улицу. Как можно быстрее дойдите до защитного сооружения или укройтесь на местности.

Соблюдайте спокойствие и порядок. Будьте внимательны к сообщениям гражданской обороны"!

После сигнала "Внимание всем!" может последовать и другая информация, например о надвигающейся угрозе радиоактивного или бактериологического заражения. И в этих случаях будет передано краткое сообщение о порядке действий и правилах поведения.

 

5.2.2 Действия населения в зоне радиоактивного заражения (загрязнения)

При нахождении в зоне радиоактивного заражения (загрязнения) необходимо строго выполнять режим радиационной защиты, устанавливаемый штабом ГО в зависимости от степени заражения (загрязнения) района. Если по какой-либо причине не поступит сообщения ГО, некоторое время можно руководствоваться следующим.

В зоне умеренного заражения население находится в укрытии, как правило, несколько часов, после чего оно может перейти в обычное помещение. Из дома можно выходить в первые сутки не более чем на 4 часа.

В зоне сильного заражения люди должны быть в убежищах (укрытиях) до трех суток, при крайней необходимости можно выходить на 3-4 ч в сутки. При этом необходимо надевать средства защиты органов дыхания и кожи.

В зоне опасного заражения люди должны быть в укрытиях и убежищах трое суток и более, после чего можно перейти в жилое помещение и находиться в нем не менее четырех суток. Выходить из помещения на улицу можно только на короткий срок (не более чем на 4 ч в сутки).

В зоне чрезвычайно опасного заражения пребывание населения возможно только в защитных сооружениях с коэффициентом ослабления дозы облучения около 1000.

Во всех случаях при нахождении вне укрытий и зданий применяются средства индивидуальной защиты. В качестве профилактического средства, уменьшающего вредное воздействие радиоактивного облучения, используются радиозащитные таблетки из комплекта АИ.

 

5.2.3 Типовые режимы радиационной защиты

Режим радиационной защиты - это порядок действий населения, применения средств и способов защиты в зонах радиоактивного заражения (в результате ядерного взрыва), предусматривающий максимальное уменьшение возможных доз облучения.

Режим радиационной защиты № 1 применяется в населенных пунктах в основном с деревянными постройками, обеспечивающими ослабление радиации в 2 раза, и ПРУ, ослабляющими радиацию в 50 Раз (перекрытые щели, подвалы).

Режим радиационной защиты № 2 предусматривается для населенных пунктов с каменными одноэтажными постройками, обеспечивающими ослабление радиации в 10 раз, и ПРУ, ослабляющими радиацию в 50 раз.

Режим радиационной защиты № 3 разработан для населенных пунктов с многоэтажными каменными постройками, обеспечивающими ослабление радиации в 20-30 раз, и ПРУ, ослабляющими радиацию в 200-400 раз (подвалы многоэтажных зданий).

Каждый режим радиационной защиты определяет время, в течение которого необходимо постоянно находиться в ПРУ (1 этап), затем поочередно в ПРУ и дома (2 этап) и, наконец, преимущественно дома с кратковременным выходом на улицу по неотложным делам в целом не более чем на 1 ч (3 этап).

В районах сильного радиоактивного загрязнения в результате аварии на АЭС население должно быть эвакуировано в максимально короткие сроки. Жители прилегающих районов, где мощность дозы излучения не превышает 5 мР/ч (так называемых районов строгого контроля), должны выполнять гигиенические требования, в частности, ежедневно проводить влажную уборку жилых помещений, как можно чаще мыть руки с мылом, соблюдать правил хранения продуктов питания и воды (эти правила жизнедеятельности разработаны штабами ГО и органами здравоохранения. Этими же органами проводится полная профилактика населения.

 

5.2.4 Действие населения в зоне химического заражения

В зоне химического заражения следует находиться в убежище (укрытии) до получения распоряжения о выходе из него. Выходить из убежища (укрытия) необходимо в надетых средствах защиты органов дыхания.

Направление выхода из зоны заражения обозначается указательными знаками, при их отсутствии надо выходить в сторону, перпендикулярную направлению ветра.

В зоне заражения нельзя брать что-либо с зараженной местности, садиться и ложиться на землю. Даже при сильной усталости нельзя снимать средства индивидуальной защиты. Если капли ОВ, ДЯВ попали на открытые участки тела или одежду надо немедленно провести их обработку с помощью ИПП.

После выхода за пределы зоны заражения снимать средства индивидуальной защиты, и особенно противогаз, без разрешения нельзя, потому что поверхность одежды, обуви и средств зашиты может быт заражена ОВ. Получившим поражения необходимо немедленно оказать первую медицинскую помощь: ввести противоядие (антидот) обработать открытые участки тела с помощью содержимого ИПП. после чего доставить их на медицинский пункт. Все вышедшие из зоны заражения обязательно проходят полную санитарную обработку и дегазацию одежды на специальных обмывочных пунктах.

 

5.2.5 Действия населения в очаге бактериологического поражения

В очаге бактериологического поражения для предотвращения распространения инфекционных заболеваний может быть введен специальный режим - карантин или обсервация.

Население, находящееся в очаге бактериологического поражения, должно строго соблюдать требования медицинской службы гражданской обороны, особенно режим питания. В пищу разрешается употреблять только те продукты, которые хранились в холодильниках или в закрытой таре. Кроме того, как пищу, так и воду для питья следует обязательно подвергать термической обработке.

Большое значение в этих условиях приобретает постоянное содержащие в чистоте жилищ, дворов, мест общего пользования. Необходимо тщательно выполнять требования личной гигиены: еженедельно мыться, менять нательное и постельное белье, соблюдать чистоту рук, волос и т.п.

Таким образом, при оповещении органами гражданской обороны об угрозе для жизнедеятельности мирного населения применяются сигналы оповещения, которые делятся на виды, описанные выше.

При действии сигналов оповещения гражданской обороны в мирное время граждане и работники предприятия должны выполнять все предписанные правила в целях тренировки, для отработки навыков поведения в чрезвычайных ситуациях.

В военное время при действии сигналов оповещения гражданской обороны работники предприятия и остальное население обязано проявлять спокойствие и дисциплинированность, строго выполнять установленные правила.

6. Экономическая часть. расчет сметной стоимости на модернизироание информационной системы


Экономическая часть содержит расчет сметы на приобретение оборудования и материалов.

Сметная стоимость модернизирования системы - это сумма денежных средств, определяемых сметными документами, необходимых для его осуществления в соответствии с проектом.

Расходы по статье затрат для всех условий модернизирования информационной системы производятся методом непосредственного расчета. Величина затрат на закупку основных комплектующих определяется в зависимости от количества рабочих мест и конфигурации сети. Для этого необходимо предварительно составить рабочий чертеж; выяснить какое количество компьютеров следует закупать, какой кабель, сколько его потребуется, каким образом прокладывать; какое будет использоваться активное и пассивное сетевое оборудование; какое программное обеспечение; оптовые цены по действующему прейскуранту.

Согласно действующему прейскуранту цен фирмы "НЭТА" смета расходов предстанет в следующем виде:

Таблица 6.1

Смета затрат на прокладку кабельной системы

Наименование

Код

Ед. изм.

Кол.

Цена

Стоймость

1

2

3

4

5

6

элементы кабельной системы ЛВС

 

 

 

 

 

Кабель 4-х парный UTP, (NEK/CDT) Solid, 5е кат., серый (1000фт)

54554 GRY

коробка

5

$65,26

$326,30

Кабель для кроссировки, (General Cable) 1-парный, (350 м).

2113054

катушка

1

$26,49

$26,49

MX-модуль Т568А/В, 5е кат., белый, без шторки (шт.)

МХ-F-C5-02

шт.

108

$4, 20

$453,60

SM-пустой корпус на 1 порт, белый (шт.)

SM1-02

шт.

8

$3,36

$26,88

SM-корпус на 2 порта, белый (шт.)

SM2-02

шт.

50

$3,32

$166,00

19" 100-парная панель с оргонайзером кабеля и 4-пар. Коннеторами (комп.)

S110DB2-100RWM

шт.

1

$60,92

$60,92

19" 200-парная панель с оргонайзером кабеля и 4-пар. Коннеторами (комп.)

S110DB2-200RWM

шт.

2

$110,87

$221,74

1U Распределитель кабеля с крышкой в 19" стойку, белый (шт.)

S110-RWM-02

шт.

2

$27,61

$55,22

Шнур соеденительный UTP, 3.0 м, 2 х Т568А/В, кат.5е белый с синими колпачками

PC-C5C5-0300-02-B06

шт.

75

$5,04

$378,00

Вилка 4 пары кат.5е, для 110 кросса

S110P4

шт.

50

$3,88

$194,00

 

 

 

 

 

$1 909,15

короба и принадлежности

 

 

 

 

 

 (SCEPTRE TRUNKING) Короб 100х40 мм (1 м) стандартная длина - 2,92

DTR1

м

21

$6,01

$126,21

 (SCEPTRE TRUNKING) Заглушка 100х40 мм (шт.)

DEC1

шт.

8

$0,59

$4,72

 (SCEPTRE TRUNKING) Угол внутренний 100х40 мм (шт.)

DIB1

шт.

6

$0,76

$4,56

 (SCEPTRE TRUNKING) Накладка соеденительная 100х40 мм (шт.)

DCJ1

шт.

6

$0,49

$2,94

 (MAXI TRUNKING) Держатель кабеля 100 мм (шт.)

TCRS100

шт.

20

$0,29

$5,80

 (MINI TRUNKING) Короб 38х38 мм (1м) стандартная длина - 2,92м

MMT6

м

30

$2,47

$74,10

 (MINI TRUNKING) Заглушка ММТ6 (шт.)

ТЕС6

шт.

2

$0,46

$0,92

 (MINI TRUNKING) Угол внутренний ММТ6 (шт.)

ТIB6

шт.

4

$0,77

$3,08

 (MINI TRUNKING) Соеденитель ММТ6 (шт.)

TC6

шт.

11

$0,83

$9,13

 (MINI TRUNKING) Короб 38х25 мм (1м) стандартная длина - 2,92м

MMT4

м

70

$1,71

$119,70

 (MINI TRUNKING) Заглушка ММТ4 (шт.)

TEC4

шт.

12

$0,34

$4,08

 (MINI TRUNKING) Угол внутренний ММТ4 (шт.)

TIB4

шт.

12

$0,41

$4,92

 (MINI TRUNKING) Соеденитель ММТ4 (шт.)

TC4

шт.

12

$0,41

$4,92

 (MINI TRUNKING) Короб 25х16 мм (1м) стандартная длина - 2,92м

MMT2

м

45

$0,98

$44,10

 (MINI TRUNKING) Заглушка ММТ2 (шт.)

TEC2

шт.

12

$0,25

$3,00

 (MINI TRUNKING) Угол внутренний ММТ2 (шт.)

TIB2

шт.

5

$0,29

$1,45

 (MINI TRUNKING) Соеденитель ММТ2 (шт.)

TC2

шт.

20

$0,29

$5,80

 (MINI TRUNKING) Короб 16х16 мм (1м) стандартная длина - 2,92м

MMT1

м

150

$0,82

$123,00

 (MINI TRUNKING) Заглушка ММТ1 (шт.)

TEC1

шт.

18

$0, 19

$3,42

 (MINI TRUNKING) Угол внутренний ММТ1 (шт.)

TIB1

шт.

10

$0,25

$2,50

 (MINI TRUNKING) Угол внешний ММТ1 (шт.)

TEB1

шт.

1

$0,29

$0,29

 (MINI TRUNKING) Угол плоский ММТ1 (шт.)

TFB1

шт.

19

$0,25

$4,75

 (MINI TRUNKING) Соеденитель ММТ1 (шт.)

TC1

шт.

71

$0,25

$17,75

Труба PVC жесткая облегченная д.25 мм, (стандартная длина 2м) - 1м

62925.2

м

10

$0,46

$4,60

Держатель двухкомпонентный на защелках, для труб д.25 мм (шт.)

50607

шт.

12

$0,16

$1,92

Элементы крепления короба и трубы (100 шт)

 

комплект

13

$9,36

$121,68

 

 

 

 

 

$699,34

коммуникационная стойка

 

 

 

 

 

Стойка 19" стандартная, высотой 84", алюминевая (шт.)

RRA 19084

шт.

1

$186,63

$186,63

Винты для креплений п/панелей в 19" стойку, анодир. (50 шт.)

DAM-C111-50SI

комплект

1

$5,00

$5,00

Шина технологического заземления

UBBF155

шт.

1

$8,18

$8,18

Провод медный 16 мм 2 (заземление технологическое)

ПВ-3-380 1х16

м

20

$0,73

$14,60

 

 

 

 

 

$214,41

ИТОГО:

 

 

 

 

$2 822,90


Сметная стоимость монтажных работ определяется на основании объема или количества соответствующих видов работ по монтажу, исчисленных по рабочим чертежам, с соблюдением технологической последовательности производства работ и расценок на монтаж оборудования. Расценки на монтаж оборудования представлены согласно прейскуранту цен фирмы "Нэта".

Таблица 6.2

Смета затрат по монтажу оборудования

Наименование работ

Кол-во

Цена

Стоимость

Документирование

комплект

1

$200,00

$200,00

Пробивка отверстий в стенах

шт.

31

$0,71

$22,01

Монтаж короба

м

316

$0,40

$126,40

Монтаж фитингов

шт.

131

$0,04

$5,24

Монтаж труб ПВХ d=25 mm

м

31

$0,21

$6,51

Прокладка кабеля в коробе

100м

34,68

$3,44

$119,30

Прокладка кабеля в трубе d=25 mm

м

77

$0,07

$5,39

Монтаж и кремпирование розетки 2-х портовой

шт.

47

$1,90

$89,30

Монтаж органайзера горизонтального (в 19" стойку)

шт.

2

$0,07

$0,14

Монтаж кросса S110 (D 19" стойку)

шт.

3

$0,07

$0,21

Кримпирование кроссов S110

пара

378

$0,16

$60,48

Кримпирование п/кордов 4-х парных

шт.

50

$0,39

$19,50

Сборка и монтаж телекоммуникационной стойки

шт.

1

$3,60

$3,60

Прокладка и подключение провода заземления

м

20

$0,04

$0,80

Тестирование КС ЛВС

порт

108

$1,34

$144,72

ИТОГО:




$803,60

НДС 20%:




$160,72

ВСЕГО за работы:




$964,32



Таблица 6.3

Смета затрат на приобретение активного и пассивного сетевого оборудования

Наименование

Ед. изм.

Кол-во

Цена

Стоимость

компьютеры

 

 

 

 

CELERON 1200 FCPGA2 (256 CPU cache) /ASUS TUSL2-C (i815EP BO) / 256 MB SDRAM/HDD 40Gb UDMA Fujitsu

шт.

20

$472,00

$9 440,00

CELERON 733 FCPGA (128 CPU cache) / ASUS TUSL2-C (i815EP BO) / 128 MB SDRAM/HDD 40Gb UDMA Seagate

шт.

15

$410,00

$6 150,00

CELERON 800 FCPGA (128 CPU cache) / ASUS TUSL2-C (i815EP BO) / 128 MB SDRAM/HDD 10Gb U-DMA Seagate

шт.

10

$414,00

$4 140,00

ИТОГО:

 

45

 

$19 730,00

коммутаторы

 

 

 

 

Compex SRX 2216 Dual Speed Swich 16-port 10/100 MB/c (16 UTP)

шт.

4

$234,00

$936,00

Источник бесперебойного питания





APC Smart-UPS 1000 RM 2U+ Network Bundle

шт.

1

$661,00

$661,00

ИТОГО:

 

5

 

$1 597,00

сетевые платы

 

 

 

 

Ethernet-карта Intel EtherExpress Pro 10/100

шт.

4

$36,00

$144,00

Compex ReadLink RE 100TX Карта Fast Ethernet PCI 100MB/c

шт.

47

10,80р.

$507,60

ВСЕГО:

 

 

 

$21 978,60


Затраты на приобретение программного обеспечения равны нулю, так как операционная система FreeBSD и программный модуль Samba распространяются бесплатно.

Таким образом, общая сметная стоимость модернизирования информационной системы имеет вид:

Таблица 6.4

Общая сметная стоимость

Наименование работ

Стоимость

Затраты на прокладку кабельной системы

$2 822,90

Затраты на приобретение активного и пассивного сетевого оборудования

$21 978,32

Затраты на монтаж оборудования

$964,32

ИТОГО:

$26 051,94


Всего смета расходов на закупку и монтаж оборудования информационной сети составляет 26 051,94 долларов США, что по курсу Центрального Банка России составляет 814 904,68 рублей (при расчете курс доллара по курсу ЦБ составлял 31,28 рублей)

Заключение


В дипломном проекте описана работа по реструктуризации программно-аппаратной части информационной системы, и как следствие переход в единую однородную систему передачи данных.

Модернизированная система должна быть реализована на основе уже существующего компьютерного парка. Так как существующая информационная сеть состояла из 4-х разрозненных сетей, следовательно, компьютеры одной сети не имели связи с другими. Протоколы передачи данных во всех сетях были разные: TCP/IP, IPX/SPX, NetBeui. Поэтому, для объединения сетей в ЕИС было необходимо сделать протокол TCP/IP общим для всех сетей.

Руководством предприятия было принято решение о повышении производительности информационной системы. Для этого потребовался перевод информационной системы с Ethernet 10 Mb/c на Fast Ethernet со скоростью передачи данных 100Mb/c. Для осуществления были закуплены все необходимые материалы и проведены необходимые работы по монтажу оборудования.

Для повышения быстродействия всей информационной системы были закуплены новые процессоры для рабочих станций и серверов.

В данном проекте проведен сравнительный анализ используемых сетевых операционных систем и некоторых новых.

До реструктуризации использовались Novell Net Ware 3.12, Novell Net Ware 4.11, Windows NT 4.0 операционные системы. Было предложено использовать в качестве серверной ОС одну из UNIX подобных операционных систем. Поскольку UNIX во всем мире признают как мощную, устойчивую к сбоям серверную ОС, то предполагалось, что она должна справляться с обработкой большого объема файлов, с большим множеством пользователей, при этом иметь минимальные задержки на выполнение операций. Кроме того, некоторые UNIX подобные ОС не нуждаются в лицензии и имеют свободно распространяемые исходные коды. Наличие исходных кодов имеет больше значение, потому что есть возможность настроить систему для конкретного случая построения информационной системы. В то время как в коммерческой ОС можно произвести только пользовательские настройки, так как исходные коды не доступны.

В дипломном проекте приводится сравнительная характеристика следующих операционных систем: Linux (Red Hat 7.0, kernel 2.2.16-22), Solaris 2.8 для Intel, FreeBSD 4.5, Windows NT 4.0 и Novell NetWare 6.

Для испытаний применяли один и тот же компьютер (системная плата ASUS TUSL2-C (i815 EP B0), процессор CELERON на 1200 MГц, оперативная память SDRAM на 256 Мбайт, Ethernet-карта Intel EtherExpress Pro 10/100).

Тест был специально разработан авторами /8/ для тестирования операционных систем установленных на серверах, поэтому в качестве тестовых были задачи: по отправке 200 тысяч сообщений и тест файловой системы. Тест файловой системы заключался в том, что программа на C++ создает, записывает и читает записанный текст в 10 тыс. файлах в одном каталоге (один файл в один момент времени). Для измерения эффективности файловой системы размер файла был увеличен с 4 до 128 Кбайт. Результаты теста представлены на демонстрационном плакате 3.

По результатам теста видно, что ОС FreeBSD опережает остальные операционные системы, поэтому в качестве сетевой операционной системы будет использоваться ОС FreeBSD.

В качестве настольных операционных систем будут использоваться Windows' 98/2000, поскольку им, как пользовательским ОС, нет равных. Здесь имеет значение тот факт, что персонал предприятия обучен для работы в операционной системе Windows.

Для связи клиентских компьютеров с сервером при использовании разных операционных систем необходимо и достаточно установить ПО Samba, которое является эмулятором работы сервера Windows NT. Описание настройки и конфигурирования ПО Samba приведено в дипломном проекте.

ПО Samba включает в себя реализацию SMB протокола, по которому в Windows осуществляются все функции файл-сервера, эмуляцию доменной системы имен, WINS-сервера, сервера печати, содержит базы данных учетных записей пользователей.

Таким образом, для работы информационной системы требуется настроить DHCP-сервер и маршрутизатор. Описание настройки DHCP-сервера приведено в дипломном проекте.

В качестве маршрутизатора применяется специально выделенный компьютер под управлением ОС FreeBSD. Маршрутизация осуществляется по статической таблице.

На демонстрационном плакате 3 приведена модернизированная структура сети, на 4 - таблица маршрутизации, а на 5 - физическое расположение компьютеров.

В завершение дипломного проекта приведен расчет искусственного освещения по охране труда. Так же рассмотрены сигналы гражданского оповещения по теме безопасности жизнедеятельности. В экономической части приведен расчет сметы расходов на закупку и монтаж оборудования информационной сети.

Список использованных источников


1.       Стен Шатт. Мир компьютерных сетей. / BHV-Киев, 1996 - 288 с.

2.      Гусева А.И. Работа в локальных сетях NetWare 3.12 - 4.1 / Учебник. - М.: Диалог - МИФИ, 1996 - 315 с.

.        Михаил Гук. Сети NetWare 3.12 - 4.1 книга ответов. - СПб: Питер, 1996 - 235 с.

.        Валда Хиллей. Секреты Windows NT Server 4.0. - К.: Диалектика, 1997 - 362 с.

.        Федоров А. Операционная система FreeBSD // Журнал сетевых решений LAN/ - 2000. - № 7. - с.11-29.

.        Использование Samba: Учеб. руководство/ Robert Eckstein, David Collier-Brown & Peter Kelly - O’Reilly & Associates, 2000 - 240 с.

.        Басин И. Установка и конфигурирование Samba // Журнал сетевых решений LAN/ - 2002. - № 1. - с.17-23.

8.      Ротман Д., Бакман Д. Забег с грузом на плечах // Открытые системы / - 2001. - № 8. - с.25-38.

9.      Маккьюзик М., Грегори Р. Мягкие обновления. Методика, позволяющая избежать большей части синхронных операций в быстрой файловой системе // Открытые системы/ - 1999. - № 7. - с.28-44.

.        Пьянзин К. Самба - это не только танец // Открытые системы / - 2000. - № 3. - с.12-26.

.        Джон Д. Рули, Дэвид Мэсвин, Томас Хендерсон, Мартин Хеллер. Сети Windows NT 4.0. / BHV-Киев, 1997 - 430 с.

.        Выполнение вопросов охраны труда в дипломных проектах/ Б.П. Баталов, О.И. Поздняков, Л.Я. Уфимцева, В.Ф. Харламов. - Омский государственный университет путей сообщения - 1992 - 40 с.

.        Атаманюк В.Г. и др. Гражданская оборона: Учебник для Вузов/ под ред.Д.И. Михайлика - М, 1986 - 207 с.

.        Определение цены проектируемых технических средств/ Грязнова Л.П., Акользина Г.И. - Омский государственный университет путей сообщения - 1995 - 26 с.

.        Исследование осветительных условий и расчет освещения производственных помещений/ Б.П. Баталов, О.И. Поздняков, Л.Я. Уфимцева, В.Ф. Харламов. - Омский государственный университет путей сообщения - 1992 - 28 с.

Похожие работы на - Проблема реструктуризации программно-аппаратной части локальной вычислительной сети подразделения организации

 

Не нашли материал для своей работы?
Поможем написать уникальную работу
Без плагиата!
Без нейросетей!