Использование PlanTracer и RasterDesk при проектировании структурированных кабельных сетей
Министерство
Образования РФ
Тольяттинский
государственный университет
Электротехнический
факультет
Кафедра:
«Электроснабжение промышленных предприятий»
Доклад
по
предмету: «Системы автоматического проектирования»
на
тему: «Использование PlanTracer и RasterDesk при проектировании
структурированных кабельных сетей»
Преподаватель:
Сенько В.В.
Студент:
Березина В.В.
Группа:
Э-502
Тольятти
2005 г.
Содержание
Введение
1. Деятельность компании Step
Logic
2. Применение программы Raster
Desk
. Применение программы
PlanTracer
Выводы
Заключение
Литература
Введение
1. Деятельность компании Step Logic
Компания Step Logic работает на рынке сетевой
интеграции с 1992 года. За это время фирма прошла путь от сервис-центра и
сборщика персональных компьютеров до мультивендорного сетевого интегратора с
развитой инфраструктурой и штатом сотрудников свыше 150 человек. На сегодня
Step Logic занимает одно из ведущих мест на рынке сетевой интеграции и
телекоммуникации.
Среди основных направлений деятельности компании
в области сетевой интеграции:
· распределенные сети (WAN);
· локальные вычислительные сети (LAN);
· структурированные кабельные сети
(СКС/SCN);
· учрежденческая телефония (Voice
Communications);
· дистрибуция оборудования;
· сервисное обслуживание.
При проектировании и монтаже СКС одним из важных
моментов для создания правильной топологии сети является работа с архитектурной
частью проектирования, то есть с поэтажными планами зданий.
Идеален случай, когда при строительстве или
реконструкции организация-генпроектировщик создает в CAD-приложениях поэтажные
планы с детальной прорисовкой элементов здания и всех видов коммуникаций,
вентиляции и кондиционирования. Далее эти документы передаются
субподрядчику-проектировщику для создания СКС. С такими поэтажными планами
легко работать, их редактирование не требует никаких дополнительных программных
и аппаратных средств.
Другой случай, уже не идеальный: проектирование
СКС для зданий старой постройки, когда поэтажные планы (например, планы БТИ)
существуют только в бумажном виде. В такой ситуации возможны несколько
вариантов работы с использованием CAD-приложений (в нашем случае AutoCAD) и
упомянутых поэтажных планов. Вариант первый: сканирование, позволяющее
использовать полученное растровое изображение в качестве подложки (рис. 1) для
отображения компонентов СКС (мест установки розеток, кабель-каналов, трасс
прокладки кабелей). Такой вариант подходит только для малобюджетных проектов,
не требующих детальной проработки. К тому же при низком качестве исходного
материала («синька», часто используемые планы) этот способ применять нельзя
(рис. 2).
Второй вариант - перерисовка. Результат здесь
намного лучше, чем при использовании растровой подложки, но он требует
колоссального времени (а в некоторых случаях проектные решения требуется
принимать оперативно!). Не следует забывать и о других минусах - например, о
том, что кропотливый, монотонный труд по перерисовке вреден для здоровья
чертежника и в конце концов может вызвать профессиональные заболевания...
Выход подсказала компания Consistent
Software, опубликовавшая в одном из номеров журнала CADmaster материал о своей
программе PlanTracer под AutoCAD для
БТИ.[<#"607389.files/image001.gif">
Рис. 1 (верхняя иллюстрация).
Использование растрового изображения в качестве подложки и рис. 2 (нижняя
иллюстрация). Сканирование с «синьки»: заметны большое количество «мусора» и
складки от изгибов бумаги
. Применение программы Raster Desk
использовался нами для очистки планов от
«мусора», склеивания изображений, отсканированных отдельными фрагментами, а
также для калибровки, то есть устранения различных искажений сканированного
плана (рис. 3). Для удаления «мусора» в программе не только существует
специальная команда, но и предусмотрены различные инструменты выбора растра: от
выбора по пикселям до распознавания объектов и трассировки. Распознанные
объекты могут редактироваться с помощью соответствующих команд AutoCAD, к ним
можно применять метод редактирования noun/verb (рис. 5), а у «ручек» растровых
линий имеется контекстное меню - как у примитивов AutoCAD (рис. 6). Кроме того,
существует возможность редактировать распознанные объекты с помощью привязок,
настраивая их как для объектов AutoCAD, так и для одних только растровых
объектов.
После очистки фрагменты планов легко
выравниваются и склеиваются - для этого в программе созданы специальные группы
команд. Процедура калибровки позволяет привести растровое здание к указанным на
чертеже или измеренным точным размерам, что важно для будущего расчета длин
кабелей и трасс. Кроме того, калибровка позволяет избавиться от «волнового
эффекта» стен (этот эффект обычно проявляется в местах изгибов листа, с
которого ведется сканирование). Получаемый результат показан на рис. 4.
Существует возможность сохранить после редактирования не только файл AutoCAD,
но и сам растр.
Изображение, откорректированное в программе
RasterDesk, можно использовать как растровую подложку при проектировании сети.

Рис. 3-6 сверху вниз и слева
направо:
Рис. 3. Растровые изображения
поэтажного плана, полученные при сканировании с «синьки» (сканер Umax PowerLook
2100XL); Рис. 4. Растровое изображение поэтажного плана после обработки в
RasterDesk; Рис. 5. Распознанные растровые объекты можно редактировать методом
noun/verb; Рис. 6. У «ручек» растровых линий есть контекстное меню - как у
примитивов AutoCAD
3. Применение программы PlanTracer
Если заказчик предъявляет к проектной
документации высокие требования, растровое изображение может быть распознано и
преобразовано в интеллектуальный векторный план в программе PlanTracer.
После загрузки изображения в PlanTracer
(отдельно запускать AutoCAD c PlanTracer не нужно - достаточно поменять
профиль) следует установить масштаб изображения. При работе в RasterDesk этого
не требовалось (кроме случаев использования растра как подложки), но при
использовании PlanTracer масштаб играет огромную роль: от него зависит расчет
размеров объектов в используемых единицах измерения.
Качество распознавания в PlanTracer определяется
библиотекой шаблонов: чем она полнее и точнее, тем эффективнее будет распознавание.
Шаблоны создаются обычными примитивами AutoCAD, так что процесс их создания не
вызывает трудностей. Для каждого объекта (окно, дверь, колонна) полезно создать
несколько шаблонов (рис. 7), после чего растровые объекты, подходящие друг
другу по смыслу, но имеющие разное графическое представление, будут
распознаваться и вставляться в рисунок как один и тот же объект. Созданные
шаблоны можно применять и при работе с планами других зданий, включая или
отключая флажки видимости как шаблонов, так и самих объектов (рис. 8).
Рис. 7а, 7б, 7в, 7г и 8 сверху вниз:
Рис. 7 а, б, в - различные
графические образцы для распознавания одного объекта; Рис. 7г. - объект,
вставляемый в чертеж; Рис. 8. Отключение видимости при распознавании объекта
целиком или только одного шаблона
сетевая
интеграция растровое изображение
Завершив формирование библиотеки шаблонов, нужно
установить параметры векторизации, влияющие на качество распознавания и
задающие поведение PlanTracer в различных ситуациях. Удобный интерфейс меню
позволяет четко и однозначно задать параметры векторизации как растра в целом,
так и каждого объекта в отдельности, настроить управление слоями при
редактировании. Параметры векторизации можно создать на основании одного этажа,
затем их следует сохранить и загружать при редактировании следующих этажей. Для
каждого проекта необходимо создавать свои параметры векторизации.
Когда выставлены все параметры и создана
библиотека шаблонов, достаточно нажать кнопку Распознать автоматически. После
применения команды возможны два варианта дальнейшего развития событий. Первый
вариант: растр высокого качества, для получения готового чертежа предстоит лишь
небольшой «косметический ремонт» этажа. Вариант второй: растр плохого качества
и распознались не все объекты (рис. 9), но для исправления погрешностей
распознавания предусмотрены удобные инструменты дорисовки и редактирования
(выравнивание, разбивка или сращивание и сопряжение стен). Двери или окна легко
выбираются из библиотеки шаблонов и корректно вставляются (drag&drop) в
стены. Работа по вставке окон и дверей напоминает те же операции в Autodesk
Architectural Desktop.

Свойства объектов, созданных в
PlanTracer, можно редактировать как в палитре AutoCAD Properties, так и в
диалогах свойств выбранных объектов.
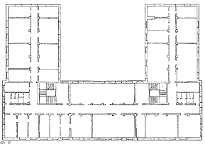
После редактирования (для поэтажного
плана, представленного на иллюстрациях, оно потребовало около полутора часов
работы в RasterDesk для создания растровой подложки и приблизительно столько же
времени при векторизации в PlanTracer) задача архитектурной части
проектирования СКС решена. Окончательный результат редактирования показан на
рис. 10.
Рис. 10. Окончательный результат
Выводы
· Использование программных продуктов
RasterDesk и PlanTracer позволяет отказаться от рутинной перерисовки поэтажных
планов.
· Работа в программах RasterDesk и
PlanTracer серьезно экономит рабочее время. При возможности сканирования
больших форматов (когда не требуется разбивать чертеж на фрагменты) и хорошем
качестве исходного материала производительность работ просто поразительна.
Подтверждением тому - данные, приведенные в таблице 1 (для здания общей
площадью этажа около 1000 м²
и среднего качества исходного материала).
Таблица 1
|
Подготовка
подложки в RasterDesk, мин.
|
Векторизация
и редактирование в PlanTracer, мин.
|
Время
ручной обработки (перерисовки), мин.
|
|
Обработка
этажа
|
60-90
|
50-70
|
360
|
· Программы позволяют быстро получить
удобный для дальнейшего редактирования и использования формат чертежа
Заключение
После тестовых испытаний компания Step Logic
приобрела и успешно эксплуатирует оба программных продукта. Оценили мы и еще
одно из достоинств программы PlanTracer: возможность ее установки на Autodesk
Architectural Desktop и получения трехмерной модели здания. А использование для
работы с этой моделью пакета Autodesk Building System позволяет перейти от
проектирования СКС к моделированию внутренних коммуникаций здания, неотъемлемой
частью которых является СКС.
Литература
Autodesk