Характеристика організації виробництва, техніки, технології з точки зору охорони праці в ТОВ 'Перо'

  • Вид работы:
    Контрольная работа
  • Предмет:
    Безопасность жизнедеятельности
  • Язык:
    Украинский
    ,
    Формат файла:
    MS Word
    47,15 Кб
  • Опубликовано:
    2013-02-14
Вы можете узнать стоимость помощи в написании студенческой работы.
Помощь в написании работы, которую точно примут!

Характеристика організації виробництва, техніки, технології з точки зору охорони праці в ТОВ 'Перо'

НАЦІОНАЛЬНИЙ ТЕХНІЧНИЙ УНІВЕРСИТЕТ УКРАЇНИ

"КИЇВСЬКИЙ ПОЛІТЕХНІЧНИЙ ІНСТИТУТ"

Видавничо-поліграфічний інститут

Кафедра технології поліграфічного виробництва









Контрольна робота

з дисципліни: «Охорона праці»

на тему: «Характеристика організації виробництва, техніки, технології з точки зору охорони праці в ТОВ «Перо»

Виконала: Студентка Моротченко Ю. В.

Перевірив: Викладач, канд. техн. наук. Демчук Г. В.

Київ - 2013

Вступ

Об’єктом дослідження роботи є ТОВ "Перо". Предметом дослідження розділу охорони праці є створений видавництвом «Книжковий клуб» (електронна крамниця). Його призначенням є розміщення та продаж книжкового асортименту художньої та дитячої літератури. Процес книжкової торгівлі підприємства здійснюється відповідно до вимог НПАОП 52.47-1.02-96. У торговельному приміщенні використовується таке обладнання, як касовий апарат Datecs MP-550T. В даній роботі наводиться аналіз організації книжкової торгівлі з точки зору охорони праці; аналіз фізичних джерел небезпеки, електронебезпеки, пожежонебезпеки та рекомендовані засоби їх ліквідації.

1.      Характеристика організації книготорговельного процесу з точки зору охорони праці

Книжковий Клуб являє собою найбільше приміщення підприємства, яке набирає найбільший показник відвідувачів за день. Основні показники даного приміщення:

* ширина = 6м, довжина =12м, висота = 4,5м.

* площа приміщення = 72м2, об’єм = 324 м3.

* площа обладнання = 13,38м2, об’єм обладнання = 25,833м3.

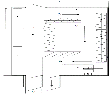
План Книжкового Клубу зображений на рис.1.

Рис.1. План Книжкового Клубу

‒стелаж (230×50×350 см), 2 ‒стіл (220×45×110 см), 3 ‒стіл (150×100×110 см), 4 ‒касовийапаратDatecs MP-550T (32,5×41×26 см), 5 - стілець (46×47×50 см)

Відповідно у робочу зміну кількість працюючих становить 2 особи. Отже, розраховуємо об’єм та площу приміщення на одного працівника відділу:

V1пр = Vпр‒Vобл/n = 324‒25,83/2 = 149,085м3 S1пр = 72‒13,38/2 = 29,31м2

Касовий апарат Datecs MP-550T призначений для використання у сфері роздрібної торгівлі. Апарат внесений до Державного реєстру реєстраторів розрахункових операцій (наказ ДПАУ № 202 від 01.04.2008) і повністю відповідає вимогам законодавства.

Відповідність вимогам нормативних документів щодо площі та об’єму на одного працівника, а також правильність розташування обладнання, наводиться у табл. 1.

Таблиця 1 Показники об’єму та площі, а також ширини проходів між обладнанням в Книжковому Клубі

Показник

Нормативне значення

Фактичне значення

1.

Об’єм, м3

мін 15

149

2.

Площа, м2

мін 4,5

29

3.

Ширина між паралельно розміщеними стелажами і основними гілками, м

1,4

1,5

4.

Ширина між касовими кабінами розрахункового вузла або прилавками обслуговування і встановленими паралельно до них стелажами і основними гірками, м

2,5

2,5

5.

Ширина між прилавками і обладнанням за прилавком, м

0,9

1

6.

Ширина між кабінами контролерів касирів, м

0,6

0,6

7.

Ширина стелажу, см

мін. 70

230

8.

Ширина столів, см

мін. 70

220

9.

Висота стелажу, см

мін. 150

350

10.

Висота столів, см

мін. 80

110

Висота полиці, см

мін. 25

50

Отже, фактичні показники вважаються цілком задовільними.

2.      Аналіз потенційних небезпек, які створюються на робочих місцях Книжкового Клубу, та шляхи їх уникнення

Таблиця 2 Основні джерела небезпеки

Основними джерелами небезпеки шкідливих факторів для працівників в даному відділі є

Електронебезпека


Низька (висока) температура повітря


Висока відносна вологість повітря


Нервово-емоційні перевантаження


Перенапруження зорового аналізатора


Пожежа

2.1 Параметри мікроклімату

Відповідність вимогам нормативних документів НПАОП 0.00-7.11-12. параметрів мікроклімату наведена у табл. 3.

Відповідно до фактичних результатів, відповідність значень нормам документів дорівнюють.

Таблиця 3. Відповідність вимогам нормативних документів параметрів мікроклімату

Мікроклімат у приміщенні

Фактичне значення

Нормативне значення

Температура повітря, °С

17-21

15-21

Швидкість руху повітря, м/сек

0,2

0,2-0,5

Відносна вологість повітря, %

75

75


Дана температура повітря в приміщенні відповідає нормам документів за рахунок наявності проміжного тамбуру при відділі та радіаторів опалення під вікнами.

Показники швидкості руху повітря та відносної вологості є задовільними.

2.2 Показники рівня шуму

Основним джерелом шуму, яке є постійним в Книжковому Клубі, може бути лише один елемент ‒ розмова. Порівняння фактичних показників з нормативними введено в таблицю 4.

Таблиця 4. Рівні звуку на постійних робочих місцях

Назва приміщення

Рівень звуку, дБА

Книжковий Клуб

Нормативний

Фактичний

60

60

Оскільки в приміщенні встановлені металопластикові вікна для захисту від зовнішнього шуму, це дає змогу знизити загальний рівень шуму.

2.3 Освітлення

У даному приміщенні передбачено природнє бокове освітлення та загальне штучне. Загальне природне освітлення забезпечується за допомогою: 3 вікон довжиною 4,0 м, шириною 2 м на відстані 1 м від підлоги. Для загального штучного освітлення передбачено 6 лінійних люмінесцентних ламп на 80 Вт.

Отже, згідно з таблицею 5, фактичні показники цілком відповідають нормативним, відповідно до ДНАОП 52.47-1.02-96.

Таблиця 5. Нормативні і фактичні значення освітленості у приміщенні Книжкового Клубу

Приміщення

Штучне освітлення, освітленість, лк(люкс)

Тип лампи

Торговельні зали Книжковий магазин

Нормативне

Фактичне

ЛМ

300

300


3.      Небезпека враження електричним струмом

Для захисту електрообладнання від короткого замикання застосовуються запобіжники. На шафах управління, розподільних коробках нанесені знаки електричної напруги.

Таблиця 6. Джерела враження людини електричним струмом

Джерела ураження струмом

Конструкторські заходи зменшення небезпеки

Організаційно-технічні заходи зменшення небезпеки

Пошкодження електрично-струменевого шнуру на касовому апараті

Захисний кожух

Проведення інструктажу про безпечні методи роботи з електроустаткуванням

Електропроводка в приміщенні

Прихована (АПВ, 5,25 мм)

Проведення інструктажу

Підлога

Ізолююча (лінолеум)

Проведення інструктажу

охорона праця небезпека струм пожежа

4.      Небезпека пожежі

Основними джерелами можливої пожежі у приміщенні можуть бути: перевантаження проводів; коротке замикання; поява великого перехідного опору.

Будинок виконано із залізобетонних плит, тобто він відноситься до II ступеня вогнестійкості. Межа вогнестійкості конструкції 0,5-2,5 год. У приміщенні знаходяться важко горючі тверді й волокнисті речовини й матеріали. За рівнем вибухонебезпечної і пожежної небезпеки приміщення відноситься до категорії В: стелажі з дерева, підлога, касовий апарат.

Відповідно, для локалізації та ліквідації пожежі керівництвом забезпечені наступні умови:

·        2 вогнегасники: вогнегасник СО2 (вуглекислотний) переносний ОУ-3 (ВВК 2) місткістю балона 3 літри (2 кілограми), призначений для гасіння загорянь різних речовин, горіння яких не може відбуватися без доступу повітря, на один вогнегасник = 107 м2;

·        датчики пожежної безпеки.

Рекомендується :

·        розташування двох додаткових вогнегасників: вогнегасник СО2 (вуглекислотний) переносний ОУ-5 (ВВК 3,5) місткістю балона 5 літрів (3,5 кілограми), призначений для гасіння загорянь різних речовин, горіння яких не може відбуватися без доступу повітря.

·        дотримання технологічного режиму.

Література

1.      Охорона праці в промисловому виробництві: навч. посібник / Чернівецький національний ун-т ім. Юрія Федьковича / О. Г. Грушка (уклад.), З. М. Грушка (уклад.). -Чернівці : Рута, 2008. - 79с.

.        ДСН 3.36.042-99 Санітарні норми мікроклімату виробничих приміщень. - К.: Держстандарт, 1999. - 31 с.

.        ДНАОП 0.00-1.21-84. «Правила технічної експлуатації електроустановок споживачів і правила техніки безпеки при експлуатації електроустановок».

.        ДСН 3.36.037-99 „Санітарні норми виробничого шуму та ультразвуку".

.        ПУЄ 2009«Правила улаштування електроустановок».

.        ДБН В. 2.5-28-2006 «Природне і штучне освітлення».

.        НАПБ В. 03.002-2007 Норми визначення категорій приміщень, будинків та зовнішніх установок за вибухопожежною та пожежною небезпекою.

Похожие работы на - Характеристика організації виробництва, техніки, технології з точки зору охорони праці в ТОВ 'Перо'

 

Не нашли материал для своей работы?
Поможем написать уникальную работу
Без плагиата!
Без нейросетей!