Проектирование деталей машин

  • Вид работы:
    Курсовая работа (т)
  • Предмет:
    Другое
  • Язык:
    Русский
    ,
    Формат файла:
    MS Word
    1,12 Мб
  • Опубликовано:
    2013-03-05
Вы можете узнать стоимость помощи в написании студенческой работы.
Помощь в написании работы, которую точно примут!

Проектирование деталей машин

Введение

вал эксцентриковый насос

Одной из основных задач конструктора в процессе проектирования новых изделий является решение проблемы взаимодействия деталей в сборочной единице, их установки, центрирования, обеспечения характеристик контактирующих поверхностей, осевой игры и др. Эти проблемы решаются при проектировании и правильной подготовке графической документации, которая способствует обеспечению необходимой технологичности и высокого качества изделий. Решение этой задачи связано с обоснованным выбором необходимой точности изготовления изделий, расчетом размерных цепей, выбором шероховатости поверхности, а также выбором допусков формы и расположения поверхностей. Курсовая работа предусматривает критический анализ сборочной единицы среднего уровня сложности, разработку сборочного чертежа узла и рабочих чертежей его деталей типа «вал», «вал-шестерня», «зубчатое колесо», «втулка» и т.п., разработку контрольного комплекса для обеспечения необходимой точности изделий.

В соответствии с сборочным чертежом и служебным назначением машины, в которую всходит сборочная единица, предоставляется техническое описание и технические требования к сборочной единице и ее деталям. В результате приобретаются навыки по разработке и обоснованию технических требований применительно к широко распространенным конструкциям сборочных единиц и деталей, на стадии разработки рабочей документации в соответствии с требованиями Единой системы конструкторской документации (ЕСКД). Системы допусков и посадок (СДП) и Основных норм взаимозаменяемости (ОНВ).

Допуски и посадки гладких цилиндрических соединений

Задача 1

Известны предельные значения варианта сопряженных диаметров отверстия и вала: D = 150мм и d= 150-0,027мм. Как изменится характер посадки, если изменятся предельные отклонения у сопрягаемых деталей на EI= -15 мкм и es= +25 мкм, при неизменных значениях величин допусков TD и Td. Решение представить аналитически и графически.

Решение.

По данным в условии задачи построим схему расположения полей допусков заданного сопряжения. Смотреть рисунок 1. Из задания видно, что отверстие имеет: номинальный размер 150 мм с предельными отклонениями ES = +0,062 мм, а EI = +0,012 мм. А вал имеет: номинальный размер 150 мм с предельными отклонениями es = 0мм ei = -0,027 мм.

Допуск на изготовление отверстия будет равен

TD = ES - EI = 0,062-0,012 = 0,050 мм.

Допуск у вала

Td = es - ei = 0 - (-0,027) = 0,027мм.

Выясним характер посадки методом «max-min» для этого выясним, что возникнет в сопряжении, если отверстие и вал будут иметь значения, определяемые их предельными отклонениями. При сопряжении Dmax и dmax размеротверстия будет больше размера вала и в сопряжении возникнет зазор (S). Соответственно сравним варианты сопряжения предельных размеров через их предельные отклонения.

Из схемы полей допусков видно, что ES>ei, а EI>es- тогда возникнут максимальный и минимальный зазоры

Smax =ES - ei = 0,062 - (-0,027) = 0,089мм.min= es - EI = 0 - 0,012 = -0,012мм.

Из анализа видно, что в сопряжении возникают зазоры, это посадка с зазором.

Если изменить координаты предельных отклонений, а при этом величина допуска у вала и отверстия останется неизменным, то тогда координаты других предельных отклонений у вала и отверстия будут равны:

ES = EI + TD = 0,015 + 0,050 = 0,035мм,

еs = ei + Td = 0,025- 0,027 = -0,002мм

По полученным данным построим схему расположения полей допусков у изменённой посадки. Смотреть рисунок 1.2.

Проанализируем характер посадки методом сравнения. Из схемы видно, что выполняется условие ES>ei, но в тоже время EI<es, значит это переходная посадка.

Для такой посадки необходимо знание максимального и минимального натяга. Они будут равны

Smax = ES - ei = 0,035 - (-0,002) = 0,037мм,

Nmax = es - EI = 0,025 - 0,015 = 0,040мм.

Вывод: в случае изменения предельных отклонений у вала и отверстия, при неизменных значениях их допусков, изначальный характер посадки cзазором изменится на переходную посадку.

Рис.

Задача 2

В новой машине посадка двух деталей имела свое значение Ø 45 H9/js9. При ремонте машины, в результате износа отверстия, был изготовлен вал размером Ø 50,5 . Каким должен быть ремонтный размер отверстия для сохранения первоначального характера посадки. Решение должно сопровождаться аналитическим и графическим решением.

Решение.

Из условия задачи установим размеры и поля допусков сопрягаемых деталей.

Размер отверстия Ø 45 H9, а вала Ø 45js9.

Из справочной литературы[1, табл. A.2 и A.1] по условному обозначению полей допусков, состоящего из обозначения основного отклонения (буква) и квалитета (цифра), определим их предельные отклонения.

Для отверстия ES = +0,062 мм;EI = 0 мм.

Для вала es = 0,031 мм, ei = (-0,031)мм.

По полученным данным построим схему расположения полей допусков (см. рисунок 3) и проанализируем характер посадки. Используя метод сравнения из схемы видно, что EI<esиei<ES отсюда делаем вывод - в новой машине установлена переходная посадка. Для такой посадки необходимо знание максимального натяга и максимального зазора возможного в соединении.

Они будут равны:

Nmax = es - EI = 0,031 - 0 = 0,031мм,

Smax = ES - ei = 0,062 - (-0,031) = 0,093мм.

Для того чтобы с выточенным ремонтным валом остался прежний характер посадки отверстие должно иметь такие предельные отклонения:

ES = ei + Smax = 0,003 + 0,093 = 0,096мм,= es - Nmax = 0,049 - 0,031 = 0,018мм.

В результате вычислений ремонтное отверстие должно быть расточено с таким размером: Ø 50,5 .


Рис.

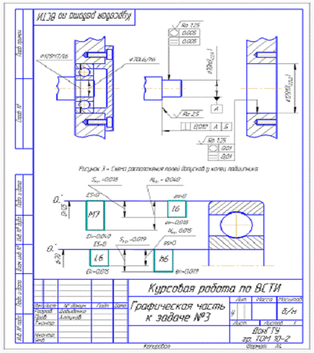
Допуски и посадки подшипников качения

Задача 3

Для подшипника 214 выбрать посадки колец на вал и в корпус. Исходные данные: радиальная нагрузка Fr = 16000 H, нагрузка ударная, перегрузка 150%, осевая нагрузка отсутствует. Вид нагружения колец: внутреннего -местный, наружного - циркуляционный.

Решение.

Из маркировки подшипника следует, что задан радиальный однорядный шариковый подшипник легкой серии, класс точности 0.

В таблице В.1[1,с.72] находим основные размеры подшипника:

-       посадочный размер наружного кольца D = 125 мм;

-       посадочный размер внутреннего кольца d = 70 мм;

-       ширина колец В = 24 мм;

-       радиус фаски r = 2,5 мм.

В таблице В.2 и В.3[1,с.73] находим предельные отклонения посадочных размеров колец.

Внутреннее кольцо имеет отклонения:= 0,= - 15 мкм = - 0,015 мм.

Наружное кольцо:= 0,= - 18 мкм = - 0,018 мм.

Внутреннее кольцо испытывает местный вид нагружения. Длявала, соединенного с этим кольцом, по таблице В.4 [1,с.74] выбираем рекомендуемое поле допуска h6.

Отклонения отверстия Æ70h6 по таблице А.1 [1,c. 52] составляют:= 0 мкм,= -19 мкм = -0.019 мкм.

Наибольший натяг составит:

Nmax=es-EI = 0 - (- 0,015)= 0,015 мм.

Проверим допустимость этого натяга из условия прочности кольца


где d- диаметр внутреннего кольца подшипника, м;

[sp] - допускаемое напряжение на растяжение, МПа (для подшипниковой стали ШХ15 [sp] « 400 МПа);

k - коэффициент, зависящий от серии подшипника (для легкой серии

k = 2,8).

Условия прочности кольца выполняются, так как= 0,015 < [N] = 0,25.

Внутреннее кольцо подшипника имеет размер Æ70- 0, 015 мм.

Для внешнего кольца, испытывающего циркуляционный вид нагружения, определяем интенсивность нагрузки


где Fr = 16000H = 16 кH - радиальная нагрузка;

В = 24 мм= 0,024 м - ширина кольца;

r = 2,5 мм = 0,0025 м - радиус фаски;

К1 - динамический коэффициент посадки при перегрузке до 150% К1 = 1,0;

К2 - коэффициент, учитывающий ослабление натяга при полом вале или тонкостенном корпусе (при сплошном вале К2 = 1,0);

К3 - коэффициент неравномерности распределения радиальной нагрузки между телами качения в двухрядных или сдвоенных подшипниках.

Для однорядных К3 = 1,0.

Значения коэффициентов взяты из [3, C.286].

Тогда интенсивность нагрузки будет:


Согласно таблице В.5, [1,С.74] заданным условиям нагрузки для вала соответствует поле допуска k6. Из таблицы А.2 [1,С.57] находим предельные отклонения вала Æ125M7:

es = 0 мкм,

ei = - 40 мкм = -0,040 мм.

Внешнее кольцо подшипника имеет размер Æ125- 0, 018 мм.

Отверстие, соединяемое с этим кольцом, имеет размер мм.

По таблице В.6 [1,С.75] назначаем шероховатость посадочных поверхностей.

Для вала Rа£1,25 мкм,

для отверстия Rа£ 1,25мкм,

для торцов заплечиков Rа£2,5 мкм.

Определяем отклонения геометрической формы: допуск круглости, допуск профиля продольного сечения и допуск непостоянства диаметра в сечении. Для подшипников класса точности P0 и P6 допуски составляют

Для валадопуск T=0,005 мм.

Для отверстия в корпусе допуск T= 0,01мм.

Допуск перпендикулярности для заплечиков вала составляет T=0,012 мм (для подшипников I группы - шариковый радиальный по 0-й степени точночти).

Выполняем графическую часть.


Рис.

Допуски и посадки шпоночных соединений

Задача 5

Исходные данные: номинальный диаметр вала d = 18 мм, тип соединения - плотное.

Решение.

Находим размеры элементов шпоночного соединения [1, табл. Г.1, с.76]

Номинальные размеры шпонки:

Ширинаb=6 мм, высотаh=6 мм, длиннаl=2 ∙ d=2 ∙ 18=36 мм.

Номинальные размеры паза на валу; ширина b = 6 мм, глубина t1 = 3,5 мм, длина l = 36 мм.

Номинальные размеры паза во втулке: ширина b = 8 мм, глубинаt2=2,8 мм.

Выбираем поля допусков для размеров шпоночного соединения.

Исполнительные размеры шпонки: ширина b = 6h9(-0.030) мм, высота h= 6h9(-0.030) мм, длина 1 = 36h14 (-0.43) мм.

Исполнительные.размеры пазов:

паз во втулке - ширина b = 6P9 мм, глубина t2= 2,8+0.1 мм;

паз на валу - ширина b = 6P9 мм,длина 1 = 36Н15 (+0,1) мм,

глубина t1 = 3,5(+0,1) мм [1, табл. Г.4, с.78].

На рисунке 5.1 показано шпоночное соединение. На рисунке 5.2 схема расположения полей допусков.

Требования к относительному расположения паза на валу и паза во втулке определяется отклонением от параллельности и отклонением от cимметричности плоскости симметрии паза вала относительно оси цилиндрической поверхности 18h6 и отклонением от параллельности и отклонением от симметричности плоскости симметрии паза втулки относительно оси цилиндрической поверхности отверстия втулки 18G7.

Опредёляем численное значение. допусков: отклонение от параллельности не должно превышать 60% допуска на ширину .паза, отклонение от симметричности - 40%.допуска на ширину паза.

Тогда,

Для паза во втулке:

отклонение от- параллельности Т=0,032 ∙ 0,6=0,0192; округляем до стандартного значения Т=0,02 мм

отклонение от симметричности Т=0,032 ∙ 0,4= 0,0128; округляем до стандартного значения Т=0,012 мм (на диаметр)

Для паза на валу:

отклонение от параллельности Т=0,030 ∙ 0,6=0,018; округляем до

стандартного значения Т=0,02 мм

отклонение от симметричности Т=0,030 ∙ 0,4= 0,012; округляем до стандартного значения Т=0,012 мм (на диаметр)

Требования проставляем на рисунке .5.3

Рис.

Допуски и посадки резьбовых соединений

Задача 6

Исходные данные: задано резьбовое соединение М5-6G/4h

Решение.

Задана метрическая резьба, шаг крупный, направление винтовой линии правое, резьба однозаходная, наружный диаметр наружной резьбы (болта) d =5 мм, поле допуска резьбы гайки 6G (т.е. поле допуска среднего диаметра 6G и поле допуска внутреннего диаметра 6G), поле допуска резьбы болта 4h (т.е. поле допуска среднего диаметра 4h и поле допуска наружного диаметра 4h), длина свинчивания нормальная.

Для номинального диаметра d=5 мм находим шаг резьбы Р = 0,8 мм [1, табл. Д.1, С.79].

Находим размеры среднего и внутреннего диаметров резьбы (болта и гайки):

средний диаметр d2 = D2 = d- 1 + 0.480 = 4,480 мм,

внутренний диаметр d1 = D1 = d- 1 + 0.134 = 4,134 мм [1, табл. Д.2, С.80].

Высота исходного профиля Н » 0,866·Р = 0,866·0,8 = 0,6928 мм, рабочая высота профиля Н1 = 0,541·Р = 0,541·0,8 = 0,4328 мм, радиус закругления впадины резьбы болта R = 0,144·Р = 0,144·0,8 = 0,1152 мм, внутренний диаметр резьбы болта по дну впадины d3 = d - 1,2269·P = 5 - 1,2269·0,8 = 4,01848 мм.

Находим предельные отклонения диаметров резьбы [1, табл. Д.3, С.81]:

(d, d2, d1)= 0,(d2)= - 60 мкм = - 0,060 мм,

ei (d) = - 95мкм = - 0,095мм,


ES (D2) = + 149 мкм = + 0,149 мм,(D1) = + 224 мкм = + 0,224 мм,

EI (D, D1, D2)=+24 мкм = + 0,024 мм.

Предельные диаметры резьбы болта:

dmax =d + es(d)=5- 0 = 5мм,

dmin = d + ei(d) = 5-0,095= 4,905мм,2 max = d2 + es(d2) = 4,480- 0 = 4,480мм,2 min = d2 + ei(d2) = 4,480- 0,090=4,390мм,1 max = d1 + es (d1) = 4,134 - 0= 4,134 мм,

d1 min не нормируется

Предельные диаметры резьбы гайки:

Dmax не нормируется,

Dmin = D + EI (D) = 5 +0,024 = 5,024мм,

D1 max = D1 + ES(D1) = 4,134 + 0,224=4,358мм,1 min = D1 + EI(D1) = 4,134 + 0,024 = 4,158 мм,2 max = D2 + ES(D2) = 4,480 + 0,095 = 4,575мм,2 min = D2 + EI(D2) = 4,480 + 0,149 = 4,629мм.

Рассчитанные параметры резьбового соединения приведем в графической части.



Рис.

Допуски зубчатых колес

Задача 7

Исходные данные: степень точности по ГОСТ 1643-81 7-8-8-C; модуль m = 5 мм; число зубьев z=28; число зубьев сопрягаемого колеса z1 = 2 ∙ z = 56; ширина зубчатого венца b = 10 ∙ m = 10 ∙ 5 = 50 мм; делительный диаметр d = m ∙ z = 5 ∙ 21 = 140 мм; исходный контур стандартный по ГОСТ 13755-81; коэффициент смещения х = 0.

Решение.

Зубчатое колесо имеет седьмую степень по нормам кинематической точностиинормам плавности, седьмая степень по нормам пятна контакта, вид сопряжения C.

Исходя из степени точности зубчатого колеса, его размеров и средств измерения по таблице Е.1 [1, С.91] выбираем для контроля венца пятый комплекс. Показатели комплекса:

-       для контроля кинематической погрешности допуск радиального биения зубчатого венца Fr;

-       для контроля плавности работы предельные отклонения шага зацепления (основного шага) fpt;

-       для контроля контакта зубьев допуск на направление зуба Fb;

-       для контроля вида сопряжения (бокового зазора) наименьшее отклонение средней длины общей нормали EWms и допуск на среднюю длину общей нормали Twm.

Измерение показателей Fr, fpt, Fb производится на рабочей оси вращения колеса, а при измеренииEWms в качестве измерительной базы используется боковая поверхность зуба.

Таким образом, диаметр вершин зубьев для базирования средств измерения не используется и, следовательно, не требуется пересчет производственных допусков.

По таблицам приложения Е[1, С.91-104] определяем числовые значения отклонений и допусков показателей точности.

По таблице Е.3 находим числовое значение допуска на радиальное биение зубчатого венца Fr= 56мкм.

По таблице Е.5 находим отклонение шага fpb=±19 мкми отклонения шага fpt=±19 мкм.

По таблице Е.6 находим числовое значение допуска на погрешность направления зуба Fb=16 мкм.

Длина общей нормали

W = W1´m = 10,72460´,5 =53,623»53,6

где W1 = 10,2460 при [3, С.360].

Наименьшее отклонение средней длины общей нормали Ewmsнаходим как сумму двух слагаемых. Слагаемое I равно 70 мкм для вида сопряжения B и девятой степени точности по нормам плавности (табл. Е.9).

Слагаемое II равно 35 мкм. (табл. Е.10)

Тогда Ewms= -(70+35)= - 105 мкм.

Допуск на среднюю длину общей нормали Twm=140 мкм (табл.Е.11).

Наибольшее отклонение средней длины общей нормали

Ewmi= - (Ewms+ Twm) = - (105+140)= -245мкм.

Размер общей нормали на чертеже зубчатого колеса


Определяем отклонения и допуски, необходимые для выполнения чертежа зубчатого колеса.

Диаметр вершин зубьев da=m(z+2)= 5(28+2)=150 мм.

Радиальное биение этого диаметра Fda= 0,1´m = 0,1 ´5 = 0,5 мм [3, С.354].

Поле допуска этого размера h8.

Биение базового торца зубчатого колеса Ft=32 мкм = 0,032 мм[3, C.355].

Допуск на ширину зубчатого венца (выбираем из ряда h11, h12, h13, h14) [2, табл. 2.86] - окончательно h11.

Шероховатость рабочей поверхности зубьев Ra≤1.25 мкм. [3,С.330, табл.5.12]

Выполняем графическую часть. При этом учитываем следующее: показатели комплекса Fr, Fc, Fb, fpb, fpt, Ewm, Twm на рабочем чертеже зубчатого колеса не указываются, т.к. эти показатели используют для наладки станков и разработки карт технологического процесса механической обработки колеса.

Выполняем графическую часть.

Рис.

Расчет размерной цепи

Задача 8

На рис. 8.2 показана схема размерной цепи узла крепления вала эксцентрикового насоса (рис 8.1). Зазор между торцом крышки и торцом кольца подшипника S=AS = 0,5±0,19 мм. Заданы номинальные размеры составляющих звеньев: А1=А3=2 мм, А2=95,5 мм, А6=140 мм. Ширина кольца подшипника В=20-0,15 мм (стандартный размер).

Определить допуски и отклонения составляющих звеньев.

Рисунок 8.1 - Узел крепления вала эксцентрикового насоса

Рисунок 8.2- Схема размерной цепи

Применяя правило обхода по контуру определяем, что звено А6является увеличивающим , а звенья А12, А3, B- уменьшающими.


По основному уравнению размерной цепи проверяем правильность назначения номинальных размеров звеньев

,5 = 140 - (2 + 20 + 95.5+20+2) = 0,5.

Равенство выполняется, следовательно, размеры назначены верно.

Определяем расчетное значение допуска замыкающего звена


Определяем среднее число единиц допуска составляющих звеньев


где i = 0,45- единица допуска для звена, определяется потаблице Ж.1 [1,С.105].

Для А13=2 мм i=0,55, для А2=98,5 мм i=2,17, для А6=140 мм i=2,52.

По таблице Ж.3 [1,С.106] находим допуски звеньев размерной цепи:

ТА1=ТА3=10 мкм = 0,010 мм, ТА2=35 мкм = 0,035 мм, ТА6= 40 мкм = 0,040 мм,

Назначаем отклонения размеров звеньев. Так как составляющие звенья А13 и А2 являются уменьшающими, то допуск Т распределяем в минус (нижнее отклонение EJ = -T, верхнее отклонение ES=0).

A1=A3=2-0,010мм ,А2=95,5-0,035мм, А6=140+0,040мм, В=20-0,15 мм.

Решаем ту же размерную цепь вероятностным методом.

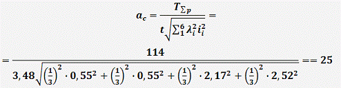
Принимаем, что рассеяние размеров звеньев близко к нормальному закону, следовательно, коэффициент относительного рассеяния . Примем также коэффициент относительной симметрии звеньев  Для заданного процента риска P = 0,05%по таблице Ж.4 [1,с.105] находим коэффициент t = 3,48.

Определяем расчетное значение допуска замыкающего звена


Для А13=2 мм i=0,55, для А2=98,5 мм i=2,17, для А6=140 мм i=2,52 по таблице Ж.1 [1,с.105].

Определяем среднее значение допуска:


По таблице Ж.2 [1,с.105] принимаем для цепи допуски на размеры по IT8.

По таблице Ж.3 [1,с.106] назначаем допуски на звенья:

1=TА3=14 мкм = 0,014мм, ТА2=54мкм = 0,054мм, ТА6= 63 мкм = 0,063 мм, ТВ = 150 мкм = 0,15мм (задано).

Проверяем правильность назначения допусков по уравнению:


где  - вероятностный допуск замыкающего звена,

 − заданный допуск замыкающего звена.

Вероятный допуск:


Допуски назначены верно, так как


Оценим действительный процент риска Рд по коэффициенту .


По таблице Ж.4 [1,с.105] находим, что действительный процент риска

Рд =0,003%, меньше установленного, что приемлемо.

Сравнивая результаты расчёта размерной цепи методом полной взаимозаменяемости и вероятностным, убеждаемся в преимуществе вероятностного метода.

Допуски, рассчитанные по вероятностному методу, получились в несколько раз шире. Следовательно, требуемая точность замыкающего звена достигается с меньшими затратами на изготовление деталей.


Заключение

В ходе выполнения курсовой работы были определены условия и требования для изготовления, сборки и эксплуатации заданного сборочного узла в соответствии со стандартами на изготовление, сборку и эксплуатацию.

Для всех соединений были выбраны, рассчитаны и обоснованы посадки с учетом требований к конструкции и режиму работы.

Составлена размерная цепь на линейные размеры деталей, входящих в состав заданной сборочной единицы. Для размеров, которые входят в состав размерной цепи определены: квалитет точности и допуск на изготовление отдельных деталей и сборку единицы. Расчет выполнен методом максимума-минимума и вероятностным методом.

Для контроля действительных размеров деталей были выбраны и обоснованы универсальные измерительные средства. С помощью их рабочий на стадии изготовления, сборки и технического обслуживания узла может установить отклонение действительного размера от номинального и выявить причину дефекта, что ведет к предотвращению выхода из строя механизма за время эксплуатации.

Для сложных профильных размеров целесообразно применять калибры, которые позволяют с большой точностью и меньшими затратами времени на измерительные операции определить пребывания действительного размера в пределах допускаемых отклонений от номинального размера. Узел имеет зубчатые передачи, для контроля точности изготовления зубчатых колес, точности зацепления, плавности хода применяются универсальные измерительные комплексы.


Перечень ссылок

. Егоров А.А., Стародубов С.Ю.Пособие к решению задач курса взаимозаменяемость, стандартизация и технические измерения. - Алчевск, ДГМИ, 2003. - 111 с., ил.

. Допуски и посадки. Справочник. Часть 1/ В.Д. Мягков, М.А.Палей, А.Б. Романов, В.А. Брагинский. - Л.: Машиностроение, 1982. - 544с., ил.;

. Допуски и посадки. Справочник. Часть 2/ В.Д. Мягков, М.А.Палей, А.Б. Романов, В.Д. Брагинский. - Л.: Машиностроение, 1982. - 448 с., ил.;

Похожие работы на - Проектирование деталей машин

 

Не нашли материал для своей работы?
Поможем написать уникальную работу
Без плагиата!
Без нейросетей!