Подбор погружного насоса

  • Вид работы:
    Курсовая работа (т)
  • Предмет:
    Другое
  • Язык:
    Русский
    ,
    Формат файла:
    MS Word
    84,41 Кб
  • Опубликовано:
    2013-02-13
Вы можете узнать стоимость помощи в написании студенческой работы.
Помощь в написании работы, которую точно примут!

Подбор погружного насоса

Федеральное агентство по образованию

Государственное образовательное учреждение высшего профессионального образования

«Уфимский государственный нефтяной технический университет»

Кафедра «Гидравлики и гидромашины»








Курсовая работа

по дисциплине:

«Гидромашины и компрессоры»

на тему: «Подбор погружного насоса»


Выполнил: студент гр. МП-04-01 И.Ш. Валеев

Проверил: профессор Н.А. Гаррис






Исходные данные

Глубина скважины

H = 2100 м

Дебит

Q = 200 м3/сут

Давление насыщения

Pнп = 40 кПа

Давление на забое

Pз = 10 МПа

Устьевое давление

Pу = 1 МПа

Плотность нефти

ρ = 838 кг/м3

Кинематическая вязкость

ν = 9,24 · 10-4 см2

Коэффициент продуктивности

k = 87,26 м3/сут·МПа



1. Описание схемы подъема нефти

1.1 Выбор вида погружного насоса

Нефтедобывающая промышленность постоянно нуждается в насосах для отбора из скважин большого количества жидкости. Наиболее приспособлены для этих целей динамические лопастные насосы Из лопастных насосов наибольшее распространение получили насосы с рабочими колесами центробежного типа, поскольку они создают достаточно больший напор при заданных подачах жидкости и габаритах насоса, имея при этом приемлемые КПД и надежность. Необходимость увеличения отбора жидкости большого объема из скважин со средней глубиной подвески 1000-1300 м привела к применению для этой цели центробежных насосов, которые наилучшим образом обеспечивают максимальные, по сравнению с насосами других типов, подачу и напор.

1.2 Описание схемы подъема нефти


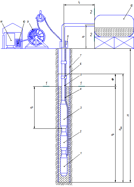
Установка погружного центробежного насоса состоит из погружного агрегата, включающего специальный погружной маслозаполненный электродвигатель 1, протектор 2 и центробежный многоступенчатый насос 3, специальный кабель 4, прикрепленный к колонне НКТ 5 хомутами 6.

С помощью устьевого оборудования 8, установленного на колонной головке эксплуатационной колонны 7, подвешена колонна НКТ. На поверхности рядом со скважиной устанавливается кабельный барабан 9 и автотрансформатор 10 со станцией управления 11. На кабельном барабане предусмотрен запас кабеля для увеличения глубины спуска погружного агрегата, а во время подземного ремонта на него наматывается кабель, спущенный в скважину.

На технологической схеме указана условно система сбора нефти - сепаратор 12 с избыточным давлением pс = 0,16 МПа.

Погружной электродвигатель - маслозаполненный, герметизированый. Для предотвращения попадания в него пластовых жидкостей он имеет узел гидрозащиты. Наиболее распространенная на промыслах гидрозащиту создает в двигателе небольшое избыточное давление и имеет масляные затворы, препятствующие попаданию жидкостей в электродвигатель.

Электрический ток из промысловой сети через автотрансформатор и станцию управления по бронированному кабелю поступает к электродвигателю. Вращая вал насоса, электродвигатель приводит его в действие. Всасываемая насосом нефть проходит через фильтр и нагнетается по подъемным трубам.

Погружной электроцентробежный насос представляет собой набор отдельных ступеней, в каждой из которых имеется свой ротор (центробежное колесо) и статор (направляющий аппарт). Роторы отдельных ступеней посажены на один вал, жестко соединенный с валом погружного электродвигателя. Каждая из ступеней развивает напор 3-5 м. Поэтому для обеспечения напора в 800…1000 м в корпусе насоса монтируют 150…200 ступеней. Для регулирования подачи часть роторов может сниматься и заменяться нейтральными вставками.

2. Гидравлический расчет подъемника

2.1 Выбор диаметра насосных труб

Диаметр насосных труб определяется их пропускной способностью и возможностью размещения труб в скважине с учетом соединительных муфт вместе с кабелем и агрегатом.

Пропускная способность труб связана с коэффициентом полезного действия их ηтр. К.П.Д. труб колеблется в пределах и зависит в основном от диаметра и их длины. Не рекомендуется брать ниже 0,94.

Часто центробежные насосы применяют для формированного отбора жидкости из сильно обводненных скважин с вязкостью нефти, близкой к вязкости воды, для этих условий построены кривые потерь напора на длине 100 м. Согласно этому графику, рекомендуемый диаметр труб для дебита Q=200м3/сутки составляет:


2.2 Гидравлический расчет трубопровода

Запишем уравнение Бернулли с учетом источника энергии (напор насоса H):



Пренебрегая разностью скоростных напоров в виду малости по отношению к напору статическому, преобразуем уравнение:


где h1 - превышение уровня жидкости в трапе над устьем скважины, высота до сепаратора;

γ - удельный вес жидкости;

pс - давление на входе в сепаратор.

Для определения суммарных потерь на трение:


где l2 - расстояние от устья скважины до системы сбора;

l - общая глубина спуска насоса;

v - средняя скорость скоростного потока;

ξ - коэффициент местных сопротивлений, принимаем ξ = 10.

Определим коэффициент гидравлического сопротивления λ, для чего вычислим число Рейнольдса:

 


В зоне смешанного трения:


Определим общую глубину спуска насоса:


где hдин - динамический уровень жидкости;

hст - статический уровень жидкости;

hп - глубина погружения под динамический уровень;

Δh - депрессия скважины, падение статического уровня жидкости после начала эксплуатации скважины;

k - коэффициент продуктивности;

Центробежные насосы нормально работают при перекачке мертвых жидкостей. При попадании в насос газ работа насоса ухудшается и может полностью сорваться.

Показатели работы погружного центробежного насоса при наличии в добываемой жидкости газа в большой степени зависят от глубины погружения насоса под динамический уровень. Увеличение глубины погружения под динамический уровень приводит к уменьшению количества газа, попадающего в насос вместе с жидкостью.

Для нормальной работы центробежного насоса желательно принимать такую глубину его погружения под уровень, при котором весь газ будет растворен в нефти.

Глубина погружения насоса под динамический уровень будет:


где pсетки - давление у приемной сетки насоса, которое можно принять равным устьевому давлению, так как вес столба газа составляет ничтожно малую величину;

γср - средний удельный вес нефти в межтрубном пространстве.

Удельный вес нефти на глубине динамического уровня можно считать равным удельному весу дегазированной нефти, т.е. 0,84 г/см3.

На основании графика кривых изменения объемного газосодержания, усадки, кинематической вязкости и удельного веса нефти в зависимости от давления, удельный вес нефти при давлении pу = 10,2 атм равен 0,84 г/см3.


Потребный напор для трубопровода:


График потребного напора представляет собой характеристику трубопровода. Характеристика трубопровода - зависимость потерь напора от расхода жидкости. Построим по результатам гидравлического расчета для 16 значений.

Таблица 1 - Расчет графика потребного напора

Q, м3/сут

Re

Режим движения

λ

Hд , м

L, м

hтр, м

hм, м

∑h, м

Hпотр

0

0

ламин

-

1094,8

1151,2

0,00

0,00

0,00

906,0

20

627

ламин

0,10209

1066,9

1179,1

1,57

0,01

1,58

935,5

40

1254

ламин

0,05104

1039,0

1207,0

3,21

0,03

3,24

965,0

60

1881

ламин

0,03403

1011,1

1234,9

4,93

0,06

4,99

994,7

80

2508

гладкие трубы

0,04471

983,3

1262,7

0,11

11,89

1029,4

100

3135

гладкие трубы

0,04229

955,4

1290,6

17,80

0,17

17,97

1063,4

120

3762

переходный

0,04189

927,5

1318,5

25,94

0,24

26,18

1099,5

140

4388

переходный

0,04054

899,6

1346,4

34,89

0,32

35,22

1136,4

160

5015

переходный

0,03943

871,7

1374,3

45,24

0,42

45,67

1174,7

180

5642

переходный

0,03850

843,9

1402,1

57,04

0,54

57,58

1214,5

200

6269

переходный

0,03770

816,0

1430,0

70,33

0,66

71,00

1255,8

220

6896

переходный

0,03701

788,1

1457,9

85,17

85,97

1298,7

240

7523

переходный

0,03640

760,2

1485,8

101,60

0,95

102,55

1343,2

260

8150

переходный

0,03586

732,3

1513,7

119,67

1,12

120,79

1389,3

280

8777

переходный

0,03538

704,5

1541,5

139,45

1,30

140,74

1437,1

300

9404

переходный

0,03494

676,6

1569,4

160,97

1,49

162,46

1486,7


Рисунок 2 - График потребного напора

3. Подбор центробежного насоса

Существующий нормальный ряд погружных центробежных электронасосов предусматривает в зависимости от диаметра эксплуатационной колонны и производительности скважин несколько типов насосов. Подбор насоса для скважины производим в соответствии с характеристикой скважины, ее дебитом, необходимым напором и диаметром эксплуатационной колонны на основании характеристики погружных центробежных насосов. Для получения дебита Q = 200 м3/сутки и напора H = 1250,0 м наиболее подходит центробежный насос ЭЦНА5-200-1300:



4. Пересчет характеристик насоса

Для определения изменения напора и других показателей работы центробежных погружных насосов при вязкости жидкости, значительно отличающейся от вязкости воды и вязкости девонской нефти в пластовых условиях и незначительном содержании газа на приеме первой ступени насоса для учета влияния вязкости можно воспользоваться номограммой П.Д. Ляпкова. Номограмма построена для пересчета характеристики насоса, полученной при нагнетании воды, на характеристику при нагнетании однородной вязкой жидкости.

Исходя из подачи насоса Q = 200 м3/сут и вязкости 0,09 см2, по номограмме определяем коэффициенты пересчета:

KQ = 1,00;

КH = 0,93;

Kη = 0,85.

Нормальные и пересчитанные характеристики насоса и трубопровода отобразим на рисунке 3.

Рисунок 3 - Совместный график центробежного насоса и трубопровода

5. Регулирование работы насоса

Если режимная точка не совпадает с точкой пересечения характеристик насоса и трубопровода, то работу насоса регулируют, применяя следующие известные способы регулирования:

)        дросселирование напора заключается в создании дополнительного местного сопротивления в нагнетательной линии, практически реализуется прикрытием задвижки;

)        регулирование изменением количества ступеней;

)        байпасирование заключается в отводе части потока через перепуск (байпас) с выхода насоса на вход. Регулирование байпасированием неэкономично и применяется как кратковременная мера, например, при пуске насосного агрегата и различных переключениях.

5.1 Регулирование дросселированием

Регулирование дросселированием в напорном трубопроводе производится задвижкой. При работе подобранного насоса данный трубопровод параметры его работы определяются рабочей точкой А - балансовой точкой, в которой напор, развиваемый насосом, равен напору Hпотр , необходимому для преодоления гидравлического сопротивления трубопровода, а подача насоса равна расходу жидкости по трубопроводу.

При прикрытии задвижки увеличивается гидравлическое сопротивление трубопровода, его характеристика становится круче, и рабочая точка переходит из положения A в B. При этом подача насоса снижается, оставаясь одинаковой с расходом жидкости в трубопроводе. При обеспечении подачи QP=QB, рабочей точкой будет точка B. Очевидно, ΔH будет представлять потери напора в дросселирующей задвижке. Соответственно уменьшается к.п.д насоса.

По графику потребного напора Hпотр(Q) определяем потребный напор насоса, необходимый для обеспечения планового расхода точка P:

По графику, пересчитанной на вязкость напорной характеристики насоса Hν(Q) определяем положение точки B, через которую должна проходить суммарная характеристика насоса и дросселя:

Потребляемую насосом мощность при регулировании дросселированием определяем следующим образом:

Определяем потерю напора на дросселе:


Вычисляем КПД, соответствующий данному способу регулирования:


5.2 Регулирование изменением числа ступеней

Число ступеней, которое надо снять с насоса для получения необходимого напора, будет равно:


Необходимо снять:


Вместо снятых ступеней внутри корпуса насоса устанавливаются проставки.

6. Определение подводимой мощности и выбор двигателя

6.1 Выбор кабеля

Выбираем трехжильный круглый кабель КРБК 3×25 сечением 25 мм2 и диаметром 32,1 мм. На длине насоса и протектора (около 7 м) берем трехжильный плский кабель КРБП 3×16 сечением 16 мм2 и толщиной 13,1 мм.

От сечения и длины кабеля зависят потери электроэнергии в нем и к.п.д. установки.

Потери электроэнергии в кабеле КРБК 3×25 длиной 100 м определяются по формуле:


где I = 43 А - рабочий ток в статоре электродвигателя ПЭД-17-2; R - сопротивление в кабеле.

Сопротивление в кабеле длиной 100 м может быть определено по формуле:


где ρt - удельное сопротивление кабеля при температуре tк °С в ом·мм2; q - сечение жилы кабеля.

Удельное сопротивление кабеля при tк = 40°С:



где ρ - удельное сопротивление меди при t20,

α - температурный коэффициент.


Общая длина кабеля будет равна сумме глубины спуска насоса 1430 м и расстояния от скважины до станции управления 10 м. Примем с запасом на увеличение погружения насоса длину кабеля 1500 м. Потеря мощности составит:


6.2 Выбор двигателя

Мощность двигателя для работы насоса:


При потере мощности в круглом кабеле потребная мощность составит:

Принимаем электродвигатель ПЭД55-123 мощностью 55 кВт, диаметром 123 мм и длиной 7270 мм. Для этого двигателя принимаем протектор диаметром 114 мм и длиной 1938 мм.

погружной центробежный насос нефть гидравлический

Вывод

В данной курсовой работе был выполнен гидравлический расчет системы подъема нефти из скважины погружным центробежным насосом, подобраны трубы НКТ для систем сбора нефти. Построен график потребного напора, определена рабочая точка и выбран погружной электрический центробежный насос марки ЭЦНА5-200-1300.

Характеристики насоса пересчитаны на вязкую жидкость, выполнены регулирование до проектной величины путем дросселирования и изменения числа ступеней.

Выбран погружной электродвигатель марки ПЭД55-123.

Список использованной литературы

1.   Нефти СССР: Справочник. Дополнительный том. Физико-химическая характеристика нефтей СССР.-М.: Химия.-1975.-87 с.

2.      Гидравлика, гидромашины и гидроприводы: Учебник для машиностроительных вузов / Т.М. Башта, С.С. Руднев, Б.Б. Некрасов и др.-2-е изд., перераб.- М: Машиностроение, 1982.-423 с.

.        Погружные бесштанговые насосы для добычи нефти: Учебное пособие для вузов / А.С. Казак, И.И. Росин, Л.Г. Чичеров - Москва: Недра, 1973.-230с.

.        Ценробежные насосы: Каталог - М.: Изд. ЦИНТИ нефтемаш, 1980.-52 с.

Похожие работы на - Подбор погружного насоса

 

Не нашли материал для своей работы?
Поможем написать уникальную работу
Без плагиата!
Без нейросетей!