Механічні процеси та апарати
Конспект
лекцій
з дисципліни
Процеси та апарати хімічних
виробництв
Тема:
Механічні процеси та апарати
Дніпропетровськ 2009
1. МАШИНИ ДЛЯ ДРОБЛЕННЯ ТВЕРДИХ МАТЕРІАЛІВ
1.1 Щокова дробарка
Щокові дробарки застосовуються для крупного і середнього дроблення
кускових матеріалів середньої і великої твердості. Незалежно від типу і
конструктивних особливостей принцип дії щокових дробарок полягає у наступному.
Матеріал, що підлягає дробленню, подається в камеру дроблення, що має
форму клина і утворена двома щоками. У більшості випадків одна щока є
нерухомою, а інша рухома. Завдяки клинчастій формі камери дроблення куски
матеріалу розташовуються по висоті камери залежно від їх крупності: більші -
угорі, менш великі - унизу. Рухома щока періодично наближається до нерухомої, і
при зближенні щік (хід стискання) куски матеріалу дробляться. При відході
рухомої щоки (холостий хід) куски матеріалу просуваються донизу під дією сили
ваги або виходять із камери дроблення через найбільш вузьку частину камери, яку
називають вихідною щілиною, і потім цикл повторюється.
Основними параметрами, що характеризують щокову дробарку, є розміри
прийомного отвору і вихідної щілини. Від ширини прийомного отвору (зіву)
залежить максимальний розмір вихідного куска матеріалу, а від його довжини
залежить кількість кусків, що завантажуються, а також продуктивність дробарки.
Ширина вихідної щілини характеризує максимальний розмір подрібненого матеріалу,
тобто ступінь здрібнення.
а) Класифікація щокових дробарок
Залежно від кінематичних особливостей механізму щокових дробарок, їх
конструктивних особливостей всі існуючі типи дробарок класифікуються на групи (рис.
2.1).
За конструктивними ознаками щокові дробарки класифікуються по характеру
коливання рухомої щоки (див. рис. 2.1, а, б); по методу підвісу рухомої
щоки (див. рис.2.1, а, в, г); по конструкції пристрою, що приводить у
рух рухому щоку. За характером коливання рухомої щоки дробарки класифікуються
на дробарки із простим (див. рис. 1.1, а, б) і зі складним коливанням
рухомої щоки (див. рис. 1.1, в, г).


Рисунок 1.1 - Кінематичні схеми щокових дробарок
а, б - дробарки із простим коливанням рухомої щоки; в, г -
дробарки зі складним коливанням рухомої щоки; а, в, г - дробарки з
верхнім підвісом рухомої щоки; б - дробарка з нижнім підвісом рухомої
щоки; а, б ,в - дробарки із шарнірно-важільним приводом; г -
дробарка з роликово-кулачковим приводом
Дробарки із простим коливанням рухомої щоки - це апарати, у
яких рухома щока підвішена на нерухомій осі (див. рис. 1.1, а, б). У
процесі роботи кожна точка рухомої щоки описує дугу окружності, центром якої є
геометрична вісь підвіски. Подрібнення матеріалу здійснюється за рахунок
роздавлювання при переміщенні рухомої щоки до нерухомої.
Дробарки зі складним коливанням рухомої щоки - це апарати, у
яких рухома щока підвішена на ексцентриковому валу (див рис. 1.1, в,
г). У процесі роботи кожна точка робочої поверхні рухомої щоки переміщається
не тільки по дузі окружності, але й робить коливання уздовж площини поверхні
рухомої щоки. Траєкторія, що описується точками, які розташовані на робочій
поверхні рухомої щоки, не однотипна: поблизу підвіски щоки до ексцентрикового
вала вона близька до окружності, а в міру віддалення від ексцентрикового вала
наближається до еліпса, довга напіввісь якого розташована уздовж робочої
площини рухомої щоки. Подрібнення здійснюється не тільки за рахунок
роздавлювання при наближенні рухомої щоки до нерухомої, але й за рахунок
стирання при переміщенні щоки уздовж робочої поверхні.
Дробарки з верхнім підвісом рухомої щоки (див. рис. 1.1,
а, в, г)- це агрегати, у яких розмір завантажувального отвору (зіву) не
змінюється в процесі роботи. Розмір розвантажувального отвору (ширина щілини)
безупинно змінюється (при зближенні щік вона зменшується до мінімуму, а при
розсуванні - збільшується до максимуму). Наслідком цього є неоднорідність
продуктів подрібнення за розміром кусків.
Дробарки з нижнім підвісом рухомої щоки - це апарати, у яких
в процесі роботи ширина розвантажувального отвору залишається постійною, а
ширина завантажувального отвору змінюється від мінімуму при максимальному
зближенні рухомої щоки до нерухомої (див. рис. 1.1, б). Перевагами таких
дробарок є однорідність подрібненого матеріалу за розміром кусків. Недоліками є
можливість виникнення застійних зон у нижній частині робочого простору
дробарки, що ускладнює вихід матеріалу із зони дроблення, а це, у свою чергу,
збільшує питомі витрати енергії і знижує продуктивність дробарок; подрібнювання
найбільш великих кусків матеріалу на великому видаленні від осі підвіски щоки,
що обумовлює виникнення великого згинального моменту і призводить до
необхідності надмірного зміцнення та обважнювання рухомої щоки.
Залежно від конструкції пристрою, що приводить до руху рухому
щоку, розрізняють дробарки із шарнірно-важільним механізмом (див. рис. 1.1,
а, б, в) і з роликовим (кулачковим) (див. рис. 1.1, г).
б) Щокова дробарка із простим коливанням рухомої щоки
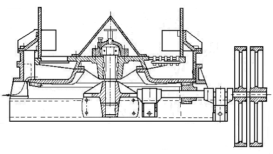
Щокова дробарка із простим коливанням рухомої щоки (рис.
1.2) складається з литої або складеної станини (1) з торцевими
стінками (2), ексцентрикового вала (3), шатуна (4), осі (5),
розпірних плит (6). Передня поверхня станини, що виконує роль нерухомої
щоки, футерується ребристою плитою (7). Рухома щока (8), яка
також футерована ребристою плитою (7), підвішена на осі (5), що
змонтована в підшипниках. Торцева стінка (2) упирається однією стороною
у виступи станини (1), а іншою - у нерухому щоку і кріпить її. Виготовлення
робочих поверхонь плит, що встановлюються на рухомій і нерухомій щоках,
рифленими забезпечує можливість не тільки роздавлювати матеріал (стискати), але
й розколювати його за рахунок вигину. Порожнина, що утворена нерухомою щокою,
торцевими стінками (2) і рухомою щокою (8), називається камерою
дроблення (або пащею дробарки). На обох кінцях ексцентрикового вала (3)
через фрикційні муфти закріплені маховики (9), один із яких є одночасно
приводним шківом, на якому є проточки для клинових ременів.
Рисунок 1.2 - Щокова дробарка із простим коливанням рухомої
щоки
1 - станина; 2 - торцева стінка; 3 - ексцентриковий вал;
4 - шатун; 5- вісь; 6 - розпірні плити; 7 - ребриста
плита; 8 - рухома щока; 9 - маховик; 10 - регулювальний
пристрій; 11 - тяга; 12 - циліндрична пружина
Ексцентриковий вал (3) встановлюється на підшипниках
ковзання і одержує обертання від двигуна за допомогою пасової передачі. У
середній частині ексцентрикового вала встановлений шатун (4).
Нижня частина шатуна (4) зв'язана з вільно
встановленими в пазах розпірними плитами (6). Одна розпірна плита
з'єднана з рухомою щокою (8), а друга плита упирається в паз із
регулювальним пристроєм (10). Для запобігання випадання розпірних плит (6)
з пазів при русі рухомої щоки (8) вона відтягується тягою (11),
на яку насаджена пружина (12).
Робота дробарки відбувається в наступній послідовності. Від
електродвигуна через клиноремінну передачу обертання передається шківу-маховику
(9), закріпленому на ексцентриковому валу. При обертанні ексцентрикового
вала (3) підвішений на ньому шатун (4) робить
зворотно-поступальний рух у вертикальній площині - переміщується нагору і вниз. Коли ексцентриковий вал (3)
піднімає шатун (4), поздовжні осі розпірних плит (6)
спрямляються, і рухома щока (8) наближається до нерухомої. При цьому
здійснюється подрібнювання матеріалу за рахунок роздавлювання в просторі між
щоками.
При русі шатуна (4) донизу розпірні плити
встановлюються під кутом і відбувається холостий хід. Енергія холостого ходу електродвигуна
акумулюється маховиками (9) та використовується під час робочого ходу.
Рухома щока (8) під час холостого ходу під дією власної ваги, тяги (11)
й зусилля пружини (12) відходить вправо. При цьому розвантажувальна
щілина збільшується, і більш дрібні куски матеріалу виходять із робочого
простору, а великі куски опускаються вниз між ребристими плитами щік дробарки.
При наступному зближенні щік відбувається подальше дроблення матеріалу.
Крупність одержуваного матеріалу змінюють за рахунок зміни
ширини розвантажувальної щілини, що регулюється підняттям або опусканням
регулювального пристрою (10).
в) Щокова дробарка зі складним коливанням рухомої щоки
Дробарки зі складним рухом рухомої щоки (рис. 1.3) по
конструкції вузлів аналогічні дробаркам із простим коливанням рухомої щоки,
крім механізму приведення щоки в рух. Кут нахилу розпірної плити (7), а,
отже, і ширину вихідної щілини дробарки регулюють обертанням різьбової втулки з
насадженою на неї зірочкою (11). При цьому за допомогою болта (10)
переміщують вертикальний клин (9). Пружина (12) на тязі (13)
з гайками (14) здійснює постійне притиснення рухомої щоки (2) до
розпірної плити (7). На виступаючих за підшипниками (6) кінцях
вала (5) закріплені маховики (17), один із яких є шківом для
клиноремінної передачі, через яку від електродвигуна передається обертання
ексцентриковому валу.
Конструктивною відмінністю дробарки зі складним коливанням
рухомої щоки є підвіска верхнього кінця рухомої щоки (2) безпосередньо
на ексцентриковий вал (5), чим обумовлена відсутність шатуна і однієї
розпірної плити. Роль шатуна виконує рухома щока (2), яку футеровано
ребристою плитою (3). Нижня частина рухомої щоки (2) упирається в
розпірну плиту (7). Другий кінець розпірної плити (7) упирається
в горизонтальний регулювальний клин (8), переміщенню якого нагору
перешкоджає площадка (15).
Рисунок 1.3 - Щокова дробарка зі складним коливанням рухомої
щоки
- станина; 2 - рухома щока; 3 - ребриста
плита; 4 - нерухома щока; 5 - ексцентриковий вал; 6 -
підшипники; 7 - розпірна плита; 8 - горизонтальний клин; 9
- вертикальний клин; 10 - болт; 11 - зірочка; 12 -
пружина; 13 - тяга; 14 - гайка; 15 - площадка; 16 -
торцева стінка; 17 - маховик
Щокова дробарка зі складним коливанням рухомої щоки не має
холостого ходу. У процесі дроблення при відході верхньої частини рухомої щоки
працює її нижня частина, подрібнюючи невеликі куски, а при відході нижньої
частини працює верхня, руйнуючи великі куски матеріалу. Рухома щока при своєму
русі не тільки наближається або відходить від нерухомої, але і переміщується
уздовж своєї поздовжньої осі. Тому крім роздавлювання і розколювання кусків
матеріалу ребрами плит здійснюється стираюча дія, що полегшує процес дроблення,
але збільшує зношення ребристих плит.
Поздовжнє переміщення рухомої щоки сприяє інтенсивному
просуванню матеріалу донизу і збільшує продуктивність дробарки.
1.2 Конусна дробарка
Конусні дробарки застосовуються для крупного, середнього і
дрібного дроблення матеріалів великої і середньої твердості. Конусна дробарка
являє собою агрегат, дроблення матеріалу в якому відбувається в просторі між
двома конусами, один із яких рухомий, а інший нерухомий.
Дроблення матеріалу відбувається безупинно за рахунок
роздавлювання і вигину матеріалу між двома конусами при наближенні до
нерухомого конуса поверхні рухомого конуса, який робить поступальні рухи в
горизонтальній площині, або кругові коливання руху, ексцентричні щодо
внутрішньої поверхні нерухомого конуса. За кожну половину коливання
внутрішнього конуса, коли він наближається до внутрішньої поверхні нерухомого
конуса, матеріал буде дробитися в даній ділянці зони дроблення. У протилежній
ділянці рухомий конус відійде від нерухомого на максимально можливу відстань,
що буде відповідати моменту видалення із зони дроблення подрібненого матеріалу.
Подрібнений продукт під дією власної ваги переміщується вниз до вихідного
отвору і виводиться з агрегату як тільки його розміри стануть менше ширини
розвантажувального отвору.
а) Класифікація
конусних дробарок
Конусні дробарки класифікуються залежно від крупності
матеріалу, що завантажується, та за конструктивними ознаками (табл. 1.1).
Таблиця 1.1
Класифікація
конусних дробарок
|
Ознака класифікації
|
По крупності матеріалу
|
Дробарки крупного дроблення (ККД)
|
- розмір кусків, що завантажуються, 300 - 1500 мм; -
ширина розвантажувальної щілини 50 - 220 мм.
|
|
|
Дробарки середнього дроблення (КСД)
|
- розмір кусків, що завантажуються, 75 - 350 мм; -
ширина розвантажувальної щілини 15 - 60 мм.
|
|
|
Дробарки дрібного і середнього дроблення (КМД)
|
- розмір кусків, що завантажуються, 30 - 75 мм; -
ширина розвантажувальної щілини 3 - 25 мм.
|
|
По конструктивній ознаці
|
Дробарки з підвішеним валом
|
|
|
Дробарки з вертикально нерухомим валом
|
|
|
Дробарки з консольним валом
|
|
|
Інерційні конусні дробарки
|
б)
Конусні дробарки з підвішеним валом
Конусні дробарки з підвішеним валом призначені для крупного
дроблення і використовуються, як правило, для первинного подрібнення матеріалу.
Ступінь здрібнювання в конусних дробарках для крупного дроблення досягає 4-6.
Розріз та загальна схема типової конструкції конусної дробарки представлені на рисунку
1.4.
а) розріз дробарки б) кінематична
схема
Рисунок 1.4 - Конусна дробарка з підвішеним валом
- нерухомий конус; 2 - станина; 3 - сталева
броня; 4 - рухомий конус; 5 - вал; 6 - траверса; 7
- знімний ковпак; 8 - ексцентриковий стакан; 9 - нерухома втулка;
10, 11 - конічні шестірні; 12 - приводний вал; 13 -
гайка
Зовнішній нерухомий конус (1), футерований броньовими
стальними плитами (3), установлюється на масивній станині (2).
Внутрішній рухомий конус (4), футерований збірними броньовими плитами зі
зносостійкої сталі, закріплений на вертикальному валу (5). У верхній
частині корпуса дробарки кріпиться траверса (6), у середній частині якої
розташований вузол підвіски вала (5) рухомого конуса, захищений знімним
ковпаком (7). Нижній кінець вала (5) встановлюється в
ексцентриковий стакан (8), що обертається в нерухомій втулці (9).
До втулки (9) кріпиться конічна шестірня (10), яка знаходиться в
зачепленні з конічною шестірнею (11) привідного валу (12).
Приведення у рух ексцентрикового стакана (8) здійснюється від
електродвигуна за допомогою конічних шестерень (10,11),
приводного вала (12) і клиноремінної передачі.
При обертанні стакана (8) нижній кінець вала (5)
переміщається по круговій траєкторії, і його вісь описує конус із вершиною в
точці О (див. рис. 1.4, б). В результаті рухомий конус (4)
як би обкатує внутрішню поверхню нерухомого конуса (1) і куски
матеріалу, що потрапили в робочий простір між конусами, дробляться шляхом
натиснення внутрішнього рухомого конуса (4). При цьому рухомий конус
дробарки (4) в одній частині окружності наближається до нерухомого
конуса (1), здійснюючи дроблення матеріалу; у протилежній частині
окружності рухомий конус віддаляється від нерухомого конуса (1) і подрібнений
матеріал опускається через щілину, що збільшується. Для регулювання ступеня
здрібнювання матеріалу підтягують гайку (13), піднімаючи вал (5)
разом із внутрішнім (рухомим) конусом (4), у результаті чого
розвантажувальна щілина між ним і нерухомим конусом (1) зменшується, а
ступінь здрібнювання збільшується. Для зменшення ступеня здрібнювання
обертанням гайки (13) опускають внутрішній конус, і розвантажувальна
щілина збільшується.
в) Конусна дробарка з вертикально нерухомим валом
Цей тип дробарки призначений для крупного і середнього
дроблення твердих матеріалів і матеріалів середньої твердості. Конструкція
дробарки наведена на рисунку 1.5.
У головці (7) і станині дробарки (8) за
допомогою рознімних конічних втулок (9) і гайок (10) жорстко
закріплений вертикальний вал (5), на який вільно насаджена ексцентрикова
втулка (6). Рухомий конус (3), що здійснює подрібнення,
насаджений на ексцентрикову втулку (6). Рух ексцентрикової втулки
здійснюється за допомогою пари конічних шестерень (11, 12) від
приводного вала (13).

- нерухомий конус; 2, 4 - сталева броня; 3 -
рухомий конус; 5 - вал; 6 - ексцентрикова втулка; 7 -
головка; 8 - станина; 9 - рознімна втулка; 10 - гайка; 11,
12 - конічні шестірні; 13 - приводний вал
При обертанні ексцентрикової втулки (6) рухомий конус
(3) робить не коливальний, а поступальний рух, який чинить тиск на
матеріал, що дробиться, по всій висоті ексцентрикової втулки. При обертанні
вала (5) геометрична вісь рухомого конуса описує циліндричну поверхню.
Переваги дробарок: менші габаритні розміри; більш інтенсивне
подрібнювання внаслідок того, що зусилля, яке дробить, передається на матеріал
по всій висоті рухомого конуса; більш низькі питомі енерговитрати. До недоліку
цих дробарок варто віднести відсутність регулювання ширини завантажувальної
щілини.
г)
Конусна дробарка з консольним валом
Цей тип конусних дробарок призначений для середнього й
дрібного дроблення матеріалів середньої твердості. На відміну від конусних
дробарок для крупного дроблення в них нерухомий конус має широку основу внизу,
а у рухомого конуса нижня основа значно більше верхньої, і рухомий конус
насаджений на головний вал консольно.
Конструктивно такі дробарки виготовляють трьох типів:
нормальні - для середнього дроблення, середньоконусні - для дрібного дроблення,
короткоконусні - для особливо дрібного дроблення. Конструкції цих дробарок
аналогічні і відрізняються розмірами завантажувального пристрою та профілем зони
дроблення.
Конструкція конусної дробарка з консольним валом представлена
на рисунку 1.6.
Рисунок 1.6 - Конусна дробарка з консольним валом
- нерухомий конус; 2 - станина; 3 - сталева
броня; 4 - рухомий конус; 5 - головний вал; 6 -
розподільна тарілка; 7 - лійка; 8 - гвинтовий домкрат; 9, 11
- втулка; 10 - ексцентриковий стакан; 12 - патрубок; 13 -
приводний вал; 14, 15 - конічні шестірні; 16 - пружина
Дробарка складається з нерухомого конуса (1),
виконаного у вигляді збірної конструкції, нижня частина якого жорстко
закріплена на фундаменті станини (2), а верхня частина станини за
допомогою гвинтового різьблення з'єднана з регулювальним кільцем нерухомого
конуса (1). Рухомий конус (4), футерований із зовнішньої поверхні
сталевими бронями (3), закріплено на головному валу (5). На
верхньому кінці головного валу встановлена розподільна тарілка (6).
Матеріал, що підлягає дробленню, падає із завантажувальної
лійки (7) на розподільну тарілку (6), звідки подається по
периметру в камеру дроблення.
Регулювання ширини розвантажувальної щілини і ступеню
здрібнювання кусків матеріалу при дробленні здійснюється за допомогою
регулювального кільця із гвинтовим різьбленням. Провертаючи зовнішній конус за
допомогою домкрата (8), здійснюють його підйом або опускання. При цьому
в результаті віддалення або наближення нерухомого і рухомого конусів змінюється
величина розвантажувальної щілини. Нижній кінець головного вала (5)
входить у бронзову втулку (9), що перебуває у розточці ексцентрикового
стакана (10), який обертається у втулці (11). Втулка (11)
запресована в масивний патрубок (12), відлитий разом з нижньою частиною
станини.
Обертання ексцентрикового стакана (10), насадженого на
головний вал (5), передається від електродвигуна за допомогою конічних
шестерень (14, 15), приводного вала (13) і клиноремінної
передачі. Обертання ексцентрикового стакана (10) змушує рухомий конус (4)
робити обертальні й коливальні рухи, наближаючись до нерухомого конуса (1)
однією своєю стороною й віддаляючись протилежною. При наближенні рухомого
конуса до нерухомого між ними відбувається дроблення матеріалу за рахунок
роздавлювання і частково за рахунок стирання, а на протилежній стороні
подрібнений матеріал виходить із камери дроблення під дією сил ваги й
відцентрових сил інерції.
Для запобігання дробарки від поломки кріплення рухомого (4)
конуса виконується за допомогою пружин (16), які встановлені по
периметру агрегату. При попаданні в камеру дроблення тіл, що не дробляться,
пружини (16) стискуються, конус (4) підіймається, і вони
проходять через камеру дроблення, не ушкоджуючи дробарку.
Перевагами дробарок даного типу є: висока продуктивність,
постійний і високий ступінь здрібнювання, малі габарити. Недоліки: складність
будови і експлуатації, дорожнеча виготовлення.
д)
Інерційна конусна дробарка
Розглянуті три типи дробарок мають загальну конструктивну
особливість - розбіжність геометричних осей рухомого і нерухомого конусів
(гіраційні дробарки). Ступінь здрібнювання в цих дробарках 30 - 40, а в
гіраційних - 5-6.
Інерційні відрізняються тим, що геометричні осі рухомого і
нерухомого конусів збігаються. Для забезпечення максимального наближення
робочої поверхні рухомого конуса до нерухомого є наступні особливості
конструкції: обертання від електродвигуна через редуктор передається на
головний вал, у нижній частині якого є два шпинделі, що дозволяють валу
обертатися з деякою амплітудою. Для створення інерційної сили конуса, що
дробить, у середній частині вала встановлений дебалансний вантаж, центр ваги
якого не збігається з геометричною віссю обертання вала. Дебаланс при обертанні
головного вала дробарки створює відцентрову силу інерції, що забезпечує
притиснення рухомого конуса до нерухомого і роздавлювання при цьому куски
матеріалу, що дробляться.
У порівнянні із щоковими дробарками перевагами конусних
дробарок є низька питома витрата енергії на дроблення; більша продуктивність;
рівномірність у роботі, відсутність потреби встановлення маховиків для
акумулювання енергії; можливість живлення матеріалами у будь-якій точці по
окружності завантажувального пристрою. Недоліки конусних дробарок: складність
конструкції, налагодження й ремонту; значні габарити по висоті.
1.3 Валкова дробарка
Валкові дробарки використовують для середнього і дрібного
дроблення твердих і пластичних матеріалів.
Основним робочим органом дробарок є два циліндри (валка), що
обертаються на горизонтальній осі назустріч один одному й розсунуті на
відстань, обумовлену максимальним розміром матеріалу після дроблення. Діаметр
валків становить 400 - 1500 мм, а їх ширина 0,4 - 1,0 величини діаметра.
Матеріал, що підлягає дробленню, внаслідок тертя об поверхню
валків захоплюється валками в простір між ними і при цьому поступово
подрібнюється. Здрібнювання матеріалу здійснюється в основному за рахунок
роздавлювання.
Поверхні валків дробарки бувають зубчастими, рифленими і
гладкими. Гладкі валки звичайно складаються з бандажа, а також з окремих кілець
або цільні. Подрібнення у дробарках із гладкими валками здійснюється за рахунок
роздавлювання при обмеженому стиранні. Однократне стискання кусків матеріалу,
що дробиться, при проходженні між валками обумовлює малий вихід дрібних
частинок матеріалу. Зубчасті валки встановлюються в машинах для середнього
дроблення й попереднього подрібнювання глинистих матеріалів, сланців або
особливо щільних, крихких матеріалів. Зубчасті валки виготовляють із окремих, відлитих
разом із зубами кілець, які закріплюються безпосередньо на валу. Подрібнення у
дробарках із зубчастими валками здійснюється за рахунок розколювання при
незначному стиранні. Ці дробарки застосовують в основному для крупного і
середнього дроблення матеріалів. Дробарки з ребристими валками мають по всій
довжині валка ребра. Можливо сполучення поверхонь, що дроблять: обидва валки
можуть мати гладку поверхню, або один - гладку, а другий - рифлену. Часто
валкам надають різну окружну швидкість обертання, у результаті чого вони
дроблять матеріал роздавлюванням і стиранням, а в дробарках із зубчастими
валками - ударом і вигином.
При використанні гладких і рифлених валків здійснюють
дроблення твердих матеріалів - в основному середньої міцності (до 150 МПа), а на
зубчастих валках дроблять також м’які матеріали (до 80 МПа).
У залежності від властивостей матеріалу, що подрібнюється,
конструкції валків і принципу дії дробарки, ступінь здрібнювання приймається:
для твердих матеріалів і = 4; для м’яких і пластичних матеріалів і
= 6 ÷ 8; при
подрібненні в зубчастих валках пластичних глинистих матеріалів і
= 11 ÷ 12 і
більше.
Конструктивно дробарки з гладкими і рифленими валками мають
два валки, а з зубчастими валками можуть бути одно- , двох- і багатовалкові.
Валкові дробарки залежно від методу установки валків, їх
конструкції, принципу дії підрозділяються на різні типи (табл. 1.2).
Таблиця
1.2
Класифікація валкових дробарок
|
Ознака
|
Типи валкових дробарок
|
|
По методу установки валків
|
- дробарки з однією парою рухомих підшипників; - із
двома парами нерухомих підшипників; - із двома парами рухомих підшипників.
|
|
По конструкції валків
|
- дробарки із зубчастими валками; - дробарки з
рифленими валками; - дробарки із гладкими валками.
|
|
За принципом дії
|
- дробарки, що діють роздавлюванням; - дробарки, що
діють роздавлюванням у сполученні зі стиранням, розколюванням, розриванням; -
дробарки, що діють роздавлюванням і частково ударом.
|
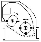
Валкові дробарки з рухомими підшипниками одного з валків (рис.
1.7, а) одержали найбільше поширення, тому що установка однієї пари рухомих
підшипників дозволяє пропускати сторонні предмети (матеріал, що не дробиться)
без поломки агрегату. Дробарки із двома парами нерухомих підшипників більш
прості по конструкції (рис. 1.7, б), однак без спеціальних запобіжних
пристроїв цим дробаркам властиві часті поломки окремих деталей при попаданні
між валками твердих предметів, що не дробляться. Дробарки із двома парами
рухомих підшипників складні за конструкцією і не знайшли поширення (рис.
1.7, в).
Рисунок 1.7 - Схеми валкових дробарок
а) з однією парою рухомих підшипників; б) із двома
парами нерухомих підшипників; в) із двома парами рухомих підшипників
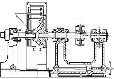
Загальний вид валкової дробарки з гладкими валками наведено
на рисунку 1.8.
Привід валків здійснюється через пасову передачу, шків (7),
вал (8) і шестірні (9, 10, 11, 12).
Прикладом дробарки з ребристими валками є каменевідділяючі
валкові (дезинтеграторні) дробарки, які відносяться до дробарок середнього
дроблення й призначені для подрібнювання глинистих пластичних матеріалів з
одночасним видаленням твердих включень (каменів і інших сторонніх предметів).
Рисунок 1.8 - Валкова дробарка
1 - станина; 2, 3 - валки; 4, 5 - підшипники; 6
- запобіжні пружини; 7 - шків; 8 - вал; 9, 10, 11,
12 - шестірні
Каменевідділяюча валкова дробарка (рис. 1.9) має два
валки (1, 2) різних діаметрів: у великого валка (1)
поверхня гладка, а в меншого валка (2) є поздовжні ребра (3). На
валах (4, 5) кожного валка встановлені шківи (6, 7).
Шків (6) і великий валок (1) роблять 40 - 60 об/хв, а шків (7)
і менший ребристий валок (2) роблять 400 - 600 об/хв.
Рисунок 1.9 - Каменевідділяюча валкова дробарка
1, 2 - валки; 3 - ребра на валку; 4, 5 - вал; 6,
7 - шків; 8 - прийомна лійка; 9 - направляючий лоток; 10
- кожух; 11 - куски матеріалу; 12 - отвір
Матеріал, що підлягає подрібнюванню, через прийомну лійку (8)
надходить по направляючому лотку (9) на ребристий валок (2), який
обертається з великою швидкістю. Під ударами ребер матеріал, поглинаючи значну
частину енергії, деформується і з невеликою швидкістю відкидається на
тихохідний гладкий валок (1), що затягує куски матеріалу в зазор між
валками, де вони й подрібнюються. Тверді куски матеріалу (11), що не
дробляться, при ударі об ребра відкидаються у бік гладкого валка (1),
ударяються об верхню кришку кожуха (10), відбиваються від неї і
видаляються через отвір (12).
1.4 Дробарки ударної дії
До машин ударної дії відносяться молоткові та роторні
дробарки, дезинтеграторні, які застосовуються для дроблення і подрібнення
матеріалів підвищеною, середньої та низької міцності. У дробарках ударної дії
матеріал, що дробиться, руйнується ударом за рахунок кінетичної енергії тіл,
які рухаються. Роторні дробарки мають масивний ротор і застосовуються для
первинного дроблення крупних кусків міцних матеріалів, а також для подрібнення
матеріалів на наступних стадіях. В роторних дробарках дроблення здійснюється
жорстко закріпленими на роторі билами, а не вільно підвішеними на ньому
молотками, і при ударі по куску матеріалу приймає участь вся маса ротора, що і
визначає відмінні особливості та властивості машин.
В молоткових дробарках дроблення здійснюється за рахунок
кінетичної енергії молотків, які шарнірно підвішені до ротора. Матеріал, що
піддають дробленню, завантажують у дробарку зверху. Під дією сили ваги він
падає або сковзає по лотку і попадає під дію бил або молотків швидкообертового
ротора. У результаті удару билами або молотками кусок матеріалу руйнуються і
його частини відкидаються на футеровку - відбійні плити або колосники, що
утворюють камеру дроблення. Ударяючись об футеровку, матеріал додатково
подрібнюється і, відбиваючись, знову попадає під дію ротора. Цей процес
повторюється багаторазово, поки куски матеріалу, досягши певної крупності, не
вийдуть крізь розвантажувальну щілину або щілину колосникових ґрат.
Класифікацію дробарок ударної дії наведено в таблиці 1.3.
Таблиця
1.3
Класифікація дробарок ударної дії (роторні та молоткові)
|
Ознака класифікаціїТип дробарок
|
|
|
По кількості валків
|
- однороторні, у яких диски з молотками (або біли)
насаджені на один вал, розташований горизонтально; - двороторні - із двома
горизонтальними і паралельно розташованими валами, що обертаються назустріч
один одному.
|
|
По способу кріплення молотків (бил)
|
- дробарки з жорстко закріпленими молотками
(билами), призначені для дроблення м'яких порід (роторні); - дробарки із
шарнірно-рухомими молотками (молоткові).
|
|
По розташуванню молотків
|
- однорядні, у яких молотки розташовуються в один
ряд; - багаторядні, які бувають одно- і двороторні.
|
Схеми основних типів дробарок наведено на рисунку 1.10.
Найпоширенішими є однороторні дробарки (див. рис. 1.10, а). Двороторні
дробарки одноступінчастого (паралельного) дроблення (див. рис. 1.10, б)
застосовують, коли потрібна висока продуктивність. Обидва ротори дробарки
працюють самостійно і вихідний матеріал надходить рівномірно на обидва ротори.
Двороторні дробарки двоступеневого (послідовного) дроблення (див. рис. 1.10,
в) застосовують, коли необхідно сполучити дві стадії дроблення.
У цих дробарках матеріал надходить спочатку на перший ротор,
а потім на другий, де подрібнюється.
|
Молоткові дробарки
|
Роторні дробарки
|
|
|

|
|
|
|
|
|
|
|
Рисунок 1.10 - Основні схеми дробарок ударної дії: а)
однороторна; б) двороторна паралельного дроблення; в) двороторна
послідовного дроблення; г) реверсивна однороторна;
- горизонтальний вал; 2 - колосникова решітка; 3
- молотки; 4 - корпус; 5 - відбійні плити; 6 - біли; 7
- загрузочна лійка
Для кращого використання робочої поверхні бил і молотків
застосовують реверсивні дробарки (див. рис. 1.10, г), які мають
симетричну камеру дроблення і можуть працювати при різних напрямках обертання
ротора, що дозволяє використовувати била й молотки із двох сторін, без
переустановки. матеріал дробарка глинорізальний млин
Молоткові дробарки призначені для крупного, дрібного і середнього
дроблення матеріалів різної твердості. У молоткових дробарках досягається
ступінь дроблення до 30-40.
Матеріал, що дробиться, надходить у робочий простір через
завантажувальний отвір і попадає в зону дії обертових молотків, які вдаряють по
кусках і з силою відкидають їх до стінок корпуса на плити. Руйнування кусків
матеріалу обумовлено ударом молотків, ударом кусків матеріалу об плити,
роздавлюванням і стиранням кусків молотками на колосникових ґратах.
Розвантаження здрібненого матеріалу здійснюється донизу під дробарку. Молоткові
дробарки виготовляють із колосниковими ґратами і без них. Дробарки з
колосниковими ґратами призначені для одержання продукту з певною крупністю
максимального куска і їх застосовують головним чином для дрібного дроблення.
Молоткові дробарки без колосникових ґрат видають продукт потрібної крупності
внаслідок підвищеної частоти обертання ротора. Молоткові дробарки роблять із
обертанням ротора в одному напрямку і реверсивними. Можливість зміни обертання
ротора в реверсивних дробарках дозволяє двостороннє використання молотків без
розбирання дробарки для їхнього повороту.
В залежності від властивостей матеріалу, що дробиться, і
необхідної крупності подрібненого продукту застосовують молотки різної форми (рис.
1.11) і ваги, яка коливається від 1 кг до 135 кг. Молотки колосникового типу
і скобоподібні застосовують для дроблення крихких малоабразивних і м’яких
матеріалів. Молотки бандажного типу і скобоподібні молотки використовують при
дробленні міцних матеріалів середньої абразивності. Розріз типової молоткової
однороторної дробарки наведено на рисунку 1.12. Корпус дробарки (1)
зварений зі сталевих листів. Внутрішні стінки корпусу в зоні камери дроблення,
відбійна плита (4), відбійний брус (5), футеровані плитами з
зносостійкого матеріалу. Нижня частина плити (4) може переміщатися щодо
ротора (2) за допомогою регулювального пристрою, у результаті чого зазор
між окружністю обертання молотків і нижнім кінцем плити може змінюватися.

Рисунок 1.11 - Форми молотків
а) молотки колосникового типу; б) молотки бандажного
типу; в), г) скобоподібні молотки
Рисунок 1.12 - Молоткова однороторна дробарка
1 - корпус; 2 - ротор; 3 - молотки; 4 - відбійні
плити; 5 - відбійний брус; 6 - поворотні колосникові грати; 7
- відкотні колосникові грати; 8 - вал
Відбійний брус (5) використовується для регулювання
крупності готового продукту. Ротор (2) складається з окремих дисків,
закріплених на валу (8), між якими на осях шарнірно підвішуються молотки
(3). Ротор дробарки даного типу має шість рядів молотків, які
розташовані в шаховому порядку. Колосникові ґрати (6,7) мають щілини, що
забезпечують розвантаження подрібненого продукту з камери дроблення.
Переваги молоткових дробарок: простота конструкції, невеликі
габаритні розміри, невелика вага, високий ступінь здрібнювання. Недоліки: швидке
зношування молотків, колосників і броньових плит, забивання колосникового
решета при дробленні вологих пластичних матеріалів.
Дезинтегратор призначений для помелу м'яких матеріалів з малою
абразивністю (глини, каоліни, вугілля) з вологістю не більш 10 - 12 %.
Робочим органом дезинтегратора (рис. 1.13) є так звані
корзини, які являють собою закріплений на маточині (3) сталевий диск (4),
по полю якого концентричними колами розташовані ряди стержнів - бил (5).
Рисунок 1.13 - Дезинтегратор
1 - шків; 2, 12 - вал; 3, 9 - маточина; 4, 8 -
сталевий диск; 5, 7 - били; 6, 13 - сталеве кільце; 10 -
лійка; 11 кожух
Кінці бил (5) кожного ряду з'єднані сталевим кільцем (6).
Диск (4), маточина (3), били (5), кільце (6)
утворюють велику корзину. Мала корзина аналогічної конструкції складається з
диска (8), маточини (9), бил (7), з'єднаних сталевим
кільцем (13). Особливістю розташування рядів бил на дисках є те, що ряди
бил однієї корзини заходять у проміжки між билами іншої корзини.
Маточини великої і малої корзин (3, 9) насаджені на
горизонтальні вали (2, 12), розташовані на одній осі, але вони отримують
обертання від різних електродвигунів за допомогою пасової передачі і шківа (1).
Під час роботи дезинтегратора обидві корзини обертаються одна всередині іншої і
назустріч одна одній. Робочий орган дезинтегратора - корзини - поміщений у
металевий кожух (11), у верхній частині якого є лійка для завантаження
матеріалу, що подрібнюється, а в нижній частині - пристрій для видалення подрібненого
матеріалу (донний люк).
Подрібнювання матеріалу здійснюється в такий спосіб. Матеріал
через лійку подається в центральну частину обертових корзин. Потрапляючи на
били внутрішнього ряду малої корзини, куски матеріалу від удару по них
розбиваються, а їх осколки відкидаються по дотичній до окружності цього ряду і
зіштовхуються із билами великої корзини, що рухаються назустріч. При цьому
відбувається аналогічна схема дроблення і матеріал, розбиваючись, відкидається
на наступний ряд бил і т.д. Частинки матеріалу, проходячи через ряди бил,
зазнають від них удари і в міру просування від центральної частини до периферії
стають усе менше. Пройшовши останній ряд бив, здрібнені частинки висипаються
через донний люк. Били першого внутрішнього ряду малої корзини виготовляють
більшого діаметра, ніж били інших рядів, тому що наступні ряди сприймають удари
менш великих (уже здрібнених) кусків матеріалу. Тонина помелу матеріалу в
дезинтеграторі підвищується зі збільшенням числа бил у рядах, числа рядів і
частоти обертання корзин. При 4-х рядах бил у подрібненому глинистому матеріалі
міститься до 70-80% зерен розміром менш 0,5 мм.
Переваги дезинтегратора: простота конструкції й
обслуговування, висока тонина помелу й можливість її регулювання. Недоліки:
небезпека поломки при влученні металевих предметів, швидке зношування корзин
(особливо бил), порівняно велика витрата енергії.
1.5 Глинорізальна машина
Глиностругач (ножова глинорізалка) призначений для дроблення
вологих і пластичних матеріалів (глин, каолінів з вологістю до 24%). Розмір
кусків матеріалу після дроблення 40 - 50 мм. Конструктивно розрізняють стругачі
з вертикальним і горизонтальним диском. Найбільше поширення мають стругачі з
горизонтальним диском (рис. 1.14).
Головним робочим органом машини є різальний диск (4)
із закріпленими на ньому ножами (5). Ножі (5) установлюються в
спеціальні обойми, що мають кут нахилу 20-240 до обрію.
Рисунок 1.14 - Глиностругач
1 - приводний вал; 2 - мала конічна шестірня; 3 - велика
конічна шестірня; 4 - різальний диск; 5 - ножі; 6 -
вертикальна вісь; 7 - станина; 8 - шарикопідшипник; 9 -
головка; 10 - конус; 11 - перегородки; 12 - верхній
циліндричний кожух; 13 - нижній кожух; 14 - розвантажувальна
тарілка
Диск (4) установлений горизонтально і обертається на
вертикальній осі (6), закріпленій на станині (7). На верхню
частину осі (6) насаджений шарикопідшипник (8), що перебуває в
головці (9). Від приводного вала (1) за допомогою закріпленої на
ньому малої конічної шестірні (2) обертання передається великій конічній
шестірні (3). Верхня частина шестірні (3) виконана у вигляді
горизонтального диска, на який прикріплений різальний диск (4). Матеріал
надходить у машину зверху і попадає на решето з розміром чарунок 250 - 300 мм,
а потім падає конусом (10) на поверхню диска (4) до ножів (5).
Конус (10) дозволяє матеріалу переміщатися від центра до периферії в
просторі під перегородками - косинками (11). При обертанні диска (4)
ножі (5) ріжуть глину, що у вигляді стружки через отвори в диску провалюється
на розвантажувальну тарілку (14), звідти відкидається шкребком через
отвір у нижньому кожусі (13) і направляється на транспортний пристрій.
Матеріал утримується від обертання разом з диском (5) радіально
спрямованими перегородками - косинками (11), які закріплені болтами на
верхній частині кожуха (12). Верхня частина кожуха (12) скріплена
з нижньою частиною кожуха (13), що змонтований на станині (7).
Під час роботи прийомний циліндр повинен бути повністю
завантажений матеріалом, інакше нижні шари матеріалу, не притиснуті зверху,
будуть переміщатися разом з диском. Товщина глиняної стружки регулюється
висуванням ножів над поверхнею диска. Продуктивність глиностругача залежить від
діаметра різального диска, числа ножів, числа обертів диска, вологості матеріалу.
Технічні характеристики різних видів агрегатів для дроблення
твердих матеріалів наведені в додатку А.
2. УСТАТКУВАННЯ ДЛЯ ПОМЕЛУ ТВЕРДИХ МАТЕРІАЛІВ
2.1 Подрібнювання матеріалів у млинах барабанного типу
Барабанні млини призначені для грубого і тонкого порібнювання
матеріалів різної твердості. Конструктивно являють собою металевий барабан з
помельними тілами, який опирається на опори й обертається навколо
горизонтальної осі. Типи барабанних млинів наведені в таблиці 2.1.
Таблиця
2.1
Класифікація барабанних млинів
|
Ознака класифікації
|
Типи барабанних млинів
|
|
По співвідношенню довжини барабана до його діаметра
і конструктивному виконанню барабана
|
- короткі циліндричні (довжина : діаметр = 1); -
довгі циліндричні (довжина : діаметр = 2:3); - трубні (довжина : діаметр >
3); - конічні
|
|
По числу камер млина
|
- однокамерні; багатокамерні.
|
|
За принципом дії
|
- безперервної дії; періодичної дії.
|
|
За способом розвантаження матеріалу з млина
|
- із центральним розвантаженням; - з периферійним
розвантаженням.
|
|
За способом помелу
|
- сухого помелу; мокрого помелу.
|
Для помелу використовуються помельні тіла: кулі (діаметр
30-150мм), цильпебси (помельні тіла циліндричної форми діаметром 18 мм і
довжиною 45 мм), стержні. Характер і ефективність процесу подрібнювання, крім
фізичних властивостей матеріалу, залежить від форми і розмірів помельних тіл,
ступеня заповнення барабана млина помельними тілами і матеріалом, числа обертів
барабана млина. При обертанні барабана млина можливі наступні режими руху куль
(рис. 2.1): каскадний (без підкидання куль і при малому числі обертів
барабана); водоспадний режим (з переважним підкиданням куль і при великій
кількості обертів).
Рисунок 2.1 - Схеми руху куль у млині при різних режимах: а)
каскадний режим; б) водоспадний режим
При каскадному режимі кулі зовнішнього шару піднімаються
разом з барабаном млина убік його обертання на деяку висоту, а потім
відриваються і сповзають додолу під кутом, величина якого близька до кута
природного укосу кульового завантаження. Подрібнювання матеріалу при каскадному
режимі досягається в основному за рахунок стирання матеріалу помельними тілами.
Аналітично доведено і підтверджено на прозорих моделях, що каскадний режим
можливий при будь-якій припустимій частоті обертання барабана, але за умови, що
кулями заповнюється менше 29% об'єму барабана.
При водоспадному режимі кулі зовнішнього шару піднімаються
разом з барабаном вище кута природного укосу й, відриваючись, летять вниз по
параболі до зіткнення із внутрішньою поверхнею барабана в нижній діаметрально
протилежній частині. Подрібнювання матеріалу при водоспадному режимі
здійснюється в основному, за рахунок удару падаючих куль і частково за рахунок
стирання кулями внутрішніх шарів. Такий режим має місце при великій частоті
обертання барабана і великій кількості помельних тіл. При водоспадному режимі і
постійному числі обертів барабана млина однакові по масі кулі зовнішнього шару
відриваються від поверхні барабана на деякому постійному рівні. Точка, у якій
кулі, що розташовані в зовнішньому шарі, відриваються від поверхні барабана,
називається точкою відриву куль.
Змішаний режим характеризується поступовим переходом від
чисто каскадного до чисто водоспадного режиму. При цьому зовнішні шари
помельних тіл падають на внутрішні шари матеріалу, що скачуються по схилу
наниз. Такий режим спостерігається при проміжних значеннях частоти обертання
барабана. У більшості випадків млини працюють по змішаному режиму. Більш грубе
подрібнювання доцільно здійснювати при водоспадному і змішаному режимах, а
тонке - при каскадному і змішаному, коли руйнування матеріалу протікає в
основному внаслідок стирання і роздавлювання.
Оскільки барабанні млини різної конструкції виконують
специфічні функції, то розміри конфігурації помельних тіл, які застосовуються у
кожному конкретному випадку, помітно розрізняються. Крупні тіла кулястої форми
використовуються для подрібнювання методом удару, а дрібні кулі і циліндри -
для подрібнювання стиранням. Здрібнювальна дія помельних тіл визначається
фізичними властивостями матеріалу і розміром частинок, числом обертів барабана
млина, розміром і формою помельних тіл, а також ступенем заповнення барабана
помельними тілами.
На підставі експериментальних даних встановлено, що частоту
обертання барабана млинів, що працюють за сухим способом, варто вибирати в
межах 76 - 90 % від критичної частоти, величина якої визначається за формулою
(3.1)
де
- критичне число обертів барабана млина;
-
діаметр барабана млина.
Коефіцієнт заповнення барабана помельними тілами, вага
кульового завантаження визначаються за формулами:
(3.2)
,
(3.3)
-
об'єм помельних тіл, що мелють, м3;
-
об'єм барабана млина, м3;
-
насипна щільність кульового завантаження, т/м3 (
=4,6 - 4,8).
2.1.1 Кульовий млин
Конструктивно розрізняють кульові млини з центральним
розвантаженням подрібненого матеріалу і з периферійним розвантаженням, які
призначені для грубого помелу матеріалів середньої твердості.
Типову конструкцію млина з периферійним розвантаженням
наведено на рисунку 2.2.
Рисунок
2.2 - Кульовий млин з периферійним розвантаженням
1 - торцеві диски; 2 - радіальна броня; 3 - броньові плити; 4,5
- маточина; 6 - вал; 7 - завантажувальна лійка; 8 -
металевий кожух; 9 - сито; 10 - щілини між бронями; 11 -
розвантажувальна лійка
Конструктивно млин являє собою короткий барабан, що
складається із двох сталевих торцевих дисків (1) і радіальних поздовжніх
броней (2), закріплених між дисками (1), які із внутрішньої
сторони облицьовані броньовими плитами (3). Радіальні броні (2)
установлюються по внутрішній поверхні барабана таким чином, щоб між ними були
зазори - щілини (10), через які при обертанні барабана млина проходив
матеріал. Радіальні броні (2) розташовані уступами в напрямку обертання
барабана і утворюють робочу (бічну) поверхню барабана. Диски (1)
закріплені на маточинах (4, 5), які насаджені на вал (6), що
одержує рух від електродвигуна через редуктор. На торцевих дисках (1)
закріплено у вигляді окремих секцій сита (9), які утворюють бічну
поверхню барабана.
Матеріал у вигляді кусків розміром 25-75 мм завантажується
через завантажувальну лійку (7) усередину барабана млина і подрібнюється
до розміру часток менше діаметра отворів у бронеплитах (2). Висипаючись
через отвори в бронеплитах (10), частки матеріалу залишають камеру
подрібнювання і попадають на поверхню сита (9). Частки, що пройшли сито
(9), зсипаються в розвантажувальну лійку, і звідти на транспортний
пристрій. Матеріал, який не пройшов сито (9), вертається через щілини
між бронеплитами (10) у робочий простір барабана на додрібнювання. Цей
круговий безперервний процес протікає доти, поки розмір здрібнених часток
матеріалу не буде менше розміру отворів сита (звичайно менш 0,5 мм).
Недоліки кульового млина з периферійним розвантаженням:
сполучення в одному агрегаті операцій здрібнювання й розсіву. Розсів
відбувається на невеликій частині поверхні сита, що знижує продуктивність. Крім
того, у цих млинах не можна робити тонкий помел через забивання отворів сит
частками матеріалу.
3.1.2 Стержневий млин
Конструктивно стержневі млини близькі до кульових млинів із
центральним розвантаженням. Основна відмінність стержневих млинів у порівнянні
з кульовими млинами полягає в меншій довжині барабана; меншій швидкості
обертання барабана; використанні для подрібнювання помельних тіл у формі
сталевих стержнів діаметром 40-100 мм; більшою на 20-25% вагою завантаження
помельними тілами. Подрібнювання матеріалу в стержневих млинах здійснюється за
рахунок роздавлювання, удару й стирання.
Перевагою стержневих млинів у порівнянні з кульовими млинами
є одержання продукту подрібнювання більш рівномірної крупності. Це пояснюється
тим, що в процесі подрібнювання помельні тіла - стержні стикаються з матеріалом
у багатьох точках, і, в першу чергу, дроблять найбільш великі куски, які
захищають від перездрібнювання дрібні частинки. Стержневі млини рекомендується
використовувати для подрібнювання твердих матеріалів до зерен розміром 3 - 1 мм
з метою наступного більш тонкого подрібнювання матеріалу в кульовому млині, що
істотно підвищує ефективність роботи останніх.
3.1.3 Трубний млин
Трубні млини призначені для тонкого помелу матеріалів і
конструктивно являють собою циліндричний барабан (1), зсередини
футерований бронеплитами (рис. 2.3).
Рисунок 2.3 - Трубний двокамерний млин
1 - корпус барабана; 2, 11 - торцеві днища; 3, 14 -
порожнисті цапфи; 4, 23 - підшипники; 5 - завантажувальна лійка; 6
- завантажувальний пристрій; 7, 9, 16 - лопаті; 8, 15 - втулка; 10
- міжкамерна перегородка; 12, 24- дірчаста перегородка; 13 -
порожнистий конус; 17, 19, 21 - патрубок; 18 - контрольне сито; 20
- вал; 22 - лійка
По довжині барабан розділяється за допомогою дірчастих
перегородок (12), в яких встановлено міжкамерні перегородки (10),
на камери. Міжкамерні перегородки (10) перешкоджають переміщенню
помельних тіл з однієї камери до іншої, але дозволяють матеріалу, що
подрібнюється, проходити крізь щілини в перегородці. Кількість камер може бути
2, 3 і 4. У камери млина завантажують помельні тіла різної форми. Звичайно у
першу камеру з боку надходження матеріалу завантажують більш крупні помельні
тіла (кулі), у другу - цильпебси. Корпус барабана (1) з обох кінців
закритий сталевими торцевими днищами (2, 11). Ці днища відлиті заодно із
пустотілими цапфами (3, 14), за допомогою яких корпус барабана
опирається на підшипники (4,23).
Подрібнювальний матеріал надходить у барабан через лійку (5)
і завантажувальний пристрій (6), на внутрішній поверхні якого є лопаті (7).
Завантажувальний пристрій з'єднаний із цапфою (3), у яку вставлена
втулка (8) з лопатями (9). Лопаті (7, 9) при обертанні барабана
забезпечують безперебійне надходження матеріалу. До днища (11)
прикріплена дірчаста перегородка (24) з порожнистим конусом (13),
до якого приварені лопаті (16). У цапфу (14) вставлена втулка (15)
з лопатями (16), і до неї кріпиться патрубок (17) з вікнами. По
периферії патрубка (17) установлене контрольне сито (18).
Патрубок (19) з’єднується з аспіраційною системою. Частинки матеріалу,
зламки помельних тіл, що не пройшли контрольне сито (18), попадають в
патрубок (21) і видаляють з млина. Трубний млин має центральний привод з
обертанням барабана за допомогою проміжного вала (20), з'єднаного
муфтами із цапфою млина та валом редуктора, що обертається за допомогою
електродвигуна.
Переміщення матеріалу вздовж барабана млина здійснюється за
рахунок напору (тиску) матеріалу, який безупинно подається до млина і витісняє
матеріал, що вже перебуває у млині, до його розвантажувального кінця. Для
створення необхідного напору рівень матеріалу біля завантажувального кінця
повинен бути вище, ніж біля розвантажувального кінця. Це досягається за рахунок
того, що діаметр завантажувальної порожнистої цапфи роблять трохи більшим, ніж
діаметр розвантажувальної цапфи. Специфіка переміщення матеріалу, що
подрібнюється, вимагає більш високого рівня заповнення першої камери помельними
тілами і матеріалом, ніж наступних камер.
У першій камері, де більш крупний матеріал, а помельні тіла -
великі кулі, подрібнювання здійснюється, в основному, за рахунок удару. При
цьому кулі повинні падати з можливо більшої висоти (водоспадний режим). Для
інтенсифікації помелу матеріалу і збільшення висоти падіння куль поверхня
бронеплит першої камери виконується хвилястою або ребристою. У наступних
камерах, де розмір матеріалу, що поступає, значно менше, ніж у першій камері,
матеріал подрібнюється стиранням, тому бронеплити мають гладку поверхню. Це не
дозволяє підніматися помельним тілам вище рівня, необхідного для роботи
агрегату за каскадним режимом. Для подрібнювання матеріалу стиранням у другій і
наступний камерах використовуються або дрібні кулі (діаметром 25-50 мм), або
цильпебси. При обертанні барабана помельні тіла і матеріал, що подрібнюється,
завдяки тертю піднімаються на деяку висоту, а потім сповзають, скачуючись або
падаючи додолу. Подрібнювання відбувається за рахунок удару падаючого
подрібнюючого середовища, роздавлювання і тертя вмісту млина між шарами, які
перекочуються.
Недоліки: високі енерговитрати і високий рівень шуму.
Подрібнювання матеріалу в цих агрегатах відбувається не в оптимальних умовах.
Якщо в першу камеру надходить крупний матеріал, то подрібнювання методом удару
здійснюють крупними кулями і його ефективність буде вище, якщо кулі будуть
падати з великої висоти. Однак рівень завантаження першої камери більше, ніж
другої. У другій же камері матеріал повинен подрібнюватися, в основному,
стиранням і рівень завантаження цієї камери повинен бути більше, ніж першої, а
практично він менше. Тонке подрібнювання матеріалів у трубному млині
супроводжується процесом сегрегації часток.
2.1.4 Конічний млин
Конічний млин призначений для грубого і тонкого подрібнювання
матеріалів різної твердості і може працювати за мокрим і сухим способом
подрібнювання. Розмір шматків матеріалу, які надходять до млина, не повинен
перевищувати 50 мм, а подрібнюється він до часток розміром менш 0,088мм.
Конструктивно конічний млин складається з циліндричного
барабана (1), до якого прикріплені по обидва боки торцеві кришки -
усічені конуси (2,3): з боку завантаження крутий конус (2) з
кутом при вершині 1200 і з боку вивантаження - пологий конус (3)
з кутом при вершині 600 (рис. 2.4). Циліндричний барабан
виготовляється довжиною від 1/4 до 1/3 діаметра і порожнистими цапфами млин
опирається на підшипники. У млині використовуються помельні тіла кулястої форми
діаметром від 20 мм до 120 мм.
У млині цього типу досягається автоматичний розподіл
помельних тіл (6) по крупності без застосування перегородок. При
обертанні млина крупні кулі, що мають більшу масу, залишаються в циліндричному
барабані (1) і під дією відцентрової сили витісняють більше дрібні кулі
в конічну частину млина убік розвантажувального патрубка (5).
Рисунок 2.4 - Конічний млин
- циліндричний барабан; 2, 3 - конічні торцеві
кришки; 4 - завантажувальний патрубок; 5 - розвантажувальний
патрубок; 6 - помельні тіла
Тому великі частинки матеріалу в млині подрібнюються спочатку
методом удару, а в міру переміщення до розвантажувального отвору ударна дія
зменшується, а стираюча - зростає. Таким чином, у млині матеріал подрібнюється
помельними тілами, що відповідають крупності кусків або частинок матеріалу.
Завдяки цьому в конусних млинах витрата енергії на подрібнювання менше, ніж у
трубних, де всі помельні тіла піднімаються на однакову висоту.
2.2 Вібраційний млин
Вібраційні млини безперервної і періодичної дії застосовують
для особливо тонкого подрібнювання матеріалу до розмірів частинок, що менше
10-20 мкм (0,01-0,02мм). По конструкції вібраційні млини класифікуються на
інерційні й ексцентрикові.
В інерційних млинах (рис. 2.5) корпус вібратора (1),
що опирається на пружини (3) і встановлений на косинцях, під дією сил
інерції неврівноважених обертових мас - дебаланса (вал 2) є
ексцентричним стосовно осі обертання. Дебаланс (2) з'єднаний з валом
електродвигуна (4). Млин і електродвигун установлені на рамі, що опирається
на амортизатори.
Рисунок 2.5 - Інерційний вібраційний млин: 1 - корпус;
2 - дебалансний вал; 3 - пружини; 4 - електродвигун
При роботі млина відбувається коливальний рух корпуса млина з
кульовим завантаженням і матеріалом. Траєкторія руху точок корпуса має форму
еліпса, що наближається до окружності.
Переваги: млини можуть подрібнювати м'які і тверді матеріали,
у подрібнюванні беруть участь всі помельні тіла. Мають високий коефіцієнт
заповнення. Дають гарне змішування. Недоліки: недосконалість конструкції,
низька продуктивність до 3 т/год, можливість ефективного здрібнювання лише при
певній крупності вихідного матеріалу.
В ексцентрикових вібромлинах (рис. 2.6) корпус (1)
своїми підшипниками (2) надітий на ексцентрикову частину вала (3),
при обертанні якого кожна точка робить коливальні кругові рухи з радіусом, що
дорівнює ексцентриситету вала. Для зрівноважування системи на шийках
ексцентрикового вала монтуються противаги (4).
До основних факторів, що впливають на роботу вібромлинів,
відносяться: частота й амплітуда коливань, форма, розміри і матеріал помельних
тіл, ступінь заповнення млина помельними тілами і матеріалом, величина часток
вихідного продукту, спосіб подрібнювання, спосіб роботи.
Рисунок 2.6 - Ексцентриковий вібраційний млин: 1 -
корпус; 2 - підшипник; 3 - вал; 4 - противага; 5 -
електродвигун; 6 - пружини
Коефіцієнт заповнення помельними тілами вібраційних млинів
найбільший у порівнянні з іншими млинами (0,75-0,85). Найбільш ефективним
вважається помел при подрібнюванні матеріалу з вихідним розміром часток 1-2 мм:
при сухому помелі - до розміру 85-5 мкм і при мокрому помелі - до розміру 5-0,1
мкм. Сухий спосіб подрібнювання матеріалів у вібраційних млинах до величини
5-10 мкм вважається більш ефективним. Однак більш тонкого подрібнювання легше
досягти при мокрому способі.
2.3 Струминні млини
Струминні млини призначені для надтонкого подрібнювання
крихких матеріалів з розмірами зерен менш 5 мм до зерен 10 - 40 мкм. У млинах
струминного типу кінетична енергія передається частинкам матеріалу, що
подрібнюється, потоком стисненого повітря, перегрітої пари, а подрібнювання
здійснюється або при зіткненні зустрічних потоків частинок матеріалу, або при
їхньому ударі об відбійну плиту.
По виду енергоносія струминні млини розділяють на
повітроструминні і пароструминні.
Струминний млин з вертикальною кільцевою камерою (рис. 2.7)
використовується для подрібнювання матеріалів до фракції менш 1 мкм.
Рисунок 2.7 - Струминний млин с вертикальною кільцевою
камерою:
1 - живильник; 2 - труба; 3 - дифузор; 4 - система
сопел; 5 - камера млина; 6 - трубопровід
Матеріал подається живильником (1) по
трубі (2), надходить у дифузор (3) і стисненим повітрям вноситься
в камеру млина (5). Енергоносій подається через систему сопел (4)
у нижню частину камери під певним кутом, щоб викликати циркуляцію повітря в
кільцевій камері. Подрібнювання матеріалу відбувається в результаті зіткнення
часток у точках перетинання струменів і у вихрах турбулентного потоку. У
верхній ділянці камери матеріал розділяється по крупності під дією відцентрових
сил, що виникають при русі струменя по криволінійній ділянці
Важкі, більш крупні частинки, відкидаються до зовнішньої
сторони камери, втрачають швидкість і падають по правому стволу, де знову
попадають у зону подрібнювання. Дрібні частинки крізь жалюзі виносяться потоком
газу по трубопроводу (6) в осаджувальні пристрої.
У струминному млині із плоскою помельною камерою (рис. 2.8)
енергоносій надходить по трубопроводу (1) у колектор (2) і далі
через сопла (3) у помельно-роздільну камеру (4).
Введення енергоносія в помельну камеру здійснюється під
деяким кутом для забезпечення багаторазового перетинання струменів. Матеріал,
що подрібнюється, подається в помельну камеру по трубі (6),
підхоплюється струменями і подрібнюється при перетинанні струменів у вихрах.
У міру здрібнювання доцентрові сили починають перевищувати
відцентрові, частинки в потоці газів будуть переміщуватися в центральну частину
камери й потраплять у кільцевий зазор між трубками (5) і (7), де
утвориться сильний низхідний потік газів.
Рисунок 2.8 - Струминний млин з плоскою помельною камерою:
1 - трубопровід; 2 -колектор; 3 - сопло; 4 -
помольно-роздільна камера; 5,7 - трубки; 6 - труба; 8 -
приймач
Близько 80% частинок викидається цим потоком у приймач (8),
а інші виносяться в циклони. Таким чином, при помелі одержують матеріал двох
фракцій.
Для тонкого подрібнювання матеріалу до фракції менш 60 мкм
використовується ежекторний струминний млин протитечійного типу. В цих млинах
матеріал з бункерів через ежектори надходить у розгінні трубки, де
підхоплюється енергоносієм (повітря або перегріта пара), що подається по трубі
під тиском, і виноситься в помельну камеру. Подрібнювання відбувається в
результаті зіткнення частинок у зустрічних потоках. Подрібнений матеріал і
відпрацьований енергоносій направляються в класифікатор.
Недоліки струминних млинів: значні енерговитрати і втрати
тонких фракцій матеріалу з відхідними газами.