Организация движения на участке УДС г. Красноярска
Введение
дорожный пешеходный движение канализированный
Увеличение контингента горожан, автомобильного парка, пробега
транспортных средств поставило перед городом серьезные проблемы, связанные с
предупреждением ДТП и одновременным обеспечением высоких скоростей движения.
Одна из наиболее острых задач городского движения - обеспечение пропускной
способности городских улиц. Серьезные трудности в организации движения создают
пиковые нагрузки - резкие увеличения интенсивности движения в утренние и
вечерние часы суток.
Трудности, связанные с пропуском транспортных потоков высокой
интенсивности, усугубляются большим числом пешеходных потоков, организация
движения которых вызывает гораздо большие трудности, чем движение автомобилей.
Близость пешеходных потоков к автомобильным и совмещение их движения на одной
улице являются одним из основных причин дорожно-транспортных происшествий в
городах.
Для повышения уровня безопасности дорожного движения на перекрестках,
площадях и поворотах городских дорог рекомендуется устраивать направляющие
островки и светофорное регулирование. В зависимости от конфигурации площади или
пересечения, вида и объема движения они могут быть самой различной формы и
размеров.
Канализированное движение облегчает ориентировку и повышает четкость взаимодействия
водителей на сложных по конфигурации пересечениях и в тех местах УДС, где
наблюдается большое распространение зон конфликтных точек. Канализированное
движение в зоне перекрестков предназначено для сокращения числа и опасности
конфликтных точек за счет направления автомобильных и пешеходных потоков по
наиболее благоприятной и безопасной траектории.
Кольцевые пересечения по обеспечении безопасности движения занимают
промежуточное положение между нерегулируемыми пересечениями в одном уровне и
пересечениями в разных уровнях: на них, как и на пересечениях в разных уровнях
отсутствуют пересечения потоков (конфликтные точки).
Перечисленные проблемы особенно характерны для участка УДС ул. Робеспьера
: перекресток ул. Ленина - ул. Робеспьера, перекресток пр. Мира- ул.
Робеспьера. Существующая организация движения не справляется с задачами,
вследствие чего на данных перекрестках образуются заторы, особенно в часы пик.
Предлагаются следующие мероприятия по усовершенствованию ОД: на пересечении
Мира-Робеспьера организовать канализированное движение; на пересечении
Ленина-Робеспьера организовать круговое движение; на перегоне по ул. Робеспьера
от перекрестка Мира-Робеспьера до перекрестка Ленина-Робеспьера заменить
односторонне движение двухсторонним.
Данные мероприятия решат транспортные проблемы на участке УДС ул.
Робеспьера.
1 Организация канализированного движения на участке УДС г. Красноярска на
пересечении ул. Робеспьера - пр. Мира
1.1 Методика проектирования канализированного пересечения
Безопасность движения и пропускная способность пересечений зависит от
четкости организации на них движения. Оптимальным является планировочное
решение, обеспечивающее для каждого направления движения отдельную проезжую
часть, ширина которой определяется интенсивностью движения. Транспортные потоки
должны двигаться по выделенным для них полосам движения как по каналам:
траектория движения должна располагаться только в пределах этого канала, а вход
и выход возможны только в строго определенных местах. Такая организация движения
носит название канализированного движения.
Канализированное движение в зоне перекрестков предназначено для
сокращения числа и опасности конфликтных точек за счет направления
автомобильных и пешеходных потоков по наиболее благоприятной и безопасной траектории.
Методика проектирования канализированного пересечения заключается в
последовательном проектировании траектории движения по всем направлениям,
разрешенном на пересечении. При этом, исходя из того, что главное направление
не должно испытывать помехи от движения поворачивающих потоков, все
планировочные элементы располагают таким образом, чтобы они не оказывали
влияние на прямое движение.
Пересечение начинают проектировать с выбора типа планировочного решения и
установления отдельных его элементов: угла пересечения осей улиц, радиусов
поворотов, ширины полос движения.
Форму и размер переходно-скоростных полос принимают в зависимости от
интенсивности движения.
В настоящее время выработаны следующие принципы планировки
канализированных пересечений в одном уровне [1]:
1. Планировка пересечений должна быть простой и понятной, четко выделять
пути движения автомобилей, обеспечивая преимущественные условия и неизменную
скорость для транзитного движения по дороге более высокой категории. На
второстепенной дороге планировка должна предупреждать водителей о предстоящем
маневре и вынуждать поворачивающие автомобили снижать скорость.
. В каждый момент времени планировка пересечения должна предоставлять
водителю возможность выбора не более чем одного из двух направлений движения. В
соответствии с принципами зрительного ориентирования водителей нужное
направление должно подсказываться расположением разделительных островков и
линий разметки на покрытии. Расположение островков в плане должно зрительно
предотвращать возможность их объезда слева.
. Количество островков должно быть минимально необходимым. Пересечения с
большим числом островков становятся неясными для водителей, а их эффективность
снижается.
. Конфигурация островков должна предопределять угол маневров, обеспечивая
пересечение потоков движения под оптимальными для выполнения соответствующего
маневра углами. Слияние и разделение потоков должны происходить под малыми
углами 5 - 7º, что ускоряет процесс включения автомобилей в транспортный
поток и выхода из него. Островки и разграничительные линии на пересечениях
канализированного типа должны разделять скоростные, транзитные и поворачивающие
транспортные потоки, выделяя для каждого из них самостоятельные полосы
движения, обеспечивающие их плавное разделение и слияние. Расположение
островков в плане должно как бы перекрывать возможность объезда островка слева.
. Планировка должна по возможности предусматривать удаление друг от друга
конфликтных точек. Их рассредоточение существенно увеличивает радиусы
траекторий движения автомобилей, повышая транспортные качества пересечений.
. Для остановки автомобилей в ожидании возможности левого поворота
следует выделять специальные полосы движения. В первую очередь это необходимо
на дороге с наибольшей интенсивностью движения.
. Параметры расчетных траекторий на пересекающихся дорогах назначают с
учетом скоростей движения на основной и второстепенной дорогах.
. В населенных пунктах и вблизи них на пересечении должны быть обозначены
разметкой места пешеходных переходов и пути для велосипедистов.
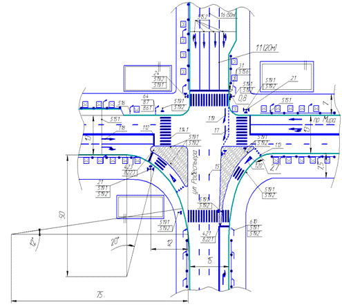
Для организации канализированного движения в курсовом проекте выбран
перекресток ул. Робеспьера - пр. Мира, так как на этом участке наблюдается
большая интенсивность транспортных потоков. А это в свою очередь приводит к
снижению пропускной способности. Также на перекрестке находится большое
количество конфликтных точек. Для ликвидации данной проблемы отделим потоки
транспортных средств, движущихся в прямом направлении, от поворачивающих,
выделив им для этого отдельную полосу проезжей части. Для предотвращения
заездов на соседние полосы и устранения взаимных помех разделяем потоки
автомобилей направляющими островками и полосами. На данном перекрестке
устраиваем канализированные правоповоротные съезды.
Существующая схема организации движения на рассматриваемом пересечении
представлена на рисунке 1.1.
Рисунок 1.1 - Существующая схема ОДД на перекрестке ул. Робеспьера - пр.
Мира
1.2 Расчет для организации канализированного движения
Канализирование предполагает собой строгое движение автомобилей по
отведенным им полосам проезжей части, очертания этих полос должны
соответствовать оптимальным очертаниям траекторий движения. Траектория движения
автомобиля на закруглении состоит из трех элементов: входной переходной кривой,
круговой кривой малого радиуса и выходной переходной кривой.
Установлено, что между отдельными элементами закругления существуют
устойчивые отношения (таблица 1.1.). Определяющим элементом является средняя
часть траектории - круговая кривая наименьшего радиуса. Все три элемента
закругления могут быть аппроксимированы круговыми кривыми.
Такие кривые образуют коробовую кривую, которая является основой для
проектирования траекторий движения при канализированном пересечении (рисунок
1.2.). Соотношение радиусов кривизны участков коробовой кривой остается
практически постоянным
Таблица 1.1 - Соотношение между углом поворота и элементами закругления
|
Угол поворота φ, град
|
Входная кривая
|
Круговая кривая R2,
м
|
Выходная кривая
|
|
R1, м
|
α1,
град
|
|
R3, м
|
α3,
град
|
|
До 44
|
-
|
-
|
50
|
-
|
-
|
|
45 - 74
|
60
|
16
|
30
|
90
|
10
|
|
75 - 112
|
50
|
20
|
25
|
75
|
12
|
|
113 - 149
|
40
|
27
|
20
|
60
|
16
|
|
150 - 180
|
35
|
34
|
15
|
60
|
21
|
ля кривых малых радиусов достаточная ширина полосы движения следующая
Радиус кривой R2, м……………….10 15 20 25 30
Ширина одной полосы, м………...4,6 4,3 4,1 4,0 3,9
Рисунок 1.2 - Коробовая кривая для разбивки съездов
Все
полосы для поворачивающего движения на пересечении проектируем по Коробовой
кривой, параметры которой определяем через угол поворота
.
Последовательность
расчета при проектировании закруглений:
.
Определяем угол поворота
. Так как проектируемое пересечение является
крестообразным, то угол
.
.
Определяем параметры кривой (таблица 1.2).
Таблица
1.2- Значение элементов коробовой кривой [4]
|
Угол поворота , градВходная криваяКруговая кривая R2,
мВыходная кривая
|
|
|
|
|
R1, м
|
, градR3, м , град
|
|
|
|
|
75-112
|
50
|
20
|
25
|
75
|
12
|
. Рассчитываем положение начала (АО) и конца (ОВ) коробовой кривой по
формулам:
, (1)
, (2)
, (3)
. (4)
,
,
,
.
.
Вписываем коробовую кривую и по радиусу R2 определяем
ширину съезда В.
Расчетная
скорость для поворачивающего движения на канализированных пересечениях не
должна быть высокой. Для правого поворота V=25 км/ч.
Направляющие
островки покрыты асфальтобетоном. Все углы островков, направленные навстречу
движению, должны быть скруглены кривыми радиусом не менее 1 м.
1.2.1 Организация движения. Дислокация дорожных знаков
Для организации движения устанавливаем в соответствии с ГОСТ Р 52289-2004
«Технические средства организации дорожного движения. Правила применения
дорожных знаков, разметки, светофоров, дорожных ограждений и направляющих
устройств» дорожный знак 5.15.2 «Направление движения по полосе» в начале
разделения полос движения разметкой 1.1 на высоте 5-6 метров (приложение Е -
справочное, рисунок Е.2, з)и дублируем их, устанавливая те же самые знаки уже
на уровне стоп - линии и знаки 4.2.1 и 4.2.3 «Объезд препятствия справа или
слева» и 8.22.1 и 8.22.3 «Препятствие». Для пешеходов, переходящих через съезд
на островок безопасности для дальнейшего передвижения в других направлениях,
устанавливаем дополнительные знаки 5.19.1 и 5.19.2 «Пешеходный переход» и
наносим дорожную разметку 1.14.1 [7].
Демонтируем знаки 5.5« Дорога с односторонним движением» и 5.7.1 « Выезд
на дорогу с односторонним движением»
Поворот направо с ул. Робеспьера на пр. Мира (в направлении от
перекрестка ул. Робеспьера - ул. Ленина) является нерегулируемым. Этот поворот
обозначен информационным знаком - знаком индивидуального проектирования,
которые информирует водителя об особенности данного поворота. Надпись на знаке
определяется высотой буквы h, из
которых формируется сама надпись. Высота букв зависит от категории дороги и
находится в пределах 75-500 мм. (Рисунок 1.3)
До перекрестка организованно двустороннее движение, после проезда
перекрестка - одностороннее. Поэтому происходит сужение проезжей части. Знак
5.15.6 «Конец полосы» информирует об этом водителей. Также применена разметка
1.19, которая предупреждает о приближении к сужению проезжей части.
Рисунок 1.3 - Знак индивидуального проектирования
Дислокация устанавливаемых дорожных знаков и наносимой дорожной разметки
представлены в таблицах 1.3 и 1.4.
Таблица 1.3 - Дислокация дорожных знаков при канализировании движения на
пересечении пр. Мира и ул. Робеспьера
|
Вид
|
№ знака
|
Название
|
Место установки
|
Примечание
|
|
|
4.2.1
|
Объезд препятствия справа
|
На островке безопасности
|
1 (ст)
|
|
|
4.2.3
|
Объезд препятствия справа
|
На островке безопасности
|
1 (ст)
|
|
|
5.15.1
|
Направления движения по
полосам
|
По пр.Мира до перекрестка
|
1 (ст)
|
|
|
5.15.6
|
Конец полосы
|
Перед перекрестком
|
1 (ст)
|
|
|
5.19.1 5.19.2
|
Пешеходный переход
|
На пешеходном переходе
|
Устанавливается на одной
стойке с двух сторон
|
|
|
8.22.1
|
Препятствие
|
На островке безопасности
|
Устанавливается вместе со
знаком 4.2.1
|
|
|
8.22.3
|
Препятствие
|
На островке безопасности
|
Устанавливается вместе со
знаком 4.2.3
|
Таблица 1.4 - Дислокация наносимой дорожной разметки при канализировании
движения на пересечении пр. Мира и ул. Робеспьера
|
Вид
|
№ разметки
|
Название
|
Место нанесения
|
|
1.1Обозначение полос движенияПри непосредственном
приближении к перекрестку
|
|
|
|
|
|
1.3
|
Разделение транспортных
потоков противоположных направлений
|
До перекрестка по пр. Мира
|
|
1.5Разделение транспортных потоков противоположных
направлений.До перекрестка (перед разметкой 1.6), после проезда перекрестка
|
|
|
|
|
1.6Обозначение приближения к сплошной линии
продольной разметкиПри приближении к разметке 1.1
|
|
|
|
|
1.12Обозначение места остановки транспортных средств
- стоп-линияНепосредственно перед перекрестком
|
|
|
|
|
1.13Обозначение места, где водитель обязан уступить
дорогуПеред въездом на ул. Робеспьера и пр. Мира
|
|
|
|
|
1.14.1Обозначение пешеходного переходаНа пешеходном
переходе
|
|
|
|
|
1.18Обозначение направлений движения по полосамНа
одном уровне с разметкой 1.1
|
|
|
|
|
|
1.19
|
Обозначение приближения к
сужению проезжей части или к сплошной линии продольной разметки 1.1
|
Непосредственно на самом
перекрестке ул. Робеспьера и пр. Мира
|
|
|
1.20
|
Обозначение приближения к
поперечной линии разметки 1.13
|
Перед въездом на ул.
Робеспьера и пр. Мира
|
Островок окаймляем скошенными бордюрами, возвышающимися над проезжей
частью на 8-10 см. Не следует использовать их для посадки растительности,
установки рекламных плакатов, обелисков или статуй.
Схема пересечения Робеспьера - Мира с канализированным движением
представлена на рисунке 1.4.
Рисунок 1.4 - Схема пересечения ул. Робеспьера - пр. Мира с
канализированным движением
2. Организация двустороннего движения на перегоне участка УДС ул.
Робеспьера от перекрестка пр. Мира до перекрестка с ул. Ленина
Одним из самых распространенных средств организации движения является
организация двустороннего движения. Преимущества двустороннего движения по
отношению к одностороннему заключаются в следующем[8]:
для некоторых транспортных средств (ТС) расстояние до пунктов назначения
уменьшается, что снижает перепробег и увеличивает интенсивности движения на
улично-дорожной сети;
возможность осуществлять повороты на одних перекрестках;
не требует значительного количества регулировочных устройств;
остановки общественного транспорта не удаляются друг от друга;
при наличии трамваем или троллейбусов введение двустороннего движения не
сопряжено с большими затратами на перемещение оборудования для обеспечения
движения общественного транспорта.
Недостатки двустороннего движения:
магистральные улицы перегружены;
пропускная способность улиц и дорог на 25-50% меньше, чем на улицах и
дорогах с односторонним движением;
повышенное количество ДТП вследствие большого числа конфликтных точек на
перекрестках, увеличение задержек от ТС, осуществляющих левый поворот,
вероятность лобового столкновения;
увеличение помех со стороны ТС, выполняющих левый поворот;
увеличение задержек и уменьшение скоростей движения.
2.1 Анализ существующей организации движения на перегоне участка УДС ул.
Робеспьера от перекрестка пр. Мира до перекрестка с ул. Ленина
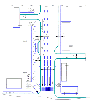
На перегоне ул. Робеспьера от перекрестка Робеспьера - Мира до
перекрестка Робеспьера - Ленина, протяженностью 144 м. и шириной проезжей части
15 м., организованно одностороннее движение с четырьмя полосами для движения
(лист 1).
Справа по ходу движения имеется остановка общественно городского
транспорта. Перед остановкой находится местный проезд.
Слева по ходу движения на улице Робеспьера имеется парковочный карман.
Схема существующего участка УДС представлена на Рисунке 2.1
Рисунок 2.1 - Схема существующего участка УДС с односторонним движением
по ул.Робеспьера
.2 Расстановка ТСОД на проектируемом участке
На проектируемой схеме участка УДС ул.Робеспьера (рисунок 2.2) организуем
двустороннее движение, а именно на перегоне от перекрестка пр.Мира -
ул.Робеспьера до перекрестка ул.Ленина - ул.Робеспьера с выделением одной
полосы для прямого направления, шириной 3, 75 метра, и четырех полос для
встречного направления (лист 4). На пересекаемых улицах организацию движения не
меняем.
Наносим в соответствии с ГОСТ Р 52289-2004 на протяжении участка с
двусторонним движением по улице Ленина дорожную разметку 1.3(«двойная
сплошная»), которая разделяет встречные транспортные потоки противоположных
направлений, так как дорога имеет четыре полосы для движения.
После проезда перекрестка Робеспьера - Мира необходимо заменить знак 5.5
- «Дорога с односторонним движением» знаком 5.6 «Конец дороги с односторонним
движением». Также демонтируем знаки 5.7.1 и 5.7.2, обозначающие «Выезд на
дорогу с односторонним движением».
Необходимо переоборудовать знаки, обозначающие место для парковки. А
именно поставить их с другой стороны, по ходу движения транспортного потока.
Остановочный пункт остается без изменений.
На проектируемом участке оборудуем подземный пешеходный переход,
устанавливаем знаки 6.6 -«Подземный пешеходный переход» (рисунок Е.2, а).
Проектируемая схема участка УДС с двухсторонним движением представлена на
рисунке 2.2.
Рисунок 2.1 - Схема проектируемого участка УДС с двухсторонним движением
по ул.Робеспьера
3. Организация кругового саморегулируемого движения
Кольцевые пересечения по обеспеченности безопасности дорожного движения
занимают промежуточное положение между нерегулируемыми пересечениями в одном
уровне и пересечениями в разных уровнях: на них как и на пересечениях в разных
уровнях отсутствует пересечение потоков (конфликтные точки).
Движение автомобилей по кольцу в одном направлении обеспечивает четкую
организацию и придает ему упорядоченность. Однако кольцевые пересечения
занимают большую площадь, а в связи с непрерывно происходящими на них
перегруппировками автомобилей скорость движения существенно снижается по
сравнению со скоростью на подходах.
Для разделения встречных потоков движения на примыканиях дорог к кольцу
устраивают направляющие треугольные островки. Их планировка и радиусы кривых на
сопряжениях примыканий к кольцу должны обеспечивать плавное снижение скорости
при въезде и выезде с кольца.
Кольцевое пересечение с большим радиусом центрального островка является
наиболее безопасным, при котором все маневры автомобилей сводится к включению в
поток и выходу из него. Транспортные средства, прибывающие к пересечению по
всем дорогам, сливаясь в один поток, огибают островок, расположенный в центре
пересечения. Размеры кольца назначают такими, чтобы обеспечивалась заданная
скорость движения по нему, а участки кольца между пересекающимися дорогами
имели длину, обеспечивающую возможность свободной перегруппировки автомобилей,
вливания их в кольцевой поток и выхода в нужном направлении[3].
Главным результатом применения кругового движения является ликвидация
конфликтных точек пересечения и конфликта встречных потоков. Вторым положительным
фактором является воздействие на водителя центробежной силы при движении по
круговой траектории, в результате чего он автоматически снижает скорость.
При проектировании кольцевых пересечений приходится решать несколько
задач, основными из которых являются; выбор расчетной скорости движения на
кольце; выбор радиуса кольцевой проезжей части; оценка пропускной способности
кольца.
.1 Пропускная способность городских улиц
Важнейшим показателем, характеризующим транспортно-эксплуатационные
качества сети городских улиц, является ее пропускная способность. Под
пропускной способностью улицы понимают максимальное число автомобилей, которые
могут пройти по ней в единицу времени при обеспечении заданной скорости и
безопасности движения.
Пропускная способность полосы движения зависит от состава транспортного
потока. Предельная пропускная способность улицы при увеличении доли грузовых
автомобилей снижается, поэтому весь поток при расчетах приводят к одному
условному составу - легковому автомобилю.
Смена полосы движения - это маневр, необходимый для обеспечения
нормальной работы многополосной проезжей части городской улицы.
Пропускная способность улицы и всей УДС города связывают не только
максимальное число транспортных средств, которые могут пройти через какое-либо
сечение улицы, но и возможность выполнения автомобилями маневров перестроения,
входа в поток, выхода из потока.
На пропускную способность и среднюю скорость движения оказывают влияние
между перекрестками, наличие или отсутствие на них светофоров, присутствие в
транспортном потоке автобусов и троллейбусов, съезды на прилегающие улицы на
участке между светофорами.
В отличие от загородных дорог геометрические элементы улиц должны
назначаться не столько из условий остановочного пути автомобиля, сколько из
условий обеспечения необходимых маневров, что в первую очередь требует большой
ширины проезжей части. Маневрирование автомобилей, смена полос движения,
сокращение бокового интервала в результате некоторого смещения следующих за
лидером автомобилей влево с целью лучшей видимости дороги- все это приводит к
сокращению пропускной способности.
При назначении ширины проезжей части и определение ее пропускной
способности необходимо иметь в виду, что для каждой полосы многополосной
проезжей части пропускная способность используется неодинаково[4].
Для определения пропускной способности на перегоне воспользуемся
формулой:
Р=Рмах*ξ. (6)
где ξ - коэффициент многополосности, равный: одна полоса - 1; две
1,9; три - 2,7; четыре - 3,5.
В случае неодинаковых значений Рмах для различных полос движения удобнее
пользоваться формулой:
. (7)
где βi -
коэффициент использования пропускной способности полосы движения, значения
которого составляет: для первой свободной полосы - 1, для второй - 0,85, для
третьей - 0,7, для четвертой и последующих - 0,5.
Влияние
перекрестков на пропускную способность проезжей части заключается в том, что
для движения транспортного потока через перекресток используется лишь часть
возможного времени, другая же часть предназначается для потоков движущихся в
поперечном направлении.
Пропускная
способность проезжей части в этом случае определяется по формуле:
, (8)
где α - коэффициент, учитывающий влияние перекрестков;
(9)
где
L - расстояние между перекрестками,
V - расчетная скорость движения
между перекрестками (м/с),
а
- ускорение при разгоне (м/с2),
b - замедление при торможении
(м/с2),
Тц
- продолжительность цикла регулирования (с),
t - продолжительность зеленой
фазы, с.
Количественная
оценка влияния факторов на пропускную способность городских улиц весьма
несовершенна, и приведенные формулы выше не достаточно полно учитывают это
влияние. Определенный интерес представляет качественная оценка влияние
различных факторов.
На
участках примыкания второстепенных улиц пропускная способность главной улицы
уменьшается в результате маневров, въездов и съездов, подъезды к жилым домам
мало влияют на пропускную способность, но подъезды к крупным учреждениям часто
становятся подобными нерегулируемым перекресткам. Значительное внимание на
пропускную способность проезжей части городских улиц оказывают стоянки или
остановки автомобилей у края тротуаров. Это влияние равнозначно уменьшению ширины
проезжей части на величину, равную ширине автомобиля.
Кроме
того, маневры автомобилей, отъезжавших с места стоянки, нарушают нормальные
условия движения по соседней полосе. Отмеченные обстоятельства, а также
близость крайней полосы к пешеходам и неподвижным предметам, наличие на ней
дождеприемных колодцев и чаще чем на других полосах встречающихся деформацией
дорожного покрытия настолько снижают пропускную способность крайней полосы, что
из практических расчетов ее целесообразно исключать и рассматривать как
вспомогательную.
К
уменьшению пропускной способности улицы приводят нарушения правил дорожного
движения пешеходами, переходящими улицу в неположенном месте или в неположенное
время.
Влияние
автобусов и грузовых автомобилей на пропускную способность обусловлены их
большей шириной и пониженной способностью к ускорению[4].
.2 Расчет пропускной способности кольцевого пересечения и выбор
геометрических параметров кольца
На перекрестке Робеспьера - Ленина наблюдается самая большая
интенсивность транспортного потока на всем участке УДС. Поэтому на этом
пересечении организуем круговое движение. Существующая схема перекрестка с
картограммой интенсивности представлена на рисунке 3.1.
Пропускная способность на нерегулируемом пересечении может быть повышена
за счет устройства распределительного кольца. Такие пересечения называются
кольцевыми. На кольцевых пересечениях маневр пересечения потоков автомобилей
уступает место маневрам слияния и переплетения. Кольцевые пересечения называют
саморегулируемыми.
Маневр слияния заключается в использовании двух потоков автомобилей,
движущихся в одном направлении, в один путем вписывания автомобилей
второстепенного потока в интервалы между автомобилями главного потока. Чем
меньше угол слияния, тем меньше влияние оказывает на режим движения обоих
потоков маневр слияния. Под «слиянием потоков» следует понимать маневр, при
котором угол встречи автомобилей, движущихся в различных потоках, не превышает
10о.
Рисунок 3.1 - Существующая схема ОДД на перекрестке ул. Робеспьера - ул.
Ленина
Выбор расчетной скорости зависит от главного условия для городских
магистралей - обеспечение пропускной способности. Наибольшая пропускная
способность достигается при использовании для вливания в кольцевой поток
предельно малых интервалов между автомобилями. Наименьших граничный интервал на
кольцевых пересечениях наблюдается при скоростях движения 25-30 км/ч.
Исследования скоростного режима показали, что на развязке с диаметром
центрального островка 70-75 м мгновенная скорость свободного движения
составляет для легковых автомобилей - 40 км/ч. Однако для городских условий
расчетную скорость движения рекомендуется брать 25-30 км/ч, так как скорость
движения будет определяться не только диаметром кольца, но и всей планировкой
пересечения: радиусами примыкания к кольцу, шириной проезжей части, числом
полос движения.
Пропускную способность пересечения определяет зона переплетения, потому
как в зоне переплетения происходит одновременная встречная смена полос движения
автомобилями, движущимися по соседним полосам проезжей части. Зона переплетения
на кольцевом пересечении расположена между соседними вливающимися улицами. При
трех полосах движения зона переплетения называется сложной. Минимальная длина
зоны переплетения определяется длиной маневра смены полосы движения.
Продолжительность такого маневра не менее 4 с.
Для определения требуемой пропускной способности участка слияния
предложена формула[4]:
, (10)
Где
Рсп - пропускная способность
Nгл -
интенсивность потока главной дороги;
Nвт -
интенсивность потока, вливающегося из второстепенной дороги.
.
Пропускная
способность кольцевых пересечений в одном уровне зависит от ширины входа в зону
переплетения, ширины и длины участка переплетения, от соотношения
переплетающихся потоков. Определение пропускной способности кольцевых
пересечений по формуле:
Ркольц=
(11)
Где
В - ширина проезжей части на участке переплетения, м;длина участка
переплетения, м;
∑b-суммарная
ширина примыкающих к участку переплетений дорог, м;
р-
доля автомобилей, пересекающих путь друг к другу, в общем потоке на участке
переплетения.
Ширину
кольцевой проезжей части и внутреннего диаметра выбираем с учетом интенсивности
движения. Больше трех полос движения нежелательно, так как это повлечет резкое
снижение пропускной способности. Ширину полосы движения назначаем с учетом
диаметра центрального островка. В таблице 3.1 представлены принятые значения
пропускной способности кольцевых пересечений [4].
Таблица
3.1 - Значение диаметра кольца в зависимости от пропускной способности и ширины
проезжей части
|
Ширина проезжей части
кольца, м
|
9
|
9
|
9
|
9
|
12
|
12
|
15
|
15
|
|
Внутренний диаметр кольца,
м
|
18
|
21,5
|
30
|
45
|
51,5
|
54
|
62
|
72
|
|
Максимальная пропускная
способность, авт/ч
|
2500
|
3000
|
3500
|
4000
|
4000
|
5000
|
5000
|
6000
|
Общая формула для нахождения пропускной способности кольца:
Ркольц=Nгл+Nв+0,25*(Nгл+Nв) (12)
Пропускная способность распределительного кольца, запроектированного на
улице Робеспьера с перспективой 30%, составит:
Ркольц=(2184,65+2043,6)+0,25(2184,65+2043,6)=5285,3125.
По пропускной способности кольца определяем внутренний диаметр кольца и
ширину проезжей части.
По таблице 3.1 внутренний диаметр кольца принимаем равным 70 метров, а
ширину проезжей части 15 м, зону переплетения 40 м. Из соображения безопасности
устраиваем три полосы по 5 метров.
В курсовом проекте предусмотрено кольцевое пересечение на выбранном
участке - пересечении улиц Робеспьера и Ленина. Данный участок выбран не
случайно. В сравнении с другими пересечениями выбранное является опасным, на
нем при высокой интенсивности (2184,65 авт/час) большое количество конфликтных
точек, что приводит к росту ДТП. Для ликвидации данной проблемы на перекрестке
улиц Робеспьера и Ленина организуем круговое движение. Данная развязка будет
функционировать без светофорного регулирования.
Введение кругового движения в данном случае является практически
невозможным. Препятствием является исторически сложившаяся застройка по улице
Ленина, ограниченность площади узла, которая не позволяет выполнить центральный
островок достаточных размеров, а также сложность и неудобства в организации
пешеходного движения. Исходя из вышеперечисленных условий, а также учитывая, что
данный курсовой проект носит учебный характер, ограниченностью площади для
введения кольцевой организации движения пренебрегаем.
.3 Расстановка ТСОД на проектируемом участке
На всех въездах на кольцо в соответствии с ГОСТ Р 52289-2004
устанавливаем знаки приоритета 2.4 «Уступите дорогу». Также обозначаем на всех
въездах развязку знаком 4.3 «Круговое движение». На центральном островке
напротив каждого въезда устанавливаем знак 1.34.1 «Направление поворота». Это
практически исключает случаи наезда на центральный островок, происходящие в
условиях плохой видимости, в темноте. На островках разделяющие транспортные
потоки примыкающих улиц устанавливаем знаки 4.2.1, «Объезд препятствия справа»,
4.2.3 «Объезд препятствия справа или слева», вместе с табличками 8.22.1, 8.22.3
«Препятствие».
На боковые поверхности центрального островка в соответствии с ГОСТ Р
52289-2004 наносим разметку 2.7, обозначающую бордюры на опасных участках и
возвышающиеся островки безопасности (приложение К).
Наиболее сложным вопросом функционирования круговой развязки является
пропуск через узел пешеходного движения. Лучшим вариантом является отсутствие
регулярного пешеходного движения или возможность устройства подземных
(надземный) пешеходных переходов. На ул.Ленина устанавливаем 2 подземных
пешеходных перехода, так как интенсивность пешеходных потоков значительна
(приложение Г).
Для обеспечения безопасности движения пешеходов и ограничения их выхода
на проезжую часть устанавливаем на всем протяжении организации кругового
движения ограждения. Дорожные ограждения установим в соответствии с ГОСТ Р
52289-2004 у внешнего края тротуара на расстояние не менее 0,3 м от лицевой
поверхности бортового камня и высотой 1м, чтобы направить пешеходов к
пешеходным переходам. Используем первый тип ограждений (рисунок 3.2)
(приложение Ж - справочное), так как он является менее затратным по сравнению с
двумя другими типа пешеходных ограждений. Данное мероприятие способствует
снижению ДТП с участием пешеходов.
Рисунок 3.2 - Пешеходное ограждение (крест) - Тип 1
Таким образом, применив кольцевое движение, мы ликвидировали конфликтные
точки пересечения и конфликта встречных потоков. Движение автомобилей по кольцу
в одном направлении обеспечивает четкую организацию и придает ему
упорядоченность. Также важным положительным фактором является воздействие на
водителя центробежной силы при движении по круговой траектории, в результате
чего он автоматически снижает скорость.
Дислокация устанавливаемых дорожных знаков и наносимой дорожной разметки
на круговом саморегулируемом пересечении представлены в таблицах 3.2 и 3.3.
[2]:
Таблица 3.2- Дислокация дорожных знаков на круговом саморегулируемом
пересечении ул. Робеспьера - ул. Ленина
|
Вид
|
№ знака
|
Название
|
Место установки
|
Примечание
|
|
|
1.34.1
|
Направление поворота
|
Установлен на центральном
островке, напротив соответствующего въезда. Знаки установлены на высоте 1,5
метра, расстояние между ними не более 20 м.
|
4 (ст)
|
|
|
2.4
|
Уступите дорогу
|
Устанавливают
непосредственно перед выездом на дорогу в начале кривой сопряжения, на
расстоянии 2 м. от перекрестка по ходу движения справа, на расстоянии 1.5 м.
от края проезжей части. Высота знака-2м.
|
2 (опора)
|
|
|
4.2.1
|
Объезд препятствия справа
|
Установлен на островке
безопасности перед въездом на кольцо, по ходу движения слева, на расстоянии 1
м. от края проезжей части
|
4 (ст)
|
|
|
4.2.3
|
Объезд препятствия справа
|
Расположен на островке
безопасности на расстоянии 20 метров от сечения въезда на кольцо; на высоте
2м.
|
4 (ст)
|
|
|
4.3
|
Круговое движение
|
Расположен на въезде на
перекресток, на котором организовано круговое движение, по ходу движения
справа, на расстоянии 1.5 м. от края проезжей части
|
4 (ст)
|
Таблица 3.3 - Дислокация наносимой дорожной разметки на круговом
саморегулируемом пересечении ул. Робеспьера - ул. Ленина
|
Вид
|
№ разметки
|
Название
|
Место нанесения
|
|
1.1Обозначение полос движенияПри непосредственном
приближении к кольцу
|
1.3
|
Разделение транспортных
потоков противоположных направлений
|
До кольца по ул. Робеспьера
|
|
1.5Разделение транспортных потоков противоположных
направлений.После проезда кольца
|
|
|
|
|
1.6Обозначение приближения к сплошной линии
продольной разметкиПри приближении к разметке 1.1
|
|
|
|
|
1.7Обозначение полос движения в пределах перекрестка
|
Непосредственно на кольце
|
|
|
|
1.13Обозначение места, где водитель обязан уступить
дорогуПеред въездом на кольцо
|
|
|
|
|
1.14.1Обозначение пешеходного переходаНа пешеходном
переходе по ул. Ленина
|
|
|
|
|
1.18Обозначение направлений движения по полосамНа
одном уровне с разметкой 1.1, на кольце
|
|
|
|
|
|
1.20
|
Обозначение приближения к
поперечной линии разметки 1.13
|
Перед въездом с улиц на
кольцо
|
|
|
2.7
|
Обозначение бордюра на
опасных участках и боковых поверхностей возвышающихся островков безопасности
|
На боковые поверхности
центрального островка
|
Островок окаймляем скошенными бордюрами, возвышающимися над проезжей
частью на 8-10 см. Не следует использовать их для посадки растительности,
установки рекламных плакатов, обелисков или статуй.
Схема проектируемого участка УДС с круговым движением показана на рисунке
3.3.
Рисунок 3.3 - Схема проектируемого участка УДС с круговым движением на
пересечении улиц Робеспьера-Ленина
4. Организация движения пешеходов, обустройство стоянок и остановочных
пунктов
.1 Способы, организации пешеходного движения, обустройство пешеходных
путей. Выбор и применение способов движения пешеходов на проектируемом участке
УДС г.Красноярска ул.Робеспьера
Пешеходное движение неминуемо связано с пересечением проезжей части улиц.
Также пересечения могут быть в одном уровне с проезжей частью (наземные переходы)
и в разных уровнях (внеуличные переходы).
По характеру регулирования движения людей наземные пешеходные переходы
могут быть классифицированы по следующим группам[3]:
нерегулируемые;
с неполным регулированием;
с полным регулированием;
с ручным регулированием.
При организации любого пешеходного перехода, прежде всего, возникает
задача определить место его расположения и необходимую ширину. При выборе места
руководствуются обеспечением наибольшего удобства для направлений более
интенсивного и постоянного пешеходного потока и обеспечением безопасности
пешеходов на переходе. Ширину определяют исходя из интенсивности пешеходного
потока [9].
К техническим средствам организации наземных пешеходных переходов
относятся знаки 5.19.1, 5.19.2 «Пешеходный переход» и разметка 1.14.1, 1.14.2 -
«зебра» [1].
Внеуличные пешеходные переходы, к которым относятся пешеходные тоннели и
мостики, устраивают на магистральных улицах и улицах непрерывного движения при
высокой интенсивности пешеходного потока, а также на пересечениях с высокой
транспортной загрузкой и транспортных развязках. Ширину пешеходного тоннеля
принимают по расчету исходя из пропускной способности одной полосы тоннеля 2000
чел/ч, лестницы - 1500 чел/ч. Ширина одной полосы в тоннеле и на лестнице 1 м.
Эти параметры расчетные и для мостиков. Минимальную ширину пешеходных тоннелей
принимают не менее 3 м, а лестниц - 2,25 м. Входы в пешеходные тоннели и на
мостики следует располагать на тротуарах или полосах озеленения на расстоянии
от бортового камня не менее 0,4 м [9].
На проектируемом пересечении кольцевого движения улиц Робеспьера Ленина
были применены внеуличные пешеходные переходы, а именно тоннель, чтобы переходы
не вызывали значительные задержки транспортного потока, а также вследствие
высокой интенсивности пешеходных потоков. На проектируемом пересечении с
канализированным движением Робеспьера - Мира были применены подземные
пешеходные переходы с неполным регулированием. Так как проезжая часть
оборудована островками безопасности, то переход пешеходов становится
безопасным.
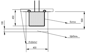
Лестничные сходы и пешеходные пандусы устраиваем открытыми. Они
расположены в пределах тротуаров и полос озеленения с учетом направления и
интенсивности пешеходных потоков.
Высоту пешеходных тоннелей от уровня пола до низа выступающих конструкций
принимаем 2,3 м. Ширину тоннелей принимаем 3 м, ширину лестничных сходов и
пешеходных пандусов 2,25 м.Ступени лестничных сходов имеют размеры 12x40 см.В
одном марше располагаем только 14 ступеней. Длина промежуточной площадки в
прямом марше имеет ширину 1,5 м.Уклон пандуса составляет 50 ‰ (при максимальном
его значении 60‰).
В соответствие с ГОСТ Р 52289-2004 установим изображением навстречу
основным пешеходным потокам у входов в пешеходный переход знак 6.6 «Подземный
пешеходный переход».
Устройство проектируемого пешеходного перехода представлено на рисунке
4.1.
Рисунок 4.1 - Схема проектируемого подземного пешеходного перехода
.2 Обустройство стоянок и остановочных пунктов
Планировочные характеристики автомобильных стоянок (размеры ячейки для
постановки автомобиля, ширина проездов, радиусы поворотов, зоны для
маневрирования) определяются схемой расстановки автомобиля. Размер ячейки
определяется типом автомобилей.
На проезжей части предусмотрены специальные парковочные карманы для
парковки автомобилей.
На рассматриваемом участке УДС имеется парковочный карман. Для
обустройства применяется разметка 1.1, которая обозначает границы стояночных
мест транспортных средств. Также применяются знаки 6.4 «Место стоянки», и 8.6.5
«Способ постановки транспортного средства на стоянку».
Остановочные пункты маршрутного транспорта оказывают существенное влияние
на безопасность движения и на пропускную способность дороги. Вместе с тем от их
расположения зависит удобство пассажиров. Остановочный пункт должен быть
оборудован местом ожидания для пассажиров и находиться вблизи пешеходного
перехода. Также должен имеется карман для заезда маршрутных транспортных
средств для посадки и высадки пассажиров, что не мешать движению основного потока.
5. Анализ проектируемых вариантов совершенствования организации движения
на участке УДС ул. Робеспьера
Предложенные усовершенствования организации дорожного движения позволяют
снизить транспортные задержки на перекрестках, а значит улучшить экологическую
обстановку на данном участке УДС г.Красноярска, сделает проезд перекрестков
более безопасным, благодаря замене конфликтных точек «пересечения» на
конфликтные точки «слияние» и «разветвление». Если принятые меры позволяют
снизить число дорожно - транспортных происшествий, это благоприятно скажется на
экономии средств народного хозяйства от снижения числа ДТП.
Организация двухстороннего движения по улице Робеспьера позволит в
какой-то степени разгрузить параллельные ей улицы.
Устройство надземных и подземных пешеходных переходов позволит исключить
конфликт между пешеходными и транспортными потоками, что в свою очередь
приведет к снижению числа дорожно - транспортных происшествий с участием
пешеходов, а также к уменьшению транспортных затрат, связанных с остановкой
транспортного потока для пропуска пешеходов.
Заключение
В данном курсовом проекте были рассмотрены способы организации движения
на участке УДС г. Красноярска улица Робеспьера.
С помощью организации канализированного движения на перекрестке улиц
Робеспьера - Мира были минимизированы зоны с конфликтными точками. Выделены и
организованы правые повороты с большой интенсивностью. В частности, правый
поворот с улицы Робеспьера на пр. Мира со стороны ул. Ленина является не
регулируемым, был предложен знак индивидуального проектирования.
Также организованы пешеходные потоки на этом пересечении. Таким образом,
пешеходы переходят участок проезжей части по светофору, а далее у них есть
возможность ожидать освобождения проезжей части от транспортных средств на
островке безопасности, что также не будет задерживать правоповоротный
транспортный поток.
Была предложена схема организации кругового движения на перекрестке улиц
Робеспьера - Ленина, ввиду высокой интенсивности транспортных потоков. Диаметр
внутреннего островка, ширина проезжей части, длина зоны переплетения
удовлетворяют заданные критерии по пропускной способности. Также ликвидированы
конфликтные точки.
Пешеходный поток организован путем внеуличных пешеходных переходов
(тоннель и мостик), тем самым движение транспортных потоков может
осуществляться непрерывно, не задерживаясь для пропуска пешеходных потоков.
Также отработан навык организации двухстороннего (одностороннего)
движения.
Проведены мероприятия по оборудованию стоянок и остановочных пунктов, нанесена
необходимая разметка и знаки.
В работе пренебрегали расположенными вблизи дороги зданиями, сооружениями
и домами, поскольку в реальных условиях применить кольцевую развязку в центре
города, с его сложившейся застройкой, не представляется возможным. Зато
применение канализированного движения на перекрестках вполне реально, даже с
учетом застройки. Это позволит улучшить обстановку на дорогах города.
Список использованных источников
1 Кременец
Ю.А. Технические средства организации дорожного движения: Учебник для вузов /
Ю.А. Кременец, М.П. Печерский, М.Б. Афанасьев. - М.: ИКЦ Академкнига, 2005.-279
с.
Правила
дорожного движения Российской Федерации 2008. - М.: Эксмо, 2008.-192 с.
Клинковштейн
Г.И., Афанасьев М.Б. Организация дорожного движения: Учеб. Для вузов / Г.И.
Клинковштейн, М.Б. Афанасьев. - 5-е изд., перераб. И доп. - М.: транспорт,
2001. - 247 с.
4
Рекомендации по обеспечению безопасности движения на автомобильных дорогах.
5 СТО
4.2-07-2008 Стандарт организации. Система менеджмента качества. Общие
требования к построению, изложению и оформлению документов.
ГОСТ Р 52289
- 2004. Технические средства организации дорожного движения. Правила применения
дорожных знаков, разметки, светофоров, дорожных ограждений и направляющих
устройств.
Рекомендации
по проектированию улиц и дорог городов и сельских поселений
Е. М. Лобанов
Транспортная планировка городов
СниП
2.07.10-89 «Градостроительство. Планировка и застройка городских и сельских
поселений»
Приложение Д
«Профиль подземного пешеходного перехода»
Рисунок Д.1 - Подземный пешеходный переход (вид сверху)
Рисунок Д.2 - Поперечный профиль подземного пешеходного перехода
Приложение Е
«Способы установки знаков и светофоров»
Рисунок Е.1 - Примеры размещения светофоров различных типов и исполнений
Рисунок Е.2 - Способы установки знаков в населенных пунктах (а, б - на
специальных стойках; в, г - на мачтах освещения; д - на стене здания; е, ж, з -
на тросах-растяжках; и - на круглой тумбе)
Приложение Ж
«Пешеходное ограждение»
|
Стоимость 1 комплекта
|
|
Без покрытия
|
Горячий цинк
|
Краска
|
|
2400
|
3400
|
2700
|

Рисунок Ж.1 - Пешеходное ограждение (крест) - Тип 1

Рисунок Ж.2 - Закладная деталь пешеходного ограждения
Приложение З
«Форма, размер, описание дорожной разметки»
Таблица З.1 - Форма, размер, описание дорожной разметки
|
Номер
|
Форма, цвет, размеры в м
|
Назначение
|
|
1.1
|
Разделение транспортных потоков противоположных
направлений. Обозначение полос движения Обозначение границ участков проезжей
части, на которые въезд запрещен. Обозначение границ мест стоянки
транспортных средств
|
|
|
1.3
|
Разделение транспортных потоков противоположных
направлений
|
|
1.5
|
v
£ 60 км/ч, l1= 1,00 - 3,00, l2 =
3,00 - 9,00;Разделение транспортных потоков противоположных направлений.
Обозначение полос движения
|
|
1.6
|
v
£ 60 км/ч, l1 = 3,00 - 6,00, l2 =
1,00 - 2,00;Обозначение приближения к сплошной линии продольной разметки
|
|
|
|
1.7
|
Обозначение полос движения в пределах перекрестка
|
|
|
1.12
|
Обозначение места остановки транспортных средств -
стоп-линия
|
|
|
1.13
|
Обозначение места, где водитель обязан уступить
дорогу
|
|
|
1.14.1
|
Обозначение пешеходного перехода при 6,00 ³Р³4,00
|
|
|
1.18
|
Обозначение направлений движения по полосам (см.
рисунок Б.2)
|
|
|
1.20
|
Обозначение приближения к поперечной линии разметки
1.13 (см. рисунок Б.4)
|
|
|
2.7
|
|
Обозначение бордюра на
опасных участках и боковых поверхностей возвышающихся островков безопасности
|
Приложение И
«Форма и размеры дорожной разметки 1.16»
Рисунок И.1 - Форма и размеры дорожной разметки 1.16
Таблица И.1 Размеры в метрах дорожной разметки 1.16
|
V, км/ч
|
L
|
L1
|
a1
|
a2
|
b
|
d1
|
d2
|
e
|
f
|
k
|
|
£60
|
5,00
|
2,05
|
0,70
|
0,80
|
0,50
|
0,35
|
2,60
|
0,50
|
0,30
|
0,45
|
|
>60
|
7,50
|
2,05
|
1,20
|
1,30
|
0,50
|
1,45
|
4,60
|
0,50
|
0,30
|
1,05
|