Циклический двухвальный бетоносмеситель

  • Вид работы:
    Курсовая работа (т)
  • Предмет:
    Строительство
  • Язык:
    Русский
    ,
    Формат файла:
    MS Word
    3,34 Мб
  • Опубликовано:
    2012-12-09
Вы можете узнать стоимость помощи в написании студенческой работы.
Помощь в написании работы, которую точно примут!

Циклический двухвальный бетоносмеситель

Содержание

Введение

. Анализ существующего оборудования по разрабатываемой теме

.1       Бетоносмесители СБ - 163

1.2     Бетоносмеситель принудительного действия СБ - 163 А - 0,5

.3       Бетоносмеситель принудительного действия СБ - 163 А - 1,0

.4       Бетоносмеситель принудительного действия БП-2Г-375

.5       Преимущества двухвального бетоносмесителя

. Бетоносмеситель принудительного действия СБ - 163 А - 1,5

3. Технико-экономические показатели

. Требования по эксплуатации

. Охрана труда

Список литературы

Введение

Главным признаком бетоносмесителей принудительного перемешивания является наличие неподвижных ёмкостей, в которых вращаются валы с лопастями, перемешивающие компоненты бетонной смеси. Благодаря интенсивному, принудительному воздействию лопастей на материал такие бетоносмесители способны перемешивать бетонные и растворные смеси любой подвижности и жёсткости. Преимущества смесителей принудительного действия - возможность приготовления смесей практически любой удобоукладываемости, большая производительность, меньше комкования смеси. Недостатки - значительный износ рабочих элементов, связанных с интенсивностью процесса, более высокая энергоемкость.

1. Анализ существующего оборудования по разрабатываемой теме

Цикличные двухвальные бетоносмесители по принципу перемешивания компонентов относится к принудительному перемешиванию.

Принципиальная и кинематическая схемы представлена на рисунках 1 и 2. От двух электродвигателей 1 через клиноремённые передачи 2, редукторы 3 вращение передаётся двум валам 4 с лопастями 5, 8. Валы вращаются синхронно навстречу друг другу. При вращающихся валах отдозированные компоненты загружаются в барабаны смесителя 7. Затем подаётся заданная доза воды. Лопасти смешивают материалы, образуется однородная смесь, которая выгружается через затвор 6 в бункер или в транспортные средства. Общий вид двухвального бетоносмесителя представлен на рисунках 3, 4, 5.

Многие производители и исследователи бетона во всем мире, считают, что двухвальные цикличные бетоносмесители на сегодняшний день являются наиболее эффективными и универсальными из всех систем, применяемых при производстве бетона. Обеспечивая получение наиболее однородной смеси за более короткие промежутки времени (20-60 сек), двухвальные цикличные бетоносмесители являются наиболее экономичными и долговечными. Бетон из двухвальных цикличных бетоносмесителей по консистенции и однородности значительно превосходит бетоны, получаемые при использовании смесителей другого типа. Они обладают самым широким диапазоном производительности - от 250 до 6000 л за один замес.

Рисунок 1 - Кинематическая схема двухвального бетоносмесителя

Рисунок 2 - Продольный разрез двухвального бетоносмесителя

Рисунок 3 - Общий вид двухвального бетоносмесителя

Рисунок 4 - общий вид двухвального бетоносмесителя

Рисунок 5 - общий вид двухвального бетоносмесителя

В смесителях принудительного действия движение лопастей сопровождается разностью давлений перед лопастью и за ней, создавая условия, препятствующие перемещению лопасти (рисунок 6, 7).

Рисунок 6 -Валы с лопостями двухвального бетоносмесителя

Рисунок 7 - Загрузочное отверстие двухвального бетоносмесителя

При воздействии лопасти на смесь последняя начинает уплотняться. В смеси возникает напряжение, возрастающее по мере перемещения лопасти. При достижении в смеси напряжений, превосходящих силы сопротивления, оказываемые смесью, призма смеси начинает движения относительно других слое смеси, корпуса и лопастей смесителя. Между поверхностями лопастей, внутренней поверхности корпуса смесителя и самой смесью возникают силы внешнего трения, а между частицами - силы внутреннего трения. Учитывая размеры поверхностей, по которым происходит относительное перемещение слоев материала, на энергетические показателя процесса смешивания трение частиц друг о друга, то есть внутреннее трение будет оказывать превалирующее влиянию. При этом возникают силы волнового сопротивления, обусловленные вспучиванием частиц смеси вверх и в отдельных случаях их подбрасыванием. Поднявшиеся вверх частицы впоследствии под действием гравитационных сил будут спускаться вниз.

Силы сопротивления, оказываемые смесью, продвижения в ней лопасти, во многом зависят от физико-механических свойств приготавливаемой смеси и увеличиваются с увеличением крупности зерен заполнителей, плотности смесей и снижаются с увеличением подвижной смеси. [1]

В двухвальных смесителях вращающиеся в противоположные стороны валы с лопастями, расположенными по винтовой линии, создают перекрестное движение материалов или от торцевых стенок смесителя к центальной части, или наоборот. В первом случае движение смеси называют противоточным, в другом прямоточным.

Материалы под действием гравитационных сил опускаются вниз и возвращаются на исходные позиции. Примерная картина движения представлена на рисунке 8. Стрелками указаны ориентировочные траектории движения зерен материалов.

Рисунок 8 - Схема движения материалов в двухвальном бетоносмесителе

Благодаря кубообразной форме корпуса смесителя снижается путь перемещения материала в нем, способствующий сокращению расхода энергии и продолжительнсти процесса смешивания. Корпуса вместе с разгрузочными затворами изнутри выкладываются износостойкой футеровкой. Вместимость смесителей для приготовления цементно-бетонных смесей находится в пределах 250-500 л.(600-11500 кг).

На рисунках 9, 10, 11 представлены результаты анализа конструкций одновальных и двухвальных смесителей, применяемых за рубежем.

Рисунок 9 - зависимость массы (а) и мощности (б) от обьема готового замеса двухвального смесителя

Рисунок 10 - зависимость длины L, расстояния между валами А и радиуса лопостей R от объема готового замеса двухвального смесителя

Рисунок 11 - Зависимость мощности двигателя и массы (а), длины корпуса и радиуса лопастей (б) от обьема готового замеса одновального смесителя

Графики зависимости, построенные в логарифмических координатах, показыввают, что все они с достаточной степенью точности укладываются в уравнение прямой линии.

В результате обработки имеющихся данных получены следующие зависимости:

Двухвальные смесители: N=34V0,98; P=9,1V0,75; L=1,55V0,3; A=0,85V0,3; R=0,550,3

Одновальные смесители: N=36V1,05; P=4,3V0,98; L=2,35V0,35; R=0,710,4, где V - объем готового замеса, м3; N - мощность двигателя, кВт; P - масса смесителя, т; L - длина смесителя, м; R - радиус лопасти, м; A - межцентровое расстояние (между двумя валами смесителя).

Установлено, радиусы лопастей, расстояние между двумя валами (межцентровое расстояние), а следовательно, и ширина конструкции у зарубежных машин, чем у советских производителей. При определении частоты вращения валов смесителя рекомендуется использовать равенство м=45,3/, а шага лопастей τ=0,68-0,82 R.

Расположение лопастей по винтовой линии, их размеры, углы наклона к оси вала должны быть такими, чтобы траектория движения частиц смеси обеспечивали равномерное распределение компонентов за наименьший срок времени.

Таблица 1 - Сравнение некоторых параметров двухвальных смесний.

Параметры

Асфальтобетоны, выпускаемые в России

Зарубежные двухвальные смесители

Расчетные данные по асфальто бетоносмесителям

Удельная энергоемкость, кВ*ч/м

47-69

34-36

33-39

Удельная металлоемкость, т/м3

3,9-5,2

4-7,2

4-4,3

Частота вращения лопастных валов, об/мин

40-75

84-96

67-90

1,5-2,6

3,5-6,8

2,4-3,2


Чтобы проанализировать работу двухвального бетоносмесителя , рассмотрим принцип работы смесителей данного типа, общий вид, схемы и приведем их характеристики.

.1 Бетоносмеситель СБ-163

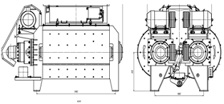
Бетоносмеситель СБ-163 является одним из первых используемых циклических двухвальных бетоносмесителей, представлен на рисунке 11.

Рисунок 11 - Общий вид и разрез двухвального бетоносмесителя СБ 163

Объем готового замеса 100 л. На сварной раме 2 размещены корпус 4, представляющий собой в разрезе две соединенные полутрубы, и привод, который состоит из электодвигателя 7, зубчатого редуктора 9 и клиноременной передачи 8, закрытой кожухом. Внутри корпуса в подшипниках смонтированы вращающиеся навстречу друг другу лопастные валы 3, на которых по винтовой линии на державках 6 размещены смесительные лопасти так, что лопасти одного вала при его вращении входят в промежутки между лопастями другого вала, и наоборот.

Крутящий момент от электодвигателя 7, клиноременную передачу 8, редуктор 9 через гибкую муфту сообщается лопастным валам.

Составляющие смеси поступают в работающий смеситель сверху через загрузочное отверстие. Лопасти 5 перемещают материал в разных направлениях, смешивая их. [2]

Таблица 2 - Технические характеристики двухвального бетоносмесителя С Б -163

Объем готового замеса, л

1000

Вместимость загрузки,

1500

Число циклов в час, не менее

40

Наибольшая крупность заполнителя, мм

70

Мощность двигателя, кВт

37

Размеры, мм


Длина

4000

Ширина

2000

Высота

1500

Масса, кг, не более

4000


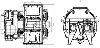
.2 Бетоносмеситель принудительного перемешивания СБ-163А - 0,5

Общий вид данного бюетоносмесителя и чертеж представлен на рисунках12, 13, 14. Чертеж изображен на рисунках15, 16. Паспортные данные описаны в таблице 3.

Рисунок 12 - Общий вид бетоносмесителя принудительного перемешивания СБ-163А-0,5. Вид спереди

Рисунок 13 - Общий вид бетоносмесителя принудительного перемешивания СБ-163А-0,5. Вид сбоку

Рисунок 14 - Общий вид бетоносмесителя принудительного перемешивания СБ-163А-0,5. Вид сзади

Рисунок 15 - Чертеж бетоносмесителя принудительного перемешивания СБ-163А-0,5. Вид сбоку, вид спереди

Рисунок 16 - Общий вид бетоносмесителя принудительного перемешивания С Б-163А-0,5. Вид сверху, вид сзади

Таблица 3 - Паспортные данные бетоносмеситель принудительного перемешивания С Б-163А-0,5

Наименование показателя, единица измерения

Значение

Объем по загрузке, л

750

Объем готового замеса, л

500

Продолжительность перемешивания, max, сек

15-42

Рабочее давление в пневмоцилиндре, МПа

0,4 - 0,6

Установленная мощность электродвигателя, кВт

18,5

Габаритные размеры, мм

2280 х 17748 х 1510

Масса, не более, кг

3500


.3 Бетоносмеситель принудительного перемешивания СБ-163А-1,0

Общий вид данного бюетоносмесителя и четреж представлен на рисунках17, 18. Работа валов с лопостями изображена на рисунках 18.

Рисунок 17 - Общий вид бетоносмесителя СБ 163-1,0. Вид спереди.

Рисунок 18 - Общий вид бетоносмесителя СБ 163-1,0. Вид сзади.

Рисунок 19 - Загрузочный затвор открыт

Таблица 4 - Паспортные данные бетоносмеситель принудительного перемешивания СБ-163А-1,0

Наименование показателя, единица измерения

Объем по загрузке, л

1500

Объем готового замеса, л

1000

Продолжительность перемешивания, max, сек

15-42

Крупность заполнителя, мм

70

Установленная мощность электродвигателя, кВт

37

Габаритные размеры, мм

3330 х 1960 х 1620

Масса, не более, кг

4550


1.4 Двухвальный бетоносмеситель БП - 2Г - 375

БП - 2Г - 375 - один из самых усовершенствованных современных бетоносмесителей, схема которого представлены на рисунке 23. Данный вид смесителя используется при сравнительно небольшом производстве, например, в частных фирмах.

Рисунок 23 - двухвальный бетоносмеситель БП - 2Г - 375

Двухвальный бетоносмеситель БП - 2Г - 375 состоит из неподвижного сварного корпус, внутри которого размещен смешивающий механизм, состоящий из двух горизонтально расположенных валов 2, закреплённых на них 10 лопатками, и скребковыми лопастями. Валы соединены между собой синхронизатором для защиты привода. Имеются подшипниковые корпуса смесительных валов 7.

Загрузка компонентов бетонной смеси осуществляется загрузочным устройством, состоящим из скипа (ковша) и лебедки (механизм подъёма) с приводом от электродвигателя 3 кВт 3 и червячным редуктором - 4. Лебедка для безопасной и надежной работы оснащена тормозом.

Позицией 8 обозначены предохранительные муфты.

Для интенсификации выгрузки смеси из ковша в бетоносмеситель установлен встряхиватель (опция), управление которым происходит с пульта, по мере необходимости. Привод осуществляется от электродвигателя 7,5 кВт через ременную передачу, оснащенную кожухом, и два редуктора с принудительным охлаждением и смазкой. Скорость вращения валов 36 оборотов минуту.

Для распыла воды установлены форсунки, это позволило избежать комкования цемента при добавлении воды. Для точного дозирования воды возможна установка электронного дозатора воды, необходимая доза задается с пульта и последующая подача осуществляется нажатием одной кнопки.

Корпус двухвального бетонносмесителя облицован изнутри износостойкой броней чешуйчатого типа 1, что значительного облегчает обслуживание и текущий ремеонт бетоносмесителя. Броня сменная, крепится на винты.

Выгрузка готовой бетонной смеси из двухвального бетоносмесителя производится через окно в днище корпуса, закрываемое затвором с пневомприводом 5. Управление затвором оператором с пульта.

Для наблюдения за состоянием лопастей и чистки двухвального бетоносмесителя предумотрен большой смотрой люк. Имеется защитная решетка 6

двухвальный бетоносмеситель замес лопасть

Таблица 6 - Технические характеристики бетоносмесителя БП-2Г-375

 Объем по загрузке / объем скипа, л

 375 / 375

 Объем готового замеса по бетону, л

250

 Объем готового замеса по раствору, л

300

 Производительность, м3

9...15

 Время перемешивания смеси, сек

30...60

 Количество циклов при использовании в автоматических линиях

60

 Крупность заполнителя, не более, мм

70

 Частота вращения валов смесителя, об/мин

36

 Напряжение питания / частота, В / Гц

380 / 50

 Общая установленная мощность, не менее, кВт

10,5

 Установленная мощность привода вращения ротора, кВт

7,5

 Установленая мощность подъема скипа, кВт

3

 Тип затвора, с пневмоцилиндром

секторный

 Масса с загрузочным устройством, не более, кг

2100

 Размеры бетоносмесителя без скипового подъемника, мм

1700 х 1575 х 1010

Бетоносмеситель БП-2Г-375 имеет дополнительные опции: эстакада, подставки под бетоносмеситель; бункера для хранения инертных материалов; ленточный конвейер-дозатор; дозатор скиповый; автоматический дозатор воды (проточного типа); дозатор воды и хим. добавок тензометрического типа; дозатор цемента; шнек; силос-растариватель 20 тонн; пульт-управления для работы в автоматическом режиме.

Бетоносмеситель БП-2Г-375 обладает рядом преимуществ, относительно остальных бетоносмесителей.

За счет активации цемента и распыла воды, осуществляется экономия цемента (до 15%) без снижения прочности бетона, вследствии чего снижается себестоимость изделия.

Расход на куб готовой смеси в два раза ниже,чем у классических бетоносмесителей (по ГОСТ 16349-85), следовательно происходит экономия электроэнегрии до 50%

Огромным преимуществом является то, что 85% однородности смеси достигается уже в первые 15 секунд замеса, а за последующие 15 секунд - 95% однородности

Происходит более полное обволакивание цементом каждой частицы песка и другого заполнителя. Два смесительных вала c 10 лопатками, вращаясь друг другу навстречу, создают эффект подбрасывания смеси с разрезанием ее, а также эффект турбулентности и перемешивания смеси по замкнутому кольцу.

Бетоносмеситель БП-2Г-375 имеет всокую производительность - до 30 м3 за час работы. Мощность привода смесителя 7,5 кВт, высокая скорость вращения валов - 36 об\мин. Кроме того, данный бетоносмеситель может работать с любыми рецептами (жесткие, тяжелые бетоны, легкие бетоны, растворные бетонные смеси, сухие строительные смеси и прочее).

Так как подача воды осуществляется через форсунки, по всему периметру смесительной камеры, то не образуются комки цемента и песка, для точного дозирования установлен водомер. Затвор с пневмоприводом обеспечивает быструю и удобную разгрузку смеси.

Сменная чешуйчатая броня по диаметру барабана и стенкам смесителя легко позволяет легко производить замену

Бетоносмеситель БП-2Г-375 обладает легкостью обслуживания при чистке, ТО и ремонте, т.к. полностью разборная конструкция и съемные (разборные спицы) и лопасти, большой смотровой люк

Имеется многоступенчатая защита привода: предохранительные муфты, ременная передача

.5 Преимущества двухвального бетоносмесителя над роторными смесителями

Одним из важнейших плюсов является однородность при премешивании одного цикла в 20-40 секунд. В первые 15 секунд бетонная смесь тщательно перемешивается, затем в течение 20-40 секунд достигает определенной однородности. Период времени, за который перемешивается вся бетонная смесь, и достигается однородность материала у роторного бетоносмесителя достигает 60-80 секунд, что практически больше в 2 раза.

Немаловажным фактором при эксплуатации является долговечность машины.

Из-за кубообразной формы корпуса снижается путь движения материала, вследствие чего значительно снижается потребление энергии. Снижение энергии напрямую зависит экономичность машины: чем меньше затратится энергии на перемешивание, тем более экономична машина.

Максимальная производительность двухвального смесителя 1500 литров на замес (6000-11500 кг смеси). Максимальная же производительность роторного смесителя 600-800 л.

Максимальная емкость по загрузке двухвального смесителя также больше роторного: двухвального - 2250 кг, роторного - 1200 кг. Максимальная объем выгружаемой смеси двухвального смесителя - 1500.

Огромным плюсом является то, что двухвальный смеситель является относительно компактным по сравнению с другими смесителями. Габаритные размеры двухвального - 2720 х 2020 х 1828 см, габаритные размеры роторного - 2955 х 2650 х 2700 см.

Кроме того, двухвальный бетоносмеситель может иметь дополнительные функции, например, бункера, силоса, дозаторы, шнеки, питатели и т.д.

Очень широко стали применяться двухвальные смесители для небольших производств, например частных фирм. Данные машины компактны, удобны, обладают высокой производительностью для заданноого объема производства.

2. Описание конструкции и работы бетоносмесителя принудительного перемешивания С Б-163 А 1,5

Общий вид данного бетоносмесителя и чертеж представлен на рисунке 20. На рисунках 21-22 представлен чертеж машины. Паспортные данные описаны в таблице 6.

Рисунок 20 - Общий вид бетоносмесителя принудительного перемешивания СБ-163А-1,5. Вид спереди

Рисунок 21 -Чертеж бетоносмесителя принудительного перемешивания СБ-163А-1,5. Вид спереди

Рисунок 22 -Чертеж бетоносмесителя принудительного перемешивания СБ-163А-1,5. Вид сзади

Двухвальный бетоносмеситель С Б-163 А 1,5 является самым мощным и производительным смесителем на данное время (Таблица 9). Принцип работы не отличается от других двухвальных смесителей и рассмотрен выше. Устройство данной машины тоже идентично остальным смесистелям. Отличительной чертой является то, что вместо одного двигателя он имеет два двигателя, что повышает его мощность, а в следствии чего производительность.

Таблица 5 - Паспортные данные бетоносмеситель принудительного перемешивания СБ-163А-1,5

Наименование показателя, единица измерения

Значение

Объем по загрузке, л

2250

Объем готового замеса, л

1500

Продолжительность перемешивания, max, сек

15-42

Крупность заполнителя, мм

70

Установленная мощность электродвигателя, кВт

2х30

Габаритные размеры, мм

2720 х 2020 х 1828

Масса, не более, кг

5200


3. Технико-экономические показатели

Двухвальные смесители обладают наилучшими показателями, позволяющими приготовить смеси с относительно низким В/Ц при наибольшей крупности заполнителя 100-180 мм, наименьшей продолжительностью смешивания и выгрузки готовой смеси. Эноргоемкость их ниже тарельчатых, но выше, чем гравитационных смесителей. Наибольшая вместимость по загрузке 3,5-5 м3. [1] Технико-экономические показатели мы можем проследить по таблице 8.

Таблица 8 - Технико-экономические показатели двухвального и одновального смесителя

Тип смесителя

Схема смесителя

Вместимость

Наибольшая крупность Заполнителя, мм

Энергоемкость, кВт/м3

В/Ц

Достоинства

Недостатки

Одновальный

0,2-2 0,5-3

100 150

2,8-3,9 2,8-3,6

0,45-0,85;

Простота ухода, универсальность

Медленная разгрузка

Двухвальный

0,5-3,5 0,5-5

180 80-100

3,0-3,6 2,9-37

0,32-0,9

Универсальность, быстрота разгрузки, малые габариты

-


Таблица 9 - Сравнительные характеристики бетоносмесителей серии СБ 163 А

Наименование показателя, единицы измерения

Значения


СБ-163 А - 1,5

СБ - 163 А - 1,0

СБ-163 А - 0,5

Назначение

Жесткий бетон

Жесткий бетон

Объем по загрузке, л

2250

1500

750

Объем готового замеса, л

1500

1000

500

Продолжительность перемешивания, сек

15 - 42

15 - 42

15 - 42

Крупность заполнителя, мм

70

70

70

Установленая мощность электодвигателя, кВт

30 - 60

37

18,5

Габаритные размеры, мм

2720х2020х 1828

3330х1960х 1620

2280х1748х 1510

Пневмоцилиндр d 160, шт

2

2

1

Масса, не более, кг

5200

4550

3500



4. Требования по эксплуатации машины

Машины после установки или монтажа подвергаются пробному пуску, обработке и испытанию.

Перед пуском выполняют крепежные и контрольные работы. при этом необходим проверить крепление всех соединений и, в частности, крышек и корпусов подшипников, шкивов, звездочек, болтов. Отрегулировать натяжение приводных ремней, проверить наличие смазочного материала в смазочных устройствах.

Пробный пуск производят в течении нескольких минут. Если после пуска обнаружена какая-либо неисправность, машину необходимо остановить, а неисправность устранить. До включения смесителя в работу проверяют правильность углов установки лопастей. Наклон лопаток одного вала должен продвигать смесь вдоль корпуса, а наклон лопаток другого вала в противоположную сторону. Необходимо обратить внимание на надежность затяжки болтовых соединений, закрепление корпусов подшипников, электродвигателей, редукторов, шкивов. Необходимо также провести полную смазку смесителя, если подача масла осуществляется не автоматически, что сейчас встречается крайне редко.

При отсутствии неисправности можно провести обкатку и испытание машины.

Вначале целесообразно обкатывать машину на холостом ходу. В процессе обкатки проверяют состояние подшипников, приводных валов, передач и других элементов.

По окончании обкатки машину останавлливают, тщательно осматривают и при необходимости выполняют крепежные и регулировочные работы. Затем переходят к испытанию машины под нагрузкой, постепенно увеличивая ее до номинального значения. При испытании проверяют основные показатели работы машины - производительность, частоту вращения, качество готовой продукции, мощность. Обнаруженные при этом неисправности должны быть при этом немедленно устранены. После того, как машина пройдет обкатку и испытание, ее предъявляют в эксплуатацию.

В процессе эксплуатации машины необходимо выполнить контрольные и регулировочные работы.

Запрещается перегружать смеситель более чем на 10 % от установленного объема. Учесть, что при использовании жестких смесей загрузка смесителя 70% от номинальной. Запрещается загружать компоненты бетонной смеси, не очищенные от посторонних предметов.

При эксплуатации необходимо содержать машину в чистоте и исправности, своевременно заменять бестроизнашиваемые детали. При окончании работы удалить из полости корпуса остатки бетонной смеси или раствора, очистить стойки и лопасти.

5. Охрана труда

Основные условия обеспечения охраны труда закладываются на стадии проектирования. Необходимо привести общие мероприятия по предотвращению при эксплуатации на проектируемой машине травматизма и профессиональных заболеваний, связанных с действием на работающих некоторых неблагоприятных факторах - пыли, газов, паров, вибрации, шума и др.

Особую опасность предоставляют движущиеся части оборудования. Поэтому для предотвращения травматизма они должны быть защищены сетчатыми или сплошными ограждениями. Оборудование должно иметь блокировку, исключающую случайный пуск во время обслуживания и ремонта, а также сигнализацию, блокировочные или предохранительные устройства при возникновении поломок, перегрузок, аварийных ситуаций во время работы.

Все токопроводящие части, доступные для случайного касания человеком, должны быть надежно защищены изоляцией. Все металлические части оборудования должны быть заземлены.

Оборудование, являющееся источником вибрации должно быть установлено на пружинные или резиновые виброизоляторы на массивные фундаменты, изолированные от пола упругими прокладками. На рабочих местах должны быть платформы на упругих прокладках, для индивидуальной защиты должна использоваться специальная обувь из губчатой резин, рукавицы со специальными прокладками.

Для борьбы с шумом должны применяться укрытия оборудования или рабочих площадок акустическими кожухами, облицовка помещений звукопоглащающими материалами, размещения источников шума в отдельных помещениях.

Для индивидуальной защиты должны применятться противошумные наушники (антифоны).

Все оборудование, трубопроводы и установки, выделяющие тепло, должны быть теплоизолированными.

Запрещается производить ремонт оборудования, не обесточив

Электрооборудование. Кроме того запрещается начинать и продолжать работу при обнаружении неисправности в бетоносмесителя или системе электропитания. После окончания работы, а также при длительном перерыве в работе не рекомендуется включенным напряжение. При ремонте и обслуживание на пульте управления должна быть оставлена табличка с предупреждающей надписью.

При транспортировке смеситель должен быть надежно закреплен к транспортному средству от опрокидывания и смещения.

Список литературы

.        Королев К.М. Механизация приготовления и укладки бетонной смеси. - М.: Стройиздат, 1986. - с.: ил.

.        Тихонов А.Ф., Королев, К.М. автоматизированные бетоносмесительные установки и заводы: учеб. пособие. - М.: Высш. шк., 1990.- 191 с.: ил.

.        Королев К.М. Новое оборудование для приготовления и транспортирования бетонной смеси. - М.: Стройиздат, 1969. - 114 с.: ил.

.        Колодезный Л. А. Механическое оборудование предприятий строительной индустрии: методические указания к выполннению курсового проекта / Л. А. Колодезный, В. М. Каракулов; Алт. гос. техн. ун-т. им. И. И. Ползунова. - Барнаул: Изд-во АлтГТУ, 2005. - 39 с.

.        Бауман В. А. Механическое оборудование предприятий строительных материалов, изделий и конструкций. Учебник для вузов. - М., Машиностроение, 1975. - 351 с.

.        Дроздов Н. Е., Журавлев М. И. Механическое оборудование заводов сборного железобетона. Учебник для вузов. М., - Стройиздат, 1975. - 302 с.

.        Борщевский А. А., Ильин А. С. Механическое оборудование для строительных материалов и изделий: Учеб. для вузов по спец. "Пр-во строит. изделий и конструкций". - М.: Высш. шк., 1987. - 368 с.

.        http://www.kip-bcy.ru/production/80

.        http://www.91463.promdex.com/product/detail/1907.html

Похожие работы на - Циклический двухвальный бетоносмеситель

 

Не нашли материал для своей работы?
Поможем написать уникальную работу
Без плагиата!
Без нейросетей!