Проектирование технологии бетонных работ

  • Вид работы:
    Курсовая работа (т)
  • Предмет:
    Строительство
  • Язык:
    Русский
    ,
    Формат файла:
    MS Word
    74,06 Кб
  • Опубликовано:
    2012-12-04
Вы можете узнать стоимость помощи в написании студенческой работы.
Помощь в написании работы, которую точно примут!

Проектирование технологии бетонных работ

НОВОСИБИРСКИЙ ГОСУДАРСТВЕННЫЙ

АРХИТЕКТУРНО-СТРОИТЕЛЬНЫЙ УНИВЕРСИТЕТ

КАФЕДРА ТСП











Курсовая работа

«Проектирование технологии бетонных работ»

 

Выполнил: студент 420гр

Зайкова К.Б.

Проверил: Гуненко Н.А..







Новосибирск 2012 г.

Содержание

1. Задание на проектирование

2. Исходные данные

3. Подсчет объемов основных и сопутствующих работ

4. Компоновка опалубочных форм с разработкой схем

5. Спецификация арматурных изделий

6. Выбор методов производства работ

6.1 Арматурные работы

.2 Опалубочные работы

.3 Разработка вариантов производства работ по бетонированию конструкций и схем их организации

7. Определение технико-экономических показателей и обоснование принятого варианта производства бетонных работ

8. Технология комплексного процесса возведения монолитных фундаментов с разработкой технологических схем

8.1 Арматурные работы

.2 Опалубочные работы

.3 Транспортирование бетонной смеси, опалубки, арматуры

.4 Бетонные работы

.5 Подача и укладка бетонной смеси в конструкцию

.6 Уход за бетоном

.7 Разборка и снятие опалубки конструкций

. Расчет комплексной бригады

. Разработка календарного плана комплексного процесса бетонирования фундаментов

. Требования техники безопасности по основным видам

. Технико-экономические показатели проекта

. Список используемой литературы

.Задание на проектирование

бетонирование конструкция фундамент арматура

Разработать проект производства работ на возведение конструкций фундаментов промышленного каркасного здания в летний период. Характеристика задания заключается в вычерчивании плана фундаментов здания в масштабе, а также двух типов фундаментов стаканного типа по заданному варианту.

Рис.1 Фундаменты под железобетонные колонны.



.Исходные данные:

Длина здания-192 м

Количество пролетов-3

Количество температурных блоков- 4

АБ-18

БВ-18

ВГ-18

Шаг крайних колонн-6м

Шаг средних колонн-6м

Расстояние транспортировки грузов-11км

Тип дорог- грунтовые

Количество арматуры-60 кг/м3

Место строительства- г. Новосибирск

Марка фундамента

Размеры фундамента


L

B

L1

B1

hf

Lис

Bис

K

Ф-1

3

2,4

2,1

1,5

3,6

1,2

2,4

0,6

Ф-2

3

2,1

2,4

3,6

1,2

2,4

0,6



.Подсчет объемов основных и сопутствующих работ

Подсчет объемов работ заключается в определении по конструктивным чертежам объема бетона, расхода арматуры и опалубки. Расход арматуры определяем через удельный расход 60 кг/м3. Площадь опалубливаемой поверхности и объем бетона рассчитываются по геометрическим размерам конструкций.

Ведомость объёма работ       Таблица 1

Марка

Кол-во

Кол-во монтируемой арматуры, кг

Площадь опалубливаемой поверхности, м2

Объём укладываемого бетона, м3



На один

На все

На один

На все

На один

На все

Ф-1

88

499,80

43982,40

21,00

1848,00

8,33

733,04

Ф-2

12

756,00

9072,00

28,30

339,60

12,60

151,20

Итого



53054,40


2187,60


884,24


Vф-1 = V1ст + V2cт + V3ст - Vст

1ст =3,6

V2ст =0,945

V3ст =4,03

Vстак =0,25

VФ-1 =3,6+0,945+4,03-0,25=8,33

Vф-2 = V1ст + V2cт + V3ст - 2Vст

1ст =3,6

V2ст = 1,5

V3ст =8

Vстак =0,25

VФ-2 =3,6+1,5+8-0,5=12,6

Sф-1 = Р1ст*h1cт+Р2ст*h2ст+ Р3ст*h3ст

ф-1=5,4+2,16+13,44=21м2

Sф-2=5,4+2,7+20,2=28,3м2

.Компоновка опалубочных форм с разработкой схем расстановки щитов и силовых элементов опалубки





. Спецификация арматурных изделий




. Разработка вариантов производства работ по бетонированию

Способ подачи и укладки бетонной смеси в конструкции фундаментов с разработкой схем организации бетонных работ осуществляется на основе вариантного проектирования путем технико-экономического сравнения 3-х вариантов производства работ.

Рассмотрим следующие схемы подачи бетонной смеси в конструкции:

вариант. Подача бетонной смеси краном.

Для подачи бетонной смеси по схеме «кран - бадья» применяются любые краны: стреловые, автомобильные, гусеничные, пневмоколесные и башенные. Я приняла автомобильный кран

При крановой подаче бетонная смесь из автотранспорта выгружается в поворотные бадьи, вместимость которых кратна вместимости кузова (или смесительного барабана) транспортного средства.

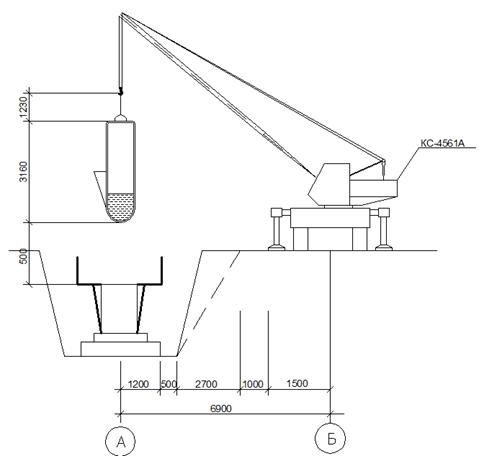
Для доставки бетонной смеси будем использовать автобетоновоз СБ-127, объем перевозимой бетонной смеси -2м3,

Высота выгрузки-3160 мм, массой 0,9т


Рис.4 Подсчет параметров крана

= mб + mбс + mстр =2800* 0,5 + 325 + 87 = 1812 кг=1,812 т.

Ргр = Рбад +Рбет см + Рстр= 0,9+4,2+0,4=5,5 т.

Hк=a+Lб+hстр

Нк=3,16+0,5+1,23=4,39 м

тр=d+с+l+b+1м

l=hтр*m=3.6*0.75=2.7м

 стр= 1.2+0.5+3.6*0.75+1.5+1=6,9м

По вычисленным параметрам по справочникам подбираем тип и марку крана:

КС - 4561А

Грузоподъемность - 16 т, стрела 10 м.

вариант. Подача бетонной смеси из автобетононасоса.

Укладка бетонной смеси производится автобетононасосом

«Штеттер» ВР-60

Вылет распределительной стрелы-16м

Высота подачи распределительой стрелой-19м

Угол поворота стрелы-370 град

Возможная даьность транспортировки-200-400м

Высота загрузки-1400мм

Приемный бункер-0,4м

. Определение технико-экономических показателей и обоснование принятого варианта производства бетонных работ

Обоснование и выбор окончательного варианта производства работ по бетонированию конструкций проводится путем технико-экономического сравнения 2 вариантов. Для этого на основании ЕНиР подсчитываем затраты труда, машинного времени и заработной платы.

.Механоемкость Nмч - сумма трудоемкостей бетонщиков на укладке бетона, разделить на количество людей в звене рабочих.

. Трудоемкость Тр=Тмаш+Тбет

.Продолжительность - Nмч /8.

. Удельная себестоимость

С = ((1,08*(Цм-ч*Nмч)+Сe+1,5*Сб)/Vобщ ,руб/ м3

Цмч =Смч +ЗП*(Кр-1),руб.

Сe - единовременные затраты для доставки механизмов до строительной

площадки

Сб - заработная плата бетонщиков.

Vобщ -объем укладываемого бетона

вариант

См.ч.= 133,17-15,26=117,91

Сиз.п.=15,26*5,26=80,27

Сиз.п.Кр.=80,27*1,2=96,324

Цмч =117,91+96,32=214,231

Nмч =(15772,27+3157,31)/2=149,58

Сб =31339,54

С=(1,08*(214,231*149,58)+1,5*31339,54)/884,3=92,29 р.к. / м3

Тр=Тмаш+Тбет =555,6+157,67=713,27

Продолжительность раб.= Nмч /8=149,58/8=18,6969

2 вариант

См.ч.= 318,54-28,31=290,23

Сиз.п.=28,31*5,26=148,91

Сиз.п.Кр.=80,27*1,2=178,69

Цмч =290,23+178,69=468,92

Nмч =(15772,27+3157,31)/2=149,58

Сб =21587,23

С=(1,08*(468,923*149,58)+1,5*21587,23)/884,3=107,13 р.к. / м3

Тр=Тмаш+Тбет =411,2+148,83=560,03

Продолжительность раб.= Nмч /8=145,91/8=18,2387

ТЭП сравниваемых вариантов

Таблица 5

Наименование показатедей

Единица измерения

Вариант 1

Вариант 2

Механоёмкость

маш-ч

149,58

149,58

Трудоёмкость

чел-ч

713,27

560,03

Продолжительность работ

смен

18,696875

Удельная себестоимость работ

р/м3

92,29

107,13


Принимаем тот, который дешевле по себестоимости. По результатам сравнения выбираем 1-ый вариант как наиболее оптимальный вариант производства работ. Приём бетонной смеси из автобетоносмесителя КС-4561А.

.Технология комплексного процесса возведения монолитных фундаментов с разработкой технологических схем

.1 Арматурные работы

Арматурные изделия фундаментов - сетки, каркасы и отдельные стержни, в зависимости от их массы и размеров, в проекте устанавливаются вручную.

Производится предварительная сборка арматуры подколонника в пространственный каркас на площадке для укрупнительной сборки вблизи места установки.

Для армирования фундаментов принимаем нижнюю сетку первой ступени диаметром стержней 18-20 мм, шагом 150х150 или 200х200. Для армирования подколонника принимаем каркасы (вертикальные стержни диаметром 18-20 мм, горизонтальные стержни 10-12мм).

Соединение арматурных стержней, как в сетках, так и в каркасах, в местах пересечения, при помощи вязальной проволоки.

.2 Опалубочные работы

Опалубка - верменная вспомогательная конструкция для придания требуемой формы геометрических размеров, положения в пространстве возводимой конструкции, в нашем случае фундамента.

Опалубка разборно-переставная и ее собирают непосредственно на месте положения фундаментов. Опалубка состоит из отдельных щитов, поддерживающих устройств, ребер, схваток, балок, стяжек , крюков и замков.

До сборки опалубки определяют положение продольных и поперечных осей, центра фундамента и его боковых поверхностей, отметку низа и устанавливают маяки. Риски наносят несмываемой краской на основание бетонной подготовки.

Сборку опалубочных форм из инвентарной мелкощитовой опалубки непосредственно на месте установки фундаментов начинают с монтажа нижних коробов: с помощью монтажных уголков устанавливают и закрепляют угловые щиты, затем к ним наращивают остальные щиты нижнего короба. На ребра щитов нижнего короба наносят риски, фиксирующие положение щитов второй ступени.

По рискам устанавливают заранее собранные панели опалубки, соединяя их опорные элементы - балки или схватки «в мельницу». Собранный второй короб рихтуют по осям. Сборка опалубки подколонника ведется аналогично сборке второй ступени.

При установке блока следят за его проектным положением. Для этого риски, нанесенные на нижнюю ступень опалубки, совмещают с рисками, имеющимися на бетонной подготовке. Особое внимание уделяется правильной установке блока опалубки по высоте. При несоответствии уровня бетонной подготовки проектной отметке низа фундамента устраивают специальные маяки, которые служат опорами для опалубки фундаментного блока.

.3 Транспортирование бетонной смеси, опалубки, арматуры

При перевозке бетонной смеси на дальние расстояния допускается применение добавок, предотвращающих расслоение смеси, и добавок - регуляторов схватывания. Способы транспортирования бетонной смеси должны обеспечивать требуемую интенсивность бетонных работ и неизменность характеристик применяемых бетонных смесей. Для транспортировки бетонной смеси используем автобетоновоз СБ-127.

Производительность транспортного средства (Ппр,м3/смену) при порционном способе доставки смеси определяется как:

Птр=Qтр*tсм*60*Kвр/tц

тр - объем порций бетонной смеси, перевозимой за один рейс,м3

tсм - продолжительность смены (8 час.)

tц -продолжительность общего цикла транспортирования бетона.

Kвр- коэффициент использования рабочего времени (в пределах 0,6-0,9)

ц = tз+tгп+tв+tпп+tо,

где: tз - время загрузки транспорта бетонной смесью (5 мин.)

tгп - время пробега транспорта с грузом 8мин. (при скорости =18 км/ч.)

tв - время выгрузки транспортом бетонной смеси 8мин.

tпп - время порожнего пробега транспорта 8 мин. (при скорости = 18

км/ч)

tо - время очистки, промывки и обслуживания транспортного средства,

отнесенное к одному циклу 5мин.(около 5 мин.)

гпр+tппр=2L/Vср=5*2*60/21=28,57мин

Птр.=(5*8*60*0,85)/(5+(5*2*60/21)+8+5)=43,81м3/см.

Производительность бетоноукладочной машины:

Пбет =8*100*2/0,33=48,5м3/час

где k- количество звеньев бетонщиков (=1);

n - количество бетонщиков в звене (=2).

Потребность в транспортных средствах, необходимых для обеспечения требуемой интенсивности укладки бетонной смеси, определяется по выражению:

 маш.

Нам понадобится 1 машина

. Составление производственной калькуляции

По выбранному варианту уточняется состав выполняемых работ: погрузочно-разгрузочных, арматурных, сварочных, опалубочных, а также по укладке бетонной смеси в конструкцию с решением вопросов уплотнения, ухода за бетоном и снятием опалубки. На перечисленные процессы по данным ЕНиР [Е1,Е4,Е5,Е22] составляется производственная калькуляция. (Табл. 6 см. приложения)

.Разработка календарного плана комплексного процесса бетонирования фундаментов

Календарный план производства работ отражает последовательность и организацию процессов в комплексе бетонных работ и условно состоит из двух частей. Первая часть в форме таблицы включает все инженерные расчеты, а вторая - отражает последовательность и продолжительность работ с указанием календарного времени начала и окончания отдельных процессов, а также их взаимоувязку.

Основанием для построения первой части являются данные производственной калькуляции, расчёта комплексной бригады(табл. 7 см. приложения) и технологические схемы, при этом учитывается, что машины и люди должны работать в течение всего процесса с выполнением норм выработки на 100-120% от нормативной.

Календарный план производства работ приведён в табл. (см. приложения).

.Техника безопасности при производстве работ

В курсовой работе указываются решения требований СНиП III-4-80* «Техника безопасности в строительстве».

К изготовлению и нанесению смазок допускать только обученных рабочих, прошедших специальный инструктаж.

При нанесении смазок пневмораспылителем рабочим необходимо иметь защитные приспособления (очки, респираторы, резиновые сапоги и защитные брезентовые костюмы).

На площадке, где производятся работы по нанесению смазки, нахождение посторонних лиц запрещено.

Применение горючих материалов требует повышенных противопожарных мер:

площадка, на которой производится смазка опалубки, должна быть очищена от бурьяна, сухой травы, коры и щепы;

необходимо вывесить на видном месте плакаты с надписями «Запрещается курить» и «Запрещается пользоваться открытым огнем»;

хранить смазки только в герметически закрытой металлической таре, количество смазки на рабочем месте не должно превышать сменной потребности;

на площадке должен быть размещен пожарный щит с минимальным набором пожарного инвентаря, шт.: топоров-2, ломов - 2, багров железных - 2;ведер, окрашенных в красный цвет-2, огнетушителей - 2.

При установке опалубки в несколько ярусов каждый последующий ярус устанавливать только после закрепления нижнего яруса.

Похожие работы на - Проектирование технологии бетонных работ

 

Не нашли материал для своей работы?
Поможем написать уникальную работу
Без плагиата!
Без нейросетей!