Комплекс по производству товарного кубовидного щебня производительностью 100 т/ч с разработкой дробилки
Содержание
Введение
.
Обоснование темы дипломного проекта
.1
Результаты патентного поиска
.2
Анализ научно-технической информации
1.3
Обоснование проекта
1.4
Описание конструкции
2.
Расчет и выбор основных параметров
2.1
Обоснование и выбор бил
2.2
Расчет скоростных и геометрических параметров дробилки
2.3
Расчет кинематических параметров дробилки
2.4
Расчёт производительности дробилки
2.5
Расчёт мощности привода дробилки
2.6
Расчёт спирального классификатора
2.7
Расчет гидротранспорта
2.7.1
Расчет безнапорного трубопровода подачи пульпы с классификатора в отстойник
2.7.2
Определение критической скорости.
2.7.3
Определение уклона трубопровода
2.8
Расчет трубопровода подачи воды из отстойника на грохот
2.9
Расчёт отстойника
3.
Расчёты на прочность
3.1
Расчёт ротора
3.3
Расчёт подшипниковых узлов
3.4
Расчёт шпонок
4
Метрология и стандартизация
4.1
Основные задачи метрологии
4.2
Основные задачи стандартизации
5
Безопасность и экологичность проекта
5.1
Перспективы развития строительно-дорожного машиностроения
5.2
Анализ и идентификация опасностей при работе дробильно-сортировочного комплекса
с учётом воздействия на экологическую обстановку
5.3
Разработка технологических и организационных решений по устранению выявленных
опасностей
5.4
Расчет защитного заземления
5.5
Рекомендации по эксплуатации машин и оборудования
5.6
Выводы по разделу
6
Технологический процесс изготовления детали
.1
Исходные данные
.2
Определение величины партии
.3
Выбор заготовки
.4
Разработка маршрута обработки деталей
.5
Определение режимов резания
.6
Определение времени на изготовление детали
7
Экономическое обаснование выбранного решения
7.1
Определение годовой эксплутационной производительности
7.2
Определение цены новой техники.
7.3
Определение годовых текущих издержек потребителя
7.4
Расчёт экономического эффекта
Список
литературы
Введение
дробилка трубопровод отстойник
Значительное увеличение транспортного,
промышленного, гидротехнического и других видов строительства требует огромного
количества нерудных строительных материалов - щебня, гравия и песка, идущих на
изготовление цементобетонных и асфальтобетонных конструкций, а также балластных
слоёв при транспортном строительстве.
Особую роль на качество асфальтобетонных
покрытий играет форма щебня. Применения щебня кубовидной формы и определённого
размера упрочняет верхний слой дороги, обеспечивая тем самым долгий срок службы
асфальтобетонных покрытий.
На цели измельчения расходуется около 10% всей
вырабатываемой электроэнергии, несколько миллионов тонн высококачественных
материалов для измельчения гарнитуры, в то время коэффициент полезного действия
большинства дробилок не превышает 1%.
При такой высокой энергоёмкости процесса
дробления, каждое мероприятие, способствующее его интенсификации, может в общем
объёме дать весьма значительный экономический эффект. Практическое решение
важнейшей задачи усовершенствования процесса дробления материалов требует
проведения целого ряда мероприятий. Прежде всего речь идёт о применении
наиболее эффективных в технико-экономическом отношении способов дробления
материалов, как на вновь строящихся предприятиях и при расширении и
реконструкции дробильных цехов действующих заводов. Необходимо внедрять
наиболее совершенные типы дробильных аппаратов, обеспечивающих высокие
качественные показатели готового продукта, а также высокую надёжность в
эксплуатации.
Существующие технологические схемы являются
очень энергоемкими. Поэтому в данном проекте ставится цель достижения снижения
энергоёмкости технологических процессов и как следствие уменьшение
себестоимости производства щебня кубовидной формы, за счёт внедрения
принципиально нового, менее энергоемкого оборудования.
1 Обоснование темы дипломного проекта
.1 Результаты патентного поиска
К авторскому свидетельству RU 2057584 6 B02 С
13/02, 19/22
Дробилка состоит корпуса 1 с загрузочным 2 и
разгрузочным 3 устройствами, ротора 4 с подвижно закрепленными на нем
пластинчатыми ударными элементами 5, связанного с электродвигателем 6
посредством клиноременной передачи 7. По периферии корпуса 1 установлены
отбойные элементы 8, эквидистантные длине ударных элементов 5. На концах ротора
4 могут быть расположены конические отбойные элементы 9,10, причем элемент 9
может быть жестко связан с ротором 4 и снабжен зубьями 11. На нижнем отбойном
элементе 10 предусмотрены лопатки 12, обеспечивающие разгрузку. Возможна
установка в корпусе 1 неподвижных ножей 13.
Рисунок 1.1 - Дробилка.
Дробилка работает следующим образом. Исходный
материал по устройству 2 подается в корпус 1 и отбойными элементами 8 и 7
направляются в зону измельчения, где посредством быстро вращающегося ротора 4 и
ударных элементов 5 подвергается разрушению. Расположение ударных элементов 5
по многозаходной винтовой спирали способствует повышению времени пребывания
материала в зоне обработки. Это достигается как за счет непосредственного
контакта падающего вниз материала с поверхностью, ометаемой ударными ударными
элементами 5 в пространстве, так и за счет восходящего потока воздуха,
нагнетаемого ударными элементами 5 как осевым вентилятором. Высокое качество
готового продукта обеспечивается и отбойными элементами 8, предотвращающими
проскок неизмельченного материала по стенкам корпуса 1 и возвращающих материал
вновь в зону обработки, т.е. к оси ротора 4. Этому же способствует переменная
длинна ударных элементов 5, эквидистантно расположенных поверхности отбойных
элементов 8, что обеспечивает постоянный зазор между концами ударных элементов
5 и корпусом 1.
При измельчении крупногабаритных кусков
материала целесообразно отбойник 9 жестко связывать с ротором 4 и снабжать
зубьями 11, что позволяет обеспечить предварительное измельчение.
К авторскому свидетельству SU 1622002 B02 С
13/06
Молотковый измельчитель состоит из разъемного
корпуса, состоящего из верхней 1, и нижней 2 и конической 3 части корпуса.
Причем нижняя часть корпуса содержит разгрузочное окно 4, а конусная -
загрузочное 5. Внутри корпуса измельчителя размещены молотковый ротор 6, соосно
ему метатель 7, смонтированный на общем валу 8. Вал 8 содержит подшипниковые
опоры 9 и10. Подшипниковая опора 9 закрепляется в конусной части корпуса 3
крышкой 11, а подшипниковая опора 10закрепляется крышками 12 и 13 корпуса. При
этом крышка 13 в нижней части содержит отверстие и защитный кожух, образуемый
течку 14 для удаления из измельчителя надрешеточного продукта и недробимых
предметов.
Рисунок 1.2 - Молотковый измельчитель.
Недостатками данной конструкции являются:
сложность изготовления и неудобство в обслуживании.
К авторскому свидетельству SU 1620134 А1 B02 С
13/28
Било содержит лопасть 1 с ударными полками 2,
проушиной 3 и шарнирно закрепленными на оси 4 вблизи проушины 3 раскалывающим
элементом с заостренным выступом 6 на конце. Между ударными полками 2 лопасти 1
выполнено сквозное отверстие 7 для прохода выступа 6 раскалывающего элемента 5.
Рисунок 1.3 - Било молотковой мельницы
Вследствие значительного увеличения удельной
силовой нагрузки на кусок измельчаемого материала со стороны заостренного выступа
раскалывающего элемента увеличивается интенсивность этого воздействия,
повышается эффективность измельчения материала. Било имеет достаточно простую
конструкцию.
.2 Анализ научно-технической информации
Дробильно-сортировочные предприятия (заводы, установки)
служат для переработки различных горных пород в товарную продукцию
промышленности нерудных строительных материалов и изделий.
ДСУ классифицируются по следующим признакам:
по характеру выпускаемой продукции: на
универсальные, выпускающие сорта щебня или гравия и специализированные - на
выпуске продукции одного сорта;
по производительности: на заводы малой (до 50
тыс. м3 в год), средней (до 250 тыс. м3 в год), большой (до 1 млн. м3 в год);
по схеме технологического процесса: на одно,
двух и трёх стадийные;
по технологическому назначению: на заводы по
переработке изверженных или осадочных горных пород на щебень,
гравийно-сортировочные заводы, по переработке валунно-гравийно-песчаного сырья
на фракции щебень, гравий, установки для обогащения и классификации песка;
по схеме технологического процесса: на заводы
работающие по открытому и замкнутому циклу. (открытым циклом называется такой
цикл, при котором измельчаемый материал на каждой стадии проходит через
дробилку только один раз, а сверхмерный материал не поступает для
дополнительного измельчения. Более равномерный продукт получается при замкнутом
цикле измельчения, когда сверхмерный материал поступает для повторного
измельчения и сортировки, после чего щебень, прошедший через сито нужного
размера идёт в деловую фракцию, а сверхмерный материал вновь направляется в
дробилку).
Разнообразие свойств и размеров
перерабатываемого материала, а также различные качественные и количественные
цели процесса-дробления приводят к необходимости создания дробилок различных
моделей и типоразмеров.
По принципу действия дробилки разделяют на
следующие основные типы (Рисунок 1.4):
Рисунок 1.4 - Принцип действия дробилок
различных типов:
а - щековые; б - конусные; в - валковые; г -
молотковые; д - роторные
) щековые (Рисунок 1.4 а), в которых материал
дробится под действием сил раздавливания, раскалывания и частичного истирания в
пространстве между двумя щеками при их периодическом сближении. В процессе
работы машины в результате клинообразной формы камеры дробления куски материала
располагаются по высоте камеры в зависимости от их крупности. Подвижная щека
периодически приближается к неподвижной, причём при сближении щёк (ход сжатия)
куски материала дробятся, при отходе подвижной щеки (холостой ход) куски
материала продвигаются вниз под действием силы тяжести и выходят из камеры
дробления, если их размеры стали меньше наиболее узкой части камеры, называемой
выходной щелью, или занимают новое положение, соответствующее своему новому
размеру. Затем цикл повторяется;
) конусные (Рисунок 4 б), в которых материал
дробится под действием сил раздавливания, излома, частичным истиранием между
двумя коническими поверхностями, одна из которых движется эксцентрично по
отношению к другой, осуществляя тем самым непрерывное дробление материала;
) валковые (Рисунок 1.4 в), в которых материал
дробится между двумя вращающимися навстречу друг другу валками. В зависимости
от конструкции они могут быть с гладкой, рифлёной, или зубчатой поверхностью
рабочих органов - бандажей. Для производства нерудных каменных материалов
используют дробилки только двух первых видов. Крупность продуктов дробления
валковой дробилки зависит от размера входной щели между валками и типа
поверхности рабочих органов. В мировой практике валковые дробилки используют,
как правило, на заключительных стадиях дробления;
) ударного действия, которые в свою очередь
разделены на молотковые (Рисунок 4 г) и роторные (Рисунок 1.4 д); в молотковых
дробилках материал измельчается в основном ударом по нему шарнирно-подвешенных
молотков, а также истиранием; в роторных дробилках дробление достигается за
счет удара по материалу жестко прикрепленных к ротору бил, удара материала об
отражательные плиты и ударов кусков материала друг о друга. Упрощенная классификация
роторных дробилок, в которой машины разделены по числу, расположению и
направлению вращения основного рабочего органа дробилки-ротора приведена на
рисунке 1.5.
В отличии от рассмотренных выше дробилок,
сжимающий кусок между двумя дробящими поверхностями, в дробилках ударного
действия кусок материала подвергается воздействию только с одной стороны, а
возникающие при этом усилия дробления уравновешиваются силами инерции массы
самого куска.
Главными параметрами дробилок, т. е.
параметрами, характеризующими данный типоразмер, являются: для шоковых ширина В
и. длина L приемного отверстия; для конусных дробилок среднего И мелкого
дробления-диаметр D основания подвижного конуса;
для валковых дробилок-диаметр D и длина L
валков; для роторных и молотковых-диаметр D и длина L ротора.
Кроме того, важным параметром каждой дробильной
машины является размер выходной щели.
В щековых дробилках замеряют расстояние между
вершиной рифления и противолежащей впадиной дробящих плит в нижней зоне
разгрузочной щели при максимальном удалении подвижной.
Рисунок 1.5 - Основные конструктивные схемы
роторных дробилок: а - однороторная, б - двух роторная параллельного дробления,
в - двух роторная последовательного дробления,г - однороторная реверсивная.
В валковых дробилках определяют расстояние между
валками при помощи свинцового бруска толщиной в 1,5-2 раза больше ожидаемого
размера щели.
Дробилки ударного действия применяют в основном
для измельчения малоабразивных материалов средней прочности, таких, как
известняк, доломиты, мергель, уголь, каменная соль, и т. п. При дроблении этих
материалов особенно проявляется высокая эффективность дробилок ударного
действия, а именно: большая степень дробления, что позволяет сократить число
стадий дробления; низкая металлоемкость; простота конструкции и удобство
обслуживания; избирательность дробления и более качественный готовый продукт по
форме зерен. По конструктивному решению основного узла машины ротора дробилки
ударного действия делятся на два основных типа: роторные и молотковые.
Роторные дробилки-это дробилки, имеющие
массивный ротор, на котором жестко закреплены сменные била из износостойкой
стали. Такие дробилки можно применять для дробления крупных кусков сравнительно
прочных материалов, т. е. для первичного дробления, а также на последующих
стадиях. В ударе по куску принимает участие вся масса ротора, и именно это
определяет отличительные особенности и свойства машин.
Молотковые дробилки-это дробилки, в которых
дробление осуществляется за счет кинетической энергии отдельных молотков,
шарнирно подвешенных к ротору. Особенности этих машин определяются конструкцией
молотка. Роторные и молотковые дробилки имеют свою рациональную область
использования./14/
Овальную форму (Рисунок 1.6) имеют двухбильные
роторы, обладающие наибольшим моментом инерции. Однако предбильная часть такой
конструкции интенсивно изнашивается, что ухудшает условия эксплуатации. У
монолитного ротора (Рисунок 1.6 а) срезаны предбильные части. Эта форма
уступает ротору с комбинированной формой и используется редко.

Рисунок 1.6 - Конструкция роторов различных
типов
Щебень перерабатываемый дробилками из природного
камня для строительных работ характеризуется зерновым составом, содержанием зёрен
пластинчатой и игловатой формы, зёрен слабых пород, пылевидных и глинистых
частиц, морозостойкостью истинной, средней и пассивной насыпной плотностью,
пустотностью, водопоглощением (свойством поглощать воду с заполнением ею частиц
пор), определённым отношением увеличения массы образца, насыщенного водой к
массе высушенного образца, петрографическим составом, выражающим содержание в
щебне слегающих его горных пород и минералов.
.3 Обоснование проекта
Непрерывный рост интенсивности и скорости
движения автомобильного транспорта требует выполнение различных мероприятий,
обеспечивающих безопасность движения по дорогам. Основное из них - устройство
шероховатых дорожных покрытий.
Выполнение этого условия обеспечивается
применением одномерного щебня кубической формы из высокопрочных минеральных
материалов в верхних слоях дорожных покрытий. Получение такого щебня фракций
20-10, 10-5, 5-2 мм с минимальным содержанием игольчатых и пластинчатых зёрен
(до 10%) оказалось чрезвычайно трудным делом.
Мировая практика предполагает несколько
технологических приёмов получения кубовидного щебня: используя ударных или
отражательных дробилок, разрушение дробимого материала в слое, применение
грануляторов, в которых реализуется деформации дробимого материала,
соответствующему образованию кубовидных осколков.
Эффективность использования этих методов не
универсальна и зависит от соответствия выбранного метода и технологической
задачи дезинтеграции.
Можно дать общую оценку этих методов.
Использование ударных и отражательных дробилок в конечном счёте может
рассматриваться как дополнительная операция дробления, назначение которой -
исправление формы осколков без существенного сокращения размеров дробимого
материала. При такой технологической задаче удаётся избежать форсированных режимов
разрушения и интенсивного износа рабочих органов дробилки. В технологическом
отношении возможно в одной и той де дробилке разрушать материал разной
крупности, т.е. метод в этом отношении является более универсальным.
Разрушение дробимого материала “в слое” по
сравнению с традиционной технологией дробления в конусной дробилке является
более энергоёмким и требующим более строгого регламентирования
гранулометрического состава питания и производительности дробилки из-за этих
ограничений метод не получил широкого распространения как в мировой, так и в
отечественной практике.
Традиционные, широко применяемые щековые и
конусные дробилки не позволяют получить щебень с содержанием зёрен пластинчатой
формы менее 25%. Для снижения этого показателя в последнее время используют
модернизированные конусные дробилки, а также дробилки ударного действия, выход
зёрен кубической формы в которых достигает 80 -90%. /14/
Однако конусные дробилки по сравнению с
дробилками ударного действия имеют большую энергоёмкость.
Роторные дробилки отличаются высоким
технико-экономическим показателями - большой степенью дробления, большой
производительностью, меньшим удельной массой и размерами, простотой конструкции
и удобством обслуживания по сравнению со щековыми и конусными дробилками, а также
специфическими достоинствами роторных дробилок - высокой избирательностью
дробления, высоким процентом выхода продукта кубовидной формы и меньшей
чувствительностью к попаданию недробимых предметов. /14/
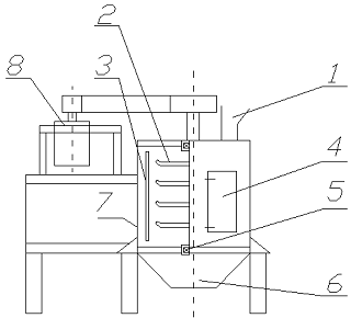
.4 Описание конструкции
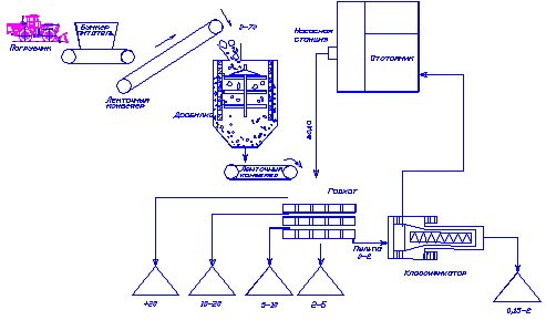
Предлагаемый комплекс по производству
кубовидного щебня (Рисунок 1.7) включает: загрузочный бункер 1, дробилку
ударного действия 2, грохот 3.
Рисунок 1.7 - Схема комплекса по производству
кубовидного щебня.
В основу конструкции дробилки, применяемой в
комплексе, положен принцип многоярусной дробилки ударного действия с
вертикальной осью вращения рабочего органа (Рисунок 1.8). В качестве рабочих
элементов применены последовательно шарнирно закрепленные ударные элементы,
причём оси шарниров параллельны оси вращения. Между рядами ударных элементов по
внутренней поверхности корпуса установлены колосники на определённом расстоянии
между стенкой корпуса. Колосники выполнены с щелями определённого зазора, что
позволяет отсеивать дробимый материал необходимой фракции. Кроме того материал
ударяясь о колосники раскалывается, т.е. колосники являются и футеровкой с
возможностью замены вышедших из строя колосников. Материал удаляется из зоны
дробления, что обеспечивает не переизмельчение материала - это в свою очередь
приводит к снижению энергозатртат и повышению качества получаемого материала.
Ступенчатое, шахматное расположение ударных элементов, их большая степень
подвижности гарантируют встряхивание рабочих элементов, очистку цилиндрической
поверхности корпуса. Селективность воздействия, обусловленную малым
относительным весом рабочих элементов и их подвижностью, Попадание недробимых
включении не приводит к разрушению рабочего органа, т.к. ударный элемент
отклоняется в сторону, не препятствуя его прохождению. В то же время
дозированное, импульсное воздействие на анизотропный материал вызывает его
разрушение по границам срастания минералов.
Регулируя расстояния между колосниками можно
добиться определённого фракционного состава получаемого материала. Разрушение
частиц производится крайними билами за счет свободного удара.

Рисунок 1.8 - Схема дробилки.
- загрузочный бункер; 2 - било; 3 - колосник;
- люк; 5 -подшипники; 6 - выгрузочная воронка; 7
- корпус.
В этом аппарате материал измельчается
центральным свободным ударом при минимальном воздействии на корпус.
Многошарнирность и "рельефность" обеспечивает концентрированный
"хлесткий" удар и эффективное разрушение.
Дробилка состоит из следующих основных частей:
верхней крышки с приёмной воронкой 1, рабочей камеры с колосниками 3 и билами
2, выгрузочной воронкой 6. Верхней крышке и в нижней части рабочей камеры
установлены подшипники 5, на которых вращается ротор. В рабочей камере предусмотрен
люк 4 для осмотра и замены вышедших из строя бил и шарнирно сочленённых
элементов. Привод роторной дробилки осуществляется от электродвигателя
посредством клиноременной передачи.
В зависимости от требований, предъявляемых к
готовому продукту, основные параметры количества ярусов бил, количество бил на
ярусе, а также частота вращения ротора дробилки могут изменяться. При этом
устанавливаются два или более ярусов и бил на каждом ярусе.
Разрабатываемый дробильно-сортировочный комплекс
(ДСК) отличается от остальных полнотой переработки исходного сырья (безотходное
производство), получаемый щебень характеризуется наличием около 80% щебня
кубовидной формы, с помощью классификатора получают минеральный порошок, вода в
производстве используется по замкнутому циклу, для чего предусмотрен отстойник.
2. Расчет и выбор основных параметров
Основными конструктивными параметрами молотковой
дробилки являются:
диаметр корпуса;
диаметр ротора;
частота вращения ротора;
количество ярусов бил;
количество бил на одном ярусе;
масса бил.
.1 Обоснование и выбор бил
Можно выделить несколько видов бил для
измельчения нерудных строительных материалов.
Для измельчения гравия применяются била
изображенных на рисунке 2.1
Рисунок 2.1 -Схема молотков с рабочими
поверхностями.
Крупность исходного материала, поступающего в
дробилку составляет D<90 мм.
Била работают в тяжёлых условиях в абразивной
среде, поэтому они должны выдерживать большие ударные нагрузки, быть
износостойкими и иметь конструкцию, обеспечивающую их перестановку,
переворачивание для более длительного использования дорогостоящего материала,
например, при шести молотках в одной плоскости и при частоте вращения вала
около 555мин-1 количество ударов составляет примерно около 80 ударов в секунду
/14/. При измельчении самых малых кусков сила удара составляет 50-200Н, а
частота около 2,5 млн. в час. Поэтому необходимо обеспечить условие,
исключающее передачу ударной нагрузки на вал и подшипники ротора.
Чем больше масса бил, тем большее количество
энергии, передаётся материалу при ударе, при одной и той же частоте вращения
ротора, но при этом возрастают потери мощности, необходимые для восстановления
рабочих элементов в рабочее положение.
Из указанного выше можно сделать вывод, что
наибольшая эффективность дробилки может быть получена при оптимальном сочетании
основных конструктивных параметров.
На выбор оптимальных конструктивных параметров
влияют очень многие факторы, из которых еще не все изучены настолько, чтобы
можно было предложить единственно правильное решение.
Изготавливают била из стали 110Г13Л или из
обычной углеродистой стали с наплавкой на рабочие поверхности износостойких
сплавов.
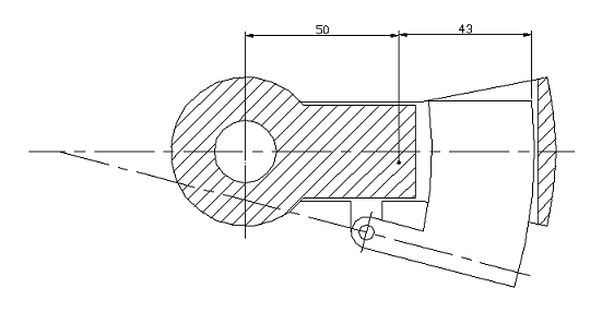
Назначим массу била равной 5,2 кг.
Момент инерции молотка относительно оси подвеса
О, обеспечивающий исключение ударного импульса на эту ось и, следовательно, на
подшипники ротора, рассчитывается по формуле 2.1:
(2.1)
где: mм- масса молотка, кг; l3-
расстояние от центра тяжести до точки удара, м l3=0,086 l8- расстояние от оси
подвеса О до центра тяжести молотка, м l8=0,1 (Рисунок 2.2)
Рисунок 2.2 - Схема молотка.
=5,2(0,086+0,1) 0,086=0,0832
Полярный момент инерции молотка
относительно оси ротора, вычисляется по формуле 2.2:
=Jzz+mм(R+l8)(2.2)
где:R- расстояние от оси вращения
вала ротора до оси подвески молотка (R=0,64 м).
=0,0832+5,2(0,64+0,1)=3.93
Число молотков рекомендуется
выбирать /24/ по формуле:
=DP/mZ(2.3)
где:mZ- модуль ротора, в зависимости
от назначения машины mZ=1,2..3,5
Z=1/3=5,88
Примем число молотков равным 6.
Выбор числа рядов молотков
определяется назначением дробилки. От числа рядом молотков зависит глубина
проникновения частиц в зону действия молотков. В этом случае дробление
происходит скалыванием небольших объёмов материала, и крупность продукта
дробления уменьшается. Одновременно уменьшается пропускная способность дробилки
в зону первой камере дробления. При большом числе рядов молотков интервалы
между заменами изношенных молотков за счёт большого их количества на роторе
более длительный, хотя удельный износ повышается. Следует ещё отметить, что при
большем числе рядов молотков нагрузка на привод дробилки более плавная и на
крупнокусковом материале.
.2 Расчет скоростных и
геометрических параметров дробилки
Чем больше частота вращения ротора,
тем больше окружная скорость бил, а, следовательно, большее количество энергии,
передаётся материалу при ударе, но при этом возрастают потери мощности и снижается
эффективность машины вследствие внецентренного удара, т. к. материал не
успевает попасть в зону действия бил полностью, потому что его вертикальная
скорость меньше окружной скорости бил, и удар приходится по краю материала, что
значительно снижает количество энергии, передаваемой материалу при ударе, и
происходит просто отскок материала от рабочих элементов без разрушения, это
оказывает отрицательное влияние на производительность.
Линейная скорость била, при котором
происходит разрушение материала по рекомендации литературы /10/ примем равной
35 м/с.
Оптимальная частота вращения ротора
=60·35/(2·3,14·0,85)=393мин-1,
(2.4)
где R - радиус корпуса в рабочей
зоне, R=0,85м;линейная скорость бил,V=35м/с;
Диаметр активного воздействия бил на
материал
в=60V/(pn)=60·35/(3,14·393)=1,7 м.
(2.5)
Принимаем диаметр корпуса Dк=2,3 м.
Высоту рабочей зоны принимаем в
соответствии с уравнением винтовой линии
=K·p·D·tga,(2.6)
где a-угол наклона винтовой линии движения материала;
К- количество оборотов совершаемых
материалом за время прохождения его в рабочей камере.
=Vм·tga,(2.7)
где V-скорость движения материала
вдоль вертикальной оси рабочей камеры V=2,2 м/с;м- линейная скорость движения
материала Vм=35 м/с.
Соответственно a=3,59
=4·3,14·1,7·tg3,59=1,4м
Конструктивно принимаем H=1,4 м.
Окончательная скорость центра
тяжести молотка вычисляется по формуле 2.8:
(2.8)
где:nP- частота вращения ротора,
мин-1;расстояние от оси вращения вала ротора до оси подвеса молотка.
м/с
Угловая скорость молотка:
с-1(2.9)
.3 Расчет кинематических параметров
дробилки
Предварительно зададимся частотой вращения
вала электродвигателя. Из стандартного ряда принимаем 1000 мин-1. Передача
крутящего момента от двигателя к дробилке производится при помощи клиноременной
передачи (Рисунок 2.3)
Рисунок 2.3 - Схема привода дробилки.
Расчет основных параметров
клиноременной передачи.
Передаточное число с учётом упругого
скольжения
=n1/n2, (2.10)
где n1 и n2 - частоты вращения
ведущего и ведомого шкивов мин-1.
=1000/393=2,5445
Диаметр большого шкива определяется
как:
D2=UD1(1-ζ),(2.11)
где D1 и D2 - диаметры ведущего и
ведомого шкивов, мм
ζ- коэффициент упругого
скольжения.(для кордошнурованных клиновых ремней ζ=0,01)
=2,5445·280·(1-0,01)=706 мм
Угол обхвата на малом шкиве:
(2.12)
где а - расстояние между осями
шкивов (а=2230мм).
Рекомендуется для клиноременных
ремней
120є
Длина ремня встык (без учёта
припуска на соединение концов ремня, провисания и начального деформирования):
(2.13)
Скорость ремня
(2.14)
гдеn1- частота вращения на ведущем
валу (n1=1000мин-1)
.
Число ремней передачи:
Z=PCz/

,(2.15)
гдеP - передаваемая мощность, кВт;
- мощность, допускаемая на один
ремень, кВт (Таблица 2.2.7 /13/;- коэффициент, учитывающий неравномерность
распределения нагрузки между ремнями в комплекте (Таблица 2.2.6 /13/);
Cα - коэффициент, учитывающий
влияния угла обхвата (Таблица 2.1.3 /13/);
=110·0,95/16,8=6,2
Примем число ремней 7.
Выбираем ремень D(Г) 6000 ГОСТ
1284.1
.4 Расчёт производительности
дробилки
Производительность и мощность
дробилок, в большинстве случаев, определяют по эмпирическим формулам, но эмпирические
формулы не объясняют физической сущности процесса, и, поэтому, была сделана
попытка определить производительность и мощность дробилки теоретическим путём.
При создании математической модели
были сделаны следующие допущения:
материал в рабочей камере
располагается в виде полого цилиндра равной плотности;
все частицы материала движутся с
одинаковой скоростью и в одном направлении;
аэродинамические процессы не
учитываются.
Производительность будет
определяться исходя из (Рисунок 2.4) по формуле 2.16:
(2.16)
где g - объемная масса материала, g = 1,2 т/м3;площадь основания
цилиндра, м2;- линейная скорость бил, м/с;
Км - коэффициент, зависящий от типа
материала. Для гравия
Км = 0,003...0,007
Кк - конструктивный коэффициент. На
первом этапе принимаем
Кк =0,1.
Площадь основания определим по
формуле:
(2.17)
где
D - диаметр корпуса, м;- внутренний диаметр цилиндра, м.
=K1D,(2.18)
где
K1 - коэффициент, зависящий от типа обрабатываемого материала. Для щебня
K1=0,6.
Рисунок
2.4 - Расчётная схема по определению производительности и мощности дробилки.
По
формуле 2.18:
=0,6·1,7=1,02м.
По
формуле 2.17:
=(1,72-1,022)·3
,14/4=1,4519м2
Тогда
производительность будет равна по формуле 2.16:
П=3600·1,2·1,4519·35·0,005·0,1=109,8
т/час
Исследуя
работу роторных дробилок установили, что производительность дробилок зависит от
того, как происходит питание дробилки материалом. По мере увеличения
подаваемого в дробилку материала всё большее количество его задерживается у
поверхности, образуемой движущимися билами ротора, и, наконец над поверхностью
ротора образуется скопление материала с плотностью, близкой к насыпной объёмной
массе. Этот материал под действием сил тяжести проникает в зону действия бил на
некоторую глубину, разрушается билами и измельчается.
.5
Расчёт мощности привода дробилки
При
определении мощности РЦД выдвинута гипотеза о том, что потребляемая мощность
РЦД пропорциональна массе материала, находящегося в рабочей камере в
установившимся режиме работы:

(2.19)
где
KN - коэффициент пропорциональности. Для щебня, и клинкера KN=5,2 кВт/кг;-
высота рабочей камеры м;
- насыпная
плотность измельчаемого материал, кг/м3;- коэффициент разрыхления. Для щебня,
абразива и клинкера Kr=40;- диаметр рабочей камеры, м;- коэффициент отношения
внутреннего диаметра полого цилиндра к диаметру рабочей камеры, Kd=0,9;
Мощность
будет определена по формуле:
кВт
По
рассчитанной мощности подберём двигатель 4АН280S6Y3, мощностью 110 кВт.
.6
Расчёт спирального классификатора
Согласно
принципиальной технологической схемы для переработки щебня предлагается
классификатор спиральный.
Спиральные
классификаторы подразделяются на два основных типа: с непогруженной спиралью (с
высоким порогом) и погруженной спиралью. Первый тип классификаторов
используется для выделения и слива материала больше 0,15 мм; второй тип - менее
0,15 мм или для увеличения производительности по сливу. И те и другие
классификаторы изготавливаются односпиральными и двуспиральными, соответственно
отличающимися шириной корыта и производительностью при одинаковой длине.
Основными
технологическими параметрами спиральных классификаторов являются
производительность по пескам и производительность по сливу.
Производительность
по пескам определяется по формуле 2.20
т/ч(2.20)
гдеm
- число спиралей;- диаметр спирали, м;- частота вращения спирали, мин-1;
r - плотность
классифицируемого материала, т/м3;a
- коэффициент, учитывающий угол наклона ванны, a.
Объемная
производительность классификатора по сливу определяем по формуле 2.34:
, м3/ч(2.21)
гдеK
- коэффициент, учитывающий характер перерабатываемого песка, K = 1,0;баз -
базисная объемная производительность, соответствующая м3/ч
Выбираем
спиральный классификатор 1КСН-10.
Техническая
характеристика классификатора
=
1,0 м= 3, 5; 7 мин-1
a = 18о= 1.
Согласно
вышеприведенных формул и технической характеристики спирального классификатора
определяем производительность по песку и по сливу:
т/ч,
гдеka = 1 при a = 18о;
r = 2,68 т/м3
- плотность песка.
м3/ч,
гдеQбаз
= 94 м3/ч для D = 1,0 м; /22/.
Данный
тип классификатора 1КСН-10 подходит по производительностям.
.7
Расчет гидротранспорта
Выбранный
режим транспортирования должен соответствовать минимуму приведенных затрат на
перемещение единицы сырья.
При
выборе режима гидравлического транспортирования горной массы следует
устанавливать следующие параметры процесса: рабочую точку гидротранспортирующего
агрегата, удельный расход воды на транспорт горной массы. Эти две величины
определяют производительность гидротранспортной линии.
При
гидравлическом транспортировании горной массы с большим разбросом значений
величин среднего диаметра и коэффициента разнородности Кразн.
(гравийно-песчаные грунты) расчетная скорость движения водогрунтовой смеси в
трубопроводе должна обеспечивать режим транспортирования без заиления для
наиболее тяжелого расчетного случая.
Принимать
минимальную скорость равной практической скорости для средних параметров горной
массы разрешается только в случае обеспечения устойчивого режима работы в зоне
с частично заиленным трубопроводом.
.7.1
Расчет безнапорного трубопровода подачи пульпы с классификатора в отстойник
Исходные
данные:
расход
воды 85 м3/ч;
Длина
транспортирования 100 м.
Рекомендуем
безнапорный трубопровод из труб:
стальные
бесшовные горячедеформируемые по ГОСТ 8732.
Величина
объема твердой фракции равна:
(2.22)
где:m
= 9,9 т/ч - транспорт твердой части;
rтв = 2,680
т/м3 - плотность твёрдой фракции в твёрдом теле.
м3/час.
Суммарный
расход гидросмеси:
,(2.23)
где:QВ=85
м3/ч - расход воды;= 85+3,7=88,7 м3/ч =24,6 л/с
Значение
скорости определяем по формуле 2.24
.(2.24)
Для
различных диаметров трубопровода скорость представим в таблице 2.1:
Таблица
2.1 - Значение скорости при различных D
|
D,
мм
|
300
|
250
|
200
|
175
|
150
|
|
V3,
м/с
|
0,35
|
0,5
|
0,78
|
1,02
|
1,4
|
2.7.2 Определение критической скорости.
Нижняя скорость транспорта твердых частиц.
Скорость критическую (нижнюю скорость) определим
по формуле 2.25
(2.25)
гдеVкр - критическая скорость, м/с;-
диаметр трубопровода, м;о - действительная объемная консистенция гидросмеси,
б/р;
y
- коэффициент транспортабельности, б/р.
,(2.26)
гдеrо = 103 кг/м3 - плотность воды;
rсм
- плотность смеси.
кг/м3.
Тогда:
(2.27)
гдеPi - процентное содержание i-й
фракции по массе в составе пробы грунта;
yi
- среднее значение y для i-й
фракции.
Процентное содержание фракции были
определены экспериментально и представлены в виде таблицы 2.2.
Таблица 2.2 - Процентное содержание фракций
твердой фазы
|
Фракция,
мм
|
0,16...0,1
|
0,1...0,063
|
0,063...0,05
|
0,05...0,00
|
|
P,
%
|
31,7
|
29,3
|
5,5
|
33,5
|
Для определения значения y
составлен специальный график, т.к. рекомендованный /22,стр.143/ не может быть
использован, и его данные представлены в виде таблицы 2.3
Таблица 2.3 - Значение параметра y
|
Фракция,
мм
|
0,16...0,1
|
0,1...0,063
|
0,063...0,05
|
0,05...0,00
|
0,082
|
0,021
|
0,01
|
0,002
|
Находим средневзвешенное значение y:
Рассчитаем критические значения
скорости и представим их значения для различных диаметров в виде таблицы 2.4
Таблица 2.4 - Значение критической
скорости
|
D,
мм
|
300
|
250
|
200
|
175
|
150
|
|
Vкр,
м/с
|
1,86
|
1,75
|
1,62
|
1,55
|
1,47
|
Сравнивая значения таблицы 2.1 и таблицы 2.4
наиболее подходящие значения диаметров D = 150мм и D = 200 мм работающих не
полным сечением (что наиболее предпочтительно).
2.7.3 Определение уклона трубопровода
Уклон трубопровода не должен быть меньше
гидравлического уклона /22/:
,(2.28)
гдеiсм - гидравлический уклон при
протекании по трубам гидросмеси;о - то же, при протекании чистой воды;
Di
- дополнительные удельные потери, вызванные наличием в потоке твердой фракции.
Воспользовавшись таблицами по
гидравлическому расчету канализационных сетей /4/ находим:
при D =150 мм и наполнении
Q =22,6 л/с; V=1,5 9 м/с;io = 0,03
при D = 200 мм и наполнении
Q = 26,7 л/с; V = 1,7 м/с; io =
0,03,
где
- коэффициент неоднородности твердой
фракции;
d-
характеристика относительной крупности.
По
кривой гранулометрического состава находим: =0,022 мм; d90 = 0,128.
d- зависит от
соотношения
,
где
do - средневзвешенный диаметр частиц
тогда:
100
;
Итак,
имеем гидравлический уклон для трубопроводов:
у
= 200 мм
;у = 150 мм
.
Уклон
безнапорного трубопровода не должен быть меньше гидравличекого уклона.
При
длине безнапорного трубопровода 100 м перепад высот соответственно составит:у =
200 мм
у = 150 мм
.8
Расчет трубопровода подачи воды из отстойника на грохот
Исходные
данные:
Расход
воды Q -85 м3/ч =23,6 л/с.
Длина
транспортирования L - 100 м.
Перепад
высот Hг - 11 м.
Свободный
напор в конце трубопровода 0,2 Мпа.
Рекомендуем
напорный трубопровод из труб:
стальные
бесшовные горячедеформируемые по ГОСТ 8732.
Для
напорного трубопровода с трубой
:
Определяем
напор насоса:
, м(2.29)
Гидравлические
потери напора в трубопроводе:
, м(2.30)
гдеd
= 0,125 м - условный проход трубопровода;= 100 м - длина трубопровода.
=
-
скорость
движения воды в трубопроводе
коэффициент
гидравличекого трения;
D=0,5 мм -
шероховатость трубопровода;
.
тогда:
Нн
= 11м+4,2м+20м =35,2 м.
Для
трубопровода с трубой
имеем:
= 0,150 м
тогда:
н
=11м+1,6м+20м = 32,6 м
По
сводной таблице насосов /14/ типа СМ находим марку насоса
СМ100-65-200а/2.
Q=86 м3/ч; H=42 м; N= 30 кВт; n=1450 мин-1. Для гидромеханизации
предпочтительнее использовать насосы типа Гр. По сводной таблице /15/ находим
марку насоса ГрА85/40/0-1,3. Q = 85 м3/ч; Н =40 м; N=30 кВт; n=1450 мин-1,
изготавливаемым заводом им.Ленина г.Бобруйск.
.9
Расчёт отстойника
Для
расчёта отстойников и оборотного водоснабжения необходимы следующие данные:
производительность
или расход пульпы: подаваемой в отстойник;
содержание
твердого в пульпе (по массе или объему);
гранулометрический
и минералогический состав твердого, поступающего в отстойник;
удельная
и объемная масса твердого, поступающего в отстойник;
дальность
транспортирования пульпы;
разность
геодезических высот мест оборудования пульпы и ее складирования;
режим
работы и срок эксплуатации средств гидротранспорта по доставке пульпы в
отстойник;
требования,
предъявляемые к оборотной воде в отношении содержания в ней взвеси.
Возможны
следующие схемы водоснабжения: с очисткой всего объема шламосодержащего стока и
полным использованием оборотной воды в технологическом процессе; с двухступенчатой
очисткой (предварительной всего объема стока и дополнительной очисткой
расхода).
Предлагается
горизонтальная схема отстойника, состоящая из 3ёх секций Рисунок (2.5).
Наиболее
интенсивно частицы при прохождении стока по горизонтальному отстойнику
осаждаются в первые 2 часа. Эффективность очистки достигает примерно 90%.
Последующее время отстаивания практически эффекта не даёт.
Рисунок
2.5 - Схема отстойника
Ориентировочно
время отстаивания рассчитываем по формуле /16/:
час(2.31)
где:L
- длина пути отстаивания
=
L1+ L2+ L3=26+26+24=76м
-
расчетная скорость потока; v£5мм/с
часа
Следовательно
эффект очистки более 90%.
Определяем
размеры проточной части отстойника.
Площадь
проточной части отстойника определяем по формуле:
м2.
Глубина
наполнения отстойника определяется из формулы:
,
где:a - угол наклона боковой
стенки a = 50о;
ctg50o = 0,84;- глубина проточной части.
По
рекомендациям /16/:£1,5 м;
при
h= 0,4 м w= 4,53 м2
при
h= 0,6 м w= 6,9 м2.
при
h = 1,2 м w= 14,4 м2.
Определяем
действительную продольную скорость потока:
, мм/с.
при h = 0,4 м
мм/с
при h = 0,6 м
мм/с
при h = 1,2 м
мм/с,
что меньше расчетной скорости
потока.
Определяем расстояние для наименьшей
скорости осаждения частиц по формуле /16/:
, м
где:Vo - наименьшая скорость
осаждения частиц.
Vo = 0,2 мм/с
при h = 0,4 м
= 10,4 м
при h = 0,6 м
= 10,2 м
при h = 1,2 м
= 9,84 м.
Следовательно осаждение основной
массы твердой фракции происходит на расстоянии »11 м, а фактическая длина проточной части 76 м,
что говорит о том, что на остальной части отстойника
происходит дополнительная очистка.
Кроме того, основная часть твердой фракции осядет в первой секции отстойника.
В связи с тем, есть возможность
укоротить длину пути отстаивания и освободится от третьей секции отстойника.
Определяем перепад уровней (дна)
отстойников.
Протекание принимает как через
водослив с широким порогом.
Размер порога /16/:
, м
Определяем уровень в отстойники:
, м
где:m = 0,32 - коэффициент расхода водослива;=
23,6 л/с - расход на водослив;- ширина водослива, м.
Для уменьшения скорости потока принимаем b = 6м.
Следовательно, в первой секции
отстойника уровень дна принимаем за условный 0,000; во второй секции отстойника
уровень будет - 0,02 м; в третьей секции отстойника уровень будет - 0,04 м.
Для улавливания мелкодисперсных
частиц, находящихся во взвешенном состоянии, вместо второй и третьей секции
отстойника рекомендуется применить скорый фильтр, позволяющий улавливать
мелкодисперсные частицы, которые в процессе повторного использования воды будут
накапливаться.
Применение скорого фильтра повысит
эффект очистки.
Скорый фильтр представляет собой
загруженный фильтрующим материалом резервуар, снабженный устройствами для
подачи воды, сбора профильтрованной воды и промывки загрузки.
Необходимость в промывке загрузки объясняется
тем, что в процессе работы фильтр постепенно засоряется и его гидравлическое
сопротивление увеличивается. Промывку производят чистой водой в направлении
снизу вверх. Частота промывки фильтра зависит от качества сырой воды и обычно
не превышает 1...2 раза в сутки.
По конструкции различают открытые скорые фильтра
однопоточные с движением воды только сверху вниз и двухпоточные - с
одновременным движением воды сверху вниз и снизу вверх.
Выбор той или иной системы фильтров определяется
технологическими и технико-экономическими показателями.
Фильтрующая площадь определяется по формуле:
, м2
гдеQ - расход, м3/ч; Q = 85 м3/ч;ф -
расчетная скорость фильтрования при нормальном режиме, Vф = 6...10 м/ч.
.
Толщина фильтрующей загрузки Н2
зависит от крупности слагающих ее зерен песка и принимается равной 0,7...2м.
В последнее время стали применять
двухслойные фильтры, загружаемые сверху на высоту 400...500 мм дробленым
антрацитом крупность 0,8...1,8 мм и ниже на высоту 400...500 мм кварцевым
песком.
Такие фильтры обладают большей
грязеёмкостью, чем фильтры загруженные только песком. Производительность
двухслойного фильтра почти в 2 раза больше, чем однослойного.
Поддерживающий гравийный слой
устраиваются высотой
Н3 = 650 мм из частиц крупностью от
2...4 до 32 мм. Крупность загрузки увеличивается сверху вниз. Гравийный слой
служит для предотвращения вымывания фильтрующего материала.
Промывка фильтров происходит со
скоростью в 7...10 раз больше скорости фильтрования. Продолжительность промывки
назначают равной 5...6 мин.
3 Расчёты на прочность
.1 Расчёт ротора
Предварительно оцениваем средний
диаметр вала:
(3.1)
где:Т -крутящий момент, Нм;
[τ] - допускаемое напряжение
кручения, МПа.=9550Р/n=9550·110/393=2673,03 H-м;
= 102мм
Вал ротора изготовим из стали 45
ГОСТ 8731
На вал ротора будет действовать сила
от натяжения ремней:=3S0zPsin(α/2),(3.2)
где:S0 - предварительное натяжение
на одну ветвь нового ремня, Н;
α - угол обхвата на малом
шкиве, град, по
формуле 2.11
α=170,66є;-
число ремней.
=3·106,3·7·sin(169,110 / )=2222,23 Н
Нагрузка от неуравновешенности
центробежных сил. Возникает вследствие неравномерного износа молотков и
отклонения их от радиального положения при ударах по кускам дробимого
материала.
При определении нагрузки от
неравномерного износа молотков можно принять, что разница в силе тяжести
составляет 1Н на каждый молоток.
Центробежная сила инерции,
развиваемая неуравновешенной частью одного молотка:
им=mимω02Rmax,(3.3)
гдеmим - масса неуравновешенной
части одного молотка (mим=0,1/g);- максимальный радиус, по которому происходит
износ молотков (Rmax=DP),м;
ω0 - угловая скорость молотка до
удара, ω0=πn/30=3,14·393/30=41,13
с-1.
им=(0,1/9,81)·41,132·0,0005=0,830 Н.
Определим момент инерции ротора
дробилки (без молотков):
=Jвал+Jшкив+ Jд.р.,(3.4)
гдеJвал-
момент инерции вала относительно собственной оси
вращения;Jвал=mвалR2/2=450·0,175/2=39,375м4вал- масса вала, кг;- средний радиус
вала, м;шкив - момент инерции шкива;шкив=0,6Qшdш2/(4g)=0,6·253,2·0,706/(4·9,81)=2,73
м4ш - сила тяжести шкива, Н;ш - диаметр шкива, м;д.р. - момент инерции дисков
ротора. Диск ротора фигурный (шестигранной формы), для удобства разбиваем диск
на простые фигуры: на кольцо и прямоугольные пластины. Молотки в данном случае
установлены с перекрытием, т.е. молотки последующего ряда перекрывают зазоры
между молотками предыдущего ряда. Диски расположены с относительным сдвигом их
вершин на 60є. Массу кольца определим как:
кол=π(rк2-r2)h·γ/g=3,14(0,522-0,22)·0,06·7,53∙104/9,81=333,2
кг
где
rк - внешний радиус кольца, м;- внутренний радиус кольца, м;
Момент
инерции относительно оси ротора и собственного центра тяжести кольца:
кол=mкол(rср2+0,25bк2)=333,2∙(0,262+0,25·0,062)=22,8
м4,
Где
rср - средний радиус кольца, м;к - толщина кольца, м. bк= rср-r=0.26-0,2=0,06
м.
Масса
пластины вычисляется по формуле:
пл=abh
γ/g=0,416·0,1·0,08·7,53·104/9,81=25,55
кг,
где
a,b,h - длина, ширина и толщина( высота) пластины, м;
γ
- плотность
материала пластины, Н/м3.
Момент
инерции пластины, относительно собственного центра
тяжести:пл=mпл(a2+b2)/12=25,55∙(0,4162+0,12)/12=0,4 м4
Момент
инерции пластины относительно оси ротора:пл.р=Jпл+ mплr02=0,4+25,55·0,4252=5 м4
гдеr0
- расстояние от центра тяжести пластины до оси ротора.
Общий
момент инерции дисков ротора относительно оси вращения ротора составит:
Jд.р.=nд(Jкол+6
Jпл.р)=5(22,8+6∙5)=264 м4
Момент
инерции ротора дробилки определяется по формуле 3.4:=39,375+2,73+264=306,105 м4
Общая
нагрузка на вал, возникающая от центробежных сил неуравновешенных молотков
(принимается с запасом в сторону увеличения, полагая действие центробежных сил
с одной стороны оси вала ротора), составляет:
ну=
PимZ’’+2Pим Z’cos60є,(3.5)
гдеZ’
и Z’’ - число молотков в каждом ряду.
Pну=0,830·6+2*0,830·6cos60є=5,81Н
Нагрузку, возникающую в результате отклонения
молотков от радиального положения при ударах, определяют по разности
центробежных сил инерции молотка в радиальном P’и и отклонённом Pи положениях:
∆P= P’и- Pи,(3.6)
где
, (3.7)
где m0 - масса куска дробимого
материала, кг
=GK/g=1,6/9,81=0,083 кг.
- расстояние от оси вращения вала
ротора до центра тяжести молотка при ударе, м;- скорость центра тяжести молотка
после удара, определяется из условия равновесия молотка:
(3.8)
(3.9)
гдеmм =5,2 кг, масса молотка;-
расстояние от оси вращения вала ротора до оси подвески молотка, м;
ω0 - угловая скорость молотка до
удара, с-1 по формуле 3.9
Подставив все значения, получим
систему уравнений:
Решая систему уравнений получим, что
V1=39,92 м/с., ω1=101,19 с-1
Подставив полученный результат в
формулу (3.7) получим:
Нагрузку, возникающую в результате
отклонения молотков от радиального положения при ударах определяется из формулы
3.6:
∆P=7018,09-101,8631=6916,2325
Н.
Нагрузка от окружного усилия при
истирании материала на колосниковой решётке:
кр=PkfZ,(3.10)
Где Pk - центробежная сила инерции
куска;- коэффициент трения между транспортируемым и раздолбленным материалом,
лежащим на колосниковой решётки ( для щебня f=0,87);- число молотков на роторе
в одном ряду.
(3.11)
гдеm0 - масса куска дробимого
материала; мк - окружная скорость центра тяжести куска, транспортируемого по
колосниковой решетке;

ок - расстояние от оси ротора до
центра тяжести куска, м;- сила тяжести дробимого куска (здесь принято
допущение, что GK соответствует некоторому среднему количеству материала,
дробимого за один оборот ротора дробилки), Н;
Н
гдеП- производительность дробилки,
Н/ч;- общее количество молотков на роторе;Р - частота вращения вала ротора,
мин-1.
По формуле
(3.11)к=0,16·12,35/0,83=2,38 Н.
По формуле
(3.10):кр=2,38·0,87·6=12,43 Н.
Нагрузка от ударов молотками по
кускам дробимого материала. Предварительно необходимо определить параметры
ротора по скорости и нагрузке после соударения молотка с куском дробимого
материала силой тяжести GK. Импульс удара определяется по формуле (3.12):
=m0(v0-vК), (3.12)
гдеvК - скорость дробимого материала
в направлении окружной скорости молотка (при вертикальной загрузке
vК=0).=0,16·12,35=1,98 кг·с.
Центробежная сила инерции молотка в
отклонённом состоянии:
(3.13)
Сила удара определяется из условия
равновесия:
Цlц=Pуд(l8+l3)(3.14)
откуда:
Время удара определяется по формуле:
tу= SD/Pуд=1,98/1178,22=0,0017 с.
Равнодействующая сила нагрузок на вал ротора без
учёта нагрузки от натяжения ремней, определяется по формуле:
706,8Н
Равнодействующая сила равна:
=PP+Pну=706,8+5,81=712,61Н
После определения нагрузок,
действующих на вал ротора, составляется расчётная схема (Рисунок 3.1)
Интенсивность нагрузки определяется
по формуле
712,61/1,236=576,6 Н/м(3.15)
Реакции в подшипниках ротора:
Рисунок 3.1 - Эскиз и расчётная
схема вала ротора.
На практике установлено, что для
валов основным видом разрушения является усталостное. Статическое разрушение
наблюдается значительно реже. Оно происходит под действием случайных
кратковременных перегрузок. Поэтому для валов расчёт на сопротивление усталости
является основным. Расчёт на статическую прочность выполняют как проверочный.
Анализ работы валов показывает, что
опасным будет сечение проходящее в месте соединения вала ротора и шкива
клиноременной передачи. В данном случае вал ослаблен шпоночным пазом и крутящий
момент максимальный.
Коэффициент безопасности по изгибу
определяется по формуле 3.16
(3.16)
Коэффициент безопасности по кручению
определяется по формуле 3.17
(3.17)
где σа и τа -
амплитуды переменных составляющих циклов напряжений;
σм и τм -
амплитуды постоянных составляющих циклов напряжений;
Kσ и Kτ - эффективные
коэффициенты концентрации напряжений при изгибе и кручении.
Н/мм2,
где WX = Пd3/32 = 3,14·753
/32=41417,48 мм3 - момент сопротивления;
М = 2460,72 Нм - максимальный
суммарный изгибающий момент.
Касательные напряжения:
н/мм2
где Т= 771,544 Н·м - максимальный
крутящий момент в опасном сечении;= Пd3 / 16 = 82834,963 мм3 - полярный момент
сопротивления сечения.
Для стали 45 пределы выносливости:
При совместном действии напряжения
кручения и изгиба запас сопротивления усталости определяется по формуле 3.18
(3.18)
где [S] = 1,5 - допустимый
коэффициент безопасности.
Таким образом, прочность
соблюдается.
.3 Расчёт подшипниковых узлов
Расчет проведём используя /13/
Исходя из схемы нагружения (см.
рисунок 3.1) можно сделать вывод, что расчёт надо проводить нижней
подшипниковой опоры.
Предварительно назначим для верхней
подшипниковой опоры роликовый радиально-сферический двухрядный подшипник легкой
серии-
3528
ГОСТ 5721
Для нижней опоры, во избежание радиальных
отклонений, назначим радиально-сферический двухрядный подшипник 3528 ГОСТ 5721,
а для фиксации осевых перемещений вала ротора назначим радиально упорный
однорядный подшипник легкой серии 176226 ГОСТ 7872, на который и будет
передаваться вся весовая нагрузка ротора. Фактически на данный подшипник
действует осевая составляющая равная 4500 Н. Частота вращения 393 мин-1, срок
службы Lh= 10000 ч, режим нагрузки -тяжелый , допускается двукратная
перегрузка, температура не выше 100°С, динамическая грузоподъемность С= 151 кН,
статическая Со=159 кН.
По формуле 3.19 определим эквивалентную нагрузку
о=(X0Fr+Y0Fa) КБ КТ, (3.19)
где: Х0 и Y0 - коэффициенты радиальной и осевой
нагрузок;, Fa- радиальная и осевая нагрузки, Н;
КБ коэффициент безопасности, учитывающий
характер нагрузки;
КТ - температурный коэффициент.
Радиальная нагрузка Fr, равная реакции опоры
будет действовать на сферический двухрядный подшипник легкой серии 3528 ГОСТ
5721 и для упорного подшипника равна нулю.
Таким образом
о= Y0Fa КБ КТ = 1·4500·1,4·1 =6300 Н
Определим эквивалентную долговечность по формуле
3.24
=Kh·Lhs (3.20)
где: Кh - коэффициент режима нагрузки;-
суммарное время работы подшипника, ч.<= 0,5·10000=5000 ч
По формуле 3.21 определим минимальное число
оборотов эквивалентное.Lmin=60,1·106·3,35 = 201 млн.об.(3.21)
По формуле 3.22 определим динамическую
грузоподъёмность
=P0/Lmin (3.22)
С = 6300/201 = 72,44 Н , что меньше паспортного.
Проверим подшипник по статической
грузоподъемности. Эквивалентную статическую нагрузку определим по формуле 3.23
Ро=21,8∙6300= 137340 Н<
650000=Со.(3.23)
.4 Расчёт шпонок
Для соединения насаживаемых деталей с валом
используем призматические шпонки по ГОСТ 23360. Размеры поперечного сечений
шпонок выбираем по указанному ГОСТу в соответствии с диаметром вала в месте
установки шпонки. Длину шпонки выбираем в зависимости от длины ступицы
насаживаемой на вал детали.
Выбранные шпонки проверяются на смятие по
формуле:
,(3.24)
где:T
- передаваемый момент, Н·м;- диаметр вала, мм;- высота шпонки, мм;- глубина
посадки шпонки в вал, мм;- рабочая длина шпонки, мм. Для шпонки с плоскими
торцами lP=l, для шпонки со скруглёнными торцами lP=l-b;- длина шпонки, мм;-
ширина шпонки, мм;
[σ]см -
допускаемое напряжение на смятие, при ступицы из стали и спокойной нагрузке [σ]см=80…120
мПа.
Условие
прочности на срез шпонки:
,(3.25)
где:[τср] -
допускаемое напряжение на срез. [τср]=100 мПа.

мПа

мПа
Таблица 3.1 - Размеры сечений шпонок и пазов
|
Диаметр
вала, d, мм
|
Размеры
шпонок, мм
|
Глубина
паза, мм
|
Длина
шпонки,мм
|
|
b
|
h
|
Вал
t1
|
Втулка
t2
|
|
|
110
|
28
|
16
|
10
|
6,4
|
176
|
|
360
|
80
|
40
|
25
|
15,4
|
1080
|
4. Метрология и стандартизация
.1 Основные задачи метрологии
Один из существующих факторов,
обеспечивающих высокое качество продукций, является соблюдение заданной
точности исполнения изделия при наличии массовости. Стремление управлять
качеством изделий требует знаний метрологии, анализа точности ее реализации и
контроля. Единство измерений во всех областях народною хозяйства оценивается
Госстандартом, в ведении которого находятся метрологические институты и лаборатории.
Самым существенным способом
поддержания единства измерений является использование эталонов.
Согласно ГОСТ16263 («Государстаенная
система обеспечения единства измерений. Метрология, термины и определения»).
Эталон-средство измерения, обеспечивающее воспроизводство и сохранение единицы
с целью передачи его размеров по проверочной схеме средств измерений. Эталон
воспроизводится с наивысшей метрологической точностью, достаточной на данном
этапе науки и техники.
Основные задачи метрологии:
развитие общей теорий измерений;
установление единых физических
велечин и их систем;
разработка методов и средств
измерений;
установление, эталонов
.2 Основные задачи стандартизации
Стандартизация - установление и
применение правил с целью упорядочения деятельности в определенном области на
пользу и при участии всех заинтересованных сторон, в частности при соблюдении
условий эксплуатации и требований безопасности.
При выполнении дипломного проекта
использованы следующие ГОСТы;
ГОСТ 2.305-95 ЕСКД. Общие требования
к текстовой документации;
ГОСТ 2.104 cт СЭВ 104;
ст СЭВ 3657 ЕСКД. Основные надписи;
ГОСТ 2.106 ЕСКД. Текстовые
документации;
ГОСТ 2.106 ст СЭВ 2516 ЕСКД.
Спецификации;
ГОСТ 2.109 ст СЭЕ 858;
ст СЭВ 1182 ЕСКД. Основные
требования к чертежам;
ГОСТ 2.103 ст СЭВ 118 ЕСКД. Форматы:
ГОСТ 2302 ст СЭВ 3187 ЕСКД.
Масштабы;
ст СЭВ 1178 ЕСКД. Линии;
ГОСТ 2.305 ЕСКД. Изображения, виды,
сечения и разрезы;
ГОСТ 2.307 ЕСКД. Нанесение размеров
и предельных отклонений;
ГОСТ 2.508 ЕСКД. Указание на
чертежах допусков, формы и расположения поверхностей;
ГОСТ 2.308. ст СЭВ 1632 ЕСКД.
Обозначение шероховатости поверхности;
ГОСТ 2.3 П ст СЭВ 28.4 ЕСКД.
Изображение резьбы;
ГОСТ 2.136 ст СЭЗ 856 ВСКд. Правила
нанесения на чертежах надписей технических требований и таблиц;
ГОСТ 2789 ст СЭВ 638. Шероховатость
поверхностей. Параметры и характеристики;
ГОСТ 25346 ст СЭВ 145. Единая
система допусков и посадок- Общие положения, ряды допусков и основных
отклонений;
ГОСТ 7796. Болты с шестигранной
головкой;
ГОСТ 6401. Шайбы.
ГОСТ 8752. Манжеты.
5. Безопасность и экологичность
проекта
.1 Перспективы развития
строительно-дорожного машиностроения
Характерным в практике дорожного
строительства (особенно за рубежом) является применение большого числа моделей
и типоразмеров машин, приспособленных к условиям конкретных строительных
объектов по производительности, ширине обработки и т.д.
Прогрессивным становиться применение
комплексов машин, обеспечивающих выполнение всех технологических процессов
строительства поточно-линейными и скоростными методами, позволяющими
значительно повысить темпы и качество строительства.
Дорожные машины, как правило, должны
оснащаться системами автоматического управления рабочими процессами.
Дальнейшее совершенствование систем
базируется на применении микроэлектронной и микропроцессорной техники,
позволяющем достигнуть проведения технологических процессов в рациональных и
даже оптимальных режимах, оснастить машины диагностическими системами и
приборами безопасности, что приведёт к полной или частичной замене участия
человека в процессе производства и регулировочных работах.
Необходимым условием
совершенствования техники является повышение надёжности машин при значительном
уменьшении трудоёмкости их обслуживания.
Важное место отводится применению в
конструкции машин новых видов материалов, повышенной прочности и
износостойкости, а также использованию пластмасс, металлокерамики и других
композиционных материалов.
Осуществление этих тенденций в
конструкции машин позволит оснастить строительство высокоэффективной, надёжной
и безопасной техникой, значительно повысить темпы и качество строительства
автомобильных дорог.
.2 Анализ и идентификация опасностей
при работе дробильно-сортировочного комплекса с учётом воздействия на
экологическую обстановку
Анализируя работу
дробильно-сортировочного комплекса можно выделить ряд следующих основных
опасностей для здоровья обслуживающего персонала.
Опасность физического воздействия:
пыль, возникающая в процессе
дробления и грохочения материала;
опасность поражения электрическим
током при обрыве токоведущих частей и замыкания;
опасность представляют куски
материала, вылетающие из загрузочного люка, вследствие прекращения непрерывной
подачи материала;
вращающиеся части привода дробилки
также представляют опасность для персонала.
Вредные психофизиологические
воздействия на человека:
молотковая дробилка является
источником повышенного шума от двигателя и соударения материала с рабочим
органом;
во время работы, по мере износа
подвижных частей, может возникать вибрация, повышенный уровень запыленности.
В плане экологии основной опасностью
является пыль, возникающая в процессе дробления материала. Решения, позволяющие
устранить влияние этого фактора рассмотрены ниже.
5.3 Разработка технологических и организационных
решений по устранению выявленных опасностей
Для ликвидации пыли в зоне работы разработаны
следующие технологические и организационные решения:
ликвидация пыли в рабочей зоне молотковой
дробилки за счет установки аспирационных систем;
для устранения опасности попадания кусков
дробимого материала, вылетающих из загрузочного люка предусмотреть непрерывное
поступление материала;
во время работы вокруг молотковой дробилки, на
расстоянии не менее 0.5 м, устанавливаются съемные ограждения высотой не менее
1.2 м;
вращающиеся части закрыты кожухами;
для снижения шума технологическую линию, в
которой используется молотковая дробилка, её размещают в изолированном
помещении;
герметизация рабочей зоны молотковой дробилки;
система управления процессом дробления
дистанционная, размещается на пульте в отдельном помещении;
тракты движения пылящих материалов минимальны;
при выявлении вибрации или шума, превышающих
допустимые значения, таковые устраняются;
вентиляция всего помещения, где установлена
молотковая дробилка.
К мерам, предупреждающим поражение электрическим
током относят:
изоляция токоведущих частей электрооборудования
и электрических проводов;
ограждение и создание условий недоступности к
электрооборудованию и проводам, находящимся под напряжением;
защитная аппаратура;
защитное заземление.
Помещения производств строительных материалов
относятся к категории Д по пажароопасности. На основании норм первичных средств
пожаротушения на действующих промышленных предприятиях в помещении категории Д,
площадью 600-800 кв.м, находится:
химических воздушно-пенных - 1 шт.;
ящиков с песком, вместимостью 1 куб.м - 1 шт.;
баков с водой, вместимостью I куб.м - 1 шт.
Одним из основных организационных решений БЖД является проведение инструктажей
по технике безопасности.
.4 Расчет защитного заземления
Расчет защитного заземления проводился с
использованием ЭВМ по формулам приведенным ниже, исходные данные и результаты
расчета приведены в Приложении Б.
Расчет заземления производится по допустимому
сопротивлению растеканию тока.
Заземление дробилки проведём по схеме показанной
на рисунке 5.1.
Сопротивление одного электрода определим по
формуле 5.1:
(5.1)
гдер-
удельное сопротивление грунта, Ом·м, р= 100 для суглинка;длина электрода,
примем 3 м:ширина полосы, примем 0,04 м;расстояние от поверхности до середины
электрода 2,2 м.
=to+l/2
(5.2)
где
to-расстояние от поверхности до электрода, м, tо=0,7м. Количество стержней
определим по формуле 5.3
=R3·h/Rдоп (5.3)
где
h-климатический
коэффициент;доп- допустимое сопротивление заземления, Rдоп=4Ом
Длину
соединительной полосы определим по формуле 5.4.
=(n-1)·a,
(5.4)
где
n - число стержней;
а
- расстояние между стержнями, м.
, (5.5)
где
n-число электродов;
а-
расстояние между электродами;ширина полосы, м, b=0,04;глубина заложения полосы,
м, h=0,8.
Рисунок 5.1 - Схема защитного заземления.
Расчетное сопротивление заземляющего устройства
определим по формуле 5.6.
=Rз·Rп/( Rз·hп+Rп·hз),
(5.6)
гдеhп -коэффициент
использования полосы, hп =0,72;
hз - коэффициент взаимного влияния электродов, hз=0,65.
Заземление будет удовлетворять требованиям, если Rдоп ³R
. Rдоп =4 0м.
.5 Рекомендации по эксплуатации машин и
оборудования
.5.1 К работе с дробилкой допускаются лица,
имеющие соответствующую квалификацию, прошедшие инструктаж, знающие конструкцию
аппарата и инструкцию по его эксплуатации, достигшие восемнадцатилетнего
возраста.
.5.2 Во избежание несчастных случаев необходимо:
) дробилку содержать в чистоте и исправности;
) при работе и обслуживании разрешается
пользоваться только исправным инструментом в соответствии с его назначением,
инструмент должен быть отсоединен от электросети;
) рабочее помещение должно быть оборудовано
приточно-вытяжной вентиляцией;
) дробилка и его электродвигатель должно быть
заземлены;
) при наличии технологического (смотрового)
люка, перед запуском дробилки в работу проверить работу концевого выключателя,
при его наличии или подождать закрытия этого люка.
.5.3 Для эксплуатации назначаются лица,
ответственные за безопасность эксплуатации и ремонта аппарата.
.5.4 Запрещается:
) проводить ремонт электрооборудования при
подсоединенном аппарате к электросети;
) производить загрузку материала крупностью
более 90 мм;
) работа аппарата с открытым смотровым люком;
) загружать аппарат взрывоопасными,
самовоспламеняющимися и токсичными веществами;
) работать с поврежденной электропроводкой и
оборудованием на открытом воздухе;
) включать дробилку при снятом кожухе;
) во время загрузки материала соблюдать
предосторожность, чтобы не было выброса пыли;
) попадание металлических предметов.
.6 Выводы по разделу
Молотковая дробилка при выполнении всех
технологических и организационных решений, а также следуя рекомендациям
соответствует:
в плане пожарной безопасности;
общим требованиям безопасности и защите от шума;
общим санитарно-гигиеническим требованиям, в
частности чистоте воздуха рабочей зоны;
общим требованиям безопасности предприятий по
производству строительных материалов;
электробезопасности.
Что позволило сделать вывод, что при правильной
эксплуатации дробилки ее работа не представляет опасности здоровью
обслуживающего персонала, а также наносит незначительный ущерб окружающей
среде, не нарушая ее экологического баланса.
Список литературы
А.С.
2057584 RU, МКИ3 6 В 02 С 13/09, 19/22. Дробилка/
Селезнев
Н.Г., Шуляк В.А., Сиваченко Л.А., Башаримова В.Н RU/ - №5014181/33; Заявлено
10.04.96; Опубл. 02.12.91, Бюл.№16. 2с.:ил.
А.С.
1622002 СССР, МКИ3 В 02 С 13/06. Молотковый измельчитель/ Тришаков Н.М.,
Федоточкин Ю.М., (СССР).-№4344683/33; Заявлено 16.12.87; Опубл. 23.01.91,
Бюл.№3. 2с.:ил.
А.С.
1620134 СССР, МКИ3 В 02 С 13/28. Било молотковой мелльници. Печеный Н.И.,
Луценко Г.Г., Павлюк В.Д., Примаченко Г.А., и Сабыбин В.М. (СССР).-№4457586/33;
Заявлено 08.07.88; Опубл. 15.01.91, Бюл.№2. 3с.:ил.
Справочник
монтажника. Монтаж систем внешнего водоснабжения и канализации.-М.:Стройиздат,
1976.- 576с.
Справочник
по добыче и переработке нерудных строительных материалов. Изд.второе, перераб.
и доп./Под ред.инж.В.В.Валюжинича.- Л.:Стройиздат, Ленинград. отд-ние, 1975.-
576с.
Общемашиностроительные
нормативы режимов резания для технического нормирования работ на металлорежущих
станках. Часть 1., - М.: Машиностроение,1974.- 420 с.
Общемашиностроительные
нормативы времени вспомогательного, на обслуживание рабочего места и
подготовительно-заключительного для технического нормирования станочных работ.
Серийное производство. Часть 2., - М:Машиностроение, 1974, -421 с.
Технология
производства и ремонта машин. Методические указания к практическим занятиям по
курсу., - Могилев: ММИ, 1994г. - 52 с.
Нормы
технологического проектирования предприятий промышленности нерудных
строительных материалов.-Л.:Стройиздат, Ленинград. отд-ние, 1977.-325с.
Бауман
В.А. Роторные дробилки. - М.:Машиностроение, 1973.-272с.:ил.
Береснев
В.В. Обоснование основных параметров роторно-цепной дробилки.
Дисс.канд.техн.наук./Могилёв.:МГТУ,2000.-141с.
Воронин
К.М. О возможностях получения высококачественного щебня/ К.М. Воронин, М.С.
Гаркави, С.С. Шайдулина, В.А. Артамонов// Строительные материалы - 1998.- №2.
-С.14-17.
Курмаз
Л.В., Скойбеда А.Т. Детали Машин.-Минск.:Машиностроение, 2001.- 372с.:ил.
Клушанцев
Б.В. Дробилки. Конструкция расчёт особенности эксплуатации. - М.:Машиностроение,
1985.-257с.:ил.
Клушанцев
Б.В. Машины и оборудование для производства щебня, гравия и песка. -
М.:Машиностроение, 1976.-357с.:ил.
Клушанцев
Б.В. Пути повышения надёжности дробилок ударного действия . -
М.:ЦНИИИТЭстроймаш, 1980.-45с.:ил.
Крюков
Д.К. Усовершенствование размольного оборудования горнообогатительных
предприятий. - М.: Недра, 1966. -174с.:ил.
Лахтин
Ю.М., Леонтьева В.П. Материаловедение. - М:Машиностроение, 1990. -528с.:ил.
Лукиных
А.А., Лукиных Н.А. Таблицы для гидравлического расчета канализационных сетей и
дюкеров по формуле акад.Н.Н.Павловского.- М.: Стройиздат, 1968.- 152с.
Макаров
В.И., Соколов В.П. Машины для дробления и сортировки материалов.:Справочник. -
М.:Машиностроение, 1966.-158с.:ил.
Турк
В.Н. и др. Насосы и насосные станции.-М.:Стройиздат, 1977.- 297с.
Юфин
А.П. Гидромеханизация.-М.:Стройиздат, 1974.-224с.:ил.
Шуляк
В.А. Адаптивные роторно-цепные дробилки. Обогощение руд./ В.А..Шуляк, Л.А.
Сиваченко, Н.Г. Селезнёв// Обогощение руд - 1994. -№3. -С.40-41.
Шарипов
Л.Х. Технологические схемы и оборудование дробильно-сортировочных предприятий:
выбор, расчёт. - М..:Машиностроение, 2000. -278с.:ил.