Проект переоснащення системи пиловловлювання барабанної сушарки сульфатного відділення коксохімзаводу (на прикладі ВАТ 'Ясинівський КХЗ')
ЗМІСТ
Вступ
. Техніко-економічне
обґрунтування вибору місця будівництва виробництва
. Аналітичний огляд
. Характеристика сировини і
речовин, що надходять на переробку
. Фізико-хімічні основи
технологічного процесу
. Характеристика одержаного
продукту
. Опис технологічної схеми
виробництва
. Матеріальні розрахунки
. Тепловий розрахунок
сатуратору
. Конструктивні розрахунки
апаратів
.1 Конструктивний розрахунок
сатуратору
.2 Конструктивний розрахунок
сушарки
. Вибір основного
технологічного і допоміжного обладнання
. Комп’ютеризація основних
параметрів сатуратора
.1 Визначення алгоритмічних
задач управління
.2 Ідентифікація перемінних
. Норми технологічного режиму
. Аналітичний (лабораторний)
контроль за стадіями виробництва
. Автоматичний контроль і регулювання
. Охорона праці
.1 Коротка характеристика
виробництва і його шкідливі та небезпечні фактори
.2 Заходи щодо покращення умов
праці
.2.1 Організаційні та технічні
заходи
15.2.2 Розрахунок
захистного заземлення
.2.3 Розрахунок
освітлення робочого приміщення
.3 Заходи щодо пожежної безпеки
. Охорона довкілля
.1 Охорона атмосферного повітря
16.2 Оцінка
впливу діяльності підприємства на стан водних ресурсів
.3 Поводження з відходами на
підприємстві
17. Оцінка
фінансового стану підприємства
Висновки
Перелік посилань
ВСТУП
Аміак утворюється в процесі
коксування з азоту і водню кам'яного вугілля. Велика частина азоту вугілля (до
60 %) залишається в коксі у виді термічно стійких азотистих з'єднань, а інша
частина віддаляється з вугілля разом з летучими продуктами коксування - газом,
смолою і надсмольною водою.
У газі азот знаходиться, головним
чином, у виді елементарного азоту (20-30 %), аміаку (10-17 %), ціаністого водню
(до 3 %) і легких піридинових основаній (0,07-0,1 %), у кам'яновугільній смолі
азот знаходиться у виді піридинових і хінолінових основаній і інших органічних
сполук, а в надсмольній воді у виді ціанідів, роданидів і інших солей амонію.
Сировиною для одержання
сульфату амонію являється коксовий газ і вихідні сполуки, такі як сірчана кислота
і «чиста» сірчана кислота.
Сульфат
амонію уявляє з себе білі, прозорі кристали, які мають форму здовженого ромбу,
розміри якого визначаються умовами його одержання.
Сульфат
амонію широко використовують в сільському господарстві в якості добрива.
Цінність цього добрива обумовлена порівняно високим вмістом азоту 21,2 %, який
добре засвоюється із ґрунту коріннями рослин.
При
використанні коксового газу можливо три способи одержання сульфату амонію:
непрямий, прямий і напівпрямий. Частіше всього застосовують напівпрямий метод.
В
залежності від апаратурного оформлення процесів поглинання аміаку сірчаною
кислотою і кристалізації сульфату амонію відрізняють два різновиду напівпрямого
способу, які отримали найбільше розповсюдження в промисловості, - сатураторний і
безсатураторний.
При
безсатураторному способі поглинання аміаку сірчаною кислотою здійснюється в
форсунковому скрубері, який може зрощуватися як пересиченим, що вміщує у собі
кристали сульфату амонію, так і ненасиченим розчином.
У
роботі спеціаліста проаналізований сатураторний метод одержання сульфату
амонію, як найбільш перспективний для коксохімічних заводів України.
1.
ТЕХНІКО-ЕКОНОМІЧНЕ ОБГРУНТУВАННЯ ВИБОРУ МІСЦЯ БУДІВНИЦТВА ВИРОБНИЦТВА
У роботі спеціаліста розглядається
проект переоснащення системи пиловловлюванні барабанної сушарки сульфатного
відділення коксохімзаводу. Проект планується провести на ВАТ "Ясинівський
КХЗ".
До складу заводу входять наступні
основні цехи і підрозділу виробничого призначення:
вуглепідготовчий;
коксовий;
уловлювання хімічних
продуктів коксування;
очищення коксового газу від
сірководню;
цех переробки сирого
бензолу;
теплоелектроцентраль ТЕЦ;
біохімічна установка для
очищення забруднених стоків;
ремонтні, складські, транспортні і
господарські об'єкти.
Як вугільну базу ВАТ
"Ясинівський КХЗ" використовує вугілля Донецького басейну (Україна) і
Кузнецького басейну (Росія), у т.ч. від збагачувальних фабрик України і Росії -
84,0 %, від збагачувальної фабрики ВАТ "Макіївський КХЗ" - 16,0 %.
Забезпечення електроенергією заводу
виконане від ТОВ "Сервис-Инвест" відповідно до договору № 1.00.36.000
від 30.08.2002 р. і доп.угоді № 5 від 15.12.04 р. З огляду на значне споживання
електроенергії в зв'язку з висновком з експлуатації цілого ряду об'єктів
заводу, харчування об'єктів комплексу коксової батареї № 1 буде забезпечуватися
в кількості 770 кВт (споживана потужність) від існуючих джерел. Додаткових
лімітів на постачання електроенергії не потрібно.
Джерелом паропостачання заводу є
ТЕЦ. З обліком виведених з експлуатації виробництв завод має вільні резерви для
забезпечення комплексу коксової батареї № 1 парою, теплом, стисненим повітрям.
Джерелом водопостачання технічної
води є мережі Макіївського відділення "Укрпромводчермет". Свіжа
технічна вода, що поставляється Макіївським ВАТ "Укрпромводчермет",
"Ясиновский КХЗ" використовується послідовно: спочатку в машинному
відділенні цеху уловлювання, потім на поповнення систем оборотного
водопостачання. Свіжа вода використовується для нестатків ТЕЦ і поповнення
втрат в оборотних циклах.
Система водопостачання оборотна з
градирнями, а в циклах гасіння коксу - з відстійниками.
Питна вода частково подається від
магістральних мереж Макіївського міськводоканала і Макіївського відділення
"Укрпромводчермет".
Очищені на біохімічній установці
стічні води цеху уловлювання використовуються для гасіння коксу. Вежі гасіння
коксу мають оборотний цикл по воді з відстоєм шламу у відстійниках.
Наявність допоміжних цехів
(ремонтно-будівельного та ремонтно-механічного) забезпечують підтримку
обладнання в робочому стані, а також технічний та плановий ремонт апаратури.
Завод має у своєму розпорядженні
залізничні шляхи і власний рухомий склад, а так саме автотранспортний цех, що
забезпечує постачання сировини і вивіз готової продукції і побутових і виробничих
відходів.
У регіоні налагоджена підготовка
висококваліфікованих кадрів. Тому підприємство забезпечене
висококваліфікованими робітниками та інженерними кадрами.
Таким чином на ВАТ "Ясинівський
коксохімічний завод" мається вся необхідна інфраструктура для
переоснащення сульфатного відділення.
2. АНАЛІТИЧНИЙ ОГЛЯД
Одержання сульфату амонію засновано
на поглинанні аміаку з коксового газу розчином сірчаної кислоти і протіканні
реакції нейтралізації.
2NН3+Н2SO4
= (NН4)2SО4
+ Q.
Ці реакції протікають з виділенням
тепла, кількість якого залежить від умов ведення процесу.
Утворення кристалів сульфату амонію
відбувається при насиченні маткового розчину за рахунок безперервного процесу
поглинання аміаку сірчаною кислотою або в результаті розпарювання розчину. Кристалізація
починається з утворення центрів кристалізації - зародків кристалів. Для
одержання великих кристалів необхідно забезпечити умови для їхнього росту,
інтенсивність якого залежить від швидкості дифузії сульфату амонію з розчину до
граней кристалів, швидкості переходу молекул солі з рідкої фази у тверду і
швидкості відводу схованої теплоти кристалізації від поверхні кристалів у
розчин.
У залежності від схеми охолодження,
прямого коксового газу і витягу з нього аміаку розрізняють три способи одержання
сульфату амонію: непрямий, прямій і напівпрямій.
При непрямому способі частина аміаку
(20-30 % від загальних ресурсів) витягається з коксового газу конденсатом, що
утвориться при охолодженні газу в первинних холодильниках до 25-35 °С, а інша
частина (80-70 %) оборотною водою при промиванні газу в аміачних скруберах.
Надсмольна вода (газовий конденсат) і слабка аміачна вода зі скруберів
переробляються, потім в аміачних колонах з одержанням парогазової суміші, що
складається з пар води, газоподібних аміаку, вуглекислоти, сірководню,
ціаністого водню й інших компонентів. Ця суміш направляється в сатуратор, де
аміак зв'язується із сірчаною кислотою з утворенням насиченого розчину сульфату
амонію і кристалів солі, що виводяться з дна апарата з частиною розчину на
центрифугу, а після промивання і сушіння передаються на склад.
Непрямий спосіб одержання сульфату
амонію має велику гнучкість процесу, що дозволяє виробляти в залежності умов
ринку, сульфат амонію або концентровану аміачну воду, або одночасно обидва продукти
в одному цеху. Важливою перевагою цього способу є також виробнича надійність,
тому що різні відділення цеху слабко зв'язані між собою і тому виробничі
порушення в аміачному або сульфатному відділеннях можуть бути усунуті без
зупинки інших відділень при подачі одержуваної в скруберах аміачної води склад.
Крім того, непрямий спосіб дозволяє виробляти сірчану кислоту і піридинові
підстави з парогазовой суміші, що виходять із сатуратора по порівняно простій
технології.
Поряд з цими перевагами непрямий спосіб
має ряд серйозних недоліків:
великі капіталовкладення;
значні експлуатаційні
витрати, зв'язані з переробкою великого обсягу аміачної води;
велика кількість стічних
вод (близько 250 м3 на 1000 т вугілля);
значні втрати аміаку зі
зворотним газом.
Через ці недоліки непрямий спосіб
виробництва сульфату амонію в даний час не знаходить застосування. Однак у
сполученні з аміачним очищенням коксового газу від сірководню він може
виявитися перспективним.
Прямий метод полягає в тім, що весь
аміак, що утвориться при коксуванні, витягається з коксового газу сірчаною
кислотою до охолодження в первинних холодильниках. З газозбірника гарячий
коксовий газ надходить у електрофильтр для очищення від туманообразної смоли, а
потім у сатуратора, де аміак зв'язується сірчаною кислотою з утворенням
насиченого розчину і кристалів сульфату амонію.
Відмінною рисою цього методу є те,
що при охолодженні коксового газу після сатуратора в первинних холодильниках
конденсат, що утвориться, (надсмольна вода) не містить аміаку й амонійних солей
і тому відпадає необхідність його переробки в аміачній колоні. Відсутність
аміачного відділення дозволяє знизити витрата пари, вартість устаткування і
займану виробничу площу, а також скоротити до мінімуму обсяг стічних вод
(близько 50 м3 на 1000 т вугілля).
Однак широкого поширення цей метод
не одержав через істотні недоліки:
- наявності великого числа апаратів,
що працюють під розрідженням, що підвищує імовірність підсмоктування повітря й
утворення вибухонебезпечної суміші, збільшує витрату електроенергії на
транспортування газу;
інтенсивної корозії устаткування,
обумовленої наявністю в газі хлористого водню і хлористого амонію;
- труднощі очищення газу від смоли
при високій температурі і утворення в сатураторі великої кількості кислої
смолки;
великого обсягу апаратури через
високі температури і вологовмісти газу:
неможливості уловлювання в
сатураторі легких піридинових основ через високу температуру розчину і
відсутності аміачне для його нейтралізації в піридиновій установці.
Найбільше поширення на заводах
одержав напівпрямий метод виробництва сульфату амонію, що володіє перевагами, а
почасти і недоліками непрямого і прямого способів. По цьому методі коксовий газ
після газозбірника прохолоджується в первинних холодильниках до 25-35 °С, у
результаті чого водяні пари конденсуються практично цілком, а газовий
конденсат, що утвориться, (надсмольна вода) розчиняє до 20-30 % аміаку.
Охолоджений газ подається нагнітачами в абсорбер, де інший аміак поглинається
сірчаною кислотою з утворенням сульфату амонію.
Одержувані при переробці надлишкової
надсмольної води аміачні пари подаються частково в абсорбер разом з коксовим
газом, а частково в нейтралізатор піридинової установки, де аміак також
зв'язується сірчаною кислотою. Таким чином, весь аміак прямого коксового газу в
остаточному підсумку переробляється в сульфат амонію.
Недоліками напівпрямого способу
виробництва сульфату амонію є необхідність переробки надлишкової надсмольної
води в аміачних колонах, що вимагає значної витрати пари і лугу, а також утворення
значного обсягу стічних вод, що вимагають складного очищення.
У залежності від апаратурного
оформлення процесів поглинання аміаку сірчаною кислотою і кристалізації
сульфату амонію розрізняють два різновиди напівпрямого способу, що одержав
найбільше поширення в промисловості, - сатураторний і безсатураторний. Слід
зазначити, що в літературі немає єдиного тлумачення цих термінів, і вони не
відбивають особливостей апаратурного оформлення процесів.
По термінології, прийнятої в
коксохімічній промисловості, сатураторним називається процес, при якому
поглинання аміаку з коксового газу сірчаною кислотою й утворення кристалів
сульфату амонію здійснюються в одному апараті барботажного типу, називаному
сатуратором. При безсатураторному способі поглинання аміаку сірчаною кислотою
виробляється у форсуночному (або насадочному) скрубері, що може зрошуватися як
пересиченим, який має кристали сульфату амонію розчином, так і ненасиченим
розчином. У першому випадку кристалізація сульфату амонію відбувається
одночасно з поглинанням аміаку в скрубері, а в другому утворення пересиченого
розчину і кристалів сульфату амонію здійснюється при випарюванні розчину в
спеціальному апараті - кристалізаторі.
Перевагами безсатураторних процесів
є менший гідравлічний опір і можливість проведення окремих стадій процесу
(абсорбції аміаку, кристалізації сульфату амонію й ін.) при найбільш
сприятливих умовах.
Безсатураторний метод одержав
найбільше поширення на коксохімічних заводах СНД, що пояснюється високою
надійністю процесу очищення коксового газу від аміаку і простотою апаратурного
оформлення
У процесі роботи сатуратора на
поверхні маткового розчину накопичується кисла смолка - продукт взаємодії
туманообразної смоли і неграничних з'єднань із сірчаною кислотою, що при
наявності в розчині нерозчинних з'єднань заліза й інших металів, так званих
шламів, може осідати разом із кристалами сульфату амонію, додаючи продуктові
сіре фарбування і знижуючи його якість.
Для видалення кислої смолки частина
маткового розчину безупинно виводиться із сатуратора через переливне вікно і
гідравлічний затвор у циркуляційну каструлю, з якої насосом знову повертається
в сатуратора.
Одночасно з уловлюванням аміаку в
сатураторі відбувається також поглинання легких піридинових основ. Для їхнього
виділення частина маткового розчину виводиться із сульфатного відділення в
піридинову установку. Матковий розчин самопливом подається з верхньої частини
кристалопримача або з нагнітальної лінії циркуляційного насоса. Кількість
розчину, що відбирається, залежить від змісту в ньому піридинових основ, що
зазвичай складає 10-15 г/л і залежить у свою чергу від концентрації піридинових
основ у коксовому газі, температури і кислотності маткового розчину в
сатураторі. Знепіридинений матковий розчин повертається з піридинової установки
в збірник або в циркуляційну каструлю, відкіля подається насосом у сатуратора.
Як відзначалося вище, найважливішими
факторами, що визначають якість сульфату амонію, є кислотність і температура
маткового розчину, а також інтенсивність і спосіб перемішування його в
сатураторі.
Для одержання великих кристалів
варто було б підтримувати кислотність маткового розчину в сатураторі на рівні 1
-2 %. Однак при цьому зростають втрати аміаку й особливо піридинових основ зі
зворотним газом. Крім того, при низької кислотності відбувається рясне
відкладення кристалів на внутрішніх стінках сатуратора і на лопатках
барботажного парасоля, що приводить до зменшення вільного перетину каналів для
проходу газу і збільшенню гідравлічного опору.
По зазначених причинах у сульфатних
відділеннях прийнято підтримувати кислотність маткового розчину на оптимальному
рівні 4-5 %. Проте, у процесі роботи відбувається відкладення кристалів на
стінках сатуратора, барботажного парасоля, у патрубку для виходу газу й у
переливному вікні для маткового розчину, у результаті чого порушується
нормальний режим барботажа і зростає гідравлічний опір сатуратора. Для
видалення сольових відкладень спочатку прибігали до щомісячних разкисловкам
сатуратора, тобто до стрибкоподібного підвищення кислотності розчину до 12-15
%, а також до щотижневих промивань з підвищенням кислотності до 25-30 %, що
приводить до перетворення сульфату амонію в бісульфат і підвищенню їхньої
загальної розчинності. При цьому процес кристалізації припинявся до повного
вироблення надлишкової кислоти і стає власне кажучи періодичним, що утрудняло
регулювання й обслуговування установки.
В даний час для видалення сольових
відкладень застосовують щодобові промивання сатураторів паровим конденсатом при
температурі 80-90 °С шляхом подачі його в місця найбільшого скупчення
кристалів. Витрата конденсату, для промивання сатуратора складає 25-35 м3.
Ця вода випаровується потім протягом доби завдяки відповідному підігрівові
коксового газу в паровому підігрівнику. У процесі водних промивань сатуратора
кислотність маткового розчину підтримується постійної на рівні 4-5 %, завдяки
чому порушення процесу кристалізації виявляється не настільки значним, як при
кислотних промиваннях, а якість продукту не погіршується.
Підвищення температури в сатураторі
негативно позначається на крупності одержуваних кристалів, тому необхідно
підтримувати її на можливо низькому рівні, при якому, однак, забезпечується
випар усієї води, що вводиться в систему, і збереження водного балансу.
Вода в сатуратора надходить у пароподібному
стані з коксовим газом і аміачними парами, а також у рідкому виді із сірчаною
кислотою, при щодобових промиваннях системи і при промиванні сульфату амонію в
центрифузі. Щоб уникнути обводнювання системи вода, що надходить у неї, повинна
бути випарувана в сатураторі і вилучена з коксовим газом. Велика частина
необхідного для цього тепла виділяється при протіканні хімічної реакції, а
відсутнє тепло вноситься коксовим газом з парового підігрівника.
Чим більше води вводиться в систему,
тим вище повинна бути температура коксового газу і маткового розчину в
сатураторі, тим дрібніше одержувані кристали сульфату амонію. При нормальному
режимі роботи сатуратора температура газу після підігрівника повинна бути 55-58
°С, а маткового розчину 53-55 °С.
Для підтримки такого режиму
необхідно прохолоджувати коксовий газ у первинних холодильниках до 25-30 °С и
аміачні пари в дефлегматорі до 95-96 °С. застосовувати концентровану сірчану
кислоту, знижувати витрата води на промивання сульфату амонію (до 5-6 % від
маси останнього), а також на промивання сатураторів і трубопроводів.
Одним з вирішальних факторів, що
забезпечують інтенсифікацію росту кристалів, є перемішування розчину, тому що
турбулізація потоків розчину в сатураторі сприяє збільшенню швидкості
підведення сульфату амонію з розчину до поверхонь кристалів і швидкості їхнього
росту. Однак саме по собі перемішування розчину ще не забезпечує одержання
крупно кристалічної солі, тому що при наявності дрібних кристалів у розчині, що
надходить у кристалоприймач, вони осідають разом з великими і знижують якість
продукту. Тому перемішування розчину в сатураторі повинне вироблятися таким
чином, щоб забезпечувалася сепарація кристалів по крупності у висхідному потоці
з виділенням більш великих на дно сатуратора і віднесенням більш дрібних у зону
пересиченого розчину.
Висхідний потік у ванні сатуратора
створюється шляхом циркуляції розчину за допомогою насоса або газліфта.
Рідинний ажитатор являє собою струминний апарат, де робітничим середовищем
служить матковий розчин, подаваний у сатуратора насосом. Недоліком рідинних
ажитаторов є інтенсивне здрібнювання кристалів під дією робочого колеса насоса
і при переміщенні по трубопроводах.
Для подачі газу в ажитатор потрібна
установка компресора типу 2ГМУ-48/3 продуктивністю 48 м3/хв при
тиску 0,2 МПа, що зв'язано зі значними витратами. Застосування газової ажитації
економічно доцільно при наявності на підприємстві стиснутого коксового або
природного газу.
Газліфтний сепаратор забезпечує рух
розчину нагору усередині направляючої склянки і вниз поза склянкою. Дрібні
кристали несуться потоком розчину усередину склянки і тривалий час знаходяться
в зваженому стані при сприятливих умовах для росту. Великі кристали осідають з
потоку на дно ванни сатуратора, відкіля подаються сольовим насосом у
кристалоприймач.
Значний вплив на якість сульфату
амонію роблять з'єднання заліза, що накопичуються в матковому розчині.
Джерелами цих з'єднань є сірчана кислота і продукти корозії апаратури.
При роботі піридинової установки в
лужному середовищі залізо зв'язується з ціаністим амонієм у нерозчинну
комплексну сіль - залізосинеродистий амоній. Ця сіль являє собою
мілкодисперсний шлам з розміром часток від 6 до 40 мкм. Потрапляючи з
знеспіридиненим розчином у сатуратора, шлам сорбується кислою смолкою, у результаті
чого щільність останньої зростає, і вона осідає разом із кристалами сульфату
амонію, забруднюючи його.
Крім того, обволікаючи кристали
сульфату амонію, шлам сповільнює їхній ріст і обумовлює одержання
мілкокристалічного продукту.
Ступінь забруднення сульфату амонію
залежить від кількості смоли, що надходить з газом, і від змісту заліза в
кислоті. При незначному змісті заліза в кислоті кількість шламу в матковому
розчині недостатньо для того, щоб довести щільність кислої смолки до величини
щільності розчину. При цьому шлам віддаляється із сатуратора разом з кислою
смолкою, і одержуваний сульфат амонію має білий колір.
Для поліпшення якості сульфату
амонію на багатьох заводах відмовилися від спуска знепіридиненого розчину
безпосередньо в сатуратора, а направляють його в спеціальний збірник для
відстоювання від шламу. Різке прискорення осадження часток сульфідів, гідрату
окису і фероціанидів заліза досягається при добавці 0,04 % водного розчину
поліакриламіду в кількості 1 % від обсягу лужного знепіридиненого розчину.
Прояснений розчин надходить у разкислитель, де нейтралізується кислотою, а
потім у збірник маткового розчину або в циркуляційну каструлю. Ефективними
засобами поліпшення споживчих властивостей сульфату амонію, зниження його
злежування є грануляція й обробка поверхнево-активними речовинами.
Для грануляції сульфату амонію
можуть застосовуватися гранулятори барабанного, тарілчастого і шнекового типів,
а також апарати з псевдоожиженим шаром.
В апаратах із псевдоожиженим шаром
процес грануляції може об’єднуватись зі зневоднюванням розчину і сушінням
сульфату амонію, завдяки чому для його одержання можуть використовуватися більш
дешеві розведені і відпрацьовані кислоти без ризику обводнювання ванни
сатуратора.
У якості антизлежуванних добавок до
сульфату амонію можуть застосовуватися сульфокислоти і їхньої солі. Найбільш
ефективної з них є натрієва сіль додецилбензолсульфокислоти, що, на відміну від
інших добавок, біологічно розкладається в ґрунтових умовах. Обробка сульфату
амонію розчином сульфанолу проводиться шляхом розпилення його під стрічковим
транспортером перед сушаркою з киплячим шаром.
Основними недоліками сатураторного
методу одержання сульфату амонію є:
- великий гідравлічний опір
барботажного апарата, який досягає 6,5 кПа і більш, що складає 30-40 %
загального опору газового тракту й апаратури після нагнітачів;
об’єднання в одному апараті
процесів уловлювання аміаку і піридинових основ і кристалізації сульфату амонію
не дозволяє проводити них у найбільш сприятливих умовах, що негативно
позначається на роботі установки і на якості сульфату амонію;
інтенсивне відкладення солі на
стінках сатуратора і трубопроводів вимагає частих промивань великою кількістю
води і кислоти, що порушує процес кристалізації, робить його періодичним і
утрудняє регулювання й обслуговування установки; низька випарна здатність
сатуратора, обумовлена малим часом і незначною поверхнею контакту газу з
розчином, що вимагає підвищення температури ванни сатуратора до 60 °С и більш
щоб уникнути обводнювання, при якій неможливе одержання крупно кристалічного
продукту;
громіздкість сатураторів,
установка яких вимагає значних виробничих площ і капітальних витрат.
Усунення цих недоліків досягається
при заміні барботажних сатураторів насадочними або форсуночними скруберами для
уловлювання аміаку і піридинових основ і спеціальних апаратів для кристалізації
сульфату амонію. У розроблених різними фірмами установках процес кристалізації
проводиться як при звичайному тиску без випарки, якщо уловлювання аміаку в
скруберах виробляється насиченим матковим розчином, що містить кристали
сульфату амонію (фірма Тохо-Буссан), так і при випарюванні під вакуумом, якщо
зрошення скруберів виробляється ненасиченим розчином (фірми Вильпут і
Саймон-Карвз).
Перевагою зрошення скруберів
ненасиченим розчином є відсутність відкладень солі на стінках апаратів і
необхідності їхніх промивань, що спрощує обслуговування і регулювання процесу.
Недоліком таких схем є значна витрата тепла на випарювання розчину в
кристалізаторах, що підвищує вартість сульфату амонію на 15-20 % у порівнянні
із сатураторним методом.
Перші бессатураторні установки для
одержання крупно кристалічного продукту по методу Смет-Сольвей були побудовані
американською фірмою Вильпут, технологічна схема якого представлена на рис.
2.1.
Коксовий газ промивається
ненасиченим розчином сульфату амонію, що містить близько 6% вільної сірчаної
кислоти, у скрубері 1, заповненому керамічною насадкою. Температура газу перед
скрубером складає 47-50 °С,а після нього 50-55 °С.Температура маткового розчину
після скрубера дорівнює 55-57 °С, а концентрація вільної сірчаної кислоти в
ньому 4,5-5 %.
Розчин зі скрубера стікає в збірник
2, відкіля через гідравлічний затвор надходить у кишеню кристалізатора 3.
Частина розчину з гідрозатвора подається насосом у піридинову установку. З
кристалізатора розчин подається насосом 4 у випарник 5, з'єднаний з
барометричним конденсатором 6. Тут розчин концентрується завдяки випарові води
під вакуумом 680 мм рт.ст., створюваним двоступінчастим паровим ежектором 7.
Остання ступінь працює на вихлоп в атмосферу або з'єднується з барометричним
колодязем 8.
Рисунок 2.1- Схема отримання
кристалічного сульфату амонію по методу Смет-Сольвей
сатуратор сульфат амонію
коксохімічний
У випарнику розчин, утрачаючи
частину вологи і прохолоджуючи до 42-44 °С, стає пересиченим. З випарника він
стікає по трубі в нижню частину кристалізатора 3 і проходить нагору через шар
зважених кристалів, забезпечуючи їхній ріст.
Більш великі кристали опускаються на
дно кристалізатора, відкіля подаються насосом 9 через кристалоприймач 10 у
вакуум-фільтр 8 і сушарку.
Надлишок маткового розчину перетікає
з кристалоприймач 10 у збірник 2, службовець підставою скрубера 1, поповнюючи
необхідною кількістю кислоти і води. Зі збірника розчин при температурі 43 °С
знову подається насосом 12 у скрубер 1. Коксовий газ після скрубера проходить
кислотну пастку і надходить у кінцевий газовий холодильник бензольного
відділення. Що виділяється в результаті реакції між аміаком і сірчаною кислотою
тепло витрачається на нагрівання маткового розчину і коксового газу, а частково
на випар води з розчину. При низькому вологовмісті газу, що надходить у
скрубер, випар вологи інтенсифікується настільки, що це може привести до
випадання солі на насадці. Для усунення цього явища до коксового газу додається
водяна пара в такій кількості, щоб температура газу на вході в скрубер була
нижче температури маткового розчину на виході не більше ніж на 5 °С.
Розглянута схема має наступні
переваги:
- висока якість сульфату амонію, що
містить близько 85 % класу 2 - 0,5 мм;
низький гідравлічний опір
скрубера і сталість опору завдяки уловлюванню аміаку ненасиченим розчином.
Недоліком описаної схеми є велика
витрата пари на кристалізацію солі над вакуумом.
На відміну від схеми одержання
сульфату амонію по методу Смет-Сольвей, у бессатураторной установці фірми
Саймон-Карвз процеси випарювання розчину і кристалізації сульфату амонію
об’єднані в одному апараті, тоді як уловлювання аміаку і піридинових основ
виробляється роздільно при найбільш сприятливих умовах у безнасадочних
скруберах з форсуночним зрошенням.
Особливостями схеми є:
низький гідравлічний опір
форсуночных скруберів, що не перевищує 200 мм вод.ст;
велика інтенсивність випару води в
скруберах як за рахунок більшої тривалості і поверхні контакту газу з розчином,
так і за рахунок більшої пружності водяних пар над ненасиченим розчином,
завдяки чому не потрібно підігрівати газ перед абсорберами;
роздільне уловлювання аміаку і
піридинових основ дозволяють усунути основні недоліки сатураторного процесу.
Висока концентрація кислоти в розчині другої ступіні дозволяє уловлювати
найбільш коштовні легкі піридинові підстави і підвищити їхню концентрацію в
розчині до 130-150 г/м3, що в 10-12 разів більше, ніж при сатураторному
процесі. Завдяки цьому скорочується в 10-и раз витрата аміачних пар на
нейтралізацію розчину, зменшується обсяг апаратури для переробки піридинових
основ і істотно поліпшуються техніко-економічні показники роботи піридинової
установки;
застосування вакуум-випарників для
кристалізації сульфату амонію дозволяє істотно поліпшити ситовий склад
продукту. Однак через велику витрату пари у випарниках вартість сульфату амонію
за цією схемою на 17-30 % більше, ніж при сатураторному процесі.
Досвід експлуатації безсатураторних
установок Саймон-Карвз на заводах України і Росії показує, що вони мають
серйозні недоліки, що знижують техніко-економічні показники виробництва
сульфату амонію, а саме:
- одержання крупно кристалічного
продукту в трубчастих вакуум-кристалізаторах із природною циркуляцією розчину
важко через погану сепарацію дрібних кристалів. Більш половини продукту,
одержуваного на цих установках, на відповідає показникам вищого сорту по змісту
пилоподібних фракцій;
собівартість сульфату амонію,
одержуваного по безсатураторному процесі, на 15-20 % вище, ніж по класичній
сатураторній схемі, через велику витрату пари у вакуум-кристалізаторах, що
досягає 2 т на 1 т одержуваного продукту.
Достоїнством цієї установки перед
сатураторною є менший гідравлічний опір проходові газу при цілком задовільної
крупності кристалів. Разом з тим одержувати сіль постійного гранулометричного
складу на цій установці важко, тому що для розчинення відкладень солі на
стінках апаратів приходиться періодично промивати систему.
3.
ХАРАКТЕРИСТИКА СИРОВИНИ І РЕЧОВИН, ЩО НАДХОДЯТЬ НА ПЕРЕРОБКУ
На переробку до сульфатного
відділення подається прямий коксовий газ, який поступає з коксового цеху. Його
характеристика відповідно до ТУ У 322-00190443-101-99 наведений нижче (табл.
3.1).
Таблиця 3.1 - Характеристика
коксового газу ТУ У 322-00190443-101-99
|
Найменування сировини
|
Найменування показників, обов’язкових для
перевірки
|
Значення показників, г/м3
|
|
Прямий коксовий газ
|
Водяна пара Пара смоли Бензольні вуглеводні
Аміак Сірководень Ціаністий водень Нафталін
|
250-450 80-120 36-41 6,5-8,5 13-18 1-2 6-8
|
Поглинання аміаку проводить сірчаною
кислотою, яка виробляється у цеху сіркоочищення ВАТ ЯКХЗ. Її характеристика
наведена нижче (табл. 3.2).
Таблиця 3.2 - Фізико-хімічні
властивості сірчаної кислоти
|
Найменування сировини
|
Найменування показників, обов’язкових для
перевірки
|
Значення показників, г/м3
|
|
Сірчана кислота
|
Масова доля моногідрату, %, не менш Масова
доля залізу, %, не більш Масова доля залишку після прокалки, %, не більш
Масова доля оксидів азоту, %, не більш Цвіт у мл розчину порівняння
|
92,5 0,02 0,05 Не нормується 6
|
4.
ФІЗИКО-ХІМІЧНІ ОСНОВИ ТЕХНОЛОГІЧНОГО ПРОЦЕСУ
Одержання сульфату амонію засновано
на поглинанні аміаку з коксового газу розчином сірчаної кислоти і протіканні
реакції нейтралізації.
2NН3
+ Н2SO4
= (NН4)2SО4
.
Процес нейтралізації сірчаної
кислоти аміаком протікає в дві стадії:
- утворення кислої солі -
бісульфату амонію:
NН3
+ Н2SO4
= NН4НSО4
,
- перетворення кислої солі в середню
в міру перенасичення розчину аміаком:
NН4НSО4
+ NН3
= (NН4)2SО4
Ці реакції протікають з виділенням
тепла, кількість якого залежить від умов ведення процесу. При взаємодії чистого
аміаку і насиченого розчину сульфату амонію, що містить 7-8 % вільної кислоти,
тепловий ефект сумарної реакції складає при 47,5°С 815 кДж/кг сульфату амонію,
а при 66,3 °С 1855 кДж/кг. При поглинанні аміаку з коксового газу тепловий
ефект процесу значно менше, тому що частина аміаку знаходиться у вигляді
летучих з'єднань із сірководнем, вуглекислотою й іншими кислими газами, на
розкладання яких затрачається тепло. Для практичних розрахунків можна приймати
тепловий ефект сумарної реакції рівним 1180 кДж/кг сульфату амонію.
Співвідношення між сульфатом і
бісульфатом у розчині визначається кислотністю останнього. При низької
кислотності (1-2 %) у розчині переважає сульфат, що випадає з пересиченого
розчину у виді кристалів. При підвищенні кислотності розчину до 34 % середня
сіль переходить практично цілком у кислу, котра має кращу розчинність у воді й
у кислих розчинах. При 60 єС розчинність сульфату амонію у воді складає 46,6 %,
при підвищенні кислотності до 19 % вона практично не міняється, а потім
поступово росте і при кислотності 34 % досягає максимуму (близько 52 %), після
чого починає знижуватися.
Утворення кристалів сульфату амонію
відбувається при пересичені маткового розчину за рахунок безперервного процесу
поглинання аміаку сірчаною кислотою або в результаті розпарювання розчину.
Кристалізація починається з утворення центрів кристалізації - зародків кристалів.
Для одержання великих кристалів необхідно забезпечити умови для їхнього росту,
інтенсивність якого залежить від швидкості дифузії сульфату амонію з розчину до
граней кристалів, швидкості переходу молекул солі з рідкої фази у тверду і
швидкості відводу схованої теплоти кристалізації від поверхні кристалів у
розчин. При інтенсивному перемішуванні розчинів процеси дифузії сульфату амонію
з розчину до граней кристалів і відводу тепла кристалізації настільки
інтенсифікуються, що практично не роблять впливу на процес кристалізації. При
цьому швидкість переходу речовини з рідкої фази у тверду пропорційна другого
ступеня різниці концентрації пересиченого і насиченого розчинів:
W
=
K(Сn
- СН)2.
Коефіцієнт швидкості кристалізації К
залежить у сильному ступені від умов кристалізації. Експериментально
встановлено, що основними факторами, які впливають на ріст кристалів, є
інтенсивність перемішування, температура і кислотність маткового розчину, а
також концентрація різних домішок у ньому.
Шляхом перемішування розчинів можна
прискорити ріст дрібних кристалів, затримати утворення нових зародків, або
розчинити центри кристалізації, які вже утворилися. Для одержання великих
кристалів необхідно підтримувати їхній тривалий час у зваженому стані в
пересиченому розчині, що може бути забезпечене при наявності висхідного потоку
розчину в кристалізаторі. При такому русі розчину створюються більш сприятливі
умови для росту великих кристалів, тому що вони мають більшу енергію
кристалізації і розташовані в нижній частині кристалізатора, куди підводиться
свіжий пересичений розчин.
Більш дрібні кристали і зародки в
таких умовах поступово розчиняються, тому що вони мають більшу розчинність і
знаходяться у верхній частині кристалізатора, де ступінь пересиченості
маткового розчину незначна. Коли розмір кристалів досягає визначеної величини,
вони осідають на дно кристалізатора і виводяться як продукт.
Утворенню великих кристалів сприяють
більш низькі температура і кислотність маткового розчину. У виробничих умовах
розчин постійно контактує з холодними стінками апаратів і трубопроводів, у
результаті чого він стає пересиченим і утворяться нові зародки кристалів. При
нагромадженні їх у системі не можуть бути отримані великі кристали через
недолік пересиченого розчину. Чим вище температура маткового розчину, значніше
вплив місцевих переохолодженні розчину, тим більше вміст дрібних фракцій в
одержуваному продукті. Для одержання крупно кристалічного продукту процес
кристалізації повинний проводитися при можливо низькій температурі, а апарати і
трубопроводи повинні бути теплоізольовані.
Підвищення кислотності розчину
приводить до збільшення змісту бісульфату амонію, зростанню в'язкості і
щільності розчину, припиненню росту кристалів. Бісульфат піридину, що
утвориться при цьому, також перешкоджає росту кристалів і сприяє збільшенню
злежуванні солі при збереженні.
Найбільш великі кристали виходять
при кислотності розчину 1-2 %. Однак, якщо кристалізація сульфату амонію
виробляється в апараті для поглинання аміаку сірчаною кислотою, при такій
кислотності відбувається інтенсивне відкладення кристалів на стінках апарата й
у трубопроводах, порушується нормальна робота установки. З цієї причини в таких
установках підтримується кислотність маткового розчину на рівні 4-5 %. При
цьому дуже важливо підтримувати однакову кислотність у всьому обсязі розчину і
виключати утворення нейтральних зон, у яких виходить сіра або чорна сіль
(перевитрата).
Істотний вплив на ріст кристалів і
їхню форму роблять різні домішки в матковому розчині. При вмісті більш 1 м
з'єднань окісного (тривалентного) заліза в 1 кг розчину збільшується зміст
дрібних фракцій у продукті. Наявність у розчині хрому, алюмінію, кадмію сприяє
утворенню голчастих кристалів, що при збереженні легко ламаються, утворити пил,
і схильні до злежування. Наявність у розчині ціанідів і хлоридів також
перешкоджає росту кристалів.
Негативна дія названих домішок може
бути обмежене при введенні в розчин щавлевої кислоти, сульфату магнію і
щавлевокислого кальцію, сечовини, з'єднань закисного (двовалентного) заліза,
марганцю, кобальту.
Домішки в матковому розчині не
тільки перешкоджають росту кристалів, але і додають їм різне фарбування. Сірий
колір сульфату амонію обумовлений наявністю смолистих речовин, сірчистих
з’єднань, заліза, міді, свинцю. Жовте фарбування дають з'єднання миш'яку.
Роданисті з'єднання в присутності слідів заліза дають червоне або рожеве
фарбування. Блакитний колір додає сульфатові берлінська лазур. Крім того,
ціаністі з'єднання утворять із залізом комплексні з'єднання, що у суміші з
іншими речовинами додають сульфатові колірні відтінки від зелено-жовтого до
фіолетового.
Для одержання сульфату амонію білого
кольору необхідно робити попереднє очищення коксового газу від смолистих
речовин, ціаністого водню і сірководню, застосовувати чисту сірчану кислоту й
апаратуру з корозійно стійких матеріалів.
5.
ХАРАКТЕРИСТИКА ОДЕРЖАНОГО ПРОДУКТУ
Технічний сульфат амонію містить
різні домішки, що обумовлюють його якість. У залежності від технології його
одержання можуть мінятися крупність і форма кристалів, що впливає на умови його
збереження, транспортування і застосування. Дрібний і вологий сульфат амонію
легко злежується при збереженні у тверду монолітну масу. Підвищена кислотність
збільшує гігроскопічність соли й утрудняє транспортування і використання через
сильну корозійну дію вільної сірчаної кислоти. Тому якість сульфату амонію,
застосовуваного в сільському господарстві як добриво, строго нормується. Одним
з найважливіших показників якості сульфату амонію, що визначають ефективність
його застосування, є гранулометричний склад. Крупно кристалічна сіль, що має
менш питому поверхню граней, сорбує менше вологи, сірчаної кислоти й інших
домішок, виявляє меншу схильність до злежування, легше вноситься в ґрунт,
проявляє більш ефективну дію на розвиток рослин. Сульфат амонію, вироблений
коксохімічними заводами, повинний задовольняти наступним вимогам (табл. 5.1).
Таблиця 5.1
- Вимоги до сульфату амонію
|
Показники
|
Сорт
|
|
Вищий
|
Перший
|
|
Зовнішній вигляд Масова частка азоту в % на
суху речовину, не менш Масова частка води в %, не більш Масова частка вільної
сірчаної кислоти в %, не більш Гранулометричний склад: Масова частка фракції
розміром 14 мм в %, не менш Масова частка фракції розміром більш 0,5 мм в %
не менш Розсипчастість, %
|
Гранули 21 0,6 0,5 90 - 100
|
Білі або прозорі кристали 21 0,2 0,03 - 60
100
|
Не нормуються 21 0.3 0,05 - не нормується
100
|
|
|
|
|
|
6.
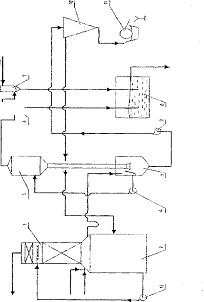
ОПИС ТЕХНОЛОГІЧНОЇ СХЕМИ ВИРОБНИЦТВА
Після газодувних машин коксовий газ
через газовий колектор надходить у сульфатне відділення на загальний колектор
до сатураторів. У сульфатному відділенні змонтовано три сатураторних агрегати.
Сатураторний агрегат складається з
решофера 1, сатуратора 2, кислотної пастки 3, циркуляційної каструлі 4,
циркуляційних і сольових насосів. Усі три сатуратори агрегату знаходяться в
роботі і працюють паралельно один одному. У решофері 1 коксовий газ
підігрівається парою до температури 60-65 °С. Коксовий газ проходить по
вертикальних трубах, а пара подається в міжтрубний простір решофера. Паровий
конденсат з решофера 1 надходить у збірник гарячої води, а нагрітий коксовий
газ подається по газопроводу у верхню частину сатуратора 2, далі по
газопідводящій трубі, що закінчується барботажним парасолем, безпосередньо у
ванну сатуратора. Барботажний парасоль на 150-180 мм заглублений у матковий розчин
і має направляючі лопатки. Коксовий газ, проходячи по направляючих лопатках,
барботує і приводить в обертальний рух матковий розчин у ванні сатуратора.
У матковому розчині автоматично за
допомогою рН-метра підтримується постійний надлишок сірчаної кислоти на рівні
4,0 % (кислотність маткового розчину).
Аміак коксового газу реагує із
сірчаною кислотою в матковому розчині з утворенням кристалів сульфату амонію.
Очищений від аміаку коксовий газ із
сатуратора надходить у кислотну пастку 3, де продовжується відбивання крапельок
маткового розчину від коксового газу. Після кислотної пастки 3 коксовий газ
надходить у скруберне відділення. У ванні сатуратора 2 підтримується надлишок
маткового розчину, що через перелив і гідрозатвор постійно надходить у циркуляційну
каструлю 4. З циркуляційної каструлі 4 циркуляційним насосом 5 безупинно
матковий розчин подається в нижню частину ванни сатуратора 2 на рідинний
ажитатор, створюючи бурхливі висхідні потоки для перемішування маткового
розчину і підтримки кристалів сульфату амонію в зваженому стані, що сприятливо
позначається на їхньому росту.
У циркуляційній каструлі кисла
смолка спливає на поверхню розчину і виводиться через зливальну кишеню в
спеціальну ємність. Час перебування розчину в каструлі повинне бути достатнім
для можливо повного виділення кислої смолки. Тому кількість циркулюючих через
каструлю розчину не повинне перевищувати 10-12 м3/год. Переливне
вікно в сатураторі служить також для підтримки постійного рівня розчину в
ньому. При утворенні надлишку маткового розчину в системі частина його
переливається з циркуляційної каструлі в збірник, з якого в міру потреби він
повертається в сатуратора насосом. Досягши визначеної величини, кристали
осаджуються в конусній частині сатуратора 2 - у солезбірнику, відкіля за
допомогою сольового насоса 6 разом з матковим розчином - пульпа, що містить
40-50 % кристалів, накачується в кристалоприймач 7. Дрібні кристали разом з
матковим розчином по переливі з верхньої частини кристалоприймача 7
повертаються в циркуляційну каструлю 4, а більш великі кристали осідають у
конусній його частині, відкіля по завантажувальній лінії подаються на
центрифугу 8. У центрифузі 8 кристали відфуговуються від маткового розчину.
Фугат (матковий розчин) повертається в циркуляційну каструлю 4 , а кристали
солі по тічці надходять на транспортерну стрічку і далі на сушарку сульфату
амонію. Сушіння сульфату амонію відбувається в сушильних барабанах 9. У
сушильний барабан 9 вентилятором через парові калорифери подається гаряче
повітря з підтримкою температури в сушильному барабані 105-120 °С.
Відпрацьоване гаряче повітря з температурою 40-50 °С відсмоктується
вентилятором на пиловлюваючу установку 10. Очищений повітряний потік
вентилятором викидається в атмосферу.
7. МАТЕРІАЛЬНІ РОЗРАХУНКИ
Матеріальний баланс аміаку.
Аміак надходить з коксовим газом з
підігрівника газу в кількості 448 кг/год. Крім того, аміак надходить з водяними
парами з дефлегматора аміачної колони в кількості 211 кг/год. Разом надходить
аміаку 659 кг/год.
Втрати аміаку зі зворотним коксовим
газом складають звичайно 0,03 г/м3 сухого газу, тому кількість
аміаку, що іде зі зворотним коксовим газом, складе:
0,03·72460/1000
= 2 кг/год.
Таким чином, кількість аміаку, що
реагує із сірчаною кислотою, у сатураторі і складає:
659
- 2 = 657 кг/год.
Таким чином, матеріальний баланс
аміаку представлений у таблиці 7.1.
Таблиця 7.1 - Матеріальний баланс
аміаку
|
Прихід
|
кг/год
|
Витрата
|
кг/год
|
|
Надходить з коксовим газом Надходить з
аміачно-водяними парами
|
448 221
|
Виходить з коксовим газом Реагує з кислотою
|
2 657
|
|
Разом.
|
659
|
Разом.
|
659
|
Для поглинання 657 кг/год NH3
необхідно подати сірчаної кислоти в розрахунку на моногідрат у кількості:
657·98/34
= 1895 кг/год.
Приймаємо також, що в сульфаті
амонію після фугування буде утримуватися 1 кг сірчаної кислоти. Тоді загальна
витрата сірчаної кислоти у виді моногідрату буде дорівнює 1896 кг/год, а з
концентрацією 76 %:
1896/0,76
= 2493 кг/год,
у тому числі води:
-
1896 = = 597 кг/год.
При цьому виходить сульфат амонію в
кількості:
1895
+ 657 = 2552 кг/год.
Матеріальний баланс води.
Кількість водяних пар, що надходять
з газом, дорівнює 2680 кг/год. Крім того, водяники пари надходять з
дефлегматора аміачно-вапняної колони в кількості 1109 кг/год. Кількість води,
що надходить із сірчаною кислотою дорівнює 597 кг/год.
Вода для промивання сульфату амонію,
якщо прийняти неї в кількості, рівному 6 % від маси отриманого сульфату амонію,
складе:
2552·0,06
= 150 кг/год.
Усього надходить води 4536 кг/год.
Частина води залишається у вологому
сульфаті амонію. Приймаємо вологість сульфату амонію рівної 2 %. Тоді маса
вологого сульфату амонію буде дорівнює:
/0,98
= 2605 кг/год,
з них води:
2605
- 2552 = 53 кг/год.
Інша вода виходить із сатуратора
разом з коксовим газом.
Матеріальний баланс води
представлений у таблиці 7.2.
Таблиця 7.2 - Матеріальний баланс
води
|
Прихід
|
кг/год
|
Витрата
|
кг/год
|
|
Надходить з коксовим газом Надходить з
аміачно-водяними парами Надходить з кислотою від промивних вод
|
2680 1109 150
|
Виходить з коксовим газом Виходить з
сульфатом амонію
|
4483 53
|
|
Разом
|
4536
|
Разом
|
4536
|
Матеріальний розрахунок сатуратору.
До сатуратору поступає коксовий газ,
склад якого представлений у таблиці 7.3.
Таблиця 7.3 - Склад
коксового газу після підігрівача
|
Компонент
|
кг/год
|
м3/год
|
|
Сухий коксовий газ
|
32926
|
72460
|
|
Водяні пари
|
2680
|
3300
|
|
Бензольні вуглеводні
|
2200
|
595
|
|
Сірководень
|
1037
|
680
|
|
Аміак
|
448
|
590
|
|
Піридинові основи
|
299
|
8
|
|
Всього:
|
39320
|
77663
|
Аміачно - водяні
пари із дефлегматора у кількості 69 % від загальної кількості, склад, яких
надано у таблиці 7.4.
Таблиця 7.4 - Склад
аміачно - водяного пару
|
Компонент
|
кг/год
|
м3/год
|
|
Аміак
|
146
|
192
|
|
Сірководень
|
44
|
29
|
|
Двоокис вуглецю
|
51
|
26
|
|
Водяні пари
|
765
|
950
|
|
Піридинові основи
|
4,1
|
1,2
|
|
Всього:
|
1010,1
|
1198,2
|
Сірчана кислота у
кількості 2493 кг/год.
Маточний розчин із
каструлі оборотних токів у кількості х кг/год. Всього поступає: 42823,1 + х
Витрати.
Маточний розчин.
Кількість маточного
розчину, яка виводиться із сатуратору, приймається рівною 10-кратному
відношенню к кількості сухого сульфату амонія. Так як кількість сульфату амонію
рівняється 2552 кг/год, то кількість маточного розчину становить 25520 кг/год.
Коксовий газ.
Склад коксового
газу після сатуратору представлено у таблиці 7.5.
Таблиця 7.5 - Склад
коксового газу після сатуратору
|
Компонент
|
кг/год
|
м3/год
|
|
Сухий коксовий газ
|
32926
|
72460
|
|
Бензольні вуглеводні
|
2200
|
595
|
|
Сірководень
|
1081
|
710
|
|
Аміак
|
2
|
2,6
|
|
Піридинові основи
|
2,9
|
0,8
|
|
Двоокис вуглецю
|
52,8
|
26,9
|
|
Водяні пари
|
4475
|
5589
|
|
Всього:
|
40739,7
|
79384,3
|
Всього виходить
66269,7 кг/год.
Прирівнюючи прихід
та витрати, знаходимо х = 23436,6 кг/год.
Матеріальний баланс сатуратора
представлений у таблиці 7.6.
Таблиця 7.6 - Матеріальний баланс
сатуратора
|
Прихід
|
кг/год
|
Витрати
|
|
Коксовий газ
|
39320,0
|
Коксовий газ
|
40739,7
|
|
Аміачно - водяні пари
|
1010,1
|
Маточний розчин
|
25520,0
|
|
Сірчана кислота
|
2493,0
|
|
|
|
Маточний розчин
|
23436,6
|
|
|
|
Всього:
|
66259,7
|
Всього:
|
66259,7
|
Матеріальний баланс стадії сушки.
Кількість вологи, що випаровується
за годину:
кг/год.
Кількість
матеріалу, що висушується за годину:
2605-49,5 = 2555,5 кг/год.
8. ТЕПЛОВИЙ РОЗРАХУНОК САТУРАТОРУ
Прихід тепла.
Тепло, що вноситься
коксовим газом з підігрівача. Позначимо температуру газу, що поступає з
підігрівача, через t, тоді:
а) тепло,
що вноситься сухим коксовим газом:
1
= mс.г·Cс.г. ·t,
де Cс.г.-
питома теплоємність сухого коксового газу при температурі t,
,7 кДж/(кг·град).
q1 = 32926 · 0,7t·4,19
= 96571 t кДж/год.
б) тепло, що
вноситься водяною парою:
q2 = mв.п.·(r0
+ Cв.п.. ·t,),
де г0 -
питома теплота пароутворення насиченої водяної пари, 595 кДж/кг;
Св.п.
- питома теплоємність водяної пари при температурі t, 0,438 кДж/(кг·град).
q2 = 2680 (595 + 0,438t) ·
4,19=6681374+4919t кДж/год.
в) тепло, що
вноситься бензольними вуглеводнями:
q1 = mб.у.·Cб.у..
·t,
де Cб.у
- питома теплоємність бензольних вуглеводнів при при температурі t, 0,246
кДж/(кг·град).
q3 = 2200· 0,246t ·
4,19=2267t кДж/год.
г) тепло, що
вноситься сірководнем:
q1 = mH2S.·CH2S
·t,
де CH2S _
питома теплоємність сірководню при при температурі t, 0,238 кДж/(кг ·град).
q4 = 1037 · 0,238t ·4,19
=1035t кДж/год.
д) тепло, що
вноситься аміаком:
q5 = m NH3.·C
NH3 ·t,
де CNH3
- питома теплоємність аміаку при температурі t, 0,503 кДж/(кг·град).
q5 = 448 · 0,503t ·
4,19 = 943t кДж/год.
є)
тепло, що вноситься піридиновими основами:
6
= m пір.·C пір ·t,
де C пір
_ питома теплоємність піридинових основ, 0,246 ккал/(кг·град).
6 =
29 · 0.246t · 4,19 = 297t кДж/кг·град.
Всього вноситься
газом тепла:
1
= q1 + q2 + q3 + q4 + q5,1
= 9657 t + 6681374 + 4919t + 2267t + 1035t + 943t + 297t =
= 6681374 + 106032t кДж/год.
Тепло, що вноситься
сірчаною кислотою:
Q2 = m H2SO4 ·C H2SO4 ·t H2SO4,
де m H2SO4 -
маса сірчаної кислоти, 2493 кг; H2SO4 - температура сірчаної кислоти
на вході, 20 °С
СH2SO4 -
питома теплоємність сірчаної кислоти при температурі tH2SO4, 0,458
кДж/(кг·град).
Q2 = 2493·0,458·20·4,19
= 95532 кДж/год.
Тепло, що вноситься
маточним розчином з каструлі зворотних токів:
Q2 = m мат.р. ·C мат.р.·t мат.р.,
де
m мат.р. - маса маточного розчину з каструлі зворотних токів, нижче,
C мат.р.-
питома теплоємність маточного розчину, 0,64 кДж/кг град;
t мат.р.
- температура маточного розчину, що приймається на 10 єС ніж у сатураторі, 45
єС;
Q3 = 23436,6· 0,64·
45· 4,19 = 2828110 кДж/кг.
Тепло, що вноситься
циркулюючим розчином.
Приймаємо кількість
розчину, що циркулює, рівним 30-кратній кількості по відношенню до сульфату
амонію, тобто:
m цирк.р.= 30 m с.а.,
цирк.р.= 30 ·2552 =76560 кг/год.
Тоді,
Q2 = m цирк.р ·C цирк.р.·t цирк.р.,
де m цирк.р
- маса циркулюючого маточного розчину, кг/год;
C
цирк.р - питома теплоємність маточного
розчину, 0,64 кДж/(кг·град); цирк.р - температура циркулюючого
маточного розчину, що приймається
на 6-7 °С нижче,
ніж температура у ванні сатуратора, 48 °С.
Q4 = 76560 · 0.64 ·
48 · 4,19 = 9853864 кДж/год.
Тепло, яке вносять
аміачно-водяні пари з дефлегматору при t = 95° С:
а) тепло, яке
вносять пари аміаку:
q1 = 146 · 0,508 ·95
· 4,19 = 29330 кДж/год.
б) тепло, яке
вносить сірководень:
q2 = 44 · 0,24 ·
95 · 4,19 = 4190 кДж/год.
в) тепло, що
вносять пари води:
q3 = 765 · (595+0,44·95)
·4,19 = 2041268 кДж/год.
г) тепло, що
вносить діоксид вуглецю:
q4 = 51 · 0,418 ·95
· 4,19 = 8380 кДж/год.
д) тепло, що
вносять піридинові основи:
5
= 4,1 · 0,246 · 95 · 4,19 = 419 кДж/год.
Всього вноситься
аміачно-водяними парами:
5
= 29330 + 4190 + 2041268 + 8380 + 419 = 2083587 кДж/год.
Тепло хімічних
реакцій. Це тепло складається з тепла розведення сірчаної кислоти, тепла
реакції аміаку з сірчаною кислотою та тепла кристалізації сульфату амонію
а) тепло розведення
сірчаної кислоти з 76 %-ої до 6 %-ої:
де n1
- відношення кількості молей до кількості молей кислоти у 6-%-ній сірчаній
кислоті; n2 - теж саме у 76 %-ній сірчаній кислоті.
.
.
кДж/год.
Тоді:
,
де
- маса
сірчаної кислоти, що подається до сатуратору, кг;
- молярна маса сірчаної кислоти, що
подається до сатуратору, кг.
кДж/год.
б) тепло
нейтралізації аміаку сірчаною кислотою
,
де q2 -
тепловий ефект реакції, кДж/кмоль, q2 = 195673 кДж/кмоль.
сірчаної кислоти та
на 448+146-2=592 NH3, які реагують у сатураторі, загальна кількість
тепла:
кДж/год.
в) тепло
кристалізації сульфату амонію:
,
де q3
- мольна теплота кристалізації сульфату амонію, кДж/кмоль;c.a. -
маса сульфату амонію, що утворилася у сатураторі, кг.
кДж/год.
Загальне тепло
хімічних реакцій дорівнює:
Q6 = 708943 +
3406752 +189952 = 4305647 кДж/год.
Загальний прихід
тепла у сатуратор складає:
.
Qприх = 6681374 + 106032t
+ 95532 + 2828250 + 9854461 + 2083687 + 4305907 = 25849211 + 106032t .
Витрати тепла.
Тепло, що уноситься
коксовим газом із сатуратору. Приймаємо температуру коксового газу такою ж, як
і температура ванни сатуратору, тобто 55 °С. Тоді:
а) тепло, що
уноситься сухим коксовим газом:
1= 32926·0,7·55·4,19
= 5311458 кДж/год.
де tB. -
температура у ванні сатуратору, °С, tB = 55 °С.
б) тепло, що
уноситься водяною парою:
,2 = 4475 ·(595+0,438·55)
·4,19 = 11608689 кДж/год.
в) тепло, що
уноситься бензольними вуглеводними:
,3= 2200 · 0,246 ·
55 · 4,19 = 124720 кДж/год.
г) тепло, що
уноситься сірководнем:
,4= 1081 ·
0,238 · 55 · 4,19 = 59290 кДж/год.
д) тепло, що
уноситься аміаком:
,4= (2·0,508
+ 2,9·0,246) ·55·4,19 = 398 кДж/год.
де тт
- маса аміаку у газі на виході з сатуратору, кг, тт = 2
кг.
Всього
уноситься газом тепла:
,
Q7 = 5311458+ 11608689+
124720 + 59290 + 398 = 17104555 кДж/год.
Тепло, що уноситься
маточним розчином разом з сульфатом амонію:
,8 = 25520 · 0,64 ·
55 · 4,19 = 3763994 кДж/год.
де mмат.р.-
маса маточного розчину на виході з сатуратору, кг.
Тепло, що уноситься
циркулюючим розчином:
,9 = 76560 ·
0,64 · 55 · 4,19 = 11292081 кДж/год.
Тепло, що
утрачається зовні.
Це тепло
визначається по формулі:
,
де tст - температура
зовнішньої стінки сатуратору, приймаємо 50 єC;пов - температура
оточуючого повітря, приймаємо - 20 єC (для зимових умов);
α - коефіцієнт
тепловіддачі конвекцією і випромінюванням, приймається равним 21 кДж/(м2·год·град);-
зовнішня поверхня сатуратору, м2 , приймаємо F =250 м2.
Тоді:
10
= 21 · 250 · (50+20) = 367500 кДж/год.
Загальна витрата
тепла складе:
,
Qвит = 17104555 + 376994
+ 11292081 + 367500 кДж/год.
Прирівнюючи прихід
і витрати тепла, визначаємо температуру коксового газу, що поступає з
підігрівача.
25849211 + 106032t = 32528130
кДж/год)
Звідсіля: t = 63,0
°С.
Отримані результати зводяться до
таблиці теплового балансу (табл.8.1).
Таблиця 8.1 - Тепловий баланс
сатуратору
|
Прихід
|
кДж/год
|
Витрати
|
кДж/год
|
|
Тепло коксового газу
|
13361390
|
Тепло коксового газу
|
17104555
|
|
Тепло сірчаної кислоти
|
95532
|
Тепло маточного розчину
|
3763994
|
|
Тепло маточного розчину
|
2828110
|
Тепло циркуляційного розчину
|
11292081
|
|
Тепло циркуляційного розчину
|
9853864
|
Тепло, що утрачається зовні
|
367500
|
|
Тепло аміачно-водяних парів
|
2083587
|
|
|
|
Тепло хімічних реакцій
|
4305647
|
|
|
|
Всього:
|
32528130
|
Всього:
|
32528130
|
9. КОНСТРУКТИВНІ РОЗРАХУНКИ АПАРАТІВ
.1 Конструктивний розрахунок
сатуратору
Об’єм газу, що поступає з
підігрівача, становить:
.
де P1 -
тиск газу перед сатуратором, мм рт. ст. t1 - температура газу після
підігрівача, єС; V0 вх - об’єм газу на вході до сатуратору при
нормальних умовах, м3. Об'єм парів, що поступають з дефлегматора:
м3/год.
Діаметр
газопідвідного газопроводу розраховуємо виходячи зі швидкості газу, що дорівнює
16 м/с визначаємо по формулі:
,
м.
де υ1
- швидкість газу у газопроводі, м/с. Діаметр центральної газопідвідної труби у
середині сатуратору визначається по формулі:
,
м.
де υ2
- швидкість газу у центральній газопідвідній трубі, м/с. Діаметр корпусу
сатуратору визначаємо з загального його перерізу, що дорівнюється сумі
перерізів центральної труби та кільцевого перерізу..Тоді необхідний кільцевий
переріз становить:
,
де Vвих - об’єм газу на виході з
сатуратору при фактичних умовах, м3/год.
Він розраховується по формулі:
,
м3/год.
де P2 - тиск газу після сатуратору,
мм рт.ст.; t2 - температура газу після сатуратору (у ванні), єС; V0вх
- об’єм газу на виході з сатуратору при нормальних умовах, нм3.
Загальний переріз сатуратору становить:
, Sзаг =26+2,9=28,9 м2.
де S2 - площа перетину центральної
газопідвідної труби, м. Діаметр сатуратору розраховується по рівнянню:
,
м,
9.2
Конструктивний розрахунок сушарки
Дані для розрахунку:
а) продуктивність по
вихідному матеріалу - GH = 2605 кг/год;
б) вологість матеріалу (на загальну
масу):
початкова - wn
= 2 %;
кінцева - wk
= 0,1
%;
в) температура матеріалу:
початкова - tn
= 20° С;
кінцева - tk
= 60° С;
г) температура повітря:
до входу в калорифер при φ
= 50% - t0 = 25 °С;
на виході з калорифера
при
вході в барабан - tl = 120 °С;
на виході з барабана -
t2 = 60 °С;
д) густина матеріалу (насипна маса) -
р = 1000 кг/м3;
Тиск пари, що гріє, - рп
= 4 атм;
є) напруга барабана по волозі - А = 35
кг/(м3-год);
ж) коефіцієнт заповнення барабана - β
= 0,5;
з) насадка барабана - підйомно-лопастна.
Знайдемо розміри сушильного
барабана.
Об’єм барабана:
Vб
= W/A,
Vб
= 46,5/35 = 1,3 м3.
Відношення довжини барабана до
діаметра повинне бути L/d = 3,5
- 7; приймаємо L/d = 5. Діаметр барабана знаходять зі співвідношення:

,
,
м.
Довжина барабана:
=
5d = 5 · 0,69
= 3,45
м.
По нормалях заводу
"Прогрес" вибирають сушильний барабан з діаметром d = 1000
мм і довжиною L = 4000
мм.
Число оборотів барабана за
1
с:
,
де а - коефіцієнт;
tgα - тангенс
кута нахилу барабана;
τ - час
перебування матеріалу в барабані, с.
Час перебування матеріалу в барабані:
,
де Gcp - середня маса
матеріалу, що проходить через барабан, кг,год;
β
= 0,15- коефіцієнт заповнення барабана;
ρcp
- середня насипна щільність матеріалу, кг/м3 , ρcp
= 1000 кг/м3.
Gcp
= (Gн + Gк)/2,cp =
(2605+2555,5)/2 = 2580,25 кг/год = 0,72 кг/с.
Тоді:
τ
=1,3·1000·0,15/0,72 = 237,8 с = 4 хв.
Барабани мають кут нахилу до обрію
0,5 - 6 °; приймаємо α
= 2 °, а tg
α = 0,035. Тоді:
n
= 4/(1,2·237,8·1·0,035)
= 0,4 об/с = 24 об/хв,
де 1,2 - коефіцієнт для
підйомно-лопастної насадки.
Для визначення витрати повітря і
тепла на сушіння будують діаграму сушильного процесу І- х (рис. 9.1).
Рисунок 9.1 - Схема визначення
витрати повітря і тепла в калорифері.
Для визначення крапки А задано t0
= 25 °С, φ = 50 %.
З діаграми визначають І0 = 50,7 кДж/кг сухого повітря і х0
= 0,01 кг вологи/кг сухого повітря.
Крапку В знаходять по заданій
температурі tl = 120° С и х1 = х0, з діаграми
визначають І1 = 148 кДж/кг сухого повітря. Крапку С (закінчення
ідеального сушильного процесу) знаходять по заданій температурі t2 =
60° С и І2 = І1. Щоб знайти напрямок реального процесу в
сушарці, з довільної крапки е, що лежить на лінії теоретичного процесу,
опускають перпендикуляр ef на лінію АВ, вимірюють його і визначають величину
відрізка її по формулі:
еЕ
= ef Δ.
Тут,
;
де св - теплоємність
води, кДж/(кг·гpaд); д - додаткове підведення тепла, кДж/кг
вологи (у барабанній сушарці q= 0);
∑q - сума втрат тепла (з
висушеним матеріалом, у навколишнє середовище і з транспортними
пристосуваннями), кДж/кг вологи.
У барабанній сушарці втрат тепла,
зв'язаних із транспортними пристосуваннями, немає, тобто qд = 0.
Втрати тепла з висушеним матеріалом:

,
Розрахуємо теплоємність сульфату
амонію:
,
де ∑са
- сума атомних теплоємкостей, кДж/(мольатом · град);
М -
молекулярна маса, кг/кмоль.
Значення атомних теплоємкостей
приймаємо по літературі [5]:
с
= (8Н+4О+S+2N)/M;
с
= (8·9,6+4·16,8+22,6+2·26)/132 = 1,656 кДж/(кг · град).
Теплоємність висушеного матеріалу
при вологості 0,1 % дорівнює теплоємкості сульфату амонію.
Після підстановки одержуємо:
qм
= (2555,5·1,656· (60-20))/49,5 = 3420
кДж/кг вологи.
Визначають відрізок еЕ:
еЕ
= (0,03 - 00,1)(4,19·20 - (3420 + 54,7)) = -67,8 кДж/кг сухого повітря
Тут ef = x'2 - х0
береться для довільно обраної крапки е на лінії І1 - const.
св = 4,19 кдж/(кг·
град)-теплоємність вологи при t0 = 20 °С.
Якщо А > 0, відбувається
додатковий підігрів і відрізок її відкладається від крапки е вертикально
нагору; у даному випадку А < 0, тому відрізок її відкладають униз. Крапку В
з'єднують з отриманою крапкою Е и продовжують пряму до перетинання з заданою
ізотермою t2. Отримана крапка С характеризує стан повітря після
сушіння:
І2 = 142 кдж/кг сухого
повітря;
х2 = 0,031 кг вологи/кг
сухого повітря.
Витрата сухого повітря:
L
= Wl = W·
1/(x2 -
x0),
L
= 49,5/(0,031-0,01) = 2357 кг/год.
Обсяг вологого повітря, що проходить
через сушарку за 1 год, знаходять по таблиці:
V
= LVуд,
де Vуд
- питомий обсяг вологого повітря, віднесений до 1 кг сухого повітря.
На вході у калорифер V1
= 2059 м3/год.
На виході з калорифера V2
= 2720 м3/год.
На виході з барабана V3
= 2300 м3/год.
Витрата тепла в калорифері:
,
кДж/год = 63,7 кВт
Витрата пари в калорифері:
Gп
= Qk/r,
де r
=2171 кДж/кг - теплота паротворення при р = 3 атм.
Gп
=
229350/2171 = 105,6 кг/год.
9.3
Конструктивний розрахунок циклофільтру
Для вловлювання пилу сульфату амонію
після барабанної сушарки передбачається циклофільтр, конструктивно який
представляє собою циклон сполучений з рукавним фільтром.
Оптимальна швидкість газу в циклонах
приймається з умови:
.
Коефіцієнт опору циклонів ξ
= 105.
Швидкість газу, приведена до повного
перетину циклона:
,
м/с.
На виході з барабана обсяг вологого
повітря V3
= 2300 м3/год.
Загальний перетин циклофільтра:
,
м2.
Діаметр циклофільтра:
,
м.
Приймаємо
циклофільтр стандартним діаметром 600 мм.
10.
ВИБІР ОСНОВНОГО ТЕХНОЛОГІЧНОГО І ДОПОМІЖНОГО ОБЛАДНАННЯ
Основним апаратом технологічної
схеми є сатуратор - апарат з центральним барботажним парасолем, перемішуванням
за допомогою насоса і виносної пастки. Коксовий газ надходить у сатуратора по
центральної вертикальної газопідводящій трубці, що закінчується
газорозподільним парасолем, зануреним у матковий розчин. Парасоль має
направляючі лопатки, виходячи з яких газ барботує через розчин і повідомляє
йому обертальний рух.
У результаті рівномірного розподілу
газу і контакту його з матковим розчином, що містить вільну сірчану кислоту,
відбувається поглинання аміаку і піридинових основ з коксового газу.
Із сатуратора коксовий газ виходить
через два діаметрально розташованих штуцери, що знаходяться на кришці
сатуратора, і направляється далі в пастку для відділення від бризів маткового
розчину. Пари аміаку з дефлегматора аміачної колони також надходять у
сатуратора через відповідний штуцер.
Свіжу сірчану кислоту подають у
сатуратора через розподільне кільце, розташоване над барботажним парасолем.
Рівень маткового розчину в
сатураторі підтримується постійним завдяки безперервному відводові надлишкового
розчину через перелив у гідравлічний затвор циркуляційної каструлі. З
циркуляційної каструлі розчин повертається в сатуратора насосом через ажитатор.
Кристали сульфату амонію, що
утворяться в сатураторі, відкачуються насосом з нижньої частини сатуратора у
виді пульпи в кристалоприймач.
Основні
параметри сатуратора розраховані у пп.9.1.
Для отжима вологих кристалів
сульфату амонію використовується центрифуга безперервної дії, горизонтальна з
пульсуючим вивантаженням осаду з наступними характеристиками:
- внутрішній діаметр ротора -
800 мм;
- внутрішня робоча висота
ротора - 400 мм;
робоча ємність ротора -
55 дм3;
діаметр отворів в обичайці -
10 мм;
число оборотів ротора -
1200 об/хв;
окружна швидкість ротора -
54 м/с;
продуктивність по готовій
продукції - 2-3,5 т/год;
потужність головного
електродвигуна - 36 кВт.
Для підігріву коксового газу перед
сатуратором застосовується решофер - кожухотрубчатий теплообмінник твердої
конструкції з такими характеристиками:
- поверхня нагрівання -
140 м2;
- число ходів -
8;
перетин труб одного ходу
- 0,019 м2;
температура в міжтрубному
просторі, не більш 200 ˚С;
тиск пари, що гріє -
0,3 МПа.
Для сушіння кристалів сульфату
амонію встановлена барабанна сушарка. Основні параметри сушарки розраховані в
пп.9.2.
11.
КОМП’ЮТЕРІЗАЦІЯ
КОНСТРУКТИВНИХ ПАРАМЕТРІВ САТУРАТОРУ
Метою даного розділу є визначення
оптимальних конструктивних параметрів сатуратору , який служить для вилучення
аміаку з кокосового газу, за допомогою програми яка розроблена у стандартному
програмному пакеті MatCad.
11.1
Визначення алгоритмічних задач управління
У процесі конструктивного розрахунку
сатуратору будуть розраховані наступні параметри:
D1
- діаметр підводячого газопроводу, м;
D2
- діаметр трубопроводу для аміачно-водяних парів,
м;
D3
- діаметр центральної газопідводячої труби
усередині сатуратору, м;
S3
- перетин центральної газопідводячої труби усередині сатуратору, м2;
Sк
-
кільцевий перетин, м2;
S - загальний
перетин сатуратору, м2;
D
- діаметр сатуратору, м.
Математичне
забезпечення та алгоритм конструктивного розрахунку сатуратора розглянуті у
розділі 9.1.
11.2
Ідентифікація перемінних
По алгоритмічним задачам та
математичному забезпеченню складаємо ідентифікацію перемінних, яка наведена у
таблиці 11.1.
Таблиця 11.1 - Ідентифікація
перемінних
|
Перемінна у математичному описі
|
Перемінна у програмі
|
Зміст перемінної
|
Розмірність
|
Значення
|
|
V0
|
V0
|
нм3/год
|
150000
|
|
V0’
|
V8
|
Об’єм газу, що виходить з сатуратору
|
нм3/год
|
165881,4
|
|
P0
|
P0
|
Тиск газу при нормальних умовах
|
Па
|
101308
|
|
T0
|
T0
|
Температура газу при нормальних умовах
|
К
|
273
|
|
t1
|
T1
|
Температура газу перед сатуратором
|
70
|
|
|
P1
|
P1
|
Тиск газу перед сатуратором
|
Па
|
120770
|
|
t2
|
T2
|
Температура парів, що надходять з дефлегматору
|
95
|
|
|
P2
|
P2
|
Тиск парів, що надходять з дефлегматору
|
Па
|
120770
|
|
t3
|
T3
|
Температура відходячих газів
|
55
|
|
|
P3
|
P3
|
Тиск відходячих газів
|
Па
|
114905
|
|
VNH3
|
V4
|
Об’єм аміаку, що надходить в сатуратор з
парами
|
нм3/год
|
816
|
|
VH2O
|
V5
|
Об’єм води, що надходить в сатуратор з парами
|
нм3/год
|
4049
|
|
VCO2
|
V6
|
Об’єм діоксиду вуглецю, що надходить в
сатуратор з парами
|
нм3/год
|
111
|
|
VH2S
|
V7
|
Об’єм сірководню, що надходить в сатуратор з
парами
|
нм3/год
|
123
|
|
υ1
|
υ1
|
Швидкість газу в підводячому газопроводі
|
м/с
|
12-20
|
|
υ2
|
υ2
|
Швидкість парів в підводячому газопроводі
|
м/с
|
8-12
|
|
|
|
|
|
|
По математичному забезпеченню та
ідентифікації перемінних складаємо блок-схему, яка наведена у додатку Е. По
блок-схемі складаємо програму розрахунку оптимальних конструктивних параметрів
сатуратора в стандартному пакеті Matcad.
Програма та результати розрахунку програми наведені у додатку Ж.
За результатами розрахунку будуємо
графіки залежності площі перерізу сатуратору від швидкості коксового газу в
підводячому газопроводі (11.1), діаметру трубопроводу для аміачно-водяних парів
від швидкості парів (11.2), діаметру сатуратору від швидкості коксового газу в
підводячому трубопроводі (11.3).
Рисунок 11.1 - Графік
залежності площі перерізу сатуратору від швидкості коксового газу в підводячому
газопроводі
Рисунок 11.2 - Графік
залежності діаметру трубопроводу для аміачно-водяних парів від швидкості парів
Рисунок 11.3 - Графік
залежності діаметру сатуратору від швидкості коксового газу в підводячому
трубопроводі
Виходячи з проведеного
аналізу до установки принятий сатуратор стандартним діаметром 6000 мм.
12.
НОРМИ ТЕХНОЛОГІЧНОГО РЕЖИМУ
Сульфатне відділення призначене для
витягу аміаку з коксового газу і отримання сульфату амонію. Норми
технологічного режиму відділення наведені у таблиці 12.1.
Таблиця 12.1
-Норми технологічного режиму сульфатного відділення
|
Відділення, стадія
|
Найменування показників
|
Значення показників
|
|
Сульфатне відділення Центрифуга
|
Температура газу після решофера, °З
Температура маткового розчину, З Кислотність масточного розчину у ванні
сатуратора,% Кислотність у відстійниках маткового розчину, % Режим висновку
кислої смолки на відстійники маткового розчину Вміст у матковому розчині, не
більш, г/л Опору агрегатів по газі, не більш, мм.вод.ст.: - решофера - сатуратора
- пастки кислотної Включення центрифуги в роботу при змісті солі в матковому
розчині, % Температура води на промивання солі в центрифузі, С Залишковий
зміст вологи в солі після центрифуги Те ж, кислоти, не більш, %
|
60±0° 55±5 3,5-4,0 7-9 постійний 1,0 50 600
50 30-40 70-80 2-3 0,05
|
|
Сушильне відділення
|
Розрядження в завантажувальній камері, мм
вод.ст. Розрядження в розвантажувальній камері, мм вод.ст. Температура
повітря в сушильному барабані, С Температура підшипників сушильного барабана,
не більш С Прилегание робочої поверхні бандажів до поверхні опорних роликів,
не менш, % Максимальне заповнення обсягу сушарки, не більш, % Витрата
повітря на 1 т сульфату амонію, м Вологість сульфату після сушильного
барабана, не більш, %
|
55-70 45-60 105-125 60 70 15 900 0,3
|
|
Очищення газу
|
Вміст аміаку в газі після сатураторів
(утрати), не більш, г/м3
|
0,03
|
13.
АНАЛІТИЧНИЙ (ЛАБОРАТОРНИЙ) КОНТРОЛЬ ЗА СТАДІЯМИ ВИРОБНИЦТВА
Для контролю якості кінцевого
продукту, а також для нормального протікання технологічного процесу
використовують лабораторний аналіз (табл.13.1).
Таблиця 13.1 - Лабораторний контроль
сульфатного відділення
|
Об’єкт контролю
|
Що визначають
|
Норми
|
Місце та засіб відбору проб
|
Періодичність контролю
|
Хто виконує аналіз
|
Стисла методика аналізу
|
|
Газ на вході в сатуратор Газ на виході з
сатуратора
|
Вміст аміаку Вміст аміаку
|
6,5-8,5 г/дм3 0,1-0,2 г/дм3
|
Трубопровід
|
1 раз на добу 1 раз на зміну
|
Лаборант ЦЗЛ
|
Титруванням кислотою в присутності метилового
червоного Титруванням кислотою в присутності метилового червоного
|
14.
АВТОМАТИЧНИЙ КОНТРОЛЬ ТА РЕГУЛЮВАННЯ
Прилади контролю та
автоматизації, що встановлюються, потрібні для підтримки технологічного режиму,
забезпечення безпечних умов технологічного режиму, обліку витрат сировини та
продукції, контролю проведення процесів у екологічно безпечних межах. Згідно з
цім у технологічній схемі сульфатного відділення необхідно контролювати та
регулювати ряд параметрів.
Вимірюється тиск
коксового газу до решофера, до сатуратора, до кислотної пастки та після неї.
Вимірюється
температура коксового газу після решофера.
Вимірюється
кислотність у циркуляційній каструлі.
У сушильному
барабані вимірюється температура повітря.
Для забезпечення
безпечної роботи установки передбачається контроль та сигналізація перевищення
рівня у циркуляційній каструлі.
Засоби контролю і
автоматизації наведені у таблиці 14.1. Автоматичний вимір деяких технологічних
параметрів, зокрема концентрацій речовин, автоматичне вимірювання є недоцільним
у зв'язку з тим, що відповідні прилади є або коштовними, або недостатньо
точними. Такі параметри перелічені у розділі «Аналітичний контроль».
15. ОХОРОНА ПРАЦІ
.1 Коротка характеристика виробництва і його шкідливі небезпечні
фактори
Призначення цеху
вловлювання хімічних продуктів коксування − охолодження коксового газу й
виділення з нього смоли, водяних пар, витяг аміаку, фенолів, нафталіну, а також
подача його до споживачів.
Цех вловлювання хімічних
продуктів коксування складається з наступних відділень: конденсації й
охолодження коксового газу, машинного з первинними газовими холодильниками,
сульфатного відділення, аміачно-знефенолюючої та установки переробки відходів
хімічного виробництва, біохімічної установки, складу хімічних реактивів.
Об’єктом, який
розглядається у роботі спеціаліста є сульфатне відділення. Воно призначено для
витягу аміаку з коксового газу.
В результаті хімічної
реакції взаємодії аміаку з сірчаною кислотою утворюється сульфат амонію, який
далі виділяється, сушиться і являється товарним продуктом.
Небезпечними й
шкідливими виробничими факторами відділення є:
аміак - має неприємний
запах, подразнює слизуваті оболонки й дихальні шляхи. Гранично допустима
концентрація (ГДК) у повітрі робочої зони 20 мг/м3;
сірчана кислота - масляниста, у
чистому виді прозора або слабо забарвлена рідина.
Пари сірчаної кислоти викликають
роздратування верхніх дихальних шляхів, кашель, утруднене подих, спазми
голосової щілини, почуття печіння в очах.
Головну ж небезпеку представляє
влучення сірчаної кислоти на шкіру. У цьому випадку виходять важкі хімічні
опіки, аж до обвуглювання шкірних покривів.
Особливо небезпечне влучення
сірчаної кислоти в очі.
Гранично допустима концентрація
сірчаної кислоти в повітрі виробничих приміщень - 1 мг/м3.
При влученні на шкіру сірчаної
кислоти необхідно рясно промивати водою, чим швидше й сильніше місце опіку буде
промито водою, тим менше буде ступінь опіку.
Крім того к фізичним
факторам можна віднести:
підвищенні рівні шуму та
вібрації за рахунок роботи насосів, які подають надсмольну воду до аміачної
колони та скрубера, що знефенолює;
підвищена температура
поверхонь теплообмінників, аміачної колони та скрубера, що знефенолює;
недостатня освітленість
робочого місця.
15.2 Заходи щодо покращення умов праці
.2.1
Організаційні та
технічні заходи
Вміст шкідливих речовин
у повітрі робочої зони не повинне перевищувати значень гранично допустимих
концентрацій (ГДК) (таблиця 15.1).
Таблиця 15.1 −
Гранично допустимі концентрації шкідливих речовин у повітрі робочої зони
|
№№
|
Найменування речовини
|
Величина ГДК, мг/м3
|
Клас небезпеки
|
Особливість дії на організм
|
|
1.
|
Ціаністий водень
|
0,3
|
І
|
Г
|
|
2.
|
Сірководень +
|
10
|
II
|
Г
|
|
3.
|
Фенол +
|
0,3
|
II
|
-
|
|
4.
|
Бензол +
|
15/5
|
II
|
К
|
|
5.
|
Аміак
|
20
|
IV
|
-
|
|
6.
|
Нафталін
|
20
|
IV
|
-
|
|
7.
|
Сірчистий ангідрид +
|
10
|
III
|
-
|
|
8.
|
Оксид вуглецю
|
20
|
IV
|
Г
|
|
9.
|
Піридин
|
5
|
II
|
-
|
|
10.
|
Пил сульфату амонію
|
-
|
-
|
-
|
|
11.
|
Оксиди марганцю
|
0,2
|
ІІІ
|
-
|
|
12.
|
Фтористий водень
|
0,5
|
І
|
Г
|
Умовні позначки:
Г − речовини з
гостроспрямованим механізмом дії, що вимагають автоматичного контролю за їхнім
змістом у повітрі;
К − канцерогени;
+ − вимагають спеціального захисту очей і шкіри.
Вміст шкідливих речовин
у повітрі робочої зони підлягає систематичному контролю.
При надходженні в
повітря робочої зони шкідливих речовин з гостроспрямованим механізмом дії
повинен бути забезпечений безперервний контроль речовин із сигналізацією про
перевищення ГДК.
Періодичність контролю шкідливих
речовин у повітрі робочої зони (за винятком речовин з гостроспрямованим
механізмом дії) здійснюється залежно від класу небезпеки шкідливої речовини
(таблиця 15.2).
Таблиця 15.2 − Періодичність
контролю шкідливих речовин
|
Клас небезпеки
|
Періодичність контролю
|
|
I II III IV
|
не рідше 1 разу в 10 днів не рідше
1 разу на місяць не рідше 1 разу в квартал не рідше 1 разу в квартал
|
Контроль за вмістом шкідливих
речовин у повітрі робочої зони здійснюється по методичних вказівках,
затвердженим зам. головного державного санітарного лікаря.
Приміщення, де мають
місце виділення парів, газів, аерозолів, повинні обладнатися загальнообмінною
механічною приточно-витяжною вентиляцією.
Фіксовані місця виділення
шкідливих речовин, повинні бути обладнані місцевою витяжною вентиляцією.
Працюючі й службовці
повинні проходити попередній при надходженні на роботу й періодичний медичні
огляди, одержувати безкоштовно молоко й забезпечуватися засобами індивідуального
захисту.
При здійсненні
технологічних процесів робітники піддаються впливу шуму, вібрації,
інфрачервоного випромінювання, підвищених і знижених температур, вологості.
Припустимі рівні звуку й
еквівалентні рівні звуку на робочих місцях для широкополосного постійного й
непостійного (крім імпульсного) шуму не повинні перевищувати значень,
зазначених у відповідних санітарних правилах та нормах і повинні становити не
більше 80 ДБА.
Рівні вібрації на
робочих місцях, порушувані роботою устаткування (електродвигунів, вентиляторів,
дробарок, машин і т.д.) не повинні перевищувати значень, зазначених у
відповідних вимогах безпеки, з урахуванням категорій вібрації.
Періодичність контролю
рівнів шуму, вібрації на робочих місцях становить не рідше 1 разу на рік.
У літній період
робітники піддаються впливу підвищених температур, а в зимовий період знижених
температур.
Показники мікроклімату
(температури повітря, відносної вологості, швидкості руху повітря) на різних
робочих місцях різних категорій ваги робіт у холодний і теплий періоди року не
повинні перевищувати значень, зазначених у загальних санітарно-гігієнічних
вимогах до повітря робочої зони.
Інтенсивність теплового
опромінення працюючих від нагрітих поверхонь технологічного устаткування,
ізоляції на постійному й непостійному робочому місцях не повинна перевищувати
35 Вт/м2 при опроміненні 50 % тіла й більше, 70 Вт/м2 −
при величині опромінюється поверхня, що, від 25 до 50 % і 100 Вт/м2 −
при опроміненні не більше 25 % поверхні тіла.
Інтенсивність теплового
опромінення працюючих від відкритих джерел (нагрітий метал,
"відкрите" полум’я й ін.) не повинна перевищувати 140 Вт/м2
при опроміненні не більше 25 % поверхні тіла з обов’язковим використанням
засобів індивідуального захисту, у т.ч. засобів захисту особи.
Контроль (вимір)
показників мікроклімату проводиться на початку, середині й кінці холодного й
теплого періоду року − не менш 3 разів у зміну (на початку, середині й
кінці).
Все технологічне устаткування,
електричний, вентиляційний і металевий трубопроводи повинні бути заземлені
шляхом сполуки струмопровідними перемичками на всьому протязі даної системи в
безперервне електричне коло й приєднані не менш, ніж у двох місцях до контурів
заземлення електроустаткування й блискавкозахисту з дотриманням вимог правил експлуатації.
Застосування безпечної напруги (12 В) при чищенні апаратури.
15.2.2 Розрахунок захистного заземлення
Розрахунок захистного
заземлення барабанної сушарки наведен нижче:
Визначення
розрахункового питомого опору грунта:
Rрозр. = Rвим. ∙ φ,
де Rвим. -
опір, що виміряли, Ом,
φ - кліматичний коефіцієнт, що дорівнює 1,5.
Rрозр. = 20 ∙ 1,5 = 30 Ом.
Визначення опору
розтікання одного заземлювача:
Rо = Rрозр. / 2 ∙ π ∙ l ∙ ln(2 ∙ l / d +1/2 ∙
ln(4 ∙ H + l)/( 4 ∙ H - l)),
де l - довжина зеземлювача, м,-
діаметр зеземлювача, м,- глибина зеземлювача, м.
= 1/2 ∙ l ,= 1/2 ∙ 2,7 = 1,35 м,о = 30 / 2 ∙
3,14 ∙ 2,7 ∙ ln(2 ∙ 2,7 / 0,05 + 1/2 ∙ ln(4 ∙
1,35 + 2,7)/( 4 ∙ 1,35 - 2,7)) = 8,293 Ом.
Визначення кількості
паралельно з’єднаних заземлювачів, які необхідні для отримання опору 4 Ом:
= Rо / Rдод.∙ η,
де η - коефіцієнт
використовування заземлювача, який дорівнює 0,8,дод. - додатковий
опір, Ом.
n = 8,293 / 4 ∙ 0,8 = 1,66 ≈ 2 шт.
Визначення довжини
з’єднювальної полоси:
l1 = a ∙ (n - 1),
де а - відстань між
заземлювачами.
l1 = 7 ∙ (2 - 1) = 7 м.
Визначення
опору з’єднювальної полоси:
Rпол. = Rрозр. / 2 ∙ π ∙ l1 ∙ ln (l12
/ d1∙ η1),
де
d1 - ширина полоси, м,
η1 - коефіцієнт
використовування з’єднювальної полоси, який дорівнює 0,8.
Rпол. = 30 / 2 ∙ 3,14 ∙ 7 ∙
ln (72 / 0,15 ∙ 0,8) = 3,798 Ом.
Визначення
результируючого опору заземленного пристрою:
рез. = (Rо
+ Rпол.) / (Rо ∙ Rпол∙ n ∙ η ∙ η1),рез. =
(8,293 + 3,793) / (8,293 ∙ 3,793 ∙ 2 ∙ 0,8 ∙ 0,8) = 0,3
Ом.
Робимо перевірку
виконання умови Rрез. < Rдод.:
рез. = 0,3
Ом < Rдод.= 4 Ом.
15.2.2 Розрахунок освітлення робочого приміщення
Контроль і керування
технологічним процесом здійснюється оператором з спеціального приміщення. В
ньому розташовані частково апаратура КВП, а також монітори, на яких відображаються
поточні параметри технологічного процесу. Розрахунок природного освітлення
робочого приміщення наведен нижче. Він ведеться за умовою, що площа одного
вікна S1 = 3 м2.
Визначення загальної
площі вікон приміщення:
Sв. = Eп. ∙ Kз. ∙ ηв. ∙ Kбуд. ∙ Sпр./ τо ∙ r1∙ 100,
де
Sв. - загальна площа вікон, м2;
Eп. -
коефіцієнт природного освітлення;з.- коефіцієнт запасу;
ηв. - світлова
характеристика вікон;буд. - коефіцієнт, який враховує затемнення
вікон протилежними будівлями;пр. - площа приміщення, м2;
τо - загальний
коефіцієнт світлопропущення;1 - коефіцієнт, який враховує підвищення
природного освітлення за рахунок відбиття від стін та стелі.
τо = τ1 ∙ τ2 ∙ τ3 ∙ τ4 ∙ τ5,
де τ1 - коефіцієнт світлопропущення матеріалу;
τ2 - коефіцієнт, який
враховує втрати світла в рамах світлопройома;
τ3 - коефіцієнт, який
враховує втрати в несущіх конструкціях;
τ4 - коефіцієнт, який
враховує втрати світла в сонцезахисних пристроях;
τ5 - коефіцієнт, який
враховує світло в захисній сітці, яка встановлюється під ліхтарями.
τо = 0,8 ∙ 0,8 ∙ 0,9 ∙ 1 ∙ 0,9 =
0,5,в. = 0,5 ∙ 1,4 ∙ 9,5 ∙
1,2 ∙ 24/ 0,5 ∙ 1,1 ∙ 100 = 3,48 м2.
Визначення кількості
вікон при площі одного вікно 3 м2:
n = Sв./S1,
де n - кількість вікон у
кабінеті, шт.;1 - площа одного вікна, м2.
n = 3,48 / 3 = 1,16 ≈ 2 шт.
Для необхідного
природного бокового освітлення робочого приміщення площею 24 м2
достатньо 2 вікна.
15.3 Заходи щодо пожежної безпеки
Категорії приміщень по
вибухопожежній і пожежній небезпеці визначені відповідно до вимог загальносоюзних
норм технологічного проектування. Класи зон приміщень − за правилами
експлуатації. Згідно цих документів устаткування сульфатного відділення є
невибухо- і непожежноопасною зоною. Їх класифікація наведена в таблиці 15.3.
Таблиця 15.3 - Класифікація
приміщень сульфатного відділення
|
Найменування відділень, установок
|
Категорія виробництв по вибухо- та
пожежонебезпечності,
|
Ступінь вогнестійкості будинків
|
Клас приміщень і зовнішніх установок по ПУЕ
для застосування електроустаткування
|
|
Установки сульфатного відділення, розташовані
в окремому будинку.
|
|
|
|
|
- склад сульфату амонію
|
Д
|
III
|
Невибухо- та пожежонебезпечна
|
|
- сушіння сульфату амонію (без спалювання
коксового газу)
|
Д
|
III
|
Невибухо- та пожежонебезпечна
|
|
- установка центрифуг
|
Д
|
III
|
Невибухо- та пожежонебезпечна
|
|
- насосна сульфатного відділення
|
Д
|
III
|
Невибухо- та пожежонебезпечна
|
|
Зовнішні установки сульфатного відділення
(поза будинком).
|
|
|
|
|
- збірники маткового розчину
|
В
|
-
|
П- III
|
|
- переробка надлишкової надсмольної води
|
Д1
|
-
|
Невибухо- та пожежонебезпечна
|
По протипожежній безпеці
передбачаються наступні заходи:
а) всі виробничі
приміщення й насосні обладнаються первинними засобами пожежогасіння;
б) передбачаються заходи
щодо грозозахисту будинків і споруджень і захисту від статичної електрики;
в) у вибухонебезпечних
відділеннях установлюється вибухобезпечне електроустаткування;
г) на всіх повітряниках
з бензольними вуглеводнями передбачаються вогневі запобіжники;
д) допоміжні приміщення
головних споруджень газопередачі (вентустановки, електропункти) ізолюються від
виробничого приміщення газокомпрессорної станції брандмауерною стіною й мають
самостійні входи зовні.
16. ОХОРОНА ДОВКІЛЛЯ
.1
Охорона атмосферного повітря
Сульфатне відділення призначено для
витягу аміаку з коксового газу з одержанням сульфату амонію. Реакція
відбувається при взаємодії сірчаної кислоти з аміаком в сатураторі. Сульфат
амонію, який при цьому утворюється, далі подається в центрифугу на віджим і
потім в сушарку. Технологічні установки відділення є стаціонарними джерелами
утворення забруднюючих речовин (табл. 16.1.) .
Таблиця 16.1
- Характеристика джерел викидів сульфатного відділення цеху вловлювання
|
Номер джерела викиду
|
Найменування джерела викиду
|
Об’єм газоповітряної суміші, м3/сек
|
Найменування забруднюючої речовини
|
Концентрація забруднюючої речовини, мг/м3
|
Потужність викиду
|
|
|
|
|
|
г/с
|
т/рік
|
|
1
|
2
|
3
|
4
|
5
|
6
|
7
|
|
0001
|
Повітряники збірника маткового розчину
|
0,012
|
Синильна кислота
|
425
|
0,0051
|
0,100
|
|
|
|
Сірководень
|
0,0013
|
0,039
|
|
|
|
Фенол
|
191
|
0,0023
|
0,070
|
|
0002
|
Повітряники смоловідделителів
|
0,008
|
Синильна кислота
|
475
|
0,0038
|
0,100
|
|
|
|
Сірководень
|
1062
|
0,0085
|
0,261
|
|
|
|
Нафталін
|
875
|
0,007
|
0,219
|
|
|
|
Фенол
|
59
|
0,00047
|
0,014
|
|
0003
|
Повітряники збірників "брудного
конденсату"
|
0,004
|
Синильна кислота
|
1425
|
0,0057
|
0,100
|
|
|
|
Сірководень
|
70
|
0,00028
|
0,0087
|
|
|
|
Фенол
|
40
|
0,00016
|
0,0048
|
|
0004
|
Повітряники бачка "брудного
конденсату"
|
0,003
|
Синильна кислота
|
433
|
0,0013
|
0,100
|
|
|
|
Сірководень
|
20
|
0,00006
|
0,0087
|
|
|
|
Фенол
|
17
|
0,00005
|
0,0048
|
|
Продовження таблиці 16.1
|
|
1
|
2
|
3
|
4
|
5
|
6
|
7
|
|
0005
|
Повітряники центрифуг
|
0,033
|
Синильна кислота
|
109
|
0,0036
|
0,093
|
|
|
|
Сірководень
|
109
|
0,00036
|
0,0072
|
|
|
|
Фенол
|
9
|
0,00030
|
0,0057
|
|
0006
|
Сушильний барабан
|
1,313
|
Сульфат амонію
|
152
|
0,200
|
5,240
|
|
0007
|
ГОУ складу сульфату амонію труба
|
1,253
|
Сульфат амонію
|
280
|
0,351
|
0,470
|
З метою затвердження нормативів ГДВ
забруднюючої речовини із стаціонарних джерел проводиться аналіз відповідності
фактичних викидів забруднюючих речовин в атмосферне повітря стаціонарними
джерелами до встановлених нормативів на викиди, у тому числу технологічних нормативів,
відповідно до законодавства України (табл. 16.2.).
Таблиця 16.2 - Порівняльна
характеристика фактичних викидів забруднюючих речовин в атмосферне повітря
стаціонарними джерелами з встановленими нормативами на викиди
|
Номер джерела викиду
|
Найменування забруднюючої речовини
|
Фактичний викид
|
Норматив
|
|
|
Масова концентрація в газопиловому потоку,
мг/м3
|
Величина масового потоку газів, що відходять
г/год
|
Масова концентрація в газопиловому потоку,
мг/м3
|
Величин масового потоку газів, що відходять г/год
|
|
1
|
2
|
3
|
4
|
5
|
6
|
|
0001
|
Синильна кислота
|
425
|
18
|
5
|
50 і більше
|
|
Сірководень
|
108
|
5
|
5
|
50 і більше
|
|
Фенол
|
191
|
8
|
20
|
до 100
|
|
0002
|
Синильна кислота
|
475
|
14
|
5
|
50 і більше
|
|
Сірководень
|
1062
|
31
|
5
|
50 і більше
|
|
Нафталін
|
875
|
25
|
20
|
до 100
|
|
Фенол
|
59
|
2
|
20
|
до 100
|
|
0003
|
Синильна кислота
|
1425
|
21
|
5
|
50 і більше
|
|
Сірководень
|
70
|
1
|
5
|
50 і більше
|
|
Фенол
|
40
|
0,6
|
20
|
до 100
|
|
0004
|
Синильна кислота
|
433
|
5
|
5
|
50 і більше
|
|
Сірководень
|
20
|
0,2
|
5
|
50 і більше
|
|
Фенол
|
17
|
0,2
|
20
|
до 100
|
|
0005
|
Синильна кислота
|
109
|
13
|
5
|
50 і більше
|
|
Сірководень
|
109
|
1
|
5
|
50 і більше
|
|
Фенол
|
9
|
1
|
20
|
до 100
|
|
0006
|
Сульфат амонію
|
152
|
720
|
-
|
-
|
|
0007
|
Сульфат амонію
|
280
|
1263
|
-
|
-
|
Згідно документу «Про затвердження
інструкції про загальні вимоги до оформлення документів у яких обґрунтовується
обсяги викидів, для отримання дозволу на викиди забруднюючих речовин в
атмосферне повітря стаціонарними джерелами для підприємств, установ та громадян
підприємців» пропозиції, щодо дозволення обсягів викидів забруднюючих речовин
від основних джерел викидів оформлюється у вигляді таблиці 16.3.
Таблиця 16.3 - Пропозиції щодо
дозволених обсягів викидів забруднюючих речовин, які віднесені до основних
джерел викидів
|
Номер джерел викиду
|
Найменування джерела викиду
|
Найменування Забруднюючої речовини
|
Гранично-допустимий викид відповідно до законодавства,
мг/м3
|
Затвердже ний гранично-допустимий викид, мг/м3
|
Термін досягнення затвердженого значення, рік
|
|
0001
|
Повітряники збірника маткового розчину
|
Синильна кислота
|
-
|
425
|
2011
|
|
|
Сірководень
|
-
|
108
|
2011
|
|
|
Фенол
|
20
|
191
|
2011
|
|
|
|
|
20
|
2013
|
|
0002
|
Повітряники смоловідделителів
|
Синильна кислота
|
-
|
475
|
2011
|
|
|
Сірководень
|
-
|
1062
|
2011
|
|
|
Нафталін
|
20
|
875
|
2011
|
|
|
|
|
20
|
2013
|
|
|
Фенол
|
20
|
59
|
2011
|
|
|
|
|
20
|
2013
|
|
0003
|
Повітряники збірників "брудного
конденсату"
|
Синильна кислота
|
-
|
1425
|
2011
|
|
|
Сірководень
|
-
|
70
|
2011
|
|
|
Фенол
|
20
|
40
|
2011
|
|
|
|
|
20
|
2013
|
|
0004
|
Повітряники бачка "брудного
конденсату"
|
Синильна кислота
|
-
|
433
|
2011
|
|
|
Сірководень
|
-
|
20
|
2011
|
|
|
Фенол
|
20
|
17
|
2011
|
|
0005
|
Повітряники центрифуг
|
Синильна кислота
|
-
|
109
|
2011
|
|
|
Сірководень
|
-
|
109
|
2011
|
|
|
Фенол
|
20
|
9
|
2011
|
|
0006
|
Сушильний барабан
|
Сульфат амонію
|
-
|
152
|
2011
|
|
0007
|
ГОУ Склад сульфату амонію
|
Сульфат амонію
|
-
|
280
|
2011
|
Для речовин, які не
підлягають регулюванню та на які не встановлені нормативи ГДВ відповідно до
законодавства - це синильна кислота, сірководень, сульфат амонію встановлюються
наступна величина масової витрати:
-для джерела 0001: синильна
кислота - 0,0051 г/с;
сірководень - 0,0013 г/с;
для джерела 0002: синильна
кислота - 0,0038 г/с;
сірководень - 0,0085 г/с;
для джерела 0003: синильна
кислота - 0,0057 г/с;
сірководень - 0,00028 г/с;
для джерела 0004: синильна
кислота - 0,0013 г/с;
сірководень - 0,00006 г/с;
для джерела 0005: синильна
кислота - 0,0036 г/с;
сірководень - 0,00036 г/с;
для джерела 0006: сульфат
амонію - 0,200 г/с;
для джерела 0007: сульфат
амонію - 0,351 г/с.
Для фенолу та нафталіну (джерело
0002) спостерігається перевищення нормативів викидів, які встановлені
законодавчо. Викиди повинні бути об’єднані в єдиний колектор і подані на
нейтралізацію у коксовий цех. Технічне переобладнання і запуск нової схеми
передбачається закінчити у 2013 році.
16.2
Оцінка впливу діяльності підприємства на стан водних ресурсів
Джерелом водопостачання технічної
води є мережі Макіївського РУ ГПП “Укрпромводчермет”. Свіжа технічна вода, що поставляється
Макіївським РУ ГПП “Укрпромводчермет”, використовується послідовно: спочатку в
машинному відділенні цеху уловлювання, потім на поповнення систем оборотного
водопостачання. Свіжа вода використовується для
потреб ТЕЦ і поповнення втрат в оборотних циклах.
При виробництві коксу і уловлюванні
хімічних продуктів 80 % води витрачається на охолоджування продукту в закритих
апаратах, де вона не стикається з продуктами і не забруднюється (за винятком
кінцевих холодильників газу). Частина води витрачається на гасіння коксу.
Система водопостачання оборотна з градирнями, а в циклах гасіння коксу - з
відстійниками.
Питна вода частково
подається від магістральних мереж Макіївського міськводоканалу і Макіївського
РУ ГПП “Укрпромводчермет”, а частково (90 м3/год) від введеної в дію
установки питної води (ФРІ ФЛАЙН), яка очищає технічну воду до води питної
якості.
В даний час на заводі експлуатується
8 оборотних циклів водопостачання.
В процесі виробничої діяльності
Ясинівського коксохімічного заводу утворюються госппобутові, виробничі, зливові
і дренажні води.
На заводі існує чотири каналізаційні
системи:
господарсько - побутова, по якій
стоки прямують по міських мережах на очисні споруди повного біологічного
очищення;
зливова: зливові і дренажні води
самоплив з майданчика заводу прямують для очищення в систему фенольних
відстійників, з подальшою подачею на гасіння коксу;
шламова каналізація служить для
транспортування води на гасильні башти і багатократної повторної подачі на
гасіння коксу; частково по шламопроводу вода подається на шламонакопичувач для
підтримки шару води;
фенольна каналізація є
внутрізаводською і призначена для транспортування хімзабрудненних стоків в
систему фенольних відстійників.
Фенольні стічні води переробляються
на паровій знефенолювальній установці, а потім очищаються на біохімічній
установці з подальшою доочисткою спільно з побутовими стоками. Знефенолювання
стічних вод здійснюється екстракційним методом з доочисткою біологічним
методом.
Промислові стічні води ТЕЦ
(надлишок) і лівнестоки з території промплощадки - об'єднаний випуск - після
механічного очищення (відстоювання) відводяться у відстійник на балці
Ковальовій, притока річки Кривий Торець.
У загальному стоці коксохімічного
виробництва містяться механічні домішки, масла, смолоподібні продукти,
вуглеводні, феноли, аміак, ціаниди, роданіди і інші компоненти. Після їх
знефенолювання і біологічного очищення вони повертаються на виробництво і
використовуються для гасіння коксу.
В даний час на заводі є
наступні стічні води:
госппобутові води
прямують без очищення на міські очисні
споруди - 4700 м3/добу;
- дощові води надходять
на гасіння коксу після очищення на БХУ;
- шламові води від
об'єктів шихти і коксоподачі надходять в існуючий шламовий відстійник - 55 м3/год;
- фенольні води після
механічного очищення від смоли і масел і
біохімічного очищення подаються на гасіння коксу - 130 м3/год.
Споживана заводом свіжа технічна
вода використовується
- для поповнення оборотних циклів -
100 м3/год;
для потреб ТЕЦ - 150 м3/год;
для переробки в питну воду - 90 м3/год;
- інші споживачі - 50 м3/год;
невраховані втрати - 15 м3/год.
Всього 405 м3/год.
Промислові стічні води ВАТ «ЯКХЗ» скидають у
балку Ковалеву, а звідти вони надходять у р. Кривий Торець. Перевищень
ГДС не спостерігається
Скидання забруднених стічних вод у
водний об'єкт не передбачається. Підприємство робить в межах діючого дозволу на
спецводокористування і виконує прийняті в ньому заходи. Додаткової дії на водне
середовище справжнім проектом непередбачено.
16.3
Поводження з відходами на підприємстві
Таким чином, золошлаки, будівельні
відходи, сміття дорожнє, зола ТЕЦ, побутові відходи, лом чорних металів,
відпрацьовані ГСМ, промаслені фільтри, ошурки промаслені, промаслене дрантя,
шлам миття а/м, можна віднести до відходів допоміжного виробництва, які
представлені у таблиці 16.5.
Таблиця 16.5 - Інвентаризація
відходів ВАТ «ЯКХЗ»
|
Найменування відходу
|
Клас небезпеки
|
Місце складування, транспортна тара
|
Масова витрата, кг/рік
|
|
Тара металева з-під лакокрасок
|
3
|
передача підприємству «Вторчермет», як
металобрухт
|
295
|
|
Кисле смоління
|
4
|
Виробництво СТУ-3
|
753,0
|
|
Полімери бензольного відділення
|
2
|
виробництво СТУ-3
|
1447,0
|
|
Шлам від очищення відстійників
|
2
|
термознищення в коксових печах
|
1400,0
|
|
Смолянисті відходи
|
2
|
термознищення в коксових печах
|
400,0
|
|
Фуси кам'яновугільні
|
2
|
термознищення в коксових печах
|
149,00
|
|
Промаслені ошурки
|
2
|
термознищення в коксових печах
|
21,88
|
|
Побутові відходи
|
4
|
вивіз на полігон ТБО м. Макіївки
|
2000
|
На балансі підприємства є наступні
місця складування:
Шламонакопичувач. Проектна площа
місця складування складає 98,55 га, проектний об'єм видалення відходів складає
75000 тис. тонн. Здійснюється зберігання «хвостів» флотації 6824236 т.
Григорієвські відвали. Проектна
площа місця складування складає 50,2214 га. Заскладировані відходи
вуглезбагачення породи 31180019 тонн. На відвалі складуються будівельні
відходи, дорожне сміття, відходи вогнетривкої і кислототривкої цегли. На
території відвалів розташовується накопичувач рідких відходів об'ємом 3500 тонн,
загальною площею 0,12 га.
17.
ОЦІНКА ФІНАНСОВОГО СТАНУ ПІДПРИЄМСТВА
Фінансовий стан підприємства -
сукупність показників, що відображають наявність, розміщення і використання
ресурсів підприємства, реальні й потенційні фінансові можливості підприємства:
задовільний фінансовий стан - це
стійка ліквідність, платоспроможність та фінансова стійкість підприємства, його
забезпеченість власними оборотними засобами та ефективне використання ресурсів
підприємства;
незадовільний фінансовий стан -
характеризується неефективним розміщенням ресурсів та неефективним
використанням їх, незадовільною платоспроможністю підприємства, наявністю
простроченої заборгованості перед бюджетом, з заробітної плати, недостатньою
фінансовою стійкістю у зв'язку з несприятливими тенденціями розвитку
виробництва та збуту продукції підприємства.
Фінансовий аналіз підприємства
складається з таких етапів:
- оцінка майнового стану
підприємства та динаміка його зміни;
- аналіз фінансових результатів
діяльності підприємства;
- аналіз ліквідності;
- аналіз ділової активності;
- аналіз платоспроможності
(фінансової стійкості);
-
аналіз рентабельності.
Оцінка майнового стану підприємства
дає змогу визначити абсолютні й відносні зміни статей балансу за визначений
період, відслідкувати тенденції їхньої зміни та визначити структуру фінансових
ресурсів підприємства. Для оцінки майнового стану доцільно розрахувати такі
показники (коефіцієнти), які характеризують виробничий потенціал підприємства:
коефіцієнт зносу основних засобів, коефіцієнт оновлення основних засобів та
коефіцієнт вибуття основних засобів.
Коефіцієнт зносу основних засобів
характеризує стан та ступінь зносу основних засобів і розраховується як
відношення суми зносу основних засобів до їхньої первісної вартості.
Коефіцієнт оновлення основних
засобів показує, яку частину від наявних на кінець звітного періоду становлять
нові основні засоби, і розраховується як відношення первісної вартості основних
засобів, що надійшли за звітний період, до первісної вартості основних засобів,
наявних на балансі підприємства на кінець звітного періоду.
Коефіцієнт вибуття основних засобів
показує, яка частина основних засобів вибула за звітний період, та
розраховується як відношення первісної вартості основних засобів, що вибули за
звітний період, до первісної вартості основних засобів, наявних на балансі
підприємства на початок звітного періоду.
За результатами аналізу робиться
висновок щодо абсолютної величини та структури балансу, динаміки зміни вартості
активів підприємства, окремих статей балансу підприємства порівняно з
попередніми періодами, зазначивши позитивні та негативні тенденції таких змін.
Особливу увагу слід приділити наявності та структурі простроченої
заборгованості підприємства.
Аналіз ліквідності підприємства
здійснюється за даними балансу та дозволяє визначити здатність підприємства
сплатити свої поточні зобов’язання. Аналіз ліквідності підприємства
здійснюється шляхом розрахунку таких показників: коефіцієнта покриття,
коефіцієнта швидкої ліквідності, коефіцієнта абсолютної ліквідності і чистого
оборотного капіталу.
Коефіцієнт загальної ліквідності
(покриття) розраховується як відношення оборотних активів до поточних
зобов’язань підприємства і показує достатність ресурсів підприємства, які
можуть бути використанні для погашення його поточних зобов’язань.
Коефіцієнт швидкої ліквідності
розраховується як відношення найбільш ліквідних оборотних коштів (грошових
коштів та їх еквівалентів, поточних фінансових інвестицій і дебіторської
заборгованості) до поточних зобов’язань підприємства. Від відбиває платіжні
можливості підприємства відносно сплати поточних зобов’язань за умови
своєчасного приведення розрахунків з дебіторами.
Коефіцієнт абсолютної ліквідності
розраховується як відношення грошових коштів та їх еквівалентів і поточних
фінансових інвестицій до поточних зобов’язань. Коефіцієнт абсолютної
ліквідності показує, яка частина боргів підприємства може бути сплачена
негайно.
Чистий оборотний капітал
розраховується як різниця між оборотними активами підприємства і його поточними
зобов’язаннями. Його наявність і величина свідчать про спроможність
підприємства сплачувати свої поточні зобов’язання та розширювати подальшу
діяльність.
Аналіз платоспроможності (фінансової
стійкості) підприємства здійснюється за даними балансу підприємства,
характеризує структуру джерел фінансування ресурсів підприємства, ступінь
фінансової стійкості та незалежності підприємства від зовнішніх джерел
фінансування діяльності. Аналіз платоспроможності (фінансової стійкості)
підприємства визначається за допомогою розрахунку наступних показників
(коефіцієнтів): коефіцієнта платоспроможності (автономії), коефіцієнта
фінансування, коефіцієнта забезпеченості власними оборотними коштами і
коефіцієнта маневреності власного капіталу.
Коефіцієнт фінансової стійкості
(платоспроможності або автономії) розраховується як відношення власного
капіталу до підсумку балансу і характеризує питому вагу власного капіталу в
загальній сумі коштів, авансованих в його діяльність.
Коефіцієнт структури капіталу
(фінансування) розраховується як співвідношення залучених та власних коштів і
характеризує залежність підприємства від залучених коштів.
Коефіцієнт забезпеченості власними
оборотними коштами розраховується як відношення величини чистого оборотного
капіталу до величини оборотних активів і показує забезпеченість підприємства
власними оборотними коштами.
Коефіцієнт маневреності власного
капіталу показує, яка частина власного капіталу використовується для
фінансування поточної діяльності, тобто вкладена в оборотні активи, а яка -
капіталізована. Коефіцієнт маневреності власного капіталу розраховується як
відношення чистого оборотного капіталу до власного капіталу.
Аналіз ділової активності дозволяє
проаналізувати ефективність основної діяльності підприємства, що
характеризується швидкістю обертання фінансових ресурсів підприємства.
Аналіз ділової активності
підприємства здійснюється шляхом розрахунку таких показників (коефіцієнтів):
коефіцієнта оборотності активів, коефіцієнта оборотності дебіторської
заборгованості, коефіцієнта оборотності кредиторської заборгованості,
тривалості обертів дебіторської та кредиторської заборгованостей, коефіцієнта
оборотності матеріальних запасів, коефіцієнта оборотності основних засобів
(фондовіддачі) та коефіцієнта оборотності власного капіталу.
Коефіцієнт оборотності активів
обчислюється як відношення чистої виручки від реалізації продукції (робіт,
послуг) до середньої величини підсумку балансу підприємства і характеризує
ефективність використання підприємством усіх наявних ресурсів, незалежно від
джерел їхнього залучення.
Коефіцієнт оборотності дебіторської
заборгованості розраховується як відношення чистої виручки від реалізації
продукції (робіт, послуг) до середньорічної величини дебіторської
заборгованості і показує швидкість обертання дебіторської заборгованості підприємства
за період, що аналізується, розширення або зниження комерційного кредиту, що
надається підприємством.
Коефіцієнт оборотності кредиторської
заборгованості розраховується як відношення чистої виручки від реалізації
продукції (робіт, послуг) до середньорічної величини кредиторської
заборгованості і показує швидкість обертання кредиторської заборгованості
підприємства за період, що аналізується, розширення або зниження комерційного
кредиту, що надається підприємству.
Строк погашення дебіторської та кредиторської
заборгованостей розраховується як відношення тривалості звітного періоду до
коефіцієнта оборотності дебіторської або кредиторської заборгованості і показує
середній період погашення дебіторської або кредиторської заборгованостей
підприємства.
Коефіцієнт оборотності матеріальних
запасів розраховується як відношення собівартості реалізованої продукції до
середньорічної вартості матеріальних запасів і характеризує швидкість
реалізації товарно-матеріальних запасів підприємства.
Коефіцієнт оборотності основних
засобів (фондовіддача) розраховується як відношення чистої виручки від
реалізації продукції (робіт, послуг) до середньорічної вартості основних
засобів. Він показує ефективність використання основних засобів підприємства.
Аналіз рентабельності підприємства
дозволяє визначити ефективність вкладення коштів у підприємство та
раціональність їхнього використання.
Аналіз рентабельності підприємства
здійснюється шляхом розрахунку таких показників (коефіцієнтів): коефіцієнта
рентабельності активів, коефіцієнта рентабельності власного капіталу,
коефіцієнта рентабельності діяльності та коефіцієнта рентабельності продукції.
Коефіцієнт рентабельності активів
розраховується як відношення чистого прибутку підприємства до середньорічної
вартості активів і характеризує ефективність використання активів підприємства.
Коефіцієнт рентабельності продукції
розраховується як відношення прибутку від реалізації продукції (робіт, послуг)
до витрат на її виробництво та збут і характеризує прибутковість господарської
діяльності підприємства від основної діяльності.
За даними про річну фінансову
звітність ВАТ «АКХЗ» розраховуємо коефіцієнти та заносимо до таблиці 17.1, у
якій проведений аналіз роботи ВАТ ЯКХЗ.
Таблиця 17.1 -
Аналіз фінансового стану підприємства
|
Показники
|
2008 рік
|
2009 рік
|
|
начало року
|
кінець року
|
начало року
|
кінець року
|
|
1
|
2
|
3
|
4
|
5
|
|
1 Аналіз майнового стану підприємства
|
|
1.1 Коефіцієнт оновлення основних засобів
|
0,041
|
0,021
|
|
1.2 Коефіцієнт зносу основних засобів
|
0,55
|
0,58
|
0,58
|
0,51
|
|
1.3 Коефіцієнт вибуття основних засобів
|
0,005
|
0,007
|
|
2 Аналіз ліквідності підприємства
|
|
2.1 Коефіцієнт покриття
|
1,08
|
1,43
|
1,43
|
1,11
|
|
2.2 Коефіцієнт швидкої ліквідності
|
0,97
|
0,90
|
0,90
|
0,65
|
|
2.3 Коефіцієнт абсолютної ліквідності
|
0,05
|
0,50
|
0,50
|
0,59
|
|
2.4 Чистий оборотний капітал
|
124703,0
|
306470,0
|
306470,0
|
427789,0
|
|
3 Аналіз платоспроможності (фінансової
стійкості) підприємства
|
|
3.1 Коефіцієнт платоспроможності
|
0,37
|
0,55
|
0,55
|
0,63
|
|
3.2 Коефіцієнт фінансування
|
1,67
|
0,80
|
0,80
|
0,58
|
|
3.3 Коефіцієнт забезпеченості власними
оборотними коштами
|
0,08
|
0,43
|
0,43
|
0,67
|
|
4 Аналіз ділової активності підприємства
|
|
4.1 Коефіцієнт оборотності активів
|
0,54
|
0,97
|
|
4.2 Коефіцієнт оборотності кредиторської
заборгованості
|
5,39
|
7,93
|
|
4.3 Коефіцієнт оборотності дебіторської
заборгованості
|
6,36
|
6,46
|
|
4.4 Термін погашення дебіторської
заборгованості(днів)
|
57
|
52
|
|
4.5Термін погашення кредиторської заборгованості(днів)
|
68
|
46
|
|
4.6 Коефіцієнт оборотності матеріальних
запасів
|
14,1
|
27,9
|
|
4.7 Коефіцієнт оборотності основних засобів
|
1,08
|
3,65
|
|
4.8 Коефіцієнт оборотності власного капіталу
|
0,91
|
2,13
|
|
5 Аналіз рентабельності підприємства
|
|
5.1 Коефіцієнт рентабельності активів
|
0,01
|
0,06
|
|
5.2 Коефіцієнт рентабельності власного
капіталу
|
0,02
|
0,14
|
|
5.3 Коефіцієнт рентабельності діяльності
|
0,02
|
0,08
|
|
5.4 Коефіцієнт рентабельності продукції
|
0,12
|
0,15
|
|
|
|
|
|
|
|
|
На підставі
узагальнення результатів аналізу фінансового стану підприємства за даними
заповненої таблиці робимо висновок, який містить у собі загальну оцінку
фінансового стану підприємства на останню звітну дату і динаміки його зміни та
рекомендації щодо покращення економічного стану. - Коефіцієнт оновлення
основних засобів перевищує коефіцієнт вибуття, що вказує на те, що підприємство
у поточному році більше набувало ніж продавало по різним причинам. Коефіцієнт
зносу при цьому трохи зменшився, що говорить про те, що майновий стан
підприємства покращився.
Виходячи з
розрахованих показників ліквідності можна зробити
висновок, що у підприємства досить ресурсів, які можуть бути використані
для поточних зобов'язань. Проте, необхідно звернути увагу на оборотний
капітал з метою розширення подальшої діяльності.
Коефіцієнт
маневреності власного капіталу підприємства показав, що
підприємство платоспроможне, тобто здатне оплачувати свої борги
власними коштами.
Аналіз ділової
активності підприємства показав, що показники
відповідають нормативним вимогам.
В цілому,
економічний стан задовільний. Підприємство є
прибутковим, оскільки коефіцієнт рентабельності діяльності більше 0.
ВИСНОВКИ
У роботі спеціаліста розглянутий
сатураторний метод одержання сульфату амонію в умовах ВАТ "Ясинівський
КХЗ".
Проаналізовані існуючі сучасні
методи одержання сульфату амонію, показані їх достоїнства та недоліки.
Представлена характеристика сульфату
амонію, який отримується на коксохімічних підприємствах, приведені технічні
умови на готовий продукт.
Наведено описання фізико-хімічних
основ процесу взаємодії аміаку та сірчаної кислоти в умовах сульфатного
відділення КХЗ, а також впливу на його швидкість окремих параметрів.
Розроблена технологічна схема
процесу отримання сульфату амонію, на основі якої представлений матеріальний
баланс основних стадій виробництва.
Проведені конструктивні розрахунки
сатуратора та барабанної сушарки, а також представлена технічна характеристика
на решофер та центрифугу.
Представлені данні лабораторного
контролю процесу та апаратура КВП, які забезпечують нормальне протікання
технологічного процесу та гарантують випуск якісної продукції.
В роботі проаналізований вплив ВАТ
"Ясинівський КХЗ" на стан атмосферного повітря та гідросферу, а також
представлені дані поводження с твердими відходами.
Розроблені заходи з охорони праці та
протипожежної небезпеки. Розроблені заходи щодо покращення умов праці.
В кінці роботи проаналізований
фінансовий стан ВАТ "Ясинівський КХЗ", як сукупність показників, що
відображають наявність, розміщення і використання ресурсів підприємства, його
реальні й потенційні фінансові можливості.
ПЕРЕЛІК
ПОСИЛАНЬ
1. Петренко,
Д.С. Производство сульфата аммония. - Г.: Металлургия, 1966. - 157 с.
. Лозорин,
С.Н. Сульфат аммония. - Г.: Металлургия, 1973. - 124 с.
. Коляндр,
Л.Я. Улавливания и переработка химических продуктов коксования. - Г.:
Металлургия, 1953. - 273 с.
. Основные
процессы и аппараты химической технологии/Под ред. Дитнерський Ю.И. - М.:
Химия, 1991. - 494 с.
. Павлов,
К.Ф. Примеры и задачи по курсу процессов и аппаратов химической технологи /
К.Ф. Павлов, П.Г. Романков, А.А. Носков. - Л..: Химия, 1987. - 576 с.
. Коробчанський,
И.Э. Расчет аппаратуры для улавливания химических продуктов коксования /
И.Э. Коробчанський, М.Д. Кузнецов. - Г.: Металлургия, 1972. - 296 с.
. Менчевич,
Б.И. Апаратчик коксохимического производства / Б.И. Менчевич, Р.Э.
Лейбович. - Г.: Металлургия, 1987.