Проект модернизации грохота самобалансного
Содержание
Введение
. Назначение, краткое
описание устройства и работы грохота
. Анализ уровня техники в
области грохотов
. Выбор прототипа. Описание
конструкции грохота
.1 Определение
производительности грохота
.2 Определение мощности
электродвигателя привода грохота
. Конструктивный расчет
грохота
.1 Расчет сил от вращения
дебалансов
.2 Расчет пружинных
амортизаторов
. Эскизное конструирование
грохота. Обоснование компоновочных решений
. Разработка мероприятий по
технике безопасности и охране окружающей среды при работе грохота
.1 Техника безопасности при
работе с грохотом
.2 Мероприятия по охране
окружающей среды
Заключение
Список литературы
Введение
Вибрационные грохоты получают всё более широкое применение в самых
разнообразных отраслях промышленности. Расширяется область применения
зарекомендовавших себя ранее виброгрохоты, вновь создают виброгрохоты, для
осуществления новых операций. Это обусловлено конструктивной простотой.
При всей своей конструктивной простоте грохоты представляют большие сложности
для расчёта, большое внимание уделяют разработке методов их расчёта. Условиями
процесса грохочения являются перемещение материала по разделительной
перегородке и его перемешивании, чтобы крупные частицы не препятствовали мелким
проходить сквозь отверстия. В современных грохотах эти условия выполняются за
счёт вибрации разделительных перегородок. В зависимости от типа вибратора
траектория движения точек разделительной перегородки близка к круговой или
прямолинейной. Одним из основных элементов вибрационных грохотов является
короб, на котором смонтированы сита или колосники. Короб снабжается либо
одновальным вибратором, обеспечивающим круговое движение, либо двухвальным
(самобалансным) вибратором, возбуждающим направление колебания. Для увеличения
скорости перемещения материала по разделительной перегородке и соответственно
производительности грохота короб обычно устанавливается под углом к горизонту.
При прохождении материала по разделительной перегородки не все мелкие
части проходят сквозь отверстия. Под коэффициентом качества грохочения понимают
отношение весового количества материала прошедшего сквозь разделительную
перегородку, к весовому количеству мелкой фракций, содержащейся в исходном
материале. Иногда этот коэффициент выражается в процентах.
Производительность, приходящаяся на единицу поверхности грохота,
взаимосвязана с коэффициентом качества грохочения. Чем выше производительность,
тем ниже коэффициент качества грохочения. При расчете оптимального угла наклона
короба и производительности грохота обычно учитывается ожидаемое качество
грохочения.
По способу установки грохоты могут быть либо закрепленными на фундаменте,
либо подвешиваемые к перекрытию. Изготовляются и универсальные грохоты,
пригодные для любого установки
Излагая новые достижения в области практики и теории грохочения, робота
будет способствовать успешному внедрению виброгрохотов в промышленность.
1. Назначение,
краткое описание устройства и работы грохота
Грохоты предназначены для разделения материалов по крупности кусков или
частиц. Принцип работы грохотов заключается в пропускании материала через
разделительную перегородку с определенным размером отверстия. Частицы, размером
которых меньше размера отверстия в сите, проходят сквозь него, а более крупные
задерживаются. Применяя перегородки с разными отверстиями, можно разделять
зернистый материал практически новое число фракций.
В качестве разделительных перегородок обычно применяются сотка или
колосники. Наибольшее распространение получила стальная сетка (ГОСТ 3306-70).
Для классификации тонко измельченных материалов применяется также сетка из
цветных металлов, щёлка и капрона. Весьма перспективно применение резиновой
сетки, долговечность которой, по данным промышленности, существенно выше
стальной. Колосники обычно применяются для классификации материала, содержащие
крупные куски.
По принципу действия, виду и типу грохоты делятся на: ситовые грохоты;
валковые грохоты; гирационные грохоты; вибрационные грохоты; барабанные
грохоты; грохоты самобалансные.
Наклонные грохоты с круговым движением короба стандартизованы - ГОСТ
10745-69 «Грохоты инерционные наклонные»
Грохоты с двухвальным вибратором стандартизованы - ГОСТ 15103-69 «Грохоты
самобалансные».
Грохоты самобалансные предназначены для разделения нерудных материалов на
товарные фракции. Конструкция грохотов самобалансные (рисунок 1.1) сложнее, чем
инерционных и гирационных, так как в них применены вибраторы 1 с направленными
колебаниями. Такая конструкция дала возможность расположить просеивающую
поверхность грохота горизонтально и тем самым уменьшить его установочные
размеры по высоте. Устанавливают самобалансные в основном на передвижных
дробильно-сортировочных установках.
Рисунок 1.1 - Самобалансный грохот (ГСС)-6: 1 - вибратор, 2 - короб,3 -
упругая опора, 4 - рама
Корпус 4 (рисунок 1.2) вибратора крепится к коробу грохота. В корпусе на
роликоподшипниках установлены два дебалансных вала 3. На конце одного из валов
имеется шкив 1, соединенный клиноременной передачей 4 (рисунок 1.3) со шкивом
приводного электродвигателя. Второй дебалансный вал приводится от первого
зубчатой передачей с передаточным отношением, равным 1, что обеспечивает
синхронное вращение дебалансных валов.
Рисунок 1.2 - Вибратор ГСС: 1 - шкив, 2 - зубчатая передача. 3 -
дебалансные валы, 4 - корпус
В некоторых случаях, в основном при грохочении мелких материалов,
применяют грохоты, у которых колебания просеивающей поверхности вызываются
электромагнитным вибратором (рисунок 1.4). При пропускании тока через катушку
электромагнит 3 притягивает якорь 2, соединенный тягой 1 с планками, между
которыми зажато сито 6. При движении вверх якорь ударяется об упоры, что
вызывает резкий толчок, при этом подача тока в катушку прекращается, и якорь
пружиной 5 отжимается. С помощью маховика 4 можно изменять зазор между якорем и
упорами, а, следовательно, и амплитуду колебаний сита.
Рисунок 1.3 - Кинематическая схема: 1,2 - зубчатые шестерни, 3 -
подшипник, 4 - клиноременная передача, 5 - электродвигатель, 6 - дебалансные
валы
Рисунок 1.4 - Электромагнитный грохот: 1 - тяга, 2 - якорь, 3 -
электромагнит, 4 - маховик, 5 - пружина, 6 - сито
2. Анализ
уровня техники в области грохотов
ОАО «ДРОБМАШ» расположен в г. Выкса Нижегородской области, основан в 1933
году, став первым отечественным предприятием по производству
дробильно-размольного оборудования. С момента пуска в эксплуатацию предприятием
произведено более 250000 единиц различного оборудования.
В настоящее время ОАО «ДРОБМАШ» - одно из крупнейших предприятий
дорожно-строительной отрасли. Предприятие специализируется на комплексной
разработке и выпуске агрегатов и технологических линий для переработки
минерального сырья, промышленных, строительных, твердых бытовых отходов, а
также иных специализированных линий для сортировки, погрузки и транспортировки
различных материалов. Номенклатурный перечень выпускаемой продукции предприятия
включает: щековые, роторные, конусные, молотковые дробилки, питатели, грохоты,
конвейеры, мельницы, передвижные и транспортные агрегаты, агрегаты управления и
другое оборудование, из которого комплектуются технологические линии и
мини-заводы по переработке различных материалов.
Безупречная репутация помогает предприятию постоянно расширять круг
деловых партнеров и сферу применения дробильно-сортировочного оборудования.
Наряду с традиционными областями - в строительстве и дорожном строительстве, в
последнее время оборудование ОАО «ДРОБМАШ» успешно используется в области
переработки металлургических шлаков, железобетонных опор контактной сети,
строительных и твердых бытовых отходов, а также для быстрой и равномерной
сортировки и погрузки различных материалов. География поставок оборудования ОАО
«ДРОБМАШ» на сегодня включает 82 страны мира.
ОАО «ДРОБМАШ» - уникальный завод, располагающий всеми основными
производственными комплексами, характерными для крупных машиностроительных
предприятий: сталечугунным, заготовительным, сборочно-сварочным,
сборочно-окрасочным, а также развитой инфраструктурой: ремонтным,
инструментальным цехами, энергетическим, железнодорожным, автомобильным и
складским хозяйствами.
Стратегия развития предприятия на ближайшие пять лет ориентирована на
снижение затрат, модернизацию производства, повышение эффективности за счет
автоматизации процессов, внедрение системы менеджмента качества продукции,
обеспечение стабильности кадров и повышение их квалификации.
ОАО
«ДРОБМАШ» выпускает грохоты различной конструкции, такие как инерционные,
самобалансные и колосниковые. Предприятие выпускает целый ряд грохотов
самобалансных: ИТБР-017 <#"578525.files/image005.gif">
Рисунок
2.1 - Грохот самобалансный ДРО-719
Другим современным производителем грохотов является ООО «Луганский
электромашиностроительный завод» - предприятие машиностроительного профиля,
которое выполняет задачи по освоению и выпуску продукции для предприятий
топливно-энергетического, горно-обогатительного и металлургического комплекса и
железных дорог.
В настоящее время предприятие располагает солидной производственной
базой, научно-техническим потенциалом и большим практическим опытом, имеет в
своем составе проектно-конструкторское бюро, контрольно-измерительные
лаборатории для обеспечения высокого качества выпускаемой продукции.
Основные направления работы предприятия - производство оборудования для
обогащения угля, руд, горно-химического сырья и прочих нерудных материалов,
обезвоживания, магнитной сепарации, переработки вторичного сырья, очистки
запыленных газов и сточных вод, запасных частей для железнодорожного
транспорта.
Предприятие не стоит на месте, разрабатывает новые, более современные и
эффективные, грохоты. Примером могут служить грохоты с неоднородным полем
электрических колебаний типа ГВИ (рисунок 2.2). Они предназначены для сухого
грохочения сыпучих материалов с насыпной массой до 2,8 т/м5 при угле наклона
просеивающей поверхности 12-30 градусов. Отличительные особенности: улучшенные
условия грохочения за счет изменяемого по величине и направлению от загрузки к
разгрузке поля эллиптических амплитуд; расположение вибровозбудителей вне зоны
грохочения на периферии боковин; повышенная прочность конструкции короба;
повышенная ремонтопригодность за счет блочной конструкции вибровозбудителей;
оснащенные высокоэффективными ситами (проволочными, резиновыми,
полиуретановыми).
Еще одной из новых разработок являются грохоты вибрационные инерционные
самобалансные самосинхронизирующиеся ГИСЛ81МТ и ГИСЛ82МТ( рисунок 2.3).
Рисунок 2.2 - Грохот с неоднородным полем электрических колебаний
Предназначены для мокрого и сухого грохочения сыпучих материалов с
насыпной массой до 2,8 т/м, обезвоживания, обесшламливания, а также отмывки
суспензии от продуктов обогащения. Отличительные особенности: улучшенные
условия грохочения за счет отсутствия средней (третьей) боковины по сравнению с
серийным грохотом ГИСЛ 82А при сохранении той же рабочей площади; повышенная
прочность конструкции короба с верхним ярусом на связь-балках; повышенная
ремонтопригодность за счет блочной конструкции вибровозбудителей; повышенная
долговечность подшипниковых узлов за счет опор на спаренных вибростойких
подшипниках с повышенной динамической грузоподъемностью.
Рисунок 2.3 - Грохот вибрационный инерционный самобалансный
самосинхронизирующиеся
Еще одной перспективной компанией, работающей в этой сфере, является НПО
«РИВС» - первая Российская компания, которая комплексно решает проблему обогащения
полезных ископаемых. Перспективность объединения можно оценить по
многонаправленности их деятельности, компания осуществляет:
•Проектирование и строительство новых предприятий;
•Реконструкцию существующих предприятий;
•Управление проектами;
•Разработку новых машин и механизмов;
•Изготовление оборудования;
•Модернизацию горнообогатительного оборудования;
•Исследование, разработку и внедрение новых технологий обогащения
полезных ископаемых;
•Разработку регламентов, внедрение и достижение технологических
показателей;
•Аудит обогатительного производства;
•Разработку АСУ-ТП обогатительных фабрик и комплексной автоматизации
технологических процессов и переделов обогащения;
•Поставку запчастей;
•Сервисное обслуживание.
Объединение выпускает грохоты самобалансные - от 3 до 8 типоразмера
(рисунок 2.4).

Для обеспечения эффективной, надежной и долговечной работы вибрационных
грохотов в НПО «РИВС» используются современные методы математического
моделирования с использованием как коммерческих, так и собственных программных
средств.
Грохоты обеспечивают:
• высокую эффективность разделения материалов по крупности;
• высокую надежность работы узлов;
• быструю замену просеивающих поверхностей;
• низкий уровень звукового давления за счет применения резиновых покрытий
ряда узлов грохотов и их укрытий;
• низкие вибрационные нагрузки на перекрытия при эксплуатации за счет
соответствующего подбора жесткостей опорных пружин и динамических параметров работы
грохота.
Все грохоты имеют широкую унификацию как внутри вида, так и между видами:
вибраторы, связь-балки короба, упругие опоры, сита и др. Грохоты могут быть
смонтированы как с правым, так и с левым расположением привода. Могут
поставляться как с укрытием, так и без него. Грохоты могут быть оснащены
колосниковыми решетками, резиновыми (в том числе, струнными, ленточно-струнными
и ситами типа «ЭСАЛХ»), проволочными или щелевыми ситами с ячейками круглыми,
квадратными и прямоугольными. Грохоты могут быть установлены как стационарно,
так и в откатном варианте, причем откатываться грохоты могут как в продольном,
так и в поперечном направлении.
Выпускаемые объединением грохота для классификации материала высокой
крупности (например, для классификации продуктов крупного и среднего дробления
дробильных отделений обогатительных фабрик) имеют увеличеную толщину бортовых
листов, усиление связьбалки короба. Грохоты комплектуются просеивающими
поверхностями из стальных колосников либо специальными резиновыми ситами.
Применение предварительного грохочения позволяет существенно улучшить
условия эксплуатации дробилок мелкого и среднего дробления за счет исключения
из продуктов их питания мелких фракций исходного материала, глинистых включений
и одновременно повысить общую производительность дробильного цикла без
увеличения нагрузки на дробилки.
Повышение качества исходного питания дробилок мелкого дробления позволяет
эксплуатировать их на минимальных разгрузочных щелях, что позволяет снизить
крупность поступающего на измельчение материала.
Модельный ряд грохотов самобалансных производимых в объединении,
включает: ГРС 1250х2500 РИФ, ГРС 1500х3000 РИФ, ГРС 1750х4500 РИФ, ГРС
2000х5000 РИФ, ГРС 2500х6000 РИФ, ГРС 3000х7000 РИФ, ГРС 3500х9000 РИФ.
Проведем анализ патентной литературы
а) Вибрационный грохот
Изобретение относится к разделению и сортировке твердых материалов. Цель
изобретения - снижение энергоемкости и расширение амплитудно-частотных
характеристик грохота. Короб (К) 1 с ситовыми сепарирующими поверхностями навешен
посредством пружинных связей 2 на жесткие опоры 3, зафиксированные в основании
4(рисунок 2.5). Связанный с К 1 вибрационный механизм 5 выполнен в виде камеры
6 электрогидравлического удара, состоящей из соединенных между собой секций (С)
7 и 8 соответственно для размещения жидкого и газообразного рабочих тел. При
этом С 8 связана с волноводом 10, подведенным к волноприемным мехам 11 с
толкающей створкой 12, к которой шарнирно подсоединен толкатель 13 К 1.
Установленные в механизме 5 электроды 9 соединены с системой 14 подачи на них
электроразрядных импульсов. Электроды 9 преобразуют переменный ток в разряды,
проходящие через межэлектродные зазоры по токопроводящей поверхности раздела
жидкого и газообразного рабочих тел. При вхождении С 7 и 8 в резонанс последние
образуют единую волногенерирующую камеру, фокусирующую сферические волны в
волновод 10, который посылает волновые импульсы в меха 11, передающие через
створки 12 колебательные воздействия на толкатели 13 К 1.
Рисунок 2.5 - Грохоты самобалансные
Грохот работает следующим образом
Электроимпульсная система 14 генерирует переменный ток с колебаниями
инфразвуковой частоты и подает его на электроды 9. Электроды 9 преобразуют этот
ток в разряды, проходящие через межэлектродные зазоры по токопроводящей
поверхности раздела жидкого и газообразного рабочих тел. При вхождении
колебаний жидкостной и газовой секции в резонанс они образуют единую
волногенерирующую камеру. Волногенерирующая камера фокусирует рождаемые в ней сферические
волны в волновод 10. Волноводы 10 передают волновые импульсы в
волновоспринимающие меха 11. Колебательные толкающие створки 12 мехов 11
передают колебательные воздействия на шарнирные толкатели 13 ситового короба 1.
Под действием толкателей 13 ситовый короб 1 приходит в вибрационное
движение. Пружинные подрессоривающие связи 2 короба 1 со стойками 3
обеспечивают свободу колебательного движения рабочей части сепарирующего
устройства. В совершающий колебание ситовой короб 1 подают горячий активированный
уголь, выходящий из печи активации (не показана). Горячий уголь разогревает
хитовый короб 1. Часть полученного тепла ситовый короб 1 рассеивает в
окружающий воздух, отводимый в систему вентиляции (не показана), а другую часть
через материал волновода 10 передает в камеру 6. Заполняющее эту камеру жидкое
рабочее тело рассеивает полученное тепло, обеспечивая неизменность нагрева
конструктивных элементов устройства и сохранение в установленном положении
зазоров и имеющихся механических сочленений конструкций.
б) Грохот вибрационный
Изобретение относится к вибрационном технике и может быть использовано в
угольной, горнорудной промышленности, а также в промышленности строительных
материалов и других отраслях народного хозяйства в качестве устройства для классификации
кусковых и сыпучих материалов.
Грохот, содержащий короб с ситами, два одновальных кинематически
несвязанных между собой вибратора, оси вращения валов которых не лежат в одной
плоскости с центром тяжести колеблющихся масс, упругие опоры 4.
Грохот характеризуется трудностью осуществления синхронизации колебания
всех частей грохота, что приводит к снижению эффективности грохочения.
Рисунок 2.6 - Грохот вибрационный
Недостатком этой конструкции является низкая эффективность процесса
разделения при увеличении размеров грохота вследствие несинхронного колебания
частей грохота из-за значительной удаленности загрузочной и разгрузочной частей
короба от центра его тяжести и недостаточной жесткости конструкции.
Цель изобретения - повышение эффективности грохочения путем синхронизации
колебаний всех частей грохота.
Поставленная цель достигается тем, что грохот вибрационный, имеющий короб
с ситами, упругие опоры, два одновальных вибратора, симметрично установленных
относительно центра тяжести колеблящихся масс, снабжен симметрично
установленными относительно центра тяжести дополнительными двухвальными
вибраторами, валы которых параллельны между собой и перпендикулярны прямой,
проходящей через центры одновальных вибраторов и центр тяжести колеблющихся
масс.
Грохот включает короб 1 с ситами 2 и 3, установленный на упругие опоры 4,
колебания грохота обеспечиваются посредством двух одновальных кинематически не
связанных между собой вибраторов 5.и 6 и кинематически связанных (посредством
зубчатых пар) двухвальных вибраторов 7 и 8, симметрично установленных
относительно центра колеблящихся масс (рисунок 2.6).
При этом центры одновальных вибраторов 5 и 6 лежат на прямой АС,
проходящей через центр тяжести колеблящихся масс, а валы двухвальных вибраторов
7 и 8 параллельны между собой и перпендикулярны прямой АС;
Такая установка двухвальных вибраторов 7 и 8 обеспечит параллельное
направление прямолинейных колебаний между собой и перпендикулярное плоскости,
проходящей через центры вращения одновальных вибраторов 5 и 6 .
Грохот работает следующим образом
Материал, подлежащий разделению, направляется на сита, где происходит его
разделение на курсы крупности.
Параллельное направление прямолинейных колебаний кинематически связанных
вибраторов 7 и 8 с ориентацией его перпендикулярно плоскости, проходящей через
центры вращения кинематически несвязанных вибраторов обеспечивают практически
синхронизацию всех колеблящихся- частей короба 1 грохота независимо от того,
каким большим будет его габарит по длине.
Устойчивой синхронизации всех колеблющихся частей грохота способствует
установка на максимальном удалении от центра тяжести колеблящихся частей двух
кинематически связанных вибраторов 7 и 8 и самосинхронизация всех четырех
вибраторов 5-8, при этом два одновальных кинематически несвязанных вибратора 5
и 6 выполняют функцию не только собственно вибраторов, но и функцию
синхронизатора двух двухвальных кинематически связанных вибраторов и всей
колеблящейся системы в целом.
в) Грохот
Изобретение относится к устройствам для разделения материалов по
крупности и может быть использовано в горной, металлургической и строительной
отраслях промышленности.
Целью изобретения является повышение эффективности процесса грохочения за
счет снижения забиваемости просеивающей поверхности в процессе работы,
Грохот отличающийся тем, что угол наклона вала составляет 30-45°.
Грохот включает короб 1 с ситом установленный на раме 3 посредством
амортизаторов 4, вдоль короба расположен под углом 30-45 вал 5 с дебалансом 6,
установленным с возможностью перемещения вдоль вала. Вал приводится во вращение
от двигателя 7(рисунок 2.7).
Грохот работает следующим образом.
При вращении вала 5 с дебалансом 6 генерируется возмущающая сила,
вызывающая пространственные колебания короба 1, траектория которых представляет
собой линии в плоскости чертежа и эллипсы с изменяющейся по длине короба
большой осью.
Таким образом, точки сит совершают движение по ассиметричным эллипсоидам
вращения, что обеспечивает интенсивное разрыхление слоя материала, снижение
забиваемости отверстий сит и повышение эффективности разделения влажных
материалов.
При изменении массы материала на коробе и условий загрузки производится
регулирование в центроударный режим путем перемещения дебаланса 6 по валу 5.
Рисунок 2.7 - Грохот, продольный разрез
г) Вибрационный грохот
Изобретение относится к классификации дисперсного материала сухим
способом на ситах и может применяться в горнорудной, металлургической,
химической и других отраслях народного хозяйства.
Цель изобретения - повышение эффективности классификации за счет
исключения затухания колебаний сит.
Вибрационный грохот (рисунок 2.8) содержит корпус 1, в котором закреплены
предварительно напряженные верхнее 2 и нижнее 3 сита. К нижнему ситу 3
примыкают толкатели 4 первой группы, кинематически связанные с помощью траверс
5 с вибраторами 6. Последние размещены в нижней части грохота под нижним ситом
3 и отделены от прием-. ной камеры 7 для подрешетного продукта эластичной мембраной
8, жестка связанной с вибраторами 6. В межситовом пространстве параллельно
плоскости сит размещена решетка 9 с цилиндрами 10, жестко связанная с корпусом
1. В цилиндрах свободно помещаются толкатели I1 второй группы, имеющие
шарообразную форму. Толкатели I1 могут быть изготовлены из упругого материала,
например, полиуретана. Цилиндры 10 с толкателями А и 11 по площади грохота
размещены соосно один другому.
Рисунок 2.8 - Грохот вибрационный
Грохот работает следующим образом
Вибраторы 6 передают колебательные импульсы нижнему ситу 3 через траверсу
5 и толкатели 4. Одновременно происходит передача импульса ситу 2 через
толкатели 11. Движение толкателей первой и второй групп происходит синхронно и
синфазно по всей площади сит, что создаст оптимальные условия для движения
вдоль сита и рассева материала, поступающего на грохот.
д) Вибрационный грохот
Изобретение относится к вибрационной технике, в частности к конструкциям
вибрационных грохотов, и может быть использовано в горнорудной, угольной,
химической промышленности, а также в промышленности строительных материалов.
Целью изобретения является упрощение конструкции грохота.
Грохот (рисунок 2.9) включает короб 1, установленный посредством
амортизаторов 2 на раму 3, автономные вибровозбудители в виде дебалансных валов
4-7, приводимых электродвигателями 8-11 во вращение в направлениях, показанных
стрелками. В коробе 1 установлено сито 12, загрузочное 13 и рагрузоч- ное 14
приспособления.
Вибровозбудители образуют две пары, одна из которых включает дебалансные
валы 4 и 5, оси которых 15 и 16 расположены в горизонтальной плоскости ХУ,
проходящей через центр тяжести С грохота и параллельны оси X, а вторая включает
дебалансные валы 6 и 7, оси которых 17 и 18 расположены в вертикальной
плоскости X, проходящей через центр тяжести С грохота и параллельны оси Z . При
этом расстояние от центра тяжести С грохота до вибровозбудителей 4 и 5, 6 и 7
составляет у-5р, где р - радиус инерции относительно главной центральной оси
инерции, параллельной оси дебалансного вала.
В случае если расстояние от центра тяжести до вибровозбудителей будет
превышать 5р для сохранения заданных параметров колебаний потребуется
значительное увеличение размеров и массы дебалансного вала, что усложнит
конструкцию грохота.
Невыполнение нижнего предела расстояния от центра тяжести грохота до
вибровозбудителей (Lp) приводит к неустойчивости работы грохота вследствие
нарушения взаимной фазировки вибровозбудителей и необходимости применения тех
или иных способов принудительной синхронизации вибровозбудителей, что также
усложнит конструкцию.
Рисунок 2.9 - Грохот, вид сбоку
Грохот работает следующим образом
При вращении дебалансных валов вибровозбудителей 4-7 в направлениях,
помеченных стрелками, вибровозбудители между собой самосинхро- низируются,
причем их взаимная фазировка оказывается такой, что усилия, развиваемые ими
вдоль оси V , . взаимно компенсируются. Тем самым линия действия суммарной
возмущающей Силы совпадает со стрелкой Б на фиг. 1, в этом же направлении
происходят колебания рабочего органа.
Рисунок 2.10 - Грохот, вид сверху
Рисунок 2.11 - Разрез А-А
Изобретение относится к машинам для сортировки сыпучих материалов и пульп
по размерам зерен и м.б. использовано в металлургической, горнорудной,
строительной и химической отраслях промышленности.
Целью изобретения является повышение удельной производительности грохота
и качества процесса грохочения за счет интенсификации расслоения материала на
сите, снижения забиваемости его отверстий и улучшения условий прохождения
материала сквозь отверстия сита.
Рисунок 2.12 - Схема вибрационного грохота
Грохот (рисунок 2.12) состоит из короба 1 с ситом 2, опирающегося через
упругие связи 3 на раму 4. На коробе 1 установлены в загрузочной части сита 2,
под ним - низкочастотный вибровозбудитель 5, дебалансный вал 6 которого
расположен поперек сита, и в разгрузочной части сита 2 под ним -
высокочастотный вибровозбудитель 7, дебалансный вал 8 которого расположен вдоль
сита 2. Линия центров О1О2, соединяющая центры тяжести вибровозбудителей 5 и 7,
пересекает сито 2 в точке К, которая делит сито по длине на загрузочный участок
К1К и разгрузочный КК2, длины которых находятся в отношении (1,1-1,25):1.
Вибровозбудители 5 и 7 расположены по обе стороны сита 2 оппозитно относительно
точки К. Частоты вращений дебалансных валов вибровозбудителей равны.
Грохот работает следующим образом
При включении вибровозбудителей и 7 короб 1 вместе с ситом 2 совершает
пространственные колебания, способствующие активному перемещению слоя материала
по ситу 2 к разгрузке, интенсивному движению мелких фракций на контакте с-ситом
. 2 за счет расслоения слоя материала в загрузочной части сита и повышенной
проходимости мелких фракций через отверстия сита.
Рисунок 2.12 - Схема вибрационного грохота
грохот
электропривод конструктивный компоновочный
3. Выбор
прототипа. Описание конструкции грохота
За прототип выбираем грохот самобалансный ГРС 1500х3000 РИФ фирмы НПО
«РИВС».
Данная модель имеет технические характеристики представленные в таблице
3.1:
Таблица 3.1
Технические характеристики грохота
|
Производительность по питанию (регулируемая), т/ч, не более
|
90
|
|
Крупность кусков исходного материала, мм, не более
|
120
|
|
Размеры просеивающей поверхности, мм B1 L13000
|
1500
|
|
**Количество сит, шт.
|
2
|
|
Угол наклона, град., в пределах
|
0...8
|
|
Амплитуда колебаний, мм
|
3...5
|
|
Мощность привода, кВт
|
2x7,5
|
|
Габаритные размеры (при угле 0°), мм L B H
|
3240 2380 1415
|
|
Масса, кг
|
2550
|
Грохот ГРС 1500х3000 РИФ имеют две просеивающих поверхности и
предназначен для сухого и мокрого грохочения руды, отмывки и обезвоживания
продуктов разделения при обогащении руд в тяжелых суспензиях.
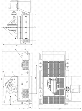
Рисунок 3.1 - Грохот ГРС 1500х3000 РИФ
Рисунок 3.2 - Общий вид грохота ГРС 1500х3000 РИФ
В качестве изменения в конструкцию были заменены два
одновальных вибратора, одним двухвальным. Это сделано для устранения недостатка
грохота, а именно, сложности его конструкции, обусловленной наличием двух
работающих независимо друг от друга вибраторов от двух приводов.
Задачей модернизации является создание грохота,
позволяющего упростить его конструкцию и перенастройку, а также сократить время
перенастройки грохота при просеивании сыпучих материалов с различными
физическими свойствами.
Поставленная задача достигается тем, что в вибрационном грохоте,
содержащем установленный на опорах на упругих элементах короб с ситами,
вибратор и привод с ведущим валом с дебалансами, грохот снабжен размещенной на
коробе рамой, в которой установлен вибратор с корпусом, на боковых поверхностях
корпуса выполнены цилиндрические выступы для установки вибратора с возможностью
поворота в раме и закрепления в ней через разрезные пружинные кольца болтами, в
корпусе выполнено также отверстие для крепления в нем верхнего конца серьги,
посредством которой вибратор закрепляют в раме на необходимый угол наклона к
поверхности сит короба, а в раме предусмотрены расположенные по радиусу
отверстия для крепления в них нижнего конца серьги, центр окружности которого
находится на оси цилиндрических выступов корпуса вибратора, посредством которых
регулируют угол наклона вибратора к поверхности сит короба, кроме того, ось
цилиндрических выступов корпуса вибратора совпадает с осью вращения ведущего
вала привода.
Упрощение конструкции вибрационного грохота и его перенастройки, а также
сокращение времени перенастройки грохота достигается благодаря тому, что он
выполнен только с одним вибратором, приводящимся в действие от одного
электропривода, причем вибратор установлен в размещенной на коробе раме с
возможностью поворота на необходимый угол наклона к поверхности сит короба для
установки направления вектора колебаний подвижной части грохота при просеивании
материалов с определенными физическими свойствами. При этом выполненные в раме
отверстия для крепления нижнего конца серьги, расположенные по радиусу, центр
окружности которого находится на оси цилиндрических выступов корпуса вибратора,
позволяют легко регулировать угол наклона вибратора к поверхности сит короба.
Кроме того, в предложенной конструкции вибрационного грохота ось цилиндрических
выступов корпуса вибратора совпадает с осью ведущего вала с дебалансами, что
позволяет установить электропривод стационарно на одной из опор грохота при
любых углах наклона вибратора к поверхности сит короба.
Для пояснения изобретения ниже приводится конкретный пример выполнения
изобретения со ссылкой на прилагаемые чертежи, на которых:
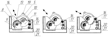
Вибрационный грохот (рисунок 3.3) содержит установленный на опорах 1 на
упругих элементах 2 короб 3 с ситами 4, вибратор 5 с корпусом 6, размещенную на
коробе 3 раму 7, ведущий вал 8 с дебалансами 9, ведомый вал 10 с дебалансами 11
и стационарно установленный на одной из опор 1 электропривод 12.
На боковых поверхностях корпуса 6 вибратора 5 выполнены цилиндрические
выступы 13, с помощью которых его устанавливают с возможностью поворота в раме
7 и закрепляют в ней через разрезные пружинные кольца 14 болтами 15. Кроме
того, в корпусе 6 вибратора 5 имеется отверстие 16 для крепления в нем болтом
17 верхнего конца серьги 18, посредством которой вибратор 5 закрепляют в раме 7
на необходимый угол наклона к поверхности сит 4 короба 3, а также отверстие 19
для захвата вибратора при перенастройке.
Рама 7 снабжена расположенными по радиусу R отверстиями 20 для крепления
в них болтом 21 нижнего конца серьги 18, центр О окружности которого находится
на оси цилиндрических выступов 13 корпуса 6 вибратора 5. Посредством отверстий
20 регулируют угол наклона вибратора к поверхности сит 4 короба 3.
Кроме того, ось цилиндрических выступов 13 корпуса 6 вибратора 5
совпадает с осью вращения ведущего вала 8 с дебалансами 9 (см. поз. «а-а»
фиг.3).
При перенастройке грохота, когда необходимо изменить направление вектора
колебаний его подвижной части, изменяют угол наклона вибратора 5 к поверхности
сит 4 короба 3. Для этого ослабляют болты 15 вибратора 5 в раме 7 и болт 17
крепления верхнего конца серьги 18 в отверстии 16 корпуса 6 вибратора 5, а болт
21 крепления нижнего конца серьги 18 в одном из отверстий 20 рамы 7 снимают.
Затем за отверстие 19 корпуса 6 вибратор 5 поворачивают вокруг оси цилиндрических
выступов 13 таким образом, чтобы отверстие нижнего конца серьги 18 совпало с
нужным отверстием 20 рамы 7. После установки вибратора 5 на необходимый угол
наклона к поверхности сит 4 короба 3 ослабленные болты 15 и 17 затягивают,
отверстие нижнего конца серьги 18 и нужное отверстие 20 рамы 7 совмещают и с
помощью болта 21 затягивают.
Рисунок 3.3 - Грохот вибрационный
Рисунок 3.4 - Грохот вибрационный (Вид А)
Рисунок 3.6 - Крепление вибратора (разрез В-В)
Рисунок 3.7 -Вибратор (разрез Г-Г)
Рисунок 3.8 - Положения вибратора при разных углах его
наклона
4. Расчет основных параметров режима работы грохота
Важную практическую роль играет способность грохота к самоочистке
отверстий сит. Способность грохота к самоочистке определяется инерционными
силами, приложенными к застрявшим в отверстиях зернам.
Так как в грохоте установлено два яруса сит, то расчет ведется по ситу с
наибольшим размером отверстий.
Амплитуда колебаний определяется [1]
Где
- динамический коэффициент, представляющий собой отношение
составляющей силы тяжести в плоскости, перпендикулярной ситам. Данный
коэффициент учитывает режим работы грохота и нагруженность его конструкции. Для
обеспечения приемлемой долговечности грохота должно быть
. Примем
и
по [2].
- угол наклона сит к горизонту;
- угол между площадью сит и направлением действия
инерционной силы.
для горизонтальных грохотов с направленными колебаниями.
Принимаем
.
Установлено что при ускорении
происходит быстрый выход из строя
элементов грохота и появляются трещин в коробе[2].
Поэтому
Условие выполняется, следовательно найденную амплитуду колебаний считаем
подходящей.
Высота подбрасывания зерен над поверхностью сита [2]
Экспериментально установлено, что самоочищение сит происходит, если:
Условие выполняется, следовательно самоочищение сит происходит.
.1
Определение производительности грохота
Производительность грохота по В.А. Бауману и П.С. Ермолаеву
определяется[1]
;
где
- удельная производительность сита, м3/ч.
Выбираем
м3/ч;
F -
площадь просеивающей поверхности, м2;
m -
коэффициент, учитывающий неравномерность питания, форму зерен и тип грохота.
Принимает m=0,8;
- коэффициент, учитывающий угол наклона грохота. Принимает
- коэффициент, учитывающий содержание зерен нижнего класса в
исходном материале. Принимаем
;
- коэффициент, учитывающий содержание в нижнем классе зерен,
размер которых меньше половины размера отверстий. Принимаем
где b - ширина сита, м;
l -
длина сита, м.
Эффективность грохочения отражает качественную сторону процесса
грохочения и определяется следующим образом
где e - эталонная эффективность
грохочения;
- коэффициент, учитывающий угол наклона грохота. Принимает
- коэффициент, учитывающий содержание зерен нижнего класса в
исходном материале. Принимаем
;
- коэффициент, учитывающий содержание в нижнем классе зерен,
размер которых меньше половины размера отверстий. Принимаем
.2
Определение мощности электродвигателя привода грохота
Мощность электродвигателя грохота определяется по формуле
где
- мощность, необходимая для поддержания колебаний системы;
- мощность, необходимая для преодоления трения в
подшипниках.
Статический момент дебалансов
где
- масса короба грохота;
- масса материала.
Из конструктивных соображений
=1,5т.
Массу материала на сите грохота рекомендуется определять по формуле [3]
где
- объемная масса материала т/м3, для гравия
т/м3;
Q -
производительность грохота по питанию, м3/ч;
l -
длинна грохота, м;
T -
содержание нижнего класса в исходном продукте в долях единиц;
v -
скорость движения материала по ситу, м/с.
;
где
- амплитуда скорости колебания короба.
Определим мощность необходимую для поддержания колебаний системы [1]
где S - статический момент дебалансов,
;
- угол сдвига фаз между вынужденными колебаниями и
вынуждающей силой (
).
Мощность необходимая для преодоления трения в подшипниках [1]
где
- приведенный коэффициент трения качения (
;
d -
диаметр беговой дорожки внутреннего кольца подшипника качения d=0,06..0,1м.
Расчетная мощность электродвигателя
Выбираем электродвигатель АМУ250М8 развивающий мощность 30кВт, с частотой
вращения ротора 735 об/мин. При этом КПД=89%, cosφ=0,78.
Масса электродвигателя 355кг.
По крутящему моменту на электродвигателе выбираем муфту упругую с
торообразной оболочкой, передающую крутящий момент 1.25кНм, типа I, одна из полумуфт диаметром 65мм,
исполнения 1, другая - 75мм, исполнением 1. Маркировка - муфта 1250-1-75-1-65-1
ГОСТ 20884-93.
5. Конструктивный
расчет грохота
5.1
Расчет сил от вращения дебалансов
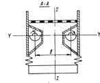
Рисунок 5.1 - Схема к расчету грохота с направленными колебаниями
Вибровозбудители вращаются с одинаковой угловой скоростью w в
противоположных направлениях (рисунок 5,1). Вынуждающая сила
каждого из дебалансных возбудителей
может быть разложена на две составляющие, одна из которых
направлена по оси XX, а вторая
- по оси YY, совпадающей с линией центров. Взаимное фазирование
вибровозбудителей таково, что в любой момент времени их углы поворота и
составляющие
вынуждаюшей силы постоянно взаимно компенсируются, а
устройство в целом сообщает грохоту направленные (прямолинейные) колебания
вдоль оси XX, возбуждаемые силой, которая
является равнодействующей двух составляющих
.
Найдем вынуждающую силу от одного дебаланса
где
- масса дебаланса;
- расстояние от центра тяжести дебаланса до оси вращения;
Равнодействующая сил
, которая сообщает грохоту направленные колебания в момент
времени
где
- число дебалансов;
Под действием вынуждающей силы в колеблющейся системе возникает сила
инерции
Из условия равновесия колеблющейся системы, по амплитудному значению
5.2 Расчет
пружинных амортизаторов
Для виброизоляции несущих конструкций и рабочих мест операторов жесткость
опорных устройств виброгрохотов назначают достаточно низкой, чтобы соотношение
частот собственных ω0 и вынужденных ω колебаний системы было в пределах
С учетом этого условия суммарная жесткость опорных упругих элементов
будет равна [5]
где
- частота вынужденных колебаний, Гц;
- масса колеблющейся системы, кг.
Жесткость единичного элемента определяют по заданному числу опор -
амортизаторов. Жесткость цилиндрической пружины в продольном направлении
где
- модуль упругости материала пружин при сдвиге. Для стали -
;
d и D - диаметр проволоки и средний
диаметр пружины, м. Примем D=0,2м.
d - выбирается с учетом D/d>4. Примем d=0,04м.
- число рабочих витков пружины.
Жесткость пружины в поперечном направлении равна
где
- коэффициент Рауша, значение которого при
можно принимать в интервале
Примем
;
- рабочая высота пружины, м.
Рассчитаем пружину на соударение витков
где H0 - высота пружины в свободном состоянии;сж - высота пружины в
сжатом состоянии до смыкания витков;р - резонансная амплитуда колебаний;
λ - осадка пружины от статической
нагрузки.
где
- амплитуда колебаний.
Сила, передаваемая во время работы грохота на опорную конструкцию, равна
где
- суммарная жесткость опорных упругих элементов.
6. Эскизное
конструирование грохота. Обоснование компоновочных решений
Эскизное конструирование выполняют с целью установления принципиальных
(конструктивных, схемных и др.) решений изделия, дающих общее представление о
принципе работы и (или) устройстве изделия.
Технологический процесс классификации твердых материалов по фракциям на
грохоте представляет собой непрерывный процесс грохочения, в течении
определенного времени( например в течении смены).
Грохот устанавливается на ровной поверхности с уклоном не более 1° на
раму. На раме, через пружинные амортизаторы, устанавливается короб, который
состоит из двух боковых стенок, изготовленных из листовой стали. Стенки короба
соединены между собой связь-балками, которые в свою очередь выполняют функцию
как скрепления стенок, так и поддержания сит. В грохоте установлены сита в два
яруса, с размером ячеек 20х20 и 5х20. На верхнем ярусе устанавливается сито с
большим размером ячеек. На короб крепится дополнительная рама, являющаяся
посредником, передающим колебания грохоту от вибратора. Вибратор, в свою
очередь, монтируется на дополнительной раме под углом 35° к ситам. Вибратор
устанавливается таким образом, чтобы линия действия возбуждающей силы проходила
через центр тяжести колеблющейся части грохота. Вибратор накрывается защитным
коробом, для обеспечения безопасной работы с грохотом.
Рисунок 6.1 - Компоновочная схема грохота
7. Разработка
мероприятий по технике безопасности и охране окружающей среды при работе
грохота
7.1
Техника безопасности при работе с грохотом
а) До работы с грохотом могут быть допущены только лица, выдержавшие
испытания в объеме техминимума, по технике безопасности и прошедшие инструктаж.
б) Для избежание нарушения правил техники безопасности необходимо:
- обеспечить в помещении для грохота надлежащую общую вентиляцию и отсос
пыли (если грохот установлен в помещении);
очищать сетку деревянными шуровочными приспособлениями и деревянными
молотками только после остановки грохота;
заземлить раму стальной проволокой диаметром не менее 5 мм, приварив один
конец проволоки к раме, а другой подсоединив к заземляющему контуру цеха;
заземлить электродвигатель с помощью заземляющей жилы силового кабеля;
смазывать подшипники только во время полной остановки грохота;
вести постоянный контроль за грохотом.
в) Запрещается:
производить какие бы то ни было работы на грохоте, поднятом на стропах;
включать грохот без ограждения;
регулировать, смазывать или ремонтировать грохот на ходу;
включать электродвигатель грохота без заземления и при неисправных
злектропусковых устройствах;
устанавливать на движущихся частях грохота дополнительные детали или
сборочные единицы, загрузочные или разгрузочные лотки, кожухи, так как это
может привести к нежелательному изменению режима работы грохота - уменьшению
амплитуды колебаний, поломкам;
подавать материал на грохот с высоты более 0,5 м, так как это увеличит интенсивность
износа сит и деталей грохота;
допускать просыпание материала через борта короба - это может вызвать
заштыбовку зазоров между подвижными частями и неподвижными конструкциями;
оставлять работающий грохот без надзора.
г) Питающие и приемные устройства должны удовлетворять следующим
требованиям:
питающие устройства, подводящие материал, должны равномерно распределять
его по всей ширине короба и подавать на грохот по ходу движения;
загрузка грохота должна производиться через равномерные промежутки времени
так, чтобы подаваемый материал не скапливался в загрузочной части короба;
конструкция загрузочного устройства должна исключать возможность
образования столба подаваемого на сито - грохота материала;
загрузочные устройства должны быть сблокированы с пусковым устройством
грохота таким образом, чтобы при включении первым включался грохот, а при
выключении первым выключалось загрузочное устройство.
.2
Мероприятия по охране окружающей среды
Основными загрязнителями окружающей среды при работе грохота являются:
шум, вибрации и пыль.
Важной проблемой современного производства является защита окружающей
среды от выбросов пыли в атмосферу. Высокая концентрация пыли в выбросах
наносит огромный вред природной среде, приводит к безвозвратной потере большого
количества сырья и готового продукта. Производственная пыль - это мельчайшие
твердые частицы, выделяющиеся при дроблении, размоле и механической обработке
различных материалов, погрузке и выгрузке сыпучих грузов и т.п., а также
образующиеся при конденсации некоторых паров.
Помещение, где установлен грохот должно снабжаться пылеулавливающими
аппараты, позволяющими предотвратить загрязнение окружающей среды.
Механические колебания машин приводят к колебаниям воздушной среды,
которые являются причиной шумов. Сильный и продолжительный шум отрицательно
влияет на состояние здоровья.
Снизить уровень шума до предельно допускаемых норм можно такими
технологическими и конструктивными решениями, которые позволяют ослабить шум в
источнике его возникновения. Кроме того, следует использовать конструктивные
меры по звукопоглощению возникающего шума или изолировать сам источник шума.
Нередко все эти решения применяют в сочетании.
Ослабления шума в источниках его возникновения можно достигнуть
различными конструктивными мероприятиями. К ним относятся следующие: замена
ударных действий безударными, демпфирование соударяющихся металлических частей
упругими материалами.
Одним из путей снижения уровня шума является звукоизоляция механизмов
машины или в целом машины с помощью кожухов. Их изготовляют из стальных листов
с внутренней облицовка из войлока, пенополиуретана или шлаковаты. Применение
кожухов снижает шум до 3 дБ.
Шум можно несколько снизить, если грохот разместить на территории
предприятия с подветренной стороны по отношению к другим зданиям.
Колебания машин с частотой до 15 - 18 Гц воспринимаются организмом
человека изолированно одно от другого и ощущаются как толчки или сотрясение.
Эти ощущения вызывают нервное возбуждение. Интенсивность толчков и сотрясений
можно уменьшить установкой амортизаторов.
Колебания с большей частотой (свыше 18 Гц) и небольшой амплитудой
воспринимаются слитно и ощущаются как вибрация. В результате длительной
вибрации возникает вибрационная болезнь.
Уменьшать вибрацию и шум грохота в источнике их образования можно
следующими мероприятиями: исключением в конструкции ударного взаимодействия
деталей, исключением резонансного явления, применением минимальных допусков в
сочленениях деталей, использование полимерных сит.
Заключение
В данном курсовом проекте была разработана новая конструкция грохота
самобалансного. Разработанная конструкция имеет ряд преимуществ по сравнению с
существующими аналогами. Произведенная модернизация позволили сократить
металлоемкость и упростить конструкцию, а также сократить время перенастройки
грохота при просеивании сыпучих материалов с различными физическими свойствами.
Изменение конструкции вибратора позволяет, без значительных изменений и затрат
по времени на монтаж дополнительных элементов, за счет изменения наклона вибратора,
а следовательно и направления возбуждающей силы, изменять параметры работы
грохота. После произведенных изменений в конструкции грохота не наблюдается
потерь в производительности, следовательно, модернизацию можно считать удачной.
Список
литературы
1. Дамдинова,
Д.Р. Расчет параметров грохотов с плоскими ситами: Методическое указание по
дисциплине механическое оборудование предприятий строительной индустрии. -2002.
-40с.
2. Сергеев,
В.П.Строительные машины и оборудование: Учеб. для вузов по спец. «Строит,
машины и оборудование» / В.П. Сергеев. - М.: Высш. шк., 1987. - 376 с.
. Бауман,
В.А. Вибрационные машины и процессы в строительстве: Учебное пособие для
студентов строительных вузов - М.: Высшая школа, 1977. - 255 с.
. Гоберман,
Л.А. Основы теории, расчеты и проектирование строительных и дорожных машин. -
М.: Машиностроение, 1988. - 464 с.
. Борщев,
В.Я. Оборудование для переработки сыпучих материалов: Учебное пособие/ В.Я.
Борщев, Ю.Н. Гусев, М.А. Промтов, А.С. Тимошин. - М.: Издательство Машиностроение,
2006. - 208 с