Привод к ленточному транспортёру
Содержание
Введение
Содержание
задания
.
Кинематический расчет и выбор электродвигателя
.
Выбор материала и определение допускаемых напряжений
.
Расчет зубчатых колес
.1
Расчет тихоходной цилиндрической передачи
.2
Расчет быстроходной цилиндрической передачи
.
Расчет плоскоременной передачи
.
Выполнение компоновочного чертежа
.
Расчет валов на прочность
.1
Построение схемы нагружения
.2
Расчет ведущего вала
.3
Расчет промежуточного вала
.4
Расчет ведомого вала
.
Определение запаса прочности валов
.
Подбор подшипников
.
Выбор шпонок
.
Определение основных размеров крышки и корпуса редуктор
.
Тепловой расчет червячной ступени
.
Выбор смазки
.
Выбор муфт
.
Выбор посадок деталей
.
Порядок сборки редуктора
Список
используемых источников
редуктор вал привод шпонка
Введение
От каждого инженера требуется не только знать
устройство машин и правила эксплуатации их, но и уметь рассчитать узлы, детали
и разработать конструкции этих машин.
В этой связи следует отметить особую роль
курсового проектирования по "Деталям машин и основам конструирования"
в приобщении студентов к деятельности инженеров и исследователей, в понимании
значения общетеоретических и общеинженерных дисциплин.
Курсовой проект способствует закреплению,
углублению и обобщению знаний и применению этих знаний к комплексному решению
конкретной инженерной задачи по проектированию деталей машин.
Курсовой проект по ДМ и ОК развивает навыки
самостоятельной конструкторской и творческой научно-исследовательской работы,
изобретательства, завершает общеинженерную подготовку по проектированию, на
основе которой выполняются другие курсовые проекты по специальным дисциплинам.
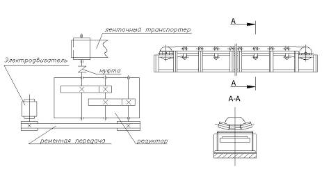
Содержание задания
Спроектировать привод к ленточному транспортёру
по схеме (рисунок 1).
Рисунок 1 - Схема задания
Дано: Ft = 1,0 кH; v = 1,3 м/с; D = 300 мм.
1. КИНЕМАТИЧЕСКИЙ РАСЧЕТ И ВЫБОР
ЭЛЕКТРОДВИГАТЕЛЯ
Определяем потребную мощность электродвигателя
для всего привода.
Требуемая мощность электродвигателя определяется
по формуле:
,
Определим
- общий КПД
привода;
.
По данным, приведенным в таблице 4.2
[1], принимаем:
- КПД, учитывающий потери в паре
подшипников качения (
).
- КПД ременной передачи (
);
- КПД зубчатой передачи с
цилиндрическими колесами, работающей в масляной ванне (
);
кВт
По приложению А.4 выбираем
трехфазный асинхронный короткозамкнутый электродвигатель серии 4A80В4УЗ;
кВт;
об/мин.
Определим частоту вращения IV вала
привода:
об/мин;
Определяем общее передаточное число
привода:
;
;
Производим разбивку передаточного
числа по ступеням согласно рекомендациям таблицы 4.2 [1]. Принимаем
передаточное отношение для ременной передачи передачи
.
Тогда
;
.
Разбиваем передаточное отношение
редуктора по ступеням. Принимаем передаточное отношение для тихоходной
цилиндрической ступени:
.
Тогда передаточное отношение
быстроходной цилиндрической ступени:
;
Определяем частоты вращения валов
привода:
об/мин;
об/мин;
об/мин;
об/мин;
Определяем мощности на валах
привода:
кВт;
кВт;
кВт;
кВт.
Определяем крутящие моменты на
валах:
;
;
;
;
Определяем ориентировочно диаметры
всех валов привода:
м или
мм;
м или
мм;
м или
мм;
м или
мм.
где
- допускаемое напряжение кручения,
обычно принимают:
=12…15 МПа -
для редукторных и других аналогичных валов [3].
2. ВЫБОР МАТЕРИАЛОВ И ОПРЕДЕЛЕНИЕ
ДОПУСКАЕМЫХ НАПРЯЖЕНИЙ
Желая получить сравнительно
небольшие габариты и невысокую стоимость редуктора, выбираем для изготовления
колеса и шестерни сравнительно недорогую легированную сталь 40Х. По таблице 4.4
назначаем для колес термообработку: улучшение 230…260
,
МПа,
МПа, для
шестерни второй ступени - улучшение 260…280
,
МПа,
МПа. Зубьям шестерни первой ступени
назначаем термообработку - азатирование, в результате получим твердость
поверхности 50…59 HRC, а твердость сердцевины 26…30 HRC,
МПа,
МПа.
При этом обеспечивается приработка
зубьев обеих ступеней.
Допускаемые контактные напряжения
Допускаемые контактные напряжения
для второй ступени определяем по материалу колеса, как более слабому по
формуле:
,
где
- предел контактной выносливости,
определяется по таблице 4.5 [1]. Для колеса второй ступени
МПа; для
шестерни второй ступени
МПа; для
шестерни первой ступени
МПа
(азотирование).
- коэффициент безопасности. Для
второй ступени
, для первой
ступени
[1, таблица
4.5];
- коэффициент долговечности,
.
Определяем рабочее число циклов
напряжений для колеса второй ступени по формуле:
,
где
- суммарный срок службы, называемый
ресурсом передачи, или число часов работы передачи за расчетный срок службы;
- частота вращения того из колес,
по материалу которого определяют допускаемые напряжения;
- число зацеплений зуба за один
оборот колеса (
равно числу
колес, находящихся в зацеплении с рассчитываемым).
Для колеса второй ступени
,
где
выбираем по таблице 4.3 [1],
.
Сравнивая
и
, отмечаем,
что для колеса первой ступени
, следовательно
, т.к. все
другие колеса вращаются быстрее, то и для них так же
.
для колеса второй ступени
МПа;
для шестерни второй ступени
МПа.
Допускаемые контактные напряжения
для второй ступени определяем по материалу колеса как наиболее слабому
МПа.
Аналогично рассчитываем для колеса и
шестерни первой ступени.
для колеса первой ступени
МПа;
для шестерни первой ступени
МПа;
При этом за расчетное принимают
средние значение, но не более 1,25
(меньшее из двух) для
цилиндрических передач:
МПа >
MПа
Принимаем
МПа
Допускаемые напряжения изгиба
Определяем допускаемые напряжения
изгиба по формуле :
,
где
- предел выносливости зубьев по
напряжениям изгиба, определяется по таблице 4.5 [1]:
для колеса второй и первой ступени
МПа;
для шестерни второй ступени
МПа;
для шестерни первой ступени
МПа;
- коэффициент безопасности. По
таблице 4.5 [1] выбираем
;
- коэффициент, учитывающий влияние
двустороннего приложения нагрузки. В данном случае
, т. к.
действует односторонняя нагрузка;
- коэффициент долговечности, его
расчет аналогичен расчету
, но базовое
число рекомендуется принимать
для всех сталей [3, с. 174].
Для обеих колес:
МПа;
Для шестерни второй ступени:
МПа;
Для шестерни первой ступени:
МПа;
Допускаемые напряжения при
кратковременной перегрузке
Определяем допускаемые напряжения
и
при
кратковременной перегрузке по таблице 4.4 и 4.5 [1].
Предельные контактные напряжения
определяются по формуле:
;
Для колес обеих ступеней
МПа;
Для шестерни второй ступени
МПа;
Для шестерни первой ступени
МПа;
Предельные напряжения изгиба
определяются по формуле:
;
Для колес обеих ступеней
МПа;
Для шестерни второй ступени
МПа;
Для шестерни первой ступени при
азотировании
МПа
3. РАСЧЕТ ЗУБЧАТЫХ КОЛЕС
.1 Расчет зубчатых колес тихоходной
цилиндрической передачи
Вначале рассчитываем прямозубую
цилиндрическую пару, как более нагруженную и в основном определяющую габариты
редуктора.
Условимся обозначать здесь и далее
предварительно выбранные или рассчитанные параметры дополнительным индексом -
штрих.
Предварительный расчет межосевого
расстояния выполняем по формуле:
;
где
- приведенный модуль упругости.
МПа;
;
- коэффициент концентрации нагрузки
[3, с. 127], определяется по рисункам 4.9 [1, c. 51] в зависимости от
-
коэффициента ширины шестерни относительно диаметра [3, с. 135]:
;
- коэффициент ширины колеса
относительно межосевого расстояния [3, с. 135]; принимается по рекомендациям
таблицы 4.6,
.
По рисунку 4.9 определяем
.
Таким образом
мм,
Округляем по ряду
и принимаем
мм.
Находим ширину колеса
мм;
По таблице 4.7 [1, c. 52] принимаем
.
Определяем модуль [3, с. 138]:
мм;
Это нестандартное значение модуля,
по таблице 4.8[1], согласуясь со стандартом, назначим m = 2 мм.
Определяем суммарное число зубьев:
;
Определим число зубьев шестерни:
;
Принимаем
>
[3, с.138,
143].
Число зубьев колеса:
;
Фактическое передаточное число:
;
При этом
Делительные диаметры шестерни и
колеса:
мм;
мм;
Диаметры вершин зубьев:
мм;
мм;
Выполняем проверочный расчет на
усталость по контактным напряжениям по формуле [3, с. 134]:
,
где
- коэффициент расчетной нагрузки
[3, с. 127];
;
- коэффициент динамической
нагрузки, определяется по таблице 4.10 [1].
;
Окружная скорость
м/с;
По таблице 4.11 назначаем 9-ю
степень точности, тогда по таблице 4.10 определяем
. Ранее было
найдено
, тогда
;
Подставив полученные значения,
получим:
МПа < 518 МПа;
Расхождения не более
.
Выполняем проверочный расчет по
напряжениям изгиба [3, с. 140]
,
где
- коэффициент формы зуба;
выбирается по графику [1, см. рисунок 4.10], при
находим: для шестерни
, для колеса
;
- коэффициент расчетной нагрузки;
.
Расчет выполняем по тому из колес
пары, у которого меньше
.
Для шестерни
;
Для колеса
;
Расчет выполняем по колесу.
По графику (см. рисунок 4.9) при
. По таблице
4.10
. При этом
.
Далее
Н;
Подставив полученные значения в
формулу, получим:
МПа < 246 МПа;
Выполняем проверочный расчет на
перегрузку по формулам [3, с. 174]:
;
МПа < 1540 МПа;
;
МПа < 685 МПа.
Условия прочности соблюдаются.
Ширина колеса:
мм;
Ширина шестерни:
мм.
3.2 Расчет быстроходной
цилиндрической передачи
Определим делительные диаметры
колеса и шестерни:
мм;
где
- диметр колеса второй ступени.
мм.
Межосевое расстояние:
мм.
Для определения ширины колес
используют формулу:
;
;
.
При этом
, не
превышает максимально допустимое значение[3, стр. 136].
По таблице 4.7 [1, c. 52] принимаем
.
Определяем модуль [3, с. 138]:
мм;
Это нестандартное значение модуля,
по таблице 4.8[1], согласуясь со стандартом, назначпем m = 1 мм.
Определим угол наклона зубьев
из формулы
где
- коэффициент осевого перекрытия.
Рекомендуется принимать
.
Принимаем
Определим
:
. Тогда
.
Во избежание больших осевых сил в
зацеплении рекомендуют принимать
[3, c. 146].
Определяем суммарное число зубьев:
.
Определим число зубьев шестерни:
;
Принимаем
>
[3, с.138,
143].
Число зубьев колеса:
.
Фактическое передаточное число:
.
Уточняем значение
по
межосевому расстоянию по формуле:
, тогда
Диаметры вершин зубьев:
мм;
мм.
Выполняем проверочный расчет на
усталость по контактным напряжениям по формуле [3, с. 134]:
,
где
- коэффициент повышения прочности
косозубых передач по контактным напряжениям; определим по формуле:
,
где
- коэффициент, учитывающий ошибки
при нарезании зубьев, выбирается по таблице 4.12 [1] в зависимости от
окружности и степени точности;
- коэффициент торцевого перекрытия,
определяется по формуле:
,
.
Таким образом:
.
Определим окружную скорость колеса:
м/с;
Тогда
;
- коэффициент расчетной нагрузки;
;
- коэффициент динамической
нагрузки, определяется по таблице 4.9.
По таблице 4.10 назначаем 8-ю степень
точности, тогда по таблице 4.11 определяем
.
- коэффициент концентрации нагрузки,
определяется по графику [1, см. рисунок 4.9] в зависимости от
- коэффициента
ширины шестерни относительно диаметра [3, с. 135]:
;
Таким образом
, тогда
Подставив полученные значения,
получим:
МПа<647,5 МПа.
Такое расхождение типично для первой
быстроходной ступени двухступенчатых редукторов [4, c. 257].
Выполняем проверочный расчет по
напряжениям изгиба [3, с. 140]
,
где
- коэффициент формы зуба;
выбирается по графику (см. рисунок 4.10), при
находим: для шестерни
, для колеса
;
- коэффициент расчетной нагрузки;
.
Расчет выполняем по тому из колес
пары, у которого меньше
.
Для шестерни
;
Для колеса
;
Расчет выполняем по колесу.
По графику (см. рисунок 4.9) при
. По таблице
4.9
. При этом
.
Далее
Н;
- коэффициент повышения прочности
косозубых передач по напряжениям изгиба; определим по формуле
;
где
- коэффициент, учитывающий
повышение изгибной прочности вследствие наклона линии к основанию зуба и
неравномерного распределения нагрузки, определим по формуле:
.
- коэффициент неравномерности
нагрузки одновременно зацепляющихся пар зубьев, определяется по таблице 4.12
[1] в зависимости от степени точности и окружной скорости колоса.
.
Тогда
Подставив полученные значения в
формулу, получим:
МПа < 246 МПа;
Выполняем проверочный расчет на
перегрузку по формулам [3, с. 174]:
;
МПа < 1540 МПа;
;
МПа < 685МПа.
Условия прочности соблюдаются.
Ширина колеса:
мм;
Ширина шестерни:
мм.
4. РАСЧЕТ ПЛОСКОРЕМЕННОЙ ПЕРЕДАЧИ
Определяем приближенно диаметр
малого шкива по формуле М. А. Саверина [3, с. 268]:
мм,
где
- крутящий момент на валу,
.
По ГОСТу 17383-73 выбираем диаметр
шкива
мм [19, с.
14]. При этом окружная скорость передачи:
м/с;
Эта скорость находится в пределах,
рекомендуемых для среднескоростных передач (
м/с).
Определяем диаметр ведомого шкива с
учетом коэффициента скольжения
по формуле (12.3) [3, с. 253]:
мм;
По ГОСТу 17383-73 принимаем диаметр
ведомого шкива
мм.
Уточняем передаточное отношение:
;
Уточняем
:
об/мин;
Расхождение с заданным 0,15% (при
допускаемом 3%).
Определяем межосевое расстояние
и длину
ремня
.
Длина ремня:
м;
Межосевое расстояние:
;
м;
Проверяем найденное значение по
рекомендации [3, с. 268]:
мм;
Принимаем окончательно
мм. При
этом долговечность ремня повысится, а его длина определится по формуле [3, с.
254]:
м;
Определяем угол обхвата
ремнем
малого шкива по формуле [3, с. 253]:
;
Условие выполняется. Соблюдение
этого условия подтверждает выбранную величину
.
Определяем окружное усилие передачи.
Н;
Выбираем тип ремня и предварительно
назначаем его толщину.
Учитывая повышенные требования к
габаритам передачи, и желая получить сравнительно недорогую передачу, выбираем
прорезиненный ремень, толщину ремня
определяем в зависимости от
диаметра меньшего шкива. По рекомендации [3, с. 268]:
. Принимаем
мм, тогда
.
Определяем допускаемое полезное
напряжение в ремне (удельное окружное усилие на единицу площади поперечного
сечения ремня), по формуле (12.23) [30, с. 262]:
,
где
- коэффициент угла обхвата,
учитывающий снижение тяговой способности передачи с уменьшением угла обхвата:
;
- скоростной коэффициент, вводимый
только для передачи без автоматического регулирования натяжения и учитывающий
уменьшение прижатия ремня к шкиву под действием центробежных сил:
;
- коэффициент режима нагрузки,
учитывающий влияние периодических колебаний нагрузки на долговечность ремня (
- нагрузка
спокойная);
- коэффициент, учитывающий способ
натяжения ремня и наклон линии центров передачи к горизонту (
);
По таблице 12.1 [3] для
,
МПа.
МПа;
Определяем ширину ремня
по формуле:
мм;
По таблице 2.1.9 [4, с. 15]
принимаем ширину ремня
мм.
Определяем ширину шкивов.
По таблице 2.5.3 [4, с. 22]
принимаем ширину шкивов
мм.
5. ВЫПОЛНЕНИЕ КОМПОНОВОЧНОГО ЧЕРТЕЖА
Для выполнения компоновочного
чертежа потребуются следующие размеры:
. Размеры зубчатых цилиндрических и
червячных колес:
|
      
|
|
|
|
|
|
|
|
|
35
|
37
|
125
|
127
|
60
|
64
|
160
|
164
|
. Диаметры валов после их предварительного
определения
. Длина и диаметр ступицы
Длину ступицы определим по формуле:
;
Диаметр ступицы определим по
формуле:
мм;
. Выбираем предварительно подшипники
качения радиальные однорядные легкой серии как наиболее простые по конструкции
и дешевые
|
Условное
обозначение подшипника
|
d,
мм
|
D,
мм
|
B,
мм
|
|
202
|
15
|
35
|
11
|
|
205
|
25
|
52
|
15
|
|
207
|
35
|
72
|
17
|
Размеры, необходимые для выполнения
компоновочного чертежа
- толщина стенки редуктора.
Для цилиндрического редуктора:
мм;
По литейным требованиям
мм;
Расстояния от внутренней поверхности
стенки редуктора:
до боковой поверхности вращающейся
части:
мм;
до боковой поверхности подшипника
качения:
мм;
Расстояние в осевом направлении
между вращающимися частями, смонтированными:
на одном валу:
мм:
на разных валах:
мм;
Радиальный зазор между зубчатым
колесом одной ступени и валом другой ступени (min):
мм;
Радиальный зазор от поверхности
вершин зубьев:
до внутренней поверхности редуктора:
мм;
до внутренней нижней поверхности
стенки корпуса:
мм;
Расстояние от боковых поверхностей
элементов, вращающихся вместе с валом, до неподвижных наружных частей
редуктора:
мм;
Ширина фланцев
,
соединяемых болтом диаметром
мм,
;
мм;
Толщина фланца боковой крышки:
:
Высота головки болта:
;
Толщина фланца втулки:
;
Толщина стакана:
|
Подшипник
|
202
|
205
|
207
|
|
355272
|
|
|
|
|
666
|
|
|
|
|
4,84,84,8
|
|
|
|
|
666
|
|
|
|
|
  
|
|
|
|
Длина цилиндрической части крышки
(выбирается конструктивно)
мм. Расстояние между боковыми
поверхностями подшипников, монтируемых парами:
мм. После определения
ориентировочных размеров выполняем компоновку.
6. РАСЧЕТ ВАЛОВ НА ПРОЧНОСТЬ
.1 Построение схемы нагружения
Для ведущего и промежуточного валов
выбираем сталь 40Х, для ведомого - сталь 45.
вал:
,
,
.вал:
,
,
.вал:
,
,
.
Схему нагружения изобразим на
рисунке 2.
Рисунок 2 - Схема нагружения
Определяем действующие на валы силы:
,
,
.2 Расчет ведущего вала
Строим расчетную схему сил,
действующих на ведущий вал, а также - эпюры изгибающих моментов в вертикальной
и горизонтальной плоскости, крутящих моментов и осевых сил (рисунок 3).
Вертикальная плоскость
Определяем реакции в опорах
:
;
;
.
:
;
;
.
Проверка.
:
;
- 295,7 −744,3 = 0;
- реакции
определены верно.
Определим значения моментов
Горизонтальная плоскость
Определяем реакции в опорах
:
;
;
.
:
;
;
.
Проверка.
:
;
;
- реакции определены верно.
Определим значения моментов
;
.
На ведущий вал скручивается моментом
.
Наибольший изгибающий момент
Опасным сечением является сечение
шестерни, соответствующее точке контакта с колесом.
.
Подбор подшипников
Для подбора подшипников качения
определим суммарную реакцию в той опоре, где она будет больше.
;
.
Рисунок 3 - Расчетная схема ведущего
вала
.3 Расчет промежуточного вала
Строим расчетную схему сил,
действующих на промежуточный вал, а также - эпюры изгибающих моментов в
вертикальной и горизонтальной плоскости, крутящих моментов и осевых сил
(рисунок 4).
Вертикальная плоскость
Определяем реакции в опорах
:
;
;
.
:
;
;
.
Сила
направлена в другую сторону:
Проверка.
:
;
;
- реакции определены верно.
Определим значения моментов
;
.
Наибольший изгибающий момент будет в
месте посадки шестерни.
Горизонтальная плоскость
Определяем реакции в опорах
:
;
;
.
:
;
;
.
Сила
направлена в другую сторону:
Проверка.
:
;
;
- реакции определены верно.
Определим значения моментов
;
.
На промежуточный вал действует
крутящий момент
на участке
от колеса до шестерни.
Наибольший изгибающий момент
;
.
Подбор подшипников
Для подбора подшипников качения
определим суммарную реакцию в той опоре, где она будет больше.
;
.
Рисунок 4 - Расчетная схема
промежуточного вала
.4 Расчет ведомого вала
Строим расчетную схему сил, действующих
на ведомый вал, а также - эпюры изгибающих моментов в вертикальной и
горизонтальной плоскости, эпюру крутящих моментов (рисунок 5).
Вертикальная плоскость
Определяем реакции в опорах
:
;
;
.
:
;
;
.
Проверка.
:
;
;
- реакции определены верно.
Определим значения моментов
;
.
Наибольший изгибающий момент будет в
месте посадки подшипника F.
Выходной вал подвергается кручению
моментом
от
зубчатого колеса до выходного торца вала.
Горизонтальная плоскость
Определяем реакции в опорах
:
;
;
.
:
;
;
.
Проверка.
:
;
;
- реакции определены верно.
Определим значения моментов
;
.
Наибольший изгибающий момент
Подбор подшипников
Для подбора подшипников качения
определим суммарную реакцию в той опоре, где она будет больше.
;
.
Большая реакция в опоре F.
Рисунок 5 - Расчетная схема ведомого
вала
7. ОПРЕДЕЛЕНИЕ ЗАПАСА ПРОЧНОСТИ
Определение запаса сопротивления усталости
[3, с. 299; 34, ч.II, с. 30]:
,
где
- запас сопротивления усталости
только по изгибу (коэффициент запаса по нормальным напряжениям);
- запас сопротивления усталости
только по кручению (коэффициент запаса по касательным напряжения);
и
- амплитуды переменных составляющих
циклов напряжений;
и
- постоянные составляющие;
и
- коэффициенты, корректирующие
влияние постоянной составляющей цикла напряжений на сопротивление усталости;
и
- масштабный фактор и фактор
шероховатости поверхности;
и
- эффективные коэффициенты
концентрации напряжений при изгибе и кручении (ориентировочно можно назначить
по табл. 15.1 [3, с.300]).
Материал промежуточного и ведущего
валов - сталь 40Х, выходного - сталь 45.
Сталь 40Х -
МПа,
МПа.
Сталь 45 -
МПа,
МПа.
Определяем пределы выносливости для
всех валов.
МПа;
МПа.
Определяем максимальное напряжение
и
в опасных
сечениях валов:
;
МПа;
МПа;
МПа;
;
;
МПа;
МПа;
МПа;
Определяем коэффициенты для всех
валов:
Для вала I:
;
;
-
условие прочности выполняется;
Для вала II:
;
;
-
условие не удовлетворяется.
Уменьшим диаметр вала
мм.
Сделаем перерасчет:
МПа;
МПа;
;
;
-
условие прочности выполняется.
Для вала III:
;
;
условие не удовлетворяется.
Уменьшим диаметр вала
мм.
Сделаем перерасчет:
МПа;
МПа;
;
;
условие прочности выполняется.
Окончательные диаметры валов
получили:
мм;
мм;
мм
8. ПОДБОР ПОДШИПНИКОВ
Все данные об условиях работы
подшипников на валах редуктора и справочные коэффициенты сводим в таблицу.
Диаметры валов в месте посадки подшипников:
мм; у промежуточного -
мм; у
ведомого -
мм.
Таблица - Сводные данные подбора
подшипников
|
Сводные
данные
|
Обозначение
параметров
|
Вал
редуктора
|
|
|
ведущий
1
|
промежуточный
2
|
ведомый
3
|
|
|
Диаметры
концов вала под подшипники
|
|
|
 
|
|
|
|
Условия
работы ПК
|
,
об/мин75022083
|
|
|
|
|
,
ч360003600036000
|
|
|
|
|
млн.об1620475,2179,3
|
|
|
|
|
,
Н762,4976,22269
|
|
|
|
|
Справочные
коэффициенты для заданных условий работы ПК
|
3,613,613,61
|
|
|
|
|
0,3550,5330,738
|
|
|
|
|
111
|
|
|
|
|
111
|
|
|
|
|
111
|
|
|
|
|
Справочные
данные предварительно выбранного ПК
|
Серия
выбранного ПК
|
302
|
204
|
305
|
|
,
Кн8,910,011,1
|
|
|
|
|
,
кН5,516,37,9
|
|
|
|
|
Результаты
вычислений
|
,
Н5673,4608414558
|
|
|
|
|
,
кН8,815,429,4
|
|
|
|
|
Паспортное
значение превышает
расчетное , %12327,3
|
|
|
|
Подбор подшипников к валу червяка
Намечаем шарикоподшипник радиальный
однорядный средней серии - 302, у которого
кН,
кН,
[1].
Н;
кН
условие удовлетворяется.
превышает
на 1%.
Подбор подшипников к промежуточному
валу
Намечаем шарикоподшипник радиальный
однорядный легкой серии - 204, у которого
кН;
кН;
[1].
Тогда
Н;
кН
условие удовлетворяется.
Подбор подшипников к ведомому валу
Намечаем шарикоподшипник радиальный
однорядный средней серии - 305, у которого
кН;
кН;
[1].
Н;
кН - условие удовлетворяется.
превышает
на 27,3%.
9. ВЫБОР ШПОНОК
На валах в местах крепления деталей,
передающих крутящий момент, выполняют шпоночный паз, размеры которого, а также
размеры шпонок стандартизованы [3].
Материал шпонок - сталь 45,
нормализованная.
На колесо ведомого вала ø30 мм выбираем
призматическую шпонку по ГОСТ 23360-78:
,
.
Выбранную шпонку проверим на смятие:
,
где
- передаваемый крутящий момент;
- диаметр вала;
- высота шпонки;
- глубина паза вала;
- длина шпонки;
- допускаемое напряжение смятия,
МПа.
МПа
МПа - условие прочности
выполняется.
На шестерню промежуточного вала ø25 мм
выбираем призматическую шпонку по ГОСТ 23360-78:
,
.
Проверяем выбранную шпонку на
смятие:
МПа
МПа - условие прочности
выполняется.
На колесо промежуточного вала ø25 мм
выбираем призматическую шпонку по ГОСТ 23360-78:
,
.
Проверяем выбранную шпонку на
смятие:
МПа
МПа - условие прочности
выполняется.
Шпонка на валу III под муфтой
выбираем призматическую шпонку по ГОСТ 23360-78:
,
.
МПа
МПа - условие прочности не
выполняется. Таким образом, ставим 2 шпонки под углом 180.
Шпонка на валу I под муфтой выбираем
призматическую шпонку по ГОСТ 23360-78:
,
.
МПа
МПа - условие прочности
выполняется.
10. ОПРЕДЕЛЕНИЕ ОСНОВНЫХ РАЗМЕРОВ
КРЫШКИ И КОПУСА РЕДУКТОРА
Корпус должен быть достаточно
жёстким, чтобы предотвратить перекос осей валов под действием нагрузок.
Повышение жесткости при одновременном снижении массы корпуса обеспечивается
ребрами жесткости, которые так же увеличивают его поверхность охлаждения.
В современном конструировании
наблюдается тенденция формо-образования корпусов прямолинейными плоскостями.
Это облегчает обработку, а горизонтальную поверхность крышки используют, как
монтажную базу. В серийном производстве корпуса редукторов изготавливают литыми
из серого чугуна марки не ниже СЧ15.
Размеры основных элементов корпуса
приведены в таблице 9.1.
|
Параметры
|
Размер,
мм
|
|
1
|
Толщина
стенки корпуса редуктора
|
мм
|
Толщина
стенки крышки редуктора
|
мм
|
|
3
|
Толщина
верхнего фланца корпуса
|
мм
|
|
4
|
Толщина
нижнего фланца корпуса
|
мм
|
|
5
|
Толщина
рёбер основания корпуса
|
мм
|
|
6
|
Толщина
рёбер крышки
|
мм
|
|
7
|
Диаметр
фундаментных болтов
|
мм
|
|
8
|
Диаметр
болтов, соединяющих:
|
|
корпус
с крышкой у бобышек подшипников
|
мм
|
|
корпус
с крышкой по периметру соединения
|
мм
|
|
корпус
со смотровой крышкой
|
мм
|
|
крышка
подшипникового узла с корпусом
|
:М6; М8.
|
|
9
|
Число
болтов
|
|
диаметром
4
|
|
|
диаметром
8
|
|
|
диаметром
10
|
|
|
диаметром
4
|
|
|
диаметром
4; 4.
|
|
|
Параметры
|
Размер,
мм
|
|
Литейные
уклоны
|
3°
|
|
Литейные
радиусы
|
мм
|
Материал корпусных деталей: СЧ15 ГОСТ 1412 - 85
11. ТЕПЛОВОЙ РАСЧЕТ ЧЕРВЯЧНОЙ ПЕРЕДАЧИ
Механическая энергия в передаче превращается в
тепловую и нагревает передачу. Если отвод тепла недостаточный, то при температуре
свыше 900С масло теряет защитную способность, при этом возможно заедание и
передача выходит из строя. Червячные передачи работают с большими
тепловыделениями, поэтому для них необходимо производить тепловой расчёт,
который при установившемся тепловом состоянии производят на основе теплового
баланса, т.е. приравнивая тепловыделение теплоотдаче [3].
Перепад температур редуктора и окружающей среды
определяется по формуле:
,
где
- требуемая мощность
электродвигателя, Вт;
- КПД передачи;
- коэффициент теплоотдачи,
;
- поверхность тепловыделения,
.
Для проектируемого редуктора площадь
тепловыделяющей поверхности
.
В закрытых небольших помещениях при
отсутствии вентиляции
, в
помещениях с интенсивной вентиляцией
.Значение
уменьшается
при загрязнении корпуса редуктора.
Принимаем
.
Тогда
;
Для обычных редукторных масел
допускают наибольшую температуру 85 - 90
, а перепад температур
, то есть
охлаждение редуктора можно признать достаточным.
12. ВЫБОР СМАЗКИ
В машиностроении для смазывания
передач широко применяется наиболее простой способ - погружение зубчатых колес
в ванну с жидким маслом, так называемая картерная смазка [4].
Используется картерная смазка при
окружной скорости зубчатых колес
.
Предельно допустимая глубина
погружения колес в масляную ванну обусловлена минимальными затратами на
перемешивание и разбрызгивание масла. Если в масляную ванну погружаются
быстроходные и тихоходные колеса, то глубина погружения быстроходного колеса не
превышает две высоты зуба, а тихоходного - 0,25 радиуса колеса.
Детали червячного редуктора при нижнем
расположении червяка погружаются на глубину высоты витка. Для снижения потерь
мощности и тепловыделения при высокой частоте вращения червяка и длительной его
работе уровень масла в корпусе понижают, а для смазки зацепления на червяк
устанавливают разбрызгиватели. Масло в этом случае заливают до центра нижнего
тела качения подшипника.
Для повышения стойкости зубьев
против заедания желательно применять масло высокой вязкости. Однако при этом
увеличиваются потери на его перемешивание. Поэтому масло выбирают в зависимости
от окружной скорости, нагрузки и материала зубьев:
на зубчатом колесе
;
При окружной скорости 2…5
,
температуре для червячных передач при 100°С и контактных напряжениях
МПа
выбираем индустриальное масло И-Г-А-32 с кинематической вязкостью 29…35 Ст
[4, с. 173].
Уровень масла контролируют
маслоуказателем при остановке редуктора.
13. ВЫБОР МУФТЫ
Тип муфты выбирают в соответствии с
предъявленными к ней требованиями в приводном устройстве. Размер муфты и её
деталей зависят от величины передаваемого крутящего момента.
При подборе стандартных муфт
учитывают так же диаметры концов валов, которые муфта должна соединять.
Широко применяемые муфты
стандартизованы. Их подбирают из ГОСТов по величине расчётного крутящего
момента
:
,
где
- коэффициент, учитывающий режим
работы привода. Для ленточных транспортёров
.
- номинальный крутящий момент.
;
На ведомый вал ставим
фтулочно-пальцевую муфту ГОСТ 50895-96 с номинальным крутящим моментом 240
и
мм.
.
14. ВЫБОР ПОСАДОК ДЕТАЛЕЙ
Посадки основных деталей, редуктора,
а также шкивов и муфт выбираем по рекомендациям [5, ч.III, с. 36].
Посадка шкива (ведущего, ведомого) -
Н7/к6;
Посадка зубчатого колеса на вал -
Н7/р6;
Посадка муфты - Н7/к6;
Посадка крышек подшипников качения -
Н7/h8;
Отклонение вала при посадке
внутренних колец подшипников качения на вал - к6;
Отклонения отверстий при посадке
наружных колец подшипников качения - Н7.
15. ПОРЯДОК СБОРКИ РЕДУКТОРА
Перед сборкой внутреннюю полость
корпуса редуктора тщательно очищают и покрывают краской.
Сборку проводят в соответствии с
чертежом общего вида редуктора начиная с узлов валов. На валы надевают
подшипники с распорными втулками и закладывают шпонки. Собранные валы
устанавливают в основание корпуса редуктора и надевают крышки корпуса, покрывая
предварительно поверхности стыка крышки и корпуса спиртовым лаком.
Перед установкой крышек в них
закладывают резиновые манжеты. Проверяют проворачивание валов, отсутствие
заклинивания подшипников и закрепляют крышки винтами.
Заливают в корпус масло и закрывают
смотровое отверстие крышкой с прокладкой, закрепляют крышку болтами.
СПИСОК ИСПОЛЬЗУЕМЫХ ИСТОЧНИКОВ
Врублевская
В.И., Врублевский В.Б. Детали машин и основы конструирования: Курсовое
проектирование. - Гомель: БелГУТ, 2006.- 434 с.
Врублевская
В.И., Врублевский В.Б., Довгяло В.А. Детали машин и основы конструирования:
Пособие по курсовому проектированию. - Гомель, 2005. - 36 с.
Иванов
М.Н. Детали машин / под редакцией Финогенова В.А.-6-е изд., перераб. - М.:
Высш. шк., 2000. - 383 с.
Курмаз
Л.В., Скоробейда А.Т. Проектирование. Детали машин. - Минск. 2001.
Дунаев
П.Ф., Леликов О.П. Конструирование узлов и деталей машин. - 5-е изд., М.:
Высшая школа, 1998. - 447 с.
ЕСКД.
Основные положения. ГОСТ 2.001-70… ГОСТ 2.124-85.
ЕСКД.
Общие правила выполнения чертежей. ГОСТ 2.301-68…
ГОСТ
2.320-82. - М.: Государственный комитет стандартов Совета Министров СССР, 1977.
- 208с.
1.