Проектирование оснований и фундаментов четырёхэтажного жилого дома в городе Брянск
Федеральное
агентство по образованию
Государственное
образовательное учреждение высшего профессионального образования
Нижегородский
государственный архитектурно-строительный университет
Инженерно -
строительный институт
Кафедра
Основания и Фундаменты
ПОЯСНИТЕЛЬНАЯ
ЗАПИСКА
к
курсовой работе на тему:
«Проектирование
оснований и фундаментов
четырёхэтажного
жилого дома в городе Брянск»
Студент гр . 151 Новиков М.А.
Преподаватель: Сучкова Е. О.
Нижний
Новгород 2012
Введение
В соответствии с заданием необходимо запроектировать основание и
фундамент под жилой дом в городе Брянск. Наружные стены из силикатного кирпича
толщиной 640 мм, внутренние из силикатного кирпича толщиной 380 мм, кровля - 4
слоя рубероида на мастике, защитный слой - гравий, перекрытия из ж/б
многопустотных панелей по серии 1.141-1.
На участке строительства пробурено 3 скважины. Каждая скважина проходит 2
слоя грунта, заглубляясь в третий. Глубина скважин - м.
.
Обработка результатов исследований физико-механических свойств грунтов
.1 Инженерно-геологический элемент №1
)Число пластичности:
IP=WL-WP,%
WL=26% - влажность на границе текучести,
WP=16%- влажность на границе раскатывания
IP=26-16=10%
Так как 7%≤IP≤17%, следовательно, тип грунта - суглинок, по табл. 2.4 [1]
) Показатель текучести:

, д.е.

-
влажность

д.е.
По
показателю текучести определяем консистенцию, по табл.2.5 [1]:
Il≤
0 следовательно, суглинок твёрдый.
3) Плотность сухого грунта:

, г/см3

г/см3
ρ=1,80 г/см3 плотность грунта

-
влажность
4)Коэффициент пористости:

,д.е.
ρs=2,65
г/см3 - плотность частиц

д.е.
Определяем
плотность сложения грунта по табл. 2.3 [1]: так как
e0 >0,70, следовательно пески рыхлые.
5)Степень влажности:

,д.е.
ρW=1 г/см3-
плотность воды

=0,556д.е.
)Пористость:

, д.е.

д.е.
7)Полная влагоемкость:

, %

%
8)Расчетное сопротивление грунта, для выбора основания под фундамент
определяем по табл. 3.1 [1] (по коэффициенту пористости и текучести)
R0=241
.2
Инженерно-геологический элемент №2
)Число пластичности:
IP=WL-WP,%
WL=25% - влажность на границе текучести,
WP=17%- влажность на границе раскатывания
IP=25-17=8%
Так как 7%≤IP≤17%, следовательно, тип грунта - суглинок, по табл. 2.4 [1].
)Показатель текучести:

, д.е.

-
влажность

д.е.
По
показателю текучести определяем консистенцию, по табл.2.5 [1]: 0≤Il≤0,25, следовательно, суглинок полутвёрдый.
3) Плотность сухого грунта:

, г/см3

, г/см3
ρ=1,76 г/см3 плотность грунта
4) Коэффициент пористости:

,д.е.
ρs=2,70
г/см3 - плотность частиц

д.е.
5) Степень влажности:

,д.е.
ρW=1 г/см3-
плотность воды

=0,578д.е.
6) Пористость:

, д.е.
7)Полная влагоемкость:

, %

,%
8)Расчетное сопротивление грунта, для выбора основания под фундамент
определяем по табл. 3.1 [1]
(по коэффициенту пористости и показателю текучести)
R0= 235 кПа
.3 Инженерно-геологический элемент №3
) Гранулометрический состав определяется по табл. 2.1 [1]:
+0+0,4<25%
+0+0,4+10.7<25%
+0+0,4+10,7+40,8>50%
Следовательно, песок средней крупности.
)Плотность сухого грунта:

, г/см3

, г/см3
ρ=1,8 г/см3 плотность грунта
3)Коэффициент пористости:

,д.е.
ρs=2,66г/см3
- плотность частиц

д.е.
Определяем
плотность сложения грунта по табл. 2.3 [1]: так как
,55
< e0 <
0,70, следовательно пески средней плотности.
4)Степень влажности:

,д.е.
ρW=1 г/см3-
плотность воды

=0,564д.е.
По
степени влажности определяем влажность песка по табл. 2.2 [1]:так как 0,5≤Sr≤0,8, следовательно, пески влажные
5)Пористость:

, д.е.
6. Полная влагоемкость:

, %

,%
7) Расчетное сопротивление грунта, для выбора основания под
фундамент определяем по табл. 3.1 [1] (в зависимости от плотности и крупности)
R0=400 кПа
.4 Определение модуля деформации по результатам испытания ИГЭ №1
штампом
Модуль деформации определяется по формуле:
ω=0,79 безразмерный коэффициент,
учитывающий форму штампа
d=0,798
диаметр штампа в метрах
ν=0,3 коэффициент Пуассона
∆p=(p2-p1),
кПа - приращение давления на штамп между двумя точками, взятыми на
определенном прямолинейном участке
∆S=(S2-S1), м - приращение осадки штампа,
между двумя точками
График испытания штампом представлен на рис.1.1.
Из графика находим:
∆p=(100-50)=50 кПа
∆S=(0,003-0,001)=0,002м
E=
0,79·0,798·(1-0,32 )·50/0,002=14343,055кПа
.5 Компрессионные испытания грунтов
а) ИГЭ №2
) Коэффициент сжимаемости:

,кПа-1
р1=50
кПа
р2=100
кПа
e1, e2 -
коэффициенты пористости соответствующие принятым давлениям
e1=0,790, e2=0,780

кПа-1
2)
Компрессионный модуль деформации:

, кПа
β=0,62 безразмерный коэффициент суглинка
e0=0,800- начальный коэффициент пористости при р=0

кПа
)
Приведенный (природный) модуль деформации:
E=Eoed·mк, кПа
=5580· 3,5 = 19530 , кПа
mк=3,5, корректирующий коэффициент, определяемый по
табл. 2.2 [1]
График
компрессионного испытания представлен на рис. 1.2
б)
ИГЭ №3
)
Коэффициент сжимаемости:

,кПа-1
р1=50
кПа
р2=100
кПа
e1, e2 -
коэффициенты пористости соответствующие принятым давлениям
e1=0,655, e2=0,650

кПа-1
2)
Компрессионный модуль деформации

, кПа
β= 0,62 ,безразмерный коэффициент песка
e0=0,663- начальный коэффициент пористости при р=0

кПа
)
Приведенный (природный) модуль деформации
E=Eoed·mк, кПа
E= 10310,6 · 1 =
10310,6 кПа
mк= 1 корректирующий коэффициент, определяемый по табл.
2.2 [1]
График
компрессионного испытания представлен на рис. 1.2
Таблица
1.1 Сводная ведомость физико-механических свойств грунтов
|
Характеристики грунтов
|
ИГЭ №1
|
ИГЭ№2
|
ИГЭ№3
|
|
Вид, тип, разновидность
|
Суглинок твердый
|
Суглинок полутвердый
|
Песок средний
|
|
1. Влажность грунта W%
|
15
|
17
|
14
|
|
2. Влажность на границе текучести WL,%
|
26
|
25
|
-
|
|
3. Влажность на границе раскатывания WP,%
|
16
|
17
|
-
|
|
4. Плотность грунта, ρ, г/см3
|
1,80
|
1,76
|
1,82
|
|
5. Плотность частиц грунта ρS, г/см3
|
2,71
|
2,70
|
2,66
|
|
6. Плотность сухого грунта ρd, г/см3
|
1,565
|
1,504
|
1,596
|
|
7. Удельный вес γ, кН/м3
|
17,8
|
17,3
|
18,0
|
|
8. Коэффициент пористости, e0
|
0,731
|
0,794
|
0,66
|
|
9. Полная влагоемкость Wsat,%
|
26,9
|
29,4
|
24,81
|
|
10. Число пластичности IP,%
|
10
|
8
|
-
|
|
11. Число текучести IL, д.е.
|
0,125
|
0
|
-
|
|
12. Степень влажности Sr, д.е.
|
0,556
|
0,578
|
0,564
|
|
13. Угол внутреннего трения φ°
|
23
|
28
|
34
|
|
14. Удельное сцепление с, кПа
|
25
|
23
|
-
|
|
15. Пористость n, д.е.
|
0,422
|
0,442
|
0,39
|
|
16. Модуль деформации Е, кПа
|
14344,055
|
19530
|

|
|
17. Расчетное сопротивление R0, кПа
|
241
|
235
|
400
|
железобетонный фундамент строительство дом
2. Оценка инженерно-геологических условий участка застройки
.1 Краткая оценка площадки
Участок строительства расположен в городе Брянске. Рельеф участка
относительно ровный. На строительном участке не устраивается планировка. Разрез
участка представлен следующими инженерно-геологическими элементами:
ИГЭ№1 представлен твердым суглинком.
Возраст dQIV
Расчетное сопротивление R0=241
Основные характеристики слоя:
Е=14344,055 кПа
φII =23°
сII=25 кПа
γII= 17,8 кН/м3
Данный слой рекомендуется использовать в качестве основания под
фундамент.
ИГЭ№2 представлен полутвёрдым суглинком.
Возраст a-dQIV
Расчетное сопротивление R0= 235 кПа
Основные характеристики слоя:
Е= 19530 кПа
φII =28°
сII=23 кПа
γII= 17,3 кН/м3
Данный слой рекомендуется использовать в качестве основания под
фундамент.
ИГЭ№3 представлен песком влажным средней крупности.
Возраст dQIII
Расчетное сопротивление R0= 400 кПа
Основные характеристики слоя:
Е=

кПа
φII =34°
γII=
18 кН/м3
Данный
слой не рекомендуется использовать в качестве основания под фундамент.
.2
Определение расчетной глубины промерзания грунтов
В
соответствии с пунктом 2.27 и 2.28 [2] глубина промерзания определяется по
формуле:

,м
kh=0,7
коэффициент, учитывающий влияние теплового режима сооружения на промерзание
грунта и наружные стены при температуре 5°С.
dfn -
нормативная глубина промерзания

,м
d0=0,23 (суглинки и глины), берем для первого слоя
грунта
Mt - среднее
значение суммы абсолютных среднемесячных отрицательных температур за зиму в
районе строительства, Mt=27,2 (по заданию).

,м

,м
Примем
расчётную глубину промерзания равную 
2.3
Выбор глубины заложения подошвы ленточного фундамента
На
глубину заложения влияют следующие факторы:
1) Расчетная глубина промерзания df должна быть меньше глубины заложения
фундаментов;
) Конструктивные особенности здания (наличие подвала);
) Инженерно-геологические условия строительной площадки;
) Гидрогеологические условия строительной площадки - грунтовые
воды не вскрыты.
dВ - глубина подвала (расстояние от
уровня земли до пола подвала);
hcf -толщина пола подвала hcf = 0,1 м
hs - толщина слоя грунта выше подошвы фундамента со стороны подвала, hs=0,5м;
d1 - приведенная глубина заложения
фундамента, определяется по формуле:

, м
γcf
- расчетное значение удельного веса подвала γcf=22кН/м3;
γII´- осредненное расчетное значение удельного веса
грунтов, залегающих выше подошвы фундамента,

, кН/м3

м
2.5
Инженерно-геологический разрез
3. Нагрузки, действующие в расчетных сечениях
Расчет оснований и фундаментов проводится по двум группам предельных
состояний.
По I группе предельных состояний
определяем несущую способность свайного фундамента. Проверяется прочность
конструкции фундамента и устойчивость основания. Расчет проводится по расчетным
усилиям с коэффициентом надежности γf>1.
По II группе предельных состояний
определяется размер подошвы ленточного фундамента и осадка основания. Расчет
ведется по расчетным усилиям с коэффициентом надежности γf=1.
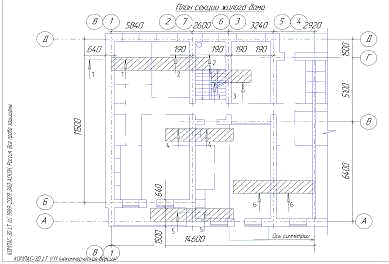
.1 Выбор расчетных сечений и определение грузовых площадей
Сечение 1-1
Наружная несущая стена без окон
lст=1 пог.м.

м

м
Сечение
2-2
Внутренняя несущая стена с лестницей
lст=1 пог.м.

3,84 м

м
Сечение
3-3
Внутренняя несущая стена с лестницей
lст=1 пог.м.


2,92
Сечение
4-4
Внутренняя несущая стена
lст=1 пог.м.

м

м
Сечение
5-5
Наружная несущая стена с балконом
lст=1 пог.м.

м

м
Сечение
6-6
Внутренняя несущая стена
lст=1 пог.м.

м

м
3.2 Постоянные нагрузки
.2.1 Постоянные распределенные нагрузки на 1 м2 покрытия и
перекрытия
Таблица 3.1
|
Характеристика нагрузок
|
Нормативная нагрузка
|
Расчетная нагрузка
|
|
|
|
По II группе пред. состояний
|
По I группе пред. состояний
|
|
|
|
|
PII
|
|
PI
|
|
|
Покрытия:
|
|
|
1. Панели ж\б ребристые по сер. 1.465.1-7/84
|
1,7
|
1,7
|
1,1
|
1,87
|
|
|
2. Утеплитель - керамзит
|
0,8
|
1
|
0,8
|
1,3
|
1,04
|
|
|
3. Стяжка - цементный раствор М-100
|
0,6
|
1
|
0,6
|
1,3
|
0,78
|
|
|
4. Кровля - 4 слоя рубероида на мастике, защитный слой -
гравий
|
0,4
|
1
|
0,4
|
1,2
|
0,48
|
|
|
mпк
|
3,5
|
4,17
|
|
|
Междуэтажные перекрытия:
|
|
|
1. Панели ж/б многопустотные по серии 1.141-1
|
3,2
|
1
|
3,2
|
1,1
|
3,52
|
|
|
2. Доски по лагам / Линолеум по бетонной подготовке.
|
1,0
|
1
|
1,0
|
1,2
|
1,2
|
|
|
mпер
|
4,2
|
4,72
|
|
|
Элементы лестничных клеток:
|
|
|
Марши ж/б серии 1.151-6.8.1.; площадки ж/б серии
1.152-8.8.1.
|
3,8
|
1
|
3,8
|
1,1
|
4,18
|
|
|
mлест
|
3,8
|
4,18
|
|
|
Перегородки:
|
|
|
Гипсобетонные панели по ГОСТ 9574-80
|
0,3
|
1
|
0,3
|
1,2
|
0,36
|
|
|
mпер
|
0,3
|
0,36
|
|
|
Перекрытие чердака:
|
|
|
1. Панели ж/б многопустотные по серии 1.141-1
|
3,2
|
1
|
3,2
|
1,1
|
3,52
|
|
|
2. Утеплитель-Керамзит
|
0,8
|
1
|
0,8
|
1,3
|
1,04
|
|
|
3. Стяжка - цементный раствор М-100
|
0,6
|
1
|
0,6
|
1,3
|
0,78
|
|
|
mпк
|
4,6
|
5,34
|
|
|
Перекрытие лоджий:
|
|
|
1.Панели ж/б многопустотные по серии 1.141-1
|
3,2
|
1
|
3,2
|
1,1
|
3,52
|
|
2.Стяжка - цементный раствор М-100
|
0,6
|
1
|
0,6
|
1,3
|
0,78
|
|
4.Кровля - 4 слоя рубероида, на мастике, защитный
слой-гравий
|
0,4
|
1
|
0,4
|
1,2
|
0,48
|
|
|
|
4,2
|
|
4,78
|
|
|
|
|
|
|
|
|
|
|
.2.2 Расчетные нагрузки от собственного веса стен
Наружная стена имеет высоту 24,4м, внутренняя стена имеет высоту 22,4м
Толщина наружной стены 640мм
Удельный вес наружной стены γ=16 кН/м3
Внутренняя стена имеет высоту 22,4м
Толщина внутренней стены 380мм
Удельный вес внутренней стены γ=17 кН/м3
а) Наружная несущая стена без проемов, ось 1:
Pст=
+
, кН,
где:

-объем
парапета

= 16 кН/м3-удельный
вес парапета;

, м3
, где:

=0,64 м

=24,4 м

= 1 м

= 0,64
24,4 
1 =
15,616 м3

, где:

п = 0,51 м - толщина парапета

= 1,1 м -
высота парапета

= 1 м

0,51 
1,1 
= 0,561 м3
Pст= 15,616 
16 +
0,561 
16 = 258
, 832 кН
б)
Внутренняя несущая стена с лестницей, ось 2:


,
Получаем:

;

.
в)
Внутренняя несущая стена с лестницей, ось 3:


,
Получаем:

;

.
г)
Внутренняя несущая стена без проемов, ось 2:


,
Получаем:

;

.
д
) наружная несущая стена с балконом, ось 2:
Pст=
+
, кН ,
где:

-объем
парапета

= 16 кН/м3-удельный
вес парапета;

, м3
, где :

=0,64 м

=24,4 м

= 1 м

= 0,64
24,4 
1 =
15,616 м3

, где:

п = 0,51 м - толщина парапета

= 1,1 м -
высота парапета

= 1 м

0,51 
1,1 
= 0,561 м3
Pст= 15,616 
16 +
0,561 
16 = 258
, 832 кН
е)
Внутренняя несущая стена без проемов, ось 4:


,
Получаем:

;

Таблица
3.2 Расчетные нагрузки от собственного веса стен
|
Нормативная нагрузка, кН
|
Расчетные нагрузки
|
|
|
|
PII
|
|
PI
|
|
Стена по оси 1
|
258 , 832
|
1
|
258 , 832
|
1,1
|
284,72
|
|
Стена по оси 2
|
|
1
|
|
1,1
|
149,81
|
|
Стена по оси 3
|
|
1
|
|
1,1
|
149,81
|
|
Стена по оси 2
|
|
1
|
|
1,1
|
149,81
|
|
Стена по оси 2
|
258 , 832
|
1
|
258 , 832
|
1,1
|
284,72
|
|
Стена по оси 4
|
|
1
|
|
1,1
|
149,81
|
.3 Временные нагрузки
Нагрузки на перекрытия и снеговые нагрузки, согласно СНиП 2.01.07-85*,
могут относиться к длительным и кратковременным.
При расчете по I
группе предельных состояний, они учитываются как кратковременные.
При расчете по II
группе предельных состояний как длительные.
Для определения длительных нагрузок берутся пониженные нормативные
значения, для кратковременных - полные нормативные значения.
.3.1 Снеговая нагрузка на покрытие по зданию
а) Нагрузка для расчета по II
группе предельных состояний:
S -
полное нормативное значение
Sq =1,8 - расчетное значение веса снегового покрова, по СНиП 2.01.07-85*
μ=1 - коэффициент перехода от веса
снегового покрова к снеговой нагрузке на покрытия
Sn - пониженное значение снеговой нагрузки
k =0,5
- коэффициент понижения
SII - расчетное значение длительной снеговой нагрузки,
ψI=0,95 - коэффициент сочетания для длительной нагрузки
б) Нагрузка для расчета по I
группе предельных состояний:
ψII=0,9 - коэффициент сочетания для
кратковременной нагрузки
.3.2 Нагрузки на междуэтажные перекрытия
Междуэтажные перекрытия - нагрузки от людей, животных, оборудования и
включают квартиры жилых зданий, чердачные помещения, коридоры и лестницы.
а) для расчета по II
группе предельных состояний
Расчет длительных нагрузок рассчитывается по формуле

, кПа
Pn -
понижающее значение нормативной нагрузки
для
квартир жилых зданий - 0,3 кПа

, кПа
для
чердачных помещений - 0 кПа

, кПа
для
коридорных лестниц - 1 кПа

, кПа
γf=1 -
коэффициент надежности по нагружению
ψI =0,95
б)
для расчета по I группе предельных состояний
Расчет
кратковременных нагрузок рассчитывается по формуле

, кПа
Pn - полное
значение нормативной нагрузки
для
квартир жилых зданий - 1,5 кПа

кПа
для
чердачных помещений - 0,7кПа

кПа
для
коридорных лестниц - 3кПа

кПа
γf -
коэффициент надежности по нагружению
для
квартир жилых зданий - 1,3
для
чердачных помещений - 1,3
для
коридорных лестниц - 1,2
ψII =0,9
Коэффициент
сочетаний определяется по формуле
ψn1=1 для чердака
ψА1=1 для
ленточных фундаментов
Таблица
3.3
|
Вид нагружения
|
По II
группе предельных состояний
|
По I
группе предельных состояний
|
|
Постоянные
|
|
1.Покрытия
|
3,5
|
4,17
|
|
2.Междуэтажные перекрытия
|
4,2
|
4,72
|
|
3.Перекрытия чердака
|
4,6
|
5,34
|
|
4.Элементы лестничных клеток
|
3,80
|
4,18
|
|
5.Перегородки
|
0,3
|
0,36
|
|
Временные
|
|
1.Снег
|
0,855
|
1,62
|
|
2.Квартиры
|
0,285
|
1,05
|
|
3.Чердак
|
0,00
|
0,80
|
|
4.Коридорные лестницы
|
0,95
|
1,90
|
.4 Нагрузки, действующие в расчетных сечениях
Таблица 3.4
|
№
|
Характеристики нагрузок
|
|
|
|
|
|
|
|
|
|
|
|
|
|
|
|
|
Сечение 1-1
|
Сечение 2-2
|
Сечение 3-3
|
Сечение 4-4
|
Сечение 5-5
|
Сечение 6-6
|
|
|
n0II, кН/м
|
n0I, кН/м
|
n0II, кН/м
|
n0I, кН/м
|
n0II, кН/м
|
n0I, кН/м
|
n0II, кН/м
|
n0I, кН/м
|
n0II, кН/м
|
n0I, кН/м
|
n0II, кН/м
|
n0I, кН/м
|
|
Постоянные
|
|
1
|
Кирпичная стена
|
258,83
|
284,72
|
|
149,81
|
|
149,81
|
|
149,81
|
258,83
|
284,72
|
|
149,81
|
Оконное заполнение
|
-
|
-
|
-
|
-
|
-
|
-
|
-
|
-
|
-
|
-
|
-
|
-
|
|
3
|
Крыша
|
|
|
|
|
|
|
|
|
|
|
|
|
|
4
|
Междуэтажное перекрытие
|
|
|
|
|
|
|
|
|
|
|
|
|
|
5
|
Лестница
|
-
|
-
|
|
|
|
|
-
|
-
|
-
|
-
|
-
|
-
|
6 Чердачные
перекрытия

12








|
|
|
|
|
|
|
|
|
|
|
|
|
7
|
Лоджия
|
-
|
-
|
-
|
-
|
-
|
-
|
-
|
-
|
4,2· 2,47·8= 82,99
|
4,72· 2,47·8= 93,26
|
-
|
-
|
|
8
|
Перегородки
|
|
|
-
|
-
|
-
|
-
|
|
|
-
|
-
|
|
|
|
Итого:
|
387,14
|
430,6
|
295,84
|
329,82
|
241,66
|
268,69
|
392,23
|
441,58
|
480,27
|
536,6
|
392,23
|
441,44
|
|
Временные
|
|
1
|
Снег
|
|
|
|
|
|
|
|
|
|
|
|
|
|
2
|
Междуэтажные перекрытия
|
|
|
|
|
|
|
|
|
|
|
|
|
|
3
|
На лестницу и коридоры
|
-
|
-
|
|
|
|
|
-
|
-
|
-
|
-
|
-
|
-
|
|
4
|
Чердачное помещение
|
-
|
|
|
|
|
|
-
|
|
-
|
 --
|
|
|
|
Итого:
|
8,73
|
30
|
18,28
|
50
|
14,31
|
35.94
|
17,46
|
60
|
11,24
|
20,35
|
17,46
|
60
|
|
Всего:
|
395,87
|
460,6
|
314,12
|
379,82
|
255.97
|
304,63
|
409,69
|
501,58
|
491,51
|
556,95
|
409,69
|
501,58
|
|
|
|
|
|
|
|
|
|
|
|
|
|
|
|
|
4. Вариант конструктивного решения фундамента и основания
Для сравнения рекомендуется принять следующие варианты фундаментов:
) Сборный ленточный фундамент на естественном основании с обратной
засыпкой песком средней крупности, средней плотности сложения с γ’II=16,5 кН/м3
) Ленточный свайный фундамент, условия засыпки те же.
Для сравнения 2-х вариантов выбираем сечение с максимальной нагрузкой.
Сечение 5-5
n0II=491,51кН
n0I=556,95 кН
5.
Вариант ленточного фундамента на естественном основании
.1 Определение размеров подошвы ленточного фундамента
Ширина ленточного фундамента определяется по формуле:

,м [5.1]
где
n0II - расчетная нагрузка по II
группе предельных состояний в заданном сечении.
γmg=20 кН/м3
- среднее значение удельного веса грунта на уступах фундамента и самого
фундамента
d =2,2 м -
глубина заложения фундамента
R- расчетное
сопротивление грунта, определяемое по формуле:

[5.2]
где
γс1 и γс2 - коэффициенты
условий работы, принимаемые по табл.3.3 методических указаний;
γс1=1,25
зависит от вида грунта;
γс2=1,23
зависит от отношения длины сооружения к высоте(30,1/24,4=1,23);
k - коэффициент,
учитывающий способ определения характеристик прочности грунта φII
и сII. Так как характеристики определяются лабораторным
путем, то k=1;

-
коэффициенты, принимаемые по табл.3.2. методических указаний, в зависимости от
угла внутреннего трения несущего слоя φII=23°:

kz - коэффициент,
зависящий от ширины подошвы фундамента, т.к. b<10м, то kz=1;

кН/м3
- удельный вес грунта несущего слоя;

кН/м3
- удельный вес грунта, расположенного выше подошвы фундамента;

м -
приведенная глубина заложения фундамента со стороны подвала;

- глубина
подвала;

-
удельное сцепление грунта.
Решая
совместно эти уравнения получим квадратное уравнение для вычисления подошвы
фундамента:

[5.3]
То
есть ширина подошвы фундамента определиться следующим образом:

,м [5.4]
где

, 

,м
Принимаем
ФЛ 12.30
Сечение
1-1 

,м
Принимаем
ФЛ 10.30
Сечение
2-2 
379,82

м
Принимаем
ФЛ 8.24
Сечение
3-3 

,м
Принимаем
ФЛ 6.24
Сечение
4-4 
501,58

,м
Принимаем
ФЛ 10.30
Сечение
6-6 

,м
Принимаем
ФЛ 10.30
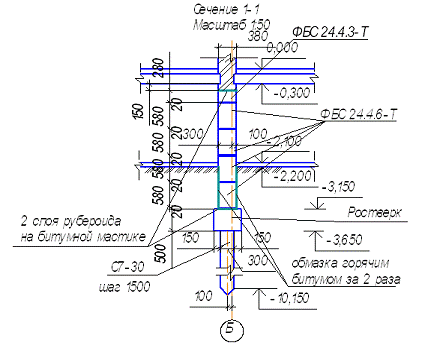
.2 Конструирование ленточного фундамента из сборных железобетонных блоков
Под наружные стены используются блоки ФБС 24.6.6-Т и ФБС 24.6.3-Т
(сечение 1-1, 5-5).
Под внутренние стены используются блоки ФБС 24.4.6-Т и ФБС 24.4.3-Т
(сечение 2-2, 3-3 4-4, 6-6).
5.3 Проверка напряжений под подошвой фундамента
Основное условие, которое должно выполняться при проектировании
фундамента:
где P - среднее давление под подошвой
фундамента
R-
расчетное сопротивление грунта
Cреднее
давление под подошвой фундамента определяется по формуле:

, кПа [5.5]
где
noII -
нагрузка на обрезе фундамента;
nfII
- вес 1п.м. фундамента;

[5.6]
где
nпл - вес
одного погонного метра плиты:
бл - вес блоков:
kбл - количество блоков;
kgбл - количество доборочных блоков;
nкк - вес кирпичной кладки;
hкк - высота кирпичной кладки;
ngII - вес
грунта на уступах фундамента:

[5.7]
А
=b- ширина фундамента на 1п.м.
Сечение
1-1
ФЛ
10.30; ФБС 24.6.6-Т или ФБС 24.6.3-Т
Находим
R по формуле [5.2] при b=1,0 м

P: noII =395,87кН


0,74=8,998
кН


, кПа
Р=450,285<R=
кПа -
условие выполняется
Сечение 2-2
ФЛ 8.24; ФБС 24.6.6-Т или ФБС 24.6.3-Т
Находим R по формуле [5.2] при b=0,8м

P: noII =314,12кН


кН


кПа
Р=441,075<R=606,69кПа
- условие выполняется
Сечение
3-3
ФЛ
6.24; ФБС 24.4.6-Т или ФБС 24.4.3-Т
Находим
R по формуле [5.2] при b=0,6 м

P: noII =255,97кН


0,74=5,34
кН


, кПа
Р=485,86<R=
кПа -
условие выполняется
Сечение
4-4
ФЛ
10.30; ФБС 24.4.6-Т или ФБС 24.4.3-Т
Находим
R по формуле [5.2] при b=1 м

P: noII =409.69кН



кПа
Р=446,83<R=612,53кПа
- условие выполняется
Сечение
5-5
ФЛ
12.30; ФБС 24.6.6-Т или ФБС 24.6.3-Т
Находим
R по формуле [5.2] при b=1,2 м

P: noII =491,51 кН



0,74=8,998
кН


кПа
Р=447,44<R=618,37кПа
- условие выполняется
Сечение
6-6
ФЛ
10.30; ФБС 24.4.6-Т или ФБС 24.4.3-Т
Находим
R по формуле [5.2] при b=1 м

P: noII =409.69кН



кПа
Р=446,83<R=612,53кПа
- условие выполняется
6. Определение осадки фундамента мелкого заложения методом послойного
суммирования
Расчет основания по деформациям проводятся исходя из условия:
- совместная деформация основания и сооружения, определяемая
расчетом;
Su -
предельное значение совместной деформации основания и сооружения: 
для
кирпичных зданий
Осадка
определяется по формуле:
β=0,8 - реологический коэффициент для метода
послойного суммирования;

-
среднее значение дополнительного вертикального нормального напряжения в i
слое грунта, кПа;

-
толщина i слоя грунта, м;

- модуль
деформации i слоя грунта.
Составляем
расчетную схему.
Порядок
расчета
1. Вертикальное нормальное напряжение от собственного веса грунта в
уровне подошвы фундамента
. Дополнительное напряжение от здания в уровне подошвы фундамента
где Р= 485,86кПа - для сечения 5-5

, кПа
. Толщину
грунта ниже подошвы фундамента разбиваем на элементарные слои толщиной 
,м

,м
4. В каждой точке расположенной ниже подошвы фундамента, находим
напряжение от собственного веса грунта

кПа
5. Находим коэффициент затуханий
α определяем по табл.5.1
где z- расстояние от подошвы фундамента до
рассматриваемой точки;

- для
ленточных фундаментов
6. В каждой точке, расположенной ниже подошвы фундамента, находим
вертикальные дополнительные напряжения от здания:
где

7. Строим
эпюру 
. Определяем
границу сжимающей толщи грунта, которая находиться на такой глубине под
подошвой фундамента, где 
Таблица 6.1
|
№ слоя
|
hi
|
zi
|
|
|
|
|
|
|
β
|
|
|
|
0
|
0,48
|
0
|
0
|
1,0000
|
408,28
|
39,16
|
7,832
|
-
|
-
|
-
|
-
|
|
1
|
0,48
|
0,48
|
0,8
|
0,8810
|
359,6947
|
47,704
|
9,5408
|
383,99
|
0,8
|
14344
|
0,01027
|
|
2
|
0,48
|
0,96
|
1,6
|
0,6420
|
262,1158
|
56,248
|
11,2496
|
310,90
|
0,8
|
14344
|
0,00832
|
|
3
|
0,48
|
1,44
|
2,4
|
0,4770
|
194,7496
|
64,792
|
12,9584
|
228,43
|
0,8
|
14344
|
0,0061
|
|
4
|
0,48
|
1,92
|
3,2
|
0,3740
|
152,6967
|
73,336
|
14,6672
|
173,72
|
0,8
|
14344
|
0,0046
|
|
5
|
0,48
|
2,4
|
4
|
0,3060
|
124,9337
|
81,88
|
16,376
|
138,81
|
0,8
|
14344
|
0,0035
|
|
6
|
0,48
|
2,88
|
4,8
|
0,2580
|
105,3362
|
90,4424
|
18,08848
|
115,13
|
0,8
|
14344
|
0,0029
|
|
7
|
0,48
|
3,36
|
5,6
|
0,2230
|
91,04644
|
98,968
|
19,7936
|
98,19
|
0,8
|
14344
|
0,0025
|
|
8
|
0,04
|
3,4
|
5,666
|
0,2200
|
89,8216
|
99,68
|
19,936
|
90,43
|
0,8
|
14344
|
0,0002
|
|
9
|
0,48
|
3,88
|
6,46
|
0,1942
|
79,28798
|
107,984
|
21,5968
|
84,55
|
0,8
|
19530
|
0,00165
|
|
10
|
0,48
|
4,36
|
7,26
|
0,1736
|
70,87741
|
116,288
|
23,2456
|
75,08
|
0,8
|
19530
|
0,00147
|
|
11
|
0,48
|
4,84
|
8,06
|
0,1568
|
64,0183
|
124,592
|
24,9184
|
67,45
|
0,8
|
19530
|
0,00133
|
|
12
|
0,48
|
5,32
|
8,86
|
0,1429
|
58,34321
|
132,896
|
26,5792
|
61,18
|
0,8
|
19530
|
0,00119
|
|
13
|
0,48
|
5,8
|
9,66
|
0,1311
|
53,52551
|
141,2
|
28,24
|
55,93
|
0,8
|
19530
|
0,0011
|
|
14
|
0,48
|
6,28
|
10,46
|
0,1212
|
49,48354
|
149,504
|
29,9008
|
51,5
|
0,8
|
19530
|
0,001
|
|
15
|
0,48
|
6,76
|
11,26
|
0,1124
|
45,89067
|
157,808
|
31,5616
|
47,685
|
0,8
|
19530
|
0,00094
|
|
16
|
0,48
|
7,24
|
12,06
|
0,1055
|
43,073
|
166,112
|
33,2224
|
44,48
|
0,8
|
19530
|
0,00086
|
|
17
|
0,48
|
7,72
|
12,86
|
0,0995
|
40,62386
|
174,416
|
34,8832
|
41,84
|
0,8
|
19530
|
0,00082
|
|
18
|
0,18
|
7,9
|
13,16
|
0,0973
|
39,7256
|
177,53
|
35,506
|
40,17
|
0,8
|
19530
|
0,00029
|
|
19
|
0,48
|
8,38
|
13,96
|
0,0913
|
37,276
|
186,17
|
37,234
|
38,5
|
0,8
|
10310,6
|
0,00143
|
|
20
|
0,48
|
8,86
|
14,76
|
0,0853
|
34,82
|
194,81
|
38,968
|
36,05
|
0,8
|
10,310,6
|
0,00134
|
7. Фундамент на забивных призматических сваях
.1 Расчетная схема к определению несущей способности свай
.2 Несущая способность сваи определяется по формуле:


-
коэффициент условия работы сваи в грунте;

-
коэффициенты условия работы под нижним концом основания и на боковой
поверхности сваи, учитывающие влияние способа погружения сваи на расчетные
сопротивление грунта (при погружении сваи забивным молотом);
А=0,3·0,3=0,09 м2 - площадь поперечного сечения сваи;
R=4136кПа
- расчетное сопротивление грунта под нижним концом сваи;
U=4·d=4·0,3=1,2м - наружный периметр
поперечного сечения сваи;
fi -расчетное сопротивление i-го
слоя грунта основания на боковой поверхности сваи;
hi - толщина i-го слоя грунта,
соприкасающегося с боковой поверхностью сваи.
а) Несущая способность по острию:
Таблица 7.1 для расчета несущей способности сваи по боковой поверхности:
|
Грунт
|
hi, м
|
li м
|
fi кПа
|
|
|
Суглинок(Il=0,125)
|
2
|
3,2
|
49
|
98
|
|
Суглинок (Il=0,125)
|
1,4
|
4,9
|
55,7
|
77,98
|
|
Суглинок (Il=0)
|
2
|
6,6
|
59,2
|
118,4
|
|
Суглинок (Il=0)
|
2
|
8,6
|
62,9
|
125,8
|
|
Суглинок (Il=0)
|
0,5
|
9,85
|
64,775
|
32,3875
|
|
Песок (Il=0)
|
10,9
|
66,26
|
106,016
|
|
|
|
Итого
|
558,5835
|
б) Несущая способность по боковой поверхности:
в) Несущая способность сваи:
г) Расчетная нагрузка на одиночную висячую сваю:
γk=1,4 - коэффициент надежности по нагрузке
д) Определение шага свай и размещение в составе ростверка
n0I=556,95кН
d =
0,9 < a = 1,3<6d = 1,8
Принимаем однорядное расположение свай.