Проект строительства кирпичных жилых домов с мансардой и полуподземным гаражом
Содержание
Расчет
основных объемов строительно-монтажных работ
Расчет
дополнительных объемов строительно-монтажных работ
Выбор
и обоснование методов и способов монтажа строительных конструкций
Выбор
и расчет монтажных приспособлений
Расчет
параметров и выбор монтажного крана
Определение
трудоемкости строительно-монтажных работ
Выбор
и расчет транспортных средств для доставки сборных конструкций и строительных
материалов
Расчет
технико-экономических показателей
Мероприятия
по охране труда и технике безопасности при производстве монтажных работ
Используемая
литература
Задание
|
схема
варианта
|
Ширина
одного жилого блока: l1, м
|
Высота
этажа: H, м
|
Длина
здания: L, м
|
Ширина
здания, м
|
Количество
этажей
|
Место
строительства
|
Расстояние
транспортирования конструкций
|
|
1
|
2
|
3
|
4
|
5
|
6
|
7
|
8
|
|
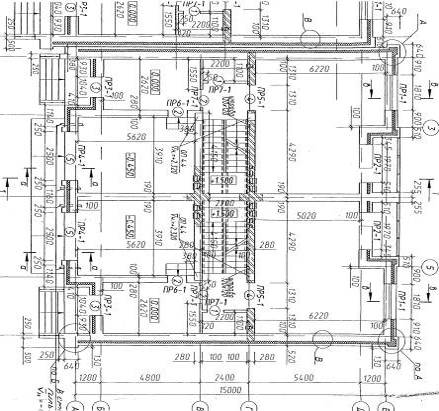
Рис.1
Рис.2 Рис.3
|
7,2
(10 жилых блоков)
|
3
|
175,42
|
116,08
|
2
этажа +мансарда
|
г.Череповец
|
Расстояние
до: 1.Силикатного завода: 6,5 км 2.ЖБиКа: 3,5 км 3.Завода МК: 2,5 км
|

Рисунок 1.
Выдано: 6.03.07
Принято: 6.03.07
Срок сдачи: 27.04.07
строительный монтажный кран
конструкция

Рисунок 2.
Расчет основных объемов строительно-монтажных
работ
Таблица 1.
Спецификация элементов сборных конструкций.
|
Наименование
конструктивных элементов
|
Марка
элемента
|
Эскиз
|
Кол-во
шт
|
Масса,
т
|
Объём,
м3
|
|
|
|
|
одного
элемента
|
всего
|
одного
элемента
|
всего
|
|
Раздел
1. Стены.
|
|
1.Наружные
стены: 1.1.Кирпич силикатный утолщённый. 1.2.Кирпич силикатный утолщённый
лицевой. 1.3. Раствор готовый кладочный тяжёлый, цементно-известковый.
|
М125
250х120х88 мм М125 250х120х88 мм М100
|
|
398000
70500
|
0,004
0,004
|
1592
282 463,82
|
0,00264
0,00264
|
1236,84
1050,72 186,12 309,21
|
|
2.Кладка
стен кирпичная внутренняя: 2.1. Кирпич силикатный утолщённый. 2.2. Раствор
готовый кладочный тяжёлый, цементно-известковый.
|
М125
250х120х88 Мм М100
|
|
301
960
|
0,004
|
1207,8
298,94
|
0,00264
|
797,174
199,294
|
|
Раздел
2. Перекрытия.
|
|
4.
Установка панелей перекрытия с опиранием на две стороны (площадь до 5 м2).
5.Установка панелей перекрытия с опиранием на две стороны (площадь до 10 м2).
|
ПК36.12-8ТА
ПК 72.15-4.5
|
|
220
210
|
1,325
3,325
|
291,5
698,3
|
0,53
1,33
|
116,6
279,3
|
|
Раздел
3. Шлакопемзобетонные плитки.
|
|
6.Установка
плиток из шлакопемзобетона (масса до 0,5т)
|
ПП1
680х1620 мм
|
|
200
|
0,234
|
46,8
|
0,13
|
26
|
|
Раздел
4. Опорные плиты.
|
|
7.Установка
опорных плит.
|
ОП
- 1
|
|
50
|
0,05811
|
2,906
|
0,0202
|
1,0108
|
|
Раздел
5. Внутридомовые лестницы.
|
|
8.
Монтаж балок и косоуров: 8.1.Отдельные конструктивные элементы (балки).
8.2.Установка панелей перекрытия с опиранием на 2 стороны (площадь до 5 м2):
8.2.1. Панели железобетонные многопустотные
|
ГОСТ
9561-76 с изменениями ГОСТ 26434-85
|
|
80
40
|
0,08475
2,012
|
6,78
80,48
|
0,04811
0,8048
|
3,8488
32,192
|
|
Раздел
6. Перемычки.
|
|
9.
Укладка перемычек массой до 0,3 т, а также перемычек марок ПР6 и ПР7. 10.
Укладка плитных перемычек и перемычек массой до 0,3 т
|
2ПБ
29-4-п 5ПБ27-37
|
|
494
40
|
0,12
0,568
|
59,28
22,72
|
0,464
0,13
|
229,22
5,1984
|
|
Раздел
7. Элементы подвала.
|
|
11.Установка
блоков стен подвалов массой до 0,5 т и массой до 1,5 т: 11.1. Бетон тяжёлый.
11.2. Блоки бетонные объёмом менее 0,3 м3 и объёмом более 0,5 м3.
12.Устройство стен подвалов и подпорных стен бетонных: 12.1. Бетон тяжёлый.
|
В
12,5 М150 В 7,5
|
|
20
|
1,356
|
0,18
27,12 11,02
|
0,5425
|
0,09
10,85 0,408
|
|
Раздел
8. Элементы крыльца.
|
|
13.Установка
блоков стен подвалов массой до 0,5 т: 13.1. Бетон тяжёлый. 13.2. Блоки
бетонные объёмом менее 0,3 м3. 14.Устройство стен подвалов и подпорных стен
бетонных: 14.1. Бетон тяжёлый.
|
В12,5
М150 В 7,5
|
|
72
|
0,4875
|
0,73
35,1 27,55
|
0,195
|
0,292
14,04 1,02
|
|
Раздел
9. Элементы кровли.
|
|
16.Установка
стропил: 16.1.Стропильные ноги: 16.1.1. СН1, СН2. 16.1.2. СН 3 16.1.3. СН 4
|
ГОСТ
8486-86*Е* ГОСТ 8486-86*Е* 2 50х200 мм Lобщ=400м ГОСТ 8486-86*Е* 50х200 мм
Lобщ=210м
|
Рис
3.
|
120
|
0,126
|
15,12
4,95 1,35
|
0,21
|
25,2
8,25 2,25
|
|
17.Накосная
нога разжелобка НР
|
НР
|
Рис
3.
|
20
|
0,12
|
2,4
|
0,2
|
4
|
|
18.
Укладка прогонов из досок. Прогоны: 18.1. ПР 18.2. ПРн
|
ГОСТ
8486-86*Е* Брус 150х200 мм L общ=20 м ГОСТ 8486-86*Е* Брус 150х150 мм L
общ=75 м
|
Рис
4.
|
|
|
1,38
|
|
2,3
0,6 1,7
|
|
19.
Подкос П2
|
ГОСТ
8486-86*Е* 150х150 мм L =1200 мм
|
Рис.
4.
|
80
|
0,018
|
1,44
|
0,03
|
2,4
|
|
20.
Стойка: 20.1. Ст 1 20.2. Ст 2
|
ГОСТ
8486-86*Е* 50х150 мм Lобщ=175м 2 50х50мм Lобщ=175м ГОСТ 8486-86*Е* 150х150 мм
L общ =20м
|
Рис.
4.
|
|
|
0,84
|
|
1,4
0,9 0,5
|
|
21.Кобылка
К2
|
ГОСТ
8486-86*Е* 50х100 мм L = 2500мм
|
Рис.
5.
|
230
|
0,0078
|
1,794
|
0,013
|
2,99
|
|
22.Мауэрлат
М
|
ГОСТ
8486-86*Е* 150х150 мм L общ = =67,5 м
|
Рис.
5.
|
|
|
0,93
|
|
1,55
|
|
23.Устройство
настила рабочего сплошного: 23.1. Доска обрешётки. 23.2. Доска обрешётки.
23.3. Доска обрешётки.
|
ГОСТ
8486-86*Е*32х100 мм ГОСТ 8486-86*Е*19х100 мм ГОСТ 8486-86*Е*50х130 мм
|
Рис.
5.
|
|
|
27,0
|
|
45,0
17,5 20,0 7,5
|
|
24.Опорный
брус: 24.1.Опорный брус. 24.2.Прижимной брус.
|
ГОСТ
8486-86*Е*50х150 мм L =350 мм ГОСТ 8486-86*Е*50х50 мм
|
Рис.
5.
|
80
|
0,0468
|
3,744
|
0,003
|
6,24
0,24 6,0
|
|
Итого
|
т
|
1047,3
|
|
|
Итого
|
м3
|
2155,83
|
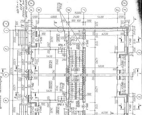
Рисунок 3.
Рисунок 4
Рисунок 5.
Расчет дополнительных объемов
строительно-монтажных работ
Таблица 2.
Объемы дополнительных работ.
|
Наименование
работы
|
Количество
элементов
|
Единицы
измерения
|
Объемы
работ
|
Примечания
|
|
|
|
на
один элемент
|
всего
|
|
|
1.
Электросварочные работы: 1.1. Плиты перекрытия: а) площадью до 5 м2 б)
площадью до 10 м2 1.2. Лестничные марши: панели железобетонные многопустотные
площадью до 5 м2
|
220 210 40
|
пог. м пог. м пог. м
|
0,6 0,6 0,5
|
132 126 20
|
|
|
2.
Заливка швов: 2.1. Плиты перекрытия: а) площадью до 5 м2 (3,6х1,2 м) б)
площадью до 10 м2 (7,2х1,5 м)
|
220 210
|
пог. м пог. м
|
Р/2 = 9,6/2= =4,8 Р/2 =17,4/2=8,7
|
1056 1827
|
Р - периметр плиты перекрытия.
|
Выбор и обоснование методов и способов монтажа
строительных конструкций
К возведению надземной части жилого здания
приступают после окончания работ нулевого цикла, т. е. когда закончено
устройство подземной части здания, коммуникаций и постоянной или временной
дороги для проезда вдоль монтируемого здания.
В проекте производства работ по монтажу
полносборного здания тщательно отрабатывают последовательность установки
элементов в проектное положение, которая указывается путем нумерации на
поэтажных монтажных планах здания.
При определении последовательности монтажа
учитывают, что элементы устанавливаются по принципу «на кран»; очередность
установки не должна вызывать частой смены грузозахватных приспособлений; особая
точность установки элементов обеспечивается по углам здания и по лестничным
клеткам.
При возведении надземной части здания,
включенного в общий строительный поток, все строительные процессы выполняют по
совмещенному графику, по которому параллельно с монтажом конструкций производят
общестроительные и специализированные работы (вне монтажной зоны). Ведущим
процессом, определяющим ритм потока во времени, является монтаж сборных
элементов конструкции здания. Выполнение остальных строительных процессов
подчиняют ритму ведущего процесса и выполняют их с соблюдением того же шага
потока.
Для совмещенного выполнения монтажных,
общестроительных и специализированных работ этажи здания разбивают на захватки
размером в 2 секции. Особое внимание уделяется выбору монтажных кранов и
приспособлений. При этом выбор состава машин производят в каждом отдельном
случае применительно к конкретным условиям с учетом объемов и темпов выполнения
работ и рациональной технологии их производства.
Строительство жилого здания ведут поточным
методом, как правило, непосредственно с транспортных средств, без
дополнительной перегрузки сборных изделий. При этом увязка во времени сроков
комплектации сборных деталей на заводе, транспортирования их к месту
строительства и монтажа производится в комплектовочных ведомостях, почасовых транспортных
и монтажных графиках, поэтажных монтажных планах.
В зависимости от организации подачи элементов
конструкций к месту установки используется метод предварительной раскладки
элементов у мест монтажа (в зоне действия монтажного крана).
В зависимости от способа наводки монтируемого
элемента на опоры применяют свободный, при котором конструкцию наводят на опоры
в процессе ее свободного перемещения.
В зависимости от точности установки конструкций
на опоры применяют безвыверочный монтаж. Безвыверочный монтаж позволяет
установить элемент сразу в проектное положение как в плане, так и по высоте, и
требует повышенной точности изготовления элементов конструкций и подготовки
элементов.
Методы монтажа являются определяющими факторами
технологии производства монтажных работ, для осуществления которой
разрабатываются проекты производства работ, технологические карты и
технологические схемы монтажа отдельных конструктивных элементов.
В многоэтажном жилом здании развитие
строительно-монтажных процессов осуществляется в комбинированном направлении.
Комбинированное направление предусматривает развитие одних групп процессов
горизонтально (предусматривает последовательность поэтажного возведения
объекта), других вертикально (строительство многоэтажного здания отдельными ярусами
на высоту всего здания).
В качестве захватки принимают участки в пределах
температурных блоков.
Доставка строительных конструкций с завода на
строительную площадку осуществляется по челночной транспортной схеме с
разъединением тягачей от полуприцепов на заводе и на монтажной площадке,
поскольку при дальности транспортировки до 10 км применяют челночную схему
работы транспорта.
Выбор транспортной схемы и средств для перевозки
деталей производят в зависимости от массы, габаритов, вида и характеристики деталей,
грузоподъемности и производительности панелевоза.
В зависимости от размеров здания и требований
принимается следующая схема расположения стрелового крана относительно здания:
один кран с одной стороны.
Возведение надземной части здания производится
при помощи гусеничного крана СКГ- 40 с длиной стрелы 20 м и гуськом 5 м.
Работы производятся согласно ППР, под
непосредственным руководством лица, ответственного за безопасное производство
работ.
Этот же кран используется для разгрузки
материалов с автотранспорта. Из-за стесненных условий строительной площадки все
работы ведутся из котлована методом «ухода крана на себя». Работы ведутся по
захваткам, причем на захватке выполняются все работы по возведению надземной
части здания, только после этого кран перемещается на следующую захватку.
После монтажа плит перекрытия на отметке ± 0.000
выполняется участками обратная засыпка пазух котлована при помощи грейфера и
вручную. Кирпичная кладка наружных стен выводится убегающей штрабой, и
монтируются плиты перекрытия.
Монтаж здания осуществляется методом
наращивания, т. е. элементы монтируются в конструкцию здания последовательно,
начиная с уровня земли и кончая верхней частью здания. Монтаж здания ведется
конструктивными элементами, являющимися отдельными готовыми конструкциями
здания или их частями.
Для монтажа конструкций здания используется
типовая монтажная оснастка, позволяющая осуществить подъем, временное крепление
и выверку элементов.
Работы ведутся под непосредственным руководством
лица, ответственного за безопасное производство работ и перемещение грузов.
Рабочее место каменщика делится на 2 зоны -
рабочую и зону материалов. В зоне материалов поддоны с кирпичом чередуются с
ящиками раствора. При кладке стен с проемами кирпич располагают против
простенков, а раствор - против проемов. В зоне материалов до начала работы
доставляется запас материалов на 2 часа работы, в дальнейшем материалы подаются
по мере их расходования.
При возведении кирпичной кладки поверхность
кирпича очищается от грязи, снега, наледи.
Не допускается транспортирование кирпича навалом
и разгрузка его сбрасыванием, а также выгрузка растворов на землю. Кирпич на
рабочее место подается монтажным краном на поддонах, раствор-в металлических
ящиках-контейнерах. Сборные перемычки укладываются и выполняются по ходу
кладки.
Кладку стен в местах взаимных пересечений или
примыканий производят, как правило, одновременно.
При вынужденных разрывах кладка выполняется в
виде штрабы.
Выступающие участки кладки защищаются от
увлажнения, при перерывах в работе верхние ряды кладки защищают от воздействия
атмосферных осадков.
Разность высот возводимой кладки на смежных
участках и при кладке примыканий наружных и внутренних стен не должна превышать
высоты этажа.
По окончании кладки каждого этажа проводится
проверка нивелиром горизонтальности и отметок верха кладки.
Возведение кирпичной кладки последующего этажа
осуществляется после укладки несущих конструкций перекрытий, перекрывающих
возведенный этаж.
Панели перекрытий монтируются после возведения
стен очередного этажа на выровненное, очищенное от мусора основание с
установкой всех анкеров и связей, замоноличивания стыков, устройства монолитных
участков.
Перед устройством монолитных заделок участков
проверяются и принимаются все конструкции и их элементы, закрываемые в процессе
последующего производства работ, правильность установки и закрепления опалубки
и поддерживающих ее конструкций.
Подготовленные к укладке бетонной смеси
основания и поверхности рабочих швов очищаются от цементной пленки, опалубка от
мусора и грязи, а арматура - от налета ржавчины.
Укладка бетонной смеси производится непрерывно.
Укладку бетонной смеси в плоские неармированные
конструкции (плиты, площадки, подготовки под полы) производят полосами шириной
3-4 метра через одну. Промежуточные полосы бетонируются после затвердения
бетона в смежных полосах.
Бетонная смесь, уложенная в плоские
неармированные конструкции, уплотняется виброрейками.
Мероприятия по уходу за бетоном, порядок и сроки
их проведения, контроль за выполнением этих мероприятий, последовательность и
сроки распалубки конструкций устанавливаются проектом производства работ.
До начала устройства рулонной кровли
устраиваются выходы на кровлю, вент-шахты, выполняется утепление крыши и
цементная стяжка.
Для вертикального транспортирования кровельных
материалов применяется монтажный кран.
Работы по устройству кровли ведутся поточно -
расчлененным методом навстречу подаче материалов, избегая использования готовых
участков покрытия для транспортирования материалов.
Работы по наклейке материалов ведутся с
наветренной стороны, чтобы мастика при разбрызгивании не попала на одежду.
Монтаж крыши начинается с монтажа балок,
чердачного перекрытия, с опорных брусков (накладок под стойки и подкосы
подстропильной рамы), которые крепят на балке чердачного перекрытия.
Одновременно с ними производят укладку мауэрлатных брусьев и подкладок под
стропила. Затем приступают к монтажу опорных (подстропильных рам), которые
выполнены в виде прогонов с подкосами и стойками. Монтируют стропила,
обрешетку, каркас фронтона, кобылки. Для монтажа крыши рекомендуется
использовать кран.
Кровля покрывается резинобитумной черепицей
«Катепал».
Коньковую часть кровли покрывают специальными
коньковыми деталями, которые укладывают на края листов рядового покрытия обоих
скатов с нахлесткой.
Подачу листов осуществляют на специальных
захватках-столиках.
Выбор и расчет монтажных (грузозахватных)
приспособлений
Определим диаметр каната:
= 1,298 т;
Усилие в одной ветви стропа определяется по
формуле:
Qв = n·cosα
где α - угол
отклонения ветви стропа от вертикали; Q - масса поднимаемого груза; n -
количество рабочих ветвей стропа.
Примем строп двухветвевой 2CК1-2,5/3000:
грузоподъёмность 2,5 т.; = 30,3 кг; l = 3,0 м.
. Первоначально возьмём α
= 45є;
b = 1,338 м; стропа = b/2sinα = 1,338/2*sin45є
= 0,9461 м.стропа >= 0,95 м;
Принимаем по табличным данным: l стропа = 3,0 м.
для более эффективного использования грузозахватного приспособления при
строповке нескольких типовых конструкций с помощью одного стропа в условиях
стройплощадки.
2. α = arcsin (b/ 2*l стропа)
= arcsin (1,338/ 2*3,0) = 12,9є
Принимаем α = 12,9є
< 45є
1,298
3.Sв = 2·cos12,9є = 0,666 т = 666 кг.
Сечение троса стропа подбирается по формуле:
Р = Sв·k
где Р - паспортное (разрывное) усилие данного
троса, Н; k - коэффициент запаса прочности для троса (k = 8 для строп с
крюками, с серьгами на конце; k = 10 для строп, захватывающих конструкции путем
обматывания и завязывания узлов).
Р = 666·8 = 5328 кг = 53 280 Н
Выбираем по справочнику стальной канат двойной
свивки типа ТК конструкции 6Ч37 (1+6+12+18)+1 о.с. (ГОСТ 3071-74) диаметром Ш =
11,5 мм при Р = 57 500 Н (Марка по пределу прочности 1600 МПа).
). для блоков стен подвала выбираем строп
двухветвевой 2CК1-2,5/3000: грузоподъёмность 2,5 т.; m = 30,3 кг; l = 3,0 м.
(рис.1 ,табл. 3).
Определим диаметр каната:
= 1,356 т;
Усилие в одной ветви стропа определяется по
формуле:
Qв = n·cosα
где α - угол
отклонения ветви стропа от вертикали; Q - масса поднимаемого груза; n - количество
рабочих ветвей стропа.
. Первоначально возьмём α
= 45є;
b = 0,6 м; стропа = b/2sinα = 0,6/2*sin45є
= 0,424 м.стропа >= 0,424 м;
Принимаем по табличным данным: l стропа = 3,0 м.
для более эффективного использования грузозахватного приспособления при
строповке нескольких типовых конструкций с помощью одного стропа в условиях
стройплощадки.
2. α = arcsin (b/ 2*l стропа)
= arcsin (0,6/ 2*3,0) = 5,7є
Принимаем α = 5,7є
< 45є
1,356
. Sв = 2·cos5,7є = 0,681 т = 681 кг.
Сечение троса стропа подбирается по формуле:
Р = Sв·k
где Р - паспортное (разрывное) усилие данного
троса, Н; k - коэффициент запаса прочности для троса (k = 8 для строп с
крюками, с серьгами на конце; k = 10 для строп, захватывающих конструкции путем
обматывания и завязывания узлов).
Р = 681·8 = 5448 кг = 54480 Н
Выбираем по справочнику стальной канат двойной
свивки типа ТК конструкции 6Ч37 (1+6+12+18)+1 о.с. (ГОСТ 3071-74) диаметром Ш =
11,5 мм при Р = 57 500 Н (Марка по пределу прочности 1600 МПа).
) для бадьи с бетоном выбираем строп
двухветвевой 2CК1-2,5/3000: грузоподъёмность 2,5 т.; m = 30,3 кг; l = 3,0 м.
(рис.1, табл. 3).
Определим диаметр каната:
= 1,87 т;
Усилие в одной ветви стропа определяется по
формуле:
Qв = n·cosα
где α - угол
отклонения ветви стропа от вертикали; Q - масса поднимаемого груза; n -
количество рабочих ветвей стропа.
. Первоначально возьмём α
= 45є;
b = 0,5м; стропа = b/2sinα = 0,5/2*sin45є
= 0,354 м.стропа >= 0,354 м;
Принимаем по табличным данным: l стропа = 3,0 м.
для более эффективного использования грузозахватного приспособления при
строповке нескольких типовых конструкций с помощью одного стропа в условиях
стройплощадки.
2. α = arcsin (b/ 2*l стропа)
= arcsin (0,5/ 2*3,0) = 4,76є
Принимаем α = 4,76є
< 45є
1,87
. Sв = 2·cos4,76є = 0,938 т = 938 кг.
Сечение троса стропа подбирается по формуле:
Р = Sв·k
где Р - паспортное (разрывное) усилие данного
троса, Н; k - коэффициент запаса прочности для троса (k = 8 для строп с
крюками, с серьгами на конце; k = 10 для строп, захватывающих конструкции путем
обматывания и завязывания узлов).
Р = 938·8 = 7504 кг = 75 040 Н
Выбираем по справочнику стальной канат двойной
свивки типа ТК конструкции 6Ч37 (1+6+12+18)+1 о.с. (ГОСТ 3071-74) диаметром Ш =
13,5 мм при Р = 82 400 Н (Марка по пределу прочности 1600 МПа.
) для перемычек выбираем строп двухветвевой
2CК1-2,5/3000: грузоподъёмность 2,5 т.; m = 30,3 кг; l = 3,0 м. (рис.1 , табл.
3).
Определим диаметр каната:
= 0,568 т;
Усилие в одной ветви стропа определяется по
формуле:
Qв = n·cosα
где α - угол
отклонения ветви стропа от вертикали; Q - масса поднимаемого груза; n -
количество рабочих ветвей стропа.
. Первоначально возьмём α
= 45є;
b = 3,0 м; стропа = b/2sinα = 3,0/2*sin45є
= 2,12 м.стропа >= 2,12 м;
Принимаем по табличным данным: l стропа = 3,0 м.
для более эффективного использования грузозахватного приспособления при
строповке нескольких типовых конструкций с помощью одного стропа в условиях
стройплощадки.
2. α = arcsin (b/ 2*l
стропа) = arcsin (3,0/ 2*3,0) = 30є
Принимаем α = 30є
< 45є
0,568
. Sв=2·cos 30є = 0,328 т = 328 кг.
Сечение троса стропа подбирается по формуле:
Р = Sв·k
где Р - паспортное (разрывное) усилие данного
троса, Н; k - коэффициент запаса прочности для троса (k = 8 для строп с
крюками, с серьгами на конце; k = 10 для строп, захватывающих конструкции путем
обматывания и завязывания узлов).
Выбираем по справочнику стальной канат двойной
свивки типа ТК конструкции 6Ч37 (1+6+12+18)+1 о.с. (ГОСТ 3071-74) диаметром Ш =
9 мм при Р = 36 850 Н (Марка по пределу прочности 1600 МПа).
) для шлакопемзобетонных плиток размером
0,68Ч1,62 м выбираем строп двухветвевой 2CК1-2,5/3000: грузоподъёмность 2,5 т.;
m = 30,3 кг; l = 3,0 м. (рис.1, табл. 3).
Определим диаметр каната:
= 0,234 т;
Определим диаметр каната:
Усилие в одной ветви стропа определяется по
формуле:
Qв = n·cosα
где α - угол
отклонения ветви стропа от вертикали; Q - масса поднимаемого груза; n -
количество рабочих ветвей стропа.
. Первоначально возьмём α
= 45є;
b = 1,22 м; стропа = b/2sinα = 1,22/2*sin45є
= 0,863 м.стропа >= 0,863 м;
Принимаем по табличным данным: l стропа = 3,0 м.
для более эффективного использования грузозахватного приспособления при
строповке нескольких типовых конструкций с помощью одного стропа в условиях
стройплощадки.
2. α = arcsin (b/ 2*l стропа)
= arcsin (1,22/ 2*3,0) = 11,73є
Принимаем α = 11,73є
< 45є
0,234
. Sв= 2·cos 11,73є = 0,1195 т = 119,5 кг.
Сечение троса стропа подбирается по формуле:
Р = Sв·k
где Р - паспортное (разрывное) усилие данного
троса, Н; k - коэффициент запаса прочности для троса (k = 8 для строп с
крюками, с серьгами на конце; k = 10 для строп, захватывающих конструкции путем
обматывания и завязывания узлов).
Р = 119,5 · 8 = 956 кг = 9 560 Н
Выбираем по справочнику стальной канат двойной
свивки типа ТК конструкции 6Ч37 (1+6+12+18)+1 о.с. (ГОСТ 3071-74) диаметром Ш =
9 мм при Р = 36 850 Н (Марка по пределу прочности 1600 МПа).
) для опорных плит размером 0,38Ч0,38 м выбираем
строп двухветвевой 2CК1-2,5/3000: грузоподъёмность 2,5 т.; m = 30,3 кг; l = 3,0
м. (рис.1, табл. 3).
Определим диаметр каната:
= 0,05811 т;
Усилие в одной ветви стропа определяется по
формуле:
Qв = n·cosα
где α - угол
отклонения ветви стропа от вертикали; Q - масса поднимаемого груза; n -
количество рабочих ветвей стропа.
. Первоначально возьмём α
= 45є;
b = 0,19 м; стропа = b/2sinα = 0,19/2*sin45є
= 0,134 м.стропа >= 0,134 м;
Принимаем по табличным данным: l стропа = 3,0 м.
для более эффективного использования грузозахватного приспособления при
строповке нескольких типовых конструкций с помощью одного стропа в условиях
стройплощадки.
2. α = arcsin (b/ 2*l стропа)
= arcsin (0,19/ 2*3,0) = 1,8є
Принимаем α = 1,8є
< 45є
0,05811
. Sв= 2·cos 1,8є = 0,029 т = 29 кг.
Сечение троса стропа подбирается по формуле:
Р = Sв·k
где Р - паспортное (разрывное) усилие данного
троса, Н; k - коэффициент запаса прочности для троса (k = 8 для строп с
крюками, с серьгами на конце; k = 10 для строп, захватывающих конструкции путем
обматывания и завязывания узлов).
Р = 29 · 8 = 232 кг = 2 320 Н
Выбираем по справочнику стальной канат двойной
свивки типа ТК конструкции 6Ч37 (1+6+12+18)+1 о.с. (ГОСТ 3071-74) диаметром Ш =
9 мм при Р = 36 850 Н (Марка по пределу прочности 1600 МПа).
Вывод: в результате расчётов выявлено: для
строповки рассмотренных конструктивных элементов и строительных материалов
(поддон с кирпичом, блоки бетонные подвала, бадья с бетоном, перемычки,
шлакопемзобетонные плитки, опорные плиты) целесообразно использовать строп
двухветвевой 2CК1-2,5/3000 (грузоподъёмность 2,5 т.; m = 30,3 кг; l = 3,0 м).
По справочнику был выбран стальной канат двойной свивки типа ТК конструкции
6Ч37 (1+6+12+18)+1 о.с. (ГОСТ 3071-74) диаметрами: Ш = 11,5 мм (Р = 57 500 Н),
Ш = 13,5 мм (Р = 82 400 Н), Ш = 9 мм(Р = 36 850 Н) и маркой по пределу
прочности 1600 МПа.
В условиях строительной площадки для удобства
проведения строительных работ следует принять строп с наибольшим диаметром
троса (Ш = 13,5 мм) для строповки всех выше перечисленных конструкций и
материалов.
). для бадьи с цементно-известковым раствором
выбираем строп четырехветвевой 4СК-5/4000: грузоподъёмность 5 т.; m = 37,1 кг;
l=4,0 м.
Определим диаметр каната:
= 0,385 т;
Усилие в одной ветви стропа определяется по
формуле:
Qв = n·cosα
где α - угол
отклонения ветви стропа от вертикали; Q - масса поднимаемого груза; n - количество
рабочих ветвей стропа.
. Первоначально возьмём α
= 45є;
b = 0,81 м; стропа = b/2sinα = 0,81/2*sin45є
= 0,573 м.стропа >= 0,573 м;
Принимаем по табличным данным: l стропа = 4,0 м.
для более эффективного использования грузозахватного приспособления при
строповке нескольких типовых конструкций с помощью одного стропа в условиях
стройплощадки.
2. α = arcsin (b/ 2*l стропа)
= arcsin (0,81/ 2*4,0) = 5,8є
Принимаем α = 5,8є
< 45є
0,385
. Sв= 4·cos 5,8є = 0,097 т = 97 кг.
Сечение троса стропа подбирается по формуле:
Р = Sв·k
где Р - паспортное (разрывное) усилие данного
троса, Н; k - коэффициент запаса прочности для троса (k = 8 для строп с
крюками, с серьгами на конце; k = 10 для строп, захватывающих конструкции путем
обматывания и завязывания узлов).
Р = 97 8 = 776 кг = 7 760 Н
Выбираем по справочнику стальной канат двойной
свивки типа ТК конструкции 6Ч37 (1+6+12+18)+1 о.с. (ГОСТ 3071-74) диаметром Ш =
9 мм при Р = 36 850 Н (Марка по пределу прочности 1600 МПа).
). для лестничного марша выбираем строп
четырехветвевой
СК-5/4000: грузоподъёмность 5 т.; m = 37,1 кг; l
= 4,0 м.
Определим диаметр каната:= 2,012 т;
Усилие в одной ветви стропа определяется по
формуле:
Qв = n·cosα
где α - угол
отклонения ветви стропа от вертикали; Q - масса поднимаемого груза; n -
количество рабочих ветвей стропа.
. Первоначально возьмём α
= 45є;
b = 1,59 м; стропа = b/2sinα = 1,59/2*sin45є
= 1,12 м.стропа >= 1,12 м;
Принимаем по табличным данным: l стропа = 4,0 м.
для более эффективного использования грузозахватного приспособления при
строповке нескольких типовых конструкций с помощью одного стропа в условиях
стройплощадки.
2. α = arcsin (b/ 2*l стропа)
= arcsin (1,59/ 2*4,0) = 11,5є
Принимаем α = 11,5є
< 45є
2,012
. Sв= 4·cos 11,5є = 0,513 т = 513 кг.
Сечение троса стропа подбирается по формуле:
Р = Sв·k
где Р - паспортное (разрывное) усилие данного
троса, Н; k - коэффициент запаса прочности для троса (k = 8 для строп с
крюками, с серьгами на конце; k = 10 для строп, захватывающих конструкции путем
обматывания и завязывания узлов).
Р = 513 · 8 = 4104 кг = 41 040 Н
Выбираем по справочнику стальной канат двойной
свивки типа ТК конструкции 6Ч37 (1+6+12+18)+1 о.с. (ГОСТ 3071-74) диаметром Ш =
9 мм при Р = 41 450 Н (Марка по пределу прочности 1800 МПа).
Вывод: результаты расчётов показали: для
строповки рассмотренных конструктивных элементов и строительных материалов
(бадья с цементно-известковым раствором, лестничный марш) целесообразно
использовать строп четырехветвевой 4СК-5/4000: грузоподъёмность 5 т.; m = 37,1
кг; l = 4,0 м. По справочнику был выбран стальной канат двойной свивки типа ТК
конструкции 6Ч37 (1+6+12+18)+1 о.с. (ГОСТ 3071-74) диаметрами: Ш = 9,0 мм (Р =
36 850 Н, марка по пределу прочности 1600 МПа), Ш = 9,0 мм (Р = 41 450Н, марка
по пределу прочности 1800 МПа). В условиях строительной площадки для удобства
проведения строительных работ следует принять строп с Ш = 9,0 мм и с наибольшим
значением предела прочности (1800 МПа) для строповки всех выше перечисленных
конструкций и материалов.
). для плит перекрытия выбираем строп
четырехветвевой
СК-10/4000: грузоподъёмность 5 т.; m = 89,9 кг;
h = 3,6 м.
Определим диаметр каната:
= 3,325 т;
Усилие в одной ветви стропа определяется по
формуле:
Qв = n·cosα
где α - угол
отклонения ветви стропа от вертикали; Q - масса поднимаемого груза; n -
количество рабочих ветвей стропа.
. Первоначально возьмём α
= 45є;
b = 3,6 м; стропа = b/2sinα = 3,6/2*sin45є
= 2,55 м.стропа >= 2,55 м;
Принимаем по табличным данным: l стропа = 4,0 м.
для более эффективного использования грузозахватного приспособления при
строповке нескольких типовых конструкций с помощью одного стропа в условиях
стройплощадки.
2. α = arcsin (b/ 2*l стропа)
= arcsin (3,6/ 2*4,0) = 26,7є
Принимаем α = 26,7є
< 45є
3,325
. Sв= 4·cos 26,7є = 0,930 т = 930 кг.
Сечение троса стропа подбирается по формуле:
Р = Sв·k
где Р - паспортное (разрывное) усилие данного
троса, Н; k - коэффициент запаса прочности для троса (k = 8 для строп с
крюками, с серьгами на конце; k = 10 для строп, захватывающих конструкции путем
обматывания и завязывания узлов).
Р = 930 · 8 = 7440 кг = 74 400 Н
Выбираем по справочнику стальной канат двойной
свивки типа ТК конструкции 6Ч37 (1+6+12+18)+1 о.с. (ГОСТ 3071-74) диаметром Ш =
13,5 мм при Р = 82 400 Н (Марка по пределу прочности 1600 МПа).
). для металлических балок лестничных маршей
выбираем строп двухветвевой 2СТ-16/5000: грузоподъёмность 16 т.; m = 200,4 кг;
l=5,0м.
Определим диаметр каната:
= 0,08475 т;
Усилие в одной ветви стропа определяется по
формуле:
Qв = n·cosα
где α - угол
отклонения ветви стропа от вертикали; Q - масса поднимаемого груза; n -
количество рабочих ветвей стропа.
. Первоначально возьмём α
= 45є;
b = 1,59 м; стропа = b/2sinα
= 1,59/2*sin45є = 1,124 м.стропа >= 1,124 м;
Принимаем по табличным данным: l стропа = 5,0 м
для более эффективного использования грузозахватного приспособления при
строповке нескольких типовых конструкций с помощью одного стропа в условиях
стройплощадки.
На обвязку балки требуется дополнительно 0,492 м
троса (из расчёта на один трос): l стропа с обвязкой = 5,0 + 0,492 = 5,492 м.
Дальнейший расчёт ведём на длину троса 5,0 м.
2. α = arcsin (b/ 2*l стропа)
= arcsin (1,59/ 2*5,0) = 9,15є
Принимаем α = 9,15є
< 45є
0,08475
. Sв= 4·cos 9,15є = 0,0215 т = 21,5 кг.
Сечение троса стропа подбирается по формуле:
Р = Sв·k
где Р - паспортное (разрывное) усилие данного
троса, Н; k - коэффициент запаса прочности для троса (k = 8 для строп с
крюками, с серьгами на конце; k = 10 для строп, захватывающих конструкции путем
обматывания и завязывания узлов).
Р = 21,5 · 10 = 215 кг = 2 150 Н
Выбираем по справочнику стальной канат двойной
свивки типа ТК конструкции 6Ч37 (1+6+12+18)+1 о.с. (ГОСТ 3071-74) диаметром Ш =
9,0 мм при Р = 36 850 Н (Марка по пределу прочности 1600 МПа).
). для самого высоко расположенного элемента
кровли (СН 4) выбираем строп двухветвевой 2СТ-16/5000: грузоподъёмность 16 т.;
m = 200,4 кг; l =5,0м. (рис.4, табл. 3).
Определим диаметр каната:
= 0,015 т;
Усилие в одной ветви стропа определяется по
формуле:
Qв = n·cosα
где α - угол
отклонения ветви стропа от вертикали; Q - масса поднимаемого груза; n -
количество рабочих ветвей стропа.
. Первоначально возьмём α
= 45є; b = 1,25м; стропа = b/2sinα
= 1,25/2*sin45є = 0,883 м.стропа >= 0,883 м;
Принимаем по табличным данным: l стропа = 5,0 м
для более эффективного использования грузозахватного приспособления при
строповке нескольких типовых конструкций с помощью одного стропа в условиях
стройплощадки.
На обвязку балки требуется дополнительно 0,5 м
троса (из расчёта на один трос): l стропа с обвязкой = 5,0 + 0,5 = 5,5 м.
Дальнейший расчёт ведём на длину троса 5,0 м.
2. α = arcsin (b/ 2*l стропа)
= arcsin (1,25/ 2*5,0) = 7,18є
Принимаем α = 7,18є
< 45є
0,015
. Sв= 4·cos 7,18є = 0,00378 т = 3,78 кг.
Сечение троса стропа подбирается по формуле:
Р = Sв·k
где Р - паспортное (разрывное) усилие данного
троса, Н; k - коэффициент запаса прочности для троса (k = 8 для строп с
крюками, с серьгами на конце; k = 10 для строп, захватывающих конструкции путем
обматывания и завязывания узлов).
Р = 3,78 · 10 = 378 кг = 3 780 Н
Выбираем по справочнику стальной канат двойной
свивки типа ТК конструкции 6Ч37 (1+6+12+18)+1 о.с. (ГОСТ 3071-74) диаметром Ш =
9,0 мм при Р = 36 850 Н (Марка по пределу прочности 1600 МПа).
Вывод: по результатам расчётов: для строповки
рассмотренных конструктивных элементов (металлические балки лестничных маршей,
СН4) целесообразно использовать строп двухветвевой 2СТ-16/5000:
грузоподъёмность 16 т.; m = 200,4 кг; l = 5,0м. По справочнику был выбран
стальной канат двойной свивки типа ТК конструкции 6Ч37 (1+6+12+18)+1 о.с. (ГОСТ
3071-74) диаметром: Ш = 9,0 мм (Р = 36 850 Н, марка по пределу прочности 1600
МПа).
Выбор крана, его привязка и определение зон
действия
. Самоходный кран (без гуська).
Самая тяжелая конструкция в спецификации
элементов сборных конструкций - плита перекрытий ПК 72.15 - 4.5 массой m =
3,325 т.
Рассчитаем основные параметры самоходного крана
для монтажа плиты перекрытий (результаты расчета заносятся в таблицу 8):
Требуемая грузоподъемность (Qтр):
тр = Qпк + Qосн
где Qпк - масса наиболее тяжелого элемента
(плита перекрытий), т; Qосн - масса оснастки (стропа), т.
кр = 3,325 + 0,0899 = 3,4149 т
высота подъема крюка (Hкр)
кр = H0 + Hз + Hконстр + Hстр
где H0 - превышение опоры монтируемого элемента
над уровнем стоянки монтажного крана, м; Hз - запас по высоте, требуемый для
заводки конструкции к месту установки или через ранее смонтированные
конструкции, м; Hконстр - высота элемента в монтажном положении, м; Hстр -
высота строповки в рабочем положении от верха монтируемого элемента до низа
крюка, м. Hкр = 6,6 + 0,5 + 0,45 + 3,6 = 11,15 м
вылет крюка крана (Lкр):
Lкр = 7,6 +13,03 = 20,63 м
длина стрелы (Lстр):
стр = ВС = √АС2 + АВ2 = √ (Lкр- а)2
+ (Hкр + hп - hш)2
где а - расстояние от оси вращения крана до оси
шарнира пяты стрелы, 2м; hп - высота полиспаста в стянутом состоянии, м (hп =
1,5ч2,5 м); hш - высота шарнира пяты стрелы от уровня стоянки крана, м (hш =
1,5ч1,8 м).
стр = √ (20,63 - 2)2 + (11,15 + 1,5 -
1,5)2 = 21,7 м
Самая неудобная конструкция - плита перекрытия
лоджии ПП 36.15 (укороченная). Результаты расчета заносятся в таблицу 8.
При монтаже плит перекрытия на основном подъеме
параметры самоходного крана равны:
Требуемая грузоподъемность (Qтр):
тр = Qпк + Qосн
где Qпк - масса наиболее тяжелого элемента
(плита перекрытий), т; Qосн - масса оснастки (стропа), т.кр = 1,85 + 0,0899 =
1,94 т
высота подъема крюка (Hкр)
кр = H0 + Hз + Hконстр + Hстр
где H0 - превышение опоры монтируемого элемента
над уровнем стоянки монтажного крана, м; Hз - запас по высоте, требуемый для
заводки конструкции к месту установки или через ранее смонтированные
конструкции, м; Hконстр - высота элемента в монтажном положении, м; Hстр -
высота строповки в рабочем положении от верха монтируемого элемента до низа
крюка, м.кр = 6,6 + 0,5 + 0,45 + 3,6 = 11,15 м
вылет крюка крана (Lкр):
кр = 6 + 15,15 = 21,15 м
длина стрелы (Lстр):
стр = ВС = √АС2 + АВ2 = √ (Lкр- а)2
+ (Hкр + hп - hш)2
где а - расстояние от оси вращения крана до оси
шарнира пяты стрелы, 2м; hп - высота полиспаста в стянутом состоянии, м (hп =
1,5ч2,5 м); hш - высота шарнира пяты стрелы от уровня стоянки крана, м (hш =
1,5ч1,8 м).
стр = √ (21,15 - 2)2 + (11,15 + 1,5 -
1,5)2 = 22,16 м
Самая высоко расположенная конструкция
(стропильная нога СН 4).
Результаты расчета заносятся в таблицу 8.
При монтаже стропильной ноги СН 4 на основном
подъеме параметры самоходного крана равны:
Требуемая грузоподъемность (Qтр):
тр = Qпп + Qосн
где Qпп - масса наиболее тяжелого элемента
(плита перекрытий), т; Qосн - масса оснастки (стропа), т.
кр = 0,0894 + 0,2004= 0,2898 т
высота подъема крюка (Hкр)
кр = H0 + Hз + Hконстр + Hстр
где H0 - превышение опоры монтируемого элемента
над уровнем стоянки монтажного крана, м; Hз - запас по высоте, требуемый для
заводки конструкции к месту установки или через ранее смонтированные
конструкции, м; Hконстр - высота элемента в монтажном положении, м; Hстр -
высота строповки в рабочем положении от верха монтируемого элемента до низа
крюка, м.
кр = 8,5 + 0,5 + 0,05 + 5,0 = 14,5 м
вылет крюка крана (Lкр):
кр = 8,4 + 7,6 = 16,0 м
длина стрелы (Lстр):
стр = ВС = √АС2 + АВ2 = √ (Lкр- а)2
+ (Hкр + hп - hш)2
где а - расстояние от оси вращения крана до оси
шарнира пяты стрелы, 2м; hп - высота полиспаста в стянутом состоянии, м (hп =
1,5ч2,5 м); hш - высота шарнира пяты стрелы от уровня стоянки крана, м (hш =
1,5ч1,8 м).
стр = √ (16,0 - 2)2 + (14,5 + 1,5 - 1,5)2
= 20,16 м
Самоходный гусеничный кран (с гуськом)
Самая тяжелая конструкция в спецификации
элементов сборных конструкций - плита перекрытий ПП 72.15 - 4.5 массой m = 3,325
т.
Результаты расчета заносятся в таблицу 8.
Рассчитаем основные параметры самоходного крана
с гуськом для монтажа плиты перекрытий (результаты расчета заносятся в таблицу
4):
Требуемая грузоподъемность (Qтр):
Qтр = Qпк + Qосн
где Qпк - масса наиболее тяжелого элемента
(плита перекрытий), т; Qосн - масса оснастки (стропа), т.
кр = 3,325 + 0,0899 = 3,4149 т
высота подъема крюка (Hкр)
кр = H0 + Hз + Hконстр + Hстр
где H0 - превышение опоры монтируемого элемента
над уровнем стоянки монтажного крана, м; Hз - запас по высоте, требуемый для
заводки конструкции к месту установки или через ранее смонтированные
конструкции, м; Hконстр - высота элемента в монтажном положении, м; Hстр -
высота строповки в рабочем положении от верха монтируемого элемента до низа
крюка, м.
кр = 6,6 + 0,5 + 0,45 + 3,6 = 11,15 м
вылет крюка крана (Lкр):
крг = Lг + 15,63 = 5 + 15,63 = 20,63 м
) длина стрелы (Lстр):
стр = √ (Hкр + hп - hш)2 + (Lкрг - (а +
Lг)) 2 стр = √ (11,15 +1,5 - 1,5)2 + (20,63- (2 + 5))2 = 17,6 м
Самая неудобная конструкция - плита перекрытия
лоджии ПП 36.15 (укороченная). Результаты расчета заносятся в таблицу 8.
При монтаже плит перекрытия самоходным краном с
гуськом параметры крана равны:
Требуемая грузоподъемность (Qтр):
тр = Qпп + Qосн
где Qпп - масса наиболее тяжелого элемента
(плита перекрытий), т; Qосн - масса оснастки (стропа), т.
кр = 1,85 + 0,0899 = 1,94 т
высота подъема крюка (Hкр)
кр = H0 + Hз + Hконстр + Hстр
где H0 - превышение опоры монтируемого элемента
над уровнем стоянки монтажного крана, м; Hз - запас по высоте, требуемый для
заводки конструкции к месту установки или через ранее смонтированные
конструкции, м; Hконстр - высота элемента в монтажном положении, м; Hстр -
высота строповки в рабочем положении от верха монтируемого элемента до низа
крюка, м.
Hкр = 6,6 + 0,5 + 0,45 + 3,6 = 11,15 м.
) вылет крюка крана (Lкр):
крг = Lг + Lкр
где L г - длина гуська (Lг = 5 м).
крг = 5 + 16,15 = 21,15 м
) длина стрелы (Lстр):
стр = √ (Hкр + hп - hш)2 + (Lкрг - (а +
Lг)) 2 стр = √ (11,15 +1,5 - 1,5)2 + (21,15- (2 + 5))2 = 18,03 м
Самая высоко расположенная конструкция
(стропильная нога СН 4). Результаты расчета заносятся в таблицу 8.
При монтаже стропильной ноги СН 4 на
вспомогательном подъеме параметры самоходного крана равны:
) Требуемая грузоподъемность (Qтр):
тр = Qпп + Qосн
где Qпп - масса наиболее тяжелого элемента
(плита перекрытий), т; Qосн - масса оснастки (стропа), т.
кр = 0,0894 + 0,2004= 0,2898 т
высота подъема крюка (Hкр)
Hкр = H0 + Hз + Hконстр + Hстр
где H0 - превышение опоры монтируемого элемента
над уровнем стоянки монтажного крана, м; Hз - запас по высоте, требуемый для
заводки конструкции к месту установки или через ранее смонтированные
конструкции, м; Hконстр - высота элемента в монтажном положении, м; Hстр -
высота строповки в рабочем положении от верха монтируемого элемента до низа
крюка, м.
кр = 8,5 + 0,5 + 0,05 + 5,0 = 14,5 м
вылет крюка крана (Lкр):
крг = Lг + Lкр
где L г - длина гуська (Lг = 5м).
крг = 5 + 11,0 = 16,0 м
длина стрелы (Lстр):
стр = √ (Hкр + hп - hш)2 + (Lкрг - (а +
Lг)) 2 стр = √ (14,5 +1,5 - 1,5)2 + (16,0 - (2 + 5))2 = 17,07 м
Основные параметры монтажного стрелового
самоходного крана (с гуськом и без гуська).
Таблица 8.
|
Основные
параметры
|
Самая
тяжелая конструкция (плита перекрытий ПК 72.15 - 4.5)
|
Самая
неудобная конструкция (плита перекрытия лоджии ПП 36.15 (укороченная))
|
Самая
высоко расположенная конструкция (Стропильная нога СН 4)
|
|
Без
гуська
|
С
гуськом
|
Без
гуська
|
С
гуськом
|
Без
гуська
|
С
гуськом
|
|
Qкр
|
3,4149
|
3,4149
|
1,94
|
1,94
|
0,2898
|
0,2898
|
|
Hкр
|
11,15
|
11,15
|
11,15
|
11,15
|
14,5
|
14,5
|
|
lкр
|
20,63
|
20,63
|
21,15
|
21,15
|
16,0
|
16,0
|
|
Lстр
|
21,7
|
17,6
|
22,16
|
18,03
|
20,16
|
17,07
|
В соответствии с данными таблицы 4 выбираем по
справочнику [6] самоходный кран с гуськом СКГ-40 с длиной стрелы Lстр = 20 м и
длиной гуська Lг = 5 м:
Основные параметры монтажного стрелового
самоходного крана с гуськом СКГ- 40 с длиной стрелы Lстр = 20 м и длиной гуська
Lг = 5 м.
Таблица 5
|
Lстр,
М
|
lкр,
м
|
Qкр,
т
|
Hкр,
м
|
|
20
|
22
|
3,8
|
12
|
|
20
|
22
|
3,8
|
12
|
|
20
|
19
|
5
|
16
|
Определение опасных зон действия крана
К зонам постоянно действующих опасных
производственных факторов, связанных с работой монтажных и грузоподъемных
машин, относятся места, над которыми происходит перемещение грузов
грузоподъемными кранами.
К зонам потенциально действующих опасных
факторов относятся участки территории вблизи строящегося здания (сооружения) и
этажи (ярусы) зданий и сооружений в одной захватке, над которыми происходит
монтаж (демонтаж) конструкций или оборудования.
. Монтажной зоной называют пространство, где
возможно падение груза при установке и закреплении элементов. Эта зона является
потенциально опасной. Она равна контуру здания плюс 7 м.при высоте здания до 20
м.
Монтажная зона: 82 х 23 м
На СГП зону обозначают пунктирной линией, а на
местности - хорошо видимыми предупредительными надписями или знаками. В этой
зоне можно размещать только монтажный механизм, включая место, ограниченное
ограждением подкрановых путей. Складировать материалы здесь нельзя. Для прохода
людей в здание назначают определенные места, обозначенные на СГП, с фасада
здания, противоположного установке крана. Места проходов к зданию через
монтажную зону снабжают навесами.
. Зоной обслуживания краном или рабочей зоной
крана называют пространство, находящееся в пределах линии, описываемой крюком
крана. Определяется для стреловых самоходных кранов путем нанесения на план из
отдельных стоянок полуокружностей радиусом, соответствующим максимально
необходимому для работы вылету стрелы (l кр. = 22 м), и соединения их прямыми
утолщенными линиями.
Зона обслуживания краном: R = 22 м.
.Зоной перемещения груза называют пространство,
находящееся в пределах возможного перемещения груза, подвешенного на крюке
крана. Зоны определяются расстоянием по горизонтали от границы рабочей зоны
(зоны обслуживания) крана до возможного места падения груза в процессе его
перемещения. Для стреловых кранов с дополнительным устройством, удерживающим
стрелу крана от падения, граница зоны определяется суммой максимального
рабочего вылета стрелы и ширины зоны, принимаемой равной половине длины самого
длинного перемещаемого груза: l кр. = 22 м, Ѕ h = 0,75 м.
Зона перемещения груза: R = 22,75 м
Зону перемещения груза обычно отдельно на плане
не выделяют - она служит составляющей при расчете границ опасной зоны работы
крана, которая суммирует- все входящие в ее контур зоны.
. Опасной зоной работы крана называют
пространство, где возможно падение груза при его перемещении с учетом
вероятного рассеивания при падении.
Для стреловых кранов, оборудованных устройством
для удержания стрелы, опасная зона работы определяется по формуле
оп = R max + 0,5 l max + l без
без при высоте подъёма груза более 10 м принимается
как монтажная зона (l без = 7 м)
так же, как монтажная зона.
оп = 22 + 0,75 + 7 = 29,75 м
Опасную зону поворотной платформы R пов. п. п.
определяют суммой
радиуса поворотной части механизма R пов. и
расстояния безопасности l без. п.п. = 1 м:
R пов = 5 + 1 = 6 м.
На месте работы эту опасную зону обозначают
инвентарной переставной обноской из проволоки по стойкам.
. Опасной зоной работы подъемника называют
пространство, где возможно падение поднимаемого груза. Зону следует принимать
не менее 5 м от габаритов подъемника в плане.
Зону обозначают штрихпунктирной линией. На
границах опасных зон устанавливают знаки техники безопасности.
Основные показатели СМР.
Таблица 6.
|
м3
|
т
|
|
V,
объемы работ, подлежащих выполнению, м3; т.
|
2155,832
|
1047,343
|
|
Т,
трудоемкость работ, чел-смен.
|
780,2695
|
108,804
|
|
Тм,
продолжительность работы машин, смены
|
77
|
34
|
|
З,
заработная плата рабочих (за исключением рабочих, обслуживающих машину), руб.
|
3577,23
|
585,12
|
Определение трудоемкости строительно-монтажных
работ
Основой для определения трудоемкости является
подсчет объемов работ (табл. 1, 2) и ЕНиРы [5].
Нормативный срок работы звена монтажников в
сменах определяется по формуле:
Нвр ·V
Т = m ·t
где m - количество рабочих в звене монтажников;
Hвр - норма времени выполнения единицы работ по ЕНиРам [5]; t -
продолжительность смены, 8 час.
Полученные данные расчёта трудоемкости
строительно-монтажных работ приведены в таблице 7.
Расчёт трудоемкости строительно-монтажных работ
ведётся с учётом параллельной и комбинированной схем производства работ, и,
соответственно, с учётом состава комплексных бригад для проведения
комбинированных типов работ. Временные сроки (количество смен) проведения работ
определяются после построения графика производства работ (где непосредственно учитываются
комбинации работ и состав комплексных бригад, выполняющих данные работы).
Полученное по графику количество смен по производимым работам заносится в
таблицу по подсчёту трудоемкости СМР в графы соответствующих работ. В
зависимости от принятого количества смен подбирается состав бригад на
выполнение таких работ по ЕНиРам [5], где приводится рекомендуемый состав
бригад рабочих. Таким образом, производится расчёт трудоемкости всех
строительно-монтажных работ по возведению жилого здания. Общий срок строительства
по таблице СМР должен совпадать с принятым сроком по графику производства
работ.
Выбор и обоснование транспортных средств для
доставки сборных конструкций и строительных материалов
Таблица 8
Транспортные средства для доставки строительных
конструкций
|
Наименование
сборного элемента
|
Масса,
т
|
Грузоподъемность,
кН
|
Количество
элементов, перевозимых за один рейс
|
Коэффициент
использования транспорта и грузоподъемность
|
|
1.
Кирпич силикатный утолщённый. Кирпич силикатный утолщённый лицевой.
|
3193,32
(всего) 0,004 (одного элемента)
|
КамАЗ-5410
+ полуприцеп ОдАЗ-885В
|
7,5
т
|
1875
|
1,0
|
|
2.
Раствор готовый кладочный тяжёлый, цементно-известковый.
|
790,3467
(всего) 8 (за 1 рейс)
|
КамАЗ
5320
|
8
т
|
-
|
1,0
|
|
3.
Панели перекрытия с опиранием на две стороны (площадь до 5 м).
|
252,73
(всего) 1,28 (одного элемента)
|
ОдАЗ-885
В
|
7,5
|
6,0
|
1,024
|
|
4.
Панели перекрытия с опиранием на две стороны (площадь до 10 м).
|
565,25
(всего) 3,325 (одного элемента)
|
Универсальный
полуприцеп ЦП: ПЛ1212 (УПР 1212)
|
12
|
3,0
|
0,831
|
|
5.
Плитки из шлакопемзобетона (масса до 0,5т)
|
46,8
(всего) 0,234 (одного элемента)
|
КамАЗ-5410
+ полуприцеп ОдАЗ-885В
|
7,5
|
32,0
|
0,9984
|
|
6.
Опорные плиты Плитные перемычки
|
5,63
(всего) 0,0581 (ОП) 0,568 (ПП) (одного элемента)
|
КамАЗ-5410
+ полуприцеп ОдАЗ-885В
|
7,5
|
50
(ОП) 4 (ПП)
|
0,8
|
|
7.
Отдельные конструктивные элементы (балки).
|
6,78
(всего) 0,08475 (одного элемента)
|
КамАЗ-5410
+ полуприцеп ОдАЗ-885В
|
7,5
|
88
|
0,9944
|
|
8.
Перемычки массой до 0,3т
|
9,28
(всего) 0,12 (одного элемента)
|
КамАЗ-5410
+ полуприцеп ОдАЗ-885В
|
7,5
|
62
|
0,992
|
|
9.
Блоки стен подвалов массой до 1,5т. Блоки бетонные объёмом менее 0,3 м и
более 0,5 м
|
62,22
(всего) 1,356 (одного элемента)
|
КамАЗ-5410
+ полуприцеп ОдАЗ-885В
|
7,5
|
5,0
|
0,904
|
|
10.Стены
подвалов и подпорные стены бетонные. Бетон тяжёлый.
|
29,48
(всего)
|
КамАЗ-5320
|
8
|
-
|
1,0
|
Количество транспортных единиц в смену
определяется по следующей формуле (при доставке конструкций с разгрузкой их на
приобъектном складе):
V= П·S
где V - объем монтажных работ, т; S -
продолжительность монтажных работ, смен; П - производительность транспортной
единицы в смену, т/смен.и S принимаются из таблицы расчёта трудоемкости
строительно-монтажных работ.
60·q·t·kв·kг
П = tц
где q - грузоподъемность транспортной единицы,
т; t - продолжительность смены (t = 8 ч); kв, kг - соответственно коэффициенты
использования транспортной единицы по времени и грузоподъемности (kв = 0,8); tц
- продолжительность цикла транспортной единицы:
2Lц = t1 + Vср ·60 + t2
где t1, t2 - соответственно время стоянок под
погрузкой и разгрузкой, определяемые по ЕНиР (t1 = 5 мин, t2 = 5 мин); L -
расстояние перевозки конструкций; Vср - средняя скорость движения транспортной
единицы (Vср = 35 км/ч).
) Кирпич силикатный утолщённый.
Кирпич силикатный утолщённый лицевой.
Расчет технико-экономических показателей
Расчетная стоимость выполнения единицы монтажа
строительных конструкций:
. На монтаж 1 м3 конструкций:
42,87·77·1,1 + 3577,23·1,5
) С = 2155,832 = 4,173 руб/м3
) выработка одного рабочего в смену:
V
В = Тр
где Тр - трудоемкость работ в человеко-сменах.
2155,832
В = 780,2695 = 2,763 м3/смен
затраты труда на единицу работы:
Тр
З = V
780,2695
З = 2155,832 = 0,362 смен/м3
продолжительность монтажных работ в днях:
Т = 77 дней.
. На монтаж 1 т конструкций.
42,87·34·1,1 + 585,12·1,5
) С = 1047,343 = 2,369 руб/т
) выработка одного рабочего в смену:
V
В = Тр
где Тр - трудоемкость работ в человеко-сменах.
1047,343
В = 108,804 = 9,626 т/смен
затраты труда на единицу работы:
Тр
З = V
108,804
З = 1047,343 = 0,104 смен/т
продолжительность монтажных работ в днях:
Т = 34 дня.
Мероприятия по охране труда и технике
безопасности при производстве монтажных работ
Организация производства работ на стройплощадке
включает в себя следующие действия:
до начала работ заказчику: обеспечить поставку
материалов и конструкций для производства работ.
обеспечить подключение электрооборудования
исполнителя.
до начала работ исполнителю: выполнить проезды и
площадки складирования с отсыпкой их доменным шлаком толщиной 200 мм при помощи
бульдозера ДТ-75
выполнить основание из доменного шлака h=400 мм
для установки крана СКГ 40
выполнить сигнальное ограждение потенциально
опасных зон с установкой предупреждающих знаков безопасности и хорошо видимых в
ночное время суток фонарей красного цвета.
обеспечить необходимое освещение рабочих мест.
Освещенность должна быть равномерной, без слепящего действия осветительных
приспособлений.
провести инструктаж по технике безопасности с записью
в журнале регистрации инструктажей.
Мероприятия по технике безопасности при
производстве работ на стройплощадке включают с себя свод правил:
. До начала производства работ:
Получить наряд-допуск на производство работ по
форме НД - 90 согласно "Положения о нарядах-допусках". Получить
наряд-допуск на огневые работы.
Обеспечить рабочих спецодеждой, исправным
инструментом, средствами индивидуальной защиты.
Оградить опасную зону и выставить хорошо видимые
предупреждающие знаки. Колодцы, шурфы и другие выемки в местах возможного
доступа людей должны быть закрыты крышками, прочными щитами или ограждены.
Провести инструктаж рабочих, ознакомить их с ППР
под роспись и указать безопасный маршрут движения рабочих к месту работы.
Для обеспечения безопасных условий производства
работ проектом предусматривается обязательное выполнение следующих требований
техники безопасности на площадке:
к работе на любом рабочем месте должны
допускаться только лица, имеющие удостоверения на право производства данного
вида работ и прошедшие инструктаж по технике безопасности.
грузоподъемные средства должны быть
освидетельствованы, а грузозахватные приспособления и замаркированы.
погрузо-разгрузочные работы необходимо выполнять
при помощи грузоподъемных механизмов. Механизированный способ
погрузо-разгрузочных работ является обязательным для грузов весом более 50 кг,
а также при подъеме на высоту более 2м.
стропальщики должны иметь удостоверение
стропальщика и красные нарукавные повязки.
при ведении огневых работ иметь в непосредственной
близости первичные средства пожаротушения - огнетушитель, песок, кошму.
подключение, отключение сети питания
электросварочного оборудования, будок, лебедок и т. д., а также ремонт их
должен производить электротехнический персонал.
. При производстве работ.
Работы выполнять под непосредственным
руководством производителем работ (мастера, прораба).
Перед началом работ производителю лично
осматривать место работ и давать указания о характере работ и безопасных
условиях труда.
Работать в средствах индивидуальной защиты, в
исправной спецодежде, обуви и исправным инструментом.
При выполнении электросварочных и газопламенных
работ.
Электросварщики должны иметь группу по
электробезопасности не ниже II. Расстояние от сварочных проводов до горячих
трубопроводов и баллонов с кислородом должно быть не менее 5 м, а с горючими
газами - на менее 10 м.
При прокладке или перемещении сварочных проводов
необходимо принимать меры против повреждения их изоляции и соприкосновения с
водой, маслом, стальными канатами и горячими трубопроводами.
Запрещается использовать провода сети
заземления, трубы сантехнических сетей, металлоконструкций зданий,
технологическое оборудование в качестве обратного провода электросварки.
Перед началом электросварочных работ необходимо
проверить исправность электрододержателя, надежность изоляции его рукоятки,
исправность предохранительной маски с защитным стеклом и светофильтром, а также
состояние изоляции проводов, плотность соединений контактов сварочного провода
и наличие заземления сварочного аппарата, агрегата.
Металлические части электросварочного
трансформатора, вывод его вторничной обмотки, а также свариваемая конструкция
должны быть надежно заземлены до включения сборочного аппарата в сеть.
Наименьшее сечение неизолированных проводов для устройства цепей заземления
должно быть не менее: медных - 4 мм2, алюминиевых - 6 мм2, диаметр стальной
проволоки - 5 мм.
Сварочные аппараты и агрегаты, установленные на
открытой площадке, должны быть защищены от атмосферных осадков навесами и
ограждены от механических повреждений.
Исправность электросварочных аппаратов и
агрегатов необходимо проверять через каждые 6 месяцев, обращая особое внимание
на состояние изоляции обмоток и проводов, а результаты проверки записывать в
соответствующую документацию.
Запрещается протирать детали бензином, керосином
перед их сваркой. Хранить огнеопасные материалы в местах производства сварочных
работ.
Газосварщик должен носить брезентовый костюм и
кожаные ботинки. Во избежание ожогов от брызг расплавленного металла необходимо
брезентовые брюки носить поверх сапог и застегивать брезентовую куртку на все
пуговицы. Заправлять куртку под брюки, а брюки в сапоги не разрешается. При
газовой сварке или резке следует работать в защитных очках со специальными
светофильтрами
Ответственным производителям работ (мастерам,
прорабом) обеспечить проверку мест проведения пожароопасных работ в течение не
менее трех часов после их окончания.
При производстве каменных работ.
Все инструменты и приспособления необходимо
использовать в соответствии с их назначением. Перед работой удостоверяются, что
инструменты исправны: правильно и прочно насажены на ручки, рабочие поверхности
инструментов ровные, без заусенцев; поврежденные или деформированные
инструменты использовать нельзя.
Каменщик должен работать в рукавицах,
предохраняющих кожу от истирания.
Кирпичную кладку выполняют с перекрытий
инвентарных подмостей или настила лесов. Леса и подмости устанавливают на
очищенные, выровненные поверхности. Особое внимание уделяют тому, чтобы стойки
трубчатых лесов были правильно установлены на грунт, грунт должен быть плотно
утрамбован. Запрещается устанавливать стойки на грунт, не очищенный от снега и
льда. Для равномерного распределения давления под стойки укладывают деревянные
подкладки, перпендикулярно возводимой стене (одна подкладка под две стойки).
Леса и подмости нельзя перегружать материалами
сверх установленной для данной конструкции лесов или подмостей расчетной
нагрузки. Следует избегать концентрации материалов в одном месте.
Материалы укладывают так, чтобы они не мешали
проходу рабочих и транспортированию материалов. Между штабелями материалов и
стеной оставляют рабочий проход шириной не менее 60 см.
Настилы из инвентарных щитов, сшитых планками,
на лесах и подмостях должны быть ровными и без щелей. Зазор между стеной
строящегося здания и рабочим настилом подмостей не должен превышать 5 см. Этот
зазор нужен для того, чтобы, опустив отвес ниже подмостей, можно было проверить
вертикальность возводимой кладки.
Все настилы лесов и подмостей высотой более 1,1
м, за исключением подмостей сплошного замащивания, ограждают перилами высотой
не менее 1,1 м, состоящими из стоек и прикрепленных к ним с внутренней стороны
(не менее трех) горизонтальных элементов: бортовой доски высотой 150 мм. Если
поручень изготовлен из доски, ее нужно острогать. Бортовую доску ставят для
того, чтобы не допустить падения каких-либо предметов с подмостей.
Для подъема рабочих на подмости устанавливают
стремянки с ограждениями (перилами).
Ежедневно после окончания работы подмости
очищают от мусора и перед началом смены их проверяют: мастер, руководящий
соответствующим участком работ на данном объекте, и бригадир.
Кирпич поднимают на этажи (подмости, леса)
пакетами на поддонах с помощью футляров, исключающих выпадение кирпичей. В
контейнерах и пакетах без поддонов допускается поднимать кирпичи лишь с помощью
захватов, обеспечивающих безопасность (при условии применения приспособлений,
ограждающих пакет).
Приспособления для подъема кирпича (футляры,
захваты) должны иметь устройства, предотвращающие самопроизвольное раскрывание
этих устройств во время подъема.
Запрещается сбрасывать с этажей порожние
футляры, захваты, поддоны; их опускают краном.
Кладку любого яруса стен выполняют так, чтобы
уровень ее после каждого перемащивания подмостей был на 70 см выше уровня
рабочего настила или перекрытия. Ниже этого уровня каменщики работают в
предохранительных поясах, которые пристегивают к конструкциям.
На стенах нельзя оставлять материалы,
инструменты, строительный мусор, так как они могут упасть на находящихся внизу
людей.
По ходу кладки в проемы стен устанавливают
оконные и дверные блоки или инвентарные ограждения.
Карнизы, выступающие за плоскость стены более
чем на 30 см, выкладывают с наружных лесов или с инвентарных выпускных
подмостей, ширина настила которых должна быть на 60 см более ширины карниза.
При этом материалы располагают на внутренних настилах, а каменщики работают,
находясь на выпускных лесах.
При кладке стен высотой более 7 м над входами в
здание устраивают наружные защитные козырьки в виде настила на кронштейнах.
Кронштейн навешивают на стальные крюки, заделанные в кладку, по мере ее
возведения. Ширина козырька не меньше 1,5 м, внешний угол подъема 20°. При
устройстве козырьков соблюдают следующие требования: первый ряд козырьков
устанавливают на высоте не более 6 м от земли и оставляют до возведения кладки
стен на всю высоту; второй, изготовленный сплошным или из сетчатых материалов с
ячейкой не более 50 Х 50 мм, - на высоте 6... 7 м над первым, а затем по ходу
кладки переставляют через каждые 6...7 м.
а - схема крепления кронштейна,
б - схема установки козырька и навесы,
- кронштейн,
- доска,
- стальной крюк,
- козырек,
- навес.
Рабочие монтируют защитные козырьки в
предохранительных поясах. Запрещается ходить по козырькам, а также использовать
их в качестве подмостей и для складывания материалов. Без защитных козырьков 4
можно вести кладку стен зданий высотой не более 7 м, но при этом на земле по
периметру здания устраивают ограждения на расстоянии не менее 1,5 м от стены.
Запрещается выкладывать стены высотой более двух
этажей без устройства междуэтажных перекрытий или временного настила по балкам
этих перекрытий, а также без устройства в лестничных клетках площадок, маршей и
их временных ограждений.
Швы расшивают с перекрытий или с подмостей после
укладки каждого ряда. Во время выполнения этой операции запрещается находиться
на стене.
При работе крана.
Мелкие штучные грузы следует перевозить в таре,
контейнерах
Масса груза не должна превышать грузоподъемности
крана на данном вылете крюка в соответствии с графиком грузоподъемности.
Запрещается поднимать (опускать) груз на
автомашину при нахождении людей в кузове или в кабине.
Запрещается пытаться поднимать примерзший груз,
груз неизвестной массы, перед подъемом грузов проверить отсутствие зацепления
их за другие конструкции.
Места производства работ с помощью
грузоподъемных машин и механизмов должны быть ограждены и обозначены
предупредительными знаками.
При работе грузоподъемных машин вблизи линии
электропередачи во избежание поражения электрическим током стропальщик перед
каждой операцией, связанной с необходимостью соприкосновения с грузом,
стропами, крюком или элементами грузоподъемной машины, должен убедиться в том,
что стрела грузоподъемной машины или канаты находятся на безопасном расстоянии
(в соответствии с нарядом-допуском) от проводов линии электропередачи.
На участке, где ведутся работы краном, не
допускается выполнение других работ и нахождение посторонних лиц.
Запрещается перемещение грузов краном над
работающими людьми. Перемещение с грузом над зоной работ разрешается только
после удаления людей из этой зоны, после подачи наблюдающим разрешающего
сигнала.
При перемещении груза расстояние между ним и
выступающими частями существующих конструкций должно быть по горизонтали не
менее 1м, по вертикали не менее 0,5м.
Для разворота грузов при транспортировке
пользоваться оттяжками.
Во время перерывов в работе не допускается
оставлять поднятый груз на весу.
Применяемая грузоподъемная оснастка должна быть
соответственно подобрана, исправна и проверена на обеспечение безопасных
условий выполнения работ.
В любом случае стропальщик должен находиться со
стороны, противоположной движению груза на расстоянии не менее 2,0 м.
Работы по строповке грузов для подъема груза
вблизи линии электропередачи, для перемещения груза, на который не разработаны
схемы строповки, а также для перемещения груза над перекрытиями помещений, в
которых могут находиться люди, должны выполняться стропальщиком под непосредственным
руководством лица, ответственного за безопасное производство работ кранами.
При монтаже и демонтаже конструкций:
Монтаж необходимо осуществлять последовательно
снизу вверх.
Применяемые лестницы должны быть оборудованы
устройствами для закрепления фалов предохранительного пояса и закреплены
скрутками из мягкой проволоки d = 6 мм за надежно закрепленные конструкции. При
опирании лестницы на металлическую поверхность пола лестница должна иметь
башмак из резины или другого нескользящего материала.
Во время производство работ рабочие должны
применять предохранительные пояса и каски. Предохранительные пояса пристегивать
к надежным существующим (не демонтируемым) конструкциям, указанным мастером.
Запрещается сбрасывать вниз материалы,
инструмент, мусор. Под инструмент, электроды и метизы иметь монтажные сумки.
Основные положения по технике безопасности и
охране труда.
. Не допускается пользоваться открытым огнем в
радиусе 50 м от места применения и складирования материалов, содержащих
легковоспламеняющиеся или взрывоопасные вещества.
. Подача материалов, строительных конструкций и
узлов оборудования на рабочее место должна выполняться механизированным
способом и в технологической последовательности, обеспечивающей безопасность
работ.
Складировать материалы следует на рабочих местах
так, чтобы они не создавали опасность при выполнении работ и не стесняли
проходы.
При подаче материалов, строительных конструкций
следует применять поддоны, контейнеры, тару и грузозахватные устройства,
исключающие падение груза.
Стропы, траверса и тара в процессе эксплуатации
должны подвергаться техническому осмотру в сроки, установленные требованиями
Правил устройства и безопасной эксплуатации грузоподъемных кранов,
утвержденными Госгортехнадзором России, a прочая технологическая оснастка - не
реже, чем через каждые 6 месяцев.
. При кладке стен уровень кладки после каждого
перемещения средств подмащивания должен быть не менее чем на 0,7 м выше уровня
рабочего настила или перекрытия; не допускается кладка наружных стен толщиной
до 0,75 м в положении «стоя на стене». При кладке стен высотой более 7 м
необходимо применять защитные козырьки но периметру здания или сетчатое
ограждение, устанавливаемое на уровне кладки. Не допускается кладка стен зданий
последующего этажа без установки несущих конструкций междуэтажного перекрытия,
а также маршей, площадок в лестничных клетках. Рабочие места и проходы к ним на
высоте 1,3 м и более и расстоянии менее 2 м от границы перепада по высоте
должны быть ограждены временными ограждениями. При невозможности устройства
этих ограждений работы на высоте должны выполняться с использованием
предохранительных поясов.
. На участке (захватке), где ведутся монтажные
работы, не допускается выполнение других работ. На всей территории строительной
площадки должны быть установлены указатели рабочих проходов и проездов и
определены зоны, опасные для прохода и проезда. В зонах устанавливаются
ограждения, подписи, сигналы. До начала работ должна быть проверена исправность
монтажного и подъемного оборудования, а также захватных приспособлений. Способы
строповки элементов конструкций и оборудования должны обеспечивать их подачу к
месту установки в положении, близком к проектному.
Очистку конструкций от грязи и наледи следует
производить до их подъема. Не допускается пребывание людей на элементах
конструкции и оборудования во время подъема или перемещения. Установленные в
проектном положении элементы конструкций или оборудование должны быть так,
чтобы обеспечивалась их устойчивость и геометрическая неизменяемость. Не допускается
нахождение людей под монтируемыми элементами конструкций и оборудования до
установки их в проектное положение и закрепления. Во время перерывов в работе
не допускается оставлять поднятые элементы конструкций и оборудования на весу.
. Заготовка и обработка арматуры должна
выполняться в специально предназначенных для этого и соответственно
оборудованных местах. Ежедневно перед укладкой бетона в опалубку необходимо
проверять состояние тары, опалубки и средств подмащивания. Рабочие,
укладывающие бетонную смесь на поверхности с уклоном 20°, должны пользоваться
предохранительными поясами.
. Допуск рабочих к выполнению кровельных работ
разрешается после осмотра прорабом или мастером совместно с бригадиром. При
выполнении работ на крыше с уклоном более 20° рабочие должны применять
предохранительные пояса. Места закрепления поясов должны быть указаны мастером
или прорабом. При выполнении изоляционных работ с применением огнеопасных
материалов, а также выделяющих вредные вещества следует обеспечить защиту работающих
от воздействия вредных веществ.
Используемая литература
Хамзин
С. К., Карасев А. К., Технология строительного производства. Курсовое и
дипломное проектирование. М.: Высш. школа, 1989.
Шерешевский
И. А. Конструирование гражданских зданий.ЮСамара, ООО «Прогресс», 2004.
Выбор
монтажных кранов. Учебно-методическое пособие. Череповец, ЧГУ. 2005.
Монтаж
зданий из сборных конструкций. Учебно-методическое пособие к выполнению
курсового проекта. Череповец, ЧГУ, 2001.
ЕНиРы.
Сборники 3-6. Выпуск 1. Сборник Е3 Каменные работы.
Сборник
Е4. Монтаж сборных и устройство монолитных железобетонных конструкций.
Сборник
Е5. Монтаж металлических конструкций.
Сборник
Е6. Плотничные и столярные работы в зданиях и сооружениях.
Здания
и промышленные сооружения/Госстрой СССР. М.: Стройиздат, 1987.
СНиП
III-4-80**. Техника безопасности в строительстве/Госстрой СССР. М.: Стройиздат,
1989.
1.