Станция технического обслуживания автомобилей марки УАЗ в п. РТС г. Тюмени
ВВЕДЕНИЕ
Автомобильный транспорт развивается качественно
и количественно бурными темпами. В настоящее время ежегодный прирост мирового
парка автомобилей равен 10-12 млн. единиц, а его численность - более 400 млн.
единиц. Каждые четыре из пяти автомобилей общего мирового парка - легковые и на
их долю приходится более 60% пассажиров, перевозимых всеми видами транспорта.
Однако процесс автомобилизации не ограничивается только увеличением парка
автомобилей. Быстрые темпы развития автотранспорта обусловили определенные
проблемы, для решения которых требуется научный подход и значительные
материальные затраты.
Основными из них являются: увеличение пропускной
способности улиц, строительство дорог и их благоустройство, организация стоянок
и гаражей, обеспечение безопасности движения и охраны окружающей среды,
строительство станций технического обслуживания автомобилей, складов,
автозаправочных станций и других предприятий.
В данное время высокие темпы роста парка
автомобилей высокой проходимости типа "УАЗ", выпуск на Ульяновском
автомобильном заводе. Так как из-за усложненной конструкции, увеличение числа
лиц, некомпетентных в вопросах обслуживания, принадлежащих им транспортных
средств, интенсификация движения на дорогах и другие факторы обусловили
создание новой отрасли промышленности - автотехобслуживания.
Система "Автотехобслуживание" в
настоящее время имеет достаточно мощный производственный потенциал.
Дальнейшее укрепление этой системы должно
предусматривать не только ввод в эксплуатацию новых объектов, но и реконструкцию
старых объектов, интенсификацию производства, рост производительности труда и
фондоотдачи, улучшение качества услуг за счет широкого внедрения новой техники
и передовой технологии, рациональных форм и методов организации производства и
труда.
Управление производственной деятельностью
станций техобслуживания, улучшение условий труда, повышение эффективности
трудозатрат является одной из актуальных задач станции технического
обслуживания автотранспортных средств.
В след выше перечисленного актуально рассмотреть
тему дипломного проекта станции технического обслуживания (СТО) автомобилей
марки УАЗ в п.РТС г.Тюмени. В данной пояснительной записке отражены необходимые
задачи по вводу в эксплуатацию СТО и расписаны по пунктам: технологическая
часть; архитектурно-строительные решения; сравнительный анализ опрокидывателей;
проектирование и прочностные расчеты опрокидывателя автомобилей марки СВ-2,0;
технико-экономические показатели проекта; безопасность жизнедеятельности.
Исходные данные: расположение - пос. РТС
г.Тюмени; годовая программа по обслуживанию автомобилей марки УАЗ - 680
ед./год; план земельного участка размещения станции технического обслуживания;
ВСН 01-89 «Предприятия по обслуживанию автомобилей»; СНиП 21-02-99* «Стоянки
автомобилей»; авторские свидетельства по автомобильным опрокидывателям.
Вопросы, подлежащие разработке или исследованию:
объемно-планировочные решения;
архитектурно-строительные решения;
сравнительный анализ опрокидывателей;
проектирование опрокидывателя для автомобилей
СВ-2,0;
решение прочностных расчетов по опрокидывателю;
подбор надлежащих деталей ;
Обязательный графический материал:
планировка СТО;
планировка зоны обслуживания;
виды опрокидывателей;
схема работы опрокидывателя;
общий вид опрокидывателя;
Консультанты:
по экономике: канд. эконом. наук, доцент О.В.
Кирилова
по безопасности жизнедеятельности: канд. техн.
наук, доцент
1. Технологическая часть
Проектируемая СТО предназначена
для технического обслуживания и ремонта легковых автомобилей. Предприятие
размещается в границах отведенной площадки, в г.Тюмени поселок РТС. На СТО
предусмотрено техническое обслуживание и ремонт легковых автомобилей.
Под техническим обслуживанием
автомобиля понимают комплекс периодически осуществляемых воздействий,
направленных на поддержание его в технически исправном и работоспособном
состоянии.
Техническое обслуживание
автомобиля носит профилактический характер и выполняется по плану через
установленный пробег автомобиля или сезонно. Ремонт в отличие от технического
обслуживания выполняется по потребности, после обнаружения неисправности.
Некоторые ремонтные работы, как и техническое обслуживание, могут выполняться
по плану и носить профилактический характер. Эти меры являются основой
планово-предупредительной системы технического обслуживания автомобилей.
Техническое обслуживание
предполагает выполнение контрольно-диагностических, крепежных, регулировочных,
смазочных, заправочных и электротехнических работ. Они выполняются, как
правило, без разборки агрегатов и без снятия их с автомобиля.
Цель технического обслуживания
заключается в снижении интенсивности изнашивания деталей и выявлении
неисправностей. Достигается это путем своевременного проведения
контрольно-диагностических, крепежных, регулировочных и смазочных работ. Если
техническое обслуживание проведено своевременно, в полном объеме и качественно,
то автомобиль должен работать без поломок и заметного снижения основных
эксплуатационных показателей до следующего обслуживания.
Техническое обслуживание
автомобилей подразделяется на четыре вида: ежедневное техническое обслуживание
(ЕО), техническое обслуживание № 1 (ТО-1), техническое обслуживание № 2 (ТО-2)
и сезонное техническое обслуживание (СО).
Для легковых автомобилей
периодичность проведения ТО-1 и ТО-2 и объем выполняемых при этом работ
устанавливается в зависимости от назначения и марки автомобиля, а также от
условий его эксплуатации. В перечень работ, выполняемых при ТО-2, обязательно
входят в полном объеме все работы, выполняемые при ТО-1, так же как и работы ЕО
полностью выполняются при ТО-1. Заводы-изготовители организуют службу
автосервиса, на предприятиях которого производится техническое обслуживание
легковых автомобилей.
Техническое обслуживание
современных легковых автомобилей, находящихся в личном пользовании,
регламентируется Положением о техническом обслуживании и ремонте легковых
автомобилей, принадлежащих гражданам. Именно это Положение определяет
требования и регулирует взаимоотношения между автолюбителями, предприятиями
автосервиса и заводами-изготовителями автомобилей, устанавливает периодичность
ТО и содержит рекомендации по организации работ на станциях технического
обслуживания автомобилей.
Весь период эксплуатации
автомобиля от производства до списания как бы делится на три типа технического
воздействия: предпродажная подготовка, гарантийный и послегарантийный периоды.
Предпродажная подготовка предполагает три вида работ: обязательные, работы по
потребности и дополнительные работы по желанию покупателя (оплачиваемые).
Техническое обслуживание в
послегарантийный период делят на обслуживание по талонам сервисных книжек, ЕО,
а также ТО-1, ТО-2 (автомобилей, для которых не предусмотрены сервисные книжки)
и СО.
Техническое обслуживание
автомобилей, регламентируемое сервисной книжкой, как правило, включает в себя:
контрольный осмотр автомобиля и его агрегатов и выполнение ряда операций по
устранению отмеченных при осмотре недостатков и неисправностей; выполнение
обязательных регламентных работ при достижении автомобилем определенного
пробега. Обычно периодичность технического обслуживания по талонам сервисной
книжки составляет 10000 км за исключением первого, а иногда и второго талонов.
В этот период происходит приработка и так называемое осаживание деталей, в
результате него могут быть нарушены регулировочные размеры и ослаблены
резьбовые соединения.
Рассмотрим основные работы,
выполняемые при всех видах технического обслуживания.
1.1
Состав. Площади
В составе проектируемой станции
предусматриваются:
1. производственный
корпус с выделенными помещениями:
· приемной,
· зоной
отдыха,
· производственной
зоной,
2. открытую стоянку
автомобилей;
3. закрытую стоянку
автомобилей;
. механизированную
мойку;
. очистные сооружения
воды;
. резервуар запаса воды;
. насосную пожаротушения
. КПП
. магазин
Площади зоны ремонта определены
нормативными расстояниями между автомобилем и конструкциями здания, габаритными
размерами обслуживаемых автомобилей и их маневренными возможностями.
Площади служебных и бытовых
помещений определены с учетом численности работающих.
Площади технического помещения
и агрегатного участка определены с учетом площадей устанавливаемого в них
оборудования.
1.2.
Режим работы
Режим работы станции принят
полуторасменный, с семидневной рабочей неделей.
Продолжительность смены - 12
часов.
Количество рабочих дней в году
- 355.
Работа организована бригадным
методом.
Смена бригад запланирована
через двое суток.
1.3
Производственная программа
Производственная программа
принята исходя из опыта работы аналогичных станций и планируемой загрузки.
Станция технического обслуживания
способна принимать на ТО и ремонт различные модификации УАЗов.
Техническое обслуживание для автомобилей «УАЗ»
проводится согласно следующим нормативам, приведенным в таблицу 1.1:
Таблица 1.1 - Периодичность
обслуживания автомобилей «УАЗ»
|
Наименование
|
Периодичность
|
|
по
продолжительности эксплуатации, мес.
|
по
пробегу, тыс. км.
|
|
Первое
ТО
|
12
|
15
|
|
Последующие
ТО
|
24
|
30
|
Статистами определен уровень
насыщенности рынка автомобилями «УАЗ» для города Тюмени. Данный уровень
составляет 1,56 автомобилей на 1000 человек.
Тогда при населении города
около одного миллиона человек насыщенность рынка составит 1560 автомобилей.
Владельцы автомобилей «УАЗ» как
правило, интенсивно эксплуатируют свои автомобили. Поэтому средний годовой
пробег составляет 200 км в сутки.
Годовой объём работ СТО
включает ТО и Р автомобилей. Количество обслуживаемых автомобилей
рассчитывается по формуле
(1.1)
Где Ncto - число
автомобилей эксплуатируемых в городе;
Lr - средний
пробег автомобиля за расчетный период, км;
≈ 21 автомобиль в сутки тогда
в год будет обслуживаться 21×364 = 7571 автомобиль
Программа моечного участка принимается
аналогично программе ТО и ремонта автомобилей
Планируемая производственная программа сведена в
таблицу 1.2.
Таблица 1.2 - Производственная
программа
|
Наименование
|
Количество
обслуживаемых автомобилей, ед.
|
|
Час
|
Сутки
|
Год
|
|
механизированная
мойка
|
2-3
|
21
|
7571
|
|
Зона
ТО и ТР из них на постах: - инструментального контроля - диагностики
двигателя
|
2-3
2-3 1
|
21
21 4
|
7571
7571 1420
|
Количество постов рассчитаем по
следующей формуле.
(1.2)
Где Nnnoc - число
постов;
- число автомобилей обслуживаемых
на посту за расчетный период, шт;
Тп - средняя трудоемкость работ на
данном посту, чел.час.
t -
продолжительность расчетного периода, час.
Перечень работ и их трудоемкость
приведены в таблице 1.3.
Таблица 1.3 - Трудоемкость работ
|
Наименование
операции
|
Трудоемкость,
чел.час.
|
|
Уборочно
- моечные операции
|
0,25
|
|
Приёмка
автомобилей
|
0,10
|
|
Инструментальный
контроль
|
0,30
|
|
Диагностика
двигателя
|
0,20
|
|
ТО
и ТР :
|
1,60
|
|
регулировка
развала-схождения
|
0,45
|
|
контрольно
- регулировочные и крепежные работы, замена узлов и агрегатов
|
0,55
|
|
электротехнические
работы
|
0,60
|
|
выдача
автомобиля
|
0,25
|
|
шиномонтажные
работы
|
0,35
|
Рассчитаем общее количество
постов ТО и ТР
Таким образом принимаем три поста ТО
и ТР
Аналогично проводим расчет по
каждому посту, расчеты сводим в таблицу 1.4.
Таблица 1.4 - Количество постов
|
Наименование
поста
|
Число
постов
|
Число
постов на подъемниках
|
|
Общее
количество рабочих постов
|
12
|
3
|
|
в
т. ч. уборочно - моечные посты
|
1
|
|
|
посты
приёмки автомобилей
|
1
|
|
|
линии
инструментального контроля
|
1
|
1
|
|
пост
диагностики двигателя
|
1
|
|
|
посты
зоны ТО и ТР
|
3
|
|
|
пост
регулировки развала-схождения
|
1
|
1
|
|
посты
контрольно - регулировочных и крепежных работ, замены узлов и агрегатов
|
1
|
1
|
|
посты
электротехнических работ
|
1
|
|
|
пост
выдачи автомобилей
|
1
|
|
|
пост
шиномонтажных работ
|
1
|
|
1.4
Штаты
Численность персонала
определена набором выполняемых услуг, трудоемкостью работ и режимом
эксплуатации комплекса.
Технологически необходимое
число производственных рабочих обеспечивает выполнение суточной
производственной программы предприятия
(1.3)
где ТОБ - годовой объем работ СТО,
чел-час;
Фт - годовой фонд времени
технологически необходимого рабочего при односменной работе, час.
Годовой фонд времени технологически
необходимого рабочего при односменной рабочей неделе, определяется продолжительностью
смены и числом рабочих дней в году.
(1.4)
где Дкг - число календарных дней в
году, дней;
Дв - число выходных дней в году,
дней;
- продолжительность смены, час;
Дпп - число субботних и
предпраздничных дней в году, дней;
- час сохранения рабочего дня перед
выходными, час.
Штатное число производственных
рабочих обеспечивает выполнение суточной и годовой производственной программы
СТО.
(1.5)
где ТОБ - годовой объем работ СТО,
чел- час;
Фш - годовой фонд времени штатного
рабочего, час
Годовой фонд времени штатного
рабочего определяет фактическое время, отработанное исполнителем
непосредственно на рабочем месте.
(1.6)
Где дкг _ число календарных дней в
году, дней;
Дв - число выходных дней в году,
дней;
Дп- число праздничных дней в году,
дней;
Дуп - число дней невыхода на работу
по уважительным причинам, дней;
- продолжительность смены, час;
Дпп - число предпраздничных и
предвыходных дней в году, дней;
- час сокращения рабочего дня перед
выходными и предпраздничными днями, час.
Распределение работников по
должностям, сведено в таблице 1.5
Таблица 1.5 - Штаты
|
Должность
|
Численность
|
|
Директор
|
1
|
|
Гл.
бухгалтер
|
1
|
|
Механик
|
1
|
|
Автослесарь
|
9
|
|
Уборщица
|
1
|
|
Итого:
|
13
|
Численность персонала может
быть изменена в процессе эксплуатации комплекса.
Схема 1.1 Структура
1.5
Оборудование
Номенклатура и количество
основного технологического оборудования подобраны исходя из запланированных к
выполнению на предприятии видов услуг и организации работы:
проведения уборочно - моечных и
контрольно - диагностических работ, перед постановкой автомобилей на посты
ремонта;
технического обслуживания и
ремонта л/ автомобилей;
Предусмотренные в проекте
оборудование, оснастка и инструмент обеспечивают оптимальный уровень
механизации и автоматизации технологического процесса. Состав оборудования и
его количество приведены в таблице 1.6.
Таблица 1.6. Оборудование
|
№
п/п
|
Наименование
оборудования
|
Кол-во
|
|
1.
|
Предлагаемый
опрокидыватель
|
3
|
|
2.
|
Маслосборник
МС
|
1
|
|
3.
|
Подставка
|
2
|
|
4.
|
Стойка
трансмиссионная
|
2
|
|
5.
|
Комплект
приборов для ТО свечей Э-203
|
1
|
|
6.
|
Домкрат
подкатной гидравлический
|
2
|
|
7.
|
Зарядное
устройство ЗУ-1М
|
1
|
|
8.
|
Установка
для заправки трансмиссионным маслом 37100
|
1
|
|
9.
|
Стенд
для регулировки развал-схождения СКО-1М
|
1
|
|
10.
|
Скручиватель
пружин
|
1
|
|
11.
|
Компрессор
|
1
|
|
12.
|
Компрессометр
МТ-5
|
1
|
|
13.
|
Приспособление
для снятия и установки поршневых колец
|
1
|
|
14.
|
Съемник
клапанов
|
1
|
|
15.
|
Динамометрический
ключ V440025
|
1
|
|
16.
|
Нутрометр
|
1
|
|
17.
|
Набор
инструмента в кейсе S910
|
2
|
|
18.
|
Набор
съемников
|
1
|
|
19.
|
Тиски
слесарные
|
1
|
|
20.
|
Лебедка
ручная
|
1
|
|
21.
|
Прибор
для проверки и регулирования света фар К-310
|
1
|
|
22.
|
Газоанализатор
СОСНАП 4
|
1
|
|
23.
|
Дымомер
для дизельных двигателей Д-3
|
1
|
|
24.
|
Компьютерная
диагностика ДВС
|
1
|
|
25.
|
Тележка
инструментальная ПУ
|
1
|
|
26.
|
Верстак
В-14
|
3
|
|
27.
|
Стеллаж
СТ
|
3
|
|
28.
|
Устройство
для удаления выхлопных газов МСТА-01
|
1
|
1.6
Краткое описание технологического процесса
В проекте предусмотрен один
изолированный пост. Для проведения уборочно-моечных работ перед постановкой автомобиля
на техническое обслуживание или ремонт. Расположение авто мойки выполнено с
учетом организации очистных сооружений.
Для бесперебойного снабжения
водой установлен бак для запаса очищенной воды.
Планируемый расход воды на
мойку одного автомобиля - 165 литров, в том числе 150 литров из системы
оборотного водоснабжения, 15 литров воды питьевого качества на обмыв
автомобиля.
Механик или владелец
автомобиля, устанавливает автомобиль на соответствующий пост с учетом его
дальнейшего обслуживания.
Предусмотренные моечные
аппараты укомплектованы сменными насадками, позволяющими работать в следующих
режимах:
мойка открытой струёй высокого
давления;
- мойка с применением специальной щетки;
мойка с применением насадки с роторной струёй
для истребления грязи;
- мойка с применением насадки
для мытья днища.
Уборка салона автомобиля
выполняется вручную с помощью профессиональных водогрязепылесосов,
пароочистителей и аппаратов химчистки салонов.
Нанесение защитных
водоотталкивающих покрытий и проведение полировочных работ вручную и
пневматическими шлифовальными машинками.
Техническое помещение
Техническое помещение
расположено в цокольном этаже. Согласно технологического процесса в нём нет
рабочих мест с постоянным пребыванием обслуживающего персонала. На территории
установлено оборудование для оборотного водоснабжения автомойки, пункт учета
расхода воды, оборудование для воздухоснабжения корпуса.
Для централизованного
воздухоснабжения проектом предусмотрен винтовой компрессор модели ТК-11-10
производительностью 1380 л/мин, ресивер объёмом 500 литров и оборудование по
первичной подготовке воздуха до требуемых параметров: охлаждения воздуха,
удаления влаги, очистки от механических частиц, удаления конденсата.
2.7
Станция технического обслуживания
Для приемки автомобиля в ремонт
запланирована линия инструментального контроля автомобилей и пост экспресс
диагностики двигателя.
Оформление заказов выполняет
мастер в присутствии владельца автомобиля.
По заявленному объёму работ
составляется заказ - наряд на проведение ремонтных работ, оплата выполняемых
услуг производится в кассе.
Автомобиль устанавливается на
соответствующий пост владельцем или механиком.
В зоне ремонта предусмотрено 7
рабочих постов, 3 из которых оборудованы подъёмниками.
Выполнение работ по ТО и ТР
относится к индивидуальному методу производства с использованием готовых
запасных частей или восстановленных агрегатов.
Восстановительные операции выполняются с учетом
принадлежности данных узлов к конкретному автомобилю.
Посты специализированы по видам
оказываемых услуг и оснащены необходимым технологическим оборудованием.
Смазочно-заправочные работы
(проверка уровня, долив и замена масел, замена тормозной жидкости) выполняются
на любом из постов, оборудованных 2-ух стоечными подъемниками и передвижным
оборудованием. Слив масел предусмотрен в подкатные емкости, оснащенные
маслосборными воронками.
Общее количество смазочного
материала в зоне не должно превышать 5 м. Масло хранится в емкостях единичной
вместимостью не более 1м , по мере накопления вывозится на нефтебазу для
регенирации или на предприятия стройиндустрии для использования в
технологических процессах (изготовление битума, обмазка строительных форм и
т.п.)
Крепежно-регулировочные и
разборочно-сборочные работы выполняются на 1-ом посту, оснащенным 2-ух стоечным
подъемником. Для снятия агрегатов и узлов предусмотрен кран передвижной
грузоподъемностью 0,5т., специализированные стойки для снятия агрегатов и
пневматический механизированный инструмент.
Проверка и регулировка развала-
схождения колес выполняется на подъемнике модели П-97.
Для производства
электротехнических работ и установки сигнализации запроектировано применение
высокопроизводительного специализированного инструмента.
Пост контрольно-диагностический оборудован
комплексом компьютерной диагностики двигателей и электронных систем управления,
герметичности систем охлаждения, газоанализатором выхлопных газов.
Для проведения работ с
включенным двигателем в зоне предусмотрена система местных вытяжных шланговых
отсосов.
После исполнения заказа
автомобиль передается владельцу на посту выдачи, где проводится комплекс
контрольно - осмотровых работ по определению качества и объёма выполненных
услуг.
опрокидыватель автомобиль станция
технический обслуживание
2.
Архитектурно строительная часть
Под планировкой СТО понимается
компоновка на плане и взаиморасположение производственных, складских и
административно-бытовых помещений и отдельно стоящих зданий и сооружений,
предназначенных для ТО, ТР и хранение подвижного состава, а также определение
конструктивных схем, размеров и плотности зданий, организации движения на
территории и в здании, размещение рабочих постов и мест хранения подвижного
состава. Руководящим нормативным документом при решении планировочных процессов
служит СНиП-П-93-74 .
Существенное влияние на
планировку СТО оказывает конструктивная схема здания, противопожарные и
санитарно-гигиенические требования, требования по охране окружающей среды и ряд
других требований связанных с системами отопления, освещения, вентиляции и
прочие.
Ниже приведен генеральный план
автоцентра
Рисунок 2.1 - Генеральный план
автоцентра
Площадь территории составляет
1,4 га , площадь застройки 5840 м2, площадь озеленения 700 м
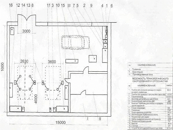
На территории СТО размещены: 1-
производственный корпус, 2 - открытая стоянка автомобилей, 3 - закрытая стоянка
автомобилей, 4 - механизированная мойка, 5 - очистные сооружения, 6 - резервуар
запаса воды, 7 - насосная пожаротушения, 8 - КПП, 9 - магазин.
Планировочные и конструктивные
решения приняты в соответствии с требованиями СНиП П-93-74 и ОШП-АТП СТО-80.
Высота помещения принята 4,2
метров для обеспечения требований технологического процесса, обусловленных
габаритными размерами транспорта.
Все производственные помещения
делятся на основные и вспомогательные.
Здание выполнено по каркасной
технологии.
Состав стен:
каркас из профиля.
утеплитель минвата
Раздвижные ворота, для
обеспечения проезда автотранспорта имеют габаритные размеры 2,4x3 метра. Двери
используются двустворчатые.
Крыша здания состоит из несущей
и ограждающей частей. Несущая часть представляет собой конструктивные элементы,
воспринимающие все нагрузки, в станции это металлическая ферма и
теплоизоляционные плиты из армированных легких бетонов ГОСТ 7741-88.
Ограждающей частью крыши является верхний водонепроницаемый слой, то есть
кровля и основание. Кровля - верхний элемент покрытия, предохраняющий здание от
проникновения атмосферных осадков. Основание под кровлю - поверхность
теплоизоляции, по которой наклеивают слои водоизоляционного ковра рулонного,
состоящего из трех слоев рубероида антисептированного дегтевого марки РМ-350 и
битумной мастики МБЕ-Г-65 ТУ 21-27-28-71 и ТУ-21-27-16-88. Кровля станции
состоит из пенополиуретановых плит ТУ 34-4827-75 и теплоизоляционных плит из армированных
легких бетонов ГОСТ 7741-88.
Карниз - горизонтальный выступ
стены, служит для отвода от поверхностей стен атмосферных осадков. Величина, на
которую карниз выступает за поверхность стены, называется выносом карниза и
равна 800 мм. Карниз СТО выполнен из сборных железобетонных блоков 600x600 мм
заводского изготовления.
Рисунок 2.2 -План автоцентра
Окна служат для освещения и
проветривания помещения. Двери служат для сообщения между смежными помещениями.
Ворота устраивают в здании для въезда и выезда легковых автомобилей. Полотна
ворот, как правило, состоят из металлического каркаса.
Полы покрытия - верхний слой
пола, непосредственно подвергающийся эксплуатационным воздействиям. На СТО
покрытие выполнено из цементобетона; керамической плитки толщиной 13 мм;
линолеума. Подстилающий слой - слой пола, распределяющий нагрузки на грунт.
Бетон М300 служит гидроизоляционным слоем, препятствующим проникновению через
пол сточных вод и других жидкостей. Основанием пола является уплотненный грунт.
Стяжка - слой пола, служащий для выравнивания поверхности нижележащего пола,
придания покрытию пола заданного уклона. На станции стяжка - из шлакобетона 40
мм или цементного раствора толщиной 20 мм.
3. Сравнительный анализ
опрокидывателей
В данном разделе рассмотрим четыре вида
опрокидывателей.
На рисунке 1 представлен опрокидыватель легковых
автомобилей по АС № 1638102.
Рисунок 1
Опрокидыватель состоит из таких
основных узлов как:
-Ложементы;
- Поперечина;
- Тельфер;
- Ролики;
- Подъемник;
- Пневмоцилиндр;
- Шток.
В ходе рассмотрения данного
опрокидывателя выявлены такие недостатки как:
- Необходима большую площадь для его
установки в помещении;
- Сложен и неудобен в эксплуатации;
- Требуется большая трудоемкость при
работе с ним;
- Необходимы высокие потолки в
нутрии помещения;
- Для качественной и полноценной
работы опрокидывателя необходимо более 1-го работника.
Следующий опрокидыватель автомобилей
представлен на рисунке 2 по АС № 1043085.
Рисунок 2
Данный опрокидыватель состоит из
таких основных узлов как:
- Основание;
- Платформа;
- Привод;
- Стоика.
Недостатками этого опрокидывателя
являются:
- Занимает значительную площадь;
- В большинстве случаев используется
для грузовых автомобилей;
- Дорогостоящий из-за мощных
конструкций и электропривода;
- Располагается только на открытых
площадках, вследствие этого появляется следующий недостаток;
- Невозможность выполнения работ при
минусовой температуре, то есть сезонность работы на опрокидывателе.
Следующий опрокидыватель автомобилей
представлен на рисунке 3 оп АС № 1643444.
Рисунок 3
Опрокидыватель состоит из таких
основных узлов как:
- Лебедка;
- Трос;
- Опорная балка;
- Грузозахват;
5- Стойка;
6- Опора
Недостатками данного опрокидывателя являются:
- Ручной привод, то есть необходимо прилагать
достаточное физическое усилие при опрокидывании автомобиля;
- Вероятность обрывания троса при его износе или
не рассчитав вес автомобиля;
- Применяется только для легковых не тяжелых
автомобилей;
- Вероятность перемещения поднятого автомобиля в
горизонтальной плоскости.
Последний опрокидыватель автомобилей представлен
на рисунке 4 оп АС № 1558866.
Рисунок 4
Данный опрокидыватель состоит из
таких основных узлов как:
- Стоика;
- Рифленые упоры;
- Гибкая растяжка;
- Опорная пята.
Недостатками данного опрокидывателя
являются:
- Возможность срывания автомобиля
из-за небольшой опрокидываемой платформы;
- Ручной привод, то есть необходимо
прилагать достаточное физическое усилие при опрокидывании автомобиля;
- Используется только для легковых
автомобилей
- Вероятность скатыванья автомобиля,
то есть перемещение его в горизонтальной плоскости.
Все выше перечисленные
опрокидыватели автомобилей имеют ряд недостатков, которые при их детальном
рассмотрении постарались избежать в последующем опрокидывателе марки СВ-2,0 в
дальнейшем используемый на станции технического обслуживания автомобилей марки
УАЗ.
4.
Конструкторская часть
Один из приемов повышения
производительности труда при выполнении ТО и ремонта - это обеспечение
доступности к узлам и агрегатам автомобиля.
В нашем случае предлагается
оборудование, предназначенное для опрокидывания автомобилей при ремонте и
техническом обслуживании.
4.1
Описание конструкции
Опрокидыватель содержит платформу
опрокидывающую 1, Г-образной формы. На раме смонтированы захваты колес 5. С
рамой соединяется стойка 2. На стойке установлены электромеханический привод 3
подъема каретки 6 и пульт управления 4.
Опрокидыватель работает следующим
образом.
Автомобиль заезжает на
опрокидывающую платформу. Затем на колеса устанавливают захваты.
Электромеханическим приводом осуществляется подъем каретки. Каретка поднимает
одну сторону опрокидывающей платформы и тем самым осуществляется подъем
автомобиля.
4.2
Кинематический расчет
Определяем силу подъема F
4.2.1
Строим кинематическую схему
h1 = h3 = (1,978 -
1,387):2 = 0,2955 (м.)
h2 = 1,387 м.
h4 = 0,238 м.
4.2.2
Определяем силу тяжести G
= m×g, H (4.1)
- масса груза, кг.
g - ускорение
свободного падения, м/с2= 2000 кг, g = 9,8 м/с2
тогда= 2000×9,8 = 19600
(H)
Определяем силу подъема F из
выражения:
Σ МА = F×(h1+ h2+ h3+ h4) - F2×h1 = 0 (4.2)
отсюда
, H. (4.3)
(4.4)
(H.)
Тогда
(H)
Кинематическая схема
F = 8747,47 H ≈8,75кH
V = 0,03 м/с
4.2.3
Определяем мощность на подъем
P = F×V, Вт.
отсюда
P =
8747,47x0,03 = 262,4 ≈ 263 (Вт) = 0,263 (кВт)
4.2.4 КПД
привода
η = ηкон.пер× ηвинт.пер × ηмуф × ηпод × ηпод× ηпод (4.5)
ηкон.пер = 0,95. . . 0,97;
Принимаю
ηкон.пер.=
0,95
ηвинт.пер = 0,85 . . . 0,95;
Принимаю ηвинт.пер =
0,85
ηмуф = 0,98
ηпод = 0,99
Тогда
η = 0,95x×0,85x×0,98×0,99×0,99×0,99 = 0,77
.2.5
Определяем требуемую мощность двигателя
, кВт (4.6)
отсюда
4.2.6
Определяем номинальную мощность двигателя и номинальную частоту вращения
двигателя
Рном ≥ Рдв (4.7)
Для этого воспользуемся таблицей К9
Тогда выбираем следующие варианты
двигателей:
Рном = 0,55 кВт
Тип: 4АМ71В6У3
nном = 900
об/мин
Тип: 4АМ80В8У3
nном = 700
об/мин
Тип: 4АМ71А4У3
nном = 1390
об/мин
4.2.7
Определяем передаточное число привода

(4.8)
nрм - частота
вращения ходового винта, об/мин
Определяем nрм по
формуле
(4.9)
V - скорость
подъема, м/с
Z - число
заходов на винте (по стандарту 4)
P - шаг
резьбы (по стандарту 2)
тогда
Отсюда определяем передаточное число
(4.10)
(4.11)
(4.12)
Ориентируясь на рекомендуемые
значения передаточных чисел, выбираем:
U = 4, nном = 900
об/мин,
Тип двигателя: 4АМ71В6У3
4.2.8
Определяем угловую скорость
(4.13)
отсюда
Рассчитаем крутящий момент на
ходовом винте:
(4.14)
отсюда
4.3 Расчет
зубчатой передачи
.3.1 Выбор
материла зубчатых колес
Принимаем тип зубчатой передачи:
коническая
Материал зубчатой пары выбираем по
таблице 3.10.
Выберем для шестерни сталь 45 (σв = 900
Н/мм2;
σт = 440 Н/мм2 ;НВ = 230) и
для колеса сталь 45 (σв = 590
Н/мм2;
σт = 300 Н/мм2 ;НВ = 200)
4.3.2
Определение допускаемых контактных напряжений
[σ]к = 2,75 НВmin × Крк, Н/мм2
где
- коэффициент режима (4.15)
Принимаем Крк = 1
тогда
[σ]к 1= 2,75×230 = 632,5
(Н/мм2)
[σ]к 2= 2,75×200 = 550
(Н/мм2)
Для конических передач с прямыми и
непрямыми зубьями при
НВ1ср - НВ2ср = 20. . .50
рассчитывают по меньшему значению [σ]к из полученных для шестерни
[σ]к 1 и колеса
[σ]к 2, т.е. по
менее прочным зубьям.
Из условия [σ]к 1 = [σ]к 2= 550
Н/мм2
4.3.3
Определение допускаемых напряжений изгиба
[σ]F1 = KF1×[σ]F01; [σ]F2 = KF2×[σ]F02 (4.16)
где KF1, KF2 -
коэффициент долговечности для зубьев шестерни и колеса
Принимаем KF1 = KF2 = 1
[σ]F01, [σ]F02 -
допускаемое напряжение изгиба, соответствующее пределу и изгибной выносливости
[σ]F01=1,03× НВ1ср,
Н/мм2 (4.17)
[σ]F02=1,03× НВ2ср,
Н/мм2 (4.18)
отсюда
[σ]F01=1,03×230 = 236,9
(Н/мм2)
[σ]F02=1,03×200 = 206
(Н/мм2)
тогда
[σ]F1 = 1×236,9 =
236,9(Н/мм2)
[σ]F2 = 1×206 =
206(Н/мм2)
Расчет модуля зацепления для
конических зубчатых передач, с прямыми и непрямыми зубьями, выполняют по
меньшему значению [σ]F из
полученных для шестерни [σ]F1 и колеса [σ]F1, т.е. по
менее прочным зубьям.
4.3.4
Определение внешнего делительного диаметра колеса dе2
(4.19)
где КНβ -
коэффициент, учитывающий распределение нагрузки по ширине венца.
КНβ = 1
υн - коэффициент вида
конических колес
υн = 1
отсюда
Округляем до ближайшего нормального
линейного размера из таблицы 13.15. [21] по ГОСТ 6636-69
Тогда
4.3.5
Определяем углы делительных конусов шестерни δ1 и колеса δ2
δ2 = arctg u (4.20)
δ1= 900 - δ2 (4.21)
отсюда
δ2 = arctg4 =
75,96376 (0)
δ2 = 90 -
75,96376 = 14,03624 (0)
4.3.6 Определяем
внешнее конусное расстояние Re, мм
(4.22)
тогда
4.3.7
Определяем ширину зубчатого венца шестерни и колеса b
b = ΨR× Re, мм. (4.23)
где ΨR = 0,285 -
коэффициент ширины венца
тогда
b = 0,285 × 51,5388 =
14, 69 (мм.)
Полученное значение округляем до
целого числа по ряду Rа40 табл.13.15 [21]
Отсюда b = 15 мм
.3.8
Определяем внешний окружной модуль me
, мм (4.24)
Где кFβ -
коэффициент, учитывающий распределение нагрузки по ширине венца.
кFβ =1 - для
прямозубых конических колес
υF -
коэффициент вида конических колес
υF =0,85 - для
прямозубых конических колес
тогда
= 0,59 (мм)
Принимаем me= 1,5 мм
4.3.9
Определяем число зубьев колеса Z2 и Z1
(4.25)
(4.26)
отсюда
тогда
Из условия уменьшения шума и
отсутствия подрезания зубьев принимаем
, тогда
4.3.10
Определяем фактическое передаточное число uф и проверить его отклонение ∆u от заданного u
(4.27)
тогда
(4.28)
4.3.11
Определяем действительные углы делительных конусов шестерни δ1 и колеса δ2
δ2 = arctg uф (4.29)
δ1= 900 - δ2 (4.30)
отсюда
δ2 = arctg4 =
75,96376 (0)
δ2 = 90 -
75,96376 = 14,03624 (0)
.3.12 Для конических
передач с разностью средних твердостей шестерни и колеса НВ1ср - НВ2ср ≤
100 выбираем из таблицы 4.6. коэффициент смещения инструмента Xe1 отсюда Xe1= 0,45
Коэффициент смещения колеса Xe2 равен:
Xe2 = - Xe1 (4.31)
Xe2 = - 0,45
4.3.13
Определяем фактические внешние диаметры шестерни и колеса для прямозубой
передачи
Определяем делительные диаметры
de1 = me × Z1, мм (4.32)
de2 = me ×
Z2, мм (4.33)
отсюда= 1,5 ×
18 = 27 (мм)2 = 1,5 × 72 = 109
(мм)
Определяем диаметры вершин зубьев:
dаe1 = de1 + 2×(1
+ Xe1)×
me ×
cos δ1,
мм (4.34)аe2
= de2 + 2×(1
- Xe1)×
me ×
cos δ2, мм (4.35)
тогдааe1
= 27 + 2×(1
+ 0,45)×
1,5 ×
cos 14,03624 = 31,22 (мм)аe2
= 108 + 2×(1
- 0,45)×
1,5 ×
cos 75,96376 = 108,40 (мм)
Определяем диаметры впадин зубьев:
= de1 - 2×(1,2
- Xe1)×
me ×
cos δ1, мм (4.36)=
de2 - 2×(1,2
+ Xe1)×
me ×
cos δ2, мм (4.37)
отсюда=
27 - 2×(1,2
- 0,45)×
1,5 ×
cos 14,03624 = 24,82 (мм)=
108 - 2×(1,2
+ 0,45)×
1,5 ×
cos 75,96376 = 106,80 (мм)
4.3.14 Определяем средний делительный диаметр
шестерни d1 и колеса d2
d1 ≈ 0,857 de1, мм (4.38)≈
0,857 de2, мм (4.39)
тогда
d1 = 0,857×27 = 23,14
(мм)
d2 = 0,857×108 = 92,56
(мм)
Проверочный
расчет
4.3.15 Проверяем пригодность заготовок колес
Dзаг ≤ Dпред; Sзаг ≤
Sпред (4.40)
Диаметр
заготовки шестерни
Dзаг = dаe + 6 мм, мм (4.41)
Dзаг = 31,22 + 6 = 37,22 (мм)
Dпред = 125 мм (табл. 3.2. [21])
Толщину
диска или обода колеса принимают меньшей из двух:
заг
= 8 me, мм (4.42)
Сзаг
= 0,5b, мм (4.43)
Тогдазаг
= 8 × 1,5 = 12
(мм)
Сзаг
= 0,5× 15 = 7,5
(мм)
Sпред = 80 (табл. 3.2.
,22
< 125; 7,5 < 80, следовательно, условие выполняется
4.3.16 Проверяем контактные напряжения SH, H/мм2
(4.44)
Где
- окружная
сила в зацеплении, H. (4.45)
KHα = 1 - коэффициент,
учитывающий распределение нагрузки между зубьями прямозубых колес
KHυ - коэффициент динамической
нагрузки. Определяется по таблице 4.3. [21] в зависимости от окружной скорости
V = ω2×d2/(2×103), м/с и
степени точности передачи (табл.4.2. [21])
Степень
точности равна 9
тогда
KHυ = 1,05
Проверяем
условие:
σH = 509,26 H/мм2 <[σ]H = 550 H/мм2, т.е.
недогрузка передачи составляет 8%, а по условию недогрузка разрешается до 10%.
Следовательно, условие выполняется.
4.3.17 Проверяем напряжение изгиба зубьев шестерни σF1 и колеса σF2
(4.46)
(4.47)
Где
KFα = 1 -
коэффициент, учитывающий распределение нагрузки между зубьями прямозубых колес
KFυ - коэффициент динамической
нагрузки. Определяется аналогично KHυи YF2 -
коэффициенты формы зуба шестерни и колеса. Определяются по таблице 4.7. [21]
интерполированием в зависимости от эквивалентного числа зубьев шестерни Zυ1 и Zυ2
(4.48)
(4.49)
Тогда
Следовательно
YF1 = 3,46
Следовательно
YF2 = 3,63
Yβ = 1 - коэффициент,
учитывающий наклон зубаFυ = 1.14
Тогда
Сравниваем
условие
σF2 = 51.43 H/мм2 <[σ]F2 = 206 H/мм2
следовательно условие выполняется
Сравниваем
условие
σF1 = 49,02 H/мм2 <[σ]F1 = 236,9( H/мм2)
следовательно условие выполняется
Таблица
4.1 Параметры зубчатой конической передачи
|
Параметр
|
Значение
|
Параметр
|
Значение
|
|
Внешнее
конусное расстояние Re, мм
|
5,5388
|
Внешний
параметр окружности вершины: Шестерни dae1 Колеса dаe2
|
31,22 108,4
|
|
Внешний
окружной модуль Ме, мм
|
1,5
|
Внешний
диаметр окружности впадин: Шестерни dfe1 Колеса dfe2
|
24,82 106,8
|
|
Ширина
зубчатого венца b, мм
|
15
|
Средний
делительный диаметр: Шестерни d1 Колеса d2
|
23,14
92,56
|
|
Число
зубьев: Шестерни Z1 Колеса Z2
|
18
72
|
Внешний
делительный диаметр: Шестерни de1 Колеса dе2
|
27
108
|
|
Вид
зубьев
|
прямые
|
|
|
|
Угол
делительного конуса, 0 Шестерни δ1 Колеса δ2
|
14,03624
75,96376
|
|
|
4.4 Расчет валов на
кручение
Ведомый вал нагружен моментом Т2 = 11 H×м
Определим момент на ведущем валу Т1 из выражения
(4.50)
отсюда
(4.51)
Условие прочности при кручении имеет
следующий вид:
(4.52)
Где σк -
фактическое напряжение от действия крутящего момента, Н/мм2
Т - крутящий момент, Н*м
W - момент
сопротивления сечения вала работающего на кручение, мм3
[σк] - предел прочности на
кручение, Н/мм2
Определяем момент сопротивления
сечения вала W
W=0,2×d3, мм3 (4.53)
где d- диаметр вала
Подставим в выражение (4.53) в
(4.52)
(4.54)
Выразим из полученного условия
прочности диаметр вала
(4.55)
Пользуясь полученной формулой,
вычислим минимально возможный диаметр:
Принимаем диаметр вала равным 12 мм
Для ведомого вала
Принимаем диаметр вала равным 16 мм
Проверяем условие прочности
σК1 = 10,33 (Н/мм2) < [σ]К=16 Н/мм2
следовательно условие выполняется
σК2 = 13,43 (Н/мм2) < [σ]К=16 Н/мм2
следовательно условие выполняется
4.5 Расчет
шпонок на срез
Рассчитываем шпонку на ведущем валу
Рисунок 5.1. Призматическая шпонка
Размер b для вала диаметром d1=12
мм, составляет b1=5 мм (таблица К42 [21])
Найдем длину шпонки
Запишем уравнение прочности на срез
(4.56)
где Мкр- крутящий момент на валу, Н×м
d - диаметр
вала, мм
b - ширина
шпонки, мм
l - длина
шпонки, мм
[σ] - предел
прочности материала шпонки на срез, Н/мм2
Выразим из условия прочности длину
шпонки
(4.57)
тогда
Принимаем l1= 10 мм
Размер b для вала
диаметром d2= 16 мм
составляет, b2= 5мм
тогда
Принимаем l2= 10 мм
Проверим условия среза
σср1 = 5,95 Н/мм2 < [σ]=16 Н/мм2
следовательно, условие выполняется
σср2 = 13,75 Н/мм2 < [σ]=16 Н/мм2
следовательно, условие выполняется
4.6 Подбор
подшипников
.6.1
Предварительный выбор подшипников качения
В соответствии с таблицей 7.2. [21]
определяем тип, серию и схему установки подшипников.
Для быстроходного вала:
Тип: роликовый конический типа 7000
при n1< 1500 об/мин
Серия: легкая
Угол контакта α= 11…16˚ для
типа 7000
Схема установки: 4 (врастяжку)
Для тихоходного вала:
Тип: роликовый конический типа 7000
при n1< 1500 об/мин
Серия: легкая
Угол контакта α= 11…16˚ для
типа 7000
Схема установки: 3 (враспор)
Выбираем
из таблицы К27 … К30 [21] типоразмер подшипников по величине диаметра d
внутреннего кольца, равного диаметру второй d2 и четвертой d4 ступеней
вала под подшипники.= 16 мм
d4 = d2 = 16 мм
Выбираем
роликовый конический однорядный 7203 (ГОСТ 27365-87)
Основные
параметры:
d = 16 мм= 47 мм
Т
= 15,5 мм
b = 14 мм
с
= 12 мм= 1,5= 0,5
α(град) = 14˚
Сr = 19,1 кН
Соr = 13,3 кН
e = 0,36
Y1 = 1,67
YY = 0,92
.6.2 Произведем расчет подшипника на долговечность по
динамической грузоподъемности
(4.58)
где
RE - эквивалентная динамическая нагрузка, Н
m - показатель степени,
m = 3,33 для роликовых подшипников
a1 - коэффициент надежности
a1 = 1
a23 - коэффициент, учитывающий
влияние качества подшипника и качество его эксплуатации
a23 = 0,6 … 0,7,
Принимаю
a23 = 0,6
n - частота вращения внутреннего
кольца подшипника, об/мин
Определим
RE
RE
= V× Rr×Kб×КТ, Н
где
V=1 -
коэффициент вращенияr -радиальная нагрузка подшипника, Н
Kб - коэффициент безопасности
Kб = 1,1
КТ
= 1 - температурный коэффициент
отсюда=
3,57 , Н
Определим
долговечность
L10h = 19728,6 ч
> Lh = 10000 ч
следовательно, условие выполняется
5. Технико-экономические показатели
.1 Цена опрокидывателя
Таблица 5.1 - Смета на изготовление деталей
|
Детали
|
Количество
|
Операции
|
Разряд
рабочего
|
Норма
времени, мин.
|
Расценка,
руб
|
|
Балки
|
4
|
1)Нарезка
2)Сварка 3)Обработка краев 4)Сверление 4отв.d=30мм
4отв.d=40мм
|
2
3 2 4
|
30
25 15 25
|
42,50
55,00 30,20 30,00
|
|
Подъемные
каретки
|
2
|
1)Резание
2)Сварка 3)Шлифовка 4)Сверление 4отв.d=40мм
2отв.d=50мм
|
3
4 2 4
|
40
45 35 105
|
54,00
48,25 39,00 68,00
|
|
Стойки
|
2
|
1)Нарезка
2)Сварка 3)Шлифовка 4)Сверление 4отв d=34мм
12отв d=7мм 4отв d=15мм
|
3
3 2 3
|
120
140 65 55
|
450,00
505,30 340,12 364,00
|
|
Оси
|
4
|
1)Резание
2)Шлифовка 3)Обработка краев
|
3
2 3
|
25
20 20
|
70,50
64,00 56,00
|
|
Подхваты
|
4
|
1)Резание
2)Сварка 3)Обработка краев
|
3
4 2
|
23
25 20
|
75,23
65,45 56,00
|
Таблица 5.2- Покупные детали
|
Наименование
|
Количество
|
Стоимость,
руб.
|
Всего
|
|
Электромотор-редуктор
|
2
|
4500
|
9000
|
|
Шестерня
|
4
|
550
|
2200
|
|
Пульт
управления
|
1
|
1450
|
1450
|
|
Цепь
|
2
|
1300
|
2600
|
|
Подшипники
|
8
|
450
|
3600
|
|
Подшипники
|
4
|
650
|
2600
|
|
Болт
М8
|
18
|
7
|
126
|
|
Гайка
М8
|
4
|
5
|
20
|
|
ШайбаМ8
|
18
|
4
|
72
|
|
БолтМ16
|
4
|
8
|
32
|
|
ШайбаМ16
|
4
|
5
|
20
|
|
Болт
М36
|
4
|
11
|
44
|
|
Гайка
М36
|
4
|
10
|
40
|
|
ШайбаМ36
|
4
|
7
|
32
|
|
Всего
|
|
|
21836
|
Затраты на изготовление опрокидывателя составят:
2612 +21836=24448 руб.
Материалы для изготовления:
Металл (850)кг - 14500руб.
Краска- 750руб.
Заработная плата
На изготовление- 10500.
с учётом районного коэффициента (15%) -12075руб;
- с премией (50%) - 18112,5 руб;
с учётом налогов на фонд оплаты труда (39,5%) -
25266,9 руб.
Накладные расходы
Это затраты на содержание и амортизацию зданий,
сооружений, оборудования, а также расходы на охрану труда и технику
безопасности, командировочные расходы, заработную плату непроизводственного
персонала.
Считаем, что на предприятии, где изготовили опрокидыватель,
накладные расходы составляют 45%. Тогда в денежном выражении накладные расходы
составят 613293 руб.
Себестоимость опрокидывателя
(24448 + 14500+750+613293) = 692689 руб.
Цена опрокидывателя с учётом накоплений
* 30% = 900495 руб.
Цена опрокидывателя с учётом НДС
* 20% = 1080594 руб.
5.2 Прибыль от работы
станции технического обслуживания
Таблица 5.3- Закупаемое оборудование
|
Наименование
оборудования
|
Количество,
ед.
|
Сумма,
руб.
|
|
Предлагаемый
опрокидыватель
|
2
|
164974
|
|
Маслосборник
|
1
|
8500
|
|
Подставка
|
2
|
4900
|
|
Стойка
трансмиссионная
|
2
|
11800
|
|
Комплект
приборов для ТО свечей Э-203
|
1
|
5300
|
|
Домкрат
подкатной гидравлический
|
2
|
29100
|
|
Зарядное
устройство ЗУ-1М
|
1
|
5400
|
|
Установка
для заправки трансмиссионным маслом 37100
|
1
|
11200
|
|
Стенд
для регулировки “Развал схождение” СКО-1М
|
1
|
46500
|
|
Скручиватель
пружин
|
1
|
5400
|
|
Компрессор
|
1
|
25000
|
|
Компресометр
МТ-5
|
1
|
1200
|
|
Приспособление
для снятия и установки поршневых колец
|
1
|
900
|
|
Съемник
клапанов
|
1
|
1300
|
|
Динамометрический
ключ V440025
|
1
|
2300
|
|
Нутрометр
|
1
|
800
|
|
Набор
инструмента в кейсе S910
|
2
|
27800
|
|
Набор
съемников
|
1
|
6000
|
|
Тиски
слесарные
|
1
|
2000
|
|
Лебедка
ручная
|
1
|
2500
|
|
Итого
|
|
1362874
|
Стоимость оборудования - 1362874 руб.
Монтаж оборудования (15% от его стоимости) -
1454430 руб.
Стоимость оборудования с монтажом - 1417305 руб.
Строительство пункта технического обслуживания:
фундамент - 180000руб.
заливка полов -22110руб.
внутренняя отделка помещения - 41234руб.
прокладка электрической проводки - 15300руб.
Материалы для изготовления:
Метал: 800кг - 48000руб.
Кирпич огнеупорный: 3500шт. - 42000руб.
Итого капитальные вложения 1765949 руб.
Заработная плата
на монтаж оборудования и строительство
-258863руб;
с учётом районного коэффициента (15%) - 297692
руб.;
- с премией (50%) - 446538 руб.;
с учётом налогов на фонд оплаты труда (39,5%) -
622921 руб.
Накладные расходы
Это затраты на содержание и амортизацию зданий,
сооружений, оборудования, а также расходы на охрану труда и технику
безопасности, командировочные расходы, заработную плату непроизводственного
персонала.
Считаем, что на строительство СТО, накладные
расходы составляют 45%. Тогда в денежном выражении накладные расходы составят
163293 руб.
Себестоимость СТО
(1765949+622921+163293) = 2552163 руб.
Стоимость СТО с учётом накоплений
* 30% = 3317811 руб.
Цена СТО с учётом НДС
* 20% = 3981374 руб.
Экономическая эффективность характеризуется
сроком окупаемости Т, который рассчитывается по формуле:
Т = К / П
где, К - капитальные вложения, руб.;
П - прибыль, руб.
Прибыль:
П=N*Cср
N- количество
автомобилей в год
Сср- средняя стоимость услуг, руб.
П=680*730=856700 руб.
Срок окупаемости капиталовложений:
Т = 1765949 / 856700= 2,06 года
Таблица 5.4-Технико - экономические показатели
проекта
|
Показатели
|
Значение
|
|
1.
Годовая программа по обслуживанию автомобилей УАЗ, шт.
|
680
|
|
2.Капитальные
вложения, тыс.руб.
|
1765,949
|
|
3.
Накладные расходы тыс. руб.
|
163,293
|
|
4.
Прибыль от станции технического обслуживания, тыс. руб.
|
856,7
|
|
5.Цена
опрокидывателя, тыс. руб.
|
692,689
|
|
6.Срок
окупаемости станции технического обслуживания, лет.
|
2,06
|
6. Безопасность
жизнедеятельности
Основными причинами производственного
травматизма и профессиональных заболеваний является: недостаточный уровень
обучения и квалификации персонала, несоответствие технологических процессов
современным требованиям безопасности, недостаточное оснащение производств
системами очистки выбросов, устаревшее оборудование.
Большая роль в создании безопасных и здоровых
условий труда отводится государственной системе стандартизации. Одной из важных
целей стандартизации является обеспечение охраны труда рабочих и здоровья
населения. К основным задачам стандартизации относится установление системы
стандартов безопасности труда. Реализация положений о соблюдении требований
охраны труда при строительстве и запрещение ввода в эксплуатацию предприятий,
не отвечающих требованиям охраны труда, осуществляется согласно системе
нормативных документов - строительным нормам и правилам (СНиП).
В случае необходимости в дополнении к СНиПам
разрабатываются санитарные нормы (СН).
6.1 Требования безопасности
труда на станции технического обслуживания
Общие требования безопасности труда
.1 К выполнению обязанностей слесаря по ремонту
автомобилей, слесаря по ремонту двигателей, слесаря по топливной аппаратуре
допускаются лица, прошедшие медицинское освидетельствование и обученные
безопасным приёмам труда на рабочем месте.
.2 К управлению автомобилем при перегоне
допускаются лица не моложе 18 лет, имеющие удостоверение на право управления
транспортным средством данной категории, виданное автоинспекцией, и назначенные
приказом по подразделению.
.3 Рабочие не реже одного раза в три месяца
должны проходить повторный инструктаж (с 1 по 5 число следующего за кварталом
между по программе первичного инструктажа.
.4 Выполнение сварочных работ допускается только
после специального обучения, аттестации и получения соответствующего
удостоверения на право производства работ повышенной опасности.
.5 К управлению грузоподъёмной машиной с пола
допускаются лица, имеющие соответствующее удостоверение или обучение по сокращённой
программе и аттестованные на право управления грузоподъёмной машиной с пола и -
строповки, а также аттестованные на 1 группу допуска по электробезопасности.
Допуск к самостоятельной работе по управлению
грузоподъёмной машиной с пола и к подвешиванию грузов на её крюк должен
оформляться распоряжением по цеху (подразделению) после инструктажа.
.6 Повторный инструктаж рабочих, управляющих
грузоподъёмными машинами с пола, производится одновременно с инструктажем по
основной профессии.
Переаттестация на 1 группу допуска по
электробезопасности и на право управления грузоподъёмными машинами с пола с
подвешиванием грузов на крюк производится один раз в 12 месяцев.
.7 Агрегаты и узлы массой более 20 кг
допускается поднимать и перемещать только с помощью подъёмно-транспортных
механизмов.
.8 Лестницы, ведущие в осмотровые канавы, должны
иметь боковые поручня с обеих сторон.
.9 Слесари должны работать в спецодежде,
полученной в соответствии с нормами бесплатной выдачи спецодежды, спецобуви и
предохранительных приспособлений, с обязательным применением индивидуальных
средств защиты, указанных в технологической инструкции на выполняемую операцию.
.10 На территории автоцентра, станции
техобслуживания, в цехе необходимо быть внимательным к дорожным указателям и
сигналам, подаваемым водителями движущихся транспортных средств. В цехе
движение осуществлять только по предусмотренным для этих целей проходам.
.11 При несчастном случае на производстве
необходимо оказать пострадавшему первую помощь, известить администрацию (при
необходимости вызвать скорую помощь).
.12 В случае возникновения пожара сообщить в
пожарную часть, администрации и приступить к тушению огня первичными средствами
пожаротушения.
При этом необходимо знать, что:
.12.1 масло, бензин и другие легковоспламеняющиеся
жидкости нельзя тушить водой, а нужно применять пенный огнетушитель, асбестовое
полотно, песок;
.12.2 электропроводку и оборудование необходимо
сначала обесточить или тушить только с помощью углекислотного огнетушителя
асбестовым полотном.
.13 Запрещается:
.13.1 Курить в не отведённых для этих целей
местах.
.13.2 Держать на рабочих местах
легковоспламеняющиеся и горючие жидкости в количествах, превышающих сменную
потребность.
.13.3 Оставлять на хранение автомобили, поднятые
в верхнее положение на подъёмнике.
.13.5 Пользоваться оборудованием, станками,
работа на которых не поручена.
. Требования безопасности перед началом работ
.1 Получить сменное задание.
.2 Тщательно ознакомиться с технологической
инструкцией, подготовить рабочее место, необходимая инструмент, приспособления,
оснастку, индивидуальные средства защиты.
.3 Техническое обслуживание, ремонт автомобилей
выполнять на предназначенных для этих целей постах, оборудованных устройствами,
необходимыми для выполнения установленных работ, и также - подъёмно-транспортными
механизмами, приспособлениями, приборами.
. Требования безопасности при производстве работ
.1 Рабочее место содержать в надлежащем порядке,
укладывая запчасти, детали, инструмент в отведённые для них места.
.2 При постановке автомобиля на пост технического
обслуживания или ремонта необходимо вывешивать на рулевое колесо табличку:
"Двигатель не пускать - работают люди!".
.3 После установки автомобиля на пост
технического обслуживания кои ремонта автомобиль следует затормозить ручным
тормозом, включить низшую передачу, выключить зажигание, а под колёса подложить
упоры (башмаки) не менее двух.
.4 При работах, связанных с провёртыванием
коленчатого и карданного валов, необходимо проверить выключение зажигания,
поставить рычаг переключения передач в нейтральное положение, освободить рычаг
ручного тормоза. После выполнения необходимых работ затянуть ручной тормоз и
включить низшую передачу.
.5 При обслуживании автомобиля на подъёмнике
(гидравлическом, электромеханическом) на механизме или пульте управления
подъёмником должна быть вывешена табличка с надписью: "Не трогать -
работают люди".
.6 В рабочем (поднятом) положении плунжер
подъемника должен надёжно фиксироваться упоров (штангой), гарантирующем
невозможность самопроизвольного спуска поднятого груза.
.7 При выполнение работ, связанных с
вывешиванием какой-либо части автомобиля с помощью домкрата или ручного
подъёмника, автомобиль в приподнятом положении необходимо фиксировать
специальными подставками-козелками.
.8 При сборке (разборке) автомобиля транспортировать
двигатель, коробку передач, задний мост и т.п. следует, при помощи
подъёмно-транспортных средств, оборудованных приспособлениями (захватами),
гарантирующими безопасность работы.
.9 Тележки для транспортировки двигателей,
коробок передач, задних мостов, кузовов должны иметь упоры, стойки,
предотвращающие самопроизвольное смещение, падение перевозимого груза.
.10 Перед перемещением поднятого груза
необходимо предупредить рядом работающих об опасности; груз перемещать плавно,
без резких толчков.
.11 Двигатель, коробку передач, задний мост и
т.п. устанавливать для хранения на специально предусмотренные подставки,
обеспечивающие устойчивое их положение.
.12 Стенды для монтажно-демонтажных работ при
ремонте агрегатов и узлов должны соответствовать своему назначению и быть
безопасными в работе. Устройства для закрепления агрегатов и узлов должны
исключать возможность смешений или падения последних.
.13 Установку и снятие аккумуляторных батарей
производить с помощью специальных захватов перед установкой (снятием)
аккумуляторной батареи необходимо плотно завернуть пробки.
При попадании электролита на открытые части тела
необходимо немедленно нейтрализовать кислоту 5% раствором соды и промыть его
место обильной струёй воды; при попадании в глаза - промыть обильной струёй
воды и немедленно обратиться в медсанчасть.
Электролит, пролитый на пол, присыпать опилками,
собрать их, затем это место смочить нейтрализующим содовым раствором и
протереть насухо.
При переноске вручную аккумуляторных батарей
необходимо использовать приспособления (захваты, носилки) и соблюдать меры
предосторожности во избежание обливания электролитом.
.14 Во избежание взрыва категорически
запрещается пробовать аккумуляторную батарею на "искру"!
.15 При работе с панелью приборов особое внимание
обращать на предотвращение, ранения, рук об остриё кромки, заусенцы, имеющиеся
на её внутренней части.
.16 При заливке антифриза помнить:
"Тосол" ядовит! Запрещается переливать указанную жидкость путём
всасывания её ртом через шланг.
.17 При отсутствии осмотровых канав, подъёмников
для работы под автомобилем необходимо использовать лежаки или решетчатые
тележки, снабжение подголовниками.
.18 При работе под автомобилем для защиты глаз
обязательно применение очков (экрана).
.19 При работе любым инструментом ударного
действия необходимо защищать глаза очками (экраном).
.20 При работе на заточных станках запрещается
сдвигать в сторону защитный экран! Необходимо проверить положение и надёжность
крепления подручника, а также - зазор между абразивным кругом и подручником,
который должен быть на более 3 мм.
.21 При работе ручным инструментом необходимо
следить, чтобы он удовлетворяв следующим требованиям:
.21.1 Слесарные молотки должны иметь ровную,
слегка выпуклую поверхность бойка, надежно насажены на ручку и закреплены
мягкими стальными заёршенными клиньями.
.21.2 Все инструменты, имеющие заострённые концы
для рукояток (напильники, ножовки, шаберы и пр.), должны быть насажены на
деревянные ручки с бандажными кольцами.
.21.3 Зубила, крейцмейсели, просечки и др. не
должны иметь косых и сбитых головок, трещин и заусенцев; их боковые грани не
должны иметь острых кромок.
.21.4 Гаечные ключи должны соответствовать
размерам гаек и головок болтов и не иметь трещин и забоин. Запрещается
применение прокладки между зевом ключа и гранями гаек, а также наращивать их
трубами или рычагами, если это не предусмотрено конструкцией ключа.
.21.5 При работе с тисками необходимо надёжно
зажимать обрабатываемую деталь в губках. При этом следить, чтобы рукояткой
рычага не повредило ногу или не защемило руку между головками рычага и винта.
.22 При работе электро/пневмоинструментом
необходимо выполнять следующие условия:
.22.1 К работе с механизированным инструментом
допускаются лица не моложе 18 лет, обученные по специальной программе и аттестованные
на право выполнения работ повышенной опасности, а при работе с
электроинструментом, дополнительно, - после присвоения
группы допуска по электробезопасности.
Переаттестация - один раз в 12 месяцев.
.22.2 Бережно обращаться с электро/пневмоинстументом
не бросать и не допускать его падений, не оставлять без присмотра под
напряжением (давлением).
.22.3 Обеспечивать прокладку воздушных шлангов,
электро-кабелей без переломов, без пересечения с тросами, а также -
ацетиленовыми и кислородными шлангами. Запрещается прокладка воздушных шлангов
в местах движения транспорта и людей.
.22.4 При переноске электро/пневмоинструмента
необходимо держать его за рукоятку корпуса, а воздушный шланг, электрокабель
свёрнутыми в кольцо.
.22.5 Подключение электроинструмента к сети
питания производить только штепсельным соединением (вилка-розетка). Под
штепсельной розеткой должно быть указано подведённое напряжение.
Напряжение электроинструмента должно бить:
не выше 220 вольт в помещениях без повышенной
опасности;
не выше 36 вольт в помещениях с повышенной
опасностью.
При невозможности обеспечить работу
электроинструмента на напряжение 36 вольт допускается применение
электроинструмента напряжением до 220 вольт с двойкой изоляцией при наличии
защитного отключения или надёжного заземления электроинструмента с обязательным
использованием защитных средств: диэлектрических перчаток, галош, ковриков.
.23 Для питания ручных светильников в осмотровых
канавах применять напряжение не выше 12 вольт.
.24 Электро/пневмоинструмент необходимо
отключать от сети:
при прекращении подачи электротока (воздуха),
во время перерыва в работе,
при снятии и установке сменного инструмента.
.25 Очистку обрабатываемой поверхности
производить с помощью технологических салфеток щёток-смёток.
.26 Необходимо соблюдать на работе правила
личной гигиены: не мыть руки в масле, керосине, эмульсии и не вытирать их
ветошью, загрязнённой металлической стружкой.
.27 Запрещается:
.27.1 Выполнять какие-либо работы на автомобиле,
вывешенном только на подъёмном механизме.
.27.2 Подкладывать под вывешенный автомобиль
вместо козелков диски колёс, кирпичи и прочие случайные предметы.
.27.3 Снимать, устанавливать и транспортировать
кузова, агрегаты, узлы при зачаливании их тросом и канатом без специальных
захватов.
.27.4 Проводить техническое обслуживание и
ремонт автомобиля при работающем двигателе за исключением регулировка системы
питания, электрооборудования и опробования тормозов.
.27.5 Загромождать проходы, проезды к пожарному
инвентарю и извещателям электрической полярной сигнализации.
.27.6 Устанавливать на территории участка
автомобили в количестве, превышающем норму, а также - нарушать способ их
расстановки.
.27.7 Использовать сжатый воздух для очистки
оборудования, спецодежды.
.27.8 Хранить совместно аккумуляторы и бензобаки.
.28 При эксплуатации ручного механизированного
инструмента запрещается:
.28.1 работать неисправным механизированным
инструментом;
.28.2 использовать неисправный сменный
инструмент;
.28.3 производить ремонт механизированного
инструмента;
.28.4 переходить с одного участка работы на
другой с включенным механизированным инструментом;
.28.5 останавливать вращение шпинделя (после
выключения из сети) путём прижатия сменного инструмента к какому-либо предмету;
.28.6 обрабатывать детали на весу.
.29 При эксплуатации шлифмашинок запрещается:
.29.1 снимать защитный кожух при выполнении
операции;
.29.2 крепить абразивный круг без картонных
прокладок;
.29.3 использовать абразивные круги, не
соответствующие технической характеристике шлифмашинки и технологии ремонта
кузовов;
.29.4 использовать неиспытанные и имеющие
трещины, выбоины круги
.29.5 затачивать и праветь на их кругах
инструмент: сверла, зубила и пр.
6.2 Техника
безопасности при работе с опрокидывателем
К обслуживанию опрокидывателя допускаются лица не
моложе 18 лет, ознакомленные с устройством опрокидывателя и прошедшие
специальный инструктаж по безопасным методам работы на них.
. При работе на опрокидывателе запрещается:
.1 поднимать автомобиль, масса которого
превышает грузоподъёмность подъёмника;
.2 включать опрокидыватель при наличии людей на
опрокидывателе (или в автомобиле, установленной на опрокидывателе) или под ним;
.3 эксплуатировать опрокидыватель при
неисправных концевых выключателях, а также при опоре каретки на стальную
страхующую гайку;
.4 устанавливать автомобиль на кронштейны с
незакреплёнными опорными подхватами;
.5 поднимать автомобиль с работающим двигателем.
Перед установкой автомобиля на опрокидыватель:
.1 проверить срабатывание конечных выключателей,
установленных на стойках.
. Перед подъёмом автомобиля произвести
правильную установку его на платформу опрокидывателя:
. После установки подхватов на опрокидывателе
осуществить подъём автомобиля на высоту100-I50
мм. проверить автомобиль на устойчивость и после этого опустить на пол с целью
переустановки подхватов или продолжить подъём на необходимую высоту.
. При установке автомобиля на опрокидыватель
следует, во избежание самопроизвольного перемещения, устанавливать упоры
(башмаки) под задние колёса с обеих сторон колеса автомобиля.
. При вывешивании передней оси автомобиля на
четырёхстоечном опрокидывателе необходимо применять две подставки, а при
вывешивании задней оси - четыре подставки, установленные так, чтобы не было
перекоса машины.
. Во время обслуживания автомобиля на опрокидывателе
операции по спуску-подъёму осуществлять одним и тем же работником.
.3 Охрана окружающей
среды
Токсичность отработавших газов; испарение
топлив, масел и кислот; насыщение продуктами износа шин, асбестовых и
металлических материалов окружающей среды; загрязнение воды и грунта при ТО;
потребление кислорода - все это составляющие части вредного влияния
технологических процессов на автотранспортном предприятии. Снижение токсичности
отработавших газов реализуется путем совершенствования рабочего процесса двигателей;
использования нейтрализаторов; использования двигателей, работающих на
альтернативных топливах; поддержания рациональных режимов работы двигателей. На
станции автомобили с бензиновыми двигателями проверяют на фактическое
содержание окиси углерода и углеводородов в отработавших газах. При этом
используются газоанализаторы, принцип действия которых основан на поглощении
различными газовыми компонентами инфракрасных лучей с определенной длиной
волны: ГАИ-2, Инфралит.
Основным мероприятием по охране атмосферы от
загрязнения является установка в цехах газопылеуловителей в местах наибольшего
скопления газов и пыли согласно технологического процесса. Чтобы не допустить
попадания нефтепродуктов со сточными водами в естественные водоемы, пункт мойки
подключен к городской системе водоснабжения и канализации, но прежде, чем
поступить в канализацию вода проходит очистку в водоочистной установке типа
«Кристалл».
Также к мероприятиям по защите окружающей среды
относятся: недопущение к эксплуатации техники имеющей подтекание
горючесмазочных материалов и антифриза, недопущение разлива масел, антифриза в
производственных помещениях и на территории открытой стоянки; обеспечение сбора
использованной промасленной ветоши, отработанных масел и их сдачи.
Заключение
Дипломный проект на тему «Станция технического
обслуживания автомобилей марки УАЗ в п.РТС г.Тюмени» в достаточном объеме
отвечает на поставленные задачи, а именно рассмотрен раздел по описанию работы
станции технического обслуживания, цикличность работы, необходимое
оборудование, штат сотрудников.
Так же рассмотрены архитектурно-строительные
решения по зданию станции технического обслуживания, необходимые виды
строительных материалов, объемно-планировочные решения.
Проведен анализ различных автомобильных опрокидывателей
с выявлением недостатков у каждого. Разработан опрокидыватель в данном случае
для автомобилей марки УАЗ и проведены основные расчеты по подбору и
изготовлению составляющих для опрокидывателя.
Рассмотрены технико-экономические показатели
проекта с определением цены на изготовление опрокидывателя марки СВ-2,0,
подсчет годовой прибыли от работы станции технического обслуживания,
себестоимости станции технического обслуживания и срок её окупаемости.
Рассмотрен раздел «Безопасность
жизнедеятельности» где описаны; требования безопасности труда на станции
технического обслуживания; техника безопасности при работе с опрокидывателем;
охрана окружающей среды.
Литература
1.
Напольский Г.М. Технологическое проектирование автотранспортных предприятий и
станций технического обслуживания. - М: Транспорт, 1985 231 с.
2.
астовцев Г.Ф. Автотехобслуживание. -М.: Машиностроение. 1985.- 256 с.
3.
Будасов Б.В., Калинский В.П. Строительное черчение. - М: Стройиздат, 1990.-464
с.
4.
Техническая эксплуатация автомобилей/ Под ред. Е.С.Кузнецова. -М.: Транспорт,
1991.- 413 с.
.
Техническая эксплуатация автомобилей/ Под ред. Г.В.Крамаренко. -М.: Транспорт,
1983.-488 с.
.
Планида В.Е., Окинько В.А., Бычков В.П. Технологическое проектирование
автотранспортных предприятий и станций технического обслуживания. -Воронеж:
Изд-во ВГУ, 1989. -296 с.
7.
Краткий справочник конструктора нестандартного оборудования. В 2-х томах. Т.1,/
В.И.Бакуменко, В.А.Бондаренко, С.Н.Косоруков и др.; под общ. ред. В.И.
Бакуменко. -М.: Машиностроение, 1997 .544.. с. ил.
8.
Краткий справочник конструктора нестандартного оборудования. В 2-х томах. Т.2/
В.И.Бакуменко, В.А.Бондаренко, С.Н.Косоруков и др.; под общ. ред. В.И.
Бакуменко. -М.: Машиностроение, 1997 .526.. с. ил.
9.
Автомобильный справочник. Перевод с английского первое русское издание -М.:
Издательство «За рулем», 1999, - 896 с.
10.Справочник
инженера экономиста автомобильного транспорта/ Под ред. С.П. Голованенко. -К.:
Тэхника, 1991.- 351 с.
.
П.Афанасьев Л.Л., Маслов А.А., Каляснинский Б.С. Гаражи и станции технического
обслуживания автомобилей. (Альбом чертежей). - М.: Транспорт, 1980.- 216 с,
12.
Кузнецов Ю.М. Охрана труда на автотранспортных предприятиях. -М: Транспорт,
1990.-288 с.
.
Роговцев В.Л. Устройство и эксплуатация автотранспортных средств. -М.:
Транспорт, 1991.-432 с.
.
Салов А.И., Бернович Я.М. Охрана труда на автомобильном транспорте. - М.:
Транспорт, 1985.-210 с.
15.
Фастовцев Г.Ф. Современный автосервис. - М.: Знание, 1980.- 64 с.
16.
Строительные нормы и правила. Нормы проектирования. Предприятие по обслуживанию
автомобилей. СН и П П-93-74, 1972.- 18 с.
.
Положение о техническом обслуживании и ремонте грузовых автомобилей,
принадлежащих гражданам. - М.: НАМИ, 1987.- 58 с.
.
Шештокас П.В. Гаражи и стоянки. -М.: Стройиздат, 1984.- 215 с.
.
Каталог ГАРО. Машинопись. г.Тюмень, 25 с.
.
СниП 2.0313-88, 1989.- 30 с.
.
Шейнблит А.Е. Курсовое проектирование деталей машин.- Калининград: ОАО «
Янтарный сказ», 2008.- 454 с.