Проектировка сети районного суда
1. Краткое описание проектируемой сети,
постановка задачи
Главной задачей данной курсовой работы является
проектировка сети районного суда. Суд представляет собой отдельное трех этажное
здание, площадь каждого этажа у которого около 200 квадратных метров. В суде
работает 18 судей, председатель суда и его заместитель. Так же в этом здание
размещается канцелярия, бухгалтерия и сектор информатизации. Помимо этого
известно, что на двух судей - один помощник и один специалист.
В здание суда решено было провести компьютерную
сеть с топологией «звезда». Сеть будет включать в себя 46 компьютеров (один из
которых будет являться сервером) и коммутатор на 48 портов.
2. Введение
локальная вычислительная
сеть сервер компьютер
Компьютерная сеть - представляет собой систему
распределенной обработки информации, состоящую как минимум из двух компьютеров,
взаимодействующих между собой с помощью специальных средств связи. Или другими
словами сеть представляет собой совокупность соединенных друг с другом ПК и
других вычислительных устройств, таких как принтеры, факсимильные аппараты и
модемы. Сеть дает возможность отдельным сотрудникам организации
взаимодействовать друг с другом и обращаться к совместно используемым ресурсам;
позволяет им получать доступ к данным, хранящимся на персональных компьютерах в
удаленных офисах, и устанавливать связь с поставщиками.
Локальные сети (LAN)
представляющие собой самую элементарную форму сетей, соединяют вместе группу ПК
или связывают их с более мощным компьютером, выполняющим роль сетевого сервера.
Все ПК в локальной сети могут использовать специализированные приложения,
хранящиеся на сетевом сервере, и работать с общими устройствами: принтерами,
факсами и другой периферией. Каждый ПК в локальной сети называется рабочей
станцией или сетевым узлом.
Локальные сети позволяют отдельным пользователям
легко и быстро взаимодействовать друг с другом. Вот лишь некоторые задачи,
которые позволяет выполнять локальные сети:
) совместная работа с документами;
) упрощение документооборота: вы
получаете возможность просматривать, корректировать и комментировать документы
не покидая своего рабочего места, не организовывая собраний и совещаний,
отнимающих много времени;
) сохранение и архивирование своей работы
на сервере, чтобы не использовать ценное пространство на жестком диске ПК;
) простой доступ к приложениям на
сервере;
) облегчение совместного использования в
организациях дорогостоящих ресурсов, таких как принтеры, накопители CD-ROM,
жесткие диски и приложения (например, текстовые процессоры или программное
обеспечение баз данных).
3. Топология типа «Звезда»
Звезда - это наиболее распространенная в России
и Европе топология. Звезда имеет центральный блок - концентратор (hub) или
коммутатор (switch). Концепция топологии сети в виде звезды пришла из области
больших ЭВМ, в которой головная машина получает и обрабатывает все данные с
периферийных устройств как активный узел обработки данных. Этот принцип
применяется в системах передачи данных, например, в электронной почте сети
RelCom. Вся информация между двумя периферийными рабочими местами проходит
через центральный узел вычислительной сети.
Рисунок 1 - Структура топологии ЛВС
в виде «звезды»
Пропускная способность сети
определяется вычислительной мощностью узла и гарантируется для каждой рабочей
станции. Кабельное соединение довольно простое, так как каждая рабочая станция
связана с узлом. Затраты на прокладку кабелей высокие, особенно когда
центральный узел географически расположен не в центре топологии.
При расширении вычислительных сетей
не могут быть использованы ранее выполненные кабельные связи: к новому рабочему
месту необходимо прокладывать отдельный кабель из центра сети.
Топология в виде звезды является
наиболее быстродействующей из всех топологий вычислительных сетей, поскольку
передача данных между рабочими станциями проходит через центральный узел (при
его хорошей производительности) по отдельным линиям, используемым только этими
рабочими станциями. Частота запросов передачи информации от одной станции к
другой невысокая по сравнению с достигаемой в других топологиях.
Центральный узел управления - сервер
реализует оптимальный механизм защиты против несанкционированного доступа к
информации. Вся вычислительная сеть может управляться из ее центра. Но есть и
недостаток: если центральный компонент выйдет из строя - остановится вся сеть.
А если выйдет из строя только один компьютер (или кабель, соединяющий его с
концентратором (коммутатором)), то лишь этот компьютер не сможет передавать или
принимать данные по сети. На остальные компьютеры по сети этот сбой не
повлияет.
4. Описание помещения и
характеристика предприятия
В нашем распоряжение отдельное трех
этажное здание районного суда, при этом площадь каждого этажа составляет 200
м.2 . Рассмотрим каждый этаж поподробнее.
.1 Описание помещения
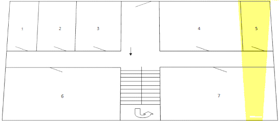
.1.1 Первый этаж
На первом этаже расположен главный
вход, лестница на второй этаж, коридор и 7 помещений: 2 туалета, бухгалтерия,
канцелярия, столовая, кабинет специалистов и кабинет помощников судей.
Рисунок 2 - первый этаж
В 1 и 5 помещениях находятся
туалетные комнаты. Во втором помещение располагается бухгалтерия, в третьем -
канцелярия, в четвертом - кабинет помощников судей, в шестом - столовая, в
седьмом - кабинет специалистов.
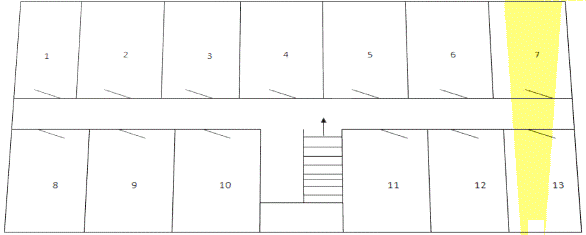
.1.2 Второй этаж
На втором этаже расположен коридор,
лестничный пролет и 11 помещений: туалет, зал судебного заседания, кабинет
председателя суда, кабинет заместителя председателя суда, сектор
информатизации, и 6 кабинетов судей.
Рисунок 3 - второй этаж
В первом помещении находится
туалетная комната. Во втором, третьем, пятом, шестом, седьмом и одиннадцатом
помещении располагаются кабинеты судей. В четвертом - сектор информатизации. В
восьмом - зал судебного заседания. В девятом - кабинет председателя суда. В
десятом - кабинет заместителя председателя суда.
.1.3 Третий этаж
На третьем этаже расположен коридор,
лестничный пролет, туалет и 12 кабинетов судей.
Рисунок 4 - третий этаж
.2 Характеристика предприятия
Видом деятельности данного предприятия является
отправление правосудия. В суде работают 18 судей, председатель суда,
заместитель председателя суда, системный администратор, программист, 9
специалистов, 9 помощников судей, 3 работника канцелярии и 3 работника
бухгалтерии.
Обязанности:
· Судья - рассматривает дела и выносит судебное
решение.
· Председатель и заместитель -
организационная деятельность, рассматривание дел и вынесение судебного решения.
· Помощник судьи - помогает судье в
подготовке судебных решений.
· Специалист - подбор законодательств
и судебной практики.
· Работники канцелярии - регистрация
входящих и исходящих дел, жалоб, заявлений.
· Сектор информатизации: Системный
администратор - следит за работой ЛВС, работой сервера, коммутатора.
Программист - помогает системному администратору, устраняет ошибки в работе
компьютеров и в работе сети.
· Работники бухгалтерии: Главный
бухгалтер - ведет всю бухгалтерскую деятельность суда. Расчетчик - насчитывает
заработную плату и другие затраты. Кассир - выдает заработную плату,
командировочные и другие выплаты.
5. План помещения и его характеристика
.1 Первый этаж
На первом этаже здания находятся 24 сотрудника,
и для каждого сотрудника выделяется личный персональный компьютер (синий
квадрат на плане).
Рисунок 5 - план первого этажа
Рассмотрим кабинеты сотрудников:
Бухгалтерия: Общая площадь помещения 12 м2, для
каждого сотрудника бухгалтерии выделено рабочее место приблизительно по 3,5 м2
. В помещение установлены 3 персональных компьютера (рис. 5).
Канцелярия: Общая площадь помещения 14 м2, для
каждого сотрудника канцелярии выделено рабочее место приблизительно по 3,5 м2 .
В помещение установлены 3 персональных компьютера (рис. 5).
Кабинет помощников: Помощники, как и полагается,
располагаются в отдельном кабинете. Общая площадь помещения составляет 26 м2,
для каждого помощника выделено рабочее место приблизительно по 2,5 м2 . В
помещение установлены 9 персональных компьютера (рис. 5).
Кабинет специалистов: Специалисты, как и
полагается, располагаются в отдельном кабинете. Общая площадь помещения
составляет 34 м2, для каждого специалиста выделено рабочее место приблизительно
по 3 м2 . В помещение установлены 9 персональных компьютера (рис. 5).
.2 Второй этаж
На втором этаже здания находятся 10 сотрудников,
и для каждого сотрудника выделяется личный персональный компьютер (синий
квадрат на плане этажа). Красным квадратом выделен сервер сети, а зеленым -
расположение коммутатора.
Рисунок 6 - план второго этажа
Рассмотрим кабинеты сотрудников:
Центр информатизации: Общая площадь помещения
составляет 12 м2. В данном помещении работают 2 человека, на каждого из которых
выделено по 3,5 м2. В кабинете установлен один персональный компьютер и сервер
(рис.6).
Кабинет председателя суда: Общая площадь данного
помещения составляет 12 м2. В кабинете установлен один персональный компьютер
(рис. 6).
Кабинет заместителя: Общая площадь помещения
составляет 12 м2. В кабинете установлен один персональный компьютер (рис. 6).
Кабинеты судей: На этаже расположено 6 кабинетов
судей, площадь пяти из них составляет 12 м2, а оставшегося 10 м2. В каждом
кабинете расположено по одному персональному компьютеру (рис. 6).
.3 Третий этаж
На третьем этаже здания находятся 12 кабинетов
судей, два из которых имеют площадь по 10 м2, а остальные по 12 м2. Для каждого
судьи выделяется личный персональный компьютер (синий квадрат на плане).

6. Расчет необходимого оборудования
Количество необходимого сетевого оборудования
представлено в таблице 1.
Таблица 1
|
№
|
Товар
|
Ед.
|
Кол-во
|
|
1
|
Коммутатор
D-Link Smart Switch, DES-1250G, 48-port.
|
шт.
|
1
|
|
2
|
Коннектор
RJ-45
|
шт.
|
44
|
|
3
|
СКС
“Exalan +” Кабель
UTP, 4 пары,
кат. 5е, PVC, 305 м.
|
м.
|
687
|
|
4
|
Розетка
внешняя 1xRJ45 UTP, кат. 5е
|
шт.
|
44
|
|
5
|
Патч-корд
UTP, кат. 5е,
3м.
|
шт.
|
46
|
|
6
|
Монтажный
короб
|
м.
|
145
|
Рассмотрим расположение сетевого оборудования на
первом этаже
Рисунок 8 - организация сети первого этажа
Для организации сети первого этажа потребуется
380 м. кабеля, 24 розетки RJ45,
24 патч-корда, 55 м. монтажного короба и 24 сетевых карт на каждый компьютер
соответственно.
На плане первого этажа (рис. 8), красной линией
показана прокладка кабеля. Кабель прячется в монтажный короб. Учитывая, что в
здании предполагаются навесные потолки, то проблемы с прокладкой кабеля в коридорах
отпадает. Сетевые платы компьютеров соединяются с кабелем при помощи
патч-кордов. На плане так же отмечен желтым цветом монтажный короб, ведущий всю
сеть первого этажа на второй, к коммутатору.
Рассмотрим расположение сетевого оборудования на
втором этаже
Рисунок 9 - организация сети второго этажа
Для организации сети второго этажа потребуется
96 м. кабеля, 8 розеток RJ45,
10 патч-кордов, 33,5 м. монтажного короба, 10 сетевых карт на каждый компьютер
соответственно и коммутатор на 48 портов.
С целью экономии, было принято решение
установить коммутатор, к которому будут подключены все компьютеры сети.
Коммутатор DES-1250G представляет собой экономически эффективное решение для
малого и среднего бизнеса и обеспечивает простоту настройки производительности
и безопасности сети. Этот коммутатор имеет 48 портов Ethernet 10/100BASE-TX и 2
комбинированных порта 1000BASE-T/SFP для гибких подключений Gigabit Ethernet.
Он поддерживает функции, важные для интенсивно использующих полосу пропускания
приложений, что позволяет реализовать качество сервиса QoS (Quality of Service)
и безопасность сети не требует настройки сложных функций сетевого управления,
обычно предоставляемые в других управляемых коммутаторах.
Рисунок 10 - коммутатор DES-1250G
На плане второго этажа (рис. 9), красной линией
показана прокладка кабеля. Кабель прячется в монтажный короб. Сетевые платы
компьютеров соединяются с кабелем при помощи патч-кордов. На плане так же
отмечен желтым цветом монтажный короб, ведущий сеть из первого этажа и третьего
на второй, к коммутатору.
Рассмотрим расположение сетевого оборудования на
втором этаже
Рисунок 11 - организация сети третьего этажа
Для организации сети третьего этажа потребуется
211 м. кабеля, 12 розеток RJ45,
12 патч-кордов, 56,5 м. монтажного короба и 12 сетевых карт на каждый компьютер
соответственно.
На плане третьего этажа (рис. 11), красной
линией показана прокладка кабеля. Кабель прячется в монтажный короб. Сетевые
платы компьютеров соединяются с кабелем при помощи патч-кордов. На плане так же
отмечен желтым цветом монтажный короб, ведущий всю сеть третьего этажа на
второй, к коммутатору.
7. Выбор компьютеров и сервера
Выбор компьютеров для сотрудников предприятия
был сделан исходя из характера выполняемой работы. Так как большинство
сотрудников не нуждаются в высокой производительности персонального компьютера
и их работа состоит в основном только с текстовым редактором и справочными
системами, то были предложены следующие конфигурации персональных компьютеров:
Таблица 2
|
Наименование
компонентов
|
|
Комплектация
системного блока:
|
|
INWIN PowerMan 350W PFC, Low
noise, P4 ATX
|
|
LGA775 Epox
EP-5PL945-J/3,i945PL,DDR2,PCI-E,IDE,SATA2,SOUND,GLAN,ATX
|
|
Дисковод
FDD
3.5`` Samsung
|
|
DVD+-RW Samsung SH-S182D
|
|
HDD 80.0Gb SATA2 Samsung HD080HJ
7200rpm 8Mb 9ms NCQ
|
|
CPU Intel Celeron 331 (2667 MHz) 256
KB 533MHz LGA775 OEM EM64T
|
|
DDR2 512MB 667MHz PC5300 PQI
|
|
PCI-E 128MB, Palit ATI Radeon X550
128bit DDR DVI TV-out
|
|
D-Link DGE - 530T PCI 10/100/1000
Mbps
|
|
Монитор:
|
|
17`` ViewSonic VA 703-M LCD 8ms,
speakers
|
|
Дополнительная
атрибутика:
|
|
Источник
бесперебойного питания IPPON Back
Power
Pro 500
|
|
Клавиатура
Mitsumi
PS/2
|
|
Манипулятор
«Мышь»
Logitech Optical Mouse PS/2-USB
|
|
Коврик
антистатический Verbatim
Необходимо так же выбрать конфигурации сервера и
персонального компьютера программиста.
Программист нуждается в более сильной рабочей
системе, так как эго задачи наиболее сложные и обширные и поэтому требуется
большая производительность от персонального компьютера.
На основе вышесказанного для программиста
подобраны следующие конфигурации персонального компьютера:
Таблица 3
|
Наименование
компонентов
|
|
Комплектация
системного блока:
|
|
Asus TA 652 350W ATX
|
|
LGA775 Asus
P58,iP965,DDR2,PCI-E,IDE,SATA2,SOUND,GLAN,ATX
|
|
Дисковод
FDD
3.5`` Samsung
|
|
DVD+-RW Samsung SH-S182D
|
|
HDD 250Gb SATA2 Samsung HDSP2504C
7200rpm 8Mb 9ms NCQ
|
|
CPU Intel Core 2 Duo E6400 2,13MHz
, LGA775, 2Mb
|
|
DDR2 512MB 667MHz PC5300 PQI (3 штуки)
|
|
PCI-E 256MB, Nvidia GeForce 7600GT
128bit DVI TV-out
|
|
D-Link DGE - 530T PCI 10/100/1000
Mbps
|
|
Монитор:
|
|
17`` ViewSonic VA 703-M LCD 8ms,
speakers
|
|
Дополнительная
атрибутика:
|
|
Источник
бесперебойного питания IPPON Back
Power
Pro 500
|
|
Клавиатура
Mitsumi
PS/2
|
|
Манипулятор
«Мышь»
Logitech Optical Mouse PS/2-USB
|
|
Коврик
антистатический Verbatim
|
Наиболее важным компьютером в сети является
сервер (рис. 12).
Рисунок 12 - сервер (корпус)
Исходя из того, что на сервере хранится большое
количество информации, и он управляет работой всей сети, были выбраны следующие
конфигурации:
Таблица 4
|
Наименование
компонентов
|
|
Комплектация
системного блока:
|
|
Case Supermicro SC745TQ/800
Tower/4U Rackmount Chassis,8x3.5SAS+3x5Bays,800W
|
|
Xeon 5355 2.66/8M 1333MHz bus 4 ядра
|
|
Дисковод
FDD
3.5`` Samsung
|
|
DVD+-RW Samsung SH-S182D
|
|
MB Supermicro
X7DVL-E,E5000V,FBDDR,1x8X,1x4X,2x64bit,2x32bit PCI,SVGA,2xGigaLAN,IPMI2,6xSATA
R0,1,5,10
|
|
1Gb 667MHz DDR2 ECC Fully Buffered
CL5 DIMM (4 штуки)
|
|
HDD SAS 147GB 15000RPM
SAS-D/:MAX3147RC FUJITSU (4 штуки)
|
|
LSI MegaRAID SAS8408E, 8-port,
256MB DDR, PCIe 4x
|
|
D-Link DGE-550T (PCI 64bit/66MHz,
10/100/1000Mbps, Wake on LAN, VLAN 802.1q, приоритезация 802.1p)
|
|
Монитор:
|
|
17`` ViewSonic VA 703-M LCD 8ms,
speakers
|
|
Дополнительная
атрибутика:
|
|
Источник
бесперебойного питания IPPON Back
Power
Pro 500
|
|
Клавиатура
Mitsumi
PS/2
|
|
Манипулятор
«Мышь»
Logitech Optical Mouse PS/2-USB
|
|
Коврик
антистатический Verbatim
|
8. Выбор Операционной системы
Сетевая операционная система (NOS, Network
Operating System) - это программное обеспечение, применяемое на каждом
подключенном к сети ПК. Оно осуществляет управление и координирует доступ к
сетевым ресурсам. Сетевая ОС отвечает за маршрутизацию сообщений в сети,
разрешение конфликтов при конкуренции за сетевые устройства и работу с
операционной системой ПК, например Windows 95, Windows NT, Windows 2003 Server,
Windows 2000, UNIX, Macintosh или OS/2.
Для работы в сети мы будем использовать
операционную систему Windows
XP Professional
на рабочих компьютерах и Windows 2003 R2
Win32 Russian
на компьютере - сервере.
Операционные системы, применяемые на рабочих
станциях и на сервере имеют собственную файловую систему NTFS (New Technology
File System), являющуюся модернизацией файловой системы из Windows NT. По
сравнению со своей предшественницей, имеет множество усовершенствований, в
частности эффективные средства доступа в Интернет через локальную сеть, а также
систему автовосстановления утраченных и повреждённых программных модулей с
установочного компакт-диска.2003/XP
имеет следующие требования к ресурсам компьютера. Для реализации их
возможностей как минимум потребуется 96 Мбайта оперативной памяти, процессор
Pentium 233 МГц. Свободного пространства жесткого диска 2 Гбайта.
9. Экономический расчет
Проведем экономический расчет необходимого
оборудования для работоспособности сети в целом.
Таблица 5
|
№
|
Товар
|
Кол-во
|
Цена
|
|
1
|
Коммутатор
D-Link Smart Switch, DES-1250G, 48-port.
|
1
|
6535
|
|
2
|
Коннектор
RJ-45
|
44
|
88
|
|
3
|
СКС
“Exalan +” Кабель
UTP, 4 пары,
кат. 5е, PVC, 305 м.
|
687
|
4465,50
|
|
4
|
Розетка
внешняя 1xRJ45 UTP, кат. 5е
|
3080
|
|
5
|
Патч-корд
UTP,
категория 5е, 3м.
|
46
|
2093
|
|
6
|
Монтажный
короб
|
145
|
1087,50
|
|
7
|
Итого
|
-
|
17349
|
В таблице 5 представлена стоимость активного и
пассивного оборудования сети. Исходя из этого, стоимость оборудования
составляет 17349 руб.
Таблица 6
|
Наименование
компонентов
|
Цена
|
|
Комплектация
системного блока:
|
|
|
INWIN PowerMan 350W PFC, Low
noise, P4 ATX
|
860
|
|
LGA775 Epox
EP-5PL945-J/3,i945PL,DDR2,PCI-E,IDE,SATA2,SOUND,GLAN,ATX
|
2270
|
|
Дисковод
FDD
3.5`` Samsung
|
183
|
|
DVD+-RW Samsung SH-S182D
|
900
|
|
HDD 80.0Gb SATA2 Samsung HD080HJ
7200rpm 8Mb 9ms NCQ
|
1293
|
|
CPU Intel Celeron 331 (2667 MHz)
256 KB 533MHz LGA775 OEM EM64T
|
1020
|
|
DDR2 512MB 667MHz
PC5300 PQI
|
630
|
|
PCI-E 128MB, Palit ATI Radeon X550
128bit DDR DVI TV-out
|
1214
|
|
D-Link DGE - 530T PCI 10/100/1000
Mbps
|
386
|
|
Всего
за системный блок
|
8756
|
|
Источник
бесперебойного питания IPPON Back
Power
Pro 500
|
1412
|
|
Клавиатура
Mitsumi
PS/2
|
243
|
|
Манипулятор
«Мышь»
Logitech Optical Mouse PS/2-USB
|
273
|
|
Коврик
антистатический Verbatim
|
40
|
|
17`` ViewSonic VA 703-M LCD 8ms,
speakers
|
5350
|
|
Итого:
|
16074
|
Стоимость одного персонального компьютера
работника равна 16074 руб., а так как в суде работает 44 сотрудника, то
стоимость оборудования будет равна 707256 руб.
Таблица 7
|
Наименование
компонентов
|
Цена
|
|
Комплектация
системного блока:
|
|
|
Asus TA 652 350W ATX
|
1511
|
|
LGA775 Asus
P58,iP965,DDR2,PCI-E,IDE,SATA2,SOUND,GLAN,ATX
|
3450
|
|
Дисковод
FDD
3.5`` Samsung
|
183
|
|
DVD+-RW Samsung SH-S182D
|
900
|
|
HDD 250Gb SATA2 Samsung HDSP2504C
7200rpm 8Mb 9ms NCQ
|
1958
|
|
CPU Intel Core 2 Duo E6400 2,13MHz
, LGA775, 2Mb
|
5806
|
|
DDR2 512MB 667MHz
PC5300 PQI (3 штуки)
|
1890
|
|
PCI-E 256MB, Nvidia GeForce 7600GT
128bit DVI TV-out
|
|
D-Link DGE - 530T PCI 10/100/1000
Mbps
|
386
|
|
Монитор:
|
|
|
17`` ViewSonic VA 703-M LCD 8ms,
speakers
|
5350
|
|
Дополнительная
атрибутика:
|
|
|
Источник
бесперебойного питания IPPON Back
Power
Pro 500
|
1412
|
|
Клавиатура
Mitsumi
PS/2
|
243
|
|
Манипулятор
«Мышь»
Logitech Optical Mouse PS/2-USB
|
273
|
|
Коврик
антистатический Verbatim
|
40
|
|
Итого:
|
26527
|
В таблице 7 представлена комплектация
персонального компьютера для программиста. Из данных таблицы видно, что
стоимость оборудования составляет 26527 руб.
Таблица 8
|
Наименование
компонентов
|
Цена
|
|
Комплектация
системного блока:
|
|
|
Case Supermicro SC745TQ/800
Tower/4U Rackmount Chassis,8x3.5SAS+3x5Bays,800W
|
22360
|
|
Xeon 5355 2.66/8M 1333MHz bus 4 ядра
|
45838
|
|
Дисковод
FDD
3.5`` Samsung
|
183
|
|
DVD+-RW Samsung SH-S182D
|
900
|
|
MB Supermicro
X7DVL-E,E5000V,FBDDR,1x8X,1x4X,2x64bit,2x32bit
PCI,SVGA,2xGigaLAN,IPMI2,6xSATA R0,1,5,10
|
14310
|
|
1Gb 667MHz DDR2 ECC Fully Buffered
CL5 DIMM (4 штуки)
|
17472
|
|
HDD SAS 147GB 15000RPM
SAS-D/:MAX3147RC FUJITSU (4 штуки)
|
65728
|
|
LSI MegaRAID SAS8408E, 8-port,
256MB DDR, PCIe 4x
|
24674
|
|
D-Link DGE-550T (PCI 64bit/66MHz,
10/100/1000Mbps, Wake on LAN, VLAN 802.1q, приоритезация 802.1p)
|
863
|
|
Монитор:
|
|
|
17`` ViewSonic VA 703-M LCD 8ms,
speakers
|
5350
|
|
Дополнительная
атрибутика:
|
|
|
Источник
бесперебойного питания IPPON Back
Power
Pro 500
|
1412
|
|
Клавиатура
Mitsumi
PS/2
|
243
|
|
Манипулятор
«Мышь»
Logitech Optical Mouse PS/2-USB
|
273
|
|
Коврик
антистатический Verbatim
|
40
|
|
Итого:
|
199646
|
В таблице 8 представлен экономический расчет
стоимости сервера сети, который составляет 199646 руб.
Помимо стоимости оборудования надо учитывать
стоимость программного обеспечения:
Таблица 9
|
Программное
обеспечение
|
Кол-во
|
Цена
|
|
Windows
2003 R2 Win32 Russian
|
1
|
19338
|
|
Windows XP
Professional
|
45
|
159120
|
В таблице 9 учтена стоимость программного
обеспечения, которая составила 178458 руб.
Исходя из экономических расчетов, организация
сети в районном суде обойдется в 1129236 рублей.
10. Информационная безопасность
Защита данных в компьютерных сетях становится
одной из самых открытых проблем в современных информационно-вычислительных
системах. На сегодняшний день сформулировано три базовых принципа
информационной безопасности, задачей которой является обеспечение:
) целостности данных - защита от сбоев,
ведущих к потере информации или ее уничтожения;
) доступности информации для
авторизованных пользователей.
Рассматривая проблемы, связанные с защитой данных
в сети, возникает вопрос о классификации сбоев и несанкционированности доступа,
что ведет к потере или нежелательному изменению данных. Это могут быть сбои
оборудования (кабельной системы, дисковых систем, сервера, рабочих станций и
т.д.), потери информации (из-за инфицирования компьютерными вирусами,
неправильного хранения архивных данных, нарушений прав доступа к данным),
некорректная работа пользователей и обслуживающего персонала. Перечисленные
нарушения работы в сети вызвали необходимость создания различных видов защиты
информации. Условно их можно разделить на три класса:
1) Средства физической защиты;
2) Программные средства (антивирусные
программы, системы разграничения полномочий, программные средства контроля
доступа);
) Административные меры защиты (доступ в
помещения, разработка стратегий безопасности фирмы и т.д.).
Одним из средств физической защиты являются
системы архивирования и дублирования информации. В локальных сетях, где
установлен один сервер, чаще всего система устанавливается непосредственно в
свободные слоты сервера. В крупных корпоративных сетях предпочтение отдается
выделенному специализированному архивационному серверу, который автоматически
архивирует информацию с жестких дисков серверов и рабочих станций в
определенное время, установленное администратором сети, выдавая отчет о
проведенном резервном копировании.
Наиболее распространенными моделями
архивированных серверов являются Storage Express System корпорации Intel
ARCserve for Windows.
Для борьбы с компьютерными вирусами наиболее
часто применяются антивирусные программы, реже - аппаратные средства защиты.
Однако в последнее время наблюдается тенденция к сочетанию программных и
аппаратных методов защиты. Среди аппаратных устройств используются специальные
антивирусные платы, вставленные в стандартные слоты расширения компьютера.
Корпорация Intel предложила перспективную технологию защиты от вирусов в сетях,
суть которой заключается в сканировании систем компьютеров еще до их загрузки.
Кроме антивирусных программ, проблема защиты информации в компьютерных сетях
решается введением контроля доступа и разграничением полномочий пользователя.
Для этого используются встроенные средства сетевых операционных систем,
крупнейшим производителем которых является корпорация Novell. В системе,
например, NetWare, кроме стандартных средств ограничения доступа (смена
паролей, разграничение полномочий) предусмотрена возможность кодирования данных
по принципу "открытого ключа" с формированием электронной подписи для
передаваемых по сети пакетов.
Кроме вышесказанного, хотелось бы отметить, что
Коммутатор поддерживает VLAN, позволяя повысить безопасность сети и
эффективность использования пропускной способности путем выделения
широковещательных доменов и ограничения внутригруппового трафика в пределах
своего сегмента. Для сегментации сети поддерживающие VLAN рабочие станции и
серверы, которые подключены к коммутатору, можно сгруппировать в различные
виртуальные локальные сети (Virtual LAN, VLAN). Коммутатор так же поддерживает
зеркалирование портов для мониторинга сетевого трафика.
Администратор сети может использовать эту
функцию в качестве инструмента диагностики или отладки, особенно при отражении
атаки. Зеркалирование портов позволяет отслеживать производительность
коммутатора и при необходимости изменять ее.
11. Заключение
В данной курсовой работе была спроектирована
локальная вычислительная сеть для трехэтажного здания районного суда. План
помещения здания был разработан по плану Пермского краевого суда. Сеть была
организована по топологии «звезда», которая является самой распространенной как
в России, так и в Европе. В состав сети входят 45 персональных компьютеров и
один сервер. В целях экономии денежных средств, было решено поставить
коммутатор на 48 портов. Исходя из того, что в коммутаторе всего 48 портов, а
46 из них будут заняты, то возможность расширения сети, прокладкой кабеля
напрямую к коммутатору, не велика. Но существует возможность подключения
компьютеров из определенных участков здания к концентратору, а затем
концентратор подключить к коммутатору, за счет чего сеть можно существенно
увеличить. По данному проекту был проведен экономический расчет. Стоимость
организации сети, которая включает в себя стоимость персональных компьютеров с
сервером, стоимость сетевого оборудования, а так же стоимость программного
обеспечения, составила 1129236 рублей.
Похожие работы на - Проектировка сети районного суда
|