Разработка технологического регламента на изготовление оград железобетонных
Министерство
образования Республики Беларусь
Белорусский
национальный технический университет
Кафедра «
Технология бетона и строительные материалы »
КУРСОВОЙ
ПРОЕКТ
Тема проекта:
Разработка технологического регламента на изготовление изделий оград
железобетонных
Выполнил: студент гр. 112228
Сидоренко А.А.
Руководитель: Бабицкий В.В.
Минск 2012
Содержание:
1.Общие положения
.Общий вид изделия
.Требование к применяемым материалам. Складирование и
хранение
.Характеристика армирования
.Технология бетона
.Технология изготовления продукции
.Внутризаводское транспортирование, складирование и хранение
.Карта контроля технологического процесса
.Ведомость оборудования и оснастки
.Инструкция по охране труда и технике безопасности
Список используемой литературы
1.Общие
положения
Технологический
регламент на изделие является основным технологическим документом, используемом
при производстве руководителями цехов, мастерами и непосредственно
исполнителями.
Разработка
технологической карты имеет целью совершенствование методов труда, технологии и
организации производства с эффективным использованием оборудования и
инструмента для повышения качества продукции, производительности труда и
строгого соблюдения правил техники безопасности и промсанитарии, проведение
кооперационного контроля качества изделий.
В процессе
совершенствования производства в технологическую карту вносятся изменения и
дополнения.
Производство
железобетонных панелей и оград производится в соответствии с требованиями:
СТБ 1236-2000
«Изделия оград железобетонных. Общие технические условия.»
Рабочих
чертежей серии Б3.017.1-5.03 «Ограждения площадок и участков предприятий,
зданий и сооружений.»
РДС
1.01.13-99 «Порядок разработки и утверждения технологической документации на
предприятиях промышленности строительных материалов и строительной индустрии.»
Панели оград
предназначены для ограждения территорий предприятий и организаций, строительных
площадок, земляных участков различного назначения.
Панели оград
изготавливаются из тяжелого бетона соответствующего требованиям ГОСТ 26633, с
фракцией гранитного щебня не более 25мм.
Класс бетона
изделий по прочности на сжатие должен соответствовать с 30/37 (В35),
установочному в проектной документации.
Фактическая
прочность бетона (в проектном возрасте и отпускная) должна соответствовать
требуемой, назначаемой по ГОСТ 18105 в зависимости от нормируемой прочности
бетона, указанной в проектной документации и от показателя фактической
однородности прочности бетона.
Величина
нормируемой отпускной прочности бетона в процентах от класса бетона по
прочности на сжатие должна быть не менее:
% -в теплый
период года;
% - в
холодный период года.
Морозостойкость
бетона должна соответствовать марке по морозостойкости, установленной
документацией, и быть не ниже F75.
Удельная
эффективная активность естественных радионуклидов в бетоне изделий должна быть
не более 740 Бк/кг.
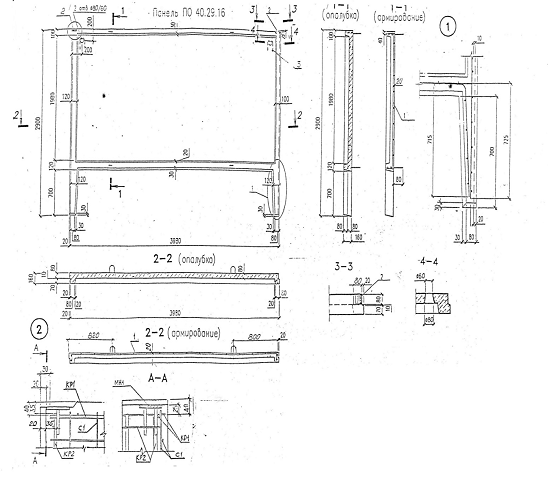
.Общий вид изделия
Железобетонные
элементы оград обозначают марками в соответствии с СТБ 1236-2000 и настоящей
документацией. Марка изделия состоит из буквенно-цифровых групп, разделённым
дефисом.
Первая группа
содержит:обозначения типа изделий по назначению и конструктивному решению,
габаритные размеры-длину(ширину), высоту в дециметрах, толщину изделий в сантиметрах
(значения которых округляют до целого числа) разделенные точками;
Во второй
группе указывают вид бетона (для изделий из тяжелого бетона вид бетона не
указывают).
В третьей
группе указывают стойкость к воздействию агрессивной среды; дополнительные конструктивные
характеристики, обозначаемые арабскими цифрами или строчными буквами.
Пример
условного обозначения:
панели ограды
с декоративной поверхностью длиной 4000мм, высотой 2900 мм, толщиной 160 мм:
ПО 40.29.16р
Фермы следует
изготовлять в соответствии с требованиями ГОСТ 20213-89 «Фермы железобетонные.
Технические условия».Для ферм предусмотрено применение тяжёлого бетона классов
по прочности C30/37.
|
Вид отклонения геометрического параметра
|
Геометрический параметр
|
Пред. откл., мм
|
|
Отклонение от линейного
|
Длина ограждения
|
+12,-12
|
|
размера
|
Высота ограждения
|
±12
|
|
Толщина ограждения
|
4
|
|
Положение закладных изделий:
|
|
|
в плоскости ограждения из плоскости ограждения
|
5 3
|
|
|
|
|
Отклонение от прямолинейности
|
|
12
|
|
|
|
Требования к
качеству поверхностей и внешнему виду ограждений - по ГОСТ 13015.0. При этом
качество лицевых поверхностей ограждений должно удовлетворять требованиям,
установленным для категории А6, а качество нелицевых поверхностей должно
удовлетворять требованиям, установленным для категорий А7. Трещины на
поверхности изделий не допускаются, за исключением усадочных и других
поверхностных технологических трещин, ширина которых не должна превышать 0,2
мм. Открытые поверхности закладных деталей, монтажные петли (строповочные
отверстия) должны быть очищены от наплывов бетона или раствора. Стальные
закладные детали и выпуски арматуры должны иметь антикоррозийное покрытие на
период хранения, транспортировки и мотажа: грунтовкой ГФ-021 по ГОСТ 25129-82
или железным 3.Требование к применяемым материалам. Складирование и хранение
Цемент.
Для
приготовления бетонной смеси используется портландцемент марки М500, М400.
Цемент должен соответствовать нормам и требованиям в соответствии с ГОСТ
10178-85 «Портландцемент и шлакопортландцемент. Технические условия».
Начало
схватывания цемента должно наступить не раньше 45 минут, а конец - не позднее
10 часов с момента затворения водой. Тонкость помола определяется по остатку на
сите №008, который не должен превышать 15% от массы просеиваемого цемента.
Цемент не должен иметь ложного схватывания.
Крупный
заполнитель.
В качестве
крупного заполнителя применяется гранитный щебень, качество которого должно
соответствовать требованиям ГОСТ 8267-93 «Щебень из природного камня для
строительных работ. Технические условия».
Щебень применяется
в виде фракций 5-20 мм. Марка щебня по дробимости на сжатие не ниже 600, 800,
1000, 1200, 1400 кг/см2, по морозостойкости - F50. Содержание пылевидных и глинистых частиц не должно
превышать 0,25%по массе. Содержание зерен слабых и выветренных пород не должно
превышать 5% по массе. Содержание зерен пластинчатой и игловатой формы не
должно превышать 35% по массе. Марка щебня по дробимости должна быть не ниже
Др12.
Мелкий
заполнитель.
В качестве
мелкого заполнителя применяют кварцевый песок, который должен удовлетворять
требованиям ГОСТ 8736-93 «Песок для строительных работ. Технические условия».
В качестве
мелкого заполнителя применяется песок по ГОСТ 8736-93. Модуль крупности не
менее 1,5-3. Содержание илистых и глинистых частиц не должно превышать 2%.
Содержание зерен более 5 мм не более 5 %
Вода.
Вода должна
удовлетворять всем нормам, указанным в СТБ 1114-98 «Вода для бетонов и
растворов. Технические условия». Вода не должна содержать химических соединений
и примесей в количестве, которое может влиять на сроки схватывания цементного
теста, скорость твердения бетона, прочность, морозостойкость,
водонепроницаемость, коррозию арматуры.
Не
допускается использовать: сточную, болотную и торфяную воду.
Общее
содержание ионов Na+ и К+ в составе
растворимых солей не должно превышать 1000 мг/л.
Водный
показатель (рН) воды должен быть не менее 4 и не более 12,5.
Вода,
содержащая пенообразующие вещества пригодна при стойкости пены не менее 2
минут.
4.Характеристика
армирования
Арматурный
каркас железобетонных панелей оград состоит из арматурной стали и проволоки.
Для армирования панелей оград следует применять арматурную сталь следующих
видов и классов:
в качестве
арматуры:
· стержневую
горячекатаную классов S240,марки
Ст3сп, и S400,марки 25Г2С по ГОСТ 5781.
в качестве
проволоки:
· арматурную
проволоку по ГОСТ 6727
· арматурную
проволоку по ТУ РБ 04778771.006.
Для закладных
деталей должен применятся фасонный прокат из стали: С245
ГОСТ 27772
«Прокат для стоительных конструкций.Общие технические условия.» Толщина полки
от 4 до 20 мм. Предел текусести 245 Н/мм**2. Времен
Схемы
армирования:
5.Технология
бетона
железобетонный
ограда панель арматурный
Железобетонные
ограждения должны выдерживать различные нагрузки, поэтому для их изготовления
используют тяжелый бетон класса С35/45. Для тяжелого бетона характерна плотная
структура, поэтому конструкция из такого бетона обладает наибольшей прочностью
и наименьшей проницаемостью.
Бетонная
смесь, применяемая для изготовления ограждений должна соответствовать
требованиям СТБ 1035-96. Водоцементное отношение бетонной смеси должно быть
0,35 - 0,4, подвижность - в пределах 1 - 3 см., смесь должна быть однородной.
Минимальный расход цемента в бетоне на плотных заполнителях при изготовлении
армированных железобетонных изделий должен быть не менее 220 кг/м3,
максимальный - не более 600 кг/м3.
Для
приготовления бетонной смеси применяется стационарный бетоносмеситель
периодического действия с принудительным перемешиванием материалов, которое осуществляется
вращающимися лопастями, насаженными на горизонтальный вал. Перемешивание
происходит по сложным траекториям, что повышает однородность бетонной смеси. По
ОНТП 07-85 время перемешивания 60-180 секунд. В качестве температурного
воздействия применяется тепловая обработка на гнездах. Уплотнение бетонной
смеси осуществляется навесными вибраторами с последующим гидропрессованием.
Подбор
состава бетона:
Класс бетона по прочности на сжатие С35/45.
) Требуемая прочность бетона
МПа
2) Выбираем марку цемента:
Рекомендуемая марка цемента М600
) Определяем В/Ц бетонной смеси:
Марка
бетона по морозостойкости F400 - В/Ц=0,55, по водонепроницаемости W6 -
В/Ц=0.55. Выбираем наименьшее из трех, т. е. (В/Ц)б. см=0,427.
4) Определяем В/Ц цементного теста:
(В/Ц)т=(0,58+0,07∙Мк)∙ (В/Ц)б. см=(0,58+0,07∙2,8) ∙0,427=0,331
где
К- коэффициент для подвижной смеси, определяемый по формуле
К=0,13∙ОК0,1=0,13∙30,1=0.145
5) Определяем расход цемента:
6) Определяем расход воды:
В=Ц∙(В/Ц)б. см=404∙0,427=173 кг
) Определяем долю песка в смеси заполнителей для подвижной смеси:
%
8) Определяем расход МЗ:
9) Определяем расход КЗ:
10) Определяем плотность бетонной смеси:
)
Введём добавку С-3 в количестве 1% от Ц:
С3А=4%;
Кп=0,9
Рассчитываем
расход воды в бетонной смеси с добавкой:

Пересчитываем
прочность бетона:
Расход песка
составляет:
Расход
цемента с добавкой:
Пересчитываем
расход песка:
Расчётная
плотность бетонной смеси:
.Технология
изготовления продукции
Бетонную
смесь приготавливают в бетоносмесительных цехах. От качества бетонной смеси
зависит и качество изготовленных изделий. Необходимо, чтобы поступающие в
бетоносмесительный цех компоненты бетонной смеси соответствовали предъявленным
к ним требованиям для получения бетонной смеси с заданными свойствами.
Дозируют
поступающие материалы по массе с погрешностью: цемент +-1%, воду +-1% и
заполнители - не более +-2%. Требуемая точность дозирования обеспечивается
весовыми автоматическими дозаторами.
Арматурные
изделия изготавливаются в арматурном цехе. Производство арматурных работ
организовано с применением комплексно-механизированных и автоматизированных
линий и оборудования для заготовки, сварки, сборки и антикоррозионной защиты
элементов арматурных изделий, а также для их транспортирования и пакетирования
при максимальном сокращении ручного труда, экономии металла и энергозатрат.
Заготовка
стержней из арматурной проволоки и горячекатаной арматуры круглой и
периодического профиля, поставляемой в мотках, производится на
правильно-отрезных станках-автоматах, а поставляемой в прутках - на безотходных
механизированных линиях.
Резка
стержневой и проволочной арматуры и сеток производится гидравлическими или
пневматическими ножницами, а также плазменными горелками.
Гибка
арматурных стержней и сварных сеток производится на приводных гибочных станках.
Монтажные
петли изготовляются на специализированных полуавтоматических или автоматических
высокопроизводительных станках.
Заготовка
закладных изделий, в том числе штампованных (обрезка стержней, резка полосовой
стали, пробивка отверстий, раскрой профильного проката, штамповка и т.п.),
выполняется гильотинными ножницами и прессами на автоматизированных линиях. Для
закрепления закладных изделий в них предусматриваются отверстия под
технологические фиксаторы в формах. Типы и конструктивные элементы сварных
соединений арматуры, а также технологические режимы сварки выполняются в
соответствии с ГОСТ 14098-91, СН 393-78 и проектной документацией на изделие.
Защита
сварных арматурных и закладных изделий от коррозии производится в соответствии
с требованиями проектной документации.
Для
формования изделий применяется стальная формооснастка, характеризующаяся
требуемой жесткостью при пониженной металлоемкости, необходимой технологичности
и обеспечивающая максимальную механизацию работ.
Используемые
для формования изделий формы соответствуют ГОСТ 25781-83, и обеспечивают
получение изделий с размерами в пределах допускаемых отклонений, отвечающих
требованиям стандартов и проектной документации на данное изделие.
Перед
формованием формы внутри и снаружи очищаются и смазываются. Для очистки форм
применяется специальный ручной пневматический или электрический инструмент.
Для смазки
форм применяется эмульсионная смазка типа СЛБЖ-III,СЗАЖ-III,
обладающая достаточной адгезией к металлу, не вызывающая разрушения бетона и
появления пятен на поверхности изделий. Смазочный состав наносится тонким
равномерным слоем при помощи распылительного устройства.
Арматурные
сетки и каркасы, закладные детали, устанавливаются в форму в соответствии с
проектной документации на изделия.
Для
предупреждения смещений и обеспечения требуемой толщины защитного слоя бетона
арматура, закладные изделия и вкладыши фиксируются при помощи пластиковых
фиксаторов.
Укладка
бетонной смеси осуществляется с помощью бетоноукладчика, с уплотнением на
виброплощадке. Струбцины отвинчиваются и снимаются. Открытая поверхность
изделия заглаживается гладилкой.
Назначение
режима тепловой обработки производится на основании нормативной литературы с
учетом вида, класса бетона, активности цемента при пропаривании, наличии
химических добавок.
Распалубка
изделий после тепловой обработки производится после достижения бетоном
распалубочной прочности. При этом распалубливание форм производится
механизированным ручным инструментом, а извлечение изделий из форм и установку
в рабочее положение для последующей доводки мостовым краном.
Окончательная
доводка и комплектация изделий включает в себя все необходимые работы по
приведению готовых изделий в соответствие с требованиям стандартов или
технических условий на изделие.
Технология
изготовления панелей ограждения:
· подготовка,
очистка и смазка форм;
· установка
арматурных каркасов и сеток;
· укладка
и уплотнение бетонной смеси;
· тепловлажностная
обработка;
· распалубка
изделий;
· сдача
ОТК;
· складирование
огражджений;
Формы очищают
с помощью удочек, подсоединенных к сети централизованной смазки. Производят
смазку опалубки эмульсионной смазкой тонким слоем (0,3мм).
Устанавливают
вкладыши в гнезда поддона. Арматурные сетки, каркасы и закладные детали
укладывают в форму в проектное положение согласно чертежам.
Укладывают в
форму все каркасы и сетки, устанавливают дополнительные закладные детали.
При помощи
бетоноукладчика бетон укладывается в формы. Уплотнение бетонной смеси в форме
производится при помощи глубинного вибратора до прекращения оседания бетонной
смеси. Очищают форму от наплывов и остатков бетонной смеси. Заглаживают
поверхность ограждения, устанавливают дополнительные закладные детали,
монтажные петли и ещё раз уплотняют бетонную смесь, после чего окончательно
заглаживают поверхность ограждения в местах их установки, наносят маркировочные
надписи по свежеотформованному бетону на опорном узле.
Форма с
отформованным изделием подается на термообработку в камеру ямного типа и устанавливается
на прокладки. Дно камеры и водяные затворы должны быть очищены от мусора.
Предварительная выдержка заформованных изделий составляет 3 часа, затем
осуществляется подъем температуры до 50 С, изотермический прогрев при 50 С
составляет 3 часа, затем осуществляется подъем температуры до 65 С,
изотермический прогрев при 65 С составляет 2 часа, после изделие остывает до 40
С за 2 часа. Полное время ТВО составляет 12 часов
Форма с
изделием извлекается из пропарочной камеры. Производится распалубка: открываются
замки, раскрываются борта формы. Съем изделия из формы и складирование
осуществляется за распалубочные петли. Закладные очищаются от наплывов бетона,
наносится антикоррозийное покрытие.
На посту
доводки изделия осматривают и производят устранение мелких недостатков, доводят
поверхность до категории требуемой СТБ 1236.
Маркировка
панелей оград выполняется в соответствии с СТБ 1236 и ГОСТ 23009.
7.Внутризаводское
транспортирование, складирование и хранение
Склады
материалов и готовой продукции.
Для хранения
цемента используются склады силосного типа. Запас цемента на складе, в
соответствии с ОНТП - 07 - 85, составляет 7 - 10 суток. Коэффициент заполнения
ёмкости для хранения цемента не менее 0,9.
Для разгрузки
крытых железнодорожных вагонов применяется пневмотранспорт. Пневмотранспортные
разгрузчики всасывающее-нагнетательного действия забирают цемент из крытых
вагонов и подают его в силосные ёмкости для цемента. Подача цемента в расходный
бункер бетоносмесительного цеха осуществляется пневмотранспортом. Каждый силос
склада оборудован в днище аэрационным сводообразующим устройством. Во избежание
слёживания цемента предусмотрена перекачка его из одного силоса в другой. Для
контроля и автоматического управления загрузкой и выгрузкой предусмотрена перекачка
с помощью показаний уровня.
Согласно
ОНТП-07-85 запас заполнителей на заводских складах принимают:
автотранспорт
5 - 7 суток;
железнодорожный
7 - 10 суток.
Ёмкость
склада представляет собой полубункер с укреплёнными внутри отсеками,
разделёнными поперечными стенками на ряд отсеков для раздельного хранения. За
счёт изменения количества разделительных стенок, число отсеков может быть
уменьшено или увеличено для хранения необходимого количества видов и фракций
заполнителей.
При приёме
заполнителей, поступающих на склад по железной дороге (щебень) разгрузка с
платформы осуществляется с применением разгрузочной машины Т - 128 А, а для
приёма песка, поступающего автотранспортом, предусмотрен специальный бункер.
Регулировка подачи заполнителей с автомобильного приемного устройства на
конвейер осуществляется с помощью секторного затвора. Возможность одновременной
работы приёмных устройств от железной дороги и от автомобильного транспорта
исключается. От каждого приёмного устройства заполнителя подаются системой конвейеров
на верхнюю конвейерную галерею склада. Сброс с неё заполнителей в первый отсек
склада производится трёхрукавной течкой, установленной на приводе конвейера.
Подача заполнителей в бетоносмесительный цех производится системой ленточных
конвейеров. Максимальная высота штабеля при свободном падении материалов - 12
м, а при складировании мелких заполнителей - 15м.
Грузооборот
характеризуют объём и дальность перевозок грузов, т.е. работу, выполняемую
транспортом на определённые расстояния.
Материалы
поступают на завод автомобильным и железнодорожным транспортом. Протяжённость
железнодорожных путей на предприятии около 300 м. Склады материалов и топлива
размещаются как можно ближе к железнодорожным путям. Для удобства выгрузки
материалов на склады.
Автомагистраль
кольцевая. Каждый из складов имеет свою подъездную площадку для удобства
разгрузки и загрузки материалов.
Грузооборот
может быть внешний и внутренний. Грузооборот различают также по видам
транспорта, т.к. на предприятии используется два вида транспорта. Вид
транспорта выбираем в зависимости от объёма перевозок предприятия. Кроме того ,
необходимо избегать пересечений внешнего и внутреннего грузопотоков.
8.Карта
контроля технологического процесса
|
№ п/п
|
Объект контроля
|
Способ контроля
|
Периодичность контроля
|
|
1 2 3 4 5 6 7 8 9 10 11 12 13 14
|
Входной контроль Цемент. Вид, марка, паспорт, тонкость
помола, нормальная пустота, сроки схватывания, равномерность изменения
объема, предел прочности при изгибе и сжатии. Щебень, песок. Вид, наличие
паспорта, зерновой состав, содержание пылевидных и глинистых частиц, глины в
комках, зерен пластинчатой и игольчатой формы, плотность, пористость,
пустотность, влажность Арматурная сталь. Временное сопротивление разрыву,
предел текучести, относительное удлинение, класс, марка и хим. состав
Операционный контроль Качество очистки и смазки формы Установка арматуры.
Соответствие положения арматуры рабочим чертежам, установка фиксаторов.
Формование. Подвижность и качество бетонной смеси, режим и время уплотнения,
установка пустотообразования. Тепловая обработка. Режим тепловой обработки
Распалубка. Внешний вид, наличие раковин, отколов, наплывов. Приемочный
контроль Прочность и трещиностойкость. Испытание методом нагружения
Водонепроницаемость Прочность бетона на сжатие при отпуске потребителю и в
проектном возрасте. Точность геометрических параметров. Линейные размеры.
Толщина защитного слоя. Отклонение толщины Качество бетонной поверхности.
Размеры раковин, местных наплывов, впадин отколов, ширины усадочных трещин
|
Выборочно, на складе цемента Выборочно, на складе
заполнителей Выборочно один раз от партии, арматурный цех Постоянно,
формовочный цех Постоянно, формовочный цех Постоянно каждое изделие,
формовочный цех Постоянно, формовочный цех Постоянно, формовочный цех
Периодично Периодично Выборочно Формовочный цех Выборочно, формовочный цех
Постоянно, формовочный цех
|
1 раз от партии, лаборатория По мере поступления,
лаборатория По мере поступления, лаборатория Каждая форма, мастер и ОТК
Каждая форма, мастер и ОТК Один раз в смену, лаборатория, мастер и ОТК Один
раз в смену, лаборатория Каждое изделие, мастер цеха Лаборатория Лаборатория
1 проба от партии Лаборатория ОТК Каждое изделие, ОТК Каждое изделие, ОТК
|
Контроль
производства изделий и их качества на предприятиях сборного железобетона
осуществляется в соответствии с «Техническими требованиями на изготовление и
приемку сборных железобетонных и бетонных изделий».
Контроль за
процессами изготовления изделий, соблюдение правил и режимов, возлагается в
основном на производственный персонал формовочного цеха. Лаборатория и ОТК
завода периодически контролируют на этих этапах выполнение технологических
правил.
.Ведомость
оборудования и оснастки
Для
дозирования компонентов бетонной смеси применяется следующее оборудование:
|
Назначение
|
Марка
|
Количество
|
|
Дозирование цемента
|
ДАЦ 600
|
2
|
|
Дозирование заполнителей
|
ДАПЩ 2000
|
2
|
|
Дозирование воды
|
АД 200-2БЖ
|
2
|
|
Дозирование хим. добавок
|
ДАД 40.00.00.000
|
1
|
Наименование
оборудования и оснастки для изготовления арматурных элементов для
разрабатываемого вида продукции:
|
Наименование
|
Тип, марка
|
Основные технические характеристики
|
При- нятое
|
|
Станок для правки и резки арматуры автоматический
|
СМЖ-357
|
стержни ⌀4-⌀10, l до 12000 Р= 16,5 кВт
|
1
|
|
Станок для гнутья стержней
|
СМЖ-173А
|
до ⌀40 Р= 3,0 кВт
|
1
|
|
Сварная машина
|
МПТ-200
|
|
1
|
|
Сварная машина
|
МПТ-100
|
|
1
|
|
Стыковая машина
|
МС-2008
|
|
1
|
|
Машина для резки стержней
|
СМЖ-323Б
|
Р= 4,0
кВт
|
1
|
|
Машина для высадки анкерных головок
|
СМЖ-128Б
|
|
1
|
|
Самоходная тележка
|
СМЖ-151
|
G =15 т.
|
1
|
Тепловые и
энергетические ресурсы использованные в процессе производства, сжатый воздух и
ГСМ :
|
Наименование установки
|
Расходный материал
|
Режим работы
|
Количество установок
|
|
|
|
|
На единицу продукции
|
В час
|
В год
|
|
Камера пропарочная
|
пар
|
период.
|
8
|
648 кг
|
49,85
|
201 тыс.кг
|
|
Распылитель смазки
|
воздух
|
период.
|
1
|
1,04 м3
|
7,47
|
30250
м3
|
|
смазка
|
|
1
|
1,2 л
|
1,8
|
7286,4 л
|
Необходимые
вид и количество формовочных агрегатов, устройств для тепловой обработки,
кранов и другого производственного оборудования:
|
Наименование
|
Тип, марка
|
Количество
|
Основные технические характерис- тики
|
Назначение
|
|
Бетоноукладчик
|
532/9
|
2
|
V=4,5м3
|
Укладка бетонной смеси
|
|
Камера пропарочная
|
нестанд.
|
8
|
|
Тепловлажностная обработка
|
|
Кран мостовой
|
КМ 20/5
|
2
|
Q=20т.
|
Перемещение грузов
|
|
Тележка
|
СМЖ-151
|
2
|
Q=15т.
|
Перемещение изделий и арматуры
|
|
Вибратор
|
И-116А
|
4
|
м=31,7кгУплотнение бетонной смеси
|
|
10.Инструкция
по охране труда и технике безопасности
Производство
железобетонных ограждений характеризуется наличием опасных и вредных
производственных факторов. Вероятность возникновения травм связана с большим
количеством оборудования, движущихся частей механизмов .
Рабочие
места, проходы и проезды в цехах не разрешается загромождать материалами и
готовой продукцией в соответствии с Правилами техники безопасности и
производственной санитарии в промышленности строительных материалов.
Перед началом
работы на посту необходимо проверить исправность всего оборудования.
К
самостоятельной работе на оборудовании по транспортировке бетонной смеси и
растворов допускаются лица не моложе 18 лет, обученные правилам его
эксплуатации и имеющие специальное удостоверение о сдаче экзамена по технике
безопасности.
При
вибрировании ограждений используются вибраторы, которые являются источниками
локальной вибрации. При воздействии вибрации превышающей нормы, у человека
развивается профессиональное заболевание - виброболезнь. Она проходит в три
стадии:
проявляется в
виде общих признаков недомогания
развиваются
необратимые деформации опорно-двигательного скелета, нервных окончаний,
образуются тромбы в крови, гипертония;
инвалидность;
Так как на
рукоятке вибратора фактическая вибрация всегда выше нормативной, в качестве
профилактики виброболезни необходимо строгое соблюдение режима труда и отдыха.
На
оборудование для тепловой обработки железобетонных изделий допускаются лица не
моложе 18 лет, обученные правилам его эксплуатации и имеющие специальное
удостоверение о сдаче экзамена по технике безопасности.
Стенки и
крышку камеры следует содержать в исправном состоянии. Прорыв пара через
трещины в стенках или неплотные соединения в крышке должен быть немедленно
устранен.
Камера должна
быть оборудована песочным или водяным затвором, обеспечивающим герметичное
соединение по всему периметру прилегания к ней крышки. При водяном затворе
должна быть обеспечена циркуляция находящейся в нем воды.
Крышку камеры
необходимо оборудовать подъемными петлями, позволяющими снимать и устанавливать
ее на камеру посредством мостового крана. ,
В камерах
подъем крышек разрешается только после удаления из них паровоздушной смеси.
Камеры,
находящиеся внутри закрытых помещений, должны быть оборудованы системой
вытяжной вентиляции для их принудительного проветривания по окончании режима
тепловой обработки изделий.
В процессе
нормальной эксплуатации все работы, связанные с загрузкой и выгрузкой изделий,
должны осуществляться без захода обслуживающего персонала в камеру.
Соответственно камеры и подъемно-транспортное оборудование должны быть оснащены
устройствами, обеспечивающими выполнение этого условия.
Доступ
обслуживающего персонала в камеру при температуре выше 40° запрещен.
Все ремонтные
работы внутри камеры выполняются по указанию и с разрешения мастера или
начальника цеха.
Подача пара в
камеру производится с ведома и разрешения мастера или начальника цеха.
При ремонтных
работах, как внутри, так и вне камеры разрешается применение только переносных
ручных электрических светильников с лампами напряжением не выше 12 в.
Давление
пара, подводимого к камере, не должно превышать 2 атм.
апрещается
поднимать или опускать крышку на камеру, не застропленную за все ее подъемные
петли.
При подъеме
или опускании крышки у камеры, за исключением стоповщика, не должны находиться
посторонние люди.
Грузозахватные
средства для подъема и опускания изделий должны соответствовать весу
наибольшего изделия, загружаемого в камеру. Все съемные грузозахватные
приспособления до их использования или после ремонта должны подвергаться
осмотру и испытанию нагрузкой в 1,25 раза превышающей из номинальную нагрузку с
длительность выдержки 10мин.
В процессе
эксплуатации съемные грузозахватные устройства и тара должны подвергаться
периодическому осмотру лицом, ответственным за их исправное состояние, в сроки
не реже чем:
а)траверса-
через каждые 6 месяцев;
б)стропы,
тара- через каждые 10 дней;
При погрузке
ферм шофер автомашины должен выходить из кабины.
Подъем ферм
должен осуществляться с применением 2 веревок-оттяжек.
При перевозке
ферм специализированном автотранспортом необходимо соблюдать требования
определяемые « Правилами дорожного движения».
Список
используемой литературы
1. Б.В.Стефанов «Технология бетонных
и железобетонных изделий.». Вища школа 1972, 356 с.
. В.Н.Байкаков, Э.Е.Сигалов
«Железобетонные конструкции. Общий курс.». М.: Стройиздат 1991,767 с.
. Серия 1.463.1-3/87 «Фермы
стропильные железобетонные безраскосные пролетом 18 и 24 м для одноэтажных
зданий с малоуклонной и скатной кровлей.»
. Батяновский Э. И., Бабицкий В. В.,
Коробко Е. В., Юхневский П. И. Технологическое обеспечение производства
железобетонных конструкций: Учебное пособие для студентов специальности
«Производство строительных изделий и конструкций». - Мн.: БНТУ, 2001. - 160с.
. ТКП 45-5.03-13-2005 «Изделия
бетонные и железобетонные сборные. Правила тепловлажностной обработки».
. ГОСТ 20213-89 «Фермы
железобетонные. Технические условия.»
. ГОСТ 23009-78 « Конструкции и
изделия бетонные и железобетонные сборные. Условные обозначения (марки).»
. ГОСТ 26633-91 «Бетоны тяжелые и
мелкозернистые. Технические условия.»
.ГОСТ 14098-91 «Соединения сварные
арматуры и закладных изделий железобетонных конструкций. Типы, конструкция и
размеры.»