Исследование осветительных условий и расчёт освещения производственных помещений

  • Вид работы:
    Практическое задание
  • Предмет:
    Безопасность жизнедеятельности
  • Язык:
    Русский
    ,
    Формат файла:
    MS Word
    193,96 Кб
  • Опубликовано:
    2012-05-23
Вы можете узнать стоимость помощи в написании студенческой работы.
Помощь в написании работы, которую точно примут!

Исследование осветительных условий и расчёт освещения производственных помещений

Министерство транспорта Российской Федерации

Федеральное агентство железнодорожного транспорта

Омский государственный университет

путей сообщения (ОмГУПС)



Кафедра «БЖ и ГОЧС»





Лабораторная работа № 1

Исследование осветительных условий и расчёт освещения производственных помещений


Выполнил:

Кочнева А.С.


Омск 2012

Цель работы

) ознакомиться с устройством и порядком применения имеющихся приборов для измерения освещенности на рабочих местах;

научиться определять освещенность на рабочих местах и давать санитарную оценку естественного и искусственного освещения (в соответствии с нормами);

) научиться производить расчет электрического искусственного освещения производственного помещения.

.1 Устройство приборов и порядок их применения

Для контроля и измерения освещенности и коэффициента пульсаций освещенности применяются люксметры типа «Люксметр - пульсаметр БЖ 1/1м» (рис. 1), при необходимости измерения малых освещенностей с большой точностью - люксметр - пульсаметр семейства ARGUS, ARGUS-07 (рис. 2).

Рис. 1. Люксметр-пульсаметр «БЖ 1/1м»

Принцип действия этих люксметров-пульсаметров основан на явлении фотоэлектрического эффекта (превращение световой энергии в электрическую), имеющего место при попадании света на поверхность фотоэлемента, включенного в замкнутую цепь с электрическим прибором.

Люксметр-пульсаметр «БЖ 1/1м» предназначен для измерения освещенности, создаваемой естественным и искусственным светом, источники которого расположены произвольно относительно светоприемника люксметра. Также прибор позволяет количественно оценивать качество освещения (пульсации освещенности), создаваемого лампами накаливания и газоразрядньими лампами различных типов.

Прибор выполнен в настольном исполнении и состоит из двух частей:

Блока 1 измерителя и фотоэлемента 2. Конструктивно фотоэлемент 2 выполнен в виде разборного корпуса, внутри которого расположен светочувствительньтй элемент. Сверху на фотоэлемент могут надеваться насадки 3, осуществляющие ослабление светового потока в 10, 100 и 1000 раз.

Фотоэлемент 2 с помощью кабеля соединен с блоком 1 измерителя. Блок 1 измерителя имеет корпус коробчатого типа, состоящий из двух частей: верхней, на которой закреплена панель с измерительной головкой 4, кнопками 5 выбора режима работы и 6 выбора диапазона измерения, и нижней, которая является дном прибора. Под панелью расположена печатная плата с элементами схемы обработки данных.

На боковой стенке блока 1 измерителя расположен разъем 7 для подключения фотоэлемента 2, а на задней - держатель 8 сетевого предохранителя и сетевой шнур с вилкой 9. На лицевой поверхности блока 1 расположен сетевой выключатель 10.

Люксметр-пульсаметр «БЖ 1/1м» имеет две градуированные в люксах шкалы: одна состоит из 30, вторая - из 100 делений. На каждой шкале точками отмечено начало измерений: на шкале 0-30 точка расположена над отметкой 5, на шкале 0-100 - над отметкой 20. Насадка 3 из белой пластмассы, обозначенная на внутренней стороне буквой К, применяется для уменьшения косинусной погрешности. Эта насадка применяется не самостоятельно, а совместно с одной из трех других насадок, имеющих обозначение М, Р, Т, для расширения диапазонов измерения. Без насадок люксметром можно измерить освещенность в пределах 5-30 и 20-100 лк. Применяя одновременно насадки КМ, КР, КТ, получают светофильтры с коэффициентом ослабления света, равным соответственно 10, 100, 1000.

Люксметр-пульсаметр "Аргус-07" состоит из индикаторного блока 2 в верхней части которого располагается цифровое индикаторное табло 3. В нижней части индикаторного блока посредством неразъемного соединения подключена измерительная головка 4.

Принцип работы прибора основан на преобразовании светового потока, создаваемого протяженными объектами, в непрерывный электрический сигнал, пропорциональный освещенности, который затем преобразуется аналого-цифровым преобразователем в цифровой код, индицируемый на цифровом табло индикаторного блока.

В измерительной головке установлен первичный преобразователь излучения - полупроводниковый кремниевый фотодиод с системой светофильтров, формирующих спектральную чувствительность, соответствующую кривой видимости. Показания освещенности индицируются в единицах люкс в левой части, а показания коэффициента пульсации индицируются в процентах в правой части индикаторного табло.

При подготовке к измерениям установить измерительную головку прибора в месте, где необходимо измерить освещенность и коэффициент пульсации. Индикаторньтй блок можно разместить в месте, удобном для снятия показаний с индикаторного табло. Включить прибор, для этого переключатель 1 установить в положение “оn”. При этом в левой части на цифровом табло индицируется значение освещенности в люксах (Lx) или в килолюксах (кLx), в правой части табло индицируется значение коэффициента пульсации (К) в процентах.

Значения освещенности меньше 200 лк индицируются с десятыми долями процента (например, показание 150.1 соответствует 150,1 лк). Значение освещенности больше 3000 люке индицируется в килолюксах (например, показание 30.12 соответствует 30,12 клк). Если в центре табло загорается индикатор разряда батареи “П” (питание), необходимо сменить элемент питания.

Рис. 2. Люксметр-пульсаметр "Аргус-07"

.2 Исследование естественной освещенности в помещениях

Таблица 1. Измерение естественной освещенности

Разряд работ в помещении

Вид осве-щения (верхнее, боковое, комбинированное

Измерение освещенности в помещении

Наружная освещен-ностьЕ Н, лк

Коэффициент естественной освещенности КЕО = (ЕВ / ЕН) х 100%

КЕО по нормам (3,4), %



Место замера

Е В, лк




IVБ

боковое

у окна

4460

7000

64

1,5

IVБ


рабочее место (стол)

1160


17,57


IVБ


у противо-положной стены

400


5,7



На основе сравнения фактического КЕО (минимальное 5,7%) с нормативным (1,5 %), естественная освещенность в заданном помещении соответствует нормам.

1.3 Исследование искусственного освещения

Таблица 2. Измерение искусственного освещения

Номеропыта

Разряд работыв помеще-нии

Размер Объекта различения, мм

Светлотафона, контраст объекта с фоном

Источник света (лампы накаливания или газоразрядные)

Система освещения

Место замера

Освещенность








Фактическая

Наимень- шая по нормам Е min, лк

IVБ

от 0,5 до 1

средняя

лампа накаливания

общее

рабочее место (стол)

160

200

2

IVБ

от 0,5 до 1

средняя

лампа накаливания

комбиниро-ванное

рабочее место (стол)

519

500

3

IVБ

от 0,5 до 1

средняя

лампа накаливания

Местное

рабочее место (стол)

350

-


Вывод: на рабочих поверхностях освещенность не соответствует нормами равна Еmin. На рабочих местах необходимо добавить источники света, осветительные приборы, световые проемы.

Таблица 3. Исследование зависимости освещенности от напряжения

Тип лампы

Освещенность, лк, при напряжении, В


220

210

200

190

180

170

160

150

140

130

120

100

80

60

20

Накаливания

168

131

110

89

78

62

48

37

29

20

15

7

4

1,5

1,3

Газоразрядная

215

196

178

157

130

95

56

0

0

0

0

0

0

0


Рис.3. Зависимость освещения от напряжения

Вывод: лампы накаливания обеспечивают более устойчивую работоспособность, по сравнению с газоразрядными лампами при значительных колебаниях или низких значениях напряжения, но значение освещенности ламп накаливания ниже значения освещенности газоразрядных ламп.

Таблица 4. Результаты измерения коэффициента пульсации освещенности

Система освещения

Тип источников света (лампы накаливания, ДЛР, газоразрядные)

Значение коэффициента пульсации Кп, %

Общая

газоразрядная

81

Комбинированная


42


Вывод: для общего искусственного освещения помещений следует использовать, как правило, разрядные источники света, отдавая предпочтение при равной мощности источникам света с наибольшими световой отдачей и сроком службы, обращая внимание на значение коэффициента пульсации; комбинированное освещение применяется в зависимости от разряда выполняемых работ.

Ответы на контрольные вопросы:

)        Какой показатель характеризует естественное освещение?

Естественное освещение характеризует коэффициент естественной освещенности е (КЕО). КЕО - это относительная величина, показывающая, во сколько раз освещенность внутри здания меньше освещенности снаружи, выраженная в процентах. Определяется по формуле:

е = (ЕВ / ЕН) х 100%,

где ЕВ -горизонтальная освещенность в какой-либо точке М внутри помещения, освещаемой светом видимого через проем окна участка небосвода, лк;

ЕН - одновременная освещенность наружной горизонтальной плоскости, освещаемой равномерно рассеянным светом всего небосвода, лк.

)        Какие показатели характеризуют искусственное освещение?

Искусственное освещение характеризуют показатели величины освещенности рабочей поверхности Е (лк), коэффициента пульсации освещенности Кп (%) и ослепленности Р (отн. ед.), наличия прямой и отраженной блесткости.

)        Что такое стробоскопический эффект и какими причинами он вызван?

Стробоскопический эффект - это эффект, вызывающий искажение восприятия движущихся предметов. Например, если смотреть на вращающийся в пульсирующем световом потоке диск (колесо), то, как правило, кажется, что он остановился или вращается в обратную сторону. Такое явление чрезвычайно опасно, так как человек не может визуально контролировать скорость и направление движения вращающихся деталей.

Стробоскопический эффект при освещении газоразрядными источниками света объясняется тем, что при включении лампы в сеть переменного тока стандартной частоты 50 Гц имеются моменты, когда в лампе нет тока и световой поток ее значительно снижается.

)        Какие мероприятия применяются для снижения пульсации освещенности при использовании газоразрядных ламп?

Это явление может быть практически полностью устранено применением двух- или трехламповых схем включения, а также питанием токами повышенных частот, например 400 Гц. При работе ламп накаливания стробоскопический эффект не наблюдается благодаря тепловой инерции нити накала.

) Как влияют разряд зрительной работы, фон и контраст объекта с фоном на величину наименьшей требуемой освещенности (по прил. 2)?

Чем меньше разряд зрительной работы, тем более жёсткие требования к освещению помещения. При первом разряде зрительной работы наименьшая величина требуемой освещённости составляет 1250 Лк. С увеличением разряда работы это нормируемое наименьшее значение освещения уменьшается.

Расчет электрического искусственного освещения

№ варианта

Наименование, размер помещения

Расчетная высота подвеса светильников, hp , м

Разряд зрительной работы

Фон

Освещенность по ОСТ32.9.81 и СниП 11-4-79 (общ. осв.) Еmin , лк

Тип светильника

Источник света

Коэффициент отражения










Ρп , %

Ρст , %

Ρр. п. , %

5

Дизель - генераторная со средним выделением пыли 5×6

3,0

8,а

темный

75

ППД-200

Лампа накаливания

1.2

70

50

10


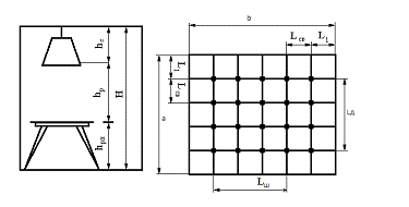
а                                               б

Рис. 1. Расчетные схемы

Определяется по выбранному типу светильника рекомендуемое значение l - отношение расстояния между светильниками Lсв к расчетной высоте их подвеса над рабочей поверхностью hp. (табл. П. 3). l = 1,4; затем из этого находится

Lсв = l× hp.                                                           (1)

Lсв = 1,2× 3 = 3.6м .

Расстояние L1 от стены до первого ряда светильников при наличии рабочих мест у стен определяют по формуле:

L1 = (0,2 ... 0,3) × Lсв,                                           (2)

L1 = 0,238 × 3.6 = 0.85 м.

Расстановка рабочих мест в помещении выбирается самостоятельно. Расстояние между крайними рядами светильников по ширине Lш и длине Lд помещения определяется по формулам:

Lш = в - 2 L1; Lд = а - 2 L1; (3)


4 Определяется число светильников, устанавливаемых в заданном помещении. Сначала определяется общее количество рядов светильников по ширине nш и длине nд помещения:

nш = Lш / Lсв + 1; nд= Lд / Lсв + 1; (4)

nш = 4.3 / 3.6 + 1 = 2 шт.; nд= 3.3 / 3.6 + 1 = 2 шт.,

затем - общее число светильников: nобщ = nш nд = 2 ·2 = 4 шт..

Определяется расчетный (потребный) световой поток одной лампы:

Фл = Еmin S K Z / (nобщ h),                                             (5)

Где Еmin - минимальная нормируемая освещенность на рабочих поверхностях, лк (определяется по табл. П. 2 или [3]);

S - освещаемая площадь помещения, м;

К - коэффициент запаса, учитывающий загрязнение ламп и светильников в зависимости от характеристики работ (принимается по [2, табл. 4.9] или [3, табл. 1.1]). К = 1,3;

Z - отношение средней освещенности к минимальной, при освещении лампами накаливания Z = 1,15;

nобщ - число светильников;

h - коэффициент использования светового потока (в долях единицы),

т. е. отношение светового потока, падающего на расчетную поверхность, к суммарному потоку всех ламп.

Коэффициент использования зависит от характеристики светильника, размеров помещения, окраски потолка, поэтому для его определения необходимо знать коэффициенты отражения потолка rn, стен rcm, рабочей поверхности rp.n, и индекс помещения i.

Коэффициенты rn, rcm, rp.n зависят от характеристики помещения (указывается в задании или определяется по [2, табл. 5.1, с. 126]).

Индекс помещения подсчитывается по формуле:

= ав / (hр (а + в)),                                       (6)

где    а - длина помещения, м;

в - ширина помещения, м;

hр - расчетная высота подвеса светильника над рабочей поверхностью, м.

= 5 · 6 / (3 · (5 + 6)) = 0,9.

По типу светильника, индексу помещения и коэффициентам отражения rn, rcm, rp.n определяется коэффициент использования светового потока h для ламп накаливания в справочной книге [2, с. 128 - 133], для ламп ДЛР -

в [2, с. 134 - 135], для люминесцентных - в [2, с. 136 - 143]. Для ламп накаливания h = 0,41. Примечание. В формуле (5) для определения расчетного светового потока одной лампы Фл необходимо учитывать число ламп, находящихся в светильнике.

Фл = 75 · 30 · 1,5 · 1,15 / (4 · 0,41) = 2366 Лм.

6) По напряжению на лампе Uл и световому потоку одной лампы Фл выбрать стандартную лампу необходимой мощности: лампу ДЛР - из [2, с. 28]; лампу накаливания - из [2, с. 12-13]; люминесцентную - из [2, с. 23-24].

При напряжении на лампе 220 В выбираем тип лампы Г, мощность 200 Вт, размер D = 81 мм, L = 175 мм, Фтабл = 2800 Лм.

Разность между табличным Фтабл и расчетным потоком Фл, как правило, допускается в пределах от -10 до +20%.

Δ = (2800-2366) · 100 / 2800 = 15.5 %.

7 Определить действительную освещенность:

Едейств = Фтабл nобщ h / (S К Z).                               (11)

Едейств = 2800 · 4 · 0,41 / (30 · 1,5 · 1,15) = 88.74.

Сравнить Едейств с нормируемой Еmin .

электроосветительный прибор уровень освещенность

Вывод: При заданной площади помещения и с учётом специфики проведения производственных работ в нём я рассчитала необходимое количество электроосветительных приборов для поддержания необходимого нормируемого уровня освещённости. При расчетах было выбрано 4 светильника с лампой накаливания напряжением 220В,мощностью 200Вт,световым потоком в 2800 Лм. Выявлено, что условия освещения приемлемы для данного помещения Едейств> Еmin (88.74>75).

Похожие работы на - Исследование осветительных условий и расчёт освещения производственных помещений

 

Не нашли материал для своей работы?
Поможем написать уникальную работу
Без плагиата!
Без нейросетей!