Термопсис очередноцветковый
Курсовой
проект
Тема:
Организация,
технология и комплексная механизация строительства каналов оросительной системы
СОДЕРЖАНИЕ
ВВЕДЕНИЕ
1. ИСХОДНЫЕ ДАННЫЕ ДЛЯ
КУРСОВОГО ПРОЕКТИРОВАНИЯ
1.1 Природные условия района
строительства
1.1.1 Метеорологические
условия
1.1.2 Рельеф
1.1.3 Геологические условия
(разновидность грунтов, места их распространения)
1.2 Характеристика
производственных и хозяйственных условий района строительства
2. ВЫБОР ТИПОВЫХ СЕЧЕНИЙ
КАНАЛА
2.1 Разбивка канала на
характерные участки
2.2 Выбор типовых сечений
3. ПРОИЗВОДСТВО СТРОИТЕЛЬНЫХ
РАБОТ НА КАНАЛЕ
3.1 Объемы земляных работ
3.1.1 Участок канала в насыпи
3.1.2 Участок канала в
полунасыпи
3.1.3 Участок канала с
корытом
3.1.4 Участок канала в выемке
3.2 Баланс грунтовых масс
3.3 Составление
технологических карт
3.4 Комплектование машин
3.5 Схемы производства
земляных работ
3.6 Облицовка канала
3.6.1 Конструкция облицовки
3.6.2 Количество материалов
для облицовки канала
3.6.3 Подбор крана
3.6.4 Технология устройства
облицовки канала
3.7 Определение потребности в
горюче-смазочных материалах
4. ТЕХНИКА БЕЗОПАСНОСТИ И
ОХРАНА ОКРУЖАЮЩЕЙ СРЕДЫ
4.1 Техника безопасности
4.2 Охрана окружающей среды
Заключение
Список литературы
ВВЕДЕНИЕ
С учетом того, что в XXI веке неизбежен поворот в мировом балансе
геополитических сил и смена парадигм в сфере паразитической эксплуатации
сырьевых и экологических ресурсов Земли «золотым миллиардом», развитие
отечественного сельского хозяйства - как основы воспроизводимого ресурса в
системе народно-хозяйственного комплекса - является наиболее предпочтительным и
реальным. При этом баланс интересов между экономическими, экологическими и
социальными составляющими устойчивого развития сельского хозяйства достигается
на основе перехода к стратегии адаптивной его интенсификации. Известно, что
любое производство активно развивается и становится эффективным только в том
случае, если оно с самого начала создает веру в ценность того, что
производится. И в этом отношении сельское хозяйство, ориентированное на удовлетворение
главной потребности людей - в пище, - в ближайшей, обозримой и самой отдаленной
перспективе не имеет конкурентов - будь то нефть, газ, нанотехнологии или
оружие. Ибо качество пищи и среды обитания, в конечном счете, и определяют
«качество жизни» людей.
Проектируемый канал предназначен для подачи воды на орошаемый участок. Он
расположен на территории челябинской области. Предполагаемый срок строительства
несколько месяцев(2-4 мес.).
Открытые каналы в земляных руслах - это один из основных элементов
оросительных, осушительных и обводнительных систем по объемам и стоимости
работ.
В данном курсовом проекте рассматривается методика разработки
магистрального оросительного канала с данным уклоном, с учётом выемки и насыпи
грунта в пределах разрабатываемого участка. Протяженность оросительного канала
составляет 6 км, строительство канала ведется в районе населённого пункта
Краснооктябрьский Челябинской области. Широкая программа мелиорации, сложность
и трудоёмкость намеченных работ требует решительного улучшения организации в
данной отрасли дальнейшего укрепления производственной базы и т.д.
В каждом производстве решаются определенные задачи.
Основными задачами строительного производства являются: повышение
производительности труда, сокращение сроков строительства, снижение стоимости,
повышение качества строительства и т.д.
Так как во время строительных работ объекты не дают прибыли, то
необходимо стремиться к сокращению сроков их возведения и быстрейшему вводу в
эксплуатацию. В предлагаемом проекте сроки строительства участка магистрального
канала ограничиваются периодом с августа по октябрь.
1. ИСХОДНЫЕ
ДАННЫЕ ДЛЯ КУРСОВОГО ПРОЕКТИРОВАНИЯ
Исходные данные для курсового проектирования
|
№ п/п
|
Наименование параметра
|
Обозначение
|
Размерность
|
25 вариант
|
|
1
|
2
|
3
|
4
|
5
|
|
1.
|
Строительная глубина канала
|
H
|
м
|
4
|
|
2.
|
Ширина по дну
|
b
|
м
|
4
|
|
3.
|
Ширина дамб по верху
|
ад
|
м
|
3
|
|
4.
|
Ширина кавальеров минерального грунта по верху
|
ак
|
м
|
5
|
|
5.
|
Ширина кавальеров растительного грунта по верху
|
aр.с.
|
м
|
1,2
|
|
6.
|
Ширина бермы
|
с
|
м
|
3,5
|
|
7.
|
Заложение откосов:
|
|
|
|
|
а) канала
|
m1
|
-
|
1,75
|
|
б) корыта
|
m’1
|
-
|
1,5
|
|
в) наружных у дамб и внутренних у кавальеров минерального
грунта
|
m2
|
-
|
1,5
|
|
г) внешних у кавальеров минерального грунта
|
т3
|
-
|
6
|
|
д) кавальеров растительного грунта
|
трc
|
-
|
1,5
|
|
е) резервов
|
mp
|
-
|
1
|
|
8.
|
Толщина растительного грунта
|
hpc.
|
м
|
0,3
|
|
9.
|
Естественная влажность грунта
|
wе
|
%
|
20
|
1.1 Природные условия района строительства
.1.1
Метеорологические условия
Климат Челябинской области
Челябинская область расположена почти в центре громадного материка
Евразии, к востоку от Уральского хребта, на большом удалении от морей и
океанов, прежде всего от Атлантики.
По общим характеристикам климат Челябинской области относится к
умеренному континентальному. Температура воздуха зависит как от влияния
поступающих на территорию области воздушных масс, так и от количества
получаемой солнечной энергии. 2066 часов солнце светит на территории области,
это на 481 час больше, чем над Москвой.
Количество и распределение осадков в течение всего года определяется
главным образом прохождением циклонов над территорией области. Больше осадков
выпадает в пределах горной части области (Златоуст - 704 мм), меньше - в
лесостепном Зауралье (Челябинск - 439 мм), а еще меньше в степной зоне на юге
области (Бреды - 351мм). Но бывают и исключения: 18 августа 1998 г. в
Челябинске (Коркино) за 1 час выпало 45 мм осадков, а метеостанция Карталы 18
июля 1998 г. за 3 часа зафиксировала количество осадков 61 мм.
Ветровой режим на территории области зависит от особенности размещения
основных центров действия атмосферы и изменяется под влиянием орографии. В
январе- мае, в основном, преобладают ветры южного и юго-западного направления
со средней скоростью 3-4 м/с. При метелях максимальная скорость увеличивается
до 16-28 м/с. В июне- августе ветер дует с запада и северо-запада, средняя
скорость не увеличивается, но при грозах наблюдается кратковременное шквалистое
усиление ветра до 16-25 м/с, в Троицке и Златоусте (16.06.1978 и 17.04.1980
гг.) была отмечена максимальная скорость ветра - 40 м/с. В сентябре-декабре
ветер поворачивает на южный и юго-западный, средняя скорость ветра составляет 3
м/с, максимальная- 18-28 м/с.
Среднемесячное значение атмосферного давления в течение года колеблется
от 737 до 745 мм рт. ст. Самое низкое давление, зарегистрированное на
территории области, составило 651 мм рт. ст. (январь 1981 г.), а самое высокое
- 773 мм рт. ст. (ноябрь 1987 г.)
Сложный рельеф, большая протяженность с севера на юг позволяют в области
выделить 3 зоны, различающиеся как по рельефу, так и по климатическим
хараактеристикам: горно-лесная, лесостепная и степная.
Климат горно-лесной зоны прохладный и влажный. Температурный режим
меняется в зависимости от рельефа. Этой зоне характерно короткое прохладное
лето и продолжительная снежная зима. Постоянный снежный покров образуется в
период с 25 октября по 5 ноября и залегает он до конца апреля, а в отдельные
годы снежный покров сохраняется до 10-15 мая. Высота снежного покрова достигает
60-90 см. В течение 40-60 дней наблюдаются метели, общая их продолжительность
составляет 300-465 часов. Самым холодным месяцем является январь. При средней
температуре минус 15-16°С в суровые зимы абсолютный минимум может достигать
отметки минус 44-48°С. В то же время в январе 1949 и 2002 гг. средняя
температура равнялась минус 8-9°С. Абсолютный минимум температуры воздуха был
зафиксирован 1 января 1979 г. в г. Нязепетровске - минус 52,1°С. Самый теплый
месяц - июль со средней температурой воздуха плюс 15-17°С. В 1926 и 1973 гг.
столбик термометра не поднимался выше плюс 12-13°С, а в 1931 и 1989 гг средняя
температура равнялась плююсь 20-21°С. Абсолютный максимум температуры воздуха
за лето в этом районе достигал плюс 37-38°С. В течение года здесь выпадает
580-680 мм осадков. В сухие годы сумма осадков не превышала 310-400 мм (1883,
1934, 1975 гг). Во влажные годы количество осадков возрастает до 890-940 мм
(1943, 1990 гг). Самым дождливым месяцем является июль, а самым сухим -
февраль. Самый сильный ливневый дождь прошел в г.Нязепетровске - за сутки
выпало137 мм осадков (17 августа 1963 г.).
Климат лесостепной зоны теплый, с достаточно холодной и снежной зимой.
Постоянный снежный покров образуется 15-18 ноября и сохраняется 145-150 дней.
Высота снежного покрова составляет 30-40 см, но в малоснежные зимы бывает на
10-15 см меньше. Метели наблюдаются в течение 30-35 дней, общей
продолжительностью 220-270 часов. Глубина промерзания почвы колеблется от 90 до
130 см. Средняя температура января равняется минус 15,5-17,5°С. В суровые зимы
она может опускаться до минус 25-29°С (1969, 1972 гг.), а в отдельные годы
средняя температура января равнялась минус 8-9°С (1949, 1971, 1983, 2002 гг).
Абсолютный минимум температуры воздуха достигал минус 42-49°С. Средняя
температура воздуха в июле равняется плюс 18-19°С. Абсолютный максимум температуры
отмечен 29 июля 1952 г: в Южноуральске - плюс 42,0°С. Годовое количество
осадков равняется 410-450мм. Наибольшее количество осадков приходится на июль.
Дождливым был июль 1915, 1957,1961 и 1994 гг. - выпало 180-215 мм. Сухим
оказался июль 1914, 1958, 1989 и 1995 гг. - сумма осадков составила 7-12 мм.
Климат степной зоны очень теплый и засушливый. Зима здесь холодная, с
сильными морозами, метелями, которые наблюдаются в течение 40-50 дней (350-450
часов), вызывая сильный перенос снега. Снежный покров устанавливается в
середине ноября, а иногда - в середине декабря. К 15 апреля снег обычно сходит.
В течение зимы высота снежного покрова увеличивается медленно, Только в январе
она достигает высоты 20-25 см, наибольшая высота снега не превышает 35 см. Средняя
температура января минус 17-18°С. В 1969 г. январская температура равнялась
минус 26-28°С. Январь 1948, 1971, 1983 и 2002 гг был очень теплым,
среднемесячная температура составила минус 8-10°С. В суровые зимы минимальная
температура воздуха опускается до минус 44-46°С. Глубина промерзания почвы
составляет 110-150 см. В малоснежные и суровые зимы почва промерзает до 170-260
см. Осадков за год выпадает 350-400 мм, 75% - в теплый период года. Сухим был
июль 1975 и 1995 гг., когда осадков выпало всего 1-10мм. А в июле 1941, 1966 и
1999 гг. сумма осадков достигала 180-205 мм.
СИЛЬНОЕ ГОЛОЛЕДНО-ИЗМОРОЗЕВОЕ ОТЛОЖЕНИЕ на проводах. Диаметр отложения на
проводах гололедного станка 20 мм и более для гололеда, 35 мм и более - для
сложного отложения или мокрого снега, 50 мм и более - для зернистой и
кристаллической изморози.
г. - 5-7 мая в Кунашаке и Миассе был отмечен гололед на протяжении 54-57
часов. Диаметр отложения составил 20 мм. В Кунашакском откормочном совхозе
вышел из строя трансформатор, в течение суток не было электричества. На 4 часа
было прервано движение электропоездов на маршруте Челябинск-Нижняя.
В Миассе был обрыв телефонных и электрических проводов. На 50% площади
плодовых культур обломаны ветки.
ОЧЕНЬ СИЛЬНЫЙ ДОЖДЬ - количество осадков 30 мм в горных районах и 50 мм
на остальной территории за 12 часов и менее.
г. - В Измайловском за 12 часов выпало 67 мм осадков.
г. - В Бакале и Вязовой выпало 44-35 мм за 12 часов.
г. - метеопост Карабаш за 12 часов зарегистрировал 50 мм осадков.
мая 2008 г. - В Миассе прошел очень сильный дождь с количеством выпавших
осадков 31 мм за 8 часов 20 минут, в результате произошло подтопление подвалов
жилых домов, трех подстанций, отключение эл/энергии на 2-3 часа.
1.1.2 Рельеф.
Урал - древняя горная страна. Ее рельеф на протяжении длительной
геологической истории то разрушался до состояния холмистой равнины, то вновь
поднимался, приобретая горный характер. Сейчас Урал относится к рангу
низкогорных хребтов, так как его максимальные высоты не достигают и 2000 м.
Наивысшая точка Челябинской области - гора Б. Шолом (хр. Зигальга) имеет
высоту лишь 1425 м.
Общий характер рельефа Уральских гор метко и поэтично описан известным
исследователем Урала Г.Е. Шуровским: «Уральский хребет за исключением южной
своей части вообще не поражает путешественника. Здесь нет дымящихся вулканов,
ничего исполински громадного, альпийского или кавказского. Перед вами
простирается не бурный, клокочущий океан, то вздымающийся до облаков, то
спадающий в бездны, но безграничное море, однообразно возвышающее валы свои и
только изредка, как бы девятою волною, выдвигающееся величественными сопками»
Урал - ассиметричное горное поднятие. На геоморфологическом профиле его
хорошо видно, что западный склон повышается постепенно, а восточный резко
обрывается в сторону Зауральской равнины. Если ширина западного склона Урала от
Аши до водораздельного хребта Урал-Тау 175 км, то восточного лишь 17 км, то
есть почти в 10 раз уже.
Восточнее меридиана г. Челябинска рельеф приобретает характерные черты
Западно-Сибирской низменности. Следовательно, в физико-географическом отношении
Челябинская область располагается в двух совершенно различных странах: горной
Уральской и низменной Западно-Сибирской.
Характер горной области в южной и северной части неодинаков. К северу
рельеф горной области постепенно снижается и из горного превращается в
увалисто-холмистый. Резкое снижение высот намечается к северу от Нижнего
Уфалея. Здесь проходит условная граница между Средним и Южным Уралом.
1.1.3 Геологические
условия (разновидность грунтов, места их распространения)
Геологическая история Челябинской области, как и других мест,
прослеживается на основе изучения слагающих пород. Здесь представлены породы
почти всех геологических возрастов. Наиболее древними из них являются
докембрийские, то есть породы архея (более 2 млрд. лет) и протерозоя.
Протерозой в Челябинской области представлен различными магматическими,
вулканическими, осадочными и метаморфическими породами. Из осадочных пород
большое распространение имеют известняки, залегающие, например, в бассейне р.
Миньяр и в других местах. Сюда же относятся доломиты, магнезиты и сидериты,
испытавшие впоследствии изменение. Они залегают, например, в Бакало-Саткинском
районе. Такого же возраста пестроцветные мергели Катав-Ивановска и другие
осадочные породы. Из магматических пород можно отметить граниты Бердяушского
массива, возраст которых радиоактивным методом определен более полутора
миллиардов лет. К вулканическим породам протерозоя относятся, например, лавовые
породы, туфы и туффиты Брединского района. Метаморфические породы протерозоя
представлены гнейсами, залегающими в долине р. Синташты, выше поселка
Андреевского и в других местах; мраморами в 5-6 километрах к югу от поселка
Наследницкого, где на основе пуровых данных, выявлены линзы мраморов мощностью
до 150 м. Характер пород, нарушенное залегание их, а также сильный метаморфизм,
свидетельствуют о том, что в протерозое были горообразовательные процессы,
магматические и вулканические тления, наступление и отступление морей. Общая
мощность протерозойских отложений Южного Урала 7000-9000 метров. Многие
вышеперечисленные и. другие породы протерозоя являются важными полезными
ископаемыми.
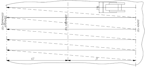
Остальные данные приведены на продольном профиле канала (рис.1).
1.2 Характеристика
производственных и хозяйственных условий района строительства
Строительство магистрального канала ведется в области в пяти километрах в
районе населённого пункта Краснооктябрьский Челябинской области.
Ближайшее ПМК от места строительства находится в 40 км.
В процессе строительства сеть возможность использования имеющихся у них
строительных машин и механизмов.
Дорога в районе строительства - грунтовая.
В полукилометре от строящегося канала находятся линии электропередач.
В ближайшем населенном пункте есть телеграф и телефон.
2. ВЫБОР
ТИПОВЫХ СЕЧЕНИЙ КАНАЛА
.1 Разбивка
канала на характерные участки
По условиям прохождения каналы могут быть полностью в выемке, в
полувыемке, в полунасыпи, полностью в насыпи с подсыпным дном - подушкой или
без подсыпки, когда отметки дна канала совпадают с отметкой поверхности земли
(частный случай).
Границей между двумя характерными соседними участками будет поперечное
сечение, удовлетворяющее одному из следующих условий:
а) средняя глубина выемки равна проектной глубине канала;
б) площадь сечения выемки канала равна площади сечения двух дамб с учетом
снятия растительного слоя и уплотнения грунта в дамбах, т.е. резервы и
кавальеры отсутствуют;
в) средняя глубина выемки с учетом снятия растительного слоя равна нулю
или средняя высота дамбы равна проектной глубине канала;
г) резко меняются проектные размеры поперечного сечения канала, например,
ширина по дну.
Для того, чтобы определить границы между участками канала в полувыемке и
в полунасыпи, находят глубину Нв, при которой площадь поперечного
сечения выемки будет равна площади поперечного сечения двух дамб:
SB = 2 • Sa,(1)
С учетом толщины снимаемого растительного слоя профильная площадь (м2)
поперечного сечения выемки будет:
SB=b(HВ-hpc) + m1(HВ-hpc) 2(2)
где Нв - глубина выемки канала, м.
С учетом уплотнения грунта до заданной плотности и потерь грунта при
транспортировке площадь поперечного сечения одной дамбы (м-)
определяется по формуле:
(3)
где Нд - высота дамб канала, м; γд - требуемая плотность грунтов в дамбах, т/м3
(γд
=1,65/); γе - плотность грунта в естественном
состоянии, т/м3 (γе =1,58); Кп - коэффициент, учитывающий
потери грунта при транспортировке (Кп = 1,01 ...1,05).
Обозначим полную строительную глубину канала через (Н), тогда высота дамб
(м) может быть выражена следующим образом:
НД = Н-НВ,(4)
Подставляя значения величин Sд (2) и (3)
в исходное уравнение (1) с использованием (4) и решая его относительно Нв,
находим искомую глубину выемки канала, а затем и высоту дамб канала.
4HВ-4*0.3 + 1,75*HВ2-1,75*2*0,3* HВ +1,75*0,3 2=1,75HВ2+2,95 HВ-
,0425=0
1, 096=1,781
-18,613
+47,09
3,53
- 15,66
+ 46,05= 0
Дискриминант:
D = b2 - a*c
= -15,662- 3,53 *46,05= 82,72В 1
= (-b+ √D) = (15,66+ √ 82,72) = 7 a 3,53В 2 = (-b- √D) = (15,66-i*√ 82, 72) =1,86 a 3,53
HВ 1 = 1,86 м
НД = 4-1,86=2,14 м
При глубине выемки более найденного значения Нв избытки грунта
следует укладывать в кавальеры, примыкающие к дамбам, или транспортировать его
на соседние участки канала, проходящие в полу насыпи или в насыпи. При меньшей
глубине выемки потребуется закладка резервов, если нет возможности привозить
грунт с участков канала, проходящих в полувыемке и в выемке.
Определив границы участков канала, отметки их:
I
участок - канал в насыпи
II
участок - канал в полунасыпи
III
участок - канал в глубокой выемке
IV
участок - канал в выемке
.2 Выбор
типовых сечений
После разбивки канала на характерные участки необходимо для каждого
участка выбрать типовое сечение. Это нужно для того, чтобы правильно подобрать
комплект машин для производства работ. Типовое сечение представляет собой
среднее по размерам поперечное сечение данного участка канала. Размеры типового
сечения можно определить по глубине выемки или высоте насыпи, или по площади
поперечного сечения. Если по рельефным условиям участок канала простой, без
резких колебаний глубины выемки или высоты насыпи, то типовое сечение можно
определить по средней глубине выемки (высоте насыпи), найденной как среднее
арифметическое из глубин канала на данном участке:
(5)
Нср=(0,9+0,1+1,2+3,3+4,3+5,35+5,35+4,4+1,4)/9=2,92 м
где Н1, Н2, ... , Нn - глубины канала (высоты насыпи) в точках перелома
рельефа местности по оси продольного профиля, м; n - количество точек перелома рельефа местности.
Если канал проходит в сложных рельефных условиях, то среднюю глубину
выемки (высоту насыпи) следует определять как средневзвешенное значение из
глубин канала на данном участке:
Hср.
взв =
(6)
где ll,l2,...lm - расстояние между точками перелома рельефа местности, м.
I
участок в насыпи
Hср.
взв1 =
=0,182 м
II
участок в полунасыпи
Hср.
взв2 =
=2,32 м
III
участок в глубокой выемке
Hср.
взв3 =
=4,7 м
IV
участок - канал в выемке
Hср.
взв3 =
=3,35 м
3.
ПРОИЗВОДСТВО СТРОИТЕЛЬНЫХ РАБОТ НА КАНАЛЕ
.1 Объемы
земляных работ
.1.1 Участок
канала в насыпи
1. Объем насыпи Vн, (м3):
Vн=
Ly ∙
, (38)
где b'д - ширина дамбы на
отметке дна канала, м; Вп - ширина основания под дамбами и каналом,
м; hн- толщина подсыпного дна, м;
b'д=ад+(т1+т2)
∙Н,(39)
Bп=b + 2∙ b'д
+ 2∙т2* hп(40)
hп = Нд - Н,(41)
b'д=3+(1,75+1,5)
∙4=16 м
Bп=4+ 2∙ 16 + 2∙1,5* 1= 39
м
hп = 5 - 4=1 м
Vр=Vн=
1020 ∙
= 53711,16 м3
2. Объемы и параметры резервов определяют, как и для канала в
полунасыпи формулы (28), (29).
Глубина резерва
(28)
где Вр - ширина резерва по верху и низу, м.
Вp = bp + 2 * mp Hp (29)
bp -ширина резерва по низу, назначается в пределах 6-10 метров.
16320Hр+2040H2р- 58607,16-1224 Hр
=0
H2р+8976 Hр- 58607,16=02р+4,4
Hр-28,729=0
D=134,276р=
3,6 м
Вp = 8 + 2 * 1 *3,6 =15,2 м
V’p =
V’p = 53711,16/2=26855,58 м3
Объем одной дамбы Vд (м3) с учетом толщины
снятого растительного грунта, можно определить по формуле:
(24)
где:
- средневзвешенная высота дамбы, м. bд - ширина дамбы по низу, м:
bд =ад+(m1+m2)*Н (25)
bд =3+(1,75+1,5)*4=16 м
33864 м3
3. Объем растительного грунта Vp.c (м3), снимаемого с основания насыпи и с
поверхности резервов:
Vp.c
= Ly ∙ hр.с. ∙ (Bп +2 ∙Вp ),(42)
Vp.c
= 1020 ∙ 0,3. ∙ (39 +2 ∙15,2 )= 21236,4 м3
Параметры кавальеров растительного грунта определяют, как и для канала в
полунасыпи формулы (31, 32).
(31)
bр.с =ар.с+2*mр.с*hр.с(32).
bр.с =1,2+2*1,5*0,3=2,1 м
=7,88 м
4. Объем рыхления грунта в основании насыпи Vpx (м3)
Vpx = Ly Bп hpx (43)
Vpx = 1020* 39* 0,35= 70186,2 м3
Площадь планировки (м2) определяют по формуле (34).
Sпл =Lу* (b+2* ад
+2* Н*
+2*Hд
)(34)
Sпз=1020*
(4 + 2*3+2*4*
+2*2,32
)= 35179,18 м2
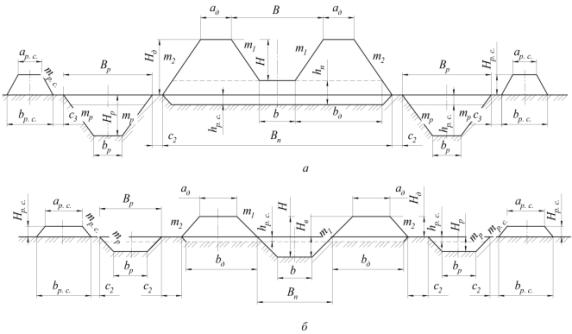
3.1.2 Участок канала в полунасыпи (рис. 3, а)
1. Объем выемки канала VB (м ) определяется по формулам (7), (8). В формуле (7) вместо Н
подставляем величину Hср
взвеш(в))
(7)
м3
где Ly - длина участка канала, м; В -
ширина канала по верху, м.
Рис. 2. Поперечное сечение участка канала: а - в насыпи, б - в полунасыпи
В1 = b + 2
• m1 Hср
взвеш(в)
В1 = 4+ 2 *1,75* 2,32= 12,12 м
2. Объем одной дамбы Vд (м3) с учетом толщины
снятого растительного грунта, можно определить по формуле:
(24)
где:
- средневзвешенная высота дамбы, м. bд - ширина дамбы по низу, м:
bд =ад+(m1+m2)*Н ср
взвеш(д) (25)
bд
=3+(1,75+1,5)*2,32=10,54 м
32872,75 м3
3. Объем резервов грунта Vp (м3):
Vp = 2*Vд -Vв, (26)
Vp = 2*32872,749-41122,536=24622,962 м3
Объем одного резерва грунта:
V’p = Vд -
, (27)
V’p = 32872,749 -41122,536/2=12311,481м3
Если же недостающий грунт частично или полностью привозится с соседних
участков канала, где есть его излишки, то закладывают меньшие резервы или их
совсем не закладывают.
Глубина резерва
(28)
где Вр - ширина резерва по верху и низу, м.
Вp = bp + 2 * mp Hp (29)
bp -ширина резерва по низу, назначается в пределах 6-10 метров.
38220Hр+5460H2р-36088,962-3276 Hр
=0
H2р+34944 Hр-36088,962=02р+6,4
Hр-17,7=0
D=106,24р=
3,83 м
Вp = 7 + 2 * 1 * 3,825=14,65 м
4. Объем растительного грунта Vpc. (м3 ), снимаемого с трассы канала, оснований
дамб и поверхности резервов:
Vp.c. = Ly • hpc • (B1 + 2 • bд + 2 • Bp), (30)
где B1 - ширина канала по дневной поверхности, м.
Vp.c. = 2730
*0,3* (12,12 + 2 *14,65 + 2 *10,9)= 51777,18 м3
Параметры кавальера растительного грунта определяются, как и для канала в
выемке, только учитывают два кавальера грунта, а не один.
(31)
bр.с =ар.с+2*mр.с*hр.с(32).
bр.с =1,2+2*1,5*0,3=2,1 м
=19,23 м
5. Объем разрыхленного грунта в основании дамб Vpx (м3):
Vpx=2* Ly* hpx * bд,(33)
где hpx - глубина рыхления, м. (hp х=0,35 м).
Vpx=2* 2730* 0,35 * 14,65=27996,15 м3
6. Площадь планировки дна и откосов выемки канала, откосов и гребня дамб Sпл (м2):
Sпл =Lу* (b+2* ад
+2* Н*
+2*Hд
)(34)
Sпз=2730*
(4 + 2*3+2*4*
+2*2,32
)= 94156,05 м2
3.1.3 Участок канала с корытом (рис. 2, б)
1. Объем выемки корыта Vкор (м3):
(18)
где В' - ширина корыта по верху, м; b' - ширина корыта по низу, м; Н' -
глубина корыта с учетом растительного грунта, м (в учебных целях принимаем Н'=
1 ...1,5 м.
b' = B + 2*c; (19)
В' = b'+ 2* m1'*H' (20)
b' =
18 + 2*3,5=25 м;
В' = 25+ 2*1,5*1,4=29,2 м
=42894,6 м3
2. Объем выемки канала VB (м3):
(21)
=64680 м3
3. Объем кавальера VK (м3) с учетом разрыхления грунта:
Vк = (VB+Vкор)*Kp (22)
Vк =(64680+42894,6)*1,25=134468,25 м3
Необходимо помнить, что если часть грунта транспортируется на соседний
участок, то в кавальер отсыпается не весь объем (VB + Vкор ). Величины bK, Нк определяют по формулам (11) и (12).
bк =аk+(m2+m3)*Нk.(11)
bк =5+(1,5+6)* 4,32=37,4 м
(12)
Нk2+1,33 Нk- 24,393=0= b 2 - 4ac = 99,342
Нk 1 = -b + √D = -1 + 9.967 =
4.32
a2 Ч (1)
Нk= 4,32 м
4. Объем растительного грунта Vp с (м3), высоту и ширину кавальера растительного грунта
определяют по выражениям (13), (14), (15), заменив параметр В на В'
Vp. c
=Ly hp.c. (В' + bK).
Vp. c
=1470*0,3 (29,2 + 37,4)= 29370,6 m3
(14)
где bр.с. - ширина кавальера растительного
грунта по низу, м:
bр.с =ар.с+2*mр.с*Нр.с (15)
Нр. с.2+0,8 Нр. с.- 16,65=0
D=67,24
Нр. с.=3,7 м
bр.с =1,2+2*1,5*3,7=12,3 м
. Площади планировки откосов и дна канала Sпл (м2), гребня и откосов кавальера SK (м2) определяют по
формулам (16) и (17).
Площадь планировки откосов и дна канала Sпл (м2):
Sпл =Lу*(b+2*H*
)(16)
Sпл =
1470*(4+2*4*
)= 29583,02 м2
Площадь планировки гребня и откосов кавальера SK (м2):
Sк=Lу* (аk + Нk
+
)(17)
Sк=1470*
(5 + 4,32*
+
)= 29091,3 м2
. Площадь планировки откосов и берм корыта Sкор (м-):
Sкор
=2*Lу*(c+ H'*
) (23)
Sкор
=2*1470*(3,5+ 1,4*
)= 18586,06 м2
.1.4 Участок
канала в выемке (рис. 2 а)
1. Объем выемки канала Vв (м3)
(7)
м3
где Ly - длина участка канала, м; В -
ширина канала по верху, м.
В = b + 2 • m1 Н.(8)
В = 4+ 2 *1,75* 4=18 м
. Объем кавальера VK (м3) с учетом первоначального разрыхления грунта:
VK = VB*Kp, (9)
VK = 23587,5 *1,25=29484,375 м3
где Кр - первоначальный коэффициент разрыхления грунта.
Также объем кавальера VK (м3) можно определить по формуле:
=29502 м3
где bк - ширина кавальера по низу, м.
bк =аk+(m2+m3)*Нk.(11)
bк =5+(1,5+6)* 2,64=24,8 м
Зная ширину кавальера ак по верху, можно определить его высоту
Нк, и наоборот.
(12)
Нk2+1,33 Нk- 10,483=0= b 2 - 4ac = 43,711
Нk 1= -b + √D=-1 +
6.61= 2.64
2a2 Ч (1)
Нk 2=-b - √D=-1 - 6.61= -3.97
a2 Ч (1)
Нk= 2,64 м
Подставляя формулу (11) в формулу (12) можно рассчитать Нк или
bк.
Необходимо помнить, если часть грунта транспортируется на соседний
участок, то в кавальер отсыпается не весь объем VB.
3. Объем растительного грунта, снятого с трассы канала и основания кавальера
Vp. c. (m3):
Vp. c.=Ly hp.c. (B + bK).(13)p. c.=750*0,3 (18+ 24,8)= 9630 m3
Зная ширину кавальера растительного грунта ар с по верху,
можно определить его высоту Нр с., с учетом разрыхления, и наоборот:
(14)
где bр.с. - ширина кавальера растительного
грунта по низу, м:
bр.с =ар.с+2*mр.с*Нр.с (15)
Нр. с.2+0,8 Нр. с.- 10,7=0
D=43.44
Нр. с.=2,9 м
bр.с =1,2+2*1,5*2,9=9,9 м
Площадь планировки откосов и дна канала Sпл (м2):
Sпл =Lу*(b+2*H*
)(16)
Sпл = 750*(4+2*4*
)= 15093,38 м2
Площадь планировки гребня и откосов кавальера SK (м2):
SK =Lу* (аk + Нk
+
)(17)K =750* (5 + 2,64
+
)= 12302,9 м2
Все объемы земляных работ по участкам канала сводят в ведомость (табл.
3).
Рис. 3. Поперечное сечение участка канала: а - в выемке, б - в глубокой
выемке (с корытом)
Таблица 3
Сводная ведомость объемов земляных работ по строительству канала
|
№ п/п
|
Наименование работ
|
Объемы работ
|
|
|
единица измерения
|
количество
|
|
I. Участок канала в насыпи
|
|
1
|
Снятие растительного грунта в основании насыпи и с
поверхности резервов
|
м3
|
21236,4
|
|
2
|
Рыхление грунта в основании дамб
|
м3
|
70186,2
|
|
3
|
Разработка грунта в резервах с перемещением в насыпь
|
м3
|
53711,16
|
|
4
|
Послойное разравнивание грунта в насыпи
|
м3
|
53711,16
|
|
5
|
Доувлажнение грунта
|
м3
|
13427,79
|
|
6
|
Послойное уплотнение грунта в основании и теле насыпи
|
м3
|
16113,348
|
|
7
|
Планировка дна и откосов насыпи
|
м2
|
35179,18
|
|
8
|
Засыпка резервов растительным грунтом
|
м3
|
21236,4
|
|
II. Участок канала в полунасыпи
|
|
1
|
Снятие растительного грунта с трассы канала и с поверхности
резервов
|
м3
|
51777,18
|
|
2
|
Рыхление грунта в основание дамб
|
м3
|
27996,15
|
|
3
|
Разработка грунта в выемке канала с перемещением в дамбы
|
м3
|
41122,536
|
|
4
|
Разработка грунта в резервах с перемещением в дамбы
|
м3
|
24622,962
|
|
5
|
Послойное разравнивание грунта в дамбах
|
м3
|
32872,75
|
|
6
|
Доувлажнение грунта в дамбах
|
м3
|
8218,19
|
|
7
|
Послойное уплотнение грунта в основании и теле дамбы
|
м3
|
9861,825
|
|
8
|
Планировка дна и откосов выемки канала, гребня и откосов
дамб
|
м2
|
94156,05
|
|
9
|
Засыпка резервов растительным грунтом
|
м3
|
51777,18
|
|
III. Участок канала в выемке с корытом
|
|
1
|
Снятие растительного грунта с трассы канала и с основания
кавальера
|
м3
|
29370,6
|
|
2
|
Разработка грунта в выемке канала с перемещением в кавальер
|
м3
|
42894,6
|
|
3
|
Планировка дна и берм канала
|
м2
|
18586,06
|
|
4
|
Разработка грунта в выемке канала с перемещением в кавальер
|
м3
|
134468,25
|
|
5
|
Планировка дна и откосов канала
|
м2
|
29583,02
|
|
6
|
Разравнивание отвала грунта и формирование кавальера
|
м3
|
42894,6
|
|
7
|
Планировка гребня и откосов кавальера
|
м2
|
29091,3
|
|
8
|
Разравнивание растительного грунта
|
м3
|
29370,6
|
|
IV. Участок канала в выемке
|
|
1
|
Снятие растительного грунта с трассы канала и с основания
кавальера
|
м3
|
9630
|
|
2
|
Разработка грунта в выемке канала с перемещением в кавальер
|
м3
|
23587,5
|
|
3
|
Планировка дна и откосов канала
|
м2
|
15093,38
|
|
4
|
Разравнивание отвала грунта и формирование кавальера
|
м3
|
29502
|
|
5
|
Планировка гребня и откосов кавальера
|
м2
|
12302,9
|
|
6
|
Разравнивание растительного грунта
|
м3
|
9630
|
Перечень всех перечисленных работ в ведомости является ориентировочным.
Если излишки грунта с одних участков будут перемещать на участки, где его
недостаточно, то в этот перечень работ и их объемы следует внести уточнение.
Например:
Разработка грунта в выемке канала, м3 100000
в том числе:
а) с перемещением в дамбы, м3 30000
б) с перемещением на участок П (канал в полунасыпи), м3 70000
Но эти уточнения можно сделать только после составления баланса грунтовых
масс.
3.2 Баланс
грунтовых масс
В результате составления баланса, суммарный объем насыпей равен
суммарному объему выемок на объекте.
Составляем баланс грунтовых масс в табличной форме (табл. 4).
Таблица 4
Баланс грунтовых масс
|
№ п/п
|
Выемки
|
Наименование насыпей
|
|
наименование участков и выемок
|
длина, м
|
объем, м3
|
дамбы
|
кавальер
|
Всего, м3
|
|
|
|
|
участок канала в полунасыпи
|
участок канала в насыпи
|
постоянный
|
временный
|
|
|
I. Участок канала в насыпи
|
|
1.
|
Выемка растительного грунта
|
1020
|
21236,4
|
|
|
|
21236,4
|
21236,4
|
|
2.
|
Выемка грунта в резервах
|
|
53711,16
|
|
53711,16
|
|
|
53711,16
|
|
Итого
|
|
74947,56
|
|
|
|
|
74947,56
|
|
II. Участок канала в полунасыпи
|
|
1.
|
Выемка растительного грунта
|
2730
|
51777,18
|
|
|
|
51777,18
|
51777,18
|
|
2.
|
Выемка канала
|
|
41122,536
|
41122,536
|
|
|
|
41122,536
|
|
3.
|
Выемка резерва
|
|
24622,962
|
24622,962
|
|
|
|
24622,962
|
|
Итого
|
|
117522,678
|
|
|
|
|
117522,67
|
|
III. Участок канала с корытом
|
|
1.
|
Выемка растительного грунта
|
1470
|
29370,6
|
|
|
|
29370,6
|
29370,6
|
|
2.
|
Выемка корыта
|
|
42894,6
|
|
|
42894,6
|
|
42894,6
|
|
3.
|
Выемка канала
|
|
64680
|
|
|
64680
|
|
64680
|
|
Итого
|
|
136945,2
|
|
|
|
|
136945,2
|
|
IV. Участок канала в выемке
|
|
1.
|
Выемка растительного грунта
|
750
|
9630
|
|
|
|
9630
|
9630
|
|
2.
|
Выемка канала
|
|
23587,5
|
|
|
23587,5
|
|
23587,5
|
|
Итого
|
|
33217,5
|
|
|
|
|
33217,5
|
3.3
Составление технологических карт
Технологические карты составляют для типовых сечений канала с исчислением
объемов работ обычно на 1000 или 100 м погонной длины, но можно и на участок
канала конкретной длины. Составляют минимум два варианта карт для производства
работ различными комплектами машин
На основании технологической карты можно сделать вывод что наиболее
экономически целесообразные и выгодные участки I и IV,
значительные затраты вышли у участков II и III. По участку I, в насыпи произведём перерасчет по 2-му варианту с двумя
другими машинами.
оросительный канал строительство техника
Таблица 4
Технологическая карта на
производство земляных работ по участкам канала в выемке
|
Схемы
|
Наименование операций
|
марка машин
|
объем работ
|
норма и ее обоснование
|
потребно машино-смен
|
Всего челов. смен
|
стоимость, руб
|
|
|
|
|
|
|
|
Одной маш.-см
|
всего
|
|
1.Участок канала в насыпи
|
|
|
1. Снятие растительного слоя с трассы канала и поверхности
резервов
|
Бульдозер ДЗ-9, мощность 118 (160), марка трактора Т-180
|
21236,4
|
Е2-1-22
|
|
32
|
157,64∙8= 1261,12
|
40072
|
|
|
2. Рыхление грунта в основании дамб
|
Рыхлитель ДП-18
|
70186,2
|
Е2-1-1
|
|
5
|
77,25∙8= 618
|
2707
|
|
|
4. Разработка грунта в резервах с перемещением в насыпь
|
Скрепер ДЗ-13 вместимость ковша15м3,ширина
захвата2,93м, глубина резания 0,35, мощность 265(360) кВт(л.с)
|
53711,16
|
Е2-1-21
|
|
153
|
326,4∙8= 2611,2
|
399696
|
|
|
5. Послойное разравнивание грунта в насыпи
|
Бульдозер Д-384,мощность 221(300),марка трактора ДЭТ-250
|
53711,16
|
Е2-1-28
|
|
17
|
363,06∙8=2904,48
|
48737
|
|
|
5.Доувлажнение грунта в дамбах
|
КДМ-130В,вместимость 6м3
|
13427,79
|
ГЭСН 81-02-01-2001, табл. ГЭСН 01-02-006
|
|
23
|
746,7∙8= 5973,6
|
139472
|
|
|
6.Послойное уплотнение грунта в основании и теле насыпи
|
Самоходный каток ДУ-39А (Д-703)
|
16113,348
|
Е2-1-31;
|
|
6
|
72,8∙8= 582,4
|
3168
|
|
|
7.Планировка дна и откосов насыпи
|
Бульдозер ДЗ-9, мощность 118(160), марка трактора Т-180
|
35179,18
|
Е2-1-40
|
|
2
|
157,64∙8=1261,12
|
1715
|
|
|
8.Засыпка резервов растительным грунтом
|
Бульдозер ДЗ-9, мощность 118(160), марка трактора Т-180
|
21236,4
|
Е2-1-34
|
|
14
|
157,64*8=1261,12
|
|
Сумма:
|
252
|
|
652 605
|
|
2. Участок канала в полунасыпи
|
|
|
1. Снятие растительного слоя с трассы канала и поверхности
резервов
|
Бульдозер Д-384,мощность 221(300),марка трактора ДЭТ-250
|
51777,18
|
ЕниР Е2-1-22
|
|
66
|
363,06∙8=2904,48
|
192335
|
|
|
2. Рыхление грунта в основании дамб
|
Рыхлитель ДП-18
|
27996,15
|
ЕниР Е2-1-1
|
|
2
|
77,25∙8= 618
|
1297,8
|
|
|
3. Разработка грунта в выемке канала с перемещением в дамбы
|
Скрепер ДЗ-26 (Д-523). вместимость ковша10м3,ширина
захвата 2,80м,глубина резания 0,3, мощность 132(180) кВт(л.с)
|
41122,536
|
ЕниР Е2-1-21
|
|
249
|
277,69∙ 8= 2221,52
|
553270
|
|
|
4.Разработка грунта в резервах с перемещением в дамбы
|
Скрепер ДЗ-26(Д-523) , мощность 132(180) кВт(л.с)
|
24622,962
|
ЕниР Е2-1-21
|
|
149
|
277,69∙8=2221,52
|
331273
|
|
|
5. Доувлажнение грунта в дамбах
|
КДМ-130В,вместимость 6м3
|
8218,19
|
ГЭСН 81-02-01-2001, табл.ГЭСН 01-02-006
|
|
14
|
746,7∙8= 5973,6
|
85362
|
|
|
6. Послойное уплотнение грунта в осн. и теле дамб
|
Самоходный каток ДУ-39А (Д-703)
|
9861,825
|
Е2-1-31
|
|
3
|
72,8∙8= 582,4
|
1940
|
|
|
7. Планировка дна и откос. выемки канала, гребня и откосов
дамб
|
Бульдозер ДЗ-9, мощность 118(160), марка трактора Т-180
|
94156,05
|
Е2-1-40
|
|
4
|
157,64∙8= 1261,12
|
20993
|
|
|
8. Засыпка резервов растительного грунта
|
Бульдозер Д-384,мощность 221(300),марка трактора ДЭТ-250
|
51777,18
|
Е2-1-34
|
|
28
|
363,06∙8= 2904,48
|
80599
|
|
Сумма:
|
515
|
|
1456 016
|
|
3. Участок канала в глубокой выемке
|
|
|
1. Снятие растительного слоя с трассы канала
|
Бульдозер ДЗ-9, мощность 118(160), марка трактора Т-180
|
29370,6
|
ЕниР Е2-1-22
|
|
80
|
1261,12
|
100230
|
|
|
2. Разработка грунта в выемке корыта с перемещением в
кавальер
|
Скрепер ДЗ-11 (Д-357Г) .вместимость ковша 9 м3,
ширина захвата 2,72м, глубина резания 0,3, мощность 132(180) кВт(л.с)
|
42894,6
|
ЕНиР Е2-1-21
|
|
223
|
2611,6
|
582557
|
|
|
3. Планировка откосов и берм корыта
|
Бульдозер ДЗ-9, мощность 118(160), марка трактора, Т-180
|
18586,06
|
Е2-1-40;
|
|
7
|
157,64∙8=1261,12
|
9083
|
|
|
4. Разработка грунта в выемке с перемещением в кавальер
|
Скрепер ДЗ-13 вместимость ковша15м3,ширина
захвата2,93м, глубина резания 0,35, мощность 265(360) кВт (л.с)
|
134468,25
|
|
|
497
|
326,4∙8= 2611,2
|
1296962
|
|
|
5. Планировка дна и откосов канала
|
Автогрейдер ДЗ-99 Длина отвал 3,04м, Высота отвала 0,5
Глубина резани 0,2 Радиус поворота11 Мощность двигателя кВт (л.с.) 66 (90)
|
29583,02
|
Е2-1-6
|
|
11
|
759,92
|
8091
|
|
|
6.Разравнивание отвала грунта и формирование кавальера
|
Бульдозер ДЗ-24А, мощность 132 (180), марка трактора Т-180
|
42894,6
|
Е2-1-28
|
|
21
|
181,79∙8=1454,32
|
9744
|
|
|
7. Планировка гребня и откосов кавальера
|
Бульдозер ДЗ-24А, мощность 132 (180), марка трактора Т-180
|
29091,3
|
Е2-1-40
|
|
1
|
181,79
|
205
|
|
|
8. Разравнивание растительного слоя
|
Бульдозер ДЗ-9, мощность 118(160), марка трактора Т-180
|
29370,6
|
Е2-1-28 0,71
|
|
26
|
1261,12
|
32873
|
|
Сумма:
|
866
|
|
2039 745
|
|
4.Участок канала в выемке
|
|
|
1.Снятие растительного грунта с трассы канала и основания
кавальера
|
Бульдозер ДЗ-24А (Д-521А), мощность 132 (180) кВт (л.с) ,
марка трактора Т-180
|
9630
|
Е2-1-22
|
|
19
|
181,79∙8=1454,32
|
27632
|
|
|
2.Разработка грунта в выемке канала с перемещением в
кавальер
|
Скрепер ДЗ-26(Д-523).вместимость ковша10м3,ширина
захвата 2,80м,глубина резания 0,3, мощность 132(180) кВт(л.с)
|
23587,5
|
Е2-1-21
|
|
40
|
277,69∙8=2221,52
|
89749
|
|
|
3.Планировка дна и откосов канала
|
Автогрейдер ДЗ-99 Длина отвал3,04м, Высота отвала0,5
Глубина резани0,2 Радиус поворота11 Мощность двигателя кВт (л.с.)66(90)
|
15093,38
|
Е2-1-6
|
|
6
|
94,99∙8= 759,92
|
4157
|
|
|
4. Разравнивание отвала грунта и формирование кавальера
|
Бульдозер ДЗ-24А, мощность 132 (180), марка трактора Т-180
|
29502
|
Е2-1-28
|
|
15
|
181,79∙8=1454,32
|
21451
|
|
|
5. Планировка гребня и откосов кавальера
|
Бульдозер ДЗ-24А, мощность 132 (180), марка трактора Т-180
|
9630 12302,9
|
Е2-1-40
|
|
1
|
181,79∙8=1454,32
|
1454,32
|
|
|
8. Разравнивание растительного слоя
|
Бульдозер ДЗ-9, мощность 118(160), марка трактора Т-180
|
9630
|
Е2-1-28 0,71
|
|
9
|
1261,12
|
10778
|
|
Сумма:
|
90
|
|
154 640
|
|
|
|
|
|
|
|
|
|
|
|
|
|
|
|
Таблица 5
Пересчет технологической карты по другому варианту на участке канала в
глубокой выемке
|
Схемы
|
Наименование операций
|
марка машин
|
объем работ
|
норма и ее обоснование
|
Потребно всего
|
стоимость, руб.
|
|
|
|
|
|
машино-смен
|
Челов.-смен
|
Одной маш.-см
|
всего
|
|
1. Участок канала в насыпи
|
|
|
1. Снятие растительного слоя с трассы канала и поверхности
резервов
|
Бульдозер ДЗ-9, мощность 118(160), марка трактора, Т-180
|
21236,4
|
Е2-1-22
|
|
32
|
157,64∙8= 1261,12
|
40072
|
|
|
2. Рыхление грунта в основании дамб
|
Рыхлитель ДП-18 мощность 132 (179), трактор
|
70186,2
|
Е2-1-1
|
|
5
|
77,25∙8= 618
|
2707
|
|
|
3. Разработка грунта в резервах с перемещением в насыпь
|
Экскаватор ЭО-5122 Вместимость ковша 1,6; Наиб. глубина
копания 6 м; Наиб. радиус копания 10,1 м; Наиб. высота выгр. 5; Мощн. кВт
(л.с.) 125 (170)
|
53711,16
|
Е2-1-9
|
|
107
|
234,15∙8= 1873,2
|
201223
|
|
|
4. Послойное разравнивание грунта в насыпи
|
Бульдозер Д-384,мощность 221(300),марка трактора ДЭТ-250
|
53711,16
|
Е2-1-28
|
|
17
|
363,06∙8=2904,48
|
48737
|
|
|
5. Доувлажнение грунта в дамбах
|
КДМ-130В,вместимость 6м3
|
13427,79
|
ГЭСН 81-02-01-2001, табл. ГЭСН 01-02-006
|
|
23
|
746,7∙8= 5973,6
|
139472
|
|
|
6. Послойное уплотнение грунта в основании и теле насыпи
|
Самоходный каток ДУ-39А (Д-703)
|
16113,348
|
Е2-1-31;
|
|
6
|
72,8∙8= 582,4
|
3168
|
|
|
7. Планировка дна и откосов насыпи
|
Автогрейдер ДЗ-99 Мощность двигателя кВт (л.с.)66(90)
|
35179,18
|
Е2-1-39;
|
|
1
|
94,99∙8= 759,92
|
760
|
|
|
8.Засыпка резервов растительным грунтом
|
Бульдозер ДЗ-9, мощность 118(160), марка трактора, Т-180
|
21236,4
|
Е2-1-34
|
|
14
|
157,64*8=1261,12
|
17038
|
|
Сумма:
|
205
|
|
453 177
|
|
|
|
|
|
|
|
|
|
|
Расчёт карты по второму варианту предоставляет большую экономичность
работ, поэтому принимаем его.
3.4
Комплектование машин
Полученные в технологических картах данные о потребных ресурсах позволяют
решить вопрос о количественном составе комплекта машин. Далее необходимо
произвести комплектование машин.
Комплект машин для работ в насыпи
|
Цикл работы
|
Наименование операций
|
Наименование машин
|
Количество маш-см
|
Количество механиков в комплекте
|
|
|
|
|
По Расчету
|
С округлениями
|
|
Подготовительные работы
|
Снятие растительного грунта с трассы канала и с основания
кавальера
|
Бульдозер ДЗ-9.
|
32
|
6,4
|
3
|
|
Рыхление грунта в основании дамб
|
Рыхлитель ДП-18
|
5
|
1
|
1
|
|
Основные работы
|
Разработка грунта в насыпи канала
|
Экскаватор ЭО-5122
|
107
|
6,3
|
3
|
|
Послойное разравнивание грунта в дамбах
|
Бульдозер Д-384
|
17
|
1
|
1
|
|
Доувлажнение грунта в дамбах
|
КДМ-130В, вместимость 6 м3.
|
23
|
1,35
|
2
|
|
Заключительные работы
|
Послойное уплотнение грунта в основании и теле дамбы
|
Самоходный каток ДУ-39А (Д-703)
|
6
|
6
|
3
|
|
Планировка дна и откосов насыпи
|
Автогрейдер ДЗ-99
|
1
|
1
|
1
|
Бульдозер ДЗ-24А.
|
14
|
14
|
3
|
Комплект машин для работ в полунасыпи
|
Цикл работы
|
Наименование операций
|
Наименование машин
|
Количество маш-см
|
Количество механиков в комплекте
|
|
|
|
|
По Расчету
|
С округлениями
|
|
Подготовительные работы
|
Снятие растительного слоя с трассы канала и поверхности
резервов
|
Бульдозер Д-384.
|
66
|
33
|
3
|
|
Рыхление грунта в основании дамб
|
Рыхлитель ДП-18
|
2
|
1
|
1
|
|
Основные работы
|
Разработка грунта в выемке канала с перемещением в дамбы
|
Скрепер ДЗ-26
|
249
|
83
|
3
|
|
Разработка грунта в резервах с перемещением в дамбы
|
Скрепер ДЗ-26
|
149
|
50
|
3
|
|
Доувлажнение грунта в дамбах
|
КДМ-130В, вместимость 6м3.
|
143
|
48
|
3
|
|
Послойное уплотнение грунта в осн. и теле дамб
|
Самоходный каток ДУ-39А
|
3
|
1
|
1
|
|
Заключительные работы
|
Планировка дна и откос. выемки канала, гребня и откосов
дамб
|
Бульдозер ДЗ-9.
|
4
|
1
|
1
|
|
Засыпка резервов растительного грунта
|
Бульдозер Д-384
|
28
|
7
|
3
|
Комплект машин для работ в глубокой выемке
|
Цикл работы
|
Наименование операций
|
Наименование машин
|
Количество маш-см
|
Количество механиков в комплекте
|
|
|
|
|
По Расчету
|
С округлениями
|
|
Подготовительные работы
|
Снятие растительного грунта с трассы канала и с основания
кавальера
|
Бульдозер ДЗ-24А.
|
80
|
1
|
1
|
|
Основные работы
|
Разработка грунта в выемке канала с перемещением в кавальер
|
Скрепер ДЗ-11
|
223
|
32
|
3
|
|
Планировка откосов и берм корыта
|
Бульдозер ДЗ-9
|
7
|
1
|
1
|
|
Разработка грунта в выемке с перемещением в кавальер
|
Скрепер ДЗ-13
|
497
|
71
|
3
|
|
Планировка дна и откосов канала
|
Автогрейдер ДЗ-99
|
11
|
1,6
|
2
|
|
Разравнивание отвала грунта и формирование кавальера
|
Бульдозер ДЗ-24А.
|
21
|
3
|
3
|
|
Заключительные работы
|
Планировка гребня и откосов кавальера
|
Бульдозер ДЗ-24А.
|
1
|
1
|
|
|
Разравнивание растительного грунта
|
Бульдозер ДЗ-9.
|
26
|
26
|
|
Комплект машин для работ в выемке
|
Цикл работы
|
Наименование операций
|
Наименование машин
|
Количество маш-см
|
Количество механиков в комплекте
|
|
|
|
|
По Расчету
|
С округлениями
|
|
Подготовительные работы
|
Снятие растительного грунта с трассы канала и с основания
кавальера
|
Бульдозер ДЗ-24А.
|
19
|
1
|
1
|
|
Основные работы
|
Разработка грунта в выемке канала с перемещением в кавальер
|
Скрепер ДЗ-26
|
40
|
7
|
3
|
|
Планировка дна и откосов канала
|
Автогрейдер ДЗ-99
|
6
|
1
|
1
|
|
Разравнивание отвала грунта и формирование кавальера
|
Бульдозер ДЗ-24А.
|
15
|
2,5
|
2
|
|
Заключительные работы
|
Планировка гребня и откосов кавальера
|
Бульдозер ДЗ-24А.
|
1
|
1
|
1
|
|
Разравнивание растительного грунта
|
Бульдозер ДЗ-24А.
|
9
|
9
|
3
|
3.5 Схемы
производства земляных работ
. Снятие растительного грунта в основании насыпи и с поверхности резервов
бульдозером ДЗ-9
. Рыхление грунта в основании дамб рыхлителем ДП-18
. Разработка грунта в резервах с перемещением в насыпь экскаватором
ЭО-5122
4. Послойное разравнивание грунта в насыпи
. Доувлажнение грунта
6. Послойное уплотнение грунта катком ДУ-39А
. Планировка дна и откосов насыпи автогрейдером ДЗ-99
. Засыпка резервов растительным грунтом
Рис. 4 .Изометрическая принципиальная схема раскладки плит по каналу
3.6 Облицовка
канала
.6.1
Конструкция облицовки
Одним из эффективных способов борьбы с фильтрацией воды из оросительных
каналов является устройство противофильтрационных покрытий с применением
полимерных пленок, подстилающих грунтовый слой, и монолитного бетона или
сборных железобетонных плит. В качестве таких пленок применяют полиэтиленовые
толщиной 0,2 - 0,4 мм и шириной 1,5 -8 м, поливинилхлоридные толщиной 0,25;
0,5; 0,7 мм и шириной 1,35 м.
Сборные железобетонные плиты позволяют повысить темпы строительства,
способствуют максимальной индустриализации и механизации строительного
процесса. В таблице 11 приведены некоторые типоразмеры таких плит.
Таблица 11
Типоразмеры сборных железобетонных плит
|
Марка плиты
|
Размеры, мм
|
|
длина
|
ширина
|
толщина
|
|
ПК-30-5А
|
3000
|
500
|
60
|
|
ПК-30-20
|
3000
|
2000
|
60
|
|
ПК-30-15
|
3000
|
1500
|
80
|
|
ПК-30-20
|
3000
|
2000
|
80
|
|
ПК-30-25
|
3000
|
2500
|
80
|
|
ПКУ-30-15
|
3000
|
1500
|
100
|
|
ПКУ-30-20
|
3000
|
2000
|
100
|
|
ПКУ-30-25
|
3000
|
2500
|
100
|
|
ПКУ-40-20
|
4000
|
2000
|
60
|
|
НПК-50-20
|
5000
|
2000
|
60
|
|
НПК-60-10
|
6000
|
1000
|
60
|
|
НПК-60-15
|
6000
|
1500
|
60
|
|
НПК-60-20
|
6000
|
2000
|
60
|
|
НПВК
|
6000
|
2740
|
80
|
На дно и откосы канала ПКУ-40-20 укладываются вдоль оси канала
Размеры: длина - 4000 мм
ширина - 2000 мм
высота - 60 мм
Стоимость плиты - 69,2 руб.
.6.2
Количество материалов для облицовки канала
Количество плит определенной марки в зависимости от их расположения по
отношению к оси канала (вдоль или поперек) подсчитывают по следующим
выражениям:
(44)
(45)
где nв, nп - количество плит соответственно
вдоль и поперек оси канала; L -
длина участка облицовки, м; bп - длина плиты, м; ап -
ширина плиты, м; аш - ширина шва между плитами, м; nрв, nрп - соответственно количество рядов плит определенной марки,
уложенных вдоль и поперек оси канала.
L=210+810+300+1950+660+585+195+390+840=5940
м
N
дно=5940/(2+0,1)*1=2829 шт.
N
откосы =5940/(3+0,1)*3=5749 шт.
=1474 шт.
= 5854 шт.
Объем бетонной смеси V (м3):
а) для заделки поперечных швов между плитами определенной марки
Vп.ш.= аш *hш (nв * bп +nп*ап), (46)
где hш - толщина шва, м.
Vп.ш.= 0,03 *0,7* (1474 * 2 +5854*4)=
553,64 м3
б) для заделки продольных швов между плитами (между рядами плит)
(47)
где аш з. - ширина бетонируемой полосы между заплечиком и
примыкающей к нему плитой, м; аш.п.. - ширина бетонируемой полосы
между плитой, образующими стык в высоте подошвы выемки канала, м.
=3451,14 м3
в) для устройства заплечиков
Vт=2*aз*hз*L, (48)
где aз и hз - ширина и толщина заплечиков, м.т=2*0,3*0,2*5940=712,8
м3
Количество полимерной пленки Sп. п.. (м2):
Sп.
п.=(2*l0+b +
0,4)*L, (49)
где l0 - длина откосов канала, м; b - ширина по дну канала, м.
Sп.
п.=(2*8,1+4 +
0,4)*5940=122364 м2
Количество прокладочного материала Sп. м..M
(м2):
Sп.
м. =L[(аш +0,1)*(∑ nр.в. +∑ nрп -1)+2*( ашп +0,1)]+( аш +0,1)*[ ап
* *(∑
nв +1)+ bп *(∑ nп +1)] (50)
Sп.
м. =5940*((0,03
+0,1)*( 1. + 1 -1)+2*( 0,2 +0,1))+( 0,03 +0,1)*( 4 *
(1474 +1)+ 2 *( 5854 +1))= 6625,5 м2
Количество материалов, потребное для выполнения облицовочных работ,
сводим в табл. 12.
Таблица 12
Материалы дли облицовки канала
|
№п/п
|
Название материала
|
Размерность
|
Количество
|
|
1.
|
Железобетонные плиты:
|
|
|
|
а) ПКУ -40-20
|
шт.
|
14142
|
|
б)НПК...
|
шт.
|
|
|
2.
|
Бетонная смесь
|
м3
|
4471,74
|
|
3.
|
Полимерная пленка
|
м2
|
122364
|
|
4.
|
Прокладочный материал (рубероид, толь и т.д.)
|
м2
|
6625,5
|
3.6.3
Подбор крана
Подъемные краны выбирают по необходимой грузоподъемности, вылету стрелы и
требуемой высоте подъема:
а) грузоподъемность крана GK должна соответствовать массе поднимаемого груза (плиты или бадьи с
бетонной смесью):
Gк>Gг, (51)
где Gг - масса груза, т.
Gг=4*2*0,06*2500=1200 кг=1,2 т
б) необходимая высота подъема крюка Н (м):
H = hc+hг+ l0 + hз (52)
где hc - превышение наивысшей отмелей
сооружения над отметкой стоянки крана, м; hг - высота поднимаемого груза в монтажном положении, м; l0- длина строп (вертикальная проекция длины стропов), м
/ l0 - 2,5..3 м/; hз - запас для свободного переноса груза над наивысшей точкой
сооружения, м (hз = 0,5 м).
H
=4+4,5+0,5+0,4+2,6+0,5=12,5 м
в) требуемый вылет стрелы R (м):
R=В0+
+ b2, (53)
где
В0 - ширина зоны бетонирования или укладки плит, м; b1 - ширина полосы, занимаемой ходовой частью крана, м; b2 -запас между краном (от края гусениц и колес или
опорных лап) и откосом канала, м (b2 = 0,5.. .1 м).=18+
+0,5=19,75
м
Для
оценки выбранного крана по грузоподъемности следует пользоваться коэффициентом
использования грузоподъемности крана:
Кгр.=
≥0,35 (54)
где:
Gгmax - масса наиболее
тяжелого груза, поднимаемого краном при облицовочных работах, т.
Кгр.=
=0,53≥0,35
Выбираем
пневмоколесный кран К-161 и К-161С
Техническая характеристика крана К-161
|
Грузоподъемность, т:
|
|
|
на опорах:
|
|
|
при наименьшем вылете крюка
|
16
|
|
при наибольшем вылете крюка
|
3,75
|
|
без опор:
|
|
|
при наименьшем вылете крюка
|
9
|
|
при наибольшем вылете крюка
|
2,5
|
|
Вылет крюка, м:
|
|
|
наименьший
|
3,75
|
|
наибольший
|
10
|
|
Высота подъема крюка, м:
|
|
|
при наименьшем вылете крюка
|
8,8
|
|
при наибольшем вылете крюка
|
4
|
|
Скорости:
|
|
|
подъема основного крюка, м/мин
|
10
|
|
опускания, м/мин
|
0 - 10
|
|
частота вращения поворотной платформы, об/мин
|
0,5 - 2,8
|
|
передвижения крана самоходом, км/ч
|
3; 15
|
|
Наибольшая нагрузка на опору, кН
|
213
|
|
Наибольшая нагрузка на ось, кН
|
150
|
|
Наименьший радиус поворота (по внешнему колесу), м
|
12,2
|
|
Наибольший угол подъема пути, град
|
15
|
|
Двигатель:
|
|
|
марка
|
СМД-14А
|
|
мощность, л.с.
|
|
Колея колес, м:
|
|
|
передних
|
2,4
|
|
задних
|
2,4
|
|
Масса крана, т
|
23,7
|
Характеристики основного и сменного стрелового оборудования крана К-161
|
Длина основной стрелы, м
|
10
|
|
Наибольшая длина удлиненной стрелы, м
|
25
|
|
Емкость грейфера, м3
|
1,5
|
|
Длина стрелы, м
|
10
|
15
|
20
|
25
|
25 с гуськом
|
|
Грузоподъемность, т:
|
|
|
|
|
|
|
на выносных опорах
|
16-3
|
9-2
|
5,25-1,1
|
4-0,3
|
1,79-1,25
|
|
без выносных опор
|
9-2,3
|
5,5-1,1
|
3,25-0,75
|
2,25-0,4
|
-
|
|
Вылет стрелы, м
|
3,75-10
|
5-13,5
|
6,5-17
|
7,5-23
|
10-15
|
|
Высота подъема крюка, м
|
8,8-3,7
|
13,5-7,8
|
18,3-17,4
|
22,8-11,4
|
10,5-24
|
3.6.4
Технология устройства облицовки канала
Технология устройства облицовки канала может включать следующие операции:
подготовка дна и откосов канала;
раскладка пленочных полотнищ и их соединение;
укладка по пленке предохранительных прокладок;
монтаж сборных железобетонных плит или укладка монолитного бетона;
уход за свежеуложенным бетоном и заделка швов.
3.7
Определение потребности в горюче-смазочных материалах
. Количество дизельного топлива Qт.i (кг):
Qт.i = qi ∙ Mi
- tCM,(55)
где qi - расход дизельного топлива на 1 ч
работы машины i- того типа, кг; Mi - количество машино-смен,
отработанных машиной i-того
типа.
Величины qi
принимаются по приложению, а Mi, - из принятого варианта технологической карты.
Нужно помнить, что в приложении нормы расхода топлива установлены для
условий эксплуатации машин при положительных температурах. При работе машин в
зимнее время (средняя температура воздуха ниже 0°С) в южных районах
нормы повышают до 5%, в районах с умеренным климатом - до 10%, в северных
районах - до 15%, а в районах Крайнего Севера и приравненных к ним -до 20%.
Марки дизельного топлива: JI-0.2-40
- летнее, 3-0.2-35 - зимнее.
1. Количество остальных горюче-смазочных материалов Qм.i (кг):
где
аi - количество горюче-смазочного материала i-того
типа в процентах от дизельного топлива.
Нормы
расхода масел смазок для машин и бензина для пусковых двигателей установлены в
процентах от расхода дизельного топлива в следующих размерах: моторного масла -
5%, трансмиссионного - 1%, пластичной смазки - 1,5%, бензина - 3% летом и 4,5%
зимой.
В
двигателях Д-108, СМД-14, А-01М, ЯМЭ-236 и ЯМЗ-240 применяют следующие моторные
масла: М-8-В2 (т) - зимнее и М-10-В2 - летнее; в двигателях Д-160, Д-130 -
масла М-8-Г2 (т) зимнее и М-10-Г2 - летнее; в двигателях ЯМЭ-238НБ и ЯМЗ- 240Б
- масла М-8-Г2 (к) - летнее и М-10-Г2 (к); в двигателях СМД-60/62, 8ДВТ-330 и
ЯМЗ-240Н - масла М-10Д (м) и М-8- Г2; в двигателях В-31 - масла М-16-А (т) -
летнее и М-14А (т) зимнее.
Трансмиссионное
масло ТМ-3-9 применяют всесезонно в холодной и умеренной климатических зонах, а
ТМ-3-18 - всесезонно в умеренной зоне и зоне жаркого климата.
Солидолы
УС-1 и С используют всесезонно во всех климатических зонах страны, а УС-2 и
пресс-солидол С - всесезонно в умеренной и тропической зонах.
Для
смазывания канатов применяют смазку КТ6/5 к4.
Для
пусковых двигателей используют бензин А-72. Суммарную потребность в
горюче-смазочных материалах (по маркам) представить в табличной форме (табл.
13).
4. ТЕХНИКА
БЕЗОПАСНОСТИ И ОХРАНА ОКРУЖАЮЩЕЙ СРЕДЫ
.1 Техника безопасности
К работе на землеройно-транспортных машинах допускаются лица имеющие
удостоверение на право управления данной машиной и прошедший инструктаж по технике
безопасности. Машинистами могут работать лица не моложе 18 лет прошедшие
медицинское освидетельствование.
. Выполнять работу разрешается только на вполне исправных машинах.
Запрещать работать на машинах, у которых не исправны даже отдельные узлы и механизмы.
. Запрещается направлять на работы машины с неисправными тормозами, в том
числе, и стояночными.
. Для работы в темное время суток машины должны быть оснащены приборами
освещения. работать в темное время суток без включенных приборов внешнего освещения
запрещается.
. Машины должны быть оснащены огнетушителями.
. Цепные передачи, валы и другие вращающиеся части, вблизи которых могут
находиться люди должны быть закрыты ограждениями и кожухами.
. На машинах с работающими двигателями запрещается осматривать агрегаты и
узлы, выполнять наладочные, регулировочные и другие работы.
. При работающем двигателе запрещается иметь масло в агрегатах и
редукторах, а так же смазывать узлы и детали машины.
. На машинах имеющих подвижные рабочие органы запрещается производить
осмотры, регулировочные работы находясь под рабочим органом, поднятым и
удерживаемым системой канатов или гидросистемой.
. Машинист должен следить, чтобы вблизи машины не было посторонних людей.
. Во время движения или работы любым лицом запрещается находиться на
металлоконструкциях- ковшах, буферах, рамах и других навесных и прицепных или
полуприцепных машин.
. Машинист должен работать в крепкой одежде и целых перчатках, чтобы не
зацепиться за движущиеся или вращающиеся части машины.
. Заправлять машину ГСМ только при выключенном двигателе.
. Машинист не должен оставлять машину без присмотра.
.2 Охрана окружающей среды
Воздействие любых искусственных сооружений приводят к изменению
естественного состояния территории и, в той или иной мере, влияет на окружающую
среду. Строительство канала ведется на большой территории и сопряжено с
изменением рельефа, нарушением почвенного и растительного покрова, а так же с
засорением территории отходами строительного производства, загрязнением
поверхностных и подземных вод, воздействием на атмосферу (пыль, сжигание
отходов, продукты сгорания ГСМ). Поэтому каждое решение по технологии и
организации строительных работ должно быть принято с учетом оценки его
воздействия на природу. Все площади, выделены во временное пользование, после
завершения работ должны быть приведены в состояние пригодное для использования
в хозяйственных и других целей.
ЗАКЛЮЧЕНИЕ
В данном курсовом проекте я научился проектировать магистральный
оросительный канал, с применением нормативных документов (СНиП и ГЭСН).
Научился выбирать наименее экономозатратную схему производства работ,
определять порядок работ и выбор машин для их производства, осуществлять подбор
плит для облицовки канала и крана для их укладки, рассчитывать необходимое количество
техники и необходимого для неё топлива.
СПИСОК
ЛИТЕРАТУРЫ
1. Абдразаков Ф.К. Машины для прокладки
и содержания каналов. Саратов: Сарат. с.-х. акад., 1997. 184 с.
2. А.И Долгих Методические указания к
выполнению курсового проекта по дисциплине “Организация и технологии
гидромелиоративных работ” Саратов. 1992 г.
3. Ясинецкий В.Г., Фенин Н.К.
Организация и технология гидромелиоративных работ. М.: Агропромиздат, 1986. 352
с.
4. http://www.kraeved74.ru/pages/article646.html
5. Природа Челябинской области (сост.
Ф.Я. Кирин).- Челябинск: Юж.-Урал. кн. изд-во, 1964 - 244 с.
6. http://www.chelpogoda.ru
7. ЕНиР Сборник Е 2 Выпуск 1
8. ГЭСН 81-02-01-2001
9. http://www.techstory.ru/krans/krantech/k161_161s.htm