Модернизация функциональной схемы автоматизации сбора и транспорта ДНС

  • Вид работы:
    Курсовая работа (т)
  • Предмет:
    Другое
  • Язык:
    Русский
    ,
    Формат файла:
    MS Word
    660,73 Кб
  • Опубликовано:
    2012-06-16
Вы можете узнать стоимость помощи в написании студенческой работы.
Помощь в написании работы, которую точно примут!

Модернизация функциональной схемы автоматизации сбора и транспорта ДНС

Содержание

Введение

. Описание технологического процесса прессового цеха

. Действующая система управления

.1 Спецификация схемы автоматизации

. Модернизированная функциональная схема автоматизации

.1 Описание схемы автоматизации после модернизации

.2 Спецификация схемы автоматизации

.3 Регулируемые параметры

.4 Принцип измерений

. Обоснование выбора датчика температуры

Заключение

Список литературы

Введение

Автоматизация производственных процессов представляет собой одно из наиболее важных направлений технического прогресса, являясь эффективным средством повышения производительности труда на современных промышленных предприятиях.

К настоящему времени в автоматизации технологических процессов химической промышленности достигнуты значительные успехи. Проделана большая работа по изучению всех распространенных химико-технологических процессов, как объектов автоматизации. Разработаны и проверены на практике схемы автоматического регулирования отдельных узлов, агрегатов, производственных участков и цехов с использованием серийной аппаратуры автоматизации; разработаны многочисленные специализированные средства автоматизации (датчики, регулирующие органы и т.д.), приспособленные для работы в условиях эксплуатации химической промышленности.

Автоматизация дает не только непосредственный экономический эффект; ее успехи оказывают большое влияние на общий технический уровень химической промышленности. Высокая точность поддержания заданного режима работы, которая достигается при использовании системы автоматического управления, позволяет значительно интенсифицировать технологические процессы, используя более активные катализаторы, высокие температуры и давление. Многие вновь разрабатываемые технологические процессы оказывается возможным реализовать только как автоматизированные, так как ручное управление не гарантирует безопасного их ведения и получения продукции заданного качества. Применение систем автоматического дистанционного управления позволяет широко практиковать размещение технологического оборудования на открытых площадках.

1. Описание технологического процесса прессового цеха

Фракция ядра семян подсолнечника или очищенные семена рапса, сои, льна подаются конвейером поз. 58 в норию поз. ТЕ01 и затем в буферную емкость поз. 2730 и далее направляются на плющение для вскрытия клеточной структуры распределительным конвейером поз. ТЕ02 на плющильные станки поз. 2704.1-3. Каждый станок имеет бункер поз. 2757.1-3 с роторным питателем и шиберной заслонкой, а также оборудован чистящим устройством, постоянным магнитом и гидравлической системой контроля зазора между валками. Скорость подачи материала на измельчение устанавливается такова, чтобы небольшой избыток материала из конвейера поз. ТЕ02 поступал в норию поз. ТЕ01 и возвращался в буферную емкость поз. 2730.

Полученный лепесток конвейерами поз. ТЕ03, ТЕ04, ТЕ05, ТЕ06 направляется в жаровню поз. 2705.1 для влаготепловой обработки с целью подготовки продукта к прессованию.

Жаровня фирмы Де-Смет состоит из 8 чанов. Каждый чан оснащен мешалкой (ножами), регулятором уровня и соединен вытяжной трубой с вентилятором поз. 2736/05/1. В первых трех чанах происходит нагревание мезги, в четвертом - восьмом чанах - высушивание мезги.

В первые три чана подается острый пар, в пятый и седьмой - горячий воздух через перфорированные днища. Предварительно воздух нагревается в калориферах поз. 2794.1 и просасывается через слой с помощью вентиляторов поз. 2736/05/01 и удаляется из первого - четвертого, шестого и восьмого чана вентилятором поз. 2736/05/01.

Мезга из жаровни поступает через питатель пресса поз. 2708/25А1 и далее в пресс поз. 2725.1. Жмых измельчается в дробилках поз. 2702.1 и конвейером поз. ТЕ07 направляется в охладитель жмыха, где охлаждается воздухом, просасываемым через слой жмыха с помощью вентилятора, и поступает на последующий отжим путем экстракции в экстракционный цех.

Прессовое масло после пресса поз. 2725.1 направляется конвейером поз. ТЕ09 в вибросито поз. 2717 для первичной очистки от грубых примесей.

Затем масло насосом поз. Р2717 направляется в емкость нефильтрованного масла поз. 2782А; отделившийся от масла фуза конвейерами поз. ТЕ04 подается в норию поз. ТЕ05 и далее конвейером поз. ТЕ06 на повторную переработку в жаровню. Из емкости поз. 2782А масло насосом поз. Р 2782А-1 подается на фильтрацию.

Фильтрация масла осуществляется на автоматических фильтрах поз. 2716А1/А2. Предварительно производится нанесение фильтрующего слоя при рециркуляции масла по схеме: емкость не фильтрованного масла поз. 2782А - насос поз. Р2782А-1 - фильтры поз. 2716А1/А2 - емкость не фильтрованного масла поз. 2782А. Рециркуляция масла проводится до получения прозрачного масла. При повышении давления на фильтре до 0,4 МПа его останавливают на регенерацию. Прозрачное масло поступает в емкость чистого масла поз. 2782В и далее насосом поз. P2782В направляется на вакуум-сушку в вакуум-сушильный аппарат поз. 2706, где под вакуумом 60 мм рт.ст. масло высушивается и затем насосом поз. Р2706 поступает на охлаждение в теплообменник поз. 2781В, после чего с температурой не более 400С направляется в ёмкости поз. 201-а и 201-в и далее на склад.

Из осадка на фильтрах поз. 2716А1/А2 с помощью сжатого воздуха отжимают остаток масла, который возвращается в емкость поз. 2782А, далее осадок сбрасывается через клапаны поз. V2716А1/А2-9 в емкость поз. 2757СК, откуда конвейером поз. 2709СК поступает в конвейер поз. ТЕ04 и далее на повторную переработку.

Вакуум в системе фильтрации масла создается с помощью вакуумной установки поз. 2741А. барометрические воды собираются в емкость барометрической воды поз. 2732.

 

. Действующая система управления

 

.1 Спецификация схемы автоматизации


Таблица 1

Позиция

Наименование

Тип

Кол-во

Примечание

1-1, 5-1, 9-1, 13-2, 19-1, 24-1, 30-1, 31-1, 33-1, 34-1

Реле уровня

Andress+Hauser

4

Вибрационный

48-1, 36-1,56-1,

Мановаккуумметр (-200 mmHg)

WIKA EN837-1

1

Предел измерения -500…0 mmHg

48-1, 37-1, 74-1

Термометр биметаллический.

WIKA TБ-2EN13190

8

Предел измерения 0-120*С

51-1, 39-1, 40-1, 41-1, 42-1, 43-1, 44-1, 45-1

Термометр биметаллический

WIKA TБ-2EN13190

3

Предел измерения 0-160*С

46-1

Контроль температуры (90…100*C)

ACTUASYS

2

RTD Rt100

19-1,20-1,21-1,

Манометр контроль давления пара

WIKA EN837-1

2

Предел измерение 0…10 кгс/см2

54-1,60-1,61-1,65-1,63-1, 68-1,73-1

Контроль давления масла(2…3)

WIKA EN837-1


Пределы измерения -1…5 кгс/см2

69-1 ???

Контроль температуры(40*С)


Пределы измерения 0…+100*С

53-1,55-1,

Контроль уровня

PEPPERL+FUCHS


Вибровилка

59-1,67-1

Контроль уровня

ABB



66-1,70-1

Контроль уровня

Magnetic Float Switch



71-1

Датчик уровня (пневматический)

Liquid Level Switch


Длина зонда 3350 мм

62-1, 64-1

Ротаметр (3…30) м3/ч

KROHNE M25

10


72-1

Счетчик

Endress+Hauser


Promass 83S

1-1,2-1

Датчик подпора

Andress+Hauser



12-1,14-1, 15-1,18-1.57-1

Датчик подпора

BALLUFF


BES M18MI-PSC80B-S04G

3-1, 7-1,11 1,-16-1,35-1,52-1, 58-1,17-1,50-1

Датчик скорости

BALLUFF

1

BES M18MI- PSC80B-S04G


3. Модернизированная функциональная схема автоматизации

 

.1 Описание схемы автоматизации после модернизации


Фракция ядра семян подсолнечника или очищенные семена рапса, сои, льна подаются конвейером поз. 58 в норию поз. ТЕ01 и затем в буферную емкость поз. 2730 и далее направляются на плющение для вскрытия клеточной структуры распределительным конвейером поз. ТЕ02 на плющильные станки поз. 2704.1-3. Каждый станок имеет бункер поз. 2757.1-3 с роторным питателем и шиберной заслонкой, а также оборудован чистящим устройством, постоянным магнитом и гидравлической системой контроля зазора между валками. Скорость подачи материала на измельчение устанавливается такова, чтобы небольшой избыток материала из конвейера поз. ТЕ02 поступал в норию поз. ТЕ01 и возвращался в буферную емкость поз. 2730.

Полученный лепесток конвейерами поз. ТЕ03, ТЕ04, ТЕ05, ТЕ06 направляется в жаровню поз. 2705.1 для влаготепловой обработки с целью подготовки продукта к прессованию.

Жаровня фирмы Де-Смет состоит из 8 чанов. Каждый чан оснащен мешалкой (ножами), регулятором уровня и соединен вытяжной трубой с вентилятором поз. 2736/05/1. В первых трех чанах происходит нагревание мезги, в четвертом - восьмом чанах - высушивание мезги.

В первые три чана подается острый пар, в пятый и седьмой - горячий воздух через перфорированные днища. Предварительно воздух нагревается в калориферах поз. 2794.1 и просасывается через слой с помощью вентиляторов поз. 2736/05/01 и удаляется из первого - четвертого, шестого и восьмого чана вентилятором поз. 2736/05/01.

Мезга из жаровни поступает через питатель пресса поз. 2708/25А1 и далее в пресс поз. 2725.1. Жмых измельчается в дробилках поз. 2702.1 и конвейером поз. ТЕ07 направляется в охладитель жмыха, где охлаждается воздухом, просасываемым через слой жмыха с помощью вентилятора, и поступает на последующий отжим путем экстракции в экстракционный цех.

Прессовое масло после пресса поз. 2725.1 направляется конвейером поз. ТЕ09 в вибросито поз. 2717 для первичной очистки от грубых примесей.

Затем масло насосом поз. Р2717 направляется в емкость нефильтрованного масла поз. 2782А; отделившийся от масла фуза конвейерами поз. ТЕ04 подается в норию поз. ТЕ05 и далее конвейером поз. ТЕ06 на повторную переработку в жаровню. Из емкости поз. 2782А масло насосом поз. Р 2782А-1 подается на фильтрацию.

Фильтрация масла осуществляется на автоматических фильтрах поз. 2716А1/А2. Предварительно производится нанесение фильтрующего слоя при рециркуляции масла по схеме: емкость не фильтрованного масла поз. 2782А - насос поз. Р2782А-1 - фильтры поз. 2716А1/А2 - емкость не фильтрованного масла поз. 2782А. Рециркуляция масла проводится до получения прозрачного масла. При повышении давления на фильтре до 0,4 МПа его останавливают на регенерацию. Прозрачное масло поступает в емкость чистого масла поз. 2782В и далее насосом поз. P2782В направляется на вакуум-сушку в вакуум-сушильный аппарат поз. 2706, где под вакуумом 60 мм рт.ст. масло высушивается и затем насосом поз. Р2706 поступает на охлаждение в теплообменник поз. 2781В, после чего с температурой не более 400С направляется в ёмкости поз. 201-а и 201-в и далее на склад.

Из осадка на фильтрах поз. 2716А1/А2 с помощью сжатого воздуха отжимают остаток масла, который возвращается в емкость поз. 2782А, далее осадок сбрасывается через клапаны поз. V2716А1/А2-9 в емкость поз. 2757СК, откуда конвейером поз. 2709СК поступает в конвейер поз. ТЕ04 и далее на повторную переработку.

Вакуум в системе фильтрации масла создается с помощью вакуумной установки поз. 2741А. барометрические воды собираются в емкость барометрической воды поз. 2732.

В нефтегазовом сепараторе С уровень измеряется уровнемером (поз. 4-1), далее унифицированный токовый сигнал поступает на контроллер (поз. 4-2), где осуществляется регистрация, индикация и предусмотрена предупредительная и аварийная сигнализации уровня в сепараторе. Сигнал сравнивается с уставкой регулятора, в случае рассогласования сигнал поступает на клапан (поз. 001), которым осуществляется регулирование. Если нет отклонений, то клапан остается в прежнем положении. Так же в сепараторе С установлен сигнализатор уровня (поз. 2-1), унифицированный токовый сигнал с которого поступает на контроллер (поз. 2-2), где сравнивается с уставкой регуляторов. Если уровень достигает верхнего аварийного значения, то задвижка XV-1 закрывается автоматически и дистанционно при пожаре на установке, а XV-2 открывается. Установлены показывающие манометры (поз. 1-1, 5-1) и датчик избыточного давления (поз. 3-1) унифицированный токовый сигнал с которого поступает на контроллер (поз. 3-3), где осуществляется индикация и сигнализация. В сепараторе установлен предохранительный клапан. Сброс от предохранительного клапана направляется на факел Ф-1. Так же установлен датчик температуры показывающий (поз. 7-1) и термопреобразователь сопротивления (поз. 6-1), унифицированный токовый сигнал, с которого поступает на измеритель (поз. 6-2), после на контроллер (поз. 6-3), где осуществляется индикация температуры. На площадке установлены датчики загазованности по периметру технологической площадки (поз. 8-1а..д), сигнал далее следует на блок питания и сигнализации (поз. 8-2), затем на контроллер (поз. 8-3), где предусмотрена сигнализация, в случае обнаружения аварии сигнал поступает на закрытие ESV-1.

Попутный нефтяной газ из С поступает в сепаратор ГС, где производиться очистка его от капельной жидкости. В ГС установлены сигнализаторы уровня (поз. 11-1, 12-1) электрический сигнал с которых поступает на контроллер (поз. 11-2, 12-2), где он сравнивается с установленным значением и после чего поступает на цифровой контроллер (поз. 12-3),который преобразует сигнал в пневматический, после чего сигнал пойдет на клапан (поз. 003). Если уровень достигает верхнее предельное значения, клапан (поз. 003) открывается, если нижнее - закрывается. Так же в ГС установлен датчик избыточного давления (поз. 13-1) и показывающий манометр (поз. 13-2), для местной индикации давления. Электрический сигнал с датчика избыточного давления (поз. 13-1) поступает на контроллер (поз. 13-3), где происходит индикация, регулирование и установлена сигнализация по верхнему и нижнему значению, если происходит отклонение, сигнал поступает на регулирующий клапан (поз. 002), которым осуществляется регулирование. Установлен датчик давления (поз. 9-1) и датчик температуры (поз. 10-1), для местной индикации. В Р установлен датчик давления (поз. 59-1), для местной индикации.

Далее газ подается в начало факельного коллектора для сжигания. На факельном коллекторе устанавливается расходомер. Топливный газ подается из привозных баллонов с пропаном. Схемой также предусмотрен ресивер с азотом для продувки факельного коллектора. Для освобождения газа от капельной жидкости перед факелом Ф предусматривается факельный сепаратор ФС с постоянным отводом жидкости в дренажную подземную емкость ДЕ-5. Откачка из емкости ДЕ-5 предусматривается погружным электронасосным агрегатом на вход в сепаратор С.

Задвижки №№XV-5,6 на выкидных трубопроводах от насосов Н-5/1-2 подземной дренажной емкости ДЕ-5 - автоматическое включение насосов и открытие задвижек при достижении верхнего уровня и отключение, и закрытие при достижении нижнего уровня в емкости ДЕ-5.

При выводе из нормального режима работы водонефтяная смесь с месторождения направляется в буферные емкости БЕ-1/1,2. В БЕ-1/1,2 установлены сигнализаторы уровня (поз. 22-1, 27-1), унифицированный токовый сигнал с которых поступает на контроллер (поз. 22-2, 27-2), где предусмотрена предупредительная и аварийная сигнализация. Сигнал сравнивается с уставкой регуляторов. Если уровень достигает верхнего аварийного значения, сигнал идет на клапан ESV-1, который закрывается, и на задвижку XV-12 который открывается автоматически. И установлен радарный уровнемер (поз. 18-1, 23-1) который измеряет уровень, и сигнал с него поступает на контроллер (поз. 18-2, 23-2) где осуществляется индикация, регистрация и предусмотрена сигнализация. Так же установлены датчики температуры термометры показывающие (поз. 21-1, 26-1) и термопреобразователи сопротивления (поз. 20-1, 25-1), сигнал с которого поступает на измеритель (поз. 20-2, 25-2), после на контроллер (поз. 20-3, 25-3), где осуществляется индикация температуры.

Затем жидкость насосами Н-4/1-2 подается на подогреватель нефти Пн, где подогревается до температуры +50 и направляется на УПСВ «Казаковская» через оперативный узел учета нефти.

В Н-4/1 установлен датчик давления (поз. 28-1, 29-1), сигнал с которого поступает на контроллер (поз. 28-2, 29-2), где предусматривается аварийная сигнализация по верхнему и нижнему значению. Насос останавливается при закрытие ESV-2, при низком уровне в С. Так же установлены датчики давления (поз. 31-1, 30-1) для местной индикации. Автоматизация насоса Н-4/2 аналогична Н-4/1. На площадке установлены датчики загазованности по периметру технологической площадки (поз. 36-1а,б,в), далее сигнал следует на блок питания и сигнализации (поз. 36-2), после на контроллер (поз. 36-3), где предусмотрена сигнализация.

На входе нефти в подогреватель нефти измеряется температура термопреобразователем (поз. 37-1), электрический сигнал с которого поступает на измеритель (поз. 37-2), далее идет на контроллер (поз. 37-3), где осуществляется индикация и предусмотрена сигнализация. Аналогично измеряется температура на выходе из Пн датчиком (поз. 41-1). Так же установлены датчики температуры (поз. 38-1, 42-1) для местной индикации и датчики давления (поз. 39-1, 40-1). Так же на трубопроводе устанавливается датчик расхода - расходомер (поз. 43-1) электрический сигнал с которого поступает на контроллер (поз. 43-3), где считается суммарное количество расхода и предусмотрена сигнализация. Сигнал сравнивается с уставкой, если расход достигает минимального значения, задвижка XV-11 закрывается. Так же клапан закрывается автоматически при закрытие ESV-2. На площадке установлены датчики загазованности по периметру технологической площадки (поз. 44-1г..е), далее сигнал следует на блок питания и сигнализации (поз. 44-2), после на контроллер (поз. 44-3), где предусмотрена сигнализация.

Задвижки №№XV-7,8,11 дистанционно закрываются при пожаре на площадке печей.

Задвижки №№XV-9,10 на дренажных линиях из подогревателя нефти - автоматически открываются при закрытии задвижек №№XV-7,8,11.

В дренажной емкости, предназначенной для жидкого топлива, уровнемером (поз. 45-1) измеряется уровень, унифицированный токовый сигнал с которого поступает на контроллер (поз. 45-3) где осуществляется индикация, регистрация и предусмотрена сигнализация по верхнему и нижнему уровню. Из этой емкости жидкое топливо поступает на блок подготовки, далее на подогреватель нефти.

В ОУУН установлены датчики перепада давления (поз. 52-1,48-1) сигнал с которого поступает на контроллер (поз. 52-2,48-2) где предусмотрена сигнализация. И датчики давления (поз. 51-1, 53-1, 47-1, 49-1) для местной индикации. Установлены расходомеры (поз. 54-1, 54-2, 50-1, 50-2) сигнал с которых поступает на контроллер (поз. 54-3, 50-3), где осуществляется индикация.

На выходе из ОУУН до и после клапана ESV-2 установлен датчик давления (поз. 55-1, 58-1) и показывающий манометр (поз. 55-2, 58-2), электрический сигнал от датчика поступает на контроллер (поз. 55-3, 58-3), где осуществляется индикация и сигнализация. От датчика поз. 58-1 идет сигнал на клапан ESV-2, который закрывается при давлении 0,7 МПа, так же отключаются насосы Н-4/1-2 и открывается задвижка XV-014, в БЕ-1/1.

Аварийное освобождение и дренаж аппаратов С, ГС, БЕ-1/1-2 предусматривается в подземную дренажную емкость ДЕ-1 объемом 63. Для сбора и утечек от сальников насосов Н-4/1-2 предусматривается подземная дренажная емкость ДЕ-2 объемом 8, а для аварийного освобождения змеевиков подогревателя нефти от жидкости - подземная дренажная емкость ДЕ-3 объемом 12.5 .

В дренажных емкостях ДЕ-1,2,3 уровнемером (поз. 16-1, 64-1, 67-1) измеряется уровень, электрический сигнал от которого следует на контроллер (поз. 16-2, 64-2, 67-2), где осуществляет индикация и предусмотрена сигнализация. Если сигнал имеет значение =300 мм, он поступает на электронасос для его отключения, если Н=2400 мм - насос включается. В электронасосе установлен термопреобразователь сопротивления (поз. 14-1,62-1,66-1), сигнал от него следует на измеритель (поз. 14-2, 62-2, 66-2), далее на контроллер (поз. 14-3, 62-3, 66-3) где осуществляется индикация и предусмотрена сигнализация по верхней температуре. На трубопроводе из емкостей установлен датчик давлений (поз. 15-1, 63-1, 65-1) сигнал от которого следует на контроллер (поз. 15-2, 63-2, 65-1) где осуществляется индикация и предусмотрена сигнализация по верхнему значению.

На площадке дренажной емкости ДЕ-1 установлены датчики загазованности по периметру технологической площадки (поз. 17-1 ежз), далее сигнал следует на блок питания и сигнализации (поз. 17-2), после на контроллер (поз. 17-3), где предусмотрена сигнализация.

На факельной системе устанавливаем датчики загазованности (поз. 68-1а..д) по периметру площадки, сигнал с датчиков поступает на блок питания и сигнализации (поз. 68-2), после на контроллер (поз. 68-3), где предусмотрена сигнализация.

 

.2 Спецификация схемы автоматизации


Таблица 2

Позиция

Наименование

Тип

Кол-во

Примечание

1-1, 5-1, 9-1, 13-2, 19-1, 24-1, 30-1, 31-1, 33-1, 34-1

Реле уровня

10

Optiswitch 5100

48-1, 36-1,56-1

Мановаккуумметр (-200 mmHg)

WIKA EN837-1

1

Предел измерения -500…0 mmHg

48-1, 37-1, 74-1

Термометр биметаллический

WIKA TБ-2EN13190

4

Предел измерения 0-120*С

51-1, 39-1, 40-1, 41-1, 42-1, 43-1, 44-1, 45-1

Термометр биметаллический

WIKA ТБ-2EN13190

4

Предел измерения 0-160*С

46-1

Контроль температуры (90…100*C)

ACTUASYS


RTD Rt100

19-1,20-1,21-1

Манометр контроль давления пара

WIKA EN837-1


Предел измерение 0…10 кгс/см2

54-1,60-1,61-1,65-1,63-1, 68-1,73-1

Контроль давления масла(2…3)

WIKA EN837-1


Пределы измерения -1…5 кгс/см2

69-1

Контроль разряжения (-600)

WIKA


Предел измерения -800…0mmHg

65-1 ???

Контроль температуры(40*С)

WIKA ТБ-2EN19190


Пределы измерения 0…+100*С

55-1

Контроль уровня.

ABB



59-1,67-1

Контроль уровня

Rosemount 0065

7


66-1,70-1

Контроль уровня

Magnetic Float Switch

3


71-1

Датчик уровня (пневматический)

Liquid Level Switch

3


62-1, 64-1

Ротаметр (3…30) м3/ч

KROHNE M25

3


72-1

Счетчик

Endress+Hauser

9

Promass 83S

 

1-1,2-1

Датчик подпора

Andress+Hauser

7


 

12-1,14-1, 15-1,18-1.57-1

Датчик подпора

BALLUFF

20

BES M18MI-PSC80B-S04G

Датчик скорости

BALLUFF

6

BES M18MI-PSC80B-S04G

 


3.3 Регулируемые параметры

Регулированию подлежит скорость конвейеров скорость норий и скорость жаровни.

Регистрируемые параметры.

) Скорость конвейеров.

) Скорость норий.

) Работа вальцевых станков.

) Уровень min и max емкостей.

) Производительность амофильтров.

) Уровень материала над питателями вальцевых станков.

) Уровень материала в 1-8 чане.

) Пропадание давления и расхода смазки редуктора жаровни.

Блокировка и сигнализация.

В целях обеспечения безаварийной работы и выдерживания нормального технологического режима предусмотрена блокировка по прекращению подачи материала и осуществляется световая и звуковая сигнализация. При достижении предельно-допустимой величины параметров подается одновременно световой и звуковой сигналы. Звуковой сигнал может сниматься нажатием кнопки, световой сигнал и блокировка остается до установления нормальной величины параметра.

Блокировочные параметры и сигнализация.

) При уменьшении количества сигналов от датчиков скорости срабатывает блокировка световая и звуковая сигнализация, осуществляется отключение конвейера или нории.

) При срабатывания датчика подпора материала срабатывает блокировка световая и звуковая сигнализация, осуществляется отключение конвейера или нории и все предыдущие маршруты.

) При превышении max уровня в 1-ом чане жаровни, срабатывает блокировка световая и звуковая сигнализация, осуществляется остановка конвейера подачи материала

) При увеличении max уровня на вибросите срабатывает блокировка световая и звуковая сигнализация, осуществляется остановка пресса и подачи материала на пресс.

) Максимальный уровень в емкостях, осуществляется сигнализация.

) Пропадание давления и расхода смазки редуктора жаровни.

Приборы по месту.

) Температура в чанах жаровни.

) Расход масла.

) Давление паропровода и маслопровода.

) Датчики скорости и подпора.

) Датчики уровня чанов жаровни.

Обоснование выбора ПИП.

Обоснование выбора датчика уровня.

Сигнализатор уровня радиочастотный 2120


Рис. 1

Мы заменяем сигнализатор уровня ультразвуковой фирмы OPTISWITCH 5200 на сигнализатор уровня радиочастотный Rosemount 2120. Выбранный датчик подходит по всем требуемым параметрам для нашего технологического процесса.

·        Контролируемые среды: практически все жидкости с плотностью не ниже 600 кг/м3 и вязкостью от 0,2 до 10000 сП

·        Температура процесса от 40 до 150°С

·        Температура окружающей среды от 40 до 80°С

·        Давление процесса от 0,1 до 10 МПа

·        Наличие взрывозащищенного исполнения

Так же он обладает рядом преимуществ таких как:

•Не подвержен влиянию потока жидкости, турбулентности, пузырьков, пены, вибрации, твердых включений, обволакивания, свойств среды или изменению параметров продукта

• Не требует калибровки и максимально прост в установке

• Легкодоступный клеммный блок, защита от обратной полярности и короткого замыкания

• Минимум технического обслуживания благодаря отсутствию движущихся частей и щелей

• Постоянный контроль электроники и отображение состояния процесса с помощью тактового светодиода

• Регулируемая задержка переключения при использовании в турбулентных/ разбрызгивающихся средах

• Магнитная контрольная точка для проверки функциональности

• Малый размер и вес

• «Быстрое стекание», обеспечиваемое конструкцией вилки, позволяет уменьшить время отклика, что особенно важно при работе с вязкими жидкостями

Принцип работы

Сигнализатор 2120 разработан с использованием принципа камертона. Пьезоэлектрический кристалл при подаче на него напряжения создает колебания чувствительной вибрационной вилки с частотой ~1300 Гц. Изменения этой частоты отслеживаются электроникой в непрерывном режиме. При погружении вилки в жидкость (состояние «мокрый контакт») частота колебаний вилки уменьшается, что приводит к переключению контактов сигнализатора. Аналогично при снижении уровня жидкости вилка переходит в состояние «сухой контакт», при этом частота колебаний вилки увеличивается, что приводит к обратному переключению контактов. Сигнал об изменении состояния контактов подается в систему управления или на исполнительные механизмы (насосы, клапаны и т.п.).

Сигнализатор применяется для защиты от переполнений, защита от ложных переключений, установка на трубопровод (защита насосов), гигиеническое применение и сигнализация верхнего или нижнего уровня.

Самым распространенным примером применения сигнализатора серии 2120 является контроль нижнего и верхнего уровней различных видов жидкостей в резервуарах. Зачастую сигнализатор уровня устанавливают в качестве независимого устройства для контроля верхнего и нижнего уровней, а также для обеспечения дополнительной защиты от переливов на случай отказа уровнемера.

Рис. 2

Имеются варианты установки с короткой вилкой для минимизации занимаемого объема (минимальная длина 50 мм) или с удлинителем до 3 м.

Соединение с резервуаром могут выполняться в резьбовом, фланцевом и гигиеническом исполнении.

Резьбовой монтаж.

Рис. 3

Радарный уровнемер Rosemount 5402


Рис. 4

Радарный уровнемер VEGAFLEX 61 меняем на радарный уровнемер Rosemount 5402, удовлетворяющий всем требованиям технологического процесса.

Измеряемые среды: нефтепродукты, щелочи, кислоты, растворители, водные растворы, алкогольные и слабоалкогольные напитки, пульпы, суспензии и прочие жидкости.

Диапазон измерений от 0,4 до 35 м.

Радарные уровнемеры Rosemount серии 5400 это превосходное решение для бесконтактных измерений уровня жидкостей, обладающих различными свойствами в широком диапазоне рабочих температур и давлений. Благодаря новаторским решениям, улучшающим способность слежения за поверхностью продукта и обеспечивающим уникальную способность обработки сигнала. Настройка серии 5400 необычайно проста, что упрощает его адаптивность для широкого круга применений и условий технологического процесса. Радары серии 5400 предлагают уникальные возможности, с помощью которых Вы можете ускорить пуско-наладку, одновременно увеличив время безотказной работы и достоверность измерений. Уровнемеры серии 5400 могут быть оснащены целым набором антенн и дополнительных опций для достижения максимальной гибкости измерения и формирования оптимального предложения для заказчика.

.4 Принцип измерений

масло автоматизация сигнализатор датчик

Уровень жидкости измеряется короткими радарными импульсами, которые передаются от антенны, находящейся в верхней части резервуара, по направлению к этой жидкости. Когда импульс радара достигает поверхности среды, часть энергии отражается обратно в уровнемер. Разница во времени между переданным и отраженным импульсом пропорциональна расстоянию, на основе которого рассчитывается уровень. Используемая технология обработки сигнала обеспечивает высокоэффективное подавление ложных отражений, а также помех, связанных с волнением поверхности измеряемого продукта и загрязнениями антенны. Таким образом, можно с высокой точностью вычислить расстояние до продукта и уровень продукта в резервуаре.

Рис. 5

Уровнемеры серии 5400 оснащаются высокоэффективными коническими антеннами различных форм и размеров. Также в настоящее время разработаны и доступны для заказа стержневые антенны и антенны с уплотнением для процессов, содержащих высокоагрессивные среды. Соединение с резервуаром защищает уровнемер от воздействия загрязнений и конденсата и состоит из уплотнения резервуара и фланца. Диапазон измерений от 0,4 до 35 м зависит от рабочей частоты уровнемера, размера и типа антенны, диэлектрической постоянной жидкости и условий технологического процесса. Чем выше значение диэлектрической постоянной, тем сильнее отраженный сигнал.

Рис. 6

4. Обоснование выбора датчика температуры

 

Термопреобразователь сопротивления Rosemount 0065


Рис. 7

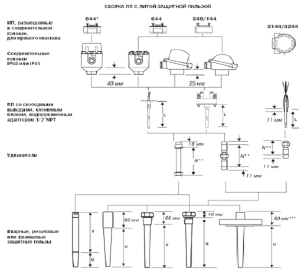
Термопреобразователь сопротивления медный типа ТСМ 9201.027-27 заменяем на термопреобразователь сопротивления Rosemount 0065. Диапазон измеряемых температур у которого от -50 до 450°С. Температура окружающей среды от -40 до 85°С, что соответствует процессу. Так же можно выбирать глубину погружения в зависимости от емкости, в которой будет измеряться температура (60 мм минимум). Широкий ряд монтажных длин.0065 обладают высокой линейностью и стабильной зависимостью сопротивления от температуры. Высокая точность измерений и долговременная стабильность, отличная надежность и взаимозаменяемость Rosemount 0065.0065 можно заказать в комплекте с соединительными головками, удлинителями и защитными гильзами. Номер модели определяет тип сенсора, материал, длину и исполнение удлинителя и защитных гильз. Можно заказать с проволочными выводами, клеммным блоком или подпружиненным адаптером для резьбового крепления 1/2"NPT.

Принцип действия ТС основан на зависимости электрического сопротивления чувствительного элемента от температуры. Чувствительный элемент ТС представляет собой конструкцию, содержащую пленочный платиновый резистор на диэлектрической подложке с покрытием из окиси алюминия или бифилярную намотку из платиновой проволоки. Чувствительный элемент включен в электрическую цепь термопреобразователя. Термопреобразователи подобранные попарно могут использоваться в системах измерения разности температур.

Рис. 8

Преобразователь измерительный Rosemount 3144Р


Рис. 9

Измеритель цифровой 16-канальный МТМ292-СТ мы меняем на преобразователь измерительный Rosemount 3144Р, подходящий для выбранного термопреобразователя сопротивления.

Преобразователи измерительные Rosemount 3144Р предназначены для преобразования сигналов, поступающих от термопреобразователей сопротивления, термоэлектрических преобразователей, омических устройств и милливольтовых устройств постоянного тока в унифицированный выходной сигнал постоянного тока 4-20 мА с наложением цифрового сигнала по HART-протоколу или в полностью цифровой сигнал по протоколу FOUNDATION fieldbus.

Высокоточные датчики температуры находят свое применение в узлах коммерческого учета, системах управления и безопасности предприятия. Погрешность измерения температуры в основном связана с первичным преобразователем. Согласование первичного и измерительного преобразователей снижает общую погрешность измерения на 75 процентов. Благодаря этому можно поддерживать стабильность и безопасность процесса, улучшать качество выпускаемого продукта. Функции согласования реализованы в измерительных преобразователях Rosemount 3144P и Rosemount 644. Для реализации этой возможности необходимо также знать константы Календер-Ван-Дюзена для конкретного первичного преобразователя. Для термопреобразователей сопротивления Rosemount 0065 они определяются при производстве. Эти константы, индивидуальные для каждого термопреобразователя сопротивления, заносятся в память измерительного преобразователя, где генерируется индивидуальная кривая зависимости сопротивления от температуры, в соответствии с которой и ведутся все преобразования. Таким образом, снижается погрешность несовпадения идеальной НСХ первичного преобразователя и его индивидуальной характеристики.

Измерительный преобразователь Rosemount 3144Р с функцией «горячей замены» Hot Backup защищает инвестиции и максимально увеличивает эксплуатационную готовность и безопасность процесса путем автоматического переключения на резервный первичный преобразователь в случае выхода из строя основного. Такое дублирование измерений позволяет снизить затраты и уменьшить риск потери важных данных об измеренной температуре на 80 процентов.

Заключение

В данном проекте была произведена модернизация функциональной схемы автоматизации сбора и транспорта ДНС с применением ТСА фирмы Fisher Rosemount. Внедрены в процесс датчики на концентрацию сероводорода, углекислого газа, азота, метана, пропана. Установлена на площадке система оповещения дозрывной концентрации и загазованности. Вследствие непрерывного автоматического контроля концентраций токсичных, взрывоопасных газов и сигнализации о превышении заданных порогов происходит улучшения окружающей экологии, становиться меньше выбросов в окружающую среду.

Список литературы

1.   Справочник инженера по контрольно-измерительным приборам и автоматики. / Под ред. Калиниченко

2.       Лекции по дисциплине «ПИП АСУТП»

3.       www.oopribor.ru

4.       www.metran.ru

5.       www2.emersonprocess.com

Похожие работы на - Модернизация функциональной схемы автоматизации сбора и транспорта ДНС

 

Не нашли материал для своей работы?
Поможем написать уникальную работу
Без плагиата!
Без нейросетей!