Модернизация автоматизированной системы регулирования горелками дожигания шахтной печи

  • Вид работы:
    Курсовая работа (т)
  • Предмет:
    Другое
  • Язык:
    Русский
    ,
    Формат файла:
    MS Word
    1,64 Мб
  • Опубликовано:
    2012-04-15
Вы можете узнать стоимость помощи в написании студенческой работы.
Помощь в написании работы, которую точно примут!

Модернизация автоматизированной системы регулирования горелками дожигания шахтной печи

Содержание

Введение

. Общая часть

.1       Описание технологического процесса

.2       Описание автоматизированного объекта и его технические характеристики - регулируемые величины, управляющие и возмущающие воздействие и характер изменения во времени

.3       Технические требования к САР - допустимые ошибки в установившихся режимах, прямые показатели качества переходных режимов

.4       Анализ известных вариантов САР

. Расчетная часть

.1 Составление функциональной схемы САР и выбор принципиальных схем ее элементов

.2 Описание функциональной схемы разрабатываемой системы

.3 Выбор измерительно-преобразовательных элементов (первичных и вторичных), диапазон измерения, условия работы, инерционность, вопросы сглаживания с устройствами

.4 Выбор исполнительных устройств

.5 Математическое описание САР и выбор автоматического управляющего устройства (АУУ)

.5.1 Определение математической модели объекта - статические характеристики, кривая разгона, частотные характеристики

.5.2 Определение передаточных функций измерительно-преобразовательных устройств и исполнительных устройств

.5.3 Выбор закона автоматического управления в общем виде

.5.4 Выбор автоматического управляющего устройства - на основе ПЛК

.5.5 Расчет конфигурации устройства управления и составление заказной спецификации

. Требования, предъявляемые к ПО АСУТП

. Требования к базовому фирменному программному обеспечению

.1 Требования и характеристика используемого системного ПО

.1.1 Требования и характеристика используемой операционной системы верхнего уровня и нижнего уровня АСУ ТПиП

.1.2 Требования и характеристика используемых пакетов программной поддержки обмена данными

.1.3 Требования и характеристика используемой системы управления локальными и распределенными базами данных

.2 Требование и характеристика используемого программного обеспечение инструментальных средств разработки, отладки и документирования

.2.1 Требование и характеристика используемых средств настройки базового ПО, диагностики и самодиагностики работоспособности ПЛК

. Требования и характеристика используемого прикладного программного обеспечения

.1 Требования и характеристика используемого прикладного программного обеспечения

.2 Требование и характеристика средств создания и отладки прикладного ПО

Вывод

Литература

Введение

В нашем регионе предприятия чёрной металлургии являются одними из основных источников загрязнения атмосферы вредными веществами. Существующее в настоящее время превышение санитарных норм концентраций загрязнителей в атмосфере промышленных городов значительно сказывается на здоровье населения. Самыми токсичными соединениями, попадающими в окружающую среду за счет антропогенных источников, к которым относятся в первую очередь мусоросжигательные заводы и черная металлургия, являются диоксины. Диоксины - это чужеродные живым организмам вещества (ксенобиотики), имеющие высокую химическую стойкость, в связи с этим трудно поддающиеся уничтожению. Это твердые бесцветные вещества, плохо растворимые в органических растворителях и очень плохо - в воде.

Попадая в организм человека через воздух, воду и продукты питания, диоксины концентрируются и накапливаются в жировых тканях. Большую опасность в связи с аккумуляцией представляет длительное поступление диоксинов в организм в малых количествах. При этом общетоксические проявления сопровождаются тератогенными, мутагенными, эмбриотоксическими эффектами и нарушением репродуктивных функций. У людей, подвергнутых действию диоксина (в результате аварий), проявлялись различные психические отклонения и кожные заболевания (в частности, хлоракне). Именно поэтому очень важно уменьшать концентрацию диоксинов в выбросах металлургических производств, которые являются одним из источников попадания этих токсических веществ в окружающую среду.

В данном курсовом проекте предлагается модернизация автоматизированной системы регулирования горелками дожигания шахтной печи №1 ЭСПЦ ЧерМК ОАО «Северсталь». Данная модернизация позволит уменьшить концентрацию диоксинов и других вредных химических элементов в отходящих газах шахтной печи за счет повышения стабильности работы горелок дожигания.

Известно, что диоксины можно разрушить, нагревая газ до 800 °С в течение 2-х секунд и затем быстро охлаждая его. Однако необходимость нагрева большого количества газа до этих температур требует значительного расхода электроэнергии. На заводе фирмы DDS («Del Danske Stalvalsevrk», Дания) стремятся поддерживать температуру газа около 450-600 °С в течение более продолжительного времени, чтобы избежать образования диоксинов и создать благоприятные условия для их разрушения. Эта стратегия может быть реализована и на нашем предприятии за счет модернизации АСР горелками дожигания. Модернизация горелок дожигания преследует следующие цели: замена оборудования так как оно не соответствует техническому уровню современного промышленного производства и уже не может с высокой точностью поддерживать параметры процесса дожигания газов; обеспечение более простого управления данным технологическим объектом за счет визуализации процесса, оператор сможет контролировать или задавать необходимые параметры со своего автоматизированного рабочего места. Разработанная система обеспечит предотвращение аварийных ситуаций тем самым повышается безопасность работы персонала.

Практическая ценность работы заключается в том, что снижение выбросов диоксинов до допустимой величины способствует повышению экологичности металлургического производства, а значит, повышает шансы предприятия на получение сертификата ISO 14000, что в свою очередь, увеличит конкурентоспособность продукции в соответствии с требованиями рыночной экономики, позволит поднять рентабельность завода, а также улучшить экологическую обстановку города в районе расположения предприятия.

1. Общая часть

.1 Описание технологического процесса объекта

Во время плавки из шахтной печи (ШП) выделяется большое количество запыленных газов. Температура газов составляет 900-1400 (С, содержание пыли в период продувки ванны кислородом доходит до 100 г/м3 газа; количество газов, выделяющихся, например, из 100-т печи в период продувки кислородом достигает 9-10 тыс. м3/ч. Для создания нормальных условий работы в сталеплавильном цехе необходимы улавливание и очистка отходящих газов.

В старых цехах с печами малой емкости применяются отсасывающие зонты, установленные над сводом. Однако они громоздки и обеспечивают неполное сгорание газов. В последние годы повсеместное распространение получает отвод газов через отверстие в своде с последующей очисткой от пыли.

Наибольшее распространение получила мокрая газоочистка с использованием труб Вентури.

Печные газы через отверстие в своде по футерованному патрубку поступают в зону горелок дожигания где под воздействием пламени горелок поддерживается температура порядка 650оС в этот момент и происходит дожигание горючих компонентов газа. Далее в скруббере газ охлаждается водой, подаваемой через форсунки от водопроводной сети, отработанная вода собирается в баке. Рисунок 1.

Расход воды регулируют, обеспечивая охлаждение газов до температуры менее 200 оС; температуру газов измеряют термопарой, установленной в вертикальном газопроводе. Далее газы через регулирующую заслонку дымососом подаются в батарею труб Вентури с водяными форсунками, где пыль поглощается каплями воды. После прохождения циклонного каплеуловителя газы выбрасываются в атмосферу через выхлопную шахту.

Во вновь сооружаемых цехах рекомендуется устанавливать печи в герметичных камерах, снабженных дверями для въезда тележек со шлаковыми и сталеразливочными ковшами и крана для завалки шихты. Камера снабжена системой отсоса газов, что предотвращает их попадание в цех; кроме того, камера существенно снижает в цехе уровень шума, вызываемого электрическими дугами.

Рисунок 1 - Положение горелок дожигания относительно ШП

1.2 Описание автоматизированного объекта и его технические характеристики

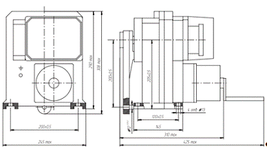
Объектом автоматизации являются горелки дожигания, общий вид их представлен на рисунке 2.

Технические характеристики: 1 - сопла горелок дожигания, 2- дымоход, 3- трубопровод подачи воздуха, 4- трубопровод подачи газа, 5- шкаф управления

Рисунок 2. Горелки дожигания

Технические характеристики.

Технологические данные: вес установки 7 тонн.

Газ:

·        нагреваемая среда - природный газ;

·        номинальный внутренний диаметр - DN 100;

·        давление на входе - р=макс. 5-6 бар;

Горелка:

·        тип MGE 8MW;

·        число - 3шт;

·        мощность горелки - макс.:8.000 кВт = 2.400 м3/ч;

·        зажигание - электрическое зажигание;

·        контроль - УФ-диод с индикацией;

Регулирование:

·        тип - регулирование соотношения посредством ПЛК S7316-2DP;

·        количество измерения воздуха - расходомер Prowirl 77, выходной сигнал 4-20 мА;

·        количество измерения газа - расходомер Prowirl 77, выходной сигнал 4-20 мА;

·        регулирование количества воздуха - поворотная, упорная заслонка;

·        регулирование количества газа - поворотная, упорная заслонка.

·        запитка - 3 х 400 В, 50 Гц, 160 А, 4 х 50 мм2;

·        мощность двигателя вентилятора - 55 кВт;

Вентилятор:

·        объемный расход - 27.000 м3/ч;

·        общее увеличение давления - 500 даПа (=50 мбар)

Сжатый воздух:

·        номинальный внутренний диаметр - DN 12;

·        давление - р=макс. 4 - 6 бар.

Конструктивное описание. Установка состоит из:

·        горелки MAPECO - 8 MW, 3шт.

·        вентиляторы, 2шт.

·        магистраль регулирования воздуха

·        магистраль регулирования газа

·        распределительный шкаф с ПЛК S7 316 - 2 DP

Регулируемым параметром данного автоматизированного объекта является: расход газа - ведущий параметр, расход воздуха - ведомый. Возмущающие воздействия можно подразделить на две группы:

а) возмущения электрического режима,

б) возмущения технологического и теплотехнического режима.

1.3 Технические требования к САУ, допустимые ошибки в установившихся режимах, прямые показатели качества переходных режимов

Система регулирования должна отвечать следующим основным требованиям: устойчивость; обеспечение необходимого качества регулирования; многофункциональность; обслуживаемость; способность к восстановлению после отказов; функционирование в непрерывном режиме с остановками на техническое обслуживание; система должна отвечать всем необходимым промышленным стандартам по безопасности эксплуатирования САУ.

В системе должна быть предусмотрена зашита информации от воздействия следующих факторов: аварий в системе электропитания и кратковременных резких изменений напряжения питания с помощью источников бесперебойного питания; несанкционированных действий пользователя путем программной защиты, хранения эталона ПО и нормативно-справочной информации на резервных носителях, периодического копирования информации на резервных носителях и сверке её с эталоном, своевременной замене эталона и его защите от несанкционированного доступа организационными мерами.

Комплекс технических средств должен состоять из типовых и унифицированных узлов и стандартных устройств, датчики и преобразователи информации должны иметь унифицированные выходные сигналы.

В системе должна быть предусмотрена возможность ручного ввода данных, характеризующих процесс.

Система должна являться открытой и допускать возможность функционального расширения с учетом перспектив развития и адаптации к изменяющимся технологическим условиям.

Система должна выполнять следующие функции: обеспечение стабильности дожигания печных газов; общий контроль, учет и визуализация параметров технологического процесса.

Допустимые ошибки системы:

·        время продувки t1 > 30 сек;

·        время предзажигания t2 < 8 сек;

·        стабильность пламени t3 < 5 сек;

·        прекращение подачи газа за время t4 < 1 сек;

·        рабочая температура 650 0С;

·        порог отключения 1000 0С

Динамические параметры объекта управления [1],[2] имеют следующие значения:


·        То= 75 с.

·       

·        Хст=0,4 0С

·        Хд= 10 0С

·        tрег= 500c.

1.4 Анализ известных вариантов САУ

Cущность предыдущего метода заключалась в следующем: струи кислорода подводились в тангенциальном направлении к огнеупорной поверхности диффузора. Дожигание горючих газов осуществляют на огнеупорной поверхности. Он не обеспечивал необходимой эффективности дожигания газов вследствие устаревшего оборудования дававшего частые сбои в процессе работы.

Рисунок 3 - Функциональная схема предыдущего варианта САУ

Функциональая схема данного метода представлена на рисунке 3. Принцип действия её заключается в следующем: в непосредственной близости с горелками дожигания устанавливается датчик измерения температуры - термопара (ТЕ), несмотря на то что она находилась в специальном защитном чехле довольно часто возникали аварийные ситуации связанные с выходом из строя этой термопары. Сигнал с датчика температуры поступал на контроллер Ремиконт Р130 (FFC), который вырабатывал управляющий сигнал на исполнительный механизм регулирования положения заслонки установленной на трубопроводе. Тем самым изменялось соотношение газ-воздух следовательно менялась температура вблизи горелок дожигания. Так же на каждом трубопроводе установлены датчики измерения расхода - расходомерные диаграммы (FE). Фактически отсутствовала визуализация процесса, управление осуществлялось с помощью пульта управления (FFI,FFH) установленного в диспетчерской оператора.

2 Расчетная часть

.1 Составление функциональной схемы САУ и выбор принципиальных схем элементов её неизменяемой части

На рисунке 4 представлена функциональная схема разработанной автоматизированной системы.

Рисунок 4- Функциональная схема САУ

В таблице 1 приведена спецификация функциональной схемы.

Таблица 1 - Спецификация


На рисунке 4 представлена функциональная схема разработанной системы. Принцип действия её заключается в следующем: в своде дымохода в специальное окно устанавливается первичный преобразователь температуры (ТТ), сигнал от которого через вторичный измерительный преобразователь (TY) поступает в контроллер (UYIK), контроллер вырабатывает управляющий сигнал либо на основе программы либо на основе данных вводимых с пульта управления оператора (UIH). Управляющий сигнал поступает через пускатели (NS) на исполнительные механизмы один из которых отвечает за подачу воздуха второй за подачу природного газа в горелки дожигания. Расход газа и воздуха измеряется расходомерами (FE). Данные с расходомеров поступают в контроллер. С контроллера вырабатываются сигналы о расходе газа и воздуха а так же сигналы о температуре которые поступают в систему визуализации и отображаются в виде числовых значений на автоматизированных рабочих местах оператора. В случае аварии система визуализации с помощью специальной сигнализации как звуковой так и световой привлекает внимание оператора.

2.2 Описание функциональной схемы разрабатываемой системы

Для перехода к математической модели системы представим функциональную схему в более простом виде на рисунке 5.

Рисунок 5 - Упрощенная функциональная схема

В данной АСУ горелками дожигания в качестве пульта управления (ПУ) используется персональный компьютер с установленной на нем системой визуализации InTuch, которая позволяет как следить за технологическим процессом так и вносить необходимые коррективы в работу горелок дожигания. Исполнительным механизмом (ИМ) в системе является МЭО-40 так как позволяет с достаточной точностью отрабатывать сигнал поступающий с контроллера, механизм МЭО-40 прост в обслуживании и способен работать в тяжелых промышленных условиях. В качестве регулирующего органа (РО) используется поворотная, упорная заслонка, выбор упорной заслонки обусловлен тем что при полном её закрытии предотвращается утечка газа в газопроводе. Объект регулирования (ОР) - это горелки дожигания шахтной печи. Чувствительным элементом (ЧЭ) системы является пирометр. Выбор пирометр для данной системы не случаен так как его использование более выгодно чем использование термопары как с экономической точки зрения так и с технической. Пирометр более долговечен по сроку службы так как устанавливается не в близости открытого пламени а на определенном расстоянии тем самым он не подвергается термическому воздействию. За счет пирометра обеспечивается большая точность измерения. Короткое время срабатывания гарантирует оптимальное управление процессом. Так же в системе установлены датчики расхода воздуха и расхода газа Prowirl 77 которые не отображены на схеме так как используются только для контроля расхода воздуха и газа. Установка датчиков Prowirl вместо расходомерных диафрагм позволяет отслеживать расход как газа так и воздуха с высоко точностью, они имеют высокую отказоустойчивость, интуитивный интерфейс настройки и функции самодиагностики. Сигналы с датчиков поступают на контроллер S7-316 2DP. Замена контроллера Ремиконт на контроллер SIMATIC S7-300 обусловлена во-первых высоким быстродействием последнего, котроллер S7-300 может и в дальнейшем использоваться если потребуется расширение системы, он полностью конфигурируется с датчиками и исполнительными механизмами, достаточно просто осуществляется подключение к промышленным сетям, обеспечивает высокую надежность работы за счет современной конструкции чего нельзя сказать о контроллере Ремиконт. Сигнал с контроллера поступают пульт управления оператора и на исполнительный механизм. Функционирование схемы заключается в следующем: сигнал с датчика температуры поступает на контроллер в котором происходит сравнение этого значения с заданным в случае рассогласования контроллер вырабатывает управляющий сигнал на исполнительный механизм который в свою очередь воздействует на регулирующий орган, тем самым изменяется соотношение газ-воздух и система приходит к требуемому состоянию.

.3 Выбор измерительно-пеобразовательных элементов (первичных и вторичных) диапазон измерения, условия работы, инерционность вопросы сглаживания с устройствами

В системе используются два типа датчиков: термопреобразователь пирометр ARDOCELL PS фирмы SIEMENS и датчики расхода Prowirl 77. Пирометры - измерительные приборы для бесконтактного измерения температуры. Существуют как "простые" пирометры полного излучения, так и цветные пирометры (с автоматической компенсацией коэффициента излучения). Общие особенности всех пирометров:

·        Использование новейшей сенсорной техники постоянного света для преобразования инфракрасного излучения в электрический сигнал, что означает - отсутствие подвижных компонентов и тем самым нет необходимости технического обслуживания и долговечность;

·        Компактные конструкции пирометров с очень крепкими металлическими корпусами (нержавеющая сталь или алюминий) и класс защиты IP 65 - тем самым возможно безопасное использование в неблагоприятных производственных условиях;

·        Использование исключительно негигроскопических материалов линз для пирометров и тем самым исключается повреждение линз при высокой влажности воздуха;

·        Очень высокая EMV пирометров - помехоустойчивость; превосходит требования даже самых строгих промышленных норм;

·        Использование новейшей процессорной техники для пирометров, что означает - высокая точность измерения благодаря цифровой многоточечной линеаризации;

·        Оптика пирометров с просветными визирами со специальной конструкцией системы линз, которые осуществляют цветовую коррекцию как видимого, так и инфракрасного излучения; в инфракрасном и видимом диапазонах совпадающие и очень четко отображаемые измерительные пятна;

·        Устанавливаемый коэффициент излучения пирометров для согласования пирометра с особенностями излучения объекта измерения.

В разработанной системе следует применить пирометр ARDOCELL серии PS (рисунок 6) так как его технические характеристики приведенные ниже, полностью удовлетворяют предъявляемым техническим требованиям. Пирометры серии ARDOCELL PS: диапазоны измерения: -30 + 2500°C; крепкий корпус пирометра из нержавеющей стали D M30 x 190 mm; не гигроскопический материал линз; очень короткое время срабатывания; внешнее переключение аналогового выхода между 0(4) - 20 mA; высокая точность измерения пирометра благодаря цифровой линеаризации (400 критических точек); штепсельное соединение; водонепроницаемость согласно IP65. На выходе пирометр имеет линейный сигнал 0-20 mA / 4-20mA. Коэффициент излучения может устанавливаться через внешний сигнал цифровым методом. Питанием служит постоянное напряжение в 24 V.

Рисунок 6 - Внешний вид пирометра

Подключение пирометра к контроллеру осуществляется с помощью специального модуля ввода аналоговых сигналов SM331.


Рисунок 7 - Внешний вид датчика

Принцип измерения и конструкция основан (рисунок 8) на принципе вихревой дорожки Кармана: при обтекании потоком препятствия - вихревого тела первичного преобразователя расхода, возникают завихрения, которые на его поверхностях вызывают перепады давления, их частота пропорциональна скорости потока и объемному расходу.

Рисунок 8- Принцип действия расходомера

Вторичный электронный преобразователь фиксирует количество перепадов давления и преобразует его в электрический сигнал. Вихревой расходомер Prowirl представляет собой программируемое средство измерений и состоит из первичного вихревого преобразователя расхода и электронной части в герметичном корпусе. Настройка прибора осуществляется соответственно условиям применения, как оперативно с помощью кнопок на самом приборе, так и удаленно в программном режиме через интерфейс цифровой коммуникации. Измерительная информация отображается на цифровом жидкокристаллическом дисплее или на мониторе компьютера или контроллера. Монтаж осуществляется непосредственно в трубопровод в зависимости от конструкции преобразователя расхода: фланцево, с помощью штуцеров, резьбовой монтаж.

Особенности и преимущества:

·        измерительная информация счетчиков и процесса храниться в ПЗУ (EEPROM);

·        все приборы при выпуске из производства калибруются на проливочном стенде, в процессе эксплуатации при необходимости, калибровка прибора может быть осуществлена как проливным методом так и беспроливным методом с помощью имитатора потока Flowjack ZX 6000;

·        динамический диапазон измерений расходов 45:1;

·        функции самодиагностики прибора, индикация неисправностей и предупреждений в виде кода ошибок;

·        самоочистки электродов, дозирования, учета двунаправленности потока;

·        настройка прибора с помощью кнопок самого прибора либо удаленно в программном режиме через различные интерфейсы цифровой коммуникации.

Основные технические характеристики. Вихревые расходомеры Prowirl изготавливаются для конкретных условий применения, под которые выбираются соответствующие опции при заказе, и только после этого прибор поступает в производство. Опции позволяют реализовать нужные технические данные: диаметр условного прохода и материал корпуса первичного вихревого преобразователя расхода из нерж. стали: 1.4571,1.4552, 1,4404, и вихревого тела из нерж. стали: 1.4435,1.4552. Различные виды монтажа: фланцевый или стяжными фланцами. Материал датчика: нерж. сталь 1,4435, хастеллой С-22, титан. Материал уплотнения датчика: графит, витон, карлез, специальный. Сертификация прибора для конкретного применения, сертификаты: метрологический, взрывозащитный, испытание на заданное давление.

Класс защиты прибора IP 67, компактное исполнение или раздельное, при котором вторичная (электронная) часть в герметичном корпусе и первичный преобразователь расхода соединяются кабелем длиной до 30 м, калибровка прибора по 3 точкам или по 5-ти, различные кабельные вводы взрывозащищенное или обычное исполнение применение или нет идкокристаллического дисплея, необходимое напряжение питания различные выходные сигналы: токовые, частотные и цифровые.

.4 Выбор исполнительных устройств

Механизмы исполнительные электрические однооборотные (рисунок 9) постоянной скорости МЭО предназначены для перемещения регулирующих органов в системах автоматического регулирования технологическими процессами в соответствии с командными сигналами автоматических регулирующих и управляющих устройств. Технические характеристики МЭО-40/10-0.25: крутящий момент - 40 Нм; время полного хода - 10 с.; полный ход (доля полного оборота) - 0,25; питание - 220В 50Гц; потребляемая мощность - 110 Вт; электродвигатель - ДСОР-80-0.4-136.

Режим работы: вид - повторно-кратковременный с частыми пусками S4 по ГОСТ 183; частота включений - до 320 в час; продолжительность включений - до 25% при нагрузке на выходном органе в пределах от номинальной противодействующей до 0.5 номинального значения сопутствующей; Максимальная частота включений - 630 в час при продолжительности включений до 25%; При реверсировании интервал времени между выключением и включением на обратное направление - не менее 50мс.

Рисунок 9 - Габаритные и присоединительные размеры механизма МЭО

2.5    Математические описания САУ и выбор автоматического управляющего устройства (АУУ)

.5.1 Определение математической модели объекта - статические характеристики, кривая разгона, частотные характеристики

Кривой разгона ОР (рисунок 10) называется кривая изменения во времени выходной величины в переходном процессе вызванным однократным изменением выходной величины.

Рисунок 10 - Кривая разгона ОР

Динамические параметры объекта определяются по кривой разгона [2] и имеют следующие значения:


·        То= 75 с.

·       

·        Хст=0,4 0С

·        Хд= 10 0С

·        tрег= 500c.

.5.2 Определение передаточных функций измерительно-преобразовательных и исполнительных устройств

Объект управления на структурной схеме САУ представляется виде соединения двух звеньев:

Апериодического звена и звена чистого запаздывания (рисунок 11).

Рисунок 11 - Структурная схема объекта управления

Автоматический регулятор на структурной схеме САУ представляется в виде соединения трех звеньев (рисунок 12)

Рисунок 12 - Структурная схема автоматического регулятора.

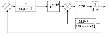
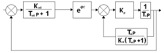
Система автоматического управления представляет собой совокупность объекта управления и автоматического регулятора определенным образом взаимодействующих друг с другом. Структурная схема САУ в общем виде изображена на рисунке 13

Рисунок 13 - Структурная схема САУ

Подставив числа, структурная схема САУ для разработанной системы примет следующий вид. (Рисунок 14)

Рисунок 14 - Структурная схема САУ разработанной системы

Передаточная функция имеет следующий вид

 (1)

 (2)

Подставим числа и получим значение передаточной функции:

 (3)

.5.3 Выбор закона автоматического управления в общем виде

Чтобы выбрать регулятор и рассчитать параметры его настройки, необходимо знать следующее:

Динамические параметры объекта регулирования:

; с.; Коб = 3

Максимальный в условиях эксплуатации коэффициент передачи объекта управления:

К0=3

Постоянную времени ОУ:

Т0=75с

Запаздывание:

с.

Величину максимального возможного возмущения по нагрузке в процессе эксплуатации ОУ:

Ув=15%

Основные показатели качества переходного процесса.

Максимально допустимое динамическое отклонение регулируемой величины:

Хд=100С

Максимально допустимое статическое отклонение регулируемой величины:

Хст=0,4

Допустимое время регулирования:

tрег=500с

Величину обратную относительному времени запаздывания находим по формуле:

 (4)

подставив значение получим

Допустимое относительное время регулирования находим по формуле:

 (5)

Допустимый динамический коэффициент регулирования находим по формуле:

 (6)

Допустимое остаточное отклонение регулируемой величины находим по формуле:

 (7)

подставим в эту формулу значения, получим

=0,009

Выразим эту величину в процентах:

=0,9%

Большинство автоматизированных металлургических в САУ с регулятором непрерывного действия протекает успешно, если в системе имеет место один из трех типовых процессов регулирования:

·        Апериодический

·        С 20% перерегулированием

·        С min интегральной квадратичной ошибкой

По значению /выбираем тип регулятора.

Значению /=0,435 соответствует непрерывный тип регулирования.

Так как показатель колебательности М принадлежит промежутку 1,4<М<1,8, то выбираем процесс с 20% перерегулированием.

Пользуемся графиком зависимости от /(рисунок 15) при выбранном оптимальном процессе, определяем, что =0,4 при 1/=0,435 могут обеспечить П, ПИ, ПИД-регулятора.

Рисунок 15 - Динамический коэффициент регулирования на статических

Выбираем П-регулятор.

По графику зависимости =f(). Определим отклонение при установке П- регулятора

=0,31

Выразим из формулы (7) ,

  (8)

Подставим в эту формулу значение уост, определенное по графику

=0,31*3*15 (9)

=13,95(0С)

Так как допустимое значение =0,4 0С, то П-регулятор не может быть применен. Определим, каким будет время регулирования для ПИ-регулятора. Оно должно быть меньше

=500 с

Для определения  воспользуемся графиком зависимости (рисунок 16) для процесса с 20% перерегулирования

Рисунок 16 - График зависимости

 (10)

=289,375 с

< следовательно, процесс с 20% перерегулированием может быть реализован с САУ ПИ-регулятором

Приближенное определение настроек регулятора произведен по следующим формулам.

Коэффициент усиления регулятора найдем по формуле

 (11)

Кр=0,76

Время удвоения (изодрома) найдем по формуле

автоматизированный горелка шахтная печь газ

2.5.4 Выбор автоматического управляющего устройства на основе ПЛК

Основным устройством любой системы автоматического управления является управляющее устройство. В разработанной системе в качестве управляющего устройства используется программируемый логический контроллер (ПЛК). Выбор контроллера осуществляется на основе тех задач которые будут решаться с помощью разработанной системы.

Современный рынок промышленной электроники предоставляет широкий выбор ПЛК для систем управления и из всего этого разнообразия разумнее всего выбирать между контроллерами двух ведущих фирм это OMRON (Япония) и SIEMENS (Германия). Для автоматизированной системы горелок дожигания будем использовать контроллер фирмы SIEMENS. Выбор контроллера данной фирмы обусловлен полной совместимостью с остальным оборудованием в системе а так же тем что данные котроллеры используются на других системах автоматики в электросталеплавильном цеху и зарекомендовали себя с наилучшей стороны. Фирма SIEMENS выпускает контроллеры различных серий но основные используемые в цеху это контроллеры серии S7-200, S7-300, S7-400. Разработанная система относится к классу систем средней сложности поэтому использование ПЛК серии S7-200 не целесообразно так как не будет обеспечена должная работа системы. Контроллеры серии S7-400 являются достаточно мощными и используются для систем выполняющих задачи высокой сложности, имеющих несколько контуров управления и требующих очень высокой производительности. Поэтому наиболее подходящим является контроллер серии S7-300.

Программируемые контроллеры Siemens S7-300 выпускаются в трех вариантах:

·              контроллеры Siemens SIMATIC S7-300 стандартного исполнения для эксплуатации в нормальных промышленных условиях;

·              контроллеры Siemens SIMATIC S7-300F с встроенными функциями автоматики безопасности для эксплуатации в нормальных промышленных условиях;

·              контроллеры Siemens SIPLUS S7-300 для наружной установки и эксплуатации в тяжелых промышленных условиях;SIMATIC S7-300 - это модульный программируемый контроллер универсального назначения. Модульная конструкция, работа с естественным охлаждением, возможность применения структур распределенного ввода-вывода, удобство обслуживания обеспечивают экономичность применения SIMATIC S7-300 при решении широкого круга задач автоматизации.S7-300 является универсальным контроллером:

·              он является идеальным изделием для работы в промышленных условиях благодаря высокой степени электромагнитной совместимости, высокой стойкости к вибрационным и ударным нагрузкам;

·              модульный программируемый контроллер универсального назначения для решения задач автоматизации низкой и средней степени сложности;

·              широкий спектр модулей для максимальной адаптации аппаратуры к решению любой задачи;

·              высокая гибкость, возможность использования систем распределенного ввода-вывода, мощные коммуникационные возможности;

·              удобная конструкция, простота монтажа, работа с естественным охлаждением;

·              простота расширения системы в ходе модернизации объекта;

·              высокая производительность благодаря наличию большого количества встроенных функций.

.5.5 Расчет конфигурации устройства управления и составление заказной спецификации

Основной задачей при расчете конфигураций программируемого логического контроллера (устройства управления) является выбор центрального процессорного устройства. Все центральные процессоры S7-300 характеризуются следующими показателями:

• высокое быстродействие;

• загружаемая память в виде микрокарты памяти MMC емкостью до 8 МБ;

• развитые коммуникационные возможности, одновременная поддержка большого количества активных коммуникационных соединений;

• работа без буферной батареи.

Таблица 2 - ЦПУ серии S7-300


Как видно из таблицы 2 наиболее подходящим является центральный процессор 316-2DP, так имеет наибольшую рабочую память из представленных процессоров, наименьшее время выполнения операций по сравнению с ЦПУ 312 а так же имеет два встроенных интерфейса.

Для подключения пирометра используется модуль SM331 имеющий следующие характеристики:

·              2 или 8 каналов аналогового ввода;

·              Разрешение: 12 разрядов;

·              Тип источника сигналов: мА, В, ТС, RTD;

·              Время преобразования: 2,5 …100 мсек;

·              Возможность подключения до 32 модулей расширения в один ряд;

·              Светодиодные индикаторы состояния;

·              Напряжение питания 5 В пост. тока;

·              Диапазон рабочих температур от 0 до +60°С.

Для подключения исполнительного механизма МЭО-40 используется модуль SM332 имеющий следующие характеристики:

·              2 или 4 канала аналогового вывода;

·              Разрешение: 12 разрядов;

·              Тип выходного сигнала: мА, В;

·              Возможность подключения до 32 модулей расширения в один ряд;

·              Светодиодные индикаторы состояния;

·              Напряжение питания 5 В пост. тока;

·              Диапазон рабочих температур от 0 до +60°С.

Заказная спецификация для разработанной системы представлена в таблице 3.

Таблица 3 - Заказная спецификация


3. Требования к программному обеспечению АСУ ТПиП

Программное обеспечение (ПО) должно базироваться на международных стандартах и отвечать следующим принципам:

модульность построения всех составляющих;

иерархичность собственно ПО и данных;

эффективность (минимальные затраты ресурсов на создание и обслуживание ПО);

простота интеграции (возможность расширения и модификации);

гибкость (возможность внесения изменений и перенастройки);

надежность (соответствие заданному алгоритму, отсутствие ложных действий), защита от несанкционированного доступа и разрушения как программ, так и данных;

живучесть (выполнение возложенных функций в полном или частичном объемах при сбоях и отказах, восстановление после сбоев);

унификация решений;

простота и наглядность состава, структуры и исходных текстов программ.

Должно предусматриваться разделение ПО на базовое (фирменное), поставляемое разработчиком ПТК, и прикладное (пользовательское), которое может разрабатываться как поставщиком ПТК, так и разработчиком АСУ ТП.

Должны быть предусмотрены меры по защите информации и недопущению внесения изменений в базовое ПО без привлечения разработчика ПТК. Должна иметься возможность задания паролей и установления границ санкционированного доступа при внесении изменений в прикладное ПО АСУ ТП.

Фирменное ПО должно сопровождаться эксплуатационной документацией.

Требования к базовому (фирменному) программному обеспечению. Базовое ПО подразделяется на системное ПО и ПО инструментальных средств разработки, отладки и документирования (САПР).

Системное ПО включает в себя:

·        стандартные операционные системы;

·        пакеты программной поддержки обмена данными;

·        системы управления локальными и распределенными базами данных.

Программное обеспечение инструментальных средств разработки, отладки и документирования включает в себя:

·        средства настройки базового ПО, диагностики и самодиагностики работоспособности ПТК;

·        средства создания и отладки прикладного ПО.

Операционные системы устройств верхнего уровня ПТК должны удовлетворять следующим требованиям:

·        высокая производительность, поддержка многозадачного режима;

·        высокая степень устойчивости и надежности;

·        поддержка обменов информации по используемым в ПТК локальным сетям;

·        удобный и понятный пользователю графический интерфейс, простота и эффективность использования;

·        возможность работы с мультимедиа;

·        возможность конфигурирования под конкретные условия использования.

На нижнем уровне ПТК должны использоваться высокопроизводительные операционные системы (ОС). Операционные системы нижнего уровня должны обеспечивать:

·        поддержку многозадачного или псевдомногозадачного режима;

·        модульность, гибкую конфигурируемость, возможность 100%-го размещения в ПЗУ контроллера;

·        малое время реакции, многоуровневую, основанную на приоритетах, обработку прерываний и присвоение меток времени зафиксированным событиям;

·        развитые средства коммуникации (поддержка стандартных сетей, а также различных промышленных интерфейсов ввода-вывода);

·        возможность (при необходимости) стыковки с техническими средствами сторонних разработчиков (по отдельной заявке заказчика).

Допускается использование ОС общего назначения в комплекте с приложениями, обеспечивающими реализацию свойств, характерных для мультизадачных систем реального времени.

Программное обеспечение инструментальных средств разработки, отладки, документирования и проектирования АСУ ТП (только в части ПТК) является неотъемлемой частью ПО ПТК. Инструментальные средства должны базироваться на действующих стандартах и обеспечивать решение наиболее сложных вопросов, связанных с автоматизацией процессов создания АСУ ТП и прикладных программ: прием и обработка сигналов, организация автоматического управления исполнительными устройствами, визуализация измеренных величин (в том числе в виде графиков, гистограмм и т.п.), ведение архивов и генерации отчетов. Результатом проектирования должны быть компоненты системы управления, полностью готовые к запуску.

Инструментальные средства должны, как правило, совмещать в себе функции разработки и тестирования.

Инструментальное ПО должно включать следующие программные средства:

·        компоновки и генерации технических и программных средств ПТК;

·        библиотеку программных модулей стандартных алгоритмов сбора и обработки технологической информации, управления, регулирования и технологических защит;

·        автоматизированного формирования исполняемых программных модулей на основе технологических заданий, представленных в виде БД и технологических алгоритмов, разработанных с использованием технологических языков и библиотеки стандартных алгоритмов;

·        пакеты программ создания фрагментов и их отдельных элементов;

·        организации и обслуживания баз данных;

·        проведения самодиагностики и тестирования аппаратуры и программного обеспечения;

·        разработки и включения в состав математического обеспечения ПТК и АСУ ТП программ, написанных на универсальных языках программирования;

·        средства разработки ПО (редакторы, линкеры, отладчики, трансляторы и т.п.);

·        средства автоматизированного проектирования ПТК в составе АСУ ТП, включая средства автоматизированного распределения и расположения модулей УСО в контроллерах и распределения входных-выходных каналов ПТК по контроллерным шкафам и их клеммникам.

Комплект инструментального ПО должен содержать также следующий набор программ:

·        редактор схем автоматического регулирования и программного управления;

·        редактор видеограмм;

·        редактор проектной документации на ПТК.

Инструментальные средства предназначены для максимального упрощения и облегчения процесса разработки и проектирования ПТК и АСУ ТП в целом.

Инструментальные средства, помимо перечисленных выше, должны также включать средства контроля и диагностики функционирования ПТК, а также его коррекции, модернизации и наладки на объекте.

Программно-технические комплексы для АСУ ТП отечественных ТЭС должны иметь полностью русифицированный интерфейс пользователя (проектировщика, разработчика, наладчика, оперативного и обслуживающего персонала).

Требования к прикладному программному обеспечению:

.        Прикладное (пользовательское) программное обеспечение должно обеспечивать реализацию ПТК всех функций управления и обработки информации, включенных в техническое задание на конкретную АСУ ТП.

.        Все типовые задачи, оговоренные в настоящих ОТТ, связанные со сбором, обработкой, передачей, хранением и представлением информации, а также с выдачей управляющих воздействий и информации на исполнительные и другие внешние устройства, должны программироваться на технологических языках или с помощью других программных средств, не требующих знаний в области применения универсальных языков программирования.

.        Должна предусматриваться возможность сохранения исходных пользовательских программ на магнитных носителях и при необходимости загрузки пользовательских программ через интерфейсные каналы в память контроллеров. Аналогичная возможность должна предусматриваться и для программного обеспечения верхнего уровня ПТК.

.        Должна предусматриваться (в случае необходимости) возможность подготовки, изменения или коррекции (в допустимых пределах, предусмотренных при создании АСУ ТП) пользовательских программ в процессе работы ПТК в составе АСУ ТП и технологического оборудования. При этом, как правило, должна быть исключена необходимость привлечения разработчиков или профессиональных программистов. Корректировка отдельных программ должна быть локальной и не должна требовать вмешательства в остальные программы.

4. Требования к базовому (фирменному) программному обеспечению

.1 Требования и характеристика используемого системного программного обеспечения

.1.1 Требования и характеристика используемой операционной системы верхнего уровня и нижнего уровня АСУ ТПиП

На рисунке 17 представлена автоматизация технологического процесса по уровням.

Рисунок 17 - Автоматизация технологического процесса по уровням

В данной системе в качестве сервера используется персональный компьютер на базе процессора Intel Pentium Core 2 Duo c тактовой частотой 2,5 ГГц; объём оперативной памяти 2048 Мб; объём жеского диска 640 Гб; видеокарта PCI-Exp 1024M GeForce GT220 Palit; сетевая карта со скоростью передачи данных 10/100 Мбит/с, интерфейс PCI 2.2, 32 бит с двумя портами; корпус системного блока выполнен в промышленном варианте. В качестве АРМ используется персональный компьютер на базе процессора Intel Pentium 4 c тактовой частотой 2 ГГц; объём оперативной памяти 1024 Мб; объём жеского диска 200 Гб; видеокарта PCI-Exp 512M GeForce; сетевая карта со скоростью передачи данных 10/100 Мбит/с, интерфейс PCI 2.2, 32 бит; корпус системного блока выполнен в промышленном варианте.

Программное обеспечение верхнего уровня включает в себя:

·        операционной системы (MS Windows 2000);

·        коммуникационных протоколов (Ethernet 802.3, TCP/IP);

·        форматов файлов (TXT, DOC, XLS);

·        интерфейсов с СУБД (SQL);

·        интерфейсов динамического обмена данными DDE, NetDDE.

Программное обеспечение информационного сервера:

·        операционная система MS Windows 2000 Server (SP2);

·        "мастер" приложение на базе SCADA-системы Wonder ware InTouch;

·        InTouch Runtime;

·        сервер базы данных Industrial SQL Server.

Программное обеспечение автоматизированных рабочих мест, входящих в АСУ ЦППН, основывается на следующих базовых средствах:

·        операционная система MS Windows 2000 Professional (SP2);

·        "подчиненное" приложение на базе SCADA-системы Wonder ware InTouch:

·        InTouch Runtime для АРМ управления;

·        FactoryFocus для АРМ наблюдения за технологическим процессом;

·        ActiveFocus для осуществления связи с базой данных Industrial SQL Server.2000 Server - многофункциональная операционная система, обеспечивающая функции сервера файлов и печати, сервера приложений, веб-сервера и коммуникационного сервера. Новая система по сравнению с предыдущей обеспечивает большую надежность, быстродействие и легкость управления. Что еще важнее - в Windows 2000 Server имеется большой набор распределенных служб, построенных на базе Active Directory - многоцелевого, масштабируемого каталога, созданного с использованием интернет-технологий и полностью интегрированного с системой. Active Directory значительно упрощает администрирование систем и поиск ресурсов в корпоративной сети. Многочисленные интернет-службы, входящие в состав Windows 2000 Server, позволяют организациям широко использовать интернет-технологии создавать сложные веб-приложения и службы распространения потоковой информации (аудио, видео и т. п.), а также строить интрасети на базе Windows 2000 Server.

Система Windows 2000 Professional предназначена для настольных и мобильных компьютеров. В промышленности для операторских станций и автоматизированных рабочих мест. В процессе проектирования Windows 2000 Professional преследовались следующие цели:

·              упростить работу с системой (для этого используется привычный, но существенно модернизированный интерфейс Windows, в который интегрированы новые возможности);

·              сохранить традиционные достоинства систем Windows NT (надежность, производительность и безопасность);

·              перенести в систему лучшие качества Windows 98 (в том числе обеспечить поддержку большого количества устройств и технологию Plug and Play);

·              создать легко конфигурируемую настольную систему, позволившую снизить общую стоимость владения (Total Cost of Ownership, TCO) (для этого обеспечивается возможность централизованного управления системой и приложениями, а также удаленная инсталляция системы).

4.1.2 Требования и характеристика используемых пакетов программной поддержки обмена данными

В разрабатываемой системе применяется три основных коммутационных протокола: Ethernet 802.3, TCP/IP, Profibus DP.- это самый распространенный на сегодняшний день стандарт локальных сетей. В зависимости от типа физической среды стандарт IEEE 802.3 имеет различные модификации - l0Base-5, l0Base-2, l0Base-T, l0Base-FL, l0Base-FB. Для передачи двоичной информации по кабелю для всех вариантов физического уровня технологии Ethernet, обеспечивающих пропускную способность 10 Мбит/с, используется манчестерский код. Все виды стандартов Ethernet (в том числе Fast Ethernet и Gigabit Ethernet) используют один и тот же метод разделения среды передачи данных - метод CSMA/CD. Для разработанной системы применен стандарт Fast Ethernet. В ситеме применяется модификация 100Base-TX. В качестве среды передачи 100Base-TX применяются две витые пары, причем одна пара используется для передачи данных, а вторая - для их приема. Поскольку спецификация ANSI TP - PMD содержит описания как экранированных, так и неэкранированных витых пар, то спецификация 100Base-TX включает поддержку как неэкранированных, так и экранированных витых пар типа 1 и 7. Длина сегмента 100 метров, скорость передачи данных 100 Мбит/с.

Базовый протокол Интернета TCP отвечает за предоставление данных для передаваемых пакетов, и сборки их в пункте назначения. Протокол IP отвечает за доставку пакетов от источника к получателю. Когда TCP и IP встраиваются в приложения более высокого уровня, такие как HTTP, FTP, Telnet и т.д., то термином TCP/IP обобщается весь набор этих протоколов. Хотя протокол TCP/IP обычно ассоциируется с сетью Интернет, он может использоваться и в локальных сетях (ЛВС). В этом случае при невысокой загруженности магистрали он обеспечивает приемлемую скорость передачи данных. Протокол TCP/IP используется в качестве транспортного протокола для обмена информацией между узлами гибридных систем автоматизированного управления технологическими процессами.DP - протокол, ориентированный на обеспечение скоростного обмена данными между системами автоматизации (ведущими DP-устройствами) и устройствами распределённого ввода-вывода (ведомыми DP-устройствами). Протокол характеризуется минимальным временем реакции и высокой стойкостью к воздействию внешних электромагнитных полей.

Оптимизирован для высокоскоростных и недорогих систем. Эта версия сети была спроектирована специально для связи между автоматизированными системами управления и распределенной периферией. Электрически близка к RS-485, но сетевые карты используют 2-х портовую рефлективную память, что позволяет устройствам обмениваться данными без загрузки процессора контроллера. Сеть отвечает требованиям международных стандартов IEC 61158 <#"553573.files/image060.gif">

Рисунок 18 - Визуализация шахтной печи

- это приложение-генератор человеко-машинного интерфейса (HMI) для систем SCADA и других систем автоматизации производства. InTouch дает возможность пользователям создавать операторские интерфейсы под Windows, которые тесно взаимодействует с другими компонентами программного обеспечения фирмы Wonderware, например FactorySuite (интегрированный пакет программного обеспечения для полной автоматизации производства) и стандартными приложениями Microsoft Office. InTouch это программный пакет для быстрой и эффективной разработки и внедрения систем управления производственным процессом.InTouch - это приложение-генератор графического операторского интерфейса (HMI) для систем SCADA и других систем автоматизации производства. InTouch позволяет пользователям создавать операторские интерфейсы под Windows, которые тесно взаимодействует с другими компонентами Factory Suite.

Дополнительные модули Статистического Контроля Процессов (SPC), Управления рецептами (Recipe) и Структурированного Языка Запросов (SQL) помогают пользователям удовлетворить разнообразные потребности в производственной отчетности. Версия 7.0 поддерживает установку корпорации Wonderware на то, что приложения InTouch будут всегда работать на будущих версиях программ.

Программный пакет InTouch состоит из двух основных компонентов - среды разработки и среды исполнения. В среде разработки создаются мнемосхемы, определяются и привязываются к аппаратным средствам входные и выходные сигналы и параметры, разрабатываются алгоритмы управления и назначаются права операторов. Созданное таким образом приложение функционирует в среде исполнения. Такое разграничение позволяет предотвратить несанкционированное изменение приложения, не определенное логикой его работы. Для того, чтобы приложение могло обмениваться данными с аппаратурой, необходимо использование третьего компонента - отдельной программы, называемой сервером ввода-вывода. Как правило, сервер ввода-вывода ориентирован на использование с конкретным видом оборудования, таким как промышленные контроллеры. Вместе с тем, используются также сервера ввода-вывода, рассчитанные на обмен данными согласно определенным промышленным стандартам, и которые могут работать со всеми контроллерами удовлетворяющими этому стандарту (например Modbus, ProfiBus, DeviceNet и др.). Преимущества использования InTouch этоп повышение эффективности работы производства, малые сроки внедрения благодаря простоте освоения и использования средств разработки. Простота технического сопровождения.

Гарантированное сопряжение с любыми аппаратными средствами, имеющимися на предприятии, благодаря большому числу имеющихся серверов ввода-вывода, использованию стандартных протоколов обмена и наличию средств разработки собственных драйверов. Ориентация на перспективные и популярные компьютерные стандарты и платформы ( Windows NT, DCOM, OPC, ActiveX и др.).

Рисунок 19 - График изменения температуры

С помощью InTouch в разработанной системе решаются следующие задачи. Сбор сигналов с пирометра а так же с датчиков расхода Prowirl 77 (рисунок 18) определяющих состояние производственного процесса в текущий момент времени. Значения температуры и расхода отображаются как в виде числовых значений так и в виде различных графиков (рисунок 19), шкал и т.д. Графическое отображение собранных данных на экране компьютера в удобной для оператора форме на мнемосхемах, индикаторах, сигнальных элементах, в виде текстовых сообщений и т.д. Кнопка «Графики» - при нажатии на нее открывается окно отображающее изменяющиеся во времени значения температуры. С помощью кнопок навигации можно перемещаться между окнами мнемосхем отражающих технологический процесс либо функционирование различных агрегатов. Цветовые индикаторы (рисунок 20) отображают статус горелок дожигания. Зелёным цветом светятся индикаторы объектов готовых к работе или уже находящихся в работе например: горелка включена, воздуходувка 1. Индикаторы не функционирующих объектов отмечены серым цветом: воздуходувка 2. Красным цветом отображается ошибка: неисправность горелки. Цифровые значения - динамически изменяются в зависимости от изменения присвоенной им величины. На рисунке 20 отображается расход газа и воздуха за плавку. При двойном щелчке на какой либо агрегат появляется более подробное его отображение с большим количеством характеризующих параметров.

Рисунок 20 - Информация о состоянии горелок дожигания

Автоматический контроль за состоянием контролируемых параметров и генерация сигналов тревоги, и выдача сообщений оператору в графической и текстовой форме в случае выхода их за пределы заданного диапазона. Контроль за действиями оператора путем регистрации его в системе с помощью имени и пароля, и назначения ему определенных прав доступа, ограничивающих возможности оператора по управлению производственным процессом. Вывод (автоматически или по команде оператора) управляющих воздействий в промышленные контроллеры и исполнительные механизмы для регулировки непрерывных или дискретных процессов, а также подача сообщений персоналу на информационное табло и пр.

Автоматическое ведение журнала событий, в котором регистрируется изменение производственных параметров с возможностью просмотра в графическом виде записанных данных, а также ведение журнала аварийных сообщений. Соблюдение регламента производственного процесса путем динамической загрузки (автоматически или по команде оператора) набора параметров из заготовленных шаблонов (рецептур) в технологическое оборудование. Генерация отчетов и оперативных сводок.

Вывод

В данном курсовом проекте рассматривалась модернизация автоматизированной системы регулирования горелками дожигания MAPECO шахтной печи №1 ЭСПЦ сталеплавильного производства ЧерМК ОАО «Северсталь».

Перед началом работы была поставлена задача усовершенствовать автоматизированную систему регулирования и обеспечить высокую стабильность требуемых технологических условий в частности поддержание необходимого температурного режима горелок дожигания в течении определенного промежутка времени. Эта задача была решена в первую очередь за счет замены морально и физически устаревшего контроллера Ремиконт 130 на современный SIMATIC S7-300, так же были заменены измерительно-преобразовательные элементы (датчики) и исполнительный механизм. Была разработана принципиально новая функциональная схема автоматизированной системы регулирования. Всё это позволит достигнуть поставленной цели и обеспечить стабильность технологического процесса.

Литература

1. Беленький А.М. Автоматическое управление металлургическими процессами. М.: Металлургия, 1989. - 384 с.

. Техническая документация на горелки дожигания с ЭСПЦ ОАО «Северсталь»

. Оформление пояснительной записки курсовых и дипломных проектов в соответствии с требованиями ГОСТ 2.105 - 95. Череповецкий металлургический колледж, 1999.

. Тюриков С.П. Методические рекомендации и расчеты по курсовому проектированию для студентов 3 и 4 курсов. Череповец 2006 год.

. Металлургические печи. - В.А. Кривандин, Б.Л. Марков. - М.: Металлургия, 1977.

. Липухин Ю.В., Булатов Ю.И. Автоматизация металлургических агрегатов. М.: Металлургия, 1992.

. Котов К.И., Шершевер М.А. Средства измерения, контроля и автоматизации технологических процессов. Вычислительная и микропроцессорная техника. М: Металлургия, 1989.

. Статья из Internet: Описание ПЛК SIMATIC S7-300. Сайт: simatic.nm.ru.

. Бунин В.К., Анопренко В.А. SCADA-системы: проблема выбора. Современные технологии автоматизации, М:1999.

Похожие работы на - Модернизация автоматизированной системы регулирования горелками дожигания шахтной печи

 

Не нашли материал для своей работы?
Поможем написать уникальную работу
Без плагиата!
Без нейросетей!