The permeance
ABSTRACT
of investigation - direct current electromagnet.of the work -
to get skills of electromagnet calculation.of investigation - empirical
formulas.calculation of dc-current electromagnet was made.course project
consists of four parts. In the first part the so-called direct problem is
solved and the magnetic-moving force is found. In the second part the winding
is calculated and the pure MMF of the coil is found. The third part includes
the so-called inverse problem, the magnetic flux is being determined. And the
last, the fourth part includes defining of the actuation time of the
electromagnet.ELECTROMAGNET, AIR-GAP, WINDING, ACTUATION TIME, MAGNETIC MOTIVE
FORCE, INDUCTION.
INTRODUCTION
course design is intended for getting skills on calculation
of electromagnets. In this work next problems are solved:
- direct problem. Condition of the work of electromagnet:
the armature is in open stage. Here such parameters are calculated: permeances
of the air-gaps, magnetic fluxes, magnetic potential drops in metal and, as a
result, magnetic motive force;
- calculation of winding. Here such parameters are
calculated: diameter and cross-section of wire, resistance of wire, current,
flowing in wire and precise value of magnetic motive force;
inverse problem. Conditions of the work: armature is
in closed stage. Here such parameters are calculated: permeances of air-gaps,
magnetic flux, inductance of metal and magnetic intensity;
calculation of dynamic characteristics of
electromagnet. Here such characteristics are found: moving, pick up, actuation
time and electromagnetic force for actuation of calculated electric
apparatus.special computer programs are made for computing electromagnets and
their characteristics. But the importance of this work is to understand and to
learn the stages of finding one or another thing during calculation of
contacting electric apparatus.
1. MMF determination
1.1. Initial data
dc electromagnet with next parameters is given on Figure 1.1:
=10 mm; d=25 mm; d2=20 mm; l=250 mm;
h=80 mm; dп=10 mm; d2=0.25 mm; dк=0.2 mm; induction at d=dп, B=0.1 T; winding power voltage U=36
V; magnet circuit material is steel of quality 50HXC.1.1. - Calculated electromagnet
tasks are:
- to determine MMF of electromagnet winding;
- to design electromagnet winding;
to define electromagnetic forces;
to find actuation time of the electromagnet.
1.2.
Completing of the equivalent circuit
first step is to set up equivalent magnetic circuit without
taking into account reluctance of iron subcircuits. The scheme is represented
on the Figure 1.2.MMF that is produced by flowing current through the coil is
drawing as the source of power. The magnetic resistances of operating and parasitic
air gaps are drawn as resistors.is the magnetic resistance of the operating
air-gap. Rm2 and Rm3 are the magnetic resistances of the parasitic air-gaps.
1.2. - Equivalent circuit
1.3. The permeance of the air-gaps determination
permeance of the operating air-gap is determined according to
the method of probable flux passes. The fluxes in this air-gap are shown on the
Figure 1.3.
1.3.1.
- Fluxes flowing between core and armature (1) and between yoke and armature
(2)
magnetic permeances of the operating air-gap by the
method of probable fluxes can be calculated
µ0
- is magnetic constant, or vacuum permeability,
;
δп - is the value of the operating air-gap, m.
where δп - is the value of the operating air-gap,
m.let’s find the front magnetic flux permeance of the operating air-gap:
.it
is possible to find the full magnetic permeance of the operating air-gap:
,
.
The next step is
to find the magnetic permeance of parasitic air-gap δ2. It can be found using specific permeance
for coaxial cylinders [5]. The flux through δ2 can be
calculated without taking into account fluxes of bulding, because the
dimensions of the pole are more than the air-gap in 240 times.
where d2 - is the value of the parasitic air-gap, m.
.let’s
find the permeance of the parasitic air-gap between the yoke and the armature
using Roters’ method.first, let’s find square of a high yoke surface:
;front
magnetic flux permeance of the parasitic air-gap is determined:
;
.
For Λδ1z1 the formula of
half-ring is used [5]:
,
For Λδ1p1 the formula of half-cylinder is used
[5]:
For
Λδ1p2 the formula of quarter-cylinder is used [5]:
,
For
Λδ1z2 the formula of quarter-ring is used [5]
,total
permeance of the parasitic air-gap is found:
1.4. Determination of magnetic flux
it is necessary to find the flux of the pole:
where Bδ -
is magnetic induction, T;δ - is the pole face area, m2;
σвп -
is the coefficient of bulging.bulging coefficient is to be found:
,
where
Λδ - is the permeance of the operating air-gap, H;
ΛδT -
is the front magnetic flux permeance of the operating air-gap, H.
Then the pole face area is calculated
;
;
where Bδ -
is magnetic induction, T;
σвп -
is the coefficient of bulging;is the diameter of the core, m.
1.5. Determination of the steel magnetic potential
drops
let’s find the magnetic potential drops of the magnetic
circuit by the method of leakage ratio. The division of the electromagnet is
shown on the Figure
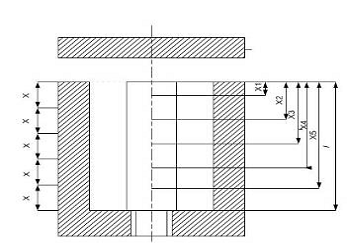
1.5.1 At first the core is
divided by 5 equal parts (x) equaled to
1.5.1.
- Dividing of a magnetic circuit on subcircuits
Now the leakage ratios of every subcircuit must be
defined:

λS - is the specific permeance; in this case
this is the specific permeance of coaxial cylinders:
.that,
the total permeance ΛδΣ is found:
;
;
,Λδ,
Λδ1, Λδ2 - are the permeances of the air-gaps, H., the calculations for the first subcircuit
are made. The bulging coefficient σX1 is found
,
where λS -
is the specific permeance,
;
in this case this is the specific permeance of coaxial cylinders;
ΛδΣ
- is the total permeance, H.the
magnetic flux through the first subcircuit is made:
;
,Фδ - is the magnetic flux through
the circuit, Wb;
σX1 - is
the bulging coefficient of the subcircuit.
After it, the induction of the core is found:
,ФX1 - is the magnetic flux through the
subcircuit, Wb;- is the diameter of the core, m.induction of the yoke is found:
;
.
From the graph of magnetic curves [5] the magnetic intensity
is taken:
;
.
let’s find magnetic potential drop of the first
subcircuit:
;
.
for the next subcircuits are done by analogy to the
first one.
the magnetic potential drop in the armature can be
found. At first, the magnetic flux through the armature is found:
;
it, the induction of the armature is found:
From the graph of magnetic curves [5] the magnetic
intensity is taken:
.
let’s find magnetic potential drop:
;
.
Now the magnetic potential drop in the base of the
electromagnet can be found. The parasitic air-gap can be neglected and the base
can be decided to be entire, because the existence of such a little air-gap
almost doesn’t influence on the flux. The bulging
coefficient σX6 is found:
,
where λS -
is the specific permeance,
;
in this case this is the specific permeance of coaxial cylinders;
ΛδΣ
- is the total permeance, H.
Then the magnetic flux through the base is found:
;
;
After it, the induction of the base is found:
;
,
where Фbase - is the magnetic
flux through the base, Wb.the graph of magnetic curves [5] the magnetic
intensity is taken:
Now let’s find magnetic potential drop:
;
,Hbase
- is the magnetic intensity of the base,
.
1.6. Determination of the magnetic motive force of
the electromagnet
let’s find the MMF
Umi
- are magnetic potential drops, A;
Фi - is the magnetic flux, Wb;
Λδi -
is the permeance, H.
1.7. Results of the computation of electromagnet
subcircuit parameters
1.7.1. - Parameters of the electromagnet subcircuits
|
σi
|
Фi, mWb
|
Bi, T
|
Hi, A/m
|
Umi, A
|
Фi/Λi, A
|
Δxi, m
|
xi, m
|
|
xy1
|
1.69
|
0.206
|
0.011
|
0.05
|
-
|
0.05
|
0.025
|
|
xy2
|
2.81
|
0.343
|
0.046
|
2
|
0.1
|
-
|
0.05
|
0.075
|
|
xy3
|
3.66
|
0.447
|
0.073
|
3
|
0.15
|
-
|
0.05
|
0.125
|
|
xy4
|
4.23
|
0.516
|
0.084
|
3.5
|
0.175
|
-
|
0.05
|
0.175
|
|
xy5
|
4.51
|
0.55
|
0.09
|
3.9
|
0.195
|
-
|
0.05
|
0.225
|
|
xc1
|
1.69
|
0.206
|
0.42
|
14
|
0.7
|
-
|
0.05
|
0.025
|
|
xc2
|
2.81
|
0.343
|
0.67
|
70
|
3.5
|
-
|
0.05
|
0.075
|
|
xc3
|
3.66
|
0.447
|
0.91
|
400
|
20
|
-
|
0.05
|
0.125
|
|
xc4
|
4.23
|
0.516
|
700
|
55
|
-
|
0.05
|
0.025
|
|
xc5
|
4.51
|
0.55
|
1.01
|
1500
|
75
|
-
|
0.05
|
0.075
|
|
xarm
|
1
|
0.124
|
0.08
|
3
|
0.32
|
-
|
0.1025
|
0.125
|
|
xbase
|
4.54
|
0.554
|
0.28
|
8
|
1.64
|
-
|
0.1025
|
0.25
|
|
δ
|
1
|
0.124
|
-
|
-
|
-
|
193
|
0.01
|
-
|
|
δ1
|
1
|
0.124
|
-
|
-
|
-
|
97
|
0.01
|
-
|
|
δ2
|
4.54
|
0.554
|
-
|
-
|
-
|
76
|
0.00025
|
-
|
2.
CALCULATION OF WINDING
2.1. Determination of final MMF of a winding, taking
into account safety factor
task is to calculate the winding knowing next parameters: l=250
mm; h=80 mm; (Iw)=1521.64 A; U=36 V. Winding is made of copper. α0=4.3∙10-3 K-1 is
the temperature coefficient of copper; ρ0=1.62∙10-8 Ω∙m - is
specific resistance of copper; q=105°C - is permissible heat temperature of the
winding. I determine finally MMF of a winding taking into consideration safety
factor kЗ taken from the interval
1.3…1.5.
,(Iw)
- is the magnetic motive force of the electromagnet A;
2.2. Calculation of the winding parameters
The resistance of
copper ρq
can be defined:
,ρ0=1.62∙10-8 Ω∙m - is specific
resistance of copper;
α0=4.3∙10-3 K-1 - is the temperature
coefficient of copper;=105°C - is permissible heat temperature of the
winding.length of one turn
,
where h - is the
distance between the core and the yoke, m;- is the diameter of the core, m.
but keeping some place in reserve, let 
,(Iw)final
- is the magnetic motive force of the electromagnet A;
ρq - is the resistance of
copper, Ω∙m;в.ср. - is average length of one turn,
m;- is voltage, V.one must choose the most suitable diameter of the wire;
Then the cross-section of the wire is to be found:
,
where dw - is the diameter of the wire, m.I find the number
of turns in the coil
,
where U - is voltage, V;доп - is current density, A/m2;
ρq - is the
resistance of copper, Ω∙m;в.ср. - is average length of
one turn, m.the square of the winding is to be found;
,w
- is the number of turns in the coil;
q0 - is the cross-section of the wire;з - is the space factor coefficient
equaled to 0.656.the width of the winding can be found:
,
where Q0 - is the square of the winding, mm2;- is the length
of the yoke, mm.
equivalent circuit magnetic steel
2.3.
Determination of pure resistance and MMF
of the wire
first, I find the resistance of the coil:
,
where ρq - is the
resistance of copper, Ω∙m;
w - is the number of turns in the coil;
lв.ср. - is average length of one turn, m.
q0 - is the cross-section of the wire, m2.it is possible to
calculate the current flowing in the winding:
,U
- is the voltage in the winding, V;- is the resistance of the coil.it is
necessary to check whether the current density was chosen correctly:
where I - is the current flowing in the winding, A;-
is the cross-section of the wire, m2., the density is correct., it is possible
to calculate the pure MMF of the coil:
The error is:
3.
Determination of the magnetic flux
3.1. Calculation of air-gaps
task is to find the magnetic flux and electromagnetic force
through the operating air gap of the electromagnet, figure 1.1., knowing next
parameters: a=10 mm; d=25 mm; d2=20 mm; l=250 mm;
h=80 mm; δ=δ1=0.2 mm; δ2=0.25 mm; winding power
voltage U=36 V; magnetic circuit material is stee of quality 50HXC; (Iw)w=764.32
A.bulging fluxes will be neglected as the dimensions of the pole. According to
equivalent circuit, figure 2.1., operating and parasitic air-gaps permeances
will be determined.air-gap:
,µ0
- is magnetic constant, or vacuum permeability,
;
d - is the diameter of the core, m;
δп - is the value of the operating
air-gap, m.air-gaps:
,µ0
- is magnetic constant, or vacuum permeability,
;
h - is the distance between the core and the yoke, m;- is the
thickness of the core, m;
δп - is the value of the operating air-gap, m;-
is the diameter of the core, m.
-
it was found in the 1st part.permeance is equal to:
3.2. Determination of initial estimate magnetic
flux through the air-gap
to the determination of MMF:
where Ф - is the magnetic flux, Wb;
Λδ -
is the magnetic permeance, H.
In our case we may use for first approximation the
next formula:
from which:
Then the induction of the core is found:
where Ф - is the magnetic flux, Wb;
Λδ -
is the magnetic permeance, H;
d - is the diameter of the core, m.the found induction is
greater than the saturation induction the saturation one is taken from the
graph of magnetic curves:
,then
this
graph we also must find magnetic intensity of the steel:
Then the induction of the armature and the base of the
yoke is found
,
Then one can find the induction of the yoke:
,
where Ф - is the magnetic flux,
Wb;- is the diameter of the yoke, m;- is the distance between the core and the
yoke, m.the graph of magnetic curves the magnetic intensity is found:
Now let’s find the potential magnetic drop of the
iron:
,
the magnetic flux can be found:
that
everything from the formula 3.1 should be repeated till the relative difference
between previous and new approximation of magnetic flux is equal to 5%.
|
1
|
2
|
3
|
4
|
|
Ф, mWb
|
0.54
|
0.43
|
0.405
|
0.398
|
|
Bc, T
|
1.1
|
0.88
|
0.78
|
0.76
|
|
Ba/Bb, T
|
0.35
|
0.24
|
0.18
|
0.15
|
|
By, T
|
0.09
|
0.077
|
0.059
|
0.033
|
|
Hc, A/m
|
4000
|
500
|
100
|
14
|
|
Ha/Hb, A/m
|
10
|
9
|
8
|
7
|
|
Hy, A/m
|
3
|
2.9
|
2.3
|
2
|
3.3. Determination of electromagnet force
As δ=0.1 mm, then
Maxwell’s
formula will be used for finding electromagnetic pulling force:
,
where Ф - is the magnetic flux,
Wb;
µ0 - is magnetic constant, or vacuum permeability,
;- is the square of the core, m2.
4. Defining of actuation time
calculate actuation time, knowing next parameters:
Then the average magnitude of counteracting force is
to be found:
Then the inductance of the winding is to be found:
,
where
ΛδΣ - is the total permeance of the electromagnet, H;
,L
- is the inductance of winding, H;- is the resistance of the coil, Ω;з -
is the assurance factor.let’s find the mass of movable parts:
,V
- is the volume of the armature, m3;
ρst - is
the density of steel, kg/m3.
Then the moving time is determined:
,m
- is the mass of the movable parts, kg;
δп -
is the value of the operating air-gap.time is equal to:
.
Conclusions
electromagnet is simply a coil of wire. It is usually wound
around an iron core. However, it could be wound around an air core, in which
case it is called a solenoid. When connected to a DC voltage or current source,
the electromagnet becomes energized, creating a magnetic field just like a
permanent magnet. The magnetic flux density is proportional to the magnitude of
the current flowing in the wire of the electromagnet. The polarity of the
electromagnet is determined by the direction the current. The north pole of the
electromagnet is determined by using your right hand. Wrap your fingers around
the coil in the same direction as the current is flowing (conventional current
flows from + to -). The direction your thumb is pointing is the direction of
the magnetic field, so north would come out of the electromagnet in the
direction of your thumb. DC electromagnets are principally used to pick up or
hold objects.connected to an AC voltage or current source, the electromagnet
will be changing its flux density as the current fluctuates. The polarity of
the magnet will also change as the current reverses direction every half cycle.
AC electromagnets can be used to demagnetize objects (like TV screens, audio
tapes, vcr tapes) or to hold objects. However, due to the inductance of the
electromagnet, the AC current that will actually flow will be reduced when
compared to a DC voltage equal to the RMS value of the AC voltage feeding the
electromagnet.key importance of an electromagnet is the ability to control the
strength of the magnetic flux density, the polarity of the field, and the shape
of the field. The strength of the magnetic flux density is controlled by the
magnitude of the current flowing in the coil, the polarity of the field is
determined by the direction of the current flow, and the shape of the field is
determined by the shape of the iron core around which the coil is
wound.electromagnets are used in lots of things. Motors are the most prominent
example. Every electric motor uses at least one electromagnet. Most use two,
one stationary and one moving. Sometimes one or the other of them is a
permanent magnet. Generators, being the alter ego of motors, also use
electromagnets. Loudspeakers and earphones use electromagnets to drive the
diaphragm. Televisions use electromagnets to direct the electron beam on the
screen. Scrap heaps use electromagnets to pick up large ferrous items like
junked cars. Also fire doors as they can shut after detecting a fire the doors
lock after a few minutes so people are safe outside and don’t return back into
the building.
REFERENCES
1. Лоптев
- Справочник по высокоточным электрическим аппаратам
2. Буткевич
Г.В., Дегтярь В.Г., Сливинская А.Г. Задачник по электрическим аппаратам. - М.:
Высшая школа, 1987. - 232 с
. Таев
И.С. Электрические аппараты: Общая теория. - М.: Энергия, 1977. 272 с.
. Сахаров
В.П. - Проектрирование электрических аппаратов. Общие вопросы проектирования:
Учебное пособие для студентов электротехнических вузов. - М.: Энергия, 1971. -
560 с.
. Буль
Б.К., Буткевич Г.В., Годжелло А.Г. и др. Основы теории электрических аппаратов/
Под ред. Г.В. Буткевича. - М.: Высшая школа, 1970.- 600 с.
6. Electromagnets
design: Performance guide for the course design on the subject: "The
fundamentals of electrical apparatuses theory" for the students of the speciality
8.092206 - " Electrical machines and apparatuses" /Comp.: O. V.
Blyznjakov. - Zaporihzhza: ZNTU, 2005. - 17 p.