|
|
МПа
|
|
|
АК4-1Т1
|
-196 70 20 125
150 175 200 250
|
- 72000 62500
60000 58500 55000 50000
|
510 430 395 370
370 330 310 240
|
420 360 350 340
330 300 260 190
|
13 7 7 7 9 11
14 19
|
|
|
|
|
|
|
Нагрев при температуре 125º С практически не изменяет значения механических свойств при
кратковременном растяжении как при комнатной температуре, так и при температуре
выдержки. В случае нагрева при температуре 150º С наблюдается вначале
некоторое упрочнение при выдержке до 1000 - 2500 ч, а затем понижение
прочностных свойств. После выдержки в течение 30 000 ч понижение пределов
прочности и текучести составляет 8-9% по сравнению с первоначальными значениями
при соответствующих температурах.
Длительное воздействие температуры 175º С приводит к значительному понижению прочностных свойств. За 20
000 ч при 175º С значения пределов прочности и текучести
при комнатной температуре понижаются до 340 и 270 МПа соответственно. При
температуре 175º С предел прочности составляет 250 МПа.
Однако значительное разупрочнение претерпевают листы уже после
нагрева при температурах 300 - 310º С, при этом получаются следующие значения механических
свойств:
=160 - 170 МПа,
=80 - 90 МПа,
=20 - 22%. Минимальные значения
прочностных свойств, особенно предела текучести, и максимальные значения
пластичности у этих листов наблюдается только после отжига при температуре 350º С и выше, в этом случае в сплаве
происходит полная рекристаллизация. В этом материале после критической
деформации и закалки образуется крупнозернистая структура с пониженными
значениями механических свойств.
С увеличением температуры нагрева под закалку от 500 до 550º С прочностные характеристики
увеличиваются без снижения относительного удлинения. При увеличении времени
выдержки с 10 до 80 мин при нагреве под закалку приводит к повышению
прочностных показателей и некоторому снижению относительного удлинения.
При комнатной температуре этот сплав упрочняется очень медленно и
даже после 30 суток старения прочностные характеристики не достигают
максимальных значений. Исследования показали, что оптимальным режимом
искусственного старения листов из указанного сплава, обеспечивающим высокие
прочностные свойства и удовлетворительную коррозионную стойкость, является
старение при температуре 190 - 195ºС в течении 10 - 25ч.
Механические свойства металлических материалов в значительной
степени определяются структурой - величиной зерна. Листы из сплава АК4-1 с относительно
крупным зерном (38мкм) обладают повышенными значениями характеристик
жаропрочности, длительной прочности и сопротивлением ползучести, а также имеют
более высокие характеристики надежности. Оптимальный диаметр зерна в структуре
листовых материалов 35 - 50 мкм.
1.5
Применение листов из сплава АК4-1
Ряд деталей и элементов конструкций, изготовленных из
алюминиевых сплавов, подвергается в работе длительному или кратковременному
воздействию повышенных температур (порядка 200-300ºС). В этом случае от
материала требуется не только высокая механическая прочность при комнатной и
повышенных температурах, но и достаточная длительная прочность (жаропрочность).
Помимо указанных выше основных требований, к материалам,
работающим при высоких температурах, в зависимости от условий работы
предъявляется ряд других специфических требований (стойкость против окисления,
высокая теплопроводность, малые изменения линейных размеров, высокая
коррозионная и эрозионная стойкость и т.д.).
Листы из сплава АК4-1 по сравнению с
листами из других алюминиевых деформированных сплавов менее склонны к
охрупчиванию после длительного (~30 000 ч) воздействия повышенных температур (120-150ºС), менее чувствительны к трещине и, кроме того, обладают
большим пределом ползучести при повышенных температурах.
В результате этого листы из сплава АК4-1
нашли широкое применение для изготовления штамповок колес компрессоров,
воздухозаборников, крыльчаток мощных вентиляторов, поршней, лопаток и других
деталей. По прочности сплав АК4-1 уступает сплаву Д16 примерно в интервале до
150°, а выше этой температуры он превосходит последний.
2.
Разработка технологического процесса изготовления детали
2.1
Конструктивно-технологический анализ детали
Под технологичностью понимают совокупность
свойств и конструктивных элементов, которые обеспечивают простое и экономичное
изготовление деталей при соблюдении технических и эксплуатационных требований к
ним.
Проведем анализ технологичности
изготовления детали Рисунок 4.
Рисунок 4 - Эскиз детали.
Основные технологические требования к
конструкции полых листовых деталей, изготовленных вытяжкой:
. Данная деталь имеет простую симметричную
форму.
. Радиус закругления у дна R=25 мм, что
соответствует технологическому требованию: R≥ (2÷4) S= (2÷4) 2,5=5÷10 мм.
Основные технологические требования к
конструкции полых листовых деталей при отбортовки отверстий:
. В вытянутых деталях, имеющих отверстие в
дне, пробиваемое после вытяжки, расстояние от стенки до края отверстия должно
быть с>R+0,5s
=25 +2·2,5 =30мм; с черт. =
(350-105-2·2,5) /2 = 120мм.
Таким образом, конструкция детали
соответствуют технологическим требованиям изготовления.
2.2
Определение размеров и формы исходной заготовки
При определении размеров заготовки при
вытяжке является условие равенства объемов заготовки и готовой детали.
При вытяжке без утонения стенок изменением
толщины материала обычно пренебрегают, и определение размеров заготовки
производят по равенству площади поверхности заготовки и готовой детали с припуском
на обрезку.
Рисунок 5 - Расчет исходной заготовки.
Наш случай относится к вытяжке без
утонения. Заготовка имеет форму
круга, диаметр которого находится по
формуле 9 табл.32 [1]:
где
- припуск на обрезку табл.34 [1],
= 12мм.
+
= 400+ 12 = 412мм
При вытяжке деталей из материала толщиной свыше 1мм подсчеты
производим по средней линии.
Диаметр заготовки будет
=
Таким образом, получили заготовку диаметром равным 823,5мм.
2.3
Выбор варианта раскроя
Раскрой листового материала должен
обеспечить минимальный расход материала, высокую производительность штампа,
качество штампуемых деталей и стойкость штампа.
Экономия металла в штамповочном
производстве во многом определяется рациональным раскроем - целесообразным
расположением детали на заготовке. Насколько важен рациональный раскрой, видно
из того, что стоимость материала составляет 60-80% от стоимости изделия, а
отходы при листовой штамповке составляют 30-40%.
При штамповке из листа раскрой начинают с
определения выгодного расположения деталей (заготовок) на полосе. Затем
определяют выгодный раскрой листа на полосы. Показателем экономичности
сравниваемых вариантов раскроя является коэффициент использования материала,
который подсчитывается для листа.
Произведем раскрой материала для данной
детали. Выбираем прямой тип раскроя с отходом в соответствии с табл.136 [1].
Рисунок 6 - Раскрой полосы
Ширину полосы без прижима определяем по
формуле:
В = D + 2 (b +
) + z;
где В - номинальная ширина полосы;- диаметр заготовки;- наибольшая
ширина боковой перемычки; b = 1,8мм табл.139 [1].- гарантийный зазор между
направляющей и наибольшей шириной
полосы, z= 1,5мм табл.143 [1];
- односторонний допуск на ширину полосы,
= 2мм табл.144 [1].
В = 823,5 + 2· (1,8 + 2,0) + 1,5 = 832,6мм
Полученный результат следует округлить до 1мм в большую сторону.
Принимаем В = 833мм.
Шаг подачи t = D + а = 823,5 + 1,8 = 825,3мм; где а - перемычка.
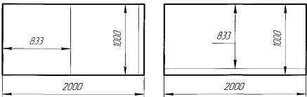
Возможные варианты раскроя изображены на рисунке 7.
Вариант 2 Вариант
Рисунок 7 - Варианты раскроя листа
Определим число полос из листа по I
варианту
Определим число заготовок из листа по I варианту
Определим число полос из листа по II варианту
Определим число заготовок из листа по II варианту
Определим коэффициент использования материала по формуле:
%
где f - площадь заготовки;- количество деталей из полосы;-
количество полос из листа;
Ал и Вл - длина и ширина листа.
= 3,14.823,52/4 = 532349,5мм2.
Для I варианта получаем
% = 70,98%
Для II варианта получаем
% = 70,98%
Из приведенного расчета следует, что по коэффициенту использования
материала I и II варианты равны, и можно использовать любой вариант. Но т.к. во
II варианте режется меньше полос, а деталей получается больше, то рациональным
является II вариант раскроя, поэтому выбираем его.
2.4
Количество, последовательность и степень совместимости операций
Количество и последовательность операций
изготовления детали определяется конфигурацией детали, сочетанием
конструктивных элементов, требуемой точности.
Определим количество операций вытяжки для
нашей детали.
По табл.45 [1] для первой вытяжки цилиндрических деталей при (S/D)
100 = 2,5·100/823,5=0,3 имеем значение коэффициента вытяжки
= 0,56 - 0,58, т.е. нашу деталь получить за один переход не
возможно.
Примем для первого перехода вытяжки
= 0,65;
тогда
= 0,65×823,5 = 535мм
По табл.45 [1] т2 = 0,76-0,78
Примем для второго перехода вытяжки т2 = 0,78;
тогда d2 = 0,78·535=417,5мм.
=0,84;
По табл.45 [1] т3 = 0,78 - 0,80 т.е. нашу деталь
можно получить за три перехода.
Размер отверстия под отбортовку определим по формуле:
мм
Коэффициент отбортовки
По таблице 111 [1] при d/s = 7,6/2,5 =3 и получении отверстия в
штампе допустимый коэффициент отбортовки
= 0,42; т.е. отбортовку нельзя получить без предварительной
вытяжки.
По табл.53 [1] для вытяжки под отбортовку цилиндрических деталей
при (S/D) 100=2,5·100/350=0,71 и dф/d=350/102,5 = 3,4 имеем значение
коэффициента вытяжки т0 = 0,34, т.е. вытяжку под отбортовку
можно получить за один переход.
Для изготовления нашей детали принимаем следующий технологический
процесс:
1.
Резка
листа на полосы.
2.
Вырубка
заготовки и I вытяжка в штампе.
3.
II
вытяжка
4. III вытяжка
5.
Вытяжка
под отбортовку
6.
Вырубка
дна
7.
Обрезка
торцев.
8.
Сдача
продукции.
2.5
Расчет энергосиловых параметров
Определим усилие резки полос на
гильотинных ножницах по формуле:
где
- угол створа ножей;
= 1°30'
- напряжение
среза; для АК4-1
= 320МПа= 2,5 мм - толщина материала;
= 1,3 - коэфф. затупления ножей.
Определим усилие вырубки заготовки в штампе по формуле:
где L - длина вырубаемого контур,
= 320МПа - сопротивление срезу.
Р = 2585,8 · 2,5 · 320 = 2068600 Н
2069 кН
Усилие I вытяжки
где
- коэфф-нт по таблице 73; при
= 0,65 и (S/D) 100 = 2,5-100/823,5 =0,74;
=0,6.
= 400 МПа - предел прочности.
Усилие прижима для вытяжки

= 0,25 · 3,14∙ [823,52 - (535 - 2 · 25) 2]
· 1,4 = 486777Н
487кН
Суммарное усилие " вырубки" будет:
Р∑ = 2069 + 2,9 = 2072кН
Суммарное усилие на операции "Вырубка - I вытяжка ":
Р∑ = 2069 + 2,9 + 1008 + 487
3567кН
Усилие II вытяжки определим по формуле:
где
- коэфф-нт по таблице 74 [1]; при т2
= 0,78 и (S/D) 100 = 2,5 ∙ 100/823,5 =0,74;
= 0,82.
= 400 МПа - предел прочности.
Рв2 = 3,14 ∙ 417,5 ∙ 2,5 ∙ 400 ∙
0,82 = 1075000Н
1075кН
Усилие III вытяжки определим по формуле:
где
- коэффициент по таблице 74 [1];
при т3 = 0,84 и (8/0) 100 = 2,5-100/823,5 =0,74;
= 0,46.
Рв3 = 3,14 · 350 · 2,5 · 400 · 0,46 = 505540Н
506кН
Определим усилие вытяжки под цилиндра Ø 100
= 3,14∙102,5∙2,5∙400∙1 = 322000Н
322кН
где kф - коэффициент по таблице 75 [1];
при т0 = 0,29 и d
/d = 350/102,5 = 3,4; kФ = 1.
2.6
Выбор оборудования
На основании проведенных расчетов по
каталогу [5] выбираем следующее оборудование. Для операции резки полос
принимаем гильотинные ножницы модели НА-3118 со следующими характеристиками:
Усилие реза, кН 600
Наибольший размер металла с временным
сопротивлением 500мПа толщина, мм 6,3 ширина, мм 2000
Угол наклона подвижного ножа 1,5°
Сила прижима, т 2,5
Мощность эл. двигателя 9квт
Габариты, мм 2850x2580x1945
Масса, т 5
Для операции вытяжка выбор пресса
основываем по величине рабочего хода. Для вытяжки детали на провал величина
рабочего хода принимается
Н= 1,5НД= 1,5 · 412 = 618мм
Принимая во внимание, что развиваемое усилие пресса зависит от
угла поворота кривошипа принимают Р
= 1,5Р
.
Для операции "Вырубка - 1 вытяжка " вырубка заготовки
осуществляется пуансоном прикрепленном к наружному ползуну пресса
Рпр. н. п. = 1,5 · 2069 = 3100кН.
Выбираем пресс модели К5535 однокривошипный двойного действия
с неподвижным столом. Этот пресс предназначен для выполнения
операций вырубки и вытяжки.
Основные характеристики пресса К5535:
Номинальное усилие внутреннего ползуна 2000 кН.
наружного ползуна 3150 кН.
Ход внутреннего ползуна 670мм.
наружного ползуна 420мм
Наибольшее расстояние между столом и внутренним ползуном в его
нижнем положении при верхнем
положении регулирования 950мм
То же наружного ползуна 850мм
Размер стола 1500x1500мм
Габариты:
Длина 3600мм.
ширина 3020мм.
высота 4540мм.
Мощность эл. двигателя 75квт.
Масса 77,9т
Принимаем этот пресс для всех операций нашего техпроцесса.
2.7
Описание работы штампа
Для первой операции "Вырубка
заготовки и I вытяжка" применяем комбинированный штамп для вырубки заготовки
и вытяжки цилиндрической детали. Штамп устанавливается на кривошипный пресс
двойного действия.
Основными узлами штампа являются комплекты
верхних и нижних плит с направляющими колонками (9), так называемые блоки и
пакеты. К нижней плите штампа (7) врезаны и прикреплены винтами (13, 14)
вырубная матрица (1) и вытяжной пуансон (3). К верхней плите штампа (8)
прикреплена винтами (12) и штифтами (15) матрица-пуансон (4), служащая вырубным
пуансоном и вытяжной матрицей.
Работа штампа заключается в следующем:
В рабочую зону штампа по упору (11)
устанавливается полоса. При ходе наружного ползуна пресса (10) вниз происходит
вырубка заготовки. После
смыкания верхней части штампа,
закрепленного на наружном ползуне, вырубной пуансон работает как прижим сверху.
В это время в работу вступает вытяжной пуансон и происходит вытяжка детали.
Необходимый для вытяжки прижим снизу создается прижимным кольцом (2),
действующим от нижнего буфера (6). При обратном ходе наружного ползуна
происходит снятие отхода с пуансона-матрицы прижимным съемником (16), отход
разрезается ножами по перемычке. Выталкивание детали из пуансона-матрицы
осуществляется выталкивателем (5) принудительного действия (от планки пресса).
После получения детали, полоса
продвигается, фиксируется по упору на отверстие предыдущей заготовки,
включается рабочий ход и происходит изготовление следующей детали и т.д.
Список
использованных источников
1. Романовский,
В.П. Справочник по холодной штамповке. - 6-е изд., [Текст] / перераб. и доп. -
Л.: Машиностроение. Ленингр. отд-ние, 1979 г. - 520 с., ил.
2. Зальцман,
И.Я. Алюминиевые сплавы. Структура и свойства полуфабрикатов из алюминиевых
сплавов. Справочник. [Текст] / И.В. Ольшанская, Е.Б. Вайнштейн, В.З. Казакевича
и др. - М.: Металлургия, 1974 г. - 432 с.
. Мальцев,
М.В. Металлография промышленных цветных металлов и сплавов.2-е изд., [Текст] /
перераб и доп. - М.: Металлургия, 1970 г. - 364с.
. Колобнев,
И.Ф. Термическая обработка алюминиевых сплавов. [Текст] / К.Д. Мишарина, П.Г.
Ислентьева - М.: Металлургизд, 1961г.
. ЦИНТИАМ.
Каталог. [Текст] / - М: 1969-451с.