Цилиндрический редуктор с консольной шестерней

  • Вид работы:
    Дипломная (ВКР)
  • Предмет:
    Другое
  • Язык:
    Русский
    ,
    Формат файла:
    MS Word
    1,02 Mb
  • Опубликовано:
    2011-10-23
Вы можете узнать стоимость помощи в написании студенческой работы.
Помощь в написании работы, которую точно примут!

Цилиндрический редуктор с консольной шестерней

Исходные данные

Твр = 650 Нм.вр = 45 об./мин.дв = 1000 об./мин

Срок службы привода T = 1000 ч.

Тип нагрузки - постоянный.

Tmax/Tном=2,1.

Цилиндрический редуктор с консольной шестерней

1 - двигатель; 2 - муфта; 3 - редуктор; 4 - цепная передача.

Содержание

1. Введение

. Выбор электродвигателя и кинематический расчёт

.1 КПД привода

.2 Мощность на вращающемся валу привода

.3 Oбщее передаточное отношение

.4 Разбивка передаточного отношения

.5 Крутящие моменты на валах

.6 Частоты врашения валов

. Расчёт цилиндрической зубчатой передачи

.1 Выбор материалов шестерни и колеса

.2 Допускаемые контактные напряжения на выносливость

.3 Проектировочный расчет на контактную выносливость

.3.1 Межосевое расстояние

.3.2 Модуль зацепления

.3.3 Числа зубьев колес

.3.4 Фактическое передаточное отношение

.3.5 Фактический угол наклона зубьев

.3.6 Основные размеры шестерни и колеса

.3.7 Коэффициент перекрытия передачи

. Усиия в зацеплении

. Проверочный расчёт спроектированной передачи

.1 Расчет на контактную выносливость

.2 Расчет на контактную прочность при действии Тmax

.2.1 Допускаемые контактные напряжения

.2.2 Действительные максимальные напряжения

. Расчет цепной передачи

. Предварительный расчёт валов редуктор

.1 Ведущий вал

.2 Ведомый вал

. Конструктивные размеры шестерни и колеса

. Конструктивные размеры корпуса редуктора

. Проверка долговечности подшипника

.1 Ведущий вал

.2 Ведомый вал

. Проверка прочности шпоночных соединений

.1 Ведущий вал

.2.Ведомый вал

. Уточненный расчёт валов

.1 Ведущий вал

.2 Ведомый вал

. Выбор сорта масла

. Технология сборки редуктора

. Заключение

. Список использованной литературы


1. Введение

цилиндрический редуктор шестерня

В машиностроении находят широкое применение редукторы - механизмы, состоящие из зубчатых или червячных передач, выполненных в виде отдельного агрегата и служащих для передачи вращения от вала двигателя к валу рабочей машины. Кинематическая схема привода может включать, помимо редуктора, открытые зубчатые передачи, цепную или ременную передачу.

Назначение редуктора - понижение угловой скорости и соответственно повышение вращающего момента ведомого вала по сравнению с валом ведущим. Механизмы, служащие для повышения угловой скорости, выполненные в виде отдельных агрегатов, называют ускорителями или мультипликаторами.

Конструктивно редуктор состоит из корпуса (литого, чугунного или сварного стального), в котором помещаются элементы передачи - зубчатые колеса, валы, подшипники и т.д. В отдельных случаях в корпусе редуктора размещают также устройства для смазывания зацеплений и подшипников или устройства для охлаждения.

Редуктор проектируют либо для привода определенной машины, либо по заданной нагрузке (моменту на выходном валу) и передаточному числу без указания конкретного назначения.

Редукторы классифицируют по следующим основным признакам: типу передачи (зубчатые, червячные или зубчато-червячные); числу степеней (одноступенчатые, двухступенчатые и т. д.); типу зубчатых колес (цилиндрические, конические, коническо-цилиндрические и т. д.); относительному расположению валов редуктора в пространстве (горизонтальные, вертикальные); особенностям кинематической схемы (развернутая, соосная и т.д.)

 

2. Выбор электродвигателя и кинематический расчёт


.1 КПД привода

По табл. 1.1 [1] примем следующие значения КПД:

для закрытой зубчатой цилиндрической передачи: 1 = 0,98

для открытой цепной передачи: 2 = 0,92

коэффициент, учитывающий потери пары подшипников кочения, 3 = 0,99.

Общий КПД привода будет: 0,875.

.2 Мощность на вращающемся валу привода

Nвр= (Твр*nвр) / 9550 = 3 кВт.

Nдв = Nвр /  = 3/0,875 = 3,5 кВт.

В таблице П.1 (см. приложение [1]) по требуемой мощности выбираем электродвигатель (ГОСТ 19523 - 81) трехфазный короткозамкнутый серии А4, закрытый, обдуваемый, с синхронной частотой вращения 1000 об/мин 4А112МВ6У3, с параметрами:

Nдв = 4 кВт;

скольжением S=5,1;

d1=32 мм;

l3=80 мм.

Номинальная частота вращения nдв=Nсин(1- S) = 1000(1-0,051) = 949 об/мин,

.3 Oбщее передаточное отношение

U = nдв / nвр = 949 / 45 = 21

.4. Разбивка передаточного отношения.

U = U1U2 = 1,1U22

U1 = 1,1U2

U2 = √(U/1,1) ≈ 4

U1 = 21/4 = 5,25

.5 Крутящие моменты на валах

а) вращающийся вал конвееравр = 650 Нм

б) тихоходный валТ = 650 / (4*0,98*0,992) = 180 Нм.

в) Быстроходный вал приводаб = 180 / (5,25*0,98*0,99) = 35,3 Нм.

.6 Частоты врашения валов

б = 949 об/мин,т = nб / Uцил = 949 / 5,25 = 180,76 об/мин,вр = nт / Uцеп = 180,76 / 4 = 45,19 об/мин.

3. Расчёт цилиндрической зубчатой передачи


1 - шестерня 2 - колесо.

3.1 Выбор материалов шестерни и колеса


Так как в задании нет особых требований в отношении габаритов передачи, выбираем материалы со средними механическими характеристиками (см. таблица 8.7 [2]).

Зубчатое колесо

Марка стали

Твердость

в, МПа

Т, МПа

Термообработка

Шестерня

40ХН

230…300

850

600

Улучшение

Колесо

45

192…240

750

450

Улучшение


Для косозубых колес Н1 = Н2 + (80…120)НВ.

Принимаем: Н1 = 300НВ Н2 = 200НВ.

.2 Допускаемые контактные напряжения на выносливость

[H] = (H lim b* KHL) / [SH], (формула (3.9) [1]),

где H lim b - предел контактной выносливости при базовом числе циклов;

KHL - коэффициент долговечности;

[SH] = 1,1 - коэффициент безопасности.

По таблице 3.2 гл. 3 [1] имеем для сталей с твердостью поверхностей зубьев менее HB 350 и термической обработкой (улучшением):

H lim b = 2Hi + 70 .

H lim b1 = 2 * 300 + 70 = 670 МПа;

H lim b2 = 2 * 200 + 70 = 470 МПа;

Коэффициент долговечности:

KHL = (NH0i / NHi)1/6,

где NH0i - базовое число циклов нагружения;

NH0i = 30Нi2,4

H01 = 30 * 3002,4 = 2,6437*107

NH02 = 30 * 2002,4 = 0,999*107

Hi = 60* ni * C * t * Крев * μк

n - частота вращения, об./мин.;= 1 - число колёс, находящихся в зацеплении;= 1000 ч. - продолжительность работы передачи в расчётный срок службы.

μк = 1 - клэффициент режима работы.

NH2 = 60 * 180,76 * 1 * 1000 * 0,5 * 1 = 0,54228*107

NH1 = NH2 * U1 = 0,54*107 * 5,25 = 2,84697*107

В итоге получаем:

КHL1 = (2,6437*107 / 2,84697*107 )1/6 = 1,

КHL2 = ( 0,999*107 / 0,54228*107 )1,6 = 1,1.

Допустимые контактные напряжения:

для шестерни [ H1 ] = (670 * 1) / 1,1 = 609 МПа,

для колеса [ H2 ] = (470 * 1,1) / 1,1 = 470 МПа.

Для косозубых колес расчетное допускаемое контактное напряжение определяется по формуле (3.10) гл. III [1] :

[ H ] = 0,45( [ H1 ] + [ H2 ] ) = 0,45*(609+470) = 486 МПа.

Требуемое условие [ H ]min ≤ [ H ] ≤ 1,23[ H ]min

470 ≤ 486 ≤ 578

Условие выполнено.

.3 Проектировочный расчет на контактную выносливость

.3.1 Межосевое расстояние

a = Ka*(U + 1) * (T2 * K / [ H ] 2 * U2 * ba ) 1/3

Принимаем коэффициент симметричности расположения колес относительно опор по таблице 3.5 [1] : K = 1,2 ( при консольном расположении шестерни).

Коэффициент ширины зацепления ba = b / a = 0,15 … 0,5 (см. стр. 36 [1]). Примем: ba = 0,2 ( при консольном расположении шестерни).

Для косозубых колес Ka= 430.

Межосевое расстояние из условия контактной выносливости активных поверхностей зубьев найдем по формуле 3.7 гл. 3[1]:

a = 430 * (5,25 + 1) * (180 * 1,2 / 4862* 5,252 * 0,2)1/3 = 147,67 мм

Примем: a = 150 мм.

.3.2 Модуль зацепления

m = (0.015 ... 0.03) * a, мм

m = 2,25 … 4,5 мм.

по ГОСТ 9563-60* (см. стр. 36 [1]) принимаем m = 3 мм.

.3.3 Числа зубьев колес

Z = 2a*cosβ / m = 2 * 150 * cos20 / 3 = 93,969

При ba = 0,2 примем предварительно угол наклона зубьев β = 20°.

Числа зубьев шестерни и колеса:

z1 = Z / (U + 1) = 93,969 / (5,25 + 1) = 15,035

Принимаем: z1 = 15

z2 = z1* U = 15 * 5,25 = 78,75

Принимаем: z2 = 79.

.3.4 Фактическое передаточное отношение

Uф = z2 / z1 = 79 / 15 = 5,267

Проверка: ((5,25 - 5,267) / 5,25) * 100% = 0,32% < 3%.

.3.5 Фактический угол наклона зубьев

βф = arccos(m(z1+z2) / 2a) = arccos(3*(15+79) / 2*150) = 19,9484°

cosβф = 0,94.

.3.6 Основные размеры шестерни и колеса

диаметры делительные:

d1 = m * z1 / cos βф = 3 * 15 / cos(20) = 47,872 мм;

d2 = m * z2 / cos βф = 3 * 79 / 0,94 = 252,128 мм.

Проверка: a = (d2 + d1) / 2 = (252,128 + 47,872) / 2 = 150 мм.

диаметры вершин зубьев:

da1 = d1 + 2m = 47,872 + 2 * 3 = 53,872 мм;

da2 = d2 + 2m = 252,128 + 2 * 3 = 258,128 мм.

диаметры впадин зубьев:

df1 = d1 - 2,5m = 47,872 - 2,5 * 3 = 40,372 мм;

df2 = d2 - 2,5m = 252,128 - 2,5 * 3 = 244,628 мм.

ширина колеса: b2 = ba * aТ = 0,2 x 147,67 = 29,534 мм;

примем b2 = 30 мм.

ширина шестерни: b1 = b2 + (2…4) = 30 + 4 = 34 мм.

.3.7 Коэффициент перекрытия передачи

Торцевое перекрытие:

εa = 1,88 - 3,2 *((1/z1)+(1/z2)) cosβф = 1,88 - 3,2 * ((1/15)+(1/79)) * 0,94 = 1,64 > [1,2]

εβ = b*sinβ / pm = 30*sin19,9484 / 3,14*3 = 1,1 > [1].

4. Усиия в зацеплении

Силы, действующие в зацеплении ( формулы (8.3) и (8.4) гл. VIII [1]):

окружная: Ft1 = Ft2 = 2000 * T / d = 2000 * 180 / 252,128 = 1427, 85 Н;

радиальная: Fr1 =Fr2 = Ft * tg() / cos() = 1427,85 tg(20o) / cos(19,9484) = 552,87 Н;

осевая: Fa1 = Fa2 = Ft * tg() = 1427,85 * tg(19,9484) = 518, 24 Н.

5. Проверочный расчёт спроектированной передачи


.1 Расчет на контактную выносливость

H = (6135 * zн * zε / а) * √ (Т2нβнv*KHa*(U+1)3) / (b*U2).

zн = √ 2*cosβ / sin2a = √ 2* cos19,9484 / sin(2*20) = 1,71.

ε = √ 1 / εa = √ 1 / 1,64 = 0,78.

Кнβ = 1,15 (для консольной схемы).

Кнv = f(V)

V= pd2n2 / 60*1000 = (3,14*252,128*180,76) / (60*1000) = 2,385 м/с.

Кнv*KHa = 1,13 (степень точности 8).

H = (6135 *1,71*0,78 / 150)* √ (180*1,15*1,13*(5,25+1)3) / (30*5,252) =

= 453,355 МПа < [H ] = 486 МПа

Передача удовлетворяет степени точности.

Недогрузка: ((453,355 - 486) / 486) * 100% = 6,7% < 10%

.2 Расчет на контактную прочность при действии Тmax

Т = Тmax

5.2.1 Допускаемые контактные напряжения

Hрм = 2,8 * Т - для улучшения

Hрм1 = 2,8 * 600 = 1680 МПа

Hрм2 = 2,8 * 450 = 1260 Мпа

.2.2 Действительные максимальные напряжения

Hм = H * √ (Tmax/Tном) = 486 * √ 2,1 = 704,28 МПа < Hрм = 1260 МПа.

6. Расчет цепной передачи



Выбираем приводную роликовую однорядную цепь (cм. гл. VII [1], табл. 7.15).

Вращающий момент на ведущей звездочке Т32=180 Нм.

Передаточное число было принято ранее: Uц = 4.

Число зубьев ведущей звездочки (см. с.148 [1]):

3 = 31 - 2*Uц = 31 - 2 * 4 = 23

Число зубьев ведомой звездочки:

4 = z3 * Uц = 23 * 4 = 92

Тогда фактическое передаточное число:

ц = Z/ z3 = 92 / 23 = 4 .

Отклонение 0%.

Расчетный коэффициент нагрузки (см. гл. VII [1], формулу 7.38 [1] и пояснения к ней):

Кэ = kд * kа * kн * kр * kсм * kп

где: kд = 1 - динамический коэффициент при спокойной нагрузке;a = 1 - коэффициент, учитывающий влияние межосевого расстояния

(aц ≤ (30...60) * t);н - коэффициент, учитывающий влияние угла наклона линии центров к горизонту, при наклоне до 60o kн = 1;р = 1,25 - коэффициент, учитывающий способ регулирования натяжения цепи, в нашем случае при периодическом регулировании;см = 1 - коэффициент, учитывающий способ смазки, в нашем случае при непрерывной смазке;

Кп = 1 - коэффициент, учитывающий периодичность работы передачи, в нашем случае олносменная работа.

Тогда: Kэ = 1 * 1 * 1 * 1,25 * 1 * 1 = 1,25.

Для определения шага цепи по формуле 7.38 гл.VII[1] надо знать допускаемое давление [p] в шарнирах цепи. В таблице 7.18[1] допускаемое давление [p] задано в зависимости от частоты вращения ведущей звездочки и шага t. Поэтому для расчета по формуле 7.38[1] величиной [p] следует задаваться ориентировочно.

Ведущая звездочка имеет частоту вращения:

n2 = (ω230) / p = 18,9*30/ 3,14 = 180,76 об/мин.

Среднее значение допускаемого давления примем [p] = 17 МПа.

Тогда шаг однорядной цепи (m=1):

t ≥ 2,8 * (T3 * Kэ / (z3 * [p]))1/3 = 2,8 * (180*103 * 1,25 / (23 * 17))1/3 = 23,3 мм.

Подбираем по табл. 7.15[1] цепь ПР-31,75-88,50 по ГОСТ 13568-97, имеющую

t = 25,4 мм;

разрушающую нагрузку Q = 60 кН;

массу q = 2,6 кг/м;

Аоп = 179,7 мм2.

Скорость цепи:

V = z3 * t * n3 / (60 * 103) = 23 * 25,4 * 180,76 / (60 * 103) = 1,76 м/с.

Окружная сила:

Ftц = T2 * 2 / V = 180 * 18,9 / 1,76 = 1932,95 H.

Давление в шарнире проверяем по формуле 7.39[1]:

p = Ftц * Kэ / Aоп = 1932,95 * 1,25 / 179,7 = 13,4 МПа.

Уточняем по табл 7.18[1] допускаемое давление:

[p] = [p'] * [1 + 0,01 * (z3 - 17)] = 23 * [1 + 0,01 * (23 - 17)] = 24,38 МПа.

В этой формуле [p'] = 23 МПа - табличное значение допускаемого давления по табл. 7.18[1] при n = 200 об/мин и t = 25,4 мм.

Условие p < [p] выполнено.

Определяем число звеньев цепи по формуле 7.36[1]:

Lt = (2 * at) + (0,5 * z) + (2 / at), где

t = aц / t = 40 (см. c. 148[1]);

 = z3 + z4 = 23 + 92 = 115;

 = (z3 - z4) / (2) = (92 - 23) / (2 * 3,142) = 10,987.

Тогда:t = 2 * 40 + 0,5 x 115 + 10,9872 / 40 = 140,5.

Округляем до четного числа: Lt = 141.

Уточняем межосевое расстояние цепной передачи по формуле 7.37[1]:

aц = 0,25 * t * (Lt - 0,5 * z + ((Lt - 0,5 * z)2 - 8 x 2)1/2) = 0,25 * 25,4 * (141 - 0,5 * 115 + ((141 - 0,5 * 115)2 - 8 * 10,9872)1/2) = 1022,35 мм

Принимаем: aц = 1022 мм.

Для свободного провисания цепи предусматриваем возможность уменьшения межосевого расстояния на 0,4%, то есть примерно на 1022 x 0,004 = 4 мм.

Определяем диаметры делительных окружностей звездочек (см. формулу 7.34[1]):

dд3 = t / sin(180/ z3) = 25,4 / sin(180o / 23) = 187 мм;

д4 = t / sin(180o / z4) = 25,4 / sin(180o / 92) =744 мм;

Определяем диаметры наружных окружностей звездочек (см. формулу 7.35[1]):

De3 = t * (ctg(180o / z3) + 0.7) - 0.31d1 = 25,4 * (ctg(180o / 23) + 0.7) - 0.31 * 15,88 = 197,8 мм;

e4 = t * (ctg(180o / z4) + 0.7) - 0.31d1 = 25,4 * (ctg(180o / 92) + 0.7) - 0.31 * 15,88 = 756,55 мм;

где d1 = 15,88 мм - диаметр ролика цепи.

Силы действующие на цепь:

окружная:

Ftц = 1932,95 Н - определена выше;

от центробежных сил:

Fv = q * V2 = 2,6 * 1,762 = 8 H;

где масса одного метра цепи q = 2,6 кг/м по табл. 7.15[1];

от провисания:

Ff = 9,81 * kf * q * aц = 9,81 * 1,5 * 2,6 * 1, 022 = 39 H;

где kf = 1,5 - при угле наклона передачи 45° (см. c. 151[1]).

Расчетная нагрузка на валы:

Fв = Ftц + 2Ff = 1932,95 + 2 * 39 = 2010,95 H.

Проверяем коэффициент запаса прочности цепи по формуле 7.40[1]:

s = Q / (Ftц * Кд + Fv + Ff) = 60*103 / (1932,95 * 1 + 8 + 39) = 30,3.

Это больше, чем нормативный коэффициент запаса [s] = 8 (см. табл. 7.19[1]); следовательно, условие прочности s>[s] выполнено.

Размеры ведущей звездочки:

Ступица звездочки dст = 1,6 * dтв = 1,6 * 40 = 64 мм; lст = (1,2 ÷ 1,6) dтв = (1,2 ÷ 1,6)*40 = 48 ÷ 64 мм; принимаем 64 мм.

Толщина диска звёздочки:

.93Ввн = 0.93 * 15,88 = 15 мм, где Ввн - расстояние между пластинками внутреннего звена (см. табл. 7.15[1]).

7. Предварительный расчёт валов редуктора



Тб = 35,3 Нм

Тт = 180 Нм

nб = 949 об/мин

nт = 180,76 об/мин

U1 =5,25

U2 = 4

Размеры цилиндрической передачи:

d1 = 47,872 мм;

d2 = 252,128 мм.

b1 = 34 мм.

m = 3

Размеры цепной передачи:

t = 25,4 мм;

d = 187 мм;

Ввн = 15,88 мм.

Предварительный расчёт валов проведём на кручение по пониженным допускаемым напряжениям.

Диаметр вала при допускаемом напряжении вычисляем по формуле 8.16[1]:

dв = (16 * Tк / (p * [tк]))1/3

7.1 Ведущий вал

в1 = (16 * 35,3*103 / (3,142 * 20))1/3 = 20,8 мм.

У подобранного электродвигателя диаметр вала dдв = 32 мм.

Под свободный (присоединительный) конец вала выбираем диаметр вала: 22 мм.

Выбираю МУВП по ГОСТ 21424 - 75 с расточками полумуфт под dдв=32 мм и dв1=22 мм.

Под подшипниками выбираем диаметр вала: 3о мм.

 

.2 Ведомый вал


Учитывая влияние изгиба вала от натяжения цепи , принимаю [tк] = 17 МПа.в2 = (16 * 180*103 / (3,142 * 17))1/3 = 37,78 мм.

Принимаем ближайшее большее значение из стандартного ряда (см. гл. VIII, пояснения к формуле (8.16) [1]): dв2 = 40 мм

Под подшипниками выбираем диаметр вала: 45 мм.

Под зубчатым колесом выбираем диаметр вала: 50 мм.

8. Конструктивные размеры шестерни и колеса

 

Шестерню выполняем за одно целое с валом, ее размеры определены выше: d1 = 47,872 мм; dа1 = 53,872 мм. b1 = 34 мм.

Колесо: d2 = 252,128 мм;dа2 = 258,128 мм b2 = 30 мм.

Диаметр ступицы: dст = 1,6dк2 = 1,6 * 50 = 80 мм.

Длина ступицы: Lст = (0,8...1,5)d к2 = 40 … 75 мм, принимаем 48 мм.

Толщина обода d0 = (2,5 ÷ 4)m = (2,5 ÷ 4)3 = 7,5 ÷ 12 мм, принимаем d0 = 12 мм.

Толшина диска С = 0,3 * b2 = 0,3 * 30 = 9 мм.

9. Конструктивные размеры корпуса редуктора


Толщина стенки корпуса и крышки одноступенчатого цилиндрического редуктора = 0.025 * a + 1 = 0,025 * 150 + 1 = 4,75 мм

Так как должно быть   8.0 мм, принимаем  = 8.0 мм.

1 = 0.02 * a + 1 = 0.02 * 150 + 1 = 4 мм

Так как должно быть 1  8.0 мм, принимаем 1 = 8.0 мм.

Толщина верхнего пояса (фланца) корпуса: b = 1.5 x  = 1.5 x 8 = 12 мм.

Толщина нижнего пояса (фланца) крышки корпуса: b1 = 1.5 x 1 = 1.5 x 8 = 12 мм.

Толщина нижнего пояса корпуса: p = 2.35 x  = 2.35 x 8 = 18,8 мм.

Округляя в большую сторону, получим p = 20 мм.

Диаметр фундаментных болтов:

d1 = (0,03 ... 0,036) * a + 12 = (0,03...0,036) * 150 + 12 = 16,5 ...17,4 мм.

Принимаем болты с резьбой М16.

Диаметр болтов у подшипников:

d2 = (0,7...0,75) * d1 = (0,7...0,75) * 16 = 11,2...12 мм.

Принимаем болты с резьбой М12.

Диаметры болтов соединяющих основание корпуса с крышкой:

d3 = (0,5...0,6) * d1 = (0,5...0,6) * 16 = 8...9,6 мм. Принимаем М10.

10. Проверка долговечности подшипника

 

.1 Ведущий вал


 

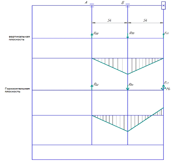
Из предыдущих расчетов имеем Ft = 1427, 85 Н; Fr = 552,87 Н; Fa = 518, 24 Н. Из первого этапа компановки l1 = 54 мм.

Реакции опор.

Вертикальная плоскость:

∑Ма: - Ft1*(54+54) + Rбб*54 = 0

1427,85*108 + Rбб*54 = 0

Rбб*54 = 154207,8

Rбб = 2855,7 Н

∑Мб: - Ft1*54 + Rаб*54 = 0

1427,85*54 + Rаб*54 = 0

Rаб*54 = 77103,9

Rаб = 1427,85 Н

Проверка: Rаб + Ft1 - Rбб = 1427,85 + 1472,85 - 2855,7 = 0

Горизонтальная плоскость (Ма = Fa * d1 / 2 = 518,24 * 47,872 / 2 = 12404,593):

∑Ма: - Fr1*108 + Rбг*54 + Ма = 0

552,87*108 + Rбг*54 + 12404,593 = 0

Rбг*54 = 47305,367

Rбг = 876 Н

∑Мб: - Fr1*54 + Rаг*54 + Ма = 0

552,87*54 + Rаг*54 + 12404,593 = 0

Rаг*54 = 17450,387

Rаг = 323,16 Н

Проверка: Rаг + Fr1 - Rбг = 323,16 + 552,87 - 876 = 0

Суммарные реакции:

Rа = √ Rаб2 + Rаг2 = √ 1427,852 + 323,162 = 1464 Н

Rб = √ Rбб2 + Rбг2 = √ 2855,72 + 8762 = 2987 Н

Подбираю подшипники по более нагруженной опоре «Б».

Шарикоподшипники радиально-упорные однорядные 46306 средней узкой серии (см. табл. П6 [1]):

d = 30 мм

D = 72 мм

B = 19 мм

C = 32,6 кН

C0 = 18,3 кН

Эквивалентная нагрузка по формуле (9.3 [1]):

Рэ = (ХVRг + YPa) * Kσ * Kт

в которой радиальная нагрузка Rг =2987 Н; осевая нагрузка Pa= Fa = 518, 24 Н; V=1 (вращается внутреннее кольцо); коэффициент безопасности для приводов Kσ = 1 (см. табл. 9.19[1]) и Kт = 1 (см. табл. 9.20[1]).

Отношение Ра / C0 = 518,24 / 18,3*103 = 0,028; этой величине ( по табл. 9.18 [1]) соответствует е ≈ 0,22.

Отношение Ра / Rг = 518,24 / 2987 = 0,173 < е; следовательно, Х=1, У=0.

Поэтому Рэ = Х* Rг * V * Kσ * Kт = 1* 2987 * 1 * 1 * 1 = 2987 Н.

Расчетная долговечность, млн. об.(формула 9.1 [1])

L = (C / Рэ)3 = (32600 / 2987)3 = 1300 млн. об.

Расчетная долговечность, ч

Lh = L *106 / 60 * n = 1300*106 / 60*949 = 23*103 ч;

Здесь n = 949 об/мин - частота вращения ведущего вала.

Что больше установленных ГОСТ 16162 - 85.

 

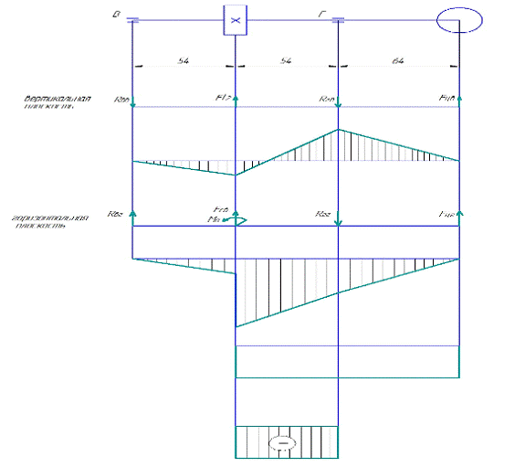
.2 Ведомый вал


Нагрузки: Ft = 1427, 85 Н; Fr = 552,87 Н; Fa = 518, 24 Н.

Нагрузка на вал от цепной передачи: Fв = 2010, 95 Н. Составляющие этой нагрузки Fцв = Fцг = Fв * sin 45 = 1422Н.

Реакции опор.

Вертикальная плоскость:

∑Мв: - Ft2*54 + Rгв*108 - Fцв*(54+54+64) = 0

1427,85*54 + Rгв*108 - 1422*172 = 0

77103,9 + Rгв*108 - 244584 = 0гв*108 = 321687,9гв = 2978,59 Н


∑Мг: Ft2*54 - Rвв*108 - Fцв*64 = 0

,85*54 - Rвв*108 - 1422*64 = 0

,9 - Rвв*108 - 91008 = 0

Rвв*108 = 13904,1

Rвв = - 128,74 Н

Проверка: Rвв + Ft2 - Rгв + Fцв = 128,74 + 1427,85 - 2978,59 + 1422 = 0

Горизонтальная плоскость (Ма = Fa * d2 / 2 = 518,24 * 252,128 / 2 = 65331,4):

∑Мв: - Fr2*54 + Rгг*108 - Fцг*(54+54+64) - Ма = 0

552,87*54 + Rгг*108 - 1422*172 - 65331,4 = 0

29854,98 + Rгг*108 - 244584 - 65331,4 = 0

Rгг*108 = 339770,38

Rгг = 3146 Н

∑Мг: Fr2*54 + Rвг*108 - Fцг*64 - Ма = 0

,87*54 + Rвг*108 - 1422*64 - 65331,4 = 0

Rвг*108 = 126484,42

Rвг = 1171,152 Н

Проверка: Rвг + Fr2 - Rгг + Fцг = 1171,152 + 552,87 - 3146 + 1422 = 0

Суммарные реакции:

Rв = √ Rвв2 + Rвг2 = √ 128,742 + 1171,1522 = 1178,2 Н

Rг = √ Rгв2 + Rгг2 = √ 2978,592 + 31462 = 4332,4 Н

Выбираю подшипники по более нагруженной опоре «Г».

Шариковые радиальные подшипники 209 легкой серии (см. табл. П3 [1]):

d = 45 мм

D = 85 мм

B = 19 мм

C = 33,2 кН

C0 = 18,6 кН

Отношение Ра / C0 = 518,24 / 18,6*103 = 0,0279; этой величине ( по табл. 9.18 [1]) соответствует е ≈ 0,22.

Отношение Ра / Rг = 518,24 / 4332,4 = 0,12 < е; следовательно, Х=1, У=0.

Поэтому Рэ = Rг * V * Kσ * Kт = 4332,4 * 1 * 1,2 * 1 = 5198,88 Н. (Примем Kσ = 1,2, учитывая, что цепная передача усиливает неравномерность нагружения).

Расчетная долговечность, млн. об.

L = (C / Рэ)3 = (33200 / 5198,88)3 = 260 млн. об.

Расчетная долговечность,ч

Lh = L *106 / 60 * n = 260*106 / 60*180,76 = 24*103 ч;

Здесь n = 180,76 об/мин - частота вращения ведомого вала.

11. Проверка прочности шпоночных соединений

 

Шпонки призматические со скруглёнными торцами. Размеры сечений шпонок и пазов и длины шпонок по ГОСТ 23360-78 (см. табл. 8,9[1]).

Материал шпонки - сталь 45 нормализованная.

Напряжение смятия и условие прочности проверяем по формуле 8.22[1].

σсм max = 2Т / (d * (l - b) * (h - t1)) ≤ [σсм].

Допускаемые напряжения смятия при стальной ступице [σсм] = 100 … 120 МПа, при чугунной [σсм] = 50 … 70 МПа.

11.1 Ведущий вал


d = 22 мм

b x h = 8 x 7 мм

t1 = 4 мм

Длина шпонки l = 32 мм.

Момент на ведущем валу Т1 = 35,3 Нм

σсм = 2 * 35,3*103 / (22*(7 - 4)*(32 - 8) = 44,57 МПа < [σсм]

(материал полумуфт МУВП - чугун марки СЧ 20). Условие выполнено.

11.2 Ведомый вал


Из двух шпонок - под зубчатым колесом и под звездочкой - более нагружена вторая (меньше диаметр вала и поэтому меньше размеры поперечного сечения шпонки).

Проверяем шпонку под звездочкой:

d = 40 мм

b x h = 12 x 8 мм

t1 = 5 мм

Длина шпонки l = 48 мм.

Момент на ведущем валу Т3 = 180 Нм

σсм = 2 * 180 *103 / (40*(8 - 5)*(48 - 12) = 83,3 МПа < [σсм]

(материал звездочки - термообработанная углеродистая сталь). Условие выполнено.

12. Уточненный расчёт валов

Примем, что нормальные напряжения от изгиба изменяются по симметричному циклу, а касательные от кручения - по отнулевому (пульсирующему).

Уточненный расчет состоит в определении коэффициентов запаса прочности s для опасных сечений и сравнении их с требуемыми значениями [s]. Прочность соблюдена при s ≥ [s].

Будем производить расчет для предположительно опасных сечений каждого из валов.

.1 Ведущий вал


Материал вала тот же, что и для шестерни, т. е. сталь 40ХН, термическая обработка - улучшение.

По табл. 3.3 [1] при диаметре заготовки до 150 мм среднее значение σв = 930 МПа

Предел выносливости при симметричном цикле изгиба σ-1 = 0,43σв = 0,43*930 = 400 МПа.

Предел выносливости при симметричном цикле касательных напряжений t-1 = 0,58σ-1 = 0,58*400 = 232 МПа.

Сечение А - А. Это сечение при передачи вращающего момента от электродвигателя через муфту рассчитываем на кручение. Концентрацию напряжений вызывает наличие шпоночной канавки.

Коэффициент запаса прочности

s = st = t-1 / ((kt / et * tu) + (yt * tm)),

Амплитуда и среднее напряжение отнулевого цикла:

tu = tm = tmax /2 = T1 / 2Wк нетто

При d = 22 мм; b = 8 мм; t1 = 4 мм по табл. 8.5 [1]:

Wк нетто = (pd3/16) - (bt1*(d-t1)2) / 2d = (3,14*223 / 16) - (8*4*(22 - 4)2) / 2*22 = 1,854*103 мм3

tu = tm = 35,3*103 / 2 * 1,854*103 = 9,5 МПа.

Принимаю kt = 1,9 (табл. 8.5 [1]); et = 0,8 (табл. 8.8 [1]); yt = 0,1(стр. 166 [1]).

s = st = 232 / ((1,9 / 0,8*9,5)+(0,1*9,5)) = 9,867

ГОСТ 16162 - 78 указывает на то, чтобы конструкция редукторов предусматривала возможность восприятия радиальной консольной нагрузки, приложенной в середине посадочной части вала. Величина этой нагрузки для одноступенчатых зубчатых редукторов на быстроходном валу должна быть 2,5√Тб при 25*103 Н*мм < Тб < 250*103 Н*мм.

Приняв у ведущего вала длину посадочной части под муфту равной длине полумуфты l = 40 мм, получим изгибающий момент в сечении А - А от консольной нагрузки М = 2,5√35,3*103 * 40/2 = 9,4*103 Н*мм.

Коэффициент запаса прочности по нормальным напряжениям

sσ = σ-1 / ((kσ / eσ * σu) + (yσ * σm)),

kσ / eσ = 3,4 (табл.8.7[1]); yσ = 0,2 (стр. 163 [1]).

Момент сопротивления изгибу (табл. 8.5 [1]):

Wнетто = (pd3/32) - (bt1*(d - t1)2) / 2d = (3,14*223/32)-(8*4*(22-4)2)/2*22= 809,2 мм3

Амплитуда нормальных напряжений изгиба

σu= МА-А / Wнетто = 9,4 *103/ 809,2 = 11,6 МПа; среднее напряжение σm=0

sσ = 400 / (3,4*11,6) = 10,14.   

Результирующий коэффициент запаса прочности для сечения А - А

s = sσ * st / √ sσ2 + st2 = 10,14 * 9,867 / √ 10,142 + 9,8672 = 7

.2 Ведомый вал

Материал вала - сталь 45, термическая обработка - улучшение.

По табл. 3.3 [1] при диаметре заготовки до 90 мм среднее значение σв = 750 Мпа


Пределы выносливости σ-1 = 0,43σв = 0,43*750 = 322,5 МПа.

t-1 = 0,58σ-1 = 0,58*322,5 = 187,05 МПа.

Сечение А - А. Диаметр вала в этом сечении 50 мм. Концентрацию напряжений вызывает наличие шпоночной канавки (табл. 8.5[1]): kt = 1,65 и

kσ = 1,775; масштабные факторы et = 0,7 и eσ = 0,82 (табл. 8.8 [1]);

коэффициенты yt = 0,1и yσ = 0,2 (стр. 163 и166 [1]).

Крутящий момент Т2 = 180 Нм.

Изгибающий момент в горизонтальной плоскости

М´= Rвв *l2 = 128,72 * 54 = 6950,88 Нмм

Изгибающий момент в вертикальной плоскости

М´´= Rвг *l2 + Ма = 514,16 * 54 + 65331,4 = 93096 Нмм

Суммарный изгибающий момент в сечении А - А

МА-А = √6950,882 + 930962 = 93355 Нмм.

Момент сопротивления кручению ( d = 50 мм; b = 16 мм; t1 = 6 мм)

Wк нетто = (pd3/16) - (bt1*(d-t1)2) / 2d = (3,14*503 / 16) - (16*6*(50 - 6)2) / 2*50 = 22,67*103 мм3

Момент сопротивления изгибу (табл. 8.5 [1]):

Wнетто = (pd3/32) - (bt1*(d - t1)2) / 2d = (3,14*503 / 32) - (16*6*(50 - 6)2) / 2*50 = 10,4*103 мм3

Амплитуда и среднее напряжение цикла касательных напряжений

tu = tm = T2 / 2Wк нетто = 180*103 / 2 * 22,67*103 = 3,97 МПа

Амплитуда нормальных напряжений изгиба

σu= МА-А / Wнетто = 93355 / 10,4*103 = 8,99764 МПа; среднее напряжение σm= 0

Коэффициент запаса прочности по нормальным напряжениям

sσ = σ-1 / ((kσ / eσ * σu) + (yσ * σm)) = 322,5 / ((1,775 / 0,82)* 8,9764) = 16,6.

Коэффициент запаса прочности по касательным напряжениям

st = t-1 / ((kt / et * tu) + (yt * tm)) = 187,05 / ((1,65/0,7*3,97) + (0,1*3,97)) = 19,175.

Результирующий коэффициент запаса прочности для сечения А - А

s = sσ * st / √ sσ2 + st2 = 16,6*19,175 / √ 16,62 + 19,1752 = 12,55.

Сечение Г - Г. Концентрация напряжений обусловлена посадкой подшипника (табл. 8.7[1]): kσ / eσ = 3,5 и kt / et =0,6*3,5+0,4 = 2,5; принимаем yt = 0,1и yσ = 0,2.

Изгибающий момент

М4 = Fв *l3 = 2010,95 * 64 = 128700,8 Нмм

Осевой момент сопротивления

W = pd3 / 32 = (3,14 * 453 / 32) = 8941,64 мм3

Амплитуда нормальных напряжений

σu= σmax = М4 / W = 128700,8 / 8941,64 = 14,4 МПа; среднее напряжение σm= 0.

Полярный момент сопротивления

Wр = 2W = 2 * 8941,64 = 17883,28 мм3

Амплитуда и среднее напряжение цикла касательных напряжений

tu = tm = T2 / 2Wp = 180*103 / 2 * 17883,28 = 5 МПа

Коэффициент запаса прочности по нормальным напряжениям

sσ = σ-1 / (kσ / eσ * σu) = 322,5 / 3,5 * 14,4 = 6,4.

Коэффициент запаса прочности по касательным напряжениям

st = t-1 / ((kt / et * tu) + (yt * tm)) = 187,05 / ((2,5 * 5) + (0,1* 5)) = 14,4.

Результирующий коэффициент запаса прочности для сечения Г - Г

s = sσ * st / √ sσ2 + st2 = 6,4*14,4 / √ 6,42 + 14,42 = 5,85.

Сечение B - B. Концентрация напряжений обусловлена переходом от Ø 45 мм к Ø 40 мм.

При D / d = 45 / 40 = 1,125 и r / d = 2,25 / 40 = 0,056 коэффициенты концентрации напряжений kt = 1,32 и kσ = 1,75 (табл. 8.2[1]); масштабные факторы et = 0,73 и eσ = 0,85 (табл. 8.8 [1]);

Внутренние силовые факторы те же, что и для сечения Г - Г.

Осевой момент сопротивления

W = pd3 / 32 = (3,14 * 403 / 32) = 6280 мм3

Амплитуда нормальных напряжений

σu= σmax = М4 / W = 128700,8 / 6280 = 20,5 МПа; среднее напряжение σm= 0.

Полярный момент сопротмвления

Wр = 2W = 2 * 6280 = 12560 мм3

Амплитуда и среднее напряжение цикла касательных напряжений

tu = tm = T2 / 2Wp = 180*103 / 2 * 12560 = 7,1656 МПа

Коэффициент запаса прочности по нормальным напряжениям

sσ = σ-1 / (kσ / eσ * σu) = 322,5 / 1,75/0,85 * 20,5 = 7,64.

Коэффициент запаса прочности по касательным напряжениям

st = t-1 / ((kt / et * tu) + (yt * tm)) = 187,05 / ((1,32/0,73 * 7,1656) + (0,1* 7,1656)) = 13,68.

Результирующий коэффициент запаса прочности для сечения В - В

s = sσ * st / √ sσ2 + st2 = 7,64*13,68 / √ 7,642 + 13,682 = 6,67

Сечение Б - Б. Диаметр вала в этом сечении 40 мм. Концентрацию напряжений вызывает наличие шпоночной канавки (табл. 8.5[1]): kt = 1,65 и

kσ = 1,77; масштабные факторы et = 0,73 и eσ = 0,85 (табл. 8.8 [1]);

Изгибающий момент

МБ-Б = Fв * Х1 = 2010,95 * 34 = 68372,3 Нмм.

Момент сопротивления сечения нетто при b = 12 мм; t1 = 5 мм

Wнетто = (pd3/32) - (bt1*(d - t1)2) / 2d = (3,14*403 / 32) - (12*5*(40 - 5)2) / 2*40 = 5361,25 мм3

Амплитуда нормальных напряжений изгиба

σu= МБ-Б / Wнетто = 68372,3 / 5361,25 = 12,75 МПа; среднее напряжение σm= 0

Момент сопротивления кручению сечения нетто

Wк нетто = (pd3/16) - (bt1*(d-t1)2) / 2d = (3,14*403 / 16) - 918,75 = 11641,25 мм3

Амплитуда и среднее напряжение цикла касательных напряжений

tu = tm = T2 / 2Wк нетто = 180*103 / 2 * 11641,25 = 7,7 МПа

Коэффициент запаса прочности по нормальным напряжениям

sσ = σ-1 / ((kσ / eσ * σu) + (yσ * σm)) = 322,5 / ((1,77 / 0,85)* 12,75) = 12,15.

Коэффициент запаса прочности по касательным напряжениям

st = t-1 / ((kt / et * tu) + (yt * tm)) = 187,05 / ((1,65/0,73*7,7) + (0,1*7,7)) = 10,3.

Результирующий коэффициент запаса прочности для сечения Б - Б

s = sσ * st / √ sσ2 + st2 = 12,15*10,3 / √ 12,152 + 10,32 = 7,86

Сведем результаты проверки в таблицу:

Сечение

А - А

Б - Б

В - В

Г - Г

Коэффициент запаса s

12,55

7,86

6,67

5,85


Во всех сечениях s ≥ [s].

13. Выбор сорта масла


Смазывание элементов передач редуктора производится окунанием нижних элементов в масло, заливаемое внутрь корпуса до уровня, обеспечивающего погружение элемента передачи примерно на 10-20 мм.

Объём масляной ванны V определяется из расчёта 0,25 дм3 масла на 1 кВт передаваемой мощности:= 0,25 x 3,5 = 0,875 дм3.

По таблице 10.8[1] устанавливаем вязкость масла. При контактных напряжениях H = 486 МПа и скорости v = 2,385 м/с рекомендуемая вязкость масла должна быть примерно равна 28 * 10-6 м/с2.

По таблице 10.10[1] принимаем масло индустриальное И-30А (по ГОСТ 20799-75*).

Выбираем для подшипников качения пластичную смазку УТ-1 по ГОСТ 1957-73 (см. табл. 9.14[1]). Камеры подшинпиков заполняются данной смазкой и периодически пополняются ей.

14. Технология сборки редуктора


Перед сборкой внутреннюю полость корпуса редуктора тщательно очищают и покрывают маслостойкой краской. Сборку производят в соответствии с чертежом общего вида редуктора, начиная с узлов валов.

На валы закладывают шпонки и напрессовывают элементы передач редуктора. Мазеудерживающие кольца и подшипники следует насаживать, предварительно нагрев в масле до 80-100 градусов по Цельсию, последовательно с элементами передач. Собранные валы укладывают в основание корпуса редуктора и надевают крышку корпуса, покрывая предварительно поверхности стыка крышки и корпуса спиртовым лаком. Для центровки устанавливают крышку на корпус с помощью двух конических штифтов; затягивают болты, крепящие крышку к корпусу. После этого в подшипниковые камеры закладывают смазку, ставят крышки подшипников с комплектом металлических прокладок, регулируют тепловой зазор. Перед постановкой сквозных крышек в проточки закладывают войлочные уплотнения, пропитанные горячим маслом. Проверяют проворачиванием валов отсутствие заклинивания подшипников (валы должны проворачиваться от руки) и закрепляют крышку винтами. Затем ввертывают пробку маслоспускного отверстия с прокладкой и жезловый маслоуказатель. Заливают в корпус масло и закрывают смотровое отверстие крышкой с прокладкой, закрепляют крышку болтами. Собранный редуктор обкатывают и подвергают испытанию на стенде по программе, устанавливаемой техническими условиями.

15. Заключение


При выполнении курсового проекта по “Деталям машин” были закреплены знания, полученные за прошедший период обучения в таких дисциплинах как: теоретическая механика, сопротивление материалов, материаловедение.

Целью данного проекта является проектирование привода цепного конвейера, который состоит как из простых стандартных деталей, так и из деталей, форма и размеры которых определяются на основе конструкторских, технологических, экономических и других нормативов.

В ходе решения поставленной передо мной задачей, была освоена методика выбора элементов привода, получены навыки проектирования, позволяющие обеспечить необходимый технический уровень, надежность и долгий срок службы механизма.

Опыт и навыки, полученные в ходе выполнения курсового проекта, будут востребованы при выполнении, как курсовых проектов, так и дипломного проекта.

Можно отметить, что спроектированный редуктор обладает хорошими свойствами по всем показателям.

По результатам расчета на контактную выносливость действующие напряжения в зацеплении меньше допускаемых напряжений.

Расчет вала показал, что запас прочности больше допускаемого.

Необходимая динамическая грузоподъемность подшипников качения меньше паспортной.

При расчете был выбран электродвигатель, который удовлетворяет заданные требования.

16. Список использованной литературы


1. Чернавский С.А., Боков К.Н., Чернин И.М., Ицкевич Г.М., Козинцов В.П. «Курсовое проектирование деталей машин»: Учебное пособие для учащихся. Машиностроение, 1987 г.

. Иванов М.Н., Финогенов В.А. «Детали машин». Москва «Высшая школа», 2002 год.

. Дунаев П.Ф., Леликов О.П. 'Конструирование узлов и деталей машин', М.: Издательский центр 'Академия', 2003 г., 496 c.

. Анурьев В.И. Книга-1 «Справочник конструктора - машиностроителя». Москва «Машиностроение» 1973 год.

. Анурьев В.И. Книга-2 «Справочник конструктора - машиностроителя». Москва «Машиностроение» 1973 год.

. Курмаз Л.В., Курмаз О.Л. «Конструирование узлов и деталей машин». Москва «Высшая школа» 2007 год.

Похожие работы на - Цилиндрический редуктор с консольной шестерней

 

Не нашли материал для своей работы?
Поможем написать уникальную работу
Без плагиата!
Без нейросетей!