Организация работы социально-культурного сервиса предприятия

  • Вид работы:
    Дипломная (ВКР)
  • Предмет:
    Туризм
  • Язык:
    Русский
    ,
    Формат файла:
    MS Word
    733,31 kb
  • Опубликовано:
    2011-07-15
Вы можете узнать стоимость помощи в написании студенческой работы.
Помощь в написании работы, которую точно примут!

Организация работы социально-культурного сервиса предприятия













Контрольная работа

По дисциплине "Техника и технологии социально-культурного сервиса и туризма"

Тема: "Организация работы социально-культурного сервиса предприятия"


Содержание

Введение

1.       Миссия, цели, стратегия гостиницы

2.      Описание персонала

.        План гостиницы

.        Технология обслуживания

.        Описание оборудования

Заключение

Список источников

Введение

Мною будет рассмотрена организация маленькой гостиницы, номерной фонд которой состоит из 20 номеров, рассчитанных на 36 человек. Трехэтажное здание вмещает административный отдел (служба размещения, бухгалтерия), ресторан (кухня, помещение для официантов, пищевой склад), прачечная, хозяйственный склад, жилые номера. Жилые номера и комнаты для проживания дежурных по этажу, располагаются на идентичных 2 и 3 этажах. Количество постоянного персонала насчитывает 16 человек. Многие сотрудники совмещают несколько должностей одновременно.

Мной будет приведена схема помещений, а также оборудование от мебели до оргтехники, рассмотрена их примерная стоимость. Будет рассмотрена технология обслуживания клиентов, где рассматривается поведение персонала от первого звонка гостя до момента его выезда из гостиницы. В начале контрольной мною разработаны миссия, цели, стратегия для гостиницы.

План гостиницы выполнен в программе ArchiCad, при составлении списка оборудования мною были использованы источники из интернета.

1. Миссия, цели, стратегия гостиницы

Данное предприятие занимается предоставлением мест в гостинице среднего класса для туристов с невысоким уровнем расходов, бизнесменов со скромными суточными и других путешественников с ограниченными средствами, которым нужны удобства по низким ценам.

Цель. Удовлетворение реальных потребностей рынка с высоким и стабильным объемом спроса и предоставлением клиентам достойных ценностей за их деньги при низких текущих расходах и высоком уровне прибыли для предприятия.

Стратегия. Чтобы добиться прибыльности на этом рынке, гостиница будет располагаться только в том месте, где есть возможность добиться высокой наполняемости в течение большой части недель года - там, где высокий уровень спроса порождается сочетанием туристического, делового и других потоков. Расположение будет не в центре города, а там, где низкая стоимость земли, строится специально для достижения максимальной эффективности, будут обеспечиваться простые стандарты удобств с минимальным обслуживанием.

Миссия. Уютные услуги по комфортным ценам.

 

2. Описание персонала

Таблица. 1 Описание персонала

Персонал:

должность

Функции

Кол-во

Квалификационные требования

Зарплата, руб (ориентировочно)

руководитель

Генеральный директор

Оперативное управление, видение миссии компании, лидерство. Постановка целей, планов продаж Развитие предприятия. Контроль всех процессов Ведение бухгалтерского учета. (Финансово-экономическая деятельность, расчет денежных потоков)

1

Высшее образование Коммуникативный, ответственный

30000

Помощник руководителя

Управляющий

Исполнитель, руководитель процессов, оперативная управленческая деятельность, контроль всех процессов. Найм сотрудников, обучения, ведение кадровой док-ции, работа с контролирующими органами

1

Высшее образование Коммуникативный, ответственный

27000

Отдел гостеприимства

Портье

Прием гостей, регистрация гостей, предоставление информации, ответы на звонки, бронирование по телефону, Интернету, выставление счетов

2

Высшее образование, знание иностранных языков. Коммуникативный, обязательный, доброжелательность, приятная внешность

17000


Дежурная по этажу ( с предоставлением жилья и питания)

Предоставление информации, обслуживание номеров (уборка, предоставление постельного белья),

2

Среднее образование, доброжелательность

10000

Обслуживающий персонал

техничка

Уборка помещений, работа в прачечной, работа в гардеробе

2

Специализация, ответственность

10000

Служба безопасности

охранник


1

Специализация, ответственность

15000

Техническая служба

Специалист технической службы

Санитарно-техническое обслуживание, Электротехническое обслуживание

1

Специализация, ответственность

14000

Служба пищеблока

Шеф-повар

1

Специализация, ответственность, санкнига

25000


повар

Помощник шеф-повара, приготовление пищи

1

Специализация, ответственность, чистоплотность, санкнига

22000


официанты

Обслуживание клиентов, разрешение конфликтов

2

Специализация, ответственность, санкнига

15000


бармен

Обслуживание клиентов, расчет по кассе

2

Среднее образование, общительность, ответственность, санкнига, знание языков

20000

Итого



16


277000


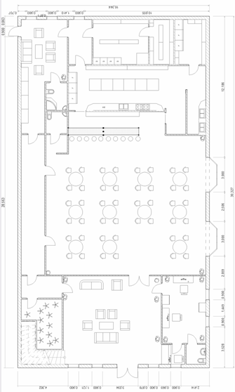
3. План гостиницы

Рис.1

Рис.2

Первый этаж гостиницы (рис.1) : 1. Холл первого этажа, 2. Ресепшн, 3. Гардероб, 4. Офис, 5.Ресторанная зона, 6. Барная стойка, 7. Мойка, 8. Кухня, 9. Прачечная, 10. Хозяйственный склад, 11. Пищевой склад, 12. Комната отдыха (раздевалка) для персонала.

Второй и третий этаж гостиницы (рис.2) : 13. Жилая комната дежурной по этажу, 14. Холл 2 и 3 этажа, 15. Два номера категории полулюкс, 16. Шесть двухместных номеров 17. Одноместные номера.

4. Технология обслуживания

Обслуживание клиента происходит по следующей схеме.

1)           Отношения клиент-гостиница начинается с обращения клиента на ресепшн (звонок по телефону, либо лично) целью забронировать номер. Портье информирует клиента о наличии мест, по стоимости, если клиента удовлетворяет перечисленное, портье на компьютере в базе отмечает бронь на указанный период, уточняет особенности оплаты. Если оплата планируется безналичным расчетом, то портье выставляет счет на предоставление услуг по факсу. Если же оплата будет произведена наличным расчетом, оговаривается сумма, которая будет оплачена по приезду, учитывая стоимость брони.

2)      Клиент оплачивает проживание в номере, принимает решение о питании. Портье уточняет удобное время питания в ресторане и называет сумму.

)        Портье принимает оплату, предоставляет отчетные документы.

)        Клиент заполняет карту гостя, в которой указывает свои паспортные данные, период проживания номер и марку машины. Портье регистрирует гостя и выдает документ, где указан период проживание этаж и номер, а также талон на питание.

)        Портье информирует дежурную нужного этажа о приезде гостя, бармена о периоде питания и времени.

)        На этаже гостя встречает дежурная, при предъявлении карты гостя, она выдает ключи от нужного номера и провожает гостя в его комнату. Дежурная предоставляет гостю чистое постельное белье и полотенца.

)        Бармен фиксирует период и время питания гостя, передает информацию шеф-повару.

)        Шеф-повар составляет меню на ближайшие три дня, учитывая количество гостей.

)        Повар уточняет наличие продуктов на складе. Если продуктов не достаточно, то им составляется список продукции.

)        Управляющий получает деньги у генерального директора на покупки и едет со списком в магазин для пополнения пищевого и хозяйственного склада.

)        В назначенное время гость спускается в ресторан. Официант провожает гостя на его место и забирает талон.

)        Дежурная совершает легкую уборку в номере (уборка мусора, вытереть пыль, заправить постельное белье) ежедневно, когда гостя нет в номере. Раз в три дня совершается более тщательная уборка (уборка мусора, заправить белье, уборка моющим пылесосом, влажная уборка).

)        Возникающие вопросы гость решает с дежурной или портье. Возникающие конфликтные ситуации решаются с портье и с управляющим. Если в номере неполадки, дежурная сообщает о них специалисту технической службы.

)        Когда период проживания заканчивается, гость принимает решение о продлении брони, либо о выезде.

)        При продлении проживания портье рассчитывает сумму проживания и питания, выдает карту гостя и талоны на питание. Сообщает о продлении дежурной и бармену.

)        При выезде гостя, портье сообщает дежурной, чтобы она приняла номер (проверяет наличие вещей, количество постельного белья).

)        Если в номере все в порядке, гость сдает ключи и выезжает.

)        Если в номере не насчитывается предмета, дежурная сообщает об этом портье, гость поднимается в номер и предоставляет вещь, либо остается на ресепшн и оплачивает ущерб и выезжает.

5. Оборудование

гостиничный турист персонал клиент

Таблица 3. Техника

Наименование оборудования

Кол-во (ед)

Цена Руб/шт

Итого

Назначение или место эксплуатации

1

телефонный аппарат Panasonic KX-TS2350

2

535

1070

офис, ресепшн

2

телефон-рация Panasonic KX-TG1105

5

1439

7195

ресепшн, кухня, комната дежурной (2 и 3 этаж)

3

3

2800

8400

ресепшн, офис

4

видео карта

3

2800

8400


5

жёсткий диск

3

2499

7497


6

оперативная память (512)

3

1839

5517


7

корпус

3

1217

3651


8

мышь

3

120

360


9

клавиатура

3

250

750


10

монитор ЖК (Samsung)

3

4799

14397


11

колонки (30W)

1

974

974

ресепшн

12

Источники бесперебойного питания

3

720

2160

офис, ресепшн

13

Факс (сканер, копир, принтер)

1

10789

10789

офис

14

кассовый аппарат Орион 100 К

2

13200

26400

ресепшн, бар

15

удлинитель

14

148

2072

ресепшн, бар, офис, кухня, комната отдыха, холл, склад, прачечная

16

2668

22

58696

Все категории номеров, комнаты дежурных








Итого



167658



Таблица 4. Мебель

Наименование оборудования

Кол-во (ед)

Цена Руб/шт

Итого

Назначение или место эксплуатации

Габариты (см)

1

Стул офисный

3

1242

3726

Ресепшн, офис

410/980

2

Стол офисный

5

1260

6300

Ресепшн, офис, комнаты дежурных

1155/600/750

3

Тумбы выкатные, 3 ящика

3

1461

4383

Ресепшн, офис

396/412/557

4

Тумба для факса

1

1450

1450

офис

690/428/620

5

Шкаф для одежды

1

2773

2773

офис

724/359/1793

6

Стеллаж широкий средний

2

1499

2998

Офис, ресепшн

724/359/1185

7

Диван двойной

3

317483

955249

Холлы 1,2,3 этажей

1600/930/900

8

Диван тройной

3

21703

65109


2250/930/900

9

3

 8624

25872


650/930/900

10

Журнальные столики

3

4680

14040


900/550/400

11

Кровать двуспальная

4

12000

48000

Номера категории полулюкс

1900/1600/800

12

Кровать односпальная

30

8000

240000

Номера категории 1м и 2м, комнаты дежурных

1900/800/800

13

Тумба под телевизор

22

1500

487300

Все категории номеров, комнаты дежурных по этажу

650/425/750

14

Тумба прикроватная

38

1670

63460

Все категории номеров, комнаты дежурных

400/485/660

15

Шкаф (с зеркалом)

20

8200

164000

Все категории номеров

1010/348/2255

16

Стул барный

10

1176

11760

ресторан


17

Стол барный

11

6300

69300

ресторан

700/720

18

Стеллаж

15

2100

31500

Склад хозяйственный, склад пищевой, кухня, прачечная

2000/600/1800

19

Стол кухонный

2

7500

15000

2000/600/750

20

Барная стойка

1

159930

159930

ресторан

6000/1600/800

21

Диван

1

7500

7500

Комната отдыха

1600/930/900


Итого



2379650




Таблица 5. Спецтехника

Наименование оборудования

Кол-во (ед)

Цена Руб/шт

Итого

Назначение или место эксплуатации

Габариты (мм)

Мармит электрический для вторых блюд МЭП 2 Б

1

26740

26740

кухня

1360/770/810

Комбинированный холодильный шкаф Polair ШХК 1,4

1

398700

398700

Кухня

1402/2028/854

Плита комбинированная, четырехзонная, Electrolux EKK 513504 W

2

254320

254320

Кухня

850/500/600

Посудомоечная машина Beko DFN 1300

2

26000

52000

Мойка

850/600/850

Холодильный стол Hicold GN 111/TN

1

49000

49000

Кухня

1835/710/900

Стиральная машина AEG L 52610

4

15200

60800

Прачечная

850/600/600

Итого



841560




Итак, все оборудование (мебель, техника, спецтехника) обойдется в сумму 3 388 868 рублей.

 

Заключение


В данной контрольной работе мною была рассмотрена организация маленькой гостиницы, рассчитанной на 20 номеров, которые вмещают до 36 человек. Миссия гостиничного предприятия "уютные услуги по комфортным ценам". В основном гостиница рассчитана на туристов и бизнесменов со средним доходом.

В работе приведен план первого этажа, где располагается ресторан, офисные и складские помещения, и план 2 и 3 этажа, где находится номерной фонд. Весь персонал гостиницы составляет 16 человек, дежурные по этажам проживают прямо в гостинице, фонд оплаты труда в месяц составляет 277000 руб. Чтобы оборудовать данную гостиницу, понадобится 3 388 868 рублей.

Источники

 

1.      Офисная мебель "Феликс" [Электронный ресурс] // Режим доступа [<#"530437.files/image003.gif">

Количество ТЭНов 4

Номинальная мощность 2 кВТ

Время разогрева ТЭНов для рабочей температуры

Длина 1360 мм

Ширина 770мм

Высота 1140 мм

Масса 75 кг

Холодильный шкаф Polair ШХК 1,4


Внутренний объем разделен перегородкой 700+700 литров

Габаритные размеры 1402х2028х854 мм

Рабочий диапазон температуры во внутреннем объеме +0…+6 градусов

Масса 230 кг

Комбинированная плита Electrolux EKK 513504 W


Есть газ-контроль, только для конфорок

Есть конвекция

Есть электроподжиг

Размеры 850х500х600

Посудомоечная машина Beko DFN 1300


Класс энергопотребления А

Гарантия 1 год

Вместимость 12 комплектов

Количество программ 3

Есть защита от протечек воды

Расход воды 15 л

Холодильный стол Hicold 111/TN


Холодильный стол среднетемпературный с распашными дверями

Температурный диапазон от -2 до +10 градусв

Габариты 1835х710х900

Внутренний объем 505 литров

Стиральная машина AEG L 52610


Тип управления механический

Тип загрузки фронтальный

Ширина 600 мм

Высота 850 мм

Глубина 600 мм

Загрузка белья 5 кг

Похожие работы на - Организация работы социально-культурного сервиса предприятия

 

Не нашли материал для своей работы?
Поможем написать уникальную работу
Без плагиата!
Без нейросетей!