Организация схемы энергоснабжения нефтяного месторождения из энергосистемы ОАО 'Тюменьэнерго'

  • Вид работы:
    Дипломная (ВКР)
  • Предмет:
    Физика
  • Язык:
    Русский
    ,
    Формат файла:
    MS Word
    249,83 kb
  • Опубликовано:
    2011-12-08
Вы можете узнать стоимость помощи в написании студенческой работы.
Помощь в написании работы, которую точно примут!

Организация схемы энергоснабжения нефтяного месторождения из энергосистемы ОАО 'Тюменьэнерго'

Дипломная работа

Организация схемы энергоснабжения нефтяного месторождения из энергосистемы ОАО "Тюменьэнерго"

Содержание

Введение

. Выбор основного силового оборудования ГТЭС

. Выбор главной схемы ГТЭС

. Выбор на основе технико-экономического сравнения схем подключения ГТЭС к центральной подстанции

. Выбор числа и мощности трансформаторов для центральной подстанции

. Расчет токов короткого замыкания и теплового импульса токов короткого замыкания

.2 На шинах генераторного напряжения и на шинах потребителя на 6,3 кВ нужно дополнительно учитывать подпитку от электродвигателей, электрически связанных с местом к.з

.2.1 Подпитка от двигателей компрессоров на шинах генераторов

.2.2 Подпитка от двигателей на шинах потребителя 6,3 кВ

. Выбор коммутационной аппаратуры и токоведущих частей

.1 Выбор коммутационной аппаратуры

.1.1 Выбор коммутационной аппаратуры в ОРУ 110 кВ

.1.2 Выбор коммутационной аппаратуры на электростанции

.1.3 Выбор коммутационной аппаратуры в ОРУ 35 кВ

.1.4 Выбор коммутационной аппаратуры в КРУ 6 кВ

.2 Выбор токоведущих частей

. Выбор приборов учета, трансформаторов тока и напряжения

.1 Проверка и выбор средств учета и измерения

.2 Выбор ТТ и ТН на электростанции

.2.1 Выбор ТТ в цепи генератора

.2.2 Выбор ТН в цепи генератора

.2.3 Выбор ТТ в цепи ввода секции собственных нужд и в цепи двигателей

.2.4 Выбор трансформаторов напряжения на сборных шинах 6 кВ

.2.5 Выбор ТТ ячейки секционного выключателя

.2.6 Выбор ТТ в ячейки трансформатора связи

.3 Выбор ТТ и ТН в ОРУ 110 кВ

.3.1 Выбор ТТ на стороне 110 кВ

.3.2 Выбор трансформаторов напряжения на стороне 110 кВ

.4 Выбор ТТ и ТН в ОРУ 35 кВ

.4.1 Выбор ТТ на стороне 35 кВ трансформатора связи и трансформатора ТДТН-25000/110         54

.4.2 Выбор трансформаторов напряжения на сборные шины 35 кВ

.4.3 Выбор ТТ в отходящие линии на стороне 35 кВ 57

.5 Выбор ТТ и ТН в распределительное устройство потребителей на 6 кВ

.5.1 Выбор ТТ в цепи ввода трансформатора ТДТН-25000/110 на стороне 6кВ

.5.2 Выбор трансформаторов напряжения на сборных шинах 6 кВ

.5.3 Выбор ТТ в цепи потребителей подключенных к шинам 6 кВ

. Защита подстанции и ГТЭС от прямых ударов молний и волн перенапряжения набегающих с ЛЭП

.1 Защита подстанции и ГТЭС от волн перенапряжения набегающих с ЛЭП

.2 Защита подстанции и ГТЭС от прямых ударов молний

.3 Защита ОРУ от прямых ударов молнии

. Выбор типов РЗиА согласно требованиям ПУЭ

.1 Выбор типов РЗ трансформаторов ТДТН - 25000/110

.2 Выбор типов РЗ отходящих ЛЭП 35 кВ

.3 Выбор типов РЗ шин 35 кВ

.4 Выбор типов РЗиА трансформаторов ТД - 16000/35

.5 Выбор типов защит высоковольтных двигателей компрессоров

.6 Выбор типов защит трансформаторов собственных нужд 6/0,4 кВ

.7 Выбор типов защит шин 6 кВ потребителей

.8 Выбор типов защит шин на ГТЭС

.9 Выбор типов защит СВ 35 кВ

.10 Выбор типов защит СВ 6 кВ

.11 Выбор устройств автоматики

.12 Расчет установок защит генераторов

. Проектирование контура заземления подстанции и ГТЭС. Расчет сопротивления заземления заземляющего контура

. Техника безопасности

.1 Общие положения

.2 Заземление и защитные меры электробезопасности

.3 Открытое распределительное устройство

.4 Защита от грозовых перенапряжений

.5 Защитные средства

.6 Техническое обслуживание, ремонт, модернизация и реконструкция

.7 Ремонтные работы на подстанции и ГТЭС

.8 Охрана труда и окружающей среды на ГТЭС

.9 Воздушная среда

.10 Воздействие объектов размещения на атмосферный воздух и характеристика источников выброса загрязняющих веществ

.11 Мероприятия по уменьшению выбросов загрязняющих веществ в атмосферу и предотвращению аварийных ситуаций

. Экономическая часть

.1 Описание энергетического баланса предприятия, определение величины энергетической товарной продукции

.2 Численность, режим работы и состав персонала

.3 Объем капитальных вложений в электростанцию

.4 Расчет себестоимости производства энергии

.5 Годовой расход и затраты на топливо

.6 Расчет амортизационных отчислений по ГТЭС

.7 Расчет годовых затрат на заработную плату

.8 Расчет годовых затрат на текущий ремонт

.9 Расчет общестанционных расходо

.10 Расчет коэффициента готовности станции к выдаче плановой мощности

.11 Основные технико-экономические показатели

.12 Построение эксплуатационной экономической характеристики электростанции

Заключение

Литература

электроснабжение подстанция энергосистема нефть месторождение

Введение


Газотурбинная электростанция такого типа в основном предназначена для электроснабжения потребителей нефтяного (газового) месторождения. В настоящее время электростанции такого типа большое распространение получили в западной Сибири. Так как она работает на попутном газе, который поступает с месторождения. Также эти электростанции могут работать автономно от энергосистемы, что для Сибири очень выгодно, так как месторождения разбросаны на больших расстояниях и связывать их с энергосистемой дорого.

Данная газотурбинная электростанция быстро окупаемая, потому что топливо, используемое на электростанции дешевое, так как не требует доставки и передача электроэнергии на небольшие расстояния.

Строительство данной электростанции вызвано тем, что необходимо было повысить надежность электроснабжения нефтяного месторождения и снизить стоимость электроэнергии.

1. Выбор основного силового оборудования ГТЭС


Установленная мощность ГТЭС 24 МВт. Выбираем шесть энергоблоков, с номинальной мощностью одного блока 4 МВт.

В качестве основных модулей ГТЭС принимаем газотурбинную установку ГТУ - 4П. Разработчик АО "Авиадвигатель", изготовитель ОАО "Пермский моторный завод", г. Пермь. Выполненной на базе авиационного двигателя Д - 30 ЭУ - 2. Мощность ГТУ - 4П 4МВт.

Газотурбинная установка ГТУ-4П энергетическая, стационарная, простого открытого цикла. Выполнена двухвальной: с первым валом - ротора турбокомпрессора (ТК) с приводом агрегатов на двигателе и вторым валом - ротора силовой свободной турбины (СТ) двигателя с трансмиссией и выносным силовым редуктором для привода синхронного генератора.

На двигателе установлена механизация, обеспечивающая устойчивую работу на всех режимах нагрузки: от холостого хода (0 МВт) до номинального (4,0 МВт) и максимального (4,8 МВт) включительно. Все переключения указанной механизации производятся автоматически по приведенной частоте вращения ротора компрессора и на низких режимах ГТУ.

Предусмотрены отборы подогретого сжатого воздуха из проточной части за компрессором в противообледенительную систему двигателя (ПОС) и на нужды станции - для ЭГЭС-4 в количестве - 1 %.

Запуск двигателя производится автоматически по соответствующим программам САУ ГТУ и турбоблока с помощью турбостартёра СтВ-10Г, смонтированного на верхней коробке приводов двигателя и обеспечивающего необходимую начальную раскрутку ротора ТК.

Рабочее тело для запуска - природный газ. Расчетный расход пускового газа через стартер 1,5 кг/с при давлении 4...5 кгс/см2.

Топливо для двигателя - нефтяной попутный газ с рабочим давлением на входе в двигатель 14-16 кгс/см2. Расчетный номинальный расход топлива двигателя - 1260 кг/ч, максимальный - 1500 кг/ч (в стандартных условиях ГТУ).

Зажигание топлива на запуске двигателя производится с помощью агрегата ПВФ-22 и 2-х свечей зажигания, смонтированных на двигателе.

Редуктор Р-45 служит для понижения частоты вращения ротора СТ двигателя 5520 об/мин до частоты вращения 3000 об/мин для привода синхронного генератора и расположен перед входным устройством двигателя.

Основные параметры ГТУ-4П на характерных режимах нагрузки в стандартных условиях (при 1*вх = +15 °С и Рн = 760 мм.рт.ст), при работе на метане (Ни=11958ккал/кг), приведены в таблице 1.1

Таблица 1.1

Параметр

Режимы


Максим.

Пиковый

Номинал.

0,5 Номинал.

Холос. ход

Мощность на валу привода генератора, кВт

4800 _ 100

4400-100

4000+20°

2000 ± 50

0

Частота вращения ротора ТК,об/мин

10350 ±200

10100 + 200

9950 ±200

9100 ±200

6150 ±500

Температура газов за СТ, °С, не более

500

485

470

450

450

Эффективный КПД, %, не менее

-

-

24,0

-

-


Номинальная мощность ГТУ обеспечивается при температуре воздуха на входе в двигатель (1*вх) не выше +25 °С.

Максимальный и пиковый режим нагрузки ГТУ обеспечиваются при температуре не выше 1*вх = +15 °С.

Время непрерывной работы на режиме пиковой нагрузки - не более 1 ч., на максимальной нагрузке - 6 мин (согласно ТУ на генератор).

Трансмиссия имеет предохранительный элемент, исключающий повреждение конструкции ГТУ при возрастании мощности в 1,74 раза на валу э/генератора, а также компенсационные муфты для исключения несоосности валов двигателя и генератора через редуктор. Срабатывание предохранительного элемента в трансмиссии не требует снятия ГТУ для последующего заводского ремонта.

Принимаем к установке генераторы ТК - 4 - 2РУХЛЗ. Предназначенные для выработки электроэнергии в агрегате с приводом от газотурбинной установки ГТУ - 4П. Разработчик и изготовитель ОАО «Привод», г. Лысьва.

Турбогенератор синхронный с воздушным охлаждением по разомкнутому циклу вентиляции,с блоком воздухоочистки и бесщеточной системой возбуждения, с проточной системой смазки. Обеспечивает работу с сетью 6,ЗкВ с изолированной нейтралью.

Турбогенератор выполняется с одним рабочим концом вала, который соединяется с валом турбины посредством муфты.

Основные параметры турбогенератора ТК-4-2-РУХЛЗ приведены в таблице 1.2

Таблица 1.2

Наименование параметра

Значение

Активная мощность, кВт

4000

Полная мощность, кВА

5000

Напряжение, В

6300

Соединение фаз обмотки статора

"звезда"

Ток статора, А

458

Коэффициент мощности, соя ф

0,8

Частота вращения ,об/мин

3000

Коэффициент полезного действия, %

97,2

Напряжение возбуждения, В

118,7

Ток возбуждения, А

288,4

 Индуктивное сопротивление, X"d ,%

13,9


В качестве возбуждения турбогенератора примем возбудитель типа БВУГ-02, бесщеточной системы, включающей станцию управления возбуждением и синхронный возбудитель с диодным вращающимся выпрямителем, якорь которого закреплен на конце вала турбогенератора, а статор - на подшипниковой опоре.

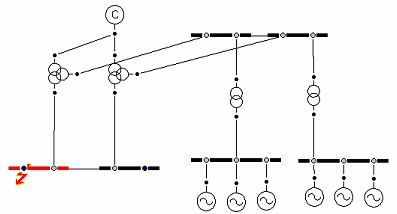
2. Выбор главной схемы ГТЭС


Главная схема выполнена с одной секционированной выключателем системой шин. Три генератора подключены к первой секции, а остальные три ко второй секции.

Главная схема ГТЭС предназначено для приема электрической мощности генераторов и выдачи мощности ГТЭС потребителям.

Главная схема выполняется с применением ячеек КРУ 6 кВ поставляемая ОАО Самарский завод «Электрощит», набираемый из высоковольтных шкафов серии К - 61(М) внутренней установки.

Рисунок 2.1

Питание потребителей электроэнергии площадки ГТЭС предусмотрено от комплектной двухтрансформаторной подстанции (КТП СН) внутренней установки типа 2КТПП-1600М/6/0.4УЗ производства ОАО "Самарский завод "Электрощит".

Надежность электроснабжения потребителей обеспечивается применением двухтрансформаторной подстанции с АВР, наличием низковольтного комплектного устройства с АВР, питающегося от двух разных секций 2КТПП-1600М/6/0.4УЗ.

Электроснабжение высоковольных электродвигателей дожимных компрессоров осуществляется непосредственно от секции 6 кВ. На электростанциях с оперативным постоянным током трансформаторы собственных нужд присоединяют к шинам 6 кВ. Шины 0,4 кВ секционируются для увеличения надежности электроснабжения собственных нужд; секционный разъединитель нормально разомкнут. Цепи и аппараты собственных нужд защищаются плавкими предохранителями и такие цепи и аппараты не подлежат проверке на электродинамическую стойкость токам короткого замыкания. На рис.2.2 представлена схема собственных нужд подстанции.

Рисунок 2.2

3. Выбор на основе технико-экономического сравнения схем подключения ГТЭС к центральной подстанции


Проектируемая электрическая станция предназначена для снабжения электроэнергией потребителей расположенных на напряжение 6 кВ и 35 кВ. ГТЭС будет выполнена на напряжение 6 кВ и присоединением всех генераторов к КРУ. При этом возможно несколько вариантов структурных схем присоединения электрической станции к центральной подстанции. На основе технико-экономического сопоставления вариантов выбираем самый экономичный.

При составлении структурной схемы подключения ГТЭС к распределительному устройству на повышенное напряжение обычно учитывают лишь ячейки выключателя, реактора и трансформаторов присоединения к РУ. Расчет в данном пункте производится в ценах 1989 года.

Вариант 1.

Рисунок 3.1

В этом варианте структурной схемы ГТЭС подключается к РУ 110 кВ через подстанцию ( потребителя) 6 кВ. Связь между ГТЭС и РУ 6 кВ осуществляется с помощью двух реакторов типа РБДГ 10- 4000 - 0,18 (рисунок 3.1). В данном вариант на надежность не рассчитывается, так как элемент реактор очень надежный.

Определим приведённые затраты по данной схеме:


где Ен - нормативный коэффициент сравнительной эффективности капиталовложений. Принимаем Ен = 0.12

К - единовременные капиталовложения в объект. В данной работе это стоимость ячейки выключателя, которая включает в себя стоимость разъединителей, трансформаторов тока и напряжения, ошиновки, а также затраты на монтаж и установку данного оборудования.

Капиталовложения складываются из двух составляющих:

 (3.1)

где КР=20 тыс. руб. - суммарная расчетная стоимость реакторов;

К=9,5 тыс. руб. - стоимость ячейки с элегазовым выключателем на 41 кА отключения.

Кру=124 тыс. руб. - суммарная расчетная стоимость ячеек выключателей, необходимых для присоединения к РУ.

И - издержки эксплуатации в расчётном году:

 (3.2)

где Иа =а·К - амортизационные отчисления (отчисления на реновацию и капитальный ремонт), а - норма амортизационных отчислений,1/год. Принимаем а = 6.4%; И0 =b·К - издержки на обслуживание электроустановки (на текущий ремонт и зарплату персонала), b - норма отчислений на обслуживание,1/год. Принимаем b = 2%.

∆W - потери энергии кВт*ч

β - стоимость 1 кВт*ч потерь электроэнергии коп/(кВт*ч) (β = 1,15 коп/(кВт*ч).

Потери электроэнергии в реакторе определяются следующим образом:

,  (3.3)

Где Рном - номинальные потери мощности, кВт; max- максимальный ток через реактор, А;ном- номинальный ток реактора, А;

Т - продолжительность работы реактора (принимаем Т = 8760 ч), [1, с.395]

тогда потери в реакторе:

Суммарные годовые потери:

В конечном итоге имеем:

Вариант 2.

Рисунок 3.2

Во втором варианте структурной схемы в отличие от первого, связь с РУ 110 кВ осуществляется через подстанцию (потребителей) 35 кВ (рисунок 3.2). Связь ГТЭС с РУ 35 кВ осуществляется через два трансформатора связи, также предусматривается резервный трансформатор когда один из трансформаторов выйдет из строя. Расчетная мощность трансформаторов связи:

Трансформаторы связи должны обеспечить выдачу потребителям всей активной и реактивной мощности генераторов за вычетом нагрузок собственных нужд. Электростанция работает в базовом режиме с постоянной нагрузкой. Поэтому критерием выбора трансформаторов связи будет, то что бы один трансформатор мог выдать полную мощность ГТЭС.

, (3.4)

где РГТЭС - активная мощность ГТЭС,

РС.Н. - активная мощность собственных нужд ГТЭС,

РС.Н.=5%∙РГТЭС= 1,175 МВт,ГТЭС - реактивная мощность ГТЭС,С.Н. - реактивная мощность собственных нужд ГТЭС,С.Н.= 7%∙QГТЭС =1,236 Мвар,

К установке принимаются трансформаторы типа ТД- 16000/35 с номинальными параметрами:ном= 16 МВА; UВН= 38,5 МВ; UНН= 6,3 МВ; PХ= 17 кВт; PК= 85 кВт; UК= 10 %.

При аварии одного трансформатора ГТЭС разгружается на 11,86 МВА, на время замены его на резервный. Рассчитаем ущерб от недоотпущенной электроэнергии, для этого рассчитаем надежность трансформаторов:

Порядок расчёта:

Необходимо задать расчётное время tр, исходя из предполагаемого срока существования данной схемы распределительного устройства. При отсутствии сведений о сроке существования схемы расчётное время принимается равным одному году (8760 ч).

Задаются расчётные режимы работы схемы j и вычисляется их относительная длительность τj. Эти режимы отличаются друг от друга составом работающего оборудования и его повреждаемостью. Количество расчётных режимов должно быть минимально необходимым. Рассматриваются только те режимы, которые существенно отличаются друг от друга в смысле надёжности. Это нормальный и ремонтные режимы. Ремонтные режимы подразделяются на плановые ремонты и аварии.

Вероятность существования каждого режима:

 (3.5)

где t - продолжительность - го режима, зависящая от средней продолжительности плановых и аварийных ремонтов

 (3.6)

ωi, μi - параметр потока отказов и частота плановых ремонтов i - го элемента цепи, вывод в ремонт которого приводит к возникновению j - го режима, 1/год;

Тавi, Тплi - соответственно средняя длительность одного аварийного и планового восстановления i - го элемента, ч;P - расчётное время

 (3.7)

 (3.8)

Вероятность существования нормального режима :

 (3.9)

3 Выбираются и обозначаются расчётные виды аварий. В данной работе вычисляется недоотпущенная потребителям мощность.

4   Устанавливаются события, приводящие к недоотпуску мощности. Ими являются отказы отдельных элементов изучаемого распределительного устройства. Отказ каждого из n элементов в любом из режимов схемы приводит к какой - либо расчётной аварии.

5   Составляется таблица расчётных связей, режимов и расчётных аварий, которая представляет собой матрицу с числом элементов n x m. В таблице должны быть отражены связи между отказами элементов в каждом режиме схемы распределительного устройства и расчётными авариями. Заполнение таблицы расчётных связей для каждого режима начинается с построения электрической схемы распределительного устройства для данного режима. Оперативную схему необходимо собирать таким образом, чтобы была обеспечена максимальная надёжность оставшихся в работе присоединений. Элементы в схеме нумеруются. Номер за данным элементом сохраняется в оперативных схемах всех режимов. В таблице расчётных связей каждому элементу отводится одна строка, в клетках которой записываются потери мощности, возникающие при отказе этого элемента.

6   Определяется вероятность одновременного существования планового и аварийного ремонта:

 (3.10)

7. Определяется общий недоотпуск энергии для всей схемы. Для этого в таблице необходимо для каждой клетки найти произведение вероятности существования режима и недоотпущенной мощности, просуммировать все получившиеся значения и умножить результат на время использования максимума нагрузки:

 (3.11)

Таблица 3.1 Показатели надёжности элементов схемы

Элементы

ω, 1/год

Тв, ч

μ, 1/год

Тпл,ч

Трансформаторы 1, 2.

0,008

90

1

8,5


Ниже приводится таблица расчётных связей событий, режимов и расчётных аварий:

Таблица 3.2

i/j

0

1

2

1

11,86·Тз

-

11,86·Тз 11,86·Тс

2

11,86·Тз

11,86·Тз 11,86·Тс

-


В данной таблице Тз =24ч, Тс = 1ч.

Вероятность существования схемы во время планового ремонта трансформатора:

 (3.12)

Вероятность существования схемы во время аварии трансформатора:

 (3.13)

где Тав - время данной аварии, за которое происходит недоотпуск энергии потребителям.

По формулам (3.11,3.12) рассчитываем вероятности плановых ремонтов и аварий. Результаты сводим в таблицу 3.3. В верхней строке записаны вероятности нахождения элементов в плановом ремонте и вероятность нахождения схемы в нормальном режиме:

Таблица 3.3 - вероятности существования планового и аварийного режима

i/j

0 0,998

1 0,97·10-3

2 0,97·10-3

1

2,19·10-5

-

2,28·10-5

2

2,19·10-5

2,28·10-5

-


Далее необходимо определить вероятность одновременного существования двух режимов. Для этого перемножим вероятности по формуле:

 (3.14)

где i - порядковый номер в строке;- порядковый номер в столбце

Результаты расчётов сводим в таблицу 3.4.

Таблица 3.4 - Вероятности одновременного пребывания в плановом ремонте и аварии

i/j

0 0,9981

1 0,97·10-3

2 0,97·10-3

1

2,18·10-5

-

2,1·10-8

2

2,18·10-5

2,1·10-8

-


Теперь определим потери энергии от ненадёжности схемы. Для этого пользуясь данными таблиц 3.2 и 3.4 по формуле, приведённой ниже, составляем таблицу 3.5.

 (3.15)

где τij - вероятность для каждой клетки таблицы;ij - недоотпущенная мощность в каждой клетке таблицы;

Таблица 3.5 - Недоотпуск энергии, связанный с ненадёжностью схемы

i/j

0

1

2

1

1,8

-

0,002

2

1,8

0,002

-


Общие потери энергии за год:

Определим приведённые затраты по данной схеме:

 (3.16)

 (3.17)

где Кт=60 тыс. руб.-суммарная расчетная стоимость трансформаторов связи;

К= 6,2 тыс. руб. - стоимость ячейки с вакуумным выключателем на 31,5кА отключение.

Кру=80 тыс. руб. - суммарная расчетная стоимость ячеек выключателей, необходимых для присоединения к РУ.

М[У] - математическое ожидание ущерба от недоотпуска энергии:

 (3.18)

где М[W] - математическое ожидание недоотпуска энергии из за ненадёжности электроустановки;

у0 - удельный ущерб, руб/(кВт · ч). Принимаем у0 = 0.22 руб/(кВт·ч)

Потери электроэнергии в трансформаторе определяются следующим образом:

, (3.19)

Где Рх - потери мощности холостого хода, кВт,

Рк - потери мощности короткого замыкания, кВт,max - расчетная (максимальная) нагрузка трансформатора, МВ*А,ном - номинальная мощность трансформатора, МВ*А

Т - продолжительность работы трансформатора (принимаем Т = 8760 ч),

τ - продолжительность максимальных потерь (принимаем τ = 5800 ч) [1, с.395] тогда потери в трансформаторе энергоблока:

Суммарные годовые потери:

В конечном итоге имеем:

По технико-экономическому сравнению самый дешевый получился второй вариант.

4. Выбор числа и мощности трансформаторов для центральной подстанции

Выбор трансформаторов будет проводится в режиме когда ГТЭС не работает. Когда загрузка трансформаторов наибольшая.

Центральная подстанция получает питание от подстанции энергосистемы по двум ЛЭП-110 кВ. Число трансформаторов на проектируемой подстанции принимается равным двум. Схема подстанции выбирается

П-образная. Наиболее загруженные получаются обмотки высшего напряжения.

Так как нагрузка потребителей постоянная, то трансформаторы выбираются по наиболее тяжелому режиму. В данной схеме наиболее тяжелый режим будет в случае когда один из трансформаторов находится в аварийном режиме. Остающийся в работе трансформатор должен обеспечивать питание потребителей в максимальном режиме.

Выбор производится в аварийном режиме с учетом 40% перегрузки.

В максимальном режиме нагрузка потребителей на 6 кВ, Р1= 13 МВт.

В максимальном режиме нагрузка потребителей на 35 кВ, Р2= 15 МВт.

Нагрузка на стороне 110 кВ РН12

Полная мощность протекающая через высшую обмотку трансформатора:

 (4.1)

, (4.2)

где - угол сдвига между активной и реактивной мощностью.

По наибольшей расчётной нагрузке определяется мощность трансформаторов связи. При установке двух трансформаторов

 (4.3)

где Кп - коэффициент допустимой аварийной перегрузки трансформатора (ПТЭ стр.99 пункт 15.7), Кп = 1,4.

МВА

Принимаются к установке трансформаторы типа ТДТН - 25000/110, номинальные параметры сведем в таблицу 4.1.

Таблица 4.1

Тип

Sн, МВ×А

Uвн, кВ

Uсн, кВ

Uнн, кВ

Pкз

Uк, %








В-С

В-Н

С-Н

ТДТН

25

115

38,5

6,6

28,5

140

10,5

17,5

6,5



5. Расчет токов короткого замыкания и теплового импульса токов короткого замыкания


Рисунок 5.1 Схема расчета токов КЗ в точке К3

Рисунок 5.2 Схема расчета токов КЗ в точке К1 и К2

Рисунок 5.3 Схема расчета токов КЗ в точке К4

Расчет токов короткого замыкания от энергосистемы и токов короткого замыкания на станции произведен с помощью программы «ENERGO» и сведен в таблицу 5.1.

Таблицу 5.1 - результаты расчета токов короткого замыкания

Токи к.з.

Источник

Iп(0), кА

Iп,τ, кА

iу,τ, кА

к1 (шины 110 кВ)

Энергосистема С1

3,816

3,816

8,68


Генераторы G1, G2, G3, G4, G5, G6, энергосистема С2

0,689

0,62

1,57


Суммарное значение.

4,505

4,505

10,25

К2 (шины потребителя напряжение 35 кВ)

Генераторы G1, G2, G3

1,095

0,767

2,49


Генераторы G4, G5, G6, энергосистема С1, С2

6,653

6,325

15,13


Суммарное значение

7,748

7,092

17,62

к3 (шины генераторного напряжения 6,3 кВ)

Генератор G1

3,59

1,94

8,63


Генераторы G2, G3, G4

10,77

5,82

25


Энергосистема С1, С2

10,117

10,117

24,32


Подпитка от двигателей

0,51

0,3

1,2


Суммарное значение

24,988

18,177

60,05

К4 (шины потребителя напряжение 6,3 кВ)

Энергосистема С1, генераторы G1, G2, G3, G4, G5, G6

18,479

18,479

44,43


Подпитка от двигателей КНС-1, КНС-2

6,349

3,365

14,815


Суммарное значение

24,828

21,844

59,245


Ударный ток короткого замыкания во всех случаях определяется по формуле:

 (5.1)

Где Iп(0) - начальное значение периодической составляющей тока к.з.

ку- ударный коэффициент (5)

ку =1,608 - в точке К1 и К2.

ку =1,7 - в точке К3 и К4.

Апериодическая составляющая тока к.з. определяется по формуле:

 (5.2)

где Та - постоянная времени затухания апериодической составляющей тока к.з. (5)

τ - расчетное время

τ = tз.min + tс.в., (5.3)

где tз.min = 0,01 c - минимальное время действия релейной защиты,с.в. - собственное время отключения выключателя.

5.2 На шинах генераторного напряжения и на шинах потребителя на 6,3 кВ нужно дополнительно учитывать подпитку от электродвигателей, электрически связанных с местом к.з


5.2.1 Подпитка от двигателей компрессоров на шинах генераторов


 (5.4)

где Рдн.с.н.= 0,8 МВт - суммарная номинальная мощность двигателей собственных нужд,дн - номинальное междуфазное напряжение двигателей.

Ударный ток от двигателя определяется по формуле:

 (5.5)

где ку=1,65 (5)

Значение периодической составляющей тока короткого замыкания от двигателя в интересующий момент времени τ:

 (5.6)

где Т/д = 0,07с - постоянная времени затухания периодической составляющей тока к.з. от двигателя (5).

Апериодическая составляющая тока к.з. от двигателя в интересующий момент времени τ:

 (5.7)

где Тад = 0,04с - постоянная времени затухания апериодической составляющей тока к.з. от двигателя (5).

Тепловой импульс квадратичного тока к.з. определяется по формуле:

 (5.8)

где tотк = tр.з.+ tо.в. (5.9)

tр.з. - время действия основной релейной защиты;о.в. - полное время отключения выключателя.

5.2.2 Подпитка от двигателей на шинах потребителя 6,3 кВ

 (5.10)

где Рдн..= 10 МВт - суммарная номинальная мощность двигателей подключенных к шинам 6,3 кВ,дн - номинальное междуфазное напряжение двигателей.

Ударный ток от двигателя определяется по формуле:

 (5.11)

где ку=1,65

 


6. Выбор коммутационной аппаратуры и токоведущих частей

6.1 Выбор коммутационной аппаратуры


Для упрощения эксплуатации оборудования рекомендуется выбирать его однотипным.

Выключатели допустимо выбирать по следующим параметрам:

по напряжению установки Uуст ≤ Uном;

по длительному току Iнорм ≤ Iном, Imax ≤ Iном;

по отключающей способности

Проверка на симметричный ток отключения производится по условию In.τ ≤ Iотк.ном.

Проверка возможности отключения апериодической составляющей тока КЗ.

ia,τ ≤ ia,ном = √2·βн∙Iотк.ном/100

где ia,ном - номинальное допустимое значение апериодической составляющей в отключаемом токе для времени τ;

βн - нормированное значение содержания апериодической составляющей в отключаемом токе, % (7);

τ - наименьшее время от начала к.з. до момента расхождения контактов. Если условие In.τ ≤ Iотк.ном соблюдается, а ia,τ > ia,ном, то производится проверка по отключающей способности по полному току к.з.

 (6.1)

По включающей способности проверка производится по условию iу ≤ iвкл;

In(0) ≤ Iвкл (6.2)

На электродинамическую стойкость выключатель проверяется по предельным сквозным токам к.з.

iу ≤ iдин; In(0) ≤ Iдин (6.3)

где iдин - наибольший ток электродинамической устойчивостидин - действующее значение периодической составляющей предельного сквозного тока к.з.

На термическую стойкость выключатель проверяется по тепловому импульсу тока к.з.

 (6.4)

где  - тепловой импульс тока к.з. по расчету;

- среднеквадратичное значение тока за время его протекания (ток термической стойкости;

 - время протекания тока термической стойкости.

6.1.1 Выбор коммутационной аппаратуры в ОРУ 110 кВ

К установке в ОРУ 110кВ принимаем элегазовый выключатель ВГТ-110II* 40/2500У1 и двухколонковый горизонтально - поворотный разъединитель РНДЗ 2-110/1000.

Преимущества элегазовых выключателей схемы ОРУ:

-   Высокий механический и коммутационный ресурс

-        Большие межремонтные сроки эксплуатации

         Небольшие объемы обслуживания

-   Малый расход сжатого воздуха потребляемого пневматическим приводом и малые токи потребления электромагнитом управления

-        Низкий уровень шума при производстве коммутаций, отсутствие выбросов

-   Высокая заводская готовность: выключатель поставляется укрупненными узлами, заполненными элегазом, в отрегулированном и испытанном состоянии.

tс.в = 0,03с

τ = 0,01 + 0,03 = 0,04сa,τ = ∙3,816∙е-0,04/0,02 = 0,76кАa,ном = ∙47∙40/100 = 26,7кАокт = 0,1 + 0,05 = 0,15с

Вк = 3,8162(0,15 + 0,02) = 2,5кА2∙с

Сравнение расчетных и каталожных данных сведено в таблицу 6.1

Таблица 6.1

Расчетные данные

Каталожные данные


Выключатель  ВГТ-110II* 40/2500У1

Разъединитель РНДЗ 2-110/1000

Uуст = 110кВ Imax = 184А In,τ = 3,816кА ia,τ = 0,76кА In(0) = 3,816кА iу = 8,68кА Вк = 2,5кА2∙с

Uном = 110кВ Iном = 2500А Iном.отк = 40кА ia,ном = 26,7кА Iдин = 40кА iдин = 100кА  = 4800кА2∙с

Uном = 110кВ Iном = 1000А - - - iдин = 80кА  = 2977кА2∙с


6.1.2 Выбор коммутационной аппаратуры на электростанции

К установке на ГТЭС принимаем вакуумные выключатели ВВ/TEL-10-31,5/(630-1600)У2. Разъединители не устанавливаются, т.к. ячейки КРУ идут в комплекте с втычными разъединителями и выполнены с возможностью выкатывания тележки выключателя. Т.е. необходимости в установке разъединителей нет.

Преимущества вакуумных выключателей схемы КРУ:

- Высокий механический и коммутационный ресурс

-        Большие межремонтные сроки эксплуатации

         Небольшие объемы обслуживания

- Малый расход электроэнергии потребляемого электромагнитным приводом и малые токи потребления электромагнитом управления

-        Низкий уровень шума при производстве коммутаций, отсутствие выбросов

- Быстрое отключение токов короткого замыкания

  Высокая заводская готовность: выключатель поставляется укрупненными узлами, готовый к работе, в отрегулированном и испытанном состоянии.

tс.в = 0,03с

τ = 0,01 + 0,03 = 0,04сa,τ = ∙16,237∙е-0,04/0,03 = 9,32 кАa,ном = ∙40∙31,5/100 = 17,82кАокт = 0,1 + 0,03 = 0,13с

Вк = 24,9882(0,13 + 0,03) = 99,9 кА2∙с

Сравнение расчетных и каталожных данных сведены в таблицы 6.2 - 6.5

Таблица 6.2 - Выключатели генераторных ячеек КРУ

Расчетные данные

Каталожные данные выключатель  ВВ/TEL-10-31,5/630У2

Uуст = 6,3 кВ Imax = 458 А In,τ = 18,177 кА ia,τ = 9,32 кА In(0) = 24,988 кА iу = 60,05 кА Вк = 99,9 кА2∙с

Uном = 6,3 кВ Iном = 630 А Iном.отк = 31,5 кА ia,ном = 17,82 кА Iдин = 31,5 кА iдин = 80 кА  = 2977 кА2∙с


Таблица 6.3 - Секционный выключатель

Расчетные данные

Каталожные данные выключатель  ВВ/TEL-10-31,5/1600У2

Uуст = 6,3 кВ Imax = 1374 А In,τ = 18,177 кА ia,τ = 9,32 кА In(0) = 24,988 кА iу = 60,05 кА Вк = 99,9 кА2∙с

Uном = 6,3 кВ Iном = 1600 А Iном.отк = 31,5 кА ia,ном = 17,82 кА Iдин = 31,5 кА iдин = 80 кА  = 2977 кА2∙с


Таблица 6.4 - Выключатели трансформатора связи ввода 6 кВ

Расчетные данные

Каталожные данные выключатель  ВВ/TEL-10-31,5/1600У2

Uуст = 6,3 кВ Imax = 1466 А In,τ = 18,177 кА ia,τ = 9,32 кА In(0) = 24,988 кА iу = 60,05 кА Вк = 99,9 кА2∙с

Uном = 6,3 кВ Iном = 1600 А Iном.отк = 31,5 кА ia,ном = 17,82 кА Iдин = 31,5 кА iдин = 80 кА  = 2977 кА2∙с


Таблица 6.5- Выключатели трансформатора СН и двигателей на 6 кВ

Расчетные данные

Каталожные данные выключатель  ВВ/TEL-10-31,5/630У2

Uуст = 6,3 кВ Imax = 120 А In,τ = 18,177 кА ia,τ = 9,32 кА In(0) = 24,988 кА iу = 60,05 кА Вк = 99,9 кА2∙с

Uном = 6,3 кВ Iном = 630 А Iном.отк = 31,5 кА ia,ном = 17,82 кА Iдин = 31,5 кА iдин = 80 кА  = 2977 кА2∙с

6.1.3 Выбор коммутационной аппаратуры в ОРУ 35 кВ

К установке в ОРУ 35 кВ принимаем вакуумные выключатели ВБЭТ-35 II-25/630 со встроенными трансформаторами тока и двухколонковый горизонтально - поворотный разъединитель РНДЗ 2-35/1000.с.в = 0,06с

τ = 0,01 + 0,06 = 0,07сa,τ = ∙7,748∙е-0,07/0,03 = 1,06 кАa,ном = ∙30∙25/100 = 10,61 кАокт = 0,1 + 0,08 = 0,18с

Вк = 7,7482(0,18 + 0,03) = 12,61 кА2∙с

Сравнение расчетных и каталожных данных сведены в таблицы 6.6 - 6.8.

Таблица 6.6 - Выключатели и разъединители в ОРУ на стороне 35кВ трансформатора связи

Расчетные данные

Каталожные данные


Выключатель  ВБЭТ-35 II-25/630

Разъединитель РНДЗ 2-35/1000

Uуст = 35 кВ Imax = 264 А In,τ = 7,092 кА ia,τ = 1,06 кА In(0) = 7,748 кА iу = 17,62 кА Вк = 12,61 кА2∙с

Uном = 35 кВ Iном = 630 А Iном.отк = 25 кА ia,ном = 10,61 кА Iдин = 25 кА iдин = 64 кА  = 2500 кА2∙с

Uном = 35кВ Iном = 1000А - - - iдин = 63 кА  = 2500 кА2∙с


Таблица 6.7 - Выключатели и разъединители в ОРУ на стороне 35кВ трансформатора ТДТН-25000/110

Расчетные данные

Каталожные данные


Выключатель  ВБЭТ-35 II-25/630

Разъединитель РНДЗ 2-35/1000

Uуст = 35 кВ Imax = 577 А In,τ = 7,092 кА ia,τ = 1,06 кА In(0) = 7,748 кА iу = 17,62 кА Вк = 12,61 кА2∙с

Uном = 35 кВ Iном = 630 А Iном.отк = 25 кА ia,ном = 10,61 кА Iдин = 25 кА iдин = 64 кА  = 2500 кА2∙с

Uном = 35кВ Iном = 1000А - - - iдин = 63 кА  = 2500 кА2∙с


Таблица 6.8 - Выключатели и разъединители в ОРУ 35кВ на отходящих линиях

Расчетные данные

Каталожные данные


Выключатель  ВБЭТ-35 II-25/630

Разъединитель РНДЗ 2-35/1000

Uуст = 35 кВ Imax = 92 А In,τ = 7,092 кА ia,τ = 1,06 кА In(0) = 7,748 кА iу = 17,62 кА Вк = 12,61 кА2∙с

Uном = 35 кВ Iном = 630 А Iном.отк = 25 кА ia,ном = 10,61 кА Iдин = 25 кА iдин = 64 кА  = 2500 кА2∙с

Uном = 35кВ Iном = 1000А - - - iдин = 63 кА  = 2500 кА2∙с


6.1.4 Выбор коммутационной аппаратуры в КРУ 6 кВ

К установке на подстанции потребителей 6,3 кВ принимаем вакуумные выключатели ВВ/TEL-10-31,5/1600У2.

Разъединители не устанавливаются, т.к. ячейки КРУ идут в комплекте с втычными разъединителями и выполнены с возможностью выкатывания тележки выключателя.

Т.е. необходимости в установке разъединителей нет.с.в = 0,03с

τ = 0,01 + 0,03 = 0,04сa,τ = ∙21,844∙е-0,04/0,03 = 8,143 кАa,ном = ∙40∙31,5/100 = 17,82кАокт = 0,1 + 0,03 = 0,13с

Вк = 24,8282(0,13 + 0,03) = 98,63 кА2∙с

Сравнение расчетных и каталожных данных сведены в таблицы 6.9 - 6.10.

Таблица 6.9 - Выключатели подстанции потребителей 6,3 кВ в цепи трансформатора ТДТН-25000/110

Расчетные данные

Каталожные данные выключатель  ВВ/TEL-10-31,5/1600У2

Uуст = 6,3 кВ Imax = 1466 А In,τ = 21,844 кА ia,τ = 8,143 кА In(0) = 24,828 кА iу = 59,245 кА Вк = 98,63 кА2∙с

Uном = 6,3 кВ Iном = 1600 А Iном.отк = 31,5 кА ia,ном = 17,82 кА Iдин = 31,5 кА iдин = 80 кА  = 2977 кА2∙с


Таблица 6.10 - Выключатели подстанции потребителей 6,3 кВ в цепи трансформатора ТДТН-25000/110

Расчетные данные

Каталожные данные выключатель  ВВ/TEL-10-31,5/630У2

Uуст = 6,3 кВ Imax = 223 А In,τ = 21,844 кА ia,τ = 8,143 кА In(0) = 24,828 кА iу = 59,245 кА Вк = 98,63 кА2∙с

Uном = 6,3 кВ Iном = 630 А Iном.отк = 31,5 кА ia,ном = 17,82 кА Iдин = 31,5 кА iдин = 80 кА  = 2977 кА2∙с

 

6.2 Выбор токоведущих частей


Токоведущие части в открытых распределительных устройствах от 35кВ и выше электростанций обычно выполняется сталеалюминевыми проводами АС.

Сборные шины в открытых распределительных устройствах проверке по экономической плотности тока не подлежат, поэтому выбираем сечение по допустимому току при максимальной нагрузке на шинах, равной току наиболее мощного присоединения - трансформатор - потребителей.max на стороне 110 кВ равен 184 А.

Трансформатор не может быть нагружен мощностью большей, чем мощность потребителей на низком напряжении 35 МВ∙А, поэтому: Imax = Iнорм = 184 А. Ошиновка выбирается по максимальному току который может быть.

Принимаем к установке гибкие шины АС 70/11 с допустимой токовой нагрузкой 265 А.

Imax ≤ Iном (6.5)

184А < 265А

Проверка шин на схлестывание не производится, так как

Проверка на термическое действие тока к.з. не производится, так как шины выполнены голыми проводами на открытом воздухе.

Проверка по условию коронирования не производится, так как, согласно ПУЭ минимальное сечение для воздушных линий 110кВ 70/11.

Для установки на ОРУ110кВ принимаем подвесные стеклянные изоляторы типа ПС6. количество изоляторов в одной гирлянде 8.

От обмотки НН трансформатора ТДТН-25000/110 до шин потребителей на 6,3 кВ токоведущие части выполнены экранированными токопроводами, по 191 выбираем КЗШ-6/64-2000 на номинальное напряжение 6кВ, номинальный ток 2000А, электродинамическую стойкость 100 кА.

Проверка токопровода, по (6.5):

А < 2000А

iу ≤ iдин (6.6)

59,245кА < 64 кА

От обмотки СН трансформатора ТДТН-25000/110 до шин потребителей на 35 кВ токоведущие части выполнены сталеалюминевыми проводами, выбирается по максимальному току который может быть.

Принимаем к установке гибкие шины АС 70/11 с допустимой токовой нагрузкой 265 А.

А < 265А

Выберем провода в цепи трансформатора ТД-16000/35 на стороне ВН:

 (6.7)

Принимаем к установке гибкие шины АС 70/11 с допустимой токовой нагрузкой 265 А.max ≤ Iном : 215 А < 265А

Выберем провода в цепи трансформатора ТД-16000/35 на стороне НН:

От обмотки НН трансформатора до шин ГТЭС на 6,3 кВ токоведущие части выполнены экранированными токопроводами, по 191 выбираем КЗШ-6/64-2000 на номинальное напряжение 6кВ, номинальный ток 2000А, электродинамическую стойкость 64 кА.

Проверка токопровода: max ≤ Iном : 1466А < 2000 Ау ≤ iдин : 60,05кА < 64 кА

Ошиновку на ОРУ 35 кВ выбираем такого же сечения как и присоединение от трансформаторов АС-70/11.

Подстанция потребителей на 6,3 кВ выполняется комплектным распределительным устройством комплектуемое из шкафов серии К-63 с номинальным током 1600 А.

Проверка токопровода:  Imax ≤ Iном : 1191А < 1600А На электростанции также распределительное устройство на 6,3 кВ выполняется комплектным распределительным устройством комплектуемое из шкафов серии К- 63 с номинальным током 2000 А.

Проверка токопровода: max ≤ Iном : 1833А <2000А

От выводов генератора до шин ГТЭС на 6,3 кВ токоведущие части выполнены экранированными токопроводами, по 191 выбираем КЗШ-6/64-2000 на номинальное напряжение 6кВ, номинальный ток 2000 А, электродинамическую стойкость 64 кА.

Проверка токопровода: max ≤ Iном : 458А < 2000Ау ≤ iдин : 60,05кА < 64 кА

7. Выбор приборов учета, трансформаторов тока и напряжения

7.1 Проверка и выбор средств учета и измерения


Контроль за режимом работы основного и вспомогательного оборудования на электростанциях и подстанциях осуществляется с помощью контрольно-измерительных приборов. Согласно ПУЭ гл.1.5 учет активной электроэнергии должен обеспечивать определение количества электроэнергии:

1. выработанной генераторами электростанции;

2. потребленной на собственные и хозяйственные (раздельно) нужды электростанции;

3.       отпущенной потребителям по линиям, отходящим от шин электростанции непосредственно к потребителям;

4. переданной в другие энергосистемы или полученной от них;

5.       отпущенной потребителям из электрической сети.

Расчетные счетчики активной электроэнергии на электростанции должны устанавливаться:

1. для каждого генератора с таким расчетом, чтобы учитывалась вся выработанная генератором электроэнергия;

2.       для всех присоединений шин генераторного напряжения, по которым возможна реверсивная работа, - по 2 счетчика со стопорами;

3. для линий всех классов напряжений, отходящих от шин электростанций и принадлежащих потребителям. Для линий до 10 кВ, отходящих от шин электростанции, во всех случаях должны быть выполнены цепи учета, сборки зажимов, а также предусмотрены места для установки счетчиков;

.   для всех трансформаторов и линий, питающих шины основного напряжения (выше 1 кВ) собственных нужд. Счетчики устанавливаются на стороне высшего напряжения трансформаторов;

5.   для линий хозяйственных нужд (например, питание механизмов и установок ремонтно - производственных баз) и посторонних потребителей, присоединенных к РУ СН электростанции;

.     для каждого обходного или для шиносоединительного (межсекционного) выключателя. На электростанции, оборудованной системой централизованного сбора и обработки информации, указанные системы следует использовать для централизованного расчетного и технического учета электроэнергии. В КРУ 6 кВ ГТЭС и на подстанциях 110кВ, 35кВ и 6кВ устанавливаем следующие приборы:

1.В ячейках генераторов, секционного выключателя, ТСН, вводов трансформатора НН устанавливаем трехфазные счетчики активной и реактивной электроэнергии Концерна «Энергомера» типа ЦЭ 6850 (рабочее напряжение 220      В, ток 1(5)А. Класс точности 0,5(1) схема включения трансфор-я, количество тарифов:4 тарифные зоны по 8 временных зонах суток.)

2. В качестве остальных приборов: используется амперметры типа ЭП 8527/15, с Рпотр по изм. цепи 0,25ВА; вольтметры типа ЭП 8527/13, с Рпотр. по цепи питания 1,5ВА; ваттметры типа ЭП 8527/13, с Рпотр. по цепи питания 7,2 ВА. Так же используется централизованная система АСУ ТП. Все данные обрабатываются САУ и выводятся на монитор компьютера Главного Щита Управления. Для работы телемеханики необходима установка преобразователей типа Е. В ячейках генераторов, секционного выключателя, ТСН, вводов трансформатора НН устанавливаем активной и реактивной мощности типа Е849/9 (Uпит. 220В, Uвх. 0-456В, Iвх. 0-2,5А, I вых. 0-20mA, Рпотр. по изм. цепи 0,2ВА по каждой последовательности, Рпотр. по цепи питания 7,2ВА, класс точности 1). В ячейках ТН секции и ТН генераторов ИП напряжения переменного тока типа Е849/9 (диапазон изменения входного сигнала 0-250В, Iвых 4-20mA, Рпотр по изм. цепи 0,4ВА, Рпотр по цепи питания 2ВА, класс точности . 0,5, напряжение питания 220 В).

7.2 Выбор ТТ и ТН на электростанции

7.2.1 Выбор ТТ в цепи генератора

Предварительно в цепи генератора назначается трансформатор тока типа ТЛК - 10 - 8. Расчетные и каталожные данные сведены в таблицу 7.1.

Таблица 7.1

Расчетные данные

Трансформатор тока ТЛК-10-8

Uуст = 6,3 кВ

Uном = 10 кВ

Iдоп = 458 А

Iном = 600 А

iу1 = 60,05 кА

iдин = 100 кА

Bк = 99,9 кА2с

 2976,75 кА2с

 

Расчетные данные не превышают каталожные данные, поэтому окончательно принимаем к установке выбранный трансформатор тока.

Класс точности измерительной обмотки 0.5, коэффициент трансформации 600/5.

Для проверки ТТ по вторичной нагрузке используем схему включения приборов в цепь обходного выключателя (как наиболее загруженную цепь) и каталожные данные приборов.

Определим нагрузку по фазам для наиболее загруженного трансформатора тока.

Проверим вторичную нагрузку выбранного трансформатора тока. Список и параметры приборов, подключенных к трансформатору, приведены в таблице 7.2.

Таблица 7.2 - Нагрузка по фазам.

Прибор

Тип датчика

Нагрузка фазы, В∙А



А

В

С

Амперметр Ваттметр Варметр Счетчик активной энергии Счетчик реактивной энергии Амперметр регистрирующий Ваттметр регистрирующий Ваттметр (щит турбины) Варметр (щит турбины)

ЭП 8527/15 Е849/9 Е849/9 ЦЭ6805В ЦЭ6811 ЭП8527/15 Е849/9 Е849/9 Е849/9

0,25 0,25 0,25 0,2 0,3 - 0,2 0,2 0,2

0,25 - - 0,2 0,3 0,25 - - -

0,25 0,25 0,25 0,2 0,3 - 0,2 0,2 0,2

Итого:

1,85

1

1,85


Общее сопротивление приборов определяется по выражению

 (7.1)

где  Sприб - мощность, потребляемая приборами; ВА;2 - вторичный номинальный ток прибора, А.

Допустимое сопротивление проводов:

 (7.2)

где r2ном - вторичная нагрузка, Ом., rк - переходное сопротивление контактов, Ом. Сопротивление контактов принимается 0,05 Ом при двух-трёх приборах и 0,1 Ом при большем числе приборов.

Сечение соединительных проводов:


где    r - удельное сопротивление материала провода. ( rcu = 0,0283 );расч - расчётная длина соединительных проводов, зависящая от схемы соединения трансформаторов тока.

Четырёхканальный датчик тока типа ЭП 8527/15 имеет сопротивление 0,01 Ом, отсюда мощность, потребляемая датчиком на одну фазу, будет равна:

          (7.4)

Из таблицы 7.2.2. видим, что наиболее загружены фазы А и С, тогда:

Трансформаторы тока соединены в полную звезду, поэтому lрасч = l = 40м, тогда:

Принимаем контрольный кабель АКРВГ с алюминиевыми жилами сечением 5 мм2 по условиям механической прочности.

7.2.2 Выбор ТН в цепи генератора

В цепи комплектного генераторного распределительного устройства предварительно устанавливается трансформатор напряжения НАМИТ-10-2, с номинальным напряжением 10 кВ. Проверим его по вторичной нагрузке. В качестве датчиков напряжения используются датчики типа ЭП 8527/13, потребляемая мощность равна 1,5 В×А на фазу. Нагрузка трансформаторов напряжения приведена в таблице 7.3.

Таблица 7.3

Прибор

Тип датчика

S одной обмотки, ВА

Число обмоток

cos j

sin j

Число приборов

Потребляемая мощность








P, Вт

Q, Вар

Вольтметр Ваттметр Варметр Счетчик реактивной мощности Счетчик активной энергии Ваттметр регистрирующий Вольтметр регистрирующий Частотомер

ЭП 8527/13 Е 849/9 Е 849/9 ЦЭ 6811  ЦЭ 6805Б  Е 849/9  ЭП 8527/13  ЭП 8527/13

1,5 ф.А.С-3,5;ф.В. - 0,2 ф.А.С-3,5;ф.В. - 0,2 1  1  ф.А.С-3,5;ф.В. - 0,2  1,5  1,5

1 3 3 3  3  3  1  1

1 1 0 1  1  1  1  1

- - 1 -  -  -  -  -

1 2 2 1  1  1  1  1

1,5 14,4 - 3  3  14,4  1,5  1,5

- - 14,4 -  -  -  -  -

Итого

39,3

14,4


Вторичная нагрузка:

(7.5)

Выбранный трансформатор НАМИТ-10-2 имеет мощность 200 В×А в классе точности - 0,5, необходимом для присоединения счётчиков энергии .

Выбранный трансформатор напряжения проходит по вторичной нагрузке и не превышает заданный класс точности, поэтому окончательно устанавливается выбранный ТН.

7.2.3 Выбор ТТ в цепи ввода секции собственных нужд и в цепи двигателей

Предварительно в ячеек ТСН и цепи двигателей назначается трансформатор тока типа ТЛК-10-300- 0,5/10Р. Расчетные и каталожные данные сведены в таблицу 7.4.

Таблица 7.4

Расчетные данные

Трансформатор тока ТЛШ-10-1

Uуст = 6,3 кВ

Uном = 10 кВ

Iдоп = 120 А

Iном = 300 А

iу1 = 60,05 кА

iдин = 100 кА

Bк = 99,9 кА2с

 2976,75 кА2с


Расчетные данные не превышают каталожные данные, поэтому окончательно принимаем к установке выбранный трансформатор тока.

Класс точности измерительной обмотки 0.5, коэффициент трансформации 300/5.

Проверка ТТ по вторичной нагрузке проводится используя формулы (7.1), (7.2), (7.4), Список и параметры приборов, подключенных к трансформатору, приведены в таблице 7.5.

Таблица 7.5

Прибор

Тип датчика

Нагрузка фазы, В∙А



А

В

С

Амперметр Ваттметр Счетчик активной энергии

ЭП 8527/15 Е849/9 ЦЭ6805В

- 0,2 0,2

0,25 0,2 -

- 0,2 0,2

Итого:

0,4

0,45

0,4



Трансформаторы тока соединены а полную звезду, поэтому lрасч = l = 4м, тогда:

Принимаем контрольный кабель АКРВГ с алюминиевыми жилами сечением 4мм2 по условиям механической прочности.

7.2.4 Выбор трансформаторов напряжения на сборных шинах 6 кВ

На секциях 6 кВ предварительно устанавливается трансформатор напряжения НАМИТ-10-2, Uном = 6 кВ, S2ном = 200 В×А в классе точности 0,5 с двумя вторичными обмотками, одна соединена в звезду и к ней присоединены катушки напряжения приборов, вторая - разомкнутый треугольник, используется для контроля изоляции. Трансформатор напряжения устанавливается на каждую секцию сборных шин.

Перечень приборов вторичной нагрузки приведен в таблица 7.6.

Таблица 7.6

Прибор

Тип датчика

S одной обмотки, ВА

Число обмоток

cos j

sin j

Число приборов

Потребляемая мощность








P, Вт

Q, Вар

Вольтметр Вольтметр с переключателем Ваттметр Счетчик активной энергии

ЭП 8527/13 ЭП 8527/13  Е 849/9 ЦЭ 6805В

1,5 1,5  ф.А.С-3,5;ф.В. - 0,2 1

1 1  3 3

1 1  1 1

0 0  0 0

1 1  1 13

1,5 1,5  7,2 36

- -  - -

Итого

46,2

-


Вторичная нагрузка:

Трансформатор напряжения, соединенных в звезду имеют мощность 200 В×А, что больше S2S. Таким образом выбранный трансформатор НАМИТ-10-2 будет работать в классе точности - 0,5, необходимом для присоединения счётчиков энергии.

Принимаем контрольный кабель АКРВГ с алюминиевыми жилами сечением 2,5мм2 по условиям механической прочности.

7.2.5 Выбор ТТ ячейки секционного выключателя

Предварительно в ячейки секционного выключателя назначается трансформатор тока типа ТЛК-10-600- 0,5/10Р. Расчетные и каталожные данные сведены в таблицу 7.7

Таблица 7.7

Расчетные данные

Трансформатор тока ТЛК-10-1

Uуст = 6,3 кВ

Uном = 10 кВ

Iдоп = 458 А

Iном = 600 А

iу1 = 60,05 кА

iдин = 100 кА

Bк = 99,9 кА2с

 2976,75 кА2с

 

Расчетные данные не превышают каталожные данные, поэтому окончательно принимаем к установке выбранный трансформатор тока. Класс точности измерительной обмотки 0.5, коэффициент трансформации 600/5. Проверку вторичнной загрузки установленного трансформатора тока можно не проводить, т.к. к его измерительной обмотке подключен амперметр.

Таблица 7.8

Прибор

Тип

Нагрузка фазы, ВА



А

В

С

Амперметр

ЭП 8527/15

-

0,25

-

Итого:

0

0,25

0


Принимаем контрольный кабель АКРВГ с алюминиевыми жилами сечением 4 мм2 по условиям механической прочности.

 

7.2.6 Выбор ТТ в ячейки трансформатора связи

Предварительно в ячеек вводов 6кВ назначается трансформатор тока типа ТЛК-10-2000 - 0,5/10Р. Расчетные и каталожные данные сведены в таблицу 7.9.

Таблица 7.9

Расчетные данные

Трансформатор тока ТЛШ-10-1

Uуст = 6,3 кВ

Uном = 10 кВ

Iдоп = 1466 А

Iном = 2000 А

iу1 = 60,05 кА

iдин = 100 кА

Bк = 99,9 кА2с

 2976,75 кА2с


Расчетные данные не превышают каталожные данные, поэтому окончательно принимаем к установке выбранный трансформатор тока.

Класс точности измерительной обмотки 0.5, коэффициент трансформации 2000/5.

Проверка ТТ по вторичной нагрузке проводится используя формулы (7.1), (7.2), (7.4), Список и параметры приборов, подключенных к трансформатору, приведены в таблице 7.10.

Таблица 7.10

Прибор

Тип датчика

Нагрузка фазы, В∙А



А

В

С

Амперметр Ваттметр Варметр Счетчик активной энергии Счетчик реактивной энергии

ЭП 8527/15 Е849/9 Е849/9 ЦЭ6805В ЦЭ6811

0,25 0,25 0,25 0,2 0,3

0,25 - - 0,2 0,3

0,25 0,25 0,25 0,2 0,3

Итого:

1,25

0,75

1,25



Трансформаторы тока соединены в полную звезду, поэтому lрасч = l = 40м, тогда:

Принимаем контрольный кабель АКРВГ с алюминиевыми жилами сечением 5 мм2 по условиям механической прочности.

7.3 Выбор ТТ и ТН в ОРУ 110 кВ

7.3.1 Выбор ТТ на стороне 110 кВ

На ОРУ предварительно назначается однотипные ТТ типа ТФЗМ - 110 Б - 1У1. Выбор производим по наибольшему току рабочего режима. Выбираем ТТ на ток 1000 А - первичной цепи. Токи трехфазного к.з. взяты из П.6 для точки К1. Расчетные каталожные данные сведены в таблицу 7.11.

Таблица 7.11

Расчетные данные

Трансформатор тока ТФЗМ-110Б-1У1

Uуст = 110 кВ

Uном = 110 кВ

Iдоп = 184 А

Iном = 300 А

iу1 = 8,68 кА

iдин = 63 кА

Bк = 2,5 кА2с

 507 кА2с


Расчетные данные не превышают каталожные данные, поэтому окончательно принимаем к установке выбранный трансформатор тока.

Класс точности измерительной обмотки 0.5, коэффициент трансформации 300/5.

Проверка ТТ по вторичной нагрузке проводится используя формулы (7.1), (7.2), (7.4), Список и параметры приборов, подключенных к трансформатору, приведены в таблице 7.12.

Таблица 7.12

Прибор

Тип датчика

Нагрузка фазы, В∙А



А

В

С

Амперметр Ваттметр Варметр Счетчик активной энергии Счетчик реактивной энергии

ЭП 8527/15 Е849/9 Е849/9 ЦЭ6805В ЦЭ6811

0,25 0,2 0,2 0,2 0,3

0,25 - - 0,2 0,3

0,25 0,2 0,2 0,2 0,3

Итого:

1,15

0,75

1,15


Из таблицы 7.12 видно, что наиболее загружен трансформатор тока фазы А и С. Общее сопротивление приборов и допустимое сопротивление проводов:

Трансформаторы тока соединены в полную звезду, поэтому lрасч = l = 75м, тогда:

Принимаем контрольный кабель АКРВГ с алюминиевыми жилами сечением 4 мм2 по условиям механической прочности.

7.3.2 Выбор трансформаторов напряжения на стороне 110 кВ

Трансформатор устанавливается на каждом вводе к трансформатору. Принимаем тип трансформатора напряжения НКФ - 110 - 58 У1, Uном = 110 кВ, Sном = 400 В×А в классе точности 0,5. Подсчет вторичной нагрузки приведено в таблице 7.13.

Таблица 7.13

Прибор

Тип датчика

S одной обмотки, ВА

Число обмоток

cos j

sin j

Число приборов

Потребляемая мощность








P, Вт

Q, Вар

Вольтметр  Ваттметр Варметр Счетчик активной энергии Счетчик реактивной мощности

ЭП 8527/13 Е 849/9 Е 849/9 ЦЭ 6805В ЦЭ 6811

1,5 1,5 1,5 1 1

1 2 2 3 3

1 1 0 1 1

0 0 1 0 0

2 2 2 2 2

3 6 0 6 6

- - 6 - -

Итого

21

6


Вторичная нагрузка:

 Мощность трансформатора напряжения:

Следовательно, трансформатор будет работать в классе точности - 0,5, необходимом для присоединения счётчиков энергии. Для соединения измерительного трансформатора с приборами принимаем контрольный кабель АКРВГ с сечением жил 2,5 мм2.

 

7.4 Выбор ТТ и ТН в ОРУ 35 кВ

 

7.4.1 Выбор ТТ на стороне 35 кВ трансформатора связи и трансформатора ТДТН-25000/110

На ОРУ предварительно назначается однотипные ТТ типа ТВ-35-III-600/5 встроенные в выключатель типа ВБЭТ-35-II-25/630 установленные в РУ. Проверку производим по наибольшему току рабочего режима. Расчетные каталожные данные сведены в таблицу 7.14.

Таблица 7.14

Расчетные данные

Трансформатор тока ТВ-35-III-600/5

Uуст = 35 кВ

Uном = 35 кВ

Iдоп = 264 А

Iном = 600 А

iу1 = 17,62 кА

iдин = 30 кА

Bк = 12,61 кА2с

 2500 кА2с


Расчетные данные не превышают каталожные данные, поэтому окончательно принимаем к установке выбранный трансформатор тока.

Класс точности измерительной обмотки 0.5, коэффициент трансформации 600/5.

Проверка ТТ по вторичной нагрузке проводится используя формулы (7.1), (7.2), (7.4), Список и параметры приборов, подключенных к трансформатору, приведены в таблице 7.15.

Таблица 7.15

Прибор

Тип датчика

Нагрузка фазы, В∙А



А

В

С

Амперметр Ваттметр Варметр Счетчик активной энергии Счетчик реактивной энергии

ЭП 8527/15 Е849/9 Е849/9 ЦЭ6805В ЦЭ6811

0,25 0,2 0,2 0,2 0,3

0,25 - - 0,2 0,3

0,25 0,2 0,2 0,2 0,3

Итого:

1,15

0,75

1,15


Из таблицы 7.15 видно, что наиболее загружен трансформатор тока фазы А и С. Общее сопротивление приборов и допустимое сопротивление проводов:

Трансформаторы тока соединены а полную звезду, поэтому lрасч = l = 50м, тогда:


Принимаем контрольный кабель АКРВГ с алюминиевыми жилами сечением 6 мм2 по условиям механической прочности.

7.4.2 Выбор трансформаторов напряжения на сборные шины 35 кВ

Трансформатор устанавливается на каждую секцию. Принимаем тип трансформатора напряжения НАМИ-35, Uном = 35 кВ, Sном = 360 В×А в классе точности 0,5. Подсчет вторичной нагрузки приведено в таблице 7.16.

Таблица 7.16

Прибор

Тип датчика

S одной обмотки, ВА

Число обмоток

cos j

sin j

Число приборов

Потребляемая мощность








P, Вт

Q, Вар

Вольтметр  Ваттметр Варметр Счетчик активной энергии Счетчик реактивной мощности

ЭП 8527/13 Е 849/9 Е 849/9 ЦЭ 6805В ЦЭ 6811

1,5 1,5 1,5 1 1

1 2 2 3 3

1 1 0 1 1

0 0 1 0 0

2 2 2 2 2

3 6 0 6 6

- - 6 - -

Итого

21

6


Вторичная нагрузка:

Мощность трансформатора напряжения:

Следовательно, трансформатор будет работать в классе точности - 0,5, необходимом для присоединения счётчиков энергии. Для соединения измерительного трансформатора с приборами принимаем контрольный кабель АКРВГ с сечением жил 2,5 мм2.

 

7.4.3 Выбор ТТ в отходящие линии на стороне 35 кВ

На ОРУ принимаем однотипные ТТ типа ТВ-35-III-600/5 встроенные в выключатель типа ВБЭТ-35-II-25/630 установленные в РУ. Проверку производим по наибольшему току рабочего режима. Расчетные каталожные данные сведены в таблицу 7.17.

Таблица 7.17

Расчетные данные

Трансформатор тока ТВ-35-III-600/5

Uуст = 35 кВ

Uном = 35 кВ

Iдоп = 264 А

Iном = 600 А

iу1 = 17,62 кА

iдин = 30 кА

Bк = 12,61 кА2с

 2500 кА2с


Расчетные данные не превышают каталожные данные, поэтому окончательно принимаем к установке выбранный трансформатор тока.

Класс точности измерительной обмотки 0.5, коэффициент трансформации 600/5.

Проверка ТТ по вторичной нагрузке проводится используя формулы (7.1), (7.2), (7.4), Список и параметры приборов, подключенных к трансформатору, приведены в таблице 7.18.

Таблица 7.18

 Прибор

Тип датчика

Нагрузка фазы, В∙А



А

В

С

Амперметр Счетчик активной энергии Счетчик реактивной энергии

ЭП 8527/15 ЦЭ6805В ЦЭ6811

0,25 0,2 0,3

0,25 0,2 0,3

0,25 0,2 0,3

Итого:

0,75

0,75

0,75


Из таблицы 7.18 видно, что наиболее загружен трансформатор тока фазы А и С. Общее сопротивление приборов и допустимое сопротивление проводов:

Трансформаторы тока соединены а полную звезду, поэтому lрасч = l = 50м, тогда:


Принимаем контрольный кабель АКРВГ с алюминиевыми жилами сечением 5 мм2 по условиям механической прочности.

7.5 Выбор ТТ и ТН в распределительное устройство потребителей на 6 кВ

7.5.1 Выбор ТТ в цепи ввода трансформатора ТДТН-25000/110 на стороне 6кВ

Предварительно устанавливаются трансформаторы тока типа ТЛК-10-1500- 0,5/10Р для включения измерительных приборов и релейной защиты. Расчетные каталожные данные сведены в таблицу 7.19.

 Таблица 7.19

Расчетные данные

Трансформатор тока ТЛК-10-1

Uуст = 6,3 кВ

Uном = 10 кВ

Iдоп = 1466 А

Iном = 1500 А

iу1 = 60,05 кА

iдин = 81 кА

Bк = 99,9 кА2с

 2976,75 кА2с


Расчетные данные не превышают каталожные данные, поэтому окончательно принимаем к установке выбранный трансформатор тока.

Класс точности измерительной обмотки 0.5, коэффициент трансформации 1500/5.

Проверка ТТ по вторичной нагрузке проводится используя формулы (7.1), (7.2), (7.4), Список и параметры приборов, подключенных к трансформатору, приведены в таблице 7.20.

Прибор

Тип датчика

Нагрузка фазы, В∙А



А

В

С

Амперметр Ваттметр Варметр Счетчик активной энергии Счетчик реактивной энергии

ЭП 8527/15 Е849/9 Е849/9 ЦЭ6805В ЦЭ6811

0,25 0,2 0,2 0,2 0,3

0,25 - - 0,2 0,3

0,25 0,2 0,2 0,2 0,3

Итого:

1,15

0,75

1,15



Трансформаторы тока соединены а полную звезду, поэтому lрасч = l = 20м, тогда:


Принимаем контрольный кабель АКРВГ с алюминиевыми жилами сечением 4мм2 по условиям механической прочности.

 

7.5.2 Выбор трансформаторов напряжения на сборных шинах 6 кВ

На секциях 6 кВ устанавливаем трансформатор напряжения НАМИТ-10-2, Uном = 6 кВ, S2ном = 200 В×А в классе точности 0,5 с двумя вторичными обмотками, одна соединена в звезду и к ней присоединены катушки напряжения приборов, вторая - разомкнутый треугольник, используется для контроля изоляции.

Трансформатор напряжения устанавливается на каждую секцию сборных шин.

Перечень приборов вторичной нагрузки приведен в таблица 7.21.

Таблица 7.21

Прибор

Тип датчика

S одной обмотки, ВА

Число обмоток

cos j

sin j

Число приборов

Потребляемая мощность








P, Вт

Q, Вар

Вольтметр Вольтметр с переключателем Ваттметр Счетчик активной энергии

ЭП 8527/13 ЭП 8527/13  Е 849/9 ЦЭ 6805В

1,5 1,5  ф.А.С-3,5;ф.В. - 0,2 1

1 1  3 3

1 1  1 1

0 0  0 0

1 1  1 12

1,5 1,5  7,2 36

- -  - -

Итого

46,2

-


Вторичная нагрузка:


Трансформатор напряжения, соединенных в звезду имеют мощность 200 В×А, что больше S2S.

Таким образом выбранный трансформатор НАМИТ-10-2 будет работать в классе точности - 0,5, необходимом для присоединения счётчиков энергии.

Принимаем контрольный кабель АКРВГ с алюминиевыми жилами сечением 2,5мм2 по условиям механической прочности.

 

7.5.3 Выбор ТТ в цепи потребителей подключенных к шинам 6 кВ

Предварительно в ячеек ТСН и цепи двигателей назначается трансформатор тока типа ТЛК-10-300- 0,5/10Р. Расчетные и каталожные данные сведены в таблицу 7.22.

Таблица 7.22

Расчетные данные

Трансформатор тока ТЛК-10-1

Uуст = 6,3 кВ

Uном = 10 кВ

Iдоп = 223 А

Iном = 600 А

iу1 = 60,05 кА

iдин = 81 кА

Bк = 99,9 кА2с

 2976,75 кА2с


Расчетные данные не превышают каталожные данные, поэтому окончательно принимаем к установке выбранный трансформатор тока.

Класс точности измерительной обмотки 0.5, коэффициент трансформации 600/5.

Проверим вторичную нагрузку выбранного трансформатора тока. Список и параметры приборов, подключенных к трансформатору, приведены в таблице 7.23.

Таблица 7.23

Прибор

Тип датчика

Нагрузка фазы, В∙А



А

В

С

Амперметр Счетчик активной энергии Счетчик реактивной энергии

ЭП 8527/15 ЦЭ6805В ЦЭ6811

0,25 0,2 0,3

0,25 0,2 0,3

0,25 0,2 0,3

Итого:

0,75

0,75

0,75


Трансформаторы тока соединены а полную звезду, поэтому расч = l = 6 м, тогда:

Принимаем контрольный кабель АКРВГ с алюминиевыми жилами сечением 4мм2 по условиям механической прочности.

8. Защита подстанции и ГТЭС от прямых ударов молний и волн перенапряжения набегающих с ЛЭП

8.1 Защита подстанции и ГТЭС от волн перенапряжения набегающих с ЛЭП


Для защиты электрического оборудования от волн перенапряжения набегающих с ЛЭП используются ОПН.

Предназначены для защиты двигателей, трансформаторов, воздушных и кабельных сетей от атмосферных и коммутационных перенапряжений.

Преимущества по сравнению с вентильными разрядниками:

Более глубокий уровень ограничения атмосферных перенапряжений

Эффективное ограничение коммутационных перенапряжений

Стабильность характеристик

Непрерывное подключение резисторов ОПН к защищаемой сети

Отсутствие сопровождающего тока и высокий коммутационный ресурс

Взрывобезопасность

Эксплуатация без обслуживания и ремонта в течении всего срока службы

Малые габариты, вес и стоимость.

На ОРУ подлежат защите следующие объекты: трансформаторы напряжения, силовые трансформаторы, ЛЭП и сборные шины.

Около каждого вакуумного выключателя устанавливается разрядник, для уменьшения коммутационных перенапряжений при отключении выключателя. Также подлежат защите генераторы и электродвигатели.

На ГТЭС используются ОПН на номинальное напряжение 6 кВ.

в цепи двигателей используются ограничители перенапряжения типа ОПН - КР УХЛ2.

в ячейке трансформатора напряжения устанавливаются ОПН типа ОПН - КС/TEL УХЛ2.

в ячейке трансформатора собственных нужд устанавливаются ОПН типа ОПН - КС/TEL УХЛ2.

в ячейке генератора устанавливаются ОПН типа ОПН - КС/TEL УХЛ2.

в цепи трансформатора на вводе 6 кВ используются ограничители перенапряжения типа ОПН - КР УХЛ2.

На ОРУ - 35 кВ используются ОПН типа ОПН - У/TEL УХЛ1 на номинальное напряжение 35 кВ.

На ОРУ - 110 кВ используются ОПН типа ОПН - У/TEL УХЛ1 на номинальное напряжение 110 кВ.

На КРУ - 6 кВ используются ОПН типа ОПН - РС УХЛ1 на номинальное напряжение 6 кВ.

8.2 Защита подстанции и ГТЭС от прямых ударов молний


Молниезащита пожара и взырыво опасных зданий, сооружений, наружных установок, прожекторных матч выполнено в соответствии с “инструкцией по устройству молнии защиты зданий и сооружений”.

Здания и сооружения, относящиеся ко второй категории по устройству молнии защиты, защищены от прямых ударов молнии, вторичных проявлений молнии и заноса высоких потенциалов через надземные и подземные металлические коммуникации, а относящиеся к третей категории от прямых ударов молнии и заноса высоких потенциалов.

Наружные установки, относящиеся ко второй категории по устройству молнии защиты, защищены от прямых ударов молнии, вторичных проявлений молнии, а относящиеся к третей категории от прямых ударов молнии.

Защита от прямых ударов молнии осуществляется:

установка молнии отводов на прожекторных мачтах на энергетических объектов, здания масло хозяйства, газорегуляторного пункта, корпуса ремонтно - технического обслуживания;

использование в качестве молнии приёмника металлической кровли для здания дожимных компрессоров, блока насоса;

присоединением металлических корпусов к заземлителю емкости площадка рессевиров, площадка сепораторов.

Для дымовой трубы установка молние приёмников не требуется достаточно обеспечить непрерывно электрическую связь её с заземлителем.

Токоотводы, соединяющие молнии отводы с заземлителями, прокладывается не реже, чем через каждые 25 метров по периметру здания, сооружения, и число должно быть не менее двух.

При невозможности использовать в качестве токоотводов металлоконструкции зданий и сооружений следует выполнить токоотводы сталью круглой диаметром не менее 6 мм. Токоотводы, прокладываемые по наружным стенам зданий, следует располагать не ближе, чем в трех метрах от входов или в местах, недоступных для прикосновения людей. При возможности механических повреждений токоотводы защитить уголком.

Соединения молниеприемников с токоотводами и токоотводов с заземлителями должны быть выполнены как правило сваркой, а при недопустимости выполнения огненных работ - болтовыми соединениями с переходным сопротивлением не более 0,05 Ом при обязательном ежегодном контроле последних перед началом грозового сезона.

Для защиты зданий, сооружений и наружных установок от вторичых проявлений молнии:

металлические корпуса всего оборудования и аппаратов присоединить к заземляющему устройству;

внутри здания между трубопроводами и другими протяженными метоллическими конструкциями в местах их взаимного сближения на расстояния менее 10 см. через каждые 30 м. приварить или припаять перемычки из стальной проволоки диаметром не менее 5 мм. или стальной ленты сечением не менее 24 мм2;

во фланцевых соединениях трубопроводов внутри здания должна быть обеспечена нормальная затяжка не менее 4 болтов на каждый фланец.

Для защиты от заноса высоких потенциалов по внешним надземных и подземным коммуникациям на вводе в здания или сооружение их следует подсоединить к заземлителю защиты от прямых ударов молнии, а на ближайшей к вводу опоре - к заземляющему устройству (один вертикальный или горизонтальный электрод длиной не менее 5 м).

Для защиты людей от поражения электрическим током при повреждении изоляции все нетоковедущие части электрооборудования подлежат защитному заземлению (занулению). Для зануления используется нулевой провод, соединенный с глухозаземленной нейтралью трансформатора. В электроустановках до 1 кВ выполнено зануление, а свыше 1 кВ - заземление.

С целью уравнивания потенциалов в тех помещениях и наружных установках, в которых применяются заземления или зануления, и для защиты от статического электричества все строительные и производственные конструкции, стационарно проложенные трубопроводы всех назначений, металлические и электропроводные неметаллические корпуса оборудования, воздуховоды вентиляционных систем и кожухи термоизоляции трубопроводов и апортов должны представлять собой единую непрерывную электрическую цепь, которая, в пределах здания, должна быть присоеденина к сети заземления не менее, чем в двух точках. При этом контакты фланцевых соединений трубопроводов, аппаратов, корпусов с крышкой являются достаточными и не требуют дополнительных мер по созданию непрерывной электрической цепи.

Металлические вентиляционные короба и кожухи термоизоляции трубопроводов и аппаратов в пределах установки должны быть заземлены через каждые 40-50 м. с помощью стальных проводников или путем присоединения непосредственно к заземленным аппаратам и трубопроводам, на которых они смонтированы.

Защита от статического электричества трубопроводов, расположенных на эстакадах, обеспечивается путем присоединения их к заземляющему устройству.

Проектом предусматривается общее заземляющее устройства для защитного заземления, молниезащиты и защиты от статического электричества, состоящие из электродов (сталь круглая диаметр 12мм, длиной 5м), соединенных стальной полосой 40х4мм.

Все металлические элементы конструкции соединяются между собой сваркой или перемычками из стальной полосы 40х4мм в непрерывную электрическую цепь.

8.3 Защита ОРУ от прямых ударов молнии


Для защиты ОРУ (включая шинные мосты, гибкие связи) от прямых ударов молнии применяют стержневые молниеотводы. Наиболее экономично устанавливать стержневые молниеотводы на конструкциях ОРУ, т.к. при этом можно уменьшить высоту молниеотвода и более полно использовать защитную зону. Места установки молниеотводов на территории ОРУ показаны на рисунке 8.1 обозначены цифрами от одного до восьми. Условие защищенности площади ОРУ 110 кВ, при условии защите объекта с надежностью РН =1 рассчитывается радиус зоны защиты rх на уровне высоты объекта hо:

, (8.1)

где ro - радиус защиты на уровне земли;- ширина объекта;

Затем определяется высота молниеотводов, обеспечивающая заданный уровень зазиты:

 (8.2)

Выбираем молниеотводы высотой 30 м. расположенные на линейных порталах и покрывающие все оборудование расположенное в ОРУ - 110 кВ.

На ОРУ - 35 кВ молниеотводы также располагаются на линейных порталах. Высоту молниеотвода также принимаем 30 м. которые покрывают все ОРУ - 35 кВ.

9. Выбор типов РЗиА согласно требованиям ПУЭ

Релейная защита является основным видом электрической автоматики, без которой невозможна надежная работа современных энергетических систем. Она осуществляет непрерывный контроль за состоянием и режимом работы всех элементов энергосистемы и реагирует на возникновение повреждений и ненормальных режимов. При возникновении повреждений защита выявляет и отключает от системы поврежденный участок. При возникновении ненормальных режимов защита выявляет их и, в зависимости от характера нарушения, производит операции необходимые для восстановления нормального режима или подает сигнал дежурному персоналу.

В современных электрических системах релейная защита тесно связана с электрической автоматикой, предназначенной для быстрого автоматического восстановления нормального режима и питания потребителей.

Основные требования, предъявляемые к релейной защите:

- Селективность.

-        Быстрота действия.

         Чувствительность.

         Надежность.

Релейная защита и автоматика распредустройства выполняется в объеме, предусмотренном ПУЭ раздел 3 и действующими директивными указаниями, и должна обеспечивать требуемый уровень защиты всех присоединений.

РЗ данного проекта выполнена на микропроцессорной элементной базе, т.к. использование специальных цифровых микроЭВМ, разработка на их основе так называемых программных защит является перспективным направлением в теории и практике релейной защиты. Релейную защиту можно представить как систему арифметико-логического преобразования информации, содержащейся в воздействующих величинах, а сам процесс преобразования описать аналитическими выражениями, являющимися алгоритмом функционирования защиты.

Основные элементы микроЭВМ - запоминающие устройства, микропроцессор и устройства ввода/вывода.

Функциональные возможности микроЭВМ позволяют выполнить измерительные органы и защиту любой сложности. Это одно из достоинств программных защит.

Другим их достоинством является возможность более широкого применения автоматического тестового контроля. Автоматический тестовый контроль предупреждает возможные излишние срабатывания и отказы срабатывания (самодиагностика).

Микропроцессорные устройства РЗ удовлетворяют все возрастающим требованиям надежности и быстродействия.

Надежность системы энергоснабжения достигается многократным резервированием и постоянным контролем исправности устройств. В результате быстро автоматически и дистанционно локализуются повреждения, и тем самым, сводится к минимуму ущерб от перерывов электроснабжения.

С учетом специфики предприятия и размерам ущерба при недоотпуске электроэнергии, надежность принимает главенствующее значение.

Оборудование малогабаритно. Устройства монтируются по несколько штук в один шкаф, система управления расширяется за счет простого наращивания программного обеспечения и логика может быть любой сложности.

При использовании микропроцессорных устройств уменьшаются расходы на наладку и расход на обслуживание.

Недостатками микропроцессорной техники являются следующие:

Высокая стоимость;

Требуется полное резервирование.

9.1 Выбор типов РЗ трансформаторов ТДТН - 25000/110

Согласно ПУЭ п. 3.2.51, для трансформаторов должны быть предусмотрены устройства релейной защиты от следующих видов повреждений и ненормальных режимов работы:

многофазных замыканий в обмотках и на выводах;

однофазных замыканий на землю в обмотке и на выводах, присоединенных к сети с глухозаземленной нейтралью;

витковых замыканий в обмотках;

токов в обмотках, обусловленных внешними КЗ;

токов в обмотках, обусловленных перегрузкой;

понижения уровня масла;

однофазных замыканий на землю в сетях 3-10 кВ с изолированной нейтралью, если трансформатор питает сеть, в которой отключение однофазных замыканий на землю необходимо по требованиям безопасности.

В соответствии с рекомендациями ПУЭ:

п. 3.2.53.: Предусматривается газовая защита от повреждений внутри кожуха и от понижения уровня масла в трансформаторе.

п. 3.2.54.: Для защиты от повреждений на выводах, а также от внутренних повреждений должны быть предусмотрены:

продольная дифференциальная токовая защита без выдержки времени на трансформаторах мощностью 6,3 кВ и более.

токовая отсечка без выдержки времени, устанавливаемая со стороны питания и охватывающая часть обмотки трансформатора, если не предусматривается дифференциальная защита.

п. 3.2.55. Продольная дифференциальная токовая защита должна осуществляться с применением специальных реле тока, отстроенных от бросков тока намагничивания, переходных и установивщихся токов небаланса.

п. 3.2.59. На трансформаторах мощностью 1 МВА и более в качестве защиты от токов в обмотках, обусловленных внешними многофазными КЗ, должны быть предусмотрены следующие защиты с действием на отключение:

на повышающих трансформаторах с двусторонним питанием - токовая защита обратной последовательности от несимметричных КЗ и максимальная токовая защита с минимальным пуском напряжения от симметричных КЗ или максимальная токовая защита с комбинированным пуском напряжения.

п. 3.2.63. На повышающих трансформаторах мощностью 1 МВА и более, на трансформаторах с двух- и трехсторонним питанием по условию необходимости резервирования отключения замыканий на землю на смежных элементах, устанавливается реле тока со стороны обмотки, присоединенной к сети с большими токами замыкания на землю.

п. 3.2.69. На трансформаторах мощностью 0,4 МВА и более, в зависимости от вероятности и значения возможной перегрузки следует предусматривать МТЗ от токов, обусловленных перегрузкой, с действием на сигнал.

На трансформаторах применяются следующими устройствами РЗА:

- газовая защита трансформатора предназначенная для защиты трансформатора от внутренних повреждений, при которых происходит выделение газа или ускоренное перетекание масла или смеси масла с газом из бака в расширитель (междуфазное КЗ, межвитковые замыкания в обмотках, замыкание обмотки на корпус, “пожар” в стали магнитопровода, неисправности переключателя РПН), а также снижение уровня масла ниже допустимого. Защита выполнена на реле РГТ-80. Верхний элемент газового реле действует на сигнал при витковых замыканиях и при понижении уровня масла. Нижний элемент газового реле действует на отключение трансформатора со всех сторон при дальнейшем понижении уровня масла или при КЗ внутри бака трансформатора.

струйная защита отсека РПН выполнена на реле РСТ и действует на отключение аналогично дифференциальной защите блочного трансформатора.

- микропроцессорный шкаф защит трансформатора типа ШЭ2607 041 производства НПП Экра выполняет функции дифференциальной защиты трансформатора, резервных МТЗ с пуском по напряжению на всех сторонах трансформатора, ЗЗ на стороне ВН трансформатора, защиты от перегрузки.

на стороне ВН микропроцессорные шкафы защит трансформатора типа ШЭ2607 072 производства НПП Экра выполняют функции резервных защит (двухступенчатой дистанционной защиты, МТЗ с пуском по напряжению), управления выключателем и АПВ.

на сторонах СН и НН (на вводах на секции СН и НН) SPAC-801.03 производства СП АВВ-реле-Чебоксары выполняют функции МТЗ с пуском по напряжению, управления выключателем, защиты от перегрузки и АПВ.

9.2 Выбор типов РЗ отходящих ЛЭП 35 кВ


Согласно ПУЭ п. 3.2.98, для линий в сетях 20 и 35 кВ с изолированной нейтралью должны быть предусмотрены устройства релейной защиты от многофазных замыканий и от однофазных замыканий на землю.

п. 3.2.101. На одиночных линиях с односторонним питанием от многофазных замыканий должны быть установлены преимущественно ступенчатые защиты тока или ступенчатые защиты тока и напряжения.

На ВЛ 35 кВ применяются следующими устройствами РЗА:

Для ВЛ 35 кВ - установка на ВЛ основной и резервных защит: один шкаф основной защиты типа ШЭ2607 031 и один шкаф типа ШЭ2607 011, выполняющий функции управления выключателем, резервных защит и АПВ. При этом обеспечивается быстродействие защит (все КЗ на ВЛ отключаются основной защитой без выдержки времени), ближнее и дальнее резервирование защит.

9.3 Выбор типов РЗ шин 35 кВ

Для защиты систем шин 35 кВ от междуфазных КЗ устанавливаться дифференциальная защита шин (ДЗШ).

ДЗШ реагирует на сумму токов всех присоединений системы шин и действует без выдержки времени при всех видах междуфазных КЗ на системе шин на отключение поврежденной системы шин.

Применяется микропроцессорная ДЗШ, выполненная с применением шкафов типа ШЭ2607 061062 производства НПП Экра.

Логическая защита шин.

Возможность выполнения логической защиты шин (ЛЗШ) 35 кВ появилась только с началом применения микропроцессорных защит присоединений 35 кВ, так как для выполнения ЛЗШ используется обмен информацией между защитами питающих элементов и защитами фидеров.

Принцип действия ЛЗШ на каждом питающем элементе: если сработали токовые реле питающего элемента и не сработали токовые реле ни на одном фидере, следовательно, это КЗ на секции шин, при этом ЛЗШ действует без выдержки времени на отключение питающего элемента.

Защита от замыканий на землю.

В распределительных сетях 35 кВ в качестве защиты от замыканий на землю на каждой секции 35 кВ (в ячейке ТН) устанавливается неселективная сигнализация, реагирующая на напряжение 3Uо.

Защита срабатывает при возникновении замыкания на землю в любой точке электрически связанной сети 35 кВ и действует на сигнал с выдержкой времени 9 секунд.

Применяются микропроцессорный терминал SPAC-800 производства СП АВВ-реле-Чебоксары, действующий на сигнал.

Устанавливаемый в ячейке ТН и выполняющий функцию защиты от замыкания на землю.

9.4 Выбор типов РЗиА трансформаторов ТД - 16000/35

Согласно ПУЭ п. 3.2.51, для трансформаторов должны быть предусмотрены устройства релейной защиты от следующих видов повреждений и ненормальных режимов работы:

многофазных замыканий в обмотках и на выводах;

витковых замыканий в обмотках;

токов в обмотках, обусловленных внешними КЗ;

токов в обмотках, обусловленных перегрузкой;

понижения уровня масла;

однофазных замыканий на землю в сетях 3-10 кВ с изолированной нейтралью, если трансформатор питает сеть, в которой отключение однофазных замыканий на землю необходимо по требованиям безопасности.

В соответствии с рекомендациями ПУЭ:

п. 3.2.53.: Предусматривается газовая защита от повреждений внутри кожуха и от понижения уровня масла.

п. 3.2.54.: Для защиты от повреждений на выводах, а также от внутренних повреждений должны быть предусмотрены:

продольная дифференциальная токовая защита без выдержки времени на трансформаторах мощностью 6,3 кВ и более.

токовая отсечка без выдержки времени, устанавливаемая со стороны питания и охватывающая часть обмотки трансформатора, если не предусматривается дифференциальная защита.

п. 3.2.55. Продольная дифференциальная токовая защита должна осуществляться с применением специальных реле тока, отстроенных от бросков тока намагничивания, переходных и установившихся токов небаланса.

п. 3.2.59. На трансформаторах мощностью 1 МВА и более в качестве защиты от токов в обмотках, обусловленных внешними многофазными КЗ, должны быть предусмотрены следующие защиты с действием на отключение:

на повышающих трансформаторах с двусторонним питанием - токовая защита обратной последовательности от несимметричных КЗ и максимальная токовая защита с минимальным пуском напряжения от симметричных КЗ или максимальная токовая защита с комбинированным пуском напряжения.

п. 3.2.69. На трансформаторах мощностью 0,4 МВА и более, в зависимости от вероятности и значения возможной перегрузки следует предусматривать МТЗ от токов, обусловленных перегрузкой, с действием на сигнал.

На трансформаторах применяются следующими устройствами РЗА:

- газовая защита трансформатора предназначенная для защиты трансформатора от внутренних повреждений, при которых происходит выделение газа или ускоренное перетекание масла или смеси масла с газом из бака в расширитель (междуфазное КЗ, межвитковые замыкания в обмотках, замыкание обмотки на корпус, “пожар” в стали магнитопровода, неисправности переключателя РПН), а также снижение уровня масла ниже допустимого. Защита выполнена на реле РГТ-80. Верхний элемент газового реле действует на сигнал при витковых замыканиях и при понижении уровня масла. Нижний элемент газового реле действует на отключение трансформатора со всех сторон при дальнейшем понижении уровня масла или при КЗ внутри бака трансформатора.

- микропроцессорный шкаф защит трансформатора типа ШЭ2607 041 производства НПП Экра выполняет функции дифференциальной защиты трансформатора, резервных МТЗ с пуском по напряжению на всех сторонах трансформатора, защиты от перегрузки.

на стороне ВН микропроцессорные шкафы защит трансформатора типа ШЭ2607 072 для выключателя с пофазным приводом производства НПП Экра выполняют функции резервных защит (двухступенчатой дистанционной защиты, МТЗ с пуском по напряжению), управления выключателем и АПВ.

на стороне НН (на вводах на секции НН) микропроцессорные терминал SPAC-801.03 производства СП АВВ-реле-Чебоксары выполняют функции МТЗ с пуском по напряжению, управления выключателем, защиты от перегрузки и АПВ.

9.5 Выбор типов защит высоковольтных двигателей компрессоров


Согласно ПУЭ [4, 5.3.43.] на электродвигателях должна предусматриваться защита от многофазных замыканий и в случаях, оговорённых ниже, защита от однофазных замыканий на землю, защита от токов перегрузки и защита минимального напряжения.

) Для защиты электродвигателей от многофазных замыканий [4, 5.3.46.] в случаях, когда не применяются предохранители, должна предусматриваться:

- Токовая однорелейная отсечка без выдержки времени, отстроенная от пусковых токов при выведенных пусковых устройствах, с реле прямого или косвенного действия, включенным на разность токов двух фаз, - для электродвигателей мощностью менее 2 МВт.

  Токовая двухрелейная отсечка без выдержки времени, отстроенная от пусковых токов при выведенных пусковых устройствах, с реле прямого или косвенного действия - для электродвигателей мощностью 2 МВт и более, имеющих действующую на отключение защиту от однофазных замыканий на землю, а также для электродвигателей мощностью менее 2 МВт, когда защита по п.1 не удовлетворяет требованиям чувствительности или когда двухрелейная отсечка оказывается целесообразней по исполнению комплектной защиты или применяемого привода с реле прямого действия.

2) Защита электродвигателей [4, 5.3.48.] мощностью до 2 МВт от однофазных замыканий на землю при отсутствии компенсации должна предусматриваться при токах замыкания на землю 10 А и более, а при наличии компенсации - если остаточный ток в нормальных условиях превышает это значение.

Ток срабатывания защит электродвигателей от замыканий на землю должен быть не более 10 А для электродвигателей мощностью до 2 МВт.

Защиту следует выполнять без выдержки времени (за исключением электродвигателей, для которых требуется замедление защиты по условию отстройки от переходных процессов) с использованием трансформаторов тока нулевой последовательности.

) Защита от перегрузки [4, 5.3.49.] должна предусматриваться на электродвигателях, подверженных перегрузке по технологическим причинам, и на электродвигателях с особо тяжёлыми условиями пуска и самозапуска.

- Защиту от перегрузки следует предусматривать в одной фазе с зависимой или независимой от тока выдержкой времени, отстроенной от длительности пуска электродвигателя в нормальных условиях и самозапуска после действия АВР и АПВ.

  На электродвигателях, подверженных перегрузке по технологическим причинам, защита, как правило, должна выполняться с действием на сигнал и автоматическую разгрузку механизма.

  Действие защиты на отключение электродвигателя допускается на электродвигателях механизмов, для которых отсутствует возможность своевременной разгрузки без останова, или на электродвигателях, работающих без постоянного дежурства персонала.

4) После отключения КЗ происходит самозапуск электродвигателей, подключенных к секции или системе шин, на которых во время КЗ имело место снижение напряжения. Токи самозапуска, в несколько раз превышающие номинальные, проходят по питающим линиям (или трансформаторам) собственных нужд. В результате напряжение на шинах собственных нужд, а следовательно, и на электродвигателях понижается настолько, что вращающий момент на валу электродвигателя может оказаться недостаточным для его разворота. Самозапуск электродвигателей может не произойти, если напряжение на шинах окажется ниже 55-65% UНОМ.

Для того, чтобы обеспечить самозапуск наиболее ответственных двигателей, устанавливается защита минимального напряжения, отключающая неответственные двигатели, отсутствие которых в течении некоторого времени не отразится на производственном процессе. При этом уменьшается суммарный ток самозапуска и повышается напряжение на шинах собственных нужд, благодаря чему обеспечивается самозапуск ответственных электродвигателей.

В некоторых случаях при длительном отсутствии напряжения защита минимального напряжения отключает и ответственные электродвигатели. Это необходимо, в частности, для пуска АВР электродвигателей, а также по технологии производства.

В нашем случае используется комплектное устройство защиты и автоматики асинхронного двигателя 6 кВ SPAC 802-101. Для данного устройства набор типов защит определяется применяемым измерительным блоком. В данном устройстве применяется измерительный блок SPCJ 4D34, имеющий защиту от междуфазных замыканий (две ступени МТЗ), защиту от замыканий на землю, тепловую защиту.

9.6 Выбор типов защит трансформаторов собственных нужд 6/0,4 кВ


Согласно ПУЭ п. 3.2.54 и п. 3.2.59 , для понижающих трансформаторов мощностью менее 6.3 МВА для защиты от повреждений на выводах, а также от внутренних повреждений должны быть предусмотрены:

- ТО без выдержки времени, устанавливаемая со стороны питания и охватывающая часть обмотки трансформатора;

  МТЗ с комбинированным пуском напряжения или без него.

При выборе тока срабатывания МТЗ необходимо учитывать возможные токи перегрузки при отключении параллельно работающих трансформаторов.

Защиты выполняем на комплекте защит SPAC 801.111. Устройство SPAC-801.111 предназначено для выполнения необходимых функций по защите, автоматике, управлению и сигнализации трансформаторов собственных нужд 6/0,4 кВ.

9.7 Выбор типов защит шин 6 кВ потребителей


Согласно ПУЭ п. 3.2.124, для секционированных шин 6 кВ должна быть предусмотрена двухступенчатая неполная дифференциальная защита, первая ступень которой выполнена в виде ТО по току и напряжению, а вторая - в виде максимальной токовой защиты. Защита должна действовать на отключение питающих элементов и трансформаторов собственных нужд.

Дуговая защита.

В КРУ 6 кВ должна быть установлена дуговая защита, реагирующая на появление электрической дуги в ячейках КРУ. Защита действует без выдержки времени на отключение питающих элементов секции шин 6 кВ (вводного и секционного выключателей). Кроме того, если электрическая дуга возникла в ячейке ввода, дуговая защита действует с выдержкой времени порядка 0,5 секунды на отключение питающего трансформатора со всех сторон.

Дуговая защита выполняется:

устройство дуговой защиты УДЗ производства НИИИТ. В качестве датчика дуги используется волоконно-оптический датчик из специального волоконного световода.

Логическая защита шин.

Возможность выполнения логической защиты шин (ЛЗШ) 6 кВ появилась только с началом применения микропроцессорных защит присоединений 6 кВ, так как для выполнения ЛЗШ используется обмен информацией между защитами питающих элементов и защитами фидеров. Принцип действия ЛЗШ на каждом питающем элементе: если сработали токовые реле питающего элемента и не сработали токовые реле ни на одном фидере, следовательно, это КЗ на секции шин, при этом ЛЗШ действует без выдержки времени на отключение питающего элемента.

Защита от замыканий на землю. В распределительных сетях 6 кВ в качестве защиты от замыканий на землю на каждой секции 6 кВ (в ячейке ТН) устанавливается неселективная сигнализация, реагирующая на напряжение 3Uо. Защита срабатывает при возникновении замыкания на землю в любой точке электрически связанной сети 6 кВ и действует на сигнал с выдержкой времени 9 секунд. На сборных шинах применяются следующими устройствами РЗА: Для защиты секций шин 6 кВ от междуфазных КЗ устанавливается дуговая защита. Для защиты от замыканий на землю в ячейке ТН устанавливается микропроцессорный терминал SPAC-800, действующий на сигнал. Для защиты присоединений 6 кВ микропроцессорных терминалов SPAC-800 выполняется логическая защита шин от междуфазных КЗ на секциях шин 6 кВ.

9.8 Выбор типов защит шин на ГТЭС


Согласно ПУЭ п. 3.2.124, для секционированных шин 6 кВ электростанций должна быть предусмотрена двухступенчатая неполная дифференциальная защита, первая ступень которой выполнена в виде ТО по току и напряжению, а вторая - в виде максимальной токовой защиты. Защита должна действовать на отключение питающих элементов и трансформаторов собственных нужд.

Дуговая защита.

В КРУ 6 кВ должна быть установлена дуговая защита, реагирующая на появление электрической дуги в ячейках КРУ. Защита действует без выдержки времени на отключение питающих элементов секции шин 6 кВ. Кроме того, если электрическая дуга возникла в ячейке ввода, дуговая защита действует с выдержкой времени порядка 0,5 секунды на отключение питающего трансформатора со всех сторон.

Дуговая защита выполняется:

устройство дуговой защиты УДЗ производства НИИИТ. В качестве датчика дуги используется волоконно-оптический датчик из специального волоконного световода.

Логическая защита шин.

Возможность выполнения логической защиты шин (ЛЗШ) 6 кВ появилась только с началом применения микропроцессорных защит присоединений 6 кВ, так как для выполнения ЛЗШ используется обмен информацией между защитами питающих элементов и защитами фидеров. Принцип действия ЛЗШ на каждом питающем элементе: если сработали токовые реле питающего элемента и не сработали токовые реле ни на одном фидере, следовательно, это КЗ на секции шин, при этом ЛЗШ действует без выдержки времени на отключение питающего элемента.

Защита от замыканий на землю.

В распределительных сетях 6 кВ в качестве защиты от замыканий на землю на каждой секции 6 кВ (в ячейке ТН) устанавливается неселективная сигнализация, реагирующая на напряжение 3Uо. Защита срабатывает при возникновении замыкания на землю в любой точке электрически связанной сети 6 кВ и действует на сигнал с выдержкой времени 9 секунд.

На сборных шинах применяются следующими устройствами РЗА:

Для защиты секций шин 6 кВ от междуфазных КЗ устанавливается дуговая защита. Для защиты от замыканий на землю в ячейке ТН устанавливается микропроцессорный терминал SPAC-800, действующий на сигнал. Для защиты присоединений 6 кВ микропроцессорных терминалов SPAC-800 выполняется логическая защита шин от междуфазных КЗ на секциях шин 6 кВ.

9.9 Выбор типов защит СВ 35 кВ

На секционном выключателе (СВ), как правило, устанавливаются простые токовые ненаправленные двухступенчатые защиты: междуфазная защита токовая отсечка и МТЗ.

Принимаем к установке микропроцессорный терминал управления и защит СВ 35 кВ типа SPAC-800. терминал SPAC-800 выполняет функции управления выключателем, двухступенчатой междуфазной защиты.

Устанавливается шкаф SPAC-800, содержащий автоматику управления выключателем, АПВ и УРОВ, а также двухступенчатую ненаправленную максимальную токовую защиту. Данное решение является традиционным, принятым для электромеханических УРЗ.

9.10 Выбор типов защит СВ 6 кВ

На секционном выключателе (СВ), как правило, устанавливаются простые токовые ненаправленные двухступенчатые защиты: междуфазная защита токовая отсечка, МТЗ.

Принимаем к установке микропроцессорный терминал управления и защит СВ 6 кВ типа SPAC-800. терминал SPAC-800 выполняет функции управления выключателем, двухступенчатой междуфазной.

Устанавливается терминал SPAC-800, содержащий автоматику управления выключателем, АПВ и УРОВ, а также двухступенчатую ненаправленную максимальную токовую защиту. Данное решение является традиционным, принятым для электромеханических УРЗ.

9.11 Выбор устройств автоматики


На каждой ВЛ 35 кВ, как правило, применяется однократное трехфазное АПВ. Иногда применяется двукратное АПВ. Устройство АПВ может быть выполнено с контролем наличия или отсутствия напряжения на шинах или на ВЛ, с контролем синхронизма напряжений на шинах и на ВЛ или без контролей ("слепое" АПВ).

Выбираем к применению микропроцессорные устройства АПВ, входящие в состав схем управления выключателями отходящих ВЛ типа ШЭ2607 011 (схема управления выключателем с фазным приводом).

В соответствии с рекомендациями ПУЭ (3.3.43-3.3.48) включение генераторов с косвенным охлаждением мощностью от 3-х до 50 МВт на параллельную работу с сетью должно производиться способом точной синхронизации (ручной, полуавтоматической и автоматической). При использовании способа точной синхронизации в качестве основного способа включения генераторов на параллельную работу с сетью следует предусматривать установку устройств автоматической и полуавтоматической точной синхронизации, расположенных на главном щите управления. Для генераторов мощностью до 15 МВт допускается применение ручной точной синхронизации с блокировкой от несинхронного включения.

Синхронные генераторы, по рекомендации ПУЭ (3.3.52) должны быть оборудованы устройствами АРВ. АРВ должны соответствовать требованиям ГОСТ на системы возбуждения и техническим условиям на оборудование систем возбуждения.

Возбуждение турбогенератора осуществляется от бесщеточной системы, включающей станцию управления возбуждением и синхронный возбудитель с диодным вращающимся выпрямителем, якорь которого закреплен на конце вала турбогенератора, а статор - на подшипниковой опоре.

Синхронизация ГТЭС с системой обеспечивается от ТН 35 кВ и ТН 6кВ на вводе ГТЭС, также синхронизация выполняется и на ТН установленных в ячейке генератора, при помощи автоматического синхронизатора СА-1, установленного на ГЩУ ГТЭС. Метод автоматической синхронизации обеспечивается путем включения выключателя 35 кВ, при включенном выключателе ввода ГТЭС. Также синхронизация выполняется и отдельно каждого генератора, путем включения выключателя генератора.

На ГТЭС предусмотрен УРОВ, воздействующий на отключение всех присоединений, подключенных к той секции шин, на которой произошел отказ выключателя.

9.12 Расчет установок защит генераторов


В ячейках генераторов предусматривается:

• защита от многофазных замыканий в обмотке статора генератора (дифференциальная токовая защита, в зону действия которой входит генератор и кабель от генератора до КРУ);

• защита от перегрузки;

• максимальная токовая защита с комбинированным пуском напряжения от внешних коротких замыканий;

• защита от однофазных замыканий на землю в обмотке статора (земляная защита);

• защита от двойных замыканий на землю.

Защиты выполняем на комплекте защит SPAC 803. Устройство SPAC 803 предназначено для выполнения необходимых функций по защите, автоматике, управлению и сигнализации комплектного распределительного устройства синхронного генератора напряжением 6 кВ.

Устройство предназначено для установки в комплектных распределительных устройствах электрических станций, а также на панелях управления.

Конструктивно устройство SPAC 803 выполнено в виде кассеты блочно-унифицированной конструкции европейского стандарта с передней прозрачной крышкой. Для защиты от внешних воздействий кассета закрыта с верхней, нижней и задней сторон металлическими стенками. Кассета представляет собой двухъярусную конструкцию, внутри которой располагается ряд блоков, на лицевой плите которых указывается тип блока. Блоки выполнены съемными и устанавливаются в кассету на направляющих. В верхней части кассеты находятся: блок входных трансформаторов, блок питания, измерительные блоки. Блок питания и блок входных трансформаторов располагаются за лицевой плитой, на которой находится также индикатор блока питания. На лицевой плите нанесен тип устройства с указанием номинальных технических данных, а также расшифровка индикации измерительных блоков. На лицевой плите измерительных блоков располагаются элементы индикации и кнопки управления.

В нижней части кассеты располагаются блоки входных цепей, блоки выходов и блок управления. На лицевой плите блока управления располагаются элементы индикации и кнопки управления, с помощью которых производится выставление уставок и считывание информации из регистров памяти блока.

Блоки входов и выходов располагаются за лицевой плитой, на которой нанесена расшифровка индикации блока управления. Всего установлено два блока входов и два блока выходов с максимальным количеством входных цепей и выходных реле 16. Входные цепи имеют оптоэлектронную развязку от цепей оперативного питания, обеспечивающую требуемый уровень изоляции устройства (2 кВ).

Выходные цепи выполнены на реле с различными количеством и типами контактов. Выходное реле фиксации команд (РФК) выполнено с использованием двухпозиционного реле. С целью увеличения количества контактов некоторые цепи выполнены с одновременным срабатыванием двух реле.

Электрическая связь между блоками, устанавливаемыми в кассете, осуществляется с помощью разъемов. Межблочный монтаж кассеты выполняется с помощью объединительной печатной платы. Блок трансформаторов, блоки входов и выходов соединяются с объединительной печатной платой с помощью съемных гибких жгутов.

Для подключения устройства к внешним цепям на обратной стороне устройства на металлической стенке предусмотрены клеммные колодки для подключения проводников. Клеммные колодки токовых цепей предназначены для присоединения под винт одного или двух одинаковых проводников общим сечением до 6 мм2 включительно и сечением не менее 1 мм2 каждый, а клеммные колодки цепей питания, входных и выходных цепей предназначены для подсоединения под винт одного или двух одинаковых проводников общим сечением до 2,5 мм2 включительно и сечением не менее 0.5 мм2 каждый. Колодки токовых цепей выполнены неразъемными, а остальные колодки позволяют производить отключение цепей с помощью разъемов.

Предусмотрен разъем для связи устройства с высшим уровнем АСУ ТП (порт последовательной передачи данных). Для связи должен использоваться асинхронный последовательный коммуникационный протокол SPA-bus. Входные и выходные уровни сигналов должны быть совместимы с TTL- логикой.

Питание устройства производится от преобразовательного блока питания, который обеспечивает необходимые уровни напряжения для функционирования блоков устройства. Подача оперативного питания производится через отдельный разъем Х14, расположенный на задней стенке.

Переменный ток от измерительных трансформаторов тока (ТТ) подается через клеммные колодки на блок входных трансформаторов. В блоке трансформаторов производится гальваническое разделение цепей устройства от цепей измерительных трансформаторов и преобразование уровней входных сигналов до необходимых для работы аналого-цифровых преобразователей (АЦП) уровней. Устройство может быть подключено к измерительным ТТ по трехфазной или двухфазной схеме.

Преобразованные сигналы от блока трансформаторов с помощью гибкого экранированного жгута поступают через разъемы, расположенные на объединительной плате, на вход измерительных блоков, где производится их обработка.

Измерительные блоки выполняется в виде самостоятельных устройств на цифровой элементной базе. Они имеют независимую систему самоконтроля, которая обеспечивает высокую надежность блоков благодаря постоянному контролю аппаратной и программной части.

Блоки обеспечивают преобразование сигналов от промежуточных трансформаторов тока в последовательность двоичных кодов и сравнение их с уровнем уставок. В случае превышения уставки в регистры памяти записываются параметры аварийного режима и формируется логический сигнал, который поступает на вход блока управления. На вход блока управления поступают также логические сигналы от блоков входов, которые обеспечивают прием внешних входных сигналов и гальваническую развязку. Назначение входов строго фиксировано и определяется функциями управления и защиты. Устройство SPAC 803 обеспечивает прием до 16 логических сигналов двумя блоками.

Блок управления производит обработку поступающих на его входа сигналов по заранее определенному алгоритму. Алгоритм обработки может быть изменен пользователем с помощью программных переключателей, которые определяют различное действие входных воздействующих сигналов на выходные цепи (действие на сигнализацию или отключение и т. п.). Блок управления формирует сигналы срабатывания выходных реле сигнализации и отключения.

Сброс светодиодной сигнализации и выходных сигнальных реле производится кнопкой “сброс/шаг”, расположенной на блоке управления L2210 и на измерительном блоке.

Блок выходных реле обеспечивает прием команд от блока управления и срабатывание реле управления и сигнализации. Микропроцессорная часть устройства производит постоянный контроль состояния выходных реле, обеспечивая высокую готовность к действию. Предусмотрены меры, исключающие самопроизвольное срабатывание выходных реле.

Связь устройства SPAC 803 с другими устройствами релейной защиты и автоматики через приемные и выходные цепи рекомендуется производить на уровне напряжения 110, 220 В.

Виды защит, реализованных на данном комплекте защит.

- Дифференциальная защита.

Начальный ток срабатывания первой ступени дифференциальной защиты (с торможением) 3DI> (0,05...0,5)х IN.

Время срабатывания ступени защиты при кратности токов к уставке равной 4, мс не более 45.

Чувствительность второй ступени дифференциальной защиты (дифференциальной отсечки) 3DI>> (5...30) хIN

Время срабатывания ступени защиты при кратности токов (1,1...2,6) 3DI>>, мс не более 40.

Диапазон коррекции коэффициента трансформации трансформаторов тока 0,4...1,5.

Погрешность тока срабатывания от уставки ±4% или ±2% х IN.

Защита от перегрузки (тепловая защита).

Диапазон уставок по току полной нагрузки генератора Iq 0,50...1,50хIN

Уставка по безопасному времени заклинивания ротора t6x, (время отключения холодного генератора при токе 6х IN) 2,0...120 с

Постоянная времени нагрева генератора, th 32 хt6х

Постоянная времени охлаждения генератора в         состоянии покоя kc, диапазон уставок 1...64 х th

Уровень предварительной тепловой сигнализации qа 50...100% от уровня отключения

Уровень запрета повторного пуска 20...80% от уровня отключения генератора qi.

-   Максимальная токовая защита

Вторая ступень МТЗ

Защита имеет два принципа работы:

Принцип тока/времени I &t

Уставка по току срабатывания, Is 1,0...10,0 х IN

Диапазон уставок по времени срабатывания, ts 0,3...80 с

Принцип квадрата тока х время I2хt

Уставка по току срабатывания, Is 1,0...10,0 х IN

Диапазон уставок по времени срабатывания, ts 0,3...80 с

Минимальное время отключения около 400 мс

Первая ступень МТЗ

Уставка по току срабатывания I>> 0,5...20,0 х IN или выведена

Время срабатывания t>> 0,04...30 с.

-   Защита от замыканий на землю

Уставка по току срабатывания Iо> 1,0...100% х IN

Время срабатывания to > 0,05...30 с

-   Защита от потери нагрузки

Уставка по току срабатывания I< 30...80% х Iq или выведена

Время срабатывания t< 2...600 с

-   Защита от несимметричной работы и обратного чередования фаз

Уставка по току срабатывания DI 10...40% от Iф или выведена

Время срабатывания при DI  =10% и обратнозависимой характеристике, tD 20...120 с

Время возврата < 250 мс

Время срабатывания при обрыве фаз 1 с

Время срабатывания при нарушении чередования фаз 600 мс

Цепи переменного тока фазных проводов защиты выдерживают без повреждений при номинальном токе 1 и 5 А ток:

и 20 А длительно;

и 500 А       в течение 1 с.

Цепи переменного тока защиты от замыканий на землю выдерживают без повреждений при номинальном токе 0,2 и 1 А ток:

,5 и 4 А длительно;

и 100 А в течение 1 с.

Диапазон измерения фазного тока 0...63 хIN

Диапазон измерения тока нулевой последовательности 0...2.1 х IN

Входными сигналами для блока управления являются сигналы от измерительных блоков защиты, а также от блоков приемных цепей.

Блок дифференциальной защиты действует на отключение выключателя через сигнал, обозначенный на схеме как TS3, на который выводится действие ступени с торможением 3DI> с помощью программного переключателя в блоке SPCD 3D53 SGR1/6=1 и действие дифференциальной отсечки при установке ключа SGR2/6=1.

Программные переключатели в блоке защиты SPCJ 4D34 устанавливаются таким образом, чтобы было обеспечено следующее назначение сигналов:- сигнал запрета включения генератора при работе защит (введено постоянно);- отключение выключателя от резервных защит (введено при использовании защит пусковых режимов, несимметричных режимов, защиты от перегрузки, снижении нагрузки);- действие предупредительной ступени тепловой защиты (SGR2/1=1);- действие защиты от замыканий на землю (SGR1/6=1);- действие отсечки.

Наличие входных сигналов можно проконтролировать с помощью светоиндикаторов блока L2210 в режиме индикации входов. В этом случае свечение светодиода свидетельствует о поданном напряжении на вход устройства (срабатывании приемного реле), в противном случае - об отсутствии входного сигнала. Исключение составляет вход для блокирования защит, где сделана инверсия входа для реализации комбинированного пуска защит при снижении напряжения (замыкание контакта реле напряжения при снижении контролируемого напряжения).

Защита от многофазных замыканий в обмотке статора.

Данный вид защиты выполняется ввиде продольной дифференциальной защиты.

Расчет номинального тока генератора:

Iном=А          (9.1)

Расчет уставок производится в относительных единицах. За базу принимается номинальный ток генератора.

Расчетный ток небаланса находим из выражения

Iнб.расч* = Kпер e*+ Dfвыр*,         (9.2)

где Kпер - коэффициент, учитывающий переходный процесс;

e* - полная погрешность ТТ в установившемся режиме;

Dfвыр* - относительная погрешность выравнивания токов плеч.

Для ТТ класса точности 10Р полная погрешность e принимается равной 0,1.

По данным фирмы - изготовителя расчетное значение Dfвыр* можно принимать 0,04.

Дифференциальный ток срабатывания модуля SPCD 3D53 должен удовлетворять условию

Iд.ср* ³ Котс Iнб.расч*,         (9.3)

где Котс - коэффициент отстройки.

Для дифференциальных защит принимается Котс=1,5. Коэффициент отстройки, по сути, представляет собой коэффициент запаса. Его значение определяется точностью расчетов и точностью задания уставок реле. Рекомендуется находить коэффициент торможения по условию отстройки от режима максимального тока внешнего КЗ (или максимального сквозного тока). В этом случае точность расчета тока небаланса невелика. Кроме того, не учитывается снижение тормозного тока в переходном режиме. В этих условиях рекомендуется принимать Котс=1,5.

Модуль SPCD 3D53 при Iв* > I2tp/In имеет коэффициент торможения s*, равный 1. Дополнительным фактором отстройки является блокировка по отношению амплитуд второй и первой гармоник дифференциального тока (уставка Id2f/Id1f >).

При выборе значения Кпер необходимо учитывать, что модуль SPCD 3D53 имеет отстройку от переходных токов небаланса за счет блокировки Id2f/Id1f>. Как показали результаты математического моделирования переходных токов небаланса при Iкз*=2, отношение Id2f/Id1f, обусловленное насыщением ТТ, может быть равным 0,3. Поскольку переходный ток небаланса обычно содержит вторую гармонику, которая примерно равна первой гармонике, обусловленной насыщением ТТ, то уставку Id2f/Id1f следует принимать равной 15 %. При этом Кпер равен 2,5.

С учетом точности результатов математического моделирования, а также того, что параметры модуля SPCD 3D53 задаются с довольно высокой точностью, принимаем Котс=1,3.

Принимаем Кпер=2,5; Dfвыр*=0,04; I2tp/In=2,0.

Находим p*:*=1,3×0,5(0,1+0,04)=0,091.

Принимаем p*=0,1.

Находим расчетный ток небаланса:нб.расч*=2,5×0,1+0,04=0,29;расч*=  =0,6

Принимаем уставку I2tp/In=1,5.* ³ 1,5×0,6-0,5=0,4.

Принимаем уставку s=0,4.

Проверяем отстройку от тока небаланса установившегося режима при Iв*=1 по условию

p* +0,5s* ³ 1,3(0,1+ DUрег* + Dfвыр*).(9.4)

Подставив полученные уставки, имеем

,1+0,5×0,4 ³ 1,3(0,1+0,04).

Для создания запаса принимаем p*=0,25.

Окончательно имеем уставки:/In=25 %; s=40 %; I2tp/In=1,5.

Проверка чувствительности дифференциальной защиты.

Коэффициент чувствительности защиты обычно определяется как отношение

Кч= ,(9.5)

где Iр.мин - минимальное значение тока в реле при КЗ расчетного вида в расчетной точке.

Коэффициент чувствительности должен быть не менее 2. Под Iср.р* понимаем относительный ток срабатывания в той точке тормозной характеристики, которая соответствует расчетному режиму КЗ. Расчетный режим КЗ следует рассматривать в точке, соответствующей уставке дифференциальной отсечки Id/In>>. В этих условиях Кч всегда получается не менее 2, поэтому условие чувствительности дифзащиты выполняется.

Расчет дифференциальной отсечки.

Дифференциальная отсечка реагирует на амплитуду первой гармоники дифференциального тока. Она срабатывает также, если мгновенное значение дифференциального тока превышает уставку Id>> по первой гармонике в 2,5 раза.

Расчетным для выбора уставки дифференциальной отсечки является режим максимального сквозного тока при внешнем КЗ.

Как указывалось выше, предельная кратность ТТ при Iном=5 А может находиться в пределах 10¸30. В этих условиях амплитуда тока небаланса может достигать амплитуды максимального тока внешнего КЗ. Отношение указанной амплитуды к амплитуде периодической составляющей тока КЗ не превышает 2, поэтому при выборе уставки отсечки следует учитывать только первую гармонику дифференциального тока.

С учетом изложенного получаем

Id отс* ³ Котс Кнб Iкз.макс*,        (9.6)

где Кнб - отношение амплитуды первой гармоники тока небаланса к приведенной амплитуде периодической составляющей тока внешнего КЗ.кз.макс* = 3,59 кА. - ток КЗ от генератора (рассчитанный в 7 пункте).

Значение Котс при выборе тока срабатывания отсечки можно принимать равным 1,2. Значение Кнб зависит, в основном, от минимального значения предельной кратности ТТ, от разброса предельных кратностей и от остаточных индукций ТТ. Поскольку в схеме дифзащиты генераторов наблюдается значительное различие нагрузок ТТ со стороны выводов и со стороны нейтрали, то принимаем Кнб(1)=1,0.отс*³ 1,2·1,0·3,59=4,308

Защита генератора от токов, обусловленных симметричной перегрузкой.

Выполняется в виде максимальной токовой защиты с действием на отключение. Для генераторов данного типа допускается 20% перегрузка в течении 10с.

Iсзотс кп·Iном/кв=1,1·1,2·458/0,96=629,7А,(9.7)

где кп - коэффициент перегрузки.

Iср= Iсз/nт=629,7/200=3,15 (9.8)

где  - коэффициент трансформации трансформатора тока ТЛК-10-8-0,5/10Р

Защита от замыканий на землю.

В качестве защиты от замыканий на землю используется токовая защита нулевой последовательности реагирующая на токи установившегося режима. Ток срабатывания выбирают с учетом того, что одновременно с однофазным замыканием на одном из присоединений к шинам может возникнуть двухфазное КЗ между другими фазами другого присоединения, отключаемое с выдержкой времени, большей времени комплекта от замыканий на землю.

I=(котс1·I + котс2·Iнб)/кв, (9.9)

где: котс1=2 - коэффициент, учитывающий броски емкостного тока в неустановившемся режиме;=4.052А - установившийся емкостный ток защищаемого генератора (указан в паспортных данных);

Котс2=1,3 - коэффициент, учитывающий погрешности при расчете тока небаланса;нб.расч.=0,29А -ток небаланса защиты, соответствующий току срабатывания защиты от внешних коротких замыканий.=(2·4,052+1,3·0,29)/0,96=8,83А

Iср=Iсз/nт=9,525/25=0,353А (9.10)

где - коэффициент трансформации трансформатора тока ТЗЛМ-10-6-ХЛ1

Выдержку времени выбираем исходя из отстройки от переходных значений емкостного тока при внешних коротких замыканиях:сз=1,5с.

Защита от внешних коротких замыканий.

В качестве защиты от внешних коротких замыканий принимается максимальная токовая защита

(9.11)ср= I/nт=1049,6/200=5,248А  (9.12)

Где  - коэффициент трансформации трансформатора тока ТЛК-10-8-0,5/10Р

Выдержка времени отстраивается от времени срабатывания МТЗ секционного выключателя:сз=3,5+0,5=4с

Защита от обратной мощности.

Защита от обратной мощности предназначена для отключения генераторов перешедших в двигательный режим. Как правило, для генераторов, мощностью до 30 МВт данная защита не применяется, но в соответствии с рекомендациями завода-изготовителя примем к установке данный вид защит. Защита выполняется на комплектном устройстве защит SPAG 310 производства АВВ «Реле-Чебоксары». Комплекты устанавливается в ячейках ТН генераторов. В соответствии с рекомендациями завода-изготовителя уставки модуля перенапряжения и обратной мощности SPCP 3C2 примем:

Ступень перенапряжения U>=1,2

Ступень обратной мощности P<= -5

10. Проектирование контура заземления подстанции и ГТЭС. Расчет сопротивления заземления заземляющего контура


Согласно ПУЭ заземляющие устройства электроустановок выше 1кВ сети с эффективно заземленной нейтралью выполняются с учетом сопротивления R3 или допустимого напряжения прикосновения.

Расчет по допустимому сопротивлению приводит к неоправданному перерасходу проводникового материала и трудозатрат. Рассчитаем заземляющий контур для подстанции и ГТЭС вместе, как один заземляющий контур.

Заземляющее устройство для установок 6, 35, 110 кВ и выше выполняется из вертикальных заземлителей, соединительных полос, проложенных вдоль рядов оборудования и выравнивающих полос. Проложенных в поперечном направлении и создающих заземляющую сетку с переменным шагом.

Под заземлитель ОРУ и ГТЭС использована площадка 40х120 м2. Грунт площадки двухслойный с толщиной первого слоя 2м. Удельное сопротивление первого слоя, измеренное при средней влажности , второго слоя .

Рисунок 10.1 - заземляющее устройство ОРУ и ГТЭС

Рисунок 10.2 - расчетная модель

За расчетную длительность воздействия принята

tв=tр.з.+tотк.выкл (10.1)

где tр.з -время действия релейной защиты

tотк.выкл -полное время отключения выключателя

tв=0.12+0.08=0.2с

находим пр.доп.=400 В

Коэффициент прикосновения

(10.2)

где lв -длина вертикального заземлителя. ,м ;r -длина горизонтального заземлителя ,м ;

а-расстояние между вертикальными заземлителями S-площад заземляющего устройства, м2

М-параметр. Зависящий от

здесь

β-коэффициент. Определяемый по сопротивлению тела человека RЧ.= 1000 Ом, и сопротивлению растекания тока от ступней

по плану


Потенциал на заземлителе

,

что в пределах допустимого (меньше 10кВ).

Сопротивление заземляющего устройства


Ток, стекающий в землю через заземлители составляет долю от тока однофазного КЗ, которая зависит от мощности установленных трансформаторов и количества заземленных нейтралей в системе ;

Примем Iз =(0,4...0,60)Iп.о.

Где Iп.о.-ток однофазного К.З.

Тогда I3=1900 A


Действительный план заземляющего устройства преобразуем в расчетную квадратную модель со стороной

Число ячеек по стороне квадрата

принимаем m=8.

Длина полос в расчетной модели:

.

Длина сторон ячейки


Число заземлителей по периметру контура при а/lв= 2

принимаем

Общая длина вертикальных заземлителей

.

Относительная глубина

,

тогда

, при ; (12.4)

.

По таблице 7.6  для ;;

определяем , тогда

Общее сопртивление сложного заземлителя

Что меньше допустимого R3.доп 1,1 Ом

Найдем напряжение прикосновения

Определим наибольший допустимый ток, стекающий с заземлителей при 1 -фазного КЗ:

При больших токах необходимо снижение R3 за счет учащения сетки полос или дополнительных вертикальных заземлителей.

На напряжении 0,4 кВ для защиты людей от напряжения предусмотрено защитное зануление корпусов.

11. Техника безопасности

11.1 Общие положения


Главная понизительная подстанция «Центральная» 110/35/6 кВ и газотурбинная электростанция нефтяного месторождения размещается в северозападной области Нефтеюганского района и осуществляет электроснабжение потребителей нефтяного месторождения, а так же потребителей близлежайших районов.

Необходимость строительства ГТЭС работающей на попутном нефтяном газе, обусловлена снижением себестоимости электроэнергии, повышения качества и надежности электроснабжения.

Подстанция «Центральная» состоит из открытого распределительного устройства 110 кВ и открытого распределительного устройства 35 кВ., а так же КРУ 6кВ. Подстанция «Центральная» и ГТЭС отвечает нормативным документам по проектированию, монтажу и устройству электроустановок согласно Правилам Устройства Электроустановок (ПУЭ), Правилам Эксплуатации Электроустановок Потребителей (ПЭЭП) и Межотраслевым Правилам по Охране Труда (ПБ). 

Главная понизительная подстанция служит для приёма и распределения электроэнергии и содержит коммутационные аппараты, сборные и соединительные шины, вспомогательные устройства, а также устройства защиты, автоматики и измерительные приборы.

Во всех цепях распределительного устройства предусмотрена установка разъединяющих устройств с видимым разрывом, обеспечивающих возможность отсоединения всех аппаратов (выключателей, отделителей, предохранителей, трансформаторов тока, трансформаторов напряжения и т. д.) каждой цепи от сборных шин, а также от других источников напряжения.

Обозначение фаз электрооборудования и ошиновки распределительного устройства и подстанции выполнено в соответствии с требованиями ПУЭ. Распределительные устройства 6,35, 110 кВ оборудованы оперативной блокировкой, исключающей возможность:

включения выключателей и разъединителей на заземляющие ножи;

включения заземляющих ножей на ошиновку, не отделённую разъединителями от ошиновки находящейся под напряжением;

отключения и включения разъединителями тока нагрузки, если это не предусмотрено конструкцией аппарата.

Для РУ в некоторых схемах электрических соединений применяется механическая оперативная блокировка, а в других - электромагнитная.

Приводы разъединителей, доступные для посторонних лиц, имеют приспособления для запирания заземляющих ножей замками в отключенном положении.

Подстанция оборудована стационарными заземляющими ножами, обеспечивающими в соответствии с требованиями безопасности заземление аппаратов и ошиновки, без применения переносных заземлений.

Заземляющие ножи окрашены в чёрный цвет. Рукоятки приводов заземляющих ножей окрашены в красный цвет, а рукоятки других приводов - в цвета оборудования.

Сетчатые и смешанные ограждения токоведущих частей и электрооборудования имеют высоту над уровнем планировки для ОРУ 2 м. Нижняя кромка этих ограждений в ОРУ располагается на высоте 0.1 м.

Указатели уровня масла и температуры масла маслонаполненных трансформаторов и другие указатели, характеризующие состояние оборудования, расположены так, чтобы были обеспечены удобные и безопасные условия для доступа к ним и наблюдения за ними без снятия напряжения.

Распределительные устройства оборудованы электрическим освещением. Осветительная аппаратура установлена таким образом, чтобы было обеспечено её безопасное обслуживание.

Распределительное устройство обеспечено телефонной связью.

В электроустановках обеспечена возможность лёгкого распознавания частей, относящихся к отдельным их элементам (наглядность схем, надлежащее расположение электрооборудования, надписи, маркировка, расцветка).

Буквенно-цифровое и цветовое обозначение одноимённых шин в каждой электроустановке одинаковое и отвечает требованиям ПУЭ.

Шины обозначены:

при переменном трёхфазном токе: шины фазы А - жёлтым цветом, фазы В - зелёным, фазы С - красным;

при переменном однофазном токе: шина А, присоединённая к началу обмотки источника питания - жёлтым цветом, а шина В, присоединённая к концу обмотки - красным.

При распределении шин в распределительных устройствах соблюдены следующие условия:

В открытом распределительном устройстве 110 кВ при переменном трёхфазном токе шины располагаются:

а) сборные шины и шунтирующие перемычки имеют со стороны главных трансформаторов на высшем напряжении шину А;

б) ответвления от сборных шин в ОРУ выполнено так, что расположение присоединений слева направо А-В-С, если смотреть со стороны шин на трансформатор.

В открытом распределительном устройстве 35 кВ при переменном трёхфазном токе шины располагаются, аналогично стороне высшего напряжения.

Безопасность обслуживающего персонала и посторонних лиц обеспечивается путём:

применения надлежащей изоляции, а в отдельных случаях - повышенной (электроинструмент и т. п.)

применение двойной изоляции  соблюдение соответствующих частей или путем закрытия, ограждение токоведущих частей;

применения блокировки аппаратов и ограждающих устройств для предотвращения ошибочных операций и доступа к токоведущим частям (в ячейках - невозможность одновременного включения разъединителя и заземляющих ножей)

надежного и быстродействующего автоматического отключения частей электрооборудования, случайно оказавшихся под напряжением и поврежденных участков сети, в том числе защитного отключения;

заземление или зануление корпусов электрооборудования и элементов электроустановок, которые могут оказаться под напряжением вследствие повреждения изоляции ;

выравнивание потенциалов (организация контуров заземления);

применение разделительных трансформаторов;

применение напряжения 42 В и ниже переменного тока частотой 50 Гц и 110В и ниже постоянного тока;

применение предупреждающей сигнализации, надписей и плакатов

применение устройств, снижающих напряженность электрических полей;

использование средств защиты и приспособлений, в том числе для защиты от воздействия электрического поля в электроустановках, в которых его напряженность превышает допустимые нормы.

устройства контроля изоляций.

устройства сигнализации однофазных замыканий на землю.

защитное зануление в сетях до 0,4 кВ.

 

11.2 Заземление и защитные меры электробезопасности

 

Заземление электроустановок выполняется при напряжении 380 В и выше переменного тока. К частям подлежащим заземлению относятся:

корпуса электрических машин, трансформаторов, аппаратов, светильников и т. п.;

приводы электрических аппаратов;

вторичные обмотки измерительных трансформаторов;

каркасы распределительных щитов, щитов управления, щитков и шкафов, а также съёмные или открывающиеся части, если на последних установлено электрооборудование напряжением выше 42 В переменного тока;

металлические конструкции распределительных устройств, металлические кабельные конструкции, металлические кабельные соединительные муфты, металлические оболочки и броня контрольных и силовых кабелей, металлические оболочки проводов, металлические рукава и трубы электропроводки, кожухи и опорные конструкции шинопроводов, лотки, короба, струны, тросы и стальные полосы, на которых укреплены кабели и провода (кроме струн, тросов и полос, по которым проложены кабели с заземлённой металлической оболочкой или бронёй), а также другие металлические конструкции, на которых устанавливается электрооборудование;

металлические корпуса передвижных и переносных электроприёмников;

электрооборудование, размещённое на движущихся частях станков, машин и механизмов.

Для заземления электроустановок в первую очередь применяются естественные заземлители. Если при этом сопротивления заземляющих устройств или напряжение прикосновения имеют допустимые значения, а также обеспечиваются нормированные значения на заземляющем устройстве, то искусственные заземлители применяются лишь при необходимости снижения плотности токов, протекающих по естественным заземлителям или стекающих с них.

Заземляющее устройство на ОРУ имеет сопротивление в любое время года не более 0.5 Ом. Напряжение на заземляющем устройстве при стекании с него тока замыкания на землю не превышает 10 кВ.

Для измерения сопротивления заземляющего устройства используется омметр М416, а для замера сопротивления металлической связи - омметр М372.

Заземляющее устройство в сети с изолированной нейтралью (ЗРУ 10 кВ) имеет значение сопротивления не более 4 Ом.

Заземляющее устройство ГПП выполнено в виде заземляющей сетки из стальной полосы сечением 4´40 мм на глубине 0.7 м.

Выравнивание потенциалов ЗРУ 10 кВ обеспечивается за счёт закладных деталей. Заземление камер и панелей осуществляется приваркой их к закладным элементам. Прочее электрооборудование присоединяется к магистрали заземления полосовой сталью сваркой в нахлёстку

Перед началом всех видов работ в электроустановках со снятием напряжения необходимо проверить отсутствие напряжения на участке работы. В целях защиты работающих от поражения электрическим током в случае ошибочной подачи напряжения на место работы производится заземление токоведущих частей

11.3 Открытое распределительное устройство


Трансформаторы установлены так, чтобы были обеспечены удобные и безопасные условия для наблюдения за уровнем масла в маслоуказателях без снятия напряжения.

К газовым реле трансформаторов обеспечен безопасный доступ для наблюдения и отбора проб газа без снятия напряжения. Для этого трансформаторы снабжены стационарной лестницей.

Так как трансформаторы имеют единичную мощность 25 М×ВА и 16 М×ВА, между ними установлены разделительные перегородки. Разъединительные перегородки имеют предел огнестойкости не менее 1.5 ч. перегородки установлены за пределами маслоприёмника. Расстояние в свету между трансформатором и перегородкой не менее 1.5 м.

Выполнены следующие требования:

Так как масса масла около 10 т, то габариты маслоприёмника выступают за габариты трансформатора не менее чем на 1,5 м. Объём маслоприёмника рассчитан на одновременный приём 100 % масла содержащегося в корпусе трансформатора.

Устройство маслоприёмников и маслоотводов исключает переток масла из одного маслоприёмника в другой, распространению пожара, засорению маслоотвода и т. п.

Дно маслоприёмников засыпано крупным чистым гравием.

Маслоотводы обеспечивают отвод из маслоприёмника масла и воды, применяемой для тушения пожара автоматическими стационарными устройствами, на безопасное в пожарном отношении расстояние от оборудования и сооружений. Маслоотводы выполнены в виде подземных трубопроводов.

Для тушения пожара предусмотрен водопровод с питанием от существующей внешней сети.

Фундаменты под трансформаторы выполнены из несгораемых материалов.

 

11.4 Защита от грозовых перенапряжений


Открытое распределительное устройства и ГТЭС защищены от прямых ударов молнии.

Молниезащита осуществляется молниеотводами, установленными на порталах и концевых опорах.

От стоек конструкций ОРУ 110 кВ с молниеотводами обеспечено растекание тока молнии по магистралям заземления в трёх-четырёх направлениях. Кроме того, установлены три вертикальных электрода длиной 3-5 м на расстоянии не менее длины электрода от стойки с молниеотводом.

Тросовые молниеотводы ВЛ 110 кВ присоединены к заземлённым конструкциям ОРУ. Сопротивление заземлителя ближайшей к ОРУ опоры не превышает 10 Ом.

В ОРУ 110 кВ установлены ограничители перенапряжения. Они выбраны с учётом координации их защитных характеристик с изоляцией защищаемого оборудования и соответствия напряжения гашения разрядников напряжению в месте их установки при замыкании на землю одной фазы сети..

11.5 Защитные средства

Согласно ПОТ.

Средство защиты - средство, применение которого предотвращает или уменьшает воздействие на одного или более работающих опасных и (или) вредных производственных факторов.

Электрозащитные средства - средства, служащие для защиты людей, работающих с электроустановками, от поражения электрическим током, от воздействия электрической дуги и электрического поля.

Основные электрозащитные средства - средства защиты, изоляция которых длительно выдерживает рабочее напряжение электроустановок и которые позволяют касаться токоведущих частей, находящихся под напряжением.

Дополнительные электрозащитные средства - средства защиты, которые сами по себе не могут при данном напряжении обеспечить защиту от поражения электрическим током, а применяются совместно с основными электрозащитными средствами.

К основным электрозащитным средствам для работы в электроустановках напряжением выше 1 кВ относятся:

изолирующие штанги, изолирующие и электроизмерительные клещи, указатели напряжения для указатели фазировки;

изолирующие устройства и приспособления для работы на ВЛ с непосредственным прикосновением электромонтёра к токоведущим частям (изолирующие лестницы, площадки, изолирующие тяги, канаты и др.).

К дополнительным электрозащитным средствам, применяемым в электроустановках напряжением выше 1 кВ, относятся:

диэлектрические перчатки;

диэлектрические боты;

диэлектрические ковры;

индивидуальные экранирующие комплекты;

изолирующие подставки и накладки;

диэлектрические колпаки;

переносные заземления;

оградительные устройства;

плакаты и знаки безопасности;

К основным электрозащитным средствам, применяемым в электроустановках напряжением до 1 кВ, относятся:

изолирующие и электроизмерительные клещи;

указатели напряжения;

диэлектрические перчатки;

слесарно-монтажный инструмент с изолирующими рукоятками.

К дополнительным электрозащитным средствам в электроустановках до 1 кВ относятся:

диэлектрические галоши;

диэлектрические ковры;

переносные заземления;

изолирующие подставки и накладки;

оградительные устройства;

плакаты и знаки безопасности.

11.6 Техническое обслуживание, ремонт, модернизация и реконструкция

 

На подстанции и ГТЭС должны производиться организации по техническому обслуживанию, планово-предупредительным работам ,модернизации и реконструкции оборудования электроустановок. Ответственность за их организацию возлагается на руководителя предприятия.

Объем технического обслуживания и планово предупредительных ремонтов должен определяться необходимостью поддержания работоспособности электроустановок, периодического их восстановления и приведения в соответствие с меняющимися условиями работы.

На все виды ремонтов должны быть составлены годовые графики , утверждаемые ответственным за электрохозяйство.

Графики ремонтов электроустановок, влияющих на изменение объемов производства, должны быть утверждены руководителем предприятия.

Периодичность и продолжительность всех видов ремонта, а так же продолжительность ежегодного простоя в ремонте для отдельных видов электрооборудования устанавливаются в соответствии с ПЭЭП, действующими отраслевыми нормами и указаниями заводов-изготовителей.

Изменение периодичности ремонта допускается в зависимости от состояния электрооборудования и аппаратов при соответствующем техническом обосновании.

Конструктивные изменения электрооборудования и аппаратов, а так же изменения электрических схем при выполнении ремонтов осуществляется по утвержденной технической документации. Установленное на предприятиях электрооборудование должно быть обеспеченно запасными частями и материалами. Должен вестись учет имеющихся на складе, в целях и на участках запасных частей и запасного электрооборудования. Списки и наличие запасных частей должен периодически проверять ответственный за электрохозяйство.

При приемке электрооборудования из ремонта должны быть проверены выполнение всех предусмотренных работ, внешнее состояние оборудования, наличие и качество ремонтной отчетной технической документации.

Вводимое после ремонта оборудования должно испытываться в соответствии с Нормами испытания электрооборудования.

11.7 Ремонтные работы на подстанции и ГТЭС


Перед допуском к работе на коммутационных аппаратах с дистанционным управлением должны быть: отключены силовые цепи привода, цепи оперативного тока и цепи подогрева; закрыты и заперты на замок задвижки на трубопроводе подачи воздуха в бак выключателей или на пневматические приводы и вылущен в атмосферу имеющийся в них воздух, при этом спускные пробки (клапаны) оставляются в открытом положении; приведены в нерабочее положение включающий груз или включающие пружины; вывешены плакаты "Не включать. Работают люди" на ключах дистанционного управления и "Не открывать. Работают люди" на закрытых задвижках.

Для пробных включений и отключений коммутационного аппарата при его наладке и регулировке допускается при несданном наряде временная подача напряжения в цепи оперативного тока и силовые цепи привода, в цепи сигнализации и подогрева, а также подача воздуха в привод и на выключатель. Установку снятых предохранителей, включение отключенных цепей и открытие задвижек при подаче воздуха, а также снятие на время опробования плакатов "Не включать. Работают люди" и "Не открывать. Работают люди" осуществляет оперативный персонал или по его разрешению производитель работ. Дистанционно включать или отключать коммутационный аппарат для опробования разрешается лицу, ведущему наладку или регулировку, либо по его требованию оперативному персоналу. После опробования при необходимости продолжения работы на коммутационном аппарате лицом из оперативного персонала или по его разрешению производителем работ должны быть выполнены технические мероприятия, требуемые для допуска к работе

Во время отключения и включения выключателей при опробовании, наладке и испытаниях присутствие людей около выключателей не допускается. Команду на выполнение операций выключателем производитель работ по испытаниям и наладке (или уполномоченное им лицо из состава бригады) может подать после того, как члены бригады будут удалены от выключателя на безопасное расстояние или в укрытие.

Для обеспечения безопасности работ, проводимых в цепях измерительных приборов и устройств релейной защиты, все вторичные обмотки измерительных трансформаторов тока и напряжения должны иметь постоянное заземление. В сложных схемах релейной защиты для группы электрически соединенных вторичных обмоток трансформаторов тока независимо от их числа допускается выполнять заземление только в одной точке. При необходимости разрыва токовой цепи измерительных приборов и реле цепь вторичной обмотки трансформатора тока предварительно закорачивается на специально предназначенных для этого зажимах.

В цепях между трансформатором тока и зажимами, где, установлена закоротка, запрещается производить работы, которые могут привести к размыканию цепи.

При производстве работ на трансформаторах тока или в их вторичных цепях необходимо соблюдать следующие меры безопасности:
а) шины первичных цепей не использовать в качестве вспомогательных токопроводов при монтаже или токоведущих цепей при выполнении сварочных работ;

б) цепи измерений и защиты присоединять к зажимам указанных трансформаторов тока после полного окончания монтажа вторичных схем; в) при проверке полярности приборы, которыми она производится, до подачи импульса тока в первичную обмотку надежно присоединять к зажимам вторичной обмотки.

Работа в цепях устройств релейной защиты, электроавтоматики и телемеханики (РЗАиТ) производится по исполнительным схемам; работа без схем, по памяти, запрещается.

При работах в устройствах РЗАиТ необходимо пользоваться слесарно-монтажным инструментом с изолирующими рукоятками.

При проверке цепей измерения, сигнализации, управления и защиты в случае необходимости в помещении электроустановок напряжением выше 1000 В разрешается оставаться одному лицу из состава бригады по условиям работы (например, регулировка выключателей, проверка изоляции); лицо, находящееся отдельно от производителя работ, должно иметь группу по электробезопасности не ниже III; этому лицу производитель работ должен дать необходимые указания по технике безопасности.

При работах в цепях трансформаторов напряжения с подачей напряжения от постороннего источника снимаются предохранители со стороны высшего и низшего напряжений и отключаются автоматы от вторичных обмоток.

При необходимости производства каких-либо работ в цепях или на аппаратуре РЗАиТ при включенном основном оборудовании принимаются дополнительные меры против его случайного отключения.

Запрещается на панелях или вблизи места размещения релейной аппаратуры производить работы, вызывающие сильное сотрясение релейной аппаратуры, грозящие ложным действием реле.

Переключения, включение и отключение выключателей разъединителей и другой аппаратуры, пуск и остановка агрегатов, регулировка режима их работы, необходимые при наладке или проверке устройства РЗАиТ, производятся только оперативным персоналом.

Записывать показания электросчетчиков и других измерительных приборов, установленных на щитах управления и в РУ, разрешается: единолично лицам из оперативного персонала предприятия с группой по электробезопасности не ниже II при наличии постоянного оперативного персонала (с дежурством двух лиц) и с группой по электробезопасности не ниже III без постоянного оперативного персонала; персоналу других организаций в сопровождении лица из местного оперативного персонала с группой по электробезопасности не ниже III.

Установку и снятие электросчетчиков и других измерительных приборов, подключенных к измерительным трансформаторам, должны производить по наряду со снятием напряжения два лица, из которых одно должно иметь группу по электробезопасности не ниже IV, а второе не ниже III. При наличии испытательных блоков или специальных зажимов, позволяющих безопасно закорачивать токовые цепи, установку и снятие этих электросчетчиков, а также их проверку указанные лица могут выполнять по распоряжению.

Установку и снятие электросчетчиков непосредственного включения допускается производить по распоряжению одному лицу с группой по электробезопасности не ниже III. Установка и снятие электросчетчиков, а такие присоединение измерительных приборов для проверки выполняются со снятием напряжения.

Установка и снятие электросчетчиков разных присоединений, расположенных в одном помещении, могут производиться по одному наряду (распоряжению) без оформления перехода с одного рабочего места на другое.

В электроустановках потребителей персонал предприятий Энергонадзор работы в цепях учета выполняет в соответствии с Правилами техники безопасности при эксплуатации электроустановок.

Присоединение измерительных приборов, установка и снятие электросчетчиков, подключенных к измерительным трансформаторам, при наличии испытательных блоков или специальных зажимов, позволяющих безопасно закорачивать токовые цепи, выполняются без снятия нагрузки и напряжения.

При проезде по территории ОРУ и под ВЛ подъемные и выдвижные части механизмов и грузоподъемных машин должны находиться в транспортном положении. Допускается в пределах рабочего места перемещение грузоподъемных машин по ровной местности с поднятым, но не выдвинутым телескопом или с поднятой стрелой либо другим рабочим органом без груза и людей на подъемной или выдвижной части (если такое перемещение разрешается по заводской инструкции). Движение механизмов и грузоподъемных машин по ОРУ и в охранной зоне ВЛ допускается под непосредственным надзором лиц, или лица из административно-технического персонала с группой по электробезопасности не ниже V, а по ОРУ и под надзором лица из оперативного персонала с группой не ниже IV. В ОРУ скорость движения определяется местными условиями, но не должна превышать 10 км/ч. Под ВЛ механизмы и грузоподъемные машины должны проезжать в местах наименьшего провеса проводов (у опор).

При проезде механизмов и грузоподъемных машин расстояния до токоведущих частей от подъемных и выдвижных частей, стропов, грузозахватных приспособлений, а при работе на этих механизмах расстояния от человека, находящегося на подъемных и выдвижных частях, должны быть также не менее указанных в соответствующих правилах. При работе механизмов и грузоподъемных машин запрещаются подъем и поворот стрелы, подъем телескопической вышки или выдвижной лестницы на высоту и на угол, при которых расстояния до токоведущих частей окажутся меньше указанных соответствующими правилами. Предельно допустимый угол поворота стрелы или другой выдвижной или подъемной части в горизонтальной плоскости может быть при необходимости обозначен шестами с красными флажками или фонарями.

При работе стреловых кранов в ОРУ и охранной зоне ВЛ лицо, ответственное за безопасное перемещение грузов кранами*, обязано до подъема стрелы в рабочее положение проверить правильность установки крана в указанном им месте, после чего можно дать разрешение на работу крана. 0 назначении лица, ответственного за безопасное перемещение грузов кранами, делается запись в строке Отдельные указания наряда, Таким лицом может быть выдающий наряд, ответственный руководитель работ или по согласованию с местным органом Госгортехнадзора производитель работ с группой по электробезопасности не ниже IV.

Порядок назначения лиц, ответственных за безопасное производство работ по перемещению грузов кранами, и их обязанности, а также технические мероприятия по электробезопасности (заземление крана, установка выносных опор и др.) определены в Правилах устройства и безопасной эксплуатации грузоподъемных кранов.

Работать на стреловых кранах и устанавливать их непосредственно под проводами ВЛ напряжением 0,4 35 кВ, находящейся под напряжением, запрещается.

Водители механизмов и грузоподъемных машин, а также стропальщики при допуске к работе в ОРУ и под ВЛ должны быть проинструктированы о порядке проезда и работы в этих установках. Допуск указанного персонала сторонних организаций производится в соответствии с требованиями Госгортехнадзора.

Водители механизмов и грузоподъемных машин должны иметь группу по электробезопасности не ниже II а стропальщики группу I.

При всех работах в ОРУ и в пределах охранной зоны ВЛ без снятия напряжения механизмы и грузоподъемные машины заземляются. Сечение заземляющих проводников должно быть не менее принятого для данной электроустановки. Грузоподъемные машины на гусеничном ходу при установке их непосредственно на грунте заземлять не требуется.

Если в результате соприкосновения с токоведущими частями или возникновения электрического разряда механизм или грузоподъемная машина окажутся под напряжением, прикасаться к ним и спускаться с них на землю или подниматься на них до снятия напряжения запрещается. В случае загорания механизма или грузоподъемной машины водитель должен, не прикасаясь к ним руками, спрыгнуть на землю на обе ноги сразу и прыжками на одной ноге или мелкими шагами, не превышающими длину стопы, удалиться на расстояние не менее 8 м.

При работе механизмов и грузоподъемных машин пребывание людей под поднимаемым грузом, натягиваемым проводом, тяговыми тросами и оттяжками, корзиной телескопической вышки, а также в непосредственной близости от упоров и креплений со стороны тяжения не допускается.

При работах с телескопической вышки (гидроподъемника) должна быть зрительная связь между находящимся в корзине (люльке) членом бригады и водителем. При отсутствии такой связи у вышки должен находиться третий член бригады, передающий водителю команды о подъеме или спуске корзины (люльки).

Каждый раз перед началом работы производитель работ должен убедиться в исправности механизмов, грузоподъемных машин и вспомогательных; грузозахватных приспособлений. Механизмы и грузоподъемные машины, оборудованные выносными опорами, должны быть поставлены на них при работе. У телескопических вышек и гидроподъемников перед началом работы проверяются в действии выдвижная и подъемная части, а у телескопических вышек, кроме того, подъемная часть устанавливается вертикально и фиксируется в таком положении. Работать с телескопической вышки (гидроподъемника) следует, стоя на дне корзины (люльки) и закрепившись стропами предохранительного пояса. Переход из корзины (люльки) на опору или оборудование и обратно допускается только с разрешения производителя работ.

Запрещается при работах на угловых опорах, связанных с заменой изоляторов, проводов или ремонтом арматуры, устанавливать телескопическую вышку (гидроприемник) внутри угла, образованного проводами.

Не допускается работа грузоподъемных машин при ветре, вызывающем отклонение на опасное расстояние свободных (без груза) тросов и канатов, с помощью которых поднимается груз.

11.8 Охрана труда и окружающей среды на ГТЭС


Целью мероприятий по охране труда и окружающей среды является создание безопасных условий для обслуживающего персонала в соответствии с нормативными условиями охраны труда и техники безопасности.

Газотурбинная электростанция является источником повышенной опасности с точки зрения безопасности обслуживающего персонала, так как является взрыво-, пожароопасным объектом, также имеется опасность поражения электрическим током.

На территории станции возможны следующие виды опасности:

-   Взрывоопасность

-        Пожароопасность

         Опасность поражения электрическим током

         Опасность воздействия вредных отходов производства.

Территория ГТЭС обеспечена соответствующими системами отопления, вентиляции и освещения в соответствии с нормативными требованиями по охране труда.

Оборудование отвечает требованиям стандартов системы безопасности труда, оснащено в соответствии с действующими нормами и правилами необходимыми технологическими защитами. Для безопасного обслуживания оборудования изоляция тепловыделяющего оборудования и трубопроводов выполнена несгораемыми материалами, обеспечивающими температуру поверхности теплоизоляционной конструкции не более 55°С. Для снижения аэродинамического шума все вентиляционное оборудование устанавливается на виброизолирующих основаниях и снабжается мягкими вставками.

Воздуховоды систем вентиляции выполняются из несгораемых материалов. При пожаре все системы вентиляции с механическим побуждением отключаются централизовано от специальных кнопок, расположенных во всех помещениях и на Главном щите управления.

Устья труб для выброса воздуха из корпуса маслохозяйства располагают на высоте не менее 1м над высшей точкой кровли, с учетом максимального рассеивания вредных веществ в атмосфере и не ближе 10м от возможных источников воспламенения.

Основные технические решения, обеспечивающие безопасность производства и окружающей среды:

. Запроектирован противопожарный водопровод с гидрантами на сети.

. Производственные и дождевые стоки сбрасываются в дренажно-канализационную емкость и перекачиваются в существующие сети.

. Бытовые стоки поступают в канализационную малогабаритную установку и перекачиваются в существующие сети.

. В целях предотвращения распространения огня во время пожара на всех выпусках производственной и дождевой канализации устанавливаются гидрозатворы.

Для обеспечения безопасности эксплуатации электроустановок предусмотрено:

• рабочее освещение зданий и сооружении, территории, площадок, дорог и проездов - в соответствии с разрядом и подразрядом зрительных работ;

• аварийное освещение для эвакуации людей или проведения ремонтных работ; местное освещение;

• выбор надежных схем электроснабжения потребителей электроэнергии;

• выбор электрооборудования, проводов и кабелей, а также способов их установки и прокладки с учетом условий среды, в которой они эксплуатируются;

• расчетные токовые нагрузки не превышают максимально допустимых токовых нагрузок на выбранные сечения проводов и кабелей;

• аппараты, приборы, провода, шины и конструкции соответствуют нормальным условиям работы и проверены на работу в режиме коротких замыканий.

Проектируемая система управления обеспечивает автоматическую защиту и блокировку технологического оборудования при возникновении на объекте аварийных ситуаций и выполнена в соответствии с требованиями действующих норм и правил по охране труда и технике безопасности.

Обеспечивается соблюдение следующих условий:

• при любом виде (режиме) управления (автоматическом, дистанционном или местном) действуют автоматические защиты и блокировки технологического оборудования, в том числе защиты от некорректных действий эксплуатационного персонала;

• при повреждении системы автоматического управления, отсутствии электропитания в цепях автоматики на управляемом технологическом оборудовании не возникает аварийного состояния (обеспечивается либо корректный автоматический останов технологического оборудования, либо переход на резервный канал управления).

Системы аварийной сигнализации предусматривают сохранение сигнала аварии до его снятия оператором, даже если причина аварии за это время исчезла.

Приборы и средства автоматизации, устанавливаемые в помещениях и на наружных площадках, имеющих взрывоопасные зоны, отвечают требованиям “Правил устройства электроустановок” (ПУЭ) и выбраны в соответствии с классом “взрывоопасное”, категорией и группой взрывоопасных смесей.

Для защиты людей от поражения электрическим током при повреждении изоляции все нетоковедущие металлические части электрооборудования подлежат защитному заземлению или занулению. С целью уравнивания потенциалов в помещениях и наружных установках, в которых применяется заземление или зануление, все строительные и производственные конструкции, стационарно проложенные трубопроводы всех назначений, металлические корпуса технологического оборудования, воздуховоды вентиляционных систем присоединены к сети заземления и зануления.

Сопротивление заземлителя должно быть не более:

• Дожимная компрессорная - 4 Ом;

• распредустройство 6 кВ с трансформаторами собственных нужд - 4 Ом;

• энергомодули 6 кВ - 4 Ом;

• трансформаторная подстанция 6/0,4 кВ - 4 Ом.

Таблица 11.1 - Классификация основных объектов по взрыво- и пожароопасности.

Наименование зданий, сооружений, установок

Класс взрыво- пожароопас- ности по ПУЭ-2002

Категория Молние-защиты по РД34.21.122 -87

1 . Блок подготовки газа: а). Площадка сепараторов б).3дание дожимных компрессоров в).Площадка рессиверов

В-1г В-1а В-1г

2 2 2

2. Аварийная емкость

В-1г

2

3. Дренажная емкость

В-1г

2

4. Дренажно-канализационная емкость

В-1г

2

5. Здание маслохозяйства

П-1

3


Здания и сооружения, относящиеся ко II категории, защищены от прямых ударов молнии, вторичных проявлений молнии и заноса высоких потенциалов через наземные и подземные металлические коммуникации, а относящиеся к III категории, защищены от прямых ударов молнии и заноса высоких потенциалов через наземные металлические коммуникации Наружные установки, относящиеся ко II категории, защищены от прямых ударов молнии и вторичных проявлений молнии.

Защита от прямых ударов молнии осуществляется:

• установкой молниеотводов на прожекторных мачтах - для энергетических объектов и здания маслохозяйства;

• использованием в качестве молниеприемника металлической кровли - для здания дожимных компрессоров;

• присоединением металлических корпусов к заземлителю - емкости.

Токоотводы, соединяющие молниеприемник с заземлителями, прокладываются не реже, чем через каждые 25 м по периметру здания, сооружения, и число их должно быть не менее двух.

Для прожекторных мачт, относящихся к III категории молниезащиты и подлежащих защите от прямых ударов молнии, установка молниеприемников и прокладка токоотводов не требуется: достаточно обеспечить непрерывную электрическую связь по их арматуре с заземлителем.

Для защиты от вторичных проявлений молнии:

• металлические корпуса всего оборудования и аппаратов должны быть присоединены к заземляющему устройству;

• трубопроводы и другие металлические конструкции в местах их взаимного сближения на расстояния менее 10 см через каждые 30 м должны быть соединены перемычками;

• во фланцевых соединениях трубопроводов должна быть обеспечена нормальная затяжка не менее 4 болтов на каждый фланец.

Для защиты от заноса высоких потенциалов подземные и наземные коммуникации на вводе в здание или сооружение, а также ближайшая опора коммуникаций должны быть присоединены к заземляющему устройству.

В качестве естественных заземляющих проводников в проекте использованы технологические, кабельные и совмещенные эстакады, соединяющие все заземляющие устройства, состоящие из электродов, в единый контур.

11.9 Воздушная среда


Климат района резко континентальный. Лето короткое, теплое. Зима суровая, холодная и продолжительная. Короткие переходные сезоны - осень и весна. Среднегодовая температура воздуха - 3,4°С, средняя температура воздуха наиболее холодного месяца января -22,0°С, а самого жаркого июля +16,9°С. Абсолютный минимум температуры составляет-55 С, абсолютный максимум-+34 С. Средняя температура наиболее холодной пятидневки составляет - 43 С. Климатическая характеристика района принята по данным наблюдений метеостанции Сургут. Согласно СНиП 23-01-99 [6], территория месторождения относится к 1 климатическому району, подрайон Д.

11.10 Воздействие объектов размещения на атмосферный воздух и характеристика источников выброса загрязняющих веществ


Топливом электростанции и для встроенной котельной является попутный газ. К системе топливоподачи ГТЭС подводится газ от блока подготовки газа. На этой установке параметры газа доводятся до необходимых давлений (топливного и пускового), газ очищается от твердых частиц и жидких фракций. К блоку подготовки газ подается после первой ступени сепарации ДНС-1. Газопровод подключен к газопроводу диаметром 325мм. Давление газа в точке подключения - 0.65.. .0.7МПа.

Газ подаваемый на каждый электромодуль после блока подготовки газа должен иметь следующие параметры:

•пусковой газ: расход - не более 1.5кг/с, давление 4-5 кг/см2;

•топливный газ: расход - не более 1500кг/ч, давление 14-16 кг/см ;

•топливный газ на котельную - расход - 88нм3/ч, давление 4-5 кг/см ;

При работе газотурбинной электростанции имеют место выбросы загрязняющих веществ в атмосферный воздух.

Выбросы загрязняющих веществ являются постоянными и залповыми (при продувке газопроводов топливного газа и пускового газа через продувочные свечи). Источниками загрязнения атмосферы на объекте являются: газотурбинные двигатели ГТЭС, узлы запорной арматуры, продувочные свечи трубопроводов топливного газа и пускового газа, блок маслоподготовки, дренажно-канализационная ёмкость, котельная.

Герметичность затворов оборудования блока подготовки газа выполнена по классу А, что не допускает протечек газа при нормальных условиях работы. Выбросы газа с предохранительных клапанов и продувочных свечей оборудования производятся в коллектор сброса газа на свечу в течение одного часа один раз в году. Выброс вредных веществ в атмосферу осуществляется через выхлопные трубы ГТЭС, продувочные свечи сброса пускового и топливного газа, неплотности запорно-регулирующей арматуры, воздуховоды и дефлекторы здания маслохозяйства, вентиляционные трубы дренажно-канализационных ёмкостей, дымовую трубу котельной. При эксплуатации проектируемого оборудования в атмосферу выделяются загрязняющие вещества: метан, оксид углерода, диоксид азота, оксид азота, масло минеральное нефтяное.

Таблица 11.2 - Перечень вредных веществ, выбрасываемых в атмосферу

№ п/п

Наименование вредных веществ

ПДКм.р. (ОБУВ) в воздухе населенных мест, мг/м3

Класс опасности

1

Метан

(50)

-

2

Оксид углерода

5

4

3

Диоксид азота

0.085

2

4

Оксид азота

0.4

3

5

Масло минеральное

(0,05)

-


нефтяное




11.11 Мероприятия по уменьшению выбросов загрязняющих веществ в атмосферу и предотвращению аварийных ситуаций


Предусматриваются мероприятия, позволяющие свести до минимума отрицательное воздействие на атмосферный воздух:

•в электроблоке установливается система автоматического управления ГТЭС (САУ ГГЭС), которая обеспечивает управление ГГЭС в целом на всех режимах без непрерывного обслуживания оборудования, контроль за работой ГТЭС оператором с пульта управления;

•энергоблок и электроблок оборудуются поставщиком ГТЭС системой пожаротушения (СП), включающей установку пожарной сигнализации и автоматические установки пожаротушения (АУПТ);

•ГТЭС оборудована системой, исключающей возможность загазованности газового отсека и отсека двигателя, которая включает в себя вентиляторы, датчики загазованности и исполнительные устройства;

•для безопасной работы котла предусмотрены автоматика безопасности и установка взрывных клапанов;

•газопроводы котла продуваются через краны и продувочные линии в атмосферу;

•в котельной устанавливаются сигнализаторы загазованности.

 


12. Экономическая часть


Данная газотурбинная электростанция предназначена для электроснабжения потребителей нефтяного месторождения и близь лежащих районов.

Электростанция работает на попутном газе, поступающий с данного месторождения по существующему газопроводу.

Целью технико - экономического расчета является определение объема капиталовложений, расчет себестоимости электроэнергии и срока окупаемости.

ГТЭС состоит из 6 энергомодулей мощностью по 4 МВт каждый. Выдача электроэнергии от электростанции осуществляется на напряжение 35 кВ через трансформаторы мощностью 2*16 МВА.

12.1 Описание энергетического баланса предприятия, определение величины энергетической товарной продукции


Энергетический баланс разрабатывается на основе показателей прихода энергетических ресурсов, их расхода на производство товарной продукции на незавершенное производство, на вспомогательные нужды, потерь энергии от отпуска ее предприятием сторонним потребителям.

Норма расхода электрической и тепловой энергии на незавершенное производство принята 15% ниже нормы расхода этих ресурсов в производство товарной продукции.

Результаты расчета сведены в таблицу 12.1.

Таблица 12.1 - Энергетический баланс предприятия

Статьи баланса

Выработка электроэнергии

Отпуск электроэнергии


Тыс.кВт∙ч

Тыс.кВт∙ч

1.Общая выработка электроэнергии

24


2. Расход энергетических ресурсов на собственные нужды


1,175

3. Отпущено энергии потребителям


22,825


Баланс электроэнергии:

Товарная энергетическая продукция определяется по той части энергии, которая отпускается сторонним потребителям, по результатам расчета энергетического баланса предприятия (таблица 12.1).

Тарифы на электрическую энергию принимаются по действующему прейскуранту №09-01 для условий Нефтеюганских сетей.

Стоимость электроэнергии - 0,83 руб./кВт·ч. В качестве сторонних потребителей принимаются промышленные и приравненные к ним потребители с присоединенной мощностью 750 кВт и выше (группа 1). Для исчисления платы за 1 кВт максимальной нагрузки принимается условие 100% участия в максимуме стороннего потребителя и время максимальной нагрузки, равное 8000 часов в год.

Расчет товарной продукции:

тыс. руб./ч (12.1)

 

12.2 Численность, режим работы и состав персонала


Согласно географическому положению и специфике режима работы предприятия принят вахтово-экспедиционный метод работы оперативного и оперативно-ремонтного персонала. Административно-технический персонал работает по 8-ми часовому графику с продолжительностью рабочей недели 5 дней. К административно-техническому персоналу относятся:

1. Начальник ГТЭС

2.       Зам. Начальника ГТЭС

.        Начальник участка

.        Ведущий инженер АСУ

.        Мастер КИПа

.        Инженер РзиА (2-ая категория)

.        Начальник смены (инженер 2-ой категории)

.        Инженер АСУ (2-ая категория)

К оперативному и оперативно-ремонтному персоналу относятся:

.Дежурный слесарь ТХУ (5-й разряд)

.Дежурный электромонтер (5-й разряд)

.Машинист ГТУ (5-й разряд)

.Машинист ТК (5-й разряд)

.Слесарь ТХУ (5-й разряд)

.Слесарь КИПа (5-й разряд)

.Эл. монтер по оперативным переключениям (5-й разряд)

Согласно данным отдела труда и заработной платы годовой фонд заработной платы составляет 7.68 млн. руб. Отчисления на социальное страхование - 3,761 млн. руб. Среднемесячная з/п одного рабочего составляет 16000 руб.

На рисунке 12.1 показана схема командных взаимоотношений между персоналом.

Рисунок 12.1 - Производственная структура ГТЭС

12.3 Объем капитальных вложений в электростанцию

Объем капитальных вложений определяются из стоимости:

оборудования

строительных работ

- монтажных работ      

- прочие расходы (транспортировка и т.п.)

Структура капиталовложений приведена в таблице 12.2.

Таблица 12.2

Наименование

Строит.

Монт.

Обору-

Прочие

Всего

объектов

работы

работы

дование



1.Основные объекты строительства

1038,03

1835,65

15426,74

1096,42

19396,84

1 .1 .Энергомодуль

456,97

1568,19

12488,07

874,14

15387,37

1.2.Блок подготовки газа

288,92

267,46

2938,67

208,70

3703,75

1.3. Опоры под инженерные сети

292,14

0,00

0,00

13,58

305,72

2.Объекты энергетического хозяйства

178,17

681,69

771,18

197,95

1839,33

2.1.КТП с НКУ

23,42

1,03

149,36

10,34

184,15

2.2.РУ-6кВ

11,2

4,02

115,6

10,8

141,62

2.3.трансформаторы

60,5

10,2

110,4

7,31

188,41

2.4. Сети электрические

64,45

380,34

0,02

23,34

468,15

2.5. Прочее оборудование

18,6

286,1

395,8

156,5

857

З.Объекты транспортного хозяйства и связи

586,59

14,94

69,85

32,37

703,75

4.Объекты инженерного обеспечения

251,99

48,52

39,99

57,36

397,86

5.Объекты подсобного и обслуживающего

925,90

36,59

86,54

50,33

1099,36

назначения






Всего капитальных вложений в ценах 1991 г.

2980,75

2617,39

16394,261

1377,07

23437,14

Всего капитальных вложений в ценах 2000 г.

41720

36638

229516

19278

328118


Капиталовложения в сооружение ГТЭС составляют 328118 тыс. руб.

12.4 Расчет себестоимости производства энергии


Себестоимость электрической энергии является важнейшим экономическим показателем работы энергопредприятий и представляет собой совокупность затрат в денежном выражении общественного и живого труда в процессе производства на электростанциях, передачи и распределения энергии в сетях.

Производственная себестоимость выработки электрической энергии складывается из составляющих:

(12.2)

где  - топливные составляющие электрической энергии, руб.;

 - составляющие амортизационных отчислений на выработку электрической энергии, руб.;

 - составляющие затрат текущего ремонта на выработку энергии, руб.;

- составляющие затрат по заработной плате на выработку энергии, руб.; - составляющие прочих (общестанционных) расходов на выработку электрической энергии, руб.;

- общая сумма затрат на производство электрической энергии, руб.;

12.5 Годовой расход и затраты на топливо


На электростанциях затраты на топливо по своему удельному весу являются основными. Затраты на топливо  зависят от количества израсходованного топлива и его цены:

,(12.3)

где  - годовой расход топлива (натурального) на производство энергии, тыс.м3/год;  - цена топлива, руб/ тыс.м3.

Годовой расход топлива на электростанции рассчитывается исходя из номинального расхода топлива энергоблоками и длительностью эксплуатации:

(12.4)

где  - номинальный расход топлива энергоблоками;

 - длительность эксплуатации. Принимаем = 8000 ч/год.

В цену топлива уже входят прейскурантная цена и затраты на транспортировку:

Затраты на топливо:

Кроме того данная статья включает в себя еще затраты на вспомогательные материалы:

вода: расход воды ,

масло: расход масла ,

Общие затраты на топливо и вспомогательные материалы за год составляют


12.6 Расчет амортизационных отчислений по ГТЭС


Амортизационные отчисления определены исходя из стоимости строительства электростанции. Результаты расчета сведены в таблицу 12.3.

Таблица 12.3

Объекты строительства

Сметная ст-ть в тыс. руб.

% амортизации

Сумма амортизации

1. Основные объекты строительства

19396,84

6,8

1313,49

1 .1 .Энергомодуль

15387,37

6,1

937,95

1.2 .Блок подготовки газа

3703,75

10,0

370,07

1.5. Опоры под инженерные сети

305,72

1,7

5,17

2.Объекты энергетического хозяйства

1839,33

6,9

126,9

2.1.КТП с НКУ

184,15

10,0

18,4

2.2.РУ-6кВ

141,62

4,4

6,23

2.3.трансформаторы

188,41

4,4

8,29

2.4. Сети электрические

468,15

3

14,04

2.5. Прочее оборудование

857

9,3

79,94

З.Объекты транспортного хозяйства и связи

703,75

6,0

41,96

4.Объекты инженерного обеспечения

397,86

3,6

14,1

5.Объекты подсобного и обслуживающего

1099,36

2,6

28,09

назначения




Итого в ценах 1991 г.

23437,14

6,5

1523,4

Итого в ценах 2000 г.

328118

6,5

21327,67


12.7 Расчет годовых затрат на заработную плату


Составляющая себестоимости производства энергии по заработной плате определяется как:

, (12.5)

где 12 - количество месяцев в году;

 - среднемесячная зарплата на электростанции, ;

 - численность персонала на электростанцие, чел.


12.8 Расчет годовых затрат на текущий ремонт


Затраты на текущий ремонт приняты в размере 25% суммы амортизационных отчислений.


12.9 Расчет общестанционных расходов

Общестанционные расходы принимаются в размере 14% суммы принятых затрат:

-    топливо

-        заработная плата

         амортизационные отчисления

         текущий ремонт.

Суммарные затраты на производство энергии:

Себестоимость единицы электроэнергии составляет:

,

где ЭО - количество отпущенной электроэнергии с шин электростанции,

;

;

.

.

Прибыль от производства электроэнергии составит:

,

.

Срок окупаемости электростанции:

,

Эффективность капиталовложений в электростанцию:

,

 

12.10 Расчет коэффициента готовности станции к выдаче плановой мощности


Для расчета коэффициента готовности необходимо определить полный цикл обслуживания. «ТО» носит планово-предупредительный характер для поддержания ГТЭБ в работоспособном состоянии, предупреждения отказов и неисправностей. (Инструкция по эксплуатации ГТЭБ-4.0000-000РЭ1-ЛУ)

ТО-1,ТО-2,ТО-3 выполняются с базовой периодичностью:

ТО-1 после каждых 1500 ч. наработки ГТУ;

ТО-2 после каждых 3000 ч. наработки ГТУ;

ТО-3 после каждых 6000 ч. наработки ГТУ.

КР производится после каждых 35000ч. наработки ГТУ и является окончанием цикла обслуживания.

Текущий ремонт электрооборудования и СУВГ ГТУ привязывается к одному из видов ТО с составлением соответствующих протоколов.

В таблице представлен годовой план-график ППР энергоблоков ГТЭС. Полный цикл обслуживания составляет (при непрерывной эксплуатации) 4,5 года.

Длительность ТО одного блока 15 суток/год; КР одного блока 30 суток/год

Соответственно,

Кг1блока= Траб/(Трабрем.пл), (12.6)

Траб - полное время работы ЭБ без учета времени ТО и КР за цикл ;

Трем.пл. полное время ТО и КР за цикл. Траб = (8760-360)·4,5-720= 37080ч.

Трем.пл= 360·4,5+720=2340ч. Кг1блока=37080/(37080+2340)=0,94

С учетом плановой мощности ГТЭС (20 МВт) для расчета коэффициента готовности станции рассматриваем режим, когда в работе 5 энергоблоков. Шестой энергоблок - резервный.

Кгстанции= Кг1блока6/ Кг1блока (12.7)

Кгстанции=0,946/0,94=0,73

12.11 Основные технико-экономические показатели


Таблица 12.3 - Основные технико-экономические показатели.

Показатели

Ед.измерения

Величина

1

Капиталовложения в сооружение ГТЭС

328118

2

Годовая выработка электроэнергии

Тыс.кВт∙ч/год

192000

3

Общая численность промышленно-производственного персонала

чел.

40

4

Общий годовой фонд заработной платы с учетом единого социального налога:

Тыс. руб.

7680

5

Средняя заработная плата одного рабочего

руб

16000

6

Годовые эксплуатационные расходы

тыс.руб.

54735,3

7

Себестоимость выработки электроэнергии

руб./кВт·ч

0,3

8

Расход топливного газа

тыс.мЗ/год

64,5

9

Расход воды

тыс.мЗ/год

1,5

10

Расход масла

т/год

36,6

11

Коэффициент готовности станции к выдаче плановой мощности


0,73

12

Удельный расход газа

М3/ тыс.кВт·ч

0,34

13

Собственные нужды станции

%

5

14

Время окупаемости проекта

лет

4,9

15

Эффективность капиталовложений

%

20


12.12 Построение эксплуатационной экономической характеристики электростанции

Эксплуатационная экономическая характеристика электростанции - это зависимость себестоимости единицы энергии от числа часов использования установленной мощности. Себестоимость энергии складывается из ряда затрат, и для построения и анализа эксплуатационной характеристики электростанций следует выявить эту зависимость для отдельных составляющих себестоимости. Характер этой зависимости определяется делением расходов на две части - условно-постоянные и условно-переменные Условно-постоянные расходы не зависят от количества выработанной энергии и с увеличением выработки их удельный вес в себестоимости снижается. Топливная составляющая в себестоимости электрической энергии относиться к условно-переменным расходам и должна изменятся прямо пропорционально количеству вырабатываемой энергии.

Рисунок 12.2 - График эксплуатационной экономической характеристики электростанции.

Заключение

Ввод подстанции «центральной» обеспечивает электроснабжение потребителей нефтяного района, от энергосистемы ОАО "Тюменьэнерго" до строительства газотурбинной электростанции. После того как заработало нефтяное месторождение и появился попутный газ вводится в эксплуатацию газотурбинная электростанция.

С вводом ГТЭС позволило существенно снизить потребление электроэнергии из энергосистемы ОАО "Тюменьэнерго", что значительно удешевило стоимость добычи нефти, решило проблему утилизации природного газа, а также позволило иметь независимый источник электроэнергии, позволяющий повысить надежность электроснабжения потребителей нефтедобывающей промышленности.

Литература


1. Неклепаев Б.Н., Крючков И.П. Электрическая часть электростанций и подстанций: Справочные материалы для курсового и дипломного проектирование: Учебное пособие для ВУЗов. 4-е изд., перераб. и доп. - М.:Энергоатомиздат, 1989. - 608с., илл.

. Околович М.Н., Проектирование электрических станций: Учебник для ВУЗов. - М.:Энергоатомиздат, 1982. - 400с., илл.

. Сенигов П.Н. Расчет токов короткого замыкания в электрических системах. Учебное пособие к курсовой работе. - Челябинск: ЧПИ, 1986.-56с.

. Безлепкин В.П. Парогазовые установки со сбросом газов в котел. Издательство Машиностроение, 1984,- 580с., илл.

. Рожкова Л.Д., Козулин В.С. Электрооборудование станций и подстанций: Учебник для техникумов. 3-е изд., перераб. и доп. - М.:Энергоатомиздат, 1967.-678с., илл.

. Правила устройства электроустановок. - СПб.:Издательство «ДЕАН», 2001. -928с.

. Лисовская И.Т., Мубаракшин Ф.Х., Хахина Л.В. Выбор электрической аппаратуры токоведущих частей и изоляторов: Учебное пособие к курсовому и дипломному проектированию. - Челябинск:ЧПИ, 1990. - 56с.

. Справочник по электрическим установкам высокого напряжения/под ред. И.А. Баумштейна, С.А. Бажанова. - 3-е изд. перераб. и доп. - М.:Энергоатомиздат, 1989 - 768с., илл.

. Правила техники безопасности при эксплуатации электроустановок/Упр. По технике безопасности и пром. санитарии Минэнерго СССР. - 2-е изд., перераб. и доп. - М.:Энергоатомиздат, 1987. - 144с., илл.

. Электротехнический справочник: В 3 т. Т3 в 2 кн. Кн.1 Производство и распределение электрической энергии (под общ. ред. профессоров МЭИ: И.Н. Орлова (гл. ред.) и др.) - 7-е изд., испр. и доп. - М:Энергоатомиздат, 1988. - 880с., илл.

. Долин П.А. Основы техники безопасности в электроустановках. М:Энергоатомиздат, 1984.

. Охрана труда в электроустановках: Учебник для ВУЗов/под ред. Б.А. Князевского. 3-е изд. - перераб. и доп. - М:Энергоатомиздат, 1983. - 336с.

. Медников Е.И., Топузов Н.К. Экономическая часть дипломных проектов:Учебное пособие.- Челябинск: ЧПИ, 1988. - 48с.

. Методические указания к выполнению практических занятий студентами энергетического вечернего факультета по экономике энергетики/сост. А.А. Алабугин, М.В. Исаев; под ред. Н.И. Цыбакина. - Челябинск: ЧПИ, 1983.

Похожие работы на - Организация схемы энергоснабжения нефтяного месторождения из энергосистемы ОАО 'Тюменьэнерго'

 

Не нашли материал для своей работы?
Поможем написать уникальную работу
Без плагиата!
Без нейросетей!