Железобетонное монолитное ребристое перекрытие с балочными плитами

  • Вид работы:
    Дипломная (ВКР)
  • Предмет:
    Строительство
  • Язык:
    Русский
    ,
    Формат файла:
    MS Word
    889,60 kb
  • Опубликовано:
    2011-07-05
Вы можете узнать стоимость помощи в написании студенческой работы.
Помощь в написании работы, которую точно примут!

Железобетонное монолитное ребристое перекрытие с балочными плитами

Нижегородский государственный

архитектурно-строительный университет

Кафедра Железобетонных и каменных конструкций








ПОЯСНИТЕЛЬНАЯ ЗАПИСКА

к курсовому проекту

по теме: "Железобетонное монолитное ребристое перекрытие с балочными плитами"











Нижний Новгород - 2009

Содержание

Исходные данные

. Компоновка монолитного ребристого перекрытия

.1 Определение шага балок перекрытия

.2 Назначение размеров плиты

.3 Назначение размеров балки

. Расчет плиты ребристого перекрытия

.1 Расчетные характеристики материалов

.2 Расчетные пролеты плиты

.3 Расчетные нагрузки

.4 Статический расчет

.5 Расчет плиты на прочность

.6 Армирование плиты

. Расчет балки ребристого перекрытия

.1 Расчетные характеристики материалов

.2 Расчетные пролёты балки

.3 Расчетные нагрузки

.4 Расчетные усилия

.5 Расчет балки на прочность по нормальным сечениям

.6 Расчет балки на прочность по сечениям, наклонным к продольной оси

Библиографический список

Исходные данные

Запроектировать монолитное железобетонное перекрытие второго этажа здания лечебно-оздоровительной базы в осях А-Д и 4-5.

Уровень ответственности здания - 2.

Отметка пола второго этажа - 3,6 м.

Временная нормативная нагрузкам на перекрытия - 6,5 кН/м2.

Нормативная нагрузка от перегородок - 1,6 кН/м2.

Бетон тяжелый - класс В20.

Рабочая арматура в балке класса А300.

Дополнительные размеры: a1 = 0,9 м

a2 = 1,2 м

b1 = 5,5 м

b2 = 5,5 м

1. Компоновка монолитного ребристого перекрытия

В состав монолитного ребристого перекрытия входят балки и плита монолитно соединенная с балками в единую конструкцию. Плита размещена в верхней части балок, благодаря чему балки работают как тавровые. При данных размерах перекрываемого помещения балки принимаются одного направления с опиранием на несущие стены.

Расчеты ведутся по жесткой конструктивной схеме, где ветровые нагрузки через жесткие диски железобетонных перекрытий передаются на наружные и внутренние капитальные кирпичные стены и воспринимаются ими.

Рис.1.1. Схема расположения несущих кирпичных стен здания

L = 16900 мм - длина проектируемой части перекрытия в осях А - Д;

В = 5500 мм - ширина проектируемого участка перекрытия в осях 4 - 5;

+3,600 м. - отметка пола 2-го этажа +3,600 м.

1.1 Определение шага балок перекрытия

Стены по осям А и Д наружные, для них принимаем привязку внутренней грани стены до оси b0=200 мм. Стены по осям 3 и 4 внутренние толщиной 380мм, разбивочные оси проходят по середине стены, то есть их привязка 190мм.

Принимаем, что балки располагаются в направлении меньшего размера перекрытия (размер В) и опираются на внутренние стены по осям 4 и 5, расстояние между которыми 5500 мм.

Назначаем шаг балок в перекрытии так, чтобы плита принадлежала к категории балочных плит. Для этого необходимо выполнение условия:

 ( - расстояние между балками)

В соответствии с рекомендациями принимаем  и , тогда


Таким образом, расстояние  может быть принято в пределах 2200...1833 мм с учетом целого числа шагов по длине участка L. Число шагов равно:

 

Принимаем для дальнейших расчетов: n = 8 и =2100 мм

1.2 Назначение размеров плиты

Толщина плиты крайнего пролета в соответствии с рекомендациями:


Минимальная толщина плиты для перекрытий общественных зданий

мм. Толщину плиты для дальнейших расчетов принимаем из условия экономичного армирования (кратно 10 мм): hp = 60 мм.

Опирание плиты на наружные стены (рабочее направление) принимаем 120 мм, на внутренние (не рабочее направление) 50 мм.

.3 Назначение размеров балки

Высота балки связана с величиной пролета зависимостью:

,

где  - величина пролета балки

В соответствии с рекомендациями вычисляем высоту балки:


Принимаем высоту балки кратной 50 мм: hb = 500 мм

Ширина балки, с учетом рекомендации

:

Принимаем ширину балки: bb = 200 мм

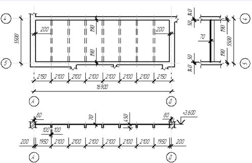
План и разрезы перекрытия на участке в осях А - Д и 4 - 5

балка плита пролет сечение

Рис.1.2. Результаты компоновки монолитного ребристого перекрытия на участке в осях А-Д и 4-5

2. Расчет плиты ребристого перекрытия.

Исходные данные для расчета:

По заданию на проектирование:

 - постоянная нагрузка от веса конструкций пола и перегородок;

 - временная нормативная нагрузка;

все нагрузки продолжительного действия;

 - коэффициент надежности по ответственности здания уровня;

Условия эксплуатации - закрытое помещение при нормальной влажности воздуха окружающей среды;

Бетон: тяжелый класса В20;

Арматура: класс А400.

По результатам выполнения предшествующих этапов:

 = 5,5 м - пролет балок;

 - расстояния между балками в осях.

.1 Расчетные характеристики материалов

 МПа - расчетное сопротивление бетона по прочности на его сжатие;

 МПа - расчетное сопротивление бетона осевому растяжению;

 - коэффициент условий работы бетона;

 МПа, МПа;

 МПа - расчетное сопротивление арматуры на растяжение;

 МПа - значение модуля упругости арматуры.

2.2 Расчетные пролеты плиты

Крайние пролеты:

 мм

b0 = 200 мм - размер привязки (расстояние от грани стены до разбивочной оси).

Средние пролеты:

мм;

мм, .

.3 Расчетные нагрузки

Постоянная нагрузка: определяется как сумма собственного веса плиты и веса конструкций пола и перегородок.

 - постоянная нагрузка, где

 кН/м2 - собственный вес плиты;

r = 2,5 т/ м3 - плотность железобетона;

 кН/м2, где gfg = 1,1;

 кН/м2 - вес пола и перегородок ;

 кН/м2.

Временная нагрузка:

 кН/м2, где gfn = 1,2.

Погонная расчетная нагрузка для полосы плиты шириной 1 м равна при gn=0,95

кН/м, где b = 1 м.

.4 Статический расчет

Расчетная схема плиты принята в виде многопролетной неразрезной балки. Изгибающие моменты в неразрезной балочной плите с равными пролетами или отличающимися не более чем на 20 %, как в данном случае, определяются с учетом перераспределения изгибающих моментов вследствие пластических деформаций по формулам:

в крайних пролётах:

 кН×м;

- на вторых с края опорах B:

 кН×м;

- в средних пролётах:

 кН×м;

- на средних опорах С:

 кН×м.

Рис.2.1. Расчетная схема и эпюры изгибающих моментов монолитной плиты.

2.5 Расчет плиты на прочность

Определяем толщину плиты по максимальному моменту М1 = 3,422 кН×м, при ширине плиты b = 1000 мм. Задаваясь значением x = 0,25, находим

aт = x×(1 - 0,5×x) = 0,25×(1 - 0,5×0,25) = 0,219.

Требуемая рабочая высота сечения плиты:

 мм

Требуемая толщина плиты: (а = 23 мм)

hp = h0+ a = 39 + 23 = 62 мм.

Принимаем hp = 70 мм.

Рис.2.2. Расчетное поперечное сечение монолитной балочной плиты.

в крайних пролётах:

М1 = 3,422 кН×м, а = 23 мм, h0 = hр - a = 70 - 23 = 47 мм;

, тогда


Проверяем условие , для чего вычисляем:

, где


Условие выполняется, так как .

Условие  выполняется и в других расчетных случаях.

 мм2 или

 мм2.

Принимаем рабочую арматуру: Æ6 А400 с шагом 125 мм и АS = 226 мм2;

на вторых с края опорах В:

МВ = 2,689 кН×м, а = 23 мм, h0 = 47 мм;

 мм2.

Принимаем рабочую арматуру: Æ6 А400 с шагом 150 мм и АS = 189 мм2;

в средних пролетах и на средних опорах:

М2 = МС = 2,403 кН×м, а = 23 мм, h0 = 47 мм;

 мм2.

Принимаем рабочую арматуру: Æ6 А400 с шагом 175 мм и АS = 162 мм2;

.6 Армирование плиты

Рис.2.3. Расположение арматурных сеток при раздельном армировании пролетов и опор.

Сетка С1:

Определяем ширину сетки.

Ширина плиты от грани балки до торца, заходящего на стену:

b0 = 200 мм - размер привязки;

bb = 200 мм - ширина балки;

lоп =120 мм - величина опирания плиты на стену.

мм.

Сетка не доходит до торца плиты на стене на 10 мм для возможности свободной укладки. За грань балки сетка может заходить на 15 - 20 мм, это улучшает анкеровку рабочих стержней, но допускается и не заводить за грань до 20 мм. Если сетку заводить за грань балки, то максимальная ширина сетки будет:


Если не заводить за грань балки, то минимальная ширина сетки:


Ширина сетки находится в пределах от  до  и при этом согласуется с шагом монтажных стержней арматуры Æ3 В500, Sш=250 мм. Тогда n - число шагов:


Принимаем целое число шагов n = 7, a = 25 мм - свесы.

Тогда доборный шаг:


Принимаем: ширина сетки 1980 мм,= 180 мм, число шагов n = 7 + 1 = 8, а = 25 мм - свесы. Определяем длину сетки. Длина плиты определяется размером между внутренними гранями стен (в свету) и шириной полосы опирания плиты с двух сторон. Принимая величину опирания плиты в нерабочем направлении 50 мм:

мм.

Длина сетки будет короче на 20 мм (по 10 мм с каждой стороны):

мм.

Рабочая арматура: Æ6 А400, Sш=125 мм; принимаем а = 25 мм, тогда


Величина доборного шага:


Такая величина доборного шага не допускается.

Принимаем: длина сетки  мм, число шагов n = 41,

а1 = 35 мм, а2 = 40 мм - свесы.

.

Аналогично определяются проектные параметры остальных сеток:

;

;

.

3. Расчет балки ребристого перекрытия

Армирование балки выполняется в соответствии с эпюрами изгибающих моментов и поперечных сил, сварными плоскими каркасами.

Диаметр продольной рабочей и монтажной арматуры балок принимаем не менее 10 мм. Продольная рабочая арматура назначается из стержней двух разных диаметров, при этом стержни большего диаметра размещают в первом (нижнем) ряду, в углах сечения. Рабочая продольная арматура располагается равномерно по ширине поперечного сечения балки.

Количество плоских каркасов - 2.

Различают поперечную рабочую арматуру и монтажную (конструктивную). Диаметр и шаг поперечных стержней в сварных каркасах балки принимается по расчету с учетом рекомендаций.

Исходные данные по заданию на проектирование:

 кН/м2 - постоянная нагрузка от веса конструкций пола и перегородок;  кН/м2 - временная нормативная нагрузка;

 - коэффициент надежности по ответственности.

Бетон тяжелый класса В20. Класс продольной арматуры АЗОО.

По результатам выполнения предшествующих этапов:

 = 5,5 м - пролет балок в осях;

hp = 70 мм - толщина плиты.

.1 Расчетные характеристики материалов

 МПа - расчетное сопротивление бетона по прочности на его сжатие;  МПа - расчетное сопротивление бетона осевому растяжению;  - коэффициент условий работы бетона;  МПа, МПа;  МПа - расчетное сопротивление арматуры (А300) на растяжение;  МПа - расчетное сопротивление арматуры (А240) на растяжение;

Рис.3.1. Расчетная схема балки

.2 Расчетные пролёты балки

Для расчёта на усилия, возникающие от действия изгибающего момента:

 мм

Для расчёта по наклонным сечениям (на действие поперечной силы):

 мм

.3 Расчетные нагрузки

а) Постоянная, равномерно распределённая нагрузка (с учетом = 1,1 и = 0,95). По фактической высоте плиты уточняем нагрузку от плиты:

 кH/м2, где

h =70 мм, r = 2,5 т/ м3;

 кH/м2;

 кH/м2.

Расчетная погонная нагрузка от собственного веса ребра балки, расположенного ниже плиты:

 кН/м.

Постоянная расчётная погонная нагрузка на балку с учетом коэффициента надежности по ответственности = 0,95:

кН/м.

б) Временная нагрузка (с учетом = 0,95, = 1,1, nn =6,5 кН/м2):

кН/м

в) Полная расчётная погонная нагрузка на балку:

 кН/м.

3.4 Расчетные усилия

Принимаем расчетную схему в виде однопролетной статически определимой балки и получим расчетные усилия


кН×м;

Рис.3.2.Расчетная схема и расчетные усилия для расчета на прочность по нормальным сечениям.

3.5 Расчет балки на прочность по нормальным сечениям

Определение высоты балки:

b = 200 мм, принимаем x = 0,40 тогда

 мм.

Требуемая высота поперечного сечения балки:

mp = 369,99 + 65 = 435 мм.

Окончательно принимаем высоту балки h = 450 мм.

Отношение b/h= 0,44 - находится в рекомендуемом диапазоне (0,3 ¸ 0,6).

Подбор продольной арматуры.

Сечение балки тавровое с полкой, расположенной в сжатой зоне. Высоту и ширину полки определяем из условий:

- высота полки:

;

- ширина полки:

.

Принимаем = 2000 мм, h0 = h - a = 450 - 65 = 385 мм.

Рис.3.3. Расчетное сечение балки

=hb= 450 мм

h0=385 мм

b=200 мм

= 2000 мм

= 70 мм

x = 11,73 мм

а = 65 мм

AS =886 мм2

;

,

т.е. нейтральная ось действительно находится в полке.

Площадь сечения арматуры определяем по формуле:

 мм2

Для удовлетворения выполнения условия соответствия принятой площади сечения арматуры минимальному проценту армирования выбираем класс арматуры А300. Принимаем 2 Æ16, AS real =402 мм2 и 2 Æ18 AS real =509 мм2, AS real S = 911 мм2.

Фактический коэффициент армирования:

,

а процент армирования  .

Уточняем h0 по принятым диаметрам продольной арматуры.

При арматуре большего диаметра Æ18 мм расстояние от крайнего растянутого волокна до центра тяжести площади сечения растянутой рабочей арматуры а = 65 мм.

Тогда h0 = h - a = 450 - 65 = 385 мм.

3.6 Расчет балки на прочность по сечениям, наклонным к продольной оси

Определение расчетных усилий

Для расчета по наклонным сечениям поперечная сила определяется на грани опоры, то есть в этом случае балка рассматривается с величиной пролета  мм.

Рис. 3.4. Расчетная схема балки и эпюра поперечных сил для расчета по наклонным сечениям

 кН

Проверка прочности по наклонной сжатой полосе.

Предварительно принимаем в качестве поперечной арматуры Æ6 А240 с ASW1 = 28,3 мм2 (площадь поперечного сечения одного стержня).

В сечении 2 стержня:

SW = n × ASW1 = 2 × 28,3 = 56,6 мм2, где

n = 2 -количество плоских каркасов в сечении.

Принимаем шаг поперечных стержней на приопорных участках:


Принимаем шаг поперечных стержней на пролетном участке:


Проверяем условие:


Проверяем обеспечение прочности по наклонной сжатой полосе между трещинами по условию:


Погонное усилие, воспринимаемое стержнями поперечной арматуры на единицу длины элемента:

 Н/мм.

Хомуты в расчёте учитываем при соблюдении условия:


Определяем Мb:


Вся нагрузка является равномерно распределенной, значит q1 = q.

Длина проекции невыгоднейшего наклонного сечения с

 мм.

Проверяем условие

 или

 и .

Условие не выполнено.

Значит, принимаем

, но  мм.

Следовательно, принимаем с = 3 × h0 = 1155 мм.

Длину проекции наклонной трещины изначально принимаем с0 = с =1155 мм, но  мм. Следовательно, принимаем с0 = 2 × h0 = 770 мм. Поперечная сила, воспринимаемая бетоном

 кН.


Поперечная сила, воспринимаемая арматурой:

 кН.

Поперечная сила в конце наклонного сечения:

 кН.

Проверка наклонного сечения:

.

Прочность наклонного сечения по поперечной силе обеспечена.

Величина длины приопорного участка

Длина приопорного участка определяется из условия, что вся поперечная сила воспринимается бетоном, т.е. Qsw = 0 из условия Qx =Qb.

 мм.

Принимаем длину приопорного участка не менее 1290 мм.

В средней части пролета шаг поперечной арматуры принимается равным S2 = 250 мм по конструктивным требованиям.

Рис.3.5. Результаты расчета сечения, наклонного к продольной оси балки.

Библиографический список

1. СНиП 2.01.07-85*. Нагрузки и воздействия / Минстрой России.- М.: ГП ЦПП, 1996 - 44с.

2. СНиП 52-01-2003. Бетонные и железобетонные конструкции. Основные положения / Госстрой России.- М.: ГУП "НИИЖБ", ФГУН ЦПП, 2004 - 23с.

3. СП 52-101-2003. Бетонные и железобетонные конструкции без предварительного напряжения арматуры / Госстрой России. - М.: ГУП "НИИЖБ", ФГУН ЦПП, 2004.- 53 с.

4. СНиП 2.03.01-84*. Бетонные и железобетонные конструкции / Госстрой России.- М.: ГУП ЦПП, 2000 - 76с.

5. Пособие по проектированию бетонных и железобетонных конструкций из тяжелого бетона без предварительного напряжения арматуры (к СП 52-101-2003). / ЦНИИПромзданий, НИИЖБ.- М.: ОАО ЦНИИПромзданий, 2005 - 214с.

6. ГОСТ 23279-85. Сетки арматурные сварные для железобетонных конструкций и изделий. Общие технические условия.

7. Байков В.Н., Сигалов Э.Е. Железобетонные конструкции. Общий курс: Учеб. Для вузов.- 5-е изд., перераб. И доп.- М.: Стройиздат, 1991.- 767 с.

Похожие работы на - Железобетонное монолитное ребристое перекрытие с балочными плитами

 

Не нашли материал для своей работы?
Поможем написать уникальную работу
Без плагиата!
Без нейросетей!