|
Комната
|
Общее число
|
|
Оператор-кассир,
Администратор
|
8
|
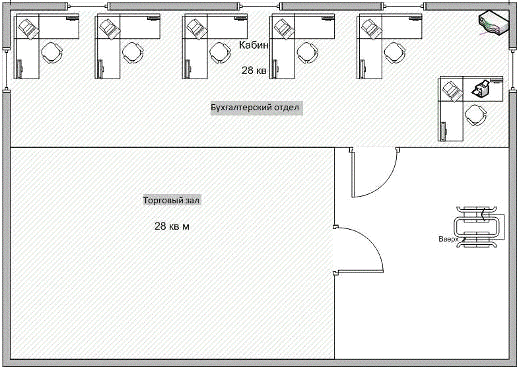
Рисунок 4 - План 5 магазина с бухгалтерским отделом, находящимся на
втором этаже здания
|
Комната
|
Количество компьютеров
|
|
Бухгалтерский отдел,
торговый зал
|
6
|
1.4
Требования к проектируемой инраструктуре
Главным требованием, предъявляемым к сетям, является обеспечение
пользователям потенциальной возможности доступа к разделяемым ресурсам всех
компьютеров, объединенных в сеть. Все остальные требования -
производительность, надежность, совместимость, управляемость, прозрачность,
расширяемость и масштабируемость - связаны с качеством выполнения основной
задачи.
Высокая производительность сети требуется для нормальной работы
большинства современных приложений. Производительность сети определяется
следующими техническими показателями:
· Время реакции - интегральная или обобщенная характеристика
сети с точки зрения пользователя, представляющая собой промежуток времени от
его обращения к какому-либо сетевому ресурсу до момента получения ответа на это
обращение;
· Пропускная способность - максимально возможная скорость
обработки трафика, определенная стандартом технологии, на которой построена
сеть. Пропускная способность отражает максимально возможный объем данных,
передаваемый сетью или ее частью в единицу времени;
· Время задержки - интервал времени между поступлением на вход
какого-либо компонента или всей сети данных и времени их выхода;
· Вариация задержки - изменение (произвольное) времени
задержки, носящее случайный характер, которое может вызвать существенное
снижение качества сетевых сервисов.
Одной из первоначальных целей создания распределенных систем, к которым
относятся и вычислительные сети, являлось достижение большей надежности по
сравнению с отдельными вычислительными машинами.
Для оценки надежности сложных систем применяется другой набор
характеристик:
· Готовность или коэффициент готовности означает долю времени,
в течение которого система может быть использована;
· Сохранность данных и их защита от искажений;
· Согласованность данных, например, если для повышения надежности
на нескольких файловых серверах хранится несколько копий данных, то нужно
постоянно обеспечивать их идентичность, другими словами синхронизировать;
· Вероятность доставки данных.
Безопасность - способность системы защитить данные от несанкционированного
доступа;
Отказоустойчивость - способность системы скрыть от её пользователей отказ
её отдельных компонентов.
Совместимость или интегрируемость означает, что сеть способна включать в
себя самое разнообразное программное и аппаратное обеспечение, то есть в ней
могут сосуществовать различные операционные системы, поддерживающие разные
стеки коммуникационных протоколов, и работать аппаратные средства и приложения
от разных производителей.
Управляемость - способность сети к централизованному управлению состоянием
её компонентов, выявлению, разрешению проблем, а так же удалённого
конфигурирования компонентов. Сеть должна быть достаточно легко управляемой,
чтобы ее можно было перенастраивать для удовлетворения постоянно меняющихся
потребностей организации.
Прозрачность - способность сети скрыть от пользователя свою структуру, то
есть сеть представляется пользователям не как множество отдельных компьютеров,
связанных между собой сложной системой кабелей, а как единая традиционная
вычислительная машина с системой разделения времени.
Расширяемость означает возможность сравнительно легкого добавления
отдельных элементов сети (пользователей, компьютеров, приложений, служб),
наращивания длины сегментов сети и замены существующей аппаратуры более мощной.
Масштабируемость означает, что сеть позволяет наращивать количество узлов
и протяженность связей в очень широких пределах, при этом производительность
сети не ухудшается.
2. Описание
предметной области
Сеть магазинов розничной торговли представляет собой организацию,
предоставляющую разного рода информацию. Эта информация предоставляется в
нескольких видах, например: информация для бухгалтерии (сотрудники,
купля-продажа продукции), электронный перечень продукции, ресурсы интернета.
Деятельность сети магазинов можно условно разделить на задачи
купли-продажи продукции строительных материалов, работа бухгалтерии.
Эти задачи включают в себя оперативность получения информации об
интересующих покупателях, информация о сотрудниках организации.
Так же каждый посетитель может, пользуясь услугами интернета
просматривать имеющуюся продукцию в наличии, заказывать продукцию, отправляя
свою заявку на почтовый адрес организации.
Таким образом, для нормального функционирования сети розничной торговли
необходимо оперативное взаимодействие всех её составляющих.
Следовательно, так как информация о доступной продукции в магазинах, на
складах и ее электронный перечень будет храниться в базе данных, то для того,
чтобы работа данной сети магазинов была как можно более оперативной и слаженной
необходимо связать компьютеры каждого здания (филиала) локальной вычислительной
сетью, которые в свою очередь будут связаны между собой.
3.
Функциональная схема работы ПО
3.1 Характер
необходимого программного обеспечения
Поскольку данная сеть будет построена в архитектуре клиент-сервер, в
каждом из филиалов сети будет находиться выделенный сервер БД.
В качестве сервера БД будем использовать Microsoft SQL Server 2005, на
сервере, находящимся в отделе серверная будет стоять сервер БД, а на машинах
операторов - клиенты.
Управление компьютерами, составляющими локальную сеть, будет
осуществляться с помощью сетевой операционной системой Windows 2003 Server. На
клиентах будет установлена операционная система Microsoft Windows XP SP3.
Кроме того, будут установлены офисные приложения от Microsoft Office 2007
SP2. Для обеспечения безопасности на сервере будет установлен Firewall Agnitum
Outpost 4.7.
3.2 Потоки
информации, их объемные и частотные характеристики
Филиалы сети будут иметь базу, полученную с оптовых складов и других
магазинов, содержащую информацию о продукции, имеющихся в наличие, для
получения оперативной информации операторами. Кроме того, на одном из серверов
сети будет храниться база данных с информацией о всей продукции. Ежедневно
операторы филиалов будут отправлять на этот сервер БД информацию о
купле-продаже продукции. Также в базу этого сервера с БД о всей продукции будет
поступать информация о клиентах, которые оставили заказ на тот или иной товар.
Эта информация будет поступать сразу же после осуществления заказа. К главному
серверу организации будет иметь доступ и директор сети магазинов в случае его
нахождения в одном из филиалов. Это обеспечит необходимую мобильность нашей
сети.
Филиалы будут иметь возможность взаимодействия друг с другом для
получения информации о наличии необходимой информации, отсутствующей в другом
филиале сети.
Запрос к базе данных будет осуществляться по мере необходимости, в случае
отсутствия необходимой продукции в другом филиале сети.
Филиалы обмениваются разнородной документацией (документы Word, Excel, PDF) небольшого размера для чего они,
используют электронную почту.
4. Оценка
(расчет) требуемой скорости передачи данных в сети
Для удобства работы запрос должен выполняться не более 1 сек, поэтому
подсчёт трафик будет вестись в Мбитах в секунду.
Здесь мы будем проводить расчет приблизительных значений скоростей
передачи данных по сети. Так как для определения таких показателей нужны
определенные математические приемы и модели системы, что выходит за рамки данного
предмета, будем считать, что исходные значения нам уже известны.
Рассчитаем максимальную скорость, которую должна обеспечивать локальная
сеть.
000 кбайт * 1000 записей = 50 000 000 кбайт = 48828,125 Мбайт = 13,56
Мбит/с
Исходя из выше изложенного, необходимо обеспечить скорость передачи
порядка 100 Мбит/с.
5. Технология
построения сети
5.1 Обзор и
анализ возможных технологий для решения поставленной задачи
5.1.1
Технологии локальных сетей
Fast Ethernet
В настоящее время существует несколько подстандартов технологии:
. 100Base-TX
В качестве топологии выступает топология пассивная звезда. Для построения
сети используется витая пара UTP5 или STPType1. Количество используемых пар
кабеля - 2. Максимальная длина сегмента - 100 метров. Для подключения сетевого
кабеля к адаптеру и концентратору используются 8-контактные разъемы типа
RJ-45.Максимальное количество точек подключения к сегменту - 1024. Максимальное
количество сегментов 3. При максимальной длине сегмента кабеля в 100 м это дает
максимальную длину сети 100Base-TX в 205 м. Максимальное количество узлов сети
- 3072 узла.
. 100Base-T4
В качестве топологии выступает топология звезда. Для построения сети
используется витая пара UTP3, UTP4, UTP5. Количество используемых пар кабеля -
4 (3 - обмен данными, 1 - определение коллизий). Максимальная длина сегмента -
100 метров. Для подключения сетевого кабеля к адаптеру и концентратору
используются 8-контактные разъемы типа RJ-45.Максимальное количество точек
подключения к сегменту - 1024. Максимальное количество сегментов - 3. При
максимальной длине сегмента кабеля в 100 м это дает максимальную длину сети
100Base-T4в 205 м. Максимальное количество узлов сети - 3072 узла.
. 100Base-TF
Максимальная длина сегмента 400 метров в полудуплексном режиме (для
гарантированного обнаружения коллизий) или 2 километра в полнодуплексном режиме
по многомодовому оптическому волокну и до 32 километров по
одномодовому.Ethernet
. 1000BASE-T, IEEE 802.3ab - Стандарт Ethernet 1 Гбит/с.
Используется витая пара категории 5e или категории 6. В передаче данных
участвуют все 4 пары. Скорость передачи данных - 250 Мбит/с по одной паре.
. 1000BASE-TX, - Стандарт Ethernet 1 Гбит/с, использующий только
витую пару категории 6. Практически не используется.
. 1000Base-X - общий термин для обозначения технологии Гигабит
Ethernet, использующей в качестве среды передачи данных оптоволоконный кабель,
включает в себя 1000BASE-SX, 1000BASE-LX и 1000BASE-CX.
. 1000BASE-SX, IEEE 802.3z - 1 Гбит/с Ethernet технология,
использует многомодовое волокно дальность прохождения сигнала без повторителя
до 550 метров.
. 1000BASE-LX, IEEE 802.3z - 1 Гбит/с Ethernet технология,
использует многомодовое волокно дальность прохождения сигнала без повторителя
до 550 метров. Оптимизирована для дальних расстояний, при использовании
одномодового волокна (до 10 километров).
. 1000BASE-CX - Технология Гигабит Ethernet для коротких
расстояний (до 25 метров), используется специальный медный кабель
(Экранированная витая пара (STP)) с волновым сопротивлением 150 Ом. Заменён
стандартом 1000BASE-T, и сейчас не используется.
. 1000BASE-LH (LongHaul) - 1 Гбит/с Ethernet технология,
использует одномодовый оптический кабель, дальность прохождения сигнала без
повторителя до 100 километров.
Gigabit Ethernet
Новый стандарт 10 Гигабит Ethernet включает в себя семь стандартов
физической среды для LAN, MAN и WAN. В настоящее время он описывается поправкой
IEEE 802.3ae и должен войти в следующую ревизию стандарта IEEE 802.3.
. 10GBASE-CX4 - Технология 10 Гигабит Ethernet для коротких
расстояний (до 15 метров), используется медный кабель CX4 и коннекторы
InfiniBand.
. 10GBASE-SR - Технология 10 Гигабит Ethernet для коротких
расстояний (до 26 или 82 метров, в зависимости от типа кабеля), используется
многомодовое оптоволокно. Он также поддерживает расстояния до 300 метров с
использованием нового многомодового оптоволокна (2000 МГц/км).
. 10GBASE-LX4 - использует уплотнение по длине волны для поддержки
расстояний от 240 до 300 метров по многомодовому оптоволокну. Также
поддерживает расстояния до 10 километров при использовании одномодового
оптоволокна.
. 10GBASE-LR и 10GBASE-ER - эти стандарты поддерживают расстояния
до 10 и 40 километров соответственно.
. 10GBASE-SW, 10GBASE-LW и 10GBASE-EW - Эти стандарты используют
физический интерфейс, совместимый по скорости и формату данных с интерфейсом
OC-192 / STM-64 SONET/SDH. Они подобны стандартам 10GBASE-SR, 10GBASE-LR и
10GBASE-ER соответственно, так как используют те же самые типы кабелей и
расстояния передачи.
. 10GBASE-T, IEEE 802.3an-2006 - принят в июне 2006 года после 4
лет разработки. Использует экранированную витую пару. Расстояния - до 100
метров.
5.1.2
Технологии беспроводных сетей
Технологии WLAN
Эти технологии описываются стандартами 802.11 (известны под торговой
маркой WIFI) и 802.16 (WiMax).
Раньше технологии WIFI проектировались для мобильных пользователей в
рамках ЛВС:
.11а (1999г): 54 Мбит/с; 5ГГц
.11b (1999г): 11 Мбит/с; 2.4 ГГц
.1 lg (2001г): 54 Мбит/с; 2.4 ГГц
Основные характеристики и спецификации описываются для встроенных антенн,
но могут работать с внешними антеннами, что способствует увеличению диаметра.
По архитектуре беспроводные локальные сети могут работать в 2 режимах (Рис.):
. с фиксированной структурой (с базовой станцией - АР: Access
Point). (Рис. 7 (слева))
. без базовой станции: Ad Hoc (с произвольной структурой) (Рис. 7
(рисунок справа))
Рисунок 6 - Топологии построения WLAN средствами WiFi
5.1.3
Технологии доступа в Интернет
В настоящее время в нашем городе конкурентоспособными являются 2
технологии доступа в Интернет ADSL и FTTB (Fiber to the Building).
Технология волоконно-оптические кабели.
При предоставлении доступа к Интернету по волоконно-оптическому каналу
операторы связи могут использовать различные технологии внутри своей сети (SDH
- Synchronous Digital Hierarchy, PDH - Plesiochronous Digital Hierarchy,
оптический Ethernet и другие), но на уровне конечного пользователя это не имеет
большого значения, так как все современные оптические технологии имеют
сравнимые характеристики надежности. Важнейшими характеристиками для
пользователя в данном случае будут скорость доступа в Сеть по этому каналу и
тип интерфейса для подключения оборудования пользователя. Использование
волоконно-оптической среды предоставляет наибольшую надежность, гибкость и
практически неограниченную скорость передачи.
xDSL-семейство.
В последнее время для обеспечения большей скорости и надежности канала,
организованного с использованием медных проводов, широкое распространение получили
технологии так называемого xDSL-семейства. На базе общей технологии DSL
(Digital Subscriber Line) разработано множество различных вариантов для
различного применения: HDSL, MSDSL, SDSL, ADSL и другие. Как правило,
xDSL-технологии используются, когда требуется получить относительно высокую
скорость и оставить телефон свободным. Наиболее широко используются SDSL- и
ADSL-технологии, так как они не требуют использования дорогого оборудования со
стороны провайдера и в то же время обеспечивают достаточно высокое качество
канала. Обе эти технологии не обеспечивают гарантированной скорости передачи
информации, они автоматически подстраиваются под физические характеристики
используемых медных проводов. Основное их различие между собой: ADSL
обеспечивает разную скорость передачи и приема информации, а SDSL - одинаковую
(от английских слов Asymmetric и Symmetric). Подключение частных пользователей,
как правило, осуществляется по технологии ADSL. Стандартные телефонные провода
находят очень широкое применение, так как, во-первых, с их помощью можно
обеспечить достаточно высокую надежность и скорость передачи и, во-вторых,
медные кабели доходят практически до каждого здания в городе (хотя есть и
исключения). Величина скорости передачи данных при этом зависит от длины и
качества телефонной линии.
В обоих случаях создается постоянное соединение с Интернетом, то есть
отсутствует необходимость дозвона.
5.1.4 VPN
(Virtual Private Network - виртуальная частная сеть)
Остается еще одна нерешенная проблема: связь магазинов и оптовых складов.
Негативным фактором является большое расстояние и значительное количество
магазинов, что делает применение оптоволокна накладным. Поэтому наиболее
оптимальным решением для объединения локальных сетей магазинов в одну единую
локальную сеть является технология виртуальных частных сетей (VPN).
Существуют различные варианты построения VPN.
· VPN на базе брандмауэров
· VPN на базе маршрутизаторов
· VPN на базе программного обеспечения
· VPN на базе сетевой ОС
· VPN на базе аппаратных средств
5.2 Выбор и
обоснование технологии построения сети
Исходя из значений, полученных при расчёте трафика в пункте 4, можно
сделать вывод о том, что оптимальной технологией для построения локальных сетей
данных сети магазинов розничной торговли является технология Fast Ethernet.
Для построения ЛВС будет использована именно технология FastEthernet 100
Base ТХ, так как данная технология предусматривает передачу данных по двум
неэкранированным витым парам категории 5, в то время как для 100 Base - Т4
требуется 4 пары кабеля категории 3, 4 или 5, три из них нужны для передачи или
приема пакетов, а четвертая пара предназначена для прослушивания канала.
Поскольку невозможно выделить пары для передачи или приема данных, 100Base - Т4
не может обеспечивать дуплексный режим.
Будет реализована топология звезда в каждых подразделении, с центральным
элементом, кроме того в таких предприятиях, важно предусмотреть резервы, для
восстановлении данных после неизбежных взломов и прочих неисправностей
оборудований.
Локальная сеть предприятия имеет выход в Интернет, для этого будет
использована технология ADSL для доступа в Интернет. Будем рассматривать доступ
удаленных соединений с помощью VPN (Virtual Private Network)
Для построения ЛВС данного предприятия будет использована именно
технология FastEthernet 100 Base ТХ, так как данная технология предусматривает
передачу данных по двум неэкранированным витым парам категории 5, в то время
как для 100 Base - Т4 требуется 4 пары кабеля категории 3, 4 или 5, три из них
нужны для передачи или приема пакетов, а четвертая пара предназначена для
прослушивания канала. Поскольку невозможно выделить пары для передачи или
приема данных, 100Base - Т4 не может обеспечивать дуплексный режим.
Будет реализована топология звезда в каждых филиалах, с центральным
элементом.
Локальная сеть предприятия имеет выход в Интернет, для этого будет
использована технология ADSL для доступа в Интернет. Будем рассматривать доступ
удаленных соединений с помощью VPN (Virtual Private Network).
5.3
Коммутация логических сегментов
Использование устройств, таких как коммутаторы, маршрутизаторы, для
соединения подсетей позволяет снять ограничения, возникающие из-за
использования общей разделяемой среды. Эти устройства передают кадры с одного
своего порта на другой, анализируя адрес назначения, помещенный в этих кадрах,
коммутаторы выполняют операцию передачи кадров на основе плоских адресов
канального уровня, то есть МАС-адресов, а маршрутизаторы - на основе номера
сети. При этом единая разделяемая среда, созданная одним сегментом кабеля,
делится на несколько частей, каждая из которых присоединена к порту коммутатора
или маршрутизаторы.
Говорят, что при этом сеть делится на логические сегменты или сеть
подвергается логической структуризации. Логический сегмент представляет собой
единую разделяемую среду. Деление сети на логические сегменты приводит к тому,
что нагрузка, приходящаяся на каждый из вновь образованных сегментов, почти
всегда оказывается меньше, чем нагрузка, которую испытывала исходная сеть.
Следовательно, уменьшаются вредные эффекты от разделения среды: снижается
время ожидания доступа. Кроме того, сегментация увеличивает гибкость сети, они
повышают безопасность данных. При подключении пользователей к различным
физическим сегментам сети можно запретить доступ определенных пользователей к
ресурсам других сегментов. Устанавливая различные логические фильтры на
коммутаторах и маршрутизаторах, можно контролировать доступ к ресурсам. Подсети
упрощают управление сетью. Побочным эффектом уменьшения трафика и повышения безопасности
данных является упрощение управления сетью. Проблемы очень часто локализуются
внутри сегмента. Как и в случае структурированной кабельной системы, проблемы
одной подсети не оказывают влияния на другие подсети. Подсети образуют
логические домены управления сетью.
Сети должны проектироваться на двух уровнях: физическом и логическом.
Логическое проектирование определяет места расположения ресурсов, приложений и
способы группировки этих ресурсов в логические сегменты.
6. Реализация
разделяемых ресурсов
Для данной сети были выбраны следующие разделяемые ресурсы:
1. Сервер БД
Этот ресурс необходим для хранения информации о продукции, имеющихся в
наличии магазинов и оптовых складах. А так же для отметки, кто совершал заказ,
дату заказа и т.д.
Для сервера БД был выбран пакет Microsoft SQL Server 2005.
2. Файл-сервер
Данный ресурс служит для хранения списка продукции, ее цен и т.д.
3. Доступ в Интернет
4. Электронная почта
Является неотъемлемой частью для получения необходимой информации внутри
сети.
5. Сетевая печать
Этот разделяемый ресурс обеспечивает доступ пользователей к принтеру,
подключенному к операторской машине.
7. Этапы
реализации проекта
7.1 Выбор, установка и монтаж сетевого оборудования
7.1.1 Кабель
В качестве кабеля будем использовать неэкранированную витую пару
категории 5e, поскольку на её использование
ориентируется выбранный нами стандарт Fast Ethernet и
позволяет в дальнейшем без серьезной реконструкции модернизировать её в сеть
Gigabit Ethernet по мере необходимости.
Основные характеристики витой парты категории 5e.e (полоса частот 125 МГц) - 4-парный кабель,
усовершенствованная категория 5. Скорость передач данных до 100 Мбит/с при
использовании 2 пар и до 1000 Мбит/с при использовании 4 пар. Для соединения
кабелей с оборудованием используются вилки и розетки RJ-45.
При монтаже кабельной подсистемы применяются стандартные пластиковые
кабель-каналы размерностью 25x16, используя способ комбинированного крепления
их на стенах при помощи пластмассовых дюбелей с саморезом и двухстороннего
скотча. Каждое рабочее место с персональным компьютером оборудовано сетевой
розеткой RJ-45 5е категории.
7.1.2
Коммутаторы
Для сетевой инфраструктуры на данный момент оптимальным решением станет
использование 5 и 8-портовых коммутаторов со скоростью передачи 100 Мбит/c.
Для оптовых складов был выбран коммутатор D-Link DES-1005D/E, а для
магазинов D-Link DES-1008D/E+ Fast E-net Switch 8-port.
Вид выбранных нами коммутаторов:
Рисунок 9 - Коммутаторы D-Link DES-1008D/E+ Fast E-net Switch 8-port и D-Link DES-1005D/E
Для установки коммутатора необходимо выполнить следующие действия:
· Расстояние от розетки сети питании до устройства не должно
превышать 1.82 метра.
· Визуально проверьте кабель питания и убедитесь в безопасности
его включения в сеть питания.
· Не загораживайте вентиляционные отверстия на боковых панелях
коммутатора и убедитесь, что имеется достаточно пространства для рассеивания
тепла и вентиляции вокруг коммутатора.
· Не размещайте тяжелые объекты на коммутаторе.
Для удобства прикрепим наш коммутатор к стене. Для этого внизу устройства
находятся два крепежных отверстия. При установке необходимо убедиться в том,
что индикаторы на передней панели будут легкодоступны для наблюдения. Для
крепления к стене закрепим в бетонной стене нейлоновые дюбели, затем завернем в
дюбели шурупы T3 x 15L. Установить коммутатор необходимо так, чтобы он крепежными
отверстиями зацепился на шурупах.
7.1.3 ADSL-модем
В качестве ADSL-модема был
выбран Acorp Sprinter@ADSL LAN 420i(ANNEX A) EXT (RTL) 4UTP 10/100Mbps. Так же
он будет использоваться в качестве маршрутизатора для построения виртуальных
каналов.
Настройка ADSL-модема.
Откройте папку Сетевые подключения и выберите сетевой адаптер, к которому
подключен модем.
Откройте свойства сетевого адаптера.
Выберите Internet Protocol (TCP/IP) и нажмите кнопку Свойства.
В открывшемся окне выберите Получить IP-адрес автоматически / Obtain an
IP automatically и нажмите кнопку Ок.
Выберите Протокол Интернет (TCP/IP) и нажмите кнопку
"Свойства":
Рисунок
9 - свойства Internet Protocol
(TCP/IP).
Нажмите кнопку Пуск/Выполнить и запустите команду cmd
Откроется окно командной строки.
В окне командной строки введите команды/release/renew
Убедитесь, что Основной шлюз имеет адрес 192.168.1.1
Откройте веб-браузер и введите в адресной строке адрес 192.168.1.1
Рисунок 10 - окно логина для настройки модема.
В открывшейся странице введите Username Admin и Password Admin и нажмите
кнопку Log In
Откроется окно быстрой настройки Quick Setup.
Рисунок 11 - окно быстрой настройки Quick Setup.
В поле User ID введите имя Вашей учетной записи, полученной от
Интернет-провайдера. В поле Password введите пароль учетной записи. Выберите
протокол (PPPoE для провайдера СТРИМ ) и параметры VPI/VCI, предоставленные
Интернет-провайдером ( для провайдера СТРИМ VPI=1 VCI=50)
Нажмите кнопку Save All; Нажмите кнопку Reboot.
Если Ваш провайдер работает не по протоколу PPPoE и/или Вам требуется
настроить дополнительные параметры соединения, в верхнем меню выберите пункт
Setup.
Рисунок 12 - настройка дополнительных параметров.
В левом меню выберите пункт New Connection
Рисунок 13 - New Connection.
В поле Name введите имя соединения (например, STREAM). В поле Type
выберите протокол (PPPoE для СТРИМ). Поставьте галочки в полях NAT и Firewall
В поле Username введите имя Вашей учетной записи, полученной от
Интернет-провайдера. В поле Password введите пароль учетной записи.
Обращаем внимание, что требуется ввести именно данные учетной записи
интернета, а не «личного кабинета» на сайте провайдера.
В разделе PVC Settings введите параметры VPI и VCI вашего
Интернет-провайдера ( для провайдера СТРИМ VPI=1 VCI=50 )
Нажмите кнопку Apply. Нажмите кнопку Save All для сохранения настроек в
памяти модема и нажмите кнопку Connect для запуска соединения.
Примечание: для получения более полной информации о настройках модема
обратитесь к документации на компакт-диске, входящем в комплект модема.
Состояние соединения Вы можете проверить, выбрав в верхнем меню пункт
Status и в левом меню пункт Connection status.
Рисунок 14 - окно Connect status.
В поле State напротив соединения с заданным Вами именем должно быть
Connected.
Настройка VPN.
На странице LAN Clients задаются имя пользователя и пароль
для VPN подключений к модему.
1. Выберите сетевое подключение (Select LAN Connection): Выберите
сетевое подключение, клиенты которого будут добавлены.
2. Новый IP-адрес (Enter IP Address): введите IP-адрес.
. Имя хоста (Hostname): введите Имя хоста.
. MAC-адрес (MAC Address): введите MAC-адрес (управления доступом
к среде).
. Имя пользователя VPN (VPN Username): Имя пользователя
подключения VPN.
. Пароль пользователя VPN (VPN Password): Пароль подключения VPN.
. Имя пользователя и пароль VPN используются для авторизации
внешних VPN подключений к маршрутизатору.
. VPN Route Net/VPN Route Mask: Адрес и маска подсети удаленного
пользователя.
. Применить (Apply): щелкните Применить (Apply) для сохранения
изменений.
7.1.4 Сервер
Теперь выберем сервер, на котором будет установлена сетевая операционная
система и серверная часть MS SQL Server.
Оптимальным решением для малого бизнеса является сервер начального уровня
DEPO Race X140.Race X140 базируется на наборе микросхем Intel® P45 с поддержкой
современных высокопроизводительных двухъядерных и четырехъядерных процессоров
Intel Core 2 Duo, Intel Core 2 Quad и памяти DDRII. Дисковая подсистема рабочих
станций строится на базе накопителей с интерфейсом SATA и может включать до 4
жестких дисков SATA-II с возможностью построения RAID-массивов уровней 0,1,5,10
или JBOD. Модель отличается новым облегченным исполнением корпуса с эффективной
системой вентиляции, блоками питания оптимальной мощности, использованием
специально подобранного набора видеоадаптеров, а также расширенным набором
дополнительных опций и технологий.
Его вид:
Рисунок 15 - DEPO Race X140
Сервер будет располагаться в серверной комнате.
7.1.5 Сетевой
принтер
С помощью сетевого принтера обеспечивается доступ всех пользователей к
принтеру, установленному на операторской машине.
Был выбран Canon PIXMA MP550.
Простой в эксплуатации принтер PIXMA MP550 предлагает пользователям ряд
усовершенствованных возможностей, с помощью которых можно добиться
лабораторного качества печати за меньшее, по сравнению с предыдущими моделями,
время.
Благодаря усовершенствованному механизму печати принтера PIXMA MP550
достигается необычайно высокая скорость печати по сравнению с другими моделями
среднего класса. Скорость печати фотографий лабораторного качества без полей
формата 10 x 15 см составляет приблизительно 39 секунд.MP550 может печатать
приблизительно 9,2 изображения в минуту при монохромной печати и 6 изображений
в минуту при цветной печати.
Его вид:
Рисунок 16 - Canon PIXMA MP550
Принтер будет установлен на столе оператора и подключен с помощью витой
пары к коммутатору.
7.2 Установка и настройка программного обеспечения
7.2.1 Windows
Server 2003
7.2.1.1 DNS
Сервер имен - специальный веб-сервер, осуществляющий отображение доменных
имен в IP-адреса (и наоборот).
Каждому домену необходим основной DNS-сервер, обычный или интегрированный
с Active Directory. На основном сервере задаются зоны прямого и обратного
просмотра. Первые служат для разрешения доменных имен в IP-адреса, вторые
решают обратную задачу - искать доменное имя по IP-адресу (это необходимо для
аутентификации DNS-запросов).
Настройка DNS
1) Нажимаем кнопку Пуск, выделяем пункт Панель управления, затем
- пункт Сетевые подключения и щелкаем правой кнопкой мыши команду Подключение
по локальной сети.
2) Выбираем команду Свойства.
3) Выделяем пункт Протокол Интернета (TCP/IP) и нажимаем кнопку
Свойства.
4) Открываем вкладку Общие.
5) Устанавливаем флажок Использовать следующий IP-адрес, а затем
вводим в соответствующих полях IP-адрес, маску подсети и адрес основного шлюза.
Рисунок 17 - Настройка свойств TCP/IP
) Нажимаем кнопку Дополнительно и перейдите на вкладку DNS.
) Установите переключатель в положение Дописывать основной
DNS-суффикс и суффикс подключения.
) Установите флажок Дописывать родительские суффиксы осн.
DNS-суффикса.
) Установите флажок Зарегистрировать адреса этого подключения в
DNS.
Рисунок 18 - Дополнительные параметры TCP/IP
После этого, в окне мастера настройки сервера выберем роль DNS-сервер
Рисунок 19 - Мастер настройки сервера
После этого откроется Мастер настройки DNS-сервера
Рисунок 20 - Мастер настройки DNS-сервера
После этого, необходимо создать зоны просмотра. Зоны прямого просмотра
служат для преобразования доменных имен в IP-адреса. Зона обратного просмотра
преобразует IP адрес в имя компьютера из пространства имен DNS ("обратное
преобразование имени").
Рисунок 21 - Мастер настройки DNS-сервера. Создание зон просмотра
После этого необходимо выбрать тип зоны. Поскольку зона будет обновляться
на данном сервере необходимо выбрать пункт Основная зона. Поскольку наш DNS-сервер будет установлена на
контроллере домена, необходимо поставить соответствующую галочку
Рисунок 22 - Мастер настройки DNS-сервера. Выбор типа зоны
После этого необходимо ввести имя новой зоны.
Затем необходимо выбрать параметры обновления записей ресурсов на
DNS-сервере при их изменении, а так же создать новый файл зоны (файл,
содержащий одну запись SOA , содержащую параметры зоны; не менее одной записи
Name Server (NS), содержащей адреса DNS-серверов, ответственных за хранение и
обслуживание зоны; не менее одной записи Host (A), содержащей информацию о
соответствии имени DNS-сервера, указанного в каждой записи NS, его IP-адресу.)
Рисунок 23 - Мастер настройки DNS-сервера. Настройка обновления и файла зоны
После этого на экране появится сводная информация о настройке DNS-сервера и сообщение о завершении
настройки DNS-сервера.
7.2.1.1 Active
Directory
Active Directory - расширяемая и масштабируемая служба каталогов, в
которой используется пространство имен, основанное на стандартной
Интернет-службе именования доменов (Domain Name System, DNS).Directory позволяет эффективно управлять сетевыми
ресурсами. В Active Directory
используется доменная система имен (Domain Name System, DNS) - стандартная
служба Интернета, организующая группы компьютеров в домены. Средствами DNS
иерархию доменов Active Directory можно вписать в пространство Интернета или
оставить самостоятельной и изолированной от внешнего доступа. Для доступа к
ресурсам в домене применяется полное имя узла. Directory объединяет логическую
и физическую структуру для компонентов сети.
К логической структуре относятся следующие элементы:
· организационное подразделение (organizational unit) -
подгруппа компьютеров, как правило, отражающая структуру компании;
· домен (domain) - группа компьютеров, совместно использующих
общую БД каталога;
· дерево доменов (domain tree) - один или несколько доменов,
совместно использующих непрерывное пространство имен;
· лес доменов (domain forest) - одно или несколько деревьев,
совместно использующих информацию каталога.
К физическим структурам следующие элементы:
· подсеть (subnet) - сетевая группа с заданной областью IP-
адресов и сетевой маской;
· сайт (site) - одна или несколько подсетей. Сайт используется
для настройки доступа к каталогу и для репликации.
Для настройки Active Directory воспользуемся Мастером настройки сервера,
с помощью которого вызовем Мастер установки Active Directory
Рисунок 24 - Мастер настройки Active Directory
Поскольку наш сервер станет первым контроллером в новом домене, выберем
пункт Контроллер домена в новом домене. Затем выберем тип домена, поскольку это
первый домен в нашей организации выберем тип «Новый домен в новом лесу».
Рисунок 25 - Мастер настройки Active Directory. Выбор
типа контроллера домена и его типа
Далее необходимо выбрать новое имя для домена и указать его NetBIOS.
Теперь необходимо настроить, где будет располагаться база данных Active
Directory и журнал Active Directory.
Рисунок 26 - Мастер настройки Active Directory.
Указание места хранения Базы данных и журнала AD и выбор разрешений.
7.2.1.2
DHCP
Протокол динамической конфигурации узла (Dynamic Host Configuration
Protocol, DHCP) обеспечивает динамическую настройку параметров протокола TCP/IP
на сетевых клиентах, чем существенно облегчает администрирование доменов службы
каталогов Active Directory. При этом не только экономится время на настройку
параметров системы, но и создается централизованный механизм изменения этих
параметров. Для запуска службы DHCP в сети нужно настроить DHCP-сервер,
предоставляющий клиентам сведения о сетевой конфигурации.- средство
централизованного управления выделением IP-адресов, но этим его функции не
ограничиваются. DHCP-сервер выдает клиентам основную информацию, необходимую
для работы сети TCP/IP: IP-адрес, маску подсети, сведения о шлюзе по умолчанию,
о первичных и вторичных DNS- и WINS-cepверах, а также имя домена DNS.
Установка DHCP
Для настройки DHCP сервера так же воспользуемся Мастером настройки
сервера.
Далее необходимо ввести имя области, которую следует использовать в сети.
После чего, необходимо ввести диапазон адресов, который описывает
область, диапазон адресов который необходимо исключить (если это необходимо).
Рисунок 26 - Настройка DHCP.
Задание диапазона IP-адресов и
добавление исключений
После чего нужно указать срок действия аренды адреса и адрес
маршрутизатора.
Рисунок 27 - Настройка DHCP.
Задание срока аренды адреса и адреса маршрутизатора
После чего настройка DHCP
окончена. Но после этого службу DHCP
необходимо активировать. Для этого необходимо перейти в панель
«Администрирование - DHCР».
Рисунок 28 - Настройка DHCP.
Активация DHCP
7.2.1.3 Файл-сервер
(File server)
Cервер,
предоставляющий доступ к файлам и управляющий ими. Выбор этой роли позволит вам
быстро настроить параметры квотирования и индексирования. Вы также можете
установить Web-приложение для администрирования файлов. В этом случае будет
установлен FS и включены страницы ASP (Active
Server Pages).
Установка Файл-сервер (File server)
Для создания Файл-сервера вновь воспользуемся мастером настройки сервера.
Для начала необходимо задать путь к папке, которую мы хотим сделать
общей. После чего необходимо ввести данные об общем ресурсе.
Рисунок 29 - Настройка Файл-сервера. Указание пути к ресурсу и его
описание
Затем необходимо настроить службу индексирования файл-сервера и назначить
дисковые квоты.

Рисунок 30 - Настройка Файл-сервера. Настройка индексирования и дисковых
квот
7.2.1.4 Управление
пользователями
Создание групп в Active Directory
1. Войдите в контроллер домена с помощью учетной записи с правами
на создание групп в соответствующем домене. Обычно достаточно учетной записи с
правами администратора домена.
2. Выберите в меню Start пункт All Programs-Administrative
Tools-Active Directory Users and Computers.
3. Выберите в левой панели необходимый контейнер, например, контейнер
Users. Щелкните на нем правой кнопкой мыши и выберите в контекстном меню пункт
New-Group.
. Введите имя группы и выберите нужный тип и область действия
группы, щелкните на кнопке ОК, чтобы завершить создание группы.
Создание пользователей
Создать объект пользователя можно в консоли Active Directory -
пользователи и компьютеры. Хотя их можно создавать в домене или в любом из
контейнеров по умолчанию, рекомендуется делать это в ОП, чтобы в полной мере
задействовать делегирование административных полномочий и объекты групповой
политики (ОГП).
Чтобы создать объект пользователя, выберите нужный контейнер, затем в
меню Действие (Action) щелкните Создать (New)-Пользователь (User). Откроется
диалоговое окно Новый объект - Пользователь (New Object - User). На первой
странице этого окна необходимо ввести сведения об имени пользователя. Закончив
ввод значений, щелкните Далее (Next). На второй странице необходимо ввести
пароль пользователя и установить управляющие флажки учетной записи
Рисунок 31 - Создание пользователя
программный обеспечение локальный сеть
7.2.1.5 Сетевая
печать
Чтобы предоставить удаленным пользователям доступ к печатающему
устройству, подключенному к компьютеру с Microsoft Windows Server 2003,
администратор должен сделать компьютер сервером печати и настроить его для
совместного использования печатающих устройств в сети.
Настройка конфигурации сервера печати
1. Пункт меню Администрирование, а затем Мастер настройки сервера.
2. Нажмите кнопку Далее.
. Нажмите кнопку Далее.
. Выберите Сервер печати в списке Роль сервера и нажмите кнопку
Далее.
. На странице «Принтеры и драйверы принтеров» выберите
поддерживаемые типы клиентов Windows и нажмите кнопку Далее.
Рисунок 32 - Принтеры и драйверы принтеров
6. На странице приветствия мастера установки принтеров нажмите
кнопку Далее.
7. Выберите Локальный принтер, снимите флажок Автоматическое
определение и установка принтера Plug and Play и нажмите кнопку Далее.
Рисунок 33 - Выбор типа принтера
8. Выберите порт принтера и нажмите кнопку Далее.
Рисунок 34 - Выбор порта принтера
9. Выберите изготовителя и модель принтера или укажите на диск с
драйверами от поставщика и нажмите кнопку Далее.
10. Укажите имя принтера (можно оставить предлагаемое по умолчанию) и
нажмите кнопку Далее.
. Выберите параметр Общий доступ и введите имя общего ресурса, а
затем нажмите кнопку Далее.
. Найти принтер в дальнейшем будет существенно проще, если сразу
снабдить его примечанием и указать местонахождение. Нажмите кнопку Далее.
. Выберите параметр Печать пробной страницы, нажмите кнопку Далее,
а затем кнопку Готово, чтобы завершить работу мастера установки принтера.
Принтер появится в папке «Принтеры и факсы».
Организация общего доступа к принтеру
1. Нажмите кнопку Пуск и выберите команду Принтеры и факсы.
2. Дважды щелкните установленный принтер правой кнопкой мыши и
выберите в меню команду Доступ.
. Выберите параметр Общий ресурс и введите имя, которое будет
использоваться при совместном доступе к принтеру.
. При необходимости нажмите кнопку Дополнительные драйверы,
отметьте операционные системы, установленные на клиентских компьютерах, которые
могут обращаться к принтеру, и нажмите кнопку ОК. Добавление драйверов для
других операционных систем даст возможность пользователям клиентских
компьютеров автоматически загружать нужные драйверы принтера при подключении к
нему, причем без необходимости что-либо настраивать.
. При появлении на экране запроса вставьте в дисковод компакт-диск
Windows Server 2003.
. Для закрытия окна свойств принтера нажмите кнопку OK.
. Закройте папку «Принтеры и факсы».
7.2.2
Настройка Firewall
Из соображений безопасности, часто очень важно знать в каком состоянии
находится защита, и иметь возможность быстро определить режим, в котором
функционирует каждый из компонентов защиты. Страница Моя безопасность.
Политика
брандмауэра
Брандмауэр Outpost Firewall Pro предоставляет широкий выбор уровней
защиты от полной блокировки доступа в Интернет для всех приложений до
разрешения неограниченного доступа.
Один из самых важных параметров Outpost Firewall Pro - его политика.
Политика задает, каким образом Outpost Firewall Pro будет контролировать доступ
вашего компьютера к Интернету или любой другой сети, к которой он подключен.
Рисунок 35 - Настройка Брандмауэра в Outpost Firewall Pro
По умолчанию Outpost Firewall Pro работает в режиме невидимости. В режиме
невидимости ваш компьютер не ответит, как если бы он был не включен или не
подключен к сети. В этом случае, пакеты, отправленные к неиспользуемому порту,
будут игнорироваться системой безопасности без отправки источнику уведомления
ICMP или TCP.
Сетевые
правила
Глобальные правила Outpost Firewall Pro применяются ко всем процессам и
приложениям на компьютере, которые запрашивают доступ в сеть. Например, создав
соответствующие правила, вы можете блокировать весь трафик, идущий по данному
протоколу или с данного удаленного узла. Для того, чтобы просмотреть список
глобальных правил, щелкните на панели инструментов кнопку Настройки, выберите
страницу Сетевые правила и щелкните кнопку Системные Правила:
Рисунок 36 - Просмотр правил в Outpost Firewall Pro
Firewall Pro позволяет контролировать системный трафик, передаваемый
драйверами протоколов, использующими IP протоколы, отличные от TCP и UDP,
транзитные пакеты и другие данные, не относящиеся к приложениям, которые
невозможно контролировать на уровне приложений.
Контроль
активности протокола ICMP
Протокол контроля сообщений Интернет (Internet Control Message Protocol,
ICMP) отправляет предупреждающие сообщения и сообщения об ошибках находящимся в
сети компьютерам. Outpost Firewall Pro позволяет указать типы и направления
разрешенных сообщений ICMP. Чтобы задать настройки ICMP, щелкните Настройки на панели
инструментов - Сетевые правила и щелкните кнопку Настройки ICMP. Если флажка
нет, данное соединение блокируется.
Рисунок 37 - Настройка ICMP в
Outpost Firewall Pro
Обнаружение
локальной сети
Обычно настройки локальной сети компьютера устанавливаются автоматически
во время установки Outpost Firewall Pro. Однако, можно запустить функцию
обнаружения сети в любое время, чтобы нормально общаться с остальными
компьютерами. Чтобы просмотреть список сетей, в которые входит компьютер,
щелкните Настройки на панели управления и выберите страницу Настройки LAN:
Рисунок 38 - Настройки LAN в
Outpost Firewall Pro
Предотвращение
сетевых атак
Компонент Детектор атак обнаруживает, предотвращает и оповещает обо всех
возможных атаках на систему из Интернета и локальной сети, к которой подключен
компьютер. Чтобы активировать компонент Детектор атак отметьте параметр
Включить детектор атак:
Рисунок 39 - Детектор в Outpost Firewall Pro
Настройка уровня обнаружения атак:
· Максимальный. Оповещение об атаке отображается даже если
обнаружено единичное сканирование одного из ваших портов; обнаруживаются и
предотвращаются все атаки как внешней сети, так внутренней.
· Оптимальный. Оповещение об атаке отображается если
просканировано несколько портов или если просканирован один из портов, которые,
по мнению Outpost Firewall Pro, обычно используются для атаки; обнаруживаются
все внешние атаки за исключением атак 'Фрагментированные ICMP-пакеты' и атак
типа 'My address'.
· Низкий. Оповещение об атаке отображается при обнаружении
нескольких попыток атаки; атаки типа 'Фрагментированные ICMP-пакеты' и 'My
address', как и атаки внутренней сети не обнаруживаются.
Сканирование
портов
Компонент Outpost Firewall Pro Детектор атак выполняет две независимые
функции: блокирует атаки и обнаруживает попытки сканирования портов. С точки
зрения безопасности, TCP и UDP порты системы поделены на несколько групп в
соответствии с вероятностью их взлома. Порты, отведенные для таких уязвимых
служб как DCOM или RPC, должны контролироваться более тщательно, так как с
большей вероятностью могут являться целью атаки.

Рисунок 40 - Информация о портах в Outpost Firewall Pro
Блокировка
вредоносных IP-адресов
Помимо блокировки адресов с помощью глобальных правил брандмауэра и
правил для приложений, Outpost Firewall Pro предоставляет еще один инструмент
для гибкого ограничения нежелательного трафика: Блокировка IP.
Рисунок
41 - Блокировка IP в Outpost Firewall Pro
Настройка
уровня Веб-контроля
Если вы хотите настроить определенные параметры, вы можете настроить
уровень защиты вручную. Щелкните кнопку Настройка, и в появившемся окне вы
сможете определить настройки для блокировки интерактивных элементов и рекламы,
содержащихся в загружаемых веб-страницах или электронной почте и новостях,
отдельно.
Рисунок 42 - Настройка уровня Веб-контроля в Outpost Firewall Pro
Реклама и
сайты
В сети Интернет существуют разные сайты, содержащие шпионские программы и
нацеленные на его распространение среди ничего не подозревающих пользователей.
В базе данных Outpost Firewall Pro имеется определенный перечень подобных
сайтов, доступ к которым не желателен, если вы сознательно не намерены
закачивать шпионское ПО. Таким образом, если происходит попытка соединения с
одним из таких сайтов или попытка отправить туда данные, продукт автоматически
блокирует доступ.
Объявления могут блокироваться по трем критериям: по ключевым словам,
найденным в содержимом загружаемой страницы, по размеру рекламного изображения
и согласно данным, собранным с помощью программы Agnitum ImproveNet:

Рисунок 43 - Настройка блокировки вредоносных сайтов и рекламы в Outpost
Firewall Pro
7.3 Спецификация
оборудования
Таблица 1. Спецификация оборудования
|
Оборудование
|
Характеристики
|
|
Коммутатор D-Link DES-1008D/E+ Fast E-net Switch
8-port
|
Основные: · Производитель D-Link · Модель
DES-1008D/E+ · Неуправляемый портативный коммутатор · Uplink · MAC Address Table 1000 адресов на устройство
Конфигурация: · Порты Fast Ethernet 8 портов 10/100 Мбит/сек
Питание: · Блок питания Внешний · Потребление энергии 8 ватт
|
|
Коммутатор D-Link DES-1005D
/ E
|
Основные характеристики: · Тип сети
Fast Ethernet, Ethernet · Кол-во базовых портов 5 · MDI 1 порт ·
Скорость передачи по UPLINK 100
Мбит/сек. · Индикаторы - активное соединение · Поддерживаемые стандарты - IEEE 802.3 (Ethernet) - IEEE 802.3u (Fast Ethernet) - IEEE 802.3x (Flow Control) Дополнительные характеристики: · Размер таблицы MAC адресов (L2) 8000 · Методы
коммутации store-and-forward · Скорость пересылки
148800пакетов/сек · Устройство хранения - 2 МБ · Сертификаты CE Mark, CSA C22.2 No. 950, FCC Часть 15 Класс B, TUV-GS
- ZH1/618, UL-1950 Технические характеристики: · Среда
передачи Ethernet 10baseT: категория 3/4/5 НВП, скорость передачи до 10
Мбит/сек, длина сегмента до 100 м Ethernet 100BaseTX: категория 5 НВП,
скорость передачи до 100 Мбит/сек, длина сегмента до 100 м · Интерфейсы 5 x
Ethernet 10/100BaseT • RJ-45
|
|
Acorp
Sprinter@ADSL LAN 420i
|
Основные: · ADSL
- ADSL2+ · Протоколы PPPoA,
PPPoE · Поддержка IGMP
(Multicast) · DMZ · NAT Поддерживается · DHCP-сервер
Параметры производительности: · Скорость передачи
данных 24 Мбит/сек для входящего трафика, 1 Мбит/сек для исходящего трафика
Конфигурация: · Порты Fast Ethernet 4
порта 10/100 Мбит/сек ·
Порты WAN 1 порт RJ-11
Интерфейс: · Индикаторы Power, ADSL, LAN
Питание: · Блок питания Внешний
|
|
Canon PIXMA
MP550
|
Основные: · Тип оборудования МФУ (принтер/сканер/копир) · Технология печати Струйная · Кол-во цветов 4 · Объем капли 1 пиколитр · Разрешение
цветной печати 9600 x 2400 dpi · ЖК-дисплей, TFT,
цветной, 5 см · Тип установки картриджа 5 раздельных картриджей · Прямая печать - Возможна прямая печать фотографий с цифровых фото- и
видеокамер, совместимых со стандартом PictBridge · Скорость печати 39 секунд (фото 10 x 15 см, без полей, в стандартном
режиме) · Скорость печати (ISO/IEC 24734) 9.2 изобр./мин.
(ч/б), 6 изобр./мин. (цветная) · Функции сканера:
Push-scan, режим автоматического сканирования, сканирование на
USB-накопитель, сканирование на карту памяти, функция Multi-Scan, создание/
редактирование/защита паролем PDF (функция доступна при использовании решения
MP Navigator EX), устранение муара, нерезкая маска, съемка панорам (функция
доступна при использовании решения MP Navigator EX), правильная ориентация
документа, предотвращение отображения просвечивающих
изображений/текста,функция коррекции угла наклона документа, функции
коррекции фотографий (коррекция выцветания, коррекция зернистости
изображения, устранение следов пыли и царапин, коррекция контрового цвета,
автоматическое тонирование), функция коррекции глубоких теней, текст
(оптическое распознавание символов) · Функции
копирования: Автоматическая регулировка интенсивности (копирование с
автоматической экспозицией), регулировка интенсивности вручную, повтор
изображения, копирование с масштабированием по размеру страницы, копирование
«в край» (без полей), копирование на наклейки, копирование «2-на-1»,
копирование «4-на-1», копирование со стиранием рамки, стирание теней, функция
обрезки/наложения маски на копию, функция повторной фотопечати, функция
восстановления выцветших документов, повышение яркости лица, ручная
регулировка цвета (яркость, контрастность, оттенки), коррекция глубоких теней
на копии, функция автоматической коррекции фотографий Auto Photo Fix II · Ширина области сканирования 210 мм (A4) или 216 мм (Letter)
Интерфейс: · Слоты для карт памяти CF, SD HC, SD, microSD HC,
microSD, miniSD HC, miniSD, MMCplus, MMC, RS-MMC, MS Duo, MS Micro (M2), MS
Pro Duo, MS Pro, MS, xD Type H, xD Type M, xD, USB Flash Drive · Интерфейс USB 2.0 · Bluetooth Bluetooth 2.0 · Податчик бумаги 150 листов (задний лоток), 150 листов (кассета) · Плотность бумаги 64-105 г/м2 (обычная бумага) и рекомендованные Canon
специальные материалы для печати плотностью до 300 г/м2 - задний лоток;
64-105 г/м2 (обычная бумага) - кассета · Максимальная
плотность бумаги 300 г/м2 Расходные материалы / заменяемые компоненты: · Картридж черный PGI-520BK, CLI-521BK · Ресурс
картриджа (ISO) Черный: 324 страниц, голубой: 535 страниц, пурпурный: 510
страниц, желтый: 530 страниц · Картридж цветной
CLI-521C (голубой), CLI-521M (пурпурный), CLI-521Y (желтый) Копир: · Число копий 99 копий · Масштабирование
25-400% с шагом 1% и предварительно заданные коэффициенты · Первая копия 26 секунд Сканер: · Оптическое
разрешение 2400 x 4800 dpi · Сканирующий элемент CIS · Глубина цвета 48 бит/24 бита (16 бит на входе/8 бит на выходе для
каждого из цветов RGB) · Уровень шума 44.5 дБ(A) при
печати с подачей из заднего лотка
|
|
DEPO Race X140
|
Процессор: Intel Core 2 Duo Processor E8400
(3.00GHz, 1333MHz FSB, 6MB) Дисковая
подсистема: SATA Оперативная память: до 8 Гб DDR2-800
Dual Channel Сетевая карта: интегрированная Gigabit Ethernet 10/100/1000BASE-TX
|
8. Подсчет
затрат на реализацию
Таблица 2. Подсчет затрат на оборудование и ПО
|
Оборудование и программное
обеспечение
|
Количество
|
Цена, руб
|
|
Acorp
Sprinter@ADSL LAN 420i
|
5
|
5 819
|
|
Canon PIXMA
MP550
|
5
|
25 590
|
|
Сервер DEPO Race X140
|
5
|
100 485
|
|
Коммутатор
D-Link DES-1008D/E+ Fast E-net Switch 8-port
|
5
|
3 170
|
|
Коммутатор
D-Link DES-1005D / E
|
3
|
2 040
|
|
Кабель UTP
5Е кат. (200м)
|
1
|
1 600
|
|
Коннектор RJ-45
|
40
|
200
|
|
Клещи обжимные
|
1
|
350
|
|
Короб пластиковый
|
100
|
6 300
|
|
Розетка
|
10
|
410
|
|
Стоимость подключение к
сети Интернет провайдером
|
|
1
|
|
Абонентская плата в год по
выбранному тарифу
|
|
12 500
|
|
Операционная система Microsoft Windows XP Professional SP3
|
10
|
53 680
|
|
Операционная система Microsoft Windows Server 2003
|
3
|
37 800
|
|
Outpost Firewall
Pro
|
13
|
10 446
|
|
MS SQL Server
Standard Edition
|
3
|
13 080
|
|
Итого
|
|
267 652
|
9. Заключение
Задачей данной курсовой работы явилось построение вычислительной сети,
соединяющей пять магазинов в черте города и трех оптовых складов.
На начальном этапе выполнения работы была проанализирована предметная
область, определены информационные потоки информации, их объемные и частотные
характеристики, характер необходимого программного обеспечения.
Следствием информационного анализа предметной области стал вывод об информационной
загруженности каналов взаимодействия служб сети магазинов и оптовых складов,
что послужило основой для принятия решения о необходимой пропускной способности
локальной сети.
Далее, исходя из решения пропускной способности и необходимого качества
связи, были рассмотрены используемые на данный момент технологии построения
локальных сетей, в результате чего была выбрана технология Fast Ethernet.
Затем появилась задача объединения локальных сетей каждого из филиалов в
единую сеть розничной торговли, для обеспечения их взаимодействия.
Как и с выбором технологии построения локальной сети, были
проанализированы возможные варианты реализации подключения и обоснован выбор
VPN-канал через Интернет с доступом в глобальную сеть через ADSL.
На следующем этапе было рассмотрение необходимости реализации разделяемых
ресурсов. Было выбрано построение архитектуры клиент-сервер, для обеспечения
доступа к базе данных, к принтеру, у которых предусмотрела сетевая печать,
файл-серверу.
В заключение были приведены полные спецификации всего использованного
активного и пассивного сетевого оборудования и произведен расчет стоимости
реализации проекта.
10. Список
литературы
1. Олифер
В.Г., Олифер Н.А. Компьютерные сети. Принципы, технологии, протоколы: Учебник
для вузов. 4-е изд. - Спб.: Питер,2010. - 944 с.:ил.
2. <#"511752.files/image056.gif">
Приложение Б
Физическая схема
|
Обозначение
|
      X-UTP
|
|
|
|
|
|
|
|
|
Расшифровка
|
Рабочая старция
|
Сетевой принтер
|
Коммутатор
|
Вертикальная укладка кабеля
UTP в коробе
|
Розетка RJ-45
|
Кабель UTP (гориз.
укладка)
|
Маршрутизатор (adsl-модем)
|
Количество кабеля UTP
в коробе
|