Проектирование конструктивно-силовых элементов и систем стратегического военно-транспортного самолета TAR-1
Министерство
образования и науки Украины
Кафедра проектирования самолетов и
вертолетов
Пояснительная записка
на выпускную работу бакалавра
на тему
"Проектирование
конструктивно-силовых элементов и систем стратегического военно-транспортного
самолета TAR-1"
Выполнил студент 141 группы
Тарасенко А.Р.
Руководитель выпускной работы
Федотов М.Н.
Харьков 2010
Содержание
Реферат
Раздел 1. Статистическое проектирование облика самолета
1.1 Введение, назначение, тактико-технические требования к
самолету, условия его производства и эксплуатации
1.2 Сбор и обработка статистических данных, их анализ
.3 Техническое описание самолетов прототипов
.3.1 Военно-транспортый самоет С-17 Globemaster III
1.3.2 Lockheed C-141 Starlifter
.3.3 ИЛ-76 ОКБ С.В. Илюшина
1.3.4 Ил - 76М ОКБ С.В. Илюшина
.3.5 Ил - 76МД ОКБ С.В. Илюшина
.3.6 АН-124-210 ОКБ О.К.Антонова
1.3.7 Ан - 124 - 100М ОКБ О.К.Антонова
1.3.8 747-400 Freighter Boeing
.3.9 747 - 400 Combi Boeing
.3.10 757 - 200 Freighter Boeing
1.3.11 767 - 300 Freighter Boeing
.4 Разработка тактико-технических требований
.5 Выбор и обоснование схемы самолета и его основных
параметров
.6 Определение взлетной массы самолета.
.7 Определение геометрических параметров самолета
1.8 Определение параметров шасси
.9 Расчет конструктивно-силовой схемы самолета
.9.1 Расчет пояса условного лонжерона
1.9.2 Выбор конструктивно-силовой схемы крыла
.9.3 Выбор конструктивно-силовой схемы фюзеляжа
Раздел 2. Проектирование конструктивно-силовых элементов
агрегатов самолета
2.1 Проектирование отсека лонжерона
.1.1 Исходные данные
.1.2 Проектирование поясов лонжерона
.1.3 Проектирование стенки лонжерона
.2 Проектирование участка панели
.2.1 Исходные данные
2.2.2 Расчет панели
.3 Проектирование шасси
.3.1 Проектирование и расчет на прочность шасси
2.3.2 Определение основных размеров жидкосно-газового
амортизатора
2.3.3 Определение основных поперечных размеров амортизатора
.3.4 Определение предельного хода амортизатора и перегрузки
.3.5 Определение высоты жидкости над верхней буксой
.3.6 Определение длины амортизатора в необжатом состоянии
.3.7 Определение нагрузок на стойку
.3.8 Подбор параметров поперечного сечения элементов
.4 Разработка компоновочной схемы силовой установки самолета
.4.1 Топливная система
.4.2 Расчет дренажной системы
.4.3 Расчет системы аварийного слива и заправки топлива
.4.4 Требования к маслосистеме
.4.5 Проектирование противопожарной системы
2.4.6 Система крепления двигателя
Раздел 3. Проектирование систем обеспечения жизнедеятельности
экипажа
3.1 Система аварийной эвакуации
.2 Требования к системе эвакуации
Раздел 4. Экономическая часть
4.1 Затраты на проектирование самолета
.2 Затраты на изготовление опытных образцов
.3 Затраты на испытания и доводку опытных образцов
Раздел 5. Технологическая часть
5.1 Выбор заготовки для заданной детали и обоснование метода
её изготовления
5.2 Оценка технологичности
.3 Расчет операционных припусков и определение размеров
заготовки
.4 Выбор технологических баз для установки детали при её
обработке
.5 Составление техпроцесса обработки детали
5.6 Разработка технологических операций обработки детали
Список использованной литературы
Реферат
Цель работы - спроектировать общий вид стратегического
военно-транспортного самолёта, его конструктивно-силовую схему, силовую
установку, кинематическую схему выпуска и уборки шасси, лонжерон и монолитную
панель минимальной массы, рассчитать технико-экономические показатели
проектируемого самолёта и провести анализ его безопасности, спроектировать
техпроцесс механической обработки детали.
Методы исследования:
статистический анализ, расчёт.
В выпускной работе разработан общий вид самолёта, конструктивно-силовая
схема, показана увязка основных агрегатов, спроектирована топливная система,
проведены основные расчёты её систем, выбрана кинематическая схема выпуска и
уборки шасси и рассчитаны параметры ее тяги, подобраны монолитная панель и
лонжерон минимальной массы, рассчитаны технико-экономические показатели и
проведен анализ безопасности проектируемого самолёта, спроектирован техпроцесс
механической обработки детали.
Выпускная работа бакалавра содержит:
страниц - 96
рисунков - 32
таблиц - 16
приложений - 9.
Реферат
Мета роботи - спроектувати загальний вид стратегічного воєнно
транспортнго літака, його конструктивно-силову схему, силову установку,
кінематичну схему випуску та ховання шасі, лонжерон і монолітну панель
мінімальної маси, розрахувати техніко-економічні показники проектованого літака
і провести аналіз його безпеки, спроектувати техпроцес механічної обробки
деталі.
Методи дослідження :
статистичний аналіз, розрахунок.
У випускній роботі розроблений загальний вид літака, конструктивно-силова
схема, показана ув'язка основних агрегатів, спроектована силова установка,
проведені основні розрахунки її систем, обрана кінематична схема випуску та
ховання шасі і проведений розрахунок тяги, підібрані монолітна панель і
лонжерон мінімальної маси, розраховані техніко-економічні показники і
проведений аналіз безпеки проектованого літака, спроектований техпроцес
холодного штампування деталі.
Випускна робота бакалавра містить:
сторінок - 96
малюнків - 32
таблиць - 16
додатків - 9.
The annotation
purpose of work - to create a general view of the strategic military-cargo plane and
its constructive-power layout, to design power plant, control system, spar and
monolithic panel of minimal weight, to calculate technical and economic
parameters of the projected plane and to carry out the analysis of its safety,
to design cold punching technological process of a detail.of research are
statistical analysis and calculation.graduate work the general view of the
plane and its constructive-power layout is developed, co-ordination of the
basic plane units is shown, the power plant is designed and its systems basic
calculation are carried out, the control system scheme is chosen and the
calculation of its control rod carried out, the monolithic panel and spar of
minimal weight are selected, the technical and economic parameters are
calculated and the analysis of the projected plane safety is carried out,
mechanical treatment technological process of a detail is created.activity of
the bachelor contains:- 96- 32- 16- 9.
Раздел
1. Статистическое
проектирование облика самолета
.1 Введение. Назначение, тактико-технические
требования к самолету, условия его производства и эксплуатации
Транспортные самолеты служат для перевозки грузов и различной техники на
большие расстояния. Военно-транспортные самолеты должны иметь большую дальность
для доставки любой техники армии и переброски десанта, а также для перевозки
военных и народнохозяйственных грузов.Могут применяться в поисково-спасательном
варианте, воздушно-командного пункта.
Поэтому они должны обладать высокими показателями надежности, живучести,
эксплуатационными качествами, технологичностью изготовления.
Проектируемый самолет предназначен для применения в гражданских условиях,
но в случае военных действий также может быть применен для стратегических
перевозок:: войск, оружия, военной техники и грузов, а также для их
десантирования посадочным и парашютным способами.
Важнейшим преимуществом новой машины должно быть возможность осуществлять
как стратегические, так и тактические перевозки, в том числе доставлять тяжелые
и крупногабаритные грузы непосредственно в район боевых действий с посадкой на
слабо оборудованных аэродромах. Для этого он должен иметь возможность садиться
как на аэродромы с бетонным покрытием, так и на неподготовленные грунтовые
аэродромы. Также самолет должен иметь минимальную длину разбега и пробега,
минимальное время загрузки/выгрузки грузов для уменьшения времени пребывания на
аэродроме во избежание поражения наземными атаками противника. Первое можно
обеспечить установкой на самолете многоопорного шасси с соответствующими
пневматиками. Второе можно обеспечит за счет достаточной механизации и мощной
силовой установки с реверсом тяги.
В данном самолете предусмотрена возможность переоборудования из
гражданского транспортного самолета в стратегический военно-транспортный самолет-ракетоносец -
"воздушный космодром". Суть его в том, что ракета-носитель на большой высоте выстреливается
из контейнера, установленного в грузовом отсеке данного транспортного самолета,
а затем происходит запуск стартового двигателя и ракета уходит в космос. При
всей внешней простоте этой схемы до сих пор ни одной стране в мире не удалось
перейти от теории к практике.
Так как мобильность таких самолетов в несколько раз превышает мобильность
подводных лодок, авто- и железнодорожных носителей, то при необходимости каждый
из самолетов нес бы огромную баллистическую ракету, которая, стартовав в любой неведомой
точке, летела бы в сторону противника по совершенно непредсказуемой траектории.
1.2 Сбор и обработка статистических данных, их анализ
Для ознакомления с новейшими достижениями в области проектирования
самолетов данного типа и тенденциями развития самолетов необходим собрать и
обработать статистические данные.
Для выполнения задания в таблицу №1 заносим тактико-технические данные
проектируемого самолета.
Тактико-технические данные проектируемого самолет
Таблица 1.
|
Тип самолета
|
Тип двигателя
|
L, км
|
mгр, кг
|
|
Стратегический
военно-траспортный самолет-ракетоносец "Воздушный космодром").
|
ТРДД
|
6000
|
80 000
|
1.3 Техническое описание самолетов-прототипов
1.3.1 Военно-транспортый самоет С-17 Globemaster III
После оценки проектных предложений компания Макдоннелл-Дуглас в 1980 г.
была выбрана в качестве главного разработчика грузового транспортного самолета
с большой дальностью полета, обозначенного С-17 Globemaster III.Схема самолета
на Рис.2. Новый самолет должен был иметь грузоподъемность самолета С-5 Гэлэкси
c возможностью укороченного взлета и посадки самолета С-130 Геркулес.
Разработка проекта прерывалась, и три самолета были официально заказаны только
в декабре 1985 г., а строительство летного образца было начато в ноябре 1987 г.
и закончено в декабре 1990 г. Первый полет был совершен ъ15 сентября 1991 г. -
аппарат поднялся в воздух в Лонг Биче и совершил посадку на авиационной базе
Эдвардс. Первый серийный самолет был включен в программу испытаний 18 мая 1992
г., к тому времени запросы ВВС США сократились с 210 до 120 самолетов. Военный
реактивный транспортный самолет с четырьмя двигателями, высоким расположением
крыла и с Т-образным хвостовым оперением С-17А отличается системой закрылков со
сдувом пограничного слоя, разработанной для самолета YC-15. При взлете и
посадке закрылки выдвигались, попадая в реактивную струю, выходящую из
установленных в гондолах двигателей. Самолет оснащен системой
электродистанционного управления компании General Electrodynamics Corporation -
GEC. Предполагается, что он будет действовать с взлетно-посадочных полос длиной
915 м и сможет осуществлять дозаправку в воздухе. Экипаж самолета состоит из
двух пилотов и оператора погрузочно-разгрузочных работ. Самолет может
перевозить до 102 парашютистов, в то время как в основном грузовом отсеке могут
размещаться штурмовые вертолеты АН-64 Apache, боевые танки М1 Abrams или
пятитонные грузовики. Загрузка осуществляется через усиленную заднюю грузовую
рампу с гидравлическим приводом, выдерживающую нагрузку до 18150 кг.
Кабина экипажа находится в передней части фюзеляжа. Здесь смонтирована
большая часть бортового радиоэлектронного оборудования, включающего в себя
систему контроля параметров полета фирмы Сперри с двумя компьютерами и четырьмя
многофункциональными цветными экранными индикаторами, обзорную РЛС AN/APS-133
(V) для навигации и обхода грозовых районов, систему обнаружения, анализа и
регистрации неисправностей фирмы Ханиуэлл, навигационный вычислительный
комплекс фирмы Делко электронике и другую аппаратуру, позволяющую совершать полеты
в сложных метеорологических условиях в любое время суток.
В конструкции самолета реализованы последние достижения в области
аэродинамики, электроники и материаловедения. Важнейшим преимуществом этой
новой машины является возможность осуществлять как стратегические, так и
тактические перевозки, в том числе доставлять тяжелые и крупногабаритные грузы
непосредственно в район боевых действий с посадкой на слабооборудованных
аэродромах.
Всего для ВВС США планируется поставить 120-170 таких самолетов,благодаря
чему потенциально реализуемый объем стратегических воздушных перевозок
командования воздушных перевозок ВВС США к 2000 году возрастет почти на 45 процeнтов и достигнет 96 млн.
тонно-километров в сутки.
Тактико-технические характеристики самолета:
Год принятия на вооружение - 1994
Размах крыла - 50,29 м
Длина самолета - 53,04 м
Высота самолета - 16,79 м
Площадь крыла - 353,02 кв.м
Масса, кг - пустого самолета - 122000
- максимальная взлетная - 263080
Внутреннее топливо - 102615 л
Тип двигателя - 4 ТВД Pratt & Whitney F117-P-100
Тяга - 4 х 18920 даН
Крейсерская скорость - 829 км/ч
Практическая дальность - 8710 км
Дальность действия - 925-3520 км
Практический потолок - 13715 м
Экипаж - 3-4 чел
Полезная нагрузка: 144 солдата или 102 парашютиста или 48 носилок и 102
сидячих раненных с сопровождающими или 78108 кг груза. Типовая нагрузка - 56245
кг.
.3.2 Lockheed C-141 Starlifter
Военно-транспортный самолет
Самолет C-141 Starlifter
предназначен для стратегических перевозок войск, оружия, военной техники и
грузов, а также для их десантирования посадочным и парашютным способами. Наряду
с С-5В Гэлекси он является основным самолетом командования воздушных перевозок
ВВС.
Разработка самолета была начата в 1960 году в соответствии с
тактико-техническими требованиями SOR.182. В конкурсе проектов нового самолета
принимали участие фирмы Локхид, Боинг, Дуглас и Конвэр. В результате оценки
проектов, предложенных этими фирмами, победительницей конкурса была признана
фирма Локхид, которой в марте 1961 года был выдан заказ на разработку и
постройку пяти опытных самолетов, получивших обозначение С-141А (Lockheed Model
300. Опытный самолет С-141А совершил первый полет в декабре 1963 года. Первый
серийный самолет был передан ВВС США в апреле 1965 г., а поставка всех
заказанных ВВС США 294 самолетов была завершена в феврале 1968 года.
Конструктивно самолет С-141А выполнен по нормальной схеме с
высокорасположенным стреловидным крылом, Т-образным хвостовым оперением и
четырьмя турбореактивными Двигателями, установленными на пилонах под
крылом.(См. схему самолета на Рис. 4.)
Фюзеляж самолета спроектирован по принципу безопасно повреждаемой
конструкции и выполнен с применением алюминиевого сплава с высокой
трещиностойкостью. Имеются ограничители трещин в виде накладок из титана. В
передней части фюзеляжа находится кабина экипажа, под полом которой имеется
дополнительное помещение для кухни, гардероба и туалета, а также отсек
электронного оборудования. Вся остальная часть фюзеляжа занята герметизированной
грузовой кабиной.
Крыло имеет кессонную конструкцию с двумя основными лонжеронами,
форменными нервюрами и обшивкой из механически обработанных панелей.
Механизация крыла состоит из закрылков Фаулера общей площадью 49,15 м2.
Силовая установка состоит из четырех турбореактивных двухконтурных
двигателей TF33-P-7 с максимальной тягой по 9525 кгс каждый. Общая вместимость
топливных баков составляет 89300 литров.
В ходе эксплуатации самолета С-141А и особенно во время военного
конфликта между Египтом и Израилем в конце 1973 г., когда США, оказывая
поддержку Израилю, перевезли на самолетах С-141А, выполнивших 421 полет, более
9100 т. боевой техники и снаряжения, выявилось, что фактором, ограничивающим
возможности переброски грузов на этом самолете, является не его
грузоподъемность, а объем грузовой кабины. Ограниченная прочностью конструкции
перевозимая нагрузка превышала 30 т, в то время как грузовая кабина могла
вместить только 10 стандартных платформ со средней массой размещаемых на них
грузов, равной лишь 21 т.
По этой причине в период с 1979 по 1982 год была проведена модернизация
самолета, заключавшаяся главным образом в удлинении фюзеляжа путем установки
дополнительных секций длиной 4,06 м перед крылом и 3,05 м за ним. В ходе
модернизации самолет был оснащен также универсальной системой дозаправки
топливом в воздухе, на нем было установлено более современное
пилотажно-навигационное оборудование. Эта модификация самолета получила
обозначение С-141В. Грузовая кабина этой модификации имеет длину 28,44 м, ширину
3,10 м и высоту 2,80 м. Объем грузовой кабины увеличен таким образом на 30
проц., вследствие чего самолет способен перевозить (варианты): 154 солдата с
личным оружием; 123 десантника; 80 носилочных раненых с восемью
сопровождающими; 13 стандартных грузовых платформ 463L, один легкий танк, две
155-мм буксируемые гаубицы; два 5-т грузовых автомобиля с 1,5-т прицепами; по
два вертолета АН-64А Апач, UH-60A Блэк Хок, АН-IS Кобра-Тоу или UH-1 Ирокез;
шесть разведывательных вертолетов ОН-58 Кайова. Погрузка, выгрузка и
сбрасывание грузов осуществляется через грузовой люк в хвостовой части фюзеляжа
размером 3,15 х 2,77 м, десантирование парашютистов - в два потока через
боковые двери.
Бортовое радиоэлектронное оборудование самолета позволяет совершать
полеты в сложных метеорологических условиях и точно выходить в заданную точку.
Основой комплексной навигационной системы является цифровая ЭВМ AN/ASN-24,
которая быстро и точно выдает географические координаты места самолета, его
курс и расстояние до заданного пункта и командную информацию для управления
самолетом. Она позволяет также автоматизировать работу таких вспомогательных
навигационных устройств, как система Лоран С и астропеленгатор. Установленная
на самолете доплеровская РЛС с ЭВМ AN/ASN-35 аналогична РЛС, которой оснащены
другие военно-транспортные самолеты ВВС США. Она имеет хорошие характеристики в
полете самолета на малой высоте и при выполнении им маневров. Самолет оснащен
также обзорной РЛС AN/APN-59B, предназначенной для навигации и обхода грозовых районов,
гиромагнитным компасом, радиовысотомером, астронавигационным оборудованием,
включая стандартное для военно-транспортных самолетов ВВС США связное
оборудование.
Начиная со второй половины 90-х годов на самолетах устанавливаются новые
автопилоты, цветные многофункциональные индикаторы (размер экрана 100х150 мм) и
системы предупреждения об опасной близости земли.
Модификации самолета:А - первая серийная модификация.В - модификация с
увеличенными размерами фюзеляжа, крыльев и грузового отсека.
Тактико-технические характеристики C-141:
.3.3 ИЛ-76 ОКБ С.В. Илюшина
Военно-транспортный самолет.
Самолет предназначен для десантирования личного состава и техники
парашютным и посадочным способом, а также для перевозки военных и
народнохозяйственных грузов. Разработка самолета начата в конце 1960-х годов.
Полет первого опытного самолета состоялся 25 марта 1971 г., серийное
производство начато в 1975 г. На начало 1992 г. построено около 700 самолетов.
На базе самолета Ил-76(Рис.5, схема самолета на рис 6.) созданы
самолеты-ВКП и летающие лаборатории различного назначения. Прорабатывались
варианты использования самолета в качестве носителя ракет для запуска ИСЗ. На
основе самолета Ил-76 в Ираке в 1988 г. создан самолет ДРЛО "Адан" 1
с РЛС Томпсон-CSF "Тайгер" (французского производства, дальность
обнаружения целей класса истребитель 350 км), а также самолет-заправщик
(способен одновременно заправлять один самолет по методу шланг - конус). Несколько
самолетов Ил-76 ВВС Индии переоборудованы в самолеты радиотехнической разведки.
Рис. 6
Вооружение: Две пушки ГШ-23Л (23 мм) в кормовой установке,
унифицированной с бомбардировщиком Ту-95МС. В грузовом отсеке могут размещаться
бомбы сверхбольшой мощности (калибром до 10 000 кг), сбрасываемые парашютным
способом.
Модификации:
Ил-76 (1975 г.), Ил-76М, Ил-76МД, Ил-76МФ - военно-транспортные самолеты;
Ил-76Т, Ил-76ТД (1982 г.) - транспортные самолеты, предназначенные для
использования в ГВФ;
Ил-76ТДП (1990 г.) - пожарный самолет;
Ил-76ЛЛ (1991 г.) - летающая лаборатория для отработки перспективных
двигателей;
Ил-78 - самолет-заправщик;
А-50 - самолет ДРЛО.
Оборудование
Навигационная РЛС (под кабиной штурмана), метеорологическая РЛС (в носу),
БЦВМ. Самолет имеет герметизированную грузовую кабину, опускающуюся грузовую
рампу, две тяговые грузовые лебедки, расположенные у передней стенки грузовой
кабины, четыре электротельфера, по два с каждого борта (задние электротельферы
могут выдвигаться на 5 м за порог рампы), четыре переставляемых по ширине рампы
подтрапника.В грузовой кабине возможна установка трех пассажирских модулей,
выполненных в виде стандартных контейнеров (пассажировместимость каждого модуля
30 человек).
Имеются контейнеры с ИК ложными целями (192 патрона калибром 50 мм).
Ил-76ТДП способен брать на борт до 44000 кг воды и покрывать ей площадь 500Х100
м в течение 6с или сбрасывать на очаг пожара 44 пожарных-парашютистов и 5000 кг
спецоборудования (стандартный самолет Ил-76 может быть переоборудован в
Ил-76ТДП в течение 4 ч). Ил-76ЛЛ оснащен оборудованием для летных испытаний
двигателей Д-ЗОКП, НК-86, ПС-90А, Д-18Т, Д-23б и других перспективных силовых
установок (испытываемый двигатель подвешивается на пилоне под крылом вместо
одного из штатных двигателей).
Двигатели
ТРДД Д-ЗОКП (4Х117,7 кН/4Х12000 даН)
или ПС-90 (Ил-76МФ, 4Х156,9 кН/16000 даН).
Состояние
Находится на вооружении ВВС стран СНГ, Ливии, Сирии, Ирака, Индии.
Строится серийно на Ташкентском авиазаводе.
Размах крыла (м) 50,50
длина самолета (м)46,59
высота (м)14,76
площадь крыла (кв.м)300
Число мест
экипаж7
Размеры пассажирской кабины
длина (м)20(24,50 м с рампой)
максимальная ширина (м)3,40
максимальная высота (м)3,46
Массы и нагрузки
взлетная (т)170
платная нагрузка (т)58
посадочная (т)151,5
Летные данные
крейсерская скорость (км/ч)750-800
дальность полета с максимальной платной нагрузкой (с резервами
топлива)3650
с платной нагрузкой (т) 20 дальность с платной нагрузкой (резервы те же)
4200 км.
Эксплуатационный потолок (м)1200
потребная длина ВПП (условия МСА, на уровне моря) (м)850/450
1.3.4 Ил - 76М ОКБ С.В. Илюшина
Военно-транспортный самолет.
Самолет имеет герметизированную грузовую кабину, опускающуюся грузовую
рампу, две тяговые грузовые лебедки, расположенные у передней стенки грузовой
кабины, четыре электротельфера, по два с каждого борта (задние электротельферы
могут выдвигаться на 5 м за порог рампы), четыре переставляемых по ширине рампы
подтрапника.В грузовой кабине возможна установка трех пассажирских модулей,
выполненных в виде стандартных контейнеров (пассажировместимость каждого модуля
30 человек). Имеются контейнеры с ИК ложными целями (192 патрона калибром 50
мм).
Две пушки ГШ-23Л (23 мм) в кормовой установке, унифицированной с
бомбардировщиком Ту-95МС. В грузовом отсеке могут размещаться бомбы
сверхбольшой мощности (калибром до 10 000 кг), сбрасываемые парашютным
способом.
Оборудование
Навигационная РЛС (под кабиной штурмана), метеорологическая РЛС (в носу),
БЦВМ.
Двигатели
ТРДД Д-ЗОКП-2 (4Х117,7 кН/4Х12000 даН)
Состояние
Находится на вооружении ВВС стран СНГ, Ливии, Сирии, Ирака, Индии.
Строится серийно на Ташкентском авиазаводе.
Размеры
размах крыла (м)50,5
длина самолета (м)46,59
высота (м)14,76
площадь крыла (кв.м)300
Число мест
экипаж5-7
Размеры пассажирской кабины
длина (м)20(24,50 м с рампой)
максимальная ширина (м)3,40
максимальная высота (м)3,46
Массы и нагрузки
взлетная (т)170
пустого снаряженного (т)104
платная нагрузка (т) 42
посадочная (т) 150
запас топлива (т) 80000
Летные данные
крейсерская скорость (км/ч) 800
дальность полета с максимальной платной нагрузкой (с резервами топлива)
5000
эксплуатационный потолок (м) 12000
1.3.5 Ил - 76МД ОКБ С.В. Илюшина
Военно-транспортный самолет.
Оборудование
Навигационная РЛС (под кабиной штурмана), метеорологическая РЛС (в носу),
БЦВМ.
Двигатели
ТРДД Д-ЗОКП-2 Пермского завода "Авиадвигатель" (4Х117,7 кН,
4Х12000 кгс).
Размеры
размах крыла (м) - 50,5
длина самолета (м) - 46,59
высота (м) - 14,76
площадь крыла (кв.м) - 300
Число мест
Экипаж - 7
1.3.6. АН-124-210 ОКБ О.К.Антонова
Тяжелый дальний широкофюзеляжный грузовой самолет
Некоторые
размеры и данные самолета АН124-100М
1.3.7 Ан - 124 - 100М ОКБ О.К.Антонова
Тяжелый дальний широкофюзеляжный грузовой самолет
Самолет Ан-124-100М для коммерческих грузовых перевозок создан и
сертифицирован на базе военно-транспортного самолета Ан-124. В настоящее время
совместно с АО "Авиастар" создается модификация самолета Ан-124-100М,
на котором применяется более совершенное отечественное (СНГ) оборудование и
оборудование фирм Collins и Litton, что позволяет уменьшить число членов
экипажа до 4-х человек, повысить безопасность полетов и точность навигации.
Гондолы двигателей оборудованы звукопоглощающими элементами, обеспечивающими
соответствие требованиям главы 3 приложения 16 стандартов ИКАО по уровню шума
на местности.
Тяжелый дальний военно-транспортный самолет Ан-124 "Руслан"
(обозначение НАТО - "Condor", Рис 9,10), созданный в ОКБ имени О.К.
Антонова, на сегодняшний день самый большой самолет военно-транспортной авиации
в мире. Он предназначен для перевозки на большую дальность штатной боевой и
обеспечивающей техники мотострелковой и воздушно-десантной дивизии, парашютного
десантирования грузов и боевой техники с расчетами, перевозки крупногабаритных
и тяжелых народно-хозяйственных грузов.
Свой первый полет опытный образец "Руслана" совершил 21 декабря
1982 г. в Киеве. Машину поднял экипаж в составе летчиков-испытателей В.И.
Терского (командир корабля) и А.В. Галуненко, бортинженеров А.М. Шулещенко и
В.М. Воротникова, штурмана А.П. Поддубного, бортрадиста М.А. Тупчиенко, ведущих
инженеров по испытаниям М.Г. Харченко и B.C. Михайлова. Серийное производство
самолета было развернуто на КиАПО и Ульяновском АПК АО "АВИАСТАР".
Ан-124(схема самолета см. на Рис.11.) выполнен по обычной для тяжелых
военно-транспортных самолетов схеме высокоплана со стреловидным крылом
сравнительно большого удлинения, однокилевым хвостовым оперением и
многоколесным убирающимся в полете шасси. В конструкции планера самолета широко
используются композиционные материалы.
Фюзеляж самолета разделен на две палубы и в интересах удобства
обслуживания, ремонта и увеличения ресурса разбит на ряд герметичных отсеков
специализированного назначения: грузовая кабина для размещения перевозимой
техники и грузов, верхняя передняя палуба для размещения основного и сменного
экипажей (по 7 чел.) и оборудования, верхняя задняя палуба для размещения
людей, сопровождающих технику и грузы (80 чел.). Наддув грузовой кабины
обеспечивает перепад давления не менее 25 кПа. Это позволяет перевозить
пассажиров на высоте 8000 м без кислородного оборудования.
Благодаря наличию переднего (откидывающаяся носовая часть) и заднего
грузовых люков обеспечивается возможность оперативно осуществлять погрузку и
выгрузку нестандартных грузов с обоих направлений. Герметичная грузовая кабина
(длина 36,5 м, без рампы - 26,5 м, ширина 6,4 м, высота 4,4 м) обеспечивает перевозку
грузов общей массой до 120 т, парашютное десантирование грузов общей массой до
100 т на платформах, а также специально подготовленных грузов и техники,
исключающих применение платформ. Объем грузовой кабины превышает 1000 м3.
Выполненный из титанового сплава пол грузовой кабины допускает погрузку всех
видов самоходной и несамоходной колесной и гусеничной техники с нагрузкой на
ось до 12 т при размещении в один ряд и до 10 т при размещении в два ряда.
Кабина оборудована двумя бортовыми погрузочными кранами грузоподъемностью по 10
т и передвижными напольными электрическими лебедками с тяговым усилием до 4,5 т
каждая. Имеющееся на самолете роликовое оборудование позволяет загружать и
выгружать моногрузы массой до 50 т.
Многоколесное шасси оснащено системой приседания, благодаря которой
значительно уменьшается наклон рамп и облегчается процесс погрузки и выгрузки
техники и грузов. Каждая основная опора шасси состоит из пяти независимых
двухколесных стоек, передняя опора - из двух стоек, каждая из которых имеет два
колеса. Система управления поворотом передних стоек способствует развороту
самолета на ВПП шириной до 50 метров с использованием асимметрии тяги
двигателей. Для полного использования боевых возможностей Ан-124 должен
эксплуатироваться с бетонированных ВПП длиной более 3000 м. Однако, несмотря на
большие размеры и массу, самолет способен выполнять полеты и с грунтовых ВПП.
Силовая установка состоит из четырех ТРД большой степени двухконтурности
Д-18Т конструкции В.А. Лотарева. Кроме огромной мощности (23400 кгс), эти
двигатели отличаются малой массой, низким расходом топлива и невысоким уровнем
шума. Максимальная масса топлива, ограниченная взлетной массой самолета,
составляет 213740 кг. Имея грузоподъемность и дальность полета, в 2-3 раза
большие, чем Ан-22 и Ил-76, "Руслан" расходует топлива на 1
тонно-километр перевезенного груза в 2,5-3 раза меньше. Дальность полета Ан-124
с максимальной нагрузкой 120 т составляет 5600 км, а с нагрузкой 40 т 11000 км,
и по этому показателю он превосходит американский тяжелый военно-транспортный
самолет C-5B Galaxy.
Самолет оснащен системой автоматического ЭДСУ, автоматизированной
системой штурвального управления, четырехканальным гидравлическим комплексом,
высоконадежными системами электроснабжения и жизнеобеспечения экипажа. Всего в
системах управления самолетом задействовано 34 компьютера.
Ан-124 оснащен навигационной РЛС, инерциальной системой повышенной
надежности, пилотажно-навигационным прицельным комплексом ПНПК-124,
автоматизированным комплексом радиосвязи ТИП-15, радионавигационной аппаратурой
"Лоран" и "Омега".
В 1985 г. на самолете Ан-124 "Руслан" был установлен 21 мировой
рекорд, в том числе по грузоподъемности (171219 кг на высоту 2000 м), а в 1987
г. рекорд дальности полета по замкнутому маршруту (20150,92 км).
В 1985 г. Ан-124 демонстрировался на авиасалоне в Париже. На вооружение
военно-транспортной авиации СССР самолет поступил в январе 1987 года. По
состоянию на начало 1998 г. было построено 54 летных экземпляра и один планер
самолета для статиспытаний. Сегодня Ан-124 эксплуатируются двумя полками
военно-транспортной авиации России (26 самолетов), а также 6-ю авиакомпаниями
России и Украины.
На данный момент есть такие модификации самолета:
Ан-124-100. Для перевозки коммерческих грузов была создана и в 1992 году
сертифицирована гражданская модификация Ан-124-100.
Ан-124А. Дальнейшим развитием "Руслана" может стать его новая
модификация - Ан-124А, которая будет иметь улучшенные ВПХ, что обеспечит его
эксплуатацию с аэродромов 2-го класса.
|
Тактико-технические
характеристики
|
|
Экипаж, чел.
|
6-7
|
|
Скорость, км/ч
|
|
|
максимальная 10 км
|
1100
|
|
крейсерская, км/ч
|
865
|
|
Практический потолок, м.
|
12000
|
|
Дальность, км.
|
|
|
перегоночная
|
16500
|
|
действия
|
5600
|
|
Масса, кг.
|
|
|
максимальная
|
405000
|
|
нормальная
|
392000
|
|
пустого самолета
|
173000
|
|
Габариты самолета, м.
|
|
|
размах крыльев
|
73,3
|
|
длина
|
69,1
|
|
высота
|
20,87
|
|
Двигатели
|
4х ТРДД Прогресс
(В.А.Лотарев) Д-18Т
|
.3.8. 747-400 Freighter Boeing
Транспортный самолет.
Самый большой грузовой самолет(см. Рис 12) компании Boeing. Способен
перевозить до 124 т. груза на расстояние до 4400 миль, при минимальных
эксплуатационных затратах на милю. В отличие от модели 747-200 способен
дополнительно перевозить 26 т. полезного груза. Сгорает топлива на 10-16%
меньше, чем в более ранних моделях, благодоря наличию двигателей с высокой
топливной эффективностью и крыльями большего размера
Оборудование
Самолет оснащен цифровым комплексом авионики EFIS с шестью цветными
многофункциональными дисплеями. Имеются автоматизированная система
самолетовождения FMS, разработанная фирмами "Ханиуэлл" и
"Сперри", а также центральная ЭВМ для непосредственного диагностирования
бортовых систем в полете.
1.3.9 747 - 400 Combi Boeing
Грузопассажирский самолет для авиалиний большой протяженности
Оборудование
Самолет (см. Рис. 13.Схема самолета на Рис.16.) оснащен цифровым
комплексом авионики EFIS с шестью цветными многофункциональными дисплеями.
Имеются автоматизированная система самолетовождения FMS, разработанная фирмами
"Ханиуэлл" и "Сперри", а также центральная ЭВМ для
непосредственного диагностирования бортовых систем в полете.
.3.10 757 - 200 Freighter Boeing
Транспортный самолет.
Оборудование
На самолете(см. Рис. 14) используется цифровой комплекс авионики EFIS
производства американской фирмы "Рокуэлл-Коллинз", имеющий шесть
цветных многофункциональных дисплеев. Аналогичный комплекс применяется на
самолетах Боинг 767.
1.3.11 767 - 300 Freighter Boeing
Транспортный самолет
Оборудование
На самолете(см. Рис. 15) используется цифровой комплекс авионики EFIS
производства американской фирмы "Рокуэлл-Коллинз", имеющий шесть
цветных многофункциональных дисплеев. Аналогичный комплекс применяется на самолетах Боинг 757.
1.4 Разработка тактико-технических
требований
После сбора статистических данных (см. табл.3 ) производится разработка
тактико-технических требований. Этот этап производится путем анализа
статистического материала с последующими дополнениями или корректировкой. При
дальнейших расчетах (при аэродинамическом расчете) эти данные будут уточняться
и корректироваться в зависимости от аэродинамической схемы данного самолета.
Выбранные тактико-технические требования заносим в таблицу №2.
Тактикотехнические требования таблица 2
|
Vн=11км Км/ч
|
Vmax Км/ч
|
Lh=10 v=850,км
|
m гр.
кг
|
Lp м
|
Hпот. км
|
Vкрейс. Км/ч
|
Hкрейс. км
|
Vy H=0
|
Nэк. Чел.
|
|
850
|
870
|
8400
|
80000
|
2800
|
13.715
|
800
|
10
|
- \\ -
|
2-3
|
Статистические данные самолетов-прототипов Таблица 3
|
Наименование самолета,
страна, год выпуска
|
Vmax,км/ч
|
Hv max, км.
|
Vкрейс. Км/ч
|
Нпот. м
|
L,км
|
L,км*
|
m0 (взл.)
|
m0 (взл.макс)
|
m0 (пос.)
|
m0 (пуст с нор. кг.)
|
m0 (гр. боев.)
|
n экипажа, человек
|
m (топл.)
|
числ.двиг.
|
Р0, дан
|
S, м2
|
l, м2
|
χ,
град.
|
λ,
|
с0
|
η
|
L, фюз
|
D, фюз
|
λ, фюз
|
|
1
|
С-17 Globemaster США, 1991г
|
818
|
10
|
678
|
13715
|
8710
|
3520
|
263100
|
263100
|
120000
|
122000
|
200000
|
78110
|
3
|
141100
|
4
|
18915
|
352,29
|
50,29
|
69
|
7,18
|
10
|
4
|
53,04
|
|
7,8
|
|
2
|
С-5А Galaxy
,США , 1969г
|
950
|
10
|
820
|
10000
|
6050
|
5330
|
332600
|
332600
|
162350
|
170000
|
169650
|
93000
|
5-6
|
69350
|
4
|
18640
|
|
67,88
|
68
|
|
10
|
2,2
|
75,5
|
|
4,53
|
|
3
|
АН-124-100м Руслан, Украина&Россия
|
865
|
10
|
850
|
12000
|
8400
|
5000
|
35000
|
392000
|
42000
|
40000
|
|
120000
|
4
|
230-180т
|
4
|
229
|
628,5
|
73,3
|
62
|
8,5
|
10
|
3,3
|
69,1
|
6400
|
|
|
4
|
Freighter Boeing
747-400, США.
|
|
|
910
|
10700
|
7170
|
7170
|
397000
|
400000
|
285000
|
|
|
113000
|
2
|
204355
|
4
|
27
|
524
|
64,4
|
32,5
|
7,9
|
10
|
|
70,6
|
6500
|
|
|
5
|
Сombi
Boeing 747-400, США.
|
|
|
910
|
10700
|
13360
|
13370
|
396000
|
400000
|
285000
|
|
18100
|
40000
|
2
|
216840
|
4
|
28
|
524
|
64,4
|
33
|
7,9
|
10
|
|
70,6
|
6000
|
|
|
6
|
ИЛ-76, МФ, мд, М, Россия.
|
|
|
800
|
12000
|
5800
|
5200
|
210000
|
210000
|
151000
|
69000
|
104000
|
58000
|
5-7
|
80000
|
4
|
12
|
300
|
50,5
|
65
|
8,5
|
10
|
3,25
|
53,2
|
4800
|
|
* - с максимальной полезной нагрузкой
|
Наименование самолета,
страна, год выпуска
|
S, фюз
|
  Примечаниие
|
|
|
|
|
1
|
С-17 Globemaster США, 1991г
|
36,3
|
731,89
|
0,29
|
0,29
|
Военно-транспортный самолет
|
|
2
|
С-5А Galaxy
,США , 1969г
|
9,959
|
|
0,23
|
0,26
|
Военно-транспортный самолет
|
|
3
|
АН-124-100м Руслан,
Украина&Россия
|
|
545,7
|
0,23
|
0,38
|
Военно-транспортный самолет
|
|
4
|
Freighter Boeing
747-400, США.
|
|
741,2
|
0,28
|
0,28
|
Гражданский транспортный
самолет
|
|
5
|
Сombi
Boeing 747-400, США.
|
|
740,6
|
0,29
|
0,28
|
Гражданский транспортный
самолет
|
|
6
|
ИЛ-76, МФ, мд, М, Россия.
|
|
686
|
0,27
|
0,34
|
Военно-транспортный самолет
|
1.5 Выбор и обоснование схемы самолета и его основных параметров
Выбираем схему высокоплана с "т" - образным оперением. Это
решение вызвано следующими достоинствами:
а) простота погрузки-выгрузки;
б) повышенная эффективность горизонтального оперения, так как оно выходит
из возмущенных потоков;
в) простота обслуживания двигателей.
Крыло с прямой стреловидностью (c>15º) имеет меньшее лобовое сопротивление,
самолет может развить скорость больше чем самолеты с прямым крылом на данных
режимах полета.
Наиболее выгодной схемой шасси является шасси с носовой опорой,
преимуществами которой являются:
а) высокая устойчивость при посадке;
б) не возможность капотирования;
в) лучший обзор спереди для движения по аэродрому;
г) возможность управления самолетом на разбеге и пробеге;
Фюзеляж имеет в сечении форму капли для лучшего обтекания потоком
воздуха. По статистическим данным определяем и заносим в таблицу №3 параметры
крыла λ
, c,
η, ĉ,
относительные хорды закрылка bз, угол отклонения закрылка δз, относительную площадь элерона Ŝэл.,
параметры фюзеляжа λф., Dф ,Lф , параметры оперения Sго, Sво, λго, λво, cво, cго, Сво, ηго, ηво, где cво, cго- углы стреловидности оперения по ¼ хорды.
Таблица №3
|
λ
|
c
|
η
|
с
|
bз
|
δз
|
Sэл
|
λф
|
Dф м
|
Lф м
|
S г.о.
|
S в.о.
|
λ
г.о.
|
Λ в.о
|
c г.о.
|
c в.о.
|
С в.о.
|
С г.о.
|
Η г.о.
|
Η в.о.
|
|
7.2
|
20°
|
4
|
0.1
|
3.7
|
35
|
0.06
|
7.8
|
6.8
|
53
|
0.2
|
0.33
|
4.7
|
0,8
|
25°
|
35°
|
0.07
|
0.05
|
2.4
|
0.8
|
1.6 Определение взлетной массы самолета
Взлетную массу определяем по формуле:
,
где mo -взлетная масса самолета ; mгр -масса коммерческой нагрузки; mэк -масса экипажа; mк -относительная масса конструкции; mс.у -относительная масса силовой
установки; mоб.упр .-относительная масса
оборудования и управления; mт
-относительная масса топлива.
Значение mT определяется из
формулы :
;
=0.41
.
Исходя
из полученной взлетной массы определяем остальные массы :
к
= mк mo = 0.18 276 400 = 49752кг.
m с.у. = 0.06
276 400 = 16584кг;
m т = 0.41 276
400 = 113324кг;
m об. упр. =
0.06 276 400 = 49 752кг;
m кр. = mк m кр.
= 49752 0.398 = 19801кг;
m ф = mк m ф.
= 49752 0.332 =16517кг;
m опер.= mк m
опер = 49752 0.077 = 3830кг;
m ш. = mк m ш.
= 49752 0.193 = 9602кг.
Для
определения массы двигателя определим его стартовую тягу:
P0 = t0 m0 g;
P0 = 0.29
=785
528кг,
Где
t0- тяговооруженность, которая определяется из
статистических данных (t0=0.29).Значения величин масс заносим в таблицу 4.
Таблица
4.
|
m0, кг
|
mгр, кг
|
mк, Кг
|
mкр, Кг
|
mф, кг
|
mоп, кг
|
mш, кг
|
m т., кг
|
mс.у., кг
|
mдв., кг
|
|
276400
|
80000
|
49752.
|
19801
|
16517
|
3830
|
9602
|
113324
|
16584
|
4146
|
Наиболее подходящий двигатель (ТРДД) JT9Д-7R4c.
Установим 4 таких двигателя на самолете. Получим:
сумарн. = 4 x 21790 =
87160дан.
1.7 Определение геометрических параметров самолета.
Площадь крыла определяем из соотношения
,
где
g=9.8 м/с, Р0 - удельная нагрузка на крыло при взлете,
( которую определяем по статистическим данным, Р = 732
).
Размах
крыла

=51.61м.
Корневую
b0 и концевую bк хорды определяем исходя из
значений
=370.043
, h=4,
=51.61м:
b0 =
=
м ;
bк =
м.
Среднюю
аэродинамическую хорду крыла (САХ) вычисляем по формуле:
А
=
м;
координаты
САХ по размаху крыла определяем соотношением :
м;
координаты
носка САХ по оси ОХ:
=4.81м,
где
c - угол стреловидности по передней кромке крыла.
Аналогично
определяем параметры горизонтального и вертикального оперения:
Площадь
горизонтального оперения(ГО):
Sг.о.=Sг.о Sкр.=0.21
370.043=79,26
.
Длина
ГО:

м
Корневая
и концевая хорды:
b0 =
=
м ;
bк =
м.
Средняя аэродинамическая хорда:
bА =
м;
координаты САХ по размаху горизонтального оперения определяем
соотношением :
м;
координаты
носка САХ по оси ОХ:
м,
где
c - угол стреловидности по передней.
Площадь
вертикального оперения (ВО):
Sв.о.=Sв.о Sкр.=0.335
370.043=124
.
Длина
ВО:

м
10м.
Корневая
и концевая хорды:
b0 =
=
м ; bк =
м.
Определяем
размеры фюзеляжа:
=7.8
6.8=53.04м;
1.6 6.8=
10.88м;
2.5
6.8=17м.
.8
Определяем параметры шасси
Базу
шасси выбираем из условия хороших эксплуатационных качеств самолета. b=(0.3…0.4)Lф b=16,500м.
Вынос передней опоры и основных стоек определяем таким образом, чтобы при
стоянке самолета нагрузка на нее составляла 6-12% от массы самолета. Тогда е =
1.150 м.
Высота
шасси определяется из условия обеспечения минимального зазора 200-250 мм между
поверхностью ВПП и конструкцией самолета при посадке с креном 4
. В данном случае это условие выполняется, так как у
самолета с верхним расположением крыла (при посадке с креном 16,47
) зазор между поверхностью ВПП и конструкцией
самолета составляет величину больше 250мм. Колея B должна
предотвращать возможность опрокидывания самолета при посадке с креном и
движении по аэродрому.
B= 7200м. Угол
касания хвостовой части j должен обеспечить хорошие углы атаки j=11,30
. Так как главная опора состоит из пяти стоек, то
действительный угол касания хвостовой части при взлете/посадке будет меньше.
Это
происходит из-за того, что при увеличении угла атаки самолета результирующая
реакция основной опоры смещается в сторону касающихся земли колес. Это
затруднит взлет, зато это явление уменьшает возможность грубой посадки и при
этом будет способствовать плавному нагружению стоек.
1.9
Расчет конструктивно-силовой схемы самолета
.9.1
Расчет пояса условного лонжерона
Для приблизительного выбора конструктивно-силовой схемы крыла
воспользуемся понятием условного лонжерона, ширина пояса которого составляет
60% хорды в расчетном сечении. Толщину пояса условного лонжерона определяем по
формуле:
,
где
P0- удельная нагрузка на крыло при взлете,( P0=7320H/М
); S-площадь крыла М
,(S=370.043
М
); ZA- координата аэродинамической хорды от продольной оси
самолета по размаху крыла м, ZA=10.32м; mi- масса груза, расположенного
на крыле, кг, mi=8000кг; g-ускорение свободного падения g=9.8м/с;
Zi- координата центра масс груза, расположенного на
крыле, кг, Zi =12.2м;
-коэффициент
расчетной перегрузки
=4; Мкр- масса крыла, Мкр=19801кг; с- относительная
толщина профиля крыла, с=0.1; b0- корневая хорда крыла ,м, b0=11.5м;
-разрушающее напряжение пояса лонжерона (для
алюминиевого сплава Д16Т
=330МПа).
В результате расчета толщины пояса условного лонжерона получили величину
больше чем 3мм. Значит обшивку крыла можно делать достаточно толстой с высокими
критическими напряжениями.
Выбираем кессонную схему крыла, так как в массовом отношении так будет
выгоднее , по сравнению с остальными схемами крыльев.
1.9.2 Выбор
конструктивно-силовой схемы крыла
При выборе конструктивно-силовой схемы крыла (КСС) необходимо
руководствоваться следующими требованиями:
. Схема крыла должна удовлетворять требования прочности, жесткости, надежности,
живучести, минимума массы, достаточного ресурса работы, удобства обслуживания и
сокращения стоимости изготовления.
2. Должны быть предусмотрены объем для размещения топливных баков,
системы управления а также узлы крепления двигателей, элеронов и закрылков.
Так
как на крыло действует сравнительно большая нагрузка ( 732дан/м
), ,а обшивка достаточно мощная ( толщиной 3-5мм), то
берем расстояние между нервюрами а=900мм.
Расстояние
между стрингерами берем небольшим, так как часто подкрепленная обшивка работает
лучше.
Выбранной
конструктивно-силовой схемой крыла является кессонное крыло. Выбор такой схемы
крыла подтверждается расчетами (см. выше).
Крыло
имеет четыре лонжерона, шестьдесят девять нервюр, восемь предкрылков .
Работающая
мощная обшивка крыла, подкрепленная стрингерами, способна эффективно работать
совместно с лонжеронами, воспринимая нагрузки на крыло. Крыло кессонной
конструкции имеет удовлетворительные массовые характеристики и наличие
внутреннего объема, позволяющего разместить баки для топлива. Также крыло такой
схемы обладает высокой технологичностью, что объясняется применением большего
штампованных деталей. Нервюры расположены (шагом 800 мм) перпендикулярно
переднему лонжерону . Этим мы уменьшили массу крыла, так как нервюры стали
меньше по своей длине. Также процесс сборки крыла, станет намного проще Но с
другой стороны мы немного ухудшили аэродинамические характеристики крыла.
В местах крепления двигателей, нервюры 7 8 9 и 16 17 усиленные, так как
они передают нагрузку от двигателей. Элероны навешиваются на нервюры 26 28 30
.Узлы навески секций закрылков расположены на усиленных нервюрах 1 5, 9 12 и 17
22, 26 30 , а узлы навески предкрылков на нервюрах 1 5 , 8…12 , 17 22 , 26…30.
Продольный силовой набор крыла состоит из четырех лонжеронов балочной
конструкции.
Профиль крыла суперкритический двовыпуклый несимметричной формы,
обладающий сравнительно малым сопротивлением и высоким коэффициентом подъемной
силы Сy. Относительная толщина профиля с=0,1
- профиль, средней толщины. Так как на крыло действует сравнительно большая
нагрузка (732даН), а обшивка достаточно мощная ( толщиной 3-5 мм), то берем
расстояние между нервюрами а=900мм. Расстояние между стрингерами берем небольшим,
так как часто подкрепленная обшивка становиться прочнее и, следствии, лучше
воспринимает нагрузки.
1.9.3 Выбор конструктивно-силовой схемы фюзеляжа
Выбираем балочно-стрингерный тип фюзеляжа (полумонокок), так как по своим
характеристикам более подходящий для данного типа самолета.
Расстояние между шпангоутами берем 500мм, так как при этом будет удобнее
проводить сборку фюзеляжа и крыла (расстояние между лонжеронами крыла 2500мм и
2000мм). Расстояние между стрингерами возьмем 200мм.
В задней части фюзеляжа предусмотрено вырез для грузовой рампы.
Фюзеляж самолета разделим на две палубы и в интересах удобства
обслуживания, ремонта и увеличения ресурса разобьем на ряд герметичных отсеков
специализированного назначения: грузовая кабина для размещения перевозимой
техники и грузов, верхняя передняя палуба для размещения основного и сменного
экипажей и оборудования, верхняя задняя палуба для размещения людей,
сопровождающих технику и грузы. Должен быть предусмотрен наддув грузовой
кабины, обеспечивающий перепад давления не менее 25 кПа, что позволило бы
перевозить пассажиров на высоте до 8000 м без кислородного оборудования.
Благодаря наличию переднего (откидывающаяся носовая часть) и заднего
грузовых люков обеспечим возможность оперативно осуществлять погрузку и выгрузку
нестандартных грузов с обоих направлений. Герметичная грузовая кабина обеспечит
перевозку грузов общей массой до 80 т, парашютное десантирование грузов общей
массой до 70т на платформах, а также специально подготовленных грузов и
техники, исключающих применение платформ. Пол грузовой кабины выполним из
титанового сплава, что допустит погрузку всех видов самоходной и несамоходной
колесной и гусеничной техники с нагрузкой на ось до 12 т при размещении в один
ряд и до 10 т при размещении в два ряда. Кабина необходимо оборудовать
бортовыми погрузочными кранами и передвижными напольными электрическими
лебедками. Также на самолете необходимо предусмотреть роликовое оборудование,
которое позволит загружать и выгружать моногрузы большой массы.
Раздел 2. Проектирование конструктивно-силовых элементов агрегатов
самолета
.1 Проектирование отсека лонжерона
.1.1 Исходные данные
Необходимо спроектировать лонжерон с выполнением следующих условий:
интенсивность
нагрузки -
=13 МПа;
интенсивность
поперечных сил -
=0,9 МПа;
высота
лонжерона
=300 мм;
толщина
обшивки
=2,5 мм,
для
двух различных материалов:
а)
Д16;
б)
В95.
.1.2
Проектирование поясов лонжерона
Геометрические
параметры пояса представлены на рис. 1.
Произведем
расчет величин В и d лонжерона для двух различных материалов по методике
приведенной в пособии [1]:
а)
Д16:
Из
табл. 1.1 [1] определим значения предела прочности материала - sв=440 МПа;
плотность материала - g=2800 кг/м3.
Расчет
будем вести табличным способом. Зададимся рядом соотношений В/d (табл. 1). По рис. 2.3 [1] определим величину разрушающих напряжений sр для
каждого значения В/d. После этого определим значение С для лонжерона
двутаврового сечения по формуле
.
В/d =2:
;
В/d =3:
;
В/d =4:
;
В/d =5:
;
Полученные
значения занесем в табл. 1.
По
рис. 2.5 [1] определим и занесем в табл. 5
в
зависимости от значения С для каждого
.
Зная
значение Н=300 мм нетрудно определить значения d для каждого
случая:
В/d =2:
d=H×(
)=300×0,13=39 (мм);
В/d =3:
d=H×(
)=300×0,1=30 (мм);
В/d =4:
d=H×(
)=300×0,095=28,5
(мм);
В/d =5:
d=H×(
)=300×0,085=25,5
(мм).
Значения
занесем в табл. 1.
Определим
значения В:
В/d =2:
В=d×(
)=39×2=78 (мм);
В/d =3:
В=d×(
)=30×3=90 (мм);
В/d =4:
В=d×(
)=28,5×4=114 (мм);
В/d =5:
В=d×(
)=25,5×5=127,5 (мм);
Значения
занесем в табл. 1.
Зная
величину плотности материала Д16 g=2800 кг/м3,
определим массу пояса:
В/d =2:
G=Вdg=78×10-3×39×10-3×2800=8,5 (кг/м);
В/d =3:
G=Вdg=90×10-3×30×10-3×2800=7,5 (кг/м);
В/d =4:
G=Вdg=114×10-3×28,5×10-3×2800=8,9(кг/м);
В/d =5:
G=Вdg=127,5×10-3×25,5×10-3×2800=9,2 (кг/м);
Таблица
5
|
2345
|
|
|
|
|
|
435430420400
|
|
|
|
|
|
C
|
0,0149
|
0,01
|
0,0077
|
0,0065
|
|
0,130,10,0950,085
|
|
|
|
|
|
393028,525,5
|
|
|
|
|
|
B
|
78
|
90
|
114
|
127,5
|
|
G=Bdg
|
8,5
|
7,5
|
8,9
|
9,2
|
Из
таблицы 1 видно, что оптимальным соотношением ширины пояса к его толщине будет
значение
=3.
Б)
В95
Из табл. 1.1 [1] определим значения предела прочности материала - sв=550МПа; плотность материала - g=2800 кг/м3. Зададимся
рядом соотношений В/d
(табл. 2). По рис. 2.3 [1] определим величину разрушающих напряжений sр для каждого значения В/d. После этого определим значение С по формуле
.
В/d =2:
;
В/d =3:
;
В/d =4:
;
В/d =5:
.
Полученные
значения занесем в табл. 2.
По
рис. 2.5 [1] определим и занесем в табл. 2
в
зависимости от значения С для каждого
.
Зная
значение Н=300 мм нетрудно определить значения d для каждого
случая:
В/d =2:
d=H×(
)=300×0,11=33 (мм);
В/d =3:
d=H×(
)=300×0,098=29,4
(мм);
В/d =4:
d=H×(
)=300×0,089=27(мм);
В/d =5:
d=H×(
)=300×0,085=25,5
(мм).
Значения
занесем в табл. 2.
Определим
значения В:
В/d =2:
В=d×(
)=33×2=66 (мм);
В/d =3:
В=d×(
)=29,4×3=88,2 (мм);
В/d =4:
В=d×(
)=27×4=108 (мм);
В/d =5:
В=d×(
)=25,5×5=127,5 (мм);
Значения
занесем в табл. 6.
Зная
величину плотности материала В95 g=2800 кг/м3,
определим массу пояса:
В/d =2:
G=Вdg=66×10-3×33×10-3×2800=6,09 (кг/м);
В/d =3:
G=Вdg=88,2×10-3×29,4×10-3×2800=7,14 (кг/м);
В/d =4:
G=Вdg=108×10-3×27×10-3×2800=8,16 (кг/м);
В/d =5:
G=Вdg=127,5×10-3×25,5×10-3×2800=8,75 (кг/м);
Таблица
6
|
2345
|
|
|
|
|
|
530450415400
|
|
|
|
|
|
C
|
0,012
|
0,0096
|
0,007
|
0,0065
|
|
0,110,0980,0890,085
|
|
|
|
|
|
3329,42725,5
|
|
|
|
|
|
B
|
66
|
88,2
|
108
|
127,58
|
|
G=Bdg
|
6,09
|
7,14
|
8,16
|
8,75
|
Из
таблицы 2 видно, что оптимальным соотношением ширины пояса к его толщине будет
значение
=2, кроме того, выгодно применить материал В95.
К
поясу необходимо прикрепить обшивку крыла и стенку лонжерона. Для этой цели у
поясов делают специальные "полки". Проектируя их, необходимо
выполнять следующие условия:
)
прочности -
, откуда
=2,5×440/530=2,05 (мм).
)
жесткости -
- потеря устойчивости полки не должна приводить к
потере устойчивости пояса, откуда
(мм).
)
технологичности - для алюминиевых сплавов
³3 мм.
Выберем
оптимальное по массе из возможной области значений, удовлетворяющее всем
условиям:
=3 мм.
Ширину
полки выберем из условия долговечности и прочности заклепочного шва:
шаг
заклепок - t=4dз;
расстояние от заклепок до любого края - С=1,5dз; расстояние между рядами заклепок - a=2dз; где dз=4 мм -
диаметр заклепок. Несложно определить ширину полки: если учесть что на каждой
полке по два шва, то - b=2×С+а=3×dз+2dз=5dз=20 (мм)
Нижний
пояс в таком расчетном случае работает на растяжение, и величина площади его
поперечного сечения будет иметь вид
,
где
- усилие в нижнем поясе при растяжении, равняется
усилию при сжатии в верхнем поясе:
=
=
=2Bвdв×
=2×66×33×530=2308680 (Н).
Поскольку
материал нижнего пояса такой же, как и материал верхнего пояса, то
=550 МПа, следовательно:
(мм2).
Так
как широкий нижний пояс значительно ослабляет нервюры, то примем Bн=Bв=66 мм.
Определим
:
=
=
(мм).
.1.3
Проектирование стенки лонжерона
Расчеты
для определения параметров стенки будем проводить для материала Д16. Определим
высоту стенки:
=300-33-31,8=235,2
(мм).
Зададимся
рядом значений отношения шага подкрепляющих стоек к высоте
:
. По рис.
3.2 пособия [1] определим значения разрушающих напряжений
для каждого значения
, данные
занесем в таблицу 3. Определим значения толщины стенки по формуле:
,
а
затем округлим до ближайшего большего из стандартного ряда.
»2 (мм);
»2,5 (мм);
»4 (мм);
»5 (мм) .
Значения
превышают максимальные из стандартного ряда.
Значения
занесем в таблицу 3. Зная
и величину соотношения
,
определим
для каждого из вариантов. Определим значения площади
стоек по формуле
.
(мм2);
(мм2);
Результаты
занесем в таблицу 7.
Определим,
какое из значений
- 0,2 или 0,5 подходит с точки зрения минимума масс:
m0.2=
×
+
/
=2×300+7,71/0,5=578,5 е.о.д.
m0.5=
×
+
/
=2,5×300+101,47/1=952,94 е.о.д.
Таблица
7
|
0,20,51неподкр.
|
|
|
|
|
|
1701208060
|
|
|
|
|
|
22,545
|
|
|
|
|
|
60150300-
|
|
|
|
|
|
140857060
|
|
|
|
|
|
F
|
7,71
|
101,47
|
-
|
-
|
|
578,5952,94--
|
|
|
|
|
Оптимальной
будет стенка с соотношением шага стоек к высоте -
=0,2.
Проектируя
полку для крепления поясов со стенкой, поступают аналогично случаю крепления
поясов с обшивкой - соблюдают условия
)
прочности -
, откуда
=2×440/630=1,39 (мм).
)
жесткости -
- потеря устойчивости полки не должна приводить к
потере устойчивости пояса, откуда

=0,7
(мм).
)
технологичности - для алюминиевых сплавов
³3 мм.
Выберем
оптимальное значение по массе из возможной области значений, удовлетворяющее
всем условиям:
=3 мм.
Ширину полки выберем из условия долговечности и прочности заклепочного
шва: шаг заклепок - t=4dз; расстояние от заклепок до любого края - С=1,5dз; расстояние между рядами заклепок - a=2dз; где dз=4 мм - диаметр заклепок. Несложно
определить ширину полки: если учесть что на каждой полке по два шва, то - b=2×С+а=3×dз+2dз=5dз=20 (мм).
Спроектированный лонжерон покажем на рис. 17.
Рис. 17.
.2 Проектирование участка панели
.2.1 Исходные данные
L=700
мм - расстояние между нервюрами;
b1=100 мм - расстояние между ребрами;
Материал - В95Т2.
Расчет будем производить для двух сечений с различными значениями
приведенной толщины панели:
а) d0=6 мм;
б) d0=11 мм.
.2.2 Проектировочный расчет панели
Обозначения размеров монолитной ребристой панели показаны на Рис. 18.
Рис.
18. Поперечное сечение монолитной панели.
Приведенную
толщину панели d0
определяют по выражению
.
Введем
безразмерные параметры - соотношения геометрических размеров сечения панели
,
.
Произведем
расчет панелей для двух сечений:
а)
d0=6 мм.
Выпишем параметры оптимальной панели (по рис.4 [1]):
sp=360 МПа
- разрушающие напряжения;
s0=375 МПа
- напряжения общей потери устойчивости;
s2=340 МПа
- напряжения местной потери устойчивости;
1=80
мм, b2=50 мм, d1=3 мм, d2=4,5 мм.
Принимая
b1=100 мм, b2=50 мм, определяем b12=b1/b2=100/50=2; d12=d1/d2=3/4,5=0,67 и по рис. 5 (пособия [1]) размеры панели:
d1/d0=0,53, d1=3,5 мм;
d2/d0=0,87, d2=5,22 мм.
Тогда
d1/d0=3,5/6=0,58.
Отношения
d12 и b12 нельзя выбирать произвольно, каждому выбранному
значению d12 будет
соответствовать вполне определенное b12 и наоборот.
Рассмотрим
следующие варианты (рис. 5,а [1]):
а)
d12=0,9;b12=1,5;
б)
d12=0,8;b12=1,75;
в)
d12=0,7;b12=1,9;
а)
по рис. 5 [1] определяем геометрические параметры панели:
d1/d0=0,65; d1=3,9 мм; d2/d0=0,68; d2=4,08 мм;
b1=100 мм, тогда b2= b1/b12=100/1,5=66,67 мм;
r=18 мм - радиус
инерции сечения монолитной панели с простым оребрением;
/r=700/18=38,8; d2/b2=4,08/66,67=0,0619.
По
рис. 6 пособия [1] определяем:
s0=360 МПа; s2=325 МПа.
Определим
коэффициент неравноустойчивости КФ:
Так
как КФ<1, то выражение для определения sр будет
иметь вид
(МПа).
Спроектированная
панель представлена на рис. 2,а.
б)
результаты панели по этому варианту следующие:
1=100
мм; b2=57,1 мм; d1=3,72
мм; d2=4,5 мм;
s0=360 МПа; s2=340 МПа;
Определим
коэффициент неравноустойчивости КФ:
Так
как КФ<1, то выражение для определения sр будет
иметь вид
Спроектированная
панель представлена на рис. 2,б.
в)
результаты расчета по этому варианту:
1=100
мм; b2=52,6 мм; d1=3,48
мм; d2=4,86 мм;
s0=345 МПа; s2=370 МПа;
Определим
коэффициент неравноустойчивости КФ:
Так
как КФ>1, то sр=s0=345 МПа.
Спроектированная
панель представлена на рис. 2,в.
Из
рассмотренных вариантов панели наиболее рациональным, удовлетворяющим как
конструктивно-технологическим, так и достаточно высоким разрушающим
напряжениям, является вариант панели, показанный на рис. 2,в.
б)
d0=11 мм.
Выпишем параметры оптимальной панели (по рис.4 [1]):
sp=400 МПа
- разрушающие напряжения;
s0=380 МПа
- напряжения общей потери устойчивости;
s2=435 МПа
- напряжения местной потери устойчивости;
1=90
мм, b2=60 мм, d1=5 мм, d2=10 мм.
Принимая
b1=100 мм, b2=60 мм, определяем b12=b1/b2=100/60=1,667; d12=0,5 и
по рис. 5 (пособия [1]) размеры панели:
d1/d0=0,41,d1=4,51 мм;
d2/d0=0,85,d2=9,35 мм;
r=20 мм - радиус
инерции сечения монолитной панели с простым оребрением;
/r=700/20=35; d2/b2=10/60=0,167.
По
рис. 6 пособия [1] определяем:
s0=380 МПа; s2=460 МПа.
Определим
коэффициент неравноустойчивости КФ:
Так
как КФ>1, то выражение для определения sр =σ0=380МПа.
Определим
предельную нагрузку по формуле
,
где
F - площадь поперечного сечения
.
Рр=380×11×100=418 (кН).
Рис.
19
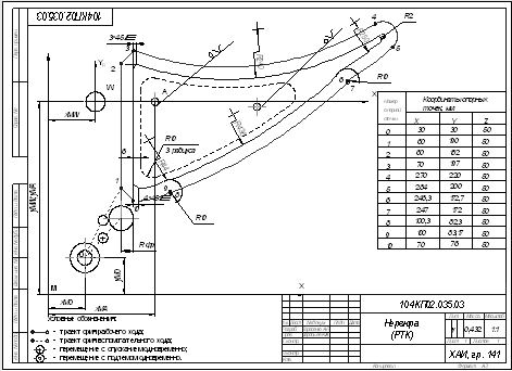
2.3
Проектирование носовой стойки шасси
Самолет, в целом, представляет, собой сложную систему, кадждая из
которой требует тщательного внимания при проектировании. Однако в данном курсовом
проекте подробно рассмотрены система
уборки-выпуска передней стойки шасси, топливная система, система подачи масла в
двигатель, а также был спрофилирован воздухозаборник и система крепление
двигателя.
По
статистике большинство аварий (если не учитывать человеческий фактор)
происходит в результате поломок или недочетов при проектировании
взлетно-посадочных систем и систем, связанных с двигателем. Исходя из этого на
правильном и безошибочным проектировании именно этих агрегатов необходимо
особенно акцентировать внимание. Для данного военно-транспортного самолета
особенно важно спроектировать системы так, чтобы при возможной атаке противника
он смог совершить боевое задание и посадку.
.3.1
Проектирование и расчет на прочность шасси
Шасси
самолета является взлетно-посадочным устройством, воспринимающим нагрузки,
действующие на самолет при взлете, посадке и при движении его по
взлетно-посадочной полосе(далее ВПП). При посадке шасси поглощает большую часть
кинетической энергии самолета, амортизируя удары в момент приземления, и
обеспечивает торможение во время пробега. Взлетно-посадочное устройство
необходимо проектировать из условия минимума массы и максимума надежности и
длительной прочности агрегатов, входящих в состав этих устройств.
Рассмотрим
расчет на прочность передней стойки шасси. Общий вид самолета показан на рис.
20. Кинематическая cхема шасси показана на Рис.21, самолет предполагается
использовать на бетонных ВПП.
Рис.20.
Рис.21.
Для
уборки-выпуска стойки шасси необходимо запустить электродвигатель, который,
посредством редуктора, передаст крутящий момент на винт. Винт, вращаясь,
создает осевую силу в закрепленной на стойке гайке. Таким образом, крутящий
момент от пары сил на гайке и реакции опоры стойки создает силу, с помощью
которой и вращается передняя стойка шасси.
Данная
схема является самотормозящейся, а следовательно нет необходимости в
дополнительных замках убранного и выпущенного положений. Но при этом резьбовое
соединение должно быть прочным и надежным. В связи с тем, что при отказе
винтового механизма возможно свободное вращательное движение стойки, необходимо
предусмотреть дополнительные элементы (ломающийся подкос ) с замками убранного
и выпущенного положения для подкрепления силовых элементов и статической
неопределимости системы, что в свою очередь повысит надежность и живучесть
всего самолета.
Особенно
актуальным для данного тяжелого военно-транспортного самолета является
надежность и живучесть, так как при доставке военного груза в точки боевых
действий возможно попадание боевыми снарядами в элементы системы уборки-выпуска
шасси, то необходимо предусмотреть дублирование системы. В данном случае можно
применить два канала управления электродвигателями, а также дублирование
винтовых механизмов. Это повлечет за собой увеличение массы и необходимость
установки дополнительного оборудования для управления механизмами в случае
отказа одной из системы выпуска-уборки шасси либо повреждения снарядом. В таком
случае необходимо исключить из цепочки управления поврежденный агрегат, а
управлять выпуском-уборкой работоспособным механизмом. В случае полного отказа
одной из передней стойки необходимо предусмотреть возможность посадки на одну
из них. Для этого их необходимо разместить как можно ближе к оси фюзеляжа (при
этом ухудшиться устойчивость при рулежке на земле), а также произвести расчет
на прочность, жесткость и устойчивость.
В
данном курсовом рассматривается приближенные параметры элементов конструкции.
Исходные
данные.
Общие
данные:
Взлетная
масса самолета - mвзл=277 т;
Посадочная
масса самолета - mпос=200 т;
Взлетная
скорость - Vвзл=200 км/ч;
Количество
стоек - z=2;
Количество
амортизаторов на стойке - zn=1;
Всего
колес - n=4
Геометрические
параметры:
а=15350
mm;
b=16500mm;
e=1150mm .
Нагрузки
на носовую стойку и подбор пневматика.
В
соответствии с условиями эксплуатации на колесах следует устанавливать пневматики
высокого давления. Определяем стояночную нагрузку на колесо носовой стойки (для
взлетной и посадочной массы самолета) по формулам:
Н;
Н;
Находим
также динамическую нагрузку на колесо при посадке:
,
где
, j=3м/с, тогда
.
По
полученным данным из сортамента выбираем колеса К278 1100х330 со следующими
характеристиками:
V*взл = 300
[км/ч];
V*пос=210
[км/ч];
Р*ст.макс
= 93 [кН];
Р*дин=
118 [кН];
Р*0
= 882 [кН];
Р*нд
= 304 [кН];
d*нд = 197
[мм];
d*дин = 92
[мм];
A*mg
= 28100 [Дж];
P*пр = 481
[кН];
Fp=210[кН];
DxB=1124x355;
Qк = 510 [Н];
Nk=300.
Для
основных опор подберем колесо и уточним их размеры:
;
Выбираем
колеса Т146 с размерами DxB=1450x520.
Вычислим
коэффициент грузоподъемности для передней опоры:
.

При
этом требование
выполняется.
Задаемся
.
Найдя
величины эксплуатационных перегрузок, получаем эксплуатационные перегрузки на
колесо:
Так
как стойка содержит спаренные колеса, то при посадке более нагруженное колесо
воспринимает усилие:
.
Нормы
летной годности требуют, чтобы в рассматриваемых случаях для любого из колес
выполнялось условие:
,
где
Рразр- радиальная нагрузка на колесо, при которой происходит разрушение корпуса
колеса; определяется как:
Получаем,
что условие выполняется: 184,15≤641,3.
.3.2
Определение основных размеров жидкосно-газового амортизатора
Расчет
амортизатора состоит из определения его размеров (геометрического расчета) и
подсчета площади отверстий для протекания жидкости (гидравлический расчет). В
данной работе проведем только геометрический расчет.
Эксплуатационная
работа, поглощаемая амортизирующей системой при посадке:
.
Посадка
самолета происходит на две точки (на основные стойки с последующим
переваливанием на носовую стойку). В данном курсовом будем считать, что
передние колеса касаются земли, когда амортизация основных стоек уже совершает
обратный ход после поглощения энергии первого толчка, т.е. скорость сжатия
амортизации основных стоек имеет отрицательное значение. Поэтому считают, что
удар происходит только в переднюю стойку и величину редуцированной массы
находят по формуле:
,
Где
а=15350 - геометрический параметр самолета.
=0.16L=0.16
57270=9.163 м, тогда
.
Значение
вертикальной скорости удара об ВПП для носовой стойки, согласно Нормам летной
Годности самолета (далее НЛГС) определяют расчетным путем при выполнении
условия:
· Вертикальная
составляющая скорости в центре тяжести самолета равна
;
· Подъемная
сила Y=mпос gпос;
· Самолет
сбалансирован по моменту Mz;
· Угловая
скорость равна нулю;
· Учитываются
лобовые силы от раскрутки колес при максимальном значении коэффициента трения
скольжения µ=0,8.
Искомая скорость:
,
Где
b=16,500м - геометрический параметр, Lго=26,3м
- расстояние от центра тяжести самолета до линии действия равнодействующей
аэродинамической силы на горизонтальное оперение, θmax=11.3°-
посадочный угол в градусах.
Таким
образом, получаем:
.
Так
как обычно эта формула дает завышенные результаты, то возьмем ориентировочно
.
Из
этого следует, что
.
Вычислим
эксплуатационную работу, поглощаемую одним пневматиком при посадке:
,
где
и
.
Предполагая обжатия находиться в интервале от 0 до δмд и изменяется по линейному закону можно легко
получить δст=17,3мм.
Тогда
окончательно имеем
Работа,
воспринимаемая одним амортизатором:
,
где
z=2 - количество пневматиков на стойке.
Определим
ход амортизатора по формуле:
,
Так
как рассматривается телескопическая стойка, то примем η=0,7 и φ= const=0.9945.
Имеем
м
.3.3
Определение поперечных размеров амортизатора
Размер
площади, где газ воздействует на шток амортизатора, находиться из условия
равновесия штока в начальный момент обжатия амортизатора. Тогда
,а жидкость еще не вступила в работу. Уравнение
равновесия имеет вид:
, где
-
равнодействующая нагрузки от давления газа;
- сила
трения в буксах.
Величина
силы трения зависит от конструкции стоек и уплотнений, а также от давления газа
в амортизаторе. Силу трения в буксах и уплотнениях обычно определяют как
некоторую долю сжатия газа Ртр.=Ø Рг
Зададимся
Ро=1.5 Па. Тогда выбрав значение no=0.5, вычислим площадь:
.
Соответственно
,
и
приняв допуск на уплотнительные кольца получаем
.
Начальный
объем газовой камеры
Начальный
объем газовой камеры определим из уравнения политропного процесса:
,
где
к - показатель политропы. Экспериментально установлено, что при обжатии
амортизатора втекающая с большой скоростью жидкость в воздушную камеру
разбрызгивается и капли жидкости забирают часть тепловой энергии сжатого
воздуха. В следствии кривая сжатия занимает среднее положение между адиабатой и
изотермой. Тогда примем в расчете К=1.2 . Следственно:
.
Вычислим
высоту газовой камеры:
2.3.4
Определение предельного хода амортизатора и перегрузки
-
коэффициент полноты диаграммы обжатия амортизатора при поглощении работы Аmax.
,
,
.
Вычисления
сводим в табицу 1.
Таблица1.
|
=0.145bF1F2f
|
|
|
|
|
|
1.4 0.2030.561.288-2.808-1.52
|
|
|
|
|
|
|
1.5 0.2140641.857-2.783-0.135
|
|
|
|
|
|
|
1.55 0.2240.8272.452-2.674-0.222
|
|
|
|
|
|
|
1.6 0.2320.8542.679-2.6610.018
|
|
|
|
|
|
Наносим полученные точки в координатной системе и соединяем их плавной
кривой. Точка пресечения кривой с осью ОХ дает значение Smax=0,23.
.3.5 Определение высоты жидкости над верхней буксой
Высота жидкости над верхней буксой выбирается таким образом, чтобы при
любых положениях цилиндра не оголялся тормозной клапан, так как при его
оголении может разрушиться амортизатор в результате гидравлического удара.
Высоту уровня жидкости hж.о.
находят из условия равенства объемов жидкости над клапаном в необжатом
состоянии и объема жидкости, перетекающей в запоршневое пространство при
максимальном ходе:
.
При
этом выполняется условие
.3.6
Определение длины амортизатора в необжатом состоянии
Длина
в необжатом состоянии:
-
конструктивный ход амортизатора.Sk=0.24.
Длина
амортизатора при эксплуатационном обжатии:
.
.3.7
Определение нагрузок на стойку
Учитывая
задаваемые Нормами летной годности значения коэффициента безопасности, для
расчетной перегрузки запишем:
,
В
дальнейшем будем использовать наибольшее из вычисленных значений
Расчетная вертикальная нагрузка на стойку со стороны
земли:
;
.
Расчеты
сведем в таблицу 2.
Таблица
2.
|
1-е колесо
|
2-е колесо
|
|
|
0,6
|
0,4
|
|
|
53,935,9389,84
|
|
|
|
|
216144360
|
|
|
|
Построение эпюр осевой силы, изгибающего и крутящего моментов.
Расчетную схему представим на Рисунке 22.
Рис.22.
Для нахождения неизвестной силы Р3 запишем уравнение моментов,
относительно точки К:
,
.
Для
нахождения неизвестной силы Р4 спроецируем все силы на ось ОХ и запишем
уравнение равновесия:
, откуда
.
Эпюры
осевой силы, и изгибающего и крутящего моментов представим на Рисунке 23.
Рис.23.
2.3.7
Подбор параметров поперечного сечения элементов
В
проектировочном расчете для телескопической стойки подбираются параметры :
толщины стенок цилиндра и штока, сечение щее через нижнюю буксу, для цилиндра -
сечение, содержащее шарнир узла крепления подкоса.
Рmax=8.94МПа,
F=1.5 -
коэффициент безопасности,
d=145 -
внутренний диаметр цилиндра,
D=125 - внешний
диаметр штока.
Выбираем
сталь 30ХГСА с
σв=1618 МПа.
Произведем
расчет для цилиндра.
,
, тогда
.
Принимаем
большее стандартное значение δ=4мм.
Тогда dвнешн.=149мм.
Произведем
расчет для штока.
,
, тогда
Принимаем
большее стандартное значение δ=5мм.
Компоновочную
схему передней стойки шасси изобразим на рисунке 24.
Рис.
24.
Заключение
В
результате проведенных расчетов была спроектирована передняя стойка шасси
военно-транспортного самолета TAR1. При проектировании были учтены особенности
эксплуатации данного самолета, а именно возможность посадки на грунтовые
неподготовленные аэродромы, вероятность повреждения некоторых элементов
конструкции в результате попадания вражеского снаряда при выполнении задания
доставки груза в точки боевых действий, отказ одной из стойки.
· Пневматик был подобран по стояночной нагрузке и проверен на
динамическую нагрузку при посадке.
· Определены основные поперечные размеры жидкосно-газового
амортизатора
· Определен начальный объем газовой камеры
· Рассчитан предельный ход штока при перегрузке.
После проведенной работы можно сделать ввод, что в данной курсовой работе
проектирование стойки и ее параметров является приближенным и требуются более
подробные расчеты для других расчетных случаев. Не были рассмотрены расчет
стойки на устойчивость, циклические нагружения, долговечность. Для более
подробного проектирования необходимо учитывать и другие не перечисленные выше
факторы, требуемые НЛГС.
.4 Разработка компоновочной схемы силовой установки самолета
Авиационная силовая установка предназначена для создания силы тяги. Она
состоит из двигателя, а также систем и устройств, обеспечивающих его работу.
В компоновочную схему силовой установки входят следующие системы и
подсистемы:
· Система крепления двигателя на самолете
· Система всасывания воздуха и выхлопа газов, которая может
быть совмещена с реверсами тяги и устройством для шумопоглощения
· Топливная система, включающая в себя, как правило, целый ряд
подсистем:
a. Питающую магистраль, обеспечивающую подачу топлива к двигателям
b. Автоматизированную
систему, поддерживающую заданную центровку и порядок выработки топлива в
полете. Систему дренажа и наддува топливных баков. Систему слива топлива на
земле и аварийного слива топлива в полете. Система, обеспечивающая контроль
за работой топливной системы
· Масляная система, обеспечивающая нормальную работу двигателей
· Защитные системы силовой установки :
a. Система охлаждения
b. Противообледенительная система. Противопожарная система
· Система запуска двигателями автоматизированного контроля за
его работой
· Система управления двигателем.
2.4.1 Топливная система
Общие требования к топливной системе
Предъявляемые требования к топливной системе:
1 Надежное питание двигателей топливом
на всех режимах полета.
2 Пожарная безопасность.
3 Емкость баков должна обеспечить
размещение необходимого количества топлива.
4 Автоматическая и максимальная
выработка топлива из баков в заданной последовательности и сохранение при этом
центровки ЛА в допустимом диапазоне.
5 Слив топлива в полете.
6 Надежный и удобный контроль работы
топливной системы на земле и в полете.
Топливная система должна выполнять свои функциональные назначения,
перечисленные выше во всех ожидаемых условиях эксплуатации данного самолета на
земле (заправка и обслуживание) и в полете ( сбережение и питание двигателя
топливом). Также должна быть обеспечена безопасность полетов, включая
надежность, живучесть и пожарную безопасность. Это возможно при резервировании
наиболее важных агрегатов и элементов системы, возможность подачи топлива по
магистралям перекрестного питания из любых групп баков к любым группам
двигателей. Топливные баки не должны располагаться вблизи кабин экипажа,
штуцеры аварийного слива топлива, дренажа топливных баков должны располагаться
так, чтобы исключить возможность возникновения пожара. Должен быть обеспечен
полный слив топлива через легкодоступные и удобные эксплуатационные краны.
Емкость баков должна обеспечивать размещение резервного запаса топлива и
размещение топлива для полета с заданной максимальной дальностью и
продолжительностью. Количество резервного запаса топлива должно обеспечивать на
крейсерском режиме полета работу двигателей в течении 45 минут .
Должна обеспечиваться автоматическая выработка топлива в заданной
последовательностью и возможность ручного управления выработкой топлива при
отказе автоматики.
Также необходимо удалить воздух с баков при заправке и с пустых баков,
так как более пожароопасными являются именно пустые баки с парами горючего.
Необходимо многократно очистить топливо от примесей и воды во избежание
попадание перечисленных в двигатель.
Так как самолет может быть использован в различных условиях, то
необходимо обеспечить защиту агрегатов топливной системы от коррозии и разрушения,
обмерзания, влияния микроорганизмов, разрядов статического электричества и
перегревов. Для системы важно обеспечить достаточную прочность и вибростойкость
всех агрегатов и элементов системы. Также необходимо обеспечить надежный и
непрерывный контроль за работой топливной системы на земле и в полете.
Описание и работа.
Топливная система проектируемого самолета предназначена для подачи
топлива к двигателям и вспомогательной установке (ВСУ). Cистема состоит из топливных
баков-кессонов, системы дренажа, системы слива топлива, органов управления и
контроля работы топливной системы.
Применяемые топлива: РТ (ГОСТ 16564-71), Т-1, Т-2, ТС-1 (ГОСТ 10227-62).
Общая емкость баков -11,35 м3.
Баки расположены симметрично нулевой нервюре крыла и представляют собой
герметичные отсеки. Дренаж баков осуществляется сообщающимися трубопроводами со
всеми баками и с атмосферой.
Заправка баков топливом осуществляется через штуцер централизованной
заправки. Штуцер соединен трубопроводами с электроуправляемыми кранами, каждый
кран служит для заправки одного бака. При необходимости заправку можно
производить через заливные горловины, имеющиеся в каждом баке. Заправка
производится в порядке,, обратном выработке, независимо от способа заправки.
Система выработки топлива обеспечивает принудительную подачу топлива к
двигателям и ВСУ электрическими подкачивающими насосами на всех режимах полета
и на земле. Питание двигателей автономное: к каждому двигателю топливо
поступает от соответствующего бака . Магистрали питания двигателей соединены
трубопроводом кольцевания. В полете топливо перекачивается из ближних баков в
дальние.
Питание ВСУ осуществляется из магистрали питания левого двигателя или от
насосов питания ВСУ, установленных в правом дальнем баке. В магистралях питания
двигателей и ВСУ установлены перекрывные (противопожарные) краны.
Слив топлива осуществляется из системы выработки с включением
подкачивающих и перекачивающих насосов. Краны слива установлены в магистралях
выработки баков.
Трубопроводы топливной системы - тонкостенные и соединены между собой
подвижными или жесткими соединениями.
Доступ к агрегатам и трубопроводам топливной системы, находящимся в
баках-кессонах, осуществляется через люки и съемные панели на верхней
поверхности крыла, доступ к агрегатам и трубопроводам, установленным на
лонжеронах вне баков, - через люки на нижней поверхности крыла.
Рассмотрим произвольную схему подачи топлива, которая представлена на
рис.25.
Рис.25. Магистраль подачи топлива к двигателям.
Выработка топлива из бака 5 при помощи насоса 6 позволяет создать
достаточно большое давление на входе в насос двигателя, обеспечивая необходимую
высотность. Надтопливное пространство бака сообщается с окружающим воздухом при
помощи заборника 1. Данная выработка топлива получила название открытая. Такая
выработка является основной на ЛА гражданской авиации. Бак заправляется
топливом через штуцер 4. Определение количества топлива в баке и сигнализация
об аварийном остатке производятся при помощи топливомера с датчиком 2 и
указателями 3.
Для обеспечения надежной подачи топлива к двигателям целесообразно
применить многоступенчатую подкачку. Для этого установлен на ЛА один
подкачивающий насос 6 и один подкачивающий насос двигателя (ПНД). При этом ПН
ЛА создает необходимое давление при входе в ПНД, а последний обеспечивает
потребное давление на входе в основной насос двигателя (ОНД) 24.
Преимущество выработки топлива из баков пи помощи ПН ЛА заключается в
том, что баки не нагружены и вес их невелик. Можно откачать топливо из бака,
расположенного ниже двигателя. Режим работы ПН ЛА можно регулировать,
поддерживая необходимое давление. Определенный порядок включения и выключения
ПН ЛА обеспечивает программную выработку топлива из баков.
Давление, создаваемое ПН ЛА, должно быть больше минимально допустимого,
на которое настроен датчик сигнализатора давления 7. При этом условии на
приборной доске летчиков гаснет красная лампа 8.
Обратный клапан 9 обеспечивает необходимое направление движения топлива.
Для аналогичной цели работают обратные клапаны при вступлении в действие
топливного аккумулятора 10, при открытии крана перекрестного питания 12. Воздух
из топливной камеры аккумулятора через дроссель 11 поступает в бак.
Пожарный кран 13 перекрывает подачу топлива. При помощи датчика
расходомера 15 определяют расход топлива по указателю 16. Для охлаждения масла
в магистраль включен топливно-маслянный радиатор 17, который также подогревает
топливо. При этом улучшается распыление топлива и предохраняется от обмерзания
фильтр 19. Датчик сигнализатора давления 20 с указателем 21 дает возможность
судить о засорении или обмерзании фильтра 19. Датчик манометра 22 подает сигнал
на прибор 23, который показывает значение давления перед ОНД. При помощи
датчика давления 25 за ОНД и манометра 26 определяют величину давления перед
коллектором форсунок 27.
Повышение надежности питания двигателей.
Перекрестное питание
Перекрестное питание двигателей топливом (кольцевание) целесообразно
применять на ЛА с несколькими баками и с двумя двигателями. Заборные магистрали
соединены после ПН ЛА магистралью перекрестного питания.
В случае выхода из строя одного из двигателей при открытом кране
перекрестного питания топливо будет подаваться к работающему двигателю не
только от своей заборной магистрали, но и заборной магистрали неработающего
двигателя.
Дублирование ПН ЛА
Выражается в установке двух параллельно работающих насосов, каждый из
которых обладает производительностью, достаточной для самостоятельного питания
двигателей топливом. При совместной работе каждый ПН ЛА обеспечивает примерно
половину расхода топлива двигателями.
Найдем максимальный объём топлива, который могут вместить в себя консоли
крыла самолёта по формуле:
,
где
=0.13 -средняя удельная толщина профиля крыла;
- площадь
крыла;
-
удлинение крыла.
Тогда
получим
.
Тогда
максимальное количество топлива, которое могут в себя вместить консоли крыла
,
где
- плотность топлива.
Количество
топлива, которое можно разместить в баке, больше чем предполагалось в нулевом
проектирование. Из этого следует, что топливо помещается в крыльях, но при
увеличения дальности самолета, для дополнительного объема топлива можно
использовать центроплан.
Расчет
топливной системы на высотность
Топливная
система рассчитывается на высотность для случаев, когда необходимо проверить
работу магистралей подачи топлива к двигателям в наиболее неблагоприятных
условиях полёта. К таким случаям относятся:
· Основной расчетный случай соответствует полету с максимальной
скоростью на
· высоте, обычно ниже потолка на 2-3 км. Считается, что
двигатель работает на максимальном режиме, скорость полета максимальна,
положение самолета и перегрузки принимаются наиболее невыгодными по их влиянию
на давление перед насосом подкачки на двигателе. Расчет системы производится
для упругости паров Pt4/1,
соответствующей максимальной расчетной исходной температуре топлива (не
ниже40°С).
· Полет на потолке (проверочный расчет). Принимается, что
двигатели на максимальном режиме, а инерционные потери Pj равны нулю.
· Полет на режиме, соответствующему максимальному расходу
топлива. Двигатели работают на максимальном или форсированном режиме, топливо
принимается наиболее вязким, температура воздуха и топлива - минимальной. В
этом случае гидравлические потери в системе будут максимальными.
Для проектировочного расчета топливной системы на высотность с известной
высотой полета используется зависимость для давления у входа в подкачивающий
насос (Рвх) на двигателе1.Основной расчётный случай, соответствующий полёту с
максимальной скоростью на высоте, ниже потолка на 2-3 км.
Считается,
что двигатель работает на максимальном режиме, скорость полёта максимальна,
положение самолёта и перегрузки принимаются наиболее невыгодными по их влиянию
на давление перед насосом подкачки на двигателе. Расчёт системы производится
для упругости паров
, соответствующей максимальной расчётной температуре
топлива (не ниже +40°С).
Увеличение
температуры топлива приводит к уменьшению плотности топлива, увеличению
упругости паров, возрастанию скоростного течения топлива в трубопроводах (что
приводит к росту гидравлических сопротивлений).
.Полёт
на потолке (проверочный расчёт). Принимается, что двигатели работают на
максимальных режимах, а инерционные потери
равны
нулю.
.Полёт
на режиме, соответствующем максимальному расходу топлива.
Двигатели
работают на максимальном режиме, топливо принимается наиболее вязким,
температура воздуха и топлива - минимальной (-50 °С). В этом
случае гидравлические потери в системе будут максимальными.
Для
проектировочного расчёта топливной системы на высотность с известной высотой
полёта используется зависимость для давления у входа в подкачивающий насос (
) на двигателе:
,
где
- давление на расчётной высоте;
-
давление, создаваемое в баке за счёт скоростного напора на заданной высоте или
за счёт системы наддува баков газом;
-
давление (избыточное), создаваемое подкачивающим насосом бака;
,
- удельный вес и скорость движения топлива в
трубопроводах, соответственно;
,
- минимальный уровень топлива в баке и уровень расположения
подкачивающего насоса на двигателе относительно принятой линии отсчёта;ускорение свободно падающего тела;
-
давление насыщенных паров для заданного топлива;
-
кавитационный запас давления, необходимый для бескавитационной работы
подкачивающего топливного насоса двигателя.
Суммарные
потери на гидравлическое сопротивление
складываются
из сопротивления от трения
и
местных гидравлических сопротивлений
:
.
Потери
давления из-за сопротивления трения определяются по формуле
,
где l- коэффициент
сопротивления трения; l
- длина трубопровода;
,
- соответственно удельный вес и скорость движения
топлива.
Коэффициент
сопротивления трения l изменяется в зависимости от режима движения топлива,
определяемого числом Рейнольдса
,
где
- скорость движения топлива,
-
коэффициент кинематической вязкости.
Для
ламинарного режима движения топлива, когда
,
коэффициент сопротивления трения
.
Для
турбулентного режима движения, когда
,
коэффициент сопротивления трения
.
Местные
сопротивления возникают при изменении сечения (скорости) или направления
потока, что сопровождается вихреобразованием, изменением поля скоростей по
сечению потока и приводит к потерям давления
.
,
где
- скорость топлива (обычно за местом потерь);
-коэффициент
местного сопротивления, определяющийся экспериментально.
Инерционные
потери давления вызываются силами инерции в топливной магистрали, возникающими
при движении самолёта с ускорением, и определяются по формуле:
,
где
- коэффициент перегрузки в направлении
соответствующей оси, который определяется исходя из аэродинамического расчёта
самолёта;
-
суммарные проекции на ось i всей длины магистрали.
Для
магистрали подачи топлива
,
где
,
,
-суммарные проекции на оси x, y, z всей длины
магистрали.
Инерционные
потери могут быть как положительными, так и отрицательными. В направлении осей
x и z перегрузки обычно невелики, но зато длины трубопроводов могут быть
большими, в направлении же оси y существенной оказывается перегрузка.
Применительно
к подкачивающему насосу, установленному непосредственно на баке, по давлению на
входе (
) должно выполняться условие:
,
где
- потребный кавитационный запас подкачивающего насоса
бака.
.4.2 Расчет дренажной
системы
В дренажную систему входят:
воздухозаборники;
· предохранительные клапаны;
· вакуумные клапаны;
·
трубопроводы и их
соединения;
·
поплавковые
клапаны.
Расчётными случаями для определения диаметра дренажного трубопровода
являются: экстренное снижение или пикирование
самолёта, выработка (слив) топлива из баков и закрытая заправка топливом.
Температура топлива при расчётах принимается, равной "минус" 60°С.
При расчёте экстренного снижения или пикирования диаметр дренажного
трубопровода может быть определён из уравнений :
,
где
- объём бака;
,
-
удельный вес воздуха на высоте Н1 и Н2 соответственно
(причём
);
и
-
скорость пикирования и скорость течения воздуха в дренажном трубопроводе ;др и dдр
- длина и диаметр дренажного трубопровода;
при
,
где
j°- угол скоса дренажного трубопровода;
и
- коэффициент сопротивления трения и коэффициент
местного сопротивления при движении воздуха в дренажном трубопроводе.
Получаем
выражение:
При
выработке топлива из бака необходимо, чтобы он заполнялся воздухом. Для
самолетов с большими высотами полета необходимо применять комбинированную
систему дренажа. При этом баки сообщаются с атмосферой через наружные патрубки
дренажных трубопроводов, установленных против потока. Кроме этого
комбинированная система дренажа позволяет производить забор воздуха от
компрессора двигателя.
Для
обеспечения дренажа полностью заправленного топливного бака и предотвращения
выброса топлива дренажный трубопровод подключается к баку в верхней точке.
Для
предотвращения выброса топлива через дренажный трубопровод при эволюциях ЛА
применены петлеобразные участки трубопровода. Для ограничения величины
скоростного напора в системе дренажа установлены предохранительные клапаны.
.4.3
Расчет системы аварийного слива и заправки топлива
Аварийный
слив топлива в полете производится перед вынужденной посадкой, когда по
условиям прочности конструкции самолёт имеет ограничения в посадочном весе,
когда наличие топлива на борту нежелательно из соображений противопожарной
безопасности (при посадке с отказавшим шасси, двигателем и др.) и когда посадка
производится на аэродром с недостаточно длинной полосой. На данном самолете
топливо сливают через сливные отверстия на концах крыла. Система имеет
расходные топливомеры, измеряющие количество слитого топлива.
Важным
параметром системы аварийного слива топлива является время слива. Время
аварийного слива топлива
регламентировано НЛГ самолетов или рассчитывается по
формуле:
,
где
- площадь сечения бака горизонтальной плоскостью;
- площадь
отверстия слива топлива;
и
- начальный и конечный уровни в баке по отношению к
нижней кромке сливного патрубка;
- сумма
гидравлических потерь в сливном трубопроводе.
В
случае, когда осуществляется наддув баков с давлением
, величины
и
принимаются равными
и
соответственно.
Сумма
гидравлических потерь
определяется по аналогии с расчетом гидравлических
потерь при расчете топливной системы на высотность.
Принципиальная
схема системы аварийного слива показана на Рис.26
Рис.26.
Топливо
на земле сливают для выполнения ремонтных работ через баковые и магистральные
краны. Слив топлива в полете предусмотрен на некоторых типах ЛА, когда их
посадочный вес больше допустимого. Он может быть использован в аварийных
случаях для изменения центровки.
Слив
топлива может производиться самотеком, поддавливанием и при помощи насосов.
Применение того или иного способа зависит от компоновки ЛА, размещения баков и
двигателей. Топливо в баках, расположенных вдали от двигателей, сливается
самотеком или поддавливанием.
Сливная
магистраль должна обеспечивать безопасный слив топлива как на земле, так и в
воздухе. Необходимо, чтобы слив топлива происходил с концов консолей крыла. При
этом топливо не будет попадать на двигатели. Целесообразно проводить слив
топлива с помощью насосов.
Из
бака 1 топливо перекачивается в конец крыла с помощью насоса 2. При сливе
открывается кран 4 сливной магистрали и закрывается перекрывной кран 3 заборной
магистрали.
Схема
заправки топливом
Для
данного самолета применена централизованная система заправки. При
централизованной заправке топливо от заправочного штуцера, расположенного в
левой нише стойки шасси, поступает в топливный бак №1. От этого бака топливо
перекачивается в остальные баки, с помощью струйных насосов. Система
централизованной заправки имеет световую и звуковую сигнализацию об опасном
повышении давления в баках.
Так
как самолет должен эксплуатироваться в самых различных условиях, то для данного
военно-транспортного самолета целесообразно применить закрытую заправку. При
закрытой заправке топливо от заправочного устройства подается к заправочным
штуцерам баков, расположенных на нижних поверхностях консолей крыла.
Заправка
осуществляется по следующей схеме (рис.27):
Рис.27.
Магистраль закрытой заправки топливом.
Через
заправочный штуцер 1 топливо поступает в заправочную магистраль. При помощи
выключателей достигается открытие кранов заправки 2. После заполнения баков 3
индуктивные датчики уровня 5 выдают команды на автоматическое закрытие кранов
заправки. В случае отказа крана имеются предохранительные поплавковые клапаны
уровня 4. Для откачки топлива из шланга предусмотрен дренажный клапан 6.
Расчеты на высотность, дренаж и аварийный слив были проведены при помощи
ЭВМ и программы, специально разработанной для расчета топливной системы. В
результате были получены диаметры трубопроводов, высоты, на которых еще можно
эффективно и безопасно использовать топливную систему. На чертеже самолета
изображены функциональные схемы систем самолета: дренажной, топливной,
масляной, системы нейтрального газа, противопожарной и топливной. Отдельно на
чертеж вынесены ниппельное и гибкое дюритовое соединение. Приведем схему
обратного клапана (рис. 28):
- штуцер
2-клапан
3 - уплотнительное кольцо
4 - пружина
5 - корпус
Рис. 28-
Схема обратного клапана
Обратный клапан состоит из штуцера, ввернутого в корпус. В штуцере
находится клапан, удерживаемый пружиной. Во время заправки самолета топливом
клапан закрыт. Давление внутри корпуса равно давлению заправки, которое совместно
с пружиной удерживает клапан в закрытом положении. После окончания заправки
топливо отсасывается из трубопровода заправки, и в полости корпуса корпуса
создается разряжение. Так как давление воздуха в штуцере равно атмосферному, ,
клапан открывается, преодолевая давление пружины. Воздух поступает в корпус 5,
а из корпуса - в трубопровод заправки. Открытие клапана происходит при давлении
0,05...0,1 кгс/см2 (0,005.„0,01 МПа).
.4.4 Требования к маслосистеме
1. Масляная система должна обеспечить
надежную подачу масла в двигатель и его откачку с допустимыми давлениями и
температурами в ожидаемых условиях эксплуатации данного самолета.
2. Каждый двигатель силовой установки
должен иметь самостоятельную масляную систему с отдельным баком.
3. Необходимое количество масла в
системе должно выбираться из расчета обеспечения полета максимальной
продолжительности при максимально возможном расходе масла двигателем.
4. Система должна исключать переполнение
двигателя маслом.
5. Система и ее агрегаты должны
исключать образование воздушных пробок.
6. Должна обеспечиваться надежная
очистка масла от механических примесей и максимальный отвод от него газов.
Масла применяемых сортов не должны образовывать в баках, радиаторах и других
элементах системы осадков, способных нарушать нормальную работу системы.
7. В системе должны применяться
уплотнительные материалы, работоспособные при максимально возможных
температурах.
8.
Должны
обеспечиваться хороший подход к отдельным агрегатам и узлам. Вся система в
целом должна обладать эксплуатационной технологичностью.
9. Масляная система должна быть
достаточно прочной, вибростойкой, герметичной и безопасной в пожарном
отношении.
Описание и работа
Система предназначена для заправки и дозаправки маслом баков четырех
двигателей через бортовой штуцер, а также для контроля количества масла в баках
наземным Персоналом при техническом обслуживании самолета.
Электропитание системы постоянным током напряжением 27 В обеспечивается
от аварийной шины.
В систему входят бортовой заправочный штуцер, щиток управления, отсечные
электромагнитные клапаны, обратные клапаны, дренажные трубки, маслобаки
двигателей со штуцером централизованной заправки, предохранительными клапанами
и датчиками масломеров, вспомогательные подводящие трубопроводы.
Бортовой заправочный штуцер имеет обратный клапан, который препятствует
вытеканию масла из штуцера, а при установке заправочного пистолета отжимается,
открывая проход маслу в подводящие трубопроводы. Заглушка защищает штуцер от
грязи и повреждений, а также препятствует подтеканию масла при негерметичности
обратного.
На ЛА с ТРДД преимущественно применяется одноконтурная масляная система.
Одноконтурная масляная система выполняется по следующей схеме циркуляции масла:
бак - двигатель - радиатор - бак (рис.29).
Рис.29. Схема одноконтурной масляной системы.
Центробежный воздухоотделитель установлен перед радиатором. Это вызвано
тем, что в горячем масле облегчается процесс воздухоотделения. Кроме того,
центрифуга создает напор, достаточный для преодоления гидравлических
сопротивлений радиатора и других агрегатов, установленных на откачивающей
магистрали.
Гидравлический расчет маслосистемы
При проектировании маслосистемы расчетом проверяется ее высотность, т.е.
высота, до которой нагнетающий насос обеспечивает потребную прокачку масла
через двигатель.
Путем расчета определяются необходимые диаметры трубопроводов линии
всасывания нагнетающего насоса и оцениваются параметры элементов системы,
повышающие его высотность: подкачивающего насоса, клапана на баке,
поддерживающего избыточное давление и т.д.
Откачивающую линию обычно не рассчитывают, принимая диаметры
трубопроводов откачки, d отк "(0,8К l,0)-dBC
Расчетные условия для оценки высотности системы соответствуют максимально
допустимой температуре масла, номинальному числу оборотов двигателя и двум
высотам полета: границе высотности двигателя и практическому потолку.
Основной задачей расчета маслосистемы является определение давления масла
на входе в нагнетающий насос, на допускающего уменьшения его до значений, при
которых начинается резкое падение прокачки масла через двигатель.
Потребное давление масла на входе для обеспечения нормальной работы
нагнетающего насоса определяется следующим уравнением:
Рвх =РН+АРб ±ум-hiAPj-XPr >PBXmin,
где Рн - атмосферное давление на расчетной высоте; АР8
- избыточное давление в баке; Ум ~ удельный вес масла; h - превышение максимального уровня масла в баке над
нагнетающим насосом; APj -
инерционные потери напора; ]Г Рг - гидравлические сопротивления при
движении масла по магистрали; Рвхтш - минимально допустимое давление масла на
входе в насос.
Избыточное давление в баке ДР^, возникающее за счет выделения из масляной
эмульсии воздуха, зависит от гидравлического сопротивления системы дренажа
бака, т.е.

Избыточное давление в баке можно поддерживать и за счет установки перед
дренажным трубопроводом (на выходе из бака) клапана постоянного перепада
давления. Обычно
АР8 = (IK
2,5) * 104 Па. Принимаем АР8
= 2 * 104 Па.
Потери напора на преодоление гидравлических сопротивлений рассчитывают по
формуле
Потери напора на преодоление гидравлических сопротивлений £
Рг в основном
являются потерями на трение, поскольку, с одной стороны, поток в трубопроводах
ламинарный и соответственно коэффициент сопротивления трения представляет собой
большую величину.
Скорость движения масла во всасывающих магистралях достигает 1м/с.
Коэффициент К учитывает увеличение сопротивления трения из-за охлаждения стенок
трубопровода и соответственно более вязкого слоя возле них. Для обогреваемых
трубопроводов и для гибких рукавов K=t,1; для металлических трубопроводов,
проходящих через необогреваемые стенки самолета, К= 1,3.
Для криволинейных трубопроводов с большим радиусом кривизны
дополнительные местные сопротивления можно не учитывать. Для других местных
сопротивлений можно принять:
Выход из бака в трубопровод £м = 0,5; соединение дюритовое £м = 0,2К-0,3; угольник ^м
= 1,2К 1,3; тройник ^м = 1,5К 2,5; обратный клапан £м = 1,7К 2,0.
Высота h определяется для минимального
количества масла в баке и для наименее выгодного положения самолета, т.е. для
набора высоты при расположении бака за двигателем и для пикирования при
расположении бака перед двигателем.
Инерционные потери напора APj
определяются по формуле
= nj -yM v^lj,
где n j - коэффициент перегрузки, действующей в направлении
соответствующих осей,
£li - суммарные проекции на соответствующие оси всей длины
магистрали.
Из инерционных перегрузок для маслосистемы опасны ввод самолета в
пикирование и разгон. В первом случае действуют отрицательные перегрузки пу
= 1,6К 0,4, а на режиме разгона пу = 0,8К 1,2.
Минимально допустимое давление на входе определяется по кавитационным
характеристикам насоса.
Определим потребную прокачку масла через двигатель из условия отвода
необходимого количества тепла, откладывают ее значение по оси ординат (точка
а), а потом проводят горизонталь. Значение Рвхтш • соответствующее принятому
процентному .содержанию воздуха, получают на оси абсцисс. Примерные значения
Рвхшт Для насосов ТРД при нулевом содержании воздуха составляют
60-80 мм.рт.ст. Подставив имеющиеся величины в общее уравнение, * определяем Рн,
а затем по таблице стандартной атмосферы находят высотность системы.
.4.5 Проектирование противопожарной системы
Для обеспечения противопожарной безопасности на самолете имеются
специальные средства противопожарной защиты (ППЗ).
Противопожарная система силовой установки предназначена для сигнализации
о возникновении пожара, обнаружения и ликвидации очагов пожара в наиболее пожароопасных
отсеках крыла, его своевременной локализации и гашения.
При аварийной посадке самолета с убранными шасси предусмотрена разрядка
обоих огнетушителей в отсеки двигателей от концевого выключателя,
установленного в нижней части фюзеляжа.
Система состоит из баллонов с огнегасящей смесью, крана, перепускных
клапанов, коллектора форсунок.
В двигателе коллектора расположены в зоне компрессора и в зоне форсунок,
где осуществляются вспрыски топливной смеси. Такое расположение позволяет
быстро и эффективно локализовать пожар в гондоле двигателя.
Подача противопожарной огнегасящей смеси осуществляется при помощи
разблокирования электромагнитных клапанов, которые непосредственно связаны с
системой сигнализации о возникновении пожара.
Кроме того, для уменьшения опасности возникновения пожара и его
локализации на самолете конструкцией необходимо предусмотреть:
·
Противопожарные
перегородки, препятствующие распространению пожара и защищающие наиболее
ответственные элементы конструкции самолета от разрушения при пожаре;
·
Компоновка
агрегатов, систем и оборудования, снижающая возможность возникновения пожара;
·
Применение
огнестойких, негорючих и трудновоспламеняемых материалов;
·
Дренажирование
мест возможного скопления горючих жидкостей и т.п.
В качестве специальных средств противопожарной защиты на самолете
предусмотрено противопожарное оборудование, состоящее из стационарной
противопожарной системы, системы сигнализации о перегреве двигателей,
переносных ручных огнетушителей, системы нейтрального газа (НГ).
В пожароопасных отсеках установлена аппаратура системы сигнализации
перегрева и пожара, по одному комплекту в каждом отсеке. Она состоит из
сигнализаторов перегрева и пожара и блоков усиления и обработки сигналов
(БУОС). Сигналы о пожаре и перегреве, выдаваемые БУОС в виде электрического
сигнала, поступают в коробку реле для автоматического включения огнетушителя
централизованной системы пожаротушения Для предупреждения возникновения пожара
в таких отсеках не применяются детали из горючих материалов и оборудования, не
удовлетворяющее требованиям по взрывобезопасности. Для локализации пожара в
пожароопасных отсеках установлены пожарные перегородки и экраны из огнестойких
материалов.
Система НГ служит для подачи нейтрального газа в топливные емкости для
защиты топливных баков от взрыва.
Управление противопожарной системой и системой нейтрального газа -
электрическое и производится из кабины экипажа. Контроль работы системы
осуществляются с пульта управления и индикации, установленного в кабине пилота.
На пульте, на мнемосхеме установлены табло места перегрева, лампы-кнопки места
пожара, одновременно служащие для включения огнетушителей первой очереди, и
кнопка включения второй очереди. Предполетный контроль исправности системы
производится со щитка наземного контроля.
Переносные ручные огнетушители предназначены для тушения пожара в кабине
экипажа и в пассажирском салоне.
На Рисунке 30 показано все системы, которые рассматривались выше.
2.4.6 Система
крепления двигателя
На данном самолёте установлены четыре двигателя на пилонах под крылом по
два на каждой консоли.
Преимущества данной схемы:
· разгрузка крыла в полёте;
· двигатели- противофлаттерные балансиры для крыла, а также они
демпфируют колебания при полёте в турбулентной атмосфере;
· улучшаются условия обслуживания двигателя и всего самолета в
целом;
· уменьшается уровень шума в кабине и др.
Данная схема крепления двигателей имеет следующие основные недостатки:
· увеличивается сопротивление самолёта;
· в случае отказа одного из двигателей(особенно крайнего)
возникает большой разворачивающий момент;
· затруднена механизация крыла в месте установки двигателя;
· повышается пожарная опасность при посадке с убранным шасси;
· большие нагрузки на крепление двигателей и пилоны при разворотах
самолёта;
· возможность попадания посторонних предметов с поверхности
аэродрома и как следствие этого уменьшение ресурса двигателя.
Двигатель крепится главными опорными цапфами к узлам, расположенным на
усиленных нервюрах и шпангоутах. На усиленной нервюре около заднего лонжерона
расположены узлы вспомогательного крепления двигателя. Задний лонжерон крыла в
месте расположения гондолы двигателя имеет форму кольцеобразной рамы, внутри
которой проходит выхлопная труба двигателя. Главный опорный узел под цапфу
имеет сферическую втулку, которая монтируется в наружной обойме, размещенной в
корпусе узла. Цапфа двигателя проходит через втулку и соединяется с ней и
обоймой штифтом. Двигатель крепится к гондоле, а гондола крепится к крылу при
помощи пилона.
Створки сделаны из сотовой конструкции с точки зрения уменьшения массы и
гладкой поверхности. Схема крепления двигателя состоит из двух узлов крепления:
передний узел(А-А)(основной узел крепления) и задний узел(Б-Б)(вспомогательный
узел крепления).
Нагрузки, действующие на крепление:
1.переднее
крепление воспринимает силы
,
,
и
моменты
(момент
воспринимает
полностью);
.заднее
крепление воспринимает силы
,
и моменты
.
Детали
основного каркаса пилона выполнены из Ti-сплавов и высокопрочной стали,
что отвечает требованиям высокой прочности и огнестойкости при малой массе. На
Рис.31 показано схему крепление двигателя
В
результате проведенных расчетов на ЭВМ были подобраны сечения трубопроводов.
Получили, что для обеспечения удовлетворительного функционирования топливной
системы при аварийном сливе необходимо установить трубопровод диаметром 27мм.
При расчете топливной системы на высотность било установлено, что необходимо
установить трубопровод диаметром 40мм. Расчет диаметра аварийного слива топлива
показал, что необходимо применять трубопровод диаметром 27мм. Из условия
технологичности изготовления трубопровода принимаем диаметр 40мм.
В
данной части работы разработана компоновочная схема силовой установки
военно-транспортного самолета: расчет дренажа топливной системы, её аварийного
слива; разработана компоновочная схема маслосистемы, а также схема крепления
двигателей.
Были
рассчитаны параметры носовой стойки шасси: определены основные параметры
жидкосно-газового амортизатора, его поперечных размеров, начальный объем
газовой камеры. Также были определены поперечные предельный ход штока
амортизатора и перегрузки, давление газа в амортизаторе при максимальном
обжатии, определено высоту жидкости над верхней буксой и длинна амортизатора в
необжатом состоянии. Было подобраны параметры поперечного сечения элементов
стойки.
В
результате выполнения задания были получены параметры силовой установки и
носовой стойки шасси, которые в нулевом приближении можно считать
удовлетворительными и не противоречащими параметрам реальных конструкций. Нужно
заметить, что при расчете стойки шасси и ее параметров был рассмотрен только
один расчетный случай. Также при расчете стойки не был произведен расчет на
ударную прочность, на устойчивость, а также на долговечность и циклонагружение.
При
дальнейшем уточнении параметров при проектировании стойки шасси необходимо
учесть все расчетные случаи посадки самолета, требующие НЛГС, а также
предусмотреть элементы, облегчающие конструкцию шасси и увеличивающие
надежность и живучесть самолета. В курсовой работе не были проработаны все
системы, относящиеся к передней стойке шасси, а лишь основные параметры стойки,
амортизатора, пневматика и механизма уборки-выпуска шасси. По-этому при дальней
проектировании элементов шасси необходимо более подробно рассматривать элементы
и агрегаты шасси в целом.
Раздел
3. Проектирование систем обеспечения жизнедеятельности экипажа и людей,
сопровождающих груз
.1
Система аварийной эвакуации
Так
как данный самолет управляется экипажем и присутствуют лица, сопровождающие
груз(далее просто экипаж), то на самолете необходимо предусмотреть систему
эвакуации при вынужденной посадке.
Несмотря
на это, для повышения безопасности экипажа самолет должен быть оснащен
кислородными масками на случай аварийной разгерметизации в полете. В то же
время, по статистическим данным, до 70..80% летных происшествий в гражданской
авиации происходит на земле или около нее. В таких случаях уменьшение тяжести
последствий аварийных ситуаций можно добиться системой конструктивных
мероприятий, направленных на уменьшение числа и тяжести травм.
В
этих мероприятиях можно выделить три главных направления: сохранение жесткости
кабины, фиксация членов экипажа в креслах в момент соударения летательного
аппарата с землей и снижение перегрузок до переносимого уровня. Снизить
перегрузки, воспринимаемые членами экипажа и пассажирами, до приемлемого уровня
можно путем увеличения тормозного пути, введением сминающихся элементов в
конструкцию планера, пол кабины и сидений.
Результаты
расследований аварий и катастроф пассажирских самолетов показывают, что большое
число пассажиров выдерживают удар при аварии, но погибают от удушья, так как не
могут покинуть самолет. Поэтому большинство самолетов оснащено аварийными
выходами, приборами для эвакуации пассажиров (трапы, люки), плавучие
приспособления (плоты, жилеты), противопожарной системой и сигнализацией о
возникновении аварийной ситуации, устройствами обнаружения и выживания
(радиомаяки, фонари, аптечки, опреснители морской воды).
Аварийно-спасательное
оборудование современного пассажирского самолета показано на рис.32.
Подготовление
приспособлений эвакуации, скорость эвакуации экипажа и других лиц -основные
трудности, с которыми пришлось столкнуться в начале разработок. Все самые
простые способы эвакуации пассажиров были предназначены для молодых людей,
которые способны переносить большие физические нагрузки. Люди более зрелого
возраста и дети не могли использовать такие приспособления.
Самым
эффективным устройством для аварийной эвакуации является трап, изготовленный из
толстого брезента, который одним концом прикрепляется к фюзеляжу, а другой
конец выталкивается из самолета. Для данного самолета применим также и
трап-плот. Важно то, что материал, из которого изготавливается трап, не
претерпевает существенных изменений при температуре свыше 450 К.
Трапы
и плоты с большим объемом (до 10 м) в сложенном виде имеют очень большие
размеры и могут размещаться в зависимости от конструкции и размеров у входа на
потолке, на полу кабины или на двери. Наполнение трапа сжатым газом происходит
автоматически при открывании дверей.
Трап
в рабочем состоянии представляет собой одно-, двух- или трехжелобную
конструкцию, одним концом закрепленную на борту самолета, а другим - свободно
опущенную на землю. Такая конструкция обеспечивает наиболее безопасную и
быструю эвакуацию пассажиров независимо от их массы и быстроты движений.
Необходимо
учитывать, что оптимальное значение угла наклона трапа составляет примерно 36°.
Увеличение угла приводит к увеличению скорости спускания, что может привести к
увеличению вероятности травмирования, которые спускаются.
При
угле наклона трапа 45…48° скорость эвакуации снижается из-за задержки в начале
спуска, потому что у людей возникает страх перед крутым спуском. Снижение угла
спуска приводит к снижению скорости спуска. При угле 28° экипаж, которые
эвакуируются, должны сами себе помогать рукой и ногами, отталкиваясь от
элементов трапа для увеличения скорости спуска. При наклоне трапа 22° можно
сбегать по нему, как по наклонной плоскости.
С
учетом выше сказанного можно рекомендовать такую конструкцию трапа, чтобы он
обеспечивал изменяющийся угол наклона при спускании за счет прогибания
оболочки. Можно также использовать материалы с различными коэффициентами трения
для изготовления дорожки трапа.
Подготовительный
цикл имеет сравнительно небольшую продолжительность - 7-10 с. Это достигнуто
благодаря тому, что после открытия дверей в аварийном режиме трап выпадает из
контейнера, автоматически включается система газонаполнения, которая работает
одновременно с разворачиванием трапа. Такая схема использования аварийного
трапа значительно уменьшает вероятность ошибок при эксплуатации, увеличивая
надежность эвакуации в наименьшее время.
3.2
Требования к системе аварийного покидания самолета
Технические требования к системе аварийной эвакуации:
эвакуация пассажиров из самолета на землю должна проходить за время, не
большее, чем 90 с., с использованием всех выходов с одной стороны фюзеляжа или
50% всех равноценных выходов;
вспомогательным устройством для каждого аварийного выхода должен быть
надувной трап, который может автоматически или полуавтоматически принимать
рабочее положение за время, не большее, чем 10 с, с момента начала открытия
аварийного выхода;
надувной трап должен выдвигаться на такую длину, чтобы нижний конец мог
самостоятельно поддерживаться на земле после повреждения одной или нескольких
стоек шасси.
Аварийный выход должен удовлетворять таким требованиям:
иметь прямоугольную форму не меньше чем 1070 мм шириной и 1830 мм
высотой;
быть на уровне пола;
если существует два или больше основных проходов (продольных), то между
ними должны быть свободные от всяких помех поперечные проходы шириной не менее
чем 510 мм;
необходимо, чтобы от каждого выхода к ближнему основному продольному
проходу был свободный проход шириной не менее 910 мм;
у каждого выхода возле каждой стороны прохода должны быть предусмотрены
места для того, чтобы члены экипажа могли помогать при эвакуации пассажиров,
без уменьшения ширины прохода меньше чем 910 мм.
На каждую пару выходов разрешается иметь не более 100 человек. Устройства
открытия выходов должны быть простыми и не требовать усилий больше 150 Н в
положении, вызванном поломкой одной или большего числа опор шасси.
Рис. 32.
Раздел 4. Экономическая часть. Расчет самолетостроительного
конструкторского бюро
Предварительное укрупненное определение затрат производится на этапе
аванпроекта, поэтому отдельные этапы - аванпроект, эскизное и рабочее
проектирование - целесообразно объединить в один этап - проектирование.
Затратами на этапе передачи документации на серийный завод можно
пренебречь. Следовательно, расчет затрат ведется отдельно по этапам:
проектирование;
изготовление опытных образцов;
испытание и доводка.
4.1 Затраты
на проектирование
Суммарные затраты на проектирование определяются по формуле:
, где
Спр
- затраты на проектирование, тыс. долл.;
Кнво
- коэффициент, учитывающий в затратах на проектирование налоги, обязательные
взносы, отчисления, Кнво=1.61;
mпл - масса планера самолета с оборудованием, включая
массу служебной нагрузки и экипажа без массы силовых установок, mпл=260 т;
Г(М+1)
- гамма-функция, Г(М+1)=0.93138;
М
- максимальное число М полета, М=0.8;
-
параметр, характеризующий вероятное отклонение случайной величины от числа М,
=0.01515;
тыс.
долл.
4.2 Затраты
на изготовление опытных образцов
Затраты на изготовление каждого из опытных образцов определяются по
выражению:
; где
Vmax
- максимальная скорость полета самолета, Vmax=850
км/час;
N - порядковый
номер опытного образца;
С1
изг=1.5·1.61·(260)1.237·850·1-0.2=1 993 тыс. долл.;
С2
изг=1.5·1.61·(260)1.237·850·2-0.2=1 735 тыс. долл.;
С3
изг=1.5·1.61·(260)1.237·850·3-0.2=1 600 тыс. долл.
Сумма
затрат на изготовление трех опытных образцов:
Сизг=
С1 изг+ С2 изг+ С3 изг=1993 + 1735 + 1600 = 5
329 тыс. долл.
4.3 Затраты
на испытания и доводку опытных образцов
Затраты на доводку и испытания опытных образцов определяются по формуле:
, где
К=
=2800-0.08=0.53;
Nло=2 - число летных образцов,
Сисп.д.=1.5·1.61·104·2-0.9·(1+0.01·1)·0.53=7000
тыс. долл.
Общие
затраты ОКБ определяются по формуле:
Сокб
= Спр+Сизг+Сисп.д
.= 7392,6 + 5329 + 7000 =
12 729 тыс. долл.
Раздел 5. Технологическая часть
5.1 Выбор заготовки для заданной детали и обоснование метода ее
изготовления
Данная деталь-нервюра (рис.33,34) является основой для механизации
уборки-выпуска закрылков самолета. Деталь предназначена для восприятия
сосредоточенной нагрузки, через два отверстия ø6,а также для поддержания
аэродинамического профиля. Нервюра изготовляется из алюминиевого сплава
Д16(ГОСТ 4784-74).
Основным достоинством алюминиевого сплава как конструкционного материала
является малая плотность, высокая удельная прочность, высокая коррозионная
стойкость. Сплав Д16 (см. свойства стали табл.8) отличается высокой тепло- и
электропроводностью.
Механические свойства сплава Д16(ГОСТ 4784-74)
Таблица 8
|
Е, кг/мм2
|
G,кг/мм2
|
μ
|
γ,
г/см3
|
σ,
кг/мм2
|
σ,
кг/мм2
|
δ,%
|
НВ
|
|
7200
|
2700
|
0.33
|
2.78
|
47
|
33
|
17
|
105
|
Виды поставок:
· листы δ=0,3..10
· листы δ=0,3..6
· плиты δ=11..80
· профили
· прутки
· трубы
· проволока для заклепок
Виды обработок:
· давление в горячем состоянии
· резание (удовлетворительно)
· слесарная обработка
· штамповка-вытяжка в отожженном и свежезакаленном состоянии в
течении после 2-х часов с момента закалки (удовлетворительно)
· выколотка
· правка
· гибка
· хорошо сваривается точечной и роликовой сваркой и не
сваривается газовой и аргонодуговой сваркой.
Термообработка: закалка с последующим естественным старением (или
искусственным старением), отжиг.
Покрытие: плакирование, анодная обработка, грунтование, лакокрасочные
мероприятия.
Изготавливают: силовые элементы - лонжероны, нервюры, шпангоуты,
стрингеры, обшивки и т.д.
В состоянии Т применяется при температуре нагрева не выше 80°С.
Так, как серия, изготавливаемых деталей состоит из 50 изделий, то
изготовление нервюры рационально производить из стандартных плит с последующей
механической обработкой. В противном случае необходимо будет затратить
дополнительное время и производственные ресурсы на изготовление при этом тоже
необходимо дорабатывать поверхность детали. Данная деталь имеет довольно
сложную форму. У нервюры много радиусов скругления, что усложняет её
изготовление.
Рис.33.
5.2 Оценка технологичности
) Сплав Д16 -алюминиевый сплав, хорошая обрабатываемость;
) Деталь имеет сложную форму. Контур обрабатывается на станках с ЧПУ с
применением специального приспособления;
) Механообработка осуществляется по контуру, убирая штамповочные
припуски.
КИМ - не более 0,35, масса детали 0,68 кг.
Для снижения времени изготовления применяют станки с ЧПУ. При этом
снижаются затраты на подготовку программы, так как используются простые и
конструктивные однотипные элементы.
Проанализировав качественную оценку технологичности детали, можно сделать
заключение, что деталь является не технологичной.
Выбор вида заготовки (прутки, трубы, профиля, отливки, поковки, штамповки
и др.), из которой должна изготавливаться деталь, определяется многими
факторами. Основным из них являются программа выпуска изделий, характеризующая
тип производства, требования к механическим свойствам детали, коэффициент
использования металла и др.
В данной работе программа выпуска состоит из пятидесяти деталей. Исходя
из этого, экономически рационально использовать стандартные плиты, из которых в
дальнейшем и будут изготовлены нервюры. В противном случае (изготовление
заготовки штамповкой либо литьем) необходимо затратить дополнительные средства,
материал и время на изготовление дополнительного оборудования.
.3 Расчет операционных припусков и определение размеров заготовки
Выбрав вид заготовки, необходимо рассчитать припуск на обработку путем
его суммирования по всем операциям (переходам) для каждой поверхности детали.
Припуск - слой материала, удаляемый с поверхности заготовки в целях
достижения заданных свойств обрабатываемой поверхности детали.
Припуск на обработку поверхностей детали может быть назначен по
соответствующим справочным таблицам, ГОСТам или на основе
расчетно-аналитического метода определения припусков.
Односторонний промежуточный припуск вычисляют по формуле 3.1 [1], мкм:
где
Z- номинальный промежуточный припуск;
Rz-
высота микронеровностей (величина параметров шероховатости Ra и Rz
для
соответствующего класса шероховатостей поверхности);
h-глубина
дефектного поверхностного слоя, полученного на предшествующем переходе;
-векторная
(геометрическая) сумма пространственных отклонений взаимосвязанных поверхностей
обрабатываемой заготовки, получившаяся на предшествующем переходе;
-
погрешность установки (базирования) при выполняемой обработке;
- допуск
на операционный размер предшествующей обработки.
При
совпадении установочной и конструктивной баз
=0.
Величина
исключается из формул в случае обработки отверстий
плавающим инструментом.
Значения
Rz, h и
для
штамповок приведены в табл.3.1 [1];
Расчет
операционных припусков начинают с последней (окончательной) операции обработки
и по этапам технологического процесса суммируют припуски, получая размеры
заготовки.
Результаты
расчета припусков по каждому размеру детали представим в таблицы 9
Расчет
припусков по каждому размеру
Таблица
9
|
Размер: 40м-0,016
|
|
Технологический переход
обработки
|
Элементы припуска, мкм
|
Расчетный припуск, мкм
|
Расчетный операционный
размер, мкм
|
Принятый размер заготовки, мм
|
|
h
|
|
|
|
|
|
|
Фрезерование:
|
|
|
- черновое
|
50
|
45
|
100
|
|
40,44
|
45 - размер стандартной
плиты
|
|
- чистовое
|
20
|
30
|
50
|
290
|
40,15
|
|
|
|
|
|
150
|
40
|
|
|
Размер: ø6мм±0,012
|
|
Сверление без кондуктора
|
100
|
55
|
200
|
355
|
4,985
|
|
|
рассверливание
|
50
|
40
|
250
|
340
|
5,34
|
|
|
Рассверливание чистовое
|
50
|
27
|
75
|
152
|
5,36
|
|
5.4 Выбор технологических баз для установки детали при ее обработке
Геометрическое положение заготовки относительно режущих инструментов и
надежность ее фиксации при обработке обеспечивается схемой базирования и
закрепления, разрабатываемой на каждую операцию и установку.
Поверхности заготовки, принятые в качестве баз, и их относительное расположение
должны давать возможность удобной установки, закрепления, открепления и снятия
детали, приложения сил зажима и подвода режущих инструментов.
Если конструкция детали не позволяет использовать ее поверхности в
качестве установочных баз, на ней предусматривают специальные элементы или
поверхности, применяемые только при базировании (технологические отверстия,
буртики, приливы и т. п.).
Для уменьшения погрешностей и повышения производительности обработки
необходимо стремиться к уменьшению количества переустановок.
При выборе баз для чернового фрезерования необходимо учитывать следующее:
) поскольку деталь обрабатывается по всем боковым сторонам, то необходимо
выбрать поверхности с наименьшими припусками.
) при обработке штамповочных заготовок необработанные поверхности следует
использовать в качестве установочных баз только при первой обработке.
Для чистовой обработки:
) на всех операциях механической обработки должен использоваться один и
тот же комплект установочных баз, т.е. соблюдаться принцип постоянства баз для
наибольшей точности обработки.
) установочные базы для окончательной обработки должны иметь высокую
точность размеров и геометрической формы и возможную минимальную шероховатость
поверхности; эти базы не должны деформироваться под действием сил резания,
зажима и массы детали.
На основе вышеперечисленных требований назначим установочные базы для
поверхностей детали на технологических переходах.
Технологические базы, которые используются для базирования деталей
Схемы базирования детали приведены на чертеже (см. графические
материалы). Они обеспечивают надежное закрепление детали на всем процессе ее
обработки.
5.5 Составление технологического маршрута обработки детали
Маршрут обработки детали
Таблица 10
|
№ операции
|
Наименование операции
|
Содержание операции
(переходов)
|
Оборудование
|
Остнастка
|
|
005
|
Установка
|
Установить, выставить,
крепить, снять.
|
Тиски машинные.
|
|
|
010
|
Горизонтально-фрезерная
|
Фрезеровать базовые
поверхности заготовки, выдерживая размер 42.
|
Вертикально-фрезерный
станок 6М26П
|
Фреза торцевая ø150 З6М5 ш.ц.-125-0,1 ГОСТ166-20
|
|
015
|
Горизонтально-фрезерная
|
Фрезеровать базовые
поверхности заготовки, выдерживая размер 40.
|
Вертикально-фрезерный
станок 6М26П
|
Фреза торцевая ø150 З6М5 ш.ц.-125-0,1 ГОСТ166-20
|
|
020
|
Слесарная
|
Опилить заусенцы по
контурам фрезерованных поверхностей
|
Верстак слесарный, тиски
слесарные, пневмомашина ПМЗЗ-140
|
Шарошка Р6М5 ø10-13
|
|
025
|
Разметочная
|
Разметить контур детали
|
|
Плита разметочная
|
|
030
|
Вертикально-сверлильная на
станке с ЧПУ
|
Сверлить отверстия
(поверхности 13-14)
|
Вертикально-фрезерный
станок с ЧПУ ФП-7СМН
|
Сверло ø6 Р6М5
|
|
035
|
Вертикально-фрезерная на
станке с ЧПУ
|
Фрезеровать поверхности
1-16
|
Вертикально-фрезерный
станок с ЧПУ ФП-7СМН
|
Фреза концевая ø10,Lр=53;
Р6М5 ГОСТ17026-71
|
|
040
|
Вертикально-сверлильная на
станке с ЧПУ
|
Развернуть отверстия
(поверхности 13-14)
|
Вертикально-фрезерный
станок с ЧПУ ФП-7СМН
|
Развертка машинная ø6 Н9 ГОСТ1672-80
|
|
045
|
Слесарная
|
Опилить заусенцы по
контурам фрезерованных поверхностей
|
Верстак слесарный, тиски
слесарные, пневмомашина ПМ 33-140
|
Шарошка Р6М5 ø6-13
|
|
050
|
Контроль
|
Произвести необходимый
контроль изготавливаемых деталей
|
|
контрольная плита ГОСТ
20905-86
|
5.6 Разработка
технологических операций обработки детали
Расчет основного времени для обработки . Расчет выполним в виде
таблицы11:
Таблица 11
|
Номер и наименование
перехода
|
Квалитет шероховатость, мкм
|
Формула для расчета
наиболее вероятного машинного времени
|
|
Черновое фрезерование
цилиндрической фрезой
|
13...12 40…10
|
|
|
Чистовое фрезерование
цилиндрической фрезой
|
13...12 40…10
|
|
|
Черновое фрезерование
торцевой фрезой
|
|
|
|
Чистовое фрезерование
торцевой фрезой
|
|
|
|
Сверление отверстий ø6
|
|
|
|
Развертывание отверстий ø6
|
|
|
|
Суммарное время обработки
|
|
9,52мин 9мин30сек
|
транспортный самолет шасси нервюра
В данном разделе была спроектирована технология изготовления силовой
нервюры. Было рассчитано операционные припуски и определены размеры заготовки,
выбрано технологические базы для установки детали при ее обработке, составлено
технологический маршрут обработки детали, рассчитано основное (машинное) время
для операций механической обработки детали, составлено расчетно-технологическую
карту (РТК) для операции, выполняемой на станке с ЧПУ, рассчитано основное
(машинное) время для операций механической обработки детали.
В результате проведенной
работы можна определить, что дання деталь по форме довольно сложная, но применение станков с ЧПУ упрощает
процедуру изготовления нервюры. На Рис. 35 показана РТК по изготовлению данной
нервюры.
Рис. 35.
Список использованной литературы
. В.Н. Клименко, А.А. Кобылянский, Л.А. Малашенко
Приближенное определение основных параметров самолета; Харьков: Харьк. авиац.
институт, 1989.
.Шульженко М.Н. Конструкция самолетов. М. ,1981.
. Кобылянский А.А. ,Гребенников А.Г.Характеристики
газотурбинных двигателей: учеб. пособие. Харьков, 1985.
. Егер С.М., Мишин В.Ф., Лисейцев Н.К. Проектирование
самолетов. М.
5. Методические указания по составлению
расчетно-пояснительных записок к курсовым и дипломным проектам. сост.
Черепенников Б.А. Н.В. Околота
6. В.С. Кривцов, Я.С. Карпов, М.Н. Федотов Инженерные основ
функционирования и общее устройство аэрокосмической техники. Харьков:
Национальный аэрокосмический университет "ХАИ".2002.
. Арсон Л. Д., Рябков В. И., Цепляева Т. П. проектирование
лонжеронов: Учеб. пособие. - Харьков: Харьк. авиац. ин-т ,1981. - 67с.
. Пехтерев В. Д., Носик В. Н. Графоаналитический метод
проектирования сжатых панелей: Учеб. пособие. - Харьков: Харьк. авиац. ин-т ,
1984. - 32 с.
. Войт Е.С., Ендогур А.И. Проектирование конструкций
самолётов. 415-с.
. Житомирский Г.И. Конструкция самолётов.401-с.
. Балабуев П.В. Основы общего проектирования самолётов с
газотурбинными двигателями.Ч-2.390-с.
. Поликовский В.И. Силовые установки ЛА с ВРД.261-с.
. Дыбский П.В., Пехтерев В.Д. Топливные системы.44-с.
. Полетучий А.И. Инженерные расчёты и основы конструирования
деталей и механизмов ЛА. 360-с.
. Масляные системы самолётов. Конспект лекций по курсу
"Силовые установки самолётов".1973г.
. Арсон Л.Д., Э.Н.Румянцев. Проектирование линейных
авиационных элементов.31-с.
. Домотенко Н.Т. Авиационные силовые установки.352-с.
. В.Н. Зайцев, Г.Н. Ночевкин Конструкция и прочность
самолетов: Учебник для студентов авиационных ВУЗов, Киев: Высшая школа, 1974 г
. Под редакцией Кононенко В.Г. Технология производства Л.А.:
Курсовое проектирование. Киев: Вища школа. 1974 г., 224с.
. Под редакцией Рудмана Л.И. " Справочник конструктора штампов", Листовая штамповка, М.: Машиностроение, 1988 г., 460с.
. Романовский В.П. Справочник по холодной штамповке, Москва:
Машиностроение, 1979 г., 520с.
. Под редакцией Р.Г. Гордовской, Справочное пособие:
"Единая система конструкторской документации. Общие правила выполнения
чертежей", Москва: Изд. Стандартов, 1984 г., 232с.
. Набатов А.С. Проектирование технологических процессов в
производстве Л.А. и А.Д. Харьков, ХАИ. 1987 г., 98с.
. В.Д. Пехтерев, В.Н. Носик Графоаналитический метод
проектирования сжатых панелей. Учебное пособие по практическим исследованиям,
курсовому и дипломному проектированию. Харьковский авиационный институт, 1984
г., 32с.
. П.В. Дыбский, В.Д. Пехтерев Топливные системы: Учебное
пособие
. Черепенников Б.А., Околота Н.В. Обозначение чертежей и
оформление учебно-конструкторской документации. Методические рекомендации по
курсовому и дипломному проектированию. - Харьков, ХАИ, 1978 г., 57с.
. Л.А. Евсеев Расчет на прочность крыла большого удлинения.
Учебное пособие. Харьков, ХАИ, 1985 г.,106с.
. Л.А. Евсеев, К.В. Миронов, П.А. Фомичев Расчет шасси
самолета на прочность. Учебное пособие. Харьков, ХАИ, 1988 г., 102с.