Система вентиляции Siemens LOGO

  • Вид работы:
    Дипломная (ВКР)
  • Предмет:
    Информатика, ВТ, телекоммуникации
  • Язык:
    Русский
    ,
    Формат файла:
    MS Word
    2,40 Mb
  • Опубликовано:
    2012-02-19
Вы можете узнать стоимость помощи в написании студенческой работы.
Помощь в написании работы, которую точно примут!

Система вентиляции Siemens LOGO














Дипломная работа

по дисциплине: «Микропроцессорные устройства САУ»

на тему: «Система вентиляции Siemens LOGO»

Введение

Автоматизация является одним из важнейших факторов роста производительности труда в промышленном производстве. Непрерывным условием ускорения темпов роста автоматизации является развития технических средств автоматизации. К техническим средствам автоматизации относятся все устройства, входящие в систему управления и предназначенные для получения информации, ее передачи, хранения и преобразования, а также для осуществления управляющих и регулирующих воздействий на технологический объект управления.

Развития технологических средств автоматизации является сложным процессом, в основе которого лежат интересы автоматизируемых производств потребителей, с одной стороны и экономические возможности предприятий - изготовителей с другой. Первичным стимулом развития является повышение эффективности работы производств - потребителей, за счет внедрения новой техники могут быть целесообразными только при условии быстрой окупаемости затрат. Поэтому критерием всех решений по разработкам и внедрению новых средств, должен быть суммарный экономический эффект, с учетом всех затрат на разработку, производство и внедрение. Соответственно к разработке, изготовлению следует принимать, прежде всего, те варианты технических средств, которые обеспечиваю максимум суммарного эффекта.

При строгом выполнении такого принципа разработки и внедрения новых средств, процесс их развития является строго оптимальным и как следствие этого, объективных. Однако достаточно строгое обоснование оптимальности средств на стадии их разработки и внедрения практически невозможно из-за сложности и ограниченной точности оценок суммарного ожидаемого эффекта. Поэтому единственным объективным критерием оптимальности средств может быть только широкий их практической эксплуатации, который позволяет отобразить неудачные решения и развития и развить те принципы, схем и конструкции, которые в целом соответствуют требованиям максимальной экономичности.

Наличие такого критерия позволяет рассматривать развитие технических средств автоматизации как в целом объективный процесс. Соответственно постоянно обновляющиеся составы технических средств автоматизации и их технические характеристики могут расцениваться как приближающиеся в среднем к оптимальным на данной ступени развития материального производства.

Использование автоматизированных линий и машин, автоматических манипуляторов с программным управлением позволит исключить ручной малоквалифицированный труд, особенно в тяжелых и вредных условиях для человека.

Постоянное расширение сферы автоматизации является одной из главных особенностей промышленности на данном этапе.

Особое внимание уделяется вопросам промышленной экологии и безопасности труда производства. При проектировании современной технологии, оборудования и конструкций необходимо научно обосновано подходить к разработке безопасности и безвредности работ.

На современном этапе развития народного хозяйства страны одной из основных задач является повышение эффективности общественного производства на основе научно-технического процесса и более полное использования всех резервов. Эта задача неразрывно связана с проблемой оптимизации проектных решений, цель которых заключается в создании необходимых предпосылок для повышения эффективности капиталовложений, сокращения сроков их окупаемости и обеспечения наибольшего прироста продукции на каждый затраченный рубль. Повышение производительности труда, выпуск качественной продукции, улучшение условий труда и отдыха трудящихся обеспечивают системы вентиляции и кондиционирования воздуха, которые создают необходимый микроклимат и качество воздушной среды в помещениях.

Широкое применение кондиционирования воздуха в производственных и жилых зданиях обусловлено следующими объективными причинами. Развитием новых производств электронной, электротехнической, машиностроительной, химической, текстильной, и других отраслей промышленности, остро нуждающихся в поддержании определенных и постоянных параметров состояния воздуха; возрастающими требованиями к условию труда и повышению производительности в горячих и мокрых цехах, угольных шахтах, рудниках и пр. Оснащением предприятий промышленности связи, научно-исследовательских и конструкторских организаций дорогостоящими приборами и счетно-решающими машинами, точная и безотказная работа которых возможна только при определенных температуре и относительной влажности воздуха; увеличивающимся строительством закрытых помещений для длительного пребывания больших количеств людей (театры, кинотеатры, концертные залы, стадионы, рестораны, вокзалы и т.д.).

Вентиляцией называется совокупность мероприятий и устройств, используемых при организации воздухообмена для обеспечения заданного состояния воздушной среды в помещениях и на рабочих местах в соответствии со СНиП (строительными нормами и правилами). Системы вентиляции обеспечивают поддержание допустимых метеорологических параметров в помещениях различного назначения.

Кондиционирование воздуха - это создание и автоматическое поддержание (регулирование) в закрытых помещениях всех или отдельных параметров (температуры, влажности, чистоты, скорости движения) воздуха на определенном уровне с целью обеспечения оптимальных метеорологических условий, наиболее благоприятных для самочувствия людей, ведения технологического процесса и обеспечения сохранности ценностей культуры.

1. Характеристика объекта автоматизации

.1 Назначение технологического объекта

Система автоматического управления приточно-вытяжной вентиляции. Областью применения системы является поддержание заданных параметров в системе вентиляции и кондиционирования воздуха, защита дорогостоящих агрегатов. Предусматривается использование системы в строящихся и реконструируемых зданий.

приточная вентиляция управление контроллер

1.2 Техническая характеристика объекта

В представленном дипломном проекте разрабатывается система управления приточно-вытяжной вентиляцией офисного помещения. Работа системы включает организацию управления одной системой вентиляции и кондиционирования, которая является основой для разработки подобных систем. Отличительной особенностью данной работы является то, что автоматизация системы разработана на свободно программируемом контроллере пятого поколения LOGO!…0BA5 фирмы «Siemens». Применение контроллеров данного типа экономически эффективно из-за относительно низкой стоимости контроллера и возможностью работы с пассивными датчиками с чувствительными элементами LG-Ni 1000 или Pt 100, а также с датчиками передающие активные выходные унифицированные сигналы DС 0…10В или 4…20мА. Кондиционирование воздуха осуществляется комплексом технических средств, называемым системой кондиционирования воздуха (СКВ). В состав СКВ входят технические средства забора воздуха, подготовки, то есть придания необходимых кондиций (фильтры, теплообменники, увлажнители или осушители воздуха), перемещения (вентиляторы) и его распределения, а также средства хладо и теплоснабжения, автоматики, дистанционного управления и контроля.

СКВ больших общественных, административных и производственных зданий обслуживаются, как правило, комплексными автоматизированными системами управления. Автоматизированная система кондиционирования поддерживает заданное состояние воздуха в помещении независимо от колебаний параметров окружающей среды (атмосферных условий).

В результате технологических и бытовых процессов в воздух помещения поступают тепло и влага. Для поддержания заданных температурно-влажностных условий в помещении необходимо подавать в него приточный воздух с определенными параметрами. Параметры наружного воздуха изменяются во времени. Поэтому прежде чем подать наружный воздух в помещение, его необходимо специально обработать, придав ему определенные кондиции. Процесс создания и поддержания определенных параметров воздушной среды называют кондиционированием воздуха. Обычно при кондиционировании воздуха его в основном подвергают тепловлажностной обработке.

В жаркие летние дни наружный воздух имеет высокую температуру и большую влажность. Перед подачей в помещение такой воздух необходимо охладить, а иногда и осушить. Зимой наружный воздух имеет низкую температуру и небольшую влажность, поэтому перед подачей в помещение его приходиться нагревать и увлажнять.

Установки кондиционирования воздуха имеют специальные устройства для определенных видов его обработки. Нагревают воздух обычно в калориферах, где он получает тепло от оребренных или гладких поверхностей трубок, по которым протекает теплоноситель. Охлаждение воздуха осуществляется в поверхностных или в контактных воздухоохладителях. В поверхностных воздухоохладителях воздух отдает тепло поверхностям трубок, по которым пропускают холодную воду или другой хладоноситель. Если эти поверхности имеют температуру ниже точки росы, то на них выпадает влага из воздуха, и воздух не только охлаждается, но и осушается. Поверхности трубок воздухоохладителя или калорифера в некоторых случаях орошают водой, так как воздух интенсивнее обменивается теплом со смоченной поверхностью.

Кроме того, при орошении водой воздух можно наряду с нагреванием или охлаждением осушать или увлажнять. Наиболее часто воздух проходит через дождевое пространство оросительной камеры, в которой форсунками разбрызгивается охлажденная вода. В некоторых случаях применяют контактные охладители с орошаемой насадкой. В них охлажденной водой орошается слой (насадка) из фарфоровых или металлических колец, древесных стружек проходя через лабиринтовые ходы смоченной насадки, охлаждается и осушается или увлажняется. В последнее время контактные устройства начинают применять также и для нагревания воздуха.

Комплекс технических средств и устройств, для приготовления приточного воздуха с заданными параметрами и поддержания в помещениях оптимального или заданного состояния воздушной среды (независимо от изменения внешних и внутренних факторов), называется системой кондиционирования воздуха. Система кондиционирования позволяет автоматически поддерживать заданную температуру, влажность и скорость движения воздуха, его чистоту, газовый состав, ароматические запахи, содержание легких и тяжелых ионов, а в ряде случаев определенное барометрическое давление. В большинстве жилых, общественных и промышленных зданий современные системы кондиционирования позволяют поддерживать только первые четыре из перечисленных параметров.

Технологическая схема вентиляции


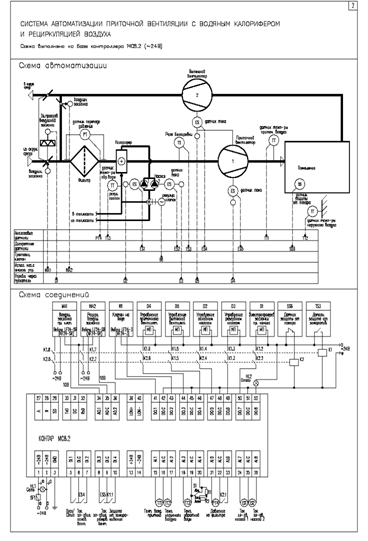
Система управления установкой приточной вентиляции на базе контроллера МС8.2

Контроллер обеспечивает два режима работы установки приточной вентиляции: рабочий и стояночный. В рабочем режиме обеспечивается приточная вентиляция с поддержанием комфортной температуры приточного воздуха, а в стояночном (дежурном) режиме вентилятор выключен, заслонка закрыта.

Контроллер предназначен для автоматизации установок с водяным калорифером - поэтому очень важной функцией является защита от его замораживания при низких температурах наружного воздуха.

Основные функциональные возможности контроллера

В рабочем режиме - ПИ-регулирование температуры приточного воздуха.

Управление включением / выключением вентиляторами в прямом и рециркуляционном каналах, открытием / закрытием воздушных заслонок подающего и рециркуляционного воздуха, включением насоса. При пуске оборудование включается последовательно с временными задержками. При неисправности основного насоса происходит автоматическое переключение на резервный насос.

Пуск / стоп - дистанционный (от внешнего переключателя). Возможность автоматического пуска утром и останова вечером с возможностью учета выходных и праздничных дней.

Защита от замораживания:

В дежурном (стояночном) режиме защита от замораживания обеспечивается ПИ-регулированием температуры обратной воды. Причем задание регулятору формируется по графику - чем ниже температура наружного воздуха, тем выше заданная температура воды. График может иметь до четырех линейных участков.

Для защиты при пуске сигнал на открытие воздушной заслонки прямого канала меняется плавно, а при закрытии быстро. Кроме того, зимой контроллер предварительно, до открытия заслонки и включения вентилятора, выдает сигналы для прогрева калорифера и электропрогрева заслонки. Определение времени года происходит либо автоматически по температуре наружного воздуха, либо вручную в зависимости от положения внешнего переключателя «ВРЕМЯ ГОДА»: «АВТОМАТИЧЕСКИ» \ «ЗИМА» \ «ЛЕТО».

В комплекте с контроллером поставляется воздушная заслонка, снабжённая сервоприводом с возвратной пружиной. При пропадании питания сервопривод автоматически закрывает заслонку, тем самым снижая риск замерзания водяного обогревателя.

В рабочем режиме зимой при понижении температур воздуха притока или обратной воды калорифера контроллер открывает клапан на воде. Если в дальнейшем температура повышается, то регулирование температуры приточного воздуха продолжается. Для защиты от замораживания в контроллере также сравнивается температура обратной воды с расчетной по графику (для текущего значения температуры наружного воздуха).

Если температура продолжает падать еще ниже, то контроллер переводит установку в стояночный режим. Это состояние продлится до тех пор, пока обслуживающий персонал не проверит оборудование, устранит причину и не подтвердит свое вмешательство переводом внешнего переключателя в состояние СТОП, а затем в состояние ПУСК. Для защиты от замораживания зимой автоматически включается насос.

Дополнительная защита происходит через релейные схемы независимо от контроллера при замыкании дискретного датчика, установленного в холодной части калорифера и размыкании датчика пожарной безопасности.

Сигнализацию через дискретный выход контроллера: о возможности замораживания, неисправности датчиков, вентиляторов и насосов, загрязнения воздушного фильтра, и других отказах. Особый алгоритм регулирования при отказах. Архивирование отказов в памяти контроллера.

Индикацию температур, давления на воздушном фильтре, состояния дискретных датчиков и т.д., а также настройку параметров контроллера при помощи встроенного в контроллер пульта оператора. Возможность вывода информации на экран монитора компьютера, Notebook, PDА или другого средства вычислительной техники через RS232C. Возможность связи через интерфейс RS485 с другими контроллерами комплекса КОНТАР, объединенными в единую сеть (в качестве Master или Slave). Возможность наглядного отображения информации о состоянии системы управления через Internet \ Ethernet на компьютер или мобильный телефон - в том числе мгновенная передача информации об отказах: возможности замораживании, обрывах датчиков, пожаре, проблемах напряжения питания контроллера.

Таблица - Пример спецификации для автоматизации установки приточной вентиляции для схемы на базе МС8.2



2. Автоматизация процесса регулирования

.1 Выбор параметров контроля

При автоматизации процесса регулирования в пределах каждого контура возможны различные решения схем. Выбор схемы автоматизации связан с анализом кратковременных суточных изменений режимов работы систем кондиционирования. Он определяется динамическими свойствами системы и предъявляемыми требованиями по точности регулирования, быстродействию и другим показателям.

Для систем кондиционирования различного назначения эти требования варьируются в довольно широких пределах. Например, для комфортного кондиционирования допустимы колебания tв до ±1 (1,5)°С, φв до ±10%, для технологического кондиционирования - tв до 0,5 (1)°С, φв до ±5%, для специальных систем - tв до ±0,1 °С, φв до ±2%. Регулирование приточных вентиляционных систем, как правило, осуществляется только в зимнее время, регулирование систем кондиционирования - в течение всего периода эксплуатации.

По своим динамическим свойствам системы кондиционирования и обслуживаемые ими помещения относятся к объектам с разделенными параметрами, нестационарные процессы в которых описываются дифференциальными уравнениями в частных производных. Аналитическое решение таких уравнений крайне затруднительно, поэтому для инженерных расчетов пользуются упрощенными зависимостями, полностью справедливыми только для объектов с сосредоточенными параметрами. Элементы систем кондиционирования воздуха рассматриваются как инерционные объекты, работающие с запаздыванием.

Анализ суточных изменений расчетных режимов работы систем кондиционирования с учетом нестационарности процессов, происходящих в них, позволяет определить тепловые нагрузки, действующие на системы, и характер их изменения. Такой анализ выполняется по различным методикам, основанным на частных решениях исходной системы дифференциальных уравнений.

Средства автоматизации должны соответствовать требуемой точности поддержания параметров. Устройства автоматики принципиально могут обеспечить любую степень точности поддержания параметров, но бесполезно добиваться точного регулирования, если этого не требует функциональное назначение обслуживаемых помещений или если сама система кондиционирования не способна в некоторой мере реагировать на сигналы регуляторов. Ни по практическим, ни по экономическим соображениям не следует выбирать устройства автоматики, обеспечивающие более точное регулирование, чем это требуется, и отягощать систему специальным сложным оборудованием. Системы кондиционирования воздуха эксплуатируются в течение многих лет, поэтому наилучшей будет простая надежная система автоматики, дающая необходимый эффект.

.2 Выбор регулятора

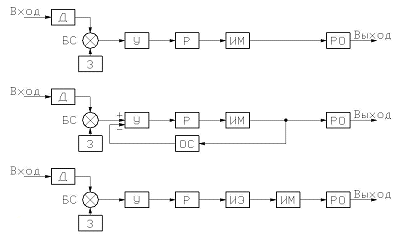
Рисунок 1 - Блок-схемы автоматических регуляторов

На рисунке 1 показаны блок-схемы автоматических регуляторов, применяемых в системах кондиционирования воздуха.

а) двух- и трехпозиционного;

б) пропорционального и пропорционально-интегрального;

в) интегрального.

Д - датчик, чувствительный элемент которого воспринимает изменение регулируемого параметра;

З - задающий элемент, определяющий заданный уровень регулируемого параметра;

БС - блок сравнения,

У - усилитель;

Р - реле;

ИМ - исполнительный механизм;

РО - регулирующий орган, осуществляющий процесс дросселирования подачи рабочей среды или энергии (клапан, заслонка);

ОС - блок отрицательной обратной связи (жесткой или гибкой);

ИЭ - импульсный элемент.

В системах кондиционирования воздуха, как правило, применяют электрические или пневматические приборы автоматического регулирования, осуществляющие следующие алгоритмы регулирования: двух- и трех позиционный, пропорциональный, интегральный пропорционально-интегральный (изодромный) и пропорционально-интегрально-диффиренциальный.

Позиционные регуляторы применяют главным образом в схемах защиты калориферов первой ступени подогрева и реверса воздушных клапанов, иногда их применяют в контурах регулирования температуры приточного воздуха или воздуха в помещении, если допустимы достаточно большие колебания параметров.

В контурах регулирования температуры и влажности большинства систем комфортного и технологического кондиционирования применяют пропорциональные (П) или интегральные (И) регуляторы. П - регуляторы обладают большим быстродействием, но осуществляют процесс регулирования с ошибкой, величина которой пропорциональна возмущающему воздействию на систему автоматического регулирования. В системах с И - регулированием ошибка регулирования меньше, однако, они обладают и меньшим быстродействием. Выбор того или иного регулятора следует обосновывать соответствующим расчетом. В проектной практике выбор осуществляют главным образом по опыту наладке и эксплуатации подобных систем.

Пропорционально-интегральные регуляторы, сочетающие в себе преимущества П- и И - регуляторов, применяют в основном в специальных системах кондиционирования воздуха, обеспечивающих поддержание заданных параметров с высокой точностью.

Повышения качества автоматического регулирования можно добиться не только усложнением алгоритма, но и совершенствованием контура регулирования путем введения дополнительных корректирующих устройств.

Точность поддержания параметров зависит от принятого алгоритма регулирования, а также от места расположения чувствительных элементов датчиков температуры и влажности (особенно устанавливаемых в помещениях). Необходимо учитывать, что поддерживать, например, температуру с отклонениями в пределах ±0,5° в точке установки чувствительного элемента не представляет существенных трудностей, однако на некотором расстоянии от датчика температура зависит от неконтролируемого и весьма сложного процесса лучисто-конвективного и струйного теплообмена в помещении. Поэтому в некоторых случаях в помещениях должно быть установлено несколько датчиков, причем выбор их местоположения необходимо обосновать анализом теплового режима зоны помещения, в которой должны поддерживаться заданные параметры микроклимата. Та или иная схема регулирования должна быть выбрана на основе расчета надежности и обеспеченности заданных режимов и технико-экономического анализа.

В последнее время начинают применяться автоматические системы каскадно-связанного регулирования, в которых для улучшения качества регулирования устраиваются дополнительные связи между каскадами (контурами).

3. Разработка функциональной схемы объекта

Функциональная схема

Контроллер приточной вентиляции ОВЕН ТРМ133 / Функциональная схема прибора


Универсальные измерительные входы

ТРМ133 имеет 7 универсальных входов, к которым можно подключать датчики различных типов:

 термосопроотивления ТСП 50П, 100П (Pt100), 500П, 1000П (Pt1000), ТСМ 50М, 100М, ТСН 100Н, 1000Н;

 термопары ТХК(L), ТХА(К);

 датчики с унифицированным выходным сигналом тока 0...5 мА, 0(4)...20 мА или напряжения 0...1 В;

 датчики положения задвижки (резистивные или токовые).

Универсальные входы используются для измерения:

Тн - температуры наружного воздуха;

Тпр - температуры приточного воздуха;

Тоб - температуры обратной воды в контуре теплоносителя;

Тк1 - комнатной температуры;

Тк2 - комнатной температуры во второй точке (или для подключения задатчика комнатной температуры);

Дпз - положения задвижки;

Двл - влажности (вход со встроенным шунтирующим резистором 100 Ом для прямого подключения датчика с токовым выходом).

Дискретные входы для диагностики исправности системы вентиляции и переключения режимов

дискретных входов ТРМ133 предназначены для подключения следующих датчиков:

С1 - коммутирующее устройство (таймер, тумблер и т.п.) для дистанционного перевода системы в дежурный режим;

С2 - датчик контроля исправности приточного вентилятора по потоку воздуха;

С3 - датчик контроля засорения фильтра приточного (вытяжного) вентилятора;

С4 - датчик перевода системы в режим защиты калорифера от замерзания;

С5 - датчик пожарной сигнализации;

С6 - датчик контроля исправности вытяжного вентилятора.

Выходы для управления вентилятором, жалюзи, КЗР и аварийной сигнализацией

ТРМ133 оснащен следующими встроенными выходными элементами:

 4 э/м реле 4 А 220 В для управления жалюзи, приточным вентилятором, КЗР и устройствами аварийной сигнализации;

 2 ЦАП 4...20 мА или 0...10 В для управления аналоговым КЗР.

При этом ТРМ133 может управлять задвижками как с датчиком положения, так и без него (по математической модели, заложенной в прибор).

Автоматический выбор режимов работы системы приточной вентиляции

ТРМ133 осуществляет автоматический выбор режимов работы системы приточной вентиляции:

 ПОДДЕРЖАНИЕ ТЕМПЕРАТУРЫ ПРИТОЧНОГО ВОЗДУХА (ПИД-регулирование);

 ПРОГРЕВ КАЛОРИФЕРА при запуске системы и при переключении режимов;

 ДЕНЬ/НОЧЬ (по встроенным часам реального времени);

 ДЕЖУРНЫЙ РЕЖИМ (переключение вручную или по сообщению об аварии);

 ЗАЩИТА КАЛОРИФЕРА ОТ ЗАМЕРЗАНИЯ;

 ЗАЩИТА СИСТЕМЫ ОТ ПРЕВЫШЕНИЯ ТЕМПЕРАТУРЫ ОБРАТНОЙ ВОДЫ по графику;

 ЛЕТНИЙ РЕЖИМ.

Высокая точность поддержания температуры благодаря ПИД-регулированию

Благодаря использованию в ТРМ133 ПИД-закона регулирования достигается высокая точность поддержания температуры приточного воздуха и обратной воды. Высокую точность обеспечивает также современный алгоритм автонастройки прибора на объекте.

Кроме того, в ТРМ133 используются несколько контуров ПИД-регулирования (их число зависит от модификации), что позволяет гибко настраивать прибор для работы в разных режимах.

Современный эффективный алгоритм АВТОНАСТРОЙКИ ПИД-регулятора: разработан компанией ОВЕН совместно с ведущими российскими учеными

При автонастройке прибор вычисляет оптимальные для данного объекта значения коэффициентов ПИД-регулирования. Последующая несложная ручная подстройка позволяет свести к минимуму перерегулирование.


Обеспечение надежной и безопасной работы системы приточной вентиляции

Высокую помехозащищенность, безопасность и надежность работы системы вентиляции под управлением ТРМ133 обеспечивают:

 цифровая фильтрация аналоговых входов и защита от «дребезга» дискретных входов;

 импульсный широкодиапазонный блок питания, стабилизирующий параметры контроллера;

 подробная диагностика исправности узлов системы вентиляции и измерительных датчиков с выдачей аварийных сообщений на дисплей;

 наличие режима ДЕЖУРНЫЙ, в который система переводится в случае аварии (например, при пожаре).

Кроме того, все основные узлы ТРМ133 - блок питания, входы, выходы и модуль интерфейса RS-485 - имеют высоковольтную гальваническую изоляцию друг от друга.

Интерфейс связи RS-485

В ТРМ133 установлен модуль интерфейса RS-485, организованный по стандартному протоколу ОВЕН. Интерфейс RS-485 позволяет:

 конфигурировать прибор на ПК (программа-конфигуратор предоставляется бесплатно);

 передавать в сеть текущие значения измеренных величин, выходной мощности регулятора, а также любых программируемых параметров;

 получать из сети оперативные данные для генерации управляющих сигналов.

ТРМ133 может работать в сети только при наличии в ней «мастера», функцию которого может выполнять, например, персональный компьютер.

Подключение ТРМ133 к ПК производится через адаптер ОВЕН АС3-М или АС4.

При интеграции ТРМ133 в АСУ ТП в качестве программного обеспечения можно использовать SCADA-систему Owen Process Manager <#"510761.files/image008.gif">- потребляемая мощность;- мощность вращающего поля;- мощность на валу;Сu1 - потери на статоре;- потери на роторе;- потери на железо;- потери на трение.

Рисунок 2 - Структура охлаждения

После включения двигателя и затухания переходного процесса в двигателе устанавливается начальный пусковой ток. Величина начального пускового тока составляет от 4-х до 8-кратной величины тока, при номинальном режиме работы и не зависит от момента нагрузки; таким образом, работает ли двигатель на холостом ходу, или под нагрузкой - значения не имеет. В отличие от этого, время разгона находится в зависимости от характеристик рабочей машины.

Причины тепловой перегрузки:

· из-за повышенного крутящего момента при работе под нагрузкой в продолжительном режиме;

· из-за слишком большой частоты включений;

· из-за слишком продолжительного относительного включения при повторно-кратковременном режиме;

· из-за слишком продолжительных процессов разгона и торможения;

· из-за блокирования ротора при включении или в процессе работы;

· при работе от вентильных преобразователей тока.

Другими причинами тепловой перегрузки могут быть ошибочное подключение или коммутация, а также определенные качества сети, такие как:

· слишком большие отклонения частоты или напряжения в сети от номинальных значений;

· асимметрия сети и обрыв сетевого провода (выпадение фазы).

А также на двигатель негативно сказывается недостаточное охлаждение вследствие:

· высокой температуры охлаждающей среды;

· повышенного уровня места установки (разряженный воздух при установке на высоте более 1000 м над уровнем моря);

· нарушение потока охлаждения (засорение вентиляционной решетки).

Самой важной задачей устройства защиты двигателя является своевременное срабатывание, прежде чем температура двигателя достигнет критического значения. Однако, устройства защиты не должны срабатывать, если двигатель:

· работает в продолжительном режиме работы при номинальной мощности;

· в течение допустимого времени разгона и торможения по двигателю проходит начальный пусковой ток;

· перегружен в течение 2 минут в разогретом состоянии 1,5 - кратным номинальным током.

Устройства защиты двигателя могут работать по принципу зависимости от тока, либо от температуры.

Тепловые реле 3RU фирмы «Siemens» с токовой зависимостью и расцепитель перегрузки в силовых автоматах 3RV работают с биметаллическими пластинами и обмотками накала, которые нагреваются от тока двигателя.

В расцепителях перегрузки биметаллические пластины освобождают защелку механизма блокировки, а в реле перегрузки срабатывает вспомогательный контакт, который разрывает контур тока в катушке контактора двигателя. Происходит остановка двигателя и система сигнализирует об аварии двигателя.

При асимметрии сети, и особенно при отсутствии тока в одном из проводов, резко возрастает ток в двух других проводах, и потери в двигателе становятся в 1,5-2 раза выше, чем при номинальном режиме. Реле перегрузки, не имеющие чувствительных элементов к обрыву фазы, срабатывает при этом с запаздыванием. По нормам, предельный ток отключения может быть в этом случае на 10% выше, т.е. составляет максимально 1,32 - кратную величину тока уставки. Продолжительная работа в условиях такой нагрузки может привести к преждевременному выходу двигателя из строя.

Для того, чтобы в условиях асимметрии сети и однофазного режима работы обеспечить надежную защиту двигателя, реле перегрузки и расцепители дополнительно оснащают дифференциальной защитой и толкателем, который выполняет более раннее отключение.

Тепловые реле защиты с токовременной зависимостью и силовые автоматы обеспечивают высокую степень защиты при низкой стоимости. При их использовании возможна экономическая защита двигателя, особенно в нижнем диапазоне мощностей.

Так же в двигателях присутствует встроенная защита от перегрева (термостат). При возрастании температуры на двигателе релейный контакт термостат даст сигнал в щит управления об аварии двигателя.

Защита водяного калорифера

В зимний период работы системы вентиляции нагрев воздуха осуществляется водой в теплообменнике. Он изготовлен из металлических трубочек с алюминиевым оребрением. В случае замерзания воды в этих трубках происходит их разрыв, что приводит к вытеканию воды из системы, и в дальнейшем требует ремонта или замены теплообменника.

Для защиты от замерзания воды необходимо предусмотреть комплекс

мероприятий:

· обеспечить скорость протекания воды не ниже минимально допустимой;

· установить защиту по температуре воздуха и обратной воды;

· в случаи срабатывания защиты обеспечить отключение вентилятора, закрытие воздушного клапана и открытие регулирующего вентиля.

Для обеспечения скорости протекания жидкости устанавливаем циркуляционный насос.

Для защиты по воздуху устанавливает капиллярный термостат. Капилляр устанавливается за теплообменником, перекрывая все сечение воздуховода. Термостат срабатывает при температуре воздуха 5 °С, замыкая релейный контакт выдает сигнал в щит управления.

Для защиты по воде на выходе трубопровода с обратной водой устанавливается накладной термостат. Термостат срабатывает при температуре воды 20 °С, замыкая релейный контакт выдает сигнал в щит управления.

.2 Функции контроля

Контроль засорения фильтра

Для очистки воздуха от мелких предметов и от пыли на входе воздуха в систему установлен фильтр. Со временем фильтр засоряется, что приводит к увеличении нагрузки на двигателе. Для контроля засорения фильтра устанавливают реле давления, которое измеряет перепад давления до и после фильтра. В случае срабатывания реле, его контакт передает сигнал в щит управления.

Контроль работы двигателя

Для контроля работы двигателя устанавливают реле давления, которое меряет наличие перепада давления до и после двигателя. Во время работы двигателя контакт датчика реле давления находится в замкнутом состоянии. В случае остановки двигателя (пропадания напряжения на двигателе и других возможных аварий) контакт датчика реле давления размыкается, и сигнал передается в щит управления.

Контроль температуры воды в обратном трубопроводе

В дежурном режиме воздушный клапан закрыт, вентилятор выключены. Регулирование осуществляется по температуре Тобр, которая поддерживается равной Тобр.зад. При превышении температуры Тобр над заданным значением контроллер переключается на ее регулирование с целью недопущения перегрева воды, возвращаемой в тепловую сеть. Контроль превышения Тобр активизируется с задержкой после включения вентилятора. При снижении температуры Тобр ниже значения Тзмр система переключается в режим прогрева с целью предотвращения замораживания калорифера.

Функции регулирования.

Во время работы системы температура приточного воздуха Tпр.в поддерживается равной заданной 22 °С. Сигнал с датчика температуры приточного воздуха поступает на вход ПИ регулятора контроллера, который вырабатывает управляющий сигнал на открытие или закрытия клапана. В зимний период работы, подогревая воздух, а в летний охлаждая. Регулирование температуры осуществляется с помощью регулирующего клапана.

.3 Функции измерения

Система автоматики обрабатывает сигналы, поступающие на вход (Тн.в., Тпр.в., Тобр) по заданной программе и формирует сигналы управления и регулирования, а также отображая значение температуры.

.4 Функции управления

Управление системой осуществляется в ручном режиме с помощью кнопок и переключателей, расположенных на панели управления за дверцей щита и в автоматическом режиме. Управление запуском насосов и двигателей происходит с контроллера при благоприятных параметрах системы.

.5 Описание функциональной схемы

На функциональной схеме показан принцип автоматизированного управления приточной и вытяжной вентиляции, чертеж ДП АТ061 К897 Э2.

Во время работы системы наружный воздух, через воздухозаборную решетку, поступает в приточную установку, проходит через открытый воздушный клапан, затем через шумоглушитель проходит в секцию карманного фильтра. После этого очищенный воздух проходит через секцию нагрева и в зимний режим работы подогревается до температуры 22 °С. Затем воздух проходит через камеру охлаждения и в летнем режиме работы охлаждается. Дальше воздух попадает в секцию вентилятора, где создается напор и после секции шумоглушителя по воздуховодам попадает в обслуживаемые помещения.

Температура приточного воздуха измеряется датчиком (16а). Измеренная температура передается в щит управления, и контроллер вырабатывает сигнал на запорно-регулирующие клапана (8а, 11а).

В системе предусмотрен контроль засорения фильтра. Когда перепад давления до и после фильтра превысит 100Па датчик (4а) замкнет свои контакты и этот сигнал включит световую сигнализацию и если в течение 72 часов фильтр не почистит или не заменят, остановит систему.

В системе предусмотрена защита калориферов от замерзания. Когда температура воды в обратном трубопроводе снижается ниже 20 °С, сигнал от датчика (5а) поступает в щит управления. Также предусмотрена защита по температуре воздуха после калорифер. Датчик (9а) выработает сигнал при температуре 5 °С который поступит в щит управления. При поступлении одного из сигналов происходит остановка вентилятора, закрывается сблокированный с ним клапан наружного воздуха и полностью открывается трехходовой клапан (8а) для максимального увеличения расхода теплоносителя. Таким образом, движение холодного воздуха прекращается, а циркуляция теплоносителя через калорифер продолжается. Вследствие отсутствия теплосъема, температура охлажденного теплоносителя начинает повышаться. При достижении температуры теплоносителя 50 °С вентилятор включается, клапан наружного воздуха открывается, и работа воздухонагревателя возобновляется.

По датчику температуры наружного воздуха (1а) происходит переключение режимов работы зимний или летний. В зависимости от режима работы воздух либо нагревается или охлаждается. Для регулирования температуры приточного воздуха применяют узел управления подачей теплоносителя в воздухонагреватель. Схема узла управления УУ1 показана на рисунке 3.

Вода из теплосети проходит через балансировочный клапан и фильтр и поступает в теплообменник, отдает часть тепла и возвращается в теплосеть. Циркуляционный насос создает подмешивание воды приточной с обратной водой, которая поступает в приточный трубопровод в зависимости от положения регулирующего клапана.

Рисунок 3 - Схема узла управления УУ1.

- Накладной термостат защиты калорифера от замерзания по воде.

- Циркуляционный насос.

- Показывающий стрелочный манометр.

- Показывающий стрелочный термометр.

- Фильтр.

- Накладной датчик температуры обратной воды.

- Балансировочный клапан.

- Отсечной шаровой кран.

- Трехходовой клапан с электроприводом.

Регулирующий клапан увеличивает или уменьшает поступление обратной воды в теплообменник в зависимости от температуры приточного воздуха или температуры обратной воды, которую измеряет накладной датчик температуры. Накладной термостат обеспечивает защиту теплообменника от замерзания теплоносителя. Если температура воды будет ниже 0 °С, то произойдет замерзание теплоносителя и приводит к разрыву трубок теплообменника, который ремонту не подлежит, а замен дорогостоящий.

В летнем режиме работы регулированием подачей холодоносителя применяется узел управления подачей холодоносителя в воздухоохладитель. Узел управления подачей холодоносителя в воздухоохладитель УУ2 показан на рисунке 4.


Рисунок 4 - Подача хладоносителя в воздухоохладитель УУ2.

2 - Циркуляционный насос.

- Показывающий стрелочный манометр.

- Показывающий стрелочный термометр.

- Фильтр.

- Балансировочный клапан.

- Отсечной шаровой кран.

- Трехходовой клапан с электроприводом.

Вода из холодильной машины проходит через балансировочный клапан и фильтр и поступает в секцию охлаждения, нагревается и возвращается в теплосеть. Циркуляционный насос создает подмешивание воды приточной с обратной водой которая поступает в приточный трубопровод в зависимости от положения регулирующего клапана. Регулирующий клапан увеличивает или уменьшает поступление обратной воды в теплообменник в зависимости от температуры приточного воздуха.

4. Разработка принципиальной электрической схемы

На принципиальной схеме изображаются все электрические элементы и устройства, необходимые для осуществления и контроля в изделии заданных электрических процессов, все электрические связи между ними, а также электрические элементы (соединители, зажимы и т.п.), которыми заканчиваются входные и выходные цепи, чертеж ДП АТ061 К897 Э3.

Система имеет два режима работы зимний и летний. В зимний период работы системы воздух перед подачей в обслуживаемое помещение подогревается, а в зимний охлаждается. Тепло и хладоносителем в нашей системе является вода. Переключение происходит автоматически либо в ручную. Автоматический переход происходит по датчику температуры наружного воздуха с гистерезисом. Переход с зимнего на летний при температуре 12 °С, а с летнего на зимний при температуре 8 °С. В ручном режиме с помощью переключателей (SA1, SA2). Рассмотрим по отдельности эти режимы.

.1 Режим работы в зимний период

Дежурный режим

В дежурном режиме воздушные клапаны закрыты, вентиляторы приточной и вытяжной установки выключены, на щите лампы «СЕТЬ» (HL1), «ЗИМНИЙ РЕЖИМ» (HL5), «ВОЗДУШНЫЙ КЛАПАН ЗАКРЫТ» (HL4) и «СТОП» (HL3) находятся во включенном состоянии. Циркуляционный насос в узле регулирования подачей теплоносителя работает, регулирование осуществляется по температуре Тобр., которая поддерживается равной Тобр.зад.

Пуск системы

Переход из дежурного режима в режим вентиляции возможен только после прогрева калорифера. Для запуска системы необходимо нажатькнопку «ПУСК» (SB1) расположенную на лицевой панели за дверцей щита. При этом лампа «СТОП» (HL3) выключится и включится лампа «ПУСК» (HL2) и система перейдет в режим прогрева. В режиме прогрева воздушные клапана закрыты, вентиляторы выключены. Регулирование осуществляется по температуре Тобр., которая доводится до значения Тпуск, после чего на клапан подается дополнительный «упреждающий» импульс на открытие, и после заданной задержки, система перейдет в режим вентиляции.

Режим вентиляции

При подаче напряжения на двигатель вентилятора одновременно подается сигнал на открытие воздушного клапана и в течение 10 секунд должен поступить сигнал об открытии клапана и выключится лампа «ВОЗДУШНЫЙ КЛАПАН ЗАКРЫТ».

В режиме вентиляции регулирование осуществляется по температуре приточного воздуха Тпрв, которая поддерживается равной Тпрв.зад. При превышении температуры Тобр над заданным значением контроллер переключается на ее регулирование с целью недопущения перегрева воды, возвращаемой в тепловую сеть. Контроль превышения Тобр активизируется с задержкой после включения вентилятора.

Аварийные режимы

Опасность замерзания калорифера.

При срабатывании контактных датчиков защиты по воде или по воздуху система переходит в дежурный режим и загорается лампа «ОПАСНОСТЬ ЗАМЕРЗАНИЯ». После пропадания сигнала система переходит в режим прогрева и заново запускается.

Авария двигателя

При срабатывании контактного датчика воздушного потока или термостата перегрева двигателя в режиме вентиляции система переходит в дежурный режим и включается лампа «АВАРИЯ ДВИГАТЕЛЯ». Сброс сброса аварии осуществляется нажатием кнопки «СТОП».

Засорение фильтра

При срабатывании контактного датчика воздушного потока загорается лампа «ФИЛЬТР ЗАСОРЕН». И если в течение 72 часов систему не остановят и не почистят фильтр, переведет систему в дежурный режим.

Воздушный клапан не открылся

После подачи сигнала открытия на привод воздушного в течение 10 секунд сигнал о закрытии клапана поступает, то система переходит в дежурный режим, а лампа ВОЗДУШНЫЙ КЛАПАН ЗАКРЫТ» включается и выключается с интервалом 1 секунда.

.2 Режим работы в летний период

Дежурный режим

В дежурном режиме воздушные клапаны закрыты, вентиляторы приточной и вытяжной установки выключены, на щите лампы «СЕТЬ» (HL1), «ВОЗДУШНЫЙ КЛАПАН ЗАКРЫТ» (HL4) и «СТОП» (HL3) находятся во включенном состоянии. Циркуляционный насос работает. Регулирование не осуществляется.

Пуск системы

Для запуска системы необходимо нажать кнопку «ПУСК» (SB1), расположенную на лицевой панели за дверцей щита. При этом лампа «СТОП» (HL3) выключится и включится лампа «ПУСК» (HL2) и система перейдет в режим вентиляции.

Режим вентиляции

При подаче напряжения на двигатель вентилятора одновременно подается сигнал на открытие воздушного клапана и в течение 10 секунд должен поступить сигнал об открытии клапана и выключится лампа «ВОЗДУШНЫЙ КЛАПАН ЗАКРЫТ» (HL4).

В режиме вентиляции регулирование осуществляется по температуре приточного воздуха Тпрв, которая поддерживается равной Тпрв.зад.

Аварийные режимы

Авария двигателя.

При срабатывании контактного датчика воздушного потока или термостата перегрева двигателя в режиме вентиляции система переходит в дежурный режим и включается лампа «АВАРИЯ ДВИГАТЕЛЯ» (HL8).

Сброс сброса аварии осуществляется нажатием кнопки «СТОП» (SB2).

Засорение фильтра.

При срабатывании контактного датчика воздушного потока загорается лампа «ФИЛЬТР ЗАСОРЕН» (HL6). И если в течение 72 часов систему не остановят и не почистят фильтр, переведет систему в дежурный режим.

Воздушный клапан не открылся.

После подачи сигнала открытия на привод воздушного клапана в течение 10 секунд сигнал о закрытии клапана поступает, то система переходит в дежурный режим, а лампа «ВОЗДУШНЫЙ КЛАПАН ЗАКРЫТ» (HL4) включается и выключается с интервалом 1 секунда.

При поступлении сигнала с пульта пожарной охраны система переключится в дежурный режим без автоматического перезапуска при пропадании сигнала.

Значения уставок системы указаны в таблице №4.1.

Таблица №4.1 - значение уставок системы

Параметр

Наименование

Значение

Тпрз

Заданная температура приточного воздуха.

22 °С

Тобр. зад.

Заданная температура воды в обратном трубопроводе.

45 °С

Тобр.змр.

Минимальная температура воды в обратном трубопроводе.

20 °С

Тлетн.

Температура наружного воздуха, при котором система меняет режим работы.

10 °С


4.3 Разработка схемы внешних соединений

На схеме соединений изображены все устройства и элементы, входящие в состав изделия, их входные и выходные элементы (соединители, платы, зажимы и т.п.), а также соединения между этими устройствами и элементами.

На схеме показано соединение всех датчиков, исполнительных механизмов, двигателей, питающих кабелей к щиту управления, а также передача этих сигналов на микроконтроллер.

Дискретные датчики и исполнительные механизмы подсоединяются к щиту контрольным кабелем КВВГ, а аналоговые датчики подключаются экранированным кабелем МКЭШ. При подключении к щиту управления экраны кабелей соединяются между собой на шине заземления.

Щиты управления и агрегаты систем должны быть заземлены согласно требованиям ПУЭ.

Все подключенные кабели и провода должны быть отмаркированны согласно проекту.

5. Выбор средств автоматизации

В данном проекте используется значительное количество различных датчиков, приводов, контроллеров и другого оборудования систем автоматики. Однако особое внимание уделяется свободно программируемому контроллеру LOGO фирмы «Siemens», т. к. он является основой всей системы автоматики. На остальные изделия будет дана лишь ознакомительная информация.

.1 Выбор главных элементов управления

Контроллер

Общие данные

Логические модули LOGO! являются компактными функционально законченными универсальными изделиями, предназначенными для построения простейших устройств автоматики с логической обработкой информации.

Алгоритм функционирования модулей задается программой, составленной из набора встроенных функций. Программирование модулей LOGO! Basic может производиться с их клавиатуры без использования дополнительного программного обеспечения. Стоимостные показатели модулей настолько низки, что их применение может оказаться экономически целесообразным даже в случае замены устройств, включающих в свой состав 2 многофункциональных реле времени или 2 таймера и 3-4 промежуточных реле.! включает в себя:

· устройство управления;

· панель управления и индикации с фоновой подсветкой;

· блок питания;

· интерфейс для модулей расширения;

· интерфейс для программного модуля (платы) и кабеля PC;

· стандартные готовые функции, часто используемые на практике, например, функции задержки включения и выключения, импульсное реле и программный выключатель;

· часовой выключатель;

· цифровые и аналоговые флаги;

· входы и выходы в соответствии с типом устройства.! предлагает решения различных технических задач, в том числе в электрооборудовании жилых помещений (например, освещение лестничных клеток, внешнее освещение, шторы, жалюзи, освещение витрин магазинов и т.д.), в коммутационных шкафах, в управлении машинами и аппаратами (например, системы управления воротами, вентиляционные системы или насосы для хозяйственной воды и многое другое).! можно использовать также для специальных систем управления в оранжереях и теплицах, для предварительной обработки сигналов управления и, при подключении коммуникационного модуля (напр., AS Interface), для децентрализованного управления машинами и процессами на месте.

Все встроенные входы модулей могут использоваться для ввода дискретных сигналов. Напряжение питания входных цепей соответствует напряжению питания модуля. В некоторых моделях 2 из 8 входов имеют универсальное назначение. Они могут использоваться для ввода дискретных сигналов или аналоговых сигналов 0…10В.

Модули LOGO! Contact предназначены для бесшумной коммутации трехфазных цепей переменного тока напряжением до 400В с активной нагрузкой до 20А или короткозамкнутыми асинхронными двигателями мощностью до 4кВт.

Модули выпускаются в двух модификациях, отличающихся напряжением питания обмотки управления: =24В или ~230В. Модули не подключаются к внутренней шине LOGO! Для управления их обмотками необходимо использовать соответствующие дискретных выходы модулей LOGO! или DM8/DM16.

Блоки питания LOGO! Power преобразуют сетевые напряжения ~115/230В в выходное напряжение =12В или =24В с различными значениями тока нагрузки. Модули обеспечивают защиту нагрузки от коротких замыканий.

Для долговременного хранения резервной копии, защиты от несанкционированного доступа и копирования программы, а также переноса программ с одного логического модуля на другой может использоваться универсальный модуль памяти.

Программирование модулей LOGO! Basic может выполняться с клавиатуры с отображением информации на встроенном дисплее. Процесс программирования сводится к последовательному соединению встроенных функциональных блоков и заданию параметров настройки (задержек включения / выключения, значений счетчиков и т.д.). Для выполнения всех этих операций используется система встроенных меню. Готовая программа может быть переписана в модуль памяти, вставленный в интерфейс модуля LOGO!

Все встроенные функции хранятся в памяти логического модуля в виде двух библиотек. Библиотека GF содержит набор функций, выполняющих все основные логические операции. В библиотеку SF собраны специальные функции: триггеры, счетчики, таймеры, импульсные реле, компараторы, генераторы импульсов и т.д.

Пакет LOGO! Soft Comfort позволяет производить разработку и отладку программ для LOGO! на компьютере, документировать программы и эмулировать работу разрабатываемого устройства. Поддерживается программирование в виде функциональных блоков и релейно-контактных схем. Пакет может работать под управлением операционных систем Windows 95/98/NT/ME/2000/XP, Linux, MAC OS-X.

Готовая программа может загружаться в память логического модуля через кабель ПК или записываться в модуль памяти через специальное устройство LOGO! Prom.

Максимальная надежность устройств и компонентов LOGO! достигается реализацией широкомасштабных и влияющих на величину издержек мероприятий при разработке и изготовлении.

Сюда относятся:

· использование высококачественных компонентов;

· проектирование всех цепей в расчете на наихудшие условия;

· систематическое автоматизированное тестирование всех компонентов;

· тренировка всех схем высокой интеграции (напр., процессоров, памяти и т.д.);

· меры по предотвращению статического разряда при работе с интегральными МОП-схемами;

· визуальный контроль на различных этапах изготовления;

· испытание на нагрев при длительной работе при повышенной температуре окружающей среды в течение нескольких дней;

· тщательные окончательные приемочные испытания под управление компьютера;

· статистический анализ всех возвращенных систем и компонентов для немедленного проведения корректирующих мероприятий;

· контроль важнейших компонентов устройства управления с использованием онлайнового тестирования (циклическое прерывание для CPU и т.д.).

Различные модели модулей оснащены транзисторными или релейными выходами. Транзисторные выходы способны коммутировать токи до 0.3А в цепях напряжением =24В и оснащены электронной защитой от короткого замыкания. Релейные выходы способны коммутировать токи до 10А (активная нагрузка) или до 3А (индуктивная нагрузка) в цепях напряжением =12/24В, ~24В или ~/= 115/240В.

Для увеличения количества обслуживаемых входов-выходов и максимальной адаптации к требованиям решаемой задачи к каждому логическому модулю LOGO! могут подключаться модули расширения.

Модули DM8 имеют 8-, модули DM16 - 16 канальную структуру (4 входа/4 выхода или 8 входов/8 выходов). Релейные выходы модулей при активной нагрузке способны коммутировать токи до 5А. Внутренняя шина модулей DM8/DM16 может быть подключена только к модулю с таким же уровнем напряжения питания.

Коммуникационные модули позволяют производить подключение логических модулей к сетям AS-Interface, EIB и LON. В сети AS-Interface модули LOGO! способны выполнять функции интеллектуальных ведомых устройств, в сетях EIB и LON - функции ведущих устройств. Коммуникационные модули рекомендуется устанавливать последними в линейке расширения. По внутренней шине они могут подключаться к модулям с любым напряжением питания.

Механическое устройство модулей контроллера

Таблица №2 - расшифровка позиций

1. Источники питания

5. Панель управления

9. Механическое кодиование - шрифты

2. Входы

6. ЖКД

10. Механическое кодиование - гнезда

3. Выходы

7. Индикатор состояния

11. Защелка

4. Гнездо для модуля с крышкой

8. Интерфейс расширения

12. Клемма PE для подключения экрана аналоговой изм. линии.


На рисунке 8-9 приведено механическое устройство модулей контроллера «LOGO!», а в таблице 2 расшифровка позиций.

Технические характеристики

В таблице №3 указаны технические характеристики контроллера.

Таблица №3 - технические характеристики контроллера

Входное напряжение

24 В

Допустимый диапазон

20,4 … 28,8 В

Потребление тока из источника 24 В

20…75 мА

Входное напряжение: 0 1

 <5В >12 В

Время цикла для формирования аналоговых значений

Диапазон температуры для аналогового входа АМ2 Pt100

-50…+200 °С

Аналоговый выход

=0…10 В


.2 Выбор вспомогательных элементов управления

Датчики

Первичный измерительный преобразователь температуры типа QAC2010

Наружные датчики предназначены для измерения наружной температуры и, в меньшей степени - уровня солнечной радиации, влияния ветра и температуры стены здания.

Датчик может использоваться в качестве:

•контрольного датчика для управления температурой подающей в зависимости от погодных условий;

•измерительного датчика в целях оптимизации.

Наружный датчик с чувствительным элементом Pt 100 Ом при 0 °С. Датчик помещен в пластмассовый корпус со снимающейся крышкой.

Чувствительный элемент залит синтетической резиной. Доступ к клеммам для подключения датчика обеспечивается после снятия крышки. Кабель подключается либо с тыльной стороны (скрытая проводка), либо с нижней стороны (открытая проводка). В нижнюю часть корпуса может вкручиваться уплотнитель кабельного ввода Рk11.

Технические характеристики:

диапазон измерения: -50…+70 0С;

чувствительный элемент Pt 100 Ом при 0 °С;

допустимые отклонения: ±1 0С при -10…+20 °С

постоянная времени: 10 мин.;

допустимая влажность: 5…100%;

степень защиты корпуса: IP43;

вес: 0,120 кг;

В зависимости от цели использования, датчик может устанавливаться:

• Для контроля:

На стене дома или здания, на которой имеются окна, выходящие из жилых помещений. При этом на датчик не должны падать солнечные утренние лучи. Если это не гарантируется, его лучше установить на стене с северной или с северо-западной стороны.

Для оптимизации:

Во всех случаях - на самой холодной стене дома или здания (обычно на стене с северной стороны). Попадание на датчик солнечных утренних лучей не допускается.

Высота установки:

Предпочтительно посередине стены дома или здания, или зоны обогрева, но не ниже 2,5 м от уровня земли.

Не допускается крепление датчика в следующих местах:

Над окнами, дверьми, вентиляционными решетками и другими источниками тепла;

Под балконами или козырьками крыш.

Во избежание ошибок измерения, вызванных циркуляцией воздуха, кабельный ввод датчика необходимо закрыть уплотнителем. Покраска корпуса датчика не допускается.

Датчик-реле перепада давления воздуха QBM81.5

Используется для контроля перепада давления, а также для контроля за пониженным и повышенным давлением в системах вентиляции и кондиционирования воздуха.

Применяется для контроля:

· засорения фильтра;

· аварийной остановки двигателя.

Принцип действия: перепад давления между обоими соединениями деформирует пружинную диафрагму.

Он пригоден для крепления на воздуховодах или стенах. Рекомендуемая ориентация - вертикальная, хотя в принципе приемлемо любое местоположение. Соединительные трубки могут иметь произвольную длину, однако если они длиннее 2-х метров, время реакции на перепад давления увеличивается. Датчик должен устанавливаться таким образом, чтобы он находился сверху от точек соединения. Для того чтобы избежать конденсации, трубопроводы должны прокладываться так, чтобы от точек соединения их с датчиком-реле трубопроводный участок имел уклон (без образования петли).

Диапазон измерения 50…500Па. Производитель фирма «Siemens».

Термостат накладной типа RAK-TW.5000

Термостат осуществляет контроль защиты от замерзания по температуре воды в обратном трубопроводе, снабжен однополюсным перекидным микропереключателем. Установленная пороговая температура отображается в окошке на корпусе термостата.

При достижении температуры уставки при понижении температуры (функция защиты), перекидной контакт выработает сигнал и передаст его в щит управления.

Диапазон измерения 5…65 °С. Производитель фирма «Siemens».

Первичный измерительный преобразователь температуры типа QAC 21

Накладной датчик температуры предназначен для измерения температуры в трубопроводе. Измерение температуры в трубопроводе производится для контроля или ограничения температуры потока, ограничение температуры воды обратного трубопровода, контроля горячей воды.

Чувствительный элемент Pt100 снимает показания температуры трубопровода. Сопротивление чувствительного элемента изменяется в зависимости от температуры среды.

Диапазон измерения -30…+130 °С. Производитель фирма «Siemens».

Термостат защиты от замерзания типа QAF81.3

Термостат контролирует температуру воздуха после теплообменника в системе вентиляции и кондиционирования тем самым, защищая его от замерзания и последующего разрушения теплообменника.

Газонаполненный капилляр, соединенный с диафрагмированной камерой, представляет собой измерительный элемент, который механически связан с микропереключателем. Термостат чувствителен к падению температуры ниже установленного порога на длине участка капилляра 30 см.

При превышении температуры выше порога происходит автоматический сброс термостата.

Капилляр термостата должен быть установлен непосредственно после калорифера по потоку воздуха (до калорифера - в случае охлаждающего теплообменника). Его необходимо уложить петлями в плоскости, параллельной теплообменнику, на расстоянии от теплообменника около 5 см на специальных кронштейнах. Капилляр термостата должен перекрывать все сечение воздуховода после калорифера. Диапазон измерения -5…+15 °C. Производитель фирма «Siemens».

Первичный измерительный преобразователь температуры типа QAM2110.040

Канальный датчик температуры используется в установках кондиционирования воздуха в качестве:

датчика температуры входящего или выходящего воздуха.

датчика-ограничителя (например, ограничение по минимуму) в приточном канале.

управляющего датчика, как например, для регулирования температуры помещения по наружной температуре.

датчика точки росы.

измерительного датчика, как например, для индикации измеряемых величин или подачи данных измерении централизованной системы контроля.

Технические характеристики:

рабочий диапазон: -50 +80 °С;

измерительный элемент: Pt100 Ом/0 °C;

постоянная времени: 30 с;

Место установки:

в установках кондиционирования воздуха после воздуходувки, если она является последней конструктивной единицей, в ином случае после последней конструктивной единицы на расстояние не менее 0,5 м.

в вытяжном канале всегда до вытяжного вентилятора.

в качестве ограничителя температуры входящего воздуха по возможности ближе к помещению.

при регулировании влажности воздуха по методу точки росы непосредственно после каплеуловителя увлажнителя.

чувствительный элемент не должен касаться стенок канала.

Диапазон измерения -30…+120 °C. Производитель фирма «Siemens».

Исполнительные механизмы и насосы.

Привод воздушного клапана типа GMA126.1E

Электропривод воздушного клапана со встроенной пружиной возврата предназначен для открытия и закрытия клапана. Воздушный клапан перекрывает поступление воздуха в помещение и из него через воздуховоды системы вентиляции.

Двух позиционные привод имеет угол поворота 90°. У него имеется встроенный дополнительные контакты, настроенные на срабатывание на угле 5°…90°. Производитель фирма «Siemens».

Циркуляционный насос типа UPS 25-20

В системах кондиционирования воздуха насосы являются ответственным элементом систем тепло- и холодоснабжения аппаратов для изменения параметров воздуха. От надежной работы насосов зависит стабильная и надежная работа системы кондиционирования воздуха. В России и других странах мира широкое применение получили насосы фирмы «Grundfos».

Для работы насосов в составе систем кондиционирования воздуха и систем тепло- и холодоснабжения характерны два основных режима: при постоянном расходе жидкости; при переменном расходе жидкости.

При постоянном расходе жидкости рекомендуется применение насосов с постоянной частотой вращения ротора приводного электродвигателя рабочего колеса насосов.

Фирма «Grundfos» для постоянных расходов воды в системах кондиционирования воздуха производит насосы типа UPS, которые монтируются на трубопроводах без фундаментов. Для ручного регулирования производительности систем по жидкости конструкции насосов имеет ручное переключение на три частоты вращения.

Циркуляционный насос в контуре нагрева создает циркуляцию воды в контуре узла регулирования подачей теплоносителя в воздухонагреватель, чем снижает вероятность замерзания воды в калорифере.

Привод ЗРК типа SSB61U

Электромеханические приводы предназначены для использования в системах с фанкойлами и охлаждаемыми потолками для управления клапанами нагрева и охлаждения. Привод имеет пропорциональный сигнал управления 0…10В, это сигнал приводит в действие шток привода, воздействующий на шток клапана.

Клапан открывается пропорционально напряжению на выходе Y. Электромеханические приводы предназначены для использования совместно с 3-х ходовыми клапанами с номинальным ходом штока 5,5 мм типа VXP45.

Производитель фирма «Siemens».

Регулирующие клапана.

Запорно-регулирующий клапан 3-х ходовой типа VXP45.20-4 (ЗРК)

Клапан применяется в системах вентиляции и кондиционирования для управления протоком по системам замкнутого контура, с фанкойлами, с калориферами и вторичными охладителями, для использования в 2-х трубных системах с одним теплообменником для нагрева и охлаждения (летний - зимний период).

Основной характеристикой регулирующего клапана является kvs - номинальный расход воды (м3/ч) через полностью открытый клапан (ход штока 100%) при перепаде давления в 1 бар и температуре воды 20 °С.

Силовые автоматические выключатели

Для защиты двигателей от перегрева устанавливаются токоограничивающие силовые автоматические выключатели типа 3RV1 фирмы Siemens. Характеристики расцепления силовых выключателей рассчитаны главным образом для защиты трехфазных двигателей. Расчетный ток защищаемого двигателя устанавливается на настроечной шкале. Расцепитель тока короткого замыкания настроен на заводе на 13-кратную величину расчетного тока. Этим обеспечивается нормальный пуск и надежная защита двигателя. Чувствительность выключателя к выпадению фазы гарантирует, что выключатель своевременно сработает при выпадении фазы и при вызванными этими обстоятельствами сверх токах в других фазах.

Силовые автоматические выключатели также обеспечивают защиту линии.

Для двигателей мощностью 1кВт из таблицы данных каталога Siemens выберем автоматический выключатель типа 3RV10 11-1DA1.

Выключатель имеет следующие характеристики:

· токовый расцепитель перегрузки 2,2-3,2А;

· максимальный расцепитель тока без выдержки времени 42А;

· отключающая способность при коротком замыкании при 400В 100кА;

· типоразмер S00.

6. Программирование контроллера

.1 Общие данные

Для программирования контроллера воспользуемся программой LOGO! Soft Comfort.

Программное обеспечение LOGO! Soft Comfort предоставляет наиболее широкие возможности по разработке, отладке и документированию программ логических модулей LOGO! Разработка программы может выполняться на языках LAD (Ladder Diagram) или FBD. Допускается использование символьных имен для переменных и функций, а также необходимых комментариев.

В отличие от программирования с клавиатуры обеспечивается наглядное представление всей программы, поддерживается множество сервисных функций, повышающих удобство разработки и редактирования программы.

Разработка, отладка и полное тестирование работы программы может осуществляться в автономном режиме без наличия реального модуля LOGO!

Готовая программа может загружаться в логический модуль или записываться в модуль памяти, а также сохраняться на жестком диске компьютера.! будет распознавать, считывать и включать входы и выходы всех модулей расширения независимо от их типа. Входы и выходы представлены в той же последовательности, в которой расположены модули. Для программирования имеются в распоряжении следующие входы, выходы и флаги: от I1 до I24, от AI1 до AI8, от Q1 до Q16, AQ1 и AQ2, от M1 до M24 и от AM1 до AM6. Кроме того, имеются биты регистра сдвига от S1 до S8, 4 клавиши управления курсором C▲, C►, C▼ и C◄ и 16 свободных выходов от X1 до X16. В LOGO! 12/24… и LOGO! 24/24o для входов I7 и I8 имеет силу следующее: если I7 или I8 используется в коммутационной программе, то сигнал, прилагаемый к соединительному элементу, интерпретируется как цифровой; если используется AI1 или AI2, то сигнал интерпретируется как аналоговый.

Значительно более мощными являются специальные функции:

• Импульсное реле;

• Реверсивный счетчик;

• Задержка включения;

• Программный выключатель.

На рисунке 21 показано окно среды программирования LOGO! Soft Comfort.

Проект ВЕНТИЛЯЦИИ на S7-200






6.2 Описание работы программы

Алгоритм программы работы контроллера приведен в приложении А.

При поступлении на вход I1 логической единицы сигнал поступает на RS-триггер. С RS-триггера сигнал пуска поступает на выход Q1, а также поступает на блоки для запуска системы в летнем режиме и для перевода системы в холодное период в режим прогрева. С задержкой времени, которую формирует B024, сигнал подается на Q3 и Q4.

После поступления сигнала на Q3 включается задержка включения на вход I5, сигнал пропадет после открытия воздушной заслонки, если сигнал поступает через 10 секунд, то контроллер остановит систему, и на выход Q5 будут поступать сигналы с периодичностью 1 секунда, которую формирует блок B029.

Для сброса данного положения надо подать сигнал на вход I2.

Во время работы при поступлении сигнала на вход I6 на выход Q7 поступит сигнал и через 72 часа, если сигнал продолжает поступать остановит систему. Для сброса данного положения надо подать сигнал на вход I2.

При поступлении сигналов на I7 или I8 поступает сигнал на выход Q8, и система переходит в режим прогрева и после пропадания сигнала на этих входах система перезапуститься.

Контроль входов I9, I10, I11 и I12 включается с задержкой времени 10 секунд после появления сигнала на выходах Q3 и Q4. Если после этогосигнал поступает или поступил, подается на остановку системы и на выход Q9. Для сброса данного положения надо подать сигнал на вход I2.

Для формирования режима работы в ручном режиме на входы I4 и I5 должны поступить сигналы.

Для формирования сигнала режима работы в автоматическом режиме установлен аналоговой триггер B006. В зависимости от сигнала поступающего с AI1 триггер вырабатывает сигнал для переключения режимов работы.

В зимний период работы в дежурном режиме работы сигнал 0…10В на выходе AQ1 формируется в зависимости от поступающей информации на аналоговый вход AI3.

В зимний период работы во время работы сигнал 0…10В на выходе AQ1 формируется в зависимости от поступающей информации на аналоговый вход AI2 на регуляторе B009. В случае превышения сигнала на входе AI3 над установленным значением 45 °С срабатывает триггер B016, который переключит формирование сигнала от регулятора B010. После снижения сигнала AI3 формирование опять переходит от регулятора B009.

Данные переключения осуществляет аналоговый мультиплексор B013. В летний период работы во время работы сигнал 0…10В на выходе AQ1 формируется в зависимости от поступающей информации на аналоговый вход AI2 на регуляторе B009.

При поступлении сигнала на вход I13 контроллер переведет систему в режим остановки без возможности автоматического перезапуска.


Проектный отдел компании Аларм Телеком осуществляет проектирование всех видов вентиляционных систем для самых разных объектов: частные дома, квартиры, офисные и торговые центры, производства и заводы, различные предприятия. Вот уже более 10 лет наши специалисты выполняют проекты вентиляции на объектах, площадью от 20 до 60 000 квадратных метров. Мы выполняем проектирование систем вентиляции в Москве для объектов, расположенных на всей территории РФ.

Проектирование осуществляется на основаниях пожеланий Заказчика, технического задания, архитектурных чертежей, проектов дизайна. Наши специалисты производят согласование проекта вентиляции на стадии его изготовления с надзорными органами, архитектором, дизайнером и строителями. По желанию возможно осуществление авторского надзора.

Решение задач при проектировании.

Основные задачи, решаемые при проектировании систем вентиляции воздуха:

1.   Производство расчета воздухообмена для конкретных помещений.

2.       При проектировании вентиляции воздуха осуществляется аэродинамический расчет, который показывает общий расход воздуха, определяются сечения воздуховодов, рассчитывается потеря давления в воздуховодах.

.        Важной задачей является акустический расчет, в результате которого определяется звуковые параметры на выходе из систем воздухораспределения.

.        На основании расчетов по вентиляции воздуха в помещении, осуществляется окончательный точный подбор материалов и оборудования, определяются места размещения вентиляционных приточных и вытяжных систем, а также места прокладки воздуховодов.


Система вентиляции, полученная в результате расчетов, проходит проверку на соответствие всем нормам и требованиям, а также по уровню шума, вибрации, энергопотреблению. При завышенных параметрам или их несоответствию, производится доработка до приемлемых значений. Проекты систем вентиляции, созданные специалистами компании Аларм Телеком, предусматривают не только задачи по воздухообмену, но и по охлаждению или нагреву воздуха, его очистке и управлению параметрами влажности. Учитывается и существующие системы отопления <#"510761.files/image021.gif">

Уже на стадии проектирования вентиляции, наши специалисты внедряют самые инновационные технические решения, которые зарекомендовали себя надежностью, технологичностью и функциональностью. Особое внимание уделяется энергопотреблению, а именно, применению энергосберегающих технологий в системе вентиляции воздуха. В наши дни это важный аспект в любом оборудовании, поэтому в большинстве проектов по вентиляции мы используем энергосберегающие приточные и вытяжные вентиляционные установки <http://extraklimat.ru/catalog_ventilation.htm>, в том числе с использованием рекуператоров - эффективных устройств по сохранению энергии.

Эстетичность и эргономичность вентиляции.

Для простоты управления, расположения и эстетичного вида, в проектировании вентиляции уделяется внимание и этому. Оборудование размещается в доступных местах, модули управления корректно вписываются в интерьер помещения. Таким образом, проведение обслуживания вентиляции <http://extraklimat.ru/service_vent.htm> происходит без дополнительных трудностей, а управление становится простым и понятным. Согласование размещения вентиляционного оборудования, комплектующих, вентиляционных решеток и модулей управления всегда согласуется с Заказчиком, дизайнерами и архитекторами, поэтому оптимально вписывается в дизайн помещений.

Состав проектной документации вентиляции.

Любой проект вентиляции должен иметь свой правильный состав и должен включать в себя полный пакет документации. В него входит монтажная схема вентиляции, спецификации вентиляционного оборудования, пояснительная записка, другие расчеты и сведения. Для понимания раскроем этот состав.

Монтажная схема вентиляции - это обозначение систем вентиляции и материалов на схеме, отображается схематичная установка оборудования без размеров, параметров, привязок и пересечений. Не присутствует также аксонометрия и спецификация. Такая схема может использоваться для осуществления монтажа вентиляции <http://extraklimat.ru/montage.htm>, но не всегда. Часто, указанной в монтажной схеме информации, не достаточно для осуществления качественного монтажа систем вентиляции, в этом случае требуется произвести полный комплекс работ по проектированию вентиляции, в результате которого и рождается проект системы вентиляции.

Проект вентиляции, в соответствие с ГОСТ, СНиП, СанПин - это полная нормативная документация с содержанием всех параметров и характеристик: обозначения вентиляционного оборудования, материалов и комплектующих, размеры и привязки, указание точного расположения агрегатов, узлы и пересечения, аксонометрия и расчеты, спецификация и пояснительная записка.

Стоимость проектирования систем вентиляции.

При изготовлении монтажной схемы для систем вентиляции, стоимость проектных услуг в компании Аларм Телеком составляет от $1,3 за кв.м. Цена изготовления проекта вентиляции составляет от $6,5 за кв.м. При заказе услуг, составляется договор на проектирование систем вентиляции, где указывается стоимость и сроки выполнения документации. Для расчета услуг по проектированию можно обратиться <http://extraklimat.ru/contacts.htm> к менеджерам компании Аларм Телеком.

Срок изготовления проекта вентиляции.

Срок выполнения проектной документации по системам вентиляции зависит от площади объекта. Примерные сроки отражены в таблице:

Площадь объекта

Срок проектирования


Монтажная схема

Проект вентиляции

до 300 кв.м.

10 рабочих дней

-

300-600 кв.м.

15 рабочих дней

20 рабочих дней

600-1000 кв.м.

25 рабочих дней

40 рабочих дней

1000-2000 кв.м.

30 рабочих дней

60 рабочих дней

более 2000 кв.м.

определяется индивидуально


7.


Не нашли материал для своей работы?
Поможем написать уникальную работу
Без плагиата!
Без нейросетей!