Разработка системы искусственного освещения производственного помещения. Естественное освещение

  • Вид работы:
    Контрольная работа
  • Предмет:
    Физика
  • Язык:
    Русский
    ,
    Формат файла:
    MS Word
    143,97 kb
  • Опубликовано:
    2011-02-28
Вы можете узнать стоимость помощи в написании студенческой работы.
Помощь в написании работы, которую точно примут!

Разработка системы искусственного освещения производственного помещения. Естественное освещение

Республика Казахстан

Алматинский институт энергетики и связи

Кафедра Охраны труда и окружающей среды












Контрольная работа №1

по дисциплине: Охрана труда и ОБЖ

Тема: Разработка системы искусственного освещения производственного помещения. Естественное освещение







Алматы 2009

Содержание

Введение

1. Разработка системы искусственного освещения производственного помещения

1.1 Задание

1.2 Расчет освещенности на рабочем месте точечным методом

1.3 Реконструкция системы освещения производственного помещения

2. Расчет естественного освещения

2.1 Задание

2.2 Расчет площади световых проемов

Заключение

Список литературы

 

искусственный освещение гальванический световой

Введение


Условия искусственного освещения на промышленных предприятиях оказывают большое влияние на зрительную работоспособность, физическое и моральное состояние людей, а, следовательно, на производительность труда, качество продукции и производственный травматизм.

Помещения с постоянным пребыванием людей должны иметь, как правило, искусственное освещение. При проектировании новых помещений, при реконструкции старых, при проектировании естественного освещения помещений необходимо определить площадь световых проемов, обеспечивающих нормированное значение КЕО.

1. Разработка системы искусственного освещения производственного помещения

 

1.1 Задание

Разработать систему искусственного освещения производственного помещения:

1. Составить существующую схему размещения светильников;

2. Рассчитать освещенность на рабочем месте точечным методом;

3. Произвести реконструкцию системы освещения производственного помещения;

4. Привести планируемую схему расположения светильников;

Исходные данные (вариант 56):

Помещение: помещение электропитания

Габариты (L x В x H) : 8 х 10 х 3,5

Количество светильников: 6

Тип светильников: ВЗГ–100

Разряд зрительной работы: III, в

Коэффициент отражения: Рпот=50%, Рст=30%, Рпол=10%

Таблица 1 – Светораспределение светильника ПВЛМ-1х40

Тип св-ка

Сила света Iα, кд в направлении угла α


0

5

15

25

35

45

55

65

75

85

90

ПВЛМ-1х40

139

135

132

115

104

84

63

44

22

6

0


1.2 Расчет освещенности на рабочем месте точечным методом


Определим расчетную высоту подвеса.

hр=H-hсв-hм.креп.-hр.пов. (1.1)

hр=3,5-1=2,5 м

Принимаем нулевыми высоты свеса и крепления.

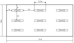
Общая схема светильников [2 х 4] представлена на рисунке 1.

Рисунок 1 – Схема расположения светильников

Найдем расстояние между светильниками, учитывая λ=1,2÷2,0.

LА=λ· hр                                                   (1.2)

LВ=λ· hр                                                   (1.3)

lb =(0,4÷0,5)· LВ                                        (1.5)

Учитывая формулу (1.4), получаем, что для нахождения расстояния между светильниками LA, нужно длину помещения разделить на 4:

LА=12/4=3 (м).

Проверим условие коэффициента λ=1,2÷2,0:

λ=3/2,5=1,2,

что удовлетворяет.

Учитывая формулу (1.5), получаем, что для нахождения расстояния между светильниками LВ, нужно ширину помещения разделить на 3:

LВ=8/2=4 (м).

Проверим условие коэффициента λ=1,2÷2,0:

λ=4/2,5=1,6,

что удовлетворяет.

Для расчета намечаем контрольную точку А. Необходимо найти d1, d2 – проекции расстояния на потолок между точкой А и соответствующим светильником.

 (1.6)

(1.7)


Далее определяем угол между высотой потолка и соответствующим отрезком d:

tg α1 = [ d1 / hp ] (1.8)

tg α1 = [2,5/2,5] = 1 → α1 = 45°;

cos3 α1 = (0,707)3 = 0,354;

tg α2 = [ d2 / hp ] (1.9)

tg α2 = [4,92/2,5] = 1,968 → α2 = 63°;

cos3 α2 = (0,454)3 = 0,094;

По этому углу находим силу света от каждого источника по таблице 1:

I1=84 кд (при α = 45°);           I2 = 47,8 кд (при α = 63°).

Освещенность помещения относительно контрольной точки от каждого источника:

(1.10)

 (1.11)


Суммарная освещенность:

(1.12)

где μ – коэффициент, учитывающий действие «удаленных» светильников (1,1 ÷ 1,2).

Освещенность на рабочем месте считается недостаточной, поэтому необходимо производить реконструкцию системы освещения производственного помещения.

1.3 Реконструкция системы освещения производственного помещения


Произведем реконструкцию, применяя метод коэффициента использования.

Определим индекс помещения.

                                              (1.13)

Коэффициент использования светового потока примем из таблицы 5.12 в [2], учитывая найденный индекс помещения и заданные коэффициенты отражения:

η = 64 %.

Количество ламп при необходимой освещенности Е=200 лк:

 (1.14)

где Z – коэффициент неравномерности освещения, равный 1,1÷1,2;

Кз – коэффициент запаса, принимаемый равным 1,8 для заданного типа помещения из таблицы 4.4 в [3].

Возьмем другой тип ламп – ПВЛМ – 2x40.

Тогда

Увеличим количество ламп до 9.

Рисунок 2 – Новая схема расположения светильников

Найдем расстояние между светильниками, учитывая λ=1,2÷2,0.

LА=λ· hр=1,2·2,5=3 (м)

LВ=λ· hр=1,2·2,5=3 (м)

la =(0,4÷0,5)· LА =0,4·3=1,2 (м)

lb =(0,4÷0,5)· LВ =0,35·3=1 (м).

Для обеспечения необходимой освещенности помещения типа линейно-кабельный цех с параметрами 8x12x3,5 необходимо установить количество светильников типа ПВЛМ – 2x40 до 9 штук.

2. Расчет естественного освещения

 

2.1 Задание

Рассчитать площадь двухсторонних оконных проемов, необходимых для создания нормируемой освещенности при следующих условиях. В качестве светопропускающего материала используется одинарное листовое стекло в деревянных спаренных переплетах, вид несущих покрытий – железобетонные фермы.

Исходные данные (Вариант 30):

Тип помещения: лаборатория

Габариты (L x В x H) : 30 х 15 х 5

Разряд зрительной работы: III

Световой пояс: г.Алматы, IV

Высота рабочей поверхности: hр.пов.=1 м

Высота окон: h0=3 м

Высота начала окон: hн.о.=1,5 м

Hзд=6 м

ρср=0,5

2.2 Расчет площади световых проемов

Площадь боковых проемов при боковом освещении определяется из следующей формулы:

 (2.1)

где S0 – площадь световых проемов при боковом освещении, м2;

Sn – площадь пола помещения, м2;

eN – нормируемое значение КЕО;

Kз – коэффициент запаса;

η0 – световая характеристика окон;

τ0 – общий коэффициент светопропускания;

r1 – коэффициент, учитывающий повышение КЕО при боковом освещении, благодаря свету, отраженному от поверхности помещения и подстилающего слоя, примыкающего к зданию;

Kзд – коэффициент, учитывающий затемнение окон противостоящими зданиями.

Определим площадь пола помещения:

Sn=L·B(2.2)

Sn=30·15=450 м2

Нормируемое значение КЕО, eN, для зданий располагаемых в различных районах следует определять по формуле:

eN= eн·mN,          (2.3)

где mN – коэффициент светового климата, определяемый из таблицы 2.1 в [3].

Учитывая заданный световой пояс (г. Алматы, IV), приняв ориентацию световых проемов на Запад и Восток, определим:

mN=0,65

eн – значение КЕО.

По таблице 1 в [3], учитывая III разряд зрительных работ, найдем:

eн=1,2

Следовательно:

eN= 1,2·0,65=0,78

Учитывая тип помещения, найдем коэффициент запаса с помощью таблицы 4.4 в [3]:

Кз=1,2

Для определения световой характеристики, η0, необходимо рассчитать отношение длины помещения к его глубине  и отношение ширины помещения к расчетной высоте .

Найдем hрасч:

hрасч=h0+hн.о.-hр.пов.         (2.4)

hрасч=3+1,5-1=3,5 м

Учитывая найденные отношения примем световую характеристику , η0, по таблице 5.10 из [3]:

η0=9

Общий коэффициент светопропускания, τ0, рассчитывают по формуле:

τ0=τ1·τ2·τ3·τ4·τ5,         (2.5)

где τ1 – коэффициент светопропускания материала, принимаемый по таблице 5.2 из [3]. Так как в качестве светопропускающего материала используется одинарное листовое стекло, то:

τ1=0,9

τ2 – коэффициент, учитывающий потери света в переплетах светопроема. Определяется с помощью таблицы 5.3 из [3] c учетом использования деревянных спаренных переплетов:

τ2=0,7

τ3 – коэффициент, учитывающий потери света в несущих конструкциях, при боковом освещении равен 0,8.

τ4 – коэффициент, учитывающий потери светы в солнцезащитных устройствах. В данном расчете из-за недостаточности данных этот коэффициент не учитывается.

τ5 – коэффициент, учитывающий потери света в защитной сетке, устанавливаемой под фонарями, не учитывается.

Следовательно:

τ0= τ1·τ2·τ3=0,9·0,7·0,8=0,504

Коэффициент, учитывающий повышение КЕО при боковом освещении, благодаря свету, отраженному от поверхности помещения и подстилающего слоя, примыкающего к зданию, r1, определяют по таблице 5.6 из [3]. Для этого следует учесть:

отношение ширины помещения к расчетной высоте

отношение глубины помещения к ширине

отношение длины помещения к ширине

средневзвешенный коэффициент отражения потолка, стен и пола ρср=0,5.

r1=1,15

Учитывая Нзд=6 м и Р=12 м (расстояние до рядом стоящего здания) из таблицы 5.7 в [3] найдем коэффициент, учитывающий затемнение окон противостоящими зданиями, Кзд:

Кзд=1,1

Зная значение всех параметров, рассчитаем площадь боковых проемов при естественном освещении по следующей формуле:

                                           (2.6)


В помещении типа конструкторское бюро с параметрами 30x15x5 для обеспечения нормированного значения КЕО, eN=0,78, при III характеристике зрительных работ требуется площадь световых проемов равная 72 м2.

Т.к. площадь 72 м2 приходится на 2 стены, то на одну приходится 36 м2. (12 метров окон вмещаются в 30 м)

Заключение


В первой части данной работы был проведен расчет искусственного освещения. Расчет освещенности точечным методом показал, что заданного числа светильников было недостаточно для обеспечения достаточной освещенности помещения. Для обеспечения необходимой освещенности помещения типа гальванический цех с параметрами 7˟14˟5 необходимо увеличить количество светильников типа ПВЛМ - 2˟40 до 12 штук.

Во второй части работы был приведен расчет естественного освещения. При проектировании естественного освещения помещений необходимо определить площадь световых проемов, обеспечивающих нормированное значение КЕО. В помещении типа конструкторское бюро с параметрами 16˟8˟5 для обеспечения нормированного значения КЕО, eN=0,84, при III характеристике зрительных работ требуется площадь световых проемов равная 24,76 м2.

Список литературы


1.А.А. Байзакова, Т.С. Санатова. Охрана труда. Методические указания к выполнению расчетно-графических работ. – Алматы, 2005.

2.Г.М. Кнорринг. Справочная книга для проектирования электрического освещения. –Ленинград, 1986.

3.СНиП РК 2.04-05-2002 «Естественное и искусственное освещение. Общие требования».

 .ru

Похожие работы на - Разработка системы искусственного освещения производственного помещения. Естественное освещение

 

Не нашли материал для своей работы?
Поможем написать уникальную работу
Без плагиата!
Без нейросетей!