Основы прикладной механики
Санкт-Петербургский
Государственный Университет Телекоммуникаций им. проф. М.А. Бонч-Бруевича
Кафедра
ПРЭС
Курсовой
проект по дисциплине
“Прикладная
механика”
Работу выполнил:
Ст. Гр. ТСС-71
Игорев А.Н.
Руководитель проекта:
Чуракова Л.Д.
Санкт-Петербург
2009
Содержание:
1. Определение равнодействующей плоской системы
сил
2. Определение центра тяжести фигуры
3. Расчёт на прочность элемента конструкции РЭА
4. Расчет задачи
Список литературы
1.
Определение равнодействующей плоской системы сил
Вариант № 15
Условие
задачи:
Блок
радиоаппаратуры находится под действием системы 3 сил, заданных модулями
сил, величинами углов
, составленных силами с
положительной осью X, и координатами
и
точек приложения сил. Требуется определить
равнодействующую силу. Исходные значения указаны в таблице 1.
Таблица 1.
Значение сил,
углов и координат.
|
Силы, Н
|
Углы,
град
|
Координаты,
см
|
|
|
|
|
|
|
|
x1/ y1
|
x2/ y2
|
x3/ y3
|
|
75
|
85
|
110
|
165
|
120
|
240
|
45/ –35
|
15/ 45
|
–35/ 15
|
Решение:
1)Определение
главного вектора аналитически
Fx
= F * cosα;
Fy
= F * sinα;
cos
165= cos (120 + 45)= cos120 * cos45 – sin120 * sin45 = –
*
–
*
= –0,97;
cos120
= –
= – 0,5;
cos
240 = –
= – 0,5;
sin
165 = sin (120 + 45) = sin120 * cos45 + cos120* sin45 =
*
–
*
= 0,26;
sin 120 =
= 0,87;
sin 240 = –
= – 0,87.
Определяем
проекции сил
,
,
на координатные оси X,Y:
F1x
= F1 * cos165 = 75 * (– 0,97) = – 72,75 Н;
F1y
= F1 * sin165 = 75 * 0,26 = 19,5 Н;
F2x
= F2 * cos120= 85 * (– 0,5) = – 42,5 Н; (1)
F2y
= F2 * sin120 = 85 * 0,87 = 73,95 Н;
F3x
= F3 * cos240 = 110 * (– 0,5) = – 55 Н;
F3y
= F3 * sin240 = 110 * (– 0,87) = – 95,7 Н;
Определяем
проекции главного вектора системы на оси координат:
Rx
=Σ Fix = – 72,75 – 42,5 – 55 = –170,25 ; (2)
Ry
=Σ Fiy = 19,5 + 73,95 – 95,7 = – 2,25 ;
Расчёты по
формулам (1) и (2) приводятся в таблице 2, в которой также определили главный
момент системы:
Таблица 2.
|
Номер
силы, i
|
Значение
силы
Fi, Н
|
Угол
направления
силы,
град
|
Проекции
сил, Н
|
Проекции
сил, Н
|
Произведения
величин, Н/м
|
Главный
момент системы Mo,Н/м
|
|
Xi
|
Yi
|
Fix
|
Fiy
|
Xi*Fiy
|
Yi*Fix
|
–––
|
|
1
|
75
|
165
|
0,45
|
–0,35
|
–72,75
|
19,5
|
8,775
|
25,46
|
–––
|
|
2
|
85
|
120
|
0,15
|
0,45
|
– 42,5
|
73,95
|
11,025
|
–19,13
|
–––
|
|
3
|
110
|
240
|
–0,35
|
0,15
|
– 55
|
– 95,7
|
33,495
|
– 8,25
|
–––
|
|
Суммарное
значение параметра
|
–170,25
|
– 2,25
|
53,3
|
– 1,9
|
168
|
Определяем
главный вектор системы:
H
Где значения
и
принимают из таблицы. Направление главного
вектора определяет угол
,
который определяем из формул:
Определение
главного момента системы сил относительно начала координат:
2)Определение
главного вектора системы сил графически.
Построение
выполнили на листе формата А3. Масштабы длин и сил выбраны так, чтобы
максимально использовать площадь листа. Определим масштабные значения величин:
где l , F –действительное значение
длины и силы соответственно,
-масштабный коэффициент
длин,
- масштабный коэффициент
сил.
Учитывая
заданные значения координат, наносят на чертеже координатные оси, точки
приложения сил 1,2,3, и изображаем сами силы.
Определяем
действительное значение главного вектора
Где
масштабное значение
мм,
принимают по чертежу.
Направление
вектора
определяем по
чертежу:
=181 градус.
3)Относительные
отклонения определения параметров графическим способом.
Отклонения не
превышают 2-3% , следовательно, построения и расчёты выполнены правильно.
Определяем
плечо пары сил:
Где С - точка
приложения равнодействующей.
- действительные значения
главного момента и главного вектора, определённые аналитически.
2. Определение
центра тяжести фигуры
Условия:
Определить
координаты центра тяжести (центра масс) шасси блока РЭА. Шасси изготовлено из
листового материала и представляет собой сложную фигуру.
a=280 мм; b=140 мм; c=65мм.
Решение:
При аналитическом
определении положения центра тяжести (центра масс) исходят из понятия “центр
параллельных сил”. Полагая, что материал тела сплошной и однородный, приведём
формулы для определения координат центра тяжести (центра масс) сложной фигуры:
Где
-
площадь i–ой
части сложной фигуры.
–координаты центра
тяжести i–ой
части фигуры.
n – число частей сложной фигуры.
Вычисление
координат центра тяжести (центра масс) простых фигур составляющих сложную:
1)
2)

3)
4)
Вычисление
координат центра тяжести (центра масс) сложной фигуры:
Координаты
центра тяжести фигуры [93,84; 58,74; 8,72] мм (относительно начала координат).
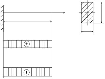
3. Расчёт
на прочность элемента конструкции РЭА
Условия:
Построить
эпюры продольных сил. Определить размеры прямоугольного и круглого поперечного
сечения стержня, растянутого силой. Определить абсолютное удлинение стержня.
Материал стержня сталь 20 нормализированная. Определить опасное сечение
стержня. F=2000
Н; l=140 мм, отношение b/a = 2.
Решение:
1)Из
уравнения равновесия определяем реакцию заделки:
2) Построение
эпюр продольных сил:
участок 0≤
X ≤ l, идём слева
;
3) Определение
допускаемого напряжения:
Допускаемое
напряжение можно определить по формуле:
МПа;
Где
- опасное напряжение,
- коэффициент запаса
прочности принимают в пределах 1,5-2
- коэффициент концентрации
напряжения принимают в пределах 1,5-,2,5
В качестве
опасного напряжения
для
металлов обычно принимают предел текучести
, который принимают по таблице 5.
=245 МПа (материал – сталь
20)
4) Построение
эпюр нормальных напряжений:
Из условия
прочности можно определить площадь поперечного сечения:
а) Если
сечение - прямоугольник:
б) Если
сечение – круг:
Т.е. высота
должна быть a≥
3,6 мм, ширина b должна быть b≥ 7,2 мм.
Если сечение
круглое, тогда r≥ 2,9 мм
участок
, идём слева
5) Расчет на
прочность:
Условие
прочности при растяжении сжатии
Т.к.
допускаемое напряжение больше действующего в опасном сечении то после снятия
напряжения конструкции вернется в исходное состояние (не останется остаточной
деформации.)
6) Расчёт
удлинения стержня:
При расчёте
жёсткости стержня определяют его абсолютное удлинение (укорочение) по формуле
;
где i-номер участка
- соответственно
продольная сила на участке, длина участка, площадь поперечного сечения на
участке.
4. Расчётно-графическая работа
Условие
задачи:
Манипулятор
промышленного робота типа 2В состоит из двух вращающихся звеньев 1 и 2. Звенья
движутся в плоскости XOY. Центр схвата манипулятора – точка С. Заданы
функции изменения углов
и
(
,
) и размеры звеньев
. Определить скорости и ускорения центра схвата
и звеньев манипулятора при движении робота в течении t с (значения определить
через каждые
с). По
результатам расчёта построить графики зависимостей скоростей и ускорений центра
и звеньев манипулятора. Проанализировать полученные графики.
Решение:
Звенья
совершают вращательные движения, закон движения имеет вид
(1)
где
- углы поворота звеньев
вокруг центра шарнира сочленяющего данные звенья с предыдущими звеньями
кинематической схемы.
t - время.
1.2 Исследуем
движения звеньев манипулятора:
Дифференцируя
уравнения типа (1), определяем угловую скорость и угловое ускорение:
(2)
(3)
Используя
формулы (2),(3) определяем скорости и ускорения звеньев для моментов времени
и так далее. Результаты
расчётов представлены в Таблице №1.
Таблица №1
Значения
скоростей и ускорения звеньев
|
Моменты
времени, с
|
Звено 1
|
Звено 2
|
|
, 1/с
|
, 1/c2
|
, 1/с
|
, 1/c2
|
|
1
|
0,940
|
0,94
|
0,310
|
0,31
|
|
1,1
|
1,034
|
0,94
|
0,341
|
0,31
|
|
1,2
|
1,128
|
0,94
|
0,372
|
0,31
|
|
1,3
|
1,222
|
0,94
|
0,403
|
0,31
|
|
1,4
|
1,316
|
0,94
|
0,434
|
0,31
|
|
1,5
|
1,410
|
0,94
|
0,465
|
0,31
|
|
1,6
|
1,504
|
0,94
|
0,496
|
0,31
|
|
1,7
|
1,598
|
0,94
|
0,527
|
0,31
|
|
1,8
|
1,692
|
0,94
|
0,558
|
0,31
|
|
1,9
|
1,786
|
0,94
|
0,589
|
0,31
|
1,880
|
0,94
|
0,620
|
0,31
|
Строим
графики зависимости параметров
от времени t для двух звеньев.
Анализ
графиков:
1.3.Определение
движения центра схвата:
Используя
формулы (1), определяющие движения отдельных звеньев, заданные размеры звеньев,
записываем уравнения движения центра схвата в координатной форме
(4)
Уравнения (4)
определяют положение исследуемой материальной точки в любой момент времени t. Дифференцируя уравнения
(4) , определяем проекции скорости точки на координатные оси:
(5)
Дифференцируя
полученные значения скоростей, получаем проекции ускорения точки:
(6)
Скорость и
ускорение точки по модулю определяются в виде:
(7)
(8)
1.4 Исследование
движения центра схвата:
По формулам
(5) и (6) определяем значения проекций скорости и ускорения исследуемой точки
на оси координат для моментов времени
и так далее. По формулам (7) и (8) определяют
скорость и ускорение точки для тех же моментов времени. Результаты расчётов
представляют в Таблице 2.
Таблица 2:
|
Моменты
времени,
|
Проекции
ускорения,
|
,
|
Проекции
ускорения,
|
,
|
|
|
|
|
|
|
1
|
-0,0080336
|
0,84996121
|
0,84999919
|
-0,9179904
|
0,84118409
|
1,24510925
|
|
1,1
|
-0,0106926
|
0,93493753
|
0,93499834
|
-1,1107440
|
0,83709273
|
1,39084938
|
|
1,2
|
-0,0138818
|
1,01990349
|
1,01999794
|
-1,3218391
|
0,83171967
|
1,56173500
|
|
1,3
|
-0,0176493
|
1,10485599
|
1,10499694
|
-1,5512678
|
0,82482167
|
1,75691848
|
|
1,4
|
-0,0220432
|
1,18979141
|
1,18999558
|
-1,7990198
|
0,81613441
|
1,97548667
|
|
1,5
|
-0,0271117
|
1,27499376
|
-2,0650822
|
0,80537248
|
2,21657152
|
|
1,6
|
-0,0329028
|
1,35959333
|
1,35998085
|
-2,3494392
|
0,79222938
|
2,47941362
|
|
1,7
|
-0,0394645
|
1,44444935
|
1,44498835
|
-2,6520714
|
0,77637761
|
2,76337563
|
|
1,8
|
-0,0468450
|
1,52926720
|
1,52998451
|
-2,9729552
|
0,75746865
|
3,06793438
|
|
1,9
|
-0,0550921
|
1,61403975
|
1,61497915
|
-3,3120629
|
0,73513302
|
3,39266579
|
|
2
|
-0,0642536
|
1,69875905
|
1,69997375
|
-3,6693614
|
0,70898037
|
3,73759635
|
Таблица 3:
Координаты
движения центра схвата.
|
Моменты
времени,
|
Значения
координат м.
|
|
м.
|
м.
|
|
1
|
0,79996505
|
0,00740209
|
|
1,1
|
0,79994883
|
0,00895646
|
|
1,2
|
0,79992752
|
0,01065883
|
|
1,3
|
0,79990018
|
0,01250918
|
|
1,4
|
0,79998657
|
0,01450747
|
|
1,5
|
0,79982307
|
0,01665367
|
|
1,6
|
0,79977096
|
0,01894775
|
|
1,7
|
0,79970811
|
0,02138965
|
|
1,8
|
0,02397931
|
|
1,9
|
0,79954455
|
0,02671667
|
|
2
|
0,79944087
|
0,02960162
|
По данным
табл.2 строят графики зависимости параметров
от времени t. По данным табл.3 строят
график перемещения центра схвата.
Оценка
графиков:
Зависимости V и a от t (1 ,0<t<2,0):
Из анализа
графиков скорости и ускорения видно, что cкорость и ускорение в
промежутке времени от t0 до tk возрастают, поэтому движении ускоренное.
Траектории
движения центра схвата (1 ,0<t<2,0):
Из анализа
графика видно, что центр схвата манипулятора перемещается в плоскости XOY по прямой вдоль линии OY.
Список
литературы:
1) Методические указания к выполнению
расчетно-графических работ 1 и 2 по теоретической механике. С.С. Степанов, Л.Д.
Чуракова; ЛЭИС. – Л., 2009г.
2) Методические указания к лабораторным работам
по курсу ”Прикладная механика”. В.Ф. Рожченко, С.С. Степанов, Л.Д. Чуракова;
ЛЭИС. – Л., 2009г.
3) Курс лекций по курсу прикладная механика. Л.Д.
Чуракова.