|
Наименова-ние
помещения
|
Вид
освещения
|
Система
освещения
|
Источ-ник
света
|
Плоскость, в которой
нормируется освещенность-h P,м
|
ЕН,
лк
|
КЗ
[4, с.8]
|
Минимально допустимая степень
защиты светильника
|
|
Помещение для птицы
|
Рабочее, технологи-ческое, дежурное
|
Общее равномерное
|
ГРЛ
|
Г – 0.0
|
50
[1, с.20]
|
1.3
|
5'4
|
|
Подсобное помещение
|
Рабочее
|
ЛН
|
Г – 0.0
|
10
[3, с.53]
|
1.15
|
IP20
|
|
Венткамера
|
Рабочее
|
ЛН
|
Г – 0.0
|
20
[3, с.53]
|
1.15
|
IP51
|
|
Насосная
|
Рабочее
|
ЛН
|
Г – 0.8
|
30
[2, с.93]
|
1.15
|
IP51
|
|
Уборная
|
Рабочее
|
ЛН
|
Г – 0.0
|
75
[3, с.54]
|
1.15
|
IP51
|
|
Электрощитовая
|
Рабочее
|
ГРЛ
|
В – 1.5
|
100
[3,с.36]
|
1.3
|
IP20
|
|
Тамбур
|
Рабочее
|
ЛН
|
Г – 0.0
|
10
[2,с.115]
|
1.15
|
IP51
|
|
Вход
|
Рабочее
|
ЛН
|
Г – 0.0
|
2
[4, с.42]
|
1.15
|
IP51
|
1.2 Помещение для
содержания бройлеров
1.2.1 Выбор светильника
Таблица 3 – Технические
характеристики светильников
|
Световой прибор
|
IP
|
КСС
|
КПД,%
|
Количество ламп
|
Мощность лампы, Вт
|
|
ЛСП15[4,с.44]
|
5'4
|
Д1
|
90
|
2
|
40,80
|
|
ЛСП18[4,с.44]
|
5'4
|
Д1
|
70
|
1
|
18,36,58
|
|
ЛСП16[3,с.60]
|
IP54
|
Д1
|
60
|
2
|
40(36)
|
|
ЛСП29[3,с.61]
|
IP54
|
М
|
65
|
2
|
18,36
|
|
ПВЛП-1[3,с.61]
|
IP54
|
Д1
|
65
|
2
|
40
|
|
ЛСРО1-20-У5 [3,с.61]
|
IP54
|
М
|
70
|
1
|
20
|
|
ЛСРО1-40-У5 [3,с.61]
|
IP54
|
М
|
70
|
1
|
40
|
|
Н2Т3Л[3,с.61]
|
IP54
|
М
|
68
|
1
|
40
|
|
Н4Т5Л [3,с.61]
|
IP54
|
М
|
72
|
1
|
65
|
Для данного помещения
выбираем светильник ЛСП15, так как у него допустимая степень защиты IP54, рекомендуемая КСС и наибольший КПД.
1.2.2 Размещение
светильников на плане
Определяем расстояние
между светильниками из соотношения:
λс×Нр£L£λэ×Нр,
(1.1)
где λс и λэ
– относительные светотехнические и энергетические наивыгоднейшие расстояния
между светильниками;
L- оптимальное расстояние
между светильниками, м; Нр – расчетная величина осветительной
установки, м.
Нр = Н0
– hсв – hр, (1.2)
где Н0 –
высота помещения, м; hсв – высота свеcа светильников, (0…0,5) м;
hр – высота рабочей поверхности от пола,
м.
Нр=2,7-0,4-0=2,3
м.
Для КСС типа Д1 λс
= 1,4 и λэ = 1,6 [4, с.12],
1,4×2,3 £ L £2,3×1,6,
3,22 £ L £3,68,
принимаем L=3,6м.
Количество рядов
светильников определяется по формуле:
(1.3)
где в - ширина помещения,
м;
Количество светильников в
ряду определяется по формуле:
(1.4)
где a - длина помещения, м;
b=18 м, а=36 м,
Общее количество светильников:
N=na×nb=5×10=50 (1.5)
Крайние светильники устанавливаются на расстоянии (0,3…0,5)L от стены:

(1.6)
(1.7)
Рисунок 1 – План помещения
для содержания бройлеров
1.2.3 Выбор источника
света
Метод коэффициента
использования светового потока применяется для расчета общего равномерного
освещения горизонтальных поверхностей только закрытых помещений со светлыми
ограждающими поверхностями.
Определим мощность
осветительной установки методом использования светового потока.
Определим индекс
помещения по формуле:
=
,(1.8)
где a, b –длина и ширина помещения, м.
=
=

.
По справочной литературе определим
коэффициент использования светового потока η. Этот коэффициент равен
отношению светового потока, доходящего до рабочей поверхности, к световому
потоку, генерируемого источником света.
Для светильника ЛСП15 с
КСС типа Д1, при коэффициентах отражения рп=50, рс=30, ррп=10
и индекс помещения i=5 выбираем
η=0,62 [3,с.72].
Вычислим световой поток
ламп в светильнике по формуле:
(1.9)
где EН–нормированная освещенность, лк; А–площадь помещения,
м2;
–коэффициент
запаса; η – коэффициент использования светового потока;
z – коэффициент неравномерности, z=1,1…1,2; N–число светильников;
η –
коэффициент использования светового потока;
Для ЛЛ : z = 1,1 [4, с.22].
Поскольку ламп две, то
=
=
Лампа ЛСП15 мощностью 40
Вт имеет световой поток 3000 лм, поскольку это значение намного больше
расчетного, то возвращаемся к таблице 3, выбираем светильник Н2Т3Л, так как у
него относительно высокий КПД, рекомендуемая КСС,
степень защиты IP 54.
Для КСС типа М λс = 2 и λэ = 2,6 [4,
с.12],
2×2,3 £ L £2,6×2,3,
4,6 £ L £ 5,98,
принимаем L=4,7м.
Количество рядов
светильников определяется по формуле (1.3):
где в - ширина помещения,
м;
Количество светильников в
ряду определяется по формуле (1.4):
где a - длина помещения, м; b=18 м, а=36 м,
Общее количество светильников определим по формуле (1.5):
N=na×nb=8×4=32.

Рисунок 2 – План
помещения для содержания бройлеров
Определим мощность
осветительной установки методом использования светового потока.
Определим индекс
помещения по формуле (1.8):
i=
,
где a, b –длина и ширина помещения, м.
Далее по справочной
литературе определим коэффициент использования светового потока. Этот
коэффициент равен отношению светового потока, доходящего до рабочей
поверхности, к световому потоку, генерируемому источником света.
Для светильника Н4Т4Л c КСС М, при коэффициентах отражения равных рп=50, рс=30,
ррп=10 и индексе помещения i=5 выбираем
η=0,41 [3, с.71].
Вычислим световой поток
ламп в светильнике по формуле:
(1.9)
где EН–нормированная освещенность, лк; А–площадь помещения,м2;
–коэффициент
запаса; η – коэффициент использования светового потока;
z – коэффициент неравномерности, z=1,1…1,2; N–число светильников;
η –
коэффициент использования светового потока;
Для ЛЛ : Z = 1,1 [4, с.22].
Поскольку лампа одна, то
Фл=Фсв=3531 лм
Далее по найденному
значению светового потока выберем стандартную лампу и рассчитаем отклонение
расчетного потока от каталожного по формуле: ФН=3200 лм, ЛБ40-1 [5,
с.76].
(1.10)
Определим удельную
мощность осветительной установки:
(1.11)
де Рл –
мощность лампы, Вт; N – количество
светильников;
n – количество ламп в светильнике; А –
площадь помещения, м2.
Вт/м2.
1.3
Подсобное помещение
1.3.1 Выбор светового
прибора
Таблица 4 – Технические
характеристики светильников
|
Световой прибор
|
IP
|
КСС
|
КПД, %
|
Мощность ламп, Вт
|
|
НСО11[4,с.43]
|
IP20
|
Д
|
75
|
100
|
|
НПП04[4,с.43]
|
IP20
|
М
|
55
|
60
|
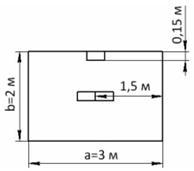
Для данного помещения
выбираем светильник НСО11, так как у него допустимая степень защиты IP20, рекомендуемая КСС и наибольший КПД.
1.3.2 Размещение светильников
на плане
Определим расчетную высоту
осветительной установки по формуле (1.2):
hсв=0,3, м; hр =0 м,
м.
Так как световой прибор НСП17 имеет кривую силы света типа Ш, то
λс = 1,6 и λэ = 1,8 [4, с.12].
Определяем расстояние между светильниками из соотношения:
λс× Нр £ L £ λэ× Нр
принимаем L=3 м.
Количество рядов
светильников определяется по формуле (1.3):
Количество светильников в
ряду определяется по формуле (1.4):
Общее количество светильников:
N=na× nb=3× 2=6.
Крайние светильники
устанавливаются на расстоянии (0,3…0,5)L от стены:

Согласно расчету в данном
помещении необходимо разместить 6 световых приборов данного типа.
Рисунок 3 – План
подсобного помещения
1.3.3 Выбор источника
света
Определим мощность
осветительной установки методом коэффициента использования светового потока.
Определим индекс
помещения:
где а, b–длина и ширина помещения, м; Нр–
расчетная высота осветительной установки.
принимаем:
=1,5.
Далее по справочной
литературе определим коэффициент использования светового потока.
Для светильника НСО11 с
КСС типа Д2, при коэффициентах отражения рп=50, рс=30, ррп=10
и индекс помещения i=1,5 выбираем
η=0,41 [3, с. 78].
Вычислим световой поток
ламп в светильнике по формуле (1.9):
Для ЛН рекомендуется Z = 1,1..1,2 [4, с.22].
Принимаем Z=1,15
лм.
Далее по найденному
значению светового потока выберем стандартную лампу и рассчитаем отклонение
расчетного потока от каталожного по формуле (1.10):
ФН=220 лм,
Б220-235-40 [3, с.98].
Определим удельную
мощность осветительной установки по формуле
(1.11):
Вт/м2.
1.4
Венткамера (2 помещения)
1.4.1 Выбор светового
прибора
Таблица 5 – Технические
характеристики светильников
|
Световой прибор
|
IP
|
КСС
|
КПД,%
|
Мощность ламп, Вт
|
|
НПП02[5,с.240]
|
IP54
|
Д1
|
70
|
100
|
|
НПП03[5,с.240]
|
IP54
|
Д1
|
50
|
100
|
|
НСП23[3,с.62]
|
IP54
|
Д1
|
60
|
200
|
|
НПП25[3,с.62]
|
IP54
|
М
|
60
|
100
|
|
Н4Т2Н[3,с.62]
|
IP54
|
Д1
М
|
55
70
|
300
|
|
Н4БН[3,с.62]
|
IP54
|
Д1 М
|
55
70
|
150
|
|
ВЗГ/В4А-200МС [3,с.62]
|
IP54
|
Д1 М
|
60
|
200
|
Для данного помещения выбираем
светильник НПП02, так как у него допустимая защита IP54, рекомендуемая КСС и относительно высокий КПД.
1.4.2 Размещение
светильников на плане
Расчетная высота
осветительной установки определяется по формуле (1.2): Нр = 2,7 –
0,07 – 0 = 2,63 м.
Определяем расстояние
между светильниками из соотношения:
λс× Нр £ L £ λэ× Нр
Для КСС типа Д1 λс = 1,4 и λэ = 1,6 [4,
с.12].
1,4× 2,63 £ L £1,6× 2,63
3,68 £ L £ 4,2
Принимаем L=3,7м.
Количество рядов
светильников определяется по формуле (1.3):
Количество светильников в
ряду определяется по формуле (1.4)
Общее количество светильников: N=na×
nb=2×
2=4.
Крайние светильники устанавливаются на расстоянии (0,3…0,5)L от стены:

Согласно расчету в данном
помещении необходимо разместить четыре светильника данного типа.
Рисунок 3 – План
венткамеры
1.4.3 Выбор источника
света
Определим мощность
осветительной установки методом удельной мощности. Этот метод является
упрощением метода коэффициента использования и рекомендуется для расчета
освещения второстепенных помещений, а также осветительной нагрузки, когда расчет
освещения не входит в задание проекта.
(1.12)
где РЛ –
мощность лампы, Вт; N – число
светильников; РУД.Ф – фактическая удельная мощность освещения, которая
определяется по следующей формуле:
(1.13)
где РУД.Т –
табличная удельная мощность освещения, которая выбирается по справочной
литературе в зависимости от типа светильника, размеров помещения, коэффициентов
отражения стен и потолка, высоты подвеса светильника, Вт/м2; РУД.Т
= 20,5 (для КСС Д1 при коэффициентах отражения рп=50, рс=30,
ррп=10;
=1,3;
=1,15;
=100 лк; h=2-3 м; S=25-50 м2)
[3, c 90]
–фактический
коэффициент запаса;
–табличный коэффициент запаса;
– фактическая нормированная
освещенность, лк;
–табличная нормированная освещенность,
лк.
Вт/м2
Вт/м2.
По этому значению выберем
стандартную лампу: БК215-225-40 [3, с.98].
1.5
Насосная
1.5.1 Выбор светового
прибора
|
Световой прибор
|
IP
|
КСС
|
КПД, %
|
Мощность ламп, Вт
|
|
НПП02[5,с.240]
|
IP54
|
Д1
|
70
|
100
|
|
НПП03[5,с.240]
|
IP54
|
Д1
|
50
|
100
|
|
НСП23[3,с.62]
|
IP54
|
Д1
|
60
|
200
|
|
НПП25[3,с.62]
|
IP54
|
М
|
60
|
100
|
|
Н4Т2Н[3,с.62]
|
IP54
|
Д1
М
|
55
70
|
300
|
|
Н4БН[3,с.62]
|
IP54
|
Д1
М
|
55
70
|
150
|
|
ВЗГ/В4А-200МС [3,с.62]
|
IP54
|
Д1
М
|
60
80
|
200
|
|
ПСХ 60М[5,с.240]
|
IP54
|
Д1
|
65
|
60
|
В соответствии с технико-экономическими
критериями (конструктивным исполнением, светотехническими характеристиками и
экономическими показателями) выберем для освещения данного помещения световой
прибор НПП02.
1.5.2 Размещение
светильников на плане
Определим расчетную высоту
осветительной установки по формуле (1.2):
hсв=0, м; hр =0,8 м,
м.
Так как световой прибор НПП02 имеет кривую силы света типа Д1, то
λс = 1,4 и λэ = 1,6 [4, с.12].
Определяем расстояние между светильниками из соотношения:
λс ×Нр £ L £ λэ× Нр,
м.
Определим количество световых
приборов в помещении:
N=na× nb=2× 1=2.
Крайние светильники устанавливаются на расстоянии (0,3…0,5)L от стены:

Согласно расчету в данном
помещении необходимо разместить два световых прибора данного типа.
Рисунок 4 – План насосной
1.5.3 Выбор источника
света
Определим мощность
осветительной установки методом коэффициента использования светового потока.
Определим индекс
помещения по формуле (1.8):
Далее по справочной
литературе определим коэффициент использования светового потока.
Принимаем η=0,39 [3,
с.83]
Вычислим световой поток
ламп в светильнике по формуле (1.9):
Для ЛН рекомендуется Z = 1,15.
лм.
Далее по найденному
значению светового потока выберем стандартную лампу и рассчитаем отклонение
расчетного потока от каталожного по формуле (1.10): ФН=715 лм Б215-225-60
[5, с.62].
Определим удельную
мощность осветительной установки:
(1.11)
где Рл –
мощность лампы, Вт; N – количество
светильников; А – площадь помещения, м2.
Вт/м2.
1.6
Уборная
1.6.1 Выбор светового
прибора
|
Световой прибор
|
IP
|
КСС
|
КПД, %
|
Мощность ламп, Вт
|
|
НПП03[5,с.240]
|
IP54
|
Д1
|
50
|
100
|
|
НСП23[3,с.62]
|
IP54
|
Д1
|
60
|
200
|
|
НПП25[3,с.62]
|
IP54
|
М
|
60
|
100
|
|
Н4Т2Н[3,с.62]
|
IP54
|
Д1
М
|
55
70
|
300
|
|
Н4БН[3,с.62]
|
IP54
|
Д1
М
|
55
70
|
150
|
|
ВЗГ/В4А-200МС [3,с.62]
|
IP54
|
Д1
М
|
60
80
|
200
|
|
ПСХ 60М[5,с.240]
|
IP54
|
Д1
|
65
|
60
|
Учитывая высокий КПД,
требования к КСС и степень защиты, выбираем светильник НСП23.
1.6.2 Размещение
светильников на плане
Определим расчетную высоту
осветительной установки по формуле (1.2):
Нр = Н0
– hсв – hр ,
hсв=0,4, м; hр =0, м
м,
Так как световой прибор НСП23 имеет кривую силы света типа Д1, то λс
= 1,4 и λэ = 1,6 [4, с.12].
Определяем расстояние между светильниками из соотношения (1.1):
λс× Нр £ L £ λэ× Нр,
.
Принимаем L=3,3м.
Количество световых приборов в данном помещении: N=1.
Рисунок 5 – План уборной
1.6.3 Выбор источника
света
Определим мощность осветительной
установки методом коэффициента использования светового потока.
Определим индекс
помещения по следующей формуле:
где а, b – длина и ширина помещения,
Далее по справочной
литературе определим коэффициент использования светового потока. Этот
коэффициент учитывает долю светового потока генерируемого источником света,
доходящую до рабочей поверхности.
Принимаем η=0,25 [3,
с.83].
Вычислим световой поток
ламп в светильнике по формуле (1.9):
где η – коэффициент использования
светового потока светильника;
z – коэффициент неравномерности, z=1,1…1,2 [4, с.10].
Для ЛН рекомендуется Z = 1,15.
лм.
Определим удельную
мощность осветительной установки по формуле (1.11):
где Рл –
мощность лампы, Вт; N – количество
светильников; А – площадь помещения, м2.
Вт/м2
1.7
Электрощитовая
1.7.1 Выбор светового
прибора
Таблица 6 – Технические
характеристики светильников
|
Световой прибор
|
IP
|
КСС
|
КПД, %
|
Количество ламп
|
Мощность ламп, Вт
|
|
ЛСП02[3,с.60]
|
IP20
|
Д2
|
75
|
2
|
40, 65, 80
|
|
ЛВП06 [3,с.60]
|
IP20
|
Д2, Д3
|
75
|
2
|
40, 80
|
Учитывая высокий КПД,
требования к КСС и степень защиты, выбираем светильник ЛСП02.
1.7.2 Размещение
светильников на плане
Определим расчетную
высоту осветительной установки по формуле
(1.2):
Нр = Н0
– hсв – hр
hсв=0,1 м; hр =1,5м,
м.
Рисунок 6 – План электрощитовой
1.7.3 Выбор источника
света
Определяем мощность осветительной
установки точечным методом.
Точечный метод
применяется для расчета общего равномерного и локализованного освещения
помещений и открытых пространств, а также местного освещения при любом
расположении освещаемых поверхностей.
Так как длина светового
прибора больше 0,5НР (линейный источник света),то сначала определяем
относительную освещенность:
(1.14)
где
–горизонтальная относительная
освещенность, лк.
Численные значения
находим по кривым изолюкс в зависимости от
приведенной длины
и удаленности точки от
светящейся линии
(1.15)
где L–длина светильника, м.
(1.16)
где Р– расстояние между
светильником и рабочей поверхностью (щитом), м; НР– высота рабочей
поверхности, м.
Разбиваем источник света
на две части:
лк
[6, с.72],
Так как освещенность
нормируется в вертикальной плоскости, то приводим
к
(1.17)
где
–вертикальная относительная освещенность,
лк;
–
коэффициент перевода от
к
.
(1.18)
лк.
Определяем световой поток
лампы на единицу длины:
,
(1.19)
где 1000 – световой поток
лампы; EН–нормированная освещенность, лк;
–коэффициент
запаса; m - коэффициент, учитывающий
дополнительную освещенность за счет влияния удаленных светильников и отражения
от
ограждающих конструкций;
–вертикальная относительная условная
освещенность, лк.
лм/м.
Определяем поток для светящейся
линии:
(1.20)
лм.
Определяем световой поток
для одной лампы:
(1.21)
По численному значению
потока и каталожным данным выберем
стандартную лампу: ЛБР-40,
ФН=2250 лм [3,с.102].
Рассчитаем отклонение
расчетного потока от каталожного по формуле (1.6):
Определим удельную
мощность осветительной установки по формуле:
Вт/м2
1.8
Тамбур (2 помещения)
1.8.1 Выбор светового
прибора
|
Световой прибор
|
IP
|
КСС
|
КПД, %
|
Мощность ламп, Вт
|
|
НСР01[4,с.43]
|
IP54
|
М
|
75
|
100,200
|
|
НПП02[5,с.240]
|
IP54
|
Д1
|
70
|
100
|
|
НПП03[5,с.240]
|
IP54
|
Д1
|
50
|
100
|
|
НСП23[3,с.62]
|
IP54
|
Д1
|
60
|
200
|
|
НПП25[3,с.62]
|
IP54
|
М
|
60
|
100
|
|
Н4Т2Н[3,с.62]
|
IP54
|
Д1
М
|
55
70
|
300
|
|
Н4БН[3,с.62]
|
IP54
|
Д1
М
|
55
70
|
150
|
В соответствии с
технико-экономическими критериями (конструктивным исполнением, светотехническими
характеристиками и экономическими показателями) выберем для освещения данного
помещения световой прибор НСР01.
1.8.2 Размещение
светильников на плане
Определим расчетную
высоту осветительной установки по формуле (1.2):
Нр = Н0
– hсв – hр ,
hсв=0,3, м; hр =0 м
м
Так как световой прибор НСР01 имеет кривую силы света типа М, то λс
= 2 и λэ = 2,6 [4, с.12].
Определяем расстояние между светильниками из соотношения (1.1):
λс×Нр £ L £ λэ× Нр,
м.
Определим количество
световых приборов в помещении и количество световых приборов:
Количество рядов
светильников определяется по формуле (1.3):
Количество светильников в
ряду определяется по формуле (1.4)
Общее количество светильников: N=na×
nb=1×
1=1шт.
Крайние светильники устанавливаются на расстоянии (0,3…0,5)L от стены:
Согласно расчету в данном
помещении необходимо разместить один световой прибор данного типа.
Рисунок 7 – План тамбура
1.8.3 Выбор источника
света
Определим мощность
осветительной установки методом коэффициента использования светового потока.
Определим индекс
помещения по формуле (1.8):
где а, b – длина и ширина помещения,
Далее по справочной
литературе определим коэффициент использования светового потока. Этот
коэффициент учитывает долю светового потока генерируемого источником света,
доходящую до рабочей поверхности.
Принимаем η=0,27 [4,
с.18].
Вычислим световой поток
ламп в светильнике по формуле (1.9):
где η–коэффициент
использования светового потока светильника;
z – коэффициент неравномерности, z=1,1…1,2 [1, с.10].
Для ЛН рекомендуется Z = 1,15.
лм.
Далее по найденному
значению светового потока выберем стандартную лампу и рассчитаем отклонение
расчетного потока от каталожного по формуле (1.10): ФН=2090 лм, Г215-225-150
[3, с.98].
Определим удельную мощность
осветительной установки по формуле (1.11):
где Рл –
мощность лампы, Вт; N – количество
светильников;
А – площадь помещения, м2.
Вт/м2.
1.9
Вход (4 шт.)
1.9.1 Выбор светового
прибора
Таблица 7– Технические
характеристики светильников
|
Световой прибор
|
IP
|
КСС
|
КПД, %
|
Мощность ламп, Вт
|
|
НПП03[5,с.240]
|
IP54
|
Д1
|
50
|
100
|
|
НСП23[3,с.62]
|
IP54
|
Д1
|
60
|
200
|
|
НПП25[3,с.62]
|
IP54
|
М
|
60
|
100
|
|
Н4Т2Н[3,с.62]
|
IP54
|
Д1
М
|
55
70
|
300
|
|
Н4БН[3,с.62]
|
IP54
|
Д1
М
|
55
70
|
150
|
|
ВЗГ/В4А-200МС
[3,с.62]
|
IP54
|
Д1
М
|
60
80
|
200
|
|
ПСХ 60М[5,с.240]
|
IP54
|
Д1
|
65
|
60
|
Учитывая высокий КПД,
требования к КСС и степень защиты, выбираем светильник ПСХ 60М.
1.9.2 Размещение
светильников на плане
Рисунок 8 – План входа
1.9.3 Выбор источника
света
м,
Далее определяют в данной
контрольной точке условную освещенность по формуле:
,
(1.22)
где a - угол между вертикалью и
направлением силы света светильника в расчетную точку; Ja1000 - сила света i-го светильника с условной лампой (со световым потоком в 1000
лм) в направлении расчетной точки. Численное значение Ja1000 определяют по кривым силы света.
кд
лк.
С учетом этой
освещенности рассчитывают световой поток источника света в светильнике по формуле
(1.9):
,
где m - коэффициент, учитывающий
дополнительную освещенность за счет влияния удаленных светильников и отражения
от ограждающих конструкций; 1000 – световой поток лампы; hсв – КПД светильника.
лм,
По численному значению
потока и каталожным данным выберем стандартную лампу: ФН=415 лм, Б-215-225-40
[3, с.62].
Рассчитаем отклонение
расчетного потока от каталожного по формуле (1.10):
Определим удельную
мощность осветительной установки по формуле (1.11):
Вт/м2.
|
Таблица 8 -
Светотехническая ведомость
|
1.11 Светотехническая ведомость
|
|
Характеристика помещения
|
Коэффициент
отражения
|
Вид освещения
|
Система свещения
|
Нормированная освещенность, лк
|
Коэффициент запаса
|
Светильник
|
Лампа
|
Установленная
мощность, Вт
|
Удельная мощность,
Вт/м2
|
|
№ по плану
|
Наиме-нование
|
Площадь, м2
|
Вид помещения по среде
|
стен
|
потолка
|
пола
|
Тип
|
Количество
|
Тип
|
Мощность, Вт
|
|
1
|
Помещение для птицы
|
2×648
|
Сырое с хим. акт. средой
|
50
|
30
|
10
|
Рабочее, тех-нологическое,
дежурное
|
Общая равномерная
|
50
|
1,3
|
Н2Т3Л
|
2х32
|
ЛБ40-1
|
40
|
1280
|
1,975
|
|
2
|
Подсобное помещение
|
48
|
Нормальное
|
50
|
30
|
10
|
Рабочее
|
10
|
1,15
|
НСО 11
|
6
|
Б220-235-40
|
40
|
160
|
5
|
|
3
|
Венткамера
(2шт.)
|
2×36
|
Сырое, пыльное
|
50
|
30
|
10
|
20
|
1,15
|
НПП 02
|
4
|
БК215-225-40
|
40
|
160
|
5,18
|
|
4
|
Насосная
|
12
|
Особо сырое
|
30
|
10
|
10
|
30
|
1,15
|
НПП 02
|
2
|
Б215-225-60
|
60
|
120
|
10
|
|
5
|
Уборная
|
6
|
Сырое
|
50
|
50
|
10
|
75
|
1,15
|
НСП 23
|
1
|
150
|
150
|
25
|
|
6
|
Электрощи-товая
|
6
|
Нормаль-ное
|
70
|
50
|
30
|
100
|
1,3
|
ЛСП 02
|
1
|
ЛБР-40
|
2×40
|
80
|
13,3
|
|
7
|
Тамбур
(2шт.)
|
2×36
|
Сырое
|
50
|
30
|
10
|
Рабочее
|
10
|
1,15
|
НСР 01
|
1
|
Г215-225-150
|
150
|
150
|
4,16
|
|
8
|
Вход (6шт.)
|
6×6
|
Особо сырое
|
-
|
-
|
-
|
Рабочее
|
2
|
1,15
|
ПСХ 60М
|
1
|
Б215-225-40
|
40
|
40
|
6,67
|
2. Электротехнический
раздел
2.1 Выбор схемы электроснабжения
и напряжения питания
осветительной установки
Как показывают
многолетний опыт эксплуатации и расчет, применение самостоятельных
осветительных трансформаторов технически и экономически неоправданно. Поэтому
осветительные установки сельскохозяйственных предприятий обычно питаются от
подстанций, общих для силовых и осветительных сетей. Осветительные щиты
запитываются через силовой распределительный щит. На каждый осветительный щит в
силовом распределительном пункте предусматривается отдельная группа.
Для питания осветительных
приборов общего внутреннего и наружного освещения, как правило, должно
применяться напряжение не выше 220 В.
2.2 Компоновка
осветительной сети
На этой стадии
проектирования решаются вопросы о месте расположения осветительных щитов, о
числе групп и количестве проводов на участках сети.
Далее составим расчетную
схему, на которой покажем все осветительные щиты и группы, число проводов и
длину групп, мощность источников света и места ответвления (рисунок 9).
2.2.1 Разделение
потребителей на группы
Согласно ПУЭ, предельный
ток группы не должен превышать 25А. Если к группе присоединены ЛН мощностью
более 500Вт или газоразрядные лампы высокого и сверхвысокого давления мощностью
более 125Вт, то предельный ток группы может быть увеличен до 63А.
Разделение на группы
делаем, опираясь на следующие рекомендации: число светильников на одну
двухпроводную группу не должно превышать 20 шт., а на двухфазную трехпроводную
и трехфазную четырехпроводную 40 – 60 шт. соответственно.
Длина четырехпроводной
группы должна быть около 80 м, а трех– и двухпроводной соответственно 60 и 35
м.
а) Первая группа: двухфазная,
трехпроводная, питающая 16 светильников:
·
16 светильникаН2Т3Л
с лампами ЛБ40-1 в помещении для птиц.
Длина группы 71,5 м;
б) Вторая группа:
двухфазная, трехпроводная, питающая 11 светильников:
·
11 светильника Н2Т3Л
с лампами ЛБ40-1 в помещении для птиц.
Длина группы 82,3 м;
в) Третья группа :двухфазная,
трехпроводная , питающая 11 светильников:
·
11 светильника Н2Т3Л
с лампами ЛБ40-1в помещении для птиц.
Длина группы 82м;
г) Четвертая группа: двухфазная,
трехпроводная, питающая 16 светильников:
·
16 светильникаН2Т3Л
с лампами ЛБ40-1 в помещении для птиц.
Длина группы 83,5 м.
д) Пятая группа: двухфазная,
трехпроводная, питающая 16 светильников:
·
2 светильника НПП
02 с лампами БК-215-225-60 в насосной
·
1 светильник НСП
23 с лампами Б215-225-150 в уборной,
·
6 светильников НСО11
с лампами Б220-235-40 в подсобном помещении
·
4 светильника НПП
02 с лампами БК-215-225-40 в венткамере.
·
3 светильника ПСХ
60М с лампой Б215-225-40 на входах.
Длина группы 56 м.
е) Шестая группа
(дежурная): двухфазная, двухпроводная, питающая 10 светильников:
·
10 светильников Н2Т3Л
с лампами ЛБ40-1 в помещении для птиц.
Длина группы 83 м.
ж) Седьмая группа: двухфазная,
трехпроводная, питающая 10 светильников:
·
2 светильника НСР
01 с лампами Г215-225-150 в тамбуре
·
3 светильника ПСХ
60М с лампой Б215-225-40 на входе.
·
4 светильника НПП
02 с лампами БК-215-225-40 в венткамере.
·
1 светильник ЛСП
02 с 2-мя лампами ЛБР-40 в электрощитовой.
Длина группы 120,4 м.
2.2.2 Расчет токов в
группах и на вводе
Определим ток на вводе:
,
(2.1)
А,
где S– полная мощность, В×А; m – число фаз; Uф –
фазное напряжение, В.

(2.2)
где Р–активная мощность, Вт:
Q–реактивная мощность, вар.
Рлл=1,2×PН (2.3)
Qлл=Рлл×tgj, (2.4)
где tgj=0,38, т.к. cosj=0,935 j=210.
Рлл=1,2×40=48 Вт;
Qлл=48×0,38=18,24 вар.
Определим ток в 1-й
группе:
Для ЛЛ cosj=0,92…0,97.
,
А.
Qлл=Рлл×tgj=96×0.38=36.48 вар.
Qлл=48×0,38=18,24 вар.
tgj=0,38, т.к. cosj=0.935
j=210.
Определим ток в 2-й
группе:
Для ЛЛ cosj=0,92…0,97.
,
А.
Рлл=1,2×PН= 1,2×40=48 Вт; Qлл=Рлл×tgj=48×0.38=18.24 Вар,
tgj=0,38, т.к. cosj=0.935
j=210.
Определим ток в 3-й
группе:
,
А
где Р–активная мощность, Вт:
Q–активная мощность, ВАр.
Рлл=1,2×PН= 1,2×40=48 Вт ; Qлл=Рлл×tgj=48×0.38=18.24 ВАр
tgj=0,38, т.к. cosj=0.935
j=210.
.
Определим ток в 4-й
группе:
,
А
Определим ток в 5-й
группе:

А
Определим ток в 6-й
группе (дежурной):
,
А
где Р–активная мощность, Вт:
Q–активная мощность, вар.
Рлл=1,2×PН= 1,2×40=48 Вт ; Qлл=Рлл×tgj=48×0.38=18,24 вар
tgj=0,38, т.к. cosj=0.935
j=210.
.
Определим ток в 7-й
группе:

А
Рлл=1,2×PН= 1,2×40=48 Вт ; Qлл=Рлл×tgj=48×0.38=18,24 вар
Таблица 9 –
Характеристика групп
|
Группа
|
Кол-во
светильников
|
Длина линии, м
|
Число фаз
|
Расчетная
нагрузка P, Вт
|
Ток, А
|
|
1
|
16
|
74,5
|
2
|
768
|
1,86
|
|
2
|
11
|
82,3
|
2
|
528
|
1,28
|
|
3
|
11
|
82
|
2
|
528
|
1,28
|
|
4
|
16
|
83,5
|
2
|
768
|
1,86
|
|
5
|
16
|
56
|
2
|
790
|
1,79
|
|
6
|
10
|
83
|
2
|
480
|
1,16
|
|
7
|
10
|
120,4
|
2
|
556
|
1,26
|
|
Участок
СЩ –ОЩ
|
-
|
3
|
3
|
4695
|
7,11
|
2.2.3 Выбор
осветительного щита и составление расчетной схемы
Щиты применяются для
защиты отходящих линий в осветительных сетях. Щит выбираем по количеству групп,
по окружающей среде, назначению.
Выбираем
распределительный пункт: ПР11-1068-IP21У3 (1000Х800Х200) [3, с.130]. Тип
автоматических выключателей АЕ2036 3-полюсный (восемь). Номинальный ток IН =25 А.
Таблица 10 - Техническая характеристика
автоматических выключателей распределительного пункта ПР11-1068-IP21У3.
|
Тип щитка
|
Аппаратура защиты
|
|
На вводе
|
На группах, А
|
|
тип
|
Кол-во
|
Ток расцепителя, А
|
|
ПР11-1068-IP21У3
|
А3720Б
|
АЕ2036
|
8
|
6,3;10;16;25
|
2.3 Выбор защитной аппаратуры
Согласно ПУЭ все
осветительные сети необходимо защищать от токов короткого замыкания и
перегрузок. В данном расчете выбираем токи уставок автоматов. Автоматы
устанавливают на линиях, отходящих от
щитов, на вводах в
здание.
Расчетное значение тока
уставки комбинированного
и теплового
расцепителей:
,
(2.5)
где
- коэффициент, учитывающий пусковые
токи (
= 1 – для маломощных ЛН (до 300 Вт) и ГРЛ
низкого давления, а для всех других
= 1,4). [3, с.25].
I гр.:
А;
II гр.:
А;
III гр.:
А;
IV гр.:
А;
V гр.:
А;
VI гр.:
А;
VII гр.:
А
Между щитами:
А.
Выбираем значения номинальных
токов расцепителей для групп и на вводе из таблицы 10.
для
1-ой группы:
для
2-ой группы:
для
3-ой группы:
для
4-ой группы:
для
5-ой группы:
для
6-ой группы:
для
7-ой группы:
для
ввода:
2.4 Выбор проводов
2.4.1 Выбор марки
проводов и способа их прокладки
Для прокладки в данном
здании выберем провод АПВ в винипластовой трубе в сырых, особо сырых, с
химически активной средой и открыто в нормальных помещениях [3, с.107]. На
участке от силового щита до осветительного выберем провод АПВ, проложенный в
стальной трубе.
2.4.2 Выбор сечения проводов
Сечение проводов
выбираем, исходя из механической прочности, нагрева, потери напряжения и согласования
с током защитного аппарата.
Определяем сечение
провода между силовым и осветительным щитами:
а) Выбираем сечение
провода по механической прочности, наименьшее допустимое значение Sстанд=2,5 мм2 [3, с.115];
Принимаем Sстанд=2,5 мм2
б) Проверяем по потере
напряжения;
Определяем фактическую
потерю напряжения по формуле:
,(2.6)
где с – коэффициент,
зависящий от напряжения сети, материала токоведущей жилы и числа проводов в
группе, с = 44 – для 3-х фазной линии [2, с.348];
-
электрический момент на каждом участке для каждого i-го светильника, кВт×м, определяется по формуле:
,
(2.7)
где
- мощность определенного участка, Вт;
-
длина участка от щита до i-го светильника,
м.
Т.к. суммарная мощность
всей сети:
Р =64×48+6×40+8×40+150+2×60+2×150+2×48+6×40=4538Вт
Определяем фактическую потерю
напряжения:
,
(2.8)
%.
Допустимая потеря
напряжения
= 0,2%.
(2.9)
0,2%>0,123%
Проверяем сечение по
допустимому току в зависимости от сечения и количества проводов, в нашем случае
четырех одножильных алюминиевых проводов, проложенных в стальной трубе,
выбираем [3, с.111] длительно допустимый ток:
Iрасч. £ Iдоп.. (2.10)
7,11< 21,
следовательно по нагреву проходит,
т.к. меньше допустимого значения.
Проверяем сечение по согласованию с
током аппарата:
(2.11)
А,
= 10 А.
21 А > 12,5 А,
следовательно провод
проходит по согласованию с током автомата.
Выбираем марку провода из
[3, с.104]: между щитами провод с поливинилхлоридной
изоляцией, алюминиевый с прокладкой в стальной трубе, марка: АПВ − 5
(1х3).
Выбор сечения провода для
1-й групповой линии
а) Выбираем по
механической прочности. Сечение алюминиевого провода не может быть менее 2,5 мм2
[2, с.337]. Принимаем Sстанд=2,5 мм2 .
б) Проверяем сечение
провода по потере напряжения.
=30,144
кВт×м.
,
%.
1,6 %>0,61%
где с = 19,5 – для 2-х
фазной линии [2, с.348];
- потери напряжения в
осветительной сети. Допустимая потеря напряжения
=
1,6%.
в) Проверяем сечение по
допустимому току в зависимости от сечения и количества проводов, в нашем случае
трех одножильных алюминиевых проводов, выбираем [3, с.111] длительно допустимый
ток:
А.
Iрасч. £ Iдоп ,
1,86 £ 19 ,
следовательно по нагреву
проходит, т.к. меньше допустимого значения.
г) Проверяем сечение
провода по согласованию с током защитного аппарата
Согласование тока уставки
с допустимым током провода:
,
А;
А,
=
6,3 А.
А
19 А > 7,875 А ,
следовательно провод проходит по согласованию с током автомата.
Принимаем провод АПВ −
4 (1×2,5 мм2).
Выбор сечения провода для
2-й групповой линии:
а) Выбираем по
механической прочности. Сечение алюминиевого провода не может быть менее 2,5 мм2
[2, с.337]. Принимаем Sстанд=2,5 мм2 .
б) Проверяем сечение
провода по потере напряжения.
Определяем фактическую потерю
напряжения по формуле:
,
=25,406
кВт×м
%.
Допустимая потеря напряжения
= 1,6%.
1,6%>0,52%.
в) Проверяем сечение провода
по допустимому току в зависимости от сечения и количества проводов в нашем
случае трех одножильных алюминиевых проводов, выбираем [3, с.111] длительно допустимый
ток:
А.
Iрасч. £ Iдоп,
1,28 < 19, следовательно
по нагреву проходит, т.к. меньше допустимого значения.
г) Проверяем сечение
провода по согласованию с током защитного аппарата
А;
А,
=
6,3 А.
А
19 А > 7,88 А,
следовательно провод проходит по согласованию с током автомата.
Принимаем АПВ − 4
(1×2,5).
Выбор сечения провода для
3-й групповой линии:
а) Выбираем сечение
провода по механической прочности. Сечение алюминиевого провода не может быть
менее 2,5 мм2 [2, с.337]. Принимаем Sстанд=2,5 мм2
б) Проверяем сечение
провода по потере напряжения.
Определяем фактическую потерю
напряжения по формуле:
,
=25,925
кВт×м.
,%.
0,53%<1,6%.
в) Проверяем сечение провода
по допустимому току в зависимости от сечения и количества проводов в нашем
случае трех одножильных алюминиевых проводов, выбираем [3, с.111] длительно
допустимый ток:
А.
Iрасч. £ Iдоп,
1,28 <19,
следовательно по нагреву проходит, т.к.меньше допустимого значения.
г) Проверяем сечение
провода по согласованию с током защитного аппарата.
А;
А,
=
6,3А.
А
19 А>7,88 А,
следовательно провод проходит по согласованию с током автомата.
Принимаем провод АПВ −
4 (1×2,5 мм2).
Выбор провода для 4-й групповой линии
а) Выбираем сечение
провода по механической прочности. Сечение алюминиевого провода не может быть
менее 2,5 мм2 [2, с.337]. Принимаем Sстанд=2,5 мм2
б) Проверяем сечение
провода по потере напряжения.
Определяем фактическую
потерю напряжения по формуле:
,
=37,056
кВт×м.
%.
0,76%<1,6%.
в) Проверяем сечение провода
по допустимому току в зависимости от сечения и количества проводов в нашем
случае трех одножильных алюминиевых проводов, выбираем [3, с.111] длительно
допустимый ток:
А
.
Iрасч. £ Iдоп,
1,86 < 22, следовательно
по нагреву проходит.
г) Проверяем сечение
провода по согласованию с током защитного аппарата.
А
22 А>7,88 А,
следовательно провод проходит по согласованию с током автомата.
Принимаем провод АПВ −
4 (1×2,5 мм2).
Выбор провода для 5-й групповой линии
а) Выбираем сечение
провода по механической прочности. Сечение алюминиевого провода не может быть
менее 2,5 мм2 [2, с.337]. Принимаем Sстанд=2,5 мм2
б) Проверяем сечение
провода по потере напряжения.
Определяем фактическую
потерю напряжения по формуле:
,
=9,482
кВт×м.
%.
0,19%<1,6%.
в) Проверяем сечение провода
по допустимому току в зависимости от сечения и количества проводов в нашем
случае трех одножильных алюминиевых проводов, выбираем [3, с.111] длительно
допустимый ток:
А
.
Iрасч. £ Iдоп,
1,79 < 19, следовательно
по нагреву проходит.
г) Проверяем сечение
провода по согласованию с током защитного аппарата.
А;
А,
=
6,3 А.
А
19 А>7,88 А,
следовательно провод проходит по согласованию с током автомата.
Выбираем марку провода из
[3, с.104]: провод 5-й группы с
поливинилхлоридной изоляцией, прокладка в винипластовой трубе в насосной,
уборной и в венткамере, а в электрощитовой, подсобном помещении открыто по
поверхности стен, марка: АПВ − 4 (1×2,5).
Выбор провода для 6-й групповой линии
а) Выбираем сечение
провода по механической прочности. Сечение алюминиевого провода не может быть
менее 2,5 мм2 [2, с.337]. Принимаем Sстанд=2,5 мм2
б) Проверяем сечение
провода по потере напряжения.
Определяем фактическую
потерю напряжения по формуле:
,
=21,696
кВт×м.
%.
0,44%<1,6%.
в) Проверяем сечение провода
по допустимому току в зависимости от сечения и количества проводов в нашем
случае трех одножильных алюминиевых проводов, выбираем [3, с.111] длительно
допустимый ток:
А
.
Iрасч. £ Iдоп,
1,16 < 19, следовательно
по нагреву проходит.
г) Проверяем сечение
провода по согласованию с током защитного аппарата.
А;
А,
=
6,3 А.
А
19 А>7,88 А,
следовательно провод проходит по согласованию с током автомата.
Принимаем провод АПВ −
4 (1×2,5 мм2).
Выбор провода для 7-й групповой линии
а) Выбираем сечение
провода по механической прочности. Сечение алюминиевого провода не может быть
менее 2,5 мм2 [2, с.337]. Принимаем Sстанд=2,5 мм2
б) Проверяем сечение
провода по потере напряжения.
Определяем фактическую
потерю напряжения по формуле:
,
=56,122
кВт×м.
%.
1,15%<1,6%.
в) Проверяем сечение провода
по допустимому току в зависимости от сечения и количества проводов в нашем
случае трех одножильных алюминиевых проводов, выбираем [3, с.111] длительно
допустимый ток:
А
.
Iрасч. £ Iдоп,
1,26 < 19, следовательно
по нагреву проходит.
г) Проверяем сечение
провода по согласованию с током защитного аппарата.
А;
А,
=
6,3 А.
А
19 А>7,88 А,
следовательно провод проходит по согласованию с током автомата.
Принимаем провод АПВ −
4 (1×2,5 мм2).
2.4.3 Определение
суммарных потерь напряжения
Определяем суммарные
потери напряжения 1-й группы:
%.
Определяем суммарные
потери напряжения 2-й группы:
%.
Определяем суммарные
потери напряжения 3-й группы:
%.
Определяем суммарные
потери напряжения 4-й группы:
%.
Определяем суммарные
потери напряжения 5-й группы:
%.
Определяем суммарные
потери напряжения 6-й группы:
%.
Определяем суммарные
потери напряжения 7-й группы:
%.
Список литературы
1. Отраслевые нормы освещения сельскохозяйственных
предприятий, зданий и сооружений. – М.: ВИЭСХ, 1992.– 27с.
2. Справочная книга для проектирования электрического
освещения. / Под редакцией Г.М. Кнорринга – Л.: Энергия, 1976. – 382с.
3. Быков В.Г. Справочные материалы для проектирования
электрического освещения – Челябинск, 2006. – 141с.
4. Методические указания к курсовой работе по проектированию
электрических осветительных установок. – Ч.: ЧГАУ, 2003. – 59с.
5. Справочная книга по светотехнике / Под ред. Ю.Б. Айзенберга
– М.: Энергоатомиздат, 1983. – 470с.
6. Справочная книга по светотехнике / Под ред. Ю.Б.
Айзенберга. – М.: Энергоатомиздат, 1995. – 470с.
7. Правила устройства электроустановок. Издание седьмое.
Челябинск, центр безопасности труда, 2006. – 843с.