Механизмы вилочного погрузчика
МИНИСТЕРСТВО
ТРАНСПОРТА РОССИЙСКОЙ ФЕДЕРАЦИИ
ФЕДЕРАЛЬНОЕ
АГЕНСТВО ЖЕЛЕЗНОДОРОЖНОГО ТРАНСПОРТА
ГОУ ВПО
ДАЛЬНЕВОСТОЧНЫЙ
ГОСУДАРСТВЕННЫЙ
УНИВЕРСИТЕТ ПУТЕЙ СООБЩЕНИЯ
Кафедра
«Строительные и путевые машины»
ПОЯСНИТЕЛЬНАЯ
ЗАПИСКА
к курсовой
работе:
«Расчет
механизмов вилочного погрузчика»
по
дисциплине:
«Погрузо-разгрузочные
машины»
КР
19020565.00.00-148.ПЗ
Содержание
Введение
1. Выбор аналога машины
2. Расчет механизмов и узлов автопогрузчика
2.1 Расчет механизма подъема груза вилочного погрузчика
2.1.1 Расчет суммарных сопротивлений подъему груза.
2.1.2 Расчет гидроцилиндра подъёма
груза
2.1.3 Расчет поперечного сечения грузовых вил
2.2 Расчет механизма наклона
грузоподъемника
2.2.1 Расчет гидроцилиндра для
наклона грузоподъемника
3. Тяговый расчет погрузчика
3.1 Определение мощности и построение внешней скоростной характеристики
двигателя автопогрузчика
3.2 Определение основных параметров
трансмиссии
3.2.1 Выбор шин
3.3 Расчет динамической тяговой
характеристики погрузчика
4. Расчет автопогрузчика на
устойчивость
4.1 Расчет погрузчика на продольную устойчивость
4.2 Расчет погрузчика на поперечную устойчивость
Список литературы
Введение
Машины напольного
безрельсового транспорта по сравнению с другими видами подъемно-транспортных
средств более компактны и маневренны, имеют меньшую массу и более высокие
эксплуатационные показатели. Они требуют относительно малых капиталовложений
при сравнительно коротких сроках окупаемости. Один автопогрузчик
грузоподъемностью 1 т высвобождает от 3 до 7 рабочих, занятых на
погрузочно-разгрузочных работах. Расходы на приобретение и эксплуатацию
погрузчика окупаются ориентировочно в течение 6-12 месяцев.
Эти машины мобильны и
могут быть легко приспособлены к изменяющейся технологии перегрузочных и
транспортных работ. Они могут работать везде, где есть твердое покрытие, а
машины специальных типов – даже на строительных площадках и в условиях бездорожья.
Путь следования машин может быть любым, поэтому их можно использовать при
различной технологии перегрузочных работ. Напольный транспорт не требует рельсовых
путей, токопровода и легко взаимодействует с другими видами транспортных машин.
При рациональной организации перегрузочного процесса не требуется
вспомогательной рабочей силы и обеспечивается 100%-ная комплексная механизация
погрузочно-разгрузочных и транспортных работ.
В данной курсовой работе
необходимо произвести расчёт автопогрузчика грузоподъёмностью 4700 кг, с максимальной скоростью передвижения 20 км/ч и высотой подъёма 3 м., а именно производился расчет узлов автопогрузчика, тяговый расчет погрузчика, расчет
автопогрузчика на устойчивость. Курсовой работой предусмотрена графическая
часть – формат А1 общий вид погрузчика (вид слева), грузоподъемник (2 вида).
1. Выбор
аналога машины
При выборе аналога
рассчитываемого погрузчика руководящим показателем является грузоподъемность
выбираемого погрузчика Gпог, т (кг), которая не должна превышать
вес поднимаемого груза (по заданию) более чем на 300 кг.
В качестве аналога
выбираем автопогрузчик модели 4045М с грузоподъемностью 5000 кг.
Параметры автопогрузчика:
Грузоподъемность
на вилах, т………………………………………….5,0
Расстояние от
центра массы груза до передних стенок вил, мм…….600
Наибольшая
высота подъема груза на вилах, мм…………………….4000
Габаритные
размеры, мм
Ширина………………………………………………………………….2250
Длина
с вилами…………………………………………………………4960
Высота с
опущенным грузоподъемником……………………………3260
База колес,
мм………………………………………………………….2200
Наименьший
радиус поворота, мм……………………………………3900
Колея
колес, передних (между серединами двойных скатов) мм..…1740
задних…………………………………………………………………..1620
Дорожный
просвет, мм………………………………………………..240
Угол
наклона рамы грузоподъемника вперед (назад), град………...3/10
Наибольшая
скорость с грузом (без груза), км/ч…………………15/25
Скорость
поднимаемого груза на вилах, м/мин……………………..10
Скорость
опускаемой каретки без груза, м/мин……………………..5
Скорость
опускаемого груза, м/мин………………….………………14
Масса
с вилами без груза, кг………………………………………….5800
Двигатель:
тип, мощность (л. с.), число оборотов в мин..ГАЗ-63/70/2800
Вместимость
бензобака, маслобака, л……………………………..114/104
Рисунок 1. Схема автопогрузчика
4045М.
Определим масштабный коэффициент
:
2. Расчет
механизмов и узлов автопогрузчика
2.1 Расчет
механизма подъема груза вилочного погрузчика
2.1.1
Расчет суммарных сопротивлений подъему груза
Целью расчета является
определение основных параметров гидроцилиндра и подбор требуемого поперечного
сечения грузовых вил. Усилие действующее на гидроцилиндр зависит от
кинематической схемы грузоподъемника и взаимного расположения его основных
узлов.
Традиционно механизм
грузоподъемника выполняют в виде двукратного скоростного полиспаста
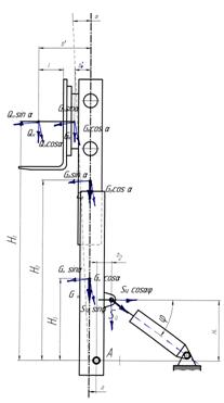
Рисунок 2. Схема действия
сил в механизме подъёма автопогрузчика.
Наибольшее усилие подъёма
определяют при вертикальном положении грузоподъёмника, максимально поднятых
вилах с номинальным грузом, когда погрузчик стоит на уклоне с боковым креном до
β =
(рис. 2)
Необходимое усилие
подъёма по плунжеру определяется по формуле:
, (1)
где
- сопротивление подъёму груза и
подъёмной каретки с вилами;
- сопротивление подъёму выдвижной рамы с плунжером,
траверсой и грузовыми цепями;
- сопротивление качению основных катков по
направляющим;
- сопротивление качению боковых катков по
направляющим.
Сопротивление
определим по формуле:
, (2)
где
- вес номинального груза (
);
- вес каретки с вилами;
- вес выдвижной рамы с плунжером цилиндра
подъема и траверсы с роликами,
- механический КПД цепной передачи (грузовые
цепи перекинуты через ролики траверсы), принимаем равным
;
- механический КПД цилиндра, принимаем равным
.
Учитывая, что масса
каретки с вилами
,
(3)
Вес выдвижной рамы с
плунжером гидроцилиндра и траверсы с роликами определим следующим образом:
(4)
масса выдвижной рамы с плунжером и траверсой к
одному метру подъема,
длинна выдвижной рамы
(5)
высота подъема груза
расстояние по вертикали между основными катками
каретки и нижним катком выдвижной рамы
диаметр катков,
Размер
определяется из выражения:
(6)
– расстояние по вертикали между основными
катками и верхним катком выдвижной рамы,
Сопротивление, вызываемое
качением основных катков по направляющим:
.(7)
где
- общий коэффициент
сопротивления качению катков;
- реакция по каткам подъемной каретки;
- реакция по основным каткам наружной
рамы;
- реакция, вызываемая парой сил
.
Общий коэффициент
сопротивления качению катков можно определить по формуле:
. (8)
где
- коэффициент трения второго
рода (плечо трения качения)(
);
- условный коэффициент трения,
учитывающий качение шариков (роликов) по дорожке внутреннего кольца подшипника.
(
).
.
Реакции по основным
каткам каретки определяются из следующего выражения:
, (9)
Реакции по основным
каткам наружной
и
внутренней
рам можно
принять равными и определить из следующего выражения:
, (10)
где
- плечи приложения сил
и
относительно оси передней ветви грузовых цепей.
Зная, что
и
, рассчитаем
и
:
.
Кроме указанных реакций
по основным каткам у рам возникают реакции
и
, вызываемые парой сил 2F от внецентренного закрепления концов грузовых цепей на
корпусе цилиндра подъёма относительно оси плунжера на плече
. В расчетах для упрощения можно
принять что
=
.
Пара сил определяется из
выражения:
, (11)
где
– усилие в одной ветви грузовых
цепей;
- высота от шарового шарнира цилиндра подъёма
на нижней поперечине наружной рамы до оси роликов траверсы или выдвижной рамы,
через которые перекинуты грузовые цепи.
- расстояние от оси цилиндра до задней
плоскости грузовых цепей
(
)
≈
, (12)
где
- наибольшая высота подъёма.
При креплении концов
грузовых цепей на специальной верхней поперечине у наружной рамы пара сил 2F будет больше при малых высотах подъёма, но тогда будут
меньше реакции по каткам
и
из-за большей
. Поэтому исходным
положением для расчёта принят случай подъёма груза на полную высоту.
Усилие в одной ветви
грузовой цепи:
, (13)
где
- вес каретки и выдвижной рамы в
сумме; (
)
- суммарный коэффициент сопротивления качению
катков.
(
)
Найдем пару сил из выражения (11):
Зная пару сил 2F, можно определить реакцию по верхнему катку наружной рамы:
, (14)
вилочный
погрузчик груз двигатель
где
– расстояние от оси нижнего катка
выдвижной рамы до оси роликов для грузовых цепей на траверсе или верхней поперечине
выдвижной рамы,
.
Определим числовое
значение сопротивления
:
Сопротивление подъему
груза при качении боковых катков:
, (15)
где
- общий коэффициент
сопротивления качению боковых катков;
- реакции по боковым каткам соответственно
каретки, наружной и внутренней рам.
Реакции по боковым каткам
каретки определим по формуле:
, (16)
где
- угол наклона,
.
Подставляя значения,
получим:
.
Реакции по боковым каткам
наружной и внутренней рам определим по формулам:
, (17)
, (18)
где
- расстояние по высоте между
нижним катком каретки и верхним у наружной рамы
(
);
- расстояние от оси основного катка до конца
выдвижной рамы (
).
Таким образом,
Общий коэффициент
сопротивления качению боковых катков:
, (19)
где
- наружный диаметр бокового катка (
);
- диаметр оси бокового катка (
);
- коэффициент трения скольжения (
).
Таким образом,
сопротивление
будет
иметь следующее числовое значение:
Тогда, усилие на штоке
гидроцилиндра, необходимое для подъема груза будет равно:
2.1.2
Расчет гидроцилиндра подъёма груза
Диаметр плунжера
определяется по формуле:
(20)
где
– число гидроцилиндров, работающих
одновременно; (
=1)
рабочее давление в системе, МПа; (в
соответствии с аналогом, принимаем
16 МПа )
– потери давления (суммарное сопротивление) в
напорной линии от насоса до цилиндра, кгс/см²; ;(в соответствии с
рекомендацией [2], принимаем
=0,5 МПа )
– механический КПД гидроцилиндра; (в
соответствии с рекомендацией [1], принимаем
=0,96 МПа )
КПД пары шарнирных подшипников с густой
смазкой; (в соответствии с рекомендацией [2], принимаем
=0,94 МПа )
В соответствии с
рекомендациями [3] принимаем гидроцилиндр с параметрами:
Согласно рекомендации [1]
ход плунжера принимаем равным половине максимальной высоты подъёма груза:
2.1.3 Расчет
поперечного
сечения грузовых вил
Грузовые вилы рассчитываются
на сложное сопротивление изгибу и растяжению. Опасным считают сечение А –
А.-рисунок-2, в этом сечении вилы растягиваются силой:
21)
где
- номинальная грузоподъёмная сила;
коэффициент динамичности, (в соответствии с
рекомендациями [1] принимаем
1,2)
В сечении А – А вилы изгибаются моментом:
(22)
Напряжение возникающее в опасном
сечении вил:
(23)
где
и
– сечение и момент сопротивления вил.
Согласно рекомендациям [2] принимаем
следующие параметры грузовых вил: Ширина
=150мм, толщина
=60мм.
Тогда момент сопротивления будет
равен:
(24)
(25)
Предполагаем, что
грузовые вилы изготовлены из Сталь 45 с пределом текучести
Проверка:
Допускаемое напряжение
определим по формуле:
(26)
Условие выполняется.
2.2 Расчет механизма наклона
грузоподъемника
Наибольшее усилие по
штоку цилиндров наклона грузоподъёмника возникает при обратном повороте
грузоподъёмника с грузом, наклонённого вперёд на предельный угол α.
Для расчёта примем
следующие положения: центр тяжести груза по высоте находится на середине катков
у подъёмной каретки, а по горизонтали – на расстоянии l (рис. 3) от передней спинки вил;
центр тяжести каретки с вилами на середине толщины спинки вил; центр тяжести
рам грузоподъёмника вместе с цилиндром подъёма – на середине рам.
Примем следующие
обозначения, и назначим необходимые данные
=
- вес груза (по заданию); (61740Н)
- веса соответственно подъёмной каретки с
вилами выдвижной рамы с плунжером цилиндра подъёма и траверсы с роликами и наружной
рам;
=6468Н,
=3175,2Н,
=3492,764Н
- высота от оси поворота грузоподъёмника
соответственно до центра тяжести груза и подъёмной каретки с вилами, выдвижной
и наружной рам и до оси крепления штока цилиндров наклона к наружной раме;
=2,89м,
,
,
где к- масштабный
коэффициент равный 32,2
-длина нижней рамы
- расстояние центра тяжести груза от оси рам,
равное
;
- расстояние центра тяжести подъёмной каретки
от оси рам, равное
;
- расстояние между шарнирами оси поворота
грузоподъёмника и штока цилиндра и штока цилиндра наклона на наружной раме;
,
а – расстояние по горизонтали от
середины рам до центра поворота грузоподъёмника;
- усилие по штокам цилиндров;
φ - угол наклона
цилиндра с учётом угла наклона грузоподъёмника вперёд на угол α=20
, φ=350
Составим уравнение
моментов около шарнира А (рис. 3)
(27)
Рисунок 3. Схема действия сил в
механизме наклона грузоподъемника
Решая это уравнение относительно
, получим суммарное усилие
по штокам цилиндров наклона.
Следовательно в результате решения
уравнения получаем:
2.2.1 Расчет
гидроцилиндра для наклона грузоподъемника
Диаметр плунжера
определяется по формуле:
(28)
где
– число гидроцилиндров, работающих
одновременно; (
=2)
рабочее давление в системе, МПа; (в
соответствии с аналогом, принимаем
16 МПа )
– потери давления (суммарное сопротивление) в
напорной линии от насоса до цилиндра, кгс/см²; ;(в соответствии с
рекомендацией [2], принимаем
=0,5 МПа )
– механический КПД гидроцилиндра; (в
соответствии с рекомендацией [1], принимаем
=0,96 МПа )
КПД пары шарнирных подшипников с густой
смазкой; (в соответствии с рекомендацией [2], принимаем
=0,94 МПа )
В соответствии с
рекомендациями [3] принимаем гидроцилиндр с параметрами:
Согласно предварительно выбранного
аналога ход плунжера гидроцилиндра наклона грузоподъемника, равен:
3
Тяговый
расчет погрузчика
3.1
Определение мощности и построение внешней скоростной характеристики двигателя
автопогрузчика
Для подбора внешней
характеристики двигателя вначале определяется мощность
л.с., необходимую для обеспечения заданной
максимальной скорости
и
в км/ч, по дороге с заданным коэффициентом дорожного сопротивления.
Необходимая мощность двигателя:
(29)
где
- полный вес снаряженного погрузчика, (по
аналогу
)
- максимальная скорость движения погрузчика,
- номинальный вес груза, с учетом скорости
- КПД трансмиссии погрузчика,
- суммарный коэффициент сопротивления качению:
(30)
- коэффициент сопротивления качению,
- величина уклона,
В общем случае частота вращения
коленчатого вала 
при максимальной скорости
движения автомобиля не равна частоте вращения
<
, соответствующей максимальной мощности
двигателя, и следовательно
- максимальная мощность двигателя
В тех случаях, когда
максимальную мощность
двигателя
л.с., можно найти,
пользуясь эмпирической формулой:
Максимальная мощность двигателя:
(31)
где
- эмпирические коэффициенты для бензинового
двигателя:
- частота вращения коленчатого вала (по аналогу
)
Принимаем
Условие
выполняется.
Скорость, соответствующая
максимальной мощности:
(32)
Построение внешней скоростной
характеристики двигателя:
Для построения необходимо
использовать формулу:
, (33)
где
и
- текущие значения соответственно мощности двигателя и частоты
вращения коленчатого вала.Задаваясь такими значениям
, которые соответствуют значениям соотношения
и подчитываем величины
соответствующей мощности
.
Определение текущих значений крутящих
моментов:
(34)
Данные расчетов сводим в таблицы:
|
|
0,1
|
0,2
|
0,3
|
0,4
|
0,5
|
0,6
|
0,7
|
0,8
|
0,9
|
1
|
1,1
|
1,2
|
|
14,061
|
29,928
|
46,827
|
63,984
|
80,625
|
95,975
|
109,263
|
119,712
|
126,549
|
129
|
126,291
|
117,648
|
|
|
233,33
|
466,66
|
699,99
|
933,32
|
1399,98
|
1633,31
|
1866,64
|
2099,97
|
2333,3
|
2566,63
|
2800
|
|
|
43,160
|
45,932
|
47,911
|
49,099
|
49,495
|
49,098
|
47,911
|
45,931
|
43,160
|
39,596
|
35,241
|
30,093
|
3.2
Определение основных параметров трансмиссии
Преобразование выходных
тягово-скоростных параметров двигателя (крутящего момента и частоты вращения) в
трансмиссии осуществляется при помощи главной передачи и коробки перемены
передач.
Передаточное отношение
главной передачи рассчитывается исходя из обеспечения максимальной скорости
движения погрузчика на первой передаче (передаточное отношение коробки передач
) по формуле:
, (35)
где:
- максимальная частота вращения
коленчатого вала принятая при построении внешней скоростной характеристики;(
=2800 об/мин)
- радиус ведущих колес (принимается в
соответствии с аналогом).
Выбор шин
Для выбора шин надо
определить нагрузку, приходящуюся на одно колесо погрузчика. У погрузчиков с
колесной формулой 4х2 на заднюю ось при полном использовании нагрузки
приходится около 25-30% нагрузки. На передней оси этих погрузчиков обычно
монтируются четыре шины, каждая из которых испытывает большую весовую нагрузку,
чем шина заднего колеса, поэтому выбор производится по весовой нагрузке,
приходящейся на одно переднее колесо.
Нагрузка на одно колесо
определяется по формуле:
, (36)
где:
- число колес на передней оси,
=4
-полный вес погрузчика
(37)
где
- вес груза по заданию (46060Н)
,
,
- веса соответственно подъёмной каретки с
вилами выдвижной рамы с плунжером цилиндра подъёма и траверсы с роликами и наружной
рам;
=6468Н,
=3175,2Н,
=3492,764Н
- полный вес снаряженного погрузчика, (по
аналогу
=56840Н)
По средней нагрузке
по справочнику [2]
подбираем пневматические шины типа
:
наружный диаметр номинальный 535 мм;
ширина профиля без нагрузки не более 200 мм;
статический радиус номинальный 247 мм;
нагрузка на шину 25,0кН;
материал резина
внутреннее давление 0,9 МПа
Количество передач и их передаточные числа определяют способность
погрузчика к преодолению подъемов в складских помещениях, быстрому разгону и
движению с установленной скоростью при заданном покрытии. Определение
передаточных чисел коробки передач начинают с расчета передаточного числа 
первой передачи. Для этого используют уравнение
силового баланса установившегося движения погрузчика:
(38)
где:
-коэффициент учета вращающихся масс;
j - поступательное ускорение погрузчика
0,15-0,25 м2/с.
- коэффициент сцепления колес с дорогой
зависит от качества дорожного покрытия (по заданию
=0,89).
(39)
где: а –
коэффициент учета вращающихся масс (принимаем согласно рекомендации [1]; а
= 0,04);
- передаточное число коробки передач в момент
начала движения . Так как данное значение неизвестно его принимаем приближенно
из диапазона 3,5-5;
=4
Суммарное сопротивление
может быть преодолено, если отношение максимальной тяговой силы к весу
автомобиля будет равно или больше этого коэффициента, т.е.
(40)
где:
-максимальный крутящий момент
-КПД трансмиссии
=0,85
Увеличение передаточного
числа первой передачи допустимо только до величины , при которой развиваемая
тяговая сила еще не достигнет силы сцепления колес с дорогой, т. е.
(41)
где:
- сцепной вес погрузчика, кг;
Из равенства (41)
получаем:
(42)
Сцепной вес
переднеприводного погрузчика равен 55-65% от веса погрузчика с грузом.
Так как передаточное
число полученное по формуле (42) меньше чем определенное по формуле (40), то
следует проверить возможность увеличения веса, приходящегося на ведущие колеса.
Так как при выборе шин
были взяты шины с допустимой нагрузкой 25,0кН, а средняя нагрузка
, следовательно можно увеличить
вес приходящийся на ведущие колеса до 85% от полного веса погрузчика.
Тогда сцепной
вес переднеприводного погрузчика будет равен:
Так как условие не
выполняется выберем пневматические шины по справочнику [2] типа:7.00-12
наружный диаметр номинальный 660мм;
ширина профиля без нагрузки не более 192 мм;
статический радиус номинальный 305 мм;
нагрузка на шину 27,6кН;
материал резина
внутреннее давление 0,8 МПа
Пересчитаем формулы
(40),(42) с учетом, что статический радиус
=0,305м
и сцепной вес
переднеприводного погрузчика равен 95% от веса погрузчика с грузом.
Так как увеличить вес
приходящийся на передние колеса, в пределах , обеспечивающих равенство
передаточных чисел, определенных по формулам (40) и (42), невозможно, то
принимаем значение передаточного числа первой передачи, полученное по формуле (42),
т.е.
=5,5
От выбора промежуточных
передаточных чисел коробки передач зависят как тяговые, так и экономические
свойства автомобиля. Одним из простейших методов выбора передаточных чисел
промежуточных передач является метод, в основу которого положено наиболее
полное использование мощности двигателя при разгоне погрузчика, начиная с
первой и кончая высшей передачей. При наличии бесступенчатой коробки передач
разгон можно производить не меняя частоты вращения коленчатого вала двигателя.
В этом случае можно работать на частоте вращения
, используя в процессе разгона максимальную
мощность двигателя и получая в результате этого максимально возможные для
данного автомобиля ускорения. При ступенчатой коробке передач для наилучшего
использования мощности, двигатель на всех передачах, должен работать в
некотором диапазоне частоты вращения коленчатого вала от
до
.
Если пренебречь падением
скорости в процессе переключения передач, то каждый раз при переключении
передач скорость движения погрузчика, достигнутая перед моментом переключения,
например в конце разгона на первой передаче
, равна скорости, с которой начинается разгон
на второй передаче т.е.
(43)
следовательно:
,
или:
(44)
Из равенства (44)
следует, что для наилучшего использования мощности двигателя передаточные числа
должны подчиняться закону геометрической прогрессии со знаменателем q.
Из предварительного
расчета известны передаточные числа первой и высшей передач. Пользуясь
равенством (44), можно найти передаточные числа промежуточных передач для
коробки передач с любым числом ступеней.
Для коробки передач с n ступенями передач передаточное число
любой передачи можно определить по формуле.
(45)
где: k-номер передачи;
n -число ступеней, исключая заднюю и
ускоряющую передачи. n =5
Обычно передаточное число
заднего хода принимается
3.3 Расчет
динамической тяговой характеристики погрузчика
Для оценки динамических
характеристик погрузчика аналогично автомобилю используют показатель
динамического фактора. Данная величина представляет собой отношение силы тяги
развиваемой погрузчиком отнесенной к полной массе погрузчика:
(46)
где:
– полная масса
погрузчика;(116035,964Н)
Последовательность
построения динамической характеристики погрузчика:
Для каждого из значений
частот вращения двигателя
принимаемых в предыдущем разделе
соответствующих им выходных показателей мощности двигателя определяемых по
формуле (33) и крутящих моментов формула (34) определяются скорости движения
погрузчика на каждой передаче по формуле:
(47)
Из формулы (40) выражаем
значение
определяя его
значения на каждой передаче при соответствующих значениях частот вращения
(крутящих моментов).
(48)
Далее по формуле (47)
находят значения динамического фактора.
Полученные значения
заносим в таблицу 1.
По данным таблицы 1
необходимо построить график изменения динамического фактора для рассчитываемого
погрузчика на каждой передаче. На оси абсцисс откладываем значение скорости
погрузчика, а по оси ординат показания динамического фактора на каждой передаче.
Таблица 1 -
Сводные данные тягово-скоростных значений погрузчика
|
M
|
43,16
|
45,932
|
47,911
|
49,099
|
49,495
|
49,098
|
47,911
|
45,931
|
43,16
|
39,596
|
35,241
|
30,093
|
|
n
|
233,33
|
466,66
|
699,99
|
933,32
|
1166,7
|
1400
|
1633,3
|
1866,6
|
2100
|
2333,3
|
2566,6
|
2800
|
|
V1
|
0,3742
|
0,7484
|
1,1226
|
1,4968
|
1,871
|
2,2452
|
2,6194
|
2,9936
|
3,3678
|
3,742
|
4,1162
|
4,4905
|
|
V2
|
0,5733
|
1,1466
|
1,7199
|
2,2932
|
2,8664
|
3,4397
|
4,013
|
4,5863
|
5,1596
|
5,7329
|
6,3062
|
6,8796
|
|
V3
|
0,8795
|
1,7591
|
2,6386
|
3,5181
|
4,3977
|
5,2772
|
6,1567
|
7,0363
|
7,9158
|
8,7953
|
9,6749
|
10,555
|
|
V4
|
1,3452
|
2,6903
|
4,0355
|
5,3807
|
6,7258
|
8,071
|
9,4162
|
10,761
|
12,106
|
13,452
|
14,797
|
16,142
|
|
V5
|
2,0581
|
4,1162
|
6,1743
|
8,2324
|
10,291
|
12,349
|
14,407
|
16,465
|
18,523
|
20,581
|
22,639
|
24,698
|
|
Pт1
|
8624
|
9177,9
|
9573,3
|
9810,7
|
9889,8
|
9810,5
|
9573,3
|
9177,7
|
8624
|
7911,8
|
7041,6
|
6013
|
|
Pт2
|
5629,1
|
5990,6
|
6248,7
|
6403,7
|
6455,3
|
6403,6
|
6248,7
|
5990,5
|
5629,1
|
5164,3
|
4596,3
|
3924,9
|
|
Pт3
|
3669,1
|
3904,8
|
4073
|
4174
|
4207,7
|
4173,9
|
4073
|
3904,7
|
3669,1
|
3366,1
|
2995,9
|
2558,3
|
|
Pт4
|
2399
|
2553,1
|
2663,1
|
2729,2
|
2751,2
|
2729,1
|
2663,1
|
2553,1
|
2399
|
2200,9
|
1958,9
|
1672,7
|
|
Pт5
|
1568
|
1668,7
|
1740,6
|
1783,8
|
1798,1
|
1783,7
|
1740,6
|
1668,7
|
1568
|
1438,5
|
1280,3
|
1093,3
|
|
Dk1
|
0,7291
|
0,7759
|
0,8094
|
0,8294
|
0,8361
|
0,8294
|
0,8094
|
0,7759
|
0,7291
|
0,6689
|
0,5953
|
0,5084
|
|
Dk2
|
0,4759
|
0,5065
|
0,5283
|
0,5414
|
0,5458
|
0,5414
|
0,5283
|
0,5065
|
0,4759
|
0,4366
|
0,3886
|
0,3318
|
|
Dk3
|
0,3102
|
0,3301
|
0,3443
|
0,3529
|
0,3557
|
0,3529
|
0,3443
|
0,3301
|
0,3102
|
0,2846
|
0,2533
|
0,2163
|
|
Dk4
|
0,2028
|
0,2158
|
0,2251
|
0,2307
|
0,2326
|
0,2307
|
0,2251
|
0,2158
|
0,2028
|
0,1861
|
0,1656
|
0,1414
|
|
Dk5
|
0,1326
|
0,1411
|
0,1472
|
0,1508
|
0,152
|
0,1508
|
0,1472
|
0,1411
|
0,1326
|
0,1216
|
0,1082
|
0,0924
|
4. Расчет
автопогрузчика на устойчивость
Вилочные погрузчики
проверяют на продольную и поперечную устойчивость.
Целью расчета является
определение основных конструктивных параметров погрузчика (расположение центра
тяжести погрузчика без грузоподъемника, груза относительно точки опрокидывания)
обеспечивающих его устойчивость.
Для расчетов необходимо
предварительно задаться положением центров тяжести отдельно самой машины и
грузоподъемника с выдвинутой верхней рамой и опущенной.
Положение центра тяжести погрузчика
без грузоподъемника назначаем из того расчета, что основная масса машины
приходится на заднюю ее половину, так как там располагаются наиболее массивные
части машины: двигатель с навесными агрегатами, коробка перемены передач,
противовес. В грузоподъемном механизме основной вес приходится на рамы
грузоподъемника, поэтому расположение центра тяжести назначим на оси рам грузоподъемника.
4.1 Расчет
погрузчика на продольную устойчивость
Погрузчики рассчитывают в
пяти разных случаях.
Первый случай.
Автопогрузчик с поднятым на полную высоту номинальным грузом и отклоненным
вперёд до отказа грузоподъёмником стоит на горизонтальной площадке (рисунок 6).
При расчёте следует учитывать дополнительный наклон грузоподъёмника вперёд
из-за посадки переднего моста и упругой деформации элементов конструкции. Такой
случай встречается при штабелировании груза и считается самым тяжёлым для устойчивости.
Рисунок 6-
Схема продольной устойчивости автопогрузчика при стоянке на горизонтальной
площадке с максимально поднятым грузом
Q – полный вес груза по заданию;( Q=46060Н)
О, О1, О2
– ц.т. груза, погрузчика и грузоподъемника соответственно;
С – шарнир поворота
грузоподъемника;
- ц.т. груза и грузоподъемника отклоненных вперед на угол
;
- угол наклона грузоподъемника по заданию,
=30;
- угол наклона вперед вызванный деформацией
шин, упругими деформациями металлоконструкций и ходового оборудования,
=20;
- вылеты ц.т. от оси передних колес
и их высоты от земли;
- координаты оси поворота грузоподъемника относительно оси
передних колес
Вылеты центра тяжести грузоподъёмника
и груза от оси передних колёс при наклоне можно определить по формулам:
, (49)
, (50)
где
, (51)
, (52)
и углы наклона к горизонту линий
:
, (53)
(54)
Координаты центров тяжести
принимаются по масштабной схеме аналога разрабатываемого погрузчика:
где
-масштабный коэффициент,
=33,3
где
=145мм - расстояние от оси цилиндра до плоскости грузовых
цепей,
=760мм -
расстояние от центра тяжести груза до плоскости грузовых цепей [см. рисунок ],
где
=3000мм - высота подъема груза по заданию,
=690мм - расстояние от передней стенки вил до
центра тяжести груза.
где
-масштабный коэффициент,
=33,3
[см. п.п. 2.2,
],
.
где
-масштабный коэффициент,
=33,3
Вес грузоподъемника равен:
где
- вес подъемной каретки с вилами [см. п.п.
3.2.1 ],
- вес выдвижной рамы с плунжером цилиндра
подъема и траверсы с роликами, см. п.п. 3.2.1 ],
- вес наружной рамы [см. п.п. 3.2.1 ].
Вес погрузчика без грузоподъемника:
где
=56840Н- вес погрузчика по аналогу.
Определив координаты центров тяжести,
можно оценить коэффициент грузовой устойчивости, учитывая 10 % запас, он должен
быть больше 1,1:
(55)
Коэффициент грузовой
устойчивости больше 1,1, следовательно, автопогрузчик устойчив с поднятым на полную
высоту номинальным грузом и отклоненным вперёд до отказа грузоподъёмником.
Второй случай:
автопогрузчик с поднятым на полную высоту номинальным грузом и нормально
установленным к основанию автопогрузчика грузоподъёмником стоит на наклонной
площадке (рисунок 7).
Рисунок 7 -
Схема продольной устойчивости автопогрузчика при стоянке на наклонной площадке
с максимально поднятым грузом
Согласно рекомендациям
уклон площадки принимают равным 4% (
) для автопогрузчиков грузоподъёмностью до 5 т.
Коэффициент грузовой устойчивости в
данном случае равен:
(56)
, следовательно, погрузчик устойчив в данном положении.
Третий случай.
Автопогрузчик с грузом при увеличенной его массе на 10 %, т. е. при 1,10,
поднятым от земли на высоту h = 300 мм, и отклонённым назад грузоподъёмником до отказа движется с максимальной скоростью и
затормаживается с замедлением = 1,5 м/c2 .
Расчетная схема приведена на рисунке 8.
Рисунок 8-
Схема продольной устойчивости автопогрузчика при стоянке на горизонтальной
площадке с грузом, поднятым на высоту 300 мм
При расчете приняты обозначения:
Q – полный вес груза по заданию (Q=46060Н) ;
G1, G2 – вес автопогрузчика без
грузоподъемника, вес грузоподъемника;
О, О1, О2 –
ц.т. груза, погрузчика и грузоподъемника соответственно, когда груз поднят на 300 мм и при вертикально установленном грузоподъемнике;
С – шарнир поворота грузоподъемника;
- ц.т. груза и грузоподъемника, когда груз поднят на 300 мм и грузоподъемник отклонен назад на угол
;
- угол наклона грузоподъемника назад по заданию,
=70;
- угол наклона вперед вызванный деформацией
шин, упругими деформациями металлоконструкций и ходового оборудования,
=20;
- вылеты ц.т. от оси передних колес и их высоты от земли;
- координаты оси поворота грузоподъемника относительно оси
передних колес
Вылеты
определим по формулам:
, (57)
(58)
, (59)
,(60)
где
, (61)
, (62)
и углы наклона к горизонту линий
:
, (63)
(64)
Принимаем следующие значения
размерных величин
из первого случая расчета на
устойчивость:

.
,
.
и по масштабной схеме:

где
=912
[см.п.п.2.2]
Подставив значения в формулы, найдем
координаты смещенных центров тяжести.
м
м
м
м
м
м
Коэффициент грузовой устойчивости для
данного случая равен:
, (65)
где
- силы инерции соответственно груза,
автопогрузчика без грузоподъемника и грузоподъемника, определяемые по общей
формуле:
, (66)
где
или
и
;
i – замедление, i=1,5 м/с2 ;
g = 9,81 м/с2
, следовательно, погрузчик устойчив в данном
положении.
Четвёртый случай.
Автопогрузчик с номинальным грузом, поднятым от земли на 300 мм, и отклонённым назад грузоподъёмником стоит на площадке с уклоном 18 %, т. е. наклонённой под
углом = 100 12/ (рисунок 9).
Рисунок 9-
Схема продольной устойчивости автопогрузчика при стоянке на наклонной площадке
с грузом, поднятым на высоту 300 мм
В четвертом случае сохраняются все те
же обозначения и размеры, что и в третьем случае. Тогда коэффициент
устойчивости равен:
(67)
Пятый случай.
Автопогрузчик без груза с вилами, поднятыми на 300 мм от земли, и отклонённым назад до отказа грузоподъёмником съезжает с уклона на максимальной
скорости и при резком повороте. Гранью возможного опрокидывания является линия
ВС, проходящая через шарнир балансира управляемого моста и опору крайнего
колеса ведущего моста (рисунок 10).
Для определения
устойчивости в данном случае, требуется построение масштабной схемы смещения
центра тяжести погрузчика. Для этого необходимо определить положение ц.т.
погрузчика с грузоподъемником и найти его смещение при повороте.
Площадка, с которой
съезжает погрузчик, имеет уклон равный:
(68)
где
-максимальная скорость автопогрузчика
без груза, км/ч
Суммарная высота центра
тяжести автопогрузчика с грузоподъемником, отклоненным назад:
(69)
Расстояние от оси передних колес до
центра тяжести автопогрузчика:
(70)
Смещение центра тяжести всего
погрузчика в плане от его продольной оси при наклоне опорной площадки на угол
равно:
(71)
По полученным значения, построим
схему устойчивости погрузчика, принимая, что
и
.
По схеме геометрическим построением
найдем отрезок
М 1:20
По схеме видно, что
смещение центра тяжести в плане не выходит за линию ВС опрокидывания (
) , следовательно, погрузчик
устойчив к опрокидыванию.
4.2 Расчет
погрузчика на поперечную устойчивость
Автопогрузчик
рассчитывают при штабелировании. Автопогрузчик с
поднятым на полную высоту
номинальным грузом и отклонённым назад на
угол
, грузоподъёмником стоит на
поперечном уклоне с углом
. Гранью возможного опрокидывания является
линия ВС, проходящая через шарнир балансира управляемого моста и опору крайнего
колеса ведущего моста. Здесь h=2/3rк=0,305*2/3=0,203 м — высота шарнира управляемого моста
от земли;
,
— координаты центра тяжести автопогрузчика, G — вес погрузчика с номинальным
грузом без управляемого (балансирного) моста. Расчетная схема приведена на
рисунке 11
Опрокидывание
автопогрузчика начнётся, когда вектор веса G будет пересекать грань опрокидывания ВС. Согласно
требованиям СЭВ автопогрузчик должен сохранять устойчивость при поперечном
уклоне, равном 6 %, т. е. при угле = 30 26/.
Задачу решим геометрическим
построением. Необходимо определить, не выходит ли отрезок FE за линию ВС.
(72)
(73)
Найдем смещение FE вектора веса G:
По схеме геометрическим построением
найдем отрезок
Таким образом
, следовательно, вектор веса
G не выходит за грань опрокидывания,
погрузчик устойчив в данном положении.
После всех расчетов можно
сделать вывод, что погрузчик обладает достаточной устойчивостью при различных
рабочих положениях и может выполнять свой функции без опасности опрокидывания.
Список
литературы
1. Расчет механизмов вилочного
погрузчика: методические указания/ П.С. Кондратьев. – Хабаровск: Изд-во ДВГУПС,
2005. – 31 с. : ил.
2. Погрузочно-разгрузочные машины:
Учебник для вузов ж/д транспорта/ И.И Мачульский.: Желдориздат, 2000. – 476 с.
3. Каверзин С.В. Курсовое и дипломное
проектирование по гидроприводу самоходных машин. Красноярск:
Производственно-издательский комбинат «Офсет». 1997г.-382 с.
4. Погрузочно-разгрузочные машины на
железнодорожном транспорте: Учебник для техникумов/ Э.И. Ридель.- М.:
Транспорт, 1978.- 383 с.