Технологія опоряджувальних робіт однокімнатної квартири

  • Вид работы:
    Дипломная (ВКР)
  • Предмет:
    Строительство
  • Язык:
    Русский
    ,
    Формат файла:
    MS Word
    2,18 Mb
  • Опубликовано:
    2011-03-08
Вы можете узнать стоимость помощи в написании студенческой работы.
Помощь в написании работы, которую точно примут!

Технологія опоряджувальних робіт однокімнатної квартири

ЗМІСТ

Розділ I. Загальна частина

Розділ II. Наукова організація праці в опорядженні будівель

2.1 План та інтер’єр приміщення

2.2 Характеристика будівлі та виду опорядження

Розділ III. Розрахунково – технологічна частина

Технологія виконання малярних робіт

3.1 Алгоритм технологічного процесу

3.2 Інструменти, пристрої та матеріали

3.3 Організація робочого місця

3.4 Опис виконання кожної операції

3.5 Розрахунок кількості матеріалів, для малярних робіт

3.6 Оцінка якості робіт

Технологія виконання шпалерних робіт

3.7 Алгоритм технологічного процесу шпалерних робіт

3.8 Інструменти, пристрої та матеріали

3.9 Організація робочого місця

3.10 Опис технології виконання кожної операції

3.11 Розрахунок кількості матеріалів, для шпалерних робіт

Розділ IV. Безпечні прийоми праці

Висновок

Список літератури

РОЗДІЛ I. ЗАГАЛЬНА ЧАСТИНА

Якість будівельної продукції - будинків і споруд різного призначення залежить від багатьох складових, але основними серед них були і залишаються якість та довговічність будівельних матеріалів.

Довговічність будівельних матеріалів є чи не найважливішою проблемою сучасного будівництва, оскільки функціональні навантаження більшості з них використовуються надто короткий час порівняно зі стародавніми матеріалами, на основі яких збудовані сотні і тисячі років тому споруди, що незважаючи на вплив зовнішніх природних чинників і часу й тепер вражають красою архітектури та майстерністю тогочасних будівельників.

Сучасність і майбутнє потребують реконструкції старих будинків, надання їм оригінальності та виразності, застосування під час зведення будівель цікавих нестандартних вирішень як в оздобленні інтер'єрів, так і фасадів. Цього можна досягти, якщо запроваджувати в будівництво, зокрема в опорядження будинків, нові нетрадиційні матеріали і технології.

Докладно охарактеризовано способи опорядження будинків традиційними матеріалами із застосуванням передових методів праці, комплексну механізацію технологічних процесів опорядження, завдяки якій підвищуються продуктивність праці та якість робіт і, навпаки, знижуються трудомісткість і частка ручної праці. Вдосконаленими моделями, тобто інструментами «нового покоління», доповнено номенклатуру ручних будівельно-опоряджувальних машин.

РОЗДІЛ II. НАУКОВА ОРГАНІЗАЦІЯ ПРАЦІ В ОПОРЯДЖЕННІ БУДІВЕЛЬ

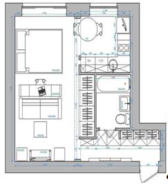
2.1 План та інтер’єр приміщення

Застосування усього спектру малярно-шпалерних робіт відбуватиметься на прикладі інтер’єру та плану однокімнатної квартири (Рис. 2.1 – 2.2).

Рисунок 2.1. Схематичний план квартири

 

Рисунок 2.2. Інтер'єр приміщень квартири

2.2 Характеристика будівлі та виду опорядження

Таблиця 2.1

Площа приміщень однокімнатної квартири

Найменування приміщень       

Площа, м кв.

2

Кухня   

6,24

4

Коридор             

4,7

6

Туалет, ванна

3,5

8

Загальна кімната             

14,3


Технічна характеристика (витяг)

Висота поверху – 3,0 м, від підлоги до підлоги.

Стіни зовнішні – піщаноцементні стінові блоки товщиною 250 мм, із зовнішньої сторони стіни утеплені ефективним утеплювачем з покриттям декоративною штукатуркою.

Стіни внутрішні (між квартирами, місцями):

- монолітний залізобетон товщиною 200-250 мм,

- стінові піщаноцементні блоки товщиною 250 мм,

- цегляні перегородки товщиною 250 мм.

Перегородки

– міжкімнатні: піщаноцементні стінові блоки 115 мм,

– санвузлів: цегла 120 мм та блоки 115 мм.

Перекриття – монолітна залізобетонна плита 200 мм.

Двері:

– вхідні двері до квартир: металеві, протипожежні та протиударні,

– внутрішні двері: дерев'яні.

Вікна:

– металопластикові з двокамерними склопакетами;

Внутрішні опоряджувальні роботи:

– підлога - в підлозі розташовані трубопроводи систем опалення та електропостачання;

– стіни – по цегляним стінам виконана штукатурка;

– стелі – бетонна поверхня;

санвузли (ванна-туалет):

– підлога – гідроізоляція з цементно-піщаною стяжкою;

– стелі – бетонна поверхня;

Система опалення:

– автономне опалення (газова прибудинкова котельня);

– двохзонна, двотрубна горизонтальна, поквартирна;

– радіатори секційні біметалеві;

– будинкові стояки опалення сталеві, прокладаються у загальнобудинкових коридорах; квартирна розводка поліетиленовими трубами в підлозі квартир та загальних коридорах;

Система водопостачання:

– двохзонна холодної води;

– двохзонна гарячої води;

– поквартирні лічильники холодної та гарячої води знаходяться в сантехнічних нішах загального коридору;

Система каналізації:

– стояки – пластикові труби.

Електрообладнання:

– електричні мережі розведено по квартирам із дроту з мідними жилами, а також встановлено розетки і вимикачі;

– поквартирні розподільчі щити із автоматичними вимикачами захисту мереж квартири, розташовані в коридорі квартири;

– електролічильники квартир – в коридорах загального користування у поповерхових шафах.

В загалом, у квартирі потрібно виконати малярно-шпалерні роботи.

РОЗДІЛ III. РОЗРАХУНКОВО-ТЕХНОЛОГІЧНА ЧАСТИНА

Технологія виконання малярних робіт

 

3.1 Алгоритм технологічного процесу

В першу чергу слід поклопотатися про ретельну підготовку поверхонь, з якими доведеться працювати. Покриття, що наноситься на них, повинне триматися довгі роки.

При роботі із вмістом грунтівок і вирівнюючи засобів використовуються вали, металеві і гумові шпателі, кельми. Остаточне шліфування поверхонь проводять шліфувальною теркою з ручкою. Суміш можна приготувати, використовуючи електродриль із спеціальними насадками.

Чим би не була базова поверхня (підкладка) - бетон або метал, гіпсоліт або дерево, - всі покриття повинні на ній міцно триматися. Ради цього і використовуються грунтовки, які глибоко проникають в основу і покращують її адгезію (зчеплення) з подальшим шаром.

Володіючи зв'язуючими і зміцнюючими властивостями, грунтовки часто запобігають пошкодженню базової поверхні (наприклад, при знятті шпалер). Крім цього шар грунтовки сприяє більш рівномірному накладенню і абсорбції (вбиранню) таких матеріалів, як фарби, штукатурки, шпалерний клей, шпаклівки і так далі. Результат в наявності: підвищується якість фінішної обробки приміщень.

Звичайно, можна і не грунтувати, скажімо, бетонні стіни. Але в цьому випадку вірогідність неякісного ремонту істотно зростає: згодом штукатурка може відвалитися, шпалери обвиснути; крім того, під впливом вологи не виключений прояв на фінішному шарі всіляких дефектів (плям, розлучень, тріщин).

При виконанні вказаних робіт враховуються:

- тип оброблюваної поверхні (цегляна стіна, бетон або керамзитобетонні блоки, метал, гіпсоліт, гіпсокартон, дерево, обштукатурені цементним розчином поверхні і інше);

- особливості приміщення, в якому грунтівка застосовується (вологе або сухе), а також спосіб подальшої обробки (фарбування, укладання плитки, обштукатурювання).

Фарбування як і раніше залишається одним з найпопулярніших видів обробки стін. Кінцевий результат визначається трьома чинниками:

- якістю попередньої підготовки забарвлюваної поверхні;

- правильним вибором фарби;

- інструментом, використовуваним для роботи.

Підготовка поверхні.

Здавалося б, пофарбувати стіну справа неважка. Проте фарбування вимагає особливо ретельної підготовки поверхні стіни до ремонтних робіт: фарба не приховає ні тріщин, ні нерівностей, ні будь-яких інших дефектів. На цьому етапі виконуються наступні роботи:

- видалення плям іржі, масляних плям, місць, уражених грибком і т. п.;

- видалення штукатурки, яка погано тримається і закладення тріщин і раковин, які можуть бути на поверхні стіни;

- ґрунтовка поверхні;

- нанесення шпаклівки;

- шліфовка шпакльованої поверхні дрібною шкіркою і повторна грунтовка.

Якщо стіни нові, то, швидше за все, вони знаходяться у хорошому стані і готові для грунтовки, шпаклівки і фарбування, тільки потрібно переконатися, що на них немає пилу. Для її видалення зазвичай досить протерти поверхню вологою ганчіркою.

Сама трудомістка частина роботи - обстеження поверхні стін і виявлення всіх дефектів, які потім усуваються.

Так, наприклад, тріщини спочатку обробляють, а потім закладають гіпсом, якщо вони неглибокі, або, якщо великі, - розчином, в який потрібно додати трохи клею ПВА і гіпсу. Плями видаляються або механічно, або з використанням спеціальних складів або сумішей.

До початку малярних робіт у приміщенні треба закінчити всі будівельні роботи, крім настилання паркету або лінолеуму. Особливо важливо закінчити роботи, пов’язані з монтажем центрального опалення водопроводу, каналізації і внутрішньої електропроводки. Системи опалення і водопроводу повинні бути перевірені на тиск, а каналізація промита. У приміщеннях встановлюють і міцно закріплюють віконні і дверні блоки (або коробки), закріплюють наличники і склять вікна.

Поверхню штукатурки очищають від пилу, бруду, жирних плям, бризок і потьоків розчину. Шорсткість поверхні слід заладити, а дрібні щілини розрізати і підмазати їх розчином на глибину не менше, як 2 мм.

Підготовлені внутрішні поверхні фарбують, додержуючись таких вимог:

1) Температура повітря в приміщенні не нижче за 10оС.

2) Відносна вологість повітря – не більш – 60%.

3) Вологість підготовлених обштукатурених і бетонних поверхонь не повинна перевищувати 8%, а при фарбуванні цементними і полімерними фарбами – 12%.

4) Робоча в’язкість водних фарбувальних сумішей залежно від їхніх видів має бути в межах 15-50с за візкометром ВЗ-4.

5) Витрата фарби (покревність) в одному шарі не повинна перевищувати 425 г/м2.

6) Час висихання водних фарбувальних плівок при tо18 .20сС має бути не більше 12 год.

Фасади не можна фарбувати в спеку під дією сухого вітру і прямих променів сонця, під час дощу або по вологому фасаду після дощу, під час сильного вітру, а взимку по шару льоду, або інею. Перхлорвініловими фарбами фасади можна фарбувати лише при температурі, що не перевищує 4оС.

Підготовка поверхні часто вимагає більше часу, чим сам процес фарбування. Затримки тут пов'язані з технологією. Але зволікання виправдано - на абсолютно рівні стіни фарба лягає рівно і стіна виглядатиме чудово.

Приступаючи до фарбування стін, потрібно нанести смуги шириною 5-10 см по кутах, навколо дверей і вікон.

Потім, починаючи з найсвітлішого кута кімнати, в думках потрібно розділити кожну стіну на квадратні ділянки і забарвлюйте послідовно одну ділянку за іншим, працюючи зверху вниз (рис. 3.1)

Рисунок 3.1. Послідовність фарбування стіни

Якщо ви - правша, починайте з правої сторони стіни, якщо лівша - з лівою.

До початку малярних робіт у приміщенні треба закінчити всі будівельні роботи, крім настилання паркету або лінолеуму. Особливо важливо закінчити роботи, пов’язані з монтажем центрального опалення водопроводу, каналізації і внутрішньої електропроводки. Системи опалення і водопроводу повинні бути перевірені на тиск, а каналізація промита. У приміщеннях встановлюють і міцно закріплюють віконні і дверні блоки (або коробки), закріплюють наличники і склять вікна.

Підготовлені внутрішні поверхні фарбують, додержуючись таких вимог:

1) Температура повітря в приміщенні не нижче за 10 С.

2) Відносна вологість повітря – не більш – 60%.

3) Вологість підготовлених обштукатурених і бетонних поверхонь не повинна перевищувати 8%, а при фарбуванні цементними і полімерними фарбами – 12%.

4) Робоча в’язкість водних фарбувальних сумішей залежно від їхніх видів має бути в межах 15-50с за візкометром ВЗ-4.

6) Час висихання водних фарбувальних плівок при tо18 .20сС має бути не більше 12 год.

Фасади не можна фарбувати в спеку під дією сухого вітру і прямих променів сонця, під час дощу або по вологому фасаду після дощу, під час сильного вітру, а взимку по шару льоду, або інею. Перхлорвініловими фарбами фасади можна фарбувати лише при температурі, що не перевищує 4оС.

При забарвленні валиком наносять горизонтальні смуги упоперек стіни, використовуючи техніку зигзагу, стежачи за тим, щоб місця стиків не були помітні.

При забарвленні кистю послідовно заповнюють фарбою вертикальні смуги, що складаються з квадратів шириною і висотою близько 600 мм.

Фарбування однієї стіни слід проводити без тривалих перерв в роботі. Не припиняйте роботу, поки не пофарбуєте всю стіну. Старайтеся, щоб фарба не потрапила на суміжні поверхні.

3.2 Інструменти, пристрої та матеріали

З давніх-давен людина почала застосовувати фарби для захисту різних будівельних конструкцій, а також з декоративно художньою метою. Фарба складається з кольорового порошку – пігменту, і плівкоутворювальної речовини – в’язки. Всі фарби і відповідно фарбування залежно від виду в’язки поділяються на водні і неводні.

Водні фарбування застосовують з декоративною метою для опорядження інтер’єра і зовнішніх поверхонь будинків (здебільшого фасадів.) Залежно від в’язки, яку використовують для приготування водних фарб водні фарбування бувають вапняні, клейові, цементні, силікатні і казеїнові.

До неводних фарбувань належать олійні і емалеві фарбування, а також лакові покриття. Неводні фарбування застосовують для захисту металевих конструкцій від корозії, дерев’яні від гниття, а оштукатурені від впливу вологи. А ще вони застосовуються з декоративною і санітарно-гігієнічною метою. Їх легко мити і очищати від бруду, тому в приміщеннях, де більшість поверхонь пофарбована олійними або емалевими фарбами легше підтримувати чистоту. Міцність зчеплення плівки залежить також від якості підготовки поверхні, в першу чергу очищення її від іржі, плям кіптяви і мінеральних масел, пилу, тощо.

Залежно від якості малярні фарбування поділяються на прості, поліпшені і високоякісні. Просте фарбування застосовують під час опорядження будинків ІІІ класу, деяких промислових і тимчасових будівель, а також підсобних приміщень в різних будинках.

Поліпшене фарбування застосовують здебільшого в будинках ІІ класу (лікарні, школи).

Високоякісне – І класу (театри, музеї, палаци тощо).

Неводною називають таку суміш, у якій в’яжучим матеріалом є висихаючі масла (оліфи) або смоли, розведені у розчинниках. До робочої в’язкості суміші доводять оліфою або розчинником.

До неводних сумішей належать олійні, олійно-емульсійні, смалеві, смалянолеткі фарби, а також лаки.

Деякі синтетичні фарби розбавляють на емульсіях типу ОВ (оліфа, вода), тому на робочому місці їх розводять водою.

Емульсією називають стійку механічну суміш рідини, які не змішуються одна з одною. Щоб приготувати стійку емульсію, до суміші додають речовину, яку називають емульгатором.

Залежно від співвідношення у суміші води, олії виділяють два види емульсій ОВ і ВО:

Емульсія ОВ (олія у воді). До складу цих емульсій входять оліфа (2-10%), вода і емульгатори. Емульгатори для емульсій ОВ є мило, луги, розчини тваринного або казеїнового клею. Емульсії ОВ застосовують при водних фарбуваннях для ґрунтовок, шпаклівок і декоративних фарбувальних сумішей.

Емульсії ВО (вода в олії). До складу цих емульсій входять вода (25-50%), оліфа і емульгатори. Емульгаторами в емульсіях ВО є розчин клею або лужна вапняна вода. Емульсії ВО здебільшого застосовують при олійних фарбуваннях для грунтовок і фарбувальних суміш.

Фарбування поверхонь – це заключний стан опорядження будинку. Від якості фарбування залежать строки наступної експлуатації приміщення і його зовнішній вигляд.

Для малярних робіт потрібні різні кисті, валики, шпателі, лінійки.

Найголовнішим інструментом при фарбуванні поверхні, звичайно ж, будуть кисті. Вони бувають різних розмірів і мають спеціальні назви.

Махові кисті - великі, пухнасті, діаметром 60, 65 мм і довжиною волосся 100-180 мм. Кисті хорошої якості при згинанні повинні негайно випрямлятися і приймати колишню форму.

Махові кисті бувають ваговими (не вимагають спеціальної в'язки) і штучними (з ручкою).

Вагові кисті прикріплюють до довгої ручки з допомогою міцного шпагату.

У процесі роботи рекомендується підв'язувати будь-яку кисть, тому що при фарбуванні довге волосся створює патьоки і розтушовує фарбу.

Побілочні кисті мають ширину 200 мм, товщину - 45-60 мм, довжину волосся - 100 мм. У роботі ці кисті зручніше махових, тому що дозволяють одержати більш чисте фарбування.

Макловиці і побілочні кисті застосовують при роботі з клейовими і казеїновими фарбами. Бувають круглої і прямокутної форми. Ручка макловиці кріпиться в середині колодки або буває знімною.

Ручники представляють собою кисті невеликого розміру з короткою ручкою. Вони круглі, виготовляються з чистої щетини, а також з додаванням кінського волосу. Ручники роблять, залишаючи порожній простір всередині волосся, в яке в процесі роботи набирає більше фарби. Ці кисті застосовують для фарбування невеликих за площею поверхонь. (Рис. 3.2).

Рисунок 3.2. Кисті для фарбування:

а - махова; б - побілочна; в - макловиця; г - ручник; д - флейц; е - торцева; ж - філеночна

Флейці представляють собою плоскі кисті шириною 25, 60, 62, 76 і 100 мм, виготовлені з щетини або борсукового волосся, що закріплюється на короткій дерев'яній ручці за допомогою металевої оправи. Флейці застосовують для вирівнювання поверхні після фарбування маховими кистями або ручниками.

Торцеві мають прямокутну форму, виготовляються з твердої щетини. Застосовуються для обробки поверхні після фарбування клейовими й олійними фарбами.

Філеночні кисті виготовляються з білої жорсткої щетини, закріпленої в металевій оправі-патроні, насадженої на дерев'яні бруски різної довжини. Діаметр кисті - від 6 до 18 мм. Їх застосовують для витягування вузьких смуг (фільонок) або для фарбування важкодоступних місць поверхні, куди не проходить ручник.

Валик складається з обертового циліндричного ролика, обмотаного спеціальним матеріалом. Ролик обертається на осі, закріпленій на дерев'яній рукоятці. Разом з валиком продаються також запасні покриття, які змінюють в залежності від виду виконуваних робіт.

Іноді в комплект до валика входить ванночка з віджимом, використання якої дозволяє зменшити витрати фарби.

З іншого боку, якість роботи після застосування валиків залишає бажати кращого. Поверхня, пофарбовану валиками, не можна назвати гладкою. Тому їх використовують лише для грубої роботи.

Залежно від призначення розрізняють такі типи валів:

- валик з пінопласту покриттям (ВП) для фарбування водними сумішами;

- валик хутряний універсальний (ВХУ), зручний для нанесення лакофарбових складів в кутах офарблює поверхні;

- валик з покриттям з хутра (ВХ) для нанесення лаків і фарб;

- філеночний валик (рис. 3.3).

Рис. 3.3. Валик для фарбування

Фарборозпилювачі призначені для розпилювання водних, олійних, лакових та інших малярних сумішей. Пневматичний фарборозпилювач є основною частиною фарбувального агрегату і розпилює фарбу за допомогою стиснутого повітря. Від його роботи залежить якість фарбування, витрата фарбувальної суміші та продуктивність праці маляра. Пневматичні фарборозпилювачі мають різну продуктивність, застосовують їх залежно від обсягу фарбувальних робіт (рис. 3.4).

Рисунок 3.4. Фарборозпилювач

3.3 Організація робочого місця

Продуктивність праці робітника залежить і від правильної організації його робочого місця. Робочим місцем робітника-опоряджувальника називають ділянку, у межах якої він працює і може доцільно розміщувати потрібні для роботи пристрої, інструменти і матеріали.

Робочі місця можуть бути стаціонарними і пересувними. Механізми, пристрої, інструменти і матеріали на робочому місці розміщують так, щоб під час роботи не доводилось робити зайвих рухів. Ручний інструмент, який беруть правою рукою, повинен лежати справа, а той, що беруть лівою рукою,— зліва. Столик встановлюють так, щоб з місця його встановлення можна було виконати якнайбільший обсяг робіт.

На робочому місці не повинно бути будівельного сміття, зайвих матеріалів, які заважатимуть пересуванню робітника. Під час роботи слід користуватись лише справними інструментами та механізмами і якісними матеріалами.

Для виконання робіт на висоті потрібно встановити на робочому місці потрібні пристрої, а на них у зручних для роботи місцях — ящики для розчину або тару для малярних сумішей.

Велике значення в організації робіт має своєчасне підготування потрібних матеріалів. Наприклад, крейду і клей для малярних сумішей замочують за добу до виготовлення сумішей. За цей час вони добре намокають, тому приготовляти суміш буде значно легше і швидше. Під час виконання робіт обов'язково слід додержуватись усіх правил техніки безпеки і виробничої санітарії. Працювати на висоті можна лише на справних пристроях.

Робоче місце маляра повинно бути добре освітлене природним світлом. Це дає змогу правильно підбирати кольори фарбувальних сумішей і взагалі якісно виконувати опоряджувальні роботи. У приміщеннях має бути кімнатна температура (18-20 °С). Для роботи з нітроемалевими фарбами або іншими сумішами, що виділяють шкідливі для здоров'я людини леткі пари, слід забезпечити штучну або природну (через відкриті вікна) вентиляцію приміщень. Вентиляція повинна забезпечити не менше ніж дворазовий обмін повітря в приміщенні протягом години.

Після закінчення роботи треба прибрати своє робоче місце, вимити і сховати в шафу інструменти, перевірити і вимкнути струм, підведений до електроустаткування, і закрити пускові пристрої на замок.

3.4 Опис виконання кожної операції

При фарбуванні стель і стін звертають увагу на напрям світла, падаючого з вікна. Якщо фарбування виробляється пензлем, передостанній шар фарби обов'язково наносять проти напрямку сонячних променів, а останній навпаки. Інакше, після фарбування на поверхні залишаться сліди від кисті, якою б якісною вона не була.

Фарбування і стелі, і стін починають зі стику стелі і стін. Використовуючи оздоблювальну кисть з довжиною ворсу 5 або 6 см, фарбу наносять по периметру смугою близько 8 см, починаючи від кута кімнати.

Помахи кисті повинні бути рівномірними, щоб склад лягав рівними шарами. У процесі роботи фарбувальний склад періодично збовтують, щоб уникнути осаду і загустіння, або час від часу перемішують фарбу пензлем.

Пензлем водять перпендикулярно, роблячи довгі смуги-штрихи, потім їх розтушовують.

Якщо фарбування проводиться за допомогою фарбопульта, поверхня виходить рівніше. Необхідно стежити лише за тим, щоб у фарбу не потрапляли дрібні частки - вони можуть забити отвір розпилювача і привести до його псування. Звичайно в домашніх умовах як розпилювач використовують звичайний пилосос, забезпечений спеціальною насадкою (пульверизатором), купленої в магазині.

Пульверизатор тримають на однаковій відстані від поверхні. Для рівномірної фарбування розчин наносять по двох взаємно перпендикулярним напрямам (перехрещуючи шари).

При фарбуванні стелі або стін фарборозпилювачем склад наносять не поспішаючи, не затримуючи струмінь фарби на одному місці довше, ніж на інших.

Як би акуратно не проводилася робота, фарба все одно стікає по ручці кисті, а потім по руці, тому на ручку кисті надягають половинку тенісного м'яча.

Якщо роботу проводять валиком, спочатку за допомогою кисті забарвлюють важкодоступні місця.

Потім починають фарбування валиком з довгим ворсом і великою вбиранням фарби шириною 18-25 см.

При фарбуванні валиком потрібно використовувати більше фарби - це допоможе уникнути неоднорідного покриття та смуг від валика.

Валик умочують у фарбу, катають його, а для видалення надлишків фарби проводять їм по краю піддону. Фарбування валиком починають від кута, стикаючись з лінією, що фарбує по периметру, намагаючись наносити фарбу по ширині, а не по довжині.

Роботу не припиняють, поки не пофарбують поверхню повністю. Для зручності фарбування валик прикріплюють до довгої жердини.

3.5 Розрахунок кількості матеріалів необхідних для малярних робіт

Витрати звичайної емульсійної фарби для поверхонь становлять 2 літра на 15 кв. м. Фарба, що не розтікається, покриває трохи меншу площу – 12 кв. м на 2 літра. Нова штукатурка вбирає більше фарби, тому емульсійну фарбу для першого шару зазвичай розбавляють 10% води. Таку фарбу легше наносити, і вона діє як герметик, запобігаючи вбиранню наступного шару фарби в штукатурку. Витрата фарби залежить також і від методу нанесення (щіткою або фарбопультом).

Таблиця 3.1

Розрахунок кількості матеріалів

Матеріал

Площа малярних робіт

Кількість матеріалу

Фарба:

9,3 м2

1,24 л

- бежева

5,7 м2

0,8 л

- голуба

3,6 м2

0,5 л

Кисті:

9,3 м2

3 шт

- широкі

7,1 м2

2 шт

- тонкі

2,2 м2

1 шт

Валик (хутряний)

4,9 м2

1 шт

Фарборозпилювач

2,6 м2

1 шт

малярний шпалерний приміщення опорядження

3.6 Оцінка якості робіт

При фарбуванні можливі різні дефекти, які можуть бути від неякісної підготовки поверхонь та недотримання технології виконання робіт.

Сліди від кисті залишаються при застосуванні густої фарби і недостатньо хорошого розтушовування.

Стики утворюються тому, що фарбування проводилось швидковисихаючими фарбами.

Потьоки з'являються в результаті застосування рідкої фарби, в достатку наноситься на поверхні без достатнього розтушовування.

Груба фактура забарвлення утворюється при застосуванні непроцідженої фарби, фарбуванні на погано виконаній шпаклівці або при поганій її зачистці (шліфуванні).

Плями іржаві і темні можливі тому, що при підготовці не були видалені смолисті і мінерально-масляні плями.

Різні за кольором плями з непросихаючою фарбою утворюються при фарбуванні на непросохлій фарбі.

Матові плями з'являються при фарбуванні погано загрунтованих поверхонь.

Низьке покриття можливе при використанні слабкопроникних фарб.

Затримка в висиханні походить від застосування пігментів, що затримують висихання.

Технологія виконання шпалерних робіт

3.7 Алгоритм технологічного процесу шпалерних робіт

Після очищення і шпаклювання поверхонь приступають до підготовки шпалер. Перш за все потрібно знати, скільки шпалер потрібно, а також розміри самої кімнати.

Якщо потрібно обклеїти шпалерами стіни кімнати 5 х4 м, перш за все визначають її периметр:

(5 + 4) х2 = 40 м.

Отриману цифру (периметр кімнати) потрібно розділити на ширину шпалер, наприклад 0,5 м:

40: 0,5 = 80.

Отже, саме таку кількість полотнищ шпалер знадобиться для обклеювання кімнати. Далі потрібно дізнатися кількість рулонів шпалер, необхідних для обклеювання однієї кімнати:

80: 4 = 20 рулонів. Потрібно пам'ятати, що при розрахунку числа рулонів із загальної кількості шпалер віднімають сумарну площу вікон і дверей.

Перед наклеюванням на стіни у шпалер обрізують 1 або 2 кромки строго по лінії, після чого рулони розрізають на окремі полотнища, рівні висоті стіни плюс 5-10 см для подальшої обрізки (рис. 3.5).

Рисунок 3.5 Нарізка шпалер

Після відрізання першого полотнища приступають до підготовки другого. Усі наступні полотнища вимагають максимальної уваги, так як частини малюнка деяких видів шпалер слід поєднати так, щоб на стіні він був цілісним.

Зазвичай рекомендується купувати на 1-2 рулони шпалер більше: необхідний невеликий запас на випадок екстреного ремонту. Маючи запасні рулони шпалер, можна замінити тільки одну пошкоджену ділянку, а не переклеювати наново всі стіни або стелю.

При відрізанні полотнищ від рулону рекомендується залишати невеликий запас по висоті стіни, близько 2 см, тому що іноді висота стін в одному приміщенні неоднакова. Крім того, в процесі висихання клею деякі шпалери дають невелику усадку. Надлишок шпалер після повного висихання обрізають ножем зі змінними лезами (рис. 3.6).

Рисунок 3.6. Нанесення клею на шпалери

Підготовлені полотнища укладають лицьовою стороною до підлоги, намагаючись, щоб бокова кромка кожного наступного полотна відступала в бік приблизно на 2 см - цей захід приймають для того, щоб не забруднити клеєм лицьову сторону шпалер. Потім наносять клей - валиком або маховою кистю.

Одношарові паперові шпалери промазують клеєм тільки 1 раз, двошарові і всі інші види шпалер - 2 рази.

Після промазування полотнищ клеєм шпалери складають особливим чином, щоб клей добре вбирався. При цьому потрібно намагатися, щоб краї полотнищ перебували клейовою стороною всередину, після чого полотнище знову складають, переміщаючи обидва його краї на середину.

Одношарові шпалери залишають для просочення клеєм на 10 хвилин, двошарові і інші види - на 25-30 хвилин.

Після того як шпалери повністю приклеєні і разглажени, можна встановити вимикачі та розетки.

3.8 Інструменти, пристрої та матеріали

Шпалери можуть надати ошатний вигляд будь-якому приміщенню, допоможуть створити затишок у будь-якому будинку, головне - вибрати найбільш підходящий вид, малюнок і колір.

В даний час асортимент шпалер різних малюнків, кольорів, фактури і якості воістину широкий, і покупцям дуже складно зробити вибір при такому їх розмаїтті.

Шпалери розрізняються не тільки за зовнішнім виглядом, але і по фізичних характеристиках, а також по своїй текстурі. Вибір того чи іншого виду шпалер залежить від того, для якого приміщення призначено покриття.

На сучасному ринку будівельних матеріалів продаються шпалери наступних видів:

- з друкованим малюнком без фону;

- з фоном і друкованим малюнком;

- з друкованим напівтоновим малюнком без фону;

- з фоном і друкованим напівтоновим малюнком;

- з рельєфним фоном;

- з фоном і рельєфним малюнком;

- фонові з обробкою під шовк;

- безфонові з друкованим малюнком і обробкою під шовк;

- фонові з друкованим малюнком рельєфу і з обробкою під шовк;

- металізовані з фоном і друкованим малюнком;

- велюрові, фонові і без фону;

- фонові з друкованим малюнком і плівковим покриттям.

Всі шпалерні матеріали класифікуються за такими параметрами: вид поверхні, малюнок, вологостійкість, щільність і деякі інші, проте ця класифікація є неповною і навіть умовною. При покупці шпалер покупець зазвичай намагається враховувати основу і технологію виготовлення цих матеріалів.

У залежності від цього шпалери прийнято ділити на паперові, вінілові, скловолокнисті, фотошпалери і рідкі шпалери.

Шпалери бувають вологостійкими - стійкими до вологого стирання без застосування миючих засобів, - невологостійких і миються - стійкими до застосування різних миючих засобів.

За способом виготовлення шпалери бувають грунтованими, коли малюнок наносять на попередньо загрунтовану підставу, і негрунтованими. Грунтовані шпалери вважаються найбільш міцними і виглядають більш декоративно. Їх доцільно використовувати ще й тому, що завдяки своїй щільності вони допомагають замаскувати невеликі дефекти і нерівності поверхонь. Деякі виробники покривають грунтовані шпалери спеціальним вологостійким складом, що закріплює і оберігає малюнок від стирання.

У цьому випадку такі шпалери можна наклеювати на стіни і стелі навіть у вологих приміщеннях. Крім того, такі шпалери можна не лише мити, але навіть відтирати забруднення жорсткою щіткою. Грунтовані шпалери бувають рельєфними, з багатобарвним або однокольоровим фоном, і тисненими, що виготовляються методом тиснення на щільному папері, на яку попередньо нанесений спеціальний склад.

Після обклеювання стін шпалерами деякі з них, наприклад склошпалери і вінілові, можна покривати різними фарбувальними складами, завдяки чому такі покриття миються.

Існує кілька видів шпалер з вологостійким покриттям:

- полівінілхлоридна плівка, або просто ПВХ, як її частіше називають. Ці шпалери дуже зручно наклеювати, так як на них вже є клейовий шар, захищений підкладкою. Плівка ПВХ дуже декоративна, буває або гладкою, або з рифленою поверхнею. В останньому випадку зручно наклеювати плівку в місцях з невеликими дефектами. У продажі зустрічається акустична плівка ПВХ, виготовлена на звуковбирною основі. Цей матеріал рекомендується застосовувати для обробки стін ванної кімнати, туалету, кухні;

- повінол - обробний матеріал, що складається з склотканини і бавовняної тканинної основи з покриттям ПВХ з лицьового боку. Цей матеріал доцільніше використовувати для обклеювання стін туалету, ванної кімнати та кухні;

- ізоплен - обробний матеріал на паперовій основі з покриттям ПВХ з лицьового боку. Він призначений для обклеювання стін і перегородок (Рис. 3.7).

Рисунок 3.7. Палітра шпалерів

Клеї можуть бути рідкими, гелеобразними, випускатися у вигляді порошків і гранул, прутків і плівок. У рідких клеях клейка речовина присутня у вигляді дисперсії (водного розчину з рівномірно розподіленими в ньому частинками речовини, що клеїть). Речовина, що клеїть в сухих порошкоподібних клеях, гранулах, прутках і плівках знаходиться в твердому стані (Рис. 3.8).

Рисунок 3.8. Шпалерний клей

В'язкість клею знаходиться в прямій залежності від масової частки сухого залишку, яка, у свою чергу, показує, яка кількість клею використовується для формування клейового шва. Чим вище частка сухого залишку, тим менше клею доведеться витратити в процесі роботи.

Самим популярним і доступним за ціною є клей КМЦ. Він являє собою пухку масу білого, іноді злегка жовтуватого відтінку.

Для того, щоб домогтися найкращої якості при обробці приміщень шпалерами, необхідно використовувати спеціальні інструменти. Ці інструменти прості у використанні, але часто при обклеюванні шпалер ми згадуємо тільки про пензлі й ножиці, забуваючи про не менш важливих і потрібних інструментах, яких в потрібний момент може не виявитися під рукою.

Відро для клею. Буде потрібно відро невеликого обсягу.

Ролики. Необхідний конічний ролик, для прокатки швів приклеєних шпалер.

Ножиці з довгими лезами, які підвищують продуктивність і зручніше для різання великого обсягу паперу. Крім того, ножиці повинні бути гострими, так як тупі залишають після обрізки кошлату крайку, що погіршує якість обклеювання.

Ніж або різак повинні бути гостро наточені і спрямовані на бруску, щоб після обрізки кромка була без ворсу.

Кисті потрібно застосовувати ті, що зручні, однак великими кистями швидше і рівніше наносити клей, так само переважні жорсткі, а не м'які кисті. Швецькі щітки також можуть застосовуватися для роботи. Кисті і щітки потрібні для проклейки поверхонь, нанесення клею на шпалери і папір, а сухі - для шпалер згладжування.

Схил повинен мати тонкий і міцний шнур такої довжини, щоб вона перевищувала довжину самої довжиною стіни на 1 м. З його допомогою відбивають лінії на стіні: вгорі - горизонтальні, за якими наклеюють верхню крайку полотнищ шпалер, і вертикальні - на відстані від кута, рівному ширині наклеюваного полотнища.

Чисті ганчірки так само як і валики різних розмірів можуть використовуватися для вирівнювання поверхні поклеєного шпалер і підтирання швів. Однак більш зручна для цієї мети велика щітка з жорстким волоссям: вона не тільки швидко і міцно пригладжує шпалери, але і менше розмазує виступаючий клейстер і фарбу на шпалерах (рис. 3.9).

Рисунок 3.9. Інструмент для поклейки шпалер

3.9 Організація робочого місця

Що стосується організації робочого місця та інструменту, то перед поклейкою шпалер у приміщенні треба навести порядок і чистоту. Не повинно бути пилу. Заздалегідь потрібно підготувати зручний доступ до всіх стін на які будете наклеюватись шпалери. Бажано по середині приміщення спорудити стіл для нарізки і намазки шпалер, тобто стіл повинен бути на всю довжину смуг. Це все треба зробити саме до поклейки.

Що стосується інструменту - знадобляться хороші гострі ножиці, ніж з тонким лезом, для розрівнювання товстих рельєфних шпалер, щітка, а для тонких шпалер гумовий валик (великий і маленький для стиків) і спеціальна лопатка для кутів. Валик для нанесення клею і невелика кисть. Чиста мокра ганчірка, яку періодично треба мити, для видалення зайвого клею.

3.10 Опис технології виконання кожної операції

Перед початком роботи обов'язково перевіряємо шпалери на ідентичність дати випуску. Малюнок і колірний тон у всіх рулонах теж не повинні відрізнятися один від одного. Для того, щоб визначити правильну довжину смуги до висоти приміщення додаємо 5 – 10 см. Якщо вибираємо шпалери без малюнка, то довжина всіх смуг має бути однаковою. Полотно потрібної довжини просто відмотується від рулону і акуратно обрізується.

Якщо ж вибір ліг на шпалери з малюнком, слід звернути увагу на етикетку. На ній стоїть або значок «Пряма підгонка», або - «Підгонка по малюнку». Від цього залежить метод підгонки малюнка. За наявності значка «Пряма підгонка» однакові малюнки поєднуються один з одним на одній висоті. При розкроюванні шпалер із зсувом малюнка («Підгонка по малюнку») на кожній наступній смузі малюнок зрушується на половину узору, що повторюється, кожна друга смуга однакова. При цьому важливо, щоб шпалери відмотувалися від рулону в одному і тому ж напрямі.

Підготування шпалер до наклеювання

Готуємо клей відповідно до інструкції і рівномірно наносимо на смуги тонким шаром. Це можна зробити за допомогою чистої щітки. Після цього складаємо їх клейовою стороною всередину. Не допускаємо попадання клею на лицьову сторону шпалер. Час просочення шпалер клеєм приблизно 10 хвилин. Стежимо за тим, щоб часовий інтервал і міра просочення всіх смуг були однаковими.

Слід завжди починати від вікна. Першу смугу клеємо вертикально, щоб останні смуги були рівними. Це можна зробити за допомогою рівня. В стелі бажано залишити невеликий запас, щоб можна було вирівняти можливі відхилення по висоті. Смуги придавлюємо м'якою щіткою для шпалер або валиком з пористої гуми від середини до боків, щоб не утворювалися міхурі.

Як наклеїти шпалери в кутах

Кути кімнати не завжди бувають ідеально рівними. Для того, щоб наклеїти шпалери в кутку акуратно накладаємо краї смуг один на іншій. Після цього зрізаємо верхню смугу по краю вже наклеєної.

Як наклеїти шпалери біля дверей

Наклеювання шпалер біля дверного отвору з одного боку (по ходу обклеювання приміщення шпалерами). Не варто обклеювати двері з двох сторін одночасно, оскільки надалі не вийде правильно зістикувати малюнок шпалер над дверима. Смугу, яка захоплює за площею частину дверей, розрізаємо вертикально до верхнього краю дверної рами, зайве акуратно відрізаємо.

Як наклеїти шпалери біля стелі і плінтуса

Для того, щоб акуратно наклеїти шпалери в стелі і біля плінтуса можна скористатися спеціальною лінійкою для обрізання країв. Якщо ж такої немає, то притискаємо шпалери щільно до краю шматком пластика з рівною кромкою і обрізаємо зайві шпалери гострим ножем.

3.11 Розрахунок кількості матеріалів, необхідних для шпалерних робіт

Для розрахунку кількості рулонів, необхідної для обклеювання стін, варто скористатися нижче приведеною таблицею 3.2. В розрахунок береться стандартний розмір рулону (10,05 м х 0,53 кв. м).

Таблиця 3.2

Розрахунок кількості рулонів

Кількість рулонів при висоті приміщення

Периметр стіни (м)

2,10-2,45 м           

2,50-3,20 м         

3,25 м і вище

6

3

4

6

10

5

7

12

6

8

12

15

8

10

15

18

9

12

17

20

10

13

19

24

12

16

23

Витрата шпалер з крупним малюнком збільшується на 1-2 рулони.

Загальні параметри стіни на які будуть наноситись шпалери становить 19 м. Тобто при висоті кімнат 2,5 м. загальна кількість рулонів для проклейки становить 12-13 шт., в залежності від виду шпалер.

Витрати клею залежить від ємності упаковки. Якщо вибір лягає на клей марки «КМЦ» вагою 0,5 кг., то достатньо буде 2-х упаковок.

РОЗДІЛ IV. БЕЗПЕЧНІ ПРИЙОМИ ПРАЦІ

При виконанні малярних і шпалерних робіт необхідно працювати на справних риштуваннях, помостах, драбинах та інших пристроях, виконуючи вимоги при виготовленні і встановленні їх, а також додержуючись правил техніки безпеки під час роботи на висоті.

Ручний інструмент, яким працює маляр, має бути справним. Дерев'яні ручки інструменту виготовляють із твердої деревини (бук, граб, береза), вологість якої допускається не більш як 12%. Вони повинні бути добре оброблені, пошліфовані і міцно з'єднані з інструментом.

До початку малярних робіт у приміщеннях з відкритою електропроводкою струм вимикають.

Малярні суміші готують в спеціально виділених для цього приміщеннях, обладнаних вентиляцією. У приміщенні не можна палити або застосовувати нагрівальні прилади з відкритим полум'ям. Тут треба обладнати щит з пожежним інструментом і поставити ящики з піском.

Лакофарбові матеріали, в яких містяться токсичні речовини, використовують відповідно до вимог інструкції з їхнього застосування. Робітники, які готують суміші з цих матеріалів, повинні бути проінструктовані, а також забезпечені респіраторами із спеціальними фільтрами, розчинниками, мийними засобами і теплою водою. Не дозволяється користуватись для фарбування внутрішніх поверхонь свинцевими білилами або фарбами, виготовленими на їхній основі, а також застосовувати бензол і етильований бензин для розведення фарб. Слід бути обережними при виготовленні малярних сумішей з отруйними пігментами (свинцевий крон, мідянка) і розчинниками (ацетон, дихлоретан тощо). Після роботи і перед їжею обов'язково треба добре вимити руки.

Під час фарбування внутрішніх поверхонь неводними фарбами забезпечують штучну або природну вентиляцію приміщень, але без протягів. При пневматичних засобах фарбування поверхонь, а також під час роботи з мастиками, клеями і лакофарбовими матеріалами, в яких містяться токсичні леткі речовини, робітники мають забезпечуватися респіраторами відповідного типу і захисними окулярами. Робітники, які постійно працюють з такими матеріалами, обов'язково повинні періодично проходити медичний огляд.

Для зменшення кількості пилу в приміщенні при зніманні старих клейових плівок поверхню змочують водою. Знімаючи плівку із стелі, працюють в захисних окулярах.

Очищаючи поверхні за допомогою піскоструминного апарата, одягають скафандр або захисний шолом і гумові рукавиці. Пісок для роботи треба брати з невеликою кількістю пилу.

Зовнішню поверхню віконних рам фарбують в приміщенні до їх навішування або з зовнішнього риштування. Рами світлових ліхтарів і скляних дахів фарбують із спеціальних драбинок, при цьому ставати на раму забороняється. Фарбуючи дахи і світлові ліхтарі, застосовують запобіжний пасок, прив'язуючись до міцної нерухомої частини будинку або інших безпечних місць.

Під час роботи на даху з великим похилом слід також користуватись драбинкою, прикріпленою до гребеня даху. При фарбуванні ринв користуються індивідуальною колискою з поручнями і опорою для ніг.

Апарати, що працюють під тиском (фарбопульти, компресори тощо), а також шланги до початку роботи перевіряють на тиск, який має бути у 1,5 рази більшим від робочого. Манометри на пневматичних апаратах повинні бути опломбовані. Після перевірки апарата складають відповідний акт.

Під час роботи з перхлорвініловими фарбами і лаками маляри повинні бути забезпечені і користуватись протигазами з примусовою подачею повітря. Фарбувати зовнішні поверхні цими фарбами можна при температурі, що не перевищує 4 °С.

ВИСНОВОК

Після опорядження приміщення вони набувають завершеного вигляду, в них створюються потрібні санітарно-гігієнічні і естетичні умови для перебування людей.

У загальному обсязі опоряджувальні роботи займають значну частину. Тому зниження їхньої вартості і трудомісткості має важливе значення для інтенсифікації робіт і можливе лише за умов максимального застосування в роботі сучасних опоряджувальних машин і механізмів, нових матеріалів і форм організації праці.

Підвищенню продуктивності праці, поліпшенню якості і зниженню собівартості опоряджувальних робіт сприяють також нові форми та методи наукової організації праці (НОП): створення комплексних механізованих бригад, застосування нових пристроїв, уміле використання технологічних карт, карт трудових процесів тощо. Підвищення якості виконуваних робіт залежить від кваліфікації, ініціативи кожного робітника, сумлінного ставлення до своїх обов'язків, правильної організації праці в бригаді.

Нині працюють тисячі опоряджувальників, багато з них закінчили професійно-технічні училища. Для успішного виконання завдань кожен зайнятий на опоряджувальних роботах, має добре опанувати технологію їх виконання, будову і роботу застосовуваних машин і механізмів, передові методи організації праці.

СПИСОК ЛІТЕРАТУРИ

1. А.А. Ивлев: А.А. Кальгин, О.М. Скок "Отделочные строительные работы".2002 г.

2. "Отделочные работы" Г.В. Коробковский, Г.А. Смирнова. 2002 г.

3. Н.П. Сугробов, В.И. Поляков, Н.Ф. Бутырь. "Охраны труда в строительстве"2002 г.

4. "Технология малярных работ" Е.Д. Белоусов. 2002 г.

5. "Справочник молодого маляра" В.П. Белогуров, В.Д. Чмырь. 2002 г.

6. Белоусов Е.Д. Технология облицовки синтетическими материалами, Москва, Высшая школа, 2002 г.

7. Ивлиев А.А. Технология теплоизоляционных материалов и изделий, г. Саратов, 1994 г.

9. Малин В.И. Наружная и внутренняя облицовка зданий природным камнем, Москва, Высшая школа, 1995 г.

10. Неелов В.А. Строительно-монтажные работы — Москва, Стройиздат, 1996г.

11. Суржаненко А.Е., Шепелев А.М. Малярные и штукатурные работы, Москва, Высшая школа, 2008 г.

12. Чмырь В.Д. Материаловедение для маляров, Москва, Высшая школа, 2002 г.

13. Белогуров В.П., Чмырь В.Д. Справочник молодого маляра.— М.- Высш. шк., 1994.— 176 с.

14. Белоусов Е.Д. Технология малярных робот.— М.: Высш. шк., 1990

15. Лебедев А. М. Справочник молодого штукатура.— М.: Высш. шк., 2004.— 155 с.

10. Лорен Джонсон. Ремонт & Реставрація. Практичне керівництво. ЗАТ "Видавнича група "Контэнт®". – 2006. – 43 -126 с.

 

Похожие работы на - Технологія опоряджувальних робіт однокімнатної квартири

 

Не нашли материал для своей работы?
Поможем написать уникальную работу
Без плагиата!
Без нейросетей!