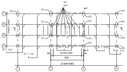
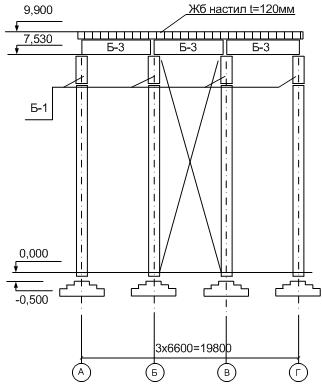
Монтажная схема балочной площадки
ОГЛАВЛЕНИЕ
ВВЕДЕНИЕ
1. Исходные данные
2. Расчет балок настила
3. Расчет центрально сжатой колонны
4. Монтажная схема
ВВЕДЕНИЕ
В данном проекте
произведены два расчета и приведена монтажная схема балочной площадки:
1. Расчет балок настила,
со схемами балочной клетки нормального типа и расчетной схемой
2. Расчет центрально
сжатой колонны.
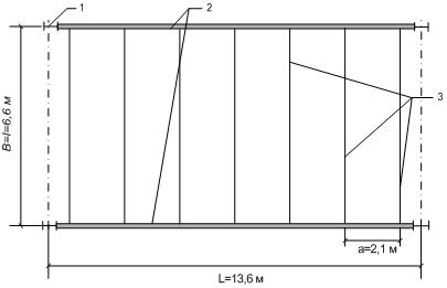
1. Исходные данные
- Пролет L=13,6 м
- Шаг колонB=6,6 м
- Шаг балок настилаa=2,1 м
- Отметка верха настилаH=9,9 м
- Нормативная временная
нагрузкаpH=2500 кг/м2
- Толщина железобетонного
настилаt=12 см
- Сталь С245Ry=2400 кг/см2
- плотность железобетона rВ=2500 кг/м3
- относительный прогиб
балок настила
=
2. Расчет балок настила
Рис. Схема балочной
клетки нормального типа: 1 – колонна; 2 – главные балки; 3 – балки настила
Расчетная схема
Сбор нагрузок на 1 м2
настила
Таблица 1
|
№ п/п
|
Наименование нагрузки
|
Нормативная нагрузка, кг/м2
|
Коэффициент перегрузки, gr
|
Расчетная нагрузка, кг/м2
|
|
1
|
Временная полезная нагрузка, pH
|
2500
|
1,2
|
3000
|
|
2
|
Вес железобетонного настила
(rB х t=2500 х 0,12=300)
|
300
|
1,1
|
330
|
|
3
|
Вес металлических балок
|
30
|
1,05
|
32
|
|
Итого:
|
gН=2830
|
|
g=3362
|
Нормативная нагрузка на
балку настила:
qH= gН+a=2830 x 2,1=5943 кг/м=59,43 кг/см
Расчетная погонная
нагрузка на балку настила:
q=g x a = 3362 х 2,1 = 7060,2 кг/м
Максимальный изгибающий
момент:
Mmax=
=
=38442,8 кг/м
Проверка прочности изгиба
элементов:
s=
<Ry,
Откуда выражаем требуемый
момент сопротивления балки Wтр:
Wтр=
=
=1601,8 см3
h — высота
двутавра; b — ширина полки; s — толщина стенки; t — средняя толщина полки; R
— радиус внутреннего закругления;
r — радиус закругления полки
Балки
двутавровые (ГОСТ 8239-89)
Таблица 2
|
Номер двутавра
|
Размеры
|
Площадь поперечного
сечения, см2
|
Масса 1 м, кг
|
Справочные
значения для осей
|
|
h
|
b
|
s
|
t
|
R
|
r
|
X – X
|
Y – Y
|
|
не более мм
|
Ix,
|
Wx,
|
ix,
|
Sx,
|
Iy,
|
Wy,
|
iy,
|
|
см4
|
см3
|
см
|
см3
|
см4
|
см3
|
см
|
|
10
|
100
|
55
|
4,5
|
7,2
|
7,0
|
2,5
|
12,0
|
9,46
|
198
|
39,7
|
4,06
|
23,0
|
17,9
|
6,49
|
1,22
|
|
12
|
120
|
64
|
4,8
|
7,3
|
7,5
|
3,0
|
14,7
|
11,50
|
350
|
58,4
|
4,88
|
33,7
|
27,9
|
8,72
|
1,38
|
|
14
|
140
|
73
|
4,9
|
7,5
|
8,0
|
3,0
|
17,4
|
13,70
|
572
|
81,7
|
5,73
|
46,8
|
41,9
|
11,50
|
1,55
|
|
16
|
160
|
81
|
5,0
|
7,8
|
8,5
|
3,5
|
20,2
|
15,90
|
873
|
109,0
|
6,57
|
62,3
|
58,6
|
14,50
|
1,70
|
|
18
|
180
|
90
|
5,1
|
8,1
|
9,0
|
3,5
|
23,4
|
18,40
|
1290
|
143,0
|
7,42
|
81,4
|
82,6
|
18,40
|
1,88
|
|
20
|
200
|
100
|
5,2
|
8,4
|
9,5
|
4,0
|
26,8
|
21,00
|
1840
|
184,0
|
8,28
|
104,0
|
115,0
|
23,10
|
2,07
|
|
22
|
220
|
110
|
5,4
|
8,7
|
10,0
|
4,0
|
30,6
|
24,00
|
2550
|
232,0
|
9,13
|
131,0
|
157,0
|
28,60
|
2,27
|
|
24
|
240
|
115
|
5,6
|
9,5
|
10,5
|
4,0
|
34,8
|
27,30
|
3460
|
289,0
|
9,97
|
163,0
|
198,0
|
34,50
|
2,37
|
|
27
|
270
|
125
|
6,0
|
9,8
|
11,0
|
4,5
|
40,2
|
31,50
|
5010
|
371,0
|
11,20
|
210,0
|
260,0
|
41,50
|
2,54
|
|
30
|
300
|
135
|
6,5
|
10,2
|
12,0
|
5,0
|
46,5
|
36,50
|
7080
|
472,0
|
12,30
|
268,0
|
337,0
|
49,90
|
2,69
|
|
33
|
330
|
140
|
7,0
|
11,2
|
13,0
|
5,0
|
53,8
|
42,20
|
9840
|
597,0
|
13,50
|
339,0
|
419,0
|
59,90
|
2,79
|
|
36
|
360
|
145
|
7,5
|
12,3
|
14,0
|
6,0
|
61,9
|
48,60
|
13380
|
743,0
|
14,70
|
423,0
|
516,0
|
71,10
|
2,89
|
|
40
|
400
|
155
|
8,3
|
13,0
|
15,0
|
6,0
|
72,6
|
57,00
|
19062
|
953,0
|
16,20
|
545,0
|
667,0
|
86,10
|
3,03
|
|
45
|
450
|
160
|
9,0
|
14,2
|
16,0
|
7,0
|
84,7
|
66,50
|
27696
|
1231,0
|
18,10
|
708,0
|
808,0
|
101,00
|
3,09
|
|
50
|
500
|
170
|
10,0
|
15,2
|
17,0
|
7,0
|
100,0
|
78,50
|
39727
|
1589,0
|
19,90
|
919,0
|
1043,0
|
123,00
|
3,23
|
|
55
|
550
|
180
|
11,0
|
16,5
|
18,0
|
7,0
|
118,0
|
92,60
|
55962
|
2035,0
|
21,80
|
1181,0
|
1356,0
|
151,00
|
3,39
|
600
|
190
|
12,0
|
17,8
|
20,0
|
8,0
|
138,0
|
108,00
|
76806
|
2560,0
|
23,60
|
1491,0
|
1725,0
|
182,00
|
3,54
|
Принимаем двутавр № 55: Wx=2035,0 см3 (Wx=2035,0 см3>Wтр=1601,8 см3), Jх=55962 см4.
Проверяем прогиб балки:
=
=
=0,00193<0,004
жесткость обеспечена.
3. Расчет центрально
сжатой колонны
Геометрическая длина
колонны l:
l=H-tн-hб.н.-hг.б.+c=990-12-55-170+50= 803 см.
tн = 12 см – толщина настила;
hб.н = 55 см – высота балки настила;
hг.б = 170 см – высота главной балки;
l0 – расчетная длина:
l0=m х l = l, так как m = 1для данной расчетной схемы.
Продольная сила в
колонне:
N=g x L x B x 1,02 = 3362х13,6х6,6х1,02=307809 кг
Проверка устойчивости
центрально сжатых стержней:
s =
<Ryyc, где yc=1
Требуемая площадь сечения
колонны:
Аmp=
адаем j = 0,7:
Аmp =
=
=183,2 см2
Принимаем двутавр с
параллельными гранями полок I40K2
A = 218,69 cм2, iy=10,12 cм.
Гибкость относительно оси
Y:
ly =
=
=80, при этом j = 0,686.
Проверка устойчивости:
s =
=
= 2052<2400 кг/см2
Устойчивость обеспечена.
Коэффициенты j продольного изгиба центрально-сжатых
элементов
(СНиП II-23-81*)
|
Гиб-кость
|
Коэффициенты j для элементов из стали с расчетным
сопротивлением Ry,
МПа (кгс/см2)
|
|
l
|
200 (2050)
|
240 (2450)
|
280 (2850)
|
320 (3250)
|
360 (3650)
|
400 (4100)
|
440 (4500)
|
480 (4900)
|
520 (5300)
|
560 (5700)
|
600 (6100)
|
640 (6550)
|
|
10
20
30
40
50
60
70
80
90
100
110
120
130
140
150
160
170
180
190
200
210
220
|
988
967
939
906
869
827
782
734
665
599
537
479
425
376
328
290
259
233
210
191
174
160
|
987
962
931
894
852
805
754
686
612
542
478
419
364
315
276
244
218
196
177
161
147
135
|
985
959
924
883
836
785
724
641
565
493
427
366
313
272
239
212
189
170
154
140
128
118
|
984
955
917
873
822
766
687
602
522
448
381
321
276
240
211
187
167
150
136
124
113
104
|
983
952
911
863
809
749
654
566
483
408
338
287
247
215
189
167
150
135
122
111
102
094
|
982
949
905
854
796
721
623
532
447
369
306
260
223
195
171
152
136
123
111
101
093
086
|
981
946
900
846
785
696
595
501
413
335
280
237
204
178
157
139
125
112
102
093
085
077
|
980
943
895
839
775
672
568
471
380
309
258
219
189
164
145
129
115
104
094
086
079
073
|
979
941
891
832
764
650
542
442
349
286
239
203
175
153
134
120
107
097
088
080
074
068
|
978
938
887
825
746
628
518
414
326
267
223
190
163
143
126
112
100
091
082
075
069
064
|
977
936
883
820
729
608
494
386
305
250
209
178
153
134
118
105
094
085
077
071
065
060
|
977
934
879
814
712
588
470
359
287
235
197
167
145
126
111
099
089
081
073
067
062
057
|
|
Примечание. Значение коэффициентов j в таблице увеличены в 1000 раз.
|

|
Профиль
|
Размеры
профиля мм
|
Площадь
|
Масса
1
м
|
Справочные
величины для осей
|
|
h
|
b
|
S
|
t
|
R
|
сечения
см2
|
длины
кг
|
Ix,
см4
|
Wx
см3
|
Sx
см3
|
ix
см
|
Iy, см4
|
Wy см3
|
iy см
|
|
20
К1
|
196
|
199
|
6,5
|
10
|
13
|
52,69
|
41,4
|
3846
|
392,5
|
216,4
|
8,54
|
1314,4
|
132,1
|
4,99
|
|
20
К2
|
200
|
200
|
8
|
12
|
13
|
63,53
|
49,9
|
4716
|
471,6
|
262,8
|
8,62
|
1601,4
|
160,1
|
5,02
|
|
25
К1
|
246
|
249
|
8
|
12
|
16
|
79,72
|
62,6
|
9171
|
745,6
|
410,7
|
10,73
|
3089,9
|
248,2
|
6,23
|
|
25
К2
|
250
|
250
|
9
|
14
|
16
|
92,18
|
72,4
|
10833
|
866,6
|
480,3
|
10,84
|
3648,6
|
291,9
|
6,29
|
|
25
К3
|
253
|
251
|
10
|
15,5
|
16
|
102,21
|
80,2
|
12154
|
960,8
|
535,4
|
10,9
|
4088,6
|
325,8
|
6,32
|
|
30
К1
|
298
|
299
|
9
|
14
|
18
|
110,80
|
87
|
18849
|
1265,1
|
694,7
|
13,04
|
6240,9
|
417,5
|
7,51
|
|
30
К2
|
300
|
300
|
10
|
15
|
18
|
119,78
|
94
|
20411
|
1360,7
|
750,6
|
13,05
|
6754,5
|
450,3
|
7,51
|
|
30
К3
|
300
|
305
|
15
|
15
|
18
|
134,78
|
105,8
|
21536
|
1433,7
|
806,9
|
12,64
|
7104,4
|
465,9
|
7,26
|
|
30
К4
|
304
|
301
|
11
|
17
|
18
|
134,82
|
105,8
|
23381
|
1538,2
|
852,8
|
13,17
|
7732,3
|
513,8
|
7,57
|
|
35
К1
|
342
|
348
|
10
|
15
|
20
|
139,03
|
109,1
|
31249
|
1827,4
|
1001,2
|
14,99
|
10541,7
|
605,8
|
8,71
|
|
35
К2
|
350
|
350
|
12
|
19
|
20
|
173,87
|
136,5
|
40296
|
2302,6
|
1272,7
|
15,22
|
13585,3
|
776,3
|
8,84
|
|
40
К1
|
394
|
398
|
11
|
18
|
22
|
186,81
|
146,6
|
56147
|
2850,1
|
1559,3
|
17,34
|
18921,9
|
950,8
|
10,06
|
|
40
К2
|
400
|
400
|
13
|
21
|
22
|
218,69
|
171,7
|
66623
|
3331,2
|
1936,3
|
17,45
|
22412
|
1120,6
|
10,12
|
|
40
К3
|
406
|
403
|
16
|
24
|
22
|
254,87
|
200,1
|
78041
|
3844,4
|
2139,9
|
17,5
|
26199,5
|
1300,2
|
10,14
|
|
40
К4
|
414
|
405
|
18
|
28
|
22
|
295,39
|
231,9
|
92773
|
4481,8
|
2513,2
|
17,72
|
31026,2
|
1532,2
|
10,25
|
|
40
К5
|
429
|
400
|
23
|
35,5
|
22
|
370,49
|
290,8
|
120292
|
5608
|
3198,6
|
18,02
|
37914,2
|
1895,7
|
10,12
|
Примечание. Sx – статический момент полусечения; Ix,Iy – моменты инерции; Wx,Wy – моменты сопротивления; ix ,iy – радиусы инерции.
4. МОНТАЖНАЯ СХЕМА
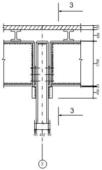
1-1
2-2
монтажный
балочный настил колонна
Узел 1 3-3
Размещено на