Робочий майданчик виробничих будівель
Міністерство
освіти і науки України
Запорізька
державна інженерна академія
Кафедра
МБГ
КУРСОВА
РОБОТА
з
дисципліни "Металеві конструкції"
На
тему: "Робочий майданчик виробничих будівель"
Запоріжжя
2010
1. ВИБІР
РАЦІОНАЛЬНОЇ СХЕМИ БАЛОЧНОЇ КЛІТКИ
Згідно завдання
до курсової роботи та рекомендацій п.2 [1] приймаємо дві схеми балочної клітки:
загального та ускладненого типу.
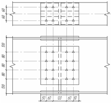
Рисунок 1 –
Компоновочна схема балочної клітки:
а – нормального
типу; б – ускладненого типу.
1.1 Розрахунок
настилу
Розрахунок
товщини настилу проводимо згідно рівняння 1 [1]:
, (1.1)
де
- відношення прольоту настилу до його граничного
прогину;
-
нормативне навантаження згідно завдання,
;
-
модуль деформації сталі;
- коефіцієнт Пуассона для сталі.
Розрахунок
горизонтальної опорної реакції обчислюємо за формулою 2 [1]:
, (1.2)
де
- відносний прогин настилу;
- коефіцієнт надійності за
наантаженням.
Із умов міцності
[1] знаходимо кати кутових швів кріплення настилу:
, (1.3)
, (1.4)
де
- коефіцієнти, що примається за табл.7д
[1];
- розрахунковий опір металу шва (за
табл.6д [1]),
;
-
розрахунковий опір шва за межею сплавлення (за табл.5д [1]),
;
-
коефіцієнт надійності за призначенням (за табл.1д [1]);
-
коефіцієнт умови роботи конструкцій.
Катет шва
приймаємо за більшим із знайдених значень, але не меньше мінимального, яке
вказане у табл.8 додатку до [1].
1.1.1
Розрахунок настилу балочної клітки нормального типу
За формулою 1.1
розраховуємо товщину настилу балочної клітки:
Згідно сортаменту
листової сталі приймаємо лист товщиною
.
За формулою 1.2
розраховуємо горизонтальну опорну реакцію в настилі:
За формулами 1.3
та 1.4 знаходимо катет кутвих швів кріплення настилу щодо умов ручної зварки електродами
Е46:
Згідно табл.8
додатку до [1] приймаємо катет шва
.
1.1.2
Розрахунок настилу балочної клітки ускладненого типу
За формулою 1.1
розраховуємо товщину настилу балочної клітки:
Згідно сортаменту
листової сталі приймаємо лист товщиною
.
За формулою 1.2
розраховуємо горизонтальну опорну реакцію в настилі:
За формулами 1.3
та 1.4 знаходимо катет кутвих швів кріплення настилу щодо умов ручної зварки
електродами Е46:
Згідно табл.8
додатку до [1] приймаємо катет шва
.
1.2 Розрахунок
балок настилу
Визначаємо нормативні
і розрахункові навантаження на балку за формулами:
; (1.5)
; (1.6)
; (1.7)
; (1.8)
де
- нормативне навантаження від власної
ваги настилу,
;
- нормативне навантаження від власної
ваги балок настилу,
.
Нормативне
навантаження від власної ваги балок настилу розраховуємо за формулою:
, (1.9)
де
- лінійна густина балки настилу,
;
- кількість балок настилу в частині
балочної клітини за розмірами
;
- крок допоміжних балок,
;
- крок колон балочної,
;
- коефіцієнти надійності за
навантаженням (
).
Визначаємо
граничні значення згинального моменту та перерізуючої сили за формулами:
(1.10)
(1.11)
Визначаємо потрібний
момент опору за формулою 8 [1]:
(1.12)
Перевірку
міцності прийнятого перерізу виконуємо за фомулою 9 [1]:
, (1.13)
де
- коефіцієнт роботи матеріалу.
Міцність за
дотичними напруженнями визначаємо за формулою 11 [1]:
де
- моменти інерції обраного перерізу
балки настилу;
- товщина стінки профілю,
;
- розрахунковий опір сталі зрізу,
.
Жорсткість балки
настилу перевіряємо за формулою 12 [1]:
(1.15)
1.2.1
Розрахунок балок настилу балочної клітки нормального типу
За формулами 1.5
та 1.7 визначаємо нормативні і розрахункові навантаження на балку настилу:
За формулами 1.10
та 1.11 визначаємо граничні значення згинального моменту та перерізуючої сили:
За формулою 1.12
визначаємо потрібний момент опору балки настилу:
з сортаменту
фасонного прокату приймаємо наступну за кроком двотаврову балку №20 з
характеристиками:
;
;
;
.
За формулою 1.13
проводимо перевірку міцності прийнятого перерізу:
За формулою 1.14
проводимо перевірку міцності прийнятого перерізу:
За формулою 1.15
перевіряємо жорсткість балки настилу:
Усі умови
виконуються, таким чином для даної схеми приймаємо балки настилу з двотаврового
профілю ý20.
1.2.2
Розрахунок балок настилу балочної клітки ускладненого типу
За формулами 1.5
та 1.7 визначаємо нормативні і розрахункові навантаження на балку настилу:
За формулами 1.10
та 1.11 визначаємо граничні значення згинального моменту та перерізуючої сили:
За формулою 1.12
визначаємо потрібний момент опору балки настилу:
З сортаменту
фасонного прокату приймаємо двотаврову балку №14 з характеристиками:
;
;
;
.
За формулою 1.13
проводимо перевірку міцності прийнятого перерізу:
За формулою 1.14
проводимо перевірку міцності прийнятого перерізу:
За формулою 1.15
перевіряємо жорсткість балки настилу:
Усі умови
виконуються, таким чином для даної схеми приймаємо балки настилу з двотаврового
профілю ý14.
За формулою 1.9
розраховуємо нормативне навантаження від балок настилу:
За формулами 1.6
та 1.8 визначаємо нормативні і розрахункові навантаження на допоміжну балку:
За формулами 1.10
та 1.11 визначаємо граничні значення згинального моменту та перерізуючої сили:
За формулою 1.12
визначаємо потрібний момент опору балки настилу:
З сортаменту фасонного прокату приймаємо
двотаврову балку №30 з характеристиками:
;
;
;
.
За формулою 1.13
проводимо перевірку міцності прийнятого перерізу:
За формулою 1.14
проводимо перевірку міцності прийнятого перерізу:
За формулою 1.15
перевіряємо жорсткість балки настилу:
Усі умови
виконуються, таким чином для даної схеми приймаємо допоміжні балки з
двотаврового профілю ý30.
1.3 Порівняння
варіантів схем балочної клітки
Розрахунок
металоємності балочних кліток нормального та ускладненого типу виконуємо за
формулами 13,14 [1]:
; (1.16)
; (1.17)
де
- вага
настилу,
;
- відповідно, вага
балки настилу і допоміжної балки,
;
- відповідно кількість балок настилу і
допоміжних балок.
Таким чином
металоємність балочної клітки нормального типу складає:
Таким чином
металоємність балочної клітки ускладненого типу складає:
Отримані дані з
металоємності варіантів балочної клітки заносимо до таблиці.
Таблиця 1.1 –
Порівняння варіантів схем балочної клітки
|
№вар.
|
Кількість
|
|
Всього
|
На
|
Відсотки, %
|
Типів балок
|
Монтажних елементів
|
|
1
|
3018
|
78,96
|
|
1
|
6
|
|
2
|
2445
|
63,97
|
|
2
|
6
|
Таким чином
варіант балочної клітини нормального типу є менш металоємним та трудомістким.
Схема балочної клітки нормального типу буде використана у подальшому розрахунку
головних балок перекриття та колон.
2. РОЗРАХУНОК ГОЛОВНОЇ БАЛКИ
Визначаємо нормативні
і розрахункові навантаження на головну балку:
За формулами 1.10
та 1.11 визначаємо граничні значення згинального моменту та перерізуючої сили:
За формулою 1.12
визначаємо потрібний момент опору балки настилу:
З сортаменту
фасонного прокату приймаємо двотаврову балку №50Б2 з характеристиками:
;
;
;
.
За формулою 1.13
проводимо перевірку міцності прийнятого перерізу:
За формулою 1.14
проводимо перевірку міцності прийнятого перерізу:
За формулою 1.15
перевіряємо жорсткість балки настилу, але значення припустимого прогину
приймаємо
:
Перевіряємо
загальну стійкість головної балки перекриття за формулою:
, (2.1)
де
- крок балок настилу,
;
- ширина полки двотавра,
;
- товщина полки двотавра,
;
- вістова відстань між центрами полок
двотавра.
Таким чином
загальна стійкість головної балки перекриття складає:
Усі умови
виконуються, таким чином приймаємо перетин головної балки з двотаврового
профілю ý50Б2.
2.1 Розрахунок
опорного ребра балки
Для даної схеми
приймаємо конструкцію опорного ребра, розміщеного на краю головної балки.
Ширину опорного ребра
приймаємо конструктивно
рівною ширині полки двотавра
.
Товщину опорного
ребра розраховуємо за формулою 71 [1]:
, (2.2)
де
- опорна реакція головної балки,
;
- розрахунковий опір сталі за межею
міцності,
.
Таким чином за
формулою 2.2 товщина опорного ребра складає:
Конструктивно
приймаємо товщину опорного ребра
.
Перевіряємо
місцеву стійкість опорного ребра балки за формулою 72 [1]:
, (2.3)
де
- ширина консольної частини полки
балки,
.
Таким чином
розрахункова місцева стійкість ребра балки складає:
Стійкість
опорного ребра балки , як центрово стиснутого стержня перевіряємо за формулою
73 [1]:
, (2.4)
де
- коефіцієнт повздовжнього вигину, що
визначається в залежності від гнучкості
;
- площа опорної ділянки балки, яка
включає переріз опорного ребра та частину заввишки
.
Площу опорної ділянки
балки визначаємо за формулою 74 [1]:
, (2.5)
Гнучкість опорної
частини балки визначаємо за формулою 76 [1]:
, (2.6)
де
- радіус інерції,
за формулою 77 [1]:
, (2.7)
де
- момент інерції опорної ділянки
відносно осі,
за формулою 78 [1]:
(2.8)
Таким чином
момент інерції опорної ділянки відносно осі стінки складає:
Таким чином
радіус інерції перетину складає:
Таким чином
гнучкість опорної частини балки складає:
За таблицею 21
додатку до [1] приймаємо коефіцієнт
.
За формулою 2.4
перевіряємо умову стійкості опорного ребра балки , як центрово стиснутого
стержня:
Із умов міцності
кутових за формулою 81 [1] знаходимо необхідний катет
вертикального кутового шва:
, (2.9)
де
- розрахункова довжина швів,
.
Згідно табл.8
додатку до [1] приймаємо катет шва
.
2.2 Розрахунок спряження балок
настилу з головною балкою
Розраховуємо
монтажну висоту перекриття за формулою:
, (2.10)
де
- конструктивна висота перекриття за
завданням,
;
- висота балок настилу,
;
- товщина настилу,
.
Таким чином монтажна
висота перекриття складає:
Так як монтажна
висота перекриття менше висоти головної балки, приймаємо схему з’єднання в
одному рівні головної балки і балок настилу.
За формулою 82 [1] перевіряємо стінку прокатної балки
настилу на місцеве зминання:
(2.11)
де
- опорна реакція балки настилу,
;
- площа зминання стінки прокатної
балки,
.
Площу зминання
стінки прокатної балки знаходимо за формулою 83 [1]:
, (2.12) де
- товщина стінки прокатної балки,
;
- знаходимо згідно геометричних
параметрів двотаврового профілю.
Таким чином площа
зминання стінки прокатної балки складає:
За формулою 2.11
перевіряємо умови зминання стінки прокатної балки настилу:
За формулою 84 [1] перевіряємо ребро жорсткості
головної балки на торцеве зминання:
(2.13)
де
- площа зминання торцевої поверхні
ребра,
.
Площу зминання
торцевої поверхні ребра знаходимо за формулою 85 [1]:
, (2.14)
де
- товщина ш ширина ребра жорсткості
головної балки,
.
Таким чином площа
зминання торцевої поверхні ребра жорсткості складає:
За формулою 2.13
перевіряємо ребро жорсткості головної балки на торцеве зминання:
Визначаємо
діаметр болта
(2.15)
(2.16)
Монтажні болти
для кріплення балки настилу до головної балки приймаємо М16.
2.3 Розрахунок монтажного
стику головної балки
Вибираємо
конструктивно розташування монтажного стику посередині головної балки, тоді
;
.
Згідно
рекомендацій [1] приймаємо схему розташування
болтів монтажного стику головної балки, спосіб обробки – металевими щітками,
контроль затягування болтів – за згинальним моментом.
Рисунок 2 – Схема
компоновки болтів монтажного стику
Момент інерції у
найбільш віддалених від вісі болтах розраховуємо за формулою 88 [1]:
, (2.15)
де
- момент інерції стінки
балки,
;
- момент інерції всього
перерізу балки,
.
Таким чином
момент інерції у найбільш віддалених від вісі болтах складає:
За формулою 89 [1] визначаємо зусилля в болтах,
викликане моментом
:
, (2.16)
де
- відстань між крайніми рядами болтів
за висотою,
;
- сума квадратів відстаней
між симетричними рядами болтів,
;
- кількість рядів болтів.
Таким чином
максимальне зусилля в болтах складає:
Так як поперечна
сила у перетині
, сумарне зусилля
.
За формулою 92 [1] визначаємо необхідну площу перерізу
високоміцного болта:
, (2.17)
де
- розрахунковий опір розтягу
високоміцного болта;
- коефіцієнт умов з’єднання;
- кількість поверхонь тертя;
- коефіцієнт тертя та коефіцієнт
надійності за табл.11д [1].
За табл.15д [1] вибираємо діаметр високоміцного
болта М16 з
. Товщину накладок приймаємо
конструктивно рівною
.
Зусилля в поясах
балки розраховуємо за формулою 94 [1]:
, (2.18)
де
- згинальний момент в полках балки,
;
- висота балки,
.
Таким чином
зусилля в поясах головної балки складає:
За формулою 95 [1] розраховуємо несучу здатність одного
високоміцного болта кріплення поличок:
(2.19)
Кількість болтів
у з’єднанні визначаємо за формулою 96 [1]:
(2.20)
(приймаємо 8 болтів М16)
Необхідну площу
накладок розраховуємо за формулою 97 [1]:
(2.21)
Необхідну товщину
накладок розраховуємо за формулою 98 [1]:
(2.22)
(приймаємо товщину
)
3. РОЗРАХУНОК
ЦЕНТРОВО–СТИСНЕНИХ КОЛОН
Розрахункову
висоту колони визначаємо за формулою 98 [1]:
, (3.1)
де
- висотна позначка верха майданчика за завданням,
;
- величина заглиблення колони у
підлогу.
Таким чином
розрахункова висота колони складає:
Так як при
наявності зв’язків між колонами в обох напрямках, вузол верхнього закріплення
колони вважають шарнірним розрахункова висота колони
.
Згідно рекомендацій [1] приймаємо гнучкість колони
,
тоді коефіцієнт
.
Потрібний радіус
інерції перерізу гілки колони розраховуємо за формулою:
Потрібну площу
перерізу ланки колони визначаємо за формулою 102 [1]:
, (3.3)
Таким чином
потрібна площа перерізу колони складає:
З сортаменту
фасонного прокату приймаємо швелер №14 з характеристиками:
;
.
Таким чином фактична гнучкість колони буде складати:
Отримана
гнучкість перевищує припустиме значення, тому з сортаменту фасонного прокату
приймаємо швелер №18 з характеристиками:
;
. Таким чином фактична гнучкість колони
буде складати:
(
)
Перевірку
міцності прийнятого перерізу виконуємо за формулою:
(3.4)
Розрахунок
необхідної гнучкості колони проводимо із умови рівностійкості перерізу колони (
) за формулою 120 [1]:
, (3.5)
де
- гнучкість окремої гілки колони.
Таким чином
гнучкість колони складає:
Необхідний радіус
інерції відносно вісі Y визначаємо за формулою 121 [1]:
Необхідну
відстань між гілками колони знаходимо за формулою 123 [1]:
(приймаємо
)
Мінімальна ширина
наскрізної колони з умов [1] повинна складати:
Таким чином
приймаємо ширину наскрізної колони
.
За формулою 124 [1]
встановлюємо відстань між планками:
(3.6)
де
- гнучкість окремої гілки;
- радіус інерції гілки відносно
нейтральної вісі,
.
За формулою 3.6
відстань між планками складає:
(приймаємо
)
За формулою 126 [1] визначаємо власний момент інерції
перерізу колони:
, (3.7)
де
- відповідно, площа і власний момент
інерції гілки відносно вісі Y.
Таким чином
власний момент інерції перерізу колони складає:
Радіус інерції
перерізу визначаємо за формулою 127 [1]:
За формулою 128 [1] визначаємо гнучкість колони відносно
вісі Y:
(
)
За формулою 129 [1] визначаємо приведену гнучкість
колони:
За формулою 130 [1] перевіряємо стійкість відносно вісі Y:
(3.8)
Перевіряємо
стійкість відносно вісі за формулою 3.8:
За формулою 131 [1] знаходимо ширину планок:
(приймаємо
)
Згідно умов
формули 132 [1] та рекомендацій приймаємо
товщину і ширину планок
;
.
За формулою 133 [1] перевіряємо відношення жорсткості
планки і гілки:
, (3.9)
де
- момент інерції перерізу планки
відносно власної вісі,
;
- відстань між осями планок,
;
- відстань між осями гілок,
.
Таким чином
перевіряємо умови формули 3.9:
За формулою 135 [1] проводимо розрахунок планки на дію
умовної поперечної сили:
За формулами 136 [1] проводимо розрахунок поперечної сили
і згинального моменту в планках:
За формулою 137 [1] проводимо перевірку кутових швів що
закріплюють планку до гілок колони:
(3.10)
3.1 Розрахунок
оголовка колони
Товщину опорної
плити
приймаємо конструктивно в межах
20…25мм. Болти виконують тільки фіксуючу роль і також назначаються
конструктивно діаметром в межах
.
Із умови міцності
на зминання визначаємо товщину ребра (формула 138 [1]):
, (3.11)
де
- довжина зминаємої площі.
Таким чином
товщина опорного ребра складає:
(приймаємо
)
За формулою 140
[1] визначаємо необхідний катет шва:
(3.12)
Висоту ребра
визначаємо із умови міцності зварних швів, які закріпляють їх до стінок колон
(формула 139 [1]):
(3.13)
(приймаємо
)
Визначивши
розміри ребра, необхідно перевірити його на зріз за формулою 139 [1]:
(3.14)
3.2 Розрахунок
бази колон
За формулою 143
[1] визначаємо необхідну площу опорної плити, виходячи із умови забезпечення
міцності бетону фундаменту під плитою:
, (3.15)
де
– розрахунковий опір стисненню бетону
фундаменту,
;
– коефіцієнт, який залежить від
співвідношення площі верхнього обрізу фундаменту і площі опорної плити бази;
– розрахунковий тиск колони на
фундамент, який враховує власну вагу колони, кН.
За формулою 144
[1] знаходимо розрахунковий тиск колони на фундамент
, (3.16)
– площа перерізу колони, м2;
– довжина колони;
– вага
перерізу
колони за довідником;
- коефіцієнт надійності за
навантаженням.
Таким чином
розрахунковий тиск колони на фундамент складає:
Згідно формули
3.15 площа опорної плити колони складає:
За формулою 145
[1] встановлюємо ширину плити:
(3.17)
де
- товщина траверси, приймається в межах
;
– величина консольного звісу,
приймається в межах
.
Таким чином
ширина плити складає:
За формулою 146
[1] визначаємо необхідну довжину плити:
Згідно умов [1]
довжину плити приймаємо
.
За формулою 147
[1] визначаємо напруження стиску опорної бази:
За формулами
148-150 [1] визначаємо найбільші згинальні моменти, що виникають у опорній
плиті колони для смужки одиничної ширини
:
За найбільшим
згинальним моментом знаходимо необхідну товщину плити за формулою 152 [1]:
(приймаємо
)
За формулою 153
[1] визначаємо висоту траверси колони:
(приймаємо
)
За формулою 154
[1] навантаження на траверсу приймаємо рівномірно розподіленим:
За формулами
155-156 [1] найбільші значення згинального моменту в траверсі становить:
а) на консольних
ділянках: 
За формулою 157
[1] найбільша поперечна сила на опорі складає:
За формулою 158
[1] проводимо перевірку міцності траверси на згин:
(3.18)
За формулою 159
[1] проводимо перевірку міцності траверси на зріз
(3.19)
ПЕРЕЛІК ПОСИЛАНЬ
1. Методичні вказівки до виконання
курсової роботи "Робочий майданчик виробничих будівель" по курсу "Металеві
конструкції" для студентів фаху 7.092101 "Промислове і цивільне
будівництво"/Склад. В.В.Шкода. – Запоріжжя: ЗДІА, 1997-61 с.
2. Бадур А.И., Белогуров В.Д. Стальные конструкции.
Справочник конструктора.-К.: Изд-во "Сталь", 2004.-120 с.
3. Справочник конструктора
металлических контрукций/ Васильченко В.Т., Рутман А.Н., Лукьяненко Е.П.-Киев:
Будівельник, 1890.-288 с.
4. Справочник техника-конструктора.
Изд. 3-е, перераб. И доп. Самохвалов Я.А., левицкий М.Я., Григораш В.Д. Киев, "Техніка", 1978.-592 с.