Проектирование объёмной гидромашины
Министерство образования Республики Беларусь
Учреждение образования
Гомельский государственный технический
Университет имени П.О. Сухого
Кафедра:”Гидропневмоавтоматика”
Курсовой проект
на тему: “Проектирование объёмной гидромашины ”
2009
Содержание
Введение
1. Описание конструкции и
принципа действия гидромашины
2. Предварительный расчет
гидромашины
3. Проверочный расчет
Заключение
Литература
Введение
Гидравлической
машиной (гидромашиной) называется машина, предназначенная для преобразования
механической энергии в энергию движущейся жидкости или наоборот. В зависимости
от вида преобразования энергий гидромашины делятся на насосы и гидродвигатели.
Насос –
это гидромашина для создания потока рабочей жидкости путем преобразования
механической энергии в энергию движущейся жидкости. Гидродвигатели служат для
преобразования энергии потока рабочей жидкости в механическую энергию выходного
звена гидромашины.
По
принципу действия гидромашины делятся на два класса: динамические и объемные.
Преобразование энергии в динамических гидромашинах происходит при изменении
количества движения жидкости. В объемных гидромашинах энергия преобразуется в
результате периодического изменения объема рабочих камер, герметично отделенных
друг от друга.
В
объемных насосах жидкость перемещается за счет периодического изменения объема
занимаемой ею камеры, попеременно сообщающейся со входом и выходом насоса.
Объемные гидромашины в принципе могут быть обратимы, т. е. работать как в
качестве насоса, так и в качестве гидродвигателя. Однако обратимость конкретных
гидромашин связана с особенностями их конструкции.
В
современной технике применяется много разновидностей гидромашин. Наибольшее
распространение получили объемные и лопастные насосы и гидродвигатели.
В
настоящее время широкое распространение в машиностроении получили аксиально-поршневые
гидромашины типа МН с наклонным блоком. Эти гидромашины предусмотрены для
работы при температуре окружающей среды от - 50 до + 50 °С, и могут работать на
минеральных маслах, имеющих температуру от - 40 до + 70 °С.
Роторная
аксиально-поршневая гидромашина – машина, у которой рабочие камеры вращаются
относительно оси ротора, а оси поршней или плунжеров параллельны оси вращения
или составляют с ней угол меньше 45°. Важным параметром для многих случаев
применения является приёмистость (быстродействие) насоса при регулировании
подачи. Изменение подачи от нулевой до максимальной осуществляется в некоторых
типах аксиально-поршневых гидромашин за 0,04 с и от максимальной до нулевой –
за 0,02 с.
Наиболее
распространённое число цилиндров в аксиально-поршневых машинах равно 7 – 9,
диаметры цилиндров гидромашин обычно находятся в пределах от 10 до 50 мм, а рабочие объёмы машин – в пределах от 5 до 1000 см³. Максимальный угол между осями
цилиндрового блока и наклонной шайбы обычно равен в насосах 20°.
1 Конструкция и принцип действия проектируемой
гидромашины
Аксиально-поршневой
агрегат включает в себя передний корпус 10, в котором в двух шариковых
подшипниках 7 установлен вал 6, правый конец которого шлицами входит в ротор
12. Ротор вращается в роликовом подшипнике 13, наружное кольцо с роликами
которого расположено в промежуточном корпусе 15.Внутренним кольцом подшипника
служит стальное закаленное кольцо 14, закрепленное на роторе 12 винтами 16,
которые одновременно прижимают к ротору бронзовый диск 17, закрепленный в
центре с помощью гайки 18.
В
роторе 12 расположены девять плунжеров 5 со сквозными отверстиями,
оканчивающихся сферическими головками с завальцованными на них подвижными
подпятниками 4.
На
выступающей цилиндрической части ротора по подвижной посадке расположена
поджатая пружиной II шаровая втулка 9, действующая на
нажимной диск 2, который, имея возможность поворачиваться вокруг шаровой втулки
9, прижимает подпятники к плоскости опорного диска 1. Опорный диск 1 расположен
на траверсе 3, установленной в шарикоподшипниках 21.
Одновременно
пружина 11 прижимает ротор 12 с диском 17 к поверхности распределительного
диска 19. Для дополнительного прижима ротора 12 к распределительному диску 19
между торцом приводного вала 6 и гайкой 18 расположена пружина 20.
Уплотнение
по приводному валу 6 осуществляется с помощью манжеты 8. Конструкция заднего
корпуса 22 насоса Г13-35А не предусматривает общего для обеих рабочих полостей
всасывающего патрубка (рис.1).
При
вращении ротора плунжеры 5 совершают в нем принудительное возвратно-поступательное
движение, осуществляя всасывание и нагнетание рабочей жидкости.
Изменение
углового положения траверсы 3 вызывает изменение длины хода плунжеров 5 в
отверстиях ротора 12, за счет чего осуществляется регулирование подачи насоса.
Внутренние
отверстия в подпятниках 4 находятся напротив сквозных отверстий в плунжерах 5 и
оканчиваются расточкой на опорной поверхности подпятников 4.
При
подводе в расточки давления между подпятниками 4 и опорным диском / создается
масляный клин и разгружающее подпятники усилие.
Рабочая
жидкость поступает в камеры под плунжеры 5 через серповидные пазы в заднем
корпусе 22 и распределительном диске 19, которые сообщаются с полостью
всасывания насоса. Всасывание или нагнетание в рабочей полости предопределяется
поворотом траверсы 3 в ту или другую сторону относительно ее среднего
положения.
При
повороте траверсы из одною положения в другое с переходом через среднее
положение меняется направление движения плунжеров в отверстиях ротора,
проходящих над каждым из обоих серповидных отверстий распределительного диска,
и полость насоса, бывшая до поворота траверсы всасывающей, становится
нагнетающей, и наоборот.
2
Предварительный расчет гидромашины
Рабочий объем аксиально-поршневой гидромашины с наклонным
диском определяется по выражению:
, (1)
где: z-число поршней;
-диаметр поршня, (см);
D-диаметр окружности расположения
осей цилиндров в блоке, (см);
-угол наклона диска,
(град).
Число
поршней z выбирается в зависимости от
рабочего объема.
Принимаем
z=7.
Диаметр D окружности расположения осей
цилиндров:
, (2)
Подставив
соотношение (2) в формулу (1), получаем зависимость для определения диаметра
блока цилиндров для аксиально-поршневой гидромашины с наклонным диском:
, (3)
Выбираю
угол
, а поправочный
коэффициент 0,39.
Таким
образом,
;
Согласно
стандартному ряду ГОСТ 6636-69 ([3],стр.9) принимаю
мм.
(4)
Согласно
стандартному ряду ГОСТ 6636-69 ([6],стр.37) принимаю
мм.
Наружный
диаметр:
, (5);
;
Согласно
стандартному ряду ГОСТ 6636-69 ([6],стр.37) принимаю
мм.
Толщина
стенки между цилиндрами в блоке:
, (6);
;
Согласно
стандартному ряду ГОСТ 6636-69 ([6],стр.37) принимаю
мм.
Толщина
стенки между цилиндром и наружной поверхностью:
, (7);
.
Согласно
стандартному ряду ГОСТ 6636-69 ([6],стр.37) принимаю
мм.
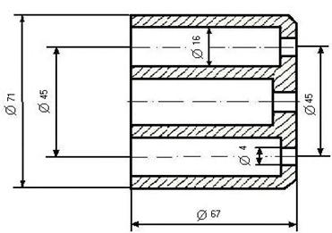
Рис.3.
Геометрические размеры блока цилиндров.
Длина
блока цилиндров:
.
Согласно
стандартному ряду ГОСТ 6636-69 ([6],стр.37) принимаю
мм.
Расход
рабочей жидкости через гидромашину:
, (9),
где
-
объемная постоянная гидромашины, (
);
n – номинальная частота вращения
гидромашины, (
).
Таким
образом,
.
Размеры
питающего окна блока цилиндров, через которые подводится и отводится рабочая
жидкость, выбирают исходя из максимальной допустимой скорости потока в питающем
окне. Так как по условию задания необходимо спроектировать обратимую
гидромашину, допустимую скорость ограничивают 6
.
Площадь
питающего окна равна:
, (10);

Диаметр
питающего окна определяется по формуле:
; (11)

;
Таким образом, в соответствии со
стандартным рядом ГОСТ 6636-69 ([6],стр.37) выбираю диаметр питающего окна
мм.
Диаметр окружности расположения центров питающих отверстий
совпадает
с диаметром D окружности расположения осей цилиндров,
=45 мм.
Рис.4.
Эскиз блока цилиндров.
Торцовый
распределитель аксиально-поршневых гидромашин выполняется, как правило, в виде
плоского или сферического диска с двумя полукольцевыми окнами, соединяющими
блок с полостями нагнетания и всасывания. В течение одной половины оборота вала
каждый цилиндр соединен со всасывающим окном, в течение другой- с
нагнетательным. Ширина перемычки между окнами обычно составляет
.
В
соответствии со стандартным рядом ГОСТ 6636-69:
мм.
Для
обеспечения безударного перехода жидкости из полости всасывания в полость
нагнетания и наоборот, в узле распределения выполняю дроссельные канавки, длина
которых определяется углом
, ширина –1…2 мм. Принимаю
.
Для расчета размеров торцового распределителя необходимо решить систему
уравнений:
; (12)
где
- коэффициент, показывающий
соотношение отжимающей и прижимающей силы;
- размеры торцевого
распределителя.
Для
определения размера
воспользуемся
дополнительными условиями:
(13)
(14)
(15)
Таким
образом,
;
.
Подставив
выражения (13-14) в первое уравнение системы (12) и преобразовав, получаем
биквадратное уравнение относительно
.
(16)
Отсюда,
, а
.
Согласно
стандартному ряду ГОСТ 6636-69 ([6],стр.37) принимаю значения
мм.,
мм.,
мм.
и
мм.
Выполняем
проверку коэффициента
(17)
Рис.5.
Торцовый распределитель.
После
завершения расчета торцового распределителя приступим к проектированию
гидростатического подпятника. В аксиально-поршневых гидромашинах используются
как плоские гидростатические подпятники, так и гидравлическая разгрузка
сферических опор.
Рис.6.
Поршни двух видов с гидростатической разгрузкой:
1-шатунного
типа; 2-плунжерного типа.
В поршнях
шатунного типа для подвода жидкости выполнены радиальные сверления в поршне и
осевое сверление в штоке, в некоторых конструкциях осевое сверление выполняют и
в штоке, и в поршне. Специфика устройства сферических опор с гидростатической
разгрузкой требует учета величины дросселирования потока при подаче жидкости
через радиальное сверление, располагаемое на каком-то удалении от донышка
поршня. Во всем остальном, расчеты плоской и сферической гидростатической опоры
не отличаются между собой.
В данном
курсовом проекте будет рассчитываться плоский гидростатический поршневой
подпятник (рис.6). Такая конструкция поршней применяется в гидромашинах
бескорданного типа. Опорную поверхность подпятника можно выполнить двояко: с
опорными поясками за пределами уплотнительных поясков, или без опорных поясков.
Размеры опорных поясков назначаются из конструктивных соображений, преследуя в
основном цель обеспечения устойчивости против опрокидывания. Это условие
записывается в виде выражения:
(18)
где
коэффициент превышения сил,
прижимающих поршень над отжимающими силами. Из практики проектирования,
отношение
. Из соотношения
(18) получаем выражение для определения
:
(19)
Зададимся
и
Согласно
стандартному ряду ГОСТ 6636-69 ([6],стр.37) принимаю значения
мм.,
мм.
Рис.7.
Эскиз плоского поршневого подпятника.
Для
определения размеров вала гидромашины, рассчитаем мощность на валу гидромашины:
(20)
где Pmax – максимальное давление, (Па);
N- мощность, (Вт).
.
Определим
крутящий момент на валу гидромашины:
(21)
где T- крутящий момент, (
)
Минимальный
необходимый выходной диаметр вала находим из условия прочности вала на
кручение:
(22)
где
=20…35 МПа – допускаемое
напряжение на кручение.
После
этого, исходя из приведенного аналога, проектируем вал.

Диаметр
вала под подшипники:
.
Между подшипниками вал имеет диаметр
.
Диаметр
вала в месте установки ротора конструктивно принимаем
.
Выбираем
шарикоподшипники радиальные однорядные 46306 ([2],стр.313).
Для
корпуса в качестве материала выбираем серый чугун, так как он дешевле, по
сравнению с другими материалами и имеет хорошие литейные свойства.
Минимальная
толщина стенки корпуса рассчитываем по формуле Ляме:
(23),
где d – внутренний диаметр корпуса,
(мм);
[
]
– допускаемое максимальное напряжение для материала корпуса, (МПа).
[σ]=25 МПа – допускаемое
максимальное напряжение для серого чугуна.
P=1МПа.
.
Согласно
стандартному ряду ГОСТ 6636-69 ([6],стр.37) принимаю значение
мм.
Минимальная
необходимая толщина плоской корпусной крышки определяется по формуле:
(24)
В соответствии со стандартным рядом ГОСТ
6636-69 ([6],стр.37) принимаю значение
мм.
3
Проверочный расчёт
Расчет долговечности
подшипников качения
Приводной вал может быть представлен следующей расчетной
схемой.
Рис. 8. Схема для расчета вала
На схеме приняты следующие обозначения: h = 40 мм - расстояние между подшипниками А (№ 46306) и В (№ 46306);
с = 100 мм - расстояние от подшипника В до силы Р
Согласно [2, с.172]:
где
площадь
поршня.
Определяем реакции А, В :
;
;
;
;
Определение долговечности подшипников
В соответствии с [3, с.393] расчетный срок службы подшипника
качения в часах определяется по формуле:
,
где С - каталожная динамическая грузоподъемность данного
типоразмера подшипника, Н;
α - степенной показатель: α = 3 - для
шарикоподшипников, α = 3,3 - для роликоподшипников;
- эквивалентная нагрузка подшипника в Н, для определения которой
принимаем:Y= 0 и X = 1, в соответствии с [3, с.395 - 397];
V= 1, т.к. относительно вектора нагрузки вращается
внутреннее кольцо;
Fa = 0, т.к. осевая нагрузка отсутствует;
kб = 1 - коэффициент безопасности для спокойной без
толчков нагрузки; kТ = 1, для температуры до 100°С;
Fr - радиальная
нагрузка, определенная выше (А, В,).
Таким образом, и для шарикоподшипника и для роликоподшипников
гидромашины:
Р = Fr .
После подстановки значений n ,α и Fr получим
выражение для определения срока службы:
шарикоподшипника
;
роликоподшипников
Подставляя в формулу для шарикоподшипника №46306
табличное значение С и рассчитанное выше значение Рr, определим
его срок службы:
.
Аналогично для роликоподшипника № 42306 :
.
Определение усилия пружин,
обеспечивающего прижим подпятников к опорному диску
Расчеты производятся по методике изложенной в [2,
с.165-172 ].
Усилие пружин определяется по выражению:
Pпр=∑Pi max +∑P1 +∑P2+∑P3+∑P4 ,
где ∑Pi
max - максимальная суммарная сила инерции, действующая на
плунжера, соединенные с подпятниками;
∑P1 - усилие пружины подпятников, предотвращающее поворот их
под действием центробежной силы инерции;
∑P2 - усилие, необходимое для перемещения плунжеров при
ходе всасывания, создающееся вследствие разряжения под плунжерами;
∑P3 - усилие, создающее уплотнение между торцом подпятника и
плоскостью опорного диска;
∑P4 - усилие, обусловленное трением плунжеров.
Определение силы Pi
max
Расчет производится по [2, ф. 2.162]:
∑Pi max =ξ·ω2·mn·r·tgb
где ξ= 3,17 - коэффициент для z= 7 шт. плунжеров;
ξ= 2,88 - коэффициент для z= 9 шт. плунжеров; ξ= 2,53 - коэффициент для z= 11 шт. плунжеров;
-частота
вращения ротора;
mn » 0,1…0,4
кг. масса плунжера с подпятником, принято mn=0,32 кг;
r = 0,048 м - радиус расположения плунжеров в роторе.
Подставляя значения входящих величин в формулу, получим:
∑Pi max=2,88·1572·0,32·0,0225·tg18º=166
Н.
Определение усилия Р1
Расчет производится по [2, ф. 2.165]:
,
где m0 » 0,02…0,07 кг - масса подпятника, принято m0 = 0,054 кг;
e = 10,82 мм расстояние от центра тяжести подпятника до
центра сферической головки плунжера.
Подставляя
значения в формулу, получим выражения силы ∑P1:
Определение усилия ∑P2
Расчет производится по [2, ф. 2.166]:
,
где Pв = 0,05 МПа - допустимое разрежение в поршневой камере;
F = 2,0 × 10-4 м2 - площадь сечения плунжера.
Подставляя
значения в формулу, получим:
Н.
Определение усилия ∑P3
Расчет производится по [2, ф. 2.168]:
,
где F1 - площадь кольцевых поверхностей подпятника за вычетом
площади дренажных пазов;
σв = 0,1 МПа - удельное давление на
поверхностях скольжения, необходимое для создания достаточного уплотнения, препятствующего
засасыванию воздуха через стык между ними.
После вычислений:
Н.
Определение усилия ∑P4
Расчет производится по [2, ф. 2.170]:
,
где μ=0,05 – коэффициент трения;
.
Таким образом, минимальное усилие пружин по [2, ф. 2.159]
равно:
Pпр=∑Pi max +∑P1 +∑P2+∑P3+∑P4 .
Подставив ранее полученные значения, получим:
К этой величине следует прибавить согласно [2, ф. 2.171]
запас:
.
Подставив ранее полученные значения, получим:
Тогда полное требуемое усилие пружин составит :
Расчет
вала ротора
Определение запаса прочности
Вал
ротора нагружен крутящим моментом и поперечными силами вызывающими изгиб.
Рис.9.
Расчет вала ротора
Крутящий
момент, передаваемый валом:
где N – мощность, потребляемая
насосом.
Изгибающий
момент в опасном сечении:
Расчетное
сечение вала представляет собой шлицевое сечение с наружным диаметром Дн=2,2
см и внутренним Дв=1,8 см, для которого определяем моменты
сопротивления.
Осевой:
Полярный:
Определяем напряжения в расчетном сечении от изгиба:
Определяем напряжения в расчетном сечении от кручения:
Механические свойства стали 40X (закалка с
нагревом ТВЧ) из которой изготавливается вал, имеет следующие справочные
данные:
предел прочности σв = 850 МПа;
предел текучести σт = 700 МПа;
предел выносливости при изгибе σ-1 = 560
МПа.
Тогда согласно [5, с.107] определяем коэффициент запаса
прочности по нормальным напряжениям:
.
По касательным напряжениям расчет производится по [4,
с.219]:
,
где τТ - предел текучести вала по
касательным напряжениям. Согласно энергетической теории прочности, наиболее
верной для пластичных материалов:
.
Запас прочности по статической несущей способности для
пластичного материала определяется [5, с.219]:
,
где nДОП = 2,2 - допускаемая величина запаса прочности.
Определение прогиба вала ротора
Определение прогиба вала ротора в сечение k (см.
рис.8):
.
Это выражение справедливо в предположении постоянной по
длине жесткости вала. Условно будем считать, что вал имеет жесткость, равную
жесткости прослабленного шлицевого участка с наружным диаметром ДН,
внутренним ДВ, шириной зуба b и числом
зубьев Z:
Из предварительного расчета шлицевое соединение имеет
следующие параметры:
Момент сечения определим по формуле:
.
Тогда
прогиб вала:
Проверка шлиц вала на смятие
Допускаемые напряжения смятия на боковых поверхностях
шлицевых зубьев для данных условий эксплуатации, согласно [3, с.383] :
.
Фактическое напряжение смятия, согласно [3, с.382]:
,
где Мк - крутящий момент, передаваемый валом;
ψ = 0,75 коэффициент, учитывающий неравномерное
распределение нагрузки между зубьями;
z - число зубъев;
l - длина зубъев;
h - высота поверхности контакта зубъев, измеренная по
радиусу;
rср - расстояние от оси вала до поверхности контакта.
Высота поверхности контакта зубъев определяется по [3,
с.383]:
,
где f-= 0,04 – коэффициент трения на
поверхности шлицов.
Расстояние от оси вала до поверхности контакта находится
по выражению:
.
Тогда фактическое напряжение смятия:
.
Прочность
зубьев на смятие обеспечена, т.к. полученное значение находится в пределах допустимого.
Проверка плотности загруженности стыков
Расчеты производятся по [2, с.165-166].
Для того, чтобы максимально уменьшить утечки по
подвижным стыкам насоса (трущиеся пары "подпятник - опорный диск" и
"распределительный диск - ротор"), необходимо обеспечить уплотняющее
усилие при минимальном давлении рабочей жидкости с тем условием, чтобы при
максимальном удельные давления в стыке не превышали допускаемых.
Расчет стыка "подпятник - опорный диск"
Начальное уплотнение по торцу подпятника в рассматриваемой
конструкции создается пружинами ротора. При этом должно быть обеспечено
удельное давление в стыке при ходе всасывания σв = 0,1 МПа.
С другой стороны, при ходе нагнетания удельное давление
на торце подпятника не должны превышать допускаемого значения [2, с.166].:
[σn]=2,5 – 3,0
МПа.
Силы, действующие на стык "подпятник - опорный
диск", показаны на рис. 4.
Рис.10.
Схема сил действующих на стык
"подпятник - опорный диск"
Определение удельных давлений на торце подпятника.
а) усилие гидравлического прижима рассчитывается по [2,
ф. 2.136]:
;
б) усилие пружины, приходящееся на один плунжер рассчитывается
по [2, ф. 2.136]:
;
в)усилие отжима Р0, возникающего на
поверхности выточки d1 подпятника и в зазоре опорного поиска.
Усилие Р0
определяется из условия, что в выточке подпятника действует рабочее
давление Р, что обычно и соблюдается, так как утечка жидкости пренебрежимо
мала. Можно принять, что в торцовом зазоре между кольцевой поверхностью подпятника,
ограниченной диаметрами d1 и d2, разность между которыми мала и поверхностью опорного
диска, давление распределяется по линейному закону.
Тогда усилие конуса высотой Р и диаметрами d1 и d2 :
.
г) удельное давление σn на
торцовой поверхности подпятника при ходе нагнетания плунжеров (без учета силы
трения между поршнем и ротором) рассчитывается по [2, ф. 2.139]:
,
где F1 =3,2 см2 - площадь
кольцевых поверхностей опоры;
Рi - сила инерции подпятника с плунжером:
.
После подстановки получим:
.
Условие выполняется.
Расчет стыка ''распределительный диск - ротор"
Расчет производятся по [2, с.184-190].
Для того, чтобы обеспечить надежный прижим ротора к
распределительному диску, должен быть произведен соответствующий расчет,
исключающий возможность раскрытия стыка.
На рис.5 представлена эпюра распределения давления по
торцу ротора (заштрихованная трапецеидальная площадка). При этом кольцевая площадка,
лежащая на торце ротора против окна "а", в распределительном диске
нагружается полным давлением рабочей жидкости, а площадки с размерами
и
нагружаются давлением, распределенным по
треугольнику.
В результате на торец ротора действуют силы P1, P2, Р3 величины которых определяются
следующими уравнениями:
.
.
.

Рис.11.
Эпюра распределения давления по торцу
ротора
Сила РH,
прижимающая ротор к торцу распределительного диска, определяется уравнением:
.
Для того чтобы предотвратить раскрытие стыка между ротором и
распределительным диском, должно быть обеспечено превышение ΔР сил,
прижимающих ротор, над силами, отжимающими ротор от распределительного диска.
Это условие записывается так [2, ф. 2.224]:
.
На основании опытных данных в общем случае должно быть
соблюдено [2, ф. 2.226]:
,
тогда
.
Кроме соблюдения условия, выражаемого [2, ф. 2.226], должно быть также обеспечено превышение момента
ΔМ, создаваемого силой РH
относительно оси ротора, над суммой моментов, создаваемых силами P1, P2, P3
относительно той же оси. Это условие записывается следующим образом:
,
где ХH, X1, X2, X3 - точки
приложения сил.
Указанные силы рассматриваются как равнодействующие
равномерно распределительной нагрузки, действующей по полукольцам со средними
радиусами соответственно X1′, X2′, X3′ которые определяются по следующим уравнениям:
[2, ф. 2.215];
[2, ф. 2.216];
[2, ф. 2.217];
Точки приложения указанных сил определяются как центры
тяжести полуколец со средними радиусами X1′, X2′, X3′ :
[2, ф. 2.218];
[2, ф. 2.219];
.
Таким образом:
Полученное значение находится в пределах допустимых
значений согласно условию [2,
ф. 2.226] :
.
Удельное давление на плоскости контакта ротора и
распределительного диска определяется по [2, ф. 2.227]:
,
где ∑f -
суммарная площадь уплотняющих поясков и разгрузочных площадок.
[σ] = 1,4 МПа - допустимое удельное
давление [2, с189].
.
Определение удельных давлений в сопряжениях деталей
Удельные давления на поверхностях контакта деталей не
должны превышать допускаемых значений для каждого конкретного материала.
Расчет удельных давлений в сопряжении "шаровая
втулка –
прижимной диск"
Расчет проведем для нейтрального положения диска.
При расчете будем исходить из условия, что удельные
давления на поверхности контакта изменяются по синусоидальному закону (рис.
12).
Рис.12. Схема к расчету удельных давлений в сопряжении "шаровая втулка – прижимной
диск":
где q0 - максимальное значение удельных давлений; φ - угол,
отсчитываемый вдоль образующей шарового пояса от вертикальной плоскости,
проходящей через центр сферы.
Определим удельные давления на поверхности контакта
шаровой втулки и прижимного диска.
Равнодействующая Q
горизонтальных составляющих сил давления на поверхности контакта уравновешивает
усилие центральной пружины:
РПР = Q.
Для определения горизонтальной равнодействующей сил
давления Q вырежем в точке 1 (см. рис.12) элементарную площадку
шарового пояса, отстоящую от оси пояса на расстоянии ρ (pиc.12, в), со
сторонами Rdφ и ρdψ. Элементарная площадь равна:
где R - радиус сферической поверхности;
ψ - угол, отсчитываемый в направлении, перпендикулярном
образующей шарового пояса (рис.6, б).
Радиус положения элементарной площадки:
,
тогда
,
Давление, действующее на площадку dS:
.
Горизонтальная проекция этой элементарной силы:
.
Горизонтальная равнодействующая сил давления:
,
где θ – угол контакта (см. рис.6).
Решив данный интеграл, находим:
.
Приравнивая это положение усилию пружины РПР,
определяем:
,
где h - толщина нажимного диска в пределах зоны контакта;
-
синус угла контакта.
Тогда:
.
После вычислений получим:
.
Определим удельное давление q при φ
= θ
.
С изменением угла наклона прижимного диска удельные давление
на поверхности его контакта с шаровой втулкой изменяются обратно
пропорционально косинусу этого угла:
.
После вычислений получим:
.
Расчет удельных давлений в сопряжении ''плунжер-ротор''
В расчете будем исходить из условия, что плунжер
консольно нагружен вертикальной составляющей РВ реакции N нажимного диска (рис.13 а),
её горизонтальная составляющая Рr уравновешена силой давления рабочей жидкости:
;
.
Примем также, что удельное давление на поверхности контакта в
каждом поперечном сечении плунжера изменяются по синусоидальному закону (рис.
13, б):
,
где ψ - угол, отсчитываемый от диаметральной
плоскости плунжера, перпендикулярной вектору силы РB, вдоль
направляющей поверхности контакта.
Рис.13 Схема к расчету
удельных давлений в сопряжении ''плунжер-ротор''
Будем считать, что вдоль образующей поверхности контакта
равнодействующая qP удельных давлений в поперечной сечении изменяется линейно.
Для определения положения нейтрального сечения II запишем
уравнение моментов относительно точки 0:
,
где qp1, qp3 - равнодействующие удельных давлений в поперечных
сечениях 1 и 3 соответственно;
a - вылет плунжера;
l - длина части плунжера в роторе;
l1 - расстояние от торца ротора до нейтрального сечения
плунжера 2.

,
решая уравнение моментов относительно l1, получим,:
.
Легко убедиться, что
, а значит
.
Равнодействующая удельных давлений в любом сечении:
.
Для определения равнодействующей в опасном сечении I составим
уравнение проекций сил на направление силы Рв с учетом qp3 .
.
Подставляя выражения Pв и l1, получим:
,
откуда
Наибольший вылет плунжера amax = 38,3 мм.
Длина плунжера в роторе l
= 71,7 мм.
Тогда,
подставляя значения величин, получим:
.
Определение скорости потока
Расчет производится по [2, с.184-185].
Скорость потока рабочей жидкости в узких сечениях не
должны превышать допустимых значений, установленных экспериментальным путем.
Рис.14. Схема к определению скорости потока
Расчет скорости потока жидкости в окнах ротора
Скорость рабочей жидкости в распределительных окнах ротора
определяется согласно [2, ф.2.208]:
,
где
-
наибольшая скорость плунжера в роторе, определяемая по [2, ф.2.142]:
;
fp – площадь окна ротора, определяемая по [2, ф.2.208] :
Тогда,
подставив числовые значения:
.
Согласно
опытным данным должно соблюдаться:
- условие выполняется;
- условие выполняется.
Расчет скорости потока жидкости в
окне распределительного диска
Скорость
потока жидкости в окне распределительного диска определяется по формуле:
,
где f0 – площадь окна распределительного
диска:
,
где Xa = 159° – угол, на котором
расположено окно распределительного диска.
Тогда,
подставив числовые данные:
.
.
Согласно
опытным данным должно соблюдаться:
- условие выполняется
Заключение
В
курсовом проекте была спроектирована аксиально-поршневая гидромашина со
следующими техническими характеристиками: объёмная постоянная V0=20
, максимальное рабочее давление Рмах=20 МПа, номинальная частота вращения вала n=1500 об/мин.,
объёмный КПД
,
гидромеханический КПД
,
аналог разрабатываемой гидромашины - Г13….
В
курсовом проекте был произведен предварительный и уточнённый расчёт
гидромашины, рассчитана мощность гидромашины N=10кВт и
определён крутящий момент на её валу, который составил 64 Н·м. Также в курсовом
проекте была проверена шпонка на срез и смятие на выходном конце вала и
произведена проверка плотности и загруженности стыков, определена скорость
потока жидкости в окне распределительного диска и в окнах ротора, которые
составили, соответственно, 2,2 м/с и 2 м/c.
Литература
1. Андрианов
Д.Н. Проектирование аксиально-поршневой гидромашины: Практическое руководство
по выполнению курсового проекта по курсу ''Объемные гидравлические и
пневматические машины'' для студентов специальности Т.05.11.00. –Гомель:
Учреждение образования ''Гомельский государственный технический университет
имени П.О. Сухого'', 2002. – 21 с.
2. Башта Т.М., Зайченко И.З., Ермаков В.В., Хаймович
Е.М. Объемные гидравлические приводы, -М.: Машиностроение, 1969. - 512 с.
3.
Справочник металлиста. Том I. Под редакцией С.А. Чернавокого и В.Ф. Рещикова -М.: Металлургия, 1976г.
- 357 с.
4.
Справочник
расчетно-теоретический. Книга 1. Под редакцией А.А. Уманского, -М.:
Машиностроение, 1962. - 476 с.
5. Биргер И.А., Шорр Б.Ф., Шнейдерович P.M. Расчет на прочность деталей машин. Справочное
пособие. Под редакцией И.А. Биргера, -М.: Высшая школа, 1966. –342 с.
6. Цветные металлы и сплавы. Том 1. Под редакцией
И.В. Кудрявцева, -М., Металлургия, 1967. –494 с.
7. Куклин
М.Г., Куклина Г.С. Детали машин. – М.: Высшая школа, 1973.-382с.
8. Анурьев В.И.
Справочник конструктора – машиностроителя: В 3-х
т. - 5-еизд.,
перераб. и доп., - М.: Машиностроение,1980. –Т.1 – 728с.