Характеристики станка Mitsubishi Серия FA 20V

  • Вид работы:
    Отчет по практике
  • Предмет:
    Технология машиностроения
  • Язык:
    Русский
    ,
    Формат файла:
    MS Word
    1,01 Mb
  • Опубликовано:
    2009-12-30
Вы можете узнать стоимость помощи в написании студенческой работы.
Помощь в написании работы, которую точно примут!

Характеристики станка Mitsubishi Серия FA 20V

Федеральное агентство по образованию

Государственное образовательное учреждение

Высшего профессионального образования

Тульский государственный университет

Кафедра "Физико-химических процессов и технологий"









Отчёт по практике

Характеристики станка MITSUBISHI Серия FA 20V











Тула 2009

1. Характеристики станка MITSUBISHI Серия FA 20V (соответствует EN12957)


1.1 Компоновка


Рис.1.1 Внешний вид станка

Head Головка

Control unit Устройство управления

Dielectric fluid reservoir  Резервуар диэлектрика

Machine unit         Станочный модуль

Lower wire guide  Нижняя направляющая проволоки

Upper wire guide  Верхняя направляющая проволоки

Automatic wire feeder     Устройство автоматической подачи проволоки

Wire feed panel     Панель подачи проволоки

2. Характеристики

2.1 Станочный модуль


Характеристики

FA20M

Максимальные размеры заготовки [мм]

(Длина х Ширина х Высота)

1050 х 800 х 295

Максимальный вес заготовки [кг]

800

Размер стола [мм]

780 х 630

Величина перемещения каждой оси (Х х Y x Z) [мм]

500 х 350 х 300

Скорость быстрого перемещения стола [мм/мин]

1300

Диаметр проволоки [мм]

0.1 до 0.3 (0.1, 0.15: опция)

Максимальная скорость подачи проволоки [м/мин]

15

Натяжение проволоки [Н]

2 до 25

Устройство наклонной обработки

Установлено как стандартное

 Величина перемещения оси (U x V) [мм]

±32 х ±32

 Максимальный угол конуса [°]

15 (с толщиной пластины 100 мм)

Наружные размеры [мм]

(Длина х Ширина х Высота)

2013 х 2632 х 2100

Вес [кг]

3500

Резервуар диэлектрика

Спецификации

FA20M

Рабочий объем бака [Л]

740

Скорость потока фильтрации [Л/мин]

60

Величина фильтрации [мкм]

3

Фильтрующий элемент

Бумажный фильтр х2

Водоочиститель (ионообменный полимер) [Л]

10

Диапазон сопротивления диэлектрика [Wсм]

 (0.5 до 100) х 104

Наружные размеры [мм]

(Длина х Ширина х Высота)

880 х 2070 х 1500

Вес (сухой) [кг]

400


2.2 Характеристики секции подачи питания, секции модуля управления

2.2.1 Секция подачи питания (WFA)

Контур подачи питания

Импульсный транзисторный контур (Стабилизирующий контур, встроенный AVR)

50 [А]

Выбор условий обработки

Режим подачи питания PS

Переключение напряжения обработки

Установки обработки

· HS, HP, MP

· LA, LB, LC

Время выключения (LA, LB, LC)

Стабилизирующий контур А

Стабилизирующий контур B

Стабилизирующий контур C

Стабилизирующий контур E

FM (LA, LC)

Контроль максимальной мощности (РМ контроль)


7 переключений (HS, HP, MP, HL, LA, LB, LC)

16 переключений

15 переключений

3 переключения

16 переключений

8 переключений

16 переключений

3 переключения

5 переключений

2 переключения (ВКЛ - ВЫКЛ) Опция

3 переключения (Возможность изменения М кодами или на экране)

(1) Тип проволоки: Æ0,2 мм до Æ0,3 мм латунь

Высокоскоростная проволока (Mega-D, Hi-Eagle, SZR, SZS)

(2) Материал заготовки: сталь, медь, карбид, алюминий, титан

(3) РМ контроль применяется только на условиях первого прохода

(4) РМ контроль не может быть использован с режимом экономии проволоки.

Наружные размеры [мм]

(Длина х Ширина х Высота)

550 х 600 х 1650

Вес [кг]

240


2.2.2 Секция модуля управления

Спецификации модуля управления

Пункт

Спецификации

Метод ввода NC программы

Клавиатура, встроенный 3,5" FDD (1.44МВ, 720 КВ, RS-232C

Устройство указания

Слайд-панель

Дисплей

10.4" цветной LCD

Метод управления

СNC замкнутый контур

Управляемые оси

Максимум 4 одновременно управляемые оси

Установочные единицы

X, Y, Z, U, V... ... ... ... ...1мкм/0.1мкм

Минимальная единица привода

0.1 мкм

Максимальное значения команды (мм/дюймы)

±99999.999 мм/±9999.9999 дюймы

Формат команды позиционирования

Комбинированное использование абсолютного значения/значения приращения

Функции интерполяции

Линейная, круговая и спиральная

Увеличение шкалы

0.000001 до 99.999999 (G код), 0.001 до 9999.999 (S код)

Адаптивный контроль подачи

Автоматический выбор адаптивной подачи в зависимости от условий между электродом и заготовкой

Повторное отслеживание траектории

Повторный проход по траектории в обратном направлении во время возникновения короткого замыкания

Офсет проволоки

±99999.999/99999.9999мм

Количество офсетов: 1 до 900 (Вычисление точки пересечения)

Автоматический второй проход

Интерактивный экранный метод

Запись условий обработки

Количество команд программы

1 до 99999999

Подпрограмма (Уровень вложенности)

30

Ручная подача

Высокая скорость, средняя скорость, низкая скорость, ультра-низкая скорость, толчковая подача

Ручной ввод позиционирования

Ввод на экране и определения позиционирования.

Номера последовательности

1 до 99999

Проверка фигуры

Высокоскоростная проверка масштабированием графического стола

MDI (Ручной ввод данных)

10МВ (эквивалентно около 25400 м NC ленты)

Основное меню экрана

5 типов

Интерфейс RS-232C

Контроль кода (включает DC1 и DC3) / контроль линии

Функция обслуживания

Управление расходными материалами (дисплей времени)

Наружные размеры [мм]

(Длина х Ширина х Высота)

546 х 180 х 346

Вес [кг]

20

Стандартные функции модуля управления

Отображение года, месяца, даты

Контрольный блок

Положение программы №

Функция перекрытия окон

Отдельный блок


Функция замены строки символов

Удержание подачи

Интерфейс RS-232C

Функция времени запуска обработки

Пробный прогон

Графический (прорисовываемое отображение)

Функция управления

Автоматический возврат

Графический (проверка программы)

Команда управления

Макрос пользователя

Графический (автоматическая прорисовка обрабатываемой формы

Радиус угла

Автоматическое позиционирование (центр отверстия, кромка)

Офсет

Угловая фаска

Автоматический возврат нулевой точки

Чтение значения координаты

Команда линейного угла

Возврат отверстия начала обработки

Чтение времени

Геометрическая функция

Операционная память 10МБт

(эквивалент 25400м NC ленты)

Независимая шкала осей XY

Функция плавающей точки

Редактирование программы

Поворот оси

30-секундный останов по короткому замыканию

Вращение координаты

Текущее обслуживание

Одновременное выравнивание проволоки по 2-м осям

Поворот модели

Автоматическое вычисление определения конуса

Компенсация уклона заготовки

Перемещение оси

Функция микросоединения

E. S. P. E. R

Зеркальное отображение

Различные таймеры

Вычисление периферии

Расширенная функция A. W. F

Блокировка станка

Компенсация люфта

Действие переменных данных

Удаление блока

Компенсация ошибки шага

Дисплей сообщений

3.5" FDD (720KB, 1.44KB)

Программное ограничение (внешнее/внутренне запрещение)

Приблизительный подсчет времени обработки

Ввод/вывод данных MS-DOS

Подсчет величины потребления проволоки

Удаление основы протока

HG контроль

Автоматическое восстановление неисправности питания

Система координат заготовки (106 пунктов)

Повторное позиционирование



2.3 Устройство автоматической подачи проволоки АТ


Пункт

Спецификации

Диаметр применяемой проволоки

Æ0,2мм по Æ0,3мм

Применяемая проволока

Проволока, назначенная Mitsubishi

Беспарафинный тип для латунных проволок

Применяемые проволочные бобины

P-3R, P-5R, P-10

DIN100, DIN125, DIN160

Максимальная толщина пластины для автоматической подачи проволоки

300мм

(60мм для погруженного соединения и вставки в точке поломки)

Автоматичес-кая подача проволоки с включенным начальным отверстием

Диаметр отверстия

Æ0,5мм или более (Æ0,1мм или более для проволоки Æ0,3)

Шерохова-тость поверхности отверстия

В пределах 50 мкмRmax

Отклонение положения центра

В пределах ±0,1мм

Функция вставки точного отверстия

Предоставляется как стандартная

Функция погруженного соединения

Предоставляется как стандартная. Отметьте, что эта функция применима для начальных отверстий диаметром от Æ0,5 до Æ4мм

Вставка проволоки в точке поломки проволоки

Предоставляется как стандартная (только когда верхние/нижние сопла диэлектрика могут быть расположены напротив заготовки.

Стандартные аксессуары (установлены на главном устройстве)

Верхняя/нижняя алмазная волока для проволоки Æ0,2

Струйное сопло (Æ1.5)

Разное

Выполнение вставки проволочного электрода может прекращаться, когда сопло диэлектрика не может контактировать напротив заготовки из-за формы задней стороны, или в зависимости от формы.

Если диаметр начального отверстия Æ1,5 мм или менее, и при использовании функции вставки проволоки в точке поломки, должно использоваться струйное сопло малого диаметра (Æ0,1мм) или менее.


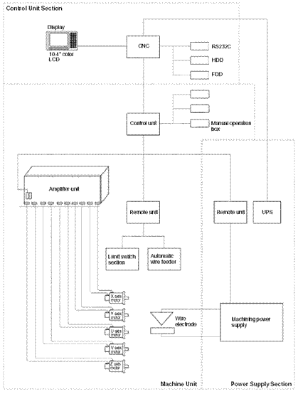
3. Система управления


3.1 Структура


Устройство управления W21FA-2 является отдельным устройством управления электроразрядного станка, предназначенным для проволочных электроразрядных станков.

Устройство СNC, которое составляет его ядро, оборудовано высокоскоростным 64-х битным процессором, для реализации высокоскоростной высокоточной обработки.

3.2 Конфигурация системы


Рис. 3.1 Конфигурация системы

4. Система станка

4.1 Названия и функции каждого из компонентов


Названия и функции различных компонентов основной структуры станка описаны ниже.

(Смотрите Рис.1.1 в разделе 1. Компоновка)

Головка: Зазор между направляющими, соответствующий толщине заготовки может быть получен перемещением верхней части направляющей проволоки в вертикальном направлении.

Панель подачи проволоки: Подается проволока, встроен механизм натяжения проволоки.

Соединительная панель: Здесь подключаются опциональное освещение и датчик перпендикулярности.

Устройство автоматической

подачи проволоки: Проволочный электрод автоматически вставляется

Стол: Заготовка закрепляется на этом столе.

Устройство сбора проводов: Эта секция собирает использованный проволочный электрод.

Коробка сбора проводов: Использованная проволока собирается в этой коробке

Верхняя направляющая провода: Эта секция направляет проволоку и подает электрические разряды.

Нижняя направляющая провода: То же что и выше.

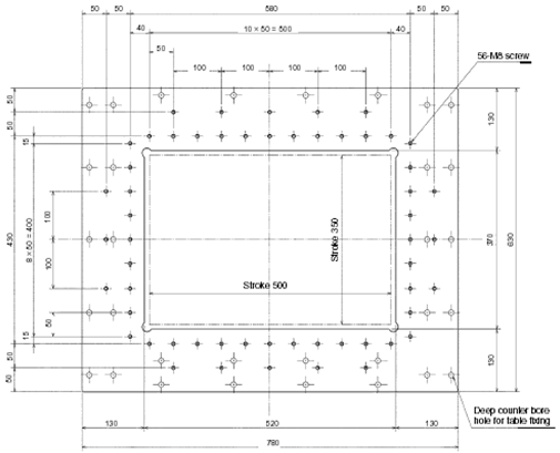
4.2 Установка заготовки


Заготовка устанавливается как показано на Рис.4.1

При установке заготовки как показано на рисунке, убедитесь, что верхняя направляющая проволоки не касается зажима во время обработки.

Не касайтесь проволоки и направляющей проволоки во время обработки.

Конфигурация стола заготовки показана на Рис.5.2.

Рис.4.1 Закрепление заготовки

Upper wire guide Верхняя направляющая проволоки

Upper nozzle Верхнее сопло

Work piece Заготовка

Lower nozzle Нижнее сопло

Fluid level sensor Датчик уровня жидкости

Table  Стол

ЗАМЕЧАНИЕ:

Зазор между заготовкой и нижним соплом и верхним соплом должен быть в пределах примерно 0.25 -3.0 мм. Если у заготовки плохая плоскость, или если сверху и снизу заготовки имеются выступы, измените метод установки заготовки, таким образом, чтобы сопла и заготовка не пересекались.

Настройте расстояние А так, чтобы верхнее сопло и зажим заготовки не пересекались.

Датчик уровня жидкости установлен на задней стороне устройства автоматической подачи проволоки.

Обеспечьте, чтобы переключатель и зажим не пересекались. (расстояние В должно быть 10мм или более)

 

Рис.4.2 Размеры стола FA20

ЗАМЕЧАНИЕ

При использовании FA20, не кладите объекты, такие как заготовки, на листы метала слева и справа от стола (заштрихованная секция на следующей схеме).

 

Рис.4.3 Чертеж области вокруг стола FA20

6. Расчёт режимов обработки


Обработка детали ось производиться с помощью 2 проходов: чернового и чистового. Рассчитаем режимы для чистого режима. Чистовая обработка производиться на более низких частотах, чем черновая. Для расчета используем следующие данные:

Шероховатость (задана на чертеже): Rz = 2,5 мкм;

Напряжение на чистовом режиме: U = 80 В;

Материал детали: Сталь 25Х17Н2;

Материал проволоки: Латунь Л63;

Диаметр проволочного ЭИ: ;

Частота следования импульсов: 44 кГц;

Скважность: 3

Рассчитаем параметры:

Ёмкость конденсатора:


Сила тока:


Скорость перемотки проволоки:


Длительность импульса:



7. Эскиз на электроэрозионную операцию


Похожие работы на - Характеристики станка Mitsubishi Серия FA 20V

 

Не нашли материал для своей работы?
Поможем написать уникальную работу
Без плагиата!
Без нейросетей!