Проект привода цепного конвейера

  • Вид работы:
    Курсовая работа (т)
  • Предмет:
    Технология машиностроения
  • Язык:
    Русский
    ,
    Формат файла:
    MS Word
    4,31 Mb
  • Опубликовано:
    2010-12-09
Вы можете узнать стоимость помощи в написании студенческой работы.
Помощь в написании работы, которую точно примут!

Проект привода цепного конвейера

Содержание

Вступление

1. Кинетический и силовой расчёт привода

1.1 Кинематическая схема привода

1.2 Выбор двигателя

1.3 Общее передаточное число и разбиение его по степеням

1.4 Силовые и кинематические параметры привода

2. Расчет клиноременной передачи

2.1 Исходные данные для расчёта передачи

2.2 Механический расчет

3. Расчет цилиндрической 3.1. Кинематическая схема передачи и исходные данные для расчета

3.2 Выбор материала и определение допустимых напряжений

3.3 Определение геометрических параметров

3.4 Проверочный расчет передачи

3.5 Определение сил в зацеплении (см. рис. 3.3)

4. Расчёт цилиндрической косозубой передачи || ступени

4.1 Кинематическая схема передачи и исходные данные для расчета

4.2 Выбор материала и определение допустимых напряжений

4.3 Определение геометрических параметров

4.4 Проверочный расчет передачи

4.5 Определение сил в зацеплении (см. рис. 3.3)

5. Условный расчет валов

5.1 Определение диаметров входного вала редуктора

6. Определение конструктивных размеров зубчатых колес

6.1 Размеры зубчатых колес цилиндрической передачи I ступени

6.2 Размеры зубчатых колес цилиндрической передачи II ступени

6.3 Определяем размеры цилиндрического колеса (рис.6.1.)

6.4 Определение диаметров выходного вала

7. Конструктивные размеры корпуса и крышки редуктора

7.1 Определение конструктивных размеров корпуса и крышки редуктора, согласно табл. 4.2, 4.3, [1]

7.2 Размеры необходимые для черчения

8. Выбор шпонок и их проверочный расчет

9. Расчёт промежуточного вала редуктора на статическую способность и долговечность

9.1 Расчет вала на несущую способность

9.2 Расчет вала на прочность

10. Расчет подшипников качения

10.1 Определение реакции в опорах

10.2 Определение коэффициентов

10.3 Определение эквивалентной нагрузки

10.4 Определяем долговечность подшипников

10.5 Выбор муфты

10.6 Проверочный расчёт зубчатой муфты

11. Выбор и проверочный расчёт опор скольжения

Литература

Вступление

Развитие народного хозяйства Украины тесно связано с развитием машиностроения, так как материальная мощность современной страны базируется на технике – машинах, механизмах, аппаратах, приводах, которые выполняют разную полезную работу. В наше время нет ни одной области народного хозяйства, где бы не применялись машины и механизмы в широких масштабах. Благодаря этому осуществляется комплексная механизация в промышленности, в сельском хозяйстве, в строительстве, на транспорте. Это заставляет уделять большое внимание при проектировании и усовершенствования конструкций современных машин и механизмов. Машины и механизмы, которые проектируются, должны иметь высокие эксплуатационные показатели, не большое количество энергии и эксплуатационных материалов, должны быть экономичными, как в процессе производства, так и в процессе эксплуатации, удобными и безопасными в обслуживании.

1. Кинетический и силовой расчёт привода

Согласно техническому заданию на курсовой проект по дисциплине «Детали машин» необходимо спроектировать привод цепного конвейера, который состоит из двигателя, клиноременной передачи, двухступенчатого цилиндрического ора и муфты. При проектировании деталей привода использованы современные критерии оценки их работоспособности – прочность, жесткость и износостойкость. Кинематический и силовой расчеты привода

1.1 Кинематическая схема привода

 

Рис 1.1

Таблица 1.1

Исходные данные для кинематического и силового расчета привода

Название параметров

Обозначения в формулах

Единица измерения

Величина параметра

Окружная сила

F1

Н

28000

Скорость

м/с

0,5

Число зубьев

z

-

9

Шаг цепи

р

мм

160

Режим работы

P

-

С

Число смен

T

-

1


1.2 Выбор двигателя

Работа над курсовым проектом по дисциплине «Детали машин» подготавливает студентов к решению более сложных задач общетехнического характера в своей дальнейшей практической деятельности.

Определяем необходимое усилие на валу 1 двигателя, кВт,

 

 кВт

 

где N5 – усилие на приводном валу 5, кВт, ηобщ - общий кпд.

 кВт,

ηобщ = η12η23 η34 η45 = 0,95· 0,95· 0,96· 0,98 = 0,85,

где η12= ηкр=0,95 – кпд между 1 и 2 валами; η23= ηцп· η кр =0,96·0,99=0,95 – кпд между 2 и 3 валами; η34цп· ηоп =0,97·0,99=0,96 – кпд между 3 и 4 валами; η45= ηм· ηоп ηоп=1·0,99·0,99=0,98 – кпд между 4 и 5 валами.

Средние значения кпд принимаем из [1], табл. 1.1

ηкр =0,95-кпд клиноременной передачи;

ηцп =0,97-кпд цилиндрической передачи;

ηоп=0,99-кпд в опорах;

ηм=1,0-кпд муфты.

Принято, что валы привода установлены на подшипниках качения.

Определяем угловую скорость и частоту вращения вала электродвигателя.

 рад/с

где  рад/с – угловая скорость на 5 валу

где

 - общее передаточное отношение привода.

,

Средние значения ориентировочных передаточных чисел принимаем из [2], табл. 5.5, с 74.

 - ориентировочное передаточное число клиноременной передачи;  - ориентировочное передаточное число цилиндрической передачи I ступени;  - ориентировочное передаточное число цилиндрической передачи II ступени;  - ориентировочное передаточное число муфты.

Определяем частоту вращения вала 1

 об/мин.

Выбираем электродвигатель исходя из условий  .

Из [3], табл.2.4, с.23, выбираем электродвигатель 4АН180М6,  кВт  об/мин и для дальнейших расчётов выполняем переход от  к

 рад/с

 

1.3 Общее передаточное число и разбиение его по степеням

Определяем действительное общее передаточное число привода при выбранном двигателе.


Проводим разбиение  по степеням.

Принимаем ; ; .

Тогда

1.4 Силовые и кинематические параметры привода

Определяем мощности на валах:

 кВт ; кВт ;

кВт ; кВт;

кВт (див.розд.1.2.1.)

Определяем угловые скорости валов:

 рад/с;

 рад/с;

 рад/с;

 рад/с;

 рад/с.

Определяем крутящие моменты на валах:

Нм; Нм;

Нм; Нм;

Нм.

Результаты расчётов сводятся в табл.1.2 и являются исходными данными для всех следующих расчётов.

Таблица 1.2

Результаты кинетического и силового расчётов привода

Параметры

№ вала

N, кВт

ω рад/с


М,Нм

1

16,5

102,05

161,7

2,98

47,68

2

15,7

34,24

458,5

4

3

14,9

8,56

1740

4

4

14,3

2,14

6682

1

5

13

2,4

6542



2. Расчет клиноременной передачи

Схема клиноременной передачи

Рис 2.1

2.1 Исходные данные для расчёта передачи

Таблица 2.1

Исходные данные для расчета передачи

Параметры

№шва

N, кВт

w, рад/с

М, Нм

 ид12

и добщ

1

16,5

102,05

161,7

2,98

47,68

2

15,7

34,24

458,5


2.2 Механический расчет

Сечение ремня по табл. 5.6 ([8], с. 69)

Рис 2.2

При заданном значении М принимаем сечение ремня (В).

Диаметр меньшего шкива

Минимально допустимый диаметр шкива dmin= 63 мм.

Для повышения коэффициента полезного действия передачи, увеличения долговечности и тяговой способности ремней, уменьшение числа ремней принимаем d1=100 мм.

Диаметр большего шкива: d2=d1·iкл =100∙2,98=298

Скорость ремня: ;

где v – скорость ремня,  м/с.

Частота вращения ведомого вала ;

где n2 – частота вращения ведомого вала, об/мин.; - коэффициент скольжения; принимаем  = 0,01

об/мин.

Ориентировочное межосевое расстояние

Принимаем a0=400 мм.

Длина ремня

;

где L - длина ремня, мм;

;

;

 мм.

В соответствии с ГОСТ 1284.1-80 принимаем L = 1600 мм.

Окончательное межосевое расстояние

;

 мм.

Принимаем a = 500 мм.

Наименьшее расстояние, необходимое для надевания ремня

 

aнаим = a- 0,01L;

aнаим = 500-0,01·1600 = 484 мм.

Наибольшее расстояние, необходимое для компенсации вытяжки ремня

aнаиб = a- 0,025L;

aнаиб = 500-0,025·1600 = 460 мм.

Коэффициент динамичности и режима работы

ср = 1,1

Угол обхвата

;

где  - угол обхвата, º;

По табл. 5.7 ( 5, с.71) величина окружного усилия р0 , передаваемого одним ремнем р0=124 Н (на один ремень)

Допускаемое окружное усилие на один ремень

[р]=р0×Сα×СL×CР,

где Сα=1-0,003(180-α1)=1- 0,003(180-156,24)=0,93

Коэффициент, учитывающий длину ремня

, так как расчетная длина L=1600=L0

Коэффициент режима работы Ср=1, следовательно

[р]=824∙0,93=757

где р0 =814 ( по табл. 5,7 [8], с. 71 )

Окружное усилие

 Н

Расчетное число ремней ; .

Принимаем Z = 4

 

3. Расчет цилиндрической 3.1. Кинематическая схема передачи и исходные данные для расчета

Кинематическая схема передачи

 

Рис.3.1.

Исходные данные для расчета передачи Таблица 3.1.

параметры

№ вала

N, кВт

ω, рад/с

M,Нм

ид34

идобщ

2

15,7

34,24

458,5

4,0

47,68

3

14,9

8,56

1740


3.2 Выбор материала и определение допустимых напряжений

Материалы зубчатых колес

Для уравновешивания долговечности шестерни и колеса, уменьшения вероятности заедания и лучшей приработки твердость зубьев шестерни необходимо выбирать большей, чем твердость колеса: НВш = НВк + (20…50).

Так как к габаритам передачи не накладываются жесткие условия, то для изготовления зубчатых колес, из [6], принимаем материалы для шестерни – сталь 50, для колеса – сталь 40. Параметры материалов зубчатых колес сводим в таблицу 3.2.

Таблица 3.2

Материалы зубчатых колес.



Материал

Термообработка

Предел теку-чести, σт, МПа

Твердость, НВ

Шестерня

Сталь 50

нормализация

380

180

Колесо

Сталь 40

нормализация

340

154


Допустимые контактные напряжения:

,

где σНlim – граница контактной долговечности поверхности зубцов, соответствует базовому числу циклов изменения напряжений NН0 = 30 НВ2,4, (при твердости поверхности зубьев ≤350 НВ, σНlim b = 2 НВ +70):

 

σНlim bш = 2·180+70=430МПа, σНlim bк =2· 154 + 70=378 МПа;

NН0ш = 30·1802,4 = 7,76·106, NН0к = 30 · 1542,4 = 5,3·106;

 

SН – коэффициент безопасности (запас прочности), учитывается от термообработки и характера нагрузок, принимаем SН = 1,1, [6];

КНL – Коэффициент долговечности, который учитывает время службы и режим нагрузок передачи, определяется из соотношения NН0 и дополнения (NΣ·КНЕ); КНЕ – коэффициент интенсивности режима нагрузки, из [6], табл. 1.1, для легкого режима принимаем КНЕ = 0,06.

NΣ - суммарное число циклов нагрузки зубьев за все время службы передачи:

,

где Lh –время службы передачи, для односменной работы Lh=1·104 час.

, .

NΣш · КНЕ =1,96 · 108 · 0,06 = 1,17 · 106 < NН0ш = 7,76 · 106,

NΣк · КНЕ = 0,49 · 108 · 0,06 =2,9 · 106 < NН0ш = 5,3 ·106.

Так как в обоих случаях NН0 >NΣ · КНЕ , то коэффициент долговечности

,

.

Мпа; МПа

Допустимые напряжения на изгиб.

,

где σFlimb – граница выносливости поверхности зубцов при изгибе, соответствует базовому числу циклов смены напряжений N= 4 · 106, [6], (при твердости поверхности зубьев ≤350 НВ, σFlimb = НВ + 260):

σFlimbш = 180 +260 = 440МПа, σFlimbк = 154 + 260 = 414 МПа;

 

SFкоэффициент безопасности (запас прочности), из [2], принимаем SF = 1,8, KFL – коэффициент долговечности, который учитывает время службы и режим нагрузок передачи, определяется соотношением NF0 и (NΣ KFЕ); KFЕ – коэффициент интенсивности режима нагрузки, из [6], табл. 1.1, для легкого режима принимаем KFЕ = 0,02.

 

NΣm· KFЕ = 1,05·108·0,02 = 2,1·106 < NF0 = 4·106,

NΣк · KFЕ = 0,26·108·0,02 = 0,52·106 < NF0 = 4·106.

Так как в обоих случаях NF0 > NΣ KFЕ, то согласно [ ], коэффициент долговечности:

; .

 

KFC - коэффициент реверсивности нагрузки, для нереверсивной передачи КНL – 1,0, [6].

;

Допустимые максимальные контактные напряжения.

[σН]max = 2,8 σТ.

[σН]max ш = 2,8·380 = 1064 МПа, [σН]max к =2,8·340=952 МПа.

 

Допустимые максимальные напряжения на изгиб.

[σF]max = 0,8 σТ.

[σF]maxш = 0,8·380 = 304 МПа., [σF]maxк = 0,8·340 = 272 МПа.

3.3 Определение геометрических параметров

Межосевое расстояние.

Из условий контактной усталости поверхности зубьев:

,

где Ка – коэффициент межосевого расстояния, из [6], для косозубых передач Ка = 4300 Па1/3; - коэффициент ширины зубчатого венца по межосевому расстоянию, из [6], для косозубой передачи принимаем

 

ψba = 0,45; и = ид34 = 4;

 

КНβ – коэффициент распределения нагрузки по ширине венца зубчатого колеса, из [6], табл.1.2, в зависимости от ψbd = 0,5 ψba (и+1) = 0,5 · 0,45 · (4+1) = 1,13, для косозубой передачи КНβ = 1,046; [σН] – наименьшее из двух значений (шестерни и колеса) допустимых контактных напряжений, МПа.

,

Определение модуля.

Первоначальное значение расчетного модуля зубьев определяется


где β – угол наклона зубьев, для косозубой передачи β = 20°;

Zш – число зубьев шестерни, согласно [6] принимаем Zш = 20;

Zш – число зубьев колеса, Zк = Zши = 20·4 = 80 .

Согласно [6], табл.1.3, принимаем mп = 5 мм.

- ширина: bк = ψdа аw = 0,45 · 266 = 119,7 мм. Принимаем bк = 120 мм.

3.4 Проверочный расчет передачи

Расчет на контактную усталость.


где ZН – коэффициент, учитывающий форму спряженных поверхностей зубьев: для косозубых - ZН = 1,75, [6];

ZМ = 275 · 103 Па1/2 - коэффициент учитывающий механические свойства материалов зубчатых колес, [6];

ZЕ - коэффициент суммарной длинны контактный линий спряженных зубьев: для косозубых - ZЕ = 0,8, [6];

КН = КНа КН β КНV – коэффициент нагрузки : КНа – коэффициент распределения нагрузки между зубьями из [6], табл. 1.4, КН а = 1,15; КН β = 1,046, см. разд.3.3.1, КНV – коэффициент динамической нагрузки, из [6], табл. 1.4, при

; КHV=1.02; КН=1,15∙1,046∙1,02=1,22.


Так как σН = 363 находится в пределах (0,9…1,0)[σН], то расчет можем считать завершенным: .

Расчет на контактную прочность.

,

где Кп=2,2, [σН]max – наименьшее из двух значений (шестерни и колеса) допустимых максимальных контактных напряжений, МПа

 


Условие выполняется.

расчет на усталость при изгибе.

Определяем отдельно для шестерни и колеса по формуле

,

где - YF - коэффициент формы зуба, из [6], табл. 1.7, по эквивалентному числу зубьев ZV , для косозубой передачи: , Y=3,92; ,Y= 3,6.

YE - коэффициент перекрытия зубьев, согласно [6] принимаем YE =1,0.

Yβ - коэффициент наклона зубьев, согласно [6] для косозубых передач принимается:

КF = К ККFV- коэффициент нагрузки: К– коэффициент распределения нагрузки между зубьями для косозубых - К=1,0, [6], табл. 1,8; К–коэффициент

Геометрические размеры цилиндрической зубчатой передачи

Рис 3.2.

Геометрический расчет передачи (см. рис. 3.2).

Межосевое расстояние


Принимаем аw = 266 мм.

Уточняем угол наклона зубьев


Размеры шестерни:

- делительный диаметр:

- диаметр вершин зубьев: dаш = dш + 2mn = 106,4+ 2 · 5= 116,4мм;

- диаметр впадин: dƒш = dш – 2,5mn = 106,4 – 2,5 · 5= 93,9мм;

- ширина: bш = bк + 5 мм = 120 + 5 = 125 мм.

Размеры колеса:

-делительный диаметр

- диаметр вершин зубьев: dак = dк + 2mn = 425,5 +2 · 5 = 696 мм;

- диаметр впадин: dƒк = dк – 2,5mn = 425,5 – 2,5 · 5 = 413 мм;

распределения нагрузки по ширине венца зубчатого колеса, из [6], табл. 1.9, в зависимости от ψba = 1, 13 (см. разд. 3.3.1.) для косозубой передачи К= 1,09; КFV- коэффициент динамической нагрузки, выбирается из табл. 1.10, [6], при КFV = 1,05; КF = 1,00 · 1,09 · 1,05 = 1,14.


Условия выполняются.

Расчет на прочность при изгибе.

Выполняется отдельно для шестерни и колеса при действии кратковременных максимальных нагрузок (в период пуска двигателя).

 

σF maх = σF Кп ≤ [σF]max΄

где Кп – коэффициент перегрузки, из [2], табл. 1, с. 249 - Кп =2,2.

σF maх ш= 114 · 2,2 = 250,8 МПа ≤ [σF]max ш = 304 МПа,

σF maх к = 92 · 2,2 = 202,4 МПа ≤ [σF]max к = 272 МПа.

Условия выполняются.

3.5 Определение сил в зацеплении (см. рис. 3.3)

- окружная сила

- радиальная сила

- осевая сила Fаш = Fак = Ftк tgβ = 8651· tg 19,95 0 = 3139 Н

Схема сил в зацеплении

158

Рис.3.3.

4. Расчёт цилиндрической косозубой передачи || ступени

 

4.1 Кинематическая схема передачи и исходные данные для расчета

Кинематическая схема передачи

184

Рис.4.1.

Исходные данные.

Таблица 4.1.

Исходные данные для расчета передачи

 параметры

№ вала

N, кВт

ω, рад/с

M,Нм

ид34

идобщ

 3

14,9

8,56

1740

4

47,68

 4

14,3

2,14

6682


4.2 Выбор материала и определение допустимых напряжений

Материалы зубчатых колес.

Для уравновешивания долговечности шестерни и колеса, уменьшения вероятности заедания и лучшей приработки твердость зубьев шестерни необходимо выбирать большей, чем твердость колеса: НВш = НВк + (20…50).

Так как к габаритам передачи не накладываются жесткие условия, то для изготовления зубчатых колес, из [6], принимаем материалы для шестерни – сталь 50, для колеса – сталь 40. Параметры материалов зубчатых колес сводим в таблицу 3.2.

Таблица 4.2.

Материалы зубчатых колес



Материал

Термообработка

Предел теку-чести, σт, МПа

Твердость, НВ

Шестерня

Сталь 50

нормализация

380

180

Колесо

Сталь 40

нормализация

340

154


Допустимые контактные напряжения:

,

где σНlim – граница контактной долговечности поверхности зубцов, соответствует базовому числу циклов изменения напряжений NН0 = 30 НВ2,4, (при твердости поверхности зубьев ≤350 НВ, σНlim b = 2 НВ +70):

 

σНlim bш = 2·180+70=430МПа, σНlim bк =2· 154 + 70=378 МПа;

NН0ш = 30·1802,4 = 7,76·106, NН0к = 30 · 1542,4 = 5,3·106;

 

KFL – коэффициент долговечности, который учитывает время службы и режим нагрузок передачи, определяется соотношением NF0 и (NΣ KFЕ); KFЕ – коэффициент интенсивности режима нагрузки, из [6], табл. 1.1, для легкого режима принимаем KFЕ = 0,02.

 

NΣm· KFЕ = 1,05·108·0,02 = 2,1·106 < NF0 = 4·106,

NΣк · KFЕ = 0,26·108·0,02 = 0,52·106 < NF0 = 4·106.

Так как в обоих случаях NF0 > NΣ KFЕ, то согласно [ ], коэффициент долговечности:

;

.

 

KFC - коэффициент реверсивности нагрузки, для нереверсивной передачи КНL – 1,0, [6].

;

Допустимые максимальные контактные напряжения.

[σН]max = 2,8 σТ.

[σН]max ш = 2,8·380 = 1064 МПа, [σН]max к =2,8·340=952 МПа.

Допустимые максимальные напряжения на изгиб.

[σF]max = 0,8 σТ.

[σF]maxш = 0,8·380 = 304 МПа., [σF]maxк = 0,8·340 = 272 МПа.

4.3 Определение геометрических параметров

Межосевое расстояние.

Из условий контактной усталости поверхности зубьев:

,

где Ка – коэффициент межосевого расстояния, из [6], для косозубых передач Ка = 4300 Па1/3; - коэффициент ширины зубчатого венца по межосевому расстоянию, из [6], для косозубой передачи принимаем

 

ψba = 0,45; и = ид34 = 4;

 

КНβ – коэффициент распределения нагрузки по ширине венца зубчатого колеса, из [6], табл.1.2, в зависимости от ψbd = 0,5 ψba (и+1) = 0,5 · 0,45 · (4+1) = 1,13, для косозубой передачи КНβ = 1,046; [σН] – наименьшее из двух значений (шестерни и колеса) допустимых контактных напряжений, МПа.

,

Определение модуля.

Первоначальное значение расчетного модуля зубьев определяется


SН – коэффициент безопасности (запас прочности ), зависит от термообработки и характера нагрузок, принимаем SН = 1,1, [6];

КНL – Коэффициент долговечности, который учитывает время службы и режим нагрузок передачи, определяется из соотношения NН0 и дополнения (NΣ·КНЕ); КНЕ – коэффициент интенсивности режима нагрузки, из [6], табл. 1.1, для легкого режима принимаем КНЕ = 0,06.

NΣ - суммарное число циклов нагрузки зубьев за все время службы передачи:

,

где Lh –время службы передачи, для односменной работы Lh=1·10 4 час.

, .

NΣш · КНЕ =0,49 · 108 · 0,06 = 2,94 · 106 < NН0ш = 7,76 · 106,

NΣк · КНЕ = 0,12 · 108 · 0,06 = 0,72 · 106 < NН0ш = 5,3 ·106.

Так как в обоих случаях NН0 >NΣ · КНЕ , то коэффициент долговечности

,

.

Мпа; МПа

 Допустимые напряжения на изгиб.

,

где σFlimb – граница выносливости поверхности зубцов при изгибе, соответствует базовому числу циклов смены напряжений N= 4 · 106, [6], (при твердости поверхности зубьев ≤350 НВ, σFlimb = НВ + 260):

σFlimbш = 180 +260 = 440МПа, σFlimbк = 154 + 260 = 414 МПа;

SFкоэффициент безопасности (запас прочности), из [2], принимаем SF = 1,8,

где β – угол наклона зубьев, для косозубой передачи β = 20°;

Zш – число зубьев шестерни, согласно [6] принимаем Zш = 20;

Zш – число зубьев колеса, Zк = Zши = 20·4 = 80 .

Согласно [6], табл.1.3, принимаем mп = 8,0 мм.

- ширина: bк = ψdа аw = 0,45 · 425 = 191,25 мм. Принимаем bк = 220 мм.

4.4 Проверочный расчет передачи

Расчет на контактную усталость. распределения нагрузки по ширине венца зубчатого колеса, из [6], табл. 1.9, в зависимости от ψba = 1, 13 (см. разд. 3.3.1.) для косозубой передачи К= 1,09; КFV- коэффициент динамической нагрузки, выбирается из табл. 1.10, [6], при ν = 1,77 м/с, КFV = 1,05; КF = 1,00 · 1,09 · 1,05 = 1,14.


Условия выполняются.

Расчет на прочность при изгибе.

Выполняется отдельно для шестерни и колеса при действии кратковременных максимальных нагрузок (в период пуска двигателя).

 

σF maх = σF Кп ≤ [σF]max΄

где Кп – коэффициент перегрузки, из [2], табл. 1, с. 249 - Кп =2,0.

 

σF maх ш= 103 · 2,2 = 226,6 МПа ≤ [σF]max ш = 304 МПа,

σF maх к = 84 · 2,2 = 184,8 МПа ≤ [σF]max к = 272 МПа.

Условия выполняются.

4.5 Определение сил в зацеплении (см. рис. 3.3)

- окружная сила

- радиальная сила

- осевая сила Fаш = Fак = Ftк tgβ = 20470 · tg20° = 7450 Н

Схема сил в зацеплении

158

Рис.4.3.


где ZН – коэффициент, учитывающий форму спряженных поверхностей зубьев: для косозубых - ZН = 1,75, [6];

ZМ = 275 · 103 Па1/2 - коэффициент учитывающий механические свойства материалов зубчатых колес, [6];

ZЕ - коэффициент суммарной длинны контактный линий спряженных зубьев: для косозубых - ZЕ = 0,8, [6];

КН = КНа КН β КНV – коэффициент нагрузки : КНа – коэффициент распределения нагрузки между зубьями из [6], табл. 1.4, КН а = 1,15; КН β = 1,046, см. разд.3.3.1, КНV – коэффициент динамической нагрузки, из [6], табл. 1.4, при

; КHV=1.02; КН=1,15∙1,046∙1,02=1,22.


Так как σН = 363 находится в пределах (0,9…1,0)[σН], то расчет можем считать завершенным: .

Расчет на контактную прочность.

,

где Кп=2,2, [σН]max – наименьшее из двух значений (шестерни и колеса) допустимых максимальных контактных напряжений, МПа

 


Условие выполняется.

 расчет на усталость при изгибе.

Определяем отдельно для шестерни и колеса по формуле

 

,

где - YF - коэффициент формы зуба, из [6], табл. 1.7, по эквивалентному числу зубьев ZV , для косозубой передачи: , Y=3,92; ,Y= 3,6.

YE - коэффициент перекрытия зубьев, согласно [6] принимаем YE =1,0.

Yβ - коэффициент наклона зубьев, согласно [6] для косозубых передач принимается:

КF = К ККFV- коэффициент нагрузки: К– коэффициент распределения нагрузки между зубьями для косозубых - К=1,0, [6], табл. 1,8; К–коэффициент

Геометрические размеры цилиндрической зубчатой передачи

 

Рис 4.2.

Геометрический расчет передачи (см. рис. 4.2).

Межосевое расстояние


Принимаем аw = 425 мм.

Уточняем угол наклона зубьев


Размеры шестерни:

- делительный диаметр:

- диаметр вершин зубьев: dаш = dш + 2mn = 170 + 2 · 8,0 = 186мм;

- диаметр впадин: dƒш = dш – 2,5mn = 170 – 2,5 · 8,0 = 150 мм;

- ширина: bш bк + 5 мм = 220 + 5 = 225 мм.

Размеры колеса:

-делительный диаметр

- диаметр вершин зубьев: dак = dк + 2mn = 680 +2 · 8,0 = 696 мм;

- диаметр впадин: dƒк = dк – 2,5mn = 680 – 2,5 · 8,0 = 660 мм;

5. Условный расчет валов

 

При отсутствии данных о моменте изгиба, диаметр вала определяют приблизительно по известному крутящему моменту из условий прочности на кручение по заниженным значениям допустимых напряжений:


где i- номер вала, j- номер участка ступенчатого вала, Мi - крутящий момент на i-тому валу, принимаем из табл. 1.2. Согласно рекомендаций [4], с.53, принимаем пониженные допускаемые напряжения кручения, для валов редукторов общего назначения, [τк] = 25 МПа.

 

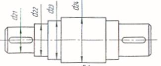
5.1 Определение диаметров входного вала редуктора

Схема входного вала редуктора

159

Рис. 5.1.

 


Согласно [7], с. 6 полученный диаметр округляем до ближнего большего значения из стандартного ряда Ra40 ГОСТ6636-69.

Принимаем d21 = 50 мм.

Диаметры других участков вала выбираем из стандартного ряда Ra40 ГОСТ6636-69.

Принимаем d22 =60 мм d23 = 60 мм d24 = 65 мм. .2. Определение диаметров промежуточного вала редуктора

Схема промежуточного вала редуктора

160,1

Рис. 5.1.

 



6. Определение конструктивных размеров зубчатых колес

6.1 Размеры зубчатых колес цилиндрической передачи I ступени

Устанавливаем способ изготовления шестерни и вала – вместе или отдельно. Согласно рекомендаций [1], если - отдельно,  – вместе, где d- диаметр впадин шестерни (d= 200,7 мм, см. разд.3.3.3.11), dвш - диаметр участка вала под шестерню (dвш = 60 мм, см. разд. 5.2)

-выполняем вместе.

6.2 Размеры зубчатых колес цилиндрической передачи II ступени

Устанавливаем способ изготовления шестерни и вала – вместе или отдельно. Согласно рекомендаций [1], если - отдельно,  – вместе где d– диаметр впадин шестерни,, d=150 мм, dвш - диаметр участка вала под шестерню dвш = d24 =75 мм.

- выполняется отдельно.

6.3 Определяем размеры цилиндрического колеса (рис.6.1.)

Схема колеса зубчатого

162,2

Рис.6.1.

Согласно [7], с.6 полученный диаметр округляем до ближайшего большего значения из стандартного ряда Ra40 ГОСТ6636-69.

Принимаем d31 = 70 мм.

Диаметры других участков вала выбираем из стандартного ряда Ra40 ГОСТ6636-69.

Принимаем d32 = 75 мм; d33 = 80 мм.

 

6.4 Определение диаметров выходного вала

Схема выходного вала редуктора

160,2

Рис. 5.2.


Согласно [7], с.6 полученный диаметр округляем до ближайшего большего значения из стандартного ряда Ra40 ГОСТ6636-69.

Принимаем d41 = 110 мм.

Диаметры других участков вала выбираем из стандартного ряда Ra40 ГОСТ6636-69.

Принимаем d42 = 115 мм; d43 = 120 мм; d44 = 130 мм. d45 = 140 мм.

Общая ширина зубчатого венца в=220 мм.

Диаметр ступицы dс = 1,6dв = 1,6 · 130 = 208 мм

Длина ступицы lс = (1,2…1,5) dв = 1,5 · 130 = 195 мм. Принимаем 220 мм

Толщина обода δ0 = (2,5…4)mn 4 · 8 = 32 мм

Толщина диска с = (0,2…0,4)b = 0,4·220 = 88 мм Принимаем 90 мм.

Диаметр отверстий в диске dотв = 0,25[dоб –(dв + 2 δст)],

где  , dоб = dfш - 2 δ0 = 660 – 2 · 39 = 582 мм.

dотв = 0,25[582 –(130 + 2 ·39)] = 93,5 мм, принимаем dотв = 95 мм.

Диаметр центров отверстий в диске

d0 = 0,5(dв 2 δс + dоб) = 0,5 · (130 +2 · 38 + 582) = 395 мм.

7. Конструктивные размеры корпуса и крышки редуктора

 

7.1 Определение конструктивных размеров корпуса и крышки редуктора, согласно табл. 4.2, 4.3, [1]

Толщина стенки корпуса редуктора:

δ = 0,025aw + 3 = 0,025 · 425 + 3 = 13,6 ≈ 14 мм,

где aw– межосевое расстояние зубчатых передач редуктора.

Толщина стенки крышки редуктора:

δ1 = 0,02аw + 3 = 0,02 · 425 + 3 = 11,5 ≈ 12 мм.

Толщина верхнего фланца корпуса:

S = (1,5…1,75) · δ =(1,5…1,75) ∙ 14 = 21…24,5 = 24 мм.

Толщина нижнего фланца корпуса:

S2 = 2,35 δ = 2,35 ∙ 14 = 32,9 ≈ 33мм.

Толщина фланца крышки редуктора:

S1 = (1,5…1,75) · δ1 =(1,5…1,75) · 12 = 18…21 = 20 мм.

Диаметр фундаментных болтов:

d1 = 0,072aw + 12 = 0,072 · 425 + 12 = 37,9 ≈ 39 мм,

Диаметр болтов, стягивающих корпус и крышку возле бобышек:

d2 = (0,7…0,75) · d1 =(0,7…0,75) ∙ 39 = 27,3…29,25 = 27 мм.

Диаметр болтов, стягивающих фланцы корпуса и крышки редуктора:

d3 = (0,5…0,6) · d1 =(0,5…0,6) ∙ 24 = 12…14,4 = 14мм.

Ширина опорной поверхности нижнего фланца корпуса:

m = k + 1,5 δ = 60 + 1,5 ∙ 14 = 81мм.

Толщина ребер корпуса:

с1 = (0,8…1) · δ = (0,8…1) ·∙ 14 = 10,4…14 = 12мм.

7.2 Размеры необходимые для черчения

Минимальный зазор между колесом и корпусом:

b = 1,2 δ = 1,2 · 14 = 16,8 мм.

Расстояние от внутренней стенки до торца вращающейся детали:

е1 = (1,0…1,2) δ = (1,0…1,2) ∙ 14 = 14…16,8 = 12мм.

Расстояние от внутренней стенки до радиального торца вращающейся детали:

е2 = (0,5…1,0) ∙ δ = (0,5…1,0) ∙ 14 = 7,0…14 = 10мм.

Расстояние от окружности выступов наибольшего колеса до дна редуктора: b0 = (0,5…10)m = (5…10) ∙ 8 = 50…80мм.

Размеры отверстий под подшипники редуктора принимаем в зависимости от размеров подшипника, согласно рекомендаций с. 141, [1].

Оставшиеся необходимые геометрические размеры корпуса и крышки принимаем конструктивно на основе рекомендаций с. 140-8. Эскизная компоновка редуктора

8. Выбор шпонок и их проверочный расчет

Выполняем проверочный расчет шпонки на смятие. Результаты расчетов сводим в таблицу 8.2.

Таблица 8.2.

Результаты проверочных расчетов шпонок на смятие

Номер вала и название шпонки

[σсм]

2– шпонка под ведомый шкив клиноременной передачи

140

2- шпонка под шестерню цилиндрической передачи I ступени

3 – шпонка под колесо цилиндрической передачи I ступени

3 – шпонка под шестерню цилиндрической передачи II ступени

4 – шпонка под колесо цилиндрической передачи II ступени

4 – шпонка под зубчатую муфту

 

Схема шпоночного соединения

169

Рис. 8.1.

 

Для передачи крутящего момента зубчатые колеса, шкивы, муфты соединяются с валами при помощи призматических шпонок.

Геометрические размеры поперечных сечений (b, h) призматических шпонок выбираем в зависимости от диаметров валов. Длины шпонок принимаем на 5…10 мм меньше длин ступиц в ряду стандартных значений, приведенных в табл.5.19, [1].

В качестве материала шпонок используем – Сталь 45, нормализованную [σзм] = 140 МПа и [τзр] = 100 МПа, с. 191, [1].

Размеры сечений шпонок и пазов по ГОСТ 10748-79 выбираем из табл. 5.19, [1] и сводим в таблицу 8.1

Таблица 81

Параметры и размеры шпоночных соединений

Номер вала и название шпонки

Диам. вала d1 мм

Мкр,

Нм

Размеры шпонки, мм

b

l

t1

t2

2– шпонка под ведомый шкив клиноременной передачи

50

458,5

18

11

80

7

4,4

2- шпонка под шестерню цилиндрической передачи I ступени

55

458,5

20

12

90

7,5

4,9

3 – шпонка под колесо цилиндрической передачи I ступени

75

1740

22

14

100

9

5,4

3 – шпонка под шестерню цилиндрической передачи II ступени

75

1740

22

14

100

9

5,4

4 – шпонка под колесо цилиндрической передачи II ступени

130

6542

36

20

180

12

8,4

4 – шпонка под зубчатую муфту

110

6542

32

18

150

11

7,4


При эскизном проектировании размещаем детали передач (шестерни и зубчатые колеса), валы, подшипники, складываем эскизную компоновку цилиндрического редуктора.

По определенном размерам зубчатых передач, валов, корпуса и крышки(см. разд. 3, 4, 5, 6,) строим на миллиметровой бумаге формата А1 эскиз коническо – цилиндрического редуктора, в масштабе 1:4. При оформлении эскиза редуктора вычерчиваем конструкцию колес и его корпуса. Подшипники и болтовые соединения вычерчиваем упрощенно.

Подшипники качения выбираются из [3], ориентируясь на диаметры валов и характер нагрузки в передачах. В нашем случае выбираем подшипники №7312, №7314, №7224. В зависимости от их номера, который вмещает сведения о типе и серии подшипника выписываем габаритные размеры, которые используем в эскизной компоновке.

Размеры крышек под подшипники редуктора принимаем в зависимости от размеров подшипников, согласно рекомендаций с. 14.1, [1].

Другие необходимые геометрические размеры принимаем конструктивно, на основе рекомендаций с. 140-143, [1].

Для расчетов промежуточного вала из компоновочного чертежа прямым измерением определяем расстояние между точками приложения сил: l1 = 108мм, l2 = 184мм и l3 = 156мм.

После согласования параметров редуктора, проверочных расчетов валов и подшипников качения, чертим общий вид 143, [1].проверочный расчет шпонок на срез. Результаты вносим в таблицу 8.3.

Таблица 8.3

Результаты проверочного расчета шпонок на срез

Номер вала и название шпонки

[σсм]

2– шпонка под ведомый шкив клиноременной передачи

80

2- шпонка под шестерню цилиндрической передачи I ступени

3 – шпонка под колесо цилиндрической передачи I ступени

3 – шпонка под шестерню цилиндрической передачи II ступени

4 – шпонка под колесо цилиндрической передачи II ступени

4 – шпонка под зубчатую

муфту


Условия прочности на деформации смятия и срез выполняются.

Порядок построения сил выполняем в следующей последовательности:

- вычерчиваем кинематическую схему привода;

- обозначаем опоры валов латинскими буквами А, В, С, D, E, F, обозначаем точки приложения сил К1, К2, К3, К4, приводим пространственную систему координат X, Y, Z к которой осуществляется привязка действующих сил;

- выполняем построения схемы сил в точках их приложения, способность и долговечность



9. Расчёт промежуточного вала редуктора на статическую способность и долговечность

9.1 Расчет вала на несущую способность

Силы, действующие на вал во время работы редуктора:

- силы, действующие на цилиндрическую шестерню II ступени: окружная сила Ftш = 20470 Н, Радиальная сила Frш =7928 Н; Осевая сила Faш =7450 Н.

- силы, действующие на цилиндрическое колесо I ступени Ftk = 8651 Н; радиальная сила Frk = 3349 Н; осевая сила Fак = 3139 Н.

Вычерчиваем расчетную схему вала (рис.9.1) и определяем размеры между опорами и точками приложения сил (расстояние определяем по первой эскизной компоновке редуктора измерением, допустив, что силы приложенные по середине колеса и шестерни): l1 = 108 мм, l2 = 184 мм, l3 = 156 мм.

Находим реакции в опорах от сил в вертикальной и горизонтальной плоскости:

- в вертикальной х0у

 

ΣМF(D) =0.

.

RDX = RCX Frш +Frk = 7262 - 7928 + 3349 = 2683 Н

- в горизонтальной zOx

ΣМF(D) =0

ΣМF(D) = - Ftш ∙(l1+l2)+ Ftk l1+ Rc z (l1 + l2 +l3 ) = 0

RDZ = - Rc z + Ftш + Ftk = - 11256 + 20470 – 8651 = 562Н

 

Выполняем построения эпюр моментов изгиба в вертикальной и горизонтальной плоскостях, суммарного крутящего момента и изгиба.

Момент изгиба в вертикальной плоскости:

в m.K3: МК3 = RDX · l1 = 2683 · 0,108 = 290 Нм;

в m.K4: МК4 = RCX · l3 = 7262 · 0,156 = 1132,8 Нм;

Момент изгиба в горизонтальной плоскости

в m.K4: МК4 = RDz · l1 = 562 · 0,108 = 61Нм;

Суммарный момент изгиба определяется по формуле:

в m.K3:  

в m.K4:

 

Определяем приведенный (эквивалентный) момент в опасном сечении.

Исходя из анализа построенных эпюр моментов опасное сечение вала находится на шестерне цилиндрической передачи II ступени (точка К4).

Значение эквивалентного момента в m.K4:

 

.


– коэффициент, табл. 5.3., [1] для материала вала

сталь 40. [σ1], σ0 - допустимые напряжения для материала вала соответственно при симметричном и при пульсирующем циклах нагрузки, табл. 5.3., [1].


Определяем диаметр вала в опасном сечении:


Полученный диаметр округляем до ближайшего большего значения из стандартного ряда Rа 40 ГОСТ 6636-69. С учетом шпоночного паза принимаем d32 = 75мм.

Диаметр вала в этом сечении, принятый в условном расчете

d32 = 75,0мм, т.е. условие выполняется.

9.2 Расчет вала на прочность

Для опасного сечения быстроходного вала, который имеет конструктивный концентратор напряжений – переход от меньшего диаметра к большему (между участками под подшипник и шестерню), определяем характеристики напряжений, [1], с.173- 185.

- границы выносливости:

для напряжений изгиба при симметричном цикле:

 

σ-1 = 043σВ =0,43 · 800 = 344 МПа, σm = 0 МПа;

для напряжений кручения при пульсирующем цикле:

τ-1 = 0,58 σ-1 = 0,58 · 344 = 199,52 МПа; τm = τа =2,79 МПа;

-амплитуды напряжений:

при симметричном цикле:


где МЗj – суммарный момент изгиба в m. К4, Нм,

Рис. 11 .1.

 

Зj – осевой момент в сечении опор j – того участка вала. Для сечения в m. К4, м3.

где d – диаметр вала под подшипник,

при пульсирующем цикле:

 


где W кj – полярный момент сечения опор j – того участка вала. Для сечения под шпонку, м3.


Выбираем коэффициенты:

- эффективные коэффициенты конструкционных напряжений при изгибе - Кσ = 1,75, при кручении - Кτ =1,50, табл. 5.11, [1].

- масштабные коэффициенты, учитывающие снижения границы выносливости с увеличением размеров вала: при изгибе - έσ = 0,745; при кручении- έr = 0,745, табл. 5.16, [1].

- коэффициенты учитывающие свойства материалов до асимметрии цикла напряжений:

при изгибе – ψσ =0,02 + 2·10-4 · 800 = 0,18 МПа;

при кручении - ψτ =0,5ψσ = 0,5· 0,18 = 0,09 МПа.

Определяем коэффициент запаса прочности опасного сечения:


где Ѕσ и Ѕτ – коэффициенты запаса прочности при действии изгиба и кручения.

[Ѕ]допустимое значение коэффициенты запаса прочности. Для редукторных валов [Ѕ] ≥2,5…3,0, с.185, [1].

,

,

 

Условие выполняется.

10. Расчет подшипников качения

Исходные данные для расчета:

Диаметры вала под подшипники – 70 мм

Реакции в опорах: Rсх = 7262 Н, RDX =2683Н,

RCZ=11256, ROZ=562H

Осевые силы: Fфш = 7450 Н, Fок = 3139Н.

Угловая скорость: ω3 =18,3 рад/с.

Pис. 12.1

 

10.1 Определение реакции в опорах

Определяем результативную радиальную реакцию в каждой опоре вала (для схемы нагрузки):

,

где Rпх = Rnz радиальные реакции в опоре, в горизонтальной и вертикальной плоскостях.

Индекс «п»- опора.

;

.

Выбираем роликовые однорядные подшипники №7314 с такими основными параметрами:

d = 70 мм, D = 150 мм, B = 35 мм.

C = 168 кН – динамическая грузоподъемность;

С0 = 137 кН – статическая грузоподъемность;

е = 1,5tga =1,5 tg140 = 0,37.

Результирующая осевая сила:

 

Fa = Fаш Fак = 7450 –3139= 1713 Н.

Определяем по соотношению  коэффициент осевой нагрузки.

Определяем составляющие осевых реакций Sп в подшипниках от радиальных реакций Rrn:для радиально-упорных шариковых подшипников:

- для опоры А:

 

SC=eRrC=0.37∙13395=4956H;

 

для опоры В:

 

SD=eRrD=0.37∙2741=1014.0H.

 

Определение осевых реакций Rап подшипников.

Осевые реакции определяем исходя из схемы размещения подшипников, принимаем схему – «в распор»:

175

Рис.10.2.

-в т. D

 

ΣF=-SC+Fa+SD=-4956+4311+1014=369H>0.

 

тогда

RaD=Fa+SC=4311+4956=9267H

-в т. С

ΣF=-SD-Fa+SC=-1014-4311+4956=-369H.>0

тогда

RaC=SC=4956H.

10.2 Определение коэффициентов

 

V-коэффициент оборота кольца, V=1,0 (вращается внутреннее кольцо);

реакции подшипников:

- для опоры С

- для опоры D


10.3 Определение эквивалентной нагрузки

 

Pen=(XVRrn+YRan)∙KσKT :

- опора С: РеС=(1∙1∙13395+0∙4956)∙1,3∙1,0=17413,5Н;

- опора D: PeD=(0.4∙1∙2741+1.88∙9267)∙1.3∙1.0=24074H.

10.4 Определяем долговечность подшипников

,

где пi- частота вращения i-того вала, об/мин,

.

р=10/3- для роликовых подшипников.

Опора С: ч,

Опора D: ч,

Срок работы привода Lh=1∙104ч подшипники (опора С и опора D) обеспечивают.

10.5 Выбор муфты

Расчётный крутящий момент, который передаёт муфта в данном приводе определяется по формуле:

Мmax=KPMн=1,5∙6682=10023Нм,

 

где KP = 1,5 – коэффициент, который учитывает условия эксплуатации установки, принимаем по табл. 7.1. , [1].

Мн – номинальный крутящий момент на валу.

Выбираем зубчатую муфту МЗ 6, табл. 17.6.,[9] с такими параметрами:

М=11800 Нм, dв = 105 мм, nmax=2500 об/мин.

Геометрические размеры муфты, см. рис. 12.2.

B = 50 мм, D=320 мм, D1=230 мм, D2=140 мм, L=255 мм.

Размеры зацепления зубчатой муфты:

m =4,0 мм, z=48, b=30 мм.

Муфты зубчатые используют для соединения валов, которые передают большие крутящие моменты, где точное установление валов невозможно или возникают значительные осложнения. Зубчатые муфты отличаются компактностью и высокой выносливостью нагрузок.

Компенсирующая способность муфты достигается созданием зазоров между зубьями и приданием бочкообразной формы зубьям.

10.6 Проверочный расчёт зубчатой муфты

178,1

Рис. 10.5.

11. Выбор и проверочный расчёт опор скольжения

В качестве опор конвейера принимаем подшипники скольжения, разъёмные с двумя болтами по ГОСТ 11607-65 с чугунными вкладышами с СЧ 18 для которого определяем допустимые значения параметров: , , табл. 9.1, [8].

Конструктивные размеры корпуса выбранного подшипника определяем согласно С.594, [8] в зависимости от диаметра вала:

dВ=110 мм, d1=32 мм, B=130 мм, b=110 мм, H=200 мм, h=110 мм, h1= 40 мм, L=370 мм, A=310 мм,

A1=190 мм, шпилька М24х100.

Схема подшипника скольжения

Рис. 11.1.

Проверяем выбранный подшипник по двум критериям:

- условие износа ( долговечность )

,

где F0=Ft=28000 H – окружная сила, см. раздел 1.1.

- условие теплоустойчивости


где - скорость скольжения.

Оба условия выполняются, значит опоры скольжения удовлетворяют

При проверочном расчёте у зубчатых муфт рассчитывают рабочие поверхности зубов на износ (определяется граничное значение удельного давления на зубцы муфты).


где d0 – диаметр делительного круга, м, d0 = mz=4,0∙48=192 мм, b – длина зуба зубчатой втулки, м, [q] – допустимое значение удельного давления для материала зубов, МПа, табл. 17.6, [9].

Литература

 

1. Киркач Н.Ф., Баласанян Р.А.. Расчёт и проектирование деталей машин [Учеб. Пособие для техн. вузов]. – 3-е изд., перераб. и доп. – Х.: Основа,1991.- 276 с.: схем.

2. Расчёты деталей машин: Справ. Пособие / А.В. Кузьмин, И.М. Чернин, Б.С. Козинцов. – 3-е изд., перераб. и доп. – Мн.: Выс. шк., 1986. – 400 с.: ил.

3. Курсовое проектирование деталей машин: Справ. Пособие. Часть 1 / А.В. Кузьмин, Н.Н. Макейчик, В.Ф. Калачев и др.-Мн.: Выс. школа ,1982-208 с.,ил.

4. Курсовое проектирование деталей машин: Справ. Пособие. Часть 2 / А.В. Кузьмин, Н.Н. Макейчик, В.Ф. Калачев и др.-Мн.: Выс. школа ,1982-334 с.,ил.

5. Методичні вказівки для виконання курсового проекту з курсу „Деталі машин” (Розділ „Пасові передачі ”) для студентів спец. 31.11 заочної форми навчання / Гончарук О.М., Стрілець В,М., Шинкаренко І.Т., - Рівне, У||ВГ, 1990.-24 с.

6. Методические указания по выполнению курсового проекта по курсу «Детали машин» (Раздел «Расчёт закрытых зубчатых и червячных передач») для студентов специальности 1514 заочной формы обучения / Стрелец В.Н,, Шинкаренко И,Т.- Ровно, УИИВГ, 1988 – 41 с.

7. Методичні вказівки для виконання курсового проекту з курсу „Деталі машин” (Розділ „Розрахунки валів і підшипників кочення”) для студентів спец. 31.11 заочної форми навчання / Стрілець В,М., Шинкаренко І.Т., - Рівне, У||ВГ, 1990.-16 с.

С.А. Чернавский, Г.М. Ицкович и др.. Курсовое проектирование деталей машин, М: Машиностроение, 1979-351


Не нашли материал для своей работы?
Поможем написать уникальную работу
Без плагиата!
Без нейросетей!