Организационно-правовые формы организаций и особенности их управления

  • Вид работы:
    Тип работы
  • Предмет:
    Финансы, деньги, кредит
  • Язык:
    Русский
    ,
    Формат файла:
    MS Word
    39,45 kb
  • Опубликовано:
    2008-12-09
Вы можете узнать стоимость помощи в написании студенческой работы.
Помощь в написании работы, которую точно примут!

Организационно-правовые формы организаций и особенности их управления

 









Организация безопасности сети предприятия с использованием операционной системы Linux

Вступление

Компьютерная сеть - это система разделенного использования информации, которая заключается, как минимум, из двух компьютеров, которые взаимодействуют между собой. На первое место становится вопрос о защите информации или своего ПК. Защита один из важнейших вопросов, которую рассматривается при настройке ПК. Правильный подход к защите защитит вас от беды, сохранит час и деньги. Необходимо, чтобы злоумышленные пользователи не могли входить в систему, а данные и службы были доступны том, кто виноват мать к ним доступ. Поскольку большими сетями трудно управлять, разбивка сети на меньшие части, может полу как наилучшим средством для работы со всей системой. Для каждой системы, которая будет поддаваться угрозам, необходимо определить заходи защите, а также средства их осуществления. Нужно решить, какие части системы важнейшие. Необходимо защищать службы и сами данные.Система может быть атакована разными средствами, и защита как раз и является значением того, которое может состояться и как это предотвратить.

Атаки можно разделить на несколько категорий:

Физические атаки - могут состояться в любой момент часа, когда кто-то получает физический доступ к машине. Физическая атака может заключаться, например, в том, что кто-то, сидя за файловым сервером, перезагружает машину, копирует ваших начальных кодов.

Атаки на службы - бывают разные от закидывания сетевых портов запросами на подключение к засорению почтовому серверу бесполезными сообщениями. В обоих случаях конечный результат заключается в потому, что законные обращения к службам не обрабатываются через те, что атака вызывает проблемы возле самой службы или «Зависает» весь сервер. Организаторов таких атак очень сложно выследить, поскольку для атаки системы используют, как правило, поддельны IP-адреса или украдены учетные записи.

Атака на права доступа - когда кто-нибудь пытается получить права доступа или добраться до специальных учетных записей пользователей в системе, которыми ему не разрешено пользоваться. Это может быть рассержено пользователь, который пытается получить права доступа пользователя root (Администратор), чтобы притворить неприятности, или же кто-то из внешней сети, которая делает попытки получить доступ к файлам. Количество атак можно уменьшить, но Администратор, который заботится о защите, виновной предотвращать появление очевидных дыр в защите.

Техническое задание

Есть газетная редакция «Интранатер Старра», который будет заниматься разработкой публикаций новостей, как в журналах и газетах, так и в Интернете с помощью своего веб сайта. На предприятии работатет около 70 человек. Из них двое будут следить за работоспособностью сети и компьютеров предприятия.

Цель проекта:

Создать проект компьютерной сети предприятия.

Обеспечить безопасность данным предприятия. В случае потери данных, сделать возможным их воссоздание.

Обеспечить организацию возможностью использования сети Интернет.

Рассчитать стоимость реализации проекта.

Выходные даны к проекту

Редакция расположатся в трех поверхностному дому. Дом после капитального ремонта, так же в доме была продумана проводка кабелей, зачет двойного пола. План дома приведен в дополнении “A}rdblquote

В доме не установлены компьютеры.

В каждый кабинет проведен сетевой кабель тип: «крученная пара».

Так же в дом будут размещаться помещения, в которых не будет установлено никакого вычислительного оборудования (например столовая).

Задание проекту

Спроектировать локальную сеть. Подобрать топологию и технологию компьютерной сети.

Выбрать оборудование, поддерживающее эту технологию. Распланировать сетевую адресацию.

Организовать доступ к сети Интернет.

Определить устанавливаемое программного обеспечения на рабочие станции и сервера

Сконфигурировать сервер безопасности под управлением ОС Linux. Продумать настройку безопасности для рабочих станций.

Протестировать созданную конфигурацию

Выполнить расчет стоимости реализации проекта

Общие требования к проекту.

В процессе проектирования сети здания необходимо выполнить следующие востребования:

Выдержать пропускную способность от компьютеров от 5 Мбіт/сек до 25 Мбит/сек. к серверам.

Продумать безопасность сети предприятия.

Продумать установку серверов.

Обеспечить доступ к сети Интернета.

Распределить Интернет между работниками, по уровню потребности.

Предусмотреть рост локальной сети.

Разместить в помещениях здания:

- на первом этаже 3 кабинета: гостиная, кабинет охраны, и кабинет секретарей.

- на 2 этаже кабинеты: текстовых редакторов, графических редакторов, информационного отдела, бухгалтерия.

- на третьем этаже 5 кабинетов: директора, главного бухгалтера, главного редактора, помещения для коммутационного оборудования, библиотека.

Анализ существующих решении

 

Обзор устройств защиты

Существуют несколько специализированных устройств защиты. Это могут быть специализированы карты, например, Firewall PCI и 3Com Firewall PC Card, которые инсталлируются в стандартные шины PCI или PC Card и используются вместо привычных сетевых адаптеров Fast Ethernet. Выполнение операций по обеспечению безопасности передается процессору платы брандмауэра, позволяя увеличить производительность системы. Платы-брандмауэры могут функционировать независимо от операционной системы, установленной на клиентском компьютере, и практически неуязвимые для атак из Интернета, действий конечного пользователя или злоумышленных программ.

Межсетевой экран "Цитадель МЕ", версия 2.0

Межсетевой экран "Цитадель МЕ", версия 2.0, является аппаратно-программным комплексом, основанным на платформе Intel Pentium II/III и управляемый специально разработанной операционной системой. В типичной конфигурации экран "Цитадель МЕ" имеет 4 интерфейса 10/100BaseTX Ethernet. Возможна поддержка до 16 интерфейсов Ethernet в одном устройстве. Опциональной возможностью является установка интерфейсного модуля WAN (V.35 или X.21), поддерживающего SLIP, PPP, HDLC и Frame Relay. На передней панели комплекса расположен LCD дисплей и диагностические индикаторы. С их помощью можно получить информацию о диагностике, версиях программного и аппаратного обеспечения, IP адреса, статус, конфигурацию, загрузка интерфейсов и т.д. Это облегчает диагностику возможных проблем, а также позволяет не техническому персоналу обеспечить администратора информацией в случае возникновения проблем. Комплекс "Цитадель МЕ" обеспечивает безопасное, надежное и экономическая взаимодействие сетей Internet и Intranet благодаря могучему и гибкому механизму IP-маршрутизации со встроенными функциями пакетной фильтрации, механизмом адресной трансляции (NAT) и прикладными шлюзами. Использование платформы Intel Pentium и модульной архитектуры на базе шины PCI защищает ваши инвестиции, обеспечивая переход к новым технологиям путем замены интерфейсных модулей и версии управляючої операционной системы.

Комплекс межсетевого экранирования «фпсу-ip»

Программно-аппаратный комплекс ФПСУ-IP есть одновременно и организатором VPNs (виртуальных частных сетей) для информационных систем использующих стек протоколов TCP/IP. Имеет высокие характеристики производительности (в том числе за счет эффективной реализации проходного сжатия данных), которые выдвинули данный комплекс в разряд самих передовых решений как по отношению к отечественным, так и импортным продуктам в области VPNs-организаторов.

Если для других средств организации VPNs, выполненных на основе типичных алгоритмов (например, протокол SKIP) характерное достаточно существенное снижение скорости IP-взаимодействий за счет введения избыточности в каждый передач пакет, то при употреблении комплекса «ФПСУ-IP» обеспечивается минимальная избыточность передаваемой информации, которая обеспечивает даже прирост скорости передачи IP-потоков.

Cisco Pix Firewall

Продукты серии Cisco PIX

Аппаратным решением проблемы обеспечения сетевой безопасности являются продукты серии Cisco PIX (Private Internet eXchange). Программное обеспечение Cisco PIX является собственной разработкой компании Cisco Systems и не основано на каких-либо клонах Unix, что позволило обойтись минимальными востребованиями к дисковой (в Cisco PIX вместо дисковых накопителей используется флэш-пам'ять) и оперативной памяти, а употребление уникального алгоритма ASA (Adaptive Security Algorithm) обеспечило производительность свыше 64000 одновременные сессии, какая недосягаемая на сегодняшний момент ни одним из брандмауэров на базе Unix или Windows NT.

Возможности:

защита на основе технологии контроля заключается защита сетевых соединений, позволяет ограничить неавторизованных пользователей от доступа к сетевым ресурсам

технология перехвата соединений на прикладном уровне позволяет обеспечить аутентификацию пользователей с использованием стандартных протоколов TACACS+ и RADIUS

поддерживает больше 16,000 одновременных соединений

удобный и простой менеджер межсетевых экранов обеспечивает легкое администрирование нескольких межсетевых экранов PIX

поддержка протокола Point-to-Point Tunneling Protocol (PPTP) компании микрософтвер для реализации виртуальных корпоративных сетей (VPN)

поддержка протокола Oracle SQL*Net для защиты дополнений клиент/сервер

командный интерфейс, свойственный CISCO IOS системе

высокая надежность благодаря возможности дублирования и горячего резерва

трансляция сетевых адреса (NAT) согласно RFC 1631

трансляция портов (PAT) позволяет расширить пул адреса компании - через одну IP адресу можно отображать 64000 адреса (16,384 одновременно)

псевдонимы сетевых адреса позволяют отобразить IP адреса, которые перекрываются, в одно адресное пространство

для зарегистрированных IP адреса можно отменить режим трансляции адреса, что позволяет пользователям использовать их настоящие адреса

прозрачная поддержка всех распространенных TCP/IP сервисов - WWW, FTP, Telnet и вторые

поддержка мультимедийных типов данных с использованием трансляции адреса и без нее, включая Progressive Networks' RealAudio, Xing Technologies' Streamworks, White Pines' CuSeeMe, Vocal Tec's Internet Phone, VDOnet's VDOLive, Microsoft's NetShow, VXtreme's Web Theater 2

поддержка дополнений для работы с видеоконференциями, совместимыми из H.323 спецификацией, включая Internet Video Phone (Intel) и NetMeeting

возможность фильтрации потенциально опасных Java апплетов

защищена система реального часа

поддержка нескольких уровней входа в систему

поддержка прерываний (trap) SNMP протокола

сбор аудита через syslog утилиту

поддержка Management Information Base (MIB) для syslog

аудит использования URL и обменов по FTP протоколе

поддержка удаленного вызова процедур (RPC)

программа контроля почтового траффика позволяет отказаться от размещения внешнего почтового серверу в демилитаризованной зоне (DMZ)

защита от SYN атак защищает хост от атак типа «отказ в обслуживании»

трансляция NETBIOS протокола обеспечивает поддержку взаимодействия клиентов и серверов

Криптомаршрутизатор

Криптомаршрутизатор (КМ.), является комплексом программно технических средств, который обеспечивает защищенную передачу IP-потоков данных в internet/intranet-мережах и предназначенный для защиты данных Пользователя, которые содержат закрытую информацию.

КМ. является узлом криптографической обработки данных в IP-сетях и обеспечивает прием данных, которые отправляются Пользователями, которые работают на одной из рабочих станций (РС) ЛВС, шифровки этих данных и их защищенную передачу через открытую IP-сеть на аналогичный КМ., который выполняет расшифрование принятых данных и их доставку Пользователю-получателю, который работает на РС ЛВС.

Передача данных осуществляется криптомаршрутизатором по выделенным или коммутированным телефонным каналам связи согласно протоколам PPP, SLIP или CSLIP, а также по каналам ЛВС (по протоколе TCP/IP) и каналах сетей пакетной коммутации данных в соответствии с Рекомендациями X.25 ITU-T.

Криптомаршрутизатор обеспечивает шифровку потоков проходячих через него данных в соответствии с протоколом IPSec v.4, что позволяет скрыть на участке открытой IP-сети информацию о настоящих субъектах обмена и прикладных протоколах Пользователя, которые используются ими.

Linux Firewall

IP Firewall (ядра 2.0)

Первое поколение IP firewall для Linux появилось в ядре 1.1. Это была версия BSD ipfw firewall для Linux (автор Alan Сох). Поддержка firewall другого поколения появилась в ядрах 2.0 (авторы Jos Vos, Pauline Middelink и другие) и с этого момента стало возможным реально работать из firewall в Linux.

IP Firewall Chains (ядра 2.2)

Большинство аспектов Linux развиваются, чтобы удовлетворить запить пользователей, которые увеличиваются. IP не firewall исключения. Традиционная версия IP firewall прекрасна для большинства прикладных программ, но может быть неэффективный, чтобы конфигурировать сложные среды. Чтобы решить эту проблему, был разработан новый метод конфигурации IP firewall и связанных свойств. Этот новый метод был назван "IP Firewall Chains" и был впервые выпущен для общего использования в ядре Linux 2.2. 0.

IP Firewall Chains разработан Paul Russell и Michael Neuling. Paul описав IP Firewall Chains в IPCHAINS-HOWTO.

IP Firewall Chains позволяет Вам разрабатывать классы правил firewall, к которым Вы можете потом добавлять и удалять компьютеры или сети. Такой подход может улучшать эффективность firewall в конфигурациях, у которых есть большое количество правил.

IP Firewall Chains поддерживается серией ядер 2.2 и доступный как патч для серии 2.0. * ядер. HOWTO описывает, где получить патч и дает большое количество полезных советов относительно того, как использовать утилиту конфигурации ipchains.

Netfilter и таблицы IP (ядра 2.4)

При разработке IP Firewall Chains, Paul Russell решил, что IP firewall виноват проще. Он, став совершенствовать код фильтра и создал пакет, который оказался много проще и более могуче. Это netfilter.

Так, что было неправильно из IP chains? Они значительно улучшили эффективность и управление правилами firewall. Али они все одно обрабатывали пакеты очень длинным путем, особенное в связке с другими возможностями firewall, например, IP masquerade и другими формами трансляции адреса. Часть этой проблемы существовала потому, что IP masquerade (маскировка IP) и Network Address Translation (сетевая трансляция адреса) были разработаны независимо от IP firewall и интегрированы у него позже.

Однако были другие проблемы. В частности, набор правил input описывал весь входной поток уровня IP как одно целое. Этот набор влиял как на пакеты, которые предназначены для этого компьютера, так и на те, которые будут переданы им дальше. Это было неправильно потому, что такой подход попутав функцию цепочки input с функцией цепочки forward, который применялся только к вытекающим пакетам. Возникали весьма замысловатые конфигурации для разной обработки входных и транслируемых пакетов.

Еще одной проблемой было те, что механизм фильтрации находился прямо в ядре системы, и изменить логику его работы было невозможно без коренной перебоязкі всего ядра. Так возник netfilter, который позволяет встраивать в ядро дополнительные модули с другой логикой фильтрации и имеет более простую схему настройки.

Ключевыми отличиями стало удаление из ядра кода для маскировки IP то изменение в логике работы наборов правил input и output. Появился новый расширяемый инструмент конфигурации iptables.

В IP chains набор правил input применяется ко всем пакетам, полученным компьютером, независимо от того, назначены ли они для локального компьютера или направлены на другой компьютер. В netfilter набор правил input применяется только к пакетам, предназначенным для локального компьютера. Цепочка forward теперь применяется исключительно к пакетам, предназначенным для передачи другому компьютеру. В IP Сhains набор правил output применяется ко всем пакетам, вытекающим из компьютера, независимо от того, сгенерировали ли они на локальном компьютере. В netfilter этот набор применяется только к пакетам, которые сгенерировали на этом компьютере, и не применяется к пакетам, проходячим транзитом. Это изменение резко упростило настройку.

Еще одной новостью стало вынесение компонентов работы с маскировкой IP в отдельные модули ядра. Они были переписаны как модули netfilter.

Рассмотрим случай конфигурации, в которой по умолчанию для input, forward и output задана стратегия deny. В IP chains для пропуска всех пакетов было бы нужно шесть правил.

В netfilter эта сложность исчезает полностью. Для сервисов, которые должны проходить через firewall, но не завершаются на локальном компьютере, нужные только два правила: в одиночку для прямого и обратного прохода в наборе правил forward.

Обоснование выбора программного обеспечения

Таблица № 2.1

Выбор программного обеспечения

Что запускаются ПО

Выбрана ОС

GNOME

net filter

А patch Server

FTP Server

DHCP Server

Mysql Server

Dr web

Linux: Suse

GNOME

NFS,Firefox

Open Office(Write, Math

Calc, Draw...)

Gimp, Dr Web

C++

Base Date client

XPDF (PDF Viewer)

Samba.

Linux: Suse

3d Max 7,Adobe Photoshop, Corel Draw, AutoCAD,Macromedia Flash.

Windows XP sp2 eng;


Для удобства компьютеры разделены по группам (группа создается по комплектущим компьютера) и о маркированных:

1) OPC (Office Personal Computer) Server / n

OPC WS(Work Station) /n

OPC GWS(Graphical Work Station) /n

n - это номер компьютера.

Вместе 3 группы OPC Server /n, OPC WS/n, OPC GWS/n

Для серверов и рабочих станций был выбран Linux: Suse.

SUSE был выбран потому что:

Linux является бесплатной ОС

Linux: Suse относительно новый дистрибутив. Fedora - это продолжение знаменитого Linux: RED HAT.

В дистрибутив входят такие программы как веб Сервер А patch 2, FTP сервер, Open office (аналог MS Office XP), Samba (помогает взаимодействовать Linux из Windows через локальную сеть), GIMP(аналог PhotoShop), а также другие полезные программы.

Устанавливая Linux, снижается процент заражения вирусом и потери данных, поскольку на сегодняшний день вирусы в основном пишутся для ОС Windows.

Али все таки одним линуксом не обойтись. Редакции нужны рабочие станций для работы с графикой. Для этих целей была выбрана операционная система MS Windows XP SP1.MS Windows XP SP1 добре себе зарекомендовал в работе. В нем совмещаются такие понятия как: стабильность, надежность, безопасность да и он может работать с коммерческой продукцией такой, как Photo Shop, 3d max, Corel Draw и другими программами.

 

Теоретические основы проектирования локальных сетей

При проектировании сети необходимо собрать данные о структуре организации. Эти данные должны включать информацию о заключается организацию, методах управления, планируемом росте, офисных системах, а так именно мнение членов рабочего персонала. Необходимо узнать, кто в данной организации владеет полномочиями на назначение имен, установлении адресации, установку конфигурации и планирование топологии. Нужно документально зафиксировать существующие аппаратное и программное обеспечения организации.

Перед разработкой сети и установкой аппаратного обеспечения следует определить все источники данных и параметры, которые необходимо установить для них. Необходимо испытать дополнения, которые могут вызывать в сети проблемы, связанные с передачей данных. До заданий, которые могут привести к перегрузке сети, относятся:

- передача изображения и видеоинформации;

- доступ к центральной базе;

- загрузка программного обеспечения из удаленного серверу;

- доступ к Internet и другие.

Еще одной задачей является оценка востребований пользователей. Необходимо принять соответствующие действия для удовлетворения информационных востребований организации и ее работников.

Отметка и задание проектирования.

Нам нужно обнаружить цели и задачи, которые стоять перед нами. Для того, чтобы в дальнейшем, мы не столкнутся с проблемой, а для чего это нам нужно, и что мы делаем.

Основные этапы проектирования ЛС

Функции и размещения серверов.

Проектирование сети розбивается на две части.

Первая часть описывает физическое проектирование сети.

Вторая часть описывает программное проектирование сети.

Документирование физической и логической структуры сети.

Выбор топологии

Для того, чтобы соединить ПК нашей ЛС нам нужно выбрать топологию подключения компьютеров. Одно из наивысших положений в современной индустрии занимает звездообразная топология физического соединения. Эта топология обеспечивает простоту обслуживания и высокую надежность сети.

Термин «топология», или «топология сети», характеризует физическое расположение компьютеров, кабелей и других компонентов сети.

Топология сети обслуживает ее характеристики. В частности, выбор той или другой топологии влияет:

- на состав сетевого оборудования;

- характеристики сетевого оборудования;

- возможности расширения сети;

- способ управления сетью.

Чтобы совместно использовать ресурсы или выполнять другие сетевые задачи, компьютеры должны быть подключенные друг к другу. Для этой цели в большинстве используется кабель.

Однако просто подключить компьютер к кабелю, который соединяет другие компьютеры, не достаточно. Разные типы кабелей в сочетании с разной сетевой платой, сетевыми операционными системами и другими компонентами требуют и разного взаимного расположения компьютеров. Все сети строятся на базовых топологий: Шина, Кольцо, Звезда.

Функции серверов

От компьютерных сетей нужный, обеспечение взаимодействия ПК между собой, возможности доступа к ресурсам всех компьютеров, соединенных в сеть.

Для стабильной и качественной работы сети, нужно правильно подобрать, установить и настроить аппаратные и программные средства.

Одноранговые сети и сети на основе серверу объединяет общая отметка - разделение ресурсов.

Нам нужно определить, нужные нам сервера или можно без них построить нашу сеть.

Пример: для секретарей повиннен быть доступ к Интернету только для электронной почты, для бухгалтерии - доступ к подключению к удаленной базе данных, у директора полный быть доступ к Интернету. Для этого нужно установить сервер, который будет разделять права между пользователями ЛС. Серверы можно разделить на два класса

Сервер рабочей группы обслуживает определенную группу пользователей и предлагает им такие службы, как обработка текстов или совместимый доступ к файлам. Серверы рабочих групп следует размещать в промежуточных распределительных станциях (ПРС), по возможности ближе к пользователям, которые используют дополнения этих серверов. \

Сервер организации поддерживает всех пользователей сети, предоставляя им разные службы, такие как электронная почта или DNS.

Серверы организации должны размещаться в главной распределительной станции (ГРС). В этом случае потек данных будет идти только к ГРС, не проходя через остальных сегментов сети.

Для корректной работы нашего предприятия нужно 3 вида серверов: файловый, Интернет, сервер управления учетными записями. Али не значат, что нам нужно 3 компьютера, которые будут делать эти три функций. В зависимости от размеров сети нашего предприятия мы будем давать оценку, сколько компьютеров серверов нам понадобится для корректной работы ЛС. Чем больше сеть, тем более серверов нам может понадобиться для ее корректной работы. Но лишь грамотное деление заданий серверов между собой может гарантировать качественную работа способность сети.

Файловый сервер

Файловый сервер помогает беречь информацию предприятия нескольких ПК в одном месте. Что позволяет увеличить безпечу. Потому, что если информация будет разбросана по всему предприятию, тогда ее будет намного сложнее защитить от не нужных глаз Защитить 1 ПК (сервер) намного легче, чем 10-30 ПК предприятия.

Сервер доступа к Интернету

Сервер доступа к Интернету позволяет исполнителям предприятия получать доступ к сети Интернет. Он имеет связь с постановщиком услуг через модем, сетевую карточку или другие виды подключений. Он виноват следить за тем, чтобы пакеты с вредной информацией для нашей сети не попадали из Глобальной Сети «Интернет».

Сервер управления ЛС - этот вид серверу управляет учетными записями, адресами ПК сети и размещения серверов рабочей группы.

При создании структурированной кабельной системы выделяют следующие элементы:

- телекоммуникационные монтажные шкафы;

- магистральная кабельная система;

- помещение для оборудования;

- рабочие области и входные средства.

Кабельная система.

Кабельная система включает сетевую среду передачи данных, телекоммуникационную розетку или разъем, коммутационные шнуры в монтажном шкафу и механические неразъемные соединения.

Для горизонтальной кабельной системы чаще применяется не экранированная крученная пара (UTP, спецификация 10 Base T) категорий 5 или 5е, широко используется в ЛВС, поскольку она обеспечивает поддержку современных высокоскоростных технологий передачи данных. Максимальная долгота сегмента составляет 100 м (328 футов). Существует несколько спецификаций, которые регулируют количество витков на единицу длины, - в зависимости от назначения кабеля.

Не экранирована крученная пара определенная в особенном стандарте EIA/TIA 568 - на основе UTP со стандартами для разных случаев, гарантируя однообразие продукции. UTP 5 - это кабель, способный передавать данные со скоростью до 100 Мбит/с. состоит из четырех витых пар медного провода.

Для создания соединения UTP -5 виновный использоваться разъем гнезда типа RJ-45.

Для того, чтобы построить развитую кабельную систему и у той же время упростить роботу с ней поможет ряд очень полезных компонентов:

- распределительные стойки и полки - предназначенные для монтажа кабеля. Они позволяют, централизовано организовать множество соединений и при этом занимает достаточно мало места.

- коммутационные панели (patch panels).Існують разные типы панелей расширения. Они поддерживают до 96 портов та скорость передачи до 100 Мбит/с.

- соединители. Одинарные или двойные RJ-45 подключаются к панелям расширения или настенных розеток. Они обеспечивают скорость передачи до 100 Мбит/с.

- настенные розетки. К настенным розеткам можно подключить два (и более) соединителя.

Следует избегать растягивания, больших изгибов кабеля и огибания углов. Рекомендуется оставлять небольшой запас кабеля из обоих концов, для возможного увеличения расстояния, например, при перекомутації.

После установки кабелей необходимо оформить схему прокладки отрезков кабелей. На этой схеме также указываются номера помещений, куда проложены кабели. Стандарт EIA/TIA требует, чтобы кожному физическому соединению был присвоен уникальный идентификатор, который виноват быть указанный на кожном физическом краевом блоке или на прикрепленной к нему этикетке.

Магистральная кабельная система соединяет помещение для коммутационного оборудования. Она включает отрезки магистрального кабеля, главные и промежуточное кросс-соединение и коммутационные шнуры, которые используются для кроссирования кабелей магистрального канала.

Для магистральной кабельной системы может использоваться коаксиальный кабель, экранированная и не экранированная крутінь пары, а также многомодовый оптоволоконный кабель. В основном чаще всех используют віту пару, поскольку она не дорога, поддерживает технологий Ethernet, Fast ethernet и Gygabite Ethernet, надежная в использовании. В случаи обрыва кабеля будет легко обнаружить поломку.

Инфраструктура локальной сети отвечает стандартам EIA/TIA и основывается на Ethernet коммутации, которая позволить перейти на высшие скорости без изменения физической схемы соединений.

Установка коммутационного оборудования

После прокладки кабелей горизонтальной кабельной системы необходимо сделать соединение в помещении для коммутационного оборудования. Оборудование, которое находится в этом помещении включает коммутаторов, маршрутизаторы, коммутационные панели и концентраторы.

Помещения для коммутационного оборудования отвечают стандарту EIA/TIA - они достаточно большие, поскольку в будущем возможен рост локальной сети учебной залогу.

Место, выбранное для коммутационного оборудования, отвечает всем востребованиям к электропитанию, отоплению, вентиляции. Кроме того, место надежно защищенно от несанкционированного доступа и отвечает норме всем техники безопасности.

Резервным питанием обеспечен каждый сервер, который стоит в сети, а также все сетевые устройства таковы, как коммутаторы, маршрутизаторы и концентраторы. Для защиты от электропрепятствований и перебоев в электропитании используются источники бесперебойного питания.

Коммутационные панели

Коммутационные панели являются устройством для между соединений, с помощью которого отрезки кабелей горизонтальной подсистемы подключаются к сетевым устройствам, таким, как концентраторы, маршрутизаторы и коммутаторы.

Коммутационные панели могут устанавливаться или на стену, или в распределенные стойки, или в шкафы, оборудованные внутренними стойками. Наиболее часто для установки коммутационных панелей используются распределенные стойки, которые обеспечивают легкий доступ к оборудованию и из передней и задней панели. Стандартная ширина стоек 19”,а высоты может составлять 39” - 74”.

Кабели в коммутационной панели необходимо заключать в порядке роста их номеров, которые были присвоены им при прокладке от рабочей области к помещению для коммутационного оборудования. Подобная укладка кабеля позволяет легко диагностировать и локализовать проблемы.

Технологии локальной сети

Самой популярной технологией локальных сетей является Ethernet. Эта технология использует для обмена данными между сетевыми устройствами метод доступа CSMA/CD и обеспечивает передачу данных со скоростью до 100 Мбит/с.

Существует несколько физических стандартов технологии Ethernet, самым популярным из их является 10 BASE-T. Сети стандарта 10 BASE-T имеют звездообразную топологию и используют в качестве физическая среда передачи данных кабель UTP-3-5 категорий.

Самым популярным стандартом физического уровня сетей Fast Ethernet, есть 100Base-тх, используя в качестве физическая среда передачи данных кабель UTP-5 категории, и 100Base-Fх, использующий многомодовое оптоволокно.

В сетях основанных на крученный пари можно использовать разные нестандартные проводники, которые позволяют получить новые характеристики и свойства сети. 1000 мегабітни сети - это последующий кабель эволюции сетей на крученный пари. В отличии от 10 - 100 мегабітних сетей, в которых используются только 4 проводника с 8, при гигабитном соединении задействованни все 8 проводників. С использованием соответсвующего встаткування сетевых карт и коммутатора с поддержкой гигабитного соединения. Скорость передачи данных составляет порядку 80-100 мегабайт в секунду что как правило значительно превышает потоки передачи данных жестких дисков (40-60 мегабайт/сек) установленных в домашние системы.

На эффективность работы локальных сетей Ethernet негативно влияют следующие факторы:

- широковещательный характер передачи кадров данных;

- увеличение задержки распространения кадров при использовании сетевых устройств;

- увеличение числа коллизий, а, следовательно, и уменьшение пропуской способности сети и ростом числа станций в сети;

- метод доступа CSMA/CD, который позволяет одновременно передавать данные лишь одной станции;

Теория сегментации сети

Назначение устройств 2-го уровня заключается в обеспечении управления потоком данных, в выявлении и коррекции ошибок и уменьшении перегрузок сети. На этом уровне работают такие устройства, как сетевые адаптеры, мосты и коммутаторы. Устройства этого уровня определяют размеры коллизионных доменов. Большой размер коллизионного домена негативно влияет на эффективность работы сети. Используя мосты и коммутаторов, можно сегментировать украшаю узором, уменьшив размер коллизионного домена.

Для определения размеров коллизионного домена необходимо знать, сколько хостов физически подключено к одному порту коммутатора. При микро сегментации размер коллизионного домена ровен двум (порт коммутатора и, например, порт рабочей станции). В случае использования концентраторов, несколько компьютеров подключаются к одному порту коммутатора, образуют коллизионный домен и делят между собой полосу пропускания.

Проектирование локальной сети

Выбор топологии. Для того, чтобы выбрать нужную топологию, я проанализировал 3 основные вида

такие как звезда, кольцо и шина(описание которых находится в разделе «Теоретическая часть проектирования ЛС > Выбор Топологии»). Я выбрал топологию звезда, поскольку она имеет больше плюсов над всеми другими топологиями. Например, возьмем топологию шина, в случаи выхода из строя одного фрагмента кабеля, из строя выйдет вся сеть предприятия. Но если сеть относительно большая, то обнаружить такой фрагмент будет достаточно трудно. К тому же шина использует коаксиальный кабель, который может передавать информацию со скоростью 10мб/с максимум (ethernet). При этом нельзя в сеть ставить больше 10 ПК, если ставить больше - скорость значительно упадет. В топологии звезда при выходе из строя одного фрагменту, с сетью ни чего не случится. Увеличивается скорость за счет того, что применяются более новые технологий, такие как Fast Ethernet, Gygabite Ethernet, которые на сегодняшний день стали доступны по цене и по качеству работы.

Технология компьютерной сети

Для нашей сети были избраны две технологии: Fast Ethernet и Gygabite Ethernet(1000 BASE-T). Они будут реализовываться на крученный паре категории 5Е.

Технология Ethernet уже давно используется в локальных сетях и зарекомендовала себя из красивой стороны. В случае, если будет нужно перейти из технологий Fast Ethernet на Gigabyte Ethernet, нужно только поменять коммутаторов Fast Ethernet на коммутаторов с поддержкой Gigabyte Ethernet и переобжати кабель для технологий 1000 BASE-T. Технология Fast Ethernet будет использоваться для соединения рабочих станций в большинстве кабинетов. А Gigabyte Ethernet будет использоваться для соединения серверов, и в кабинете графических редакторов. Позволят быстро пересылать объемные видео материалы с очень большой скоростью.

Размещение рабочих станций

I этаж.

В гостиной размещается 7 рабочих станций.

В кабинете охраны - 3 рабочих станций

Секретари - 6 рабочих станций.

Комната с коммутационным оборудованием.

II этаж

Кабинет графической редакции - 10 рабочих станций.

Кабинет текстовой редакций - 10 рабочих станций.

В информационный отдел - 5 рабочих станций.

Кабинет бухгалтерии - 5 рабочих станций.

Коммутационная комната

III этаж

Кабинет директора - 2 рабочих станций.

Библиотека - 15 рабочих станций.

Кабинет Главного редактора - 1 робочая станция.

Кабинет Главного бухгалтера - 1 рабочих станция.

ГРС

Все в здании установлено 65 рабочих станций.

Размещение серверов. Короткое описание

Файловый сервер, будет установлен в комутаційной комнате на третьему этажу.

Он будет беречь данные предприятия.

Интернет Сервер будет установлен в ГРС. На нем будет установленные и настроена программа маршрутизатор (Firewall), которая будут разделять сеть предприятия от сети Интернет, том самим, оберегая нашу сеть от вирусов из Интернета.

Домен, который также является маршрутизатором сети предприятия будет установлен в ПРС (второй этаж). Он будет управлять сетью предприятия, разбивая ее на под сети, записывать в журнал отчеты о труде предприятия. Так именно будет беречь учетные записи пользователей предприятия.

Все в здании установлено 3 сервера.

Создание структурированной кабельной системы

I этаж.

Гостевая комната - компьютеры соединены по топологию «звезда». От каждой рабочей станции идет кабель “витая пара” к switch 11.Switch 11 соединяет этот кабинет из switch S1, который соединяет этаж с сервером “Diplom”.

Кабинет охраны- рабочие станции соединяются с помощью Switch 13. Switch 13 соединенный с главным switch “S1”.

Рабочие станции секретарей соединены из switch 12 рабочих станций.

В комнате с коммутационным оборудованием №1 установлен switch S1, который объединяет первый этаж и соединяет из коммутационной комнатой №2, какая расположена на другом этаже.

II этаж

Кабинет графической редакции - рабочие станции присоединены к switch 24,25.Switch 24,25 не соединенные между собой. Для того, что бы увеличить скорость передачи данных Switch 24,25 подключается к Switch S3 отдельными кабелями. Switch 24 имеет соединение с Switch S3 и четырьмя рабочими станциями. Switch 25 имеет подключение с Switch S3 и шестью рабочими. станциями. Это позволить нам увеличить скорость между рабочимі станциями графического отділу и серверамі сети.

Кабинет текстовой редакций в нем установлено 2 хаба на 8 портов, которые помогают соединить все компьютеры в сетью и соединить их с сервером. Первый хаб называется switch 21, а второй switch 22.

В информационный отдел 5 рабочих станций подключаются к Switch 23.

Кабинет бухгалтерии - 5 рабочих станций подключаются к Switch 24

В комнате для коммутацоного обладнення установлено Switch S2,S1 Server “Diplom”. Switch S2 нужен, для того, чтобы соединять кабинет текстовой редакции, информационный отдел и бухгалтерию. Switch S2 нужен для подключения кабинета графической редакции и серверу.

III этаж.

Общее

В здание прокладка кабеля между кабинетами и серверами будет проходить по потолки. Внутри кабинетов кабель будет проходить между полом. Коммутационное оборудование кабинетов будет устанавливаться в специальных шкафах, чтобы к ним не было несанкционированного доступа.

Помещение для оборудования

Помещения для коммутационного оборудования будут оснащены стабилизаторами энергий, подведено резервное питание от генератора, чтобы в случаи отключения энергий сервера работали в нормальном режиме. На дверях будет установлен уникальный замок, для того, что бы к серверам не было физического доступа для тіх кто не имеет на это прав.

Магистральная кабельная система

Все кабелю будут прохолить между полом и накладным полом. Позволят нам спрятать кабель от посторонних глаз, физических повреждений и т.д.

Между этажами кабель будет проходить через спецальный тоннель. Тоннель представляет из себя трубу Ш 10 см. Это нам позволит легко добавлять или замещать магистральные кабели.

Проектирование сетевой адресации

В таблице IP адреса указанны диапазоны адреса с ранетом расширения предприятия.

Таблица № 5.1

Разбиение на сети и адреса

Сеть

Описание

20.34.34.0

Для соединения с провайдером

192. 168.1. 0

Для серверов предприятия(2)

192. 168.2. 0

Для рабочих станций предприятия

IP адресация

IP-Address

Описание

10.42.32.12

Proxy Cash Server (Провайдер)

192.168.1.1

192.168.2.1

10.42.0.10

Сервер безопасности,Web server, Файловый сервер

OPC Serv/2

192. 168.1.2

Контролер домена, Файловой Сервер, Mysql Server

192.168.2.12-192.168.2.32

Секретари

192.168.2.33-192.168.2.53

Библиотека

192.168.2.54-192.168.2.64

Информационный отдел

192.168.2.65-192.168.2.75

Охрана

192.168.2.100-192.168.2.115

Администрация предприятия

192.168.2.116-192.168.2.136

Бухгалтера

192.168.2.137-192.168.2.200

Редакция


Для серверов были, зарезервировал первых 10 адресsd в каждой сети. В первых, у серверов должны быть статические IP адреса, для того что бы каждая рабочая станция использовала сервер для использования функций ЛС. К примеру, таких как доступ к Интернет или к базе данных. Во второе, было сделано для того, что бы эти адреса можно было спокойно назначать в случаи с расширением серверов.

Для каждой группы работников были выделены диапазоны адресов с учетом расширения сети. Например, для охраны выделено 10 адресов, хотя реально используется три адреса.

Но построение сети, это не только IP адреса. Нам так именно понадобится и оборудование, благодаря которому мы сможем реализовать нашу сеть

Документация на кабельные трассы

В этой таблице указаны магистральные соединения и соединения между рабочими помещениями и магистралью.

Switch n- маркировка коммутаторов, которые устанавливаются в рабочих помещениях.

S n - маркировка коммутаторов, которые используются в магистральных соединениях

Индефикатор кабеля в таблице указывается I - J -T:

I - это номер этажа.

J - это номер кабинета.

T - это номер, который используется, в том случаи, когда из одного кабинета идет два или больше соединений.

В соединениях между серверами указывается:

I - это номер этажа.

J - это уникальный номер или сокращено имя серверу или оборудование.

Таблица 5.2

МАРКИРОВКА КАБЕЛЯ

Соединение

Идентификатор кабеля

Кросс соединения

Тип кабеля

Заключается

Первый Этаж

Switch 11-S1

1-1-0

Горизонтальный кросс соединения 1.1/порт 1

UTP5e

используется


Switch 12-S1

1-2-0

Горизонтальный кросс соединения 1.2/порт 2

UTP5e

используется


Switch 13-S1

1-3-0

Горизонтальный кросс соединения 1.3. 3/порт 3

UTP5e

Используется

Switch 21 – Switch 22

2-1-0

Горизонтальный кросс соединения 2.1/порт 1

UTP5e

используется

Switch 22 –S2

2-1-1

Горизонтальный кросс соединения 2.1/порт 1

UTP5e

используется

Switch 23 -

Switch 24

2-2-3

Горизонтальный кросс соединения 6/порт 6

UTP5e

используется


Системы защиты под управленнием ОС Linux

Установка и Настройка Firewall

Чтобы запустить Linux IP firewall, нужно построить ядро с поддержкой IP firewall и соответствующие конфигурационные утилиты. В ядрах к серии 2.2, нужно использовать утилиту ipfwadm. Ядра 2.2.x имеют третье поколение IP firewall для Linux, называемое IP Chains. IP chains использует программу ipchains. Ядра Linux 2.3.15 и старше поддерживают четвертое поколение Linux IP firewall: netfilter. Код пакета netfilter результат больших изменений потока обработки пакетов в Linux. netfilter обеспечивает обратную совместимость из ipfwadm и ipchains. Настраивается эта версия командой iptables. Настройка ядра для IP Firewall

Ядро Linux нужно настроить в поддержку IP firewall. Для этого нужно просто указать параметры при настройке ядра, например, командой make menuconfig. И выбрать следующих опций

Networking options -і->

[*] Network firewalls

[*] TCP/IP networking

[*] IP: firewalling

[*] IP: firewall packet logging

В ядрах серий 2.4.0 и старше нужно выбрать намного больше опций:

Networking options -і->

[*] Network packet filtering (replaces ipchains)

IP: Netfilter Configuration -і->

<M> Userspace queueing via NETLINK (EXPERIMENTAL)

<M> IP tables support (required for filtering/masq/NAT)

<M> limit match support

<M> MAC address match support

<M> netfilter MARK match support

<M> Multiple port match support

<M> TOS match support

<M> Connection state match support

<M> Unclean match support (EXPERIMENTAL)

<M> Owner match support (EXPERIMENTAL)

<M> Packet filtering

<M> REJECT target support

<M> MIRROR target support (EXPERIMENTAL)

<M> Packet mangling

<M> TOS target support

<M> MARK target support

<M> LOG target support

<M> ipchains (2.2-style) support

<M> ipfwadm (2.0-style) support

Утилита ipfwadm (IP Firewall Administration) нужна для управления правилами в ядрах к версии 2.2.0. Ее синтаксис очень сложен, но я приведу немного наиболее простых примеров.

Утилита ipfwadm есть во всех современных дистрибутивах Linux, алі, возможно, не относиться за умалчиванием. Может быть специальный сетевой пакет, которому нужно поставить отдельно. Найти исходный код можно на ftp.xos.nl в каталоге /pub/linux/ipfwadm.

Утилита ipchains

Аналогично ipfwadm, утилита ipchains может немного озадачивать, пока к ней не привыкнешь. Она обеспечивает всю гибкость ipfwadm с упрощенным синтаксисом и дополнительно обеспечивает механизм наборов или цепочек (“chaining”), что позволяет Вам управлять многими правилами и связывать их друг с другом. Формирование цепочки правил в отдельном разделе немного позже.

Команда ipchains появилась в дистрибутивах Linux на ядрах серии 2.2. Исходники можно взять на #"_Toc168899114">Инструкции администратору

Для групп компьютеров создать 3 вида образов дисков:

для группы компьютеров серверов serv/n (n – номер компьютера)

для группы компьютеров рабочих станций WS/n

для группы компьютеров работы с графикой GWS/n

Позволят быстрее возобновлять систему в случаи выхода из строя

Данные каждого работника хранятся на сервере ОРС serv/1 и периодически синхронизируются на OPC serv/2

На каждом сервере создать RAID 0 (в дальнейшем планируется переход на RAID 5.

На сервере OPC serv/2 установить DHCP сервер, который раздает автоматически IP-адреса для пользователей сети.

Сервер OPC serv/2 сделать колером домену.

Сервер OPC serv/2 сделать маршрутизатором, WEB и FTP сервером.

Рекомендации что к возобновлению рабочих станций в будущем при сбоях в их работе:

Установить OS Linux Suse

На файловом сервере (192.168.1.2) есть *.IMG файл диска

Запустите программу True Image и возобновить раздел на диске

Загрузить Linux

Зайти в меню Setup (Командой setup) там выбрать раздел сеть и выбрать настройку интерфейса eth0.

Для возобновления Ос Linux нужно возобновить 2 раздела HDA1 и HDA3

HDA4 лучше не трогать на нем берегутся данные пользователей.

5)IP-address указать автоматически (опция dhcp), dns:192.168.1.1

6)Настроить авторизацию через домен (имя домена stareditor)

На каждой рабочей станций из линукс HDD разбитый таким образом

HDA1 = 1Gb filesystem=EXT3 “/boot”HDA3 = 26 Gb EXT3 “/”

HDA2 = 400 mb “SWAP” HDA4 = 60 Gb EXT3 “/usr”

II)OS Windows XP Professional SP1

загрузить True image

Зайти на файловый сервер (192.168.1. 2), запустить IMG файл диска. К серверу можно подключится тремя способами первый через FTP, второй через сеть ms windows и третий через nfs. Зайти в каталог //secure/recovery/img/windows/win.img

Дальше зайти в Windows и настроить подключение к домену

На каждой рабочей станций из Windows HDD разбитый таким образом

HDA1 = 1Gb filesystem=NTFS “Loader” HDA3 = 50 Gb NTFS “TEMP”

HDA2 = 50gb filesystem=NTFS“Win&APPS” HDA4 = 60 Gb EXT3 “/usr”

Рекомендации что к возобновлению серверу

Его можно возобновить через Образ как привычные WS.

В случаи если конфигураций серверу не будут работать можно настроить его заново в ручную

Установка те Настройки Серверу

Для установки серверу нам будет нужно дистрибутив Linux FC4.

Компьютер OPC serv/2 или OPC serv/1.

Перед установкой Linux нужно убедится, что вы устанавливаете на первый диск.

При учреждении Linux нужно создать такие разделы:

1 раздел 1 gb с файловой системой EXT3 как загрузочный роздел “/boot”.

Второй раздел 50 gb filesystem= EXT3 как корень“/”.

Третий раздел 70 gb filesystem= EXT3 Jounal FS как теку “/usr”.

После установке в BIOS включить RAID- массив.

При конфигурация FTP сервера установит порт 921.

На папки установит следующие политики безопасности:

Вход разрешен только авторизированым пользователям. При входе пользователи заходят в свои каталоги или папки группы.

Вход разрешен только для сети 192.168.2.0.

При конфигурации Web серверу:

При входе через порт 4510 проводить авторизацию. И вслучаи успешной авторизаций дать доступ к программе работающей с базой данной через HTTP. Для входа на 80 порт выдать страницу предприятия. Доступ открыт для всех только на чтение.

Установка демона rc.iptables

rc.iptables- это нашь скрипт который является службой и мы хотим, что бы он автоматически загружался при загрузке линукса.

Для этого надо зделать следущие действия:

Копируем фаил rc.iptables в каталог /etc/init.d

Это делается следущие командой Copy /temp/rc.iptables /etc/init.d/

Или выделяем данный фаил в Midnight Comander (команда MC) и нажимаем F5.

Тестирование конфигурации

После того, как разработали соответствующую конфигурацию firewall, важно убедиться, что она делает именно то, что нужно. О тестировать конфигурацию сервера можно двумя средствами:

Одно средство заключается в том, чтобы использовать тестовый компьютер вне вашей сети для попытки проникнуть через firewall. Но это может выполняться медленно и быть ограниченно только теми адресами, какие Вы можете использовать.

Больше быстрый и простой метод, доступный в реализации Linux firewall: позволяет Вам вручную генерировать тесты и выполнять их через firewall именно так, будто Вы проверяли их с фактическими пакетами. Все варианты поддержки firewall ядром Linux (ipfwadm, ipchains и iptables) обеспечивают поддержку для этого стиля тестирования. Реализация включает использование соответствующей команды check.

Для того что бы протестировать свою конфигурацию первым способом были настроены несколько серверов которые будут использовать следующие порты 21(FTP-File Transport Protocol), 80(HTTP-A patch web server),111 (SHTTP-A patch web serve) 20(SSH - изъято подключение).

На сетевой интерфейс eth0 подключены следующие IP-адреса:

eth0 - 192.168.1.1/24

eth0:1 - 192.168.2.1/24

eth0:2 - 192.168.3.1/24

Для того что бы протестировать первым средством понадобится рабочая станция из которой нужно пытаться зайти на сервер. Для тестирования на ней будет установлено:

Операционная система Linux и Windows 2000 pro

Интернет обозреватель (Internet Explorer,Fire Fox или любой другой).

Сетевая карточка, которая поддерживает технологию Ethernet.

После того как сервер и рабочая станция будут настроены приступить к тестированию настроек.

1.Выставить на рабочей станции IP -адресу 192.168.1.2/24 и пытаться пройти через будь какой порт кроме портов 20,21,22,smb для этой сети

Должны работать только порты файловых серверов и доступ к ним виновный быть только из сетей предприятия.

Проверка: Загружаем программу для сканирования портов и начинаем сканировать по адресу 192.168.1.1 после чего нам выдается список открытых портов. Для того, чтобы удостовериться в работе программы сканирования портов мы пытаемся зайти на 80 порт который виноват быть закрытый для сети.

2.Выставляем на рабочей станции адрес 192.168.2.2 для нас должно открыться порты FTP, HTTP SSH. Повторяем процедуру со сканером портов и пытаемся подключится на сервер Samba, через сетевое окружение. Для этой под сети Samba должен быть закрыт.

Экономикческая часть

Сравнительный технико-экономический анализ предлагаемого проекта и выбранного аналога.

Целью создания проекта является создание проекта компьютерной сети для газетной редакции, которая занимается разработкой публикаций новостей, как в журналах и газетах, так и в Интернете с помощью своего Веб сайта. Данная сеть обеспечивает безопасность данных предприятия в случае потери и делает возможным их воссоздание, возможным использование сети Internet.

Компьютерная сеть расположена в 3х этажном здании. Задание на проектирование включает:

локальную сеть, подбор топологии и технологии компьютерной сети;

выбор оборудования, подготавливающего эту технологию включает:

рабочую станцию;

коммутатор (switch);

сервер;

соединение между этажами (tunel);

распланировку сетевой адресации;

витую пару (кабель).

Необходимо обеспечить установку программного обеспечения на рабочие станции и сервера.

Факторы, определяющие целесообразность внедрения проекта

В дипломном проекте разработана сеть предприятия и ее безопасность при помощи разработки следующих программ:

- установки настройки Firewall (защита системы от возможных физических атак). Каждый работник осведомлен о том, что он обязан закончить сеанс, или перейти в режим “Блокировки компьютера”. На серверах ведется журнал по запросам из внешней и внутренней сети и при повышенных потоках одинаковых запросов (повторов) с одного ІР адреса, система производит блокировку ІР или ддиапазона ІР, но Администратор сети должен следить за системным журналом. Блокировка нежелательных запросов происходит вручную. С этим поможет Firewall. Система реализует также функцию атак на право доступа. Системная политика каждый месяц будет просить, чтобы сотрудники предприятия меняли свой пароль, причем повторить пароль у них не получиться, любой сотрудник осведомлен о неразглашении служебной информации. Все документы подлежат физическому уничтожению.

Источники финансирования проекта

При разработке проекта вычислительной сети были задействованы собственные источники финансирования.

Аналогами разрабатываемой вычислительной сети являются

- продукты серии CISCO PIX(Private internet exchange)

- программное обеспечение CISCO PIX является собственной разработкой компании CISCO Systems и не основано, на каких либо клонах “UNIX”.

Организационное обеспечение проекта

Цель проекта

Целью разрабатываемого проекта является создание вычислительной сети и обеспечение ее безопасности для функционирующей редакции журнала.

Результаты внедрения проекта

В проекте разработана вычислительная сеть с использованием и установкой программного обеспечения и установкой необходимого оборудования для сети. В результате внедрения сети была повышена производительность труда сотрудников редакции, обеспечена надежность сохранения качества информации, повышена оперативность передачи информации.

Этапы выполнения проекта

В результате выполнения проекта были выполнены следующие этапы:

разработка концепции – при выполнении данного этапа была собрана необходимая информация о составе программного обеспечения и необходимого оборудования для проектируемой вычислительной сети;

разработка проекта – на данном этапе было установлено программное обеспечение, установлено и отлажена работа необходимого оборудования для сети;

реализация проекта – реализация проекта является этапом действующего функционирования вычислительной сети редакции журнала, обеспечение ее безопасности;

завершение проекта – завершение проекта включает реализацию программного продукта и его внедрение.

Cостав работ проекта, их продолжительность

Описание этого этапа можно представить виде таблицы (таблица 5.1).

Таблица 7.1

Состав работ проекта и их продолжительность

№ кода работы

Наименование работы

Т (дней)

1

Сбор данных и анализ существующего положения

13

2

Утверждение концепции

2

3

Установление деловых контактов, изучение целей, мотивов,

требований

3

4

Развитие концепции, планирование наглядной области других элементов проекта

4

5

Разработка и утверждение общего плана

7

6

Организация выполнения работ

3

7

Детальное проектирование и технические спецификации

8

8

Руководство и координация работ, корректировка основных показателей проекта

1

9

Эксплутационные испытания конечного продукта проекта

50

10

Подготовка документов и сдача проекта заказчику

4

11

Оценка результатов проекта и подведение итогов

1

12

Оценка итоговых документов и закрытие проекта

3

13

Установление потребности в результатах

1

14

Информационный контроль выполнения работ

3

15

Подтверждение окончания работ

2

16

Подготовка кадров к эксплуатации проекта

2

Всего


107


Расчет показателей экономической эффективности проекта

Расчет текущих затрат Текущие затраты рассчитываются для базового и проектируемого вариантов протекания календарного года. Текущие затраты включают в себя следующие составляющие:

- затраты на оплату труда персонала;

- затраты на функционирование проектируемого объекта (затраты машинного времени, материальные затраты);

- накладные расходы;

- другие затраты;

Затраты на оплату труда персонала

а) Годовой фонд основной заработной платы персоналу:(9.1) где Чі – количество специалистов i-й категории (люд), Зі – годовой фонд оплаты работы специалиста i-й категории (грн).Для базового варианта Ч = 2, где один выполняет работу программиста, а другой работу аналитика, годовой фонд оплаты труда рассчитывается из условия, что специалист работает 95(программист) и 60(2 программиста) рабочих 6(4) часовых смен с оплатой 10 грн/час.

Таким образом:

Збосн =(1•95•6•10)+(2•60•4•10)=10500 (грн.);

Для проектного варианта Ч = 2, где один выполняет работу программиста, а другой работу аналитика, годовой фонд оплаты труда рассчитывается с условием, что специалист работает 50 (программист) и 30(аналитик) рабочих 6(4) часовых смен с оплатой 10 грн/час. Таким образом:

Збосн =(1•50•6•10)+(1•30•4•10)=4200 (грн.);

б) Годовой фонд дополнительной заработной платы:

Здоп=Зосн•Кдоп (8.2)

где Кдоп =0.1- коефициент дополнительной заработной платы.

Для базового и проектного вариантов:

Збдоп=10500•0.1=1050 (грн.).

Збдоп=4200•0.1= 420 (грн.).

в) Начисление на социальное страхование

социальное страхование на случай пенсионного обеспечения (31,8%);

социальное страхование на случай временной потери трудоспособности(2,9%);

социальное страхование по безработице (1,3%)

социально страхование от несчастных случаев и профессиональных заболеваний (условно принимается 2,0%).

Таким образом, примем кнач=0,38, тогда для базового и проектного вариантов соответственно:

       


Общие затраты на оплату труда составляют:

(9.4)

Тогда:


Затраты на функционирование проектируемого объекта укрупнено состоят из:

(9.5)

где ЗМВ – стоимость машинного времени при функционировании проектируемого объекта (грн.);

ЗМАТ – стоимость материалов при эксплуатации проектируемого объекта (грн.).

Стоимость машинного времени:

 (9.6)

где Т –машинное время, необходимое для эксплуатации проектируемого объекта (часы);

См – стоимость одного часа работы вычислительного комплекса (грн.).

Тогда:


Стоимость затратных материалов:

 (9.7)

где Зі – количество і-го вида материала (шт., кг и т.д.);

 Сі- стоимость(рыночная стоимость) і-го вида материала (грн.).

Тогда:


Таким образом затраты на функционирования проектируемого объекта укрупнено составят:

 (9.8)

где Кнакл – коэффициент определяющий величину накладных расходов.

Примем Кнакл = 0,8, тогда для базового и проектного вариантов соответственно:


Другие коммерческие затраты могут составить 1% -5% от суммы всех текущих затрат:

 (9.9)

где Кпр – коэффициент, что определяет величину других затрат.

Примем Кпр=0,02, тогда:


В результате текущие затраты составляют:

(8.10)

Для базового варианта расчета:


Для проектного варианта расчета:


Расчет одноразовых затрат на проект

Для потребителя проекта одноразовыми будут все затраты, которые он должен понести в связи с переходом на эксплуатацию продукта, что возник в рамках проекта. В общем виде эти затраты можно выразить формулой:

 (9.11)

где Кпр- затраты на разработку проекта (грн.);

Ксо- затраты на специальное оборудование (грн.). Затраты на компьютеры и компьютерное оборудование определяются на основании их рыночной стоимости, наладку (10-15% от рыночной стоимости). Затраты на вспомогательное оборудование определяются как 10-12% стоимости компьютеров. То есть примем Ксо= 2500 (грн.);

Ксоп- сопутствующие одноразовые затраты (грн.).

 (9.12)

где Ктр- затраты на доставку спроектированного изделия до места эксплуатации(грн.) (может быть принято в границах 2%-6% от цены изделия);

Км- затраты на установку, монтаж, настройку изделия (грн.);

Кпр- другие затраты (демонтаж заменяемого изделия и т.п.) (грн.);

Квис- эта составляющая присутствует в расчетах, если заменяемое изделие или его часть может быть реализована (продана) (грн.). В таком случае Квис=0.

Коб- затраты на обучение персонала, который будет обслуживать внедряемое изделие, а так же авторский присмотр.

Таким образом, сопутствующие одноразовые затраты равняются:


Следовательно одноразовые затраты на проект по формуле (6.16):


Расчет одноразовых затрат на проектирование

Для расчета затрат на этапе проектирования необходимо определить продолжительность каждого этапа, начиная с разработки технического задания (ТЗ) и до внедрения проекту, включая авторский присмотр. Эту информацию целесообразно свести в таблицу.

Таблица 7.2

Этапы проектирования

№ этапа

Название этапа

Исполнитель

Т(дни)

1

Техническое задание (ТЗ)

разработчик

16

2

Эскизный проект

разработчик

13

3

Технический проект (ТП)

разработчик

15

4

Рабочий проект (РП)

разработчик

50

5

Внедрение проекта (ВП)

разработчик

10


Трудоемкость разработки ТП может быть определена, как сумма величин трудоемкости исполнения отдельных этапов проекта:

 (8.13)

где - трудоемкость разработки технического задания проекта;

 - трудоемкость разработки эскизного проекта;

- трудоемкость разработки технического проекта;

- трудоемкость разработки рабочего проекта;

- трудоемкость внедрения проекта;

 - трудоемкость авторского присмотра.

Трудоемкость этапов проектирования устанавливается на фактических затратах времени (календарного) в чел/дн на всех работах, выполнимых в рамках этих этапов. То есть:

Tn = 16+13+15+50+10 = 104 (чел/дн).

Расчет одноразовых затрат может быть представлен в виде сметы затрат (таблица 7.3).

Таблица 7.3

Смета затрат

№ п/п

Наименование статьи

Сумма в гривнах

Алгоритм расчета

1

Расходы в материалахи комплектующих (приобретение оборудования)

416457

, где Ni – количество i-го материала, Ci – рыночная цена i-го материала

2

Затраты на машинное время:

1.Общий труд – 104 чел/дн.

2.Затраты на м/ч – 77 ч

3.Стоимость м/ч – 1,8 грн/ч

77х1,8 = 138,6

,

3

Основная зароботная плата участников проекта

1. Программист 50 дней по 6 ч

2. Аналитик 30 дней по 6 ч

50х6х10 = 3000

30х4х10 = 1200

Исходя из трудоемкости разработки, количества специалистов и должностных окладов

4

Дополнительная заработная плата участников проекта

420

10% от п.3

5

Начисления на социальное страхование

1596

38,0% от п.3

6

Накладные расходы

1612,8

80% от п.4 + п.5

7

Итого производственная себестоимость

419811,6

8

Другие коммерческие расходы

83962,32

20% от п.7

9

Итого

503773,92


Определение начальной цены товара, которое возникает в результате реализации проектного решения

После установления внешних факторов, которые действуют на ценообразование (потребители, рыночная среда, государство, участники канала движения товаров), определение цели ценообразования (сбыт, потоковая прибыль, выживает, качество) нужно выбрать метод (способ) установления начальной цены товара.

Для определения начальной цены проекта применим затратный метод, который основан на ориентацию цены на затраты производства. Суть его в том, что к подсчитанным затратам производства прибавляют какой-нибудь фиксированный процент прибыли.

Данный метод употребляется:

как параллель с другими методами;

при установлении начальной цены на принципиально новую продукцию, когда ее невозможно сопоставить с той, что выпускается;

при установлении цен на продукции, которая изготовляется по разовым заказам и на опытные образцы;

при определении цен на товары, на которые спрос хронически превышает предложение.

Определим начальную цену проекта. Для этого прибавим к затратам производства (п.9 табл. 8.3) 30% фиксированной прибыли. Итак, имеем:

Ц = 503773+(503773*0,3) = 654905 грн.

Расчет показателей экономической эффективности проекта

Годовая экономия на потоковых затратах составляется по формуле:

Эг = (Рб – Рп) + ΔП,

Эг = (10500 – 4200) + 151132,176 = 157432,176 (грн).

Определим ожидаемый экономический эффект по формуле:

Эо = Эр – Ен * Кп,

Где Эр - годовая экономия на потоковых затратах (грн);

Кп – одноразовые затраты на проект (грн);

Ен - нормативный коэффициент эффективности одноразовых затрат (может быть задан хозяйствующим субъектом, или принимается на равные процентные ставки на депозитных счетах банка и т.п.). Примем Ен = 0,3.

Эр = 151132 – 0,3*419699 = 25222 (грн).

Рассчитаем коэффициент эффективности одноразовых затрат по формуле:

Ер = Эг / Кп,

Если Ер >= Ен, то проект эффективный.

Ер = 157432 / 419699 = 0,4;

Ер > Ен, это говорит о целесообразности разработанных проектных решений.

Итак, мы видим, что Ер >= Ен. Таким образом проект является эффективным.

Рассчитаем срок окупаемости одноразовых затрат проекта по формуле:

Токр = Кп / Эг,

Токр = 419699 / 157432 = 2,6 года.

Технико-экономические показатели проекта

Таблица 7.4

– Основные технико-экономические показатели проекта.

№ п/п

Наименование показателя

Единица измерения

Значение показателя

1

Результаты проекта (объем реализации работ, услуг)

грн

832914

2

Трудоемкость проекта

чел/дн

107

3

Цена проектного решения (продукта)

грн

654905

4

Одноразовые затраты

грн

419699

5

Себестоимость продукта

грн

419811

6

Годовая экономия

грн

26080

7

Годовой экономический эффект

грн

22167.127

8

Коэффициент экономической

эффективности одноразовых затрат

Ен

0,3

Ер

0,4

9

Срок окупаемости одноразовых затрат

месяцев

2,6 года

 

Охрана труда и безопастность жизнедеятельности

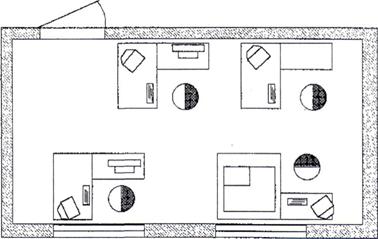
Описание отдела.Данная исследовательская работа проведена для анализа и разработки структур контроллеров АЦП? которые применяются для тензометрического взвешивания железнодорожных составов. Для проведения исследований по данной теме в основном используются средства вычислительной техники. Для разработчиков арендуется помещение размерами Зх 6 метров, которое имеет два наружных окна. Окна оборудованы форточками для осуществления циркуляции воздуха в помещении. Отдел проектирования состоит из 3-х операторов и 1 диспетчера.

Помещение отдела проектирования и исследований

Рисунок 8.1

Применение ВТ позволяет существенно улучшить условия труда и увеличить объём выполняемых работ, но всё-таки, несмотря на то, что работа оператора ЭВМ относится к категории "лёгкая Г" работе исходя из ГОСТ 19.605-74 по охране труда на рабочем месте, пользователи могут столкнуться с воздействием физических и психофизиологических опасных и вредных факторов, описанных в ГОСТ 12.0.003-83.

Анализ возможных опасных и вредных производственных факторов, создаваемых в помещениях ПЭО и влияющих на работающих

Основными факторами, влияющими на условия труда сотрудников вычислительных центров, и, соответственно, дополнительным вредным воздействием целой группы факторов, существенно снижающими производительность их труда, являются:

повышенная температура, связанная с выделением тепла от ЭВМ;

шум (работа принтеров и вентиляции);

возможность неудовлетворительного освещения;

возможность поражения электрическим током (питание 220В);

воздействие электромагнитных излучений терминала;

пожарная опасность.

Визуальные дисплейные терминалы ВДТ являются в настоящее время основным средством для взаимосвязи человека с ЭВМ. Ускоренное внедрение ЭВМ (персональные и коллективного пользования) практически во все области деятельности и ведёт к появлению большого количества рабочих мест с ВДТ. Они широко распространяются как на производстве в различных системах контроля и управления, так и в разных административно-общественныхзданиях, где размешаются вычислительные центры организаций и институтов, читальные и справочные залы библиотек, дисплейные классы школ, техникумов и других аналогичных объектов.

Исследования условий труда как на крупных, так и небольших вычислительных центрах Украины показало, что на большинстве из них пользователи ЭВМ 3 работают при неблагоприятном микроклимате труда нагревающею тела, повышенной влажности воздуха, повышенном шуме, нерациональном освещении.

В период работы с ВДТ на электронно-лучевых трубках (ЭЛТ) на организм пользователя воздействует целый ряд факторов физической природы, но все они находятся в пределах и значительно ниже номинальных величин в соответствии с действующими в настоящее время нормативными документами. Патологические изменения зрительного анализатора (катаракта и миопия), как следствие производственной деятельности, у пользователей ВТ практически не встречаются. Учитывая специфику зрительной работы с ВДТ, первоочередной задачей является обеспечение необходимых условий визуальной работы пользователя ЭВМ за счет наилучшего распределения яркостей в поде зрения работающего и максимально возможного уменьшения ослепленности от прямой и отраженной блескости и ограничения от постоянной пульсации изображения на ВТ и других мешающих и усиливающих общее и зрительное утомление факторов. С этой целью следует прежде всего правильно выбрать помещение и расположение рабочих мест с ВТ.

Система освещения может быть общей и общей локализованной. Выбор типа светильника по светораспределению и способ размещения светильников в помещении зависит от высоты помещения, расположения РМ в помещении и от количества РМ. РМ с ВТ следует размещать рядами, параллельными стене с окнами, таким образом, чтобы плоскость экрана ВТ была перпендикулярна плоскости окон. Светильники должны располагаться над проходами между рядами РМ сплошной линией или с разрывами в зависимости от количества светильников в линии, необходимых для обеспечения на РМ нормируемых освещённостей (табл.8.1.).

В период выполнения трудового процесса у программистов значительно снижена общая мышечная активность при локальном напряжении кистей рук. Для снижения монотонности в работе перерывы для отдыха необходимо сопровождать гимнастическими упражнениями для поддержания общего мышечного тонуса, а также профилактики костно-мышечных нарушений в поясничном отделе позвоночника.

Таблица 8.1

Уровень освещенности в помещениях с ВДГ

Характеристика дисплеев и зрительной работы

Нормируемые освещенности (лк) в

плоскости стола, клавиатуры (Е), экрана

(Б») при системах:

Вид дисплея

Группа

напряженност

и зрительной

работы (по

табл.)

Общее

комбинированное



Е, не менее

Е,

Е, не

менее

В т.ч. Е от общ.

Е,

Одноцветный (яркий знак на темном фоне)

П

I

300 400

150-100 200-150

400 500

300 400

150-100 200-150

Графический многоцветный и

одноцветный (яркие линии на

темном фоне)

Любая

-

-

400

200

100-75


Анализируя полученные данные, разработан комплекс мероприятий для сохранения работоспособности и по профилактике общих и зрительных нарушений.

Запыленность воздуха находится на допустимом уровне, давление воздуха в исследуемом помещении относительно атмосферного не отличается.

Между организмом человека и внешней средой происходит непрерывный процесс теплового обмена, при этом в результате терморегуляции температура тела сохраняется постоянной.

Влажность воздуха находится в пределах нормы и не вызывает пересыхание слизистых оболочек дыхательных путей.

Подвижность воздуха способствует теплоотдаче, что является положительным фактором при высоких температурах, но отрицательным при низких. Поэтому проектом предусмотрено применение механической и естественной вентиляции (инфильтрация воздуха через оконные проемы).

ГОСТ 12.1.005-76 устанавливает оптимальные и допустимые метеорологические условия рабочей зоны в помещении.

Согласно ГОСТ 12.1.005-76 лёгкие физические работы - это работы, производимые сидя, связанные с работой, не требующей систематического физического напряжения или поднятия и переноса тяжести: энергозатраты -150 ккал/час, в соответствии с этим определением работы, выполняемые оператором ЭВМ на рабочем месте с ВТ, можно считать лёгкими.

На основании выше указанных стандартов для поддержания температуры и влажности воздуха в исследуемом помещении в рамках оптимальных значений целесообразно применить кондиционирование воздуха.

Рационально выбранная освещённость рабочего места является одним из важнейших факторов предупреждения травматизма и профессиональных заболеваний. Правильно организованное освещение создаёт благоприятные условия труда, не утомляет глаза, повышает производительность труда.

Освещение на рабочем месте достаточное для нормальной зрительной работы с рукописным и печатным текстами. Нормирование искусственного освещения осуществляется СНиП -11.4.79:1.7.

В помещениях оператора ЭВМ (без дисплеев) уровень шума не превышает 65 дБ. В проекте наиболее рациональной мерой защиты от шума принято шумопоглощение, т.е. покрытие стен и потолков помещения звукопоглощающими минеральными плитками.

Безопасность работ с радиоэлектронным оборудованием и содержание его в исправном состоянии регламентируется правилами техники безопасности и производственной санитарии в электронной промышленности, правилами технической эксплуатации электроустановок потребителями. Степень поражения электрическим током в основном зависит от электрического сопротивления тела, которое в свою очередь зависит от:

состояния кожи (целости, чистоты, влажности);

площади соприкосновения и плотности контакта;

значения и рода электрического тока и приложенного напряжения;

времени прохождения тока.

ГОСТ 12.1.038-82 нормирует предельно допустимые уровни напряжения прикосновения и прохождения тока по линии рука-рука и рука-нога, при продолжительности воздействия не более 10 минут в сутки.

Монитор соответстветствует определенным стандартам и требованиям. Стандарт ГОСТ 27954 - 88 на видеомониторы персональных ЭВМ. Требования этого стандарта обязательны для любого монитора продаваемого на Украине. В соответствии с последними рекомендациями, в проекте для защиты от вредных излучений от ЭЛТ будут применяться защитные экраны (фильтры) двух типов:

толстое стекло, легированное ионами тяжелых металлов: -обеспечивает защиту от излучения ЭМП (В4, Н4, С4, УФО);

-        толстое стекло с тонким проводящим покрытием и с заземляющим проводником: - ослабляет излучение электростатического поля и ЭПМ.

Применение жидкокристаллических дисплеев позволяет экономить место для работы, а также убрать составляющую электромагнитных излучений от ВДТ.

Кроме того, с целью оптимизации ионизации воздуха в помещении ПЭО рекомендуется установить биополярный коронный аэроионизатор с транспортом аэроионов воздушным потоком. Это приведет к улучшению дыхания операторов ЭВМ.

Согласно ГОСТ 12.1.004-85 характерный аварийный пожароопасный режим электротехнического изделия - это такой режим работы, при котором нарушается соответствие номинальных параметров и нормальных условий в эксплуатации изделия или его составных частей приводящее к выходу из строя и создающее условия возникновения возгорания. При анализе пожарной безопасности на рабочем месте нужно исходить из того, что опасность возникновения пожара определяется, в основном, причинами электрического характера. К ним относятся:

короткое замыкание;

перегрузка.

Ток короткого замыкания достигает больших значений, а сопровождающее тепловое и динамическое воздействие может вызвать разрушение электрооборудования, воспламенение изоляции. Во избежание короткого замыкания в аппаратуре применяют, как правило, плавкие предохранители. Розетки применены с заземлением. Для огнетушения возможного пожара в помещении находяться огнетушители углекислотные (ОУ-2). В целях увеличения пожарной безопасности в помещениях установлена пожарная сигнализация.

Выводы

В рамках дипломного проекта была спроектирована локальная сеть, в которой использовались разные технологии построения сетей. Было проанализировано разные способы защите сети от атак. Сделан анализ программных и аппаратных средств защиты.

Был создан проект компьютерной сети предприятия в котором были продуманы и избраны топология подключения, размещения серверов и рабочих станций, было избрано программное обеспечение которое сможет выполнять все функции необходимые для работы предприятия. Для соединения компьютеров была избрана топология расширена звезда, она является самой надежной и проверенной на сегодняшний день. Были избраны технологии Fast Ethernet и Gigabyte Ethernet. Эти технологии позволяют передачу данных на скорости 100 и 1000 мегабайт в секунду.

Для создания безопасности сети, была продумана конфигурация сервера на котором будет использоваться брандмауэр “NetFilter”, который будет позволять отказывать в доступе. Брандмауэр будет также создавать системные отчеты в которых будет записываться все неудачные попытки подключения к серверу. В сети предприятия будет использоваться разбивка на разные Ip сети, помогут разделить серверы и рабочие станции и намного осложнить проникновение Хакеров в сеть предприятия.


Не нашли материал для своей работы?
Поможем написать уникальную работу
Без плагиата!
Без нейросетей!