Экспертиза и инвестирование инвестиционных процессов

  • Вид работы:
    Другое
  • Предмет:
    Финансы, деньги, кредит
  • Язык:
    Русский
    ,
    Формат файла:
    MS Word
    175,77 kb
  • Опубликовано:
    2010-06-11
Вы можете узнать стоимость помощи в написании студенческой работы.
Помощь в написании работы, которую точно примут!

Экспертиза и инвестирование инвестиционных процессов

Федеральное агентство по образованию.

ГОУ ВПО Тюменский Государственный Архитектурно – Строительный Университет.



Кафедра «Строительных конструкции»













Курсовой проект по дисциплине:

«Экспертиза и инспектирование инвестиционных процессов»














Выполнила: студентка АСФ,

4 курса гр. ЭУН 03-1,

Зырянова Л.Н.

Зачетная книжка № Э 03/17

Проверила:  Мартюшева А.И.


                                                    

Тюмень, 2007 год.

Содержание:

Введение ……………………………………………………………………………………………..3

Глава 1. Экспертиза проекта строительства

1.1.   Характеристика исходных данных …………………………………………………………5

1.2.   Экспертиза технологических решений …………………………………………………….9

1.3.   Экспертиза архитектурно-строительных решений ………………………………………14

1.4.   Экспертиза решений по инженерному обеспечению …………………………………….21

1.5.   Экспертиза противопожарных мероприятий ……………………………………………..24

1.6.   Экспертиза экономических показателей проекта ………………………………………....27

1.7.   Замечания и предложения по принятым решениям и результатам экспертизы ………..28

Глава 2. Инспектирование инвестиционного проекта

2.1. Определение структуры надзора за строительством объекта ……………………………….29

2.2. Функции технадзора со стороны заказчика …………………………………………………..36

2.3. Расчет затрат на содержание службы технадзора …………………………………………….44

2.3. План инспекционных работ в период строительства ………………………………………...48

Заключение …………………………………………………………………………………………..60

Литература …………………………………………………………………………………………..62




                                                       

Введение

Машиностроение- самая крупная отрасль промышленности по объему продукции, численности промышленно-производственного персонала и основным производственным фондам. Она охватывает тяжелое машиностроение, автомобильную, подшипниковую, станкоинструментальную, электротехническую промышленность, тракторное и сельскохозяйственное машиностроение и др.

Перспективным направлением развития всех отраслей машиностроения является создание гибких производственных систем на базе широкого использования электроники и микропроцессорной техники.

Главной целью курсового проекта является проведение экспертизы недвижимости как объекта инвестирования.

По результатам экспертизы с помощью нормативных документов и законов сделать заключение о техническом состоянии объекта, в котором четко и грамотно сформулировать и обосновать все имеющиеся недостатки и ошибки. Дать необходимые  советы, предложения и рекомендации по устранению всех существующих недочетов.

Экономическая задача курсового проекта состоит в том, чтобы с помощью составленных смет определить стоимость данного объекта, а также непосредственно определить, на сколько выгодно и эффективно вложение капитальных средств в данный проект. Экспертиза проектных решений по строительству объекта недвижимости в рамках курсового проектирования должна проводиться в соответствии с "Инструкцией о порядке проведения государственной экспертизы проектов строительства" РДС 11-201-95 и предусматривать рассмотрение:

- хозяйственной необходимости и экономической целесообразности намечаемого строительства, исходя из социальной потребности в результатах функционирования запроектированного объекта;

- выбора площадки строительства с учетом градостроительных условий;

- обоснованности определения мощности (вместимости, пропускной способности) объекта, исходя из принятых проектных решений;

- обеспечения безопасности эксплуатации предприятий, зданий и сооружений и соблюдение норм и правил  взрыво-пожарной и пожарной безопасности;

- наличия проектных решений по обеспечению условий жизнедеятельности маломобильных групп населения;

- оптимальности принятых решений по инженерному обеспечению, возможность и целесообразность использования автономных систем и вторичных энергоресурсов;

- обоснованности и надежность строительных решений;

- обоснованности принятых объемно-планировочных решений и габаритов зданий и сооружений, исходя из необходимости их рационального использования для размещения производств и создания благоприятных санитарно-гигиенических и других безопасных условий работающим;

- эффективности использования площадей и объемов зданий; обеспечение архитектурного единства и высокого уровня архитектурного облика зданий и сооружений, соответствие их градостроительным требованиям в увязке с существующей застройкой.

Проведение экспертизы и инспектирования инвестиционных проектов наи­более актуально на сегодняшний день, так как позволяет оценить эффектив­ность инвестиционных вложений, а также учесть издержки строительного процесса, оценить объект недвижимости, подлежащий экспертизе в условиях данного климатического района строительства. Цех предназначен для сборки, регулировки, обкатки и предпродажного обслуживания сельхозмашин, поступающих с заводов – изготовителей. Размещение цеха предусматривается на территории базы материально-технического снабжения в объединениях Госкосельхозтехники.

















Глава 1. Экспертиза проекта строительства

1.1Характеристика исходных данных

 

Объект: Цех сборки и предпродажного обслуживания 4 тыс. единиц сельскохозяйственной техники, г. Заводоуковск. Программой цеха предусмотрена сборка большой номенклатуры сельскохозяйственных машин. В основу технологического процесса их сборки заложен метод унифицированных рабочих постов, оснащенных необходимым набором специального инструмента и оснастки.

В цехе предусмотрены 12 постов: приемки, сборки, обкатки, контроля и предпродажного обслуживания машин, сварочный и слесарно-механический.

Подъемно-транспортные работы осуществляются электропогрузчиками и тягачами (тракторами) базы, тяговыми устройствами, рельсовой тележкой и крановым оборудованием.

Технологический процесс начинается на посту приемки, где проверяется комплектность узлов и деталей, затем производится сборка машин на постах сборки.

Стоимость: 146.6*1.54*47.83=10798тыс. руб. на 2007 год

Проект разработан для следующих характеристик района застройки:

1. III климатический район, IД подрайон.

2. скорость напора ветра 0,44 кПа;45 кгс/м2.

3. Вес снегового покрова 1,45 кПа;150кгс/м2.

4. расчетная tнаруж возд = - 300С;

5. инженерно – геологические условия  - обычные;

 

Инженерное оборудование:  водопровод, канализация, отопление, вентиляция, горячее водоснабжение, электроснабжение, устройство связи.

 

Технические показатели объекта          

Объём строительный 8149,0

Площадь застройки 1016,0

Общая площадь 1149,0 

Нормативный срок строительства:      

Определяем в соответствии со СНиП 1.04.03-85* по приложению 3. Расчётным  методом определения продолжительности строительства объектов.

     1. Расчетный метод определения продолжительности строительства объектов Тн основан на функциональной зависимости ее от стоимости строительно-монтажных работ С.

Для основных отраслей народного хозяйства эта зависимость выражается в виде функций:

где С - объем строительно-монтажных работ, млн. руб., в ценах, действующих с 1984 г.;

A1, A2 - параметры уравнения, определенные по данным статистики (см. таблицу).

     2. При использовании расчетного метода коэффициенты к нормам не применяются. Метод применим для интервала объемов СМР по отраслям, подотраслям, видам производств и группам объектов, приведенных в таблице.

3. Задел в строительстве объектов определяется на основе “Методических рекомендаций для разработки норм продолжительности строительства и задела в строительстве предприятий, зданий и сооружений” (М.:ЦНИИОМТП, 1984).

4. Подготовительный период определяется в пределах 15-25% общей продолжительности строительства, определенной по формулам настоящего приложения.

5. Сроки передачи в монтаж и продолжительность монтажа технологического оборудования определяются с учетом наиболее эффективной организационно-технологической последовательности по графику, согласованному с монтажной организацией, генподрядчиком и заказчиком.

Пусконаладочные работы входят в расчетную продолжительность строительства.

С= 114,04 тыс. руб=0,11404 млн.руб

По зависимости вида:

По зависимости вида:

Принимаем большую продолжительность, равную 19 мес.

Итого общая продолжительность строительства равна 19 месяцев ( 1 год 7 месяцев)

 

Строительные конструкции и изделия: Объект представленный для экспертизы выполнен из конструкций следующих марок и типоразмеров.

- фундаменты под колонны сборные железобетонные серии 1.020-1, вып.1-1, типоразмер 1;

- колонны сборные железобетонные по серии 1.423-3 вып. 1, типоразмер – 1;

- балки клеёные  по серии 1.62-15 вып. 1, типоразмеров 3;

- покрытие - плиты с деревянным каркасом по серии 1.465.5-12 вып.1, типоразмеров 7, сборные железобетонные по серии 1.041-1 вып.1. типоразмеров-4

- кровля рулонная  из 4 слоёв рубероида  марки РКМ-350Б с защитным слоем  з гравия с утеплителем из пенобетона

- лестницы сборные железобетонные по серии 1.251-3 вып 1, типоразмеров 6; металлические серии 1.459-2 вып.1, типоразмеров 2

- окна деревянные по ГОСТ 11214-78, типоразмеров 4, по ГОСТ 12506-67, типоразмеров 1

- двери деревянные по ГОСТ 11214-78, типоразмеров 4, по ГОСТ 12506-67, типоразмеров 1;

- ворота распашные шифр 41-74, типоразмеров 2.

 

Отделка: Наружная: кирпичные стены выполнены с расшивкой швов цементным раствором.

Внутренняя: штукатурка, затирка, окраска, облицовка глазурованной плиткой.

 Характеристика принятых объемно –планировочных и конструктивных решений

Здание смешанной этажности: административная часть здания трёхэтажная, производственная – одноэтажная; нежилое

Размеры в осях 18000 х 48000 м

В помещении производственного здания высота от пола до низа выступающих конструкций перекрытия (покрытия) 7,200 м. При необходимости въезда в здание автомобилей высота проезда 4,815 м до низа конструкций.

Здание с внутренними водостоками в качестве ограждения на кровле допускается использовать парапет. Высота парапета 1,35 м .

Административные и бытовые помещения строительно-монтажных организаций размещаются в пристройке к производственному зданию. Высота помещений от пола до потолка 3 м.

Во встроенных помещениях производственных зданий  предусмотрены уборные, помещения для отдыха, обогрева или охлаждения, личной гигиены женщин, ручных ванн, устройства питьевого водоснабжения, умывальные, полудуши, помещения для мастеров и другого персонала, которые по условиям производства размещены вблизи рабочих мест. В здание предусмотрены помещения для хранения, очистки и сушки уборочного инвентаря, оборудованные системой горячего и холодного водоснабжения, смежные с уборными. Уборные в многоэтажных бытовых, административных и производственных зданиях расположены на первом и втором этажах. Вход в уборную предусматривается через тамбур с самозакрывающейся дверью.

Характеристика принятых архитектурно-строительных решений:

- в одном здании объединены помещения для различных производств, складские, административные и бытовые помещения, а также помещения для инженерного оборудования;

- высота производственного здания принята в пределах, установленных 8,55м., на основании результатов сравнения технико-экономических показателей вариантов размещения производства в зданиях и с учетом обеспечения высокого уровня архитектурных решений;

- высота административного здания 9м.

- здание принято со световыми проемами высотой 3,315м, так как это допускается условиями технологии, санитарно-гигиеническими требованиями и экономически целесообразно;

-применено здание, сооружение и укрупненные блоки инженерного и технологического оборудования в кирпичном исполнении заводского изготовления;

     -разработаны объемно-планировочные решения с учетом необходимости снижения динамических воздействий на строительные конструкции, технологические процессы и работающих, вызываемых виброактивным оборудованием или внешними источниками колебаний.

Здание обеспечено всеми необходимыми инженерными коммуникациями:

центральное водоснабжение, водоотведение, отопление, приточно-вытяжная с механическими побуждениями и естественная вентиляция, электроснабжение от внешних сетей, телефонизация,

электрочасофикация, производственная громкоговорящая связь, пожарная сигнализация, ра­диофикация.

 В соответствии с этим имеются следующие технические поме­щения: электрощитовая, венткамеры. По степеням долговечности и огнестойкости здание  относится ко второй группе.


















1.2. Экспертиза технологических решений

1.2.1. В современном промышленном производстве в зависимости от перерабатываемого вида сырья и выпускаемой продукции встречается множество разновидностей технологических решений. Проект, представленный на экспертизу, предназначен для сборки, регулировки, обкатки и предпродажного обслуживания сельхозмашин. Строительство данного объекта представляется обоснованным по ряду причин. Прежде всего, это спрос на сельхоз машины в хозяйствах в виду их относительно небольшого количества, особенно если данное предприятие предполагает использование современных методов. Программой цеха предусмотрена сборка большой номенклатуры сельскохозяйственных машин. Технологический процесс механосборочных цехов дифференцирован на поэлементные операции, осуществляемые на автоматах, агрегатных станках, гибких производственных модулях, автоматических линиях. В основу технологического процесса сборки заложен метод унифицированных рабочих постов, оснащенных необходимым набором специального инструмента и оснастки. Кроме того, в цехе предусмотрены сварочный и слесарно-механический посты.

                                 Экспликация оборудования

                                                                                                                        Таблица 1            

Наименование и марка оборудования

Количество

1

Станок вертикально-сверлильный 2Н135

1

2

Станок точильно - шлифовальный 3Б634

1

3

Кран грузоподъёмностью 3,2т.

2

4

Тележка для перевозки деталей ОРГ – 16316

2

5

Устройство для перемещения ОПТ-1326

2

6

Пресс гидравлический ОКС-1671м

1

7

Стенд для сборки навесных сельхозмашин ОР-20440

2

8

Стенд передвижной для обкатки сельхозмашин ОР-20434    

2

9

    Устройство для перемещения ОПТ-1326

1

10

Подъёмник канавный передвижной П-113

1

11

Стенд передвижной для обкатки сельхозмашин и их гидропроводом ОРГ-16 342 ГОНИТИ

1

12

Компрессор гаражный ГП-0,15/10 С-412

1

13

Таль электрическая ТЭ 320-51120-00                       

1

14

Установка для смазки и заправки машин 03-4967М

1

15

Стол монтажный ОРГ-16313

5

16

Стенд для обкатки колёсных тракторов КИ-3103А.    

1


В отечественных механосборочных и сборочных цехах сборка крупногабаритных и тяжелых изделий осуществляется на стационарных стендах. Для передачи тяжелых изделий на сборку применяют различные напольные средства- передаточные тележки, трансбордеры, поворотные тележки-кантователи, роботрайлеры и др. При массовом и крупносерийном производстве сборка производится на сборочных конвейерах. Для ритмичной работы главного конвейера поблизости устраивают склады деталей, обеспечивая кратчайшие и наиболее удобные пути доставки этих деталей к конвейеру. То есть объект полностью удовлетворяет по технологическому процессу современным отечественным цехам.(22)

Если же учесть, что объект расположен в Заводоуковске, то проект представляется и вовсе целесообразным, т.к. в небольшом городе со значительной долей частного домашнего хозяйства и государственных сельскохозяйственных организаций данный объект будет востребован. Сельское хозяйство на территории района развивается, требуется постоянное обновление техники, её усовершенствование. Расширение рынков сбыта достигается за счет выпуска продукции стабильного качества, разработки и освоения новых изделий.

Также цех будет обеспечивать рабочими местами население г. Заводоуковска (более 50 мест). Значительное сокращение расходов на транспортировку готовой техники непосредственно с заводов изготовителей.

Предполагается годовая программа 4000 единиц сельхозтехники, в том числе и предпродажное обслуживание, что позволит значительно пополнить как местный, так и областной бюджет за счёт платы налогов.

Объект первоначально предназначен для сборки, регулировки, обкатки и предпродажного обслуживания сельхозмашин, поступающих с заводов-изготовителей.

1.2.2   При проектировании промышленных зданий следует:

объединять, как правило, в одном здании помещения для различных производств, складские, административные и бытовые помещения, а также помещения для инженерного оборудования;

Служебные, бытовые и административные помещения  занимают наименьшую часть от общей площади. Они запроектированы отдельным блоком, тем самым изолированы от производственной части цеха, т.к. допускается их размещение во вставках и встройках производственных зданий II степени огнестойкости. (п.2.3.1(ПОТ РО)).

Планировка промплощадки организации должна обеспечивать благоприятные условия для производственного процесса и труда.( 2.1.1)

Объемно-планировочные решения зданий и помещений должны обеспечивать возможность реконструкции и технического перевооружения производства, изменения технологических процессов и перехода на новые виды продукции. (2.2.2.)

В состав санитарно-бытовых помещений входят гардеробные, душевые, умывальные, уборные, курительные, устройства питьевого водоснабжения, помещения для обработки, хранения и выдачи спецодежды. (2.3.9 (ПОТ РО))

При гардеробных в соотв. п. 2.3.10. ПОТ РО расположены кладовые спецодежды, душевая уборные, кладовая уборочного инвентаря.

Состав помещений

Таблица 2

Наименование помещения

Площадь,кв.м

Помещение цеха:


1 этаж:


1

Участки сборки и предпродажного обслуживания машин

756

2

Участок обкатки самоходных машин

108

Административно-бытовая часть здания:

3

Тамбур

3,54

4

Вестибюль

12,32

5

Мужской гардероб уличной, домашней и специальной одежды

25,93

6

Душевая


7

Кладовая уборочного инвентаря

4,50

8

Туалет мужской

3.76

9

Комната мастеров и учётчика

19,07

10

Коридор

4,48


2 этаж:


11

Красный уголок

21,38

12

Женский гардероб уличной, домашней и специальной одежды

7,57

13

Душевая

1,71

14

Комната приёма пищи

12,0

15

Кабинет начальника цеха

9,67

16

Туалет женский

2,16

17

Туалет мужской

2,16

18

Коридор

22,62


3 этаж:


19

Коридор

25,88

20

Комната профсоюзной организации

12

21

Венткамеры

42


Площади и объём помещения использованы рационально.

 Габариты основного технологического и вспомогательного оборудования соответствуют объёмно-планировочным и конструктивным решениям здания.

При проектировании промышленного транспорта следует предусматривать мероприятия, направленные на обеспечение:

- безопасности движения транспортных средств;

- безопасности выполнения транспортных, погрузочно-разгрузочных и ремонтных работ;

- взрывопожарной и пожарной безопасности проектируемых объектов, транспортных и других производственных процессов. (п.1.9.СНиП2.05.07-91)










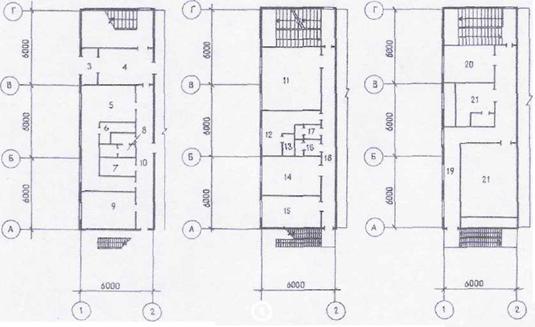
Фрагмент плана на отм. 0.000

Фрагмент плана на отм. 3,300

Фрагмент плана на отм. 6,600











                                                      

Рис. 1 План административной части здания цеха с указанием технологических потоков

                       - поток рабочих и персонала цеха


Рис.2 План размещения технологического потока

                  - поток рабочих и персонала цеха

 

 

 

ВЫВОД: В результате проведенная мной технологическая экспертиза показала, что данный объект отвечает требованиям нормативной документации, СНиП. Данный проект оснащен всем необходимым инженерным оборудованием, которое обеспечивает надежность в работе и  эксплуатации. Существует естественное и искусственное освещение.  Но данный проект имеет несколько достаточно важных недоработок. Во – первых, в данном проекте не предусмотрены условия для инвалидов и граждан других маломобильных групп населения. Не предусмотрены пандусы и входы.  В – третьих, не предусмотрены здравпункты или медпункты. Экспертиза технологических решений подтверждает наличие социальной, общественной и хозяйственной необходимости проектирования объекта.

                                                      
















1.3. Экспертиза архитектурно-строительных решений

Здание состоит из двух частей. Первая административная часть: представляет собой трехэтажное здание с размерами в плане 18х6м, вторая часть-производственное одноэтажное здание с размерами 18х48м.

Анализ структуры и состава помещений:

Административная часть здания
 по СНиП 2.09.04-87

Площадь вестибюля зданий следует принимать из расчета 0,2 м2, на одного работающего в наиболее многочисленной смене, но не менее 18 м2, в оцениваемом здании площадь составляет 12,32, отклонение от нормы на 30%.

В зданиях следует предусматривать помещения для хранения, очистки и сушки уборочного инвентаря, оборудованные системой горячего и холодного водоснабжения и, как правило, смежные с уборными. Площадь этих помещений следует принимать из расчета 0,8 м2 на каждые 100 м2 площади этажа, но не менее 4 м2, в нашем случае – 4,50м.

При площади этажа менее 400 м2 допускается предусматривать одно помещение на два смежных этажа.

Высота помещений от пола до потолка в административных зданиях должна быть не менее 2,5 м, Высота залов собраний, столовых и административных помещений вместимостью более 75 чел. должна быть не менее 3 м. В данном здании высоты соответствуют нормам.

Высоту технических этажей принята с учетом размещаемого оборудования, инженерных сетей и условий их эксплуатации; при этом в местах прохода обслуживающего персонала высота в чистоте более 1,8 м.

Эвакуационные пути обеспечивают безопасную эвакуацию всех людей, находящихся в помещениях зданий, через эвакуационные выходы. Выходы являются эвакуационными, если они ведут из помещений:

а) первого этажа наружу непосредственно или через коридор, вестибюль, лестничную клетку;

б) любого этажа, кроме первого, в коридор, ведущий на лестничную клетку, или непосредствен­но в лестничную клетку (в том числе через холл). При этом лестничные клетки должны иметь выход наружу непосредственно или через вестибюль, отде­ленный от примыкающих коридоров перегородка­ми с дверями; (п.4.1, 4.2) [4]

Ширина проходов, коридоров и других горизонтальных участков путей эвакуации принята из расчета, чтобы плотность потоков эвакуируемых не превышала 5 чел. на 1 м2; при этом ширина прохода в помещении принята более 1 м, коридора или перехода в другое здание— около 1,5 м

Расстояние по коридору от двери наиболее удаленного помещения, расположенного между лестничными клетками или наружными выходами (кроме уборных, умывальных, душевых, курительных), до ближайшего выхода на лестничную клетку или наружу не превышает допустимой нормы для здания II степени огнестойкости в 60 м.

Двери на путях эвакуации откры­ваются по направлению выхода из здания (п.4.12) [2]

Автоматическая пожарная сигнализация должна быть в отдельно стоящих зданиях и пристройках с числом этажей более четырех, во вставках и встройках— независимо от числа этажей во всех помещениях, кроме помещений с мокрыми процессами. Данное здание к этой категории помещений не относится, хотя сигнализация предусмотрена.

Уборные в многоэтажных административных и производственных зданиях должны быть на каждом этаже.

При численности работающих на двух смежных этажах 30 чел. или менее, как в данном здании, уборные следует размещать на одном из этажей с наибольшей численностью, но в нашем случае туалеты расположены на двух этажах, причём на втором этаже разделены на мужской и женский, т.к. Общую уборную для мужчин и женщин допускается предусматривать при численности работающих в смену не более 15 чел.( в оцениваемом здании 18 чел.)

3.12. Уборные в многоэтажных зданиях (бытовых, производственных, административных) при численности работников на двух смежных этажах более 30 чел должны быть на каждом этаже.

По п.2.3.13 допускается предусмотрение общей уборной для мужчин и женщин  при численности работников в смену не более 15 чел, в цехе уборные разделены на мужские и женские.

Вход в уборную должен осуществляться через тамбур с самозакрывающейся дверью. 2.3.14.

2.3.24. Помещения и места отдыха в рабочее время, помещения психологической разгрузки следует размещать, как правило, при гардеробных домашней одежды или при здравпунктах.

Площадь кабинета руководителя составляет 9,67 кв.м. что соответствует нормам и   не превышает 15% общей площади рабочих помещений. (2.3.29).

. Площадь кабинета охраны труда должна определяться в зависимости от списочной численности работающих в организации (СНиП 2.09.04-*;2.3.35): до 1000 чел.- 24м2

Расстояние от рабочих мест в производственных зданиях до уборных, курительных,  душевых, устройств питьевого водоснабжения должно приниматься не более 75 м, в нашем случае не превышает норму и составляет 42 м.; а от рабочих мест на площадке предприятия— не более 150 м, в административной части здания – не более 10 м.

 При проектировании производственных предприятий должны быть предусмотрены столовые, рассчитанные на обеспечение всех работающих предприятий общим, диетическим, а по специальным заданиям— лечебно-профилактическим питанием.

При численности работающих в смену менее 30 чел. вместо столовой-раздаточной допускается предусматривать комнату приема пищи, как в нашем случае.

Число мест в столовой принято из расчета одно место на четырех работающих в смене или наиболее многочисленной части смены.

Площадь комнаты приема пищи следует определено из расчета 1 м2 на каждого посетителя, но не менее 12 м2, как в данном здании.  Комната приема пищи должна быть оборудована умывальником, стационарным кипятильником, электрической плитой, холодильником.

Служебные помещения находятся под естественным освещением за счёт оконных проёмов. Полы преимущественно из линолеума. В таких помещениях как санузлы, душевая, кладовая уборочного инвентаря  используется керамическая плитка

Промышленная часть здания: помещение цеха

По СНиП 2.09.03-85

Сооружения расположены параллельно разбивочным осям, при этом разбивочные оси сооружений надлежит увязывать с унифицирован­ной сеткой колонн здания.

Трассы эстакад имеют наименьшую протяженность и отсутствуют повороты, а также пересечений с дорогами и другими коммуникациями в соответствии с требованиями СНиП II-89-80.

Полы цеха бетонные и частично мозаичные. Для предприятия, которое может расширяться, такое решение экономически не целесообразно, но с точки зрения производства, такие полы удовлетворяют нормам. Отделку рекомендуется принимать в одном тоне  и решать его геометрическим нейтральным рисунком. Другим цветом и другим характером рисунка рекомендуется выделить пол основных эвакуационных проходов. (п.3.12 (СНиП 2.09.03-85))

В качестве внутренней отделки выступает улчшенная штукатурка.

Все внутренние двери представляют собой деревянные щитовые конструкции по ГОСТ 6629-88. Оконные проёмы деревянные со спаренными переплётами по ГОСТ 11214-78.

Бетонные и железобетонные конструкции сооружений, подвергающиеся систематическому ув­лажнению атмосферными осадками, должны иметь на горизонтальных элементах (карнизах, полках и т. д.) гидроизоляцию и сливы, обеспечивающие свободный сток воды.

Настил обслуживающих площадок разгру­зочных железнодорожных эстакад и других сооружений следует проектировать с таким расчетом, чтобы исключалось скольжение при ходьбе (при стальных настилах следует предусматривать решетку в соответствии с ГОСТ 23120-78) .

По ПОТ РО – 14000-004-98

На промплощадке организации производства должны размещаться с учетом исключения вредного воздействия на работников, а также на здоровье и санитарно-бытовые условия жизни населения прилегающей к организации селитебной территории (2.1.6).

Высоту от пола до низа выступающих конструкций перекрытий, оборудования и коммуникаций, а также высоту от пола до потолка в коридорах следует принимать не менее 3 м. В данном случае отклонений нет высота потолка > 3м.(2.2.5.), выбрана с учётом конструктивных особенностей применяемого оборудования.(2.43 СНиП 2.09.03-85)

К зданиям и сооружениям по всей их длине должен быть обеспечен подъезд пожарных автомобилей: с одной стороны - при ширине здания или сооружения до 18 м и с двух сторон - при ширине более 18 м, а также при замкнутых дворах. (2.1.8).

Уровень полов первого этажа зданий должен быть, как правило, выше планированной отметки примыкающих к зданиям участков не менее, чем на 15 см. (2.1.9).

Оконные проемы, не предназначенные для вентиляции и дымоудаления, должны иметь не открывающиеся переплеты. (2.2.37).

Открытие переплетов, предназначенных для вентиляции и дымоудаления, должно быть механизированным.

Проектные решения должны обеспечивать снижение теплопотерь и высокий уровень теплозащиты зданий, в том числе применение наружных стен с высоким сопротивлением  теплопередач.

Теплотехнический расчёт ограждающей конструкции

 


 

 

Рис. 1. Разрез по стене

Основные слои:

  • глиняный кирпич – 130мм;
  • утеплитель (пенополистирол)  – Хмм;
  • глиняный кирпич – 300мм;
  • штукатурка – 20мм

Приведённое сопротивление теплопередаче ограждающей конструкции со­гласно требованиям к энергосбережению:

Определение ГСОП( градусо-суток отопительного периода) 0С*сут.

ГСОП= (tв-tот.п.)*Zот.п.

tв- температура внутреннего воздуха, 0С;

tот.п-температура отопительного периода,  0С

Zот.п.-средняя температура ,0С, и продолжительность, сут.,со средней  темпе­ратурой воздуха ниже или равной 8 0С по СНиП 2.01.01-82.

ГСОП=(16-(-7.2))*225=5011 0С*сут.

R0тр=2,4+((5011-4000)*(3-2,4))/(6000-4000)=2,7 м2*0С/Вт

Приведённое сопротивление теплопередаче ограждающей конструкции ис­ходя из санитарно-гигиенических и комфортных условий:

Определение  требуемого сопротивления теплопередаче:

 R0тр=n*(tв-tн)/∆ tнв

αв – коэффициент теплоотдачи внутренней поверхности ограждающей конст­рукции;

n - коэффициент, принимаемый в  зависимости от положения поверхности ограждающих конструкций по отношению к наружному воздуху

 tн- расчетная зимняя температура наружного воздуха , равная средней тем­пературе наиболее холодной пятидневки обеспеченностью 0,92 по СНиП 2.01.01 -82 , 0С;

 R0тр=(16+38)*1/(4,5*8,7)=1,38 м2*0С/Вт

Для дальнейших расчетов используется наибольшее значение:

R0тр=2,83 м2*0С/Вт

Определение термического сопротивления ограждающей  конструкции и нахождение требуемой толщины стены:

 Rк= R1+ R2+ R3

R1; R2; R3- термическое сопротивление слоев, м2*0С/Вт

R=δ/λ, где δ- толщина слоя ,м;

λ –расчетный коэффициент теплопроводности материала слоя , Вт/ м2*0С

R0= Rв+ Ru+ Rк

Rк 1 / δ 1+  λ 2 / δ 2 + λ 3 / δ 3+ λ 4 / δ 4

Rк =0,13/0,7 +X/0,052+0,3/0,7+0,02/0,81= X/0,052+0,64

R0=1/8,7 +1/23+ Rк=0,64+ X/0,052

0,64+ X/0,052=2,83

X=0,115 м- толщина  утеплителя

δ=0,13+0,115+0,3+0,02=0,565=м - общая толщина стены

Таким образом, для создания необходимого температурно-влажностного ре­жима можно увеличить толщину утеплителя до 11,5 см.

Ветровая нагрузка.

Скоростной напор ветра по проекту – 0,44 кПа.

Нормативное значение ветровой нагрузки w0 согласно СНиП 2.01.07-85 «Нагрузки и воздействия» равно  0,38 кПа.

Здание не  отвечает нормативным требованиям по ветровой нагрузке.

Рекомендация: необходимо использовать ограждающие конструкции, учитывающие требования по ветровой нагрузке на здание.

Снеговой нагрузка.

По проекту вес снеговой нагрузки составляет 1,45 кПа

,

где 180 кг/м2 – расчетная снеговая нагрузка для г.Заводоуковска

Снеговая нагрузка соответствует норме.

   ВЫВОД: В результате экспертизы архитектурно-строительных решений выделены следующие противоречия между проектной документацией и нормативной литературой:

1.   Данным проектом не предусмотрена сторожевая охрана, необходимая согласно прило­жению 3 (2);

2.   Недостаточная ширина площадки  лестничной клетки, она должна быть не уже ширины лестничного марша.

3.   Отсутствуют помещения и места отдыха в рабочее время, помещения психологической разгрузки, которые следует размещать, как правило, при гардеробных домашней одежды или при здравпунктах (п.2.3.24).

4.   Необходимо предусмотреть кабинета охраны труда площадью до 24 м, определена в соответствии со списочной численностью работающих в организации (СНиП 2.09.04-*п.2.3.35.).

5.   В проекте используются мозаичные полы, что не желательно. Отделку пола рекомендуется принимать в одном тоне и решать его геометрическим нейтральным рисунком, позволяющим, не нарушая композиционного ре­шения интерьера– п. 3.32 (2);

6.   Площадь вестибюля зданий составляет 12,32, отклонение от нормы 30 % .

7.   В производственных помещениях в осветительных установках следует применять лампы, обеспечивающие правильную цветопередачу. При необходимости устройства охранного освещения следует использовать светильники аварийного освещения.

8.   Отсутствуют вспомогательные помещения: диспетчерская, помещение для сменных мастеров, помещение пожарно-сторожевой охраны (п.3.20) [2]

9.   К зданиям и сооружениям по всей их длине необходимо обеспечить подъезд пожарных автомобилей с двух сторон (при ширине здания более 18 м). (2.1.8)

10.  Уровень полов первого этажа зданий должен быть выше планированной отметки примыкающих к зданиям участков не менее, чем на 15 см. (2.1.9).

11.  Для зданий производственных помещений в соответствии с НПБ 110-2003 должна быть предусмотрена автоматическая пожарная сигнализация

12.  Для охраны материальных ценностей промышленному предприятию следует дополнить систему пожарной сигнализации охранной защитой– п. 5.43 (2);

13.  Толщину стен, в соответствии с теплотехническим расчётом следует принять равной 565 мм, что обеспечит необходимый температурно-влажностный режим здания.

14.  Не предусмотрены помещения для обработки, хранения и выдачи спецодежды. (2.3.9)

1.4 Экспертиза решений по инженерному обеспечению

Здание обеспечено всеми необходимыми инженерными коммуникациями: центральное водоснабжение, водоотведение, паровое отопление, приточно-вытяжная и естественная вентиляция, электроснабжение, телефонизация, ра­диофикация. В соответствии с этим имеются следующие технические поме­щения: электрощитовая, венткамеры. По степеням долговечности и огнестойкости здание  относится ко второй группе.

Отопление и вентиляция

Система отопления здания  состоит из труб и батарей отопления. Теплоноси­телем является вода с параметрами 150-70. Нагрева­тельные приборы следует располагать вдоль наружных ограждающих конст­рукций (стен, окон). Размещение нагревательных приборов должно обеспечить доступ для их осмотра, ремонта и очистки (п. 5.7 (2)).

Проектом предусмотрена приточно – вытяжная с механическим побужде­нием и естественная вентиляция.

  Компоновку  вентиляционных систем и размещение венткамер следует вы­полнять в соответствии со следующими требованиями:

- приточные камеры должны располагаться с учетом забора воздуха из незагрязненных зон.

- при установке теплоутилизаторов допускается приточные и вытяжные вентка­меры располагать в смежных помещениях (п 5.13 (2)).

При естественном проветривании помещения административной части здания цеха рекомендуется оборудовать форточками, открывающимися фрамугами (при отсутствии кон­диционирования), а также потолочными вентиляторами независимо от уст­ройства вентиляции.

Водоснабжение

Проектом разработан объединённый водопровод, включающий производст­венный и хозяйственно-противопожарный. Напор воды на вводе в здание составляет 0,20 МПа.

 Канализация здания раздельная; хозяйственно-фекальная; производственная.

 Горячее водоснабжение – центральное от внутриплощадочных сетей.

 Внутренний противопожарный водопровод следует объединять с хозяйст­венно-питьевым водопроводом, включая установки пожарных насосов для внутреннего пожаротушения (5.26 (2)).

Соединение сетей хозяйственно-питьевого водо­провода с сетями водопрово­дов, подающих воду не питьевого качества, не допускается согласно СНиП 2.04.01.85 «Внутренний водопровод».

Электроснабжение

Согласно НТП ЭПП-94 «Проектирование электроснабжения промышленных предприятий»

Схемы электроснабжения промышленных предприятий должны разрабатываться с учетом следующих основных принципов: (п2.3)

- Источники питания должны быть максимально приближены к потребителям электрической энергии.

- Все элементы электрической сети должны, как правило, находиться под нагрузкой. Наличие резервных неработающих элементов сети должно быть обосновано.

- На каждом промышленном предприятии должна предусматриваться возможность централизованного отключения в часы максимума нагрузки энергосистемы или в периоды режимных ограничений в подаче электроэнергии

Допустимые перегрузки в послеаварийном режиме для масляных трансформаторов следует определять согласно требованиям ГОСТ 14209-85 [3], при этом для подстанций промышленных предприятий следует учитывать следующие условия [4]: (п.2.10.)

- Расчетную суточную продолжительность аварийной перегрузки принимать при при двух сменной 8 ч.

-  Допустимые аварийные перегрузки трансформаторов определять с учетом вида их установки:

Основными источниками питания промышленных предприятий, как правило, являются электроустановки энергосистем (электростанции, подстанции, линии электропередачи).

При сооружении предприятия в районе, не имеющем связи с энергосистемой, источником питания является собственная автономная электростанция (ТЭЦ, ГТЭС и др.). (п. 4.1)

В промышленных зданиях следует предусматривать электрооборудование, электроосвещение, устройства городской телефонной связи, проводного ве­щания. При технико-экономическом обосновании допускается использование местных электротехнических устройств. (п.4.2)

Питание предприятия от сетей энергосистемы в соответствии с п.5.1 НТП ЭПП-94 следует осуществляется на напряжении  220 / 380 кВ. Выбор напряжения питающей сети зависит от потребляемой предприятием мощности и от напряжения сетей энергосистемы в данном районе.

Для зданий производственных помещений в соответствии с НПБ 110-2003 должна быть предусмотрена автоматическая пожарная сигнализация.

При проектировании электрического освещения согласно НТП «Внутреннее освещение промышленных предприятий» должны быть обеспечены нормы освещенности и показатели качества освещения, бесперебойность действия освещения, удобство обслуживания осветительной установки и управления ею, а в необходимых случаях - соответствие освещения требованиям технической эстетики. (п.2.1)

На рабочие поверхности не должны по возможности падать тени от корпуса работающего или от производственного оборудования, особенно многократные или неперекрываемые светом других источников. Ослабление теней должно достигаться соответствующим расположением светильников или увеличением доли отраженной составляющей освещенности. (п.2.9)

При проектировании общего освещения (независимо от системы освещения) должна обеспечиваться равномерность распределения освещенности в соответствии с указаниями п.7.9 СНиП 23.03.95 .

В цехах, где необходимо временное увеличение освещенности отдельных поверхностей при выполнении сборочных формовочных и т.п. работ и  на ремонтных площадках необходимо предусматривать штепсельные розетки для присоединения переносных светильников ( 2.33)

Для общего освещения помещений должны преимущественно применяться разрядные лампы.( 2.40)

Для местного освещения следует применять лампы накаливания или люминесцентные лампы (п.2.43).

По п.2.48.( ) Светильники должны быть расположены и установлены таким образом, чтобы обеспечивались:

а) безопасный и удобный доступ к светильникам для обслуживания;

б) создание нормируемой освещенности наиболее экономичным путем;

в) соблюдение требований к качеству освещения (равномерность освещения, направление света, ограничение вредных факторов: теней, пульсаций освещенности, прямой и отраженной блескости);

г) наименьшая протяженность и удобство монтажа групповой сети;

д) надежность крепления светильников.

При общем равномерном освещении, а по возможности также и при локализованном освещении, светильники с лампами накаливания рекомендуется располагать по вершинам квадратных, прямоугольных  или ромбических  полей (п.2.49).

Необходимым является проектировка эвакуационного освещения на путях выхода для рабочих и персонала (п.5.37).

Помещение радиоузла должно быть оборудовано с учетом акустических требований. Допускаемый уровень шума, проникающего в радиоузел, не должен превышать 35 дБ.(5.45 (2)).

ВЫВОД: В результате экспертизы решений по инженерному обеспечению выделено следующее противоречие между проектной документацией и нормативной литературой:

Не предусмотрены устройства питьевого водоснабжения. (2.3.9)

1.5. Экспертиза противопожарных мероприятий

Технологические решения по пожарной безопасности:

В соответствии с п. 2.2 и таблицей 1 НПБ 105 – 95 «Определение категорий помещений и зданий по взрывной и пожарной опасности» помещения здания относятся к категории Д.

 (Характеристика веществ и материалов, находящихся (обращающихся) в помещении: негорючие вещества и материалы в холодном состоянии)

Архитектурно-строительные решения по взрыво-пожарной безопасности:

В представленной на экспертизу документации указано, что объект обладает II степенью огнестойкости (здания с несущими и ограждающими конструкциями из естественных или искусственных каменных материалов, бетона или железобетона с применением листовых и плитных негорючих материалов, в покрытиях зданий допускается применять незащищенные стальные конструкции).

Степень огнестойкости здания зависит от степени огнестойкости строительных конструкций зданий, и в соответствии с п. 5.18 и таблицей 4* СНиП 21 – 01 – 97 «Пожарная безопасность зданий и сооружений» в таблице 3 приведены пределы огнестойкости строительных конструкций для объекта, представленного на экспертизу.

Таблица 3

Предел огнестойкости строительных конструкций

Степень огнестойкости здания

Предел огнестойкости строительных конструкций, не менее

Несущие элементы

здания

Наружные ненесущие стены

Перекрытия междуэтажные

(в т. ч. чердачные и над подвалами)

Элементы бесчердачных покрытий

Настилы (в том числе с утеплителем

Настилы (в том числе с утеплителем

1

2

3

4

5

6

II

R 90

Е 15

RЕI 45

RЕ 15

R 15


В соответствии с п. 5.19* и таблицей 5* СНиП 21 – 01 – 97 «Пожарная безопасность зданий и сооружений» класс конструктивной пожарной опасности здания – С1.

В соответствии с п. 5.21* СНиП 21 – 01 – 97 «Пожарная безопасность зданий и сооружений» класс функциональной безопасности здания Ф 5.1- Производственные здания и сооружения, производственные и лабораторные помещения, мастерские

Объёмно-планировочные и конструктивные решения здания:

- Для зданий производственного назначения следует предусматривать пожарные лестницы по периметру здания не реже чем  через 200 м. В нашем случае ши­рина здания  составляет 54 м, что не превышает 150 м, допускается не предусматривать пожар­ные лестницы на главном фасаде здания.

- В месте перепада высот кровель (в том числе для подъема на кровлю)   предусмотрена наружные пожарные лестницы.

- Установлен следующий тип пожар­ных лестниц:

2-й — маршевые стальные с уклоном не более 6 : 1, шириной 0,7 м, начинающиеся с высоты 2,5 м от уровня земли, с площадками не реже чем через 8 м и с поручнями.

Эвакуация людей из помещений зданий:

Эвакуационные пути должны обеспечивать безопасную эвакуацию всех людей, находящихся в помещениях зданий, через эвакуационные выходы.

Из здания, с каждого этажа и из помещения предусмотрено два эвакуацион­ных выхода.

Ширина путей эвакуации в свету 1,5м (должна быть не менее 1 м), дверей — 1,2 м (норма - не менее 0,8 м). При выходе на лестничные клетки ширина дверных проёмов 0,8 м.

В лестничных клетках не допускается предусматривать помещения любого назначения, промышленные газопроводы и паропроводы, трубо­проводы с горючими жидкостями, электрические кабели и провода (за исключением электропровод­ки для освещения коридоров и лестничных клеток) , выходы из подъемников и грузовых лифтов, мусоропроводы, а также оборудование, выступаю­щее из плоскости стен на высоте до 2,2 м от поверх­ности проступей и площадок лестницы.

Высота дверей в свету на путях эвакуации должна быть не менее 2 м.

- Наружные эвакуационные двери зданий не должны иметь запоров, которые не могут быть открыты изнутри без ключа.

- Для эвакуации людей из зданий предус­мотрены:

лестницы типов:

1-й — внутренние, размещаемые в лестничных клетках;

3-й — наружные открытые;

- Ширина марша лестницы больше ширины эвакуационного выхода (двери) в лестничную клетку.

- Ширина лестничных площадок должна быть не менее ширины марша, а в рассматриваемом здании-меньше.

 - Между маршами лестниц предусмотрен зазор шириной около 50 мм.

- Устройство проемов (за исключением двер­ных) во внутренних стенах лестничных клеток не допускается.

ВЫВОД: В целом пожарная безопасность здания обеспечена, хотя имеются некоторые отклонения параметров и рекомендации:

1.   Ширина основных эвакуационных проходов в административной части здания составляет 1,5м. Это не соответствует нормам в 2,5м согласно п.1.111 (1). Недоста­точная ширина коридора, напрямую связывающего приёмочную и непосредственно помещение цеха. Эта величина составляет 1,5м вместо требуемых 1,8-2м. – п.3.49 (2);

2.   Необходимо предусмотреть встроенные шкафы для размещения по­жарных кранов.

3.   Ширина лестничных площадок меньше ширины лестничных маршей, что не допустимо.

1.6 Экспертиза экономических показателей проекта

Оценка стоимости строительства необходима для проверки  заявленной стоимости.

Стоимость строительства определена  в  текущем уровне цен для базового района с применением Укрупненных показателей базовой  стоимости по видам  работ (УПБС ВР) – МДС 81-24.2000.

Для определения затрат составлена  локальная(приложение 1), объектная сметы (приложение 2) и сводный сметный расчет (приложение3).

Заявленная стоимость объекта составляет 10798  руб. 

ВЫВОД: С учетом того, что сметы составлены только по основным видам строительных работ можно сделать вывод, что заявленная в проектной документации сметная стоимость строительства объекта не соответствует рассчитанной по укрупненным сметным нормативам

1.7. Замечания и предложения по принятым решениям и результатам экспертизы.

В ходе экспертизы установлено, что объект в целом удовлетворяет требова­ниям нормативной документации. Данный объект необходим для рассматриваемого района, т.к.промышленность сельского хозяйства района нуждается в более качественном парке сельхозтехники, его пополнении и модернизации. Цех объединяет  в себе несколько необходимых  для населения  производств: сборка, регулировка, обкатка и предпродажное обслуживание машин, объединенных в один комплекс. Все производства шумные и нуждаются в изоляции от  жилых  помещений.

В плане цех представляет собой прямоугольник с примыканием к нему с одной стороны группы административных, служебных, бытовых помещений. Служебные и бы­товые помещения изолированы от промышленной зоны. Имеется всё необходимое оборудование, также санитарно – гигиеническое, инженерное оборудование.

В проекте преду­смотрены все необходимые помещения для осуществления промышленной  дея­тельности. Их расположение друг относительно друга (планировочное реше­ние) выполнено с учётом всех необходимых требований, и имеют достаточную площадь. По структуре, составу  и площади помещений здания в общем  соответствует объемно-планировочным, технологическим, пожарным и санитарно-гигиеническим требованиям. Зоны разных производств расположены в разных частях этажа  и не пересекаются между собой.

Каждое производство оснащено специализированной технологией и оборудованием по современным стандартам.

Здание не отвечает  нормативным требованиям по ветровой нагрузке, то есть необходимо использовать ограждающие конструкции, учитывающие требования по ветровой нагрузке на здание.

Экспертиза экономической стороны предлагаемого проекта строительства цеха показала, что планируе­мый объём капитальных вложений (10798  тыс.руб.), инвестируемых в дан­ный объект занижен. Его действительная величина составляет 18 372,08тыс. руб.

В проекте не предусмотрены какие – либо условия для инвалидов и граждан других маломобильных групп населения. следует разработать пандусы для инвалидов и граждан других маломобильных групп населения, которые должны иметь поручни.

Предлагаемый инвестиционный проект содержит большое количество несо­ответствий, которое требует доработки.

Рекомендуется использование проекта с условием внесения изменений.

Глава 2. Инспектирование инвестиционного проекта

2.1 Определение структуры надзора со стороны заказчика

Систематическое наблюдение за качеством работ при строительстве цеха сборки и предпродажного обслуживания сельхоз машин в г. Заводоуковске определяет структуру надзора за строительством, включающую следующие органы технадзора:

1.   государственный архитектурно-строительный надзор, который осуществляется федеральным органом  исполнительной власти, уполномоченным на осуществление государственного строительного надзора, контролирующим качество применяемых в строительстве материалов, конструкций и изделий, а также качество производства строительно-монтажных работ;

2.   авторский надзор проектных организаций, который осуществляет автор проекта, ведущий наблюдение за точным соответствием возводимого здания указаниям проекта;

3.   строительный контроль, который проводится в процессе строительства в целях проверки соответствия выполняемых работ проектной документации, требованиям технических регламентов, результатам инженерных изысканий, требованиям градостроительного плана земельного участка;

4.   санитарный надзор, который следит за соблюдением санитарных норм по защите воздуха, воды, земли, насаждений;

5.   пожарная инспекция, которая контролирует  соблюдение противопожарных правил и норм при складировании материалов, по устройству противопожарных разрывов, размещению пожарных гидрантов;

6.   технический надзор со стороны заказчика-застройщика.

Государственный архитектурно-строительный надзор:

Проведение государственного строительного надзора регулируется Статьей 54 «Государственный строительный надзор» Градостроительного Кодекса Российской Федерации. В соответствии с этой статьей предметом государственного строительного надзора является проверка соответствия выполняемых работ в процессе строительства требованиям технических регламентов и проектной документации.

Государственный строительный надзор осуществляется федеральным органом  исполнительной власти, уполномоченным на осуществление государственного строительного надзора.  Кроме того, государственный строительный надзор осуществляется органами исполнительной власти субъектов Российской Федерации, уполномоченными на осуществление государственного строительного надзора.

Должностные лица, осуществляющие государственный строительный надзор, имеют право беспрепятственного доступа на все объекты капитального строительства, подпадающие под действие государственного строительного надзора.

По результатам проведенной проверки органом государственного строительного надзора составляется акт, являющийся основанием для выдачи подрядчику, застройщику или заказчику предписания об устранении выявленных нарушений. В предписании указывается вид нарушения, ссылка на нормативный правовой акт, технический регламент, проектную документацию, требования которых нарушены, а также устанавливается срок устранения выявленных нарушений. Приостановление строительства на указанный срок осуществляется в порядке, установленном законодательством Российской Федерации.

Авторский надзор проектных организаций за строительством:

Проведение авторского надзора проектных организаций за строительством осуществляется в соответствии со СНиП 1. 06. 05 – 85 «Положение об авторском надзоре строительных организаций за строительством предприятий, зданий и сооружений».

Авторский надзор проектной организации осуществляется весь период строительства и приемки в эксплуатацию законченных строитель­ством объекта в целях обеспечения соответствия технологических, архитектурно-строительных и дру­гих технических решений и технико-экономических показателей введенных в эксплуатацию объектов строительства решениям и показателям, предусмо­тренным в утвержденных проектах (рабочих проек­тах), а также в целях повышения ответственности проектных, строительно-монтажных организаций и заказчиков за обеспечение высокого качества воз­водимых зданий и сооружений и соблюдения их сметной стоимости.

Проектная организация, осуществляющая авторский надзор за строительство, обязана:

1. проверять в процессе строительства соответствие выполненных работ по возведению здания проектным решениям, преду­смотренным рабочими чертежами, и утвержденной сметной стоимости работ, соблюдение технологии (в том числе проектов организации строительства), качество производства строительно-монтажных ра­бот и работ по монтажу технологического и других видов оборудования, соблюдение правил пожаро- и взрывобезопасности помещений строящегося здания;

2.   своевременно решать возникающие в процессе строительства вопросы по проектно-сметной до­кументации;

3.   вести журнал авторского надзора, в котором фиксировать выявленные при строительстве от­ступления от проектно-сметной документации и нарушения требований строительных норм и правил и технических условий по производству строительно-монтажных работ, а также сроки их устранения;

4.   следить за своевременным и качественным ис­полнением указаний, внесенных в журнал автор­ского надзора; указания, записанные в журнал авторского надзора, обязательны для исполнения организациями заказчика и подрядчика. В случае несвоевременного или некачественного выполнения указаний по устранению выявленных дефектов вносить в журнал авторского надзора повторную запись о необходимости устранения дефектов, сообщая об этом в письменной форме заказчику и руководителю генподрядной организации для принятия ими оперативных мер по устранению де­фектов;

5.   участвовать в приемке техническим надзором заказчика отдельных ответственных конструкций, а так­же в составлении актов освидетельствования основ­ных работ, скрываемых последующими рвотами и конструкциями, от качества выполнения которых зависят прочность и устойчивость возводимых зданий и сооружений, указанных в перечне, прикла­дываемом к договору на осуществление авторского надзора.

Авторский надзор осуществляется по договору, заключенному заказчиком с генераль­ной проектной организацией на весь период строи­тельства предприятия, здания и сооружения.

Генеральный проектировщик в необходимых случаях может поручать по субподрядному дого­вору осуществление авторского надзора специа­лизированным проектным организациям в соответ­ствии с разработанной ими проектно-сметной доку­ментацией. В этих случаях обязанности заказчика по договору возлагаются на генерального проектировщика, а обязанности исполнителя — на специализированную проектную организацию.

Составление проектов договоров, дополнитель­ных соглашений, приложений к ним, журнала ав­торского надзора и представление проектов этих документов заказчику является обязанностью про­ектной организации.

К договору на осуществление авторского надзо­ра необходимо прилагать план-график, смету за­трат на весь период строительства и перечень основных работ и работ, скрываемых последующими работами и конструкциями. Общая сумма затрат на осуществление авторского надзора по договору не должна превышать размера затрат, определенного в сводном сметном расчете стоимости строитель­ства.

Дополнительные соглашения к договору составляются в случае необходимости увеличения затрат на осуществление авторского надзора сверх установленной в утвержденном сводном сметном расчете стоимости строительства. При этом указан­ное увеличение затрат производится заказчиком в пределах общей сметной стоимости строительства по сводному сметному расчету проекту за счет средств на непредвиден­ные работы и затраты.

К составлению плана-графика и сметы затрат на осуществление авторского надзора генеральным проектировщиком должны быть привлечены спе­циализированные проектные организации.

К осуществлению авторского надзора разреша­ется привлекать специалистов групп рабочего проектирования на строительстве.

Работники авторского надзора должны вести журнал авторского надзора согласно обязательному приложению СНиП 1. 06. 05 – 85 «Положение об авторском надзоре строительных организаций за строительством предприятий, зданий и сооружений».

Журнал авторского надзора передается заказчи­ку генеральной проектной организацией в сроки, устанавливаемые планом-графиком.

Журнал должен быть прошнурован (страницы его должны быть пронумерованы), подписан руко­водителем генеральной проектной организации и за­верен подписью и печатью заказчика.

Оформленный журнал авторского надзора пере­дается заказчиком генеральному подрядчику для хранения до окончания строительства.

Журнал авторского надзора выдается генераль­ным подрядчиком по требованию работников проектных организаций, осуществляющих автор­ский надзоре

Производители работ строительно-монтажных ор­ганизаций и представитель заказчика обязаны фиксировать в журнале авторского надзора испол­нение указаний работников проектных организаций, осуществляющих авторский надзор.

Ответственность за своевременное и качествен­ное выполнение требований авторского надзора, а также за сохранность и содержание в надлежащем виде журнала авторского надзора несет руководи­тель генеральной подрядной организации или назначаемый его приказом ответ­ственный представитель организации.

После приемки объекта в эксплуатацию генераль­ный подрядчик должен передать журнал автор­ского надзора на хранение заказчику.

Выполнение задания подтверждается заказчиком, а успешность его выполнения устанавливается руко­водством проектной организации.

Работники, осуществляющие авторский надзор, выезжают на строительство объектов в сроки, предусмотренные планами-графиками, а также по специальным вызовам заказчика.

В случаях, когда в осуществлении авторского надзора вместе с проектной организацией — гене­ральным проектировщиком принимают участие субподрядные специализированные проектные орга­низации, специалисты этих организаций объединя­ются в комплексную группу (подразделение) ав­торского надзора. Руководителем этой комплекс­ной группы назначается работник генерального проектировщика, осуществляющий руководство и координацию деятельности всех специалистов, вхо­дящих в группу.

Проектная организация — генеральный проекти­ровщик, представитель которой входит в состав рабочей и государственной приемочной комиссий, принимает решение об участии в этих комиссиях работников авторского надзора из числа специали­стов этой организации.

Проектная организация, осуществляющая авторский надзор, имеет право:

1.   запрещать применение в строительстве конструк­ций, деталей, изделий, строительных материалов и оборудования, не соответствующих государствен­ным стандартам, техническим условиям и проектно-сметной документации;

2.   давать указания, обязательные для организаций заказчика и подрядчика, о прекращении производ­ства работ, выполняемых с нарушением требований проекта и нормативных документов, уведомляя об этом в письменной форме заказчика, генерального подрядчика, генерального проектировщика и федеральные органы  исполнительной власти, уполномоченные на осуществление государственного строительного надзора;

3.   вносить в соответствующие органы представле­ния о привлечении должностных лиц, допустивших некачественное выполнение строительно-монтажных работ, к ответственности;

4.   проверять соответствие сертификатов (паспор­тов) и другой технической документации на кон­струкции, детали, строительные материалы и обору­дование государственным стандартам, техническим условиям и проектно-сметной документации;

5.   представлять предложения о снижении стоимо­сти, улучшении качества и сокращении продолжи­тельности строительства и совершенствовании тех­нологии производства строительных работ по объектам, рассматривать предложения по указанным вопросам и по согласованию с заказчикам и гене­ральным подрядчиком вносить на площадке строительства дополнения и изменения в проектно-сметную документацию с последующим в установлен­ном порядке оформлением и сдачей их на хранение в соответствующую проектную организацию.

Руководители проектных организаций, осу­ществляющие авторский надзор, несут ответствен­ность:

1.   за качественное и своевременное выполнение обязанностей, возложенных на них по СНиП 1. 06. 05 – 85 «Положение об авторском надзоре строительных организаций за строительством предприятий, зданий и сооружений», а также договорами (дополнительными соглашениями) на осуществление авторского над­зора;

2.   за своевременную и качественную разработку проектно-сметной документации по решениям, при­нятым в процессе осуществления авторского над­зора.

Осуществление авторского надзора проект­ной организацией не снимает ответственности со строительно-монтажных организаций и заказчика за качество строительно-монтажных работ и их соответствие проектно-сметной документации.

Строительный контроль

Проведение строительного контроля регулируется Статьей 53 «Строительный контроль» Градостроительного Кодекса Российской Федерации.

Строительный контроль проводится в процессе строительства в целях проверки соответствия выполняемых работ проектной документации, требованиям технических регламентов, результатам инженерных изысканий, требованиям градостроительного плана земельного участка.

Строительный контроль проводится лицом, осуществляющим строительство. В случае осуществления строительства на основании договора строительный контроль проводится также заказчиком или застройщиком. Застройщик или заказчик по своей инициативе может привлекать лицо, осуществляющее подготовку проектной документации, для проверки соответствия выполняемых работ проектной документации.

Лицо, осуществляющее строительство, обязано извещать органы государственного строительного надзора о каждом случае возникновения аварийных ситуаций на объекте строительства.

При выявлении по результатам проведения контроля вышеперечисленных недостатков работ, конструкций, участков сетей инженерно-технического обеспечения застройщик или заказчик может потребовать проведения контроля за выполнением указанных работ, конструкций, участков сетей инженерно-технического обеспечения повторно после устранения выявленных недостатков. Акты освидетельствования таких работ, конструкций, участков сетей инженерно-технического обеспечения должны составляться только после устранения выявленных недостатков.

Замечания застройщика или заказчика, привлекаемых застройщиком или заказчиком для проведения строительного контроля лиц, осуществляющих подготовку проектной документации, о недостатках выполнения работ при строительстве должны быть оформлены в письменной форме. Об устранении указанных недостатков составляется акт, который подписывается лицом, предъявившим замечания об указанных недостатках, и лицом, осуществляющим строительство.

Различают следующие виды строительного контроля:

1.   входной контроль рабочей документации, изделий, деталей, конструкций, материалов и оборудования;

2.   операционный контроль отдельных процессов или производственных операций;

3.   промежуточный контроль работ;

4.   приемочный контроль работ.

Входной контроль производится на складах при приемке материалов, деталей и изделий. Его назначение – проверка качества поступающих материалов, их соответствие сопроводительной документации, паспортам, ГОСТам, техническим условиям, требованиям рабочих чертежей. Входной контроль качества имеет своей целью предотвращение использование материалов и оборудования, не отвечающих требованиям нормативно-технической документации. Этот вид контроля осуществляется путем внешнего осмотра, проверки размеров, маркировки, комплектности. Проводят его мастера, производители работ. Более тщательно качество поступающих материалов и изделий проверяется в строительных лабораториях, где устанавливаются марки кирпича, цемента, бетона, стали, битума и др.

Входной контроль может быть сплошным и выборочным. При сплошном контроле проверяются все изделия, что необходимо в отношении наиболее ответственных и сложных конструкций. При выборочном контроле проверяется лишь часть изделий или материалов в определенном, предусмотренном технической документацией количестве или проценте. Результаты распространяются на всю партию поступающего материала. На строительной площадке преимущественное распространен выборочный контроль. Также необходимо наличие на изделиях штампа отдела технического контроля (ОТК).

Пооперационный контроль осуществляется после завершения  строительных процессов  на рабочем месте. При этом контроле выявляются все дефекты и причины их возникновения, что дает возможность своевременно принять меры по их устранению.

Для выполнения контрольных функций технический персонал пользуется  измерительными инструментами и приспособлениями – рулеткой, отвесом, уровнем, шаблоном и др.

Промежуточный контроль применяется  при приемке полностью законченных отдельных  видов работ или конструктивных элементов, в первую очередь скрытых работ (например, устройство фундаментов).

Приемочный контроль производится при приемке здания в эксплуатацию. Приемка выполняется в 2 стадии:

1.   предварительная приемка, осуществляемая рабочей комиссией;

2.   окончательная приемка, осуществляемая государственной приемной комиссией.

Рабочие комиссии организуются  заказчиком в составе генподрядчика, представителей субподрядных организаций, проектной организации, органов санитарного и пожарного надзора. Рабочая комиссия проверяет готовность здания к вводу в эксплуатацию с составлением соответствующих актов.

Государственная  приемочная комиссия начинает работу после письменного сообщения заказчика и генподрядчика о готовности объекта к сдаче в эксплуатацию. В состав документации входит акт рабочей комиссии  о готовности объекта, справка об устранении недоделок, выявленных рабочей комиссией, акты на скрытые работы и др.

Работа госкомиссии протекает в три этапа:

1.   проверка документов, предъявленных заказчиком;

2.   осмотр объекта;

3.   подведение итогов и составление окончательных выводов.

Санитарный надзор:

Основной функцией санитарного надзора является осуществление контроля за выполнением санитарных правил, гигиенических нормативов, санитарно-противоэпидемических (профилактических) мероприятий при проектировании, строительстве здания,  а также при вводе его в эксплуатацию.

2.2 Функции технадзора со стороны заказчика

Функции технадзора за строительством со стороны заказчика определяются на основании МДС 12–9.2001 «Положение о заказчике при строительстве объектов для государственных нужд на территории Российской Федерации» и Положения о заказчике-застройщике (едином заказчике, дирекции строящегося предприятия) и техническом надзоре.

На стадии предпроектной проработки и подготовки к строительству:

1.   проводит выбор строительной площадки и получает согласование на ее использование для строительства;

2.   разрабатывает бизнес-план;

3.   выполняет подготовительные работы, получает в установленном порядке необходимые согласования и разрешения для использования земельного участка для нужд строительства;

4.   организует изучение строительной площадки на предмет подтверждения отсутствия факторов, опасных для здоровья людей;

5.   получает в установленном порядке разрешение на строительство;

6.   получает согласование и технические условия на подключение объекта к действующим сетям;

7.   получает в администрации населенного пункта (района) подтверждение действия всех выданных технических условий на электроснабжение, водоснабжение, канализационные сбросы, отопление, радиофикацию, телефонизацию и т.д.

8.   выполняет подготовительные работы, получает в соответствующих органах необходимые согласования, разрешения и технические условия для проведения изысканий, проектирования и строительства;

9.   подготавливает исходные данные для разработки проектной документации;

10.  определяет предметы конкурса (лоты), составляет план проведения конкурсов по размещению заказов на поставку товаров, выполнение работ, оказание услуг в строительстве, несет все расходы по организации и проведению конкурсов на всех его фазах, оформляет договором поручение юридическому лицу на исполнение им части функций по организации и проведению конкурсов в случае, если эти функции не исполняются заказчиком организатором конкурса;

11.  осуществляет выбор, как правило на конкурсной основе, проектной и изыскательской организаций и заключает с ними договора на выполнение соответствующих проектных и изыскательских работ;

12.  организует экспертизу разработанной проектно-сметной документации, в том числе государственную экологическую экспертизу, и ее утверждение в установленном порядке;

13.  разрабатывает и утверждает техническую часть конкурсной документации, условия проведения конкурса, определения победителя, основные положения условий государственного контракта (договора) и другие разделы конкурсной документации;

14.  готовит предложение инвестору по составу и регламенту работы конкурсной комиссии;

15.  руководит работой конкурсной комиссии после ее утверждения инвестором;

16.  публикует извещения об открытых конкурсах, рассылает приглашения к участию в закрытых конкурсах, организует распространение конкурсной документации, прием заявок от участников, их рассмотрение, оценку и выбор победителей, осуществляет неконкурсные процедуры размещения заказов методом запроса котировок;

17.  заключает договора на работы и услуги по результатам конкурсов;

18.  получает разрешение на выполнение строительно-монтажных работ;

19.  согласовывает архитектурно-планировочные решения с градостроительным советом населенного пункта (региона) при строительстве объектов жилья и социальной сферы;

20.  определяет, как правило на конкурсной основе, поставщиков оборудования, строительных материалов и иных комплектующих, поставка которых по договору возложена на службу заказчика;

21.  определяет, как правило на конкурсной основе, страховую компанию и согласовывает условия страхования строительных рисков.

В области подготовки и использования площадки строительства:

1.   оформляет документы по отводу земельного участка;

2.   назначает лицо, ответственное за строительную площадку, или передает эту ответственность строительной или иной организации;

3.   получает разрешение соответствующих эксплуатационных органов на использование на период проведения строительно-монтажных работ действующих коммуникаций, источников газо-, водо-, паро- и энергоснабжения;

4.   оформляет документы на вырубку и пересадку деревьев, плодово-ягодных насаждений, снос строений, очистку территории от мешающих строительству объектов;

5.   определяет объемы и места вывоза и завоза грунта и плодородного слоя почвы;

6.   создает геодезическую разбивочную основу для строительства;

7.   выполняет разбивку осей и трасс зданий и сооружений;

8.   проводит переговоры с владельцами домов, строений и сельскохозяйственных угодий, подлежащих сносу;

9.   обеспечивает переселение граждан из строений, подлежащих сносу;

10.  производит расчет остаточной стоимости сносимых зданий и сооружений и подлежащих вырубке лесных насаждений или получает справку об остаточной стоимости сносимых сооружений от их владельцев;

11.  возмещает гражданам и юридическим лицам предусмотренную действующим законодательством стоимость изымаемых строений, участков земли, насаждений и посевов;

12.  получает разрешение на производство работ в зоне воздушных линий электропередачи в полосе отвода железных и автомобильных дорог, подземных коммуникаций и инженерных сооружений;

13.  обеспечивает реализацию возвратных материалов от разборки сносимых строений (сооружений), а также материалов, получаемых от попутной добычи и рубки насаждений;

14.  организует контроль за деформациями и состоянием зданий и сооружений в зоне влияния строительства.

В области контроля и надзора за ходом строительства:

1.   утверждает перечень лиц, которые от имени заказчика уполномочены осуществлять контроль и технический надзор за проведением строительно-монтажных работ и проверку качества используемых материалов, конструкций и оборудования, принимать скрытые и законченные работы и давать предписания о прекращении или временной приостановке работ;

2.   регистрирует в государственных контролирующих органах должностных лиц, ответственных за проведение работ повышенной опасности и соблюдение специальных требований поднадзорных служб;

3.   получает разрешение на выполнение строительно-монтажных работ;

4.   передает подрядчику документы об отводе земельного участка, необходимые согласования и разрешения;

5.   осуществляет вынос в натуру границ участка, красных линий и других линий регулирования застройки, высотных отметок, осей зданий и сооружений, трасс инженерных коммуникаций, а также границ стройплощадки;

6.   создает и передает строительной организации геодезическую разбивочную основу;

7.   принимает на баланс или ответственное хранение здания и сооружения, в т.ч. временные, построенные на строительной площадке после передачи ее под строительство объекта;

8.   сообщает подрядчику установленные места складирования и вывоза грунта, мусора, материалов от разборки, рубки насаждений, непригодных для вторичного использования, карьеров для завоза недостающего грунта, точки подключения и передает разрешения на подключение к действующим сетям энергоснабжения, водоснабжения, канализации и др.;

9.   передает подрядчику в производство работ утвержденную и прошедшую экспертизу проектно-сметную документацию в соответствии с Положением о проведении государственной экспертизы и утверждения градостроительной, предпроектной и проектной документации в Российской Федерации, утвержденным постановлением Правительства Российской Федерации от 27.12.00 № 1008, в количестве, необходимом для выполнения работ подрядчика и привлеченных организаций;

10.  утверждает графики выполнения работ;

11.  согласовывает подрядчику перечень планируемых поставщиков материалов и привлекаемых сторонних организаций для выполнения отдельных видов работ и монтажа оборудования;

12.  проверяет наличие необходимых лицензий и сертификатов у исполнителей работ и поставщиков материалов;

13.  осуществляет приемку, учет, хранение, предмонтажную ревизию и передачу в монтаж или производство работ оборудования, комплектующих и других материально-технических ресурсов, поставка которых по договору возложена на службу заказчика;

14.  принимает решение о необходимости авторского надзора проектной организации, шефмонтажных услуг производителей оборудования и заключает договора на выполнение указанных работ;

15.  устанавливает порядок ведения исполнительной и производственной документации, не предусмотренной непосредственно нормативными документами, и сообщает об этом подрядчику;

16.  даст указания подрядчику о конкретном составе приемосдаточной исполнительной документации, необходимой для приемки объекта в эксплуатацию;

17.  согласовывает с соответствующими организациями порядок установки, опробования и регистрации технологических подъемных механизмов и оборудования, работающего под повышенным давлением;

18.  осуществляет контроль и технический надзор за строительством, соответствием объема, стоимости и качества работ проектам, сметным расчетам и договорным ценам, строительным нормам и правилам на производство и приемку этих работ;

19.  контролирует выполнение графика производства работ;

20.  принимает от подрядчика законченные работы в соответствии с условиями договора подряда;

21.  производит освидетельствование скрытых работ и промежуточную приемку ответственных конструкций;

22.  в необходимых случаях организует внесение изменений в проектно-сметную документацию, ее переутверждение и изменяет сроки завершения отдельных видов работ или этапов строительства;

23.  по согласованию с инвестором принимает решение о временном прекращении строительства и консервации объекта, утверждает смету на выполнение работ по консервации и контролирует их качественное выполнение;

24.  принимает от подрядчика законсервированные объекты и организует охрану материальных ценностей;

25.  при обнаружении отступления от проекта, использования материалов и выполненных работ, качество которых не отвечает требованиям ТУ, ГОСТ и СНиП, дает предписание о приостановке работ и исправлении обнаруженных дефектов и предъявляет виновной стороне предусмотренные договором санкции;

26.  организует приемку и ввод в эксплуатацию законченного строительством объекта;

27.  заключает договора и организует выполнение шефмонтажных и пусконаладочных работ;

28.  представляет документы, необходимые для приемки объекта в эксплуатацию;

29.  после приемки объекта в эксплуатацию передает инвестору (пользователю) объект и необходимую документацию, включая гарантийные обязательства, а также техническую информацию в соответствии с Законом о защите прав потребителей;

30.  осуществляет необходимую подготовку к выпуску продукции, комплектование объекта кадрами, сырьем, материалами, энергоресурсами и т.д.;

31.  подготавливает совместно с подрядными организациями предложения и расчеты на премирование за ввод в действие производственных мощностей и иных объектов строительства;

32.  принимает претензии по качеству от потребителей (пользователей) и предъявляет претензии к исполнителям (поставщикам) в соответствии с законодательством и гарантийными обязательствами по заключенным договорам.

В области финансирования, учета, отчетности и аудита:

1.   обеспечивает своевременное открытие счета в банке по согласованию с инвестором и контролирует поступление на него средств инвестора для своевременной оплаты выполненных работ и иных платежей, предусмотренных договорами;

2.   устанавливает по согласованию с подрядчиком условия промежуточных платежей и окончательного расчета за выполненные работы и оказанные услуги;

3.   перечисляет поставщикам (исполнителям работ) обусловленный договором аванс;

4.   ведет бухгалтерский, оперативный и статистический учет, составляет и представляет отчетность в установленном порядке и в соответствии с условиями договора с инвестором об использовании выделяемых на строительство средств;

5.   компенсирует подрядчику или субподрядчикам убытки, возникшие и документально подтвержденные в результате нарушения заказчиком условий договора подряда;

6.   представляет по запросу инвестора информацию о ходе строительства и расходовании финансовых и иных материальных ресурсов;

7.   представляет установленную законодательством государственную статистическую отчетность в региональные органы Госкомстата России;

8.   при финансировании строительства объекта за счет нескольких источников и (или) инвесторов организует получение долевых взносов от каждого инвестора и представление им соответствующих отчетов;

9.   при временном отсутствии финансовых ресурсов у инвестора по согласованию с ним привлекает для оплаты заказанных товаров, выполненных работ и услуг иные источники финансирования, в т.ч. за счет банковских кредитов;

10.  после приемки объекта в эксплуатацию выплачивает участникам строительства, включая службу заказчика, премию за ввод объекта в эксплуатацию и распределяет между сторонами средства за счет полученной экономии от проведения мероприятий, удешевляющих строительство;

11.  проводит анализ затрат по отдельным статьям расходов и видам работ и услуг и принимает меры по эффективному использованию выделяемых инвестором ресурсов, обеспечивает контроль за расходованием денежных средств и списанием материальных ресурсов с максимальным использованием вычислительной техники и программных средств;

12.  дает разъяснения по техническим и финансовым вопросам государственным контролирующим органам;

13.  по согласованию с инвестором организует проведение аудиторской проверки деятельности службы заказчика;

14.  составляет и утверждает у инвестора (инвесторов) смету расходов на выполнение функций заказчика и иных работ, выполняемых службой заказчика по договору с инвестором, по каждому объекту строительства или на календарный год;

15.  участвует в освидетельствовании объектов, зданий и сооружений, подлежащих консервации, и в оформлении документов на консервацию или временное прекращение строительства, а также оценке их технического состояния при возобновлении работ;

16.  осуществляет по поручению инвестора реализацию объектов незавершенного строительства;

17.  участвует в проверках, проводимых органами государственного надзора и строительного контроля, а также ведомственными инспекциями и комиссиями;

18.  извещает органы государственного строительного контроля о выявленных случаях аварийного состояния на объекте строительства;

19.  осуществляет контроль за исполнением подрядчиком предписаний государственных надзорных органов и авторского надзора, требований шефмонтажных организаций в части безопасных методов ведения строительства, качества работ и используемых материалов и строительных конструкций;

20.  представляет в соответствующие государственные органы материалы по итогам хозяйственной деятельности, другие отчетные данные и необходимую информацию о результатах производственной и финансовой деятельности за отчетный период и выплачивает в установленные сроки налоги и платежи по месту регистрации службы заказчика.

В области приёмки законченных строительством объектов

1.   Подготовка необходимого комплекта документации

2.   Несёт ответственность за приёмку объектов, построенных с нарушениями, проектированием документации, нормативных документов

3.   Передаёт после приёмки законченный объект эксплуатирующей организации

4.   При необходимости консервации недостроенных объектов принимает стройки по акту от подрядной организации обеспечивает сохранность выполненных работ




























2.3 Расчет затрат на содержание службы технадзора

Производится на основе МДС 81-7.2000 «Методическое пособие по расчёту затрат на службу заказчика-застройщика»

Расчёт №1 определение численности аппарата заказчика

Численность аппарата заказчика определяется в зависимости от объёма капитальных вложений в год. Численность аппарата   заказчика  -  застройщика  определяется исходя из годовой суммы инвестиций за  счет  средств  федерального   бюджета и в соответствии с приложением 1 письма Госстроя России от   07.04.94 N ВБ-12-64.

       При годовом  объеме  инвестиций  менее  1 млн.  руб.  в  ценах 1984 г.  служба заказчика не образуется,  а  работа,  связанная  с выполнением  функций  технического надзора,  финансируется за счет  основной деятельности инвестора.

 В данном случае объём капвложений составил:

(146,60 / 19) х 12= 92,589 тыс. руб< 1млн, следовательно создаём аппарат заказчика застройщика, состоящий из одного работника.

С2006= 146,60 х 1,6 х 47,83=11219,00 тыс. руб

С2001= 11219,00/3,66=3065,30 тыс.руб.

                                  Расчёт №2 Расходы на оплату труда.                  

 Таблица 4

Должность

чел

Оклад,

тыс.руб.

ФОТ мес,

тыс.руб

Доплаты

Региональн. коэфф.

Сумма,

тыс.руб

Выслуга лет

Персональные надбавки

Инженер-строитель

(по ПОТ РО – 14000-004-89, таб 3)

1

20,000

20,000

-

5,000

3,750

28,750

Итого:


20,000



3,750

28,750


Основная заработная плата в расчете на год:  

28,750 тыс. руб. x 11 =316,250 тыс. руб.  

 Персональные надбавки  в   расчете на год:  

5,000 тыс. руб. x 11 = 55,000 тыс. руб.  

Выплаты стимулирующего характера:

3,000 тыс. руб. x 4 =12000 тыс. руб.  

 Оплата отпусков:

 28,750 млн. руб

                         

Расчёт №3. Амортизационные отчисления

  Таблица 5

Название основных средств

Стоимость, тыс.руб.

Норма амортизации в год, %

Сумма, тыс руб.

Автомобиль

250,000

14,3

35,750

Компьютер и др. оргтехника

50,000

12,5

6,250

Мебель

10,000

6,7

0,670



ИТОГО

42,670

Расчёт №4 Затраты на командировки

 1. Количество строящихся объектов - 1.

 2. Среднее    расстояние   объекта   от   места   расположения

   заказчика - 120 км.

 3. Количество посещений одного объекта в год - 10.

 4. Средняя стоимость одной поездки автомобильным транспортом -

   400 руб.               

 5. Затраты на осуществление  технического  надзора  и  решения

   оперативных вопросов   по  строительству  объектов  с  учетом  50%

   поездок с использованием транспорта заказчика и возвращением в 50%

   поездок в течение одного рабочего дня:  

проезд: 400 руб. x 1 x 10 x 0,5 = 2,000 тыс. руб.

суточные: (100 х 2дня ) x 1 x 10 x 0,5 = 1,000 тыс. руб.

проживание: 1,000 тыс.руб x 1 x 10 x 0,5 = 5,000 тыс. руб.

    Всего... 8,000 тыс. руб.

  

  Расчёт №5 Затраты на содержание легкового автомобиля        

расчет затрат на содержание автомобиля ВАЗ 2110:  

 запасные части и профилактический ремонт  70,000 тыс. руб.  

 Автостоянка – 18,000 тыс.руб. (копия договора).

Среднемесячный пробег - 150 км x 22 дн. = 3300 км.

Расход бензина на 100 км пробега - 8 л.

Стоимость 1 л бензина – 20 х 3300 = 66,000 тыс. руб.

      

       Итого: 154,000 тыс. руб.

Расёт №6 Аренда и содержание помещения

Общая площадь, приходящаяся на одного работника до 7,5 м кв.

Аренда офисных помещений в г. Тюмень составляет примерно 300 тыс. руб/м кв.

Аренда в год будет составлять 27,000 тыс.руб

Расчёт № 7 Расходы на канцелярские принадлежности и приобретение справочной литературы.

Затраты на приобретение канцелярских принадлежностей и справочной литературы определяются расчетом с использования фактических данных за предыдущий сопоставимый период с учетом прогноза на  инфляционные процессы и составят

1,700 тыс. руб. и 1,000  тыс.руб. соответственно

                             Расчет затрат на содержание службы технадзора     

  Таблица 6

Основные статьи затрат

Размер затрат на расчётный период, тыс.руб

Обосновывающие документы

1

2

3

1. Расходы на оплату труда,
в том числе:


Используются данные Госкомстата России и его территориальных подразделений

1.1. Заработная плата (основная), исчисленная из должностных окладов

316,250

Штатное расписание

1.2. Дополнительные выплаты стимулирующего характера

12,000

-"-

1.3. персональные надбавки

55,000

-"-

1.4.Выплаты обусловленные районным регулированием оплаты труда (коэф.1,15)

41,250

-"-

1.5. Оплата отпускных

28,750

-"-

1.6. Прочие расходы на оплату труда


-"-

2. Налоги, отчисления и платежи,
в том числе:

2.1. Отчисления в фонд социального страхования РФ (2%)

7,300

26 глава Налогового Кодекса РФ

2.2. Отчисления в Пенсионный фонд (20%)

73,000

-"-

2.3.Отчисления в фонд обязательного медицинского страхования (2,8%)

10,220

-"-

3. Амортизация основных фондов

42,670

Единые нормы на амортизационных отчислений на полное восстановление основных фондов народного хозяйства №1072 от 11.11.90 г., расчёт №3

4. Материальные затраты и прочие расходы,
в том числе:



4.1. Командировочные расходы

8,000

Расчёт № 4

4.2.Содержание служебного легкового автотранспорта

154,000

Расчёт №5

4.3. Аренда и содержание зданий и сооружений, включая оплату коммунальных услуг

27,000

Расчёт №6

4.4. Представительские расходы

-


4.6. Приобретение канцелярских принадлежностей

1,700

Расчёт №7

4.7. Приобретение технической и справочной литературы

1,000

Расчёт №7

4.8. Содержание охраны

-"-


4.9.расходы на охрану труда и технику безопасности

-"-


4.10. Почтово-телеграфные расходы

-"-


4.11. Юридические услуги, услуги аудитора и т.п.

-"-


4.12. Прочие расходы

До 5% материальных затрат

9,585

Приложение 2 к письму Госстроя России от 07.04.94 г. № ВБ-12-64


В соответствии с произведённым расчётом размер затрат на содержание заказчика-застройщика составит 787,725 тыс. руб. – 17% от годового объёма инвестиций, тогда как норма составляет не более 1%. Следовательно содержание службы заказчика для данного инвестиционного проекта не целесообразно, либо следует принять меры по уменьшению затрат, например, за счёт уменьшения затрат на аренду помещения или содержание автомобиля.

2.3 План инспекционных работ в период строительства

Земляные работы:

Технические требования к земляным работам устанавливаются СНиП 3.02.01 – 87 «Земляные сооружения, основания и фундаменты».

Входной. При выполнении проверки данного вида работ следует установить надежность закрепления: разбивочных знаков-столбиков, определяющих положение осей сооружений в плане, реперов (не менее двух у каждого отдельного здания), а также обноски и перенесение на нее осей зданий и сооружений.

 В ходе проверки должно быть учтено расположение в пределах котлованов, траншей и вблизи них эксплуатируемых коммуникаций и подземных сооружений.

В зависимости от условий строительства и принятых проектных решений по устройству оснований следует проконтролировать выполнение мероприятий и сооружений и защите оснований в ходе производства работ.

Выполнение земляных работ и возведение земляных сооружений должно осуществляться с систематическим и своевременным испытанием грунтов в требуемом объеме на соответствующих технологических этапах.

Таблица 7

№№ п.п.

Состав основных контролируемых параметров и нормативных требований

Предельные отклонения от нормативных параметров и требований

опрерационный

1

Организация отвода поверхностных вод:


1.1

наличие водоотводящих сооружений или временных канав и обвалования

с верховой стороны выемок

1.2

наличие кавальеров в пониженных местах

не реже чем через 50 м с разрывами не менее 30 м с низовой стороны выемок

приёмочный

2

Отклонения осей котлована относительно проектных осей

Не более 5 см

3.

Размеры котлованов и траншей под фундаменты

Не менее проектных

4.

Расстояние между подошвой откоса и сооружением (для котлованов с откосами)

Не менее 30 см

5.

Минимальная ширина траншей:


5.1

под ленточные фундаменты и другие подземные конструкции;

Не менее ширины конструкции с учетом опалубки, изоляции, креплений +0,2 м с каждой стороны

5.2

под трубопроводы с откосами положе 1:0,5

не менее наружного диаметра трубы с добавлением 0,5 м

6

Отклонение отметок основания под фундаменты относительно проектных

Не более 5 см

7.

Отклонение отметок дна траншей под трубопроводы и кабели после выполнения подготовки

Не более 5 см без нарушения уклонов

8.

Нарушения проектных уклонов траншей

Не более 0,5 см/м

9.

Отклонения отметок обратных засыпок и подсыпок от проектных:


9.1

вне помещений;

не более 5 см

9.2

в помещениях у дверных и оконных проемов, трапов и по лоткам

не более 20 мм

10.

Разность отметок в сопряжениях оснований под полы в смежных помещениях

не более 10 мм

Монтаж блоков ленточного фундамента:

Технические требования к блокам ленточного фундамента устанавливаются СНиП          3.03.01 – 87 «Несущие и ограждающие конструкции».

Входной контроль: при приемке законченных бетонных и железобетонных конструкций или частей сооружений следует проверять:

·   соответствие конструкций рабочим чертежам;

·   качество бетона по прочности, а в необходимых случаях по морозостойкости, водонепроницаемости и другим показателям, указанным в проекте;

·   качество применяемых в конструкции материалов, полуфабрикатов и изделий.

Приемку законченных бетонных и железобетонных конструкций или частей сооружений следует оформлять в установленном порядке актом освидетельствования скрытых работ или актом на приемку ответ­ственных конструкций.










Таблица 8

№ п/п

Наимено-вание ра-бот, под-лежащих  контролю

Контроль качества выполнения работ

Состав

Способ

Время

Допуски

Вид доку-ментации по регист-рации ре-зультатов контроля

1

2

3

4

5

6

7

1

Подготовительные работы

наличие документа о качестве

визуально

до начала установки блоков

-

Паспорта (сертификаты). Общий журнал работ. Акт освидетельствования скрытых работ

качество поверхности и внешнего вида блоков, точность их геометри-ческих размеров

визуально, измеритель-ный

до начала установки блоков

см. примеча-ния

перенос основных осей фундаментов на обноску

измеритель-ный

до начала установки

-

наличие акта освиде-тельствования работ по подготовке основания, наличие заключения о качестве и состоянии грунтов

визуально, измеритель-ный

до начала установки блоков

- 15 мм








 

 

готовность основания к монтажу фундамента

визуально

до начала установки блоков

-

 

подготовка фундамент-ных блоков к монтажу, в т.ч. очистка опорных по-верхностей от загрязне-ний и наледи

визуально, измеритель-ный

до начала установки блоков

-

2

Установка фундаментных блоков

установка фундамент-ных блоков, соответст-вие их положения в пла-не и по высоте требова-ниям проекта

измеритель-ный, каждый элемент

в процессе установки

20 мм

Общий журнал работ. Исполнительная геодезическая схема

плотность примыкания подошвы фундаментных блоков к поверхности основания

визуально

в процессе установки

10 мм

плотность примыкания элементов фундамента друг к другу

визуально, измеритель-ный

в процессе установки

стык между элемен-тами за-моноли-чивается

отметка верха конструк-ции фундамента

измеритель-ный, каждый элемент

в процессе установки

20 мм

заполнение швов цементным раствором согласно требованиям проекта

визуально

в процессе установки

марка раствора должна соответ-ствовать проекту

3

Приемка выполненных работ

отклонение отметок верхних опорных поверхностей элементов фундаментов от проектных

измеритель-ный, каждый элемент

по заверше-нии уста-новки фун-даментных блоков

20 мм

Исполнительная геодезическая схема. Акт приемки выполненных работ

отклонение осей фундаментных блоков относительно разбивочных осей

измеритель-ный

по заверше-нии уста-новки фун-даментных блоков

12 мм


Примечания:

1.   Контрольно-измерительный инструмент: отвес, рулетка металлическая, линейка металлическая, уровень, правило, нивелир;

2.   Операционный контроль осуществляют мастер (прораб), геодезист;

3.   Приемочный контроль осуществляют работники службы качества, мастер (прораб), геодезист, представители технадзора заказчика;

4.   Допустимые отклонения размеров блока:

·   по длине ± 13 мм;

·   по ширине и высоте ± 8 мм;

·   по размерам вырезов ± 5 мм;

·   отклонение от прямолинейности профиля поверхностей блока не должно превышать  3 мм на всю длину и ширину блока.

Монтаж плит перекрытия:

Технические требования к плитам перекрытия устанавливаются СНиП 3.03.01 – 87 «Несущие и ограждающие конструкции».

Входной контроль: при приемке законченных бетонных и железобетонных конструкций или частей сооружений следует проверять:

·   соответствие конструкций рабочим чертежам;

·   качество бетона по прочности, а в необходимых случаях по морозостойкости, водонепроницаемости и другим показателям, указанным в проекте;

·   качество применяемых в конструкции материалов, полуфабрикатов и изделий.

Приемку законченных бетонных и железобетонных конструкций или частей сооружений следует оформлять в установленном порядке актом освидетельствования скрытых работ или актом на приемку ответ­ственных конструкций. Предварительное складирование конструкций на приобъектных складах допускается только при соответствующем обосновании. Приобъект­ный склад должен быть расположен в зоне действия монтажного крана.

Операционный контроль. Монтаж конструкций каждого вышележащего этажа (яруса) много­этажного здания следует производить после проектного закрепления всех монтажных элементов и достижения бетоном (раствором) замоноличенных стыков несущих конструкций прочности, указанной в ППР.

 Марки растворов, применяемых при монтаже конструкций для уст­ройства постели, должны быть указаны в проекте. Подвижность раствора должна составлять 5—7 см по глубине погружения стандартного конуса, за исключением случаев, специально оговоренных в проекте.

Применение раствора, процесс схватывания которого уже начался, а также восстановление его пластичности путем добавления воды не допус­каются.

Приёмочный контроль. Предельные отклонения от совмещения ориентиров при установке сборных элементов, а также отклонения законченных монтажных конст­рукций от проектного положения не должны превышать величин, приведен­ных в табл.6

Примечания:

1.   Контрольно-измерительный инструмент: рулетка, линейка металлическая, нивелир;

2.   Операционный контроль осуществляют мастер (прораб), геодезист;

3.   Приемочный контроль осуществляют работники службы качества, мастер (прораб), представители технадзора заказчика;

4.   Отклонения от номинальных размеров плит, указанных в рабочих чертежах, не должны превышать:

·   по длине ± 10 мм;

·   по ширине ± 6 мм;

·   неплоскостность нижней поверхности плиты не должна превышать 8 мм;

5.   Поставленные на монтаж плиты перекрытий не должны иметь:

·   Жировых и ржавых пятен на лицевых поверхностях плит;

·   Трещин на поверхностях плит, за исключением усадочных и других поверхностных технологических трещин шириной не более 0,1 мм;

·   Наплывов бетона на открытых поверхностях стальных закладных изделий, выпусках арматуры и монтажных петлях.

Устройство наружных и внутренних стен из кирпича:

Технические требования к каменным конструкциям устанавливаются СНиП 3.03.01 – 87 «Несущие и ограждающие конструкции».

Входной контроль. Соответствие геомет­рической формы стан­дартам (отсутствие дефектов).

Проверка растворов на подвижность, плот­ность, расслаиваемость и прочность при сжа­тии.

Пооперационный контроль. Работы по возведению каменных конструкций должны выполняться в соответствии с проектом.

 Кладку кирпичных цоколей зданий необходимо выполнять из пол­нотелого керамического кирпича. Применение для этих целей силикатного кирпича не допускается.

 Не допускается ослабление каменных конструкций отверстиями, бороздами, нишами, монтажными проемами, не предусмотренными проек­том.

Каменную кладку заполнения каркасов следует выполнять в соот­ветствии с требованиями, предъявляемыми к возведению несущих камен­ных конструкций.

Толщина горизонтальных швов кладки из кирпича и камней пра­вильной формы должна составлять 12 мм, вертикальных швов — 10 мм.

При вынужденных разрывах кладку необходимо выполнять в виде наклонной или вертикальной штрабы.

При выполнении разрыва кладки вертикальной штрабой в швы кладки штрабы следует заложить сетку (арматуру) из продольных стерж­ней диаметром не более 6 мм, из поперечных стержней — не более 3 мм с расстоянием до 1,5 м по высоте кладки, а также в уровне каждого пере­крытия.

Число продольных стержней арматуры принимается из расчета одного стержня на каждые 12 см толщины стены, но не менее двух при толщине стены 12 см.

Разность высот возводимой кладки на смежных захватках и при кладке примыканий наружных и внутренних стен не должна превышать высоты этажа, разность высот между смежными участками кладки фунда­ментов — не превышать 1,2 м.

Установку креплений в местах примыкания железобетонных кон­струкций к кладке следует выполнять в соответствии с проектом.

Возведение каменных конструкций последующего этажа допускается только после укладки несущих конструкций перекрытий возведенного эта­жа, анкеровки стен и замоноличивания швов между плитами перекрытий.

Вертикальность граней и углов кладки из кирпича и камней, гори­зонтальность ее рядов необходимо проверять по ходу выполнения кладки (через 0,5—0,6 м) с устранением обнаруженных отклонений в пределах яруса.

После окончания кладки каждого этажа следует производить инст­рументальную проверку горизонтальности и отметок верха кладки незави­симо от промежуточных проверок горизонтальности ее рядов.

При многорядной перевязке швов укладка тычковых рядов под опор­ные части балок, прогонов, плит перекрытий, балконов, под мауэрлаты и другие сборные конструкции является обязательной. При однорядной (цеп­ной) перевязке швов допускается опирание сборных конструкций на ложковые ряды кладки.

 Обрез кирпичного цоколя и другие выступающие части кладки после их возведения следует защищать от попадания атмосферной влаги, следуя указаниям в проекте, при отсутствии указаний в проекте — цемент­но-песчаным раствором марки не ниже М100 и М50.

Приёмочный контроль: Приемку выполненных работ по возведению каменных конструк­ций необходимо производить до оштукатуривания их поверхностей.

Элементы каменных конструкций, скрытых в процессе производства строительно-монтажных работ в том числе:

§  места опирания  плит перекрытий на стены;

§  закрепление в кладке сборных железобетонных изделий;

§  закладные детали и их антикоррозионная защита;

§  уложенная в каменные конструкции арматура;

§  осадочные деформационные швы;

§  гидропароизоляция кладки, —

§  следует принимать по документам, удостоверяющим их соответствие проекту и нормативно-технической документации.

§  При приемке законченных работ по возведению каменных конструкций необходимо проверять:

§  правильность перевязки швов, их толщину и заполнение, а также горизонтальность рядов и вертикальность углов кладки;

§  правильность устройства деформационных швов;

§  правильность устройства дымовых и вентиляционных каналов в стенах;

§  качество поверхностей фасадных неоштукатуриваемых стен из кирпича;

§  качество фасадных поверхностей, облицованных керамическими, бетонными и другими видами камней и плит;

§  геометрические размеры и положение конструкций.

Отклонения в размерах и положении каменных конструкций от проектных не должны превышать указанных в табл. 9

Таблица 9

Предельные отклонения, мм

Проверяемые конструкции

Стен

столбов

Контроль (метод, вид

(детали)

из кирпича, керамических и природных камней правильной формы, из крупных блоков

регистрации)


Толщина конст­рукций

Отметки опорных поверхностей

Ширина простен­ков

Ширина проемов

Смещение верти­кальных    осей оконных проемов от вертикали

Смещение   осей конструкций  от разбивочных осей

Отклонения   по­верхностей и уг­лов кладки от вер­тикали:

   на один этаж

   на здание высо­той более двух этажей

Толщина   швов кладки:   

   горизонтальных 

   вертикальных

Отклонения ря­дов кладки от го­ризонтали на 10 м длины стены

Неровности на вер­тикальной поверх­ности кладки, об­наруженные при накладывании рейки длиной 2 м

Размеры сечения вентиляционных каналов


±15

–10

–15

+15

20


10 (10)




10 (5)

30 (30)

–2; +3

–2; +2

15 (15)

10



±5


±10

–10




10




10

30

–2; +3

–2; +2



5




Измеритель-ный, журнал работ

То же







Измеритель-ный, геодези-ческая испол-нительная схема


Технический осмотр, геоде-зическая ис-полнительная схема

Технический осмотр, журнал работ

Измеритель-ный, журнал работ

 

Устройство полов:

Технические требования к полам устанавливаются СНиП 3.04.01 – 87 «Изоляционные и отделочные покрытия».

   Таблица 10

Контроль качества при покрытии пола

№ п/п

Наимено-вание ра-бот, под-лежащих  контролю

Контроль качества выполнения работ

Состав

Способ

Время

Допуски

Вид доку-ментации по регист-рации ре-зультатов контроля

1

2

3

4

5

6

7

ПОЛЫ ИЗ КЕРАМИЧЕСКОЙ ПЛИТКИ

1

Подготовительные работы

качество керамических плиток, их внешний вид и геометрические размеры

визуально, измеритель-ный

до начала работ

см. примеча-ния

Общий журнал работ

наличие акта на посту-пивший раствор, качество раствора

визуально

в процессе работ

соответствие проекту

2

Устройство чистого пола

отклонение поверхнос-ти покрытия пола от плоскости

измеритель-ный, не ме-нее 9 изме-рений на каждые 50 – 70 кв.м. или в одном помещении меньшей площади

в процессе работ

не более      4 мм

Общий журнал работ

уступы между смеж-ными керамическими плитками

измеритель-ный, не ме-нее 9 изме-рений на каждые 50 – 70 кв.м.

в процессе работ

не более       1 мм

отклонение от заданно-го уклона покрытия

измеритель-ный, не ме-нее 9 изме-рений на каждые 50 – 70 кв.м.

в процессе работ

отклонение – 0,2 % соот-ветствую-щего разме-ра помеще-ния, но не более 50 мм

отклонение по толщи-не покрытия

измеритель-ный, не ме-нее 9 изме-рений на каждые 50 – 70 кв.м.

в процессе работ

не более    10 % от проектной

отклонение ширины швов между керами-ческими плитками

измеритель-ный

в процессе работ

не более      3 мм


ПОЛЫ ИЗ ЛИНОЛЕУМА

3

Подготовитель-ные работы

подготовка основания

измеритель-ный, не ме-нее 5 изме-рений на каждые 50 – 70 кв.м.

перед укладкой ковра

влажность основания не должна превышать  5 %


размер ковра, качество швов, внешний вид

измеритель-ный

перед устройст-вом покры-тия

см. примеча-ния

4

Устройство покрытия из линолеума

отклонение поверхнос-ти покрытия пола от плоскости

измеритель-ный, не ме-нее 9 изме-рений на каждые 50 – 70 кв.м. или в одном помещении меньшей площади

в процессе работ

не более      2 мм

Общий журнал работ

уступы между смеж-ными изделиями покрытий

измеритель-ный, не ме-нее 9 изме-рений на каждые 50 – 70 кв.м.

в процессе работ

не допускаются

отклонение от заданно-го уклона покрытия

измеритель-ный, не ме-нее 9 изме-рений на каждые 50 – 70 кв.м.

в процессе работ

отклонение – 0,2 % соот-ветствую-щего разме-ра помеще-ния, но не более 50 мм

отклонение по толщи-не покрытия

измеритель-ный, не ме-нее 9 изме-рений на каждые 50 – 70 кв.м.

в процессе работ

не более    10 % от проектной

толщина слоя клеевой прослойки

измеритель-ный, не ме-нее 5 изме-рений на каждые 50 – 70 кв.м.

в процессе работ

не более    0,8 мм

зазоры и щели между плинтусами и пок-рытием пола и стены

визуально

в процессе работ

не допускаются


МОЗАИЧНО-БЕТОННЫЕ ПОЛЫ

5

Подготовитель-ные работы

качество материалов

измеритель-ный

до начала рвбот

см. примеча-ния

Общий журнал работ

6

Устройство мозаично-бетонных полов

отклонение поверхнос-ти покрытия пола от плоскости

измеритель-ный, не ме-нее 9 изме-рений на каждые 50 – 70 кв.м. или в одном помещении меньшей площади

в процессе работ

не более      4 мм

Общий журнал работ

отклонение от заданно-го уклона покрытия

измеритель-ный, не ме-нее 9 изме-рений на каждые 50 – 70 кв.м.

в процессе работ

отклонение – 0,2 % соот-ветствую-щего разме-ра помеще-ния, но не более 50 мм

отклонение по толщи-не покрытия

измеритель-ный, не ме-нее 9 изме-рений на каждые 50 – 70 кв.м.

в процессе работ

не более    10 % от проектной

сцепление монолитных покрытий с нежележа-щими элементами пола

технический осмотр, про-стукование всей поверх-ности пола в центре квад-ратов по условной сетке                50 × 50 см

в процессе работ

отсутствие изменения характера звучания

качество поверхности покрытия

визуально

в процессе работ

отсутствие выбоин, тре-щин, соот-ветствие цвета покрытия проектному


Примечания:

1.   Контрольно-измерительный инструмент: линейка измерительная, рейка 2-х метровая, уровень;

2.   Операционный контроль осуществляют мастер (прораб), лаборатории;

3.   Приемочный контроль осуществляют работники службы качества, мастер (прораб), представители технадзора заказчика;

4.   Плитки должны иметь правильную форму, четкие грани и углы. Боковые грани плиток должны составлять прямой угол с их плоскостями. Допускаемое отклонение стороны прямого угла (косоугольность) не более 0,5 мм. Разница между наибольшими и наименьшими размерами плиток одной партии не должна превышать 4 мм. Различие в толщине одной плитки не более 1 мм;

5.   Отклонение размеров по длине и ширине ковра не должно быть более + 10 мм. Ковры не должны иметь более двух сварных швов на комнату;

6.   Подвижность бетонной смеси 8 – 12 см. Содержание песка на 1 куб. м. бетонной смеси на 150 – 200 кг больше, чем в обычных смесях. Максимальная крупность щебня, гравия и мраморной крошки не должна превышать 15 мм и 0,6 толщины покрытий. Мраморная крошка должна иметь прочность на сжатие не менее 60 МПа.

Заключение

Экспертиза технологических и архитектурно – строительных решений показала, что объект соответствует своему производственному назначению.

Данный цех оснащен всем необходимым инженерным оборудованием, которое обеспечивает надежность в работе и  эксплуатации. Существует естественное и искусственное освещение.

Размеры комнат, кабинетов, вестибюля, сантехнических узлов, а также дверные и оконные проемы, лестницы отвечают только необходимым требованиям.

Строительные конструкции выполнены в соответствии с характеристиками района застройки объекта. Материалы,  которые  используются в строительстве  соответствуют почти всем необходимым требованиям.

 В данном проекте существует ряд недочетов. Несмотря на то, что данный объект состоит из двух блоков  существуют вспомогательные помещения.

Так же к достаточно важным недоработкам проекта относятся размеры  коридоров, которые не удовлетворяют требованиям нормативной документации.

В проекте не предусмотрены какие – либо условия для инвалидов и граждан других маломобильных групп населения. Поэтому именно для такой группы населения следует разработать пандусы, которые должны иметь поручни.

Экспертиза экономической стороны предлагаемого проекта строительства цеха показала, что планируе­мый объём капитальных вложений (11 219,005 тыс.руб.), инвестируемых в дан­ный объект занижен.

Его действительная величина составляет 18 372,08тыс. руб. Стоимость 18 372,08 тыс.руб. является сметной стоимо­стью и соответственно рассчитана исходя из локальных, объектных смет и сводного сметного расчёта. Расчёт осуществлён по базисно – индексному ме­тоду, использованы укрупнённые показатели базисной стоимости по видам работ. Несоответствие предъявленной величины (11 219,005 тыс. руб.) и полу­ченной (18 372,08 тыс.руб.) связано с включением неполного состава работ при первоначальном расчёте.

Помимо определения стоимости строительства анализ технико– экономиче­ских показателей включает определение затрат, связанных с организацией технического надзора за строительством. Определение объёма средств на со­держание службы заказчика – застройщика показало, что содержание службы заказчика для данного инвестиционного проекта экономически не це­лесообразно, необходимо  будет уменьшить растраты. В соответствии с произведённым расчётом размер затрат на содержание заказчика-застройщика составит 787,725 тыс. руб. – 17% от годового объёма инвестиций, тогда как норма составляет не более 1%.

            При реализации проекта контроль за строительными процессами должен происходить по предлагаемому плану инспектирования работ. Он включает тщательное сопровождение   возведения основных конструктивных элемен­тов: фундаментных блоков, колонн, балок, плит покрытия и перекрытия, внешних и внутренних стен.

Экспертиза показала, что данный объект необходимо отправить на доработку и учесть все вышеперечисленные ошибки и недостатки.

Литература

  1. СНиП 2.01.01-82 «Строительная климатология»
  2. СНиП 2.04.01.85 «Внутренний водопровод».
  3. СНиП 3.03.01-87 «Несущие и ограждающие конструкции».
  4. СНиП 2.01.07-85 «Нагрузки и воздействия».
  5. СНиП 2.05.07-91 «Промышленный транспорт»
  6. СНиП 2.09.04-87 «Общественные здания и сооружения»
  7. МДС 12 - 5.2000 «Пособие для работника госархстройнадзора по осуще­ствлению контроля за качеством стоительно – монтажных ра­бот».
  8.  МДС 81 – 7.2000 «Методическое пособие по расчёту затрат на службу заказчика – застройщика».
  9. МДС 11-4.99 «Методические рекомендации по проведению экспертизы технико-экономических обоснований (проектов) на строительство предприятий, зданий и сооружений производственного назначения».
  10. МДС 81-7.2000 « Методическое пособие по расчёту затрат на службу заказчика-застройщика»
  11.  СНиП 2.01.02-85*Противопожарные нормы.
  12. СНиП 23-02-2003.Тепловая защита зданий.
  13. СТ СЭВ 3976-83.Здания жилые и общественные. Основные положения проектирования.
  14. Положение о заказчике-застройщике (едином заказчике, дирекции строящего предприятия) и техническом надзоре
  15. РДС 11-201-95 «Инструкция о порядке проведения государственной экспертизы».
  16. МДС 81-24.2000. Методические рекомендации по определении сметной стоимости строительства на базе показателей на отдельные виды работ.
  17.  МДС 51-1.2001. Основы технологии кирпичной кладки.
  18. НТП ЭПП-94 «Пректирование электроснабжения промышленных зданий»
  19. НПБ 110-2003 «Перечень зданий, сооружений, помещений и оборудования, подлежащих  защите автоматическими установками пожаротушения и автоматической пожарной сигнализацией»
  20. НПБ 105-2003 «Определение категорий помещений, зданий и наружных установок по взрывопожарной и пожарной опасности»
  21. ПОТ РО 14000-004-98 «Техническая эксплуатация промышленных зданий и сооружений»
  22. Справочник проектировщика «Архитектура промышленных предприятий, зданий и сооружений»/ В. А. Дроздов, Л.Ф. Гольденгерш.-М.: Стройиздат, 1990.-638с.

Похожие работы на - Экспертиза и инвестирование инвестиционных процессов

 

Не нашли материал для своей работы?
Поможем написать уникальную работу
Без плагиата!
Без нейросетей!